электронный сборник нормативных документов по строительству
Обновления
29.04.2026 22:53
электронный сборник нормативных документов по строительству

СП 34.13330.2021 (27.12.2024) АВТОМОБИЛЬНЫЕ ДОРОГИ СНиП 2.05.02-85*

Утв. и введен в действие Приказом Министерства строительства и жилищно-коммунального хозяйства РФ от 9 февраля 2021 г. N 53/пр

Свод правил СП-34.13330.2021

"АВТОМОБИЛЬНЫЕ ДОРОГИ" СНиП 2.05.02-85*

Automobile roads

С изменениями:

(27 декабря 2024 г.)

Дата введения - 10 августа 2021 года

Предисловие

Сведения о своде правил

1 ИСПОЛНИТЕЛИ - ЗАО "ПРОМТРАНСНИИПРОЕКТ", ФГБОУ "МАДИ"

2 ВНЕСЕН Техническим комитетом по стандартизации ТК 465 "Строительство"

3 ПОДГОТОВЛЕН к утверждению Департаментом градостроительной деятельности и архитектуры Министерства строительства и жилищно-коммунального хозяйства Российской Федерации (Минстрой России)

4 УТВЕРЖДЕН приказом Министерства строительства и жилищно-коммунального хозяйства Российской Федерации от 9 февраля 2021 г. N 53/пр и введен в действие с 10 августа 2021 г.

5 ЗАРЕГИСТРИРОВАН Федеральным агентством по техническому регулированию и метрологии (Росстандарт). Пересмотр 34.13330.2012 "СНиП 2.05.02-85* Автомобильные дороги"

В случае пересмотра (замены) или отмены настоящего свода правил соответствующее уведомление будет опубликовано в установленном порядке. Соответствующая информация, уведомление и тексты размещаются также в информационной системе общего пользования - на официальном сайте разработчика (Минстрой России) в сети Интернет

Введение

Настоящий свод правил разработан в целях соблюдения требований Федерального закона от 30 декабря 2009 г. N 384-ФЗ "Технический регламент о безопасности зданий и сооружений" с учетом требований федеральных законов от 27 декабря 2002 г. N 184-ФЗ "О техническом регулировании", от 22 июля 2008 г. N 123-ФЗ "Технический регламент о требованиях пожарной безопасности", от 8 ноября 2007 г. N 257-ФЗ "Об автомобильных дорогах и о дорожной деятельности в Российской Федерации и о внесении изменений в отдельные законодательные акты Российской Федерации" и Технического регламента Таможенного союза ТР ТС 014/2011 "Безопасность автомобильных дорог".

Пересмотр выполнен авторским коллективом: ЗАО "ПРОМТРАНСНИИПРОЕКТ" (руководитель темы - д-р техн. наук Л.А. Андреева, И.П. Потапов, И.В. Музыкин), ФГБОУ "МАДИ" (д-р техн. наук П.И. Поспелов, д-р техн. наук Э.М. Добров, канд. техн. наук А.В. Косцов, канд. техн. наук А.В. Корочкин, канд. техн. наук Ю.В. Кузнецов, канд. техн. наук А.П. Шевяков, канд. техн. наук В.П. Залуга, канд. техн. наук А.С. Холин, канд. техн. наук Д.С. Мартяхин, канд. техн. наук С.С. Мордвин, канд. техн. наук В.В. Рудакова, Л.А. Лыгина, В.В. Корчененкова, А.А. Зуйков), ФГБОУ "СПбГАСУ" (канд. техн. наук М.П. Клековкина, канд. техн. наук Э.Д. Бондарева), ГБУ "МОСГОРГЕОТРЕСТ" (канд. техн. наук Д.М. Немчинов), ООО "Институт прикладных транспортных исследований" (канд. техн. наук Д.В. Енин).

Изменение N 1 к настоящему своду правил разработано авторским коллективом: АО "ЦНИИПромзданий" (канд. техн. наук Н.Г. Келасьев), ОО "Российская академия транспорта" (д-р техн. наук Л.А. Андреева, канд. техн. наук А.В. Косцов, И.С. Царьков, И.П. Потапов), ГБУ "Мосгоргеотрест" (канд. техн. наук Д.М. Немчинов), РУТ МИИТ (канд. техн. наук С.Н. Карасевич), ГАУ "Институт Генплана Москвы" (Т.К. Комарова).

1 Область применения

Настоящий свод правил устанавливает нормы проектирования на вновь строящиеся, реконструируемые и капитально ремонтируемые автомобильные дороги общего пользования, классифицированные по ГОСТ 33382.

Требования настоящего свода правил не распространяются на проектирование временных автомобильных дорог, сооружаемых на срок службы менее 5 лет; внутрихозяйственных дорог, классифицированных по СП 99.13330; автозимников, классифицированных по ГОСТ Р 58948; улиц и дорог, проходящих в пределах населенных пунктов и классифицированных по СП 42.13330.

2 Нормативные ссылки

В настоящем своде правил использованы нормативные ссылки на следующие документы:

ГОСТ 17.4.3.02-85 Охрана природы. Почвы. Требования к охране плодородного слоя почвы при производстве земляных работ

ГОСТ 17.5.3.06-85 Охрана природы. Земли. Требования к определению норм снятия плодородного слоя почвы при производстве земляных работ

ГОСТ 22733-2016 Грунты. Метод лабораторного определения максимальной плотности

ГОСТ 25100-2020 Грунты. Классификация

ГОСТ 25584-2023 Грунты. Методы лабораторного определения коэффициента фильтрации

ГОСТ 27751-2014 Надежность строительных конструкций и оснований. Основные положения

ГОСТ 32703-2014 Дороги автомобильные общего пользования. Щебень и гравий из горных пород. Технические требования

ГОСТ 32826-2014 Дороги автомобильные общего пользования. Щебень и песок шлаковые. Технические требования

ГОСТ 32836-2014 Дороги автомобильные общего пользования. Изыскания автомобильных дорог. Общие требования

ГОСТ 32846-2014 Дороги автомобильные общего пользования. Элементы обустройства. Классификация

ГОСТ 32847-2014 Дороги автомобильные общего пользования. Требования к проведению экологических изысканий

ГОСТ 32868-2014 Дороги автомобильные общего пользования. Требования к проведению инженерно-геологических изысканий

ГОСТ 32869-2014 Дороги автомобильные общего пользования. Требования к проведению топографо-геодезических изысканий

ГОСТ 32871-2014 Дороги автомобильные общего пользования. Трубы дорожные водопропускные. Технические требования

ГОСТ 32944-2014 Дороги автомобильные общего пользования. Пешеходные переходы. Классификация. Общие требования

ГОСТ 32965-2014 Дороги автомобильные общего пользования. Методы учета интенсивности движения транспортного потока

ГОСТ 33062-2014 Дороги автомобильные общего пользования. Требования к размещению объектов дорожного и придорожного сервиса

ГОСТ 33063-2014 Дороги автомобильные общего пользования. Классификация типов местности и грунтов

ГОСТ 33078-2014 Дороги автомобильные общего пользования. Методы измерения сцепления колеса автомобиля с покрытием

ГОСТ 33100-2023 Дороги автомобильные общего пользования. Правила проектирования автомобильных дорог

ГОСТ 33149-2014 Дороги автомобильные общего пользования. Правила проектирования автомобильных дорог в сложных условиях

ГОСТ 33150-2014 Дороги автомобильные общего пользования. Проектирование пешеходных и велосипедных дорожек. Общие требования

ГОСТ 33177-2014 Дороги автомобильные общего пользования. Требования к проведению инженерно-гидрологических изысканий

ГОСТ 33178-2014 Дороги автомобильные общего пользования. Классификация мостов

ГОСТ 33382-2015 Дороги автомобильные общего пользования. Техническая классификация

ГОСТ 33384-2015 Дороги автомобильные общего пользования. Проектирование мостовых сооружений. Общие требования

ГОСТ 33390-2015 Дороги автомобильные общего пользования. Мосты. Нагрузки и воздействия

ГОСТ 33391-2015 Дороги автомобильные общего пользования. Мостовые сооружения. Габариты приближения конструкций

ГОСТ 33475-2015 Дороги автомобильные общего пользования. Геометрические элементы. Технические требования

ГОСТ Р 50597-2017 Дороги автомобильные и улицы. Требования к эксплуатационному состоянию, допустимому по условиям обеспечения безопасности дорожного движения. Методы контроля

ГОСТ Р 52289-2019 Технические средства организации дорожного движения. Правила применения дорожных знаков, разметки, светофоров, дорожных ограждений и направляющих устройств

ГОСТ Р 52399-2022 Дороги автомобильные общего пользования. Геометрические элементы. Технические требования

ГОСТ Р 52765-2007 Дороги автомобильные общего пользования. Элементы обустройства. Классификация

ГОСТ Р 52766-2007 Дороги автомобильные общего пользования. Элементы обустройства. Общие требования

ГОСТ Р 55028-2012 Дороги автомобильные общего пользования. Материалы геосинтетические для дорожного строительства. Классификация, термины и определения

ГОСТ Р 55029-2020 Дороги автомобильные общего пользования. Материалы геосинтетические для армирования асфальтобетонных слоев дорожной одежды. Технические требования

ГОСТ Р 56338-2015 Дороги автомобильные общего пользования. Материалы геосинтетические для армирования нижних слоев основания дорожной одежды. Технические требования

ГОСТ Р 56419-2015 Дороги автомобильные общего пользования. Материалы геосинтетические для разделения слоев дорожной одежды из минеральных материалов. Технические требования

ГОСТ Р 58107.1-2018 Освещение автомобильных дорог общего пользования. Нормы и методы расчета

ГОСТ Р 58401.1-2019 Дороги автомобильные общего пользования. Смеси асфальтобетонные дорожные и асфальтобетон. Система объемно-функционального проектирования. Технические требования

ГОСТ Р 58401.2-2019 Дороги автомобильные общего пользования. Смеси асфальтобетонные дорожные и асфальтобетон щебеночно-мастичные. Система объемно-функционального проектирования. Технические требования

ГОСТ Р 58406.1-2020 Дороги автомобильные общего пользования. Смеси щебеночно-мастичные асфальтобетонные и асфальтобетон. Технические условия

ГОСТ Р 58406.2-2020 Дороги автомобильные общего пользования. Смеси горячие асфальтобетонные и асфальтобетон. Технические условия

ГОСТ Р 58422.1-2021 Дороги автомобильные общего пользования. Защитные слои и слои износа дорожных одежд. Технические требования

ГОСТ Р 58653-2019 Дороги автомобильные общего пользования. Пересечения и примыкания. Технические требования

ГОСТ Р 58770-2019 Дороги автомобильные общего пользования. Смеси щебеночно-песчаные шлаковые. Технические условия

ГОСТ Р 58818-2020 Дороги автомобильные с низкой интенсивностью движения. Проектирование, конструирование и расчет

ГОСТ Р 58947-2020 Дороги автомобильные общего пользования. Экодуки. Требования к размещению и обустройству

ГОСТ Р 58948-2020 Дороги автомобильные общего пользования. Дороги автомобильные зимние и ледовые переправы. Технические правила устройства и содержания

ГОСТ Р 59120-2021 Дороги автомобильные общего пользования. Дорожная одежда. Общие требования

ГОСТ Р 59401-2021 Дороги автомобильные общего пользования. Ограничивающие пешеходные и защитные ограждения. Общие технические условия

ГОСТ Р 59574-2021 Щебень на основе пеностекла. Технические условия

ГОСТ Р 59611-2021 Дороги автомобильные общего пользования. Система водоотвода. Требования к проектированию

ГОСТ Р 59697-2021 Дороги автомобильные общего пользования. Блоки из полистирольных вспененных экструзионных изделий (XPS-блоки). Общие технические условия

ГОСТ Р 70092-2022 Дороги автомобильные общего пользования. Требования к проведению экономических изысканий

ГОСТ Р 70124-2022 Дороги автомобильные общего пользования. Организация и безопасность дорожного движения на автомагистралях и скоростных автомобильных дорогах. Общие требования

ГОСТ Р 70196-2022 Дороги автомобильные общего пользования. Комплексные минеральные вяжущие для стабилизации и укрепления грунтов. Технические условия

ГОСТ Р 70197.1-2022 Дороги автомобильные общего пользования. Смеси органоминеральные холодные с использованием вторичного асфальтобетона. Общие технические условия

ГОСТ Р 70362-2022 Дороги автомобильные общего пользования. Бетоны для устройства слоев оснований и покрытий. Технические условия

ГОСТ Р 70396-2022 Дороги автомобильные общего пользования. Смеси теплые асфальтобетонные и асфальтобетон. Общие технические условия

ГОСТ Р 70397-2022 Дороги автомобильные общего пользования. Смеси теплые щебеночно-мастичные асфальтобетонные и асфальтобетон. Общие технические условия

ГОСТ Р 70452-2022 Дороги автомобильные общего пользования. Грунты стабилизированные и укрепленные неорганическими вяжущими. Общие технические условия

ГОСТ Р 70453-2022 Дороги автомобильные общего пользования. Грунты, укрепленные органическими вяжущими. Общие технические условия

ГОСТ Р 70454-2022 Дороги автомобильные общего пользования. Смеси щебеночно-гравийно-песчаные, обработанные органическими вяжущими. Общие технические условия

ГОСТ Р 70455-2022 Дороги автомобильные общего пользования. Смеси щебеночно-гравийно-песчаные, обработанные неорганическими вяжущими. Общие технические условия

ГОСТ Р 70458-2022 Дороги автомобильные общего пользования. Смеси щебеночно-гравийно-песчаные. Общие технические условия

ГОСТ Р 70555-2022 Дороги автомобильные общего пользования. Пересечения кольцевые. Правила проектирования

ГОСТ Р 70648-2023 Дороги автомобильные общего пользования. Смеси холодные асфальтобетонные и асфальтобетон. Общие технические условия

ГОСТ Р 70716-2023 Дороги автомобильные и улицы. Безопасность движения пешеходов. Общие требования

ГОСТ Р 71329-2024 Дороги автомобильные общего пользования. Смеси песчано-гравийные. Общие технические условия

ГОСТ Р 71244-2024 Дороги автомобильные с низкой интенсивностью движения. Дорожная одежда. Конструирование и расчет

ГОСТ Р 71404-2024 Дороги автомобильные общего пользования. Нежесткие дорожные одежды. Правила проектирования

ГОСТ Р 71405-2024 Дороги автомобильные общего пользования. Проектирование дорожных одежд. Методика расчета коэффициентов приведения транспортных средств к расчетной осевой нагрузке

СП 14.13330.2018 "СНиП II-7-81* Строительство в сейсмических районах" (с изменениями N 2, N 3)

СП 35.13330.2011 "СНиП 2.05.03-84* Мосты и трубы" (с изменениями N 1, N 2, N 3, N 4)

СП 39.13330.2012 "СНиП 2.06.05-84* Плотины из грунтовых материалов" (с изменениями N 1, N 2, N 3)

СП 42.13330.2016 "СНиП 2.07.01-89* Градостроительство. Планировка и застройка городских и сельских поселений" (с изменениями N 1, N 2, N 3, N 4)

СП 47.13330.2016 "СНиП 11-02-96 Инженерные изыскания для строительства. Основные положения" (с изменением N 1)

СП 48.13330.2019 "СНиП 12-01-2004 Организация строительства" (с изменением N 1)

СП 59.13330.2020 "СНиП 35-01-2001 Доступность зданий и сооружений для маломобильных групп населения" (с изменениями N 1, N 2)

СП 78.13330.2012 "СНиП 3.06.03-85 Автомобильные дороги" (с изменениями N 1, N 2, N 3)

СП 99.13330.2016 "СНиП 2.05.11-83 Внутрихозяйственные автомобильные дороги в колхозах, совхозах и других сельскохозяйственных предприятиях и организациях"

СП 104.13330.2016 "СНиП 2.06.15-85 Инженерная защита территории от затопления и подтопления" (с изменением N 1)

СП 116.13330.2012 "СНиП 22-02-2003 Инженерная защита территорий, зданий и сооружений от опасных геологических процессов. Основные положения" (с изменениями N 1, N 2)

СП 122.13330.2023 "СНиП 32-04-97 Тоннели железнодорожные и автодорожные"

СП 131.13330.2020 "СНиП 23-01-99* Строительная климатология" (с изменениями N 1, N 2)

СП 136.13330.2012 Здания и сооружения. Общие положения проектирования с учетом доступности для маломобильных групп населения (с изменениями N 1, N 2)

СП 227.1326000.2014 Пересечения железнодорожных линий с линиями транспорта и инженерными сетями

СП 313.1325800.2017 Дороги автомобильные в районах вечной мерзлоты. Правила проектирования и строительства (с изменением N 1)

СП 396.1325800.2018 Улицы и дороги населенных пунктов. Правила градостроительного проектирования (с изменениями N 1, N 2)

СП 502.1325800.2021 Инженерно-экологические изыскания для строительства. Общие правила производства работ

Примечание - При пользовании настоящим сводом правил целесообразно проверить действие ссылочных документов в информационной системе общего пользования - на официальном сайте федерального органа исполнительной власти в сфере стандартизации в сети Интернет, на официальном сайте федерального органа исполнительной власти, разработавшего и утвердившего настоящий свод правил, или по ежегодному информационному указателю "Национальные стандарты", который опубликован по состоянию на 1 января текущего года, и по выпускам ежемесячного информационного указателя "Национальные стандарты" за текущий год. Если заменен ссылочный документ, на который дана недатированная ссылка, то рекомендуется использовать действующую версию этого документа с учетом всех внесенных в данную версию изменений. Если заменен ссылочный документ, на который дана датированная ссылка, то рекомендуется использовать версию этого документа с указанным выше годом утверждения (принятия). Если после утверждения настоящего свода правил в ссылочный документ, на который дана датированная ссылка, внесено изменение, затрагивающее положение, на которое дана ссылка, то это положение рекомендуется применять без учета данного изменения. Если ссылочный документ отменен без замены, то положение, в котором дана ссылка на него, рекомендуется применять в части, не затрагивающей эту ссылку. Сведения о действии сводов правил целесообразно проверить в Федеральном информационном фонде стандартов.

3 Термины и определения

В настоящем своде правил применены термины согласно [1], [2], ГОСТ 32846, ГОСТ 33100, ГОСТ 33475, СП 59.13330, СП 78.13330, ГОСТ Р 52765, ГОСТ Р 55028, ГОСТ Р 58818, ГОСТ Р 59611, ГОСТ Р 52399, ГОСТ Р 58653, а также следующие термины с соответствующими определениями:

3.1 видимость встречного автомобиля при обгоне: Минимальное расстояние видимости до движущегося с расчетной скоростью встречного автомобиля, которое необходимо для безопасной остановки совершающего обгон и движущегося по встречной полосе автомобиля.

3.2 диаметр кольцевого пересечения: Диаметр внешней кромки кольцевой проезжей части.

3.2а заброшенные населенные пункты: Населенные пункты, где отсутствует население.

3.3 зрительное ориентирование: Свойство геометрических закономерностей трассы дороги, конструктивных особенностей элементов ее обустройства и организации придорожной среды, обеспечивающих информирование водителей о тенденции развития трассы и предстоящих условиях движения.

3.4, 3.5 исключены с 28.01.2025. - Изменение N 1

3.6 кольцевое пересечение: Пересечение в одном уровне с центральным островком, как правило, в форме окружности, и кольцевой проезжей частью, по которой осуществляется движение автомобилей против хода часовой стрелки.

3.7 линейно-кабельные сооружения транспортной многоканальной коммуникации; ЛКС ТМК: Объекты инженерной инфраструктуры на основе микротрубочной многоканальной коммуникации, проложенной в том числе вдоль линейных транспортных объектов в мини-траншее для размещения в них кабелей различного назначения.

3.7а

многофункциональный комплекс сервиса: Имущественный комплекс, представляющий собой совокупность объектов дорожного и придорожного сервиса, включающую парковки для транспортных средств, площадки отдыха, туалеты, автозаправочные станции, пункты питания, торговли и мойки, мотели (кемпинги), станции технического обслуживания, автостоянки, вертолетные площадки и площадки аварийно-спасательных служб, привлекаемых для ликвидации последствий дорожно-транспортных происшествий, специализированные автостоянки служб эвакуации транспортных средств, а также другие объекты, обеспечивающую широкий спектр сервисных услуг для участников дорожного движения.

[ГОСТ 33062-2014, пункт 3.12]

3.8 объект тяготения: Территории или сооружения, которые обслуживает дорожная сеть.

3.9 переходная кривая: Геометрический элемент переменной кривизны, предназначенный для зрительного ориентирования и информирования водителей о тенденции развития трассы и принятия ими своевременных мер для плавного, безопасного и комфортного изменения режимов движения.

3.10 переходно-скоростная полоса разгона: Переходно-скоростная полоса, в состав которой входит участок для увеличения скорости автомобилей до скорости транспортного потока по основной полосе движения для свободного вхождения в него.

3.11 переходно-скоростная полоса торможения: Переходно-скоростная полоса, в состав которой входит участок для снижения скорости транспортных средств при выезде из основной полосы транспортного потока для последующего въезда на съезд транспортной развязки или другую дорогу.

3.12 правоповоротная полоса кольцевого пересечения: Дополнительная полоса, предназначенная только для движения автомобилей, выполняющих правый поворот; устраивается при высокой интенсивности правоповоротного транспортного потока в пределах кольцевой проезжей части или вне ее.

3.13 примыкание в одном уровне: Пересечение, где к одной дороге присоединяется в одном уровне другая дорога, не имеющая прямого продолжения и прерывающаяся в месте соединения.

3.14 расстояние между пересечениями в разных уровнях (транспортными развязками): Расстояние между точкой конца последнего отгона переходно-скоростной полосы разгона одного пересечения в разных уровнях (транспортной развязки) и началом отгона переходно-скоростной полосы торможения следующего за ней пересечения в разных уровнях (транспортной развязки).

3.15 съезд: Конструктивный элемент дороги, обеспечивающий возможность поворота автомобиля с одной дороги на другую дорогу.

3.16 уклон виража: Односторонний поперечный уклон проезжей части на кривой в плане.

3.17 участок переплетения транспортных потоков: Участок автомобильной дороги или съезда, в пределах которого расположена конфликтная точка переплетения транспортных потоков.

3.18 участок разделения транспортных потоков: Участок автомобильной дороги или съезда, в пределах которого расположена конфликтная точка разделения транспортных потоков.

3.19 участок слияния транспортных потоков: Участок автомобильной дороги или съезда, в пределах которого расположена конфликтная точка слияния транспортных потоков.

3.20 уровень удобства движения: Комплексный показатель экономичности, удобства и безопасности движения, характеризующий состояние транспортного потока.

3.21 ценные сельскохозяйственные угодья: Орошаемые, осушенные и другие мелиорированные земли, занятые многолетними плодовыми насаждениями и виноградниками, а также участки с высоким естественным плодородием почв и другие приравниваемые к ним земельные угодья.

3.22 центральный островок кольцевого пересечения: Расположенный в центре элемент кольцевого пересечения, вокруг которого происходит перераспределение движения автомобилей по разным направлениям.

3.23 ширина кольцевой проезжей части: Сумма ширин полос движения, равная расстоянию от центрального островка до внешней кромки кольцевой проезжей части.

Земляное полотно

3.24 грунтовые воды: Подземные воды первого от поверхности земли постоянного водоносного горизонта, расположенного на первом водонепроницаемом слое.

3.25 защита от эрозии поверхности: Предотвращение или ограничение перемещения грунта или других частиц по поверхности защищаемого объекта под воздействием ветра и воды.

3.26 канава боковая придорожная: Канава, проходящая вдоль земляного полотна для сбора и отвода поверхностных вод, с поперечным сечением лоткового, треугольного или трапецеидального профиля.

3.27 канава нагорная: Канава, расположенная с нагорной стороны от дороги для перехвата стекающей по склону воды и с отводом ее от дороги.

3.28 коэффициент уплотнения грунта: Отношение фактической плотности сухого грунта (скелета) в конструкции к максимальной плотности того же сухого грунта, определяемой в лаборатории при испытании методом стандартного уплотнения.

3.29 морозозащитный слой: Дополнительный слой основания дорожной одежды из непучинистых и слабопучинистых материалов с коэффициентом фильтрации не менее 0,5 м/сут, обеспечивающий совместно с другими слоями основания и покрытия защиту конструкции от недопустимых деформаций морозного пучения.

3.30 нестабильные слои насыпи: Слои из мерзлых или талых переувлажненных грунтов, которые в насыпи имеют переменный коэффициент уплотнения, вследствие чего при оттаивании или длительном действии нагрузок могут возникать неоднородные остаточные деформации слоя.

3.31 откос (насыпи, выемки): Боковая наклонная поверхность, ограничивающая искусственное земляное сооружение.

3.32 основание выемки: Массив грунта в условиях естественного залегания ниже границы рабочего слоя.

3.33 основание насыпи: Массив грунта в условиях естественного залегания, располагающийся ниже насыпного слоя.

3.34 поверхностный водоотвод: Устройства, предназначенные для отвода воды с поверхности дороги; дренажные устройства, служащие для отвода воды с поверхности земляного полотна.

3.35 рабочий слой земляного полотна (подстилающий грунт): Верхняя часть земляного полотна в пределах от низа дорожной одежды до уровня, соответствующего 2/3 глубины промерзания конструкции, но не менее 1,5 м, считая от поверхности покрытия.

3.36 стабилизация дискретных материалов: Улучшение механического поведения несвязного каменного материала путем включения геосинтетических материалов, ограничивающих перемещения частиц заполнителя в целях снижения деформации слоя в случае приложения нагрузки.

3.37 укрепление откосов: Обеспечение местной устойчивости откосов за счет применения конструкций укрепления различных типов и видов для защиты от погодно-климатических факторов, водной и ветровой эрозии, силовых воздействий поверхностных вод.

3.38 ширина земляного полотна: Расстояние между бровками земляного полотна.

Дорожные одежды

3.39 дополнительные слои основания дорожной одежды: Слои между несущим основанием и подстилающим грунтом, предусматриваемые для обеспечения требуемой морозоустойчивости и дренирования конструкции.

3.40 исключен с 28.01.2025. - Изменение N 1

3.41 защитный слой покрытия дорожной одежды: Слой, устраиваемый на поверхности верхнего слоя покрытия, предназначенный для его защиты от непосредственного воздействия колес автомобильного транспорта и (или) комплекса погодно-климатических факторов и не учитывающийся при расчетах на прочность.

3.42 классификация дорожных одежд: Разделение дорожных одежд по типам исходя из их капитальности, характеризующей работоспособность дорожной одежды.

3.43 нормативная осевая нагрузка: Полная нагрузка от наиболее нагруженной оси условного двухосного автомобиля, к которой приводятся все автомобили с осевыми нагрузками, устанавливаемая нормативными документами для дорожных одежд при заданной капитальности и используемая для определения расчетной нагрузки при расчете дорожной одежды на прочность.

3.44 максимальный размер зерен минерального заполнителя асфальтобетона: Размер зерен минерального заполнителя, который на один размер больше номинального максимального размера зерен минерального заполнителя.

3.45 осевая расчетная нагрузка: Максимальная нагрузка на наиболее нагруженную ось для двухосных автомобилей или на приведенную ось для многоосных автомобилей, доля которых в составе движения с учетом перспективы изменения к концу межремонтного срока составляет не менее 5%.

3.46 слой износа: Верхний замыкающий слой дорожной одежды, непосредственно воспринимающий воздействие колес автомобильного транспорта и погодно-климатических факторов.

3.47 твердое покрытие: Дорожное покрытие в составе дорожных одежд капитального, облегченного и переходного типов.

Безопасность движения

3.48 уровень безопасности дорожного движения: Соответствие дорожных условий безопасности дорожного движения.

3.49 характерный участок дороги: Участок проектируемой дороги, на протяжении которого основные элементы, параметры и характеристики остаются неизменными.

4 Общие положения

4.1 Проектирование автомобильных дорог должно осуществляться на основе документов территориального планирования: схем территориального планирования муниципальных районов, схем территориального планирования субъектов Российской Федерации, схем территориального планирования Российской Федерации в сфере транспорта.

Проектирование автомобильной дороги следует осуществлять как часть единой дорожной сети, состоящей из системы взаимосвязанных автомобильных дорог и имеющей иерархически построенную структуру в зависимости от транспортной функции, выполняемой автомобильной дорогой.

Проектирование автомобильных дорог должно осуществляться на основе материалов топографо-геодезических, инженерно-гидрометеорологических, инженерно-геологических, экономических, инженерно-экологических изысканий, других специальных и специфических видов изысканий в соответствии с ГОСТ 32836, ГОСТ 32847, ГОСТ 32868, ГОСТ 32869, ГОСТ 33177, ГОСТ Р 70092, СП 47.13330. В состав проектов автомобильных дорог необходимо включать результаты оценки воздействия на окружающую среду.

4.2 Автомобильные дороги должны обеспечивать безопасное и удобное движение автомобилей (приложение А) и пешеходов, соблюдение принципа зрительного ориентирования водителей и иметь защитные дорожные сооружения и обустройства, а также производственные объекты для ремонта и содержания дорог.

Безопасность движения пешеходов следует обеспечивать в соответствии с требованиями ГОСТ Р 70716.

4.3 Надежность конструкций и сооружений автомобильных дорог должна соответствовать требованиям ГОСТ 27751.

4.4 При проектировании автомобильных дорог и дорожной инфраструктуры необходимо предусматривать мероприятия по обеспечению комфортных и безопасных условий для маломобильных групп населения (МГН) по СП 59.13330, СП 136.13330.

4.5 Категорию дороги следует устанавливать в зависимости от функционального класса дороги (таблицы 4.1, 4.2) и расчетной среднесуточной приведенной интенсивности движения (таблица 4.3) с учетом результатов экономических изысканий по ГОСТ Р 70092.

Таблица 4.1 - Функциональная классификация автомобильных дорог

Функциональный класс дороги

Транспортная функция

Соединяют

Основные магистральные автомобильные дороги

- Обеспечивают международные и межрегиональные транспортные связи, включают непрерывные маршруты, обеспечивающие передвижения интенсивных транспортных потоков

- Столицу Российской Федерации г. Москву со столицами иностранных государств;

- столицу Российской Федерации г. Москву с административными центрами субъектов Российской Федерации;

- автомобильные дороги, включенные в перечень международных (в соответствии с международными соглашениями Российской Федерации), между собой или являются их частью;

- автомобильные дороги, являющиеся международными транспортными коридорами, входящие в европейскую (Е) и азиатскую (А) дорожную сеть, или являются их частью

Второстепенные магистральные автомобильные дороги

- Обеспечивают основные межрегиональные транспортные связи;

- обеспечивают подъезд от магистральных автомобильных дорог или городов (административных центров субъектов Российской Федерации) к транспортным узлам, имеющим межгосударственное и федеральное значение

- Административные центры субъектов Российской Федерации, крупные и крупнейшие города между собой;

- магистральные автомобильные дороги с транспортными узлами (морские порты, речные порты, аэропорты, железнодорожные станции и другие транспортные объекты), имеющими международное и федеральное значение

Основные распределительные автомобильные дороги

- Обеспечивают перераспределение транспортных потоков между магистральными автомобильными дорогами и автомобильными дорогами местного значения;

- обеспечивают транспортную связь сети магистральных автомобильных дорог с крупными и крупнейшими городами;

- обеспечивают транспортную связь крупнейших городов Российской Федерации с обслуживающими их транспортными узлами;

- обеспечивают транспортную связь магистральных автомобильных дорог с объектами тяготения федерального значения

- Магистральные автомобильные дороги между собой;

- магистральные автомобильные дороги с крупными и крупнейшими городами;

- крупнейшие города Российской Федерации с обслуживающими их транспортными узлами (морскими и речными портами, аэропортами, железнодорожными станциями и другими транспортными объектами);

- магистральные автомобильные дороги с объектами тяготения (в том числе специального назначения) федерального значения

Распределительные дороги автомобильные регионального значения (распределительные автомобильные дороги *)

- Обеспечивают перераспределение транспортных потоков между магистральными автомобильными дорогами и автомобильными дорогами местного значения;

- обеспечивают связь магистральных и распределительных автомобильных дорог с административными центрами субъектов Российской Федерации, с административными центрами муниципальных районов, городских округов;

- обеспечивают транспортную связь административных центров субъектов Российской Федерации с административными центрами муниципальных районов, городских округов;

- обеспечивают транспортную связь административных центров субъектов Российской Федерации, муниципальных районов, городских округов с транспортными узлами регионального и межмуниципального значения;

- обеспечивают подъезд к объектам тяготения регионального и межмуниципального значения

- Магистральные автомобильные дороги с распределительными автомобильными дорогами;

- магистральные автомобильные дороги с местными автомобильными дорогами;

- распределительные автомобильные дороги с местными автомобильными дорогами;

- магистральные и распределительные автомобильные дороги с административными центрами субъектов Российской Федерации, с административными центрами муниципальных районов, городских округов;

- административные центры субъектов Российской Федерации с административными центрами муниципальных районов, городских округов;

- административные центры субъектов Российской Федерации, муниципальных районов, городских округов с транспортными узлами (аэропортами, морскими, речными портами и другими транспортными объектами) регионального и межмуниципального значения;

- дорожная сеть общего пользования с объектами тяготения (в том числе специального назначения) регионального и межмуниципального значения

Местные автомобильные дороги

Обеспечивают прочие транспортные связи

-

* Для автомобильных дорог с НИД.

Таблица 4.2 - Соответствие функционального класса автомобильных дорог классам и категориям автомобильных дорог

Функциональный класс

Класс автомобильной дороги

Категория автомобильной дороги

Основные магистральные автомобильные дороги

Автомагистраль

Обычная дорога

II, III

Второстепенные магистральные автомобильные дороги

Скоростная дорога

Обычная дорога

*, II, III

Основные распределительные автомобильные дороги

Скоростная дорога

Обычная дорога

*, II, III

Распределительные автомобильные дороги регионального значения (распределительные автомобильные дороги)

Обычная дорога

II, III, IV, IVА-р, IVБ-р

Местные автомобильные дороги, подъезды **

Обычная дорога

III, IV, IVА-п, IVБ-п, VА, VБ

* Категорию IВ на второстепенных магистральных и основных распределительных автомобильных дорогах допускается назначать на трудных участках горной местности, при капитальном ремонте и реконструкции.

** Для автомобильных дорог с НИД в соответствии с ГОСТ Р 58818.

Таблица 4.3 - Соответствие расчетной среднесуточной интенсивности движения категории автомобильной дороги

Категория автомобильной дороги

Расчетная среднесуточная интенсивность движения, приведенных ед./сут

IА, IБ, IВ

14001 и более

II

6001 - 14000 *

III

2001 - 6000

IV

401 ** - 2000

IVА-р, IVБ-р, IVА-п, IVБ-п, VА, VБ

В соответствии с ГОСТ Р 58818

* При организации движения по четырем полосам движения на автомобильных дорогах категории II расчетную среднесуточную интенсивность движения следует принимать в соответствии с данными, указанными в таблице 5.11.

** Уточняется по результатам экономических изысканий с учетом требований ГОСТ Р 58818.

Проектирование дорог с низкой интенсивностью движения (НИД) следует вести в соответствии с требованиями ГОСТ Р 58818.

4.6 При определении расчетной среднесуточной интенсивности по прогнозным данным коэффициенты приведения интенсивности движения различных транспортных средств к легковому автомобилю следует принимать в соответствии с требованиями ГОСТ 32965.

4.7 Расчетную интенсивность движения следует принимать суммарно в обоих направлениях на основе данных экономических изысканий. За расчетную следует принимать среднегодовую суточную интенсивность движения, приведенную к легковому автомобилю за последний год перспективного периода.

В случаях, когда среднемесячная суточная интенсивность наиболее напряженного в году месяца более чем в два раза превышает установленную на основе расчетов среднегодовую суточную, последнюю для назначения категории дороги следует увеличивать в 1,5 раза.

Коэффициенты приведения, указанные в ГОСТ 32965, допускается использовать для приведения интенсивности движения различных транспортных средств к легковому автомобилю транспортных потоков, двигающихся без остановки. Для регулируемых, нерегулируемых и кольцевых пересечений в одном уровне следует использовать коэффициенты приведения, приведенные в приложении Ж.

4.8 Перспективный период при назначении категорий дорог (элементов плана, продольного и поперечного профилей) принимают равным 20 годам от планируемого года завершения строительства автомобильной дороги (или самостоятельного участка дороги).

4.9 Автомобильные дороги общего пользования предназначены для пропуска автомобилей: по длине одиночных автомобилей - до 12 м и автопоездов - до 20 м, по ширине - до 2,55 м, по высоте - до 4 м для дорог категорий I - IV.

4.10 При проектировании уширений проезжей части, пересечений и примыканий автомобильных дорог размеры расчетных автомобилей следует принимать согласно таблице 4.4.

Таблица 4.4 - Основные геометрические характеристики расчетных автомобилей

Тип расчетного автомобиля

Обозначение по [5]

Размеры, м

Длина

Ширина

База/расстояния между осями

Передний свес

Легковой автомобиль (Л)

M1

4,90

1,90

2,90

0,90

Грузовой автомобиль (Г)

N3

12,0

2,60

5,70/1,40

1,50

Автобус (А)

M3

12,0

2,55

6,20

2,75

Сочлененный автобус (Ас)

M3

18,4

2,55

5,96/6,05

2,68

Автопоезд (А20)

N3 + O4

19,8

2,60

5,70/1,40 - 6,20/4,30

1,50

4.11 Принятые решения должны быть обоснованы разработкой вариантов со сравнением технико-экономических показателей: стоимость строительства; затраты на ремонт и содержание дорог; потери, связанные с воздействием на окружающую среду при строительстве и эксплуатации; задержки и потери времени при передвижении; экономические потери от задержек при передвижении; безопасность движения, изменение производственных условий обслуживаемых дорогами хозяйств и прилегающих к дорогам территорий.

При соответствующем технико-экономическом обосновании допускается устройство конструктивных слоев дорожных одежд и земляного полотна с применением вторичных ресурсов.

4.12 Вновь строящиеся автомобильные дороги проектируют в обход населенных пунктов. При невозможности переустройства существующих и размещения проектируемых автомобильных дорог общего пользования в обход населенных пунктов следует руководствоваться требованиями СП 42.13330, за исключением прохождения автомобильных дорог категорий I и II через сельские населенные пункты и автомобильных дорог всех категорий через заброшенные населенные пункты.

4.13 Число полос движения дорог с многополосной проезжей частью, мероприятия по охране окружающей среды, выбор решений по пересечениям и примыканиям дорог, конструкции дорожных одежд, элементы обустройства, состав зданий и сооружений дорожной службы в целях снижения единовременных затрат принимают с учетом стадийности их строительства по мере роста интенсивности движения при соответствующем технико-экономическом обосновании.

Для автомобильных дорог категории I (далее при указании в тексте настоящего свода правил категории I следует принимать нормативы и положения для проектирования дорог категорий IА, IБ, IВ) допускается предусматривать раздельное трассирование проезжих частей встречных направлений с учетом стадийного увеличения числа полос движения и сохранения крупных самостоятельных форм ландшафта и особо охраняемых природных территорий.

4.14 При проектировании автомобильных дорог необходимо предусматривать мероприятия по охране окружающей среды, обеспечивающие максимальную сохранность либо минимальное нарушение сложившихся геологических, гидрогеологических и других естественных условий.

Требования по обеспечению безопасности движения транспорта, зданий и сооружений дорожной и автотранспортных служб выполняют с учетом наличия охранных зон, зон с особыми условиями использования территорий, зон транспортной безопасности.

Предусматривают проектные решения и мероприятия по снижению влияния вредных факторов воздействия движения автотранспортных средств (загрязнение атмосферного воздуха, шум, вибрация) на население и окружающую среду.

4.15 При проектировании нового строительства и реконструкции автомобильных дорог допускается предусматривать размещение линий связи в соответствии с требованиями нормативных документов, утвержденных в установленном порядке, определяющих параметры к такому размещению.

5 Основные технические требования

Расчетные скорости

5.1 Расчетные скорости движения для определения параметров плана, продольного и поперечного профилей и других параметров, зависящих от расчетной скорости движения, принимают по таблице 5.1.

Для автомобильных дорог категорий I и II, проходящих через сельские населенные пункты, и автомобильных дорог всех категорий, которые проходят через заброшенные населенные пункты, требования к расчетной скорости и другим параметрам, зависящим от расчетной скорости движения, следует принимать по таблице 5.1.

Таблица 5.1 - Расчетные скорости движения

Категория автомобильной дороги

Расчетные скорости, км/ч

Основные

Допускаемые на трудных участках

пересеченной местности

горной местности

150

120

80

120

100

60

100

100

60

II

120

100

60

III

100

80

50

IV

80

60

40

IVА-п, IVБ-п, IVА-р, IVБ-р, VА, VБ

В соответствии с ГОСТ Р 58818

Примечания

1 При разработке проектов реконструкции и капитального ремонта автомобильных дорог по нормам категорий IБ, IВ и II допускается сохранять элементы плана, продольного и поперечного профилей (кроме числа полос движения) на отдельных участках существующих дорог, если они соответствуют расчетной скорости, установленной для дорог категории III, а по нормам категорий III, IV - соответственно, на категорию ниже (для дорог категории IV допускается сохранять элементы плана, продольного и поперечного профилей, соответствующих категориям IVБ-п и IVА-р).

2 При наличии вдоль трассы автомобильных дорог объектов капитального строительства и лесных массивов, а также в случаях пересечения дорогами земель, занятых ценными сельскохозяйственными угодьями, заповедниками (заказниками), допускается принимать расчетные скорости, установленные для трудных участков пересеченной местности.

5.2 Расчетные скорости на смежных участках автомобильных дорог не должны отличаться более чем на 20%.

План и продольный профиль

5.3 В качестве элементов проектируемой трассы, определяющих план и продольный профиль следует принимать прямые и кривые постоянной и переменной кривизны. Переломы проектной линии в продольном профиле следует сопрягать кривыми.

В целях обеспечения постоянства скорости и безопасности движения, а также учитывая возможности последующей реконструкции дороги за пределами перспективного периода, в качестве основных параметров элементов плана и продольного профиля автомобильной дороги следует принимать:

а) расстояние видимости поверхности дороги - не менее 450 м;

б) расстояние видимости встречного автомобиля на обычных дорогах - не менее 750 м;

в) радиус кривой в плане - не менее 3000 м;

г) радиус кривой в продольном профиле:

1) на выпуклых переломах продольного профиля - не менее 70 000 м,

2) на вогнутых переломах продольного профиля - не менее 8 000 м;

д) длину криволинейного участка в продольном профиле:

1) выпуклого - не менее 300 м,

2) вогнутого - не менее 100 м;

е) продольный уклон - не более 30‰.

Трассу прокладывают из условия плавного сопряжения элементов плана трассы и проектной линии продольного профиля с учетом расчетной скорости движения.

При этом следует обеспечить для кривых в плане:

- скорость нарастания центробежного ускорения - не более 0,5 м/с3;

- коэффициент поперечной силы - в соответствии с таблицей 5.2;

Примечание - На криволинейных участках плана трассы с нелинейным изменением кривизны следует проверять расчетом максимальную скорость нарастания центробежного ускорения. При проектировании плана и профиля следует учитывать возможность реконструкции трассы и не принимать минимально допустимые параметры трассы.

Таблица 5.2 - Коэффициенты поперечной силы

Расчетная скорость, км/ч

150

120

100

80

60

50

40

30

Коэффициент поперечной силы μ

0,08

0,09

0,12

0,14

0,17

0,19

0,23

0,28

5.4 В случаях, когда выполнение требований 5.3 признается нецелесообразным, допускается снижение требований к нормам проектирования отдельных геометрических элементов плана и продольного профиля автомобильной дороги исходя из расчетной скорости движения.

5.5 Предельно допустимые нормы следует принимать по таблице 5.3 исходя из расчетных скоростей движения по категориям дорог, приведенных в таблице 5.1. Для дорог с НИД параметры геометрических элементов плана и продольного профиля следует назначать в соответствии с требованиями ГОСТ Р 58818.

Таблица 5.3 - Допустимые параметры геометрических элементов плана и продольного профиля автомобильных дорог

Расчетная скорость, км/ч

Наибольшие продольные уклоны, ‰

Наименьшие радиусы кривых, м

В плане

В продольном профиле

выпуклых

вогнутых

Основные

В горной местности

Основные

В горной местности

150

30

1200

1000

30000

8000

4000

120

40

800

600

15000

5000

2500

100

50

600

400

10000

3000

1500

80

60

300

250

5000

2000

1000

60

70

150

125

2500

1500

600

50

80

100

100

1500

1200

400

40

90

60

60

1000

1000

300

30

100

30

30

600

600

200

Примечание - В условиях реконструкции и капитального ремонта автомобильных дорог, на съездах пересечений и примыканий автомобильных дорог, на трудных участках пересеченной и горной местности, при устройстве дорог в застроенных районах, на ценных сельскохозяйственных угодьях и других приравненных к ним территориях наименьший радиус кривых в плане допускается обосновывать расчетом по 5.6.

При сооружении автомобильных дорог на трудных участках горной и пересеченной местности (за исключением мест с абсолютными отметками более 3000 м над уровнем моря) для участков протяженностью до 500 м допускается увеличение значений наибольших продольных уклонов, приведенных в таблице 5.3, но не более чем на 20‰.

На дорогах категории I с раздельными проезжими частями на трудных участках горной и пересеченной местности продольные уклоны на спуск допускается увеличивать против норм, установленных таблицей 5.3, но не более чем на 20‰.

5.6 Наименьшие радиусы кривых в плане допускается обосновывать расчетом по формуле

image001.png, (5.1)

где v - расчетная скорость, км/ч;

μ - коэффициент поперечной силы, определяемый по таблице 5.2;

iп.п - поперечный уклон проезжей части в долях единицы, принимается для виража со знаком "плюс", для двускатного поперечного профиля - со знаком "минус".

5.7 При назначении параметров элементов плана, продольного и поперечных профилей дорог по нормам, допускаемым 5.5, следует проводить оценку проектных решений по показателям скорости, безопасности движения и пропускной способности.

5.8 При сопряжении кривых в плане, радиусы которых отличаются более чем в 1,3 раза, а также в местах сопряжения кривых радиусом менее 2000 м на дорогах категорий II - IV, а для дорог категории I - радиусом менее 3000 м с прямыми в плане предусматривают их плавное сопряжение кривыми с переменной кривизной - переходными кривыми.

5.9 При сопряжении круговой кривой и прямой с помощью переходной кривой наименьшую длину переходной кривой следует определять по таблице 5.4.

Таблица 5.4 - Наименьшие значения длин переходных кривых

Расчетная скорость, км/ч

Длина переходной кривой, м, для радиуса кривой в плане R, м

Св. 30 до 60

Св. 60 до 100

Св. 100 до 150

Св. 150 до 200

Св. 200 до 250

Св. 250 до 300

Св. 300 до 400

Св. 400 до 500

Св. 500 до 800

Св. 800 до 1200

Св. 1200 до 2000

Св. 2000 до 3000

Менее 120

30

40

50

60

70

80

90

100

100

100

100

-

120 и более

-

-

-

-

-

-

-

-

-

120

0,1R

200

В сложных условиях (трудные участки пересеченной и горной местности, застроенные территории, ценные сельскохозяйственные угодья, условия капитального ремонта и реконструкции) наименьшую длину переходной кривой, м, допускается определять по формуле

image002.png, (5.2)

где V - расчетная скорость движения, км/ч;

R - радиус кривой в плане, сопрягаемый переходной кривой, м;

I - скорость нарастания центробежного ускорения, м/с3, принимаемая равной:

0,3 -

для радиусов кривых

300 м и более;

0,4 -

то же

менее 300 м.

При капитальном ремонте и реконструкции дорог, а также в горных условиях допускается увеличение этих значений до:

0,5 -

для радиусов кривых

300 м и более;

0,7 -

то же

св. 150 до 300 м;

0,9 -

"

до 150 м включительно.

При сопряжении круговых кривых, направленных в одну сторону с помощью переходной кривой, наименьшую длину участка переходной кривой, м, следует определять по формуле

image003.png, (5.3)

где R1, R2 - радиусы кривых в плане, сопрягаемых переходной кривой, м.

Скорость нарастания центробежного ускорения следует принимать по нормам меньшего радиуса сопрягаемых круговых кривых.

Допускается не устраивать переходные кривые в условиях реконструкции, капитального ремонта автомобильных дорог.

Переходная кривая не устраивается, если сдвижка круговой кривой от вписывания переходной P составляет менее 0,1 м. Величина P определяется по формуле

image004.png, (5.3а)

где L - длина переходной кривой, м;

R - радиус круговой кривой, м.

5.10 Наибольшие продольные уклоны на участках кривых в плане радиусом 50 м и менее следует уменьшать согласно таблице 5.5.

Таблица 5.5 - Уменьшение величины наибольших продольных уклонов на кривых малых радиусов

Радиус кривой в плане, м

50

45

40

35

30

Уменьшение наибольших продольных уклонов по сравнению с указанными в таблице 5.3, ‰, не менее

10

15

20

25

30

5.11 Максимальная длина участка с уклонами более 60‰ не должна превышать значений, приведенных в таблице 5.6.

Таблица 5.6 - Допустимая длина участков с затяжными продольными уклонами

Продольный уклон, ‰

Максимальная длина участка, м, при высоте над уровнем моря, м

1000

2000

3000

4000

60

2500

2200

1800

1500

70

2200

1900

1600

1300

80

2000

1600

1500

1100

90

1500

1200

1000

-

При продольных уклонах более 90‰ предельную длину участка с затяжным уклоном следует определять по результатам расчетов в зависимости от динамических характеристик транспортных средств, материала покрытия дорожной одежды и высоты расположения участка дороги над уровнем моря.

5.12 На дорогах, расположенных в горной местности с уклонами более 60‰ необходимо проектировать участки с уменьшенными на 20‰ продольными уклонами или площадки для остановки автомобилей с расстояниями (длинами) между ними не более указанных в таблице 5.6.

Вместимость площадок для остановки автомобилей должна назначаться не менее трех грузовых автомобилей, а выбор места их расположения определяют из условий безопасности стоянки, исключающей возможность появления осыпей и камнепадов.

На затяжных спусках с уклонами более 50‰ необходимо предусматривать противоаварийные съезды, которые устраивают перед кривыми в плане радиусом менее 600 м, расположенными в конце спуска, а также на прямых участках спуска через каждые 0,8 - 1,0 км.

5.13 В случаях необходимости резкого изменения направления плана трассы дорог категорий II - IV в горных условиях допускается устройство серпантины с параметрами, принимаемыми по таблице 5.7.

Таблица 5.7 - Параметры геометрических элементов серпантин

Параметры элементов серпантины

Параметры серпантины при расчетной скорости движения, км/ч

30

20

15

Наименьший радиус кривых в плане, м

30

20

15

Поперечный уклон проезжей части на вираже, ‰

60

60

60

Наименьшая длина переходной кривой, м

30

25

20

Уширение проезжей части с двумя полосами движения, м

2,2

3,0

3,5

Наибольший продольный уклон в пределах серпантин, ‰

30

35

40

Серпантины радиусом менее 30 м проектируют только на дорогах категорий IV и при запрещении движения автопоездов длиной свыше 11 м.

5.14 Расстояние между концом сопрягаемой кривой одной серпантины и началом сопрягающей кривой другой следует принимать возможно большим, но не менее 400 м для дорог категорий II и III, 300 м - для дорог категории IV.

5.15 Проезжую часть на серпантине необходимо уширять на 0,5 м за счет внешней обочины, а остальную часть уширения предусматривают за счет внутренней обочины и дополнительного уширения земляного полотна.

Условия видимости

5.16 Расстояние видимости препятствия на покрытии проезжей части на всем протяжении дороги должно быть не менее остановочного пути при торможении автомобиля.

5.17 Наименьшее расстояние видимости для остановки должно обеспечивать видимость препятствий, имеющих высоту 0,2 м и более, находящихся на середине полосы движения, с высоты глаз водителя автомобиля, равной 1,0 м от поверхности проезжей части.

Наименьшие расстояния видимости следует назначать по таблице 5.8.

Таблица 5.8 - Наименьшие расстояния видимости

Расчетная скорость движения, км/ч

Наименьшие расстояния видимости, м

для остановки

встречного автомобиля

150

300

-

120

250

450

100

200

350

80

150

250

60

85

170

50

75

130

40

55

110

30

45

90

В условиях реконструкции и капитального ремонта автомобильных дорог, на съездах пересечений и примыканий автомобильных дорог, на трудных участках пересеченной и горной местности, при устройстве дорог в застроенных районах, на ценных сельскохозяйственных угодьях и других приравненных к ним территориях наименьшее расстояние видимости для остановки автомобиля допускается определять индивидуально по формуле

image005.png, (5.4)

где Sост - расчетное расстояние видимости покрытия проезжей части для остановки;

Vрасч - расчетная скорость движения в начале торможения, км/ч;

tр - время реакции водителя, принимаемое в зависимости от категории дороги:

- автомагистрали, скоростные дороги - 2,5 с;

- обычные дороги - 2,0 с;

Kэксп - коэффициент эксплуатационного состояния тормозной системы автомобиля, Kэксп = 1,1;

φ - расчетный коэффициент продольного сцепления, ед.;

i - продольный уклон автомобильной дороги, доли ед.

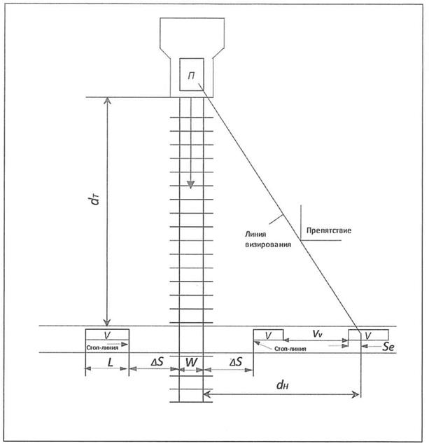
Расчетный коэффициент продольного сцепления следует принимать в соответствии с 8.11.

5.18 На кривых в плане должна быть обеспечена видимость, достаточная для безопасной остановки автомобиля на многополосной проезжей части (или съезде пересечения) в крайней, внутренней по отношению к повороту оси трассы полосе движения (при повороте налево - крайней левой полосе, при повороте направо - крайней правой полосе). Минимальное расстояние, достаточное для обеспечения видимости препятствия в точке C (рисунок 5.1), следует определять в соответствии с формулой (5.4).

image006.jpg

a - расстояние между кромкой полосы движения и препятствием (шумозащитный экран, барьерное ограждение, откос выемки и др.); B - положение глаз водителя; b – расстояние от положения глаз водителя) до кромки полосы движения (b = 1,8 м); C - положение препятствия на проезжей части

Рисунок 5.1 - Схема к определению расстояния боковой видимости на многополосной проезжей части

5.19 Расположение барьерных ограждений, шумозащитных экранов и других препятствий должно обеспечивать расстояние видимости препятствия в точке C (рисунок 5.1), имеющего высоту 1,0 м и более, находящегося на середине полосы движения, являющейся внутренней относительно радиуса кривой в плане, с высоты глаз водителя автомобиля, равной 1,0 м от поверхности проезжей части.

5.20 Оценку видимости на кривых в плане следует выполнять для каждого из двух направлений движения. При этом наименьшее расстояние видимости допускается назначать по формуле (5.4).

5.21 В случае если не представляется возможным обеспечить минимальное расстояние видимости с внутренней полосы проезжей части на кривой в плане малого радиуса и нет возможности проложения трассы с большим радиусом, минимальное расстояние видимости может быть обеспечено увеличением ширины разделительной полосы за счет увеличения ширины полосы безопасности (расстояние a, см. рисунок 5.1), в том числе путем раздельного размещения проезжих частей. На трудных участках пересеченной и горной местности, а также в условиях капитального ремонта и реконструкции, на участках кривых в плане с необеспеченной видимостью допускается снижение расчетной скорости движения, но не более чем на 20%.

5.22 В пересеченной местности для осуществления обгонов необходимо не реже чем через 3 - 4 км устраивать на прямых и кривых больших радиусов (см. 5.3) специальные обгонные участки для реализации обгонов с обеспеченным расстоянием видимости, как для равнинных участков.

5.23 На участках автомобильных дорог, где возможно попадание на дорогу с придорожной полосы людей и животных, следует обеспечить боковую видимость прилегающей к дороге полосы на расстоянии 25 м от кромки проезжей части для дорог категорий I - III и 15 м для дорог категории IV.

Поперечный профиль

5.24 Основные параметры поперечного профиля проезжей части и обочин автомобильных дорог принимают в зависимости от их категории по таблицам 5.9 и 5.10.

Таблица 5.9 - Параметры основных элементов проезжей части и земляного полотна автомобильных дорог

Элемент поперечного профиля

Категория автомобильной дороги

II

III

IV

Число полос движения

4 и более

2,4 **

2

2

Ширина полосы движения, м

3,5 - 3,75 *

3,5

3,0

Ширина обочины, м

3,75

3,5

3,5

2,5

2,0

Ширина остановочной полосы, м

2,5

-

Минимальная ширина укрепленной части обочины (не считая укрепление засевом трав, одерновкой), м

всего

-

2,0

1,5

1

в том числе краевой полосы у обочины

-

0,5

* Для двухполосных дорог категории II и четырехполосных дорог категории I ширину всех полос движения следует принимать 3,75 м, для дорог категории I с числом полос движения шесть и более ширину первой и второй полосы (от обочины) следует принимать 3,75 м, остальных полос - 3,5 м. Для дорог категории IА с расчетной скоростью 150 км/ч ширину всех полос движения следует принимать 3,75 м, для дорог категории II с четырьмя полосами движения ширину всех полос движения следует принимать 3,5 м.

** При капитальном ремонте на дорогах категории II допускается устройство четырех полос движения.

Примечание - Ширину обочин дорог в горной местности, на участках, проходящих по ценным сельскохозяйственным угодьям, в местах с переходно-скоростными полосами и с дополнительными полосами на подъем допускается уменьшать до 1,5 м - для дорог категорий IА, IБ, IВ и II и до 1 м - для дорог остальных категорий.

Таблица 5.10 - Параметры элементов разделительной полосы автомобильных дорог

Элемент разделительной полосы

Ширина, м

Наименьшая ширина центральной разделительной полосы с дорожными ограждениями

1,0 + S * + 1,0

Наименьшая ширина краевой полосы

0,75

* S - ширина ограждения, располагаемого в середине разделительной полосы, м.

Примечания

1 Сопряжение проезжих частей противоположных направлений на дорогах категории I и дорогах категории II с четырьмя полосами движения устраивают с центральной разделительной полосой. Центральные разделительные полосы на дорогах категории I и дорогах категории II с четырьмя полосами движения следует проектировать с дорожными ограждениями.

2 При капитальном ремонте автомобильных дорог категории II с четырьмя полосами движения, для разделения транспортных потоков встречных направлений допускается установка тросовых ограждений или ограждений с отделяющейся балкой без консоли по ГОСТ Р 52289. Ширину разделительной полосы при этом допускается уменьшать до ширины, м, равной: 0,5 + S + 0,5.

5.25 Число полос движения на дорогах категорий I и II устанавливают в зависимости от интенсивности движения и рельефа местности по таблице 5.11.

Таблица 5.11 - Число полос движения на дорогах категорий I и II

Рельеф местности

Интенсивность движения, приведенных ед./сут

Число полос движения

Равнинный, пересеченный, горный

10 001 - 40 000

4

40 001 - 80 000

6

Св. 80 000

8

Трудные участки пересеченной и горной местности

10 001 - 34 000

4

34 001 - 70 000

6

Св. 70 000

8

5.26 Дополнительной полосой, предназначенной для опережения, следует считать левую полосу движения. Длина полос опережения (не включая участки отгона) должна составлять от 1000 до 2000 м. Места смены числа полос располагают на прямолинейных участках или на участках кривых в плане радиусом более 2000 м. Длину участков отгона следует принимать по нормам проектирования переходно-скоростных полос.

Расположение мест смены числа полос движения на участках с затрудненным отводом воды и подверженных обледенению (на мостах и путепроводах) не допускается. В пересеченной или горной местности полосы опережения должны находиться, по возможности, в направлении подъема и соответствовать требованиям устройства дополнительных полос проезжей части на подъем.

5.27 Полосу опережения (дополнительную полосу проезжей части на подъем) следует предусматривать на участках дорог категорий II и III, расположенных на подъемах:

- при продольном уклоне от 30 до 40‰ и протяженности подъема свыше 1 км;

- при продольном уклоне, равном или превышающем 40‰ и протяженности подъема свыше 0,5 км.

5.28 Полосу опережения (дополнительную полосу проезжей части на подъем) следует начинать за 50 м до начала подъема и завершать за пределами подъема (на участке дороги с продольным уклоном менее 30‰) на расстояниях не менее приведенных в таблице 5.12.

Таблица 5.12 - Требования к протяженности полос опережения за пределами подъема

Интенсивность движения в сторону подъема, прив. ед./сут

Менее 4000

От 4000 до 5000

От 5000 до 8000

8000 и более

Протяженность полосы опережения (дополнительной полосы проезжей части на подъем) за пределами подъема, м

50

100

150

200

5.29 Ширину полосы опережения (дополнительной полосы проезжей части на подъем) принимают равной 3,5 м на всем протяжении подъема.

5.30 Ширина насыпей автомобильных дорог поверху на участке примыкания к мостам и путепроводам должна соответствовать требованиям СП 35.13330.

5.31 Ширину разделительной полосы на участках дорог, где в перспективе может потребоваться увеличение числа полос движения, увеличивают на 7,0 м по сравнению с показателями таблицы 5.10.

Поверхности разделительных полос в зависимости от их ширины, применяемых грунтов, вида укрепления и природно-климатических условий придают уклон к середине разделительной полосы или в сторону проезжей части. При уклоне поверхности разделительной полосы к середине предусматривают устройство специальных лотков и коллекторов для отвода воды.

Значение отгона ширины центральной разделительной полосы следует предусматривать не круче 1:100.

5.32 В условиях нового строительства разделительные полосы предусматривают с разрывами через 5 - 7 км для организации пропуска движения автотранспортных средств и для проезда специальных машин в периоды ремонта дорог.

В условиях реконструкции и капитального ремонта разрывы для организации пропуска движения автотранспортных средств и для проезда специальных машин в периоды ремонта дорог допускается размещать на расстоянии менее 5 км.

Пропуск движения автотранспортных средств через разрывы допускается в период проведения работ по ремонту, капитальному ремонту и реконструкции дорог.

Величину разрыва допускается устанавливать индивидуальным обоснованием с учетом состава транспортного потока и радиуса поворота автомобиля. При отсутствии данных по составу транспортного потока величину разрыва следует принимать равной 30 м.

5.33 Проезжую часть предусматривают с двускатным поперечным профилем на прямолинейных участках дорог всех категорий и на кривых в плане радиусом 3000 м и более для дорог категории I и радиусом 2000 м и более - для дорог других категорий.

На кривых в плане меньших радиусов предусматривают устройство проезжей части с односкатным поперечным профилем (виражей).

5.34 Поперечные уклоны проезжей части (кроме участков кривых в плане, на которых предусматривается устройство виражей) принимают в зависимости от климатических условий по таблице 5.13.

Таблица 5.13 - Поперечные уклоны проезжей части

Категория дороги

Поперечный профиль проезжей части

Полоса движения

Поперечный уклон в различных дорожно-климатических зонах, ‰

I

II и III

IV

V

I

Односкатный на каждом направлении движения

Первая и вторая от разделительной полосы

15

20

20

15

Третья и последующие от разделительной полосы

20

25

25

20

Двускатный на каждом направлении движения

Первая и вторая от оси проезжей части

15

20

20

15

Третья и последующие от оси проезжей части

20

25

25

20

II - IV

Двускатный

Каждая

15

20

20

15

На гравийных и щебеночных покрытиях поперечный уклон принимают 25 - 30‰, а на покрытиях из грунтов, укрепленных местными материалами, и на мостовых из колотого и булыжного камня - 25 - 35‰.

5.35 Для предотвращения застоя воды минимальный продольный уклон проезжей части на участке отгона виража должен составлять не менее 4‰. В условиях капитального ремонта, при невозможности изменения положения трассы дороги, должно быть обеспечено своевременное информирование водителей о подходе к опасному участку, и предусмотрены мероприятия, обеспечивающие безопасное движение по нему, в том числе путем ограничения скорости движения.

5.36 Поперечные уклоны обочин при двускатном поперечном профиле следует принимать на 10 - 30‰ больше поперечных уклонов проезжей части. В зависимости от климатических условий и типа укрепления обочин предусматривают следующие значения поперечных уклонов:

30 - 40‰ - при укреплении с применением вяжущих *;

40 - 60‰ - при укреплении гравием, щебнем, шлаком или замощении каменными материалами и бетонными плитами;

50 - 60‰ - при укреплении дернованием или засевом трав.

--------------------------------

* При укреплении обочин и остановочных полос асфальтобетоном поперечный уклон обочин допускается предусматривать равным поперечному уклону смежной с обочиной полосы движения.

Для районов с небольшой продолжительностью залегания снегового покрова (не более 30 дней в году) и отсутствием гололеда для обочин, укрепленных дернованием, допускается поперечный уклон 50 - 80‰.

Примечание - При устройстве земляного полотна из крупно- и среднезернистых песков, а также из тяжелых суглинистых грунтов и глин уклон обочин, укрепленных засевом трав, допускается принимать равным 40‰.

5.37 Уклоны виража на всем участке круговой кривой назначают по таблице 5.14.

Таблица 5.14 - Поперечные уклоны проезжей части на виражах

Радиусы кривых в плане, м

Поперечный уклон проезжей части на виражах, ‰

Основной

Допускаемый в районах с гололедом не более 3 дней в году и продолжительностью залегания снегового покрова не более 30 дней в году

От 1000 до 3000 на дорогах категории I и от 1000 до 2000 на дорогах других категорий

20 - 30

От 700 до 1000

30 - 40

От 650 до 700

40

40 - 50

От 600 до 650

40 - 60

Менее 600

40 - 60 *

* В равнинных районах дорожно-климатической зоны V наибольший поперечный уклон проезжей части на виражах допускается увеличивать до 80‰.

Если расстояние между двумя смежными круговыми кривыми, обращенными радиусами в одну сторону меньше суммы длин отгонов виражей для этих кривых, то между ними предусматривают также непрерывно односкатный профиль с уклоном этих виражей.

5.38 Переход от двускатного профиля дороги к односкатному следует осуществлять на переходной кривой или на предшествующем виражу прямолинейном и криволинейном участках трассы, радиусы которых больше значений, приведенных в 5.33. Длину участка отгона виража определяют из условия обеспечения минимального 3‰ и максимального дополнительного уклона (таблица 5.15) наружной кромки проезжей части по отношению к проектному продольному уклону.

Таблица 5.15 - Наибольшие значения максимального дополнительного продольного уклона наружной кромки проезжей части

Категория дороги

Тип местности

Максимальный дополнительный продольный уклон, ‰

I и II

Любой

5

III - IV

В равнинной местности

10

III - IV

На трудных участках пересеченной и горной местности

20

При этом минимальный уклон односкатного профиля должен быть не менее 20‰, а дополнительный продольный уклон наружной кромки проезжей части по отношению к проектному продольному уклону не должен превышать соответствующие значения, принимаемые для участков отгона виража.

5.39 На кривых в плане с радиусами 1000 м и менее проезжая часть с внутренней стороны закругления уширяется. Величину уширения на кривых в плане следует принимать в соответствии с требованиями ГОСТ 33475.

При соответствии расчетного автомобиля требованиям 4.10 уширения на кривых в плане допускается определять по таблице 5.16.

Таблица 5.16 - Уширение проезжей части автомобильных дорог

Радиус кривой в плане, м

Значение уширения, м, на каждую полосу движения для расчетных автомобилей, соответствующих 4.10

От

850

до

1000

-

"

650

"

850

0,2

"

425

"

650

0,25

"

325

"

425

0,3

"

225

"

325

0,4

"

140

"

225

0,45

"

95

"

140

0,55

"

80

"

95

0,6

"

70

"

80

0,65

"

60

"

70

0,7

"

50

"

60

0,75

"

40

"

50

0,9

"

30

"

40

1,1

Менее 30

По расчету

Уширения на кривых в плане при радиусе менее 30 м следует определять по формуле

image007.png, (5.5)

где L - расстояние от переднего бампера до задней оси расчетного автомобиля, м (см. таблицу 4.4);

R - радиус кривой в плане, м.

Уширение проезжей части (включая полосы на подъем) предусматривают с внутренней стороны за счет обочин. Ширина обочин должна быть не менее 1,5 м для дорог категорий I и II и не менее 1 м - для дорог остальных категорий. При недостаточной ширине обочин для размещения уширений проезжей части предусматривают уширение земляного полотна.

Полное уширение полосы движения проезжей части дороги устраивают в пределах круговой кривой. Отгон уширения полосы движения проезжей части дорог устраивают в пределах переходных кривых, а при их отсутствии - на расстоянии 50 м.

В горной местности в виде исключения допускается размещать уширения проезжей части на кривых в плане частично с внешней стороны закругления.

Применение кривых с уширениями проезжей части более 2,2 м необходимо обосновывать сопоставлением с вариантами увеличения радиусов кривых в плане, при которых не требуется устройств таких уширений.

Трассирование с учетом ландшафта

5.40 Трассу проектируемых дорог следует предусматривать в виде плавной линии в пространстве. При этом необходима взаимная увязка элементов плана, продольного и поперечного профилей между собой и с окружающим ландшафтом, с оценкой их влияния на условия движения и зрительное восприятие дороги с учетом требований настоящего подраздела.

Для дорог категорий I и II не допускается сочетание продольных уклонов, кривых в плане и продольном профиле с такими значениями, при которых создается впечатление провалов.

5.41 Кривые в плане и продольном профиле допускается совмещать. При этом кривые в плане должны быть на 100 - 150 м длиннее кривых в продольном профиле, а смещение вершин кривых должно быть не более 1/4 длины меньшей из них.

Следует избегать сопряжений концов кривых в плане с началом кривых в продольном профиле. Расстояние между ними должно быть не менее 150 м. Если кривая в плане расположена в конце спуска длиной свыше 500 м и с уклоном более 30‰, то радиус ее должен быть увеличен не менее чем в 1,5 раза по сравнению с расчетными значениями, получаемыми по формуле (5.1), с совмещением кривой в плане и вогнутой кривой в продольном профиле в конце спуска.

5.42 Длину прямых в плане следует ограничивать согласно таблице 5.17.

Таблица 5.17 - Предельная длина прямой в плане на автомобильных дорогах

Категория дороги

Предельная длина прямой в плане, м, на местности

равнинной

пересеченной, горной

I

5000

3000

II, III

3500

2000

IV

2000

1500

5.43 Минимальные радиусы смежных кривых в плане и максимальные скорости нарастания центробежного ускорения смежных переходных кривых назначают одинаковыми или различающимися не более чем в 1,3 раза.

5.44 При малых углах поворота дороги в плане следует применять радиусы круговых кривых не менее указанных в таблице 5.18.

Таблица 5.18 - Наименьший радиус круговой кривой при малых углах поворота дороги

Угол поворота, градусы

1

2

3

4

5

6

7 - 8

Наименьший радиус круговой кривой, м

30 000

20 000

10 000

6 000

5 000

3 000

2 500

5.45 Недопустимы на участках прямых в плане длинные прямые вставки в продольном профиле. Их предельные длины приведены в таблице 5.19.

Таблица 5.19 - Предельные длины прямых вставок в продольном профиле на участках прямых в плане

Радиус вогнутой кривой в продольном профиле, м

Алгебраическая разность продольных уклонов, ‰

20

30

40

50

60

80

100

Наибольшая длина прямой вставки в продольном профиле, м

Для дорог категорий I и II

4000

150

100

50

0

0

0

-

8000

360

250

200

170

140

110

-

12000

680

500

400

350

250

200

-

20000

-

-

850

700

600

550

-

25000

-

-

-

-

900

800

-

Для дорог категорий III и IV

2000

120

100

50

0

0

0

0

6000

550

440

320

220

140

60

0

10000

-

-

680

600

420

300

200

15000

-

-

-

-

-

800

600

5.46 При сопряжении выпуклой и вогнутой кривых в продольном профиле радиус выпуклой кривой не должен более чем в два раза превышать радиус вогнутой кривой.

Велосипедные дорожки

5.47 Проектирование велосипедных полос и велопешеходных дорожек следует вести в соответствии с требованиями ГОСТ 33150, ГОСТ Р 52766.

Пешеходные переходы

5.48 Пешеходные переходы через автомобильные дороги следует проектировать в соответствии с требованиями ГОСТ Р 52766, ГОСТ 32944, ГОСТ Р 70716, СП 35.13330 и настоящего свода правил.

Тип пешеходного перехода в одном или разных уровнях следует принимать согласно таблице 5.20.

Таблица 5.20 - Тип пешеходного перехода в одном или разных уровнях на автомобильных дорогах

Тип пешеходного перехода в одном или разных уровнях на автомобильных дорогах категории

I

*, II

III - IV

Надземный и подземный пешеходный переход

Наземные регулируемые и нерегулируемые пешеходные переходы при числе полое движения на проезжей части не более 2.

На многополосных дорогах - надземные и подземные пешеходные переходы.

Наземные регулируемые пешеходные переходы в составе регулируемых пересечений в одном уровне

Наземные нерегулируемые пешеходные переходы (допускается применять регулируемые пешеходные переходы в составе пересечения в одном уровне со светофорным регулированием)

* Допускается при капитальном ремонте в соответствии с ГОСТ Р 58653.

Наземные нерегулируемые и регулируемые пешеходные переходы

5.49 Наземные регулируемые и нерегулируемые пешеходные переходы оборудуют техническими средствами организации движения в соответствии с ГОСТ Р 52289 и элементами обустройства по ГОСТ Р 70716.

5.50 На наземных пешеходных переходах должна быть обеспечена видимость пешеходов для водителей автомобилей и видимость приближающихся автомобилей для пешеходов согласно требованиям ГОСТ Р 70716.

Надземные и подземные пешеходные переходы

5.51 Надземные и подземные пешеходные переходы должны соответствовать требованиям СП 35.13330, ГОСТ Р 52766, ГОСТ Р 70716 и обустраиваться техническими средствами организации дорожного движения по ГОСТ Р 52289.

6 Пересечения и примыкания

Пересечения и примыкания автомобильных дорог

6.1 Пересечения и примыкания автомобильных дорог проектируют исходя из функционального назначения, класса и категорий пересекаемых дорог, с учетом перспективной интенсивности и состава движения по отдельным направлениям. При проектировании учитывают возможность стадийного развития пересечения или примыкания.

Условия доступа к автомобильным дорогам следует определять в соответствии с требованиями ГОСТ 33382.

Примыкания автомобильных дорог и улиц населенных пунктов, проездов, съездов объектов дорожного и придорожного сервиса следует проектировать по ГОСТ 33062, ГОСТ Р 58653.

6.2 При проектировании пересечений и примыканий следует обеспечивать:

- расстояния и условия видимости по ГОСТ Р 58653, соответствующие расчетной скорости движения на участке дороги, где расположено пересечение;

- учет потребностей всех групп пользователей проектируемого пересечения: пешеходов (при наличии пешеходного движения), в том числе МГН, велосипедистов (при наличии велосипедного движения), лиц, использующих для передвижения средства индивидуальной мобильности" (при наличии такого движения), водителей транспортных средств;

- необходимую для пропуска существующих и перспективных транспортных потоков пропускную способность пересечения или примыкания;

- возможность принятия однозначных решений на пересечении, в том числе с помощью информационных знаков.

6.3 Обустройство пересечений и примыканий следует выполнять в соответствии с ГОСТ Р 52289, ГОСТ Р 58653.

6.4 Полевые дороги и скотопрогоны при пересечении с дорогами категорий I - III следует отводить под ближайшие искусственные сооружения.

В случае отсутствия таких сооружений на участках дорог протяженностью свыше 2 км при необходимости предусматривают их устройство.

Габариты искусственных сооружений для полевых дорог и дорог для прогона скота следует определять в соответствии с требованиями СП 35.13330.

Таблица 6.1 исключена с 28.01.2025. - Изменение N 1

Пересечения и примыкания в одном уровне

6.5 Выбор схем пересечений и примыканий в одном уровне проводят на основе технико-экономического сопоставления вариантов с учетом категорий пересекающихся дорог, безопасности движения, пропускной способности, вида использования прилегающей территории. При назначении типа пересечения или примыкания в одном уровне следует рассмотреть возможность применения кольцевого пересечения.

Расстояния между пересечениями и примыканиями в одном уровне следует принимать по ГОСТ Р 58653. Расстояние между самостоятельным примыканием в одном уровне и пересечением в разных уровнях следует определять, как расстояние между примыканием в одном уровне и ближайшим к нему съездом пересечения в разных уровнях.

6.6 Пересечения и примыкания в одном уровне могут быть следующих видов:

- примыкание в одном уровне с тремя подходами;

- пересечение в одном уровне с четырьмя подходами;

- смещенные пересечения в одном уровне;

- пересечение в одном уровне с отнесенными на разворот левыми поворотами;

- кольцевое пересечение.

Область применения пересечений и примыканий в одном уровне следует принимать по ГОСТ Р 58653.

Устройство кольцевых пересечений на магистральных автомобильных дорогах по условию обеспечения безопасности движения предпочтительнее устройства регулируемых пересечений в одном уровне.

При устройстве регулируемых и саморегулируемых (кольцевых) пересечений на магистральных автомобильных дорогах следует обеспечивать снижение скорости движения на подходах к пересечению до величины расчетной скорости на пересечении, в том числе за счет геометрических параметров подходов к пересечению (в случае устройства кольцевого пересечения).

6.7 При проектировании пересечений (примыканий) различают главные и по отношению к ним второстепенные дороги.

Главная дорога определяется на основании категории и функционального класса пересекающихся дорог, а при пересечении дорог одного класса и категории - на основании данных о расчетной интенсивности движения.

Форма пересечения или примыкания должна быть выбрана таким образом, чтобы главная дорога на пересечении или примыкании имела естественное продолжение. Если форма пересечения или примыкания не предусматривает визуального выделения главной дороги, необходимо исправить формы пересечения или примыкания в соответствии с ГОСТ Р 58653.

6.8 На канализированных и частично канализированных пересечениях устраиваются полосы для поворотов направо и (или) налево, в том числе дополнительные, при необходимости, направляющие центральные и треугольные островки.

Длины полос торможения, накопления очереди и разгона определяются расчетом по ГОСТ Р 58653.

На пересечениях в одном уровне применяют следующие схемы организации движения:

- без установки знаков приоритета на пересечениях равнозначных дорог;

- с установкой знаков приоритета на пересечении;

- светофорное регулирование.

6.9 Пересечение или примыкание следует устраивать под углом от 60° до 100°, отмеряя его от направления главной дороги к второстепенной против хода часовой стрелки.

6.10 При необходимости устройства пересечения двух дорог, оси которых пересекаются под углом менее 60° и более 100°, следует учитывать требования ГОСТ Р 58653.

6.11 Не допускается располагать пересечения и примыкания с внутренней стороны на кривых в плане радиусами менее: 2000 м - на дорогах категорий I и II и с радиусами менее 800 м - на дорогах категорий III, IV. Примыкания второстепенной дороги с внешней стороны кривой в плане допускается размещать при радиусе круговой кривой не менее 600 м. В условиях капитального ремонта и реконструкции допускается уменьшать радиусы кривых в плане, на которых располагаются примыкания второстепенных дорог, при условии обеспечения видимости (в виде треугольников) по ГОСТ Р 58653.

6.12 Геометрические параметры пересечений и примыканий в одном уровне следует принимать по ГОСТ Р 58653.

6.13 Минимальный радиус круговой кривой единого радиуса при сопряжениях дорог в местах пересечений или примыканий в одном уровне принимают в зависимости от категории дороги:

- категорий I, II - не менее 25 м;

- категории III - 20 м;

- категорий IV - 15 м.

При расчете на регулярное движение автопоездов и сочлененных автобусов (более 25% в составе потока) радиусы кривых на съездах следует увеличивать до 30 м.

Радиусы сопряжений допускается уменьшать в соответствии с ГОСТ Р 58653.

Минимальные радиусы кривых при сопряжениях дорог в местах пересечений или примыканий в одном уровне при использовании поворотного съезда следует принимать в соответствии с ГОСТ Р 58653.

6.14 На пересечениях и примыканиях автомобильных дорог в одном уровне должна быть обеспечена видимость пересекающего или примыкающего направления с учетом принятой на пересечении организации дорожного движения согласно требованиям ГОСТ Р 58653.

6.15 Вертикальную планировку пересечений и примыканий, а также подходов к ним следует проектировать по ГОСТ Р 58653.

Суммарный (косой) уклон в любой точке проезжей части (от начала полос торможения и до завершения полос разгона, а при их отсутствии - от точек начала закруглений, сопрягающих проезжие части пересекающихся дорог) должен быть не менее 5‰.

Продольные уклоны главной дороги на подходах к пересечениям и примыканиям в одном уровне следует принимать по ГОСТ Р 58653.

6.16 Продольный уклон второстепенной дороги на расстоянии 20 м от кромки проезжей части главной дороги не должен превышать 20‰. На второстепенных дорогах допускается применение перелома продольного профиля при примыкании к поперечному профилю главной дороги не более 40‰.

6.17 Все (кроме сезонных) съезды и въезды на подходах к дорогам категорий IБ, IВ, II и III должны иметь покрытия:

при песчаных, супесчаных и легких суглинистых грунтах - на протяжении 100 м;

при черноземах, глинистых, тяжелых и пылеватых суглинистых грунтах - 200 м.

Протяженность покрытий въездов на дороги категории IV предусматривают в два раза меньше, чем покрытий въездов на дороги категорий I - III.

Обочины на съездах и въездах при длине, установленной в настоящем пункте, следует укреплять на ширину не менее 0,5 м.

6.18 Пересечения и примыкания с отнесенным на разворот левоповоротным движением применяют в случаях, когда необходимо обеспечить повышение пропускной способности по одному или обоим направлениям прямого движения. Пересечения с отнесенным на разворот левоповоротным движением следует проектировать согласно ГОСТ Р 58653.

Кольцевые (саморегулируемые) пересечения

6.19 Кольцевые пересечения следует проектировать в соответствии с требованиями ГОСТ Р 70555.

Таблица 6.2 исключена с 28.01.2025. - Изменение N 1

6.20 - 6.41 Исключены с 28.01.2025. - Изменение N 1

Пересечения и примыкания в разных уровнях

6.42 Пересечения и примыкания в разных уровнях (транспортные развязки) следует проектировать на пересечениях:

- автомобильных дорог категорий IА и IБ - с автомобильными дорогами всех функциональных классов и категорий;

- магистральных автомобильных дорог категории IВ с четырьмя полосами движения - с автомобильными дорогами, расчетная интенсивность движения на которых превышает 1000 ед./сут;

- с автомобильными дорогами всех категорий при числе полос движения на дороге категории IВ шесть и более;

- магистральных дорогах категорий II и III - между собой и с распределительными автомобильными дорогами категорий II и III при суммарной расчетной интенсивности движения более 12 000 ед./сут.

В условиях капитального ремонта, взамен транспортной развязки допускается устройство пересечения в одном уровне - с учетом ГОСТ Р 58653-2019 (таблица 1) и ГОСТ Р 70555.

6.43 В зависимости от планировочных решений пересечения в разных уровнях следует подразделять классы:

- 1-й - полные;

- 2-й - неполные.

Пересечения в разных уровнях 1-го класса следует предусматривать на пересечениях:

- автомагистралей между собой;

- скоростных автомобильных дорог между собой;

- автомагистралей с дорогами категорий IВ и II;

- дорог категорий IВ и II между собой.

Устройство пересечений в разных уровнях 2-го класса допускается на пересечениях с дорогами категорий III - IV, а в условиях реконструкции - с дорогами категорий IВ - II; при этом не допускаются пересечения в одном уровне основных направлений движения.

Геометрические элементы пересечений в одном уровне в составе пересечений автомобильных дорог в разных уровнях следует проектировать в соответствии с требованиями ГОСТ Р 58653.

6.44 Проектирование пересечений в разных уровнях (транспортных развязок) может выполняться как по стандартным схемам приложения Д, так и, при необходимости (в сложных грунтово-геологических и топографических условиях, в условиях ограничений отвода территорий, при изменении направления главной дороги и с учетом направлений основных потоков, а также при пересечении более двух дорог) с разработкой индивидуальных схем.

Требования к взаимному расположению пересечений в разных уровнях

6.45 Взаимное расположение пересечений в разных уровнях должно обеспечивать минимальное влияние въезжающего и съезжающего транспортного потока на движение транзитных автомобилей; с этой целью пересечения в разных уровнях необходимо располагать на достаточном расстоянии друг от друга.

6.46 Расстояния между пересечениями в разных уровнях следует принимать:

- на автомагистралях - не менее 5000 м;

- на скоростных автомобильных дорогах не менее 3000 м.

6.47 При обосновании пропускной способности участков слияния, разделения и переплетения транспортных потоков, расположенных в пределах основных направлений движения или на распределительных проезжих частях, распределительных автомобильных дорогах в составе пересечений в разных уровнях, допускается расположение пересечений в разных уровнях на расстоянии менее указанных в 6.46, но не менее 1000 м.

При проектировании пересечений и примыканий на расстояниях менее указанных в 6.46 следует рассматривать возможность увеличения расстояний между примыканиями путем устройства коллекторно-распределительных дорог.

Поперечный профиль съездов

6.48 Число полос движения на съездах пересечений в разных уровнях следует назначать на основании расчетов по формуле

image008.png, (6.1)

где n - число полос движения, ед.;

N - суммарная интенсивность движения по проектируемой автомобильной дороге, приведенных авт./сут;

Z - коэффициент загрузки дороги движением (таблица А.1);

P - пропускная способность полосы движения, приведенных авт./сут.

6.49 Пропускную способность одной полосы движения проезжей части съезда следует определять расчетом. Для ориентировочных (на этапе выбора схемы и типа пересечения) расчетов допускается принимать P = 24 000 приведенных авт./сут.

6.50 Ширину полосы движения однополосных съездов и распределительных проезжих частей следует принимать 4,5 м без дополнительных уширений на кривых в плане.

6.51 Ширину каждой полосы движения проезжей части многополосных съездов, распределительных проезжих частей и распределительных дорог в составе пересечений следует принимать 3,5 м.

6.52 Проезжую часть многополосных съездов на кривых в плане необходимо уширять. Значение уширения одной полосы движения в зависимости от радиуса кривой в плане и длины расчетного автомобиля следует принимать в соответствии с 5.39.

6.53 Съезды транспортных развязок длиной 500 м и более следует проектировать с двумя и более полосами движения, за исключением петлевых съездов пересечений типа "клеверный лист".

6.54 При проектировании съездов противоположных направлений на общем земляном полотне следует предусматривать устройство центральной разделительной полосы с барьерным ограждением. Параметры разделительной полосы следует принимать в соответствии с таблицей 5.10.

6.55 Для однополосных съездов и коллекторно-распределительных проезжих частей и коллекторно-распределительных дорог, не оборудованных барьерным ограждением, ширину обочин следует принимать не менее 2,5 м, в том числе краевых полос - 0,75 м.

Для многополосных съездов, не оборудованных барьерными ограждениями, ширину обочин следует принимать не менее 2,0 м, в том числе краевых полос - 0,5 м.

При обосновании (необходимость устройства технических проходов, элементов инженерного обеспечения, остановочных полос, дорожных ограждений) допускается увеличение ширины обочин.

6.56 Проектирование плана и продольного профиля съездов транспортных развязок следует проводить из условия наименьшего ограничения и изменения скорости, а также обеспечения безопасности и удобства движения.

6.57 Расчетную скорость движения на прямых и полупрямых съездах, левоповоротных съездах, правоповоротных съездах всех видов следует назначать в зависимости от расчетной скорости по основному направлению с наибольшей интенсивностью движения в соответствии с таблицей 6.3, а для левоповоротных петлевых съездов - в соответствии с таблицей 6.4.

Таблица 6.3 - Расчетная скорость движения на левоповоротных прямых и полупрямых съездах, правоповоротных съездах

Расчетная скорость движения на основном направлении движения, км/ч

Расчетная скорость движения на съездах, км/ч

Основная

Минимально допустимая *

150

60, 70, 80

40

120

50, 60, 70, 80

100

80

50, 60

60 и менее

* Допускается на сложных участках горной и пересеченной местности, на ценных сельскохозяйственных территориях, в условиях капитального ремонта и реконструкции, в застроенных районах.

Таблица 6.4 - Расчетная скорость движения на левоповоротных петлевых съездах

Тип пересечения в разных уровнях (транспортной развязки)

Расчетная скорость, км/ч

Все типы в условиях нового строительства

40

На трудных участках горной и пересеченной местности, в условиях капитального ремонта, реконструкции, на ценных сельскохозяйственных землях, в застроенных районах

30

Примечание - На пересечениях в разных уровнях типа "неполный клеверный лист" расчетную скорость на отмыкании от главной дороги допускается принимать 50 км/ч, на примыкании - 40 км/ч.

6.58 При назначении элементов плана и продольного профиля съездов пересечений в разных уровнях (транспортных развязок) в качестве основных элементов плана и параметров вертикальных кривых следует принимать указанные в таблице 5.3, продольный уклон следует принимать не более 60‰.

6.59 Переходные кривые в пределах съездов пересечений в разных уровнях следует предусматривать при радиусах кривых в плане 2000 м и менее. Наименьшие длины переходных кривых следует принимать в соответствии с 5.9. Нарастание центробежного ускорения допускается принимать не более 1,0 м/с3. Допускается сопряжение кривых в плане без устройства переходных кривых при соотношении их радиусов не более 1,3.

6.60 Наибольшие продольные уклоны на участках кривых в плане радиусом 50 м и менее следует уменьшать по сравнению с показателями таблицы 5.3 согласно данным таблицы 5.5.

6.61 Односкатный поперечный профиль закругления (вираж) следует предусматривать при радиусах кривизны меньше, чем 2000 м. Уклоны виража на всем участке круговой кривой назначают в зависимости от радиусов кривизны по таблице 5.14.

Обеспечение видимости на пересечениях в разных уровнях

6.62 Для пересечений в разных уровнях разрабатывают мероприятия по обеспечению (рисунок 6.1):

- боковой видимости;

- видимости при движении на кривых;

- видимости в зонах выезда со съездов на автомобильные дороги.

image009.jpg

1 - границы зоны видимости внутри кривых; 2 - границы зоны боковой видимости; 3 - границы зоны видимости на въездах и съездах

Рисунок 6.1 - Обеспечение видимости на пересечениях в разных уровнях типа "клеверный лист"

Минимальные расстояния боковой видимости от кромки проезжей части следует принимать согласно 5.23. Боковая видимость обеспечивается посредством планировки и расчистки прилегающей территории.

На кривых в плане с внутренней стороны должна быть обеспечена видимость поверхности дороги в соответствии с 5.18.

В зоне выезда со съездов необходимо обеспечивать видимость автомобилей, движущихся по основной дороге. Треугольник видимости на выезде следует определять с учетом расчетной скорости движения по автомобильной дороге и расчетной скорости движения на съезде.

Расстояния видимости определяют по формуле (5.4). Отсчет расстояний треугольника видимости ведут от перпендикуляра, восстановленного на ось съезда и на ось крайней полосы движения главной дороги в точке сопряжения кромок проезжих частей съезда и основной дороги. Расстояния видимости откладывают по осям крайней полосы движения главной дороги и съезда (навстречу движению) и соединяют.

Обеспечение видимости внутри кривых и в зонах выездов на основную дорогу осуществляют срезкой откосов или удалением препятствий на уровне бровок земляного полотна.

В зоне пересечений в разных уровнях (транспортных развязок) не допускается устройство стоянок автомобилей, остановочных пунктов маршрутных транспортных средств, автозаправочных станций и других сооружений, ограничивающих видимость или влияющих на режимы движения автомобилей.

6.63 Путепроводы пересечений в разных уровнях (транспортных развязок) через дороги всех категорий должны соответствовать требованиям СП 35.13330.

6.64 При назначении габарита приближения конструкций сооружений следует учитывать возможность перспективного развития дороги.

Пересечения автомобильных дорог с железными дорогами и другими коммуникациями

6.65 Место пересечения и положение проектируемых сооружений пересечений автомобильных дорог с железными дорогами в отношении продольного профиля и плана железнодорожной линии следует выбирать с учетом СП 227.1326000.

Вновь строящиеся пересечения железнодорожных путей с автомобильными дорогами в одном уровне устраивают под углом от 80° до 100°. При невозможности выполнить это условие угол между пересекающимися дорогами в одном уровне должен быть не менее 60°.

6.66 Пересечения автомобильных дорог категорий I - III с железными дорогами предусматривают в разных уровнях.

Пересечения автомобильных дорог категории IV с железными дорогами необходимо проектировать в одном уровне, за исключением следующих случаев:

- на пересечении трех и более главных железнодорожных путей;

- пересечение располагается на участках железных дорог со скоростным (свыше 120 км/ч) движением поездов;

- при интенсивности движения более 100 поездов в сутки;

- при расположении пересекаемых железных дорог в выемках, а также в случаях, когда не обеспечены нормы видимости;

- при движении по автомобильным дорогам троллейбусов (кроме движения на автономном ходу) или устройстве на них совмещенных трамвайных путей, с суммарным размером движения более 16 поездов в сутки и установленной скоростью движения поездов более 39 км/ч.

6.67 На вновь строящихся и реконструируемых автомобильных дорогах на подходах к железнодорожным переездам необходимо обеспечивать следующие расстояния видимости, исходя из условий организации и безопасности движения:

- расстояние видимости железнодорожного переезда (сигналов переездной сигнализации и шлагбаумов) вдоль автомобильной дороги - согласно К.1;

- расстояние видимости приближающегося к переезду поезда вдоль железнодорожных путей - согласно К.2;

- расстояние видимости приближающегося поезда из стоящего у железнодорожного переезда автомобиля - согласно К.3.

6.68 Для существующих переездов удовлетворительной считается видимость в зоне железнодорожного переезда, соответствующая требованиям К.1 - К.4. Железнодорожные переезды должны быть оборудованы средствами, обеспечивающими безопасность движения автомобильного транспорта, в соответствии с нормами, установленными [8].

Таблица 6.5 исключена с 28.01.2025. - Изменение N 1

6.69 Ширину проезжей части автомобильных дорог на пересечениях в одном уровне с железными дорогами принимают равной ширине проезжей части дороги на подходах к пересечению. Во избежание потери возможности движения автомобилей из-за съезда колеса с настила на железнодорожный путь в пределах переезда на двухполосных автомобильных дорогах следует предусматривать уширение проезжей части, соответствующее ширине укрепленной части обочины согласно данным таблицы 5.9.

Автомобильная дорога на расстоянии не менее 10 м от крайнего рельса должна иметь в продольном профиле горизонтальную площадку, кривую большого радиуса или уклон, обусловленный превышением одного рельса над другим, когда пересечение располагается в месте закругления железной дороги.

Подходы автомобильной дороги к пересечению на протяжении 50 м следует предусматривать с продольным уклоном не более 30‰.

В трудных условиях на подходах к существующим железнодорожным переездам при реконструкции или капитальном ремонте переезда допускается сохранять существующий план и профиль автомобильной дороги.

Автомобильные дороги на подходах к железнодорожному переезду на протяжении не менее 10 м от головки крайнего рельса (исключая настил железнодорожного переезда) в обе стороны должны иметь жесткую дорожную одежду.

Ограждающие тумбы и столбы шлагбаумов на пересечениях располагают на расстоянии не менее 0,75 м, а стойки габаритных ворот - на расстоянии не менее 1,75 м от кромки проезжей части.

6.70 При прокладке путепроводов над железнодорожными путями наряду с требованиями по обеспечению габаритов приближения строений к железнодорожным путям необходимо:

- обеспечить видимость пути и сигналов, требуемую по условиям безопасности движения поездов;

- предусмотреть водоотвод с учетом устойчивости земляного полотна железных дорог.

6.71 При пересечении автомобильных дорог с трубопроводами (водопровод, канализация, газопровод, нефтепровод, теплофикационные трубопроводы), а также с кабелями линий связи и электропередачи, в том числе на основе минитраншейных и микротрубочных технологий, необходимо соблюдать требования нормативных документов на эти коммуникации.

Пересечения подземных коммуникаций с автомобильными дорогами следует предусматривать под углом от 80° до 100°.

При устройстве термостабилизации земляного полотна (например, применении теплозащитных экранов) пересечения автомобильных дорог с инженерными коммуникациями (водопропускные трубы, инженерные сети и др.) рассматриваются в качестве теплопроводных включений, для узлов которых необходимо выполнять теплотехнические расчеты.

6.72 Линейно-кабельные сооружения транспортной многоканальной коммуникации допускается прокладывать только при строительстве и (или) реконструкции участков автомобильных дорог в обочине автомобильных дорог и в искусственных сооружениях при соблюдении следующих основных условий:

- прокладку ЛКС ТМК следует осуществлять в границах обочины автомобильной дороги на расстоянии не более 50 см от края проезжей части, при этом расстояние от края насыпи должно быть не менее 50 см;

- глубина траншеи для прокладки ЛКС ТМК от поверхности автомобильной дороги до низа моноблока линейно-кабельного сооружения, уложенного в траншею, не должна нарушать целостность слоев дорожной одежды, обеспечивающих водно-тепловой режим работы дорожной конструкции в целом. Глубина от верха моноблока до поверхности дороги должна быть не менее 40 см;

- ширина траншеи для укладки моноблока линейно-кабельного сооружения должна быть не более 15 см;

- при уменьшении ширины обочины автомобильной дороги (см. 5.24) трасса прокладки ЛКС ТМК смещается в сторону проезжей части, а при отсутствии обочины автомобильной дороги при технико-экономическом обосновании - на проезжую часть;

- смотровые устройства (колодцы) для ЛКС ТМК следует располагать в пределах обочины дороги, не создавая препятствий для проведения работ по содержанию дороги, крышка смотрового устройства должна выдерживать нагрузку не менее 12 т от проезда автомобильного транспорта и дорожной техники;

- засыпку траншей ЛКС ТМК следует проводить материалами, идентичными по свойствам, но не ниже по качеству примененных при строительстве автомобильной дороги, с последующим уплотнением до требуемых нормами плотности и прочности;

- проектная документация на строительство ЛКС ТМК должна учитывать положения по организации строительства СП 48.13330;

- трасса ЛКС ТМК со смотровыми колодцами должна быть оснащена указателями о ее местоположении в теле автомобильной дороги.

6.73 Вертикальное расстояние от проводов воздушных телефонных и телеграфных линий до проезжей части в местах пересечений автомобильных дорог должно быть не менее 5,5 м (в теплое время года). Возвышение проводов при пересечении с линиями электропередачи должно быть, м, не менее:

6

-

при

напряжении

до

1 кВ;

7

-

"

"

"

110 кВ;

7,5

-

"

"

"

150 кВ;

8

-

"

"

"

220 кВ;

8,5

-

"

"

"

330 кВ;

9

-

"

"

"

500 кВ;

16

-

"

"

"

750 кВ.

Примечание - Расстояние определяется при высшей температуре воздуха без учета нагрева проводов электрическим током или при гололеде без ветра.

Расстояние от бровки земляного полотна до основания опор воздушных телефонных и телеграфных линий, а также высоковольтных линий электропередачи при пересечении дорог принимают не менее высоты опор.

Наименьшее расстояние от бровки земляного полотна до опор высоковольтных линий электропередачи, расположенных параллельно автомобильным дорогам, принимают равным высоте опор плюс 5 м.

Опоры воздушных линий электропередачи, а также телефонных и телеграфных линий допускается располагать на меньшем удалении от дорог при их расположении на застроенных территориях, в ущельях и т.п., при этом расстояние по горизонтали для высоковольтных линий электропередачи должно составлять:

а) при пересечении от любой части опоры до подошвы насыпи дороги или до наружной бровки боковой канавы для дорог:

категорий I и II при напряжении до 220 кВ - 5 м и при напряжении 330 - 500 кВ - 10 м;

остальных категорий при напряжении до 20 кВ - 1,5 м, от 35 до 220 кВ - 2,5 м и при 330 - 500 кВ - 5 м;

б) при параллельном следовании от крайнего провода при не отклоненном положении до бровки земляного полотна при напряжении до 20 кВ - 2 м, 35 - 110 кВ - 4 м, 150 кВ - 5 м, 220 кВ - 6 м, 330 кВ - 8 м и 500 кВ - 10 м.

На автомобильных дорогах в местах пересечения с воздушными линиями электропередачи напряжением 330 кВ и выше устанавливают дорожные знаки, запрещающие остановку транспорта в охранных зонах этих линий.

Охранные зоны электрических сетей напряжением свыше 1,0 кВ устанавливаются:

а) вдоль воздушных линий электропередачи в виде земляного участка или воздушного пространства, ограниченных вертикальными плоскостями, отстоящими по обеим сторонам от крайних проводов при не отклоненном их положении на расстоянии, м:

10

-

при

напряжении

до

20 кВ;

15

-

"

"

"

35 кВ;

20

-

"

"

"

110 кВ;

25

-

"

"

"

150, 220 кВ;

30

-

"

"

"

330, 500, ±400 кВ;

40

-

"

"

"

750, ±750 кВ;

55

-

"

"

"

1150 кВ;

б) вдоль подземных кабельных линий связи электропередачи в виде земельного участка, ограниченного вертикальными плоскостями, отстоящими по обеим сторонам линии от крайних кабелей на расстоянии 1 м.

Переходно-скоростные полосы

6.74 Переходно-скоростные полосы проектируют на пересечениях и примыканиях в одном уровне в местах съездов на дорогах категорий I - III, в том числе к зданиям и сооружениям, расположенным в придорожной зоне:

- на дорогах категории IА;

- на дорогах категории IБ, IВ - при интенсивности 50 приведенных ед./сут и более съезжающих или въезжающих на дорогу (соответственно для полосы торможения или разгона);

- на дорогах категорий II и III - при интенсивности 200 приведенных ед./сут и более соответственно.

Переходно-скоростные полосы на дорогах всех категорий предусматривают на пересечениях в разных уровнях, в местах расположения остановочных пунктов маршрутных транспортных средств, пунктов транспортного контроля, у постов дорожно-патрульной службы, объектов дорожного и придорожного сервиса и площадок для кратковременной остановки транспортных средств.

Переходно-скоростные полосы съездов пересечений и примыканий в одном уровне, у остановочных пунктов маршрутных транспортных средств, пунктов транспортного контроля, у постов дорожно-патрульной службы, объектов дорожного и придорожного сервиса и площадок для кратковременной остановки транспортных средств, следует принимать в соответствии с требованиями ГОСТ Р 58653. Полученные расчетом по ГОСТ Р 58653 значения длин переходно-скоростных полос допускается округлять в большую или меньшую сторону с шагом 5,0 м.

Примечание - На автомобильных дорогах категории IА длину переходно-скоростных полос съездов пересечений и примыканий в одном уровне, у остановочных пунктов маршрутных транспортных средств, пунктов транспортного контроля, у постов дорожно-патрульной службы, объектов дорожного и придорожного сервиса и площадок для кратковременной остановки транспортных средств следует принимать в соответствии с требованиями настоящего свода правил.

Требования к проектированию участков слияния транспортных потоков (переходно-скоростных полос разгона) пересечений в разных уровнях

6.75 Проектное решение участков примыкания транспортных потоков должно обеспечивать достаточную пропускную способность и безопасные условия для совершения маневра вливания второстепенного транспортного потока в основной. Расположение участков примыкания транспортных потоков к основным направлениям (главной и второстепенной автомобильной дороге) следует осуществлять с правой стороны по ходу движения.

6.76 Безопасные условия для вливания второстепенного транспортного потока в основной следует обеспечивать устройством полос разгона параллельного типа длиной Lс, в соответствии с приложением Е, где представлены их основные схемы.

6.77 Полосы для разгона типов B.1 и B.2 (см. приложение Е, рисунок Е.1, а, и рисунок Е.1, б) следует применять при необходимости обеспечения неизменного числа полос основного направления движения (главной дороги).

Полосы для разгона типов B.3 и B.4 (см. приложение Е, рисунок Е.1, в, и рисунок Е.1, г) следует применять при необходимости увеличения числа полос на основном направлении (главной дороге) на одну полосу движения.

Тип примыкания B.5 (см. приложение Е, рисунок Е.1, д), следует применять при необходимости увеличения числа полос на основном направлении на две полосы движения.

6.78 Все типы примыканий, за исключением B.4 и B.5, должны быть проверены на обеспечение их пропускной способности. Для предварительных расчетов допускается использовать таблицу 6.6.

Таблица 6.6 - Пропускная способность участка разгона

Уровень удобства движения на главной дороге

Интенсивность движения на правой полосе главной дороги, прив. авт./ч

Пропускная способность одной полосы разгона, прив. авт./ч

A

400

900

B

700

750

C, D

900

700

6.79 Длину участков разгона Lр переходно-скоростных полос на участках примыкания транспортных потоков следует принимать в соответствии с таблицей 6.7.

Таблица 6.7 - Наименьшая длина участка разгона

Расчетная скорость основного направления, км/ч

Длина участка разгона Lр, м

150

250

120

100

220

80

200

60

180

Примечание - При интенсивности грузового движения в пределах примыкающего съезда более 40% длину участка разгона переходно-скоростной полосы следует принимать 400 м.

6.80 Длину участков отгона Lотг переходно-скоростных полос на участках примыкания транспортных потоков следует принимать в соответствии с таблицей 6.8.

Таблица 6.8 - Длина участков отгона переходно-скоростных полос

Категория дороги

Длина отгона, м

120

IБ, IВ, II

80

III

60

IV

30

6.81 Ширину полос движения переходно-скоростных полос на участках примыкания транспортных потоков следует принимать равной ширине смежной с ней полосы движения съезда или основного направления.

Требования к проектированию участков разделения транспортных потоков (переходно-скоростных полос торможения) пересечений в разных уровнях

6.82 Проектное решение участков разделения транспортных потоков должно обеспечивать достаточную пропускную способность, а также распознаваемость съезда водителями транспортных средств. Расположение участков разделений транспортных потоков от основных направлений (главной и второстепенной автомобильной дороги) следует осуществлять с правой стороны по ходу движения.

6.83 Распознаваемость участков разделения транспортных потоков следует обеспечивать путем устройства полос торможения параллельного типа длиной Lс, а также надлежащей расстановкой указателей направления - в соответствии с ГОСТ Р 52289.

6.84 Полосы торможения типа C.1, представленные на рисунке Е.2, а, следует применять при интенсивности поворачивающего транспортного потока не более указанного в таблице 6.9 и неизменном числе полос основного направления движения.

Таблица 6.9 - Пропускная способность участков разделения транспортных потоков

Уровень удобства движения

Пропускная способность, прив. авт./ч, по типам участков разделения транспортных потоков

C.1, C.4, C.5, C6

C.2, C.3

A

400

600

B

900

1400

C

1400

2300

6.85 Полосы торможения типа C.2, представленные на рисунке Е.2, б, следует применять при интенсивности поворачивающего транспортного потока не более указанного в таблице 6.9 и неизменном числе полос основного направления движения.

Полосы торможения типа C.3, представленные на рисунке Е.2, в, следует применять при интенсивности поворачивающего транспортного потока не более указанного в таблице 6.9 на двухполосных и многополосных съездах и необходимости снижения числа полос основного направления на одну полосу движения.

Тип разделения транспортных потоков C.4, представленный на рисунке Е.2, г, следует применять при интенсивности поворачивающего транспортного потока не более указанного в таблице 6.9 и снижении числа полос на основном направлении на одну полосу движения.

Тип разделения транспортных потоков C.5, представленный на рисунке Е.2, д, следует применять при интенсивности поворачивающего транспортного потока более указанного в таблице 6.9 и снижении числа полос на основном направлении на одну полосу движения.

Тип разделения транспортных потоков C.6, представленный на рисунке Е.2, е, следует применять при интенсивности поворачивающего транспортного потока более указанного в таблице 6.9 и необходимости снижения числа полос на основном направлении на две полосы движения.

6.86 Длину участков торможения переходно-скоростных полос следует принимать в соответствии с таблицей 6.10.

Таблица 6.10 - Длина участков торможения переходно-скоростных полос

Расчетная скорость движения на съезде, км/ч

Длина участка торможения Lт, м, при расчетной скорости движения основного направления Vр, км/ч

60

80

100

120

150

30

70

90

160

240

250

40

70

130

210

50

90

180

60

70

130

70

80

240

80

70

180

6.87 Длину участков отгона Lотг переходно-скоростных полос на участках разделения транспортных потоков следует принимать в соответствии с таблицей 6.8.

6.88 Ширину переходно-скоростных полос на участках разделения транспортных потоков следует принимать равной ширине смежной с ней полосы движения съезда или основного направления.

6.89 Исключен с 28.01.2025. - Изменение N 1

Требования к проектированию участков переплетения транспортных потоков

6.90 Участки переплетения транспортных потоков следует устраивать при необходимости одновременной встречной смены полос движения автомобилями, движущимися по соседним полосам проезжей части.

6.91 На транспортных развязках типа "клеверный лист", устраиваемых на автомагистралях и скоростных дорогах при расчетной скорости 100 км/ч и более, следует предусматривать коллекторно-распределительную проезжую часть или коллекторно-распределительную дорогу.

6.92 Ширину полосы движения на участках переплетения следует принимать равной ширине смежной с ней полосы движения основного направления.

6.93 Длину участков переплетения транспортных потоков следует назначать в соответствии с расчетом их пропускной способности.

7 Земляное полотно

7.1 Земляное полотно должно быть запроектировано и возведено с учетом категории дороги, типа дорожной одежды, высоты насыпи и глубины выемки, свойств грунтов, используемых в земляном полотне, условий производства работ по возведению полотна, природных условий района строительства и особенностей инженерно-геологических условий участка строительства, опыта эксплуатации дорог в данном районе, исходя из обеспечения требуемых прочности, устойчивости и стабильности как самого земляного полотна, так и дорожной одежды при наименьших затратах на стадиях строительства и эксплуатации, а также при максимальном сохранении ценных земель и наименьшем ущербе окружающей природной среде.

7.2 Земляное полотно включает следующие элементы:

- верхнюю часть земляного полотна (рабочий слой);

- тело насыпи (с откосными частями);

- основание насыпи;

- основание выемки;

- откосные части выемки;

- устройства поверхностного водоотвода;

- устройства для понижения или отвода грунтовых вод (дренаж);

- поддерживающие и защитные геотехнические устройства и конструкции, предназначенные для защиты земляного полотна от опасных геологических процессов (эрозии, абразии, селей, лавин, оползней и т.п.).

7.3 Природные условия района строительства характеризуются комплексом погодно-климатических, инженерно-геологических (включая геоморфологические), гидрологических и геокриологических факторов. Для первоначальной оценки природных условий района строительства следует использовать дорожно-климатическое районирование территории в соответствии с приложением Б.

Особенности гидрологических и инженерно-геологических условий участка трассы следует оценивать в связи с типом местности по условиям увлажнения территории (таблица В.1 приложения В), гидрологическими и мерзлотными условиями и процессами, включая воздействие техногенных факторов (с учетом освоенности территории), геоморфологическими особенностями (рельефом) и др.

По условиям увлажнения верхней толщи грунтов различают три типа местности:

1-й - сухие участки;

2-й - сырые участки с избыточным увлажнением в отдельные периоды года;

3-й - мокрые участки с постоянным избыточным увлажнением.

7.4 Параметры конструкции земляного полотна назначаются с применением:

- широко апробированных и не требующих дополнительного обоснования специальными расчетами решений, соответствующих настоящему своду правил;

- индивидуальных конструктивных решений, требующих обоснования специальными расчетами.

Индивидуальные решения следует применять:

- для насыпей с высотой откоса более 12 м;

- для насыпей на участках временного подтопления, а также при пересечении постоянных водоемов и водотоков;

- для насыпей, сооружаемых на болотах глубиной более 4 м при наличии поперечных уклонов дна болота более 1:10;

- для насыпей, сооружаемых на слабых основаниях (7.25);

- при использовании в насыпях грунтов повышенной влажности;

- при возвышении поверхностей покрытия над расчетным уровнем воды менее указанного в 7.11;

- при использовании в насыпях прослоек из геосинтетических материалов (разделительных, армирующих, дренирующих, капилляропрерывающих, гидроизолирующих, теплоизолирующих и т.п.) для регулирования водно-теплового режима верхней части земляного полотна, а также при специальных поперечных профилях;

- при сооружении насыпей на просадочных грунтах;

- при сооружении насыпей из крупнообломочных грунтов размерами обломков более 0,2 м;

- для выемок высотой откоса более 12 м в нескальных грунтах и более 16 м в скальных при благоприятных инженерно-геологических условиях;

- для выемок в слоистых толщах, имеющих наклон пластов в сторону проезжей части;

- для выемок, вскрывающих водоносные горизонты или имеющих в основании водоносный горизонт, а также в глинистых грунтах с показателем текучести более 0,5;

- для выемок высотой откоса более 6 м в пылеватых грунтах в районах избыточного увлажнения, а также в глинистых грунтах и скальных размягчаемых грунтах, теряющих прочность и устойчивость в откосах под воздействием погодно-климатических факторов;

- для выемок в набухающих грунтах при неблагоприятных условиях увлажнения;

- для насыпей и выемок, сооружаемых в сложных инженерно-геологических условиях: на косогорах круче 1:3, на участках с наличием или возможностью развития склоновых процессов, оврагообразования, карста, наледи, вечной мерзлоты и т.п.;

- при возведении земляного полотна с применением взрывов или гидромеханизации;

- при сооружении периодически затопляемых дорог при пересечении водопотоков;

- при применении теплоизолирующих слоев на участках многолетнемерзлых грунтов.

Необходимо также предусматривать водоотводные, дренажные, поддерживающие, защитные и другие сооружения, обеспечивающие устойчивость земляного полотна в сложных условиях, а также участки сопряжения земляного полотна с мостами и путепроводами.

Систему дорожного водоотвода следует проектировать в соответствии с требованиями ГОСТ Р 59611.

Грунты

7.5 Грунты по происхождению, составу, состоянию в природном залегании, набуханию, просадочности и степени цементации льдом подразделяют в соответствии с ГОСТ 33063, ГОСТ 25100. Типы и подтипы глинистых грунтов приведены в ГОСТ 33063 и ГОСТ 25100, разновидности грунтов по характеру и степени засоленности устанавливают в соответствии с таблицей В.3 приложения В.

7.6 Грунты для рабочего слоя земляного полотна следует дополнительно подразделять по набухаемости, относительной просадочности и склонности к морозному пучению, а также по льдистости и просадочности при оттаивании в соответствии с таблицами В.4 - В.10 приложения В.

Грунты для сооружения насыпей и рабочего слоя подразделяют по степени увлажнения, в соответствии с таблицей В.11 приложения В. При этом к грунтам с допустимой влажностью следует относить грунты, влажность которых соответствует требованиям таблицы В.12 приложения В.

Допускается применение общей и частной классификаций грунтов, содержащихся в ГОСТ 33063.

7.7 К особым грунтам следует относить: торфяные и заторфованные; сапропели; илы; иольдиевые глины; лессы; аргиллиты и алевролиты; мергели, глинистые мергели и мергелистые глины; трепел; тальковые и пирофиллитовые; дочетвертичные глинистые грунты, глинистые сланцы и сланцевые глины; черноземы; пески барханные; техногенные грунты (отходы промышленности).

7.8 К слабым следует относить связные грунты, имеющие прочность на сдвиг в условиях природного залегания менее 0,075 МПа (при испытании прибором вращательного среза) или модуль осадки более 50 мм/м при нагрузке 0,25 МПа (модуль деформации ниже 5,0 МПа).

К числу слабых грунтов также следует относить такие разновидности дисперсных связных грунтов, как органические разновидности (торфы, органосапропели), органоминеральные разновидности (органоминеральные сапропели, болотный мергель, заторфованные грунты) и минеральные разновидности (илы, мокрые солончаки, переувлажненные глинистые грунты, иольдиевые глины). При отсутствии данных испытаний к слабым грунтам следует относить торф и заторфованные грунты, илы, сапропели, глинистые грунты с показателем текучести IL свыше 0,5, иольдиевые глины, грунты мокрых солончаков.

7.9 К дренирующим следует относить грунты, имеющие при максимальной плотности при стандартном уплотнении по ГОСТ 22733 коэффициент фильтрации не менее 0,5 м/сут, определяемый по ГОСТ 25584.

7.10 Пески со степенью неоднородности менее 3 по ГОСТ 25100, ГОСТ 33063, а также мелкие пески с содержанием по массе не менее 90% частиц размером 0,10 - 0,25 мм следует относить к однородным.

Рабочий слой земляного полотна

7.11 Для обеспечения устойчивости и прочности рабочего слоя земляного полотна и дорожной одежды возвышение поверхности покрытия над расчетным уровнем грунтовых вод, верховодки или длительно (более 30 сут) стоящих поверхностных вод, а также над поверхностью земли на участках с необеспеченным поверхностным стоком или над уровнем кратковременно (менее 30 сут) стоящих поверхностных вод должно соответствовать требованиям таблицы 7.1.

Таблица 7.1 - Наименьшее возвышение поверхности покрытия дороги

Грунт рабочего слоя

Наименьшее возвышение поверхности покрытия, м, в пределах дорожно-климатических зон

II

III

IV

V

Песок мелкий, супесь легкая крупная, супесь легкая

1,1

-----

0,9

1,2

-----

0,7

0,75

-----

0,55

0,5

-----

0,3

Песок пылеватый, супесь пылеватая

1,5

-----

1,2

1,2

-----

1,0

1,1

-----

0,8

0,8

-----

0,5

Суглинок легкий, суглинок тяжелый, глины

2,2

-----

1,6

1,8

-----

1,4

1,5

-----

1,1

1,1

-----

0,8

Супесь тяжелая пылеватая, суглинок легкий пылеватый, суглинок тяжелый пылеватый

2,4

-----

1,8

2,1

-----

1,5

1,8

-----

1,3

1,2

-----

0,8

Примечание - В числителе - возвышение поверхности покрытия над уровнем грунтовых вод, верховодки или длительно (более 30 сут) стоящих поверхностных вод, в знаменателе - то же, над поверхностью земли на участках с необеспеченным поверхностным стоком или над уровнем кратковременно (менее 30 сут) стоящих поверхностных вод.

За расчетный уровень грунтовых вод следует принимать максимально возможный осенний (перед промерзанием) уровень за период между восстановлениями прочности дорожных одежд (капитальными ремонтами). В районах, где наблюдаются частые продолжительные оттепели, за расчетный принимают максимально возможный весенний уровень грунтовых вод за период между капитальными ремонтами. В районах с глубиной промерзания менее толщины дорожной одежды за расчетный уровень принимают максимальный возможный уровень грунтовых вод требуемой вероятности превышения в период его сезонного максимума. Положение расчетного уровня грунтовых вод устанавливают по данным разовых краткосрочных замеров на период изысканий и прогнозов. При отсутствии указанных данных, а также при наличии верховодки за расчетный допускается принимать уровень, определяемый по верхней линии оглеения грунтов.

Возвышения поверхности покрытия дорожной одежды над уровнем грунтовых вод или уровнем поверхностных вод в слабо- и среднезасоленных грунтах следует увеличивать на 20% (для суглинков и глин - 30%), а при сильнозасоленных грунтах - 40% - 60%.

В районах постоянного искусственного орошения возвышение поверхности покрытия над зимне-весенним уровнем грунтовых вод в зонах IV, V следует увеличивать на 0,4 м, а в зоне III - на 0,2 м.

При невозможности обеспечения требуемого возвышения должны быть предусмотрены меры по регулированию водно-теплового режима рабочего слоя (замена грунта, устройство прослоек, в том числе из геосинтетических материалов, и т.п.), обосновываемые расчетами.

7.12 Возвышение отметки оси поверхности покрытия на участках насыпей, сооружаемых с откосами круче, чем 1:1,5, а также с бермами, при необходимости, следует уточнять на основе расчета.

7.13 Минимальное возвышение отметки поверхности покрытия в дорожно-климатической зоне I устанавливают на основе теплотехнических расчетов (7.49), но не менее норм для дорожно-климатической зоны II согласно таблице 7.1.

7.14 При наличии в рабочем слое различных грунтов возвышение следует назначать по грунту, для которого требуемое возвышение имеет наибольшее значение.

7.15 Рабочий слой на глубину 1,2 м от поверхности цементобетонных и на глубину 1 м асфальтобетонных покрытий в дорожно-климатической зоне II и на 1 и 0,8 м соответственно в дорожно-климатической зоне III должен состоять из непучинистых или слабопучинистых грунтов. При использовании в пределах 2/3 глубины промерзания грунтов групп III - V по пучинистости (таблицы В.6 и В.7 приложения В) при назначении конструкции дорожной одежды величину морозного пучения проверяют расчетом по результатам испытаний. Для дорог в зонах II и III при глубине промерзания до 1,5 м допускается величину морозного пучения определять по таблице В.8 приложения В.

В условиях дорожно-климатических зон IV и V рабочий слой должен состоять из ненабухающих и непросадочных грунтов (таблицы В.4 и В.5 приложения В) на глубину 1 и 0,8 м от поверхности цементобетонного и асфальтобетонного покрытий соответственно.

Для дорог категорий I - III при толщине дорожных одежд 0,8 - 1,0 м и более мощность рабочего слоя назначается с учетом, чтобы расстояние от низа конструкции дорожной одежды до земляного полотна было не менее 0,5 м.

7.16 Степень уплотнения грунта, определяемая значением коэффициента уплотнения, должна отвечать требованиям таблицы 7.2.

Таблица 7.2 - Наименьший коэффициент уплотнения грунта

Элементы земляного полотна

Глубина расположения слоя от поверхности покрытия, м

Наименьший коэффициент уплотнения грунта при типе дорожных одежд

капитальном

облегченном и переходном

в дорожно-климатических зонах

I

II, III

IV, V

I

II, III

IV, V

Рабочий слой

До 1,5

0,98 - 0,96

1,0 - 0,98

0,98 - 0,95

0,95 - 0,93

0,98 - 0,95

0,95

Неподтопляемая часть насыпи

Свыше 1,5 до 6

0,95 - 0,93

0,95

0,95

0,93

0,95

0,90

Свыше 6

0,95

0,95

0,95

0,93

0,95

0,90

Подтопляемая часть насыпи

Свыше 1,5 до 6

0,96 - 0,95

0,98 - 0,95

0,95

0,95 - 0,93

0,95

0,95

Свыше 6

0,96

0,98

0,98

0,95

0,95

0,95

В рабочем слое выемки ниже зоны сезонного промерзания

До 1,2

-

0,95

-

-

0,95 - 0,92

-

До 0,8

-

-

0,95 - 0,92

-

-

0,90

Примечание - Бóльшие значения коэффициента уплотнения грунта следует принимать при цементобетонных покрытиях и цементогрунтовых основаниях, а также при дорожных одеждах облегченного типа, меньшие значения - во всех остальных случаях.

В районах поливных земель при возможности увлажнения земляного полотна требования к плотности грунта для всех типов дорожных одежд принимают такими же, как указано в графах таблицы 7.2 для дорожно-климатических зон II и III.

Для земляного полотна, сооружаемого в районах распространения островной высокотемпературной вечной мерзлоты, коэффициенты уплотнения принимают, как для дорожно-климатической зоны II.

7.17 При сохранении стабильной плотности и влажности грунтов в дорожно-климатических зонах II и III допускается при обосновании более значительное уплотнение верхней части рабочего слоя земляного полотна для использования в качестве нижнего конструктивного слоя дорожной одежды.

7.18 В зонах IV и V при технико-экономическом обосновании следует повышать плотность грунтов рабочего слоя земляного полотна по сравнению с таблицей 7.2 и предусматривать защиту грунта от влагонакопления и набухания в процессе эксплуатации дороги. Для зоны V следует повышать степень уплотнения (до 1 - 1,05) верхней части рабочего слоя толщиной 0,2 - 0,3 м. То же следует предусматривать на дорогах категории I во всех дорожно-климатических зонах.

7.19 Требуемую степень уплотнения крупнообломочных природных и техногенных грунтов в рабочем слое устанавливают по результатам пробного уплотнения.

7.20 Не допускается использовать в пределах рабочего слоя особые грунты (7.7), а также грунты с влажностью более нормальной (таблица В.11 приложения В) без их непосредственных испытаний.

7.21 При соблюдении требований 7.11 - 7.20 допускается применение табличных значений расчетной влажности (с учетом расчетной схемы увлажнения, таблица В.13 приложения В) и показателей механических свойств грунтов рабочего слоя при расчете дорожных одежд.

Прочность и устойчивость рабочего слоя дорожной одежды допускается обеспечивать выполнением следующих мероприятий:

- устройство морозозащитного слоя;

- регулирование водно-теплового режима земляного полотна с помощью гидроизолирующих, теплоизолирующих, дренирующих или капилляропрерывающих прослоек из нетканого геотекстиля и геокомпозитов по ГОСТ Р 56419;

- укрепление и улучшение грунта рабочего слоя с использованием вяжущих, гранулометрических добавок и др.;

- применение армирующих прослоек из геосинтетических материалов по ГОСТ Р 56338;

- понижение уровня подземных вод с помощью дренажа;

- применение специальных поперечников земляного полотна в целях его защиты от поверхностной воды (уположенные откосы, бермы);

- сооружение дорожных одежд с техническим перерывом или в две стадии.

Указанные мероприятия назначают на основе технико-экономических расчетов.

7.22 Рабочий слой проектируют в комплексе с дорожной одеждой для получения наиболее оптимальных решений.

Расчетные характеристики грунтов рабочего слоя определяют с учетом расчетной схемы увлажнения, устанавливаемой по таблице В.13 приложения В.

Насыпи

7.23 Для устройства насыпей ниже границы рабочего слоя разрешается с учетом [3] и санитарных требований применять грунты и отходы промышленности, устойчивые под воздействием погодно-климатических факторов (циклов увлажнения-высушивания, промерзания-оттаивания). Грунты, а также отходы промышленного производства, изменяющие прочность и устойчивость под воздействием этих факторов и нагрузок с течением времени, в том числе особые грунты, допускается применять с ограничениями, обосновывая их применение результатами испытаний и расчетов. Следует предусматривать конструктивные меры по защите неустойчивых грунтов от воздействия погодно-климатических факторов.

Для снижения нагрузки на основания насыпей, в том числе при строительстве на слабых основаниях, допускается уменьшение объемного веса насыпей с применением технологий устройства облегченных насыпей (частичное замещение насыпного грунта блоками из экструзионного пенополистирола, а также щебнем на основе пеностекла), соответствующих ГОСТ Р 59697, ГОСТ Р 59574.

7.24 Участок сопряжения насыпи с мостом на длине поверху не менее высоты насыпи плюс 2 м (считая от устоя) и понизу не менее 2 м необходимо возводить из непучинистых дренирующих грунтов.

7.25 Насыпи возводят с учетом несущей способности основания. Основания разделяют на прочные и слабые.

Расчеты устойчивости основания насыпей на слабых грунтах выполняют на расчетную нагрузку АК. Для насыпи с высотой откоса более 12 м проверяют устойчивость откосов. В качестве расчетной нагрузки принимают нагрузку НК. Коэффициент устойчивости насыпей следует принимать Kтр ≥ 1,3.

7.26 Предельную крутизну откосов насыпей на прочном основании назначают в соответствии с таблицей 7.3.

Таблица 7.3 - Наибольшая крутизна откосов насыпей

Грунты насыпи

Наибольшая крутизна откосов при высоте откоса насыпи, м

До 6

До 12

в нижней части (0 - 6)

в верхней части (6 - 12)

Глыбы из слабовыветривающихся пород

1:1 - 1:1,3

1:1,3 - 1:1,5

1:1,3 - 1:1,5

Крупнообломочные и песчаные (за исключением мелких и пылеватых песков)

1:1,5

1:1,5

1:1,5

Песчаные мелкие и пылеватые, глинистые и лессовые

1:1,5

--------

1:1,75

1:1,75

--------

1:2

1:1,5

--------

1:1,75

Примечания

1 В знаменателе даны значения для пылеватых разновидностей грунтов в дорожно-климатических зонах II и III и для одноразмерных мелких песков.

2 Высота откоса насыпи определяется разностью отметок верхней и нижней бровок откоса. При наличии косогорности высота откоса насыпи определяется разностью отметок верхней и нижней бровок низового откоса.

3 Наибольшую крутизну откоса насыпей из мелких барханных песков в районах с засушливым климатом назначают 1:2 независимо от высоты.

7.27 Крутизну откосов насыпей высотой до 3 м на дорогах категорий I - III назначают с учетом обеспечения безопасного съезда транспортных средств в аварийных ситуациях не круче 1:4, а для дорог категории IV при высоте откоса насыпи до 2 м - не круче 1:3. На участках ценных сельскохозяйственных угодий, а также в условиях городской застройки допускается увеличение крутизны откосов до предельных значений, приведенных в таблице 7.3, с разработкой мероприятий по обеспечению безопасности движения (устройство ограждений и др.).

7.28 Крутизна откосов насыпей, приведенная в 7.26 и 7.27, рассчитана на возможность их укрепления методом травосеяния или одерновки.

7.29 В случае использования в насыпях на слабых основаниях и в подтопляемых насыпях связных грунтов повышенной влажности крутизну откосов назначают на основе расчетов.

7.30 Фактический объем требуемого для насыпей из резервов грунта Vф определяют по формуле

Vф = Vk1, (7.1)

где V - объем насыпи, м3;

k1 - коэффициент относительного уплотнения (отношение требуемой плотности грунта в насыпи, устанавливаемой с учетом таблицы 7.2, к его плотности в резерве или карьере, устанавливаемой при изысканиях). Ориентировочно коэффициент относительного уплотнения допускается принимать по таблице В.14 приложения В.

7.31 К насыпям на слабых основаниях предъявляются дополнительные требования:

- боковое выдавливание слабого грунта в основании насыпи в период эксплуатации должно быть исключено;

- интенсивная часть осадки основания должна завершиться до устройства покрытия (исключение допускается при применении сборных покрытий в условиях двухстадийного строительства);

- упругие колебания насыпей на торфяных основаниях при движении транспортных средств не должны превышать величины, допустимой для данного типа дорожной одежды.

Устойчивость и осадки основания насыпи, а также ее упругие колебания прогнозируют на основе расчетов.

Примечания

1 За завершение интенсивной части осадки допускается принимать момент достижения 90%-ной консолидации основания или интенсивности осадки не более 2,0 см/год при дорожных одеждах капитального типа и 80%-ной консолидации или интенсивности осадки не более 5,0 см/год при дорожных одеждах облегченного типа.

2 Допустимую интенсивность осадки разрешается уточнять на основе опыта эксплуатации дорог в тех или иных природных условиях.

7.32 Для насыпей из грунтов, влажность которых превышает допустимую (таблица В.12), предусматривают специальные мероприятия, обеспечивающие необходимую устойчивость земляного полотна. К числу таких мероприятий относят:

осушение грунтов как естественным путем, так и за счет обработки их активными веществами: негашеная известь, активные золы-уноса и др.;

ускорение консолидации грунтов повышенной влажности в нижней части насыпи (устройство виброуплотняемых свай из неорганических сыпучих материалов, горизонтальные дренажи из зернистых или геосинтетических материалов - нетканых геотекстилей, дренажных матов, полимерных дренажных труб и др.) и предупреждение деформаций насыпей, связанных с их расползанием (уположение откосов и защита их от размыва, устройство горизонтальных прослоек из зернистых или армирующих геосинтетических материалов и т.д.).

Устройство покрытий дорожных одежд капитального и облегченного типов на таких насыпях предусматривают после завершения соответственно 90% и 80% консолидации грунта насыпи.

При влажности грунтов ниже 0,9 оптимальной предусматривают в проекте дополнительные меры по их уплотнению (доувлажнение, уплотнение более тонкими слоями и т.п.).

7.33 Для насыпей с высотой откосов более 12 м в зависимости от конкретных условий в целях обеспечения устойчивости насыпи и ее откосов следует определять расчетом:

- возможную осадку насыпи за счет ее доуплотнения под действием собственной массы и ход этой осадки во времени;

- очертание поперечного профиля, обеспечивающее устойчивость откосов насыпи;

- безопасную нагрузку на основание, исключающую процессы бокового выдавливания грунта;

- величину и ход во времени осадки основания насыпи за счет его уплотнения под нагрузкой от массы насыпи.

7.34 Высоту насыпи на участках дорог, проходящих по открытой местности, по условию снегонезаносимости во время метелей определяют расчетом по формуле

h = hs+ Δh, (7.2)

где h - высота незаносимой насыпи, м;

hs - расчетная высота снегового покрова в месте, где возводится насыпь, с вероятностью превышения 5%, м;

Δh - возвышение бровки насыпи над расчетным уровнем снегового покрова, необходимое для обеспечения ее незаносимости, м.

Примечание - В случаях, когда Δh оказывается меньше возвышения бровки насыпи над расчетным уровнем снегового покрова по условиям снегоочистки Δhsc (7.35), в формулу (7.2) вместо Δh вводится Δhsc.

Возвышение бровки насыпи над расчетным уровнем снегового покрова необходимо назначать, м, не менее:

1,2 - для дорог категории I;

0,7 - для дорог категории II;

0,6 - для дорог категории III;

0,5 - для дорог категории IV.

7.35 В районах, где расчетная высота снегового покрова превышает 1 м, необходимо проверять достаточность возвышения бровки насыпи над снеговым покровом по условию беспрепятственного размещения снега, сбрасываемого с дороги при снегоочистке, используя формулу

Δhsc= 0,375hsB/a, (7.3)

где Δhsc - возвышение бровки насыпи над расчетным уровнем снегового покрова по условиям снегоочистки, м;

B - ширина земляного полотна, м;

a - расстояние отбрасывания снега с дороги снегоочистителем, м; для дорог с регулярным режимом зимнего содержания допускается принимать a = 8 м.

Выемки

7.36 Крутизну откосов выемок назначают в соответствии с таблицей 7.4.

Таблица 7.4 - Наибольшая крутизна откосов выемок

Грунты

Высота откоса, м

Наибольшая крутизна откосов

Скальные:

- слабовыветривающиеся

До 16

1:0,2

- легковыветривающиеся:

- неразмягчаемые

До 16

1,05 - 1:1,5

- размягчаемые

До 6

1:1

Свыше 6 до 12

1:1,5

Крупнообломочные

До 12

1:1 - 1:1,5

Песчаные, глинистые однородные твердой, полутвердой и тугопластичной консистенции

До 12

1:1,5

Пески мелкие барханные

До 2

1:4

От 2 до 12

1:2

Лесс

До 12

1:0,1 - 1:0,5

----------------

1:0,5 - 1:1,5

Примечания

1 В числителе приведена крутизна откосов в засушливой зоне, в знаменателе - вне засушливой зоны.

2 В скальных слабовыветривающихся грунтах допускаются вертикальные откосы.

3 На территориях с закрепленными растительностью песками допускается наибольшую крутизну при высоте откоса до 12 м принимать 1:2.

4 Высоту откоса выемки определяют разностью отметок верхней и нижней бровок откоса. В случае косогорности при пользовании настоящей таблицей в расчет берут верховой откос.

7.37 Выемки глубиной до 1 м в целях предохранения от снежных заносов предусматривают с крутизной откосов от 1:5 до 1:10 или разделанными под насыпь. Выемки глубиной от 1 до 5 м на снегозаносимых участках предусматривают с крутыми откосами (1:1,5 - 1:2) и дополнительными полками или обочинами шириной не менее 4 м.

7.38 Выемки глубиной более 2 м в мелких и пылеватых песках, переувлажненных глинистых грунтах, легковыветривающихся или трещиноватых скальных породах, в пылеватых лессовидных и лессовых породах, а также в многолетнемерзлых грунтах, переходящих при оттаивании в мягкопластичное состояние, предусматривают с закюветными полками. Ширину закюветных полок принимают при мелких и пылеватых песках равной 1 м, в случае остальных указанных грунтов при высоте откоса до 6 м - 1 м, при высоте откоса до 12 м (для скальных пород - до 16 м) - 2 м. Для дорог категорий I - III при сооружении выемок в легковыветривающихся скальных грунтах допускается предусматривать кювет-траншею шириной не менее 3 м и глубиной не менее 0,8 м.

Поверхности закюветных полок придается уклон 20 - 40‰ в сторону кювета. Уклон можно не предусматривать в случае скальных пород, а также песков в условиях засушливого климата.

На откосах выемок в нескальных грунтах крутизной 1:2 и круче и высотой более 6,0 м следует предусматривать устройство полок в целях придания дополнительной устойчивости откосам и обеспечения их обслуживания и ремонта. Полки следует располагать параллельно бровке дороги на высоте половины наибольшей высоты откоса, но не более 6,0 м. При большей высоте откоса следует предусматривать устройство дополнительных полок на расстоянии 6,0 м между ними по высоте.

Следует учитывать возможность доступа на полки техники в целях обслуживания откосов (обкашивание, ремонт), для чего ширину полок следует назначать не менее 3,0 м.

7.39 Для выемок, не удовлетворяющих требованиям 7.36, а также проектируемых в сложных грунтово-геологических условиях выполняют расчеты по оценке общей и местной устойчивости откосов, разрабатывают мероприятия по ее обеспечению, включая назначение соответствующего поперечного профиля, выполняют устройство дренажей, защитных слоев, укрепление откосов геосинтетическими материалами (объемные георешетки, геоматы, габионы).

Земляное полотно в сейсмически опасных районах

7.40 Сейсмобезопасность земляного полотна автомобильной дороги необходимо обеспечивать в соответствии с требованиями СП 14.13330.

7.41 Конструкции земляного полотна на косогорах следует обосновывать соответствующими расчетами с учетом устойчивости косогора как в природном состоянии, так и после сооружения дороги.

На устойчивых горных склонах крутизной более 1:3 земляное полотно располагают на полке, врезанной в косогор. На склонах крутизной 1:10 - 1:5 земляное полотно следует устраивать в виде насыпи без устройства уступов в основании. При крутизне склонов от 1:5 до 1:3 земляное полотно устраивают в виде насыпи, полунасыпи-полувыемки либо на полке. В основании насыпи и полунасыпи-полувыемки устраивают уступы шириной 3 - 4 м и высотой до 1 м. Уступы не устраиваются на склонах из дренирующих грунтов, а также из скальных слабовыветривающихся грунтов.

Следует предусматривать комплексные мероприятия, обеспечивающие устойчивость земляного полотна и склона, на котором оно располагается (дренажные устройства, поверхностный водоотвод, защита от эрозии, подпорные сооружения, изменение очертания склона и т.д., в том числе с применением геосинтетических материалов и армогрунтовых конструкций).

Земляное полотно в лесисто-болотистой местности

7.42 Конструкцию земляного полотна на болотах назначают на основе технико-экономического сравнения вариантов, предусматривающих удаление болотных грунтов (включая взрывной метод) или их использование в качестве основания насыпи с принятием дополнительных мер по обеспечению устойчивости, снижению и ускорению осадок, а также исключению недопустимых упругих колебаний.

При глубине болот до 6 м и высоте насыпей до 3 м проектирование насыпи допускается вести на основе привязки типовых решений с учетом типа болота (приложение Г).

При использовании болотных грунтов в основании насыпи наряду с общими требованиями должны соблюдаться требования 7.31.

Нижнюю часть насыпей на болотах, погружающуюся ниже уровня поверхности болота и 0,5 м выше, следует отсыпать из дренирующих песчаных или крупнообломочных грунтов. Применение других грунтов, включая торф, должно быть обосновано расчетами. При применении конструкций с выторфовыванием требуемый объем грунта для насыпи назначают с учетом компенсации боковых деформаций стенок траншеи выторфовывания, определяемых расчетом.

7.43 Насыпи на затопляемых пойменных участках, пересечении водоемов и подходах к мостовым сооружениям предусматривают с учетом волнового воздействия, а также гидростатического и эрозийного воздействия воды в период подтопления. Для обеспечения возможности ремонта и укрепления откосов в период эксплуатации на таких участках при технико-экономическом обосновании допускается предусматривать устройство берм шириной не менее 4 м.

7.44 При устройстве насыпей на слабых основаниях назначают обосновываемые расчетами мероприятия, обеспечивающие возможность использования слабых грунтов в основании: уположение откосов, устройство боковых призм, временную перегрузку, регламентацию режима отсыпки насыпи, устройство вертикального дренажа, грунтовых виброуплотняемых свай-дрен, свайного основания, устройство легких насыпей, армирование насыпей геосинтетическими материалами (ткаными геотекстилями, плоскими и объемными георешетками, геокомпозитами и др.).

При сооружении насыпи на слабых грунтах, в том числе болотных, без их удаления и замены, в целях уменьшения величины осадки и для эффективной стабилизации насыпи устраивают в основании насыпи обойму или платформу из армирующих геосинтетических материалов по ГОСТ Р 56338.

7.45 При устройстве выемок в особых грунтах или насыпей с использованием особых грунтов предусматривают мероприятия по предохранению земляного полотна от деформаций (ограничение по расположению и толщине слоев из этих грунтов, устройство защитных слоев из устойчивых грунтов, разделяющие, армирующие, гидроизолирующие и другие прослойки из геосинтетических материалов и т.д.).

Земляное полотно в районах распространения засоленных грунтов

7.46 В районах распространения засоленных грунтов земляное полотно предусматривают с учетом степени засоления, определяемой в соответствии с таблицей В.3 приложения В.

Слабо- и среднезасоленные грунты допускается использовать в насыпях на основе расчетов.

Сильнозасоленные грунты допускается использовать в качестве материала насыпей, в том числе и рабочего слоя, на участках местности 1-го типа по условиям увлажнения при обязательном применении мер, направленных на предохранение рабочего слоя от большего засоления.

Применение избыточно засоленных грунтов следует обосновывать специальными расчетами с принятием необходимых мер по нейтрализации их отрицательных свойств.

Земляное полотно на участках мокрых солончаков устраивают с соблюдением требований к насыпям на слабых основаниях (7.31).

Земляное полотно в районах подвижных песков

7.47 Конструкция земляного полотна в районах подвижных песков должна обеспечивать условие минимальной заносимости песком. При этом предусматривают мероприятия по предохранению земляного полотна от выдувания и образования песчаных заносов на полосе шириной 50 - 150 м в зависимости от рельефа местности, скорости направления ветра, степени подвижности песков, зависящей от закрепления поверхности растительностью (таблица В.15 приложения В), зернового состава песка и других факторов.

При незаросшей и слабозаросшей поверхности песков земляное полотно предусматривают в виде насыпей высотой 0,5 - 0,6 м, возводимых из резервов глубиной до 0,2 м. В пределах равнин и межбарханных понижений должны быть предусмотрены:

- вертикальное планирование территорий вдоль дороги шириной 15 - 40 м с каждой стороны земляного полотна;

- закрепление подвижных форм рельефа на ширину до 200 м за пределами полосы отвода.

Насыпи высотой более 1 м предусматривают с использованием песка из выемок или карьеров, размещаемых с подветренной стороны на расстоянии не менее 50 м от дороги.

Выемки глубиной до 2 м предусматривают раскрытыми с откосами не круче 1:10. При необходимости устройства водоотвода в выемке она должна быть разделана под насыпь с откосами не круче 1:4.

Выемки глубиной более 2 м предусматривают разделанными под насыпи высотой 0,3 - 0,4 м. При этом расстояние между подошвами внутреннего и внешнего откосов необходимо принимать равным 10 - 20 м в зависимости от силы и направления ветра и состава песка.

На участках с полузаросшей и заросшей поверхностью обеспечивают максимальное сохранение растительности и естественного рельефа прилегающей местности. С этой целью насыпи следует предусматривать минимальной высоты без резервов. Выемки предусматривают минимальной ширины с откосами 1:2. При необходимости получения из выемки требуемого количества грунта для насыпей предусматривают уширение выемки.

Для обеспечения проезда технологического транспорта по земляному полотну предусматривают устройство защитного слоя из глинистого грунта или песка, укрепленного вяжущими или иными способами, толщиной 0,15 - 0,2 м либо укладку армирующей прослойки из рулонного геосинтетического материала и (или) объемных георешеток по ГОСТ Р 56338.

Земляное полотно на орошаемой территории

7.48 Земляное полотно на орошаемой территории предусматривают с учетом воздействия оросительной системы на его водно-тепловой режим.

Расстояние между бровками канала водно-сборно-сбросовой сети и резерва или водоотводной канавы принимают не менее 4,5 м. Использование кюветов, нагорных и водоотводных канав в качестве распределителей не допускается.

В качестве расчетного горизонта грунтовых вод принимают наивысший многолетний уровень, а на вновь осваиваемых территориях - по перспективным данным органов водного хозяйства.

Земляное полотно на многолетнемерзлых грунтах

7.48а Конструкция земляного полотна автомобильных дорог, расположенных в районах многолетнемерзлых грунтов, должна соответствовать требованиям СП 313.1325800.

7.49 Конструкции земляного полотна в дорожно-климатической зоне I назначают с учетом температурного режима толщи грунтов и их физико-механических свойств, определяющих величину осадки основания насыпи при оттаивании в период эксплуатации.

Земляное полотно предусматривают на основе теплотехнических расчетов исходя из принципов направленного регулирования уровня залегания верхнего горизонта многолетнемерзлых грунтов в основании насыпи в период эксплуатации дороги.

7.50 Земляное полотно на участках залегания многолетнемерзлых грунтов предусматривают, руководствуясь одним из следующих принципов:

первый - обеспечения поднятия верхнего горизонта многолетнемерзлых грунтов не ниже подошвы насыпи и сохранение его на этом уровне в течение всего периода эксплуатации дороги;

второй - допущение оттаивания грунта деятельного слоя в основании насыпи в период эксплуатации дороги при условии ограничения осадок допустимыми пределами для конкретного типа покрытия;

третий - обеспечение предварительного оттаивания многолетнемерзлых грунтов и осушения дорожной полосы до возведения земляного полотна.

По первому принципу земляное полотно предусматривают на участках низкотемпературной многолетней мерзлоты, сложенной сильнопросадочными и глинистыми грунтами влажностью ниже границы текучести в деятельном слое при капитальном типе дорожных одежд, а также при проявлении на территории таких мерзлотных процессов и явлений, как бугры пучения, термокарст, морозобойное растрескивание, наличие в толще погребенных льдов различного генезиса и т.п.

Второй принцип применяют в качестве основного из конкурирующих вариантов, оцениваемых по технико-экономическим показателям.

Третий принцип используют на участках высокотемпературной многолетней мерзлоты островного распространения, когда возможны заблаговременное оттаивание многолетнемерзлых грунтов и осушение дорожной полосы.

7.51 На участке со скальными крупнообломочными и песчаными породами, не содержащими прослоек и линз льда, в том числе с высокотемпературной многолетней мерзлотой (островного распространения), а также на участках сезонного промерзания (при отсутствии многолетнемерзлых грунтов) земляное полотно предусматривают по нормам дорожно-климатической зоны II.

7.52 При проектировании по первому принципу положение верхнего горизонта многолетнемерзлых грунтов в основании обеспечивают назначением соответствующей высоты насыпи при применении традиционных дорожно-строительных материалов и устройством специальных прослоек из теплоизолирующих материалов (торфа, шлака и т.п.) в основании и теле насыпи. Допускается применение пенополистирольных плит, удовлетворяющих требованиям СП 313.1325800.

7.53 При проектировании по второму принципу высоту насыпи устанавливают по результатам теплофизических расчетов и расчета суммарной осадки основания и нестабильных слоев насыпи.

Допустимая суммарная осадка основания и нестабильных слоев насыпи приведена в таблице 7.5.

Таблица 7.5 - Допустимая суммарная осадка основания и нестабильных слоев насыпи в период эксплуатации

Тип дорожной одежды и условия ее устройства

Допустимая суммарная осадка основания и нестабильных слоев насыпи в период эксплуатации, см, при толщине нестабильных слоев, м

0,5

1,0

1,5

2,0

Капитальные дорожные одежды со сборными железобетонными покрытиями, устраиваемые в одну стадию без технологического перерыва

2

4

6

10

Капитальные дорожные одежды с асфальтобетонными покрытиями, устраиваемые в один год с земляным полотном

4

8

12

20

Облегченные дорожные одежды

6

12

18

30

Переходные дорожные одежды

8

16

24

40

7.54 На участках прогнозируемых наледей в районах островного распространения многолетнемерзлых грунтов и глубокого сезонного промерзания земляное полотно должно устраиваться так, чтобы глубина промерзания основания насыпи не превышала промерзания грунтовой толщи в естественных условиях. При сплошном распространении многолетнемерзлых грунтов земляное полотно предусматривают совместно с противоналедными устройствами (мерзлотным грунтовым поясом, водонепроницаемым экраном и др.), активизирующими наледный процесс в удалении от полотна дороги.

7.55 Выемки допускается предусматривать на участках со скальными и щебенистыми грунтами при отсутствии линз и прослоек льда. В случае необходимости устройства выемок в условиях напластования грунтов неоднородного состава, переменного уровня водоносных горизонтов, при проявлении мерзлотных процессов, на сильнопросадочных грунтах предусматривают следующие мероприятия: теплоизоляция откосов, конструктивные элементы из геосинтетических материалов, замена переувлажненных пылеватых глинистых грунтов песчаными или другими несвязными материалами, термоизолирующие слои в основании дорожной одежды и обеспечение надежного отвода воды из выемки. Принимаемые решения обосновывают расчетами. Мелкие выемки раскрывают или разделывают под насыпи.

7.56 В зависимости от рельефа, гидрогеологических и мерзлотно-грунтовых условий поверхностные и грунтовые надмерзлотные воды необходимо отводить от дорожного полотна за счет водоотводных канав, нагорных мерзлотных валиков и приоткосных берм, параметры которых устанавливают расчетом.

Земляное полотно в горной местности

7.57 Устройство земляного полотна (включая защитные, подпорные и удерживающие конструкции) на оползневых и оползнеопасных участках, а также в районах распространения селей, осыпей, лавин, карста, слабых грунтов, просадочных и набухающих грунтов и на участках влияния абразии и речной эрозии осуществляют на основе расчетов.

7.58 При обосновании в конструкциях земляного полотна допускается использовать прослойки из геосинтетических материалов (ГОСТ Р 56338, ГОСТ Р 56419), выполняющих армирующую, дренирующую, фильтрующую или разделяющую функцию:

- в основании насыпей на слабых грунтах;

- теле насыпей - для повышения устойчивости откосов; в качестве защитного фильтра в дренажных конструкциях; в качестве дрен, обеспечивающих отвод воды из водонасыщенного массива грунта; как разделяющую прослойку на контакте слоев грунта или зернистых материалов с различным гранулометрическим составом (препятствующую перемешиванию материалов слоев);

- основании технологических проездов на грунтах с низкой несущей способностью.

При разработке выемок в неблагоприятных грунтово-гидрологических условиях для обеспечения проезда строительной техники предусматривают устройство технологических прослоек из армирующего геосинтетического материала с засыпкой дренирующим грунтом.

Водоотводные устройства

7.59 Для предохранения земляного полотна от переувлажнения поверхностными водами и размыва, а также для обеспечения производства работ по сооружению земляного полотна предусматривают системы поверхностного водоотвода (планировку территории, устройство канав, лотков, быстротоков, испарительных бассейнов, поглощающих колодцев и т.д.). Дно канав должно иметь продольный уклон не менее 5‰ и в исключительных случаях - не менее 3‰.

Вероятность превышения расчетных паводков при сооружении водоотводных канав и кюветов принимают для дорог категорий I и II - 2%, категории III - 3%, категории IV - 4%, а при возведении водоотводных сооружений с поверхности мостов и дорог - для дорог категорий I и II - 1%, категории III - 2%, категории IV - 3%.

Наибольший продольный уклон водоотводных устройств определяют в зависимости от вида грунта, типа укрепления откосов и дна канавы с учетом допускаемой по размыву скорости течения. При невозможности обеспечения допустимых уклонов предусматривают быстротоки, перепады и водобойные колодцы.

На местности с поперечным уклоном менее 20‰ при высоте насыпи менее 1,5 м водоотводные канавы предусматривают с двух сторон земляного полотна.

На местности с поперечным уклоном, направленным в сторону земляного полотна, следует предусматривать сплошной продольный водоотвод на протяжении от каждого водораздела до мест, где возможен отвод воды в сторону от земляного полотна.

Испарительные бассейны допускается предусматривать в дорожно-климатических зонах IV и V. В качестве испарительных бассейнов допускается использовать местные понижения, выработанные карьеры и резервы глубиной не более 0,4 м. На участках, где под испарительный бассейн используется резерв, предусматривают насыпь с бермой.

На участках автомобильных дорог с автоматическими пунктами весового и габаритного контроля транспортных средств, где в конструкции земляного полотна и (или) дорожной одежды встроено измерительное оборудование, а также на сопряженных с ними соседних участках дорожного водоотвода, для обеспечения работы оборудования расчетный расход и уровень воды для проектирования водоотводных сооружений следует рассчитывать с заданной вероятностью превышения для водоотводных канав 2%, для остальных сооружений водоотвода - 1%.

7.60 Грунтовые и поверхностные воды, которые оказывают влияние на прочность и устойчивость земляного полотна или на условия производства работ, следует перехватывать или понижать дренажными устройствами.

7.61 Высоту насыпей и оградительных дамб у средних и больших мостов и на подходах к ним, а также насыпей на поймах назначают с таким расчетом, чтобы бровка земляного полотна возвышалась не менее чем на 0,5 м, а бровка незатопляемых регуляционных сооружений и берм - не менее чем на 0,25 м над расчетным горизонтом воды с учетом подпора и высоты волны с набегом ее на откос.

7.62 Бровка земляного полотна на подходах к малым мостам и трубам должна возвышаться над расчетным горизонтом воды, с учетом подпора, не менее чем на 0,5 м при безнапорном режиме работы сооружения и не менее чем на 1 м - при напорном и полунапорном режимах.

Вероятность превышения паводка при устройстве насыпи на подходах к мостам следует принимать для дорог категорий I - III - 1%, категории IV - 2%, а на подходах к трубам следует принимать для дорог категории I - 1%, категорий II и III - 2%, категории IV - 3%.

Укрепление земляного полотна, водоотводных сооружений и специальные геотехнические конструкции

7.63 Типы укрепления откосов земляного полотна и водоотводных сооружений должны отвечать требованиям работы укрепляемых сооружений, учитывать свойства грунтов, особенности погодно-климатических факторов, конструктивные особенности земляного полотна и обеспечивать возможность механизации работ и минимизации приведенных затрат на строительство и эксплуатацию. При назначении вида укрепления следует разрабатывать варианты и учитывать условия и время производства работ по сооружению земляного полотна и его укреплению.

Подтопляемые откосы насыпей защищают от волнового воздействия соответствующими типами укреплений в зависимости от гидрологического режима реки или водоема.

При соответствующем технико-экономическом обосновании взамен укреплений допускается применять уположенные откосы. Крутизну устойчивого к водному воздействию откоса определяют расчетом в соответствии с положениями СП 39.13330 в зависимости от гидрологических и климатических условий района строительства и вида грунта насыпи. Ориентировочно крутизну устойчивого к водному воздействию откоса допускается принимать по таблице 7.6.

Таблица 7.6 - Значения крутизны устойчивого к водному воздействию откоса

Грунт откоса

Крутизна откоса при высоте волны, м

0,1

0,2

0,3

0,4

0,5

0,6

Песок мелкий

1:5

1:7,5

1:10

1:15

1:20

1:25

Супесь легкая

1:4

1:7

1:10

1:15

1:20

1:20

Суглинок, глина

1:3

1:5

1:7,5

1:10

1:15

1:15

7.64 Для укрепления откосов используют геосинтетические материалы (объемные геоячейки, противоэрозионные геоматы, габионы, георешетки с прямоугольными и гексагональными ячейками, геосетки, тканые геотекстили и др.), которые выполняют функцию конструкции, защищающей откос от эрозии и армирующей дернину, функцию покрытия, улучшающего условия развития травяного покрова, ограждения, ограничивающего деформации грунта в приповерхностной зоне откоса, а также функцию обратного фильтра в укреплениях подтопляемых откосов сборными элементами или каменной наброской.

Тип геосинтетических материалов, применяемых для укрепления откосов, должен быть обоснован в проекте с учетом свойств геосинтетического материала и функций, отводимых для него в конструкции.

7.65 При устройстве защитных и удерживающих сооружений, применяемых при возведении земляного полотна, необходимо учитывать условия работы конструкции в период ее строительства и эксплуатации.

8 Дорожные одежды

8.1 Дорожная одежда должна соответствовать общим требованиям, предъявляемым к проезжей части дороги как транспортному сооружению, и соответствовать требованиям ГОСТ Р 59120.

Расчетная нагрузка должна быть указана в задании на проектирование. Если в задании на проектирование расчетная нагрузка не оговорена, то расчетную нагрузку следует принимать АК. Класс нагрузки К для нормативной нагрузки АК для автомобильных дорог следует принимать равным:

- с капитальными дорожными одеждами - 11,5 (115 кН);

- с облегченными и переходного типа дорожными одеждами - 10 (100 кН);

- для дорог с НИД - в соответствии с ГОСТ Р 58818.

Дорожную одежду всех полос проезжей части автомобильных дорог следует проектировать одной конструкции, рассчитанной для наиболее нагруженной полосы движения.

Эти требования надлежит обеспечивать выбором конструкции для дорожной одежды, соответствующих покрытий проезжей части, конструкции сопряжения проезжей части с обочинами и разделительной полосой и типов укреплений обочин, созданием ровной и шероховатой поверхности проезжей части и т.д.

Дорожные одежды низшего типа конструируют и рассчитывают в соответствии с требованиями ГОСТ Р 58818, ГОСТ Р 71244.

8.2 Конструкцию дорожной одежды и вид покрытия принимают исходя из транспортно-эксплуатационных требований и категории проектируемой дороги с учетом интенсивности движения и состава автотранспортных средств, климатических и грунтово-гидрологических условий, санитарно-гигиенических требований, а также обеспеченности района строительства дороги местными строительными материалами.

Перспективный период для выбора дорожных одежд принимают с учетом межремонтных сроков их службы.

При строительстве дорог в сложных инженерно-геологических условиях, когда сроки стабилизации земляного полотна существенно превышают установленные сроки строительства, допускается предусматривать стадийное устройство дорожной одежды.

8.3 Дорожные одежды состоят из одного или нескольких слоев. При наличии нескольких слоев дорожные одежды состоят из покрытия, основания и дополнительных слоев основания.

По сопротивлению нагрузкам от автотранспортных средств и по реакции на климатические воздействия дорожные одежды подразделяют на одежды с жесткими покрытиями или слоями основания (далее - жесткие дорожные одежды) и на одежды с нежесткими покрытиями и слоями основания (нежесткие дорожные одежды).

8.4 Типы дорожных одежд, основные виды покрытий и оснований и область их применения приведены в таблице 8.1. Для дорог с низкой интенсивностью движения основные виды покрытий и оснований и область их применения приведены в ГОСТ Р 58818.

Таблица 8.1 - Основные виды покрытий дорожных одежд

Типы дорожных одежд

Основные виды покрытий

Область применения

Усовершенствованные покрытия

Капитальные

Цементобетонные монолитные

На дорогах категорий IА, IБ, IВ, II, III, IV *

Железобетонные, монолитные и сборные или из предварительно напряженного железобетона, армобетонные сборные и монолитные

Из асфальтобетонных смесей, в том числе щебеночно-мастичных

Облегченные

Из асфальтобетонных смесей

На дорогах категории III *, IV

Из органоминеральных смесей

Из щебеночных (гравийных) материалов, обработанных органическим вяжущим

Переходные покрытия

Переходные

Из щебеночно-гравийно-песчаных смесей

На дорогах категории IV

Из грунтов и малопрочных каменных материалов, укрепленных вяжущими

Из грунтов, укрепленных различными вяжущими и местными материалами

Из булыжного и колотого камня (мостовые)

* В соответствии с требованиями ГОСТ Р 71404.

8.5 Дорожные одежды и толщины отдельных слоев должны обеспечивать безопасность дорожного движения, прочность, надежность, долговечность и морозоустойчивость всей конструкции.

8.6 При расчете дорожных одежд на прочность учитывают перспективную интенсивность движения автомобилей различных типов, которую следует приводить к интенсивности воздействия расчетной нагрузки на одну наиболее нагруженную полосу проезжей части в соответствии с требованиями ГОСТ Р 71405.

В качестве расчетной следует применять нормативную нагрузку в случаях, если предполагается движение транспортных средств с осевой нагрузкой, превышающей нормативную более чем на 5%, в количестве, не превышающем 5% суммарной интенсивности движения грузовых автомобилей и автобусов.

Нормативную нагрузку назначают в соответствии с 8.1.

При приведении многоосных автомобилей к нормативной расчетной нагрузке осевые нагрузки учитывают с учетом взаимного влияния близкорасположенных осей транспортного средства. Методика расчета коэффициентов приведения приведена в нормативных документах по проектированию дорожных одежд.

8.7 Дорожные одежды рассчитывают по трем условиям, обеспечивающим требуемый уровень надежности и долговечности конструкции: по прочности, морозоустойчивости и осушению.

При расчете дорожных одежд на прочность используют расчетные значения прочностных и деформационных характеристик материалов и грунта конструктивных слоев.

В качестве расчетных значений деформационных характеристик (модулей упругости) и прочностных характеристик (сцепление, угол внутреннего трения, растяжения при изгибе) принимают их табличные нормативные значения (среднеарифметические), установленные по результатам испытаний материалов.

8.8 Расчет на морозоустойчивость как жестких дорожных одежд, так и нежестких проводят для неблагоприятных грунтово-гидрологических условий. Расчет выполняют путем определения величины ожидаемого пучения грунта рабочего слоя земляного полотна и сравнения ее с допускаемой для данной конструкции величиной.

8.9 Расчет на осушение должен предусматривать определение толщины дренирующего слоя при заданном коэффициенте фильтрации материала слоя.

Расчет должен выполняться по принципу поглощения или по принципу осушения.

8.10 Требования к минимально допустимым значениям коэффициента сцепления предъявляются к покрытиям дорожных одежд усовершенствованного капитального и облегченного типов, выполненных с применением вяжущих материалов и находящихся в мокром состоянии. Минимально допустимое значение коэффициента сцепления колеса автомобиля с покрытием должно быть не менее 0,3 в соответствии с требованиями ГОСТ Р 50597.

8.11 Для достижения стабильных во времени значений коэффициентов сцепления дорожных покрытий, отвечающих требованиям ГОСТ Р 50597, при строительстве дорожных одежд следует обеспечивать следующие значения коэффициентов сцепления на дорогах с расчетной скоростью движения:

- до 100 км/ч - не ниже 0,30;

- от 100 до 120 км/ч - не ниже 0,35;

- более 120 км/ч - не ниже 0,40.

8.12 Коэффициент сцепления дорожного покрытия следует определять в соответствии с требованиями ГОСТ 33078.

Шероховатость покрытия, обеспечивающая требуемые значения коэффициента сцепления, достигается применением каменных материалов, устойчивых к шлифующему воздействию автомобильных шин, в том числе устройством покрытий из щебеночно-мастичных асфальтобетонных смесей, созданием шероховатых слоев износа, а также специальной отделкой поверхности цементобетонных покрытий.

8.13 Продольная ровность покрытия по полосам движения проезжей части должна соответствовать ГОСТ Р 59120.

Жесткие дорожные одежды

8.14 К жестким дорожным одеждам следует относить одежды, имеющие:

- цементобетонные монолитные покрытия;

- асфальтобетонные покрытия на основаниях из цементобетона;

- сборные покрытия из железобетонных или предварительно напряженных железобетонных и армобетонных плит.

8.15 Расчет на прочность покрытий из монолитного цементобетона проводят с учетом величины и повторяемости суммарных напряжений от нагрузок автомобилей и температуры с учетом требований ГОСТ 27751.

Расчет жестких дорожных одежд на прочность должен включать расчет монолитного покрытия и расчет подстилающего грунта и малосвязных конструктивных слоев по условию сдвигоустойчивости.

8.16 Толщину бетонных покрытий назначают по расчету с учетом вида оснований, но не менее приведенной в таблице 8.2.

Таблица 8.2 - Требования к толщине бетонных покрытий

Вид основания

Толщина покрытия, см, по категориям дорог

I

II - III

IV

Бетонное или из каменных материалов и грунтов, обработанных неорганическими вяжущими

22

20

18

Щебеночные и гравийные

-

22

18

Песчаные, песчано-гравийные

-

-

18

8.17 В бетонном покрытии предусматривают поперечные и продольные швы. К поперечным относятся швы расширения, сжатия и рабочие. Расположение швов определяется с учетом климатических и технологических особенностей условий строительства.

8.18 Покрытия из сборных железобетонных плит на автомобильных дорогах предусматривают для сложных природных условий или при высоких насыпях, когда трудно обеспечивать стабильность земляного полотна.

8.19 В основаниях из бетона класса B12,5 (Btb2,0) и выше необходимо предусматривать продольные и поперечные швы сжатия и расширения.

8.20 Конструкции дорожных одежд со сборным покрытием из железобетонных и армобетонных плит допускается принимать на основе технико-экономических обоснований в районах со сложными инженерно-геологическими, гидрогеологическими и климатическими условиями с учетом ГОСТ 27751.

8.21 Плиты сборного покрытия принимают по типовым проектам или по условиям прочности и трещиностойкости на действие колесной нагрузки и собственной массы плит при подъеме их за монтажные устройства и при укладке в штабеля и на транспортные средства.

8.22 Под сборные покрытия, укладываемые на песчаное основание, устраивают сплошную прослойку из полотен геотекстиля по ГОСТ Р 56419 на всю ширину покрытия с запасом по 0,5 м с каждой стороны и выпусками шириной 0,75 м от поперечных швов покрытия на откосы. При ширине плит более 1,5 м допускается устройство прослоек из полос геотекстиля шириной не менее 0,75 м под швами и кромками покрытия.

При технико-экономическом обосновании песчаное основание следует армировать объемными геоячейками, щебеночное (гравийное) и щебеночно (гравийно)-песчаное - геоячейками и георешетками с гексагональными и прямоугольными ячейками по ГОСТ Р 56338.

8.23 На дорогах категорий I - III с насыпями высотой более 3 м из крупнообломочных грунтов с размерами обломков более 0,2 м, с насыпями на болотах при частичном выторфовывании высотой более 5 м из любых грунтов, у путепроводов через железные дороги в пределах до 200 м независимо от высоты насыпи, а также на участках дорог, где ожидаются неравномерные осадки земляного полотна, следует устраивать цементобетонные покрытия, армированные металлическими сетками.

8.24 При конструировании жестких дорожных одежд с верхним слоем из асфальтобетона должны быть предусмотрены мероприятия, обеспечивающие замедление процесса возникновения отдельных температурных трещин в покрытии, в том числе с использованием армирующих геосеток и геокомпозитов по ГОСТ Р 55029.

Нежесткие дорожные одежды

8.25 К нежестким следует относить все конструкции дорожных одежд, не отвечающие признакам, указанным в 8.14. Нежесткие дорожные одежды капитального и облегченного типов с усовершенствованным покрытием предусматривают с таким расчетом, чтобы за расчетный срок службы конструкции возникающие деформации и разрушения могли быть устранены плановыми ремонтами исключительно покрытия.

8.26 Дорожные одежды на перегонах рассчитывают на кратковременное многократное действие подвижных нагрузок, используя прочностные и деформационные характеристики материалов и грунтов при многократном приложении нагрузки длительностью 0,1 с.

Дорожные одежды на обочинах, разделительных полосах, переходно-скоростных полосах, остановках, пересечениях в одном уровне, на подходах к пересечениям с железнодорожными путями, стоянках, площадках отдыха, на местных проездах вдоль основной дороги, съездах развязок, тротуарах и велодорожках проектируют в соответствии с ГОСТ Р 71404.

Примечание - Длина участка на пересечениях в одном уровне и на подходах к пересечениям с железнодорожными путями, в пределах которого дорожные одежды должны быть дополнительно проверены на однократное нагружение длительностью не менее 10 мин, должна составлять не менее расчетной длины колонны автомобилей, остановившихся перед пересечением (железнодорожными путями), определяемой расчетом. При отсутствии указанных расчетов длину колонны автомобилей допускается принимать в соответствии с таблицей 8.2а.

Таблица 8.2а - Требования к длине колонны автомобилей

Категория автомобильной дороги

I

II

III

IV

Длина колонны автомобилей, м

180

180

90

25

Для дорожных одежд укрепленной части обочин за пределами краевой полосы, парковок, а также тротуаров, велосипедных и пешеходных дорожек расчет выполняют только на однократное нагружение длительностью не менее 10 мин.

Расчет на прочность на однократное нагружение выполняют по условию сдвигоустойчивости в грунте и слабосвязных материалах.

8.27 Расчет нежестких дорожных одежд капитального и облегченного типов при кратковременном действии нагрузки следует выполнять по трем критериям прочности:

- допускаемому упругому прогибу;

- условию сдвигоустойчивости подстилающего грунта и малосвязных конструктивных слоев;

- сопротивлению монолитных слоев покрытия и промежуточных монолитных слоев основания усталостному разрушению на растяжение при изгибе.

Превышение значения одного из критериев (имеющего минимальное значение) над требуемой величиной должно быть не более 2% при условии выполнения остальных критериев прочности, за исключением необходимости устройства равнопрочных конструкций на участках уширения, необходимости сохранения отметок проезжей части или принятия конструкции дорожной одежды из условий морозоустойчивости или осушения.

Переходные дорожные одежды рассчитывают по двум критериям:

- допускаемому упругому прогибу;

- условию сдвигоустойчивости подстилающего грунта и малосвязных конструктивных слоев.

8.28 Напряжения и деформации нежестких дорожных одежд и земляного полотна под действием расчетной нагрузки определяют с применением методов теории упругости для слоистого полупространства с учетом расчетных условий на контактах слоев. Допускается приводить многослойные дорожные одежды и земляное полотно к двух- и трехслойным расчетным моделям.

8.29 Независимо от результатов расчета на прочность дорожной одежды толщины конструктивных слоев в уплотненном состоянии следует принимать не менее приведенных в ГОСТ Р 59120.

Применение геосинтетических материалов в конструкциях дорожных одежд следует предусматривать в соответствии с требованиями ГОСТ Р 71404.

При использовании геомембраны грунт над и под ней на толщину не менее 10 см не должен иметь зерен крупнее 16 мм.

В случае укладки каменных материалов на песчаный подстилающий слой или грунт земляного полотна, предусматривают устройство прослойки из геосинтетических материалов (тканые и нетканые геотекстили, геокомпозиты по ГОСТ Р 56419) или прослойку толщиной не менее 10 см из песчано-гравийных смесей, укрепленного грунта или других водоустойчивых материалов.

Толщина устраиваемого слоя асфальтобетона над прослойкой из геосинтетических материалов по ГОСТ Р 55029 должна быть не менее 5 см.

Таблица 8.3 исключена с 28.01.2025. - Изменение N 1

8.30 В районах сезонного промерзания грунтов на дорогах с капитальными и облегченными дорожными одеждами, находящихся в неблагоприятных грунтово-гидрологических условиях, наряду с обеспечением требуемой прочности следует предусматривать противопучинные мероприятия, гарантирующие достаточную морозоустойчивость дорожной одежды и земляного полотна в соответствии с 7.15.

8.31 Противопучинные мероприятия не требуются:

- в районах с глубиной промерзания менее 0,6 м;

- при земляном полотне, рабочий слой которого отвечает требованиям 7.9;

- когда необходимая по условиям прочности толщина дорожной одежды превышает 2/3 глубины промерзания.

8.32 Толщину теплоизоляционных слоев разного назначения (для полного предотвращения промерзания земляного полотна или для ограничения глубины промерзания его допустимыми пределами) определяют теплотехническим расчетом.

8.33 На участках земляного полотна из связных грунтов и пылеватых песков предусматривают дренирующие слои с водоотводящими устройствами в основаниях и дополнительных слоях, выполненных из традиционных зернистых (пористых) материалов в сочетании с нетканым геотекстилем в качестве разделяющей прослойки, в следующих случаях:

- в дорожно-климатической зоне II - при всех схемах увлажнения рабочего слоя земляного полотна (7.22);

- в дорожно-климатической зоне III - при 2-й и 3-й схемах увлажнения рабочего слоя;

- в зонах IV и V - при 3-й схеме увлажнения рабочего слоя.

Необходимость устройства дренирующих слоев на участках дорог, где основания или дополнительные слои дорожной одежды выполнены из грунтов и каменных материалов, обработанных вяжущими, устанавливается расчетом на осушение.

Толщину дренирующего слоя, необходимый коэффициент фильтрации, гранулометрический состав и другие требования к материалам, используемым для его устройства, устанавливают расчетом в зависимости от количества воды, поступающей в основание проезжей части, способа ее отвода, длины пути фильтрации и других факторов.

8.34 При расчете дорожной одежды на остановочных полосах и при необходимости расчета укрепленной части обочин (не считая укрепление засевом трав, одерновкой) в качестве расчетной интенсивности движения следует принимать не менее 1/3 расчетной интенсивности, приходящейся на крайнюю правую полосу проезжей части. В качестве расчетной нагрузки принимают ту же нагрузку, что и при расчете дорожных одежд проезжей части.

8.35 Покрытия на краевой полосе обочин, краевой полосе разделительной полосы и места разворотов в пределах технологических разрывов по 5.32, на разделительной полосе следует устраивать по типу дорожной одежды на основной проезжей части.

Дорожную одежду на остановочной полосе на дорогах категории I следует устраивать аналогично дорожной одежде на проезжей части.

Укрепленные части обочин на дорогах категорий II - IV укрепляют в зависимости от категории дороги, грунтов земляного полотна и особенностей климата.

Для предохранения обочин и откосов земляного полотна от размыва на участках дорог с продольными уклонами 30‰ и более, с насыпями высотой более 4 м, в местах вогнутых кривых в продольном профиле радиусом менее 20000 м предусматривают устройство продольных прикромочных лотков и других сооружений для сбора и отвода стекающей с проезжей части воды.

8.36 Разделительные полосы сопрягают с проезжей частью путем устройства на разделительной полосе краевых полос. Остальную часть разделительной полосы укрепляют засевом трав и, в зависимости от местных условий, посадкой кустарников (сплошной или в виде поперечных полос - кулис), располагаемых на расстоянии не менее 1,75 м от кромки проезжей части. Допускается устройство асфальтобетонного покрытия разделительной полосы.

Материалы для дорожных одежд

8.37 Для цементобетонных покрытий и оснований следует применять бетон по ГОСТ Р 70362. Классы бетона по прочности принимают по таблице 8.4.

Таблица 8.4 - Минимальные проектные классы бетона по прочности

Конструктивный слой дорожной одежды

Минимальные проектные классы по прочности

на растяжение при изгибе Btb

на сжатие B

Монолитное покрытие

3,6

25

Монолитное основание

1,2

7,5

Сборное покрытие (основание)

3,6

25

Примечания

1 Классы бетона по прочности устанавливают в возрасте 28 сут твердения в нормальных условиях.

2 Продолжительность ухода за бетоном должна быть предусмотрена в течение всего процесса твердения до момента формирования бетона с требуемыми свойствами, но не менее 28 сут.

3 Исключено с 28.01.2025. - Изменение N 1

Минимальную проектную марку бетона по морозостойкости следует принимать по таблице 8.5.

Таблица 8.5 - Минимальные проектные марки бетона по морозостойкости

Конструктивный слой дорожной одежды

Минимальные проектные марки бетона по морозостойкости F для районов со среднемесячной температурой воздуха наиболее холодного месяца, °C

От 0 до минус 5

От минус 5 до минус 15

Ниже минус 15

Покрытие

100

150

200

Основание

25

50

50

Примечание - Среднемесячную температуру воздуха наиболее холодного месяца для районов строительства следует определять по СП 131.13330.

8.38 Асфальтобетон и материал из смесей каменных материалов и грунтов, обработанных органическими вяжущими, должны соответствовать требованиям ГОСТ Р 58401.1, ГОСТ Р 58401.2, ГОСТ Р 58406.1, ГОСТ Р 58406.2, ГОСТ Р 70396, ГОСТ Р 70397, ГОСТ Р 70648.

Смеси органоминеральные холодные с использованием вторичного асфальтобетона должны соответствовать ГОСТ Р 70197.1.

8.39 Щебеночно-гравийно-песчаные смеси, обработанные неорганическими вяжущими, для покрытий и оснований должны соответствовать требованиям ГОСТ Р 70455, органическими вяжущими - ГОСТ Р 70454.

Гравийно-песчаные смеси должны соответствовать требованиям ГОСТ Р 71329.

Грунты, стабилизированные и укрепленные неорганическими вяжущими, для покрытий и оснований должны соответствовать требованиям ГОСТ Р 70452.

Грунты, стабилизированные и укрепленные органическими вяжущими, должны соответствовать требованиям ГОСТ Р 70453.

Комплексные минеральные вяжущие для стабилизации и укрепления грунтов должны соответствовать требованиям ГОСТ Р 70196.

8.40 Основание из несвязных материалов устраивается из фракционированного щебня, уложенного по способу заклинки, щебеночной, щебеночно-, гравийно- или щебеночно-гравийно-песчаной смеси. Смеси щебеночно-гравийно-песчаные должны соответствовать ГОСТ Р 70458, ГОСТ Р 58770.

Требования к щебню по ГОСТ 32703, ГОСТ 32826 для устройства оснований дорожных одежд приведены в таблице 8.6. Требования к щебню по ГОСТ 32703, ГОСТ 32826 для устройства покрытий дорожных одежд приведены в таблице 8.7.

Таблица 8.6 - Основные показатели свойств каменных материалов для оснований дорожных одежд

Показатели свойств каменных материалов

Категория автомобильной дороги

I - III

IV

Марка по дробимости, не менее

800

600

Марка по дробимости шлакового щебня черной металлургии, не менее

400

400

Марка по сопротивлению дроблению и износу, не менее

И5

И6

Марка по морозостойкости, не менее, для районов со среднемесячной температурой воздуха наиболее холодного месяца, °C, не менее:

- от 0 до минус 5

F15

-

- от минус 5 до минус 15

F25

F15

- от минус 15

F50

F25

Марка по содержанию зерен пластинчатой (лещадной) и игловатой формы, не менее

Л25

Л30

Марка по водостойкости для щебня в щебеночно-песчаных смесях, не менее

В1

В2

Устойчивость структуры зерен щебня против распадов, потеря массы при распаде, %, не более

5

7

Таблица 8.7 - Основные показатели свойств каменных материалов для покрытий дорожных одежд

Показатели свойств каменных материалов

Категория автомобильной дороги

IV

Марка по дробимости, не менее

800

Марка по дробимости шлакового щебня черной металлургии, не менее

400

Марка по сопротивлению дроблению и износу, не менее

И4

Марка по морозостойкости, не менее, для районов со среднемесячной температурой воздуха наиболее холодного месяца, °C, не менее:

- от 0 до минус 5

F25

- от минус 5 до минус 15

F25

- от минус 15

F25

Марка по содержанию зерен пластинчатой (лещадной) и игловатой формы, не менее

Л25

Марка по водостойкости для щебня в щебеночно-песчаных смесях, не менее

В1

Устойчивость структуры зерен щебня против распадов, потеря массы при распаде, %, не более

5

При устройстве оснований дорожных одежд по способу заклинки применяют щебень, отвечающий требованиям ГОСТ 32703, ГОСТ 32826. В качестве основного материала используют щебень фракции 31,5 - 63 мм или фракции 63 - 90 мм. В качестве расклинивающего для фракции 31,5 - 63 мм применяют щебень фракции 4 - 8 мм; 8 - 16 мм; смесь фракций 4 - 16 мм. В качестве расклинивающего для фракции 63 - 90 мм применяют щебень фракций 16 - 31,5 мм, смесь фракций 4 - 16 мм; 4 - 31,5. Допускается в качестве расклинивающего материала использовать щебеночно-песчаные смеси типа 0/16 для фракции 31,5 - 63 мм, смеси типа 0/31,5 для фракции 63 - 90 мм, а также щебеночно-песчаные смеси, обработанные цементом, асфальтогранулят или переработанный асфальтобетон.

8.41 Для устройства дополнительных слоев основания применяют материалы в соответствии с требованиями ГОСТ Р 71404. Коэффициент фильтрации дренирующего слоя назначают расчетом, но принимают не менее указанного в ГОСТ Р 71404.

8.42 Для морозозащитных слоев допускается применять слабопучинистые песчаные грунты, которые удовлетворяют требованиям коэффициента пучения и сдвиговым характеристикам, устанавливаемым расчетом на прочность и морозостойкость дорожной одежды, и имеют коэффициент фильтрации не менее 0,5 м/сут.

8.43 Для устройства прослоек различного назначения в слоях дорожных одежд необходимо применять геосинтетические материалы, которые следует предусматривать в соответствии с требованиями ГОСТ Р 71404.

8.44 Устройство защитных слоев и слоев износа следует предусматривать в соответствии с требованиями ГОСТ Р 58422.1.

9 Мосты, трубы и тоннели

9.1 Мосты, путепроводы, виадуки, эстакады и трубы на автомобильных дорогах следует возводить в соответствии с требованиями ГОСТ 32871, ГОСТ 33178, ГОСТ 33384, ГОСТ 33390, ГОСТ 33391, СП 35.13330.

9.2 Автодорожные тоннели следует проектировать в соответствии с требованиями СП 122.13330.

9.3 Расчетная интенсивность движения для автодорожных тоннелей определяется в соответствии с 4.5 и 4.11. Для автодорожных тоннелей перспективный период принимают не менее 30 лет.

9.4 При сооружении на автомобильных дорогах мостов и тоннелей, а также участков подходов к ним следует соблюдать требования единообразия условий движения на дорогах.

9.5 На участках подходов к тоннелям проезжую часть выделяют разметкой в виде сплошной линии на расстоянии не менее 250 м от их порталов, выполняемой по кромке проезжей части.

10 Технические средства и устройства организации и обеспечения безопасности дорожного движения

10.1 Обустройство автомобильных дорог техническими средствами и устройствами организации и обеспечения безопасности дорожного движения: дорожными знаками и сигналами (дорожные знаки, табло с изменяющейся информацией, дорожной разметкой, дорожными светофорами), направляющими устройствами (дорожные сигнальные столбики, дорожные тумбы, дорожные световозвращатели, направляющие островки, островки безопасности), устройствами воздействия на транспортные средства (искусственные неровности, шумовые полосы, аварийные съезды), защитными устройствами (дорожные ограждения, акустические экраны, противоослепляющие экраны, снегозащитные устройства), средствами организации движения пешеходов и велосипедистов (тротуары и пешеходные дорожки, пешеходные переходы, велосипедные и велопешеходные дорожки), средствами улучшения видимости (стационарное электрическое освещение, дорожные зеркала) следует проводить с учетом требований ГОСТ Р 52766, ГОСТ Р 52289.

В целях обеспечения безопасности дорожного движения на автомагистралях и скоростных автомобильных дорогах при их проектировании следует соблюдать требования ГОСТ Р 70124.

10.2 Нормы освещенности автомобильных дорог должны соответствовать ГОСТ Р 58107.1.

Освещение железнодорожных переездов следует устраивать с учетом норм искусственного освещения объектов железнодорожного транспорта.

10.3 Световые и светосигнальные приборы, располагаемые на мостах через судоходные водные пути, не должны создавать помех судоводителям в ориентировании и ухудшать видимость судоходных сигнальных огней.

10.4 Электроснабжение осветительных установок автомобильных дорог следует осуществлять от электрических распределительных сетей ближайших населенных пунктов или производственных предприятий.

Электроснабжение осветительных установок железнодорожных переездов следует осуществлять от электрических сетей железных дорог, если эти участки железнодорожного пути оборудованы продольными линиями электроснабжения или линиями электроблокировки.

Управление сетями наружного освещения следует предусматривать централизованным дистанционным или использовать возможности установок управления наружным освещением ближайших населенных пунктов или производственных предприятий.

10.5 Для автомобильной дороги должна быть предусмотрена защита участков дороги от опасных геологических процессов [термокарста, морозного (криогенного) пучения, термоэрозии, оползней, обвалов, селей, водной и ветровой эрозии и т.п.].

10.6 Защита от опасных геологических процессов должна осуществляться с учетом механизма развития процесса, выявляемого на основе детальных инженерно-геологических изысканий, охватывающих зону развития процесса.

10.7 Для защиты от водной и ветровой эрозии используют специальные насаждения, конструкции укрепления склонов и откосов, в том числе с использованием геосинтетических материалов, в сочетании с комплексом геотехнических инженерных мероприятий, проектируемых с учетом местных конкретных условий и опыта.

10.7а Для защиты автомобильных дорог от опасных процессов, связанных с теплообменом (термокарст, морозное пучение, инфильтрационная термоэрозия в основании насыпей и т.д.), допускается выполнение мероприятий по регулированию теплообмена и циркуляции грунтовых вод в земляном полотне насыпей и откосах выемок (в том числе теплоизолирующие прослойки, геосинтетические мембраны, солнцеосадкозащитные навесы, скальные бермы и т.д.), а также другие комплексные решения, в том числе в комбинации с дренажем, в соответствии с требованиями СП 116.13330, ГОСТ 33149.

10.8 Защита дорог от оползневых процессов может включать планировочные работы, устройство грунтовых контрбанкетов, подпорных стен различных типов, анкерных удерживающих конструкций, свайных противооползневых конструкций и др.

10.9 Для защиты дорог от селей следует предусматривать: лесонасаждение, селезадерживающие сооружения, селепропускные сооружения, селеотводящие сооружения и др.

10.10 На автомобильных дорогах всех категорий следует предусматривать оформление и озеленение с учетом соблюдения принципов ландшафтного проектирования, охраны природы, обеспечения естественного проветривания дорог, защиты придорожных территорий от шума, природных, хозяйственных, исторических и культурных особенностей районов проложения дорог.

При выполнении работ по озеленению следует рассматривать возможность применения продуктов компостирования органических отходов (удобрениями органическими, почвогрунтами и грунтами, пригодными для технических целей).

10.11 В проекте должны быть предусмотрены мероприятия, защищающие участки дороги, проходящие по открытой местности, от снежных заносов во время метелей.

Защита от снежных заносов не предусматривается:

- при расчетном годовом снегоприносе менее 25 м3 на 1 м дороги, расположенной на орошаемых или осушенных землях, пашне, земельных участках, занятых многолетними плодовыми насаждениями и виноградниками;

- при устройстве дорог в насыпях с возвышением бровки земляного полотна над расчетным уровнем снегового покрова на величину, указанную в 7.11, в выемках, если снегоемкость откоса больше объема снегоприноса к дороге;

- при устройстве дорог в лесных массивах при отсутствии разрывов и просек.

10.12 На заносимых участках дорог защиту от снежных заносов следует предусматривать:

- на дорогах категорий I - III - снегозащитными насаждениями, снегозадерживающими и снегопередувающими устройствами или сооружениями.

- на дорогах категории IV - снегозащитными лесонасаждениями или временными защитными устройствами (снеговыми валами, траншеями).

Ширину снегозащитных лесонасаждений с каждой стороны дороги, а также расстояния от бровки земляного полотна до этих насаждений следует принимать по ГОСТ Р 52766.

10.13 Защита дорог от снежных заносов на участках, располагаемых на землях государственного лесного фонда, покрытых лесом, в случае намечаемого проведения рубок обеспечивается сохранением с обеих сторон дороги лесных полос шириной 250 м каждая (от оси автомобильной дороги).

10.14 Постоянные снегозащитные заборы следует проектировать в один или несколько рядов высотой от 3 до 5 м из расчета на задержание максимального расчетного годового объема снега обеспеченностью один раз в 15 лет, а в сильнозаносимых местностях малонаселенных районов - один раз в 20 лет.

Постоянный забор располагают на расстоянии, равном 15 - 25-кратной высоте забора от бровки откоса выемки в месте ее наибольшей глубины, а при расположении дороги на насыпи - от бровки земляного полотна. При необходимости (обоснованной расчетом) устраивают дополнительные ряды заборов с расстояниями между ними, равными 30-кратной высоте забора.

Постоянные заборы следует сооружать с разрывами для проезда транспортных средств и сельскохозяйственных машин.

10.15 Защиту дорог и дорожных сооружений от воздействия прилегающих оврагов, оползней, размыва водными потоками, а также от песчаных заносов следует осуществлять с помощью насаждений, сочетающихся с комплексом геотехнических инженерных мероприятий, предусматриваемых при проектировании земляного полотна.

10.16 Для защиты горных дорог от снежных лавин и обвалов следует предусматривать:

- устройство галерей и навесов, лавинорезов, отбойных и лавинонаправляющих дамб;

- удерживание снега на склоне с помощью различных устройств, предотвращающих его передвижение и смещение;

- установку снегозащитных щитов, подпорных заборов или стенок перед лавиносборами для уменьшения скопления в них снега;

- обрушение снега на лавиноопасных участках в процессе эксплуатации дороги и пр.

11 Здания и сооружения обслуживания движения

Общие положения

11.1 Стоянки автомобилей, здания и сооружения для отдыха водителей и пассажиров, многофункциональные комплексы придорожного сервиса, парковки, обзорные площадки, площадки отдыха, пункты питания должны соответствовать и размещаться по ГОСТ 33062.

Объекты обслуживания участников дорожного движения (здания и сооружения для отдыха водителей и пассажиров, площадки отдыха, площадки для остановки и стоянки автомобилей, пункты первой медицинской помощи, сооружения аварийно-вызывной связи), сооружения для технического обслуживания транспортных средств (автозаправочные станции, станции технического обслуживания автомобилей, пункты мойки), остановочные пункты маршрутных транспортных средств, сооружения для контроля за движением (стационарные посты дорожно-патрульной службы, пункты весового и габаритного контроля), сооружения для контроля за движением должны соответствовать и размещаться по ГОСТ Р 52766.

11.2 Для организации служб по содержанию и ремонту автомобильных дорог, обслуживанию грузовых и пассажирских перевозок и участников движения в проектах автомобильных дорог предусматривают строительство соответствующих зданий и сооружений.

11.3 Для основного звена дорожной службы предусматривают административно-бытовой корпус, производственный корпус по ремонту и техническому обслуживанию дорожных машин и автомобилей, стоянки (холодные и теплые) на списочный состав парка машин, цех по ремонту технических средств организации дорожного движения, базу по приготовлению и хранению противогололедных химических материалов, склады; для низового звена дорожной службы, подчиненного основному звену, - производственный корпус по техническому обслуживанию дорожных машин и автомобилей с административно-бытовыми помещениями, стоянки (холодные и теплые) на списочный состав парка машин, расходные склады противогололедных химических материалов, склады.

Комплексы зданий и сооружений основного и низового звеньев дорожной службы допускается располагать у населенных пунктов на единых для всего комплекса или близко расположенных площадках, непосредственно примыкающих к полосе отвода автомобильной дороги.

11.4 Для комплексов зданий и сооружений предусматривают общее энергетическое снабжение, водопровод, канализацию, отопление, связь, ремонтную базу и пр. При этом следует учитывать возможность кооперирования с близко расположенными предприятиями в части организации питания, медицинского обслуживания, пожарной охраны, благоустройства прилегающих территорий.

Обустройство мест хранения производственного инвентаря, стоянки дорожных машин и автомобилей предусматривают с учетом природных и производственных условий.

Здания и сооружения дорожной службы проектируют на основании заданий, учитывающих организационную структуру службы ремонта и содержания дорог (линейная, территориальная, линейно-территориальная) в зависимости от местных условий. При выполнении работ по озеленению следует рассматривать возможность применения продуктов компостирования органических отходов (удобрениями органическими, почвогрунтами и грунтами, пригодными для технических целей).

11.5 Протяженность участков дорог, обслуживаемых подразделениями дорожной службы, в зависимости от категории дорог и типов дорожных одежд принимают по таблице 11.1.

Таблица 11.1 - Протяженность участков дорог, обслуживаемых подразделениями дорожной службы

Подразделения дорожной службы

Примерная протяженность участков дорог, км, при категории дорог

I

II

III

IV

Преимущественные типы дорожных одежд

Капитальные

Облегченные

Переходные

Основное звено службы содержания дорог:

при линейном принципе

100 - 170

170 - 260

170 - 260

210 - 260

при территориальном принципе

250 - 300

250 - 300

250 - 300

250 - 300

Низовое звено службы содержания дорог

30 - 40

40 - 55

55 - 70

70 - 90

Пункт содержания и охраны больших мостов

На мостах длиной более 300 м

Пункт обслуживания, содержания и охраны разводных мостов

На всех мостах без ограничения длины

Пункт обслуживания переправ

На наплавных мостах, паромах

Примечания

1 Меньшие значения показателей принимают: для участков дорог с интенсивностью движения, близкой к верхним пределам, установленным для соответствующих категорий дорог; в горной местности; в районах со снежными или песчаными заносами, а также в местах, подверженных размывам, оползням или просадкам, имеющих сложные инженерные сооружения (тоннели, галереи, подпорные и одевающие стенки, берегоукрепительные, противооползневые и другие конструкции).

2 Протяженность участков дорог категории I дана применительно к дорогам с четырьмя полосами движения. В случае шести или восьми полос движения необходимо протяженность участков рассчитывать с понижающими коэффициентами 0,7 и 0,5 соответственно.

3 Исключено с 28.01.2025. - Изменение N 1

4 Схема дорожно-эксплуатационной службы определяется требованиями эксплуатации проектируемого участка автомобильной дороги с учетом использования существующих сооружений.

11.6 Пропускная способность, технические характеристики и другие параметры сооружений автотранспортной службы принимаются на 10-летнюю перспективную интенсивность движения с учетом возможности их дальнейшего развития.

Вместимость автовокзалов и пассажирских автостанций, среднесуточный объем отправления грузов с грузовых автостанций и размещение этих сооружений на дорогах принимают по схемам развития автомобильного транспорта или по заданию на проектирование. Размеры земельных участков зданий и сооружений автотранспортной службы принимают для пассажирских автостанций и автовокзалов по нормам проектирования автовокзалов и пассажирских автостанций, а для грузовых автостанций - по технико-экономическим показателям автомобильного транспорта.

11.7 При размещении зданий и сооружений автомобильного сервиса необходимо учитывать наличие энергоснабжения, водоснабжения и обслуживающего персонала, а также возможность их дальнейшего развития.

Остановочные пункты маршрутных транспортных средств

11.8 На дорогах категории IА остановочные пункты маршрутных транспортных средств размещают вне пределов земляного полотна, на откосе насыпи на присыпной берме. Остановочные пункты маршрутных транспортных средств на дорогах категории IА допускается располагать на боковых проездах и на дорогах, пересекаемых дорогой категории IА.

Остановочные площадки на дорогах категорий IБ, IВ, II и III должны быть отделены от проезжей части разделительной полосой.

11.9 Ширину остановочных площадок следует принимать равной ширине основных полос проезжей части, а длину - в зависимости от числа одновременно останавливающихся автобусов или троллейбусов по 11.12.

Посадочные площадки на остановочных пунктах маршрутных транспортных средств должны быть приподняты на 0,15 - 0,2 м над поверхностью остановочных площадок. Поверхность посадочных площадок должна иметь покрытие шириной не менее 2 м на всей длине остановочной площадки, а также перед павильоном для пассажиров, ближайшая грань которого должна быть расположена не ближе 3 м от кромки остановочной площадки.

В зоне остановочных пунктов маршрутных транспортных средств бордюр устанавливают без смещения от кромки остановочной полосы и прилегающих к ней участков переходно-скоростных полос.

11.10 Остановочные пункты маршрутных транспортных средств вне границ населенных пунктов следует располагать на прямых участках дорог или на кривых радиусами в плане не менее 1000 м для дорог категорий I и II, 600 м для дорог категории III и 400 м для дорог категории IV и при продольных уклонах не более 40‰. При этом должны быть обеспечены нормы видимости для дорог соответствующих категорий.

Остановочные пункты маршрутных транспортных средств на дорогах категории I допускается располагать одну напротив другой, а на дорогах категорий II - IV их допускается смещать по ходу движения на расстоянии не менее 30 м между ближайшими стенками павильонов.

Остановочные пункты маршрутных транспортных средств вблизи пересечений и примыканий в одном уровне следует размещать согласно требованиям ГОСТ Р 58653.

На автомобильных дорогах категории IА остановочные пункты не устраивают. На автомобильных дорогах категорий IБ - III вне населенных пунктов остановочные пункты должны устраиваться не чаще чем через 3 км.

11.11 Остановочные пункты маршрутных транспортных средств следует располагать с учетом радиуса доступности остановочных пунктов по СП 42.13330.

11.12 Длину посадочной площадки остановочного пункта автобусов и троллейбусов следует принимать, исходя из частоты движения и длины подвижного состава по СП 396.1325800.

Поперечный уклон посадочных площадок должен быть не более 20‰.

11.13 От посадочных площадок в направлении основных потоков пассажиров следует проектировать пешеходные дорожки или тротуары до существующих тротуаров, улиц или пешеходных дорожек, а при их отсутствии - на расстояние не менее расстояния боковой видимости.

Площадки отдыха и многофункциональные зоны дорожного сервиса

11.14 Многофункциональные комплексы сервиса вне населенных пунктов должны размещаться на автомобильных дорогах категорий IА, IБ, в том числе платных участках автомобильных дорог, с интервалами от 100 до 150 км. Допускается размещение многофункциональных комплексов сервиса на автомобильных дорогах других категорий. Многофункциональные комплексы сервиса следует размещать и проектировать в соответствии с требованиями ГОСТ 33062.

Площадки отдыха вне населенных пунктов должны размещаться на автомобильных дорогах категорий I - IV. Расстояние между площадками отдыха следует назначать в соответствии с ГОСТ 33062.

Вместимость площадок отдыха следует рассчитывать на одновременную остановку не менее 20 автомобилей на дорогах категории I при интенсивности движения до 30 000 ед./сут, не менее 10 - на дорогах категорий II, III и IV. При двустороннем размещении площадок отдыха на дорогах категории I их вместимость допускается уменьшать вдвое по сравнению с указанной.

Площадки отдыха должны иметь участки для стоянки транспорта, функционально разделенные для грузовых, легковых автомобилей и автобусов. На площадках отдыха следует предусматривать наружное освещение. Площадки должны быть озеленены и отделены от проезжей части дороги зеленой зоной. Ширину зеленой зоны допускается устраивать не менее 2,0 м.

При выполнении работ по озеленению следует рассматривать возможность применения продуктов компостирования органических отходов (удобрениями органическими, почвогрунтами и грунтами, пригодными для технических целей).

Автозаправочные и электрозарядные станции

11.15 Размещение автозаправочных станций (АЗС), в том числе автозаправочных станций углеводородами (АЗСУ) и автозаправочных станций электрозарядных (АЗСЭ), должно проводиться на основе экономических и статистических изысканий.

Мощность АЗСУ (число заправок в сутки) в зависимости от интенсивности движения допускается принимать по таблице 11.2. Расстояние между АЗСУ следует принимать в соответствии с требованиями ГОСТ 33062.

Таблица 11.2 - Требования к размещению и мощности автозаправочных станций

Интенсивность движения, ед./сут

Мощность АЗС, (АЗСУ, АЗСЭ) заправок в сутки

Расстояние между АЗСЭ, км

Размещение АЗС (АЗСУ, АЗСЭ)

Свыше 1 000 до 2 000

250

30 - 40

Одностороннее

Свыше 2 000 до 3 000

500

40 - 50

Свыше 3 000 до 5 000

750

40 - 50

Свыше 5 000 до 7 000

750

50 - 60

Двустороннее

Свыше 7 000 до 20 000

1000

40 - 50

Свыше 20 000

1000

20 - 25

Примечание - При расположении АЗС в зоне пересечения ее мощность должна быть уточнена с учетом протяженности всех обслуживаемых прилегающих дорог, интенсивности движения и других расчетных показателей на этих участках.

Мощность АЗСЭ определяется на основе состояния и перспективы развития парка электромобилей и производительности заправочного электрооборудования. Расстояние между АЗСЭ для зарядки электромобилей допускается принимать исходя из интенсивности движения в соответствии с таблицей 11.2.

АЗС следует размещать в придорожных полосах с уклоном не более 40‰, на кривых в плане радиусом более 1000 м, на выпуклых кривых в продольном профиле радиусом более 10 000 м, не ближе 250 м от железнодорожных переездов, не ближе 1000 м от мостовых переходов, на участках с насыпями высотой не более 2,0 м.

Мотели, кемпинги, станции технического обслуживания

11.16 Проектирование станций технического обслуживания (СТО) на автомобильных дорогах следует вести в соответствии с требованиями ГОСТ Р 52766.

Число постов на дорожных СТО в зависимости от расстояния между ними и интенсивности движения допускается принимать по таблице 11.3.

Таблица 11.3 - Требования к числу постов на дорожных станциях технического обслуживания

Интенсивность движения, трансп. ед./сут

Число постов на СТО в зависимости от расстояния между ними, км

Размещение СТО

60

100

150

200

250

1 000

1

1

1

2

3

Одностороннее

2 000

2

2

2

3

5

3 000

3

3

3

3

5

4 000

3

5

6

-

-

5 000

2

2

2

2

3

Двустороннее

6 000

2

2

3

4

5

8 000

3

3

3

3

5

10 000

3

3

3

5

5

15 000

5

5

5

8

8

20 000

5

5

8

По расчету

> 20 000

По расчету

При дорожных СТО допускается предусматривать АЗС.

11.17 Вместимость мотелей и кемпингов следует принимать с учетом численности проезжающих туристов и интенсивности движения автомобилей междугородных и международных перевозок.

Расстояние между мотелями и кемпингами следует принимать не более 500 км.

В составе мотелей допускается предусматривать дорожные СТО, АЗС, пункты питания и торговли.

При объектах автомобильного сервиса, при необходимости, следует размещать пункты питания и торговли.

12 Охрана окружающей среды

12.1 При разработке мероприятий по охране окружающей среды следует учитывать влияние автомобильных дорог и дорожного движения на состояние:

- атмосферного воздуха (физические факторы воздействия);

- земельных ресурсов, почв, недр;

- вод и водных биологических ресурсов;

- растительного и животного мира.

12.2 При наличии в зоне строительства охраняемых памятников истории, культуры, памятников природы (особо охраняемые природные территории) и других зон с особыми условиями использования территории (далее - ЗОУИТ) следует рассматривать необходимость разработки мероприятий по снижению негативного воздействия автомобильной дороги на окружающую среду и на охраняемые памятники истории, культуры, памятники природы и ЗОУИТ с учетом требований СП 502.1325800, [9], [10], [11].

12.3 В проектах при прохождении автомобильных дорог, предназначенных для транзитного движения вблизи населенных пунктов, заповедников, в рекреационных зонах, районах расположения курортов, домов отдыха, пансионатов и т.п., должны предусматриваться защитные мероприятия.

12.4 При строительстве обходов населенных пунктов их трассы следует прокладывать по возможности с учетом розы ветров.

12.5 При необходимости снижения влияния строящихся автомобильных дорог и сооружений на окружающую среду предусматривают строительство защитных сооружений (шумозащитные экраны, ограждения, валы, древесно-кустарниковые насаждения или специальные конструкции земляного полотна, обеспечивающие уменьшение распространения загрязнений), а также дорожные покрытия, обеспечивающие пониженный уровень шума при движении автомобилей.

12.6 При пересечении трассой дороги сложившихся путей миграции животных предусматривают на дорогах категорий I - III строительство специальных сооружений (защитные ограждения, переходы и пропускные сооружения, скотопрогоны и т.п.). Конструкцию, число переходов и пропускных сооружений необходимо принимать в соответствии с ГОСТ Р 58947 на основании данных о путях миграции в зависимости от численности, видовых морфометрических и поведенческих особенностей мигрирующих животных. На дорогах иных категорий допускается применение организационных мероприятий по ограничению режима, скорости и времени движения дорожными знаками и иными средствами регулирования движения согласно требованиям ГОСТ Р 52289.

Защитные ограждения должны соответствовать требованиям ГОСТ Р 59401.

12.7 При строительстве или реконструкции мостовых переходов на рыбохозяйственных водных объектах необходимо предусматривать мероприятия по сохранению рыбных запасов с учетом установленных требований [12].

12.8 На площадях земель, нарушаемых при строительстве автомобильных дорог, плодородный слой почвы снимают и складируют в отведенных местах.

Плодородный почвенный грунт, продукты компостирования органических отходов (удобрения органические, почвогрунты и грунты, пригодные для технических целей) используют для укрепления откосов земляного полотна и дорожных сооружений, а также при рекультивации нарушенных при строительстве земель. Не следует снимать плодородный слой почвы с многолетнемерзлых грунтов и в иных местах, где его снятие может привести к нарушению устойчивости земляных масс.

Примечание - Требования к определению норм снятия плодородного слоя почвы при производстве земляных работ принимаются согласно ГОСТ 17.5.3.06. Требования к охране плодородного слоя почвы принимаются согласно ГОСТ 17.4.3.02.

12.9 Все земельные участки, предоставленные во временное пользование для нужд строительства дороги, по окончании строительства должны быть приведены в состояние, пригодное для дальнейшего использования.

После окончания реконструкции дороги неиспользуемые участки существующих дорог должны быть приведены в состояние, пригодное для дальнейшего использования.

12.10 При прокладке трасс дорог по высокопродуктивным пахотным, орошаемым, осушаемым или иным ценным угодьям в целях сокращения площадей отвода земель земляное полотно допускается предусматривать без устройства кювет-резервов и кавальеров.

12.11 При назначении конструктивных решений земляного полотна, водоотводных и водопропускных сооружений обеспечивают защиту угодий от размыва и заиления, заболачивания, нарушения растительного и дернового покрова, нарушения гидрологического режима водотоков и природного уровня грунтовых вод. Поперечные сечения и продольные уклоны канав допускается принимать по СП 104.13330. Отверстия труб и других водоотводных сооружений должны обеспечивать пропуск летних паводков с подтоплением сельскохозяйственных угодий на сроки, не превышающие установленных в СП 104.13330.

Во избежание эрозии земель вследствие концентрации водных потоков следует предусматривать укрепление русел и выходов из водоотводных сооружений.

12.12 Для автомобильных дорог в зоне проведения мелиоративных работ предусматривают увязку строительных решений. При строительстве дорог на заболоченных или обводненных землях изменение их режима вследствие сооружения автомобильной дороги допускается только в увязке с проектами мелиорации соответствующих территорий.

12.13 При сооружении насыпей через болота с поперечным по отношению к трассе дороги движением воды в водонасыщенном горизонте предусматривают мероприятия, исключающие изменение режима болота путем отсыпки насыпи или ее нижней части из дренирующих материалов, устройство вдоль земляного полотна продольных канав и, при необходимости, искусственных сооружений и т.п.

12.14 Поверхностные стоки с территорий автомобильных дорог и мостов в пределах водоохранных зон должны удаляться с учетом требований, установленных [3] и [4].

12.15 При прокладке дорог через населенные пункты предусматривают покрытия дорожных одежд и тип укрепления обочин, исключающие пылеобразование - с покрытиями из асфальтобетона, цементобетона или материалов, укрепленных или обработанных вяжущими. На остальных участках дорог с переходными и низшими покрытиями предусматривают обработку покрытий обеспыливающими веществами, а при необходимости - защитные мероприятия, ограничивающие ширину запыленной зоны.

12.16 Для предотвращения загрязнения полосы отвода автомобильных дорог бытовым мусором при необходимости предусматривают площадки для установки контейнеров для мусора.

При прокладке трассы в хвойных лесах на сухих почвах следует предусматривать за границами полосы отвода противопожарные минерализованные полосы. Ширина этих полос принимается по правилам пожарной безопасности для лесов.

12.17 Выбор материалов для строительства, ремонта и содержания дороги должен осуществляться с учетом прямого и косвенного влияния на экологическую обстановку в период как строительства, так и эксплуатации дороги.

12.18 Производственные базы, здания и сооружения дорожно-эксплуатационной службы и дорожного сервиса, временные базы строительных организаций размещают с учетом розы ветров по отношению к жилым зонам.

Размещение временных баз строительных организаций в прибрежных полосах водных объектов допускается только при необходимости непосредственного примыкания площадки предприятия к водоемам.

Временные базы строительных организаций, требующие устройства грузовых причалов или пристаней, следует размещать по течению реки ниже границ жилых зон на расстоянии не менее 200 м.

12.19 Для обеспечения норм доступности территорий для населения, снижения временных затрат населения на дорогу к местам работы, отдыха и пунктам медицинского обслуживания, сохранности ценных сельскохозяйственных угодий, улучшения условий движения для сельскохозяйственной техники, велосипедистов, пешеходов, прогона скота предусматривают устройство подъездов к населенным пунктам, пешеходных и велосипедных дорожек, а также сооружений для связи разобщенных территорий. При сооружении новых дорог категорий I - II допускается совмещение их с местными дорогами попутного движения.

12.20 При наличии в зоне строительства автомобильной дороги видов растений и животных, занесенных в красные книги различных рангов, следует рассматривать необходимость разработки мероприятий по снижению негативного воздействия на окружающую среду от автомобильной дороги на данные виды с учетом установленных требований [3], [13].

Приложение А

Характеристика уровней удобства движения

Таблица А.1 - Основные характеристики уровней удобства движения

Уровень удобства движения

Z

Характеристика потока автомобилей

Состояние потока

Эмоциональная загрузка водителя

A

<0,2

Автомобили движутся в свободных условиях, взаимодействие между автомобилями отсутствует

Свободное движение одиночных автомобилей с большой скоростью

Низкая

B

0,2 - 0,45

Автомобили движутся группами, совершается много обгонов

Движение автомобилей малыми группами (2 - 5 шт.). Обгоны возможны

Нормальная

C

0,45 - 0,7

В потоке еще существуют большие интервалы между автомобилями, обгоны запрещены

Движение автомобилей большими группами (5 - 14 шт.). Обгоны затруднены

Высокая

D

0,7 - 0,9

Сплошной поток автомобилей, движущихся с малыми скоростями

Колонное движение автомобилей с малой скоростью. Обгоны невозможны

Очень высокая

E

0,9 - 1,0

Поток движется с остановками, возникают заторы, режим пропускной способности

Плотное

Очень высокая

F

> 1,0

Полная остановка движения, заторы

Сверхплотное

Крайне высокая

Приложение Б

Дорожно-климатическое районирование


image010.jpg


Примечания

1 При обосновании общее дорожно-климатическое районирование территории Российской Федерации может уточняться в рамках отдельных субъектов Российской Федерации.

2 Территории Краснодарского края следует относить к дорожно-климатической зоне III.

3 При проектировании участков дорог в приграничных зонах при обосновании данными о грунтово-гидрологических и почвенных условиях, а также исходя из практики эксплуатации дорог в районе допускается принимать проектные решения как для смежной (северной или южной) зоны.

4 В горных районах дорожно-климатические зоны следует определять с учетом высотного расположения объектов проектирования, принимая во внимание природные условия на данной высоте.

5 Разделение на подзоны следует учитывать при определении расчетной влажности при расчетах на прочность и морозоустойчивость дорожных одежд.

Рисунок Б.1

Таблица Б.1 - Примерные географические границы дорожно-климагических зон

Зона и подзона

Примерные географические границы дорожно-климатических зон (в том числе территории Республики Крым)

I

Севернее линии Нивский - Сосновка - Новый Бор - Щельябож - Сыня - Суеватпуль - Белоярский - Ларьяк - Усть-Озерное - Ярцево - Канск - Выезжий Лог - Усть-Золотая - Сарыч - Сеп - Новоселово - Артыбаш - Иню - государственная граница - Симоново - Биробиджан - Болонь - Многовершинный. Включает зоны тундры, лесотундры и северо-восточную часть лесной зоны с распространением многолетнемерзлых грунтов

I1

Севернее линии Нарьян-Мар - Салехард - Курейка - Трубка Удачная - Верхоянск - Дружина - Горный Мыс - Марково

I2

Восточнее линии устье р. Нижняя Тунгуска - Ербогачен, Ленск - Бодайбо - Богдарин и севернее линии Могоча - Сковородино - Зея - Охотск - Палатка - Слаутское. Ограничена с севера подзоной I1

I3

От южной границы вечной мерзлоты до южной границы подзоны I2

II

От границы зоны I до линии Тула - Нижний Новгород - Ижевск - Томск - Канск. На Дальнем Востоке от границы зоны I до государственной границы. Включает зону лесов с избыточным увлажнением грунтов

II1

С севера и востока ограничена зоной I, с запада - подзоной II3, с юга - линией Рославль - Клин - Рыбинск - Березники - Ивдель

II2

С севера ограничена подзоной II1, с запада - подзоной II4, с юга - зоной III, с северо-востока и востока - границей зоны I

II3

С севера ограничена государственной границей, с запада - границей с подзоной II5, с юга - линией Рославль - Клин - Рыбинск, с востока - линией Псков - Смоленск - Орел

II4

С севера ограничена подзоной II3, с запада - подзоной II6, с юга - границей с зоной III, с востока - линией Смоленск - Орел - Воронеж

III

От южной границы зоны II до линии Белгород - Самара - Магнитогорск - Омск - Бийск - Туран. Включает лесостепную зону со значительным увлажнением грунтов в отдельные годы

III1

Ограничена с севера зоной II, с запада - подзоной III2, с юга - зоной IV, с востока - зоной I

III2

С севера ограничена зоной II, с запада - государственной границей, с юга - зоной IV, с востока - линией Смоленск - Орел - Воронеж

IV

От границы зоны III до линии Буйнакск - Кизляр - Волгоград и далее в сторону границы с Казахстаном в широтном направлении. Включает степную зону с недостаточным увлажнением грунтов

V

К юго-востоку и югу от границы зоны IV и включает пустынную и пустынно-степную зоны с засушливым климатом и распространением засоленных грунтов

Приложение В

Классификация типов местности и грунтов

Таблица В.1 - Типы местности по характеру и степени увлажнения

Основные признаки

Дополнительные признаки в зависимости от дорожно-климатической зоны (ДКЗ)

Источники увлажнения

Характер увлажнения

Тип местности 1

Атмосферные осадки

Поверхностный сток обеспечен, грунтовые воды не оказывают влияния на увлажнение верхней толщи грунтов

ДКЗ I - мощность деятельного слоя более 2,5 м при непросадочных грунтах влажностью менее 0,7Wl;

ДКЗ II - почвы слабо- и среднеподзолистые или дерновоподзолистые без признаков заболачивания;

ДКЗ III - почвы серые, лесные слабоподзолистые в северной части зоны - темно-серые лесные и черноземы оподзоленные и выщелочные;

ДКЗ IV - почвы - черноземы тучные или мощные, в южной части зоны - южные черноземы, темно-каштановые и каштановые почвы;

ДКЗ V - почвы в северной части бурые, в южной - светлобурые и сероземы

Тип местности 2

Кратковременно стоящие (до 30 сут) поверхностные воды, атмосферные осадки

Поверхностный сток не обеспечен, грунтовые воды не оказывают влияния на увлажнение верхней толщи грунтов

ДКЗ I - почвы тундровые с резко выраженными признаками заболачивания; мощность сезонно-оттаивающего слоя от 0,1 до 2,5 м при наличии глинистых просадочных грунтов влажностью более 0,8Wl;

ДКЗ II - почвы средне- и сильноподзолистые и полуболотные с признаками заболачивания;

ДКЗ III - почвы подзолистые или полуболотные с признаками оглеения, в южной части - лугово-черноземные, солонцы и солоди;

ДКЗ IV - почвы сильносолонцеватые, черноземы, каштановые, солонцы и солоди;

ДКЗ V - почвы - солонцы, такыры, солончаковые солонцы и реже солончаки

Тип местности 3

Грунтовые или длительно стоящие (более 30 сут) поверхностные воды, атмосферные осадки

Грунтовые или длительно стоящие (более 30 сут) поверхностные воды оказывают влияние на увлажнение верхней толщи грунтов

ДКЗ I - почвы тундровые и болотные, торфяники; мощность сезонно-оттаивающего слоя до 1 м при наличии глинистых сильнопросадочных грунтов, содержащих в пределах двойной мощности сезонного оттаивания линзы льда толщиной более 10 см;

ДКЗ II - почвы торфяно-болотные или полуболотные;

ДКЗ III - то же, что для II зоны;

ДКЗ IV - почвы болотные или полуболотные, солончаки и солончаковатые солонцы;

ДКЗ V - почвы - солончаки и солончаковатые солонцы; постоянно орошаемые территории

Примечания

1 Участки, где залегают песчано-гравийные или песчаные грунты (за исключением мелких пылеватых песков) мощностью более 5 м при расположении уровня грунтовых вод на глубине более 3 м в зонах II, III и более 2 м в зонах IV, V, относятся к 1-му типу независимо от наличия поверхностного стока (при отсутствии длительного подтопления).

2 Грунтовые воды не оказывают влияния на увлажнение верхней толщи грунтов в случае, если их уровень в предморозный период залегает ниже глубины промерзания не менее чем на 2,0 м при глинах, суглинках тяжелых пылеватых и тяжелых; на 1,5 м - в суглинках легких пылеватых и легких, супесях тяжелых пылеватых и пылеватых; на 1,0 м - в супесях легких, легких крупных и песках пылеватых.

3 Поверхностный сток считается обеспеченным при уклонах поверхности грунта в пределах полосы отвода более 0,2%.

Таблица В.3 - Классификация грунтов по степени засоленности

Разновидность грунтов

Суммарное содержание легкорастворимых солей, % массы сухого грунта

Хлоридный, сульфатно-хлоридный тип

Сульфатный, хлоридно-сульфатный тип

Слабозасоленные

0,5 - 2,0

----------

0,3 - 1,0

0,5 - 1,0

----------

0,3 - 0,5

Среднезасоленные

2,0 - 5,0

----------

1,0 - 5,0

1,0 - 3,0

----------

0,5 - 2,0

Сильнозасоленные

5,0 - 10,0

----------

5,0 - 8,0

3,0 - 8,0

----------

2,0 - 5,0

Избыточно засоленные

Свыше 10,0

--------------

Свыше 8,0

Свыше 8,0

--------------

Свыше 5,0

Примечание - В числителе даны значения для дорожно-климатической зоны V, в знаменателе - для остальных зон.

Таблица В.4 - Классификация грунтов по степени набухания

Разновидности грунтов (при влажности 0,5w0)

Относительная деформация набухания, % толщины слоя увлажнения

Ненабухающие

Менее 2

Слабонабухающие

От 2 до 4

Средненабухающие

От 5 до 10

Сильнонабухающие

Свыше 10

Таблица В.5 - Классификация грунтов по степени просадочности

Разновидности грунтов

Коэффициент просадочности

Относительная деформация просадки, % толщины слоя промачивания

Непросадочные

Свыше 0,92

Менее 2

Слабопросадочные

От 0,85 до 0,91

От 2 до 7

Просадочные

От 0,80 до 0,84

От 8 до 12

Сильнопросадочные

Менее 0,79

Свыше 12

Примечание - Классификация не распространяется на скальные водоустойчивые грунты и грунты с исключением водонерастворимых цементирующих веществ, просадочность которых оценивают по данным лабораторных испытаний.

Таблица В.6 - Классификация грунтов по степени пучинистости при замерзании

Группы грунтов

Степень пучинистости

Относительное морозное пучение образца, %

I

Непучинистые

1 и менее

II

Слабопучинистые

Свыше 1 до 4

III

Пучинистые

От 4 до 7

IV

Сильнопучинистые

От 7 до 10

V

Чрезмернопучинистые

От 10

Примечания

1 Испытание на пучинистость при промерзании осуществляется в лаборатории по специальной методике с подтоком воды. Допускается группу по пучинистости определять по таблице В.7 настоящего приложения.

2 При оценке величины морозного пучения расчетом испытания грунтов на интенсивность морозного пучения ведут по специальной методике.

3 В случаях, когда испытание на морозное пучение не проводится, группу по пучинистости допускается устанавливать по таблице В.7 настоящего приложения, а среднюю относительную величину морозного пучения зоны промерзания - по таблице В.8.

Таблица В.7 - Группы грунтов по степени пучинистости

Грунт

Группа

Песок гравелистый, крупный и средней крупности с содержанием частиц мельче 0,05 мм до 2%

I

Песок гравелистый, крупный и средней крупности с содержанием частиц мельче 0,05 мм от 2% до 15%, мелкий с содержанием частиц мельче 0,05 мм до 5%; супесь легкая крупная

II

Песок мелкий с содержанием частиц мельче 0,05 мм до 8%; супесь легкая; суглинок легкий и тяжелый; глины

III

Песок мелкий с содержанием частиц мельче 0,05 мм до 15%; песок пылеватый; супесь пылеватая; суглинок тяжелый пылеватый

IV

Супесь тяжелая пылеватая; суглинок легкий пылеватый

V

Примечание - Величина коэффициента морозного пучения щебенистых, гравелистых, дресвяных песков при содержании частиц мельче 0,05 мм свыше 15% ориентировочно принимается как для пылеватого песка и проверяется в лаборатории.

Таблица В.8 - Величина морозного пучения

Грунт

Среднее значение относительного морозного пучения при промерзании 1,5 м, %

Песок гравелистый, крупный и средней крупности с содержанием частиц мельче 0,05 мм до 2%

1

---

1

Песок гравелистый, крупный и средней крупности с содержанием частиц мельче 0,05 мм до 15%; песок мелкий с содержанием частиц мельче 0,05 мм до 2%

1

------

1 - 2

Песок мелкий с содержанием частиц мельче 0,05 мм менее 5%; супесь легкая крупная

1 - 2

------

2 - 4

Супесь пылеватая; суглинок тяжелый пылеватый; песок мелкий с содержанием частиц мельче 0,05 мм до 15%

2 - 4

------

7 - 10

Супесь легкая; песок мелкий с содержанием частиц мельче 0,05 мм до 8%

1 - 2

------

4 - 7

Супесь тяжелая пылеватая; суглинок легкий пылеватый; песок пылеватый

4 - 7

------

10

Суглинок тяжелый; глины

2 - 4

------

4 - 7

Примечание - В числителе - при 1-й расчетной схеме увлажнения согласно таблице В.13 настоящего приложения, в знаменателе - при 2-й и 3-й схемах.

Таблица В.9 - Тип местности в дорожно-климатической зоне I по условиям увлажнения и мерзлотно-грунтовым особенностям

Типы местностей

Условия увлажнения грунтов

Мерзлотные процессы и явления

Грунт

Подвид

Характеристика

1-й

Сухие места

Отсутствует

Крупнообломочный; песчаный

Массивная текстура; непросадочный или талый

2-й

Сырые места. В летнее время возможно избыточное увлажнение грунтов деятельного слоя поверхностными водами

Заболачивание; морозное пучение (сезонные бугры пучения)

Песчаный; глинистый

Массивная и слоистая текстуры; малольдистый и малопросадочный

3-й

Мокрые места. В летнее время постоянное избыточное увлажнение грунтов деятельного слоя поверхностными и надмерзлотными водами

Заболачивание; морозное пучение (многолетние бугры пучения); термокарстовый рельеф; солифлюкция

Глинистый; возможно наличие подземных льдов

Слоистая и сетчатая текстуры; льдистый и сильнольдистый; просадочный, сильнопросадочный и чрезмернопросадочный

Таблица В.10 - Классификация грунтов по льдистости и просадочности в дорожно-климатической зоне I

Разновидность по просадочности при оттаивании

Льдистость 1 грунта вечномерзлой толщи

Суммарная влажность грунтов деятельного слоя

Пески мелкие

Пески пылеватые, супеси легкие

Супеси

Торф

Непросадочный

Без ледяных включений (0 - 0,01)

Менее 0,18

Менее 0,2

Менее 0,2

-

Слабопросадочный

Малольдистый (0,01 - 01)

От 0,18 до 0,25

От 0,2 до 0,4

От 0,2 до 0,4

Менее 2

Просадочный

Льдистый (0,1 - 0,4)

Свыше 0,25

Свыше 0,4

Свыше 0,4 до 1,1

От 2 до 12

Сильнопросадочный

Сильнольдистый (0,4 - 0,6)

-

-

Свыше 1,1

Свыше 12

Чрезмернопросадочный

С крупными включениями подземного льда (0,6 - 1,0)

-

-

Свыше 1,1

Свыше 12

1 Отношение объема прослоек льда к объему мерзлого грунта (с учетом включений частиц льда).

Таблица В.11 - Разновидности грунтов по степени увлажнения

Разновидности грунтов

Влажность

Недоувлажненные

Менее 0,9w0

Нормальной влажности

От 0,9w0 до wadm

Повышенной влажности

От wadm до wmax

Переувлажненные

Свыше wmax

Примечание - wmax - максимально возможная влажность грунта при коэффициенте уплотнения 0,9.

Таблица В.12 - Допустимая влажность грунтов при уплотнении

Грунты

Допустимая влажность wadm в долях от оптимальной при требуемом коэффициенте уплотнения грунта mb

св. 1,00

1,0 - 0,98

0,95

0,90

Пески пылеватые

1,30

1,35

1,60

1,60

Супеси легкие

1,20

1,25

1,35

1,60

Супеси тяжелые пылеватые; суглинки легкие

1,10

1,15

1,30

1,50

Суглинки тяжелые и глины

1,00

1,05

1,20

1,30

Примечания

1 При воздействии насыпей из пылеватых песков в летних условиях допустимая влажность не ограничивается.

2 Настоящие ограничения не распространяются на насыпи, возводимые гидронамывом.

3 При возведении насыпей в зимних условиях влажность не должна быть более 1,3 при песчаных и непылеватых супесчаных, 1,2 - при супесчаных пылеватых и суглинках легких и 1,1 - для других связных грунтов.

4 Величина допустимой влажности грунта может уточняться с учетом технологических возможностей, имеющихся в наличии конкретных уплотняющих средств в соответствии с действующими нормативными документами.

Таблица В.13 - Расчетные схемы увлажнения

Расчетная схема увлажнения рабочего слоя

Источники увлажнения

Условия отнесения к данной расчетной схеме увлажнения

1

Атмосферные осадки

Для насыпей на участках 1-го типа местности по условиям увлажнения (7.3 настоящего свода правил и таблица В.1 настоящего приложения).

Для насыпей на участках местности 2-го и 3-го типов по условиям увлажнения при возвышении поверхности покрытия над расчетным уровнем грунтовых и поверхностных вод или над поверхностью земли, более чем в 1,5 раза превышающем требования таблицы 7.1.

Для насыпей на участках 2-го типа при расстоянии от уреза поверхностной воды (отсутствующей не менее 2/3 летнего периода) более 5 - 10 м при супесях; 2 - 5 м - при легких пылеватых суглинках и 2 м - при тяжелых пылеватых суглинках и глинах (меньшие значения принимают для грунтов с большим числом пластичности; при залегании различных грунтов следует принимать наибольшие значения).

В выемках в песчаных и глинистых грунтах при уклонах кюветов более 20% (в дорожно-климатических зонах I - III) и при возвышении поверхности покрытия над расчетным уровнем грунтовых вод, более чем в 1,5 раза превышающем требования таблицы 7.1.

При применении специальных методов регулирования водно-теплового режима (капилляропрерывающие, гидроизолирующие, теплоизолирующие и армирующие прослойки, дренаж и т.п.), назначаемых по специальным расчетам

2

Кратковременно стоящие (до 30 сут) поверхностные воды, атмосферные осадки

Для насыпей на участках 2-го типа местности по условиям увлажнения (7.3 настоящего свода правил и таблица В.1 настоящего приложения) при возвышении поверхности покрытия, не менее требуемого по таблице 7.1 и не более чем в 1,5 раза превышающего эти требования, и при крутизне откосов не менее 1:1,5 и простом (без берм) поперечном профиле насыпи.

Для насыпей на участках 3-го типа местности при применении специальных мероприятий по защите от грунтовых вод (капилляропрерывающие и гидроизолирующие слои, дренаж), назначаемых по специальным расчетам, при отсутствии длительно стоящих (более 30 сут) поверхностных вод и выполнении условий предыдущего абзаца.

В выемках в песчаных и глинистых грунтах при уклонах кюветов менее 20% (в зонах I, II) и возвышении поверхности покрытия над расчетным уровнем грунтовых вод, более чем в 1,5 раза превышающем требования таблицы 7.1

3

Грунтовые или длительно стоящие (более 30 сут) поверхностные воды, атмосферные осадки

Для насыпей на участках 3-го типа местности по условиям увлажнения (7.3 настоящего свода правил и таблица В.1 настоящего приложения) при возвышении поверхности покрытия, отвечающем требованиям таблицы 7.1, но не превышающем их более чем в 1,5 раза.

То же, для выемок, в основании которых имеется уровень грунтовых вод, расположение которого по глубине не превышает требования таблицы 7.1 более чем в 1,5 раза

Таблица В.14 - Значения коэффициентов относительного уплотнения

Требуемый коэффициент уплотнения грунта

Значения коэффициентов относительного уплотнения K1 для грунтов *

Пески, супеси, суглинки пылеватые

Суглинки, глины

Лессы и лессовидные грунты

Скальные разрабатываемые грунты при объемной массе, г/см3

Шлаки, отвалы перерабатывающей промышленности

1,9 - 2,2

2,2 - 2,4

2,4 - 2,7

1,00

1,10

1,05

1,30

0,95

0,89

0,84

1,26 - 1,47

0,95

1,05

1,00

1,15

0,90

0,85

0,80

1,20 - 1,40

0,90

1,00

0,95

1,10

0,85

0,80

0,76

1,13 - 1,33

* Ориентировочные коэффициенты относительного уплотнения для грунтов естественной (ненарушенной) структуры.

Таблица В.15 - Классификация местности по подвижности песков

Степень закрепления растительностью поверхности песков

Площадь, покрытая растительностью, %

Степень подвижности песков

Незаросшая поверхность

Менее 5

Очень подвижные

Слабозаросшая поверхность

Свыше 5 до 15

Подвижные

Полузаросшая поверхность

Свыше 15 до 35

Малоподвижные

Заросшая поверхность

Свыше 35

Неподвижные

Приложение Г

Типы болот

При сооружении земляного полотна в болотистой местности следует различать три типа болот:

I - заполненные болотными грунтами, прочность которых в природном состоянии обеспечивает возможность возведения насыпи высотой до 3 м без возникновения процесса бокового выдавливания слабого грунта;

II (сапропелевые) - содержащие в пределах болотной толщи хотя бы один слой, который может выдавливаться при некоторой интенсивности производства работ по возведению насыпи высотой до 3 м, но не выдавливается при меньшей интенсивности производства работ по возведению насыпи;

III (сплавинные) - содержащие в пределах болотной толщи хотя бы один слой, который при возведении насыпи высотой до 3 м выдавливается независимо от интенсивности производства работ по возведению насыпи.

Приложение Д

Типовые схемы пересечений в разных уровнях (транспортных развязок)

Таблица Д.1 - Типовые схемы транспортных развязок 1-го класса и условия их применения

Наименование

Схема транспортной развязки

Условия применения

Пересечения

Транспортная развязка типа "клеверный лист"

image011.jpg

Интенсивность поворачивающих направлений в каждой из зон переплетений транспортных потоков не более 800 авт./ч

Транспортная развязка с направленными и петлевыми съездами

image012.jpg

Соотношение интенсивностей поворачивающих направлений не позволяет выполнить устройство транспортных развязок типа "клеверный лист"

Транспортная развязка с направленными съездами

image013.jpg

Примыкания

Примыкание типа "труба"

image014.jpg

Во всех случаях, кроме рассмотренного ниже

Примыкание с направленными съездами

image015.jpg

Примыкание с петлевыми съездами

image016.jpg

Устройство примыканий с учетом перспективного развития

Таблица Д.2 - Типовые схемы пересечений в разных уровнях (транспортных развязок) 2-го класса и условия их применения

Наименование

Схема транспортной развязки

Условия применения

Пересечения

Пересечение типа "ромб"

image017.jpg

Интенсивность каждого из левоповоротных направлений позволяет устройство пересечений в одном уровне на второстепенном направлении движения

image018.jpg

Интенсивность каждого из левоповоротных направлений позволяет устройство кольцевых пересечений в одном уровне на второстепенном направлении движения

image019.jpg

Пересечение типа "совмещенный неполный клеверный лист"

image020.jpg

Интенсивность каждого из левоповоротных направлений позволяет устройство пересечений в одном уровне и невозможность размещения съездов в двух диагональных четвертях

image021.jpg

Интенсивность каждого из левоповоротных направлений позволяет устройство пересечений в одном уровне и невозможность размещения съездов в двух соседних четвертях

Пересечение типа "неполный клеверный лист"

image022.jpg

Интенсивность одного из левоповоротных направлений не позволяет устройство пересечения в одном уровне

image023.jpg

Интенсивность двух из левоповоротных направлений в диагональных четвертях не позволяет устройство пересечения в одном уровне

image024.jpg

Интенсивность двух из левоповоротных направлений в соседних четвертях не позволяет устройство пересечения в одном уровне *

image025.jpg

Интенсивность трех из левоповоротных направлений в соседних четвертях не позволяет устройство пересечения в одном уровне *

Примыкания

Примыкание типа "труба" **

image026.jpg

Во всех случаях, кроме рассмотренных ниже

Примыкание типа "ромб"

image027.jpg

Устройство примыканий с учетом перспективного развития

Примыкание с петлевыми съездами **

image028.jpg

Устройство примыканий с учетом перспективного развития

* С учетом обеспечения пропускной способности каждой из зон переплетения.

** Относятся к примыканиям 1-го класса, используются для организации примыканий автомобильных дорог категорий I - III (при обосновании - IV) к автомагистралям и скоростным автомобильным дорогам.

Приложение Е

Схемы организации участков примыкания транспортных потоков

image029.jpg

а) Тип B.1

image030.jpg

б) Тип B.2

image031.jpg

в) Тип B.3

image032.jpg

г) Тип B.4

image033.jpg

д) Тип B.5

Рисунок Е.1 - Основные схемы организации участков слияния транспортных потоков

image034.jpg

а) Тип C.1

image035.jpg

б) Тип C.2

image036.jpg

в) Тип C.3

image037.jpg

г) Тип C.4

image038.jpg

д) Тип C.5

image039.jpg

е) Тип C.6

Рисунок Е.2 - Основные схемы организации участков разделения транспортных потоков

Приложение Ж

Коэффициенты приведения к расчетному легковому автомобилю

Таблица Ж.1 - Коэффициенты приведения транспортных средств к легковому автомобилю для регулируемых пересечений

Легковой автомобиль

1,0

Микроавтобус

1,1

Грузовой автомобиль до 2 т

1,2

Автобус малой вместимости

1,4

Грузовой автомобиль от 2 до 6 т

1,5

Автобус большой вместимости

1,8

Грузовой автомобиль более 6 т

1,6

Сочлененный автобус/троллейбус

2,4

Автопоезд

2,2

Таблица Ж.2 - Коэффициенты приведения транспортных средств к легковому автомобилю для кольцевых пересечений и второстепенных направлений нерегулируемых пересечений

Тип транспортного средства

Коэффициент приведения

Легковые автомобили и грузовые автомобили грузоподъемностью до 1,5 т

1,0

Грузовые автомобили грузоподъемностью от 1,5 до 3,5 т

1,5

Автопоезда

2,3

Автобусы

2,0

Сочлененные автобусы

3,0

Мотоциклы

0,5

Приложение И

Расчетные расстояния видимости железной дороги для различных скоростей движения транспортных средств

Таблица И.1 - Расчетные расстояния видимости железной дороги для различных скоростей движения транспортных средств


Скорость поезда (км/ч)

Стоящее у железнодорожного переезда автодорожное транспортное средство

Движущееся автодорожное транспортное средство

Скорость транспортного средства, км/ч

-

0

10

20

30

40

50

60

70

80

90

100

110

120

130

140

150

Расстояние видимости железнодорожного переезда (сигналов переездной сигнализации и шлагбаумов) вдоль автомобильной дороги dн, м

-

-

17

29

44

60

79

100

123

149

176

207

239

273

310

349

391

Расстояния видимости вдоль железной дороги от железнодорожного переезда, м

-

dп

dт

10

49

41

26

22

21

21

21

21

22

22

23

24

25

26

27

28

20

97

81

52

44

42

41

41

42

43

44

46

48

49

51

53

55

30

146

121

78

66

62

61

61

62

64

66

69

71

74

77

80

82

40

194

161

104

88

83

81

81

83

85

88

91

95

98

102

106

110

50

243

201

130

110

103

101

102

104

107

110

114

118

123

127

132

137

60

291

241

156

132

124

121

122

124

128

132

137

142

147

153

159

164

70

339

281

182

154

144

141

142

145

149

154

159

165

172

178

185

192

80

388

322

208

176

165

161

162

165

170

176

182

189

196

204

211

219

90

436

362

234

198

185

182

183

186

191

198

205

212

220

229

238

246

100

485

402

260

220

206

202

203

207

213

220

227

236

245

254

264

274

110

533

442

286

242

226

222

223

227

234

241

250

260

269

280

290

301

120

582

482

312

264

247

242

243

248

255

263

273

283

294

305

317

328

130

630

522

338

286

267

262

263

269

276

285

296

307

318

330

343

356

140

678

562

363

308

288

282

284

289

297

307

318

330

343

356

369

383

150

727

602

389

330

308

302

304

310

319

329

341

354

367

381

396

410


Приложение К

Железнодорожные переезды. Требования к проектированию

К.1 Расстояние видимости железнодорожного переезда (сигналов переездной сигнализации и шлагбаумов) вдоль автомобильной дороги dн, м, позволяющее на безопасном удалении (расстоянии) остановить автомобиль, не въезжая в опасную зону железнодорожного переезда, определяют по формуле

image040.png, (К.1)

где A - константа = 0,278;

B - константа = 0,0385;

VТС - скорость автотранспортного средства, км/ч;

T - время восприятия-реакции водителя, с (принимается равным 3 с);

a - замедление автомобиля, м/с2 (принимается равным 3,41 м/с2);

ΔS - расстояние от стоп-линии или передней части транспортного средства до ближайшего рельса, м (принимается равным 4,57 м);

Se - расстояние от водителя до передней части транспортного средства (принимается равным 2,44 м).

Схема определения расстояния видимости железнодорожного переезда (сигналов переездной сигнализации и шлагбаумов) вдоль автомобильной дороги представлена на рисунке К.1.

image041.jpg

Рисунок К.1 - Схема определения расстояния видимости железнодорожного переезда (сигналов переездной сигнализации и шлагбаумов) вдоль автомобильной дороги dн и расстояния видимости приближающегося к переезду поезда вдоль железнодорожных путей dт

При невозможности обеспечения расстояния видимости железнодорожного переезда (сигналов переездной сигнализации и шлагбаумов) вдоль автомобильной дороги на подходах к переезду следует вводить ступенчатое ограничение скорости движения автомобилей в соответствии с ГОСТ Р 52289 и таблицей К.1.

Таблица К.1 - Допустимая скорость движения автомобилей на подходах к переезду по условиям видимости

Расстояние видимости железнодорожного переезда (сигналов переездной сигнализации и шлагбаумов) вдоль автомобильной дороги, м

51 - 75

76 - 100

101 - 125

126 - 150

151 - 200

201 - 400

Скорость движения автомобилей на подходах к переезду, км/ч

20

30

35

40

50

60

В случаях недостаточной видимости сигналов переездных светофоров устанавливаются дополнительные светофорные головки, обращенные в обе стороны по направлениям движения транспортных средств и (или) дублирующие переездные светофоры с левой стороны дороги.

На автомобильных дорогах с двумя и более полосами движения в одну сторону переездные светофоры дублируются на консолях над проезжей частью с правой стороны по направлению движения транспортных средств.

К.2 На железнодорожных переездах, не оборудованных устройствами заграждения и (или) автоматическими шлагбаумами, возможности отключения указанного оборудования на переездах, следует обеспечивать видимость приближающегося к переезду поезда вдоль железнодорожных путей.

Расстояние видимости приближающегося к переезду поезда вдоль железнодорожных путей dт, м, обеспечивающее возможность остановить автотранспортное средство при обнаружении приближающегося поезда, определяют по формуле

image042.png, (К.2)

где Vn - скорость поезда, км/ч;

VТС - то же, что и в формуле (К.1);

A - то же, что и в формуле (К.1);

B - то же, что и в формуле (К.1);

T - то же, что и в формуле (К.1);

a - то же, что и в формуле (К.1);

ΔS - то же, что и в формуле (К.1);

L - длина транспортного средства, м (принимается равной 20 м);

W - расстояние между внешними рельсами, м (для одной колеи это значение равно 1,52 м), измеренное вдоль оси проезжей части автомобильной дороги (улицы).

Схема определения видимости приближающегося к переезду поезда вдоль железнодорожных путей представлена на рисунке К.2.

image043.jpg

Рисунок К.2 - Схема определения расстояния видимости поезда из стоящего у железнодорожного переезда автомобиля

При невозможности обеспечения видимости приближающегося к переезду поезда вдоль железнодорожных путей на железнодорожных переездах следует предусматривать следующие мероприятия:

- ввести ступенчатое ограничение скорости движения автомобилей в соответствии с ГОСТ Р 52289 и таблицей К.1 в случае, если при установленном ограничении скорости обеспечивается видимость приближающегося поезда вдоль железнодорожных путей;

- вместе с введением ограничения скорости движения автомобилей в соответствии с ГОСТ Р 52289 и таблицей К.1 установить дорожные знаки 6.16 "Стоп-линия", 2.5 "Движение без остановки запрещено" на нерегулируемых и регулируемых только светофорами железнодорожных переездах;

- при видимости поезда за 50 м и менее в соответствии с ГОСТ Р 52289 установить дорожные знаки 6.16 "Стоп-линия", 2.5 "Движение без остановки запрещено" или обеспечить перевод железнодорожного переезда в категорию, которая обслуживается дежурным работником. Если на подходах к нерегулируемым железнодорожным переездам, не оборудованным знаком 2.5 "Движение без остановки запрещено", для водителей транспортных средств, находящихся на удалении не более 50 м от ближнего рельса, не обеспечена видимость приближающегося поезда на расчетном по формуле (К.2) безопасном расстоянии, то владелец инфраструктуры или владелец железнодорожных путей необщего пользования устанавливает постоянное ограничение скорости движения поездов.

К.3 Расстояние видимости поезда из стоящего у железнодорожного переезда автомобиля следует обеспечивать на железнодорожных переездах, не оборудованных устройствами заграждения и (или) автоматическими шлагбаумами, возможности отключения указанного оборудования.

Расстояние видимости поезда из стоящего у железнодорожного переезда автомобиля dп, м, позволяющее автомобилю пересечь железнодорожный переезд и освободить переезд до прибытия поезда, определяют по формуле

image044.png, (К.3)

где A - константа = 0,278;

Vn - скорость поезда, км/ч;

Va1 - максимальная скорость транспортного средства на выбранной начальной передаче; принимается, что данная скорость, м/с (принимается равной 2,68 м/с);

a1 - ускорение транспортного средства на первой передаче, м/с2 (принимается равным 0,448 м/с2);

L - длина транспортного средства, м (принимается равной 20 м);

ΔS - расстояние от стоп-линии или передней части транспортного средства до ближайшего рельса, м (принимается равным 4,57 м);

W - расстояние между внешними рельсами, м (для одной колеи это значение равно 1,52 м), измеренное вдоль оси проезжей части автомобильной дороги;

Za - расстояние, которое автомобиль проезжает при разгоне до максимальной скорости на первой передаче, м (принимается равным 8,05 м);

T - время восприятия-реакции (3 с).

Схема определения расстояния видимости поезда из стоящего у железнодорожного переезда автомобиля представлена на рисунке К.2.

Расчетные расстояния видимости dн, dт и dп при различных скоростях движения транспортных средств представлены в таблице И.1.

Формулы (К.1) - (К.3) справедливы для случая, когда автомобильная дорога или улица пересекает однопутную железную дорогу под прямым углом и корректируются с учетом конкретных дорожных условий, габаритов и динамических характеристик автомобилей, требований [14] к месту остановки транспортного средства у железнодорожного переезда, когда движение через переезд запрещено.

К.4 При невозможности обеспечения безопасных условий видимости на железнодорожных переездах или оборудования их устройствами заграждения и (или) автоматическими шлагбаумами, следует предусматривать пересечения железной и автомобильной дорог в разных уровнях.

К.5 Автомобильная дорога на расстоянии не менее 10 м от крайнего рельса должна иметь в продольном профиле горизонтальную площадку, кривую большого радиуса или уклон, обусловленный превышением одного рельса над другим, когда пересечение располагается в месте закругления железной дороги.

Подходы автомобильной дороги к пересечению на протяжении 50 м следует предусматривать с продольным уклоном не более 30‰. На подходах к существующим железнодорожным переездам при реконструкции или капитальном ремонте переезда допускается сохранять существующий план и профиль автомобильной дороги.

При интенсивности движения по автомобильной и железной дорогам соответственно от 1000 авт./сут до 4000 авт./сут и от 10 поездов/сут до 150 поездов/сут необходимо устраивать дополнительные полосы движения на автомобильной дороге (до и после переезда) для проезда через железнодорожный переезд по двум полосам движения в каждом направлении. Ширину дополнительной полосы принимают равной ширине полосы движения основной проезжей части.

Протяженность предложенных дополнительных полос в зоне железнодорожного переезда приведена в таблице К.2.

Таблица К.2 - Длина дополнительных полос движения в зоне железнодорожного переезда

Интенсивность движения по железной дороге, поездов/сут

Интенсивность движения по автомобильной дороге, авт./сут

1000

1000 - 2000

2000 - 3000

3000 - 4000

Длина дополнительной полосы движения перед переездом (в числителе) после переезда (в знаменателе)

10 - 25

-

60 - 80

------------

150 - 180

100 - 120

------------

220 - 250

150 - 170

------------

270 - 300

26 - 50

60 - 80

------------

120 - 150

80 - 100

------------

180 - 200

120 - 150

------------

250 - 300

170 - 200

------------

300 - 350

51 - 100

-

90 - 110

------------

220 - 230

150 - 180

------------

280 - 300

-

101 - 150

90 - 110

------------

220 - 250

120 - 150

------------

250 - 300

-

-

150 и более

нецелесообразно

Ширину дополнительных полос движения проезжей части принимают 3,75 м на дорогах категорий I - II и 3,5 м - на дорогах категории III.

В целях предотвращения возникновения заторов, вызванных чрезмерным увеличением длины очередей автомобилей у переездов, необходимо устройство дополнительных полос движения для накопления и разгрузки очередей на пересечениях, расположенных в зоне влияния железнодорожного переезда. Расстояние между переездом и ближайшим к нему пересечением улиц должно быть достаточно большим, чтобы обеспечить размещение очереди автомобилей перед переездом такой длины, которая не превышается в течение 95% времени как при движении к пересечению от железной дороги, так и в обратном направлении (рисунок К.3).

image045.jpg

Рисунок К.3 - Схема взаимного расположения железнодорожного переезда и пересечения дорог

Расчет длины очереди перед железнодорожным переездом проводится по формуле

image046.png, (К.4)

где R - продолжительность красного сигнала (закрытия переезда), с;

R следует определять по формуле

image047.png, (К.5)

где t - суммарное время от закрытия пересечения до прихода поезда и от прохода поезда до открытия пересечения для проезда автомобильного транспорта, с;

L - длина поезда, м;

V - средняя скорость поезда при проезде пересечения, км/ч;

kв - коэффициент вариации интенсивности потока (коэффициент внутричасовой неравномерности), определяемый на местности или принимаемый равным 1,15;

l - длина легкового автомобиля, м;

ki - отношение габарита транспортного средства типа i к габариту легкового автомобиля;

Vi - интенсивность движения транспортных средства типа i (всего n типов), авт./ч.

На участках, где местные условия не позволяют обеспечить достаточное расстояние между железнодорожным переездом и пересечением дорог (улиц), необходимо:

- обеспечить координированную работу дорожных светофоров со светофорами на переезде, чтобы освободить железнодорожный переезд при приближении поезда (рисунок К.4);

- установить на подходе к пересечению информационный щит с надписью "Не останавливаться на железнодорожном пути", изготовленный согласно ГОСТ Р 52289.

image048.jpg

Рисунок К.4 - Схема размещения дополнительных светофоров

Подходы автомобильных дорог категории IV к железнодорожному переезду, расположенному в конце спусков, на протяжении 50 м проектируются с уклоном не более 30‰. На автомобильных дорогах других категорий протяженность этих подходов следует назначать с учетом необходимости размещения очередей стоящих перед железнодорожным переездом автомобилей в соответствии с таблицей К.3.

Таблица К.3 - Длина участков подходов к железнодорожному переезду

Интенсивность движения по железной дороге, поездов/сут

Интенсивность движения по автомобильной дороге, авт./сут

1000 ... 2000

3000

4000

5000

6000

7000

Длина участка подхода с уклоном не более 30‰, м

10

50

75

100

125

150

175

25

75

125

150

175

220

250

50

75

150

175

200

225

250

75

75

175

220

250

270

300

Автомобильные дороги на подходах к железнодорожному переезду на протяжении не менее 10 м от головки крайнего рельса (исключая настил железнодорожного переезда) в обе стороны должны иметь жесткую дорожную одежду.

Покрытия проезжей части (настила) на железнодорожных переездах с расчетной приведенной среднесуточной интенсивностью движения автомобилей более 2000 ед./сут следует предусматривать усиленными в виде: монолитных, асфальтобетонных, железобетонных, резинобетонных и других видов конструкций, не подверженных образованию колейности и обеспечивающих увеличенный межремонтный срок относительно резинокордовых настилов. Настилы должны обеспечивать возможность выполнения ремонта и текущего содержания элементов железнодорожного пути.

Ограждающие тумбы и столбы шлагбаумов на пересечениях располагают на расстоянии не менее 1,0 м, а стойки габаритных ворот - на расстоянии не менее 1,75 м от кромки проезжей части.

Библиография

[1] Федеральный закон от 8 ноября 2007 г. N 257-ФЗ "Об автомобильных дорогах и о дорожной деятельности в Российской Федерации и о внесении изменений в отдельные законодательные акты Российской Федерации"

[2] Федеральный закон от 14 марта 1995 г. N 33-ФЗ "Об особо охраняемых природных территориях"

[3] Федеральный закон от 10 января 2002 г. N 7-ФЗ "Об охране окружающей среды"

[4] Федеральный закон от 3 июня 2006 г. N 74-ФЗ "Водный кодекс Российской Федерации"

[5] ТР ТС 018/2011 "Технический регламент Таможенного союза. О безопасности колесных транспортных средств"

[6] ТР ТС 014/2011 "Технический регламент Таможенного союза. Безопасность автомобильных дорог"

[7] Позиция исключена с 28.01.2025. - Изменение N 1

[8] Приказ Министерства транспорта Российской Федерации от 5 октября 2022 г. N 402 "Об утверждении условий эксплуатации железнодорожных переездов"

[9] Федеральный закон Российской Федерации от 29 декабря 2004 г. N 190-ФЗ "Градостроительный кодекс Российской Федерации"

[10] Федеральный закон Российской Федерации от 25 июня 2002 г. N 73-ФЗ "Об объектах культурного наследия (памятниках истории и культуры) народов Российской Федерации"

[11] Федеральный закон Российской Федерации от 25 октября 2001 г. N 136-ФЗ "Земельный кодекс Российской Федерации"

[12] Федеральный закон Российской Федерации от 20 декабря 2004 г. N 166-ФЗ "О рыболовстве и сохранении водных биологических ресурсов"

[13] Приказ Министерства природных ресурсов и экологии Российской Федерации от 29 мая 2017 г. N 264 "Об утверждении особенностей охраны в лесах редких и находящихся под угрозой исчезновения деревьев, кустарников, лиан, иных лесных растений, занесенных в Красную книгу Российской Федерации или красные книги субъектов Российской Федерации"

[14] Постановление Совета Министров - Правительства Российской Федерации от 23 октября 1993 г. N 1090 "О правилах дорожного движения".

Последние добавленные документы

Яндекс.Метрика