ОДМ 218.4.4.001-2020 МЕТОДИКА ОЦЕНКИ ДОЛГОВЕЧНОСТИ СПИРАЛЬНОВИТЫХ МЕТАЛЛИЧЕСКИХ ГОФРИРОВАННЫХ ТРУБ, ИСПОЛЬЗУЕМЫХ В ДОРОЖНОМ СТРОИТЕЛЬСТВЕ
Предисловие
1 Разработан: Обществом с ограниченной ответственностью "ГЕОПРОЕКТ" совместно с Обществом с ограниченной ответственностью "Мегатех инжиниринг" в соответствии с государственным контрактом от 18.02.2019 N ФДА 47/11.
2 Внесен: Управлением научно-технических исследований и информационного обеспечения Федерального дорожного агентства
3 Издан распоряжением Федерального дорожного агентства от "02" февраля 2020 г. N 355-р
4 Имеет рекомендательный характер
5 Введен впервые
1.1 Настоящий ОДМ предназначен для органов управления автомобильных дорог и организаций, выполняющих работы по проектированию и строительству дорожных искусственных сооружений, а также производителей спиральновитых металлических гофрированных труб.
1.2 ОДМ устанавливает рекомендации по методике оценки долговечности спиральновитых металлических гофрированных труб, используемых в дорожном строительстве.
В настоящем ОДМ использованы нормативные ссылки на следующие документы:
Технический регламент таможенного союза TP ТС 014/2011 Безопасность автомобильных дорог (Утвержден Решением Комиссии Таможенного союза от 18.10.2011 г. N 827)
ГОСТ 9.040-74 Единая система защиты от коррозии и старения (ЕСЗКС). Металлы и сплавы. Расчетно-экспериментальный метод ускоренного определения коррозионных потерь в атмосферных условиях
ГОСТ 9.307-89 (ИСО 1461-89, СТ СЭВ 4663-84). Государственный стандарт Союза ССР. Единая система защиты от коррозии и старения. Покрытия цинковые горячие. Общие требования и методы контроля
ГОСТ 14254-2015 (IEC 60529:2013). Межгосударственный стандарт. Степени защиты, обеспечиваемые оболочками (Код IP)
ГОСТ Р ИСО 16809-2015. Национальный стандарт Российской Федерации. Контроль неразрушающий. Контроль ультразвуковой. Измерение толщины
ГОСТ 1778-70 (СТ СЭВ 4077-83) (ИСО 4967-79). Сталь. Металлографические методы определения неметаллических включений
ГОСТ 21964-76 (СТ СЭВ 2603-80) Внешние воздействующие факторы. Номенклатура и характеристики (с Изменениями N 1, 2, 3)
ГОСТ 22733-2016 Межгосударственный стандарт. Грунты. Метод лабораторного определения максимальной плотности
ГОСТ 23732-2011 Межгосударственный стандарт. Вода для бетонов и строительных растворов. Технические условия
ГОСТ 26883-86 Межгосударственный стандарт. Внешние воздействующие факторы. Термины и определения
ГОСТ 30693-2000 Межгосударственный стандарт. Мастики кровельные и гидроизоляционные. Общие технические условия
ГОСТ 30630.0.0-99 Межгосударственный стандарт. Методы испытаний на стойкость к внешним воздействующим факторам машин, приборов и других технических изделий. Общие требования
ГОСТ 30630.2.5-2013 Межгосударственный стандарт. Методы испытаний на стойкость к климатическим внешним воздействующим факторам машин, приборов и других технических изделий. Испытания на воздействие соляного тумана
ГОСТ 32871-2014. Межгосударственный стандарт. Дороги автомобильные общего пользования. Трубы дорожные водопропускные. Технические требования
ГОСТ 33146-2014. Межгосударственный стандарт. Дороги автомобильные общего пользования. Трубы дорожные водопропускные. Методы контроля
ГОСТ Р 55614-2013. Национальный стандарт Российской Федерации. Контроль неразрушающий. Толщиномеры ультразвуковые. Общие технические требования
ГОСТ Р 58654-2019. Национальный стандарт Российской Федерации. Дороги автомобильные общего пользования. Трубы металлические гофрированные спиральновитые. Технические условия
ГОСТ Р 55877-2013. Национальный стандарт Российской Федерации. Трубы и детали трубопроводов из реактопластов, армированных стекловолокном. Методы испытаний. Определение износостойкости внутренней поверхности
ГОСТ 8736-2014. Межгосударственный стандарт. Песок для строительных работ. Технические условия
ГОСТ 9.311-87. Государственный стандарт Союза ССР. Единая система защиты от коррозии и старения. Покрытия металлические и неметаллические неорганические. Метод оценки коррозионных поражений
СП 28.13330.2017. Свод правил. Защита строительных конструкций от коррозии. Актуализированная редакция СНиП 2.03.11-85
СП 34.13330.2012. Свод правил. Автомобильные дороги. Актуализированная редакция СНиП 2.05.02-85*
СП 35.13330.2011. Свод правил. Мосты и трубы. Актуализированная редакция СНиП 2.05.03-84*
В настоящем ОДМ применены следующие термины с соответствующими определениями:
3.1 аварийное (предельное) состояние искусственного дорожного сооружения из спиральновитой металлической гофрированной трубы (СВМГТ): Категория технического состояния сооружения, характеризующаяся повреждениями и деформациями, ведущими к разрушению сооружения и прекращению или ограничению движения транспортных средств.
3.2 агрессивная среда: Среда, вызывающая разрушение материалов и изделий из них или ухудшение их свойств.
3.3 биопереход трубного типа: Искусственное дорожное сооружение, обеспечивающее пропуск мелких животных, пресмыкающихся и земноводных под полотном дороги.
3.4 внешние воздействующие факторы (ВВФ): Явление, процесс или среда, внешние по отношению к изделию или его составным частям, которые вызывают или могут вызвать ограничение или потерю работоспособного состояния изделия в процессе эксплуатации.
3.5 водопропускная труба: Искусственное дорожное сооружение, служащее для пропуска малых расходов воды под насыпью автомобильной дороги, имеющее грунтовую засыпку над сооружением и лоток в уровне дна водотока.
3.6 водосброс: Водопропускное сооружение, предназначенное для сброса воды из верхнего бьефа для предотвращения его переполнения.
3.7 гидроабразивное изнашивание: Процесс отделения материала с поверхности твердого тела в результате воздействия твердых частиц, увлекаемых потоком жидкости, проявляющийся в постепенном изменении размеров тела.
3.8 допустимый износ: Значение износа, при котором изделие сохраняет работоспособность.
3.9 долговечность искусственных дорожных сооружений из СВМГТ: Свойство сооружений сохранять работоспособное состояние до наступления предельного состояния при установленной системе технического обслуживания и ремонта.
3.10 дюкер: Водопропускная труба, имеющая лоток ниже уровня дна водотока и работающая в напорном режиме.
3.11 защитное покрытие СВМГТ: слой из цинка или алюминия, или сплава цинка с алюминием (или иного металлизированного покрытия), изолирующий с двух сторон основной металл трубы от воздействия коррозии, который может быть дополнительно усилен нанесением в заводских условиях полимерной пленки, а также других составов, в том числе вне заводских условий, как с одной, так и с двух сторон трубы.
3.12 износ: Результат изнашивания, определяемый в установленных единицах (значение износа может выражаться в единицах длины, объема, массы и др.).
3.13 износостойкость: Свойство материала оказывать сопротивление изнашиванию в определенных условиях трения, оцениваемое величиной, обратной скорости изнашивания или интенсивности изнашивания.
3.14 капитальный ремонт искусственного дорожного сооружения: Ремонт, связанный с восстановлением или доведением основных технико-экономических показателей и потребительских свойств сооружения до значений, показателей и потребительских свойств, соответствующих присвоенной категории автомобильной дороги или ее участка, которое не влечет за собой изменение класса, категории и (или) первоначально установленных показателей и при котором не требуется изменение границ полосы отвода автомобильной дороги.
3.15 коррозия: Разрушение металлов вследствие химического или электрохимического взаимодействия их с агрессивной средой.
3.16 коррозионный очаг: Участок поверхности металла, на котором сосредоточен коррозионный процесс.
3.17 коррозионная стойкость: Способность металла сопротивляться коррозионному воздействию агрессивной среды.
3.18 критерий отказа: Признак или совокупность признаков нарушения работоспособного состояния сооружения, установленные в нормативно-технической и (или) конструкторской (проектной) документации.
3.19 частично работоспособное состояние искусственных дорожных сооружений из СВМГТ: Состояние сооружения, при котором значения основных параметров, характеризующих способность выполнять заданные функции, соответствуют требованиям нормативно-технической и (или) конструкторской (проектной) документации. При этом имеются деформации и дефекты, приведшие к снижению несущей способности, но отсутствует опасность внезапного разрушения или потери устойчивости. Функционирование сооружения возможно либо при контроле (мониторинге) технического состояния, либо при проведении необходимых мероприятий по восстановлению или усилению конструкций и (или) грунтов основания и последующем мониторинге технического состояния (при необходимости).
3.20 отказ искусственного дорожного сооружения из СВМГТ: Событие, заключающееся в нарушении работоспособного состояния сооружения.
3.21 пешеходный тоннель: Подземное инженерное сооружение для прохода пешеходов под автомобильной дорогой.
3.22 предельный износ: Износ, соответствующий предельному состоянию изнашиваемого изделия или его составной части.
3.23 работоспособное состояние искусственных дорожных сооружений из СВМГТ: Состояние сооружения, при котором значения всех параметров, характеризующих способность выполнять заданные функции, соответствуют требованиям нормативно-технической и (или) конструкторской (проектной) документации.
3.24 расчетный (межремонтный) срок службы искусственного дорожного сооружения из СВМГТ: Установленный в стандартах, строительных нормах, действующих нормативно-правовых документах или в задании на проектирование период использования сооружения по назначению до капитального ремонта и (или) реконструкции с предусмотренным техническим обслуживанием. Расчетный (межремонтный) срок службы отсчитывается от начала эксплуатации сооружения или возобновления его эксплуатации после капитального ремонта или реконструкции.
3.25 спиральновитая металлическая гофрированная труба (СВМГТ): Изделие пустотелое круглого полого поперечного сечения, состоящее из одной секции или собранное из отдельных секций, скрепленных между собой бандажным соединением.
3.26 стойкость изделия к внешним воздействующим факторам (ВВФ): Свойство изделия сохранять работоспособное состояние во время и после воздействия на изделие определенного ВВФ в течение всего срока службы в пределах заданных значений.
3.27 секция СВМГТ: Изделие из листовой стали, изготовленное методом спиральной навивки гофрированного листового металла с образованием замкового соединения.
3.28 сквозная коррозия: Местная коррозия, вызвавшая разрушение металла насквозь.
Настоящая методика предназначена для оценки долговечности искусственных дорожных сооружений, изготовленных из СВМГТ.
Данные, полученные в результате применения настоящей методики, могут использоваться для:
- прогнозирования изменения свойств с течением времени и сравнительного анализа свойств различных типов СВМГТ;
- проведения сертификации и оценке качества защитных покрытий (в том числе инновационных);
- рационального выбора и применения материалов для их ремонта;
- обоснования периодичности и состава регламентов обследования дорожных искусственных сооружений из СВМГТ;
- назначения межремонтных сроков при их эксплуатации.
При подготовке настоящего методического документа учтены основные положения отечественных и зарубежных нормативно-технических документов, регламентирующих применение СВМГТ.
Конструкции искусственных дорожных сооружений из СВМГТ должны быть изготовлены в соответствии с требованиями TP ТС 014/2011, ГОСТ Р 58654, ГОСТ 32871, рекомендациями ОДМ 218.2.087-2017 [1], ОДМ 218.2.001-2009 [2] и обоснованы соответствующими расчетами, подтверждающими их надежную и безопасную работу, в соответствии с СП 35.13330.2011, СП 34.13330.2012.
С учетом положений ГОСТ 33161, из СВМГТ могут быть изготовлены следующие искусственные дорожные сооружения:
- искусственные сооружения в теле насыпи (водопропускная труба, дюкер, биопереход трубного типа, водосброс или труба иного назначения);
- тоннельные сооружения (тоннель пешеходный).
Основные ВВФ агрессивной среды, по ГОСТ 26883 и ГОСТ 21964, вызывающей разрушение искусственных дорожных сооружений из СВМГТ и влияющие на их долговечность, разделяются на климатические и природные.
На все виды искусственных дорожных сооружений из СВМГТ оказывают существенное влияние следующие ВВФ:
- коррозионная активность атмосферного воздуха (воздействует на внутреннюю поверхность);
- коррозионная активность водно-грунтовой среды (воздействует на внутреннюю и внешнюю поверхность).
Наиболее существенным фактором, оказывающим влияние на водопропускные трубы из СВМГТ, является водный поток с частицами грунта, протекающий внутри трубы. За счет этого происходит гидроабразивное изнашивание защитного покрытия, а после его предельного износа - изнашивание и коррозия металла трубы.
Влияние других механических факторов в настоящем документе не рассматривается.
Степень агрессивного воздействия на поверхности искусственных дорожных сооружений из СВМГТ, рекомендуется принимать по таблице Х.3 СП 28.13330.2017.
Жидким стоком, протекающим внутри искусственных дорожных водопропускных сооружений из СВМГТ и вызывающим их гидроабразивное изнашивание, является постоянный сток малых рек, ручьев, а также стоки периодических водотоков.
С целью прогнозирования долговечности водопропускных сооружений из СВМГТ рекомендуется рассматривать воздействие на них постоянных водотоков, как имеющих наибольшее влияние (из-за того, что они воздействуют в течении всего года).
Поэтому для определения объема стоков, пропускаемых через водопропускные сооружения из СВМГТ, рекомендуется применять данные по расчетам стоков малых равнинных рек Российской Федерации, являющихся наиболее характерными и расположенными в границах возможного применения СВМГТ с учетом климатических особенностей.
Для определения объема ежегодного стока реки, необходимо определить ежемесячный максимальный расчетный расход воды, так как среднегодовой объем распределяется неравномерно по месяцам. В качестве расчетных рекомендуется принимать данные для равнинных рек с весенним половодьем.
Наибольший максимальный расчетный расход воды согласно [3] наблюдается в период весеннего снеготаяния и половодья в период с апреля по май, наименьший - в период межени с января по март, с июня по сентябрь и с октября по декабрь, с некоторым повышением расхода в период осеннего паводка в октябре.
Максимальный расчетный расход воды Qiмес для каждого месяца определяется по формуле (1):
Qiмес=Qmax·kп, м3/с (1)
где kп - переходный коэффициент из таблицы 2.
|
Месяцы |
I |
II |
III |
IV |
V |
VI |
VII |
VIII |
IX |
X |
XI |
XII |
|
Значение переходного коэффициента |
0,1 |
0,15 |
0,7 |
1,0 |
0,5 |
0,4 |
0,15 |
0,1 |
0,1 |
0,1 |
0,1 |
0,1 |
Максимальный расчетный расход воды определяется согласно методикам гидравлических расчетов по ОДМ 218.2.082-2017 [4], либо другим действующим методическим, нормативно-техническим документам и материалам для проектирования, с учетом диаметра водопропускной трубы, безнапорного режима ее работы и вероятностью превышения по СП 35.13330.2011.
Исходя из расхода воды, для каждого месяца определяется объем месячного речного стока Wiмес, м3, по формуле (2):
Wiмес=Qiмес·t, м3 (2)
где t - время, с, равное для месяцев с 28, 30 и 31 днями соответственно 2 419 200; 2 592 000 и 2 678 400.
С использованием данных об объемах месячного стока можно вычислить годовой сток воды Wгод, м3, который проходит через водопропускную трубу (3).
Wгод=∑Wiмес, м3 (3)
Гидроабразивный износ поверхностей внутри водопропускных сооружений из СВМГТ вызываются частицами грунта, которые транспортируются водным потоком (влекомые наносы).
Поэтому для определения состава и массы этих частиц грунта, рекомендуется применять данные характеристик стоков отечественных рек.
Такими данными являются карты-схемы мутности рек, в которых указывается их мутность, то есть массовое содержание влекомых наносов на единицу объема годового стока реки.
Показатели мутности рек составляют: минимальные - от 150 до 1000 г/м3, средние - более 1 000 до 2 500 г/м3, высокие - свыше 2 500 г/м3. При этом мутность воды более 2 500 г/м3 характерна для горных рек. Такие реки транспортируют весьма крупные наносы, в них наблюдается образование селей. При наличии данных условий устройство водопропускных сооружений из СВМГТ не рекомендуется.
В качестве расчетных показателей по гидроабразивному износу принимается мутность, равная 1000 г/м3 для равнинных рек, оказывающих наиболее характерное воздействие на водопропускные сооружения из СВМГТ.
Карта-схема мутности рек и распределения температуры воздуха наиболее холодной пятидневки обеспеченностью 0,92 приведена на рисунке 2. Данная схема позволяет определить ориентировочные значения мутности рек на территории Российской Федерации и границы применения СВМГТ.
Расчетные данные по гранулометрическому составу (крупности) наносов и их содержанию по массе приведены в таблице 3.
Минимальные значения соответствуют периоду межени, средние - периоду паводка, максимальные - периоду половодья.
Наибольший гидроабразивный износ защитного покрытия водопропускных труб вызывают частицы влекомых наносов с размерами более 0,1 мм. Частицы глины и ила менее 0,02-0,1 мм не вызывают износа покрытия.
Средняя скорость равнинных рек составляет около 2 м/с, поэтому речной поток способен транспортировать (переносить) частицы размером до 1,0 мм.
Доля влекомых наносов в твердом стоке в межень осредненного, по наиболее характерным равнинным рекам РФ, водного потока не превышает 15%, а при максимальных расходах составляет всего 4% от общего твердого стока [5].
Годовую массу влекомых наносов воды, которая переносится годовым стоком через водопропускное сооружение заданного диаметра и вызывает его гидроабразивный износ, рекомендуется рассчитывать для показателей мутности равнинных рек и скорости течения потока воды не более 2 м/с.

Рисунок 2 - Карта-схема мутности рек и распределения температуры наиболее холодной пятидневки
|
Наименование взвешенных частиц |
Диаметр, мм |
Минимальное значение содержания частиц по массе, г в межень: январь-март, июнь-сентябрь, ноябрь - декабрь |
Среднее значение содержания частиц по массе, г в паводок: октябрь |
Максимальное значение содержания частиц по массе, г в половодье: апрель-май |
|
Глина |
до 0,001 |
116 |
338 |
0 |
|
Ил |
0,005-0,001 |
78 |
79 |
0 |
|
0,01-0,005 |
116 |
145 |
27 | |
|
0,05-0,01 |
183 |
250 |
160 | |
|
0,05-0,1 |
42 |
19 |
76 | |
|
Песок мелкий |
0,1-0,2 |
103 |
17 |
210 |
|
Песок средний |
0,2-0,5 |
303 |
42 |
320 |
|
Песок крупный |
0,5-1,0 |
59 |
110 |
34 |
|
Гравий мелкий |
1,0-2,0 |
0 |
0 |
12 |
|
Гравий средний |
2,0-5,0 |
0 |
0 |
0 |
|
Гравий крупный |
5,0-10,0 |
0 |
0 |
33 |
|
Галька мелкая |
10,0-20,0 |
0 |
0 |
128 |
Определяется масса месячного стока влекомых наносов, проходящих за год через трубу. Для этого сначала определяется масса месячного стока взвешенных наносов (4):
, т (4)
где MГ - мутность рек (определяется по схеме на рисунке 2, для равнинных рек определяется из расчета 1000 г/м3),
- масса взвешенных наносов в месяц, т.
Используя таблицу 3, масса месячного стока влекомых наносов
, т, для каждого месяца вычисляется по формуле (5):
, т (5)
где kw - доля взвешенных наносов (kw=0,96 в месяцы половодья, kw=0,85 - в месяцы межени).
Масса годового стока влекомых наносов
равна сумме масс ежемесячного стока влекомых наносов
(6):
, т (6)
Полученные данные воздействия стоков рек рекомендуется использовать при подборе абразивных материалов для проведения лабораторных испытаний на долговечность при оценке гидроабразивного изнашивания СВМГТ.
Из работоспособного состояния искусственные дорожные сооружения переходят в ограниченно-работоспособное состояние. Из ограниченно-работоспособного состояния в результате отказов сооружения переходят в предельное (аварийное) состояние.
Критериями отказа искусственных дорожных сооружений из СВМГТ являются параметры, которые определяют работоспособность сооружения (изделия) в целом, а также отдельных его элементов: защитного покрытия, материала трубы. Эти параметры или совокупность признаков нарушения работоспособного состояния искусственных дорожных сооружений устанавливаются в нормативно-технической и (или) конструкторской (проектной) документации. Общие критерии для назначения категорий дефектов и отказов для дорожных искусственных сооружений из СВМГТ рекомендуется принимать по таблице 1 ГОСТ 33146.
Основным критерием отказа по долговечности, влияющим на несущую способность искусственного дорожного сооружения из СВМГТ, является коррозия основного металла, которая возникает после того, как корродирует защитное покрытие поверхности трубы.
Площадь коррозионных очагов металла более 10% его площади в несущих элементах с наличием отдельных очагов сквозной коррозии в несущих элементах искусственных дорожных сооружений из СВМГТ считается критическим дефектом по долговечности, при наличии которого остаточный ресурс сооружения можно считать исчерпанным, а общее состояние сооружения - аварийным.
Вид и толщина защитного покрытия СВМГТ должна соответствовать требованиям ГОСТ Р 58654.
Допускается применение дополнительных видов защитных покрытий из полимерных мастик и специальных антикоррозийных составов. Вид, качество и толщина защитных покрытий должны соответствовать проектной документации.
Степень агрессивного жидких неорганических сред, а также уровни абразивного действия водного потока на СВМГТ с учетом его мутности согласно "Справочнику по техническому ресурсу гофрированных стальных труб" [8] и виды рекомендуемых защитных покрытий приведены в таблицах 6 - 7.
|
Средняя годовая температура воздуха, °С |
Характеристика подземных вод |
Степень агрессивного воздействия грунтов ниже уровня подземных вод |
Степень агрессивного воздействия грунтов выше уровня подземных вод |
Вид защитного покрытия | |||
|
в зонах влажности |
при значениях удельного сопротивления грунтов, Ом | ||||||
|
рН |
суммарная концентрация сульфатов и хлоридов, г/л |
до 20 |
св. 20 | ||||
|
До 0 |
До 5 |
Любая |
Среднеагрессивная |
Влажная |
Среднеагрессивная |
Среднеагрессивная |
одиночное |
|
Свыше 5 |
До 5 |
Слабоагрессивная |
Сухая |
Слабоагрессивная |
Слабоагрессивная |
одиночное | |
|
Свыше 5 |
Свыше 5 |
Среднеагрессивная |
Нормальная |
Среднеагрессивная |
Слабоагрессивная |
одиночное | |
|
Свыше 0 до 6 |
До 5 |
Любая |
Сильноагрессивная |
Влажная |
Сильноагрессивная |
Среднеагрессивная |
одиночное |
|
Свыше 5 |
До 1 |
Слабоагрессивная |
Сухая |
Среднеагрессивная |
Слабоагрессивная |
одиночное | |
|
Свыше 5 |
Свыше 1 |
Среднеагрессивная |
Нормальная |
Сильноагрессивная |
Среднеагрессивная |
одиночное | |
|
Свыше 6 |
До 5 |
Любая |
Сильноагрессивная |
Влажная |
Сильноагрессивная |
Сильноагрессивная |
одиночное |
|
Свыше 5 |
До 5 |
Среднеагрессивная |
Сухая |
Среднеагрессивная |
Среднеагрессивная |
одиночное | |
|
Свыше 5 |
Свыше 5 |
Сильноагрессивная |
Нормальная |
Сильноагрессивная |
Среднеагрессивная |
одиночное | |
Применение водопропускных сооружений из СВМГТ при абразивном воздействии уровня 3 (без дополнительных защитных мероприятий) и уровня 4 не рекомендуется.
|
Уровень абразивного воздействия |
Характер абразивного воздействия |
Показатели мутности, г/м3 |
Скорость водного потока |
Вид защитного покрытия |
|
1 |
отсутствует |
До 150 |
Независимо от скорости потока |
одиночное |
|
2 |
слабое |
Более 150 до 1000 |
Не более 2,0 м/с |
одиночное |
|
3 |
умеренное |
Более 1000 до 2500 |
От 2,0 до 4,5 м/с |
двойное |
|
4 |
сильное |
Свыше 2500 |
Более 4,5 м/с |
СВМГТ не применяется |
При наличии блуждающих токов в грунте допускается применение искусственных дорожных сооружений из СВМГТ только с двойным основным защитным покрытием, либо с дополнительным защитным покрытием.
Нанесение дополнительного защитного покрытия из лакокрасочных составов и мастик рекомендуется при применении одиночного защитного покрытия. Вид и характеристики дополнительного защитного покрытия должны быть обоснованы в соответствии с утвержденной проектной (рабочей) документацией. Нанесение осуществляют непосредственно после производства СВМГТ или на строительной площадке перед ее монтажом.
Исправление поверхностных дефектов защитного покрытия, в том числе на участках сварных соединений и торцов СВМГТ, а также окраска элементов и деталей, изготовленных из неоцинкованного листового и фасонного проката, осуществляется путем нанесения цинксодержащего лакокрасочного покрытия по ГОСТ 9.307 (минимальной толщиной 90 мкм, с массовой долей цинка в сухой пленке от 80 до 85%), а при двойном защитном покрытии - битумными гидроизоляционными мастиками по ГОСТ 30693 (после восстановления поверхностных дефектов металлизированного покрытия).
Долговечность искусственных дорожных сооружений из СВМГТ определяется степенью агрессивности ВВФ и устойчивостью к ней защитных покрытий, а также толщиной и составом металла СВМГТ. Долговечность сооружений должна обеспечивать установленные межремонтные сроки.
В Российской Федерации межремонтные сроки по капитальному ремонту и ремонту автомобильных дорог федерального значения устанавливаются в настоящее время постановлением Правительства РФ от 30.05.2017 г. N 658 "О нормативах финансовых затрат и Правилах расчета размера бюджетных ассигнований федерального бюджета на капитальный ремонт, ремонт и содержание автомобильных дорог федерального значения" [9].
Состав и вид работ при ремонте и капитальном ремонте автомобильных дорог общего пользования федерального значения устанавливается Приказом Минтранса от 16.11.2012 г. N 402 "Об утверждении Классификации работ по капитальному ремонту, ремонту и содержанию автомобильных дорог" [10].
Расчетный срок службы искусственных дорожных сооружений из СВМГТ равен нормативному межремонтному сроку для капитального ремонта и составляет для дорог I - IV категорий 24 года, а для дорог V категории - 10 лет.
Ремонтный срок службы СВМГТ равен нормативному межремонтному сроку для ремонта и составляет для дорог I - IV категорий 12 лет, а для дорог V категории - 5 лет.
На основании указанных выше нормативно-правовых документов, в таблице 8 приведены межремонтные сроки искусственных дорожных сооружений из СВМГТ с учетом их дефектов.
|
Цифровые индексы категорий дефектов/их характер |
Наименование дефектов и состояния сооружения по ГОСТ 33146 |
Вид ремонта |
Периодичность проведения через, лет | |
|
Категории дороги | ||||
|
I- IV |
V | |||
|
1/Дефекты, которые влияют на долговечность конструкции несущественно. Их негативное влияние может сказаться в перспективе |
Повреждение окрасочного слоя на отдельных участках без коррозии металла. Мелкие погнутости элементов. Состояние работоспособное |
ремонт |
12 |
5 |
|
2/Дефекты, в значительной степени влияющие на долговечность конструкции |
Площадь коррозионных очагов металла до 10% его площади в несущих элементах с наличием отдельных очагов сквозной коррозии. Усталостные и другие трещины в главных элементах. | |||
|
3/Дефекты, при наличии которых остаточный ресурс можно считать исчерпанным |
Площадь коррозионных очагов металла 10% и более его площади в несущих элементах с наличием отдельных очагов сквозной коррозии. Усталостные и другие трещины в главных элементах. |
капитальный ремонт |
24 |
10 |
Таким образом, оценку долговечности искусственных дорожных сооружений из СВМГТ рекомендуется проводить для их расчетного (до капитального ремонта) и ремонтного сроков службы с определением коррозионной стойкости для всех видов искусственных дорожных сооружений, а для водопропускных сооружений, кроме этого - с определением их стойкости к гидроабразивному износу.
В таблице 9 приведены значения показателей коррозионной стойкости СВМГТ, удовлетворяющие межремонтным срокам в соответствии с действующими требованиями (вне зависимости от коррозионной агрессивности атмосферы и уровня абразивного действия водного потока).
|
Толщина металла СВМГТ, мм |
Скорость коррозии для дорог V категории при межремонтном сроке капитального ремонта 10 лет, не более, мкм/год |
Скорость коррозии для дорог I-IV категории при межремонтном сроке капитального ремонта 24 года, не более, мкм/год |
|
Одиночное защитное покрытие
| ||
|
2,0 |
24 |
10 |
|
2,5 |
29 |
12 |
|
3,0 |
34 |
14 |
|
3,5 |
39 |
16 |
|
4,0 |
44 |
18 |
|
Двойное защитное покрытие
| ||
|
2,0 |
54 |
23 |
|
2,5 |
59 |
25 |
|
3,0 |
64 |
27 |
|
3,5 |
69 |
29 |
|
4,0 |
74 |
31 |
Оценку долговечности искусственных дорожных сооружений из СВМГТ по условиям коррозионной стойкости и прогнозирование сроков их службы рекомендуется осуществлять в специализированных лабораториях, имеющих аккредитацию в данной области в соответствии с действующим законодательством по результатам исследований образцов в соответствии с ГОСТ 30630.2.5.
Образцы вырезаются из готовой секции трубы. Образцы рекомендуется изготавливать по ГОСТ 9.905 в количестве не менее трех с размерами 100х150 мм каждый.
Исследования проводятся в камере соляного тумана, изготовленной по ГОСТ 30630.0.0 в течение не менее 480 ч с последующей визуальной оценкой состояния образцов по ГОСТ 9.311, расчетом коррозионных потерь по ГОСТ 9.040-74 и металлографическим анализом по ГОСТ 1778-70 (ИСО 4967-79).
По результатам исследований оформляется заключение, в котором указывается:
- описание испытуемого материала и/или изделия;
- количество испытуемых образцов;
- размеры каждого испытуемого образца;
- толщина защитных покрытий и металла образцов до и после исследований;
- оценка глубины и характера коррозии образцов;
- любые нарушения целостности поверхности образца;
- другие факторы, которые могли оказать влияние на результат;
- прогнозируемая скорость коррозии образцов;
- прогнозируемый расчетный срок службы образцов;
- дата проведения испытаний.
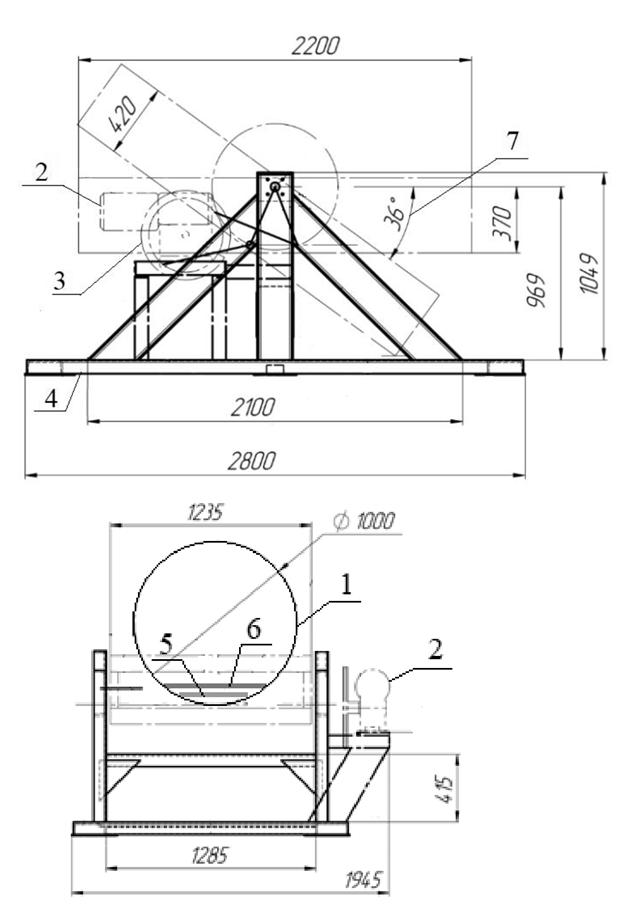
Оценку долговечности искусственных дорожных сооружений из СВМГТ с учетом влияния гидроабразивного износа рекомендуется выполнять с помощью ускоренных испытаний на основе принципов Дармштадской методики по ГОСТ Р 55877. Схема установки для испытаний СВМГТ приведена на рисунке 3. Описание применяемого при испытаниях оборудования, средств измерений, вспомогательных устройств и материалов, приведено в приложении А.

1 - образец; 2 - привод; 3 - круг-эксцентрик; 4 - основание установки; 5 - абразивный материал; 6 - уровень воды; 7 - угол отклонения рамы.
Рисунок 3 - Схема испытательной установки
Образец (рисунок 4) представляет собой часть секции трубы, изготовленной по ГОСТ Р 58654, длиной L=2000±5 мм, диаметром D=1000 мм ±15 мм. Образец с торцов закрывают металлическим листом при помощи сварки, предотвращающими вытекание воды из полости образца.

Рисунок 4 - Схема образца для испытаний
Верхняя часть образца должна быть срезана таким образом, чтобы образовалось прямоугольное отверстие для доступа к нижней внутренней поверхности. Размеры отверстия должны быть не менее: длина В=700 мм ±5 мм, ширина K=600 мм ±5 мм.
При проведении испытаний соблюдают следующие условия для помещений:
- температура воздуха (20±5) °С;
- относительная влажность воздуха (60±20)%;
- должно быть исключено воздействие на материал солнечных лучей, нагревательных приборов, а также химическое воздействие.
Испытание заключается в проведении серии разовых испытаний, в каждом из которых выполняется определенное число испытательных циклов. За один цикл качания принимается одно отклонение установки от горизонтального положения.
Количество циклов Nгод, равное одному году эксплуатации водопропускного сооружения в реальных условиях определяется по формуле (7).
, шт. (7)
где m - масса абразивного материала в испытуемом образце трубы, т;
- масса стока влекомых наносов за год, т.
В результате проведенных испытаний установлено, что для СВМГТ диаметром 1,0 м одному году эксплуатации трубы в реальных условиях соответствует примерно 74 000 испытательных циклов.
Количество циклов Nмежрем , равное межремонтному сроку водопропускного сооружения в реальных условиях определяется по формуле (8).
, шт. (8)
где m - масса абразивного материала в испытуемом образце трубы, т;
- масса стока влекомых наносов за год, т; n - межремонтный срок, лет (по таблице 8).
После каждого разового испытания вычисляют среднее значение износа в контрольных точках по формуле (9):
, мкм (9)
где ai - износ в каждой контрольной точке, мкм; n - количество контрольных точек (не менее пяти).Результаты измерений записывают, фиксируя также любые признаки повреждения внутренней поверхности образца (трещины, раковины, расслоения и т.п.).
Определяют среднее значение износа acp, мкм, для каждого разового испытания номера k.
После завершения измерений в каждом разовом испытании вновь заполняют образец гидроабразивным составом и продолжают испытания.
Результаты испытаний выражают в табличной или графической форме в виде зависимости среднеарифметического значения износа от числа испытательных циклов.
Порядок проведения испытаний представлен в приложении Б.
По результатам испытаний оформляется заключение, в котором указывается:
- описание испытуемого материала и/или изделия;
- количество испытуемых образцов;
- размеры каждого испытуемого образца;
- толщина защитных покрытий и металла образцов до и после исследований;
- оценка глубины и характера коррозии образцов;
- прогнозируемый расчетный срок службы образцов;
- значение каждого отдельного измерения, среднее значение и метод, которым оценивается износ;
- средний износ для каждого разового испытания;
- любые нарушения целостности поверхности образца;
- другие факторы, которые могли оказать влияние на результат;
- дату проведения испытаний.
Приложение А
Испытательная установка, пример общего вида которой показан на рисунке А.1, включает в себя устанавливаемую на неподвижное основание двухходовую траверсу (раму) с приводом, обеспечивающим возможность ее наклона относительно горизонтальной оси вращения, находящейся посередине длины образца, на углы
±36°, ±32°, ±28,4°, ±25° с постоянной скоростью качания 26±2 испытательных циклов в минуту.
За один цикл принимается одно отклонение установки от горизонтального положения.

Рисунок A.1 - Пример общего вида установки для проведения испытаний СВМГТ на гидроабразивный износ
Износ внутренней поверхности СВМГТ происходит за счет перемещения в нем гидроабразивного материала из-за колебательных движений образца, закрепленного в раме установки (рисунок А.2). За один цикл принимается одно отклонение установки от горизонтального положения.

Рисунок А.2 - Колебательные движения установки
В установке должны быть предусмотрены устройства для закрепления образца, исключающие его возможные смещения в течение всего времени испытаний.
Амплитуда колебательного движения рамы должна быть таковой, чтобы обеспечить перемещение гидроабразивного материала по нижней части образца. Для достижения полного перемещения гидроабразивного материала требуются различные углы наклона установки. Чем больше размеры гофра образца, тем больше требуется угол отклонения от горизонтали.
Для гофра с размерами 125х26 мм рекомендуется угол наклона 36°, для гофра с размерами 68х13 мм рекомендуется угол наклона 25°.
Регулировка требуемого угла наклона осуществляется при помощи настройки работы эксцентрика. Регулировка положения наклона подвижной части зависит от установки подвижного рычага в круге-эксцентрике. Рекомендуется использовать два положения (рисунок А.3).

Рисунок А.3 - Расположение отверстий на круге-эксцентрике для различных углов наклона рамы установки
Для регулировки угла наклона подвижной части необходимо переставить подвижный рычаг в отверстие на эксцентрике, соответствующее необходимому углу наклона рамы установки.
Установка оборудуется электромагнитным счетчиком циклов "СИ1 Р1Щ". Счетчик устанавливается в электрощит, пример общего вида электрощита приведен на рисунке А.4.

Рисунок А.4 - Пример общего вид электрощита с установленным в него счетчиком
Счетчик импульсов предназначен для подсчета циклов качаний. Рекомендуются следующие технические характеристики счетчика:
- Напряжение питания – (220±15%) V AC
- Потребляемая мощность - не более 4 VA
Суммарное потребление всех подключенных датчиков (1...3 шт.) - не более 30 мА
- Количество релейных выходов - 1 (переключающий)
- Напряжение на нагрузке - не более 240V AC; 60V DC
- Ток нагрузки - не более 1А (cosφ=0,7)
- Диапазон рабочих температур - 0 .. .+60°С
- Количество входов - 3
- Длительность счетного импульса - не менее 1,5 мс
- Период следования счетных импульсов - не менее 2,5 мс
- Частота следования счетных импульсов - не более 400 Гц
- Диапазон задания установки счета - 999.999.. .9999.999
- Множитель показаний счетчика (индикатора) - 0,001...9999.999
- Диапазон задания времени антидребезга - 0,25 мс; 1.. .999 мс
- Дискретность установки времени антидребезга - 1 мс
- Степень защиты по ГОСТ 14254 - IP20
- Защита выхода от короткого замыкания +12 V DC.
Рекомендуемые режимы работы счетчика: прямой счет, обратный счет, реверсивный счет.
Типы входных устройств счетчика:
- бесконтактные датчики, имеющие на выходе транзисторные ключи PNP или NPN типа;
- элементы или устройства, имеющие "сухой" контакт (кнопки, выключатели, герконы, контакты реле с минимальным допустимым коммутируемым током не более 2 мА и напряжением на разомкнутых контактах 10...30 В);
- другие типы датчиков или устройств с выходным напряжением высокого уровня 10...30В, низкого уровня 0...0,8 В. Для этих типов датчиков обеспечивается гальваническая развязка от СИ с электрической прочностью изоляции не менее 1500 В.
Устройство управления должно обеспечивать установленную скорость наклона рамы, регистрацию количества испытательных циклов в пределах устанавливаемых углов наклона и включение/выключение привода после достижения установленного числа испытательных циклов.
Рекомендации к гранулометрическому составу применяемого при испытаниях абразивного материала представлены в таблице А.1.
|
Размер фракций, мм |
Процентное соотношение, % |
|
1,0 - 2,0 |
≤5 |
|
0,5 - 1,0 |
50±5 |
|
0,25 - 0,5 |
25±5 |
|
0,1 - 0,25 |
25±5 |
Объем воды для абразивного материала воздушно-сухого состояния по ГОСТ 22733 и массу абразива определяют в соответствии с таблицей А.2, при этом расстояние от поверхности воды до поверхности трубы должно составлять 38±2 мм. Для проведения испытаний применяют воду по ГОСТ 23732, абразивный материал - песок по ГОСТ 8736.
|
Размер гофра, мм |
Масса абразива, кг |
Объем воды, л |
|
68x13 |
18,9 |
7,8 |
|
125x26 |
19,02 |
7,9 |
Измерение износа внутренней поверхности образца производят толщиномером по ГОСТ Р 55614.
Приложение Б
Испытание заключается в проведении серии испытаний, в каждой из которых выполняется определенное число испытательных циклов качания образца.
Перед началом испытания по ГОСТ Р ИСО 16809 толщиномером измеряют начальную толщину антикоррозионного покрытия и металла образца в контрольных точках.
Затем раме испытательной установки придают горизонтальное положение, устанавливают в ней подготовленный образец и закрепляют его в раме.
Образец заполняют абразивным материалом и водой. Абразивный материал равномерно распределяют в нижней части образца.
Запускают привод рамы со скоростью качаний 26±2 испытательных циклов в минуту, обеспечивая наклоны образца на угол относительно горизонтальной плоскости в соответствии с высотой гофра. Для гофра 68x13 мм устанавливается угол 25°, а для гофра 125x26 мм - угол 36°.
После выполнения серии из 74 000 циклов испытаний (либо в соответствии с количеством, установленным программой), производят измерение износа в контрольных точках, указанных на рисунке Б.1.
Все точки располагаются на внутренней поверхности нижней части образца по его оси.
Точки 1 и 5 располагаются на середине высоты гофра, точка 3 - на вершине гофра, точка 2 - посередине линии между точкой 1 и 3, точка 4 - посередине линии между точками 3 и 5.

Рисунок Б.1 - Схема расположения контрольных точек измерения износа образца (размеры приведены в мм)
Для этого привод установки выключается, установку переводят в наклонное положение, образец очищается от абразивного материала и воды.
Для каждой точки проводят пять измерений. Среднее из пяти измерений значение записывается в протокол испытаний.
После проведения измерений образец вновь заполняют абразивным материалом и водой и начинают выполнение следующей серии испытаний.
Библиография
[1] ОДМ 218.2.087-2017 Рекомендации по проектированию и строительству водопропускных сооружений из спиральновитых металлических гофрированных труб
[2] ОДМ 218.2.001-2009 Рекомендации по проектированию и строительству водопропускных сооружений из металлических гофрированных структур на автомобильных дорогах общего пользования с учетом региональных условий (дорожно-климатических зон)
[3] Пособие к СНиП 2.05.03-84 "Мосты и трубы" по изысканиям и проектированию железнодорожных и автодорожных мостовых переходов через водотоки (ПМП-91). - Москва, 1992
[4] ОДМ 218.2.082-2017 Методические рекомендации по проведению гидравлических расчетов малых ИССО на автомобильных дорогах
[5] А.В. Караушев Теория и методы расчета речных наносов. - Ленинград: Гидрометеоиздат, 1977 г. - 272 с.
[6] ISO 4998:2014 Международный стандарт Сталь углеродистая тонколистовая с покрытием, нанесенным непрерывным методом горячего цинкования, торгового качества и для вытяжки (Continuous hot-dip zinc-coated and zinc-iron alloy-coated carbon steel sheet of structural quality)
[7] DIN EN 10346-2015 Европейский стандарт Прокат плоский стальной для холодной штамповки с непрерывным покрытием, нанесенным методом погружения в расплав. Технические условия поставки (Continuously hot-dip coated steel flat products for cold forming. Technical delivery conditions)
[8] CSP Durability Guide / National Corrugated Steel Pipe Association. - Washington, 2000// Справочник по техническому ресурсу гофрированных стальных труб. НАПГСТ. - Вашингтон, 2000
[9] Постановление Правительства РФ от 30.05.2017 г. N 658 "О нормативах финансовых затрат и Правилах расчета размера бюджетных ассигнований федерального бюджета на капитальный ремонт, ремонт и содержание автомобильных дорог федерального значения"
[10] Приказ Минтранса от 16.11.2012 г. N 402 "Об утверждении Классификации работ по капитальному ремонту, ремонту и содержанию автомобильных дорог", утвержденный Постановлением Правительства РФ от 16.11.2012 г. N 402


