СП 440.1325800.2023 СПОРТИВНЫЕ СООРУЖЕНИЯ. ПРОЕКТИРОВАНИЕ ЕСТЕСТВЕННОГО И ИСКУССТВЕННОГО ОСВЕЩЕНИЯ
Утв. и введен в действие Приказом Министерства строительства и жилищно-коммунального хозяйства РФ от 18 декабря 2023 г. N 938/пр
Sports constructions. Daylighting and artificial lighting design
Дата введения - 19 января 2024 года
Предисловие
Сведения о своде правил
1 ИСПОЛНИТЕЛИ - федеральное государственное бюджетное учреждение "Научно-исследовательский институт строительной физики Российской академии архитектуры и строительных наук" (НИИСФ РААСН), Общество с ограниченной ответственностью "ЦЕРЕРА-ЭКСПЕРТ" (ООО "ЦЕРЕРА-ЭКСПЕРТ")
2 ВНЕСЕН Техническим комитетом по стандартизации ТК 465 "Строительство"
3 ПОДГОТОВЛЕН к утверждению Департаментом градостроительной деятельности и архитектуры Министерства строительства и жилищно-коммунального хозяйства Российской Федерации (Минстрой России)
4 УТВЕРЖДЕН приказом Министерства строительства и жилищно-коммунального хозяйства Российской Федерации от 18 декабря 2023 г. N 938/пр и введен в действие с 19 января 2024 г.
5 ЗАРЕГИСТРИРОВАН Федеральным агентством по техническому регулированию и метрологии (Росстандарт). Пересмотр СП 440.1325800.2018 "Спортивные сооружения. Проектирование естественного и искусственного освещения"
В случае пересмотра (замены) или отмены настоящего свода правил соответствующее уведомление будет опубликовано в установленном порядке. Соответствующая информация, уведомление и тексты размещаются также в информационной системе общего пользования - на официальном сайте разработчика (Минстрой России) в сети Интернет
Введение
Настоящий свод правил разработан в целях выполнения требований Федерального закона от 30 декабря 2009 г. N 384-ФЗ "Технический регламент о безопасности зданий и сооружений" и в соответствии с федеральными законами от 23 ноября 2009 г. N 261-ФЗ "Об энергосбережении и о повышении энергетической эффективности и о внесении изменений в отдельные законодательные акты Российской Федерации", от 22 июля 2008 г. N 123-ФЗ "Технический регламент о требованиях пожарной безопасности", от 23 июля 2013 г. N 192-ФЗ "О внесении изменений в отдельные законодательные акты Российской Федерации в связи с обеспечением общественного порядка и общественной безопасности при проведении официальных спортивных соревнований" и СП 52.13330 "СНиП 23-05-95* Естественное и искусственное освещение".
Настоящий свод правил устанавливает правила проектирования естественного и искусственного освещения спортивных сооружений.
Настоящий свод правил разработан авторским коллективом федерального государственного бюджетного учреждения "Научно-исследовательский институт строительной физики Российской академии архитектуры и строительных наук" (канд. техн. наук И.А. Шмаров, В.В. Земцов, Л.В. Бражникова, канд. техн. наук Е.В. Коркина) при участии ООО МГК "Световые технологии" (канд. техн. наук А.В. Карев, канд. техн. наук А.А. Богданов), ООО ТПК "Вартон" (С.А. Мордавченков), ООО "Архилайт" (д-р техн. наук С.Г. Никифоров), ООО "ЦЕРЕРА-ЭКСПЕРТ" (Е.А. Литвинская).
Настоящий свод правил распространяется на естественное и искусственное освещение крытых и открытых спортивных сооружений, предназначенных для спортивных мероприятий, соревнований и учебно-тренировочной работы, в том числе для адаптивного спорта, и устанавливает требования к их проектированию, реконструкции и капитальному ремонту.
В настоящем своде правил использованы нормативные ссылки на следующие документы:
ГОСТ 23198 Источники света электрические. Методы измерений спектральных и цветовых характеристик
ГОСТ 34819-2021 Приборы осветительные. Светотехнические требования и методы испытаний
ГОСТ Р 70070 Здания и сооружения. Методы определения коэффициента эксплуатации освещения
СП 50.13330 "СНиП 23-02-2003 Тепловая защита зданий" (с изменениями N 1, N 2)
СП 52.13330.2016 "СНиП 23-05-95* Естественное и искусственное освещение" (с изменениями N 1, N 2)
СП 256.1325800 Электроустановки жилых и общественных зданий. Правила проектирования и монтажа (с изменениями N 1, N 2, N 3, N 4, N 5)
СП 332.1325800.2017 Спортивные сооружения. Правила проектирования (с изменениями N 1, N 2, N 3)
СП 367.1325800 Здания жилые и общественные. Правила проектирования естественного и совмещенного освещения (с изменениями N 1, N 2)
СП 370.1325800 Устройства солнцезащитные зданий. Правила проектирования (с изменением N 1)
Примечание - При пользовании настоящим сводом правил целесообразно проверить действие ссылочных документов в информационной системе общего пользования - на официальном сайте федерального органа исполнительной власти в сфере стандартизации в сети Интернет, на официальном сайте федерального органа исполнительной власти, разработавшего и утвердившего настоящий свод правил, или по ежегодному информационному указателю "Национальные стандарты", который опубликован по состоянию на 1 января текущего года, и по выпускам ежемесячного информационного указателя "Национальные стандарты" за текущий год. Если заменен ссылочный документ, на который дана недатированная ссылка, то рекомендуется использовать действующую версию этого документа с учетом всех внесенных в данную версию изменений. Если заменен ссылочный документ, на который дана датированная ссылка, то рекомендуется использовать версию этого документа с указанным выше годом утверждения (принятия). Если после утверждения настоящего свода правил в ссылочный документ, на который дана датированная ссылка, внесено изменение, затрагивающее положение, на которое дана ссылка, то это положение рекомендуется применять без учета данного изменения. Если ссылочный документ отменен без замены, то положение, в котором дана ссылка на него, рекомендуется применять в части, не затрагивающей эту ссылку. Сведения о действии сводов правил целесообразно проверить в Федеральном информационном фонде стандартов.
В настоящем своде правил применены термины по СП 52.13330, а также следующие термины с соответствующими определениями:
3.1 адаптивный спорт: Вид адаптивной физической культуры, удовлетворяющий потребности личности инвалида в самоактуализации и сопоставлению своих способностей со способностями других людей, имеющих аналогичные проблемы со здоровьем, а также потребности в коммуникативной деятельности и социализации.
3.2 безопасная зона: Определенное место, где эвакуирующиеся люди имеют возможность собраться и где они не подвергаются опасности, вызванной аварийной ситуацией.
3.3 игровая площадка; PA: Игровое поле, необходимое для занятия определенным видом спорта.
Примечания
1 Игровая площадка - размеченная площадка (поле) для данного вида спорта (например, футбола), но в некоторых случаях она включает в себя дополнительную игровую площадь вокруг размеченного поля (например, игровая площадка для тенниса, волейбола, настольного тенниса).
2 Размеры игровых площадок и игровых зон должны быть выбраны при проектировании осветительной установки.
3.4 игровая зона; TA: Зона, включающая в себя игровую площадку и дополнительную зону за пределами игрового поля, предусмотренную для конкретного вида спорта.
3.5
|
категория спортивного сооружения: Соответствие спортивного сооружения требованиям уровня проводимых спортивных мероприятий. [СП 332.1325800.2017, пункт 3.18] |
3.6 класс освещения: Требования к освещению, обеспечивающие уровень комфортного зрительного восприятия спортивных игр и окружающего пространства, соответствующий уровню спортивных мероприятий.
3.7 комфортное освещение: Освещение, обеспечивающее комфортное восприятие пространства и решение зрительных задач, соответствующее уровню развития технологии освещения.
3.8 контрольная площадка: Площадка, на которую накладывается сетка контрольных точек для выполнения расчетов и (или) измерений.
Примечания
1 Размеры контрольной площадки обычно совпадают с размерами игровой площадки для соответствующего вида спорта, а в некоторых случаях зависят от уровня спортивного мероприятия.
2 Для большинства видов спорта контрольная площадка ограничена прямоугольником, расположенным в горизонтальной плоскости на уровне земли.
3.9 коэффициент слепящей блескости RG, относительные единицы: Коэффициент, характеризующий прямую слепящую блескость спортивного освещения в открытых спортивных сооружениях при любой высоте и в крытых спортивных сооружениях при высотах 7 м и более, вычисляемый по формуле
, (3.1)
где Lvl - суммарная вуалирующая яркость, вызванная осветительной установкой и определяемая суммой вуалирующих яркостей от каждого светильника (Lvl = Lv1 + Lv2 + ,..., Lvn), кд/м2. Вуалирующую яркость каждого светильника вычисляют по формуле
Lν = 10(Ееуе·θ-2) (3.2)
здесь Eeye - освещенность на зрачке наблюдателя в плоскости, перпендикулярной линии зрения (2° ниже горизонтали, см. рисунок 3.1), лк;
θ - угол между линией зрения наблюдателя и направлением падения света на зрачок наблюдателя, градусы;
Lve - эквивалентная вуалирующая яркость фона (окружения), кд/м2.

1 - линия зрения; 2 - плоскость глаз наблюдателя
Рисунок 3.1
Эквивалентную вуалирующую яркость фона определяют по формуле
Lνe = 0,035·ρ·Ег/π, (3.3)
где Eг - средняя горизонтальная освещенность поверхности;
ρ - средний коэффициент отражения окружающих поверхностей; в случаях, когда он не известен, принимают равным 0,15.
3.10
|
ледовая арена: Универсальное крытое спортивное сооружение с ледовой площадкой и трибунами для зрителей, предназначенное для проведения спортивных мероприятий, а также концертно-зрелищных и массовых мероприятий. [СП 332.1325800.2017, пункт 3.22] |
3.11
|
маломобильные группы населения; МГН: Люди, испытывающие затруднения при самостоятельном передвижении, получении услуги, необходимой информации или при ориентировании в пространстве. К маломобильным группам населения для целей настоящего свода правил здесь отнесены: инвалиды, люди с временным нарушением здоровья, люди с нарушением интеллекта, люди старших возрастов, беременные женщины, люди с детскими колясками, с малолетними детьми, тележками, багажом и т.п. [СП 59.13330.2020, пункт 3.13] |
3.12
|
многофункциональный спортивный комплекс: Крытый объект спорта, позволяющий при условии трансформации, проводить спортивные мероприятия по различным видам спорта, концертно-зрелищные и массовые мероприятия. [СП 332.1325800.2017, пункт 3.23] |
3.13 общий индекс цветопередачи Ra: Мера степени отклонения цвета объекта при освещении источником излучения по сравнению с цветом объекта при освещении эталонным источником излучения.
3.14 объединенный показатель дискомфорта RUG, относительные единицы: Критерий оценки дискомфортной блескости, вызывающей неприятные ощущения при неравномерном распределении яркостей в поле зрения, определяемый по формуле
, (3.4)
где Li - яркость блеского источника, кд/м2;
ωi - угловой размер блеского источника, стерадиан;
pi - индекс позиции блеского источника относительно линии зрения;
Lа - яркость адаптации, кд/м2.
Примечание - Показатель используют для помещений при высотах установки осветительных приборов до 7 м.
3.15 освещение телевизионной трансляции: Освещение для обеспечения качественной телевизионной трансляции спортивного мероприятия, проектируемое на спортивном сооружении при наличии данного условия в задании на проектирование.
3.16 продолжительность работы аварийного освещения: Время, в течение которого обеспечивается нормируемая освещенность аварийного освещения.
3.17 расчетная продолжительность работы аварийного источника электрического снабжения: Продолжительность работы, на которую рассчитан аварийный источник электрического снабжения при нормальных условиях эксплуатации.
3.18 сетка контрольных точек: Совокупность контрольных точек, в которых проводят расчеты нормируемых показателей.
Примечание - Число контрольных точек определяется размерами игровой площадки и игровой зоны.
3.19
|
спортивное соревнование: Состязание (матч) среди спортсменов или команд спортсменов по различным видам спорта (спортивным дисциплинам) для выявления лучшего участника состязания (матча), проводимое по положению (регламенту), утвержденному его организатором. [СП 332.1325800.2017, пункт 3.36] |
3.20
|
спортивные мероприятия: Спортивные соревнования и тренировочные мероприятия, включающие в себя теоретическую и организационную части, и другие мероприятия по подготовке к спортивным соревнованиям с участием спортсменов. [СП 332.1325800.2017, пункт 3.37] |
3.21 средняя освещенность Eср, лк: Среднее арифметическое значение, определяемое на основе значений освещенности в контрольных точках расчетной сетки.
3.22 уровень спортивного мероприятия: Признак, показывающий соответствие соревнования (мероприятия) определенному порядку (регламенту), утвержденному соответствующей федерацией, союзом, ассоциацией или положением о проведении определенного соревнования.
Примечание - Уровни соревнований определяются следующим образом: международный, всероссийский, межрегиональный, региональный, межмуниципальный, муниципальный.
3.23 частный индекс цветопередачи R9: Индекс контрольного цвета образца R9, спектральная характеристика отражения которого соответствует насыщенному красному цвету и который возможно воспроизвести как светодиодными, так и разрядными источниками света.
Примечания
1 Расчетный частный индекс цветопередачи на основе образца R9, при освещении его исследуемым источником света с известной коррелированной цветовой температурой, характеризует количественное содержание красного цвета в отраженном сигнале, а также отличие от цветности отраженного сигнала стандартного источника с такой же цветовой температурой (до 5000 К - источника Планка, более 5000 К - источника типа D (дневного света)).
2 Расчет выполняют по ГОСТ 23198.
4.1 Комфортное освещение спортивных сооружений должно обеспечивать:
- необходимые условия для видимости спортивной площадки, игровых предметов, ближайшего окружающего игровую зону пространства для спортсменов, судей, обслуживающего персонала, зрителей на трибунах и телезрителей;
- достаточную освещенность и цветопередачу телевизионных трансляций спортивных игр, если это предусматривается заданием на проектирование;
- ограничение слепящего и дискомфортного действия осветительных приборов;
- антипаническое эвакуационное освещение для предотвращения паники и несчастных случаев при отключении рабочего искусственного освещения и обеспечения безопасного подхода к путям эвакуации;
- видимость путей эвакуации для обеспечения возможности выхода людей из спортивного сооружения в случае возникновения чрезвычайной ситуации.
4.2 При составлении задания на проектирование системы освещения спортивного сооружения и выборе нормируемых характеристик необходимо учитывать правила и технические регламенты общероссийских спортивных федераций, отдавая им приоритет.
4.3 Освещение основных помещений физкультурно-оздоровительных комплексов (ФОК), спортивных сооружений по видам спорта и многофункциональных спортивных сооружений, в том числе спортивных залов, бассейнов, ледовых арен, следует выполнять в соответствии с разделами 5 и 6.
Освещенности комфортного освещения в спортивных сооружениях не могут быть ниже значений, приведенных в [1] для аналогичных спортивных помещений.
4.4 В зависимости от значимости проводимых спортивных мероприятий предусматривают три класса освещения спортивных сооружений, указанные в таблице 4.1.
|
Категория спортивного сооружения (стадионы, ледовые арены, многофункциональные спортивные комплексы) |
Уровень соревнования, спортивно-массового мероприятия |
Класс освещения | ||
|
I |
II |
III | ||
|
A |
Международные и всероссийские физкультурные мероприятия и спортивные соревнования |
+ | ||
|
B |
Межрегиональные физкультурные мероприятия и спортивные мероприятия, а также физкультурные мероприятия и спортивные мероприятия субъекта Российской Федерации |
+ |
+ | |
|
C |
Местные физкультурные мероприятия и спортивные мероприятия |
+ |
+ |
+ |
|
Тренировки |
+ |
+ | ||
|
Отдых (оздоровительные соревнования и спортивное обучение) |
+ | |||
|
Примечание - Категории спортивных сооружений приведены по СП 332.1325800. | ||||
4.5 Нормативные показатели помещений для адаптивного спорта принимают по классу освещения I.
4.6 Проектирование освещения осуществляется с применением комплексных автоматических систем управления освещением на основе управляемых (диммируемых) осветительных приборов и элементов систем управления освещением (контроллеры, датчики, периферийные устройства и пр.).
4.7 При проектировании естественного и искусственного освещения спортивных сооружений следует вводить коэффициент эксплуатации MF, учитывающий снижение освещенности в процессе эксплуатации осветительных установок (загрязнение остекления, внутренних поверхностей помещения, светильников, снижение светового потока источников света в процессе эксплуатации и т.п.). Значения коэффициентов эксплуатации приведены в таблице 4.2.
|
Спортивные сооружения |
Искусственное освещение |
Естественное освещение | |||||
|
Коэффициент эксплуатации MF |
Коэффициент эксплуатации MF | ||||||
|
Число чисток светильников в год |
Число чисток остекления светопроемов в год | ||||||
|
Эксплуатационная группа светильников по СП 52.13330.2016 (приложение Д) |
Угол наклона светопропускающего материала к горизонту | ||||||
|
I - IV |
V, VI |
VII |
0° - 15° |
16° - 45° |
46° - 75° |
76° - 90° | |
|
Закрытые спортивные сооружения |
0,71 ----- 2 |
0,71 ----- 1 |
0,71 ----- 1 |
0,67 ----- 2 |
0,71 ----- 2 |
0,77 ----- 1 |
0,83 ----- 1 |
|
Открытые спортивные сооружения |
0,63 ----- 2 |
0,67 ----- 2 |
0,67 ----- 1 |
- |
- |
- |
- |
|
Примечания 1 Коэффициент эксплуатации при применении световых приборов со светодиодами следует умножать на коэффициент 1,05. 2 Допускается применять расчетный коэффициент эксплуатации по ГОСТ Р 70070. | |||||||
5.1.1 Искусственное освещение спортивных сооружений подразделяется на рабочее, аварийное, охранное и дежурное.
5.1.2 В настоящем разделе приведены требования к комфортному искусственному освещению спортивных сооружений, отвечающие международному уровню. Минимальные гигиенические требования к искусственному освещению спортивных сооружений приведены в [1].
5.1.3 Для искусственного освещения спортивных сооружений следует применять осветительные приборы и источники света на основе светодиодов и металлогалогенных ламп (дуговых ртутных ламп) с высокочастотными электронными пускорегулирующими аппаратами, соответствующие требованиям [2], и с коррелированной цветовой температурой (КЦТ) от 2500 до 6500 К. Интенсивность ультрафиолетового облучения в диапазоне длин волн 320 - 400 нм не должна превышать 0,03 Вт/м2; наличие в спектре излучения длин волн менее 320 нм не допускается.
5.1.4 Следует применять осветительные приборы с наибольшими значениями световой отдачи и сроком службы, требования к которым приведены в 5.2.11 и 5.3.7. Цветопередача имеет приоритет над энергетической эффективностью.
5.1.5 В помещениях высотой до 4,5 м осветительные приборы со светодиодами должны иметь условный защитный угол не менее 90°, исключающий попадание в поле зрения прямого излучения. Габаритная яркость светильников не должна превышать 5000 кд/м2. Использовать светильники с открытыми светодиодами для общего освещения помещений не допускается. Осветительная арматура должна иметь в своем составе эффективные рассеиватели, снижающие габаритную яркость до вышеуказанных значений.
5.1.6 Требования к рабочему искусственному освещению спортивных сооружений с проведением телевизионных трансляций приведены в 5.5.
5.1.7 Нормативные показатели комфортного освещения крытых спортивных сооружений без проведения телевизионных трансляций, соответствующие международному уровню, приведены в 5.2.
5.1.8 Нормативные показатели комфортного освещения помещений ФОК приведены в 5.2.
5.1.9 Нормативные показатели комфортного освещения открытых спортивных сооружений без проведения телевизионных трансляций, соответствующие международному уровню, приведены в таблице 5.3.
5.1.10 Электрическая часть искусственного освещения должна соответствовать [3] и СП 256.1325800.
Электрические выключатели и регуляторы освещенности осветительных установок в спортивных залах, используемых для адаптивного спорта, должны располагаться на высоте от 0,8 до 1,3 м от пола.
5.1.11 Дежурное и охранное освещение спортивных сооружений проектируют в соответствии с СП 52.13330.
5.2.1 Требования к комфортному искусственному освещению крытых спортивных сооружений по видам спорта приведены в таблице 5.1.
|
Номер позиции |
Класс освещения |
Плоскость нормирования освещенности и КЕО, высота плоскости над полом, м (Г - горизонтальная, В - вертикальная) |
Искусственное освещение |
Естественное освещение |
Совмещенное освещение |
Примечание | ||||||
|
Средняя освещенность рабочих поверхностей, лк, не менее |
Равномерность распределения освещенности U0, не менее |
Коэффициент слепящей блескости RG, не более |
Коэффициент пульсации освещенности, %, не более |
Общий индекс цветопередачи осветительных приборов Ra, не менее |
КЕО eн, % |
КЕО eн, % | ||||||
|
при верхнем или комбинированном освещении |
при боковом освещении |
при верхнем или комбинированном освещении |
при боковом освещении | |||||||||
|
1 Аэробика спортивная, ритмическая гимнастика, спортивная гимнастика, танцевальный спорт, фитнес-аэробика, художественная гимнастика | ||||||||||||
|
1.1 |
I |
Пол - Г-0,0 |
500 |
0,7 |
35 |
5 * |
80 * |
2,5 |
0,7 |
1,5 |
0,4 | |
|
1.2 |
II |
Пол - Г-0,0 |
300 |
0,6 |
40 |
10 * |
80 * | |||||
|
1.3 |
III |
Пол - Г-0,0 |
300 |
0,6 |
40 |
10 * |
80 * | |||||
|
2 Бадминтон | ||||||||||||
|
2.1 |
I |
Пол - Г-0,0 |
750 |
0,7 |
35 |
5 * |
80 * |
- |
1,0 |
- |
0,6 |
Осветительные приборы не должны располагаться на потолке над игровой площадкой |
|
2.2 |
II |
Пол - Г-0,0 |
500 |
0,7 |
40 |
10 * |
80 * | |||||
|
2.3 |
III |
Пол - Г-0,0 |
300 |
0,7 |
40 |
10 * |
80 * | |||||
|
3 Баскетбол | ||||||||||||
|
3.1 |
I |
Пол - Г-0,0 |
750 |
0,7 |
35 |
5 * |
80 * |
2,5 |
0,7 |
1,5 |
0,4 |
Осветительные приборы не должны располагаться над кольцом в круговой зоне диаметром 4 м |
|
3.2 |
II |
Пол - Г-0,0 |
500 |
0,7 |
40 |
10 * |
80 * | |||||
|
3.3 |
III |
Пол - Г-0,0 |
300 |
0,6 |
40 |
10 * |
80 * | |||||
|
4 Бильярд, снукер | ||||||||||||
|
4.1 |
I |
Пол - Г-0,0 |
750 |
0,8 |
35 |
5 * |
80 * |
- |
- |
- |
- |
Eср(TA)/Eср(PA) ≥ 0,5 |
|
4.2 |
II |
Пол - Г-0,0 |
500 |
0,8 |
40 |
10 * |
80 * | |||||
|
4.3 |
III |
Пол - Г-0,0 |
500 |
0,8 |
40 |
10 * |
80 * | |||||
|
5 Боевые искусства (борьба на поясах, джиу-джитсу, дзюдо, карате, киокусинкай, кудо, рукопашный бой, самбо, спортивная борьба, сумо, тхэквондо, ушу), пауэрлифтинг, реслинг, тяжелая атлетика | ||||||||||||
|
5.1 |
I |
Пол - Г-0,0 |
750 |
0,7 |
35 |
5 * |
80 * |
2,5 |
0,7 |
1,5 |
0,4 | |
|
5.2 |
II |
Пол - Г-0,0 |
500 |
0,7 |
40 |
10 * |
80 * | |||||
|
5.3 |
III |
Пол - Г-0,0 |
300 |
0,6 |
40 |
10 * |
80 * | |||||
|
6 Бокс, кикбоксинг, тайский бокс | ||||||||||||
|
6.1 |
I |
Ринг - Г-0,0 |
2000 |
0,8 |
35 |
5 * |
80 * |
- |
0,7 |
- |
0,4 |
Eв.ср/Eг.ср ≥ 0,5 на высоте 1,5 м |
|
Зона тренировки - Г-0,0 |
300 |
- | ||||||||||
|
6.2 |
II |
Ринг - Г-0,0 |
1000 |
0,8 |
40 |
10 * |
80 * | |||||
|
Зона тренировки - Г-0,0 |
300 |
- | ||||||||||
|
6.3 |
III |
Ринг - Г-0,0 |
500 |
0,5 |
40 |
10 * |
80 * | |||||
|
Зона тренировки - Г-0,0 |
300 |
- | ||||||||||
|
7 Боулинг, французский боулинг, петанк, бочча, буль, игра в шары | ||||||||||||
|
7.1 |
I |
Пол - Г-0,0 |
500 |
0,7 |
35 |
5 * |
80 * |
- |
- |
- |
- | |
|
7.2 |
II |
Пол - Г-0,0 |
500 |
0,7 |
40 |
10 * |
80 * | |||||
|
7.3 |
III |
Пол - Г-0,0 |
300 |
0,6 |
40 |
10 * |
80 * | |||||
|
8 Велосипедный спорт | ||||||||||||
|
8.1 |
I |
Поверхность трека - Г-0,0 |
750 |
0,7 |
35 |
5 * |
80 * |
2,5 |
0,7 |
1,5 |
0,4 |
Вертикальная освещенность вдоль финишной линии на высоте 1,5 м в сторону фотообъектива |
|
Финишная линия - В-1,5 |
1000 |
- | ||||||||||
|
8.2 |
II |
Поверхность трека - Г-0,0 |
500 |
0,7 |
40 |
10 * |
80 * | |||||
|
Финишная линия - В-1,5 |
1000 |
- | ||||||||||
|
8.3 |
III |
Поверхность трека - Г-0,0 |
300 |
0,7 |
40 |
10 * |
80 * | |||||
|
Финишная линия - В-1,5 |
1000 |
- | ||||||||||
|
9 Волейбол | ||||||||||||
|
9.1 |
I |
Пол - Г-0,0 |
750 |
0,7 |
35 |
5 * |
80 * |
- |
1,0 |
- |
0,6 |
Располагать осветительные приборы на потолке над частью игровой площадки, в зоне шириной 3 м вправо и влево от сетки не допускается |
|
9.2 |
II |
Пол - Г-0,0 |
500 |
0,7 |
40 |
10 * |
80 * | |||||
|
9.3 |
III |
Пол - Г-0,0 |
300 |
0,5 |
40 |
10 * |
80 * | |||||
|
10 Гандбол, корфбол, нетбол, фистбол | ||||||||||||
|
10.1 |
I |
Пол - Г-0,0 |
750 |
0,7 |
35 |
5 * |
80 * |
3,0 |
1,0 |
1,8 |
0,6 | |
|
10.2 |
II |
Пол - Г-0,0 |
500 |
0,7 |
40 |
10 * |
80 * | |||||
|
10.3 |
III |
Пол - Г-0,0 |
300 |
0,6 |
40 |
10 * |
80 * | |||||
|
11 Дартс | ||||||||||||
|
11.1 |
I |
Линия броска - Г-0,0 |
200 |
- |
30 |
5 * |
80 * |
2,5 |
0,7 |
1,5 |
0,4 | |
|
Мишень - В-1,5 |
750 |
- | ||||||||||
|
11.2 |
II |
Линия броска - Г-0,0 |
100 |
- |
40 |
10 * |
80 * | |||||
|
Мишень - В-1,5 |
500 |
- | ||||||||||
|
11.3 |
III |
Линия броска - Г-0,0 |
50 |
- |
40 |
10 * |
80 * | |||||
|
Мишень - В-1,5 |
300 |
- | ||||||||||
|
12 Картинг | ||||||||||||
|
12.1 |
I |
Пол - Г-0,0 |
750 |
0,7 |
35 |
5 * |
80 * |
2,5 |
0,7 |
1,5 |
0,4 | |
|
12.2 |
II |
Пол - Г-0,0 |
500 |
0,7 |
40 |
10 * |
80 * | |||||
|
12.3 |
III |
Пол - Г-0,0 |
200 |
0,5 |
40 |
10 * |
80 * | |||||
|
13 Кендо | ||||||||||||
|
13.1 |
I |
Пол - Г-0,0 |
750 |
0,7 |
30 |
5 * |
80 * |
2,5 |
0,7 |
1,5 |
0,4 | |
|
13.2 |
II |
Пол - Г-0,0 |
500 |
0,7 |
40 |
10 * |
80 * | |||||
|
13.3 |
III |
Пол - Г-0,0 |
200 |
0,5 |
40 |
10 * |
80 * | |||||
|
14 Керлинг | ||||||||||||
|
14.1 |
I |
Дом для игрового снаряда - Г-0,0 |
300 |
0,7 |
35 |
5 * |
80 * |
- |
- |
- |
- | |
|
Игровое поле - Г-0,0 |
200 |
0,7 | ||||||||||
|
14.2 |
II |
Дом для игрового снаряда - Г-0,0 |
300 |
0,7 |
40 |
10 * |
80 * | |||||
|
Игровое поле - Г-0,0 |
200 |
0,7 | ||||||||||
|
14.3 |
III |
Дом для игрового снаряда - Г-0,0 |
300 |
0,7 |
40 |
10 * |
80 * | |||||
|
Игровое поле - Г-0,0 |
200 |
0,7 | ||||||||||
|
15 Конный спорт (скачки, выездка) | ||||||||||||
|
15.1 |
I |
Пол - Г-0,0 |
500 |
0,7 |
35 |
5 * |
80 * |
3,0 |
1,0 |
1,8 |
0,6 | |
|
15.2 |
II |
Пол - Г-0,0 |
300 |
0,6 |
40 |
10 * |
80 * | |||||
|
15.3 |
III |
Пол - Г-0,0 |
200 |
0,5 |
40 |
10 * |
80 * | |||||
|
16 Конькобежный спорт, роликовые коньки | ||||||||||||
|
16.1 |
I |
Пол - Г-0,0 |
500 |
0,7 |
35 |
5 * |
80 * |
- |
- |
- |
- | |
|
16.2 |
II |
Пол - Г-0,0 |
300 |
0,6 |
40 |
10 * |
80 * | |||||
|
16.3 |
III |
Пол - Г-0,0 |
200 |
0,5 |
40 |
10 * |
80 * | |||||
|
17 Крикет, крикет с сеткой, лапта | ||||||||||||
|
17.1 |
I |
Пол - Г-0,0 |
750 |
0,7 |
35 |
5 * |
80 * |
2,5 |
0,7 |
1,5 |
0,4 | |
|
Г-сетка |
1500 |
0,8 | ||||||||||
|
17.2 |
II |
Пол - Г-0,0 |
500 |
0,7 |
40 |
10 * |
80 * | |||||
|
Г-сетка |
1000 |
0,8 | ||||||||||
|
17.3 |
III |
Пол - Г-0,0 |
300 |
0,7 |
40 |
10 * |
80 * | |||||
|
Г-сетка |
750 |
0,8 | ||||||||||
|
18 Легкая атлетика, все виды | ||||||||||||
|
18.1 |
I |
Поверхность, трека, поля - Г-0,0 |
500 |
0,7 |
35 |
5 * |
80 * |
3,0 |
1,0 |
1,8 |
0,6 |
Вертикальная освещенность вдоль финишной линии на высоте 1,5 м в сторону фотообъектива |
|
Финишная линия - В-1,5 |
1000 |
- | ||||||||||
|
18.2 |
II |
Поверхность, трека, поля - Г-0,0 |
300 |
0,6 |
40 |
10 * |
80 * | |||||
|
Финишная линия - В-1,5 |
1000 |
- | ||||||||||
|
18.3 |
III |
Поверхность, трека, поля - Г-0,0 |
300 |
0,5 |
40 |
10 * |
80 * | |||||
|
Финишная линия - В-1,5 |
1000 |
- | ||||||||||
|
19 Настольный теннис | ||||||||||||
|
19.1 |
I |
Пол - Г-0,0 |
750 |
0,7 |
35 |
5 * |
80 * |
- |
- |
- |
- | |
|
19.2 |
II |
Пол - Г-0,0 |
500 |
0,7 |
40 |
10 * |
80 * | |||||
|
19.3 |
III |
Пол - Г-0,0 |
300 |
0,7 |
40 |
10 * |
80 * | |||||
|
20 Перетягивание каната, прыжки на батуте | ||||||||||||
|
20.1 |
I |
Пол - Г-0,0 |
750 |
0,7 |
35 |
5 * |
80 * |
2,5 |
0,7 |
1,5 |
0,4 | |
|
20.2 |
II |
Пол - Г-0,0 |
500 |
0,7 |
40 |
10 * |
80 * | |||||
|
20.3 |
III |
Пол - Г-0,0 |
300 |
0,5 |
40 |
10 * |
80 * | |||||
|
21 Плавание, водное поло, синхронное плавание | ||||||||||||
|
21.1 |
I |
Поверхность воды - Г-0,0 |
500 |
0,7 |
35 |
5 * |
80 * |
2,5 |
0,7 |
1,5 |
0,4 |
Для плавания и водного поло применять подводное освещение не допускается |
|
Зоны старта и финиша (поворота) для международных соревнований - Г-0,0 |
600 |
0,7 |
- |
- |
- | |||||||
|
21.2 |
II |
Поверхность воды - Г-0,0 |
300 |
0,7 |
40 |
10 * |
80 * | |||||
|
21.3 |
III |
Поверхность воды - Г-0,0 |
300 |
0,6 |
40 |
10 * |
80 * | |||||
|
22 Прыжки в воду *** | ||||||||||||
|
22.1 |
I |
Поверхность воды - Г-0,0 |
500 |
0,7 |
35 |
5 * |
80 * |
2,5 |
0,7 |
1,5 |
0,4 |
Eг.ср/Eв.ср ≥ 0,8 |
|
22.2 |
II |
Поверхность воды - Г-0,0 |
300 |
0,7 |
40 |
10 * |
80 * |
Eг.ср/Eв.ср ≥ 0,5 | ||||
|
22.3 |
III |
Поверхность воды - Г-0,0 |
300 |
0,5 |
40 |
10 * |
80 * |
Eг.ср/Eв.ср ≥ 0,5 | ||||
|
23 Ракетбол, сквош | ||||||||||||
|
23.1 |
I |
Пол - Г-0,0 |
750 |
0,7 |
35 |
5 * |
80 * |
2,5 |
0,7 |
1,5 |
0,4 |
Осветительные приборы не должны располагаться ближе 1 м к боковым стенам |
|
23.2 |
II |
Пол - Г-0,0 |
500 |
0,7 |
40 |
10 * |
80 * | |||||
|
23.3 |
III |
Пол - Г-0,0 |
300 |
0,7 |
40 |
10 * |
80 * | |||||
|
24 Скалолазание | ||||||||||||
|
24.1 |
I |
В-1,5 |
500 |
0,7 |
35 |
5 * |
80 * |
- |
0,7 |
- |
0,4 | |
|
24.2 |
II |
В-1,5 |
300 |
0,6 |
40 |
10 * |
80 * | |||||
|
24.3 |
III |
В-1,5 |
200 |
0,5 |
40 |
10 * |
80 * | |||||
|
25 Стрельба, стрельба из лука | ||||||||||||
|
25.1 |
I |
Линия стрельбы, зона подхода - Г-0,0 |
200 |
0,5 |
35 |
5 * |
80 * |
- |
- |
- |
- | |
|
Кегли - В-1,5 |
500 |
0,8 ** | ||||||||||
|
Мишень (25 м) - В-1,5 |
1000 | |||||||||||
|
Мишень (50 м) - В-1,5 |
2000 | |||||||||||
|
25.2 |
II |
Линия стрельбы, зона подхода - Г-0,0 |
200 |
0,5 |
40 |
10 |
80 * | |||||
|
Кегли - В-1,5 |
500 |
0,8 ** | ||||||||||
|
Мишень (25 м) - В-1,5 |
1000 | |||||||||||
|
Мишень (50 м) - В-1,5 |
2000 | |||||||||||
|
25.3 |
III |
Линия стрельбы, зона подхода - Г-0,0 |
200 |
0,5 |
40 |
10 |
80 * | |||||
|
Кегли - В-1,5 |
500 |
0,8 ** | ||||||||||
|
Мишень (25 м) -В-1,5 |
1000 | |||||||||||
|
Мишень (50 м) -В-1,5 |
2000 | |||||||||||
|
26 Теннис | ||||||||||||
|
26.1 |
I |
Г-0,0 |
750 |
0,7 |
35 |
5 * |
80 * |
3,0 |
1,0 |
1,8 |
0,6 |
Над игровой площадкой и над зонами подач шириной по 3 м устанавливать осветительные приборы не допускается |
|
26.2 |
II |
Г-0,0 |
500 |
0,7 |
40 |
10 * |
80 * | |||||
|
26.3 |
III |
Г-0,0 |
300 |
0,5 |
40 |
10 * |
80 * | |||||
|
27 Фехтование | ||||||||||||
|
27.1 |
I |
Пол - Г-0,0 |
750 |
0,7 |
35 |
5 * |
80 * |
2,5 |
0,7 |
1,5 |
0,4 | |
|
В-1,5 |
500 |
0,7 | ||||||||||
|
27.2 |
II |
Пол - Г-0,0 |
500 |
0,7 |
40 |
10 * |
80 * | |||||
|
В-1,5 |
300 |
0,7 | ||||||||||
|
27.3 |
III |
Пол - Г-0,0 |
300 |
0,7 |
40 |
10 * |
80 * | |||||
|
В-1,5 |
200 |
0,7 | ||||||||||
|
28 Фигурное катание на коньках | ||||||||||||
|
28.1 |
I |
Поверхность льда - Г-0,0 |
750 |
0,7 |
35 |
5 * |
80 * |
- |
- |
- |
- |
При высоте установки осветительных приборов менее 8 м Eмин/Eмакс> 0,5 |
|
28.2 |
II |
Поверхность льда - Г-0,0 |
500 |
0,7 |
40 |
10 * |
80 * | |||||
|
28.3 |
III |
Поверхность льда - Г-0,0 |
300 |
0,7 |
40 |
10 * |
80 * |
Для класса III равномерность освещенности допускается снижать до 0,5 | ||||
|
29 Футбол, минифутбол, флорбол | ||||||||||||
|
29.1 |
I |
Пол - Г-0,0 |
750 |
0,7 |
35 |
5 * |
80 * |
2,5 |
0,7 |
1,5 |
0,4 | |
|
29.2 |
II |
Пол - Г-0,0 |
500 |
0,7 |
40 |
10 * |
80 * | |||||
|
29.3 |
III |
Пол - Г-0,0 |
300 |
0,5 |
40 |
10 * |
80 * | |||||
|
30 Хоккей на льду | ||||||||||||
|
30.1 |
I |
Поверхность льда - Г-0,0 |
750 |
0,7 |
35 |
5 * |
80 * |
- |
- |
- |
- |
При высоте установки осветительных приборов менее 8 м Eмин/Eмакс> 0,5 |
|
30.2 |
II |
Поверхность льда - Г-0,0 |
500 |
0,7 |
40 |
10 * |
80 * | |||||
|
30.3 |
III |
Поверхность льда - Г-0,0 |
300 |
0,7 |
40 |
10 * |
80 * |
Для класса III равномерность освещенности допускается снижать до 0,5 | ||||
|
31 Хоккей на траве | ||||||||||||
|
31.1 |
I |
Поверхность травы - Г-0,0 |
750 |
0,7 |
35 |
5 * |
80 * |
3,0 |
1,0 |
1,8 |
0,6 |
При высоте установки осветительных приборов менее 8 м Eмин/Eмакс> 0,5 |
|
31.2 |
II |
Поверхность травы - Г-0,0 |
500 |
0,7 |
40 |
10 * |
80 * | |||||
|
31.3 |
III |
Поверхность травы - Г-0,0 |
300 |
0,7 |
40 |
10 * |
80 * |
Для класса III равномерность освещенности допускается снижать до 0,5 | ||||
|
32 Шахматы, шашки | ||||||||||||
|
32.1 |
I |
Поверхность доски - Г-0,8 |
750 |
0,7 |
35 |
5 * |
80 * |
- |
- |
- |
- | |
|
32.2 |
II |
Поверхность доски - Г-0,8 |
500 |
0,7 |
40 |
10 * |
80 * | |||||
|
32.3 |
III |
Поверхность доски - Г-0,8 |
300 |
0,7 |
40 |
10 * |
80 * | |||||
|
* Необходимо учитывать требования 5.2.9 и 5.2.10. ** Приведена равномерность вертикальной освещенности. *** Начало вертикальной сетки контрольных точек располагается на высоте 2 м над прыжковой доской и на расстоянии 2 м перед прыжковой доской. Сетка контрольных точек распространяется до уровня воды по высоте и имеет ширину 3 м. Сетка контрольных точек располагается вдоль боковой линии прыжковой доски. Примечание - В настоящей таблице применено следующее сокращение: КЕО - коэффициент естественного освещения. | ||||||||||||
В спортивных залах, аренах, стадионах необходимо предусматривать регулирование освещенности в отдельных зонах в пределах от 200 лк до максимальной освещенности для данного вида спорта по таблице 5.1 в целях проведения тренировок и технического обслуживания.
5.2.2 Требования к комфортному искусственному освещению помещений ФОК приведены в таблице 5.2.
|
Номер позиции, наименование помещения |
Плоскость нормирования освещенности и КЕО, высота плоскости над полом, м (Г - горизонтальная, В - вертикальная) |
Искусственное освещение |
Естественное освещение |
Совмещенное освещение |
Примечание | ||||||
|
Средняя освещенность рабочих поверхностей, лк, не менее |
Равномерность распределения освещенности U0, не менее |
Объединенный показатель дискомфорта RUG, не более |
Коэффициент пульсации освещенности, %, не более |
Общий индекс цветопередачи осветительных приборов Ra, не менее |
КЕО eн, % |
КЕО eн, % | |||||
|
при верхнем или комбинированном освещении |
при боковом освещении |
при верхнем или комбинированном освещении |
при боковом освещении | ||||||||
|
1 Залы спортивных игр, многофункциональные спортивные залы |
Г-0,0 - на полу |
300 |
0,7 |
24 |
10 * |
80 * |
3,0 |
1,0 |
1,8 |
0,6 | |
|
В-2,0 - с обеих сторон на продольной оси помещения |
150 |
- |
- |
- |
- |
- |
- |
- |
- | ||
|
2 Залы бассейнов |
Г - поверхность воды |
300 |
0,7 |
24 |
10 * |
80 * |
2,0 |
0,5 |
1,2 |
0,3 | |
|
3 Залы аэробики, гимнастики, борьбы |
Г - 0,0 - на полу |
300 |
0,7 |
24 |
10 * |
80 * |
2,5 |
0,7 |
1,5 |
0,4 | |
|
4 Ледовые арены |
Поверхность льда - Г-0,0 |
200 |
0,5 |
20 |
10 * |
80 * |
- |
- |
- |
- | |
|
5 Кегельбаны |
Г-0,0 - на полу |
300 |
0,7 |
24 |
10 * |
- * |
- |
- |
- |
- | |
|
6 Бильярдная |
Г-0,8 |
300 |
0,7 |
21 |
10 * |
80 * |
- |
- |
- |
- | |
|
7 Серверная |
Г-0,8 |
500 |
- |
19 |
10 * |
80 * |
- |
- |
- |
- | |
|
8 Снарядные, инвентарные, хозяйственные кладовые |
Г-0,8 |
100 |
- |
- |
- |
- |
- |
- |
- |
- | |
|
9 Кабинеты администрации и персонала |
Г-0,8 |
500 |
0,6 |
19 |
10 * |
80 * |
3,0 |
1,0 |
1,8 |
0,6 | |
|
10 Кабинеты медицинского назначения, медицинские пункты |
Г-0,8 |
400 |
0,6 |
19 |
10 * |
80 * |
3,0 |
1,0 |
1,8 |
0,6 | |
|
11 Помещения касс |
Г-0,8 |
500 |
- |
21 |
10 * |
80 * |
- |
- |
- |
- | |
|
12 Фойе, гардеробные |
Г-0,0 - на полу |
200 |
- |
- |
- |
- |
- |
- |
- |
- | |
|
* Необходимо учитывать требования 5.2.10 и 5.2.11. | |||||||||||
5.2.3 Освещение вспомогательных помещений крытых спортивных сооружений и помещений ФОК, не приведенных в таблице 5.2, следует выполнять по СП 52.13330.2016 (приложение Л).
5.2.4 Все нормируемые параметры освещения, представленные в таблицах 5.1, 5.2, должны быть обеспечены на игровой площадке PA.
Размеры типовых игровых площадок (игровых полей) для разных видов спорта в крытых спортивных сооружениях приведены в СП 332.1325800.
В игровой зоне TA, за пределами игровой площадки PA, требования к освещенности и равномерности ее распределения должны составлять не менее 75% нормируемых значений для игровой площадки PA для рассматриваемого вида спорта.
5.2.5 Расчеты освещенности проводят по сетке контрольных точек в соответствии с приложением А.
5.2.6 Средняя горизонтальная освещенность в зоне зрителей должна быть не менее 50 лк.
5.2.7 Для ограничения слепящей блескости световых приборов в крытых спортивных сооружениях значения коэффициента слепящей блескости RG должны быть не более значений, приведенных в таблице 5.1.
Коэффициент слепящей блескости RG применяют при установке осветительных приборов на высоте 7 м и более.
5.2.8 Для ограничения слепящего действия световых приборов в помещениях ФОК значения объединенного показателя дискомфорта RUG не должны превышать значений, указанных в таблице 5.2. Объединенный показатель дискомфорта RUG применяют при установке осветительных приборов на высоте не более 7 м.
5.2.9 Коэффициент пульсации освещенности в спортивных залах крытых спортивных сооружений и помещениях ФОК не должен превышать значения, приведенные в таблицах 5.1 и 5.2.
5.2.10 При использовании светодиодных осветительных приборов без встроенной функции регулирования светового потока коэффициент пульсации не должен превышать 1%.
При использовании светодиодных осветительных приборов со встроенной функцией регулирования светового потока (диммирование) коэффициент пульсации освещенности не должен превышать:
- 5% в диапазоне изменения светового потока осветительного прибора от 30% до 90%;
- 1% в диапазоне изменения светового потока осветительного прибора от 90% до 100%.
5.2.11 Общий индекс цветопередачи осветительных приборов, применяемых для освещения спортивных залов крытых спортивных сооружений и помещений ФОК, должен быть не менее значений, приведенных в таблицах 5.1 и 5.2.
При использовании светодиодных осветительных приборов значение общего индекса цветопередачи Ra осветительного прибора должно составлять не менее 80, а значение частного индекса цветопередачи R9 должно составлять не менее 5.
5.3.1 Нормативные показатели комфортного искусственного освещения открытых спортивных сооружений (средняя освещенность, равномерность распределения освещенности, коэффициент слепящей блескости, общий индекс цветопередачи) приведены в таблице 5.3.
|
Номер позиции, наименование вида спорта |
Класс освещения |
Плоскость (Г - горизонтальная, В - вертикальная), на которой нормируется освещенность, высота плоскости над землей или полом, м |
Средняя освещенность, лк |
Равномерность распределения освещенности U0, не менее |
Коэффициент слепящей блескости, RG |
Общий индекс цветопередачи осветительных приборов Ra, не менее |
Примечание |
|
1 Баскетбол, волейбол, гандбол, нетбол, пляжный волейбол | |||||||
|
1.1 |
I |
Поверхность площадки - Г-0,0 |
500 |
0,7 |
55 |
80 * | |
|
1.2 |
II |
Поверхность площадки - Г-0,0 |
200 |
0,6 |
55 |
80 * | |
|
1.3 |
III |
Поверхность площадки - Г-0,0 |
100 |
0,5 |
55 |
80 * | |
|
2 Бег, кросс (уличный/по пересеченной местности) | |||||||
|
2.1 |
I |
Поверхность площадки - Г-0,0 |
20 |
0,3 |
50 |
80 * | |
|
2.2 |
II |
Поверхность площадки - Г-0,0 |
10 |
0,3 |
50 |
80 * | |
|
2.3 |
III |
Поверхность площадки - Г-0,0 |
3 |
0,1 |
55 |
80 * | |
|
3 Бейсбол, крикет, лапта | |||||||
|
3.1 |
I |
Поверхность площадки - Г-0,0 |
750 |
0,7 |
50 |
80 * | |
|
3.2 |
II |
Поверхность площадки - Г-0,0 |
500 |
0,7 |
50 |
80 * | |
|
3.3 |
III |
Поверхность площадки - Г-0,0 |
300 |
0,5 |
55 |
80 * | |
|
4 Бочча, буль, петанк и французский боулинг | |||||||
|
4.1 |
I |
Поверхность площадки - Г-0,0 |
200 |
0,7 |
50 |
80 * | |
|
4.2 |
II |
Поверхность площадки - Г-0,0 |
100 |
0,7 |
50 |
80 * | |
|
4.3 |
III |
Поверхность площадки - Г-0,0 |
50 |
0,5 |
55 |
80 * | |
|
5 Велогонки, картинг | |||||||
|
5.1 |
I |
Поверхность трека - Г-0,0 |
500 |
0,7 |
50 |
80 * |
Вертикальную освещенность необходимо обеспечить на финишной линии на высоте 1,5 м в сторону фотообъектива |
|
Финишная линия - В-1,5 |
1000 |
80 * | |||||
|
5.2 |
II |
Поверхность трека - Г-0,0 |
300 |
0,7 |
50 |
80 * | |
|
Финишная линия - В-1,5 |
1000 | ||||||
|
5.3 |
III |
Поверхность трека - Г-0,0 |
100 |
0,5 |
55 |
80 * | |
|
Финишная линия - В-1,5 |
1000 | ||||||
|
6 Гольф | |||||||
|
6.1 |
I |
Зона подачи - Г-0,0 |
- |
- |
- |
- | |
|
На расстоянии метки - В-1,5 |
- | ||||||
|
6.2 |
II |
Зона подачи - Г-0,0 |
- |
- |
- |
- | |
|
На расстоянии метки - В-1,5 |
- | ||||||
|
6.3 |
III |
Зона подачи - Г-0,0 |
100 |
0,8 |
55 |
80 * | |
|
На расстоянии метки - В-1,5 |
50 | ||||||
|
7 Конный спорт, скачки | |||||||
|
7.1 |
I |
Поверхность поля - Г-0,0 |
200 |
0,6 |
50 |
80 * |
Вертикальную освещенность необходимо обеспечить на финишной линии на высоте 1,5 м в сторону фотообъектива |
|
Финишная прямая - В-1,5 |
750 |
0,6/0,4 (продольная/поперечная) | |||||
|
Участок возвращения и разворота - В-1,5 |
500 |
0,6/0,4 (продольная/поперечная) | |||||
|
7.2 |
II |
Поверхность поля - Г-0,0 |
100 |
0,4 |
50 |
80 * | |
|
Финишная прямая - В-1,5 |
300 |
0,6/0,4 (продольная/поперечная) | |||||
|
Участок возвращения и разворота - В-1,5 |
200 |
0,6/0,4 (продольная/поперечная) | |||||
|
7.3 |
III |
Поверхность поля - Г-0,0 |
50 |
0,2 |
55 |
80 * | |
|
Финишная прямая - В-1,5 |
100 |
0,3 | |||||
|
Участок возвращения и разворота - В-1,5 |
- |
- | |||||
|
8 Легкая атлетика (все виды), конный спорт, конькобежный спорт | |||||||
|
8.1 |
I |
Поверхность трека - Г-0,0 |
500 |
0,7 |
50 |
80 * |
Вертикальную освещенность необходимо обеспечить на финишной линии на высоте 1,5 м в сторону фотообъектива |
|
Финишная линия - В-1,5 |
1000 |
80 * | |||||
|
8.2 |
II |
Поверхность трека - Г-0,0 |
200 |
0,5 |
50 |
80 * | |
|
Финишная линия - В-1,5 |
1000 |
80 * | |||||
|
8.3 |
III |
Поверхность трека - Г-0,0 |
100 |
0,5 |
55 |
80 * | |
|
Финишная линия - В-1,5 |
1000 | ||||||
|
9 Лыжи - гонки, кросс по пересеченной местности | |||||||
|
9.1 |
I |
Поверхность площадки - Г-0,0 |
20 |
0,3 |
50 |
80 * |
При наличии выраженного рельефа трассы допускается принимать равномерность освещения согласно заданию на проектирование |
|
9.2 |
II |
Поверхность площадки - Г-0,0 |
10 |
0,3 |
50 |
80 * | |
|
9.3 |
III |
Поверхность площадки - Г-0,0 |
3 |
0,1 |
55 |
80 * | |
|
10 Лыжи - прыжки с трамплина | |||||||
|
10.1 |
I |
Зона спуска перед прыжком - Г-0,0 |
150 |
0,5 |
50 |
80 * |
В зоне торможения должна быть обеспечена освещенность не менее 30% от уровня освещенности в зоне приземления (без требований по равномерности) |
|
Точка взлета, зона приземления - Г-0,0 |
300 |
0,7 |
80 * | ||||
|
10.2 |
II |
Зона спуска перед прыжком - Г-0,0 |
50 |
0,3 |
50 |
80 * | |
|
Точка взлета, зона приземления - Г-0,0 |
200 |
0,6 |
80 * | ||||
|
10.3 |
III |
Зона спуска перед прыжком - Г-0,0 |
20 |
0,3 |
55 |
80 * | |
|
Точка взлета, зона приземления - Г-0,0 |
200 |
0,6 | |||||
|
11 Лыжи - скоростной спуск, горные и фристайл; сноуборд | |||||||
|
11.1 |
I |
Поверхность трассы - Г-0,0 |
100 |
0,5 |
50 |
80 * |
При наличии выраженного рельефа трассы допускается принимать равномерность освещения согласно заданию на проектирование |
|
11.2 |
II |
Поверхность трассы - Г-0,0 |
50 |
0,3 |
50 |
80 * | |
|
11.3 |
III |
Поверхность трассы - Г-0,0 |
20 |
0,3 |
55 |
80 * | |
|
12 Перетягивание каната | |||||||
|
12.1 |
I |
Поверхность площадки - Г-0,0 |
500 |
0,7 |
55 |
80 * | |
|
12.2 |
II |
Поверхность площадки - Г-0,0 |
200 |
0,6 |
55 |
80 * | |
|
12.3 |
III |
Поверхность площадки - Г-0,0 |
100 |
0,5 |
55 |
80 * | |
|
13 Плавание, прыжки в воду, синхронное плавание, водное поло | |||||||
|
13.1 |
I |
Поверхность воды - Г-0,0 |
500 |
0,7 |
50 |
80 * |
Для прыжков в воду - Eв.ср/Eг.ср = 0,8; 0,5; 0,5 |
|
13.2 |
II |
Поверхность воды - Г-0,0 |
300 |
0,7 |
50 |
80 * | |
|
13.3 |
III |
Поверхность воды - Г-0,0 |
200 |
0,5 |
55 |
80 * | |
|
14 Рэгби, фистбол, флорбол, корфбол | |||||||
|
14.1 |
I |
Поверхность площадки - Г-0,0 |
500 |
0,7 |
55 |
80 * | |
|
14.2 |
II |
Поверхность площадки - Г-0,0 |
200 |
0,6 |
55 |
80 * | |
|
14.3 |
III |
Поверхность площадки - Г-0,0 |
100 |
0,5 |
55 |
80 * | |
|
15 Санный спорт, бобслей | |||||||
|
15.1 |
I |
Поверхность трассы - Г-0,0 |
300 |
0,7 |
50 |
80 * | |
|
15.2 |
II |
Поверхность трассы - Г-0,0 |
200 |
0,5 |
50 |
80 * | |
|
15.3 |
III |
Поверхность трассы - Г-0,0 |
50 |
0,4 |
55 |
80 * | |
|
16 Скейтинг | |||||||
|
16.1 |
I |
Зона скейтпарка - Г-0,0 |
100 |
0,4 |
50 |
80 * |
Вертикальная освещенность для рамп, рельсов, ступеней В-1,5 = 150 Uв = 0,5 |
|
Рампы, рельсы, ступени - Г-0,0 |
200 |
0,6 | |||||
|
16.2 |
II |
Зона скейтпарка - Г-0,0 |
50 |
0,4 |
50 |
80 * |
При наличии выраженного рельефа трассы допускается принимать равномерность освещения согласно заданию на проектирование |
|
Рампы, рельсы, ступени - Г-0,0 |
100 |
0,4 | |||||
|
16.3 |
III |
Зона скейтпарка - Г-0,0 |
30 |
0,3 |
55 |
80 * | |
|
Рампы, рельсы, ступени - Г-0,0 |
50 |
0,3 | |||||
|
17 Софтбол | |||||||
|
17.1 |
I |
Часть поля у ворот - Г-0,0 |
750 |
0,7 |
50 |
80 * | |
|
Дальнее поле - Г-0,0 |
500 |
0,5 | |||||
|
17.2 |
II |
Часть поля у ворот - Г-0,0 |
500 |
0,7 |
50 |
80 * | |
|
Дальнее поле - Г-0,0 |
300 |
0,5 | |||||
|
17.3 |
III |
Часть поля у ворот - Г-0,0 |
200 |
0,5 |
55 |
80 * | |
|
Дальнее поле - Г-0,0 |
100 |
0,3 | |||||
|
18 Стрельба, стрельба из лука | |||||||
|
18.1 |
I |
Линия стрельбы - Г-0,0 |
200 |
0,5 |
50 |
80 * | |
|
Мишень - В-1,5 |
750 |
0,8 | |||||
|
18.2 |
II |
Линия стрельбы - Г-0,0 |
200 |
0,5 |
50 |
80 * | |
|
Мишень - В-1,5 |
750 |
0,8 | |||||
|
18.3 |
III |
Линия стрельбы - Г-0,0 |
200 |
0,5 |
55 |
80 * | |
|
Мишень - В-1,5 |
750 |
0,8 | |||||
|
19 Теннис | |||||||
|
19.1 |
I |
Поверхность площадки - Г-0,0 |
500 |
0,7 |
50 |
80 * | |
|
19.2 |
II |
Поверхность площадки - Г-0,0 |
300 |
0,7 |
50 |
80 * | |
|
19.3 |
III |
Поверхность площадки - Г-0,0 |
200 |
0,6 |
55 |
80 * | |
|
20 Футбол, пляжный футбол | |||||||
|
20.1 |
I |
Поверхность площадки - Г-0,0 |
500 |
0,7 |
55 |
80 * | |
|
20.2 |
II |
Поверхность площадки - Г-0,0 |
200 |
0,6 |
55 |
80 * | |
|
20.3 |
III |
Поверхность площадки - Г-0,0 |
100 |
0,5 |
55 |
80 * | |
|
21 Футбол американский | |||||||
|
21.1 |
I |
Поверхность площадки - Г-0,0 |
500 |
0,7 |
55 |
80 * | |
|
21.2 |
II |
Поверхность площадки - Г-0,0 |
200 |
0,6 |
55 |
80 * | |
|
21.3 |
III |
Поверхность площадки - Г-0,0 |
100 |
0,5 |
55 |
80 * | |
|
22 Хоккей на траве | |||||||
|
22.1 |
I |
Поверхность поля - Г-0,0 |
500 |
0,7 |
50 |
80 * | |
|
22.2 |
II |
Поверхность поля - Г-0,0 |
300 |
0,7 |
50 |
80 * | |
|
22.3 |
III |
Поверхность поля - Г-0,0 |
200 |
0,7 |
55 |
80 * | |
|
23 Хоккей с шайбой, хоккей с мячом | |||||||
|
23.1 |
I |
Поверхность площадки - Г-0,0 |
750 |
0,7 |
50 |
80 * | |
|
23.2 |
II |
Поверхность площадки - Г-0,0 |
500 |
0,7 |
50 |
80 * | |
|
23.3 |
III |
Поверхность площадки - Г-0,0 |
200 |
0,5 |
55 |
80 * | |
|
* Необходимо учитывать требования 5.3.7. | |||||||
5.3.2 Значения средней освещенности, приведенные в таблице 5.3, должны быть обеспечены в пределах игровой площадки PA.
Размеры типовых игровых площадок (игровых полей) для разных видов спорта открытых спортивных сооружений приведены в СП 332.1325800.
5.3.3 В игровой зоне TA, за пределами игровой площадки PA, требования к освещенности и равномерности ее распределения должны составлять не менее 75% нормируемых значений для игровой площадки PA для рассматриваемого вида спорта.
5.3.4 В расчетах и измерениях применяют сетку контрольных точек в соответствии с приложением А.
5.3.5 Для ограничения слепящей блескости световых приборов в открытых спортивных сооружениях значения коэффициента слепящей блескости RG должны быть не более значений, приведенных в таблице 5.3.
5.3.6 Коэффициент пульсации освещенности в открытых спортивных сооружениях должен быть не более 10%.
При использовании светодиодных осветительных приборов без встроенной функции регулирования светового потока коэффициент пульсации не должен превышать 1%.
При использовании светодиодных осветительных приборов со встроенной функцией регулирования светового потока (диммирование) коэффициент пульсации освещенности не должен превышать:
- 5% в диапазоне изменения светового потока осветительного прибора от 30% до 90%;
- 1% в диапазоне изменения светового потока осветительного прибора от 90% до 100%.
5.3.7 Общий индекс цветопередачи осветительных приборов, применяемых для открытых спортивных сооружений, должен быть не менее значений, приведенных в таблице 5.3.
При использовании светодиодных осветительных приборов значение общего индекса цветопередачи Ra осветительного прибора должно составлять не менее 80, а значение частного индекса цветопередачи R9 должно составлять не менее 5.
5.3.8 Средняя горизонтальная освещенность в зоне зрителей должна быть не менее 50 лк.
5.4.1 В случае отключения рабочего освещения безопасность людей обеспечивается путем прекращения соревнований и тренировок и включения аварийного освещения.
Аварийное освещение проектируют в помещениях и зонах спортивных сооружений:
- для предотвращения паники при отключении рабочего освещения;
- безопасного прекращения спортивного мероприятия и предотвращения несчастных случаев среди занимающихся спортом при отключении рабочего освещения (в бассейнах, на велотреках, на трамплинах для прыжков на лыжах и т.п.);
- эвакуации людей в безопасную зону при отключении рабочего освещения.
5.4.2 Основные характеристики аварийного освещения приведены в таблице 5.4.
|
Номер позиции |
Назначение помещения, вид спорта |
Вид аварийного освещения |
Минимальная освещенность, лк |
Максимальное время переключения, с |
Расчетная длительность работы источника аварийного электроснабжения, мин |
Постоянно включенные эвакуационные указатели и указатели безопасности |
|
Аварийное освещение общих пространств спортивных сооружений | ||||||
|
1 |
Пути эвакуации: используемые при эвакуации коридоры и лестницы, наружные лестницы трибун, холлы, помещения между лестницами, пешеходные эстакады, выходы на улицу |
Освещение путей эвакуации |
1,0 |
15 |
60 |
+ |
|
2 |
Спортивные арены, физкультурно-спортивные залы, крытые трибуны для зрителей, закрытые фойе площадью более 60 м2 |
Антипаническое освещение зон расположения зрителей |
0,5 |
15 |
60 |
+ |
|
Освещение путей эвакуации |
1,0 |
15 |
60 | |||
|
3 |
Физкультурно-спортивные залы, закрытые фойе площадью менее 60 м2 |
Освещение путей эвакуации |
1,0 |
15 |
60 |
+ |
|
Аварийное освещение общей игровой площадки по видам спорта | ||||||
|
4 |
Бобслей |
Освещение общей игровой площадки |
10% значения поз. 15 таблицы 5.3 |
15 |
2 | |
|
5 |
Велогонка |
Освещение общей игровой площадки |
10% значения поз. 8 таблицы 5.1 |
15 |
1 | |
|
6 |
Гимнастика в помещении |
Освещение общей игровой площадки |
5% значения поз. 1 таблицы 5.1 |
15 |
0,5 | |
|
7 |
Горнолыжный спорт |
Освещение общей игровой площадки |
10% значения поз. 11 таблицы 5.3 |
15 |
0,5 | |
|
8 |
Конный спорт |
Освещение общей игровой площадки |
5% значения поз. 15 таблицы 5.1 |
15 |
2 | |
|
9 |
Конькобежный спорт |
Освещение общей игровой площадки |
5% значения поз. 16 таблицы 5.1 |
15 |
0,5 | |
|
10 |
Прыжки с трамплина |
Освещение общей игровой площадки |
10% значения поз. 10 таблицы 5.3 |
15 |
0,5 | |
|
11 |
Санный спорт |
Освещение общей игровой площадки |
10% значения поз. 15 таблицы 5.3 |
15 |
2 | |
|
12 |
Фигурное катание на коньках |
Освещение общей игровой площадки |
5% значения поз. 28 таблицы 5.1 |
15 |
0,5 | |
|
13 |
Хоккей на льду |
Освещение общей игровой площадки |
5% значения поз. 30 таблицы 5.1 |
15 |
0,5 | |
|
Аварийное освещение бассейнов для плавания | ||||||
|
14 |
Крытые трибуны для зрителей |
Антипаническое освещение зон расположения зрителей |
0,5 |
15 |
60 |
+ |
|
15 |
Водная поверхность ванн и проходы вдоль периметра ванн с площадью зеркала до 100 м2 без факторов опасности |
Освещение путей эвакуации |
1,0 |
15 |
60 |
+ |
|
16 |
Водная поверхность ванн бассейна и проходы вдоль периметра ванн |
Освещение общей игровой площадки |
20 |
0,5 |
0,5 |
+ |
|
17 |
Плавание |
Освещение общей игровой площадки |
5% значения поз. 21 таблицы 5.1 |
0,5 |
0,5 |
+ |
|
18 |
Прыжки в воду |
Освещение общей игровой площадки |
5% значения поз. 22 таблицы 5.1 |
0,5 |
0,5 |
+ |
|
Аварийное освещение вспомогательных помещений | ||||||
|
19 |
Места перед каждым эвакуационным выходом и эвакуационным выходом снаружи здания, расположения средств медицинской помощи (медицинской аптечки), расположения противопожарного оборудования, размещения плана эвакуации, аварийной сигнализации |
Освещение путей эвакуации |
5,0 |
15 |
60 |
+ |
|
20 |
Помещения для обеспечения безопасности (посты охраны и входного контроля, пожарные посты и пункты неотложной и медицинской помощи) |
Освещение путей эвакуации |
5,0 |
15 |
60 |
+ |
|
21 |
Диспетчерские, электропомещения, помещения главного распределительного щита и вводно-распределительного устройства с доступом для квалифицированного персонала, в которых размещаются либо источники аварийного электроснабжения, либо электрооборудование, питаемое от системы аварийного электроснабжения, помещения для дезинфекции воды и баллонов с газами |
Освещение зон повышенной опасности |
15 |
0,5 |
60 |
- |
|
Примечание - В настоящей таблице применены следующие обозначения: "+" - обязательность установки световых эвакуационных указателей; "-" - световые указатели в данном случае необязательны и устанавливаются по необходимости по усмотрению проектной организации либо владельца здания. | ||||||
5.4.3 Для аварийного освещения следует использовать осветительные приборы со светодиодными источниками света. Применение других источников света допускается при наличии ограничений по применению светодиодных источников или технико-экономического обоснования.
5.4.4 Эвакуационное аварийное освещение на лестницах без естественного освещения по маршруту эвакуации следует проектировать постоянно включенным совместно с рабочим освещением.
5.4.5 В случаях, предусмотренных заданием на проектирование системы освещения спортивного сооружения, допускается предусматривать резервное аварийное освещение для продолжения соревнований. Параметры резервного аварийного освещения должны быть не хуже, чем нормируемые для класса освещения III рассматриваемого вида спорта.
5.5.1 Нормируемые значения освещенности, приведенные в таблицах 5.1 - 5.3, применяются в случае отсутствия телевизионной трансляции на проектируемых спортивных сооружениях. Наличие телевизионной трансляции указывают в задании на проектирование спортивного сооружения.
5.5.2 В случае наличия телевизионной трансляции при проектировании искусственного освещения в местах проведения телевизионной съемки следует обеспечить значения средней вертикальной освещенности, приведенные в таблице 5.5.
|
Категория спортивного сооружения |
Средняя вертикальная освещенность на высоте 1,5 м, лк, не менее |
|
A |
2000 |
|
B |
1600 |
|
C |
1100 |
5.5.3 Отношение средней горизонтальной освещенности к средней вертикальной освещенности в пределах игровой площадки должно быть в диапазоне от 1,0 до 2,0.
5.5.4 Равномерность распределения освещенности в вертикальной плоскости U0 = Eв.мин/Eв.ср и предельная равномерность распределения освещенности в вертикальной плоскости Ud = Eв.мин/Eв.макс в пределах игровой площадки должны соответствовать требованиям таблицы 5.6.
|
Категория спортивного сооружения |
U0 = Eв.мин/Eв.ср |
Ud = Eв.мин/Eв.макс |
|
A |
0,7 |
0,6 |
|
B |
0,6 |
0,5 |
|
C |
0,5 |
0,4 |
5.5.5 Равномерность распределения освещенности в горизонтальной плоскости U0 = Eг.мин/Eг.ср и предельная равномерность распределения освещенности в горизонтальной плоскости Ud = Eг.мин/Eг.макс игровой площадки должны соответствовать требованиям таблицы 5.7.
|
Категория спортивного сооружения |
U0 = Eг.мин/Eг.ср |
Ud = Eг.мин/Eг.макс |
|
A |
0,8 |
0,7 |
|
B |
0,7 |
0,6 |
|
C |
0,7 |
0,5 |
5.5.6 Расчет горизонтальной и вертикальной освещенности и равномерности распределения освещенности U0 и Ud следует проводить по всей площади игрового поля.
5.5.7 Если положение телекамеры известно, то вертикальную освещенность следует рассчитывать в вертикальной плоскости, повернутой только по азимуту перпендикулярно направлению на телекамеру.
В случае отсутствия фиксированных положений телекамер вертикальную освещенность рассчитывают в вертикальных плоскостях в четырех направлениях, перпендикулярно сторонам зоны основной игровой площадки.
5.5.8 Номинальное значение КЦТ должно соответствовать значению 5700 К. Для светодиодных осветительных приборов допустимое отклонение фактического значения КЦТ не должно превышать значений, указанных в ГОСТ 34819-2021 (таблица 19).
5.5.9 Для освещения телевизионных трансляций следует применять осветительные приборы со следующими значениями индексов цветопередачи: общий индекс цветопередачи Ra не менее 90, частный индекс цветопередачи R9 не менее 60.
Примечание - Настоящее требование распространяется не только на игровые площадки, а на любые помещения, в которых проведение телесъемки предусмотрено заданием на проектирование.
5.5.10 Для камер, направленных на игровую площадку, эффект засветки (блики) минимизируется с помощью размещения осветительных приборов (прожекторов) в стороне от их прямого обзора в соответствии с таблицей 5.8.
|
Категория спортивного сооружения |
Угол отклонения оптической оси осветительного прибора (прожектора) от вертикали |
Ни один прожектор не должен быть направлен прямо в объектив телекамеры |
|
A, B |
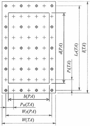
≤ 65° |
Не в пределах конуса 50° |
|
C |
≤ 70° |
Не в пределах конуса 50° |
5.5.11 Отражение от поверхности игровой площадки может влиять на вертикальную освещенность. Для расчета следует использовать значения коэффициента диффузного отражения поверхностей спортивных сооружений, приведенные в таблице 5.9.
|
Поверхность |
Минимальный коэффициент | |
|
Поле с травой |
0,15 | |
|
Спортивный паркет |
0,20 | |
|
Глинистая поверхность корта для тенниса |
0,15 | |
|
Снег |
0,60 | |
|
Песок |
0,10 | |
|
Трек с гаревым покрытием для скачек |
0,05 | |
|
Лед - окрашенный |
0,70 | |
|
Лед - неокрашенный |
0,40 | |
|
Серый декоративный бетон в зависимости от типа |
0,25 | |
|
Декоративная кирпичная кладка |
Красный кирпич |
0,15 |
|
Желтый кирпич |
0,30 | |
|
Известняковый песчаник |
0,50 | |
|
Деревянные поверхности |
Темные |
0,10 |
|
Средней яркости |
0,20 | |
|
Яркие |
0,40 | |
|
Пол |
Темный |
0,10 |
|
Средней яркости |
0,15 | |
|
Яркий |
0,25 | |
5.5.12 Освещенность зон, окружающих игровое поле, в том числе зрительские трибуны, определяется заданием на проектирование.
6.1 Помещения спортивных сооружений с постоянным пребыванием людей должны быть с естественным освещением, кроме указанных в таблицах 5.1 и 5.2 случаев, когда требования к естественному освещению не предъявляются.
6.2 Без естественного освещения разрешается проектировать помещения, приведенные в [1, таблицы 5.53 и 5.54], требования к которым не предъявляются, а также помещения, перечисленные в [4, пункт 4.6.2] и в [5, пункт 2.8.2].
6.3 Естественное освещение спортивных сооружений подразделяется на боковое, верхнее и комбинированное (верхнее и боковое).
6.4 Для верхнего естественного освещения спортивных сооружений применяют зенитные, A-образные, шедовые фонари и световоды естественного света.
Световоды естественного света допускается применять для естественного освещения помещений только в системе комбинированного освещения в качестве верхнего света.
6.5 В спортивных сооружениях нормируют КЕО.
В таблице 5.1 приведены значения КЕО в спортивных сооружениях по видам спорта.
6.6 Требования к естественному освещению помещений ФОК приведены в таблице 5.2.
6.7 Спортивные залы, за исключением ледовых арен, залов с ледовым покрытием, должны быть с естественным освещением. Площадь естественного освещения определяют исходя из нормируемых значений КЕО, приведенных в таблицах 5.1 и 5.2.
6.8 Равномерность естественного освещения спортивных залов с верхним или комбинированным освещением должна быть не менее 1:3.
6.9 В спортивных залах предусматривают боковое или верхнее, или комбинированное естественное освещение.
6.10 Световые проемы верхнего освещения размещают только над той частью пола зального помещения, освещение которой не обеспечивается боковыми световыми проемами.
6.11 Ориентацию световых проемов по сторонам горизонта при одностороннем освещении следует принимать в центральных и северных районах страны (> 45°) на юго-восток, а в южных районах (<45°) - на северо-восток.
В залах со световыми проемами с двух и более сторон основные (расположенные на высоте 2 м от пола) световые проемы должны быть ориентированы по линии восток-запад.
При вынужденной ориентации световых проемов на юго-запад или запад необходимо предусматривать применение светорассеивающих материалов для заполнения проемов или наружных солнцезащитных устройств (экранов, козырьков, жалюзи, систем вертикального озеленения), обеспечивающих необходимую солнцезащиту от слепящего и теплового воздействий солнечных лучей в соответствии с СП 370.1325800.
Предохранение от слепящего воздействия солнечных лучей следует предусматривать и в случаях расположения площадок поперек зала для спортивных игр, при котором оконные проемы оказываются в торцах поля для игры.
6.12 Проектирование естественного освещения спортивных сооружений следует выполнять в два этапа.
Первый этап выполняют в такой последовательности:
- определяют требования, предъявляемые к конкретному виду спорта, для которого предназначено спортивное сооружение;
- выбирают типы световых проемов и светопропускающих материалов;
- выбирают средства для ограничения слепящего воздействия прямого солнечного света с учетом ориентации здания и световых проемов по сторонам горизонта;
- осуществляют предварительный расчет естественного освещения помещений с определением необходимой площади световых проемов по СП 367.1325800;
- уточняют параметры световых проемов и помещений.
На втором этапе проектирования:
- выполняют проверочный расчет естественного освещения помещений по СП 367.1325800;
- определяют помещения, зоны и участки с недостаточным по нормам естественным освещением;
- определяют требования к дополнительному искусственному освещению помещений, зон и участков с недостаточным естественным освещением;
- определяют требования к эксплуатации световых проемов;
- при необходимости вносят коррективы в проект естественного освещения и выполняют повторный проверочный расчет по СП 367.1325800.
6.13 Систему естественного освещения спортивных сооружений (боковое, верхнее или комбинированное) следует выбирать с учетом перечисленных ниже факторов:
- назначение и принятые архитектурно-планировочное, объемно-пространственное и конструктивное решения здания;
- требования к естественному освещению помещений, вытекающие из особенностей зрительной работы;
- климатические и светоклиматические особенности места строительства;
- экономичность естественного освещения по энергетическим затратам.
7.1 Технико-экономическая оценка освещения заключается в определении срока окупаемости дополнительных единовременных вложений, требующихся для изменения системы освещения помещения.
7.2 Технико-экономическую оценку осуществляют в такой последовательности:
- определяют нормированные значения КЕО для помещения при естественном и совмещенном освещении;
- определяют нормы искусственной освещенности в соответствии с разрядом и подразрядом зрительных работ в соответствии с СП 52.13330;
- определяют расчетное значение КЕО eр;
- расчетное значение КЕО eр сравнивают с нормируемым значением, при этом возможны три условия:
1) eр более нормированного - допускается уменьшение размеров светопроемов, и дальнейший технико-экономический расчет может быть проведен для сравнения вариантов систем естественного освещения с различными размерами светопроемов;
2) eр более 0,8 нормированного - допускается увеличение размеров светопроемов, и дальнейший технико-экономический расчет может быть проведен для сравнения вариантов систем естественного освещения с различными размерами светопроемов;
3) eр более нормированного при совмещенном освещении, но менее 0,8 нормированного при естественном освещении - допускается увеличение размеров светопроемов, и дальнейший технико-экономический расчет может быть проведен для сравнения варианта системы естественного освещения с увеличенными размерами светопроемов с вариантом системы совмещенного освещения без увеличения размеров светопроемов.
7.3 В случае выполнения условия 3) 7.2 в исследуемом помещении изменяют систему освещения. При этом рассматривают два варианта изменения системы:
1) в рассматриваемой системе освещения помещения нормы искусственной освещенности повышают на одну ступень в соответствии с СП 52.13330.2016 (пункт 6.6). Характеристики этой системы освещения обозначают индексом 1;
2) изменяют систему естественного освещения, отличающуюся увеличением площади светопроемов. Эта система естественного освещения помещения должна обеспечивать расчетное значение КЕО не менее 0,8 нормированного. Характеристики этой системы освещения обозначают индексом 2.
7.4 Сравнение затрат для вариантов возможных изменений системы освещения помещения проводят в такой последовательности:
а) рассчитывают разницу единовременных затрат ΔК на первую и вторую системы естественного освещения помещения по формуле
ΔК = К2 - К1 = (А2 - А1)(ξок - ξст), (7.1)
где A1 и A2 - площади светопроемов, м2;
ξок - цена заполнения светопроема, руб./м2;
ξст - цена возведения ограждающей конструкции, в которой расположен светопроем, руб./м2;
б) рассчитывают разницу теплопоступлений через световые проемы между первой и второй системами естественного освещения помещения в течение отопительного периода.
Теплопоступления через светопроем с ориентацией j, кВт·ч/год, рассчитывают по формуле
Qрад = gок·τ2ок·A·Ijвер·0,28·10-6, (7.2)
где Ijвер - суммарная радиация за отопительный период для вертикальной поверхности, ориентированной по направлению j, МДж/(год·м2);
A - площадь окна, ориентированного по направлению j, м2;
gок - коэффициент общего пропускания солнечной энергии светопрозрачной частью, относительные единицы;
τ2ок - коэффициент, учитывающий затенение светового проема непрозрачными элементами заполнения, относительные единицы.
Тогда разница теплопоступлений через световые проемы между первой и второй системами естественного освещения составит
ΔQрад = Qрад2 - Qрад1 = Ijверgок·(τ2ок2А2 - τ2ок1А1)·0,28·10-6; (7.3)
в) рассчитывают разницу теплопотерь через световые проемы между первой и второй системами естественного освещения помещения в течение отопительного периода, кВт·ч/год, по формуле
(7.4)
где ГСОП - градусо-сутки отопительного периода района строительства, °C·сут/год [6]; определяют по формуле
ГСОП = (tв - tот.пер)zот.пер, (7.5)
здесь tв - нормируемая температура внутреннего воздуха, °C;
tот.пер - средняя температура отопительного периода района строительства, °C, определяемая по СП 50.13330;
zот.пер - продолжительность отопительного периода района строительства, сут/год, определяемая по СП 50.13330;
Rокпр - приведенное сопротивление теплопередаче заполнения светопроема, м2·°C/Вт;
Rстпр - приведенное сопротивление теплопередаче ограждающей конструкции, в которой расположен светопроем, м2·°C/Вт;
г) рассчитывают разницу среднегодовых затрат на потери теплоты за отопительный период ΔЗт, обусловленную изменением системы естественного освещения помещения, с учетом притока тепла от солнечной радиации через светопроемы по формуле
ΔЗт = (ΔQТП - ΔQрад)·СТ, (7.6)
где Cт - перспективная цена тепловой энергии, руб./(кВт·ч);
д) рассчитывают разницу среднегодовых затрат на потребление электрической энергии ΔЗэ, обусловленную изменением системы естественного освещения помещения, по формуле
ΔЗэ = (N2∑z2 - N1∑z1)Сэ, (7.7)
где N1, N2 - удельная установленная мощность системы искусственного освещения помещения, Вт/м2, для вариантов 1 и 2 определяют по СП 52.13330;
∑z1, ∑z2 - продолжительность использования искусственного освещения в помещении, ч/год, для вариантов 1 и 2; определяют расчетом;
Cэ - перспективная цена электрической энергии, руб.;
е) рассчитывают разницу среднегодовых эксплуатационных затрат по формуле
ΔЭ = (ΔЗт - ΔЗэ). (7.8)
7.5 Проверяют условие окупаемости затрат на изменение системы естественного освещения помещения с 1-го варианта на 2-й вариант:
ΔК ≤ ΔЭ/(р/100), (7.9)
где p - процентная ставка по кредитным денежным средствам банка-кредитора (иной кредитной организации), %.
Если условие (7.9) не выполняется, то это означает, что затраты на изменение системы естественного освещения помещения в соответствии со 2-м вариантом не окупятся и выгоднее принять 1-й вариант системы естественного освещения, т.е. повысить нормы искусственного освещения помещения на ступень. На этом технико-экономический расчет заканчивают.
7.6 При выполнении условия (7.9) проводят расчет срока окупаемости измененной системы естественного освещения помещения по формуле
Т0 = ln[1/(1 - (ΔК/ΔЭ)·(р/100))]/ln(1 + р/100). (7.10)
Проводят сопоставление расчетного срока окупаемости измененной системы естественного освещения помещения с принятым предельно допустимым значением Tо.доп. Если T0
Приложение А
(обязательное)
А.1 В расчетах применяют сетку контрольных точек, которые размещают в узлах прямоугольной решетки в пределах контрольной площадки. В контрольную площадку могут входить игровая площадка PA и игровая зона TA. Расчеты проводят на уровне покрытия для горизонтальной освещенности, а для вертикальной освещенности - на уровне 1,5 м над землей, если не требуется иное в соответствии с таблицами 5.1 - 5.3.
А.2 Для расчетов следует использовать прямоугольную сетку контрольных точек. Освещенность рассчитывают в каждом узле сетки. Количество точек, в которых проводят расчет освещенности, допускается уменьшать в четыре раза в соответствии с рисунками А.1 и А.2. Точки сетки определяют длиной и шириной игровой площадки PA или игровой зоны TA в соответствии с рисунком А.1 или, например, для дорожки в соответствии с рисунком А.2 - четвертью длины и ее внутренней границей и шириной, как описано в А.3.
|
|
|
|
а) Игровая площадка PA |
б) Игровая зона TA |
Pw(PA) - шаг расчетной сетки по ширине игровой плошадки (PA);
Pw(TA) - шаг расчетной сетки по ширине игровой зоны (TA);
d(PA) - длина игровой площадки (PA);
b(PA) - ширина игровой площадки (PA);
Pl(PA) - шаг расчетной сетки по длине игровой площадки (PA);
Pl(TA) - шаг расчетной сетки по длине игровой зоны (TA);
W(TA) - ширина игровой зоны (TA);
WP(PA) - ширина расчетной сетки игровой площадки;
WP(TA) - ширина расчетной сетки игровой зоны;
l(TA) - длина игровой зоны (TA);
LP(PA) - длина расчетной сетки игровой площадки;
LP(TA) - длина расчетной сетки игровой зоны;
+ - расчетная точка;
- контрольная точка
Рисунок А.1 - Пример расположения контрольных точек на игровой площадке и в игровой зоне

Обозначения:
a - внутренняя граница дорожки;
W(PA) - ширина дорожки (PA);
WP(PA) - ширина расчетной сетки дорожки (PA);
Pl(PA) - шаг расчетной сетки по длине дорожки (PA);
PW(PA) - шаг расчетной сетки по ширине дорожки (PA);
+ - расчетная точка;
- контрольная точка;
l - длина игровой зоны (TA)
Рисунок А.2 - Контрольные точки для расчета освещенности дорожки
В закрытых помещениях результаты расчетов освещенности в зоне шириной 0,5 м вблизи стен, вблизи крупногабаритных стационарных объектов, таких как ринг, а также непосредственно под стационарным спортивным оборудованием не учитывают.
А.3 Для непрямоугольных игровых площадок (например, дорожки для легкой атлетики) расчеты выполняют с помощью прямоугольной сетки, однако в таком случае интервалы между расчетными точками должны быть достаточно малыми, чтобы игровая зона включала в себя достаточное количество точек. Длина l составляет 25% общей длины кольцевой дорожки, как показано на рисунке А.2.
А.4 Размер ячейки сетки контрольных точек p по длине и по ширине площадки, м, определяют по формуле
p = 0,2·5lg(d), (А.1)
где d - наибольший размер (длина) расчетной зоны, м.
Число точек сетки по длине или ширине определяется ближайшим нечетным целым числом к величине отношения d/p.
Соотношение длины и ширины ячейки сетки контрольных точек должно составлять от 0,2 до 5.
А.5 В многоцелевых спортивных сооружениях, где в пределах площади зала размечено несколько игровых площадок (например, многоцелевой спортивный зал), расчет выполняют по всей площади для определения числа точек сетки контрольных точек в соответствии с формулой (А.1). Проверка результатов расчетов должна быть сделана также для отдельных игровых площадок в пределах игровой зоны с использованием сеток контрольных точек, определенных для каждой игровой площадки для различных видов спорта (например, бадминтона, баскетбола, волейбола).
Библиография
[1] СанПиН 1.2.3685-21 Гигиенические нормативы и требования к обеспечению безопасности и (или) безвредности для человека факторов среды обитания
[2] Постановление Правительства Российской Федерации от 24 декабря 2020 г. N 2255 "Об утверждении требований к осветительным устройствам и электрическим лампам, используемым в цепях переменного тока в целях освещения"
[3] ПУЭ Правила устройства электроустановок (6-е, 7-е изд.)
[4] СП 2.1.3678-20 Санитарно-эпидемиологические требования к эксплуатации помещений, зданий, сооружений, оборудования и транспорта, а также условиям деятельности хозяйствующих субъектов, осуществляющих продажу товаров, выполнение работ или оказание услуг
[5] СП 2.4.3648-20 Санитарно-эпидемиологические требования к организациям воспитания и обучения, отдыха и оздоровления детей и молодежи
[6] СП 23-101-2004 Проектирование тепловой защиты зданий




