СП 511.1325800.2022 (09.01.2024) ПОСАДОЧНЫЕ ПЛОЩАДКИ. ПРАВИЛА ПРОЕКТИРОВАНИЯ
Утв. и введен в действие Приказом Министерства строительства и жилищно-коммунального хозяйства РФ от 10 февраля 2022 г. N 90/пр
Landing sites. Design rules
Дата введения - 11 марта 2022 года
Предисловие
Сведения о своде правил
1 ИСПОЛНИТЕЛИ - Акционерное общество "Центральный научно-исследовательский и проектно-экспериментальный институт промышленных зданий и сооружений - ЦНИИПромзданий" (АО "ЦНИИПромзданий"), Федеральное государственное унитарное предприятие "Государственный проектно-изыскательский и научно-исследовательский институт гражданской авиации "Аэропроект" (ФГУП ГПИ и НИИ ГА "Аэропроект")
2 ВНЕСЕН Техническим комитетом по стандартизации ТК 465 "Строительство"
3 ПОДГОТОВЛЕН к утверждению Департаментом градостроительной деятельности и архитектуры Министерства строительства и жилищно-коммунального хозяйства Российской Федерации (Минстрой России)
4 УТВЕРЖДЕН приказом Министерства строительства и жилищно-коммунального хозяйства Российской Федерации от 10 февраля 2022 г. N 90/пр и введен в действие с 11 марта 2022 г.
5 ЗАРЕГИСТРИРОВАН Федеральным агентством по техническому регулированию и метрологии
6 ВВЕДЕН ВПЕРВЫЕ
В случае пересмотра (замены) или отмены настоящего свода правил соответствующее уведомление будет опубликовано в установленном порядке. Соответствующая информация, уведомление и тексты размещаются также в информационной системе общего пользования - на официальном сайте разработчика (Минстрой России) в сети Интернет
Введение
Настоящий свод правил разработан в целях обеспечения соблюдения требований Федерального закона от 30 декабря 2009 г. N 384-ФЗ "Технический регламент о безопасности зданий и сооружений" и с учетом требований Федеральных законов от 27 декабря 2002 г. N 184-ФЗ "О техническом регулировании", от 22 июля 2008 г. N 123-ФЗ "Технический регламент о требованиях пожарной безопасности", от 29 июня 2015 г. N 162-ФЗ "О стандартизации в Российской Федерации".
Свод правил разработан авторским коллективом АО "ЦНИИПромзданий" (руководитель темы - канд. техн. наук Н.Г. Келасьев, И.П. Потапов), ФГУП ГПИ и НИИ ГА "Аэропроект" (руководитель темы - канд. техн. наук М.Д. Суладзе, канд. техн. наук Н.С. Ледовская, канд. техн. наук В.А. Сабуренкова, Ю.Б. Скоробогатая, В.В. Морозов, Э.С. Цопанов, М.В. Годынский, И.В. Орехов, В.А. Хохлов).
Изменение N 1 к настоящему своду правил разработано авторским коллективом ФГУП ГПИ и НИИ ГА "Аэропроект" (руководитель темы - канд. техн. наук М.Д. Суладзе, канд. техн. наук - Н.С. Ледовская, Э.С. Цопанов, А.Ю. Бочарова, М.В. Годынский, В.Г. Качановский, В.В. Морозов, И.В. Орехов, Ю.Б. Скоробогатая, В.А. Хохлов).
Настоящий свод правил устанавливает требования к проектированию и распространяется на вновь строящиеся и реконструируемые посадочные площадки, расположенные на территории Российской Федерации и предназначенные для выполнения полетов воздушных судов гражданской авиации, за исключением площадок, приподнятых над поверхностью, а также используемых менее 30 сут в течение календарного года.
В настоящем своде правил использованы нормативные ссылки на следующие документы:
ГОСТ 22283-2014 Шум авиационный. Допустимые уровни шума на территории жилой застройки и методы его измерения
СП 47.13330.2016 "СНиП 11-02-96 Инженерные изыскания для строительства. Основные положения" (с изменением N 1)
СП 121.13330.2019 "СНиП 32-03-96 Аэродромы" (с изменением N 1)
СП 478.1325800.2019 Здания и комплексы аэровокзальные. Правила проектирования (с изменением N 1)
СП 488.1325800.2020 Аэродромы и посадочные площадки с покрытиями облегченного типа
Примечание - При пользовании настоящим сводом правил целесообразно проверить действие ссылочны документов в информационной системе общего пользования - на официальном сайте федерального органа исполнительной власти в сфере стандартизации в сети Интернет или по ежегодному информационному указателю "Национальные стандарты", который опубликован по состоянию на 1 января текущего года, и по выпускам ежемесячного информационного указателя "Национальные стандарты" за текущий год. Если заменен ссылочный документ, на который дана недатированная ссылка, то рекомендуется использовать действующую версию этого документа с учетом всех внесенных в данную версию изменений. Если заменен ссылочный документ, на который дана датированная ссылка, то рекомендуется использовать версию этого документа с указанным выше годом утверждения (принятия). Если после утверждения настоящего свода правил в ссылочный документ, на который дана датированная ссылка, внесено изменение, затрагивающее положение, на которое дана ссылка, то это положение рекомендуется применять без учета данного изменения. Если ссылочный документ отменен без замены, то положение, в котором дана ссылка на него, рекомендуется применять в части, не затрагивающей эту ссылку. Сведения о действии сводов правил целесообразно проверить в Федеральном информационном фонде стандартов.
3.1 Термины и определения
В настоящем своде правил применены термины согласно СП 121.13330, а также следующие термины с соответствующими определениями:
3.1.1 боковая полоса безопасности: Специально подготовленный участок летной полосы, примыкающий к боковой границе взлетно-посадочной полосы, предназначенный для обеспечения безопасности при взлете и посадке воздушных судов.
3.1.2 защитная зона: Установленная зона на поверхности посадочной площадки для вертолетов вокруг мест стоянки, предназначенная для уменьшения опасности нанесения вертолетами повреждения в случае их непреднамеренного перемещения за пределы стоянки.
3.1.3 зона безопасности: Определенный участок посадочной площадки для вертолетов вокруг зоны конечного этапа захода на посадку и взлета, свободный от препятствий, кроме препятствий, по своему функциональному назначению необходимых аэронавигации, и предназначенный для уменьшения опасности повреждения вертолетов в случае непреднамеренного выхода за пределы FATO.
3.1.4
|
зона конечного этапа захода на посадку и взлета; (FATO): Установленная зона, над которой выполняется конечный этап маневра захода на посадку до режима висения или посадка и с которой начинается маневр взлета. [2, приложение 14, том II, пункт 1.1] |
3.1.5 зона прерванного взлета: Определенная зона на поверхности посадочной площадки для вертолетов, пригодная для осуществления прерванного взлета вертолетами.
3.1.6 зона приземления и отрыва; TLOF: Определенная зона на поверхности посадочной площадки для вертолетов, на которой вертолет может выполнять непосредственно приземление (до касания с поверхностью) или отрыв от поверхности.
3.1.7 зона FATO типа ВПП: Зона FATO, по геометрическим характеристикам аналогичная ВПП.
3.1.8 контрольная точка посадочной площадки: Точка, определяющая географическое положение посадочной площадки.
3.1.9 маршрут руления вертолета: Определенная траектория, установленная для передвижения вертолетов из одной части посадочной площадки для вертолетов в другую.
3.1.10 место стоянки вертолета: Определенная площадь поверхности посадочной площадки, предназначенная для размещения вертолета в целях посадки и высадки пассажиров, погрузки или выгрузки почты или других грузов, заправки, стоянки или технического обслуживания, а в тех случаях, когда предполагается выполнение руления по воздуху - для ее использования в качестве TLOF.
3.1.11 воздушный маршрут руления вертолета: Обозначенный маршрут руления, предназначенный для руления по воздуху.
3.1.12 наземный маршрут руления вертолета: Маршрут руления, проходящий по осевой линии рулежной дорожки.
3.1.13
|
посадочная площадка: Участок земли, льда, поверхности сооружения, в том числе поверхности плавучего сооружения, либо акватория, предназначенные для взлета, посадки или для взлета, посадки, руления и стоянки воздушных судов. [1, статья 40, пункт 7] |
3.1.14 посадочная площадка для самолетов: Посадочная площадка, предназначенная для взлета, посадки или для взлета, посадки, руления и стоянки самолетов.
3.1.15 посадочная площадка для вертолетов: Посадочная площадка, предназначенная для взлета, посадки или для взлета, посадки, руления и стоянки вертолетов.
3.1.16 препятствие в районе посадочной площадки: Все неподвижные (временные или постоянные) и подвижные объекты или их части, которые размещены в зоне, предназначенной для наземного движения воздушных судов, или возвышаются над установленной поверхностью, предназначенной для защиты воздушных судов в полете, или находятся вне таких установленных поверхностей и по результатам оценки представляют опасность для аэронавигации.
3.1.17 рулежная дорожка для вертолетов: Определенная траектория на поверхности посадочной площадки для вертолетов, предназначенная для наземного движения вертолетов, которая может быть объединена с воздушным маршрутом руления, что позволяет выполнять руление как по земле, так и по воздуху.
3.1.18 исключен с 10.02.2024. - Изменение N 1
3.2 Сокращения
В настоящем своде правил применены следующие сокращения:
D - наибольший габаритный размер вертолета во время вращения винта (винтов), равный расстоянию от передней оконечной точки плоскости вращения несущего винта до задней оконечной точки плоскости вращения хвостового винта либо до задней точки конструкции вертолета;
FATO - зона конечного этапа захода на посадку и взлета;
OFZ - зона, свободная от препятствий;
PAPI - указатель траектории точного захода на посадку;
RD - диаметр несущего винта вертолета;
TLOF - зона приземления и отрыва;
БЛА - беспилотный летательный аппарат;
БПБ - боковая полоса безопасности;
ВГП - внутренняя горизонтальная поверхность;
ВМУ - визуальные метеорологические условия;
ВПП - взлетно-посадочная полоса;
ВС - воздушное судно;
ГВПП - взлетно-посадочная полоса с грунтовым покрытием;
ГП - горизонтальная поверхность;
ЗП - поверхность захода на посадку;
ИВПП - взлетно-посадочная полоса с искусственным покрытием;
КДП - командно-диспетчерский пункт;
КП - коническая поверхность;
ЛП - летная полоса;
ЛЭП - линии электропередач;
МС - место стоянки;
ОВЧ - очень высокие частоты;
ОПРС - отдельная приводная радиостанция;
ПВ - поверхность взлета;
ПВП - правила визуальных полетов;
ПМПУ - посадочный магнитный путевой угол;
ПП - переходная поверхность;
ППП - правила полетов по приборам;
РД - рулежная дорожка;
РЛЭ - руководство по летной эксплуатации;
СПЗ - служебно-пассажирское здание;
ССО - светосигнальное оборудование;
ТЗБ - торцевая зона безопасности.
4.1 Посадочные площадки предназначены для взлета, посадки или для взлета, посадки, руления и стоянки:
- самолетов;
- вертолетов.
4.2 Посадочные площадки для самолетов могут располагаться на подготовленной поверхности земли или акватории.
4.3 Посадочная площадка для самолетов может использоваться для взлета, посадки или для взлета, посадки, руления и стоянки вертолетов.
4.4 Посадочные площадки для вертолетов могут располагаться на подготовленной поверхности земли, акватории, зданий или сооружений, на морских и речных судах, плавучих и стационарных платформах.
4.5 Посадочные площадки для вертолетов, расположенные на поверхности земли или на поверхности сооружения в акватории, следует считать посадочными площадками на поверхности.
4.6 Посадочные площадки для вертолетов, расположенные на зданиях, сооружениях, стационарных платформах, приподнятых конструкциях следует считать посадочными площадками, приподнятыми над поверхностью.
4.7 Посадочные площадки для вертолетов, расположенные на морских и речных судах, на стационарных или плавучих платформах в открытом море, следует считать посадочными площадками на палубах (палубными посадочными площадками).
4.8 Посадочные площадки для самолетов и вертолетов могут быть также использованы для осуществления с них полетов БЛА, при условии соответствия указанных площадок конструктивным особенностям БЛА.
4.9 Состав объемных зданий и сооружений наземной инфраструктуры посадочных площадок определяется на этапе разработки технического задания на проектирование с учетом функционального назначения посадочной площадки в соответствии с действующими нормативными и правовыми актами.
4.10 Исключен с 10.02.2024. - Изменение N 1
5.1 Проектируемые посадочные площадки для самолетов следует размещать за пределами населенных пунктов.
Следует, по возможности, исключать размещение посадочных площадок или их отдельных элементов на особо охраняемых природных территориях или предусматривать дополнительные инженерные мероприятия, позволяющие обеспечивать безопасный уровень воздействия на них.
5.2 За расчетное приближение посадочной площадки для самолетов к границам населенных пунктов следует принимать наибольшее расстояние, полученное на основе учета следующих факторов:
- обеспечения безопасности полетов (в том числе исключение столкновения ВС с препятствиями);
- допустимого уровня авиационного шума;
- допустимой концентрации загрязняющих веществ в атмосферном воздухе;
- допустимого уровня электромагнитного излучения от передающих радиотехнических средств, устанавливаемых на посадочной площадке.
5.3 В районах распространения вечномерзлых грунтов следует предусматривать мероприятия, направленные на предупреждение возникновения и активизации термокарста, термоэрозии, термоабразии, пучения, морозного растрескивания, солифлюкции, наледеобразования и других криогенных процессов.
5.4 Посадочные площадки для вертолетов, расположенные в непосредственной близости или в черте населенных пунктов, следует проектировать с учетом соблюдения факторов, перечисленных в 5.2.
5.5 Исключен с 10.02.2024. - Изменение N 1
5.6 При планировании размещения посадочной площадки следует выполнять оценку высотных объектов на посадочных площадках согласно приложению Б.
Посадочные площадки для самолетов
Посадочные площадки для самолетов, предназначенные для коммерческих воздушных перевозок и выполнения авиационных работ
5.7 В составе элементов посадочных площадок для самолетов следует предусматривать:
- летные полосы, в том числе ИВПП и (или) ГВПП;
- рулежные дорожки;
- перроны;
- места стоянки ВС.
При необходимости в составе элементов посадочных площадок для самолетов могут предусматриваться:
- площадки специального назначения;
- свободные зоны.
5.8 Посадочные площадки для самолетов подразделяются на классы А, Б, В, Г, Д, Е.
Класс посадочной площадки для самолетов определяется классом ее ВПП.
Класс ВПП посадочной площадки для самолетов определяется исходя из длины ВПП в стандартных условиях по таблице 5.1.
Таблица 5.1
|
Показатель |
Класс ВПП посадочной площадки для самолетов | |||||
|
А |
Б |
В |
Г |
Д |
Е | |
|
Минимальная длина ВПП в стандартных условиях, м, не менее |
3200 |
2600 |
1800 |
1300 |
1000 |
500 |
|
Примечание - Стандартные условия определяются сочетанием стандартных атмосферных условий: температура воздуха 15 °C, атмосферное давление 101325 Па (760 мм рт. ст.), относительная влажность воздуха 0% с нулевым превышением над уровнем моря, отсутствием ветра и нулевым уклоном ВПП. | ||||||
При наличии на посадочной площадке для самолетов двух и более ВПП, класс посадочной площадки определяется классом ВПП, с наибольшей длиной в стандартных условиях.
Посадочные площадки с минимальной длиной ВПП в стандартных условиях менее 500 м - неклассифицированные.
Для ГВПП значения минимальной длины в стандартных условиях, приведенные в таблице 5.1, необходимо увеличивать на 10%.
5.9 При выборе направления и расположения ЛП следует учитывать метеорологические факторы (ветровой режим, туман, дымку, низкую облачность и пр.), наличие препятствий в районе посадочной площадки для самолетов, направление и расположение ЛП соседних аэродромов и посадочных площадок, перспективы развития прилегающих к посадочной площадке для самолетов населенных пунктов, рельеф местности, особенности зимней эксплуатации посадочной площадки.
5.10 Ширина ВПП посадочной площадки для самолетов должна быть постоянной по длине и не менее:
60 м - для ВПП класса А;
45 м - для ВПП класса Б;
42 м - для ВПП класса В;
35 м - для ВПП класса Г;
28 м - для ВПП класса Д;
21 м - для ВПП класса Е;
18 м - для неклассифицированных ВПП <1>.
--------------------------------
<1> Для ВПП длиной в стандартных условиях менее 400 м допускается назначение ширины ВПП, исходя из летно-технических характеристик ВС, полеты которых планируются с посадочной площадки.
5.10а Если в эксплуатационной документации ВС, планируемых для выполнения полетов на посадочной площадке для самолетов, указана иная ширина ГВПП, то ширину ГВПП следует принимать, исходя из эксплуатационной документации ВС с максимальным размахом крыла вне зависимости от класса посадочной площадки.
5.11 Размер ЛП за каждым концом ВПП должен быть не менее 150 м для ВПП классов А, Б, В, Г, Д и 60 м - для ВПП класса Е и неклассифицированных ВПП.
Размер ЛП за каждым концом неклассифицированных ВПП может быть 30 м при условии использования ВПП только по правилам визуальных полетов.
5.12 Размер ЛП, включающей оборудованную ВПП, должен быть в поперечном направлении по обе стороны от оси ВПП не менее:
150 м - для ВПП классов А, Б, В, Г;
75 м - для ВПП классов Д, Е, неклассифицированных ВПП.
5.13 Размер летной полосы, включающей необорудованную ВПП, должен быть в поперечном направлении по обе стороны от оси ВПП не менее:
80 м - для ВПП классов А, Б;
70 м - для ВПП класса В;
65 м - для ВПП класса Г;
55 м - для ВПП класса Д;
40 м - для ВПП класса Е;
30 м - для неклассифицированных ВПП.
5.14 Часть ЛП, примыкающая к ВПП по обе стороны от ее оси должна быть спланирована и подготовлена таким образом, чтобы снижать риски повреждения самолета при выкатывании за пределы ВПП.
Спланированная часть ЛП должна простираться от оси ВПП на расстояние не менее:
80 м - для ВПП классов А, Б;
70 м - для ВПП класса В;
65 м - для ВПП класса Г;
55 м - для ВПП класса Д;
40 м - для ВПП класса Е;
30 м - для неклассифицированных ВПП.
Спланированная часть ЛП должна простираться от оси необорудованной ВПП классов Г, Д, Е с грунтовым покрытием на расстояние не менее:
50 м - для ВПП класса Г;
25 м - для ВПП классов Д, Е, неклассифицированных ВПП.
5.15 В пределах спланированной части ЛП допускается размещение объектов, которые по своему функциональному назначению должны находиться на этой части ЛП. Конструкция таких объектов должна быть легкой и ломкой.
5.16 В пределах от границы спланированной части ЛП до ее внешней границы не должно быть объектов, кроме тех, функциональное назначение которых требует их размещения вблизи ВПП и не допускает размещения в ином месте.
В этих пределах не должны размещаться новые или увеличиваться в размерах существующие объекты, за исключением случаев, когда размещение нового или увеличение в размерах существующего объекта:
- необходимо для обеспечения взлетов и посадок самолетов;
- не окажет неблагоприятного воздействия на безопасность полетов.
5.17 Ветровая загрузка ЛП посадочной площадки для самолетов определяется в соответствии с требованиями СП 121.13330.
5.18 Для обеспечения безопасного разворота самолета на ВПП при отсутствии РД, примыкающей к концевому участку ВПП, или при ее недостаточной прочности, предусматривается уширение ВПП на ее концах. Ширина ВПП в местах уширения должна быть не менее 75 м для ВПП классов А, Б, В и не менее 45 м для ВПП классов Г, Д.
Для ВПП классов Е и неклассифицированных ВПП необходимость устройства и параметры уширения определяются исходя из летно-технических характеристик самолетов, полеты которых планируются с посадочной площадки.
5.19 Количество и конфигурация РД посадочной площадки для самолетов определяется исходя из типов самолетов, полеты которых планируются с посадочной площадки.
5.20 Ширина РД назначается исходя из максимального индекса самолета, для эксплуатации которого предназначена РД и должна быть не менее:
7 м - для самолетов индекса 1;
10 м - для самолетов индекса 2;
13 м - для самолетов индекса 3;
17 м - для самолетов индекса 4;
19 м - для самолетов индекса 5;
22,5 м - для самолетов индексов 6, 7.
Для самолетов индексов 1, 2, 3 ширину РД допускается определять по формуле
Bрд = Bш + 2·C1, (5.1)
где Bш - расстояние между внешними кромками колес основного шасси ВС, м;
C1 - безопасное расстояние от внешнего колеса основного шасси до края РД (для самолетов индекса 1 - 1,5 м; индексов 2, 3 - 2,0 м).
Индекс самолета устанавливается по размаху крыла и колее шасси по внешним авиашинам согласно таблице В.1.
5.21 На РД, предназначенных для эксплуатации самолетов индексов 4, 5, 6, 7 следует предусматривать устройство обочин. Общая ширина РД и обочин должна составлять не менее:
27,0 м - для самолетов индекса 4;
29,0 м - для самолетов индекса 5;
40,5 м - для самолетов индекса 6;
не менее значения, превышающего на 4 м расстояние между внешними двигателями самолетов индекса 7.
5.22 В целях обеспечения безопасного руления самолетов по РД посадочных площадок устанавливаются следующие минимальные безопасные расстояния между осью РД и неподвижными препятствиями:
21,5 м - для самолетов индекса 1;
26,0 м - для самолетов индексов 2, 3;
35,5 м - для самолетов индексов 4, 5;
47,5 м - для самолетов индекса 6;
57,5 м - для самолетов индекса 7.
Для самолетов индексов 1, 2, 3 минимальные безопасные расстояния между осью РД и неподвижными препятствиями допускается определять по формуле
Lрд = Lр/2 + C2, (5.2)
где Lр - размах крыла самолета, м;
C2 - безопасное расстояние от крыла самолета до неподвижного препятствия при рулении по РД (для самолетов индекса 1 - 9,5 м; индексов 2, 3 - 10,0 м).
5.23 Для обеспечения безопасного руления самолетов по перронам посадочных площадок устанавливаются следующие минимальные безопасные расстояния между осью руления самолета и неподвижными препятствиями:
16 м - для самолетов индекса 1;
22 м - для самолетов индексов 2, 3;
28,5 м - для самолетов индексов 4, 5;
40 м - для самолетов индекса 6;
47,5 м - для самолетов индекса 7.
Для самолетов индексов 1, 2, 3 минимальные безопасные расстояния между осью руления самолета по перрону и неподвижными препятствиями допускается определять по формуле
Lперрон = Lр/2 + C3, (5.3)
где Lр - размах крыла самолета, м;
C3 - безопасное расстояние от крыла самолета до неподвижного препятствия при рулении по перрону (для самолетов индекса 1 - 4,0 м; индексов 2, 3 - 6,0 м).
5.24 Расположение МС самолетов на перронах посадочных площадок должно обеспечивать следующие минимальные расстояния между крайними точками крыльев соседних самолетов:
3 м - для самолетов индекса 1;
5 м - для самолетов индексов 2, 3;
7,5 м - для самолетов индексов 4, 5, 6, 7.
5.25 В случае эксплуатации отдельных элементов посадочных площадок для самолетов вертолетами допускается проектирование этих элементов в соответствии с требованиями настоящего свода правил в части касающейся посадочных площадок для вертолетов, расположенных на поверхности.
Вертикальная планировка
5.26 Максимальные продольные и поперечные уклоны элементов посадочных площадок для самолетов следует принимать по таблицам Г.1 и Г.2.
5.27 При реконструкции существующих посадочных площадок допускается увеличивать значения поперечных и продольных уклонов, приведенных в таблицах Г.1, Г.2, Г.3, но не более чем на 20%.
5.28 Поперечный профиль летной полосы посадочных площадок следует проектировать без устройства грунтовых лотков в пределах летной полосы. Устройство грунтовых лотков в пределах летной полосы допускается предусматривать в исключительных случаях при технико-экономическом обосновании, учитывая гидрологические, гидрогеологические и инженерно-геологические условия местности.
5.29 Поперечный профиль ВПП и РД посадочных площадок в зависимости от особенностей рельефа местности и принятой схемы водоотвода допускается предусматривать как двухскатным, так и односкатным.
Поперечные уклоны поверхности элементов посадочных площадок для самолетов с искусственным покрытием должны быть не менее:
0,008 - для ВПП;
0,005 - для РД, МС, перронов, площадок специального назначения.
5.30 Поперечный и продольный уклоны поверхности элементов посадочных площадок с грунтовым покрытием должны быть не менее:
0,007 - при глинистых и суглинистых грунтах;
0,005 - супесчаных, песчаных, гравелистых, щебеночных.
5.31 Поверхности элементов посадочных площадок в продольном направлении следует сопрягать вертикальными кривыми, значения радиусов которых указаны в приложении Д.
5.32 Продольный профиль ВПП посадочных площадок должен обеспечивать:
- взаимную видимость на расстоянии не менее половины длины ВПП двух точек, находящихся на высоте 3 м от поверхности ВПП классов А, Б, В, Г, Д и на высоте 2 м - для ВПП класса Е, неклассифицированных ВПП;
- видимость антенны курсового радиомаяка (при ее наличии) с опорной точки радиомаячной системы посадочной площадки для самолетов.
5.33 Продольный профиль РД посадочных площадок должен обеспечивать свободный обзор их поверхности на расстоянии 300 м из любой точки, расположенной на высоте 3 м - для посадочных площадок для самолетов классов А, Б, В, Г, Д и на расстоянии 250 м из любой точки, расположенной на высоте 2 м - для посадочных площадок для самолетов класса Е.
Посадочные площадки для самолетов авиации общего назначения
5.34 Поверхность ВПП посадочных площадок должна быть без препятствий, затрудняющих руление, взлет и посадку ВС.
5.35 Ширина ВПП должна быть не менее:
18 м - для посадочных площадок с ВПП длиной до 800 м;
23 м - для посадочных площадок с ВПП длиной от 800 м до 1200 м;
30 м - для посадочных площадок с ВПП длиной от 1200 м до 1800 м;
45 м - для посадочных площадок с ВПП длиной более 1800 м;
5.36 Вдоль кромок ВПП по длине устраиваются боковые полосы безопасности таким образом, чтобы общая ширина ВПП и БПБ была не менее:
30 м - для посадочных площадок с ВПП длиной до 800 м;
40 м - для посадочных площадок с ВПП длиной от 800 м до 1200 м;
75 м - для посадочных площадок с ВПП длиной более 1200 м.
Ширина ВПП длиной менее 400 м и ее БПБ посадочных площадок, предназначенных для сверхлегких ВС, назначается исходя из летно-технических характеристик ВС, полеты которых планируются с этих посадочных площадок.
Поперечный уклон БПБ должен быть не более 0,025.
5.37 Для ВПП длиной более 1200 м или предназначенной для захода на посадку по приборам следует предусматривать устройство торцевой зоны безопасности длиной не менее 90 м за торцом ВПП на всю ее ширину.
5.38 Расположение МС ВС должно обеспечивать расстояние между законцовками крыльев ВС не менее 3 м.
Покрытия посадочных площадок
5.39 Покрытия элементов посадочных площадок должны выдерживать нагрузки от ВС, для эксплуатации которых они предназначены.
5.40 Элементы посадочных площадок в зависимости от типа их покрытий могут быть:
- с искусственным покрытием;
- с грунтовым покрытием.
5.41 Покрытия элементов посадочных площадок с искусственным покрытием с верхним (верхними) слоями, устроенными из цементобетона, армобетона, железобетона, слоя цементобетона, перекрытого асфальтобетоном, а также сборные покрытия из железобетонных плит относятся к жесткому типу.
Покрытия элементов посадочных площадок с искусственным покрытием с верхним (верхними) слоями, устроенными из асфальтобетона, прочных каменных материалов подобранного зернового состава, обработанных органическими вяжущими; из щебеночных и гравийных материалов, грунтов и местных материалов, обработанных органическими и неорганическими вяжущими, сборных из металлических плит, относятся к нежесткому типу.
5.42 Проектирование конструкций искусственных покрытий посадочных площадок, в том числе усиления существующих покрытий, следует выполнять согласно СП 121.13330, СП 488.1325800.
5.43 Покрытия элементов посадочных площадок с грунтовым покрытием могут быть выполнены из:
- местных материалов (грунтов, гравийных и щебеночных материалов, специально подобранных смесей);
- песчаных, гравийных, щебеночных и других сыпучих материалов естественного или техногенного происхождения, не обладающих связностью частиц, необработанных органическими или неорганическими вяжущими.
5.43а Класс ВПП посадочной площадки для вертолетов определяется в соответствии с таблицей 5.1а.
Таблица 5.1а
|
Показатель |
Класс ВПП посадочной площадки вертолетов | ||
|
I |
II |
III | |
|
Длина ВПП, м |
80 |
110 |
190 |
Посадочные площадки для вертолетов
Посадочные площадки для вертолетов на поверхности
5.44 Продольный профиль ВПП посадочных площадок для вертолетов должен обеспечивать взаимную видимость на расстоянии не менее половины длины ВПП двух точек, находящихся на высоте 2 м от поверхности ВПП.
5.45 Продольный профиль РД посадочных площадок для вертолетов должен обеспечивать свободный обзор их поверхности на расстоянии 250 м из любой точки, расположенной на высоте 2 м.
5.46 На посадочной площадке для вертолетов предусматривается не менее одной зоны FATO.
5.47 Зона FATO обеспечивает:
- зону, свободную от препятствий, за исключением существенных объектов, которые в силу их функционального назначения находятся в ней, имеющую размеры и конфигурацию, обеспечивающие удержание каждой части расчетного вертолета на конечном этапе захода на посадку и на начальном этапе взлета в соответствии с предписанными процедурами. Существенные объекты - визуальные средства (например, светотехническое оборудование) или другие объекты (например, противопожарные системы), необходимые для обеспечения безопасности полетов;
- твердую, устойчивую к воздействию струи от несущего винта поверхность. Устойчивость характеризуется тем, что воздействие струи от несущего винта не приводит к ухудшению состояния поверхности или разносу твердых предметов.
5.48 Зона FATO в случае ее предназначения для использования с возможностью прерванного взлета должна иметь следующие минимальные размеры:
- длина должна быть равна дистанции прерванного взлета для выполнения предписанной процедуры взлета, предусмотренной РЛЭ вертолета или 1,5 расчетного D, в зависимости от того, какая величина больше;
- ширина должна быть равна ширине, необходимой для выполнения предписанной процедуры, предусмотренной РЛЭ вертолета, или 1,5 расчетного D, в зависимости от того, какая величина больше.
5.49 Длина и ширина зоны FATO в случае ее предназначения для использования без возможности прерванного взлета должны быть равны кругу диаметром 1,5 расчетного D.
5.50 Существенные объекты, расположенные в зоне FATO, не должны выходить за пределы горизонтальной плоскости на превышении зоны FATO более чем на 0,05 м.
5.51 Уклон поверхности зоны FATO с искусственным покрытием не должен превышать 0,02 в любом направлении.
5.52 Вокруг зоны FATO следует предусматривать устройство зоны безопасности, поверхность которой может быть представлена искусственным или грунтовым покрытием.
Зона безопасности обеспечивает:
- зону, свободную от препятствий, для компенсации отклонений при маневрировании, за исключением необходимых для выполнения полетов объектов, расположение которых в зоне безопасности обусловлено их функциональным назначением;
- поверхность, прилегающую к зоне FATO и сопряженную с ней, устойчивую к воздействию струи от несущего винта и обеспечивающую эффективный сток поверхностных вод и дренаж.
5.53 Зона безопасности, окружающая зону FATO, должна простираться за пределы ее контура на расстояние не менее 3 м или 0,25 расчетного D, в зависимости от того, какая величина больше.
5.54 Во время выполнения полетов вертолетов с использованием зоны FATO в ее зоне безопасности не допускается наличие подвижных объектов.
5.55 Существенные объекты, расположенные в зоне безопасности, не должны выходить за пределы поверхности, начинающейся у границы зоны FATO на высоте 0,25 м над плоскостью зоны FATO, и восходящей в сторону от зоны FATO с градиентом 5%.
5.56 Восходящий уклон поверхности зоны безопасности с искусственным покрытием по направлению от границы зоны FATO должен быть не более 0,04.
5.57 На посадочной площадке для вертолетов предусматривается по крайней мере одна зона TLOF.
5.58 Зона TLOF обеспечивает:
- зону, свободную от препятствий, имеющую достаточные размеры и конфигурацию и обеспечивающую удержание шасси самого большого вертолета, для обслуживания которого предназначена зона TLOF, в соответствии с предполагаемой ориентацией;
- поверхность, которая обладает достаточной несущей способностью, позволяющей воспринимать динамические нагрузки, связанные с прибытием предполагаемого типа вертолета в назначенную зону TLOF, без неровностей, которые отрицательно влияют на приземление или отрыв вертолета, имеет достаточные характеристики сцепления, исключающие возможность скольжения вертолета, устойчивая к воздействию струи от несущего винта.
5.59 Зону TLOF следует предусматривать в случаях, когда шасси вертолета касается земли в пределах зоны FATO или МС, когда отрыв выполняется из зоны FATO или с МС.
5.60 Размеры зоны TLOF должны быть достаточными для размещения круга диаметром не менее 0,83 расчетного D.
5.61 Размеры зоны TLOF посадочной площадки для вертолетов, приподнятой над поверхностью, когда она расположена в зоне FATO, должны быть достаточными для размещения круга диаметром не менее D.
5.62 Уклон поверхности зоны TLOF должен быть не более 0,02 в любом направлении.
5.63 В случае размещения зоны TLOF в пределах зоны FATO она должна быть расположена в ее центре, а для удлиненной зоны FATO (длина более чем в два раза превышает ширину) - по центру ее продольной оси.
В случае размещения зоны TLOF в пределах МС вертолета, она должна быть расположена в ее центре.
5.64 Зона TLOF снабжается маркировкой, которая четко указывает местоположение зоны приземления, а ее конфигурация - любые ограничения на маневрирование.
5.65 Рулежные дорожки, связанные с воздушными маршрутами руления, могут использоваться как колесными вертолетами, так и вертолетами с полозковым шасси для руления по земле или по воздуху.
Наземные маршруты руления предназначены для использования колесными вертолетами только для руления по земле.
Воздушные маршруты руления предназначены для использования только при рулении по воздуху.
5.66 Рулежные дорожки для вертолетов должны обеспечивать движение вертолета на колесах по поверхности РД или использоваться вертолетом с колесным шасси для руления по воздуху, если РД связаны с воздушными маршрутами руления.
5.67 Рулежная дорожка для вертолетов обеспечивает:
- зону, свободную от препятствий, ширина которой достаточна для обеспечения удержания шасси самого большого вертолета с колесным шасси, для эксплуатации которого предназначена РД;
- поверхность, которая обладает несущей способностью, достаточной для выдерживания нагрузок при рулении вертолетов, для эксплуатации которых предназначена РД, не имеет неровностей, которые могли бы отрицательно повлиять на руление вертолетов по земле, устойчивую к воздействию струи от несущего винта, связанную с маршрутом руления.
5.68 Минимальная ширина РД для вертолета равна двойной ширине шасси самого большого вертолета, для эксплуатации которого предназначена РД.
5.69 Поперечный уклон РД должен быть не более 0,02, а продольный уклон должен быть не более 0,03.
5.70 Маршрут руления для вертолетов обеспечивает:
- зону, свободную от препятствий, предназначенную для движения вертолетов, за исключением существенных объектов, которые в силу их функционального назначения находятся в ней, ширина которой достаточна для обеспечения руления самого большого вертолета, для обслуживания которого предназначен данный маршрут руления;
- поверхность, устойчивую к воздействию воздушной струи от несущего винта.
5.71 Во время выполнения операций вертолетами на маршруте руления не допускается наличие каких-либо подвижных объектов.
5.72 Поверхность маршрута руления, совмещенного с РД с искусственным покрытием, восходящий поперечный уклон в сторону от края РД должен быть не более 0,04.
5.73 Ширина наземного маршрута руления для вертолетов должна быть не менее 1,5 габаритной ширины самого большого вертолета, для эксплуатации которого он предназначен и который проходит по осевой линии РД.
5.74 Существующие объекты, расположенные на наземном маршруте руления вертолетов должны быть размещены на расстоянии не менее 0,5 м от края РД для вертолетов и не выходить за пределы поверхности, берущей начало на расстоянии 0,5 м от края РД для вертолетов на высоте 0,25 м над поверхностью. Воздушный маршрут руления для вертолетов предназначен для осуществления движения вертолета над поверхностью на высоте, связанной с влиянием земли и с путевой скоростью менее 37 км/ч.
5.75 Ширина воздушного маршрута руления для вертолетов должна быть не менее удвоенной габаритной ширины самого большого вертолета, для эксплуатации которого он предназначен.
5.76 Существующие объекты, расположенные на маршруте руления для вертолета должны располагаться на расстоянии не менее 0,5 м от края РД для вертолетов, не должны выходить за пределы поверхности, берущей начало на расстоянии 0,5 м в сторону от края РД для вертолетов на высоте 0,25 м над поверхностью РД и восходящей в сторону от РД с градиентом 5%.
5.77 В случае совмещения воздушного маршрута руления с РД для обеспечения возможности руления как по земле, так и по воздуху должно быть обеспечено прохождение по центру РД воздушного маршрута руления для вертолетов.
5.78 При несовмещении воздушного маршрута руления и РД, уклоны его поверхности должны быть не более ограничений в отношении уклонов, установленных для посадки вертолетов, для эксплуатации которых предназначен этот маршрут руления. В любом случае поперечный уклон должен быть не более 0,1, а продольный уклон должен быть не более 0,07.
5.79 Место стоянки вертолетов обеспечивает:
- зону, свободную от препятствий, размер и конфигурация которой достаточны для размещения каждой части самого большого вертолета, для эксплуатации которого предназначено это МС;
- поверхность, устойчивую к воздействию струи от несущего винта, без неровностей, которые отрицательно влияют на маневрирование вертолетов, с несущей способностью, достаточной для выдерживания предполагаемых нагрузок.
5.80 Размеры МС вертолета должны быть не менее круга диаметром 1,2 расчетного D самого большого вертолета, для эксплуатации которого предназначено это МС.
5.81 Средний уклон места стоянки вертолета в любую сторону должен быть не более 0,02.
5.82 Исключен с 10.02.2024. - Изменение N 1
5.83 Вокруг МС следует располагать защитную зону, которая должна обеспечивать:
- зону, свободную от препятствий, за исключением существенных объектов, которые в силу их функционального значения должны располагаться в этой зоне;
- поверхность, прилегающую к МС, находящуюся на одном уровне с ней, устойчивую к воздействию струи от несущего винта.
5.84 Защитная зона простирается за пределы МС на расстояние 0,4 расчетного D.
5.85 Защитные зоны смежных МС могут накладываться друг на друга при условии исключения одновременного использования смежных МС.
5.86 Во время полетов вертолетов наличие подвижных объектов в защитной зоне не допускается.
5.87 Восходящий уклон поверхности защитной зоны в направлении от границы места стоянки должен быть не более 0,04.
5.88 В случаях размещения зоны FATO в непосредственной близости от ВПП или РД, для обеспечения одновременных полетов в условиях ВМУ, расстояние между границей ВПП или РД и границей зоны FATO должно быть не менее указанных в таблице 5.2 значений.
Таблица 5.2
|
Масса самолета и (или) вертолета, кг |
Расстояние между границей FATO и кромкой ВПП или кромкой РД, м |
|
Менее 3175 |
60 |
|
От 3175 до 5760 |
120 |
|
От 5760 до 100 000 |
180 |
|
100 000 и более |
250 |
5.89 Зону FATO не следует размещать:
- вблизи пересечений РД или мест ожидания, где реактивная струя двигателя может вызывать сильную турбулентность;
- вблизи зон, где существует вероятность образования вихревого следа самолета.
Посадочные площадки для вертолетов приподнятые над поверхностью. Палубные посадочные площадки
5.90 На посадочных площадках для вертолетов, приподнятых над поверхностью, и палубных посадочных площадках с зоной FATO равной 1D или более, зона FATO должна быть совмещена с зоной TLOF.
На посадочных площадках с зоной FATO размером менее 1D допускается уменьшение зоны TLOF, несущей нагрузку от вертолетов.
5.91 Зона FATO может быть любой конфигурации, при этом должна иметь размеры, позволяющие вписать в нее круг диаметром не менее одного расчетного D самого большого вертолета, для эксплуатации которого предназначена посадочная площадка.
5.92 Зона TLOF может быть любой конфигурации, при этом должна иметь размеры, позволяющие:
- вписать в нее круг, диаметром не менее одного расчетного D самого большого вертолета, для эксплуатации которого предназначена посадочная площадка - для вертолетов с максимальной взлетной массой более 3175 кг;
- вписать в нее круг, диаметром не менее 0,83 расчетного D самого большого вертолета, для эксплуатации которого предназначена посадочная площадка - для вертолетов с максимальной взлетной массой менее 3175 кг.
5.93 Зона TLOF должна выдерживать динамическую нагрузку от самого большого вертолета, для эксплуатации которого предназначена посадочная площадка.
5.94 Вокруг границы зоны TLOF не допускается наличие каких-либо неподвижных объектов, за исключением ломких объектов, которые в силу их функционального назначения должны там размещаться.
5.95 Для любой зоны TLOF, имеющей размер одного расчетного D или более, и любой зоны TLOF, предназначенной для использования вертолетами, имеющими значение D более 16 м, объекты, установленные в свободном от препятствий секторе, функциональное назначение которых требует размещения их на границе зоны TLOF, по высоте должны быть не более 0,25 м.
5.96 Для любой зоны TLOF, предназначенной для использования вертолетами, имеющими значение D 16 м или менее, и любой зоны TLOF, размерами менее одного расчетного D, относительная высота объектов, установленных в свободном от препятствий секторе, функциональное назначение которых требует их размещения на границе TLOF, должна быть не более 0,05 м.
5.97 Относительная высота объектов, размещенных внутри зоны TLOF по функциональному назначению (например, светосигнальное оборудование или сети), должна быть не более 0,025 м.
5.98 Устройства обеспечения безопасности (задерживающие сети, комингсы, прочее) располагающиеся по границе посадочной площадки не должны превышать относительную высоту поверхности зоны TLOF.
6.1 При проектировании посадочных площадок для самолетов, предназначенных для коммерческих воздушных перевозок и авиационных работ, следует предусматривать оснащение посадочных площадок необходимыми зданиями, сооружениями и оборудованием в зависимости от их назначения, района размещения, интенсивности полетов воздушных судов, прогнозных значений объемов пассажирских и грузовых перевозок, планируемых к осуществлению авиационных работ.
6.2 В составе проектируемых зданий и сооружений посадочных площадок для самолетов следует предусматривать:
- здания для обслуживания пассажиров и обработки грузов в соответствии с СП 478.1325800;
- здания и сооружения для временного (сезонного) или постоянного хранения и обслуживания специального автомобильного транспорта;
- здания и сооружения для временного (сезонного) или постоянного пребывания специалистов служб посадочной площадки;
- сооружения периметрового ограждения посадочной площадки (при необходимости);
- здания и сооружения для ВС (при необходимости их хранения);
- сооружения и (или) оборудование для обеспечения комплекса электроэнергией, водоснабжением, связью и т.п.;
- здания и сооружения для размещения необходимой аппаратуры, обеспечивающей функционирование оборудования посадочной площадки;
- объекты и (или) оборудование аэронавигационного обеспечения полетов (согласно заданию на проектирование).
6.3 Допускается проектирование сблокированных зданий и сооружений в функциональные зоны в целях оптимизации технологических процессов при условии соответствия требованиям транспортной и авиационной безопасности Российской Федерации.
6.4 На посадочных площадках для самолетов, предназначенных для обслуживания пассажиров и грузов, следует предусматривать устройство служебно-пассажирского здания.
Служебно-пассажирское здание должно обеспечивать выполнение технологических операций по обслуживанию пассажиров и грузов с учетом максимальной часовой интенсивности (загрузки) посадочной площадки расчетным типом ВС.
6.5 В служебно-пассажирском здании следует предусматривать размещение следующих операционных помещений и (или) зон основного технологического назначения для обслуживания пассажиров и грузов:
- зоны входного контроля;
- зоны распределения и ожидания;
- зоны регистрации пассажиров и оформления багажа;
- зоны предполетного контроля безопасности;
- помещения оформления и сдачи оружия;
- помещения для обработки почты;
- зоны ожидания выхода на посадку.
К помещениям вспомогательного назначения СПЗ относится:
- помещение для пассажиров с детьми;
- санузлы, в том числе и для маломобильных пассажиров;
- общественное питание в объеме вендинговых автоматов;
- служебные помещения работников посадочной площадки;
- технические помещения.
6.6 Конструктивные и объемно-планировочные решения зданий и сооружений следует назначать с учетом функционального назначения посадочных площадок. Применение быстровозводимых и модульных конструкций следует подтверждать технико-экономическим сравнением вариантов и технологическими характеристиками функционирования посадочной площадки (назначение, сезонность полетов, интенсивность коммерческой загрузки и прочее).
7.1 К инженерному оснащению посадочных площадок, предусматриваемому при их проектировании, относится:
- электроснабжение оборудования;
- сети связи;
- светосигнальное, радиотехническое, метеорологическое оборудование;
- охранные системы (в соответствии с требованиями по обеспечению транспортной безопасности, в том числе требований к антитеррористической защищенности объектов (территорий), учитывающих уровни безопасности для объектов транспортной инфраструктуры воздушного транспорта);
- периметровое ограждение (в соответствии с требованиями по обеспечению транспортной безопасности, в том числе требований к антитеррористической защищенности объектов (территорий), учитывающих уровни безопасности для объектов транспортной инфраструктуры воздушного транспорта);
- подъездные пути (дороги) к объектам и оборудованию.
7.2 Внутриплощадочное электроснабжение (сети) предназначено для обеспечения надежности, качества электроснабжения при обеспечении электроэнергией объектов посадочной площадки.
Схемы электропитания должны быть запроектированы с учетом требуемой степени надежности к нагрузкам.
7.3 Для компенсации падения напряжения в линиях питания необходимо предусматривать установку трансформаторов.
7.4 В состав объектов и оборудования электроснабжения посадочных площадок входят:
- источники электроэнергии, включая автономные дизельные электростанции;
- кабельные линии электроснабжения;
7.5 Сети связи посадочных площадок предназначены для:
- организации телефонной связи;
- передачи сигналов пожарной и охранной сигнализации;
- дистанционного управления;
- для передачи метеорологической информации;
- организации передачи информации управлением воздушным движением;
- передачи видеоинформации;
- управления ССО;
- организации информационного канала;
- обеспечения бесперебойной работы и надежности информационного обмена данными.
7.6 Устройство сетей связи выполняется оптическими или медными кабелями связи.
7.7 Состав светосигнального, радиотехнического и метеорологического оборудования посадочных площадок определяется на этапе разработки задания на проектирование с учетом функционального назначения посадочной площадки.
7.8 Необходимость устройства периметрового ограждения с системой технических средств охраны устанавливается требованиями по обеспечению транспортной безопасности, в том числе требованиями к антитеррористической защищенности объектов (территорий), учитывающими уровни безопасности для объектов транспортной инфраструктуры воздушного транспорта.
8.1 При выборе участка для строительства посадочной площадки необходимо отдавать предпочтения решениям, оказывающим минимальное воздействие на окружающую среду, а также проводить соответствующие экологические изыскания согласно СП 47.13330.
8.2 Основные виды вредных воздействий посадочных площадок на людей, животных, растительность, окружающую среду (атмосферный воздух, водоемы, ландшафт и почвы):
- акустические (воздействие шума авиационных двигателей и двигателей наземной техники);
- электромагнитные поля, создаваемые стационарными и передвижными радиотехническими средствами;
- загрязнение атмосферного воздуха, почв, подземных вод и водоемов объектами строительства и эксплуатации посадочных площадок;
- нарушение почвенного покрова и гидрологического режима поверхностных и подземных вод.
8.3 При проектировании посадочных площадок следует предусматривать природоохранные мероприятия, направленные на предупреждение возникновения и активизации неблагоприятных для строительства посадочных площадок процессов. В состав природоохранных мероприятий при строительстве и эксплуатации посадочных площадок необходимо включать инженерные мероприятия по обеспечению безопасного уровня воздействия на окружающую среду и рациональному использованию природных ресурсов, в том числе мероприятия по:
- охране атмосферного воздуха;
- охране и рациональному использованию земельных ресурсов и почвенного покрова;
- сбору, использованию, обезвреживанию, транспортированию и размещению отходов;
- охране недр;
- охране объектов растительного и животного мира и среды их обитания;
- минимизации возникновения возможных аварийных ситуаций;
- рациональному использованию и охране водных объектов, а также сохранению водных биологических ресурсов;
- компенсации тепло- и массообмена окружающей среды, измененной при подготовке и освоении территории;
- ограничению и регулированию развития криогенных процессов, организации и регулированию снежного покрова, ливневых и технологических стоков;
- биологической рекультивации растительного покрова;
- ограничению и регулированию термоабразии.
8.4 Уровень акустического воздействия на территорию жилой и иной застройки вблизи посадочной площадки должен быть не более значений, нормируемых ГОСТ 22283.
8.5 Исключен с 10.02.2024. - Изменение N 1
Приложение А
Приложение А исключено с 10.02.2024. - Изменение N 1
Приложение Б
Посадочные площадки для самолетов, предназначенные для коммерческих воздушных перевозок и выполнения авиационных работ
Б.1 Для необорудованной ВПП и ВПП захода на посадку по приборам посадочных площадок для самолетов, предназначенных для коммерческих воздушных перевозок и выполнения авиационных работ, должны устанавливаться следующие поверхности ограничения препятствий:
- коническая;
- внутренняя горизонтальная;
- захода на посадку;
- переходная.
Для ВПП захода на посадку по приборам поверхность захода на посадку расположена горизонтально за точкой, в которой плоскость с наклоном 2,5% пересекается с горизонтальной плоскостью, расположенной на высоте 150 м над высотой посадочной площадки, или с горизонтальной плоскостью, проходящей через верхнюю точку наивысшего объекта в зоне поверхности захода на посадку, в зависимости от наибольшей высоты.
Для ВПП точного захода на посадку устанавливаются следующие поверхности ограничения препятствий:
- коническая;
- внутренняя горизонтальная;
- захода на посадку;
- переходные;
- внутренняя поверхность захода на посадку;
- внутренние переходные поверхности;
- поверхность прерванной посадки.
Для направления ВПП, оборудованной для точного захода на посадку поверхность захода на посадку расположена горизонтально за точкой, в которой плоскость с наклоном 2,5% пересекается с горизонтальной плоскостью, расположенной на высоте 150 м над высотой посадочной площадки, или с горизонтальной плоскостью, проходящей через верхнюю точку наивысшего объекта в зоне поверхности захода на посадку, в зависимости от наибольшей высоты.
Неподвижные объекты не должны находиться в пределах зоны, свободной от препятствий: выступать за внутреннюю поверхность захода на посадку, внутренние переходные поверхности и поверхность прерванной посадки, за исключением ломких объектов, которые по своему функциональному назначению должны располагаться в пределах летной полосы. При использовании ВПП для посадки над этими поверхностями не должно быть подвижных объектов.
Параметры устанавливаемых поверхностей ограничения препятствий для посадочных площадок для самолетов приведены в таблице Б.1.
Таблица Б.1
|
Поверхность и ее параметры |
Необорудованные ВПП |
ВПП захода на посадку по приборам |
ВПП точного захода на посадку | ||||
|
А - Г |
Д |
Е |
А - Г |
Д - Е, неклассифицированные |
А - Г |
Д - Е, неклассифицированные | |
|
КОНИЧЕСКАЯ | |||||||
|
Наклон, % |
5 |
5 |
5 |
5 |
5 |
5 |
5 |
|
Высота (относительно внутренней горизонтальной поверхности), м |
100 |
50 |
50 |
100 |
50 |
100 |
50 |
|
ВНУТРЕННЯЯ ГОРИЗОНТАЛЬНАЯ | |||||||
|
Радиус r, м |
4000 |
2500 |
2500 |
4000 |
3500 |
4000 |
3500 |
|
Высота (относительно высоты посадочной площадки), м |
50 |
50 |
50 |
50 |
50 |
50 |
50 |
|
ДЛЯ ЗАХОДА НА ПОСАДКУ |
160 <1> |
108 |
80 |
300 |
150 |
300 |
150 |
|
Длина нижней границы, м |
60 |
60 |
30 |
60 |
60 |
60 |
60 |
|
Расстояние от порога, м | |||||||
|
Расхождение в каждую сторону, % |
10 |
10 |
10 |
15 |
15 |
15 |
15 |
|
Первый сектор: |
3000 |
2500 |
1600 |
3000 |
2500 |
3000 |
3000 |
|
- длина, м |
2,5 |
3,33 |
3,33 |
2 |
2,5 |
2 |
2,5 |
|
- наклон, % | |||||||
|
Второй сектор: |
- |
- |
- |
3600 <2> |
- |
3600 <2> |
12000 |
|
- длина, м |
- |
- |
- |
2,5 |
- |
2,5 |
3,0 |
|
- наклон, % | |||||||
|
Горизонтальный сектор: |
- |
- |
- |
8400 <2> |
- |
8400 <2> |
- |
|
- длина, м |
- |
- |
- |
15000 |
- |
15000 |
15000 |
|
Общая длина, м | |||||||
|
ВНУТРЕННЯЯ ДЛЯ ЗАХОДА НА ПОСАДКУ |
- |
- |
- |
- |
- |
120 <3> |
90 |
|
Длина нижней границы, м |
- |
- |
- |
- |
- |
60 |
60 |
|
Расстояние от порога, м |
- |
- |
- |
- |
- |
0 |
0 |
|
Расхождение в каждую сторону, % |
- |
- |
- |
- |
- |
2 |
2,5 |
|
Наклон, % |
- |
- |
- |
- |
- |
900 |
900 |
|
Длина, м | |||||||
|
ПЕРЕХОДНАЯ | |||||||
|
Наклон (от внешней границы ЛП), % |
14,3 |
20 |
20 |
14,3 |
20 |
14,3 |
20 |
|
ВНУТРЕННЯЯ ПЕРЕХОДНАЯ | |||||||
|
Наклон, % |
- |
- |
- |
- |
- |
33,3 |
40 |
|
ПРЕРВАННОЙ ПОСАДКИ | |||||||
|
Длина нижней границы, м |
- |
- |
- |
- |
- |
120 <3> |
90 |
|
Расстояние от порога, м |
- |
- |
- |
- |
- |
1800 <4> |
1800 <4> |
|
Расхождение в каждую сторону, % |
- |
- |
- |
- |
- |
10 |
10 |
|
Наклон, % |
- |
- |
- |
- |
- |
3,33 |
4 |
|
<1> 140 м - для ВПП класса В и 130 м - класса Г. <2> Длина может изменяться в зависимости от высоты горизонтального сектора. <3> 156 м - для ВПП, предназначенных для приема ВС с размахом крыла 65 м и более, но менее 80 м (140 м - для ВПП класса Б, предназначенных для приема ВС с размахом крыла от 65 м до 75 м и колеей по внешним авиашинам до 10,5 м). <4> Или расстояние от порога ВПП до конца ВПП, в зависимости от того, что меньше. | |||||||
Б.2 Для необорудованной ВПП и ВПП захода на посадку по приборам, а также для направления ВПП, оборудованной для точного захода на посадку, незатененные объекты, возвышающиеся над поверхностью захода на посадку, переходной, внутренней горизонтальной и конической поверхностями, - препятствия должны быть устранены или уменьшены до размеров, обеспечивающих их затенение, либо маркированы и светоограждены.
Б.3 Для направления, используемого для взлета с ВПП посадочных площадок для самолетов, устанавливается поверхность взлета, параметры которой приведены в таблице Б.2.
Таблица Б.2
|
Параметр поверхности взлета |
Класс ВПП посадочной площадки для самолетов | ||
|
А, Б, В, Г |
Д |
Е, неклассифицированная | |
|
Длина нижней границы, м |
180 |
80 |
60 |
|
Расхождение в каждую сторону, % |
12,5 |
12,5 |
12,5 |
|
Длина, м |
15000 |
7000 |
7000 |
|
Длина верхней границы, м |
2000 |
1830 |
1810 |
|
Наклон, % |
1,6 |
3,33 |
3,33 |
Б.4 Незатененные существующие объекты, находящиеся над поверхностью взлета, - препятствия должны быть устранены или уменьшены до размеров, обеспечивающих их затенение, либо маркированы и светоограждены.
Б.5 Препятствия должны быть учтены при:
- установлении схем захода на посадку и минимальных безопасных высот пролета препятствий;
- установлении схем вылета и района посадочной площадки для самолетов.
Б.6 Воздушное пространство в районе посадочных площадок для вертолетов должно обеспечивать безопасность выполнения взлетно-посадочных операций вертолетов.
Б.7 На посадочных площадках для вертолетов, выполняющих вертикальный взлет/посадку, устанавливаются следующие поверхности ограничения препятствий:
- поверхность захода на посадку и взлета;
- боковые переходные поверхности;
- горизонтальная поверхность.
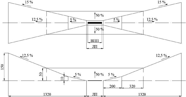
Относительные высоты, размеры и наклоны этих поверхностей приведены на рисунке Б.1.

Рисунок Б.1 - Схема расположения и наклонов поверхностей ограничения препятствий на посадочных площадках для вертолетов, выполняющих вертикальный взлет/посадку
Поверхность захода на посадку и поверхность взлета - наклонная плоскостей, расположенных перед посадочной площадкой в направлении захода на посадку и взлета. Поверхности ЗП и ПВ имеют:
- нижнюю границу установленной длины, равную ширине посадочной площадки, расположенную симметрично осевой линии посадочной площадки на ее границе и перпендикулярно к ней;
- две боковые границы от концов нижней границы, равномерно расходящиеся от продолжения оси ВПП;
- верхнюю границу установленной длины, параллельно нижней границе, расположенную в горизонтальной плоскости на высоте 150 м над уровнем посадочной площадки.
Боковая переходная поверхность - наклонная поверхность, расположенная вдоль боковых границ посадочной площадки и простирающаяся вверх и в стороны до горизонтальной поверхности посадочной площадки.
Переходная поверхность имеет:
- нижнюю границу, начинающуюся от боковых границ посадочной площадки;
- верхнюю границу, расположенную в плоскости горизонтальной поверхности ПП;
- боковыми границами поверхности являются боковые границы поверхностей захода на посадку и взлета.
Горизонтальная поверхность - поверхность круглой формы, расположенная в горизонтальной плоскости на высоте 150 м над уровнем посадочной площадки. Радиус ГП равен 3000 м с центром в контрольной точке ПП.
Когда по условиям рельефа местности и расположения препятствий (а также при наличии в непосредственной близости соседних посадочных площадок) не представляется возможным осуществлять взлеты и посадки с двух направлений, допускается устройство посадочной площадки односторонней эксплуатации в соответствии с рисунком Б.2. При этом от конца посадочной площадки до препятствий, преграждающих второе направление взлета/посадки, должно быть не менее 50 м.

Рисунок Б.2 - Схема расположения и наклонов поверхностей ограничения препятствий на посадочных площадках для вертолетов, выполняющих вертикальный взлет/посадку, односторонней эксплуатации
Б.8 На посадочных площадках для вертолетов, выполняющих взлет "по-самолетному" (посадочные площадки с ВПП), устанавливаются следующие поверхности ограничения препятствий:
- поверхность захода на посадку и взлета;
- переходные поверхности;
- внутренняя горизонтальная поверхность;
- коническая поверхность.
Относительные высоты, размеры и наклоны этих поверхностей приведены на рисунках Б.3 - Б.5.

Рисунок Б.3 - Сводный план поверхностей ограничения препятствий на посадочных площадках для вертолетов, выполняющих взлет "по-самолетному"

Рисунок Б.4 - Схема расположения и наклонов поверхностей ограничения препятствий на посадочных площадках для вертолетов с ВПП класса I

Рисунок Б.5 - Схема расположения и наклонов поверхностей ограничения препятствий на посадочных площадках для вертолетов с ВПП классов II, III
Поверхность захода на посадку и поверхность взлета - сочетание наклонных плоскостей, расположенных перед ЛП в направлении захода на посадку и взлета. Поверхности ЗП и ПВ имеют:
- нижнюю границу установленной длины, равную ширине ЛП, расположенную симметрично осевой линии ВПП на границе ЛП и перпендикулярно к ней;
- две боковые границы от концов нижней границы, равномерно расходящиеся под установленными углами к продолжению оси ВПП;
- верхнюю границу установленной длины, параллельно нижней границе, расположенную в горизонтальной плоскости на высоте 150 м над уровнем конца ВПП или проходящей через верхнюю точку определяющего объекта в зависимости от того, что выше.
Переходная поверхность - наклонная поверхность, расположенная вдоль боковых границ ЛП и простирающаяся вверх и в стороны до внутренней горизонтальной поверхности. Переходная поверхность имеет:
- нижнюю границу, начинающуюся от боковых границ ЛП, параллельно оси ВПП на установленном расстоянии от ее продольной оси;
- верхнюю границу, расположенную в плоскости внутренней горизонтальной поверхности;
- боковые границы поверхности - это боковые границы поверхностей захода на посадку и взлета.
Внутренняя горизонтальная поверхность - поверхность круглой формы, расположенная в горизонтальной плоскости на высоте 50 м относительно контрольной точки посадочной площадки. Радиус внешней границы поверхности равен 2000 м с центром в контрольной точке посадочной площадки.
Коническая поверхность - наклонная поверхность, простирающаяся вверх и в стороны от внешней границы внутренней горизонтальной поверхности. Наклон КП измеряется в вертикальной плоскости и составляет 5% для посадочной площадки с ВПП всех классов. Радиус внешней границы поверхности равен 3000 м с центром в контрольной точке посадочной площадки.
Б.9 Неподвижные (временные и постоянные) и подвижные объекты, выступающие за любую из поверхностей ограничения препятствий, рекомендуется устранять. В случае невозможности их устранения они должны быть внесены в документы аэронавигационной информации посадочной площадки для учета при составлении схем полетов ВС в районе посадочной площадки.
Б.10 Воздушные высоковольтные ЛЭП, расположенные в пределах полос воздушных подходов, кроме ограничения по высоте должны быть удалены от границ ЛП посадочной площадки не менее чем на 1000 м или на 500 м, если ЛЭП со стороны посадочной площадки закрыта складками местности, лесопосадками, зданиями и др. объектами. Расстояние от боковой границы ЛП до линии ЛЭП должно быть не менее 300 м или 150 м, если ЛЭП закрыта на всем протяжении другими объектами.
Б.11 Максимальные значения относительной высоты и наклона поверхностей ограничения препятствий в районе посадочных площадок для самолетов и их минимальные размеры приведены в таблице Б.1.
Б.12 Максимальные значения наклона поверхности взлета и ее минимальные размеры, устанавливаемые для направления взлета с ВПП посадочных площадок для самолетов приведены в таблице Б.2.
Б.13 Схема расположения и наклонов поверхностей ограничения препятствий, устанавливаемых на посадочных площадках для вертолетов, выполняющих вертикальный взлет/посадку, устанавливается согласно рисунку Б.1.
Б.14 Схема расположения и наклонов поверхностей ограничения препятствий, устанавливаемых на посадочных площадках для вертолетов, выполняющих вертикальный взлет/посадку, односторонней эксплуатации приведена на рисунке Б.2.
Б.15 Сводный план поверхностей ограничения препятствий на посадочных площадках для вертолетов, выполняющих взлет "по-самолетному" (посадочные площадки с ВПП), приведен на рисунке Б.3.
Б.16 Схемы расположения и наклонов поверхностей ограничения препятствий, устанавливаемых на посадочных площадках для вертолетов, выполняющих взлет "по-самолетному" (посадочные площадки с ВПП), приведены на рисунках Б.4, Б.5.
Посадочные площадки для самолетов авиации общего назначения
Б.17 На посадочной площадке устанавливают поверхности ограничения препятствий в направлении полосы воздушных подходов, примыкающей к торцу ВПП и расположенной в направлении ее оси, в которой ВС производят набор высоты после взлета и снижение при заходе на посадку (полоса воздушных подходов), а также в стороны от границ БПБ.
Б.18 Для посадочных площадок, используемых ночью, не предназначенных для захода на посадку по приборам, поверхности ограничения препятствий в плане посадочной площадки имеют форму трапеции, боковые стороны которой образуются линиями, расходящимися от края БПБ под углом 6° к оси ВПП, проходящими от внешней границы ТЗБ, а при ее отсутствии - от торца ВПП. Длина поверхности ограничения препятствий в направлении полосы воздушных подходов составляет 1500 м, начинается от торца ВПП и имеет угол наклона 3° к оси ВПП. Боковая поверхность ограничения препятствий начинается от края БПБ и имеет угол наклона к нему 20° до высоты 50 м, далее - горизонтальный участок до расстояния от оси ВПП 120 м.
Б.19 В случае если препятствия выходят за указанные поверхности ограничения, разрешается использование посадочных площадок днем для захода на посадку без использования приборов при условии, что оператор посадочной площадки включит описание препятствия в аэронавигационный паспорт посадочной площадки.
Б.20 Для посадочных площадок, предназначенных для захода на посадку по приборам (неточным системам), поверхности ограничения препятствий в плане посадочной площадки имеют форму трапеции, боковые стороны которой образуются линиями, начинающимися на расстоянии 120 м в обе стороны от оси ВПП у ее торца и расходящимися под углом 9° к оси ВПП, проходящими от внешней границы ТЗБ. Длина поверхности ограничения препятствий в направлении полосы воздушных подходов составляет 3000 м, начинается от торца ТЗБ и имеет угол наклона 3° к оси ВПП. Боковая поверхность ограничения препятствий начинается от края БПБ и имеет угол наклона к нему 20° до высоты 50 м, далее - горизонтальный участок до расстояния от оси ВПП 120 м.
Приложение В
В.1 Индекс ВС типа "самолет" (индекс самолета) устанавливается по размаху крыла и колеи шасси по внешним авиационным шинам (авиашинам) самолета по таблице В.1.
Таблица В.1
|
Индекс самолета <1> |
Размах крыла, м |
Колея шасси по внешним авиашинам <2>, м |
|
1 |
До 24 |
До 4 |
|
2 |
От 24 до 32 |
От 4 до 6 |
|
3 |
От 24 до 32 |
От 6 до 9 |
|
4 |
От 32 до 42 |
От 9 до 10,5 |
|
5 |
От 32 до 42 |
От 10,5 до 12,5 |
|
6 |
От 42 до 65 |
От 10,5 до 14 |
|
7 |
От 65 до 80 |
От 14 до 16 |
|
<1> Если индексы самолета по размаху крыла и колее шасси различны, то принимается больший из индексов. <2> Расстояние между внешними кромками колес основного шасси. | ||
В.2 Индекс ВС типа "вертолет" (индекс вертолета) устанавливается по диаметру несущего винта вертолета по таблице В.2.
Таблица В.2
|
Индекс вертолета |
RD, м |
|
1 |
До 16 |
|
2 |
От 16 до 22 |
|
3 |
22 и более |
Приложение Г
Г.1 Максимально допустимые продольные и поперечные уклоны элементов посадочных площадок для самолетов с искусственным покрытием указаны в таблице Г.1.
Таблица Г.1
|
Вид уклона |
Максимально допустимый уклон элементов посадочных площадок с искусственным покрытием для самолетов классов | |||
|
А, Б, В |
Г |
Д |
Е, неклассифицированные | |
|
Продольный уклон участков ВПП: | ||||
|
- среднего |
0,0125 |
0,015 |
0,015 |
0,020 |
|
- концевого |
0,008 |
0,015 |
0,015 |
0,015 |
|
Поперечный уклон ВПП |
0,015 |
0,015 |
0,020 |
0,020 |
|
Продольный уклон РД |
0,020 |
0,030 |
0,030 |
0,030 |
|
Поперечный уклон РД |
0,015 |
0,020 |
0,020 |
0,020 |
|
Продольный и поперечный уклоны перронов и площадок специального назначения |
0,010 |
0,010 |
0,010 |
0,020 |
|
Поперечный уклон обочин ВПП, РД |
0,025 |
0,030 |
0,030 |
0,030 |
|
Средний продольный уклон ВПП |
0,010 |
0,010 |
0,010 |
0,017 |
|
Примечания 1 Длина концевых участков ВПП при назначении продольных уклонов принимается равной 1/6 длины ВПП; 2 На концевых участках ВПП продольные уклоны должны быть одного направления (только восходящие или только нисходящие); 3 Уклоны РД и обочин РД, расположенных в пределах ЛП, должны соответствовать уклонам, принятым для ЛП; 4 Под средним продольным уклоном ВПП понимается отношение разности отметок начала и конца ВПП к ее длине. | ||||
Г.2 Максимально допустимые продольные и поперечные уклоны элементов посадочных площадок для самолетов с грунтовым покрытием указаны в таблице Г.2.
Таблица Г.2
|
Вид уклона |
Максимально допустимый уклон элементов посадочных площадок с грунтовым покрытием для самолетов классов | ||
|
А, Б, В |
Г, Д |
Е, неклассифицированные | |
|
Продольный уклон участков ВПП: | |||
|
- среднего |
0,020 |
0,025 |
0,030 |
|
- концевого нисходящего |
0,020 |
0,025 |
0,025 |
|
- концевого восходящего |
0,008 |
0,015 |
0,015 |
|
Поперечный уклон ВПП |
0,020 |
0,025 |
0,025 |
|
Продольный уклон спланированной части ЛП: | |||
|
- среднего |
0,020 |
0,025 |
0,030 |
|
- концевого нисходящего |
0,020 |
0,025 |
0,025 |
|
- концевого восходящего |
0,008 |
0,015 |
0,015 |
|
Поперечный уклон спланированной части ЛП |
0,025 |
0,030 |
0,030 |
|
Продольный уклон ЛП за концом ВПП: | |||
|
- нисходящий |
0,020 |
0,025 |
0,030 |
|
- восходящий |
0,008 |
0,015 |
0,020 |
|
Поперечный уклон ЛП за концом ВПП при профиле: | |||
|
- односкатном |
0,020 |
0,025 |
0,025 |
|
- двухскатном |
0,030 |
0,030 |
0,030 |
|
Продольный и поперечный уклоны РД |
0,020 |
0,025 |
0,030 |
|
Продольный уклон перрона |
0,020 |
0,020 |
0,025 |
|
Поперечный уклон перрона |
0,015 |
0,015 |
0,020 |
|
Примечания 1 Длина концевых участков ВПП при назначении продольных уклонов принимается равной 1/6 длины ВПП; 2 На концевых участках ВПП продольные уклоны должны быть одного направления (только восходящие или только нисходящие). | |||
Г.3 Максимально допустимые продольные и поперечные уклоны элементов посадочных площадок для вертолетов указаны в таблице Г.3.
Таблица Г.3
|
Вид уклона |
Максимально допускаемый уклон элемента посадочной площадки для вертолетов, расположенной на поверхности |
|
Продольный уклон: | |
|
- ИВПП |
0,020 |
|
- ГВПП |
0,025 |
|
Поперечный уклон: | |
|
- ИВПП |
0,015 |
|
- ГВПП |
0,020 |
|
Продольные и поперечные уклоны зоны TLOF |
0,030 |
|
Продольный и поперечный уклоны посадочных площадок, располагаемых на крышах зданий и приподнятых платформах |
0,010 |
|
Поперечный уклон поверхности территории, непосредственно примыкающей к зоне безопасности |
0,1 |
|
Продольный и поперечный уклоны МС, перрона и швартовочной площадки |
0,015 |
|
Продольный уклон РД |
0,030 |
|
Поперечный уклон РД |
0,020 |
|
Поперечный уклон полос обеспыливания |
0,030 |
Приложение Д
Д.1 Минимальные радиусы вертикальных кривых, которыми следует сопрягать поверхности элементов посадочных площадок для самолетов в продольном направлении, указаны в таблице Д.1.
Таблица Д.1
|
Элемент посадочной площадки |
Минимальный радиус, м, вертикальных кривых для сопряжения в продольном направлении элементов посадочных площадок для самолетов классов | |||
|
А |
Б, В |
Г, Д |
Е, неклассифицированные | |
|
ИВПП |
30000 |
20000 |
10000 |
6000 |
|
ГВПП |
10000 |
10000 |
6000 |
6000 |
|
Рулежная дорожка: | ||||
|
- соединительная |
6000 |
6000 |
4000 |
3000 |
|
- вспомогательная |
3000 |
3000 |
3000 |
2500 |
Д.2 Радиусы вертикальных кривых для сопряжения поверхности элементов посадочных площадок для вертолетов на поверхности должны быть не менее:
- 6000 м - для ВПП;
- 4000 м - для РД;
- 3000 м - для МС, швартовочных площадок.
Приложение Е
Приложение Е исключено с 10.02.2024. - Изменение N 1
Библиография
[1] Федеральный закон от 19 марта 1997 г. N 60-ФЗ "Воздушный кодекс Российской Федерации"
[2] Приложение 14 к Конвенции о международной гражданской авиации "Аэродромы". Том II. Вертодромы. Издание 5-е, 2020 г.


