СП 509.1325800.2021 (28.12.2023) ТЮРЬМЫ. ПРАВИЛА ПРОЕКТИРОВАНИЯ
Утв. и введен в действие Приказом Министерства строительства и жилищно-коммунального хозяйства РФ от 29 декабря 2021 г. N 1044/пр
Prison. Design rules
Дата введения - 30 января 2022 года
Введен впервые
Предисловие
1 ИСПОЛНИТЕЛЬ - Тверской филиал федерального казенного учреждения "Управление строительства N 101 Федеральной службы исполнения наказаний" (Тверской филиал ФКУ УС-101 ФСИН России)
2 ВНЕСЕН Техническим комитетом по стандартизации ТК 465 "Строительство"
3 ПОДГОТОВЛЕН к утверждению Департаментом градостроительной деятельности и архитектуры Министерства строительства и жилищно-коммунального хозяйства Российской Федерации (Минстрой России)
4 УТВЕРЖДЕН приказом Министерства строительства и жилищно-коммунального хозяйства Российской Федерации от 29 декабря 2021 г. N 1044/пр и введен в действие с 30 января 2022 г.
5 ЗАРЕГИСТРИРОВАН Федеральным агентством по техническому регулированию и метрологии (Госстандарт)
6 ВВЕДЕН ВПЕРВЫЕ
В случае пересмотра (замены) или отмены настоящего свода правил соответствующее уведомление будет опубликовано в установленном порядке. Соответствующая информация, уведомление и тексты размещаются также в информационной системе общего пользования - на официальном сайте разработчика (Минстрой России) в сети Интернет
Введение
Настоящий свод правил разработан в целях обеспечения соблюдения требований Федерального закона от 30 декабря 2009 г. N 384-ФЗ "Технический регламент о безопасности зданий и сооружений" и с учетом требований федеральных законов от 29 декабря 2004 г. N 190-ФЗ "Градостроительный кодекс Российской Федерации", от 22 июля 2008 г. N 123-ФЗ "Технический регламент о требованиях пожарной безопасности", Концепции развития уголовно-исполнительной системы Российской Федерации до 2020 г., утвержденной распоряжением Правительства Российской Федерации от 14 октября 2010 г. N 1772-р.
Свод правил разработан авторским коллективом Тверского филиала ФКУ УС-101 ФСИН России (В.В. Коваленко, канд. техн. наук А.А. Чугунов, А.М. Иванова, О.И. Шландаков).
1.1 Настоящий свод правил распространяется на проектирование, строительство, реконструкцию и капитальный ремонт зданий, помещений и сооружений, предназначенных для размещения и функционирования тюрем уголовно-исполнительной системы Российской Федерации, а также включает основные требования к планировке и застройке территорий тюрем.
1.2 Нормы настоящего свода правил не распространяются на объекты капитального строительства, проектная документация которых до вступления в силу настоящего свода правил получила положительное заключение государственной экспертизы, а также на документы территориального планирования и документацию по планировке территории, утвержденные до вступления в силу настоящего свода правил.
В настоящем своде правил использованы нормативные ссылки на следующие документы:
ГОСТ 530-2012 Кирпич и камень керамические. Общие технические условия
ГОСТ 6266-97 Листы гипсокартонные. Технические условия
ГОСТ 30826-2014 Стекло многослойное. Технические условия
ГОСТ 34593-2019 Двери защитные. Общие технические требования и методы испытаний на устойчивость к взлому, взрыву и пулестойкость
ГОСТ Р 50571.28-2006 (МЭК 60364-7-710:2002). Электроустановки зданий. Часть 7-710. Требования к специальным электроустановкам. Электроустановки медицинских помещений
ГОСТ Р 58242-2018 Слаботочные системы. Кабельные системы. Телекоммуникационные пространства и помещения. Общие положения
ГОСТ Р ЕН 13779-2007 Вентиляция в нежилых зданиях. Технические требования к системам вентиляции и кондиционирования
СП 1.13130.2020 Системы противопожарной защиты. Эвакуационные пути и выходы
СП 2.13130.2020 Системы противопожарной защиты. Обеспечение огнестойкости объектов защиты
СП 3.13130.2009 Системы противопожарной защиты. Система оповещения и управления эвакуацией людей при пожаре. Требования пожарной безопасности
СП 4.13130.2013 Системы противопожарной защиты. Ограничение распространения пожара на объектах защиты. Требования к объемно-планировочным и конструктивным решениям (с изменением N 1)
СП 6.13130.2021 Системы противопожарной защиты. Электроустановки низковольтные. Требования пожарной безопасности
СП 7.13130.2013 Отопление, вентиляция и кондиционирование. Требования пожарной безопасности (с изменениями N 1, N 2)
СП 8.13130.2020 Системы противопожарной защиты. Наружное противопожарное водоснабжение. Требования пожарной безопасности
СП 10.13130.2020 Системы противопожарной защиты. Внутренний противопожарный водопровод. Нормы и правила проектирования
СП 11.13130.2009 Места дислокации подразделений пожарной охраны. Порядок и методика определения (с изменением N 1)
СП 15.13330.2020 "СНиП II-22-81* Каменные и армокаменные конструкции"
СП 21.13330.2012 "СНиП 2.01.09-91 Здания и сооружения на подрабатываемых территориях и просадочных грунтах" (с изменением N 1)
СП 22.13330.2016 "СНиП 2.02.01-83* Основания зданий и сооружений" (с изменениями N 1, N 2, N 3)
СП 25.13330.2020 "СНиП 2.02.04-88 Основания и фундаменты на вечномерзлых грунтах"
СП 29.13330.2011 "СНиП 2.03.13-88 Полы" (с изменением N 1)
СП 30.13330.2020 "СНиП 2.04.01-85* Внутренний водопровод и канализация зданий"
СП 31.13330.2012 "СНиП 2.04.02-84* Водоснабжение. Наружные сети и сооружения" (с изменениями N 1, N 2, N 3, N 4, N 5)
СП 32.13330.2018 "СНиП 2.04.03-85 Канализация. Наружные сети и сооружения" (с изменением N 1)
СП 42.13330.2016 "СНиП 2.07.01-89* Градостроительство. Планировка и застройка городских и сельских поселений" (с изменениями N 1, N 2)
СП 44.13330.2011 "СНиП 2.09.04-87* Административные и бытовые здания" (с изменениями N 1, N 2, N 3)
СП 45.13330.2017 "СНиП 3.02.01-87 Земляные сооружения, основания и фундаменты" (с изменениями N 1, N 2)
СП 50.13330.2012 "СНиП 23-02-2003 Тепловая защита зданий" (с изменением N 1)
СП 51.13330.2011 "СНиП 23-03-2003 Защита от шума" (с изменением N 1)
СП 52.13330.2016 "СНиП 23-05-95* Естественное и искусственное освещение" (с изменением N 1)
СП 54.13330.2016 "СНиП 31-01-2003 Здания жилые многоквартирные" (с изменениями N 1, N 2, N 3)
СП 55.13330.2016 "СНиП 31-02-2001 Дома жилые одноквартирные" (с изменением N 1)
СП 56.13330.2011 "СНиП 31-03-2001 Производственные здания" (с изменениями N 1, N 2, N 3)
СП 59.13330.2020 "СНиП 35-01-2001 Доступность зданий и сооружений для маломобильных групп населения"
СП 60.13330.2020 "СНиП 41-01-2003 Отопление, вентиляция и кондиционирование воздуха"
СП 63.13330.2018 "СНиП 52-01-2003 Бетонные и железобетонные конструкции. Основные положения" (с изменением N 1)
СП 88.13330.2014 "СНиП II-11-77* Защитные сооружения гражданской обороны" (с изменениями N 1, N 2)
СП 89.13330.2016 "СНиП II-35-76 Котельные установки"
СП 105.13330.2012 "СНиП 2.10.02-84 Здания и помещения для хранения и переработки сельскохозяйственной продукции" (с изменением N 1)
СП 113.13330.2016 "СНиП 21-02-99* Стоянки автомобилей" (с изменением N 1)
СП 118.13330.2012 "СНиП 31-06-2009* Общественные здания и сооружения" (с изменениями N 1, N 2, N 3, N 4)
СП 124.13330.2012 "СНиП 41-02-2003 Тепловые сети" (с изменением N 1)
СП 131.13330.2020 "СНиП 23-01-99* Строительная климатология"
СП 140.13330.2012 Городская среда. Правила проектирования для маломобильных групп населения (с изменением N 1)
СП 158.13330.2014 Здания и помещения медицинских организаций. Правила проектирования (с изменениями N 1, N 2, N 3)
СП 247.1325800.2016 Следственные изоляторы уголовно-исполнительной системы. Правила проектирования (с изменением N 1)
СП 256.1325800.2016 Электроустановки жилых и общественных зданий. Правила проектирования и монтажа (с изменениями N 1, N 2, N 3, N 4)
СП 308.1325800.2017 Исправительные учреждения и центры уголовно-исполнительной системы. Правила проектирования (в двух частях)
СП 332.1325800.2017 Спортивные сооружения. Правила проектирования (с изменением N 1)
СП 380.1325800.2018 Здания пожарных депо. Правила проектирования (с изменением N 1)
СП 439.1325800.2018 Здания и сооружения. Правила проектирования аварийного освещения
СП 484.1311500.2020 Системы противопожарной защиты. Системы пожарной сигнализации и автоматизация систем противопожарной защиты. Нормы и правила проектирования
СП 485.1311500.2020 Системы противопожарной защиты. Установки пожаротушения автоматические. Нормы и правила проектирования
СП 486.1311500.2020 Системы противопожарной защиты. Перечень зданий, сооружений, помещений и оборудования, подлежащих защите автоматическими установками пожаротушения и системами пожарной сигнализации. Требования пожарной безопасности
СанПиН 1.2.3685-21 Гигиенические нормативы и требования к обеспечению безопасности и (или) безвредности для человека факторов среды обитания
СанПиН 2.1.3684-21 Санитарно-эпидемиологические требования к содержанию территорий городских и сельских поселений, к водным объектам, питьевой воде и питьевому водоснабжению, атмосферному воздуху, почвам, жилым помещениям, эксплуатации производственных, общественных помещений, организации и проведению санитарно-противоэпидемических (профилактических) мероприятий
СанПиН 2.3/2.4.3590-20 Санитарно-эпидемиологические требования к организации общественного питания населения
СанПиН 2.6.1.1192-03 Гигиенические требования к устройству и эксплуатации рентгеновских кабинетов, аппаратов и проведению рентгенологических исследований
СанПиН 2.6.1.3488-17 Гигиенические требования по обеспечению радиационной безопасности при обращении с лучевыми досмотровыми установками
СП 2.1.3678-20 Санитарно-эпидемиологические требования к эксплуатации помещений, зданий, сооружений, оборудования и транспорта, а также условиям деятельности хозяйствующих субъектов, осуществляющих продажу товаров, выполнение работ или оказание услуг
СП 2.3.6.3668-20 Санитарно-эпидемиологические требования к условиям деятельности торговых объектов и рынков, реализующих пищевую продукцию
Примечание - При пользовании настоящим сводом правил целесообразно проверить действие ссылочных документов в информационной системе общего пользования - на официальном сайте федерального органа исполнительной власти в сфере стандартизации в сети Интернет или по ежегодному информационному указателю "Национальные стандарты", который опубликован по состоянию на 1 января текущего года, и по выпускам ежемесячного информационного указателя "Национальные стандарты" за текущий год. Если заменен ссылочный документ, на который дана недатированная ссылка, то рекомендуется использовать действующую версию этого документа с учетом всех внесенных в данную версию изменений. Если заменен ссылочный документ, на который дана датированная ссылка, то рекомендуется использовать версию этого документа с указанным выше годом утверждения (принятия). Если после утверждения настоящего свода правил в ссылочный документ, на который дана датированная ссылка, внесено изменение, затрагивающее положение, на которое дана ссылка, то это положение рекомендуется применять без учета данного изменения. Если ссылочный документ отменен без замены, то положение, в котором дана ссылка на него, рекомендуется применять в части, не затрагивающей эту ссылку. Сведения о действии сводов правил целесообразно проверить в Федеральном информационном фонде стандартов.
3.1 Термины и определения
В настоящем своде правил применены термины по СП 247.1325800, СП 308.1325800, а также следующие термины с соответствующими определениями:
3.1.1 камерное помещение: Камера, сборная камера, карантинная камера, палата медицинской части, боксированная палата медицинской части, камера штрафного изолятора, рабочая камера.
3.1.2 ситуационный центр: Помещение, оснащенное автоматизированными рабочими местами, отображающими информацию о состоянии элементов подсистем интегрированной системы безопасности, необходимую для оценки оперативной обстановки и принятия решения о тех или иных действиях в текущей ситуации.
3.1.3 хозобслуга: Осужденные, оставленные в тюрьме для отбывания наказания в виде лишения свободы и выполнения работ по хозяйственному обслуживанию.
3.2 Сокращения
В настоящем своде правил применены следующие сокращения:
АКЛ - армированная колючая лента;
АТС - автоматическая телефонная станция;
АУП - административно-управленческий персонал;
ГВС - горячее водоснабжение;
ДПНТ - дежурный помощник начальника тюрьмы;
ЕПКТ - единые помещения камерного типа;
ИК-детектор - инфракрасный детектор;
ИБП - источник бесперебойного питания;
ИСБ - интегрированная система безопасности;
ИТСОН - инженерно-технические средства охраны и надзора;
ИТП - индивидуальный тепловой пункт;
ИЦ - исправительный центр;
КПП - контрольно-пропускной пункт;
КХО - комната хранения оружия;
КХСИБиАО - комната хранения средств индивидуальной бронезащиты и активной обороны;
МГН - маломобильные группы населения;
ПВХ - поливинилхлорид (поливинилхлоридный);
ПДК - предельно допустимая концентрация;
ПФРСИ - помещения, функционирующие в режиме следственного изолятора;
СГГС - система громкоговорящей связи;
СКУД - система контроля и управления доступом;
СОДС - система оперативно-диспетчерской связи;
СОТ - система охранного телевидения;
СОТС - система охранно-тревожной сигнализации;
СОУЭ - система оповещения и управления эвакуацией;
ТСН - технические средства надзора;
ТСО - технические средства охраны;
ТСОН - технические средства охраны и надзора;
УИС РФ - уголовно-исполнительная система Российской Федерации;
ФСИН - Федеральная служба исполнения наказаний;
ЦПТКВ - центральный пост технического контроля и видеонаблюдения;
ЦТАО - центр трудовой адаптации осужденных;
ЦТП - центральный тепловой пункт;
ШИЗО - штрафной изолятор.
4.1 При проектировании объектов тюрем следует соблюдать требования [1], [2] и [7], технических регламентов, действующих сводов правил, национальных стандартов, нормативных правовых актов в области архитектуры и градостроительной деятельности, утвержденных в установленном порядке.
4.2 В проектируемых зданиях тюрем в соответствии с требованиями СП 88.13330 и иных документов по инженерно-техническим мероприятиям гражданской обороны допускается предусматривать встроенные защитные сооружения гражданской обороны, состав и вместимость которых определяются заданием на проектирование.
4.3 При проектировании объектов тюрем следует учитывать требования СП 59.13330, СП 140.13330.
Если в тюрьме предусматривается содержание лиц, относящихся к МГН, следует предусматривать их размещение, по возможности, на первых этажах зданий. Состав зданий, сооружений и помещений, в которых предусматривается содержание указанной категории осужденных либо доступ посетителей из числа МГН, определяется заданием на проектирование.
При определении ширины горизонтальных коммуникационных путей для МГН следует исходить из условия передвижения на креслах-колясках в одном направлении.
Помещения зданий тюрем, возможные к использованию МГН, в которых лица, относящиеся к МГН, из числа посетителей и осужденных могут остаться одни (за исключением коммуникационных путей), обеспечиваются двусторонней связью с выводом сигнала в помещение (на пост) младшего инспектора в соответствующем здании или помещение ДПНТ, в здании для приезжих - в комнату персонала.
К данным помещениям в зданиях тюрем относятся используемые МГН:
- комнаты для свиданий с адвокатами в блоке помещений для проведения краткосрочных свиданий;
- душевые, умывальные, кабины личной гигиены женщин, санитарные узлы и уборные, в том числе при камерах, рабочих камерах, палатах медицинской части (врачебного здравпункта), одноместных помещениях безопасного места;
- жилые комнаты, санитарные узлы при жилых комнатах в блоке помещений для проведения длительных свиданий;
- уборные для посетителей в административном здании, при КПП, располагаемом в локальной зоне тюрьмы, при блоках помещений для проведения длительных и краткосрочных свиданий;
- раздевальные, одевальные, душевые и ванные комнаты (для осужденных) при санпропускниках;
- помещения для ожидающих свидания при блоках помещений для проведения длительных и краткосрочных свиданий;
- комната ожидания при блоке помещений для посетителей в административном здании тюрьмы;
- кабины для телефонных переговоров;
- жилые комнаты здания для приезжих.
4.4 Состав этапов строительства тюрем необходимо определять с учетом очередности ввода в эксплуатацию зданий и сооружений.
4.5 В состав первого этапа строительства тюрьмы следует включать: инженерно-технические средства охраны и надзора (ИТСОН); административное здание тюрьмы с основным КПП и площадкой дежурной службы; один из режимных корпусов (часть режимного корпуса) с прогулочными дворами; штрафной изолятор (ШИЗО) с прогулочными дворами; сборное отделение с карантином; пищеблок; здание прачечной; медицинскую часть; здание для проведения длительных и краткосрочных свиданий.
В состав первого этапа строительства тюрьмы независимо от лимита наполнения, климатических, географических и других условий также следует включать инженерные сети, здания и сооружения инженерно-технического обеспечения функционирования учреждения, а также элементы благоустройства, обеспечивающие необходимые санитарно-гигиенические условия.
4.6 При проектировании объектов тюрем допускается отклонение площадей помещений в пределах 15% значений, представленных в настоящем своде правил, для объектов реконструкции и капитального ремонта, в пределах 10% - для объектов нового строительства.
При этом жилая площадь, приходящаяся на одного осужденного, в камерах, палатах зданий медицинского назначения, спальных комнатах должна быть не менее нормируемой (8.14.1).
4.7 При проектировании зданий гаражей в составе хозяйственно-складской зоны тюрьмы следует учитывать положения СП 113.13330 и задания на проектирование.
4.8 Здания (блоки помещений) общежитий и режимных корпусов для осужденных тюрьмы следует рассматривать как здания общественного назначения.
К режимным зданиям тюрем относятся здания с наличием в их составе камерных помещений для осужденных (в том числе рабочих камер, медицинских палат). К режимным зданиям в составе тюрем следует относить здания:
- ШИЗО;
- режимного корпуса;
- медицинской части (врачебного, фельдшерского здравпункта);
- сборного отделения с карантином;
- ЦТАО.
4.9 Мероприятия по пожарной безопасности территории, зданий, помещений, сооружений тюрем, в том числе выбор конструкций и материалов при проектировании зданий и сооружений тюрем, а также применение облицовочных, отделочных и других материалов следует осуществлять в соответствии с требованиями [2], [3], СП 1.13130, СП 3.13130, СП 4.13130, СП 6.13130, СП 7.13130, СП 8.13130, СП 10.13130, СП 11.13130, СП 380.1325800, СП 484.1311500, СП 485.1311500, 486.1311500, а также ведомственных нормативных документов ФСИН России, регламентирующих вопросы обеспечения пожарной безопасности [8].
4.10 Требования к изготовлению 100% применяемых для оснащения тюрем специальных изделий приведены в [9], [10].
Требования к устройству, конструктивному исполнению и оборудованию шлюза для досмотра и пропуска транспортных средств, контрольных площадок, проходных коридоров и других помещений КПП, функциональное назначение ограждений различного вида, а также конструкция, материал, геометрические параметры ограждений в зависимости от их функционального назначения, заграждений, других сооружений охраны объектов тюрем приведены в [9].
4.11 Требования по инсоляции, естественному и искусственному освещению помещений зданий тюрем следует принимать согласно 13.4.9, СП 52.13330, СП 118.13330, СП 54.13330, СП 55.13330, СП 42.13330, СанПиН 1.2.3685, СП 2.1.3678, СП 59.13330 (в части норм освещенности помещений для МГН).
4.12 В многоэтажных зданиях тюрем при наличии на втором и вышележащих этажах помещений, предназначенных для МГН, следует предусматривать лифты или другие средства вертикального транспорта в соответствии с требованиями СП 59.13330.
При новом строительстве в многоэтажных зданиях при отметке пола верхнего этажа 9,9 м и более от уровня чистого пола первого этажа и в случае расположения на верхних этажах блоков помещений:
- общежитий для осужденных;
- сборного отделения с карантином;
- ШИЗО;
- для проведения длительных и краткосрочных свиданий;
- для приезжих, а также в многоэтажных: административном здании, здании режимного корпуса, спортивного корпуса с тиром при отметке пола верхнего этажа 9,9 м и более от уровня чистого пола первого этажа - следует предусматривать пассажирские лифты с учетом требований СП 118.13330.
Пассажирские (в том числе больничные) лифты следует предусматривать при новом строительстве многоэтажных зданий медицинских частей (врачебных и фельдшерских здравпунктов) тюрем при наличии в здании двух этажей и более. Число лифтов и требования к ним принимаются согласно СП 118.13330.
При наличии в здании медицинской части тюрьмы больничных лифтов, конструкция которых приспособлена для транспортирования пассажиров, пассажирские лифты допускается не предусматривать.
При новом строительстве в многоэтажных зданиях:
- режимных корпусов;
- ШИЗО;
- медицинской части со стационаром;
- сборного отделения с карантином;
- ЦТАО при размещении блоков помещений для размещения и работы осужденных (для медицинских частей - помещений стационара) в составе зданий на втором и вышележащих этажах следует предусматривать грузовые лифты (подъемники) для доставки пищи на этажи.
При новом строительстве в многоэтажных зданиях ЦТАО тюрьмы в случае размещения блоков помещений (помещений) производственного и складского назначения в составе зданий на втором и вышележащих этажах следует предусматривать грузовые лифты (подъемники) для транспортирования сырья и готовой продукции.
При новом строительстве в многоэтажных зданиях пищеблоков, прачечных, а также в случае размещения блоков помещений пищеблоков и прачечных в составе зданий с иным функциональным назначением на втором и вышележащих этажах либо в цокольных этажах и подвалах следует предусматривать грузовые лифты (подъемники) для транспортирования белья, продуктов, готовых блюд.
4.13 При тюрьмах допускается предусматривать изолированный участок, функционирующий как ИЦ, а также участки ПФРСИ, ЕПКТ и ЛПУ.
Состав зданий и сооружений указанных изолированных участков следует определять в каждом конкретном случае заданием на проектирование с учетом соответствующих положений СП 247.1325800, СП 308.1325800.
4.14 При проектировании изолированного участка, функционирующего как тюрьма, состав и площади помещений следует определять в каждом конкретном случае заданием на проектирование исходя из лимита наполнения и штатной численности начальствующего состава, рабочих и служащих (далее - работники) данного изолированного участка, с учетом соответствующих положений настоящего свода правил.
4.15 При входе в помещение душевой для осужденных необходимо предусматривать зону для раздевания, оборудованную вешалками для одежды исходя из числа душевых сеток и отделенную от общего объема помещения душевой сплошной перегородкой длиной 0,8 - 1,2 м, исключающей намокание одежды. Допускается предусматривать помещения раздевальных, размещаемые смежно с помещениями душевых для осужденных.
Разделительные перегородки, отделяющие отдельные санитарные приборы или группы санитарных приборов в общих душевых и уборных (за исключением перегородок санитарной кабины с унитазом при камерных помещениях, одноместных помещениях безопасного места), должны быть выполнены на высоту не менее 2,0 м от уровня пола помещения из материалов, допускающих их мытье с применением моющих средств.
4.16 В составе помещений зданий режимной зоны тюрьмы допускается по заданию на проектирование предусматривать необходимое количество помещений для отправления религиозных обрядов в целях обеспечения возможности проведения религиозных обрядов осужденными различного вероисповедания.
4.17 Отклонения от положений настоящего свода правил, не затрагивающие конструктивных и других характеристик надежности и безопасности зданий, сооружений и помещений тюрем, допускаются по решению ФСИН России.
4.18 Площадь камерного помещения определяется как сумма площадей всех частей такого помещения, рассчитанных по их размерам, измеряемым между отделанными поверхностями стен и перегородок на уровне пола (выше прижимного бруса, заменяющего плинтус), без учета площади санитарной кабины с унитазом, изолированной от остального пространства камеры перегородками, а также площади расположенных в объеме камерного помещения конструктивных элементов (колонн, полуколонн, пилястр и т.п.). При определении площади камерного помещения площадь, занимаемая установленным в камерном помещении оборудованием, включая санитарно-техническое оборудование (умывальники, раковины) и приборы отопления, камерной мебелью (камерными кроватями, камерным столом, тумбочками и т.п.), из площади камерного помещения не исключается.
4.19 Лимит наполнения тюрьмы определяется заданием на проектирование с учетом [11], [12].
В настоящем своде правил рассматриваются тюрьмы с лимитом наполнения от 200 до 1500 осужденных. Осуществлять проектирование тюрем (изолированных участков, функционирующих как тюрьма) с лимитом наполнения, отличным от указанного, допускается по решению ФСИН России.
4.20 Лимит наполнения тюрьмы определяют исходя из суммарной вместимости камер режимного корпуса (корпусов) тюрьмы и вместимости общежития для хозобслуги. При этом вместимость стационара медицинской части, камер ШИЗО, камер сборного и карантинного отделений, рабочих камер, одноместных помещений безопасного места, блока помещений для осужденных хозобслуги, находящихся в ежегодном оплачиваемом отпуске, здания (блоков помещений) для проведения длительных и краткосрочных свиданий в лимит наполнения тюрьмы не включают.
4.21 При организации изолированного участка, функционирующего как ИЦ, при тюрьме лимит наполнения изолированного участка, функционирующего как ИЦ, в лимит наполнения тюрьмы не включают.
В случае размещения участка ПФРСИ, ЛПУ или ЕПКТ при тюрьме лимит наполнения участка ПФРСИ, ЛПУ, ЕПКТ включают в лимит наполнения тюрьмы.
4.22 Численность осужденных хозобслуги в тюрьме следует уточнять заданием на проектирование. Соотношение осужденных хозобслуги и осужденных к отбыванию лишения свободы в тюрьме следует принимать равным 7% на 93%.
4.23 Процентное соотношение различных категорий осужденных тюрьмы, подлежащих раздельному содержанию, в том числе осужденных, содержащихся на общем и строгом режимах, определяют заданием на проектирование в каждом конкретном случае. При этом ориентировочное соотношение осужденных тюрьмы, содержащихся на общем и строгом режимах, следует принимать равным 50% на 50%.
4.24 Штатную численность работников при проектировании тюрем следует определять заданием на проектирование.
4.25 В зданиях тюрем допускается осуществление скрытой прокладки инженерных коммуникаций в общих коридорах зданий с устройством фальш-стен путем облицовки поверхностей внутренних капитальных стен общего коридора двумя слоями гипсокартонных листов вида ГКЛВО (ГОСТ 6266) по металлическому каркасу с отступом от поверхности стены на 300 мм при одновременном обеспечении нормируемой ширины общего коридора здания в чистоте.
4.26 Через помещения канцелярии, кабинет начальника тюрьмы, кабинет заместителя начальника тюрьмы по организации деятельности оперативно-режимных служб, помещения оперативного отдела и отдела (группы) специального учета, кассу запрещается прокладка транзитных трубопроводов, воздуховодов и других коммуникаций.
Транзитная прокладка воздуховодов через КХО, а также устройство вентканалов в стенах, разделяющих КХО и смежные помещения, не допускаются.
5.1 Размеры территории, предназначенной для строительства тюрьмы, должны быть достаточными для размещения всех объектов строительства с учетом возможности расширения учреждения и организации прилегающей к тюрьме режимной территории [13]. При этом должны обеспечиваться благоприятные условия для энергоснабжения объектов капитального строительства.
5.2 По условиям рельефа наиболее пригодными для размещения тюрем следует считать территории с уклонами от 0,5% до 10%; ограниченно пригодными - с уклоном от 10% до 20%, а в горных местностях - до 30%.
5.3 Территория тюрьмы должна быть удалена от жилых, общественных, производственных и прочих строений, не входящих в инфраструктуру тюрьмы, на расстояние не менее 100 м.
По решению ФСИН России в 100-метровой полосе по периметру тюрьмы допускается отвод площадок под строительство зданий и сооружений с соблюдением требований [26] и при условии проведения дополнительных мероприятий по обеспечению безопасности тюрьмы.
5.4 Тюрьмы следует проектировать с учетом зонирования территории учреждения на локальную зону (изолированную территорию), режимную и хозяйственно-складскую зоны.
Каждую из зон тюрьмы в зависимости от функционального назначения и расположения отделяют по периметру ограждением соответствующей конструкции [9].
По периметру тюрьмы, за исключением локальной зоны (изолированной территории) тюрьмы, для воспрепятствования прохода лиц и проезда транспортных средств вне основного КПП, встроенного или сблокированного с административным зданием, возводят основное ограждение и оборудуют запретную зону (периметр охраны) [9]. Допускается не включать в периметр охраны хозяйственно-складскую зону учреждения при условии реализации положений 5.5.
Территория, периметр охраны, здания и сооружения тюрьмы оборудуются ИТСОН. Оборудование ИТСОН на периметре охраны, в зданиях и сооружениях, на территории тюрьмы, взаимное расположение элементов и сооружений ИТСОН, геометрические параметры и материал, конструктивные особенности заграждений и ограждений территорий, участков и зон в зависимости от функционального назначения устанавливаются нормативными актами, регламентирующими вопросы оборудования ИТСОН объектов УИС РФ [9], [10].
5.5 Хозяйственно-складская зона тюрьмы располагается смежно с режимной зоной тюрьмы в периметре охраны учреждения. Смежно расположенные в едином периметре охраны режимную и хозяйственно-складскую зоны тюрьмы следует отделять разделительным ограждением [9].
Проход (проезд) на территорию хозяйственно-складской зоны предусматривается из режимной зоны тюрьмы. Для организации пропуска людей и транспортных средств из режимной зоны на территорию хозяйственно-складской зоны тюрьмы предусматривается дополнительный внутренний КПП, располагаемый в створе с разделительным ограждением. Расположение указанного КПП и въездных ворот на хозяйственно-складскую зону тюрьмы должны обеспечивать возможность проезда длинномерного транспортного средства.
При отсутствии необходимой площади земельного участка или иных непреодолимых причинах допускается располагать хозяйственно-складскую зону тюрьмы смежно с локальной зоной (изолированной территорией) вне периметра охраны учреждения. Хозяйственно-складская зона тюрьмы в этом случае отделяется от локальной зоны (изолированной территории) глухим ограждением (ограждением сплошного заполнения) высотой не менее 3,0 м с устройством дополнительного КПП для организации прохода (проезда) на территорию хозяйственно-складской зоны из локальной зоны, ворот и контрольной площадки для досмотра и пропуска транспортных средств.
5.6 Режимная зона тюрьмы должна обеспечиваться контролируемым въездом через шлюз для досмотра и пропуска транспортных средств основного КПП (встроенного или сблокированного с административным зданием) и примыкающую к шлюзу контрольную площадку, расположенную со стороны режимной зоны и оборудованную въездными воротами в режимную зону. На территории режимной зоны тюрьмы размещение железнодорожных тупиков, подъездных железнодорожных путей не допускается.
Режимная зона тюрьмы разделяется на локальные изолированные участки и территорию вне локальных изолированных участков.
В режимной зоне тюрьмы следует выделять локальные изолированные участки:
- со зданием общежития для хозобслуги;
- со зданием для проведения длительных и краткосрочных свиданий.
По границе локального изолированного участка устанавливаются ограждения [9]. Ограждения локальных изолированных участков оборудуются входной калиткой, при необходимости обеспечения проезда автотранспорта на территорию локального изолированного участка - воротами.
В режимной зоне следует также выделять локальную территорию на особый период из расчета 0,5 м2 на одного осужденного с размещением 100% осужденных, содержащихся в тюрьме. Локальную территорию на особый период отделяют ограждением высотой не менее 3,0 м с заполнением из металлической сетки. Верх ограждения оборудуют противопобеговым козырьком из спирали АКЛ [9]. Ограждение локальной территории на особый период оборудуют входной калиткой и металлическими распашными воротами шириной не менее 3,5 м и высотой - 3,0 м. Устройство входной калитки должно выполняться с учетом требований, приведенных в СП 59.13330.
Расположение ограждений локальных изолированных участков, локальной территории на особый период должно обеспечивать свободный проезд автотранспорта, в том числе пожарных автомобилей, по территории режимной зоны.
Освещение территории локального изолированного участка должно выполняться светильниками со светодиодными, ртутными, натриевыми, металлогалогенными лампами. По заданию на проектирование допускается применение других типов ламп. Электроснабжение освещения локального изолированного участка должно осуществляться по первой категории по надежности электроснабжения согласно [14].
5.7 Локальная зона (изолированная территория) тюрьмы располагается смежно с режимной зоной. Территорию локальной зоны (изолированной территории) тюрьмы ограждают глухим забором (ограждением сплошного заполнения) [9]. При расположении хозяйственно-складской зоны тюрьмы вне периметра охраны учреждения [смежно с локальной зоной (изолированной территорией)] ограждение указанного вида возводят и по границе хозяйственно-складской зоны с внешней неохраняемой территорией.
В створе с ограждением локальной зоны (изолированной территории) предусматривают дополнительный КПП для пропуска людей и автотранспорта с внешней неохраняемой территории в локальную зону (изолированную территорию) тюрьмы. На въезде в локальную зону (изолированную территорию) тюрьмы с внешней неохраняемой территории в ограждении локальной зоны (изолированной территории) предусматриваются откатные (раздвижные) или распашные ворота для пропуска транспортных средств.
В ограждении локальной зоны (изолированной территории) допускается предусматривать калитки (ворота) для прохода (проезда) резервных групп караула.
5.8 В локальной зоне (на изолированной территории), в режимной и хозяйственно-складской зонах тюрьмы размещаются здания и сооружения, состав которых определен в разделе 7.
5.9 Необходимость возведения зданий и сооружений инфраструктуры тюрьмы, перечисленных в разделе 7, в зависимости от фактических условий предполагаемой площадки строительства и исходных данных территориального органа ФСИН России для проектирования тюрьмы конкретизируется заданием на проектирование.
5.10 При разработке планировочной организации земельного участка тюрьмы внутриплощадочные автомобильные дороги следует проектировать таким образом, чтобы исключалась возможность разгона транспортных средств до скорости свыше 50 км/ч. Для этого прямые участки автомобильных проездов протяженностью более 50 м оборудуются физическими препятствиями для изменения траектории движения транспортного средства (бетонные блоки, столбы, бетонные полусферы и т.п.), расположение которых принуждает к зигзагообразной траектории движения. Препятствия устанавливают в шахматном порядке по краям автомобильного проезда на расстоянии не более 50 м друг от друга и от начала прямолинейного участка автомобильного проезда.
С внутренней и внешней территории тюрьмы на тараноопасных направлениях необходимо предусматривать установку противотаранных заграждений [9], при этом места установки и виды противотаранных заграждений следует определять заданием на проектирование.
5.11 Сооружения водоснабжения (скважины, насосные станции, резервуары, водонапорные башни), канализационные сооружения следует размещать на участке, соответствующем требованиям СанПиН 2.1.3684 к организации зоны санитарной охраны и санитарно-защитной зоны. По периметру зданий и сооружений, входящих в инфраструктуру тюрьмы и являющихся объектами жизнеобеспечения (водопроводная насосная станция, резервуары, котельная, комплектная трансформаторная подстанция, канализационно-насосная станция, очистные сооружения и т.п.), следует предусматривать ограждение в соответствии с СП 31.13330, СП 32.13330, СП 89.13330, [14].
5.12 Площадь локального участка городка для содержания служебных собак с кинодромом в тюрьмах следует принимать по таблице 8.2 СП 308.1325800.2017.
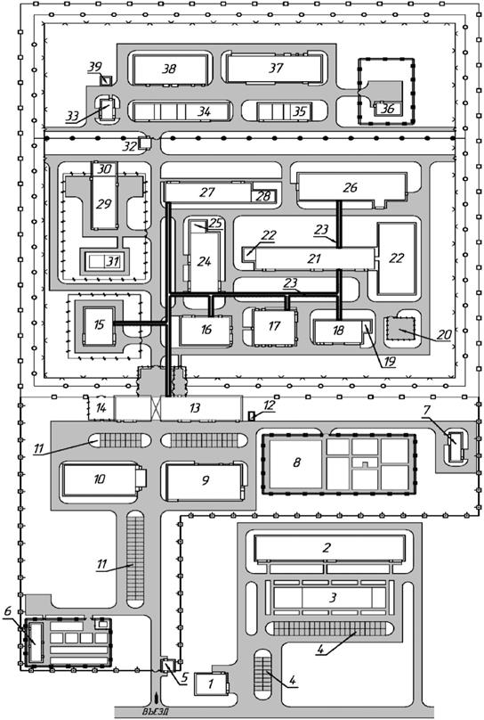
Площади земельных участков для размещения локальной, режимной и хозяйственно-складской зон тюрьмы для предварительных расчетов следует принимать по таблице 5.1.
Таблица 5.1
|
Наименование зоны |
Площадь земельного участка, га, при лимите наполнения тюрьмы, чел. | ||||
|
До 250 (включ.) |
Св. 250 до 500 (включ.) |
Св. 500 до 750 (включ.) |
Св. 750 до 1000 (включ.) |
Св. 1000 до 1500 (включ.) | |
|
1 Режимная зона |
2,4 - 3,8 |
3,8 - 6,0 |
6,0 - 8,5 |
8,5 - 10,0 |
10,0 - 12,0 |
|
2 Локальная зона (изолированная территория) |
1,3 - 1,8 |
1,8 - 2,4 |
2,4 - 2,8 |
2,8 - 2,9 |
2,9 - 3,0 |
|
3 Хозяйственно-складская зона |
0,4 - 0,5 |
0,5 - 0,8 |
0,8 - 1,3 |
1,3 - 2,0 |
2,0 - 2,8 |
|
Примечания 1 В площадь режимной зоны входит площадь земельного участка локальной территории на особый период. 2 Площадь локальной зоны (изолированной территории) дана без учета размещения столовой для работников учреждения. 3 Указанная в настоящей таблице площадь земельного участка может отличаться в сторону увеличения при необходимости резервирования территории под перспективное расширение тюрьмы. 4 В указанную площадь хозяйственно-складской зоны не входят площади земельных участков для размещения: собственной котельной, здания подразделения ведомственной пожарной охраны, городка для содержания служебных собак с кинодромом (в случае его размещения в хозяйственно-складской зоне тюрьмы), складов сырья и готовой продукции для ЦТАО. Площади земельных участков перечисленных объектов определяются проектом. | |||||
5.13 Требования к благоустройству территории тюрем следует принимать по СП 308.1325800.2017 (раздел 24).
При расположении блока помещений для посетителей в составе дополнительного КПП для пропуска людей и автотранспорта в локальную зону (изолированную территорию) с внешней неохраняемой территории допускается предусматривать в непосредственной близости от входа в КПП детскую игровую площадку с соблюдением требований СП 42.13330. При расположении блока помещений для посетителей в составе административного здания тюрьмы детскую игровую площадку допускается предусматривать в непосредственной близости от административного здания при входе в блок помещений для посетителей. Допускается предусматривать аналогичную детскую игровую площадку на территории локального изолированного участка здания для проведения длительных и краткосрочных свиданий.
В составе объектов тюрьмы следует предусматривать служебную автопарковку. Размещение служебной автопарковки следует предусматривать в локальной зоне (изолированной территории) в непосредственной близости от административного здания тюрьмы на расстоянии не менее 10 м от окон близлежащих зданий общественного назначения или при недостатке площади земельного участка - на неохраняемой территории тюрьмы в непосредственной близости от въезда в локальную зону (изолированную территорию) тюрьмы. Расположение служебной автомобильной парковки на локальной зоне (изолированной территории) или неохраняемой территории тюрьмы конкретизируется заданием на проектирование. Вместимость служебной автопарковки (число парковочных мест) определяют по таблице 7.1.
При новом строительстве тюрьмы по заданию на проектирование на неохраняемой территории допускается предусматривать гостевую автопарковку для посетителей. Вместимость гостевой автопарковки следует определять согласно региональным (местным) нормам градостроительного проектирования, а при их отсутствии устанавливать заданием на проектирование.
При размещении парковочных мест на гостевой автопарковке для посетителей следует предусматривать места для хранения (стоянки) электромобилей, оборудованные зарядными устройствами, в соответствии с требованиями СП 113.13330. Расчетная потребность парковочных мест, оборудованных зарядными устройствами, устанавливается заданием на проектирование. При этом предусматривается не менее одного парковочного места для электромобилей.
Для автомобилей МГН на гостевой автопарковке следует выделять 10% от общего числа парковочных мест, но не менее одного места. При отсутствии гостевой автопарковки парковочные места для автомобилей МГН следует предусматривать в составе служебной автопарковки в том же соотношении с общим числом парковочных мест. Габариты парковочных мест, в том числе габариты парковочных мест для транспортных средств МГН и иные требования к устройству автопарковок, следует принимать с учетом положений СП 113.13330.
6.1 В локальной зоне (изолированной территории) тюрьмы следует размещать административное здание (с основным КПП, шлюзом для досмотра и пропуска транспортных средств и площадкой дежурной службы), а также объекты, перечисленные в 6.2.
Административное здание тюрьмы располагается на границе локальной зоны (изолированной территории) и режимной зоны тюрьмы, при этом ось его внутреннего фасада располагается на линии основного ограждения (периметра охраны объекта). Проход из локальной в режимную зону тюрьмы осуществляется через проходной коридор (проезд - через шлюз для досмотра и пропуска транспортных средств) основного КПП, встроенного или сблокированного с административным зданием.
Перед шлюзом со стороны режимной зоны тюрьмы предусматривается контрольная площадка. Ворота шлюза, контрольной площадки располагают на одной оси для обеспечения удобного проезда транспортных средств.
6.2 В локальной зоне (изолированной территории) тюрьмы также предусматриваются:
- дополнительный КПП для прохода (проезда) в локальную зону (изолированную территорию) тюрьмы с внешней территории;
- столовая для работников учреждения (при необходимости, устанавливаемой заданием на проектирование, с учетом 6.4);
- спортивный корпус с тиром (при необходимости, устанавливаемой заданием на проектирование, с учетом 6.4);
- городок для служебной подготовки (при необходимости, устанавливаемой заданием на проектирование);
- служебная автопарковка;
- дизельная электростанция;
- локальный участок городка для содержания служебных собак с кинодромом (с учетом 6.4);
- морг (при необходимости, устанавливаемой заданием на проектирование, с учетом 8.13.1);
- сети, здания и сооружения инженерно-технического обеспечения, а также элементы благоустройства.
6.3 В составе объектов тюрьмы, при необходимости, по заданию на проектирование допускается предусматривать отдельно стоящее общежитие для работников УИС РФ и здание для приезжих. Допускается предусматривать помещения для приезжих в виде блока помещений в составе зданий иного функционального назначения.
6.4 Размещение здания общежития для работников УИС РФ, столовой для работников учреждения, морга, служебной автопарковки допускается как в локальной зоне (изолированной территории), так и на внешней неохраняемой территории тюрьмы, размещение здания (блока помещений) для приезжих - только на внешней неохраняемой территории учреждения.
Городок для содержания служебных собак с кинодромом следует размещать на отдельном локальном участке с соблюдением ветеринарных и санитарных требований и норм, применяемых к содержанию животных и ветеринарных объектов. При реконструкции тюрем либо объектов иного назначения под размещение тюрем, в случае отсутствия земельного участка необходимой площади для размещения городка для содержания служебных собак с кинодромом в локальной зоне (изолированной территории) тюрьмы, допускается его размещение в хозяйственно-складской зоне учреждения. Состав и требования к городку для содержания служебных собак с кинодромом принимаются в соответствии с 8.12.
Здание морга следует размещать на отдельном участке в локальной зоне (изолированной территории) либо при недостатке площадей земельного участка - на внешней неохраняемой территории тюрьмы с подветренной стороны. Размещение здания морга на территории режимной и хозяйственно-складской зон тюрьмы не допускается.
Спортивный корпус и столовую для работников учреждения следует предусматривать, если доступность ближайшего спортивного зала на общественном транспорте превышает 30 мин, столовой - 10 мин или в том случае, если их пропускная способность (мощность) не обеспечивает потребности учреждения. При отсутствии необходимости устройства спортивного корпуса в составе зданий тюрьмы допускается предусматривать только тир.
6.5 В режимной зоне тюрьмы размещают следующие здания и сооружения:
- дополнительный внутренний КПП для прохода (проезда) на территорию хозяйственно-складской зоны из режимной зоны (при расположении хозяйственно-складской зоны смежно с режимной зоной в едином периметре охраны);
- режимный корпус (корпуса) для осужденных тюрьмы, содержащихся на общем и строгом режимах;
- ШИЗО (в случае устройства ШИЗО в виде отдельно стоящего здания);
- сборное отделение с карантином;
- общежитие для хозобслуги;
- здание для проведения длительных и краткосрочных свиданий;
- медицинскую часть (врачебный, фельдшерский здравпункт);
- прачечную;
- пищеблок;
- ЦТАО;
- локальную территорию на особый период;
- сети, здания и сооружения инженерно-технического обеспечения, а также элементы благоустройства.
Здание общежития для хозобслуги, здание для проведения длительных и краткосрочных свиданий размещаются в локальных изолированных участках (5.6).
6.6 При новом строительстве на территории локального изолированного участка со зданием общежития для хозобслуги следует предусматривать размещение площадки для построения с территорией для прогулок, служащей одновременно спортивной площадкой из расчета 2,0 м2 на одного осужденного, и место для курения. При реконструкции спортивные площадки устраиваются по возможности.
Устройство спортивных площадок определяется заданием на проектирование с учетом СП 332.1325800.
6.7 ШИЗО тюрьмы целесообразно располагать в виде отдельно стоящего здания с соблюдением требований 7.9, в исключительных случаях (в тюрьмах с минимальным лимитом наполнения, при реконструкции объектов иного функционального назначения под объекты тюрем и т.п.) ШИЗО допускается предусматривать в виде блока помещений в составе здания режимного корпуса тюрьмы либо пристроенным к зданию режимного корпуса тюрьмы, обеспечивая в этих случаях ШИЗО обособленным наружным входом. При размещении ШИЗО тюрьмы в виде блока помещений в составе многоэтажного здания режимного корпуса блок помещений ШИЗО следует располагать на первом этаже здания.
Допускается сблокированно размещать режимный корпус тюрьмы и здание ЦТАО.
6.8 Размещение прогулочных дворов следует предусматривать:
- при здании режимного корпуса;
- здании (блоке помещений) ШИЗО;
- карантинном отделении;
- стационаре медицинской части.
6.9 При новом строительстве тюрем для исключения прохода осужденных по территории режимной зоны тюрьмы здания режимного назначения (4.8), здание для проведения длительных и краткосрочных свиданий, здание ЦТАО и здания обслуживающего назначения, расположенные в режимной зоне, а также административное здание тюрьмы следует соединять отапливаемыми переходами, которые следует выполнять на уровне второго (третьего) этажа зданий, - переходные галереи, или ниже уровня поверхности земли - подземные переходы, что оговаривается заданием на проектирование. При реконструкции тюрем либо объектов иного функционального назначения под размещение тюрем, а также при новом строительстве отдельных зданий на территории действующих тюрем допускается не предусматривать отапливаемые переходы, если взаиморасположение зданий или иные технические факторы исключают такую возможность.
6.10 Следует проектировать ЦТАО исходя из выбранного профиля производства и объема предполагаемой к выпуску продукции, которые устанавливаются заданием на проектирование.
6.11 В составе хозяйственно-складской зоны тюрьмы предусматривают следующие здания и сооружения:
- дополнительный КПП для прохода (проезда) на территорию хозяйственно-складской зоны из локальной зоны (изолированной территории) при расположении хозяйственно-складской зоны вне периметра охраны смежно с локальной зоной (изолированной территорией);
- продовольственный склад;
- хлебопекарню (по заданию на проектирование в случае, если снабжение учреждения хлебом из соседних населенных пунктов экономически нецелесообразно);
- материально-технический склад (непродовольственных товаров и хозяйственного инвентаря);
- склад вещевого имущества;
- подсобные мастерские;
- гараж с помещениями для ремонта и обслуживания автотранспорта;
- локальный участок городка для содержания служебных собак с кинодромом (6.4);
- склад хранения личных вещей осужденных;
- склад сырья и готовой продукции;
- здание подразделения ведомственной пожарной охраны (6.12);
- котельную (при отсутствии источников централизованного теплоснабжения либо возможности технологического присоединения к сетям централизованного теплоснабжения);
- сети, здания и сооружения инженерно-технического обеспечения, а также элементы благоустройства.
6.12 Если время прибытия подразделений пожарной охраны до места дислокации учреждения составляет более 10 мин для тюрем, располагаемых в городских поселениях и городских округах, и более 20 мин для тюрем, располагаемых в сельских поселениях, в составе хозяйственно-складской зоны тюрьмы необходимо предусматривать здание подразделения ведомственной пожарной охраны (пожарное депо).
Здание подразделения ведомственной пожарной охраны следует размещать, приближая его к наиболее пожароопасным объектам.
6.13 В хозяйственно-складской зоне тюрьмы следует предусматривать подъездные пути к зданиям и сооружениям, площадки, стоянки транспортных средств, а также необходимые грузоподъемные механизмы и оборудование, состав и вид которых определяются заданием на проектирование.
6.14 При проектировании здания гаража в хозяйственно-складской зоне тюрьмы следует учитывать требования 4.7.
6.15 Местоположение и тип мойки автотранспорта и очистных сооружений при мойке определяется заданием на проектирование. Очистные сооружения поверхностных сточных вод от автопарковок и проездов для них необходимо предусматривать в соответствии с требованиями СП 32.13330, СанПиН 2.1.3684, [26], задания на проектирование.
6.16 При новом строительстве здания и сооружения, возводимые в режимной зоне тюрьмы, а также в хозяйственно-складской зоне при ее расположении в периметре охраны учреждения следует размещать на расстоянии не менее 30 м от противопобегового заграждения.
При реконструкции и капитальном ремонте существующих учреждений расстояние от зданий и сооружений, расположенных в режимной зоне тюрьмы, а также в хозяйственно-складской зоне при ее расположении в периметре охраны учреждения до основного ограждения должно составлять, м, не менее:
15 - для зданий высотой 1 - 2 этажа;
30 - для зданий большей этажности.
Допускается размещение зданий и сооружений тюрьмы на расстояниях от ограждений (заграждений) меньше оговоренных выше по требованию задания на проектирование при условии разработки компенсационных мероприятий.
6.17 При проектировании собственной котельной в составе тюрьмы ее следует располагать с подветренной стороны по отношению к режимной зоне, ближе к центру нагрузок. Котельную следует размещать по возможности на более низких отметках рельефа по отношению к зданиям тюрьмы.
6.18 Котельные следует располагать в хозяйственно-складской зоне тюрьмы. При новом строительстве тюрем размещение котельной в режимной зоне тюрьмы не допускается. При реконструкции размещение котельной в режимной зоне допускается при соответствующем обосновании по решению ФСИН России.
6.19 В режимной зоне, хозяйственно-складской зоне тюрьмы при ее расположении в периметре охраны учреждения устройство газораспределительных пунктов не допускается. Их следует размещать за пределами указанных зон и обеспечивать подъездными путями.
6.20 Вводы газа и жидкого топлива в режимную зону тюрьмы не допускаются.
7.1 Состав и вместимость основных зданий и сооружений тюрьмы следует принимать по таблице 7.1.
Таблица 7.1
|
Наименование зданий, помещений и сооружений |
Вместимость, % лимита наполнения тюрьмы |
|
Неохраняемая территория | |
|
1 Здание (блок помещений) для приезжих |
По заданию на проектирование с учетом 8.6 |
|
2 Общежитие для работников УИС РФ |
По заданию на проектирование с учетом 8.8 |
|
Локальная зона (изолированная территория) | |
|
3 КПП для пропуска людей и автотранспорта в локальную зону (изолированную территорию) с внешней неохраняемой территории |
В соответствии с 8.5, по таблице 8.1 |
|
4 Административное здание с основным КПП |
В соответствии со штатной численностью и 8.7 |
|
5 Служебная автопарковка |
10 машино-мест на каждые 100 работников от общей штатной численности тюрьмы |
|
6 Столовая для работников учреждения |
По заданию на проектирование и в соответствии с 8.9 |
|
7 Спортивный корпус с тиром: | |
|
- тир |
По 8.10 |
|
- универсальный спортивный зал (пропускная способность в смену) |
По СП 332.1325800, с учетом 8.10 |
|
8 Городок для служебной подготовки |
По 8.11 |
|
9 Морг |
По заданию на проектирование с учетом 9.13 |
|
10 Городок для содержания служебных собак с кинодромом |
По 8.12 |
|
11 Дизельная электростанция (мощность) |
Определяется проектом |
|
Режимная зона | |
|
12 Режимный корпус |
93,0 |
|
13 ШИЗО: | |
|
- 1-местные камеры для нарушителей из числа осужденных к отбыванию лишения свободы в тюрьме |
3,0 от численности осужденных к отбыванию лишения свободы в тюрьме |
|
- 2-местные камеры для нарушителей из числа осужденных хозобслуги |
3,0 от численности осужденных хозобслуги |
|
14 Сборное отделение с карантином |
В соответствии с 8.16 |
|
15 Общежитие для хозобслуги: | |
|
- общежитие хозобслуги |
7,0 |
|
- отделение (блок помещений) для осужденных хозобслуги, находящихся в ежегодном оплачиваемом отпуске |
3,0 от численности осужденных хозобслуги |
|
- магазин продовольственных и непродовольственных товаров, рабочих мест |
1 |
|
16 Медицинская часть: | |
|
- амбулатория, посещений в сутки; |
5 на 100 осужденных |
|
- стационар |
1,6 |
|
17 Прачечная: | |
|
- прачечная, кг сухого белья/сут; |
В соответствии с 8.22 |
|
- мастерские по ремонту одежды и обуви, % рабочих мест |
0,4 |
|
18 Пищеблок, % довольствующихся |
100,0 |
|
19 ЦТАО |
85,0 от численности осужденных к отбыванию лишения свободы в тюрьме |
|
20 Здание для проведения длительных и краткосрочных свиданий: | |
|
- комнаты для проведения краткосрочных свиданий (% осужденных, равный числу мест для проведения краткосрочных свиданий в комнате) |
0,6 |
|
- комнаты для проведения длительных свиданий (% осужденных, равный числу комнат) |
1,5 |
|
21 Локальная территория на особый период |
100,0 |
|
Хозяйственно-складская зона | |
|
22 Здания хозяйственно-складской зоны |
По заданию на проектирование с учетом 6.11, 8.24 - 8.27 |
|
23 Здание подразделения ведомственной пожарной охраны |
По заданию на проектирование с учетом 6.12, 8.28 |
|
24 Внутренний КПП для пропуска людей и автотранспорта из режимной зоны в хозяйственно-складскую зону 1 |
В соответствии с 8.5, по таблице 8.1 |
|
25 КПП для пропуска людей и автотранспорта в хозяйственно-складскую зону 2 |
В соответствии с 8.5, по таблице 8.1 |
|
26 Котельная 3 |
Определяется проектом |
|
1 Предусматривается при расположении хозяйственно-складской зоны тюрьмы в периметре охраны учреждения и при организации прохода (проезда) на территорию хозяйственно-складской зоны из режимной зоны учреждения. 2 Предусматривается при расположении хозяйственно-складской зоны тюрьмы вне периметра охраны учреждения. 3 Предусматривается при отсутствии источников централизованного теплоснабжения либо возможности технологического присоединения к сетям централизованного теплоснабжения. Примечание - Количество комнат длительных свиданий допускается уточнять заданием на проектирование исходя из потребности территориального органа УИС РФ. | |
7.2 При необходимости, устанавливаемой заданием на проектирование, в составе помещений административного здания тюрьмы, спортивного корпуса с тиром предусматривается помещение хранения люминесцентных ламп, хранения и ремонта светильников и электрооборудования (таблицы 8.3, 8.4).
Допускается предусматривать общее помещение хранения люминесцентных ламп, хранения и ремонта светильников и электрооборудования (до момента их вывоза на утилизацию), располагаемое в одном из перечисленных зданий; площадь данного помещения определяется заданием на проектирование.
7.3 Необходимость устройства и площади технических помещений в зданиях тюрем (вентиляционных камер, ИТП, электрощитовой, насосной, узла управления, аппаратной связи, кроссовой и т.п.), за исключением указанных в таблице 8.3, определяются проектом.
8.1 Здания тюрем допускается проектировать высотой до четырех этажей включительно.
Проектирование зданий тюрем большей этажности допускается по решению ФСИН России.
Степень огнестойкости административного здания тюрьмы, режимных зданий (4.8) должна быть не ниже II (второй).
Степень огнестойкости других зданий и сооружений тюрьмы должна устанавливаться в зависимости от их этажности, класса функциональной пожарной опасности, площади пожарного отсека и пожарной опасности с учетом требований СП 2.13130, [3].
8.2 Ширину общих коридоров режимных зданий с наличием камерных помещений (в том числе рабочих камер, палат) при двухстороннем расположении камерных помещений следует принимать не менее 3,0 м, а при одностороннем - не менее 2,0 м.
8.3 Высоту помещений от пола до потолка зданий тюрем следует принимать с учетом требований СП 118.13330. Высота помещений от уровня чистого пола до низа вышележащих перекрытий или покрытий зданий режимной зоны должна составлять не менее 3,0 м.
Высота стен прогулочных дворов должна составлять не менее 3,0 м.
8.4 Прогулочные дворы следует предусматривать пристроенными в уровне первого (цокольного) этажа режимного здания, при этом прогулочные дворы должны располагаться со стороны палатной секции здания медицинского назначения, камерного блока либо быть максимально приближенными к указанным блокам помещений.
В случае устройства прогулочного двора как отдельно стоящего сооружения следует предусматривать его сообщение с режимным зданием подземным или наземным переходом (выводным коридором).
При ограниченной площади земельного участка допускается располагать прогулочные дворы на крыше режимного здания, за исключением прогулочных дворов при зданиях медицинского назначения. Лестничная клетка, если прогулочные дворы расположены на крыше, должна доходить до их отметки.
Организация визуального наблюдения за прогулочными дворами решается путем оборудования дворов СОТ с выводом сигнала в комнату младшего инспектора (оператора СОТ) режимного здания с дублированием сигнала в соответствующие помещения [9], либо над прогулочными дворами (при количестве прогулочных дворов более четырех) устраивается помост для младшего инспектора с расчетом, чтобы все находящиеся в прогулочных дворах были под его наблюдением. По заданию на проектирование допускается вместо помоста устройство отапливаемой галереи.
Для защиты от атмосферных осадков в прогулочных дворах со стороны наружной стены следует предусматривать козырек (навес) с выносом его на 1,5 м внутрь двора с учетом обеспечения полного обзора прогулочного двора. Над помостом для младшего инспектора устраивается навес.
В каждом прогулочном дворе под козырьком (навесом) стационарно устанавливается (надежно крепится к полу или стене) скамейка для сидения, с числом посадочных мест, равным числу осужденных, выводящихся на прогулку в данный прогулочный двор, из расчета 0,4 пог. м на одного человека.
8.5 Контрольно-пропускной пункт
8.5.1 Основной КПП для пропуска людей и транспортных средств на режимную зону тюрьмы предусматривается встроенным в административное здание или сблокированным с административным зданием тюрьмы. Допускается предусматривать отдельно стоящее здание основного КПП с транспортным шлюзом, располагаемое на границе локальной зоны (изолированной территории) с режимной зоной тюрьмы по решению территориального органа ФСИН России.
Состав и площади помещений основного КПП при административном здании тюрьмы следует определять по 8.7 и таблице 8.3.
В 8.5.2 указан примерный состав помещений дополнительных КПП, предусматриваемых в составе инфраструктуры объектов тюрьмы. Дополнительный КПП, располагаемый в периметре охраны учреждения, является дополнительным внутренним КПП. Состав помещений дополнительных КПП, в том числе дополнительных внутренних КПП, допускается принимать отличным от указанного в 8.5.2 в зависимости от фактических условий, при этом состав помещений КПП определяется заданием на проектирование.
8.5.2 Дополнительные КПП тюрьмы следует располагать:
- в локальной зоне (изолированной территории) тюрьмы для прохода (проезда) в локальную зону (изолированную территорию) тюрьмы с внешней неохраняемой территории;
- в хозяйственно-складской зоне тюрьмы для прохода (проезда) на территорию хозяйственно-складской зоны из смежно расположенной локальной зоны при размещении хозяйственно-складской зоны вне периметра охраны учреждения.
Дополнительный внутренний КПП тюрьмы следует располагать в режимной зоне на стыке ее с хозяйственно-складской зоной тюрьмы для прохода (проезда) на территорию хозяйственно-складской зоны из режимной зоны при их смежном расположении в едином периметре охраны.
В составе дополнительного внутреннего КПП, располагаемого на стыке режимной и хозяйственно-складской зон, предусматривают помещения, указанные в строках 1 - 3 таблицы 8.1.
Таблица 8.1
|
Наименование помещения |
Площадь, м2, не менее | ||||
|
До 250 включ. |
Св. 250 до 500 включ. |
Св. 500 до 750 включ. |
Св. 750 до 1000 включ. |
Св. 1000 до 1500 включ. | |
|
1 Комната часового КПП |
15,0 | ||||
|
2 Проходной коридор |
Ширина не менее 2,0 м | ||||
|
3 Уборная 1 |
2,0 | ||||
|
Блок помещений для посетителей | |||||
|
4 Помещение хранения личных вещей сотрудников и посетителей |
6,0 |
6,0 |
7,0 |
8,0 |
10,0 |
|
5 Комната ожидания для посетителей 2 |
12,0 |
12,0 |
16,0 |
16,0 |
20,0 |
|
6 Уборная для посетителей 3: | |||||
|
- общая |
2,0 |
2,0 |
- |
- |
- |
|
- мужская |
- |
- |
3,0 |
3,0 |
3,0 |
|
- женская |
- |
- |
2,0 |
2,0 |
2,0 |
|
7 Помещение приема, досмотра и хранения передач |
10,0 |
12,0 |
12,0 |
15,0 |
15,0 |
|
8 Помещение приема, досмотра и хранения посылок |
10,0 |
12,0 |
12,0 |
15,0 |
15,0 |
|
9 Комната хранения и мытья инвентаря, используемого для проверки передач и посылок |
4,0 | ||||
|
10 Бюро пропусков |
8,0 | ||||
|
11 Комната приема граждан администрацией |
12,0 | ||||
|
12 Помещение хранения уборочного инвентаря |
0,8 на 100 м2 общей площади, но не менее 4,0 | ||||
|
1 Необходимость устройства уборной в составе дополнительных КПП устанавливается заданием на проектирование. Уборную следует оборудовать одним унитазом, одним умывальником в тамбуре. 2 По заданию на проектирование в комнате ожидания для посетителей допускается предусматривать "уголок матери и ребенка" с размещением детского стола с двумя детскими стульями, стеллажа для игрушек, стульчика для кормления, детского мольберта с магнитной доской, вешалки для верхней одежды, одного стула (для матери). Норма площади комнаты ожидания для посетителей при устройстве "уголка матери и ребенка" принимается на 6,0 м2 больше относительно значений, указанных в настоящей таблице. 3 Следует оборудовать общую уборную - одним унитазом, одним умывальником в тамбуре, мужскую - одним унитазом, одним писсуаром, одним умывальником в тамбуре, женскую - одним унитазом, одним умывальником в тамбуре. Примечания 1 По заданию на проектирование помещения, указанные в строках 4 - 12 и составляющие блок помещений для посетителей, могут быть предусмотрены в административном здании тюрьмы, при этом они исключаются из состава помещений дополнительного КПП, располагаемого в локальной зоне (изолированной территории) для организации прохода (проезда) в указанную зону с внешней неохраняемой территории. 2 При промежуточных значениях лимита наполнения тюрьмы площади помещений следует определять интерполяцией. | |||||
В составе дополнительного КПП, располагаемого в локальной зоне для организации прохода (проезда) в указанную зону с внешней неохраняемой территории, предусматривают помещения, указанные в строках 1 - 12 таблицы 8.1, состав помещений конкретизируется заданием на проектирование с учетом примечания 1 таблицы 8.1.
В составе дополнительного КПП, располагаемого на входе (въезде) в хозяйственно-складскую зону из смежно расположенной локальной зоны (изолированной территории) при размещении хозяйственно-складской зоны вне периметра охраны учреждения, предусматривают помещения, указанные в строках 1 - 3, 12 таблицы 8.1, контрольная площадка для досмотра и пропуска транспортных средств.
8.5.3 Особые требования к устройству, размещению и оборудованию проходного коридора КПП, комнаты часового КПП, блока помещений для посетителей изложены в 8.7, [9]. Специальные (режимные) изделия для оборудования КПП приведены в [10].
Требования к оснащению и оборудованию помещений КПП приведены в приложении А и [15].
На дополнительные (дополнительные внутренние) КПП тюрьмы для прохода (проезда) на территорию хозяйственно-складской зоны не распространяются требования по оборудованию проходного коридора стационарным металлообнаружителем и рентгенотелевизионной установкой.
8.5.4 Площади помещений дополнительных (дополнительных внутренних) КПП следует принимать по таблице 8.1.
8.6 Здание (блок помещений) для приезжих
8.6.1 Вместимость здания (блока помещений) для приезжих при проектировании тюрем определяется в каждом конкретном случае заданием на проектирование.
8.6.2 Состав и площади здания (блока помещений) для приезжих следует предусматривать по таблице 8.2.
Таблица 8.2
|
Наименование помещения |
Площадь, м2, не менее |
|
1 Комната персонала |
12,0 |
|
2 2 - 4-местные жилые комнаты с санитарным узлом, оборудованным одной душевой сеткой, одним унитазом и одним умывальником |
6,0 на одного человека/3,0 |
|
3 Кухня |
0,8 на одного человека, но не менее 12,0 |
|
4 Кладовая хранения постельных принадлежностей |
0,15 на одного человека, но не менее 4,0 |
|
5 Помещение хранения уборочного инвентаря |
0,8 на 100 м2 общей площади, но не менее 4,0 |
|
6 Помещение для стирки, сушки и глажения одежды |
0,35 на одного человека, но не менее 10,0 |
|
7 Уборная персонала 1 |
2,0 |
|
1 Следует оборудовать одним унитазом и одним умывальником в тамбуре. Примечания 1 При реконструкции зданий иного назначения допускается помещения (гостиницу) для приезжих оборудовать общими санитарными комнатами: душевой, мужской и женской уборной, кабиной личной гигиены женщин. При этом количество приборов следует предусматривать: в душевых - одна душевая сетка на 6 чел.; в мужских уборных - один умывальник в тамбуре, один унитаз, один писсуар на 6 чел.; в женских уборных - один умывальник в тамбуре, один унитаз на 6 чел.; в кабине личной гигиены женщин - один гигиенический душ на 50 чел. 2 В строке 2 в числителе указана норма площади жилой комнаты, в знаменателе - санитарного узла при жилой комнате. | |
Локальная зона (изолированная территория)
8.7 Административное здание с основным КПП
8.7.1 Состав и площади помещений административного здания тюрьмы с основным КПП следует принимать по таблице 8.3.
Таблица 8.3
|
Наименование помещения |
Площадь помещения, м2, не менее, при лимите наполнения тюрьмы, чел. | ||||
|
До 250 включ. |
Св. 250 до 500 включ. |
Св. 500 до 750 включ. |
Св. 750 до 1000 включ. |
Св. 1000 до 1500 включ. | |
|
Руководство | |||||
|
1 Кабинет начальника |
18,0 |
18,0 |
24,0 |
24,0 |
32,0 |
|
1.1 Комната отдыха при кабинете |
10,0 |
10,0 |
10,0 |
10,0 |
10,0 |
|
2 Приемная |
12,0 |
12,0 |
14,0 |
14,0 |
18,0 |
|
3 Кабинет заместителя начальника тюрьмы по организации деятельности оперативно-режимных служб |
16,0 |
16,0 |
16,0 |
16,0 |
20,0 |
|
4 Кабинет заместителя начальника тюрьмы по охране |
16,0 |
16,0 |
16,0 |
16,0 |
20,0 |
|
5 Кабинет заместителя начальника тюрьмы, курирующего вопросы кадров и воспитательной работы |
16,0 |
16,0 |
16,0 |
16,0 |
20,0 |
|
6 Кабинет заместителя начальника тюрьмы по тылу |
16,0 |
16,0 |
16,0 |
16,0 |
20,0 |
|
7 Кабинет заместителя начальника тюрьмы по лечебно-профилактической работе - начальника медицинской части - врача |
14,0 |
14,0 |
14,0 |
14,0 |
16,0 |
|
8 Кабинет заместителя начальника тюрьмы - начальника ЦТАО |
12,0 |
12,0 |
12,0 |
14,0 |
14,0 |
|
9 Кабинет главного инженера |
12,0 |
12,0 |
12,0 |
14,0 |
14,0 |
|
10 Кабинет прокурора по надзору |
12,0 |
12,0 |
12,0 |
12,0 |
12,0 |
|
11 Кабинет ветеринарного специалиста |
12,0 |
12,0 |
12,0 |
12,0 |
12,0 |
|
Канцелярия | |||||
|
12 Комната начальника (заведующего) канцелярии |
12,0 |
12,0 |
12,0 |
12,0 |
12,0 |
|
13 Комната инспекторов |
6,0 на одного человека, но не менее 12,0 | ||||
|
14 Комната секретаря |
10,0 |
10,0 |
10,0 |
10,0 |
10,0 |
|
Блок помещений дежурной службы | |||||
|
15 Комната ДПНТ |
20,0 |
20,0 |
20,0 |
20,0 |
20,0 |
|
16 Помещение заместителя ДПНТ, инспекторов-дежурных по надзору |
12,0 |
12,0 |
12,0 |
12,0 |
12,0 |
|
17 Комната начальника дневной смены, заместителя начальника дневной смены |
12,0 |
12,0 |
12,0 |
12,0 |
12,0 |
|
18 ЦПТКВ |
40,0 |
40,0 |
40,0 |
40,0 |
40,0 |
|
19 Ситуационный центр |
20,0 |
20,0 |
24,0 |
24,0 |
28,0 |
|
20 Серверная |
Определяется расстановкой оборудования | ||||
|
21 Аккумуляторная с тамбуром 1 |
10,0/2,0 |
10,0/2,0 |
13,0/2,0 |
13,0/2,0 |
16,0/2,0 |
|
22 КХО |
8,0 |
10,0 |
10,0 |
12,0 |
12,0 |
|
23 Комната чистки оружия |
8,0 |
8,0 |
8,0 |
10,0 |
10,0 |
|
24 Комната начальника склада вооружения, спецсредств и химического имущества |
10,0 |
10,0 |
10,0 |
10,0 |
10,0 |
|
25 Комната хранения средств противохимической защиты |
12,0 |
15,0 |
15,0 |
18,0 |
18,0 |
|
26 КХСИБиАО |
10,0 |
12,0 |
15,0 |
18,0 |
18,0 |
|
27 Мастерская по ремонту вооружения, спецсредств и химического имущества 2 |
10,0 |
10,0 |
15,0 |
15,0 |
20,0 |
|
28 Помещение караула (резервной группы) |
3,0 на одного человека, но не менее 12,0 | ||||
|
29 Комната подогрева и приема пищи |
12,0 |
12,0 |
15,0 |
18,0 |
20,0 |
|
30 Комната отдыха дежурной смены (сотрудников мужского пола) |
12,0 |
12,0 |
15,0 |
18,0 |
20,0 |
|
31 Комната отдыха дежурной смены (сотрудников женского пола) |
12,0 |
12,0 |
15,0 |
18,0 |
20,0 |
|
32 Класс служебно-боевой подготовки дежурной службы |
2,5 на одного сотрудника, из расчета 100%-ной численности дежурной смены | ||||
|
33 Класс для проведения инструктажа обысково-маневренной группы |
20,0 |
20,0 |
20,0 |
20,0 |
20,0 |
|
34 Помещения для сушки одежды и обуви |
8,0 |
8,0 |
10,0 |
10,0 |
12,0 |
|
35 Помещение хранения экипировки обысково-маневренной группы |
10,0 |
10,0 |
10,0 |
10,0 |
10,0 |
|
36 Помещение хранения имущества и инвентаря |
8,0 |
8,0 |
12,0 |
12,0 |
12,0 |
|
37 Уборная 3: | |||||
|
- мужская |
3,0 |
3,0 |
3,0 |
3,0 |
3,0 |
|
- женская |
2,0 |
2,0 |
2,0 |
2,0 |
2,0 |
|
38 Гардеробная дежурной службы с душевой (мужская) 4 |
0,6 на одного сотрудника мужского пола из расчета 100%-ной численности дежурной службы; 1,7 на одну душевую сетку | ||||
|
39 Гардеробная дежурной службы с душевой (женская) 4 |
0,6 на одного сотрудника женского пола из расчета 100%-ной численности дежурной службы; 1,7 на одну душевую сетку | ||||
|
Блок помещений основного КПП | |||||
|
40 Комната часового КПП |
15,0 |
15,0 |
15,0 |
15,0 |
15,0 |
|
41 Помещение хранения личных вещей сотрудников и посетителей |
6,0 |
6,0 |
7,0 |
8,0 |
10,0 |
|
42 Помещение досмотра посетителей |
5,0 |
5,0 |
5,0 |
5,0 |
5,0 |
|
43 Комната обыска |
10,0 |
10,0 |
10,0 |
10,0 |
10,0 |
|
44 Проходной коридор КПП |
Ширина не менее 2,0 м | ||||
|
45 Шлюз для досмотра и пропуска транспортных средств |
Ширина не менее 5,6 м, высота до низа выступающих конструкций не менее 4,5 м | ||||
|
46 Помещение группы досмотра транспортных средств и грузов |
12,0 |
12,0 |
15,0 |
18,0 |
20,0 |
|
47 Помещение для караула по конвоированию |
9,0 |
9,0 |
9,0 |
9,0 |
9,0 |
|
48 Уборная 5 |
2,0 |
2,0 |
2,0 |
2,0 |
2,0 |
|
Площадка дежурной службы | |||||
|
49 Площадка для построения караула (резервной группы) |
2,0 на каждого сотрудника караула (резервной группы) | ||||
|
50 Места для заряжания (разряжания) оружия, оборудованные пулеулавливателем 6 |
2,3 на одно место | ||||
|
51 Закрытая кабина с выгулом для служебных собак 6 |
8,6 на одну кабину с выгулом | ||||
|
52 Бокс для транспортных средств резервной группы 6 |
По СП 113.13330 | ||||
|
53 Место для курения и чистки обуви |
6,0 |
6,0 |
6,0 |
6,0 |
6,0 |
|
Помещения для посетителей | |||||
|
54 Бюро пропусков |
8,0 |
8,0 |
8,0 |
8,0 |
8,0 |
|
55 Комната ожидания для посетителей |
12,0 |
12,0 |
16,0 |
16,0 |
20,0 |
|
56 Уборная для посетителей 7: | |||||
|
- общая |
2,0 |
2,0 |
- |
- |
- |
|
- мужская |
- |
- |
3,0 |
3,0 |
3,0 |
|
- женская |
- |
- |
2,0 |
2,0 |
2,0 |
|
57 Помещение приема, досмотра и хранения передач |
10,0 |
12,0 |
12,0 |
15,0 |
15,0 |
|
58 Помещение приема, досмотра и хранения посылок |
10,0 |
12,0 |
12,0 |
15,0 |
15,0 |
|
59 Комната хранения и мытья инвентаря, используемого для проверки передач и посылок |
4,0 |
4,0 |
4,0 |
4,0 |
4,0 |
|
60 Комната приема граждан администрацией |
12,0 |
12,0 |
12,0 |
12,0 |
12,0 |
|
Аптека 8 | |||||
|
61 Автоклавная |
8,0 |
10,0 |
10,0 |
12,0 |
12,0 |
|
62 Дистилляционная |
8,0 |
10,0 |
10,0 |
12,0 |
12,0 |
|
63 Моечная |
8,0 |
10,0 |
10,0 |
12,0 |
12,0 |
|
64 Расфасовочная |
12,0 |
12,0 |
12,0 |
12,0 |
12,0 |
|
65 Материальная |
8,0 |
10,0 |
10,0 |
15,0 |
15,0 |
|
66 Ассистентская |
24,0 |
24,0 |
24,0 |
24,0 |
24,0 |
|
67 Аналитическая |
10,0 |
10,0 |
10,0 |
10,0 |
10,0 |
|
68 Распаковочная |
10,0 |
10,0 |
10,0 |
10,0 |
10,0 |
|
69 Кабинет заведующего |
12,0 |
12,0 |
12,0 |
12,0 |
12,0 |
|
70 Помещение для оформления документов и выдачи лекарственных средств |
10,0 |
10,0 |
10,0 |
10,0 |
10,0 |
|
71 Комната персонала |
12,0 |
12,0 |
12,0 |
12,0 |
12,0 |
|
72 Гардеробная с душевой на одну душевую сетку |
0,6 на одного сотрудника аптеки, но не менее 4,0/1,7 | ||||
|
73 Уборная 5 |
2,0 |
2,0 |
2,0 |
2,0 |
2,0 |
|
74 Помещение хранения уборочного инвентаря |
0,8 на 100 м2 общей площади, но не менее 4,0 | ||||
|
Отдел охраны | |||||
|
75 Кабинет начальника отдела |
16,0 |
16,0 |
16,0 |
16,0 |
16,0 |
|
76 Кабинет заместителя начальника отдела 9 |
- |
- |
12,0 |
12,0 |
12,0 |
|
77 Комната старшего инспектора, инспектора |
6,0 на одного человека, но не менее 12,0 | ||||
|
78 Комната старшего психолога |
10,0 | ||||
|
79 Класс служебно-боевой подготовки |
2,5 на одного человека, из расчета 100%-ной численности отдела | ||||
|
Отдел режима | |||||
|
80 Кабинет начальника отдела |
12,0 |
12,0 |
12,0 |
12,0 |
12,0 |
|
81 Кабинет заместителя начальника отдела 9 |
- |
- |
12,0 |
12,0 |
12,0 |
|
82 Комната старшего инспектора, инспектора |
6,0 на одного человека, но не менее 12,0 | ||||
|
Отдел (группа) инженерно-технического обеспечения, связи и вооружения | |||||
|
83 Кабинет начальника отдела 9 |
- |
- |
12,0 |
12,0 |
12,0 |
|
84 Комната старшего инженера 10 |
12,0 |
12,0 |
12,0 |
- |
- |
|
85 Комната инженера |
12,0 |
12,0 |
12,0 |
12,0 |
12,0 |
|
86 Комната старшего техника, техников, начальника радиостанции, оператора связи |
6,0 на одного человека, но не менее 10,0 | ||||
|
Кинологическое отделение (группа) | |||||
|
87 Комната начальника отделения |
12,0 |
12,0 |
12,0 |
12,0 |
12,0 |
|
88 Комната старших инструкторов-кинологов, инструкторов-кинологов |
6,0 на одного человека, но не менее 10,0 | ||||
|
89 Комната вожатых караульных собак |
6,0 на одного человека, но не менее 10,0 | ||||
|
Оперативный отдел (группа) | |||||
|
90 Кабинет начальника отдела |
12,0 |
12,0 |
12,0 |
12,0 |
12,0 |
|
91 Кабинет заместителя начальника отдела 9 |
- |
- |
12,0 |
12,0 |
12,0 |
|
92 Комната старших оперуполномоченных |
6,0 на одного человека, но не менее 12,0 | ||||
|
93 Комната оперуполномоченных |
6,0 на одного человека, но не менее 12,0 | ||||
|
94 Комната младших оперуполномоченных |
6,0 на одного человека, но не менее 10,0 | ||||
|
95 Комната инспектора по проверке и доставке писем |
6,0 на одного человека, но не менее 12,0 | ||||
|
96 Комната оформления документов |
10,0 |
10,0 |
10,0 |
10,0 |
12,0 |
|
Отдел (группа) специального учета | |||||
|
97 Кабинет начальника отдела |
12,0 |
12,0 |
12,0 |
12,0 |
12,0 |
|
98 Комната старших инспекторов, инспекторов специального учета |
6,0 на одного человека, но не менее 12,0 | ||||
|
99 Комната сотрудников специального учета, делопроизводителей |
6,0 на одного человека, но не менее 10,0 | ||||
|
100 Комната картотеки |
12,0 |
15,0 |
15,0 |
20,0 |
24,0 |
|
101 Комната переводчика |
10,0 |
10,0 |
10,0 |
10,0 |
10,0 |
|
Группа по боевой и специальной подготовке | |||||
|
102 Комната старшего инструктора |
6,0 на одного человека, но не менее 12,0 | ||||
|
Отдел (группа) по воспитательной работе с осужденными | |||||
|
103 Кабинет начальника отдела |
12,0 |
12,0 |
12,0 |
12,0 |
12,0 |
|
104 Комната старшего инспектора, инспектора |
6,0 на одного человека, но не менее 12,0 | ||||
|
105 Комната начальников отрядов |
6,0 на одного человека, но не менее 12,0 | ||||
|
Психологическая лаборатория | |||||
|
106 Кабинет начальника лаборатории |
12,0 |
12,0 |
12,0 |
12,0 |
12,0 |
|
107 Комната старших психологов |
6,0 на одного человека, но не менее 12,0 | ||||
|
108 Комната психологов |
6,0 на одного человека, но не менее 12,0 | ||||
|
109 Кабинет для индивидуальной психологической работы с сотрудниками |
12,0 |
12,0 |
12,0 |
12,0 |
12,0 |
|
110 Кабинет для групповой психологической работы с личным составом |
30,0 |
30,0 |
30,0 |
30,0 |
30,0 |
|
Группа социальной защиты осужденных | |||||
|
111 Комната старшего инспектора, инспектора |
6,0 на одного человека, но не менее 12,0 | ||||
|
Группа учета трудового стажа осужденных | |||||
|
112 Комната старшего инспектора, инспектора |
6,0 на одного человека, но не менее 12,0 | ||||
|
Отдел (группа) кадров и работы с личным составом | |||||
|
113 Комната начальника отдела |
12,0 |
12,0 |
12,0 |
12,0 |
12,0 |
|
114 Комната старших инспекторов, инспекторов |
6,0 на одного человека, но не менее 12,0 | ||||
|
115 Комната специалистов по кадрам |
6,0 на одного человека, но не менее 12,0 | ||||
|
Отдел (группа) интендантского и хозяйственного обеспечения | |||||
|
116 Кабинет начальника отдела |
12,0 |
12,0 |
12,0 |
12,0 |
12,0 |
|
117 Комната старших инспекторов |
6,0 на одного человека, но не менее 12,0 | ||||
|
118 Комната инспекторов, агентов по снабжению, экспедиторов по перевозке грузов |
6,0 на одного человека, но не менее 10,0 | ||||
|
Отдел (группа) коммунально-бытового обеспечения | |||||
|
119 Кабинет начальника отдела |
12,0 |
12,0 |
12,0 |
12,0 |
12,0 |
|
120 Комната старшего инспектора, инспектора |
6,0 на одного человека, но не менее 12,0 | ||||
|
121 Комната инженера, техника |
6,0 на одного человека, но не менее 10,0 | ||||
|
122 Комната коменданта зданий |
10,0 |
10,0 |
10,0 |
10,0 |
10,0 |
|
Энергомеханический отдел | |||||
|
123 Кабинет начальника отдела |
12,0 |
12,0 |
12,0 |
12,0 |
12,0 |
|
124 Кабинет главного энергетика 9 |
- |
- |
10,0 |
10,0 |
10,0 |
|
125 Кабинет главного механика 9 |
- |
- |
10,0 |
10,0 |
10,0 |
|
126 Кабинет старшего инженера-энергетика 10 |
10,0 |
10,0 |
10,0 |
- |
- |
|
127 Кабинет старшего инженера-механика 10 |
10,0 |
10,0 |
10,0 |
- |
- |
|
Бухгалтерия | |||||
|
128 Кабинет главного бухгалтера |
12,0 |
12,0 |
12,0 |
12,0 |
12,0 |
|
129 Кабинет заместителя главного бухгалтера |
- |
- |
- |
- |
10,0 |
|
130 Комната старших бухгалтеров |
6,0 на одного человека, но не менее 12,0 | ||||
|
131 Комната бухгалтеров, кассира |
6,0 на одного человека, но не менее 10,0 | ||||
|
132 Комната экономиста по финансовой работе |
10,0 |
10,0 |
10,0 |
10,0 |
10,0 |
|
133 Касса |
6,0 |
6,0 |
6,0 |
6,0 |
6,0 |
|
Организационно-аналитический отдел (группа) | |||||
|
134 Кабинет начальника отдела |
12,0 |
12,0 |
12,0 |
12,0 |
12,0 |
|
135 Кабинет старшего инспектора, инспектора |
6,0 на одного человека, но не менее 12,0 | ||||
|
Группа автоматизации | |||||
|
136 Кабинет старшего инженера по эксплуатации вычислительной техники |
12,0 |
12,0 |
12,0 |
12,0 |
12,0 |
|
137 Кабинет инженера по эксплуатации вычислительной техники |
10,0 |
10,0 |
10,0 |
10,0 |
10,0 |
|
Юридическая группа | |||||
|
138 Комната старшего юрисконсульта |
12,0 |
12,0 |
12,0 |
12,0 |
12,0 |
|
139 Комната юрисконсульта |
10,0 |
10,0 |
10,0 |
10,0 |
10,0 |
|
Группа организации мобилизационной подготовки и гражданской обороны | |||||
|
140 Комната старшего инспектора |
12,0 |
12,0 |
12,0 |
12,0 |
12,0 |
|
141 Комната инспектора |
10,0 |
10,0 |
10,0 |
10,0 |
10,0 |
|
Отдел трудовой занятости осужденных | |||||
|
142 Кабинет начальника отдела |
12,0 |
12,0 |
12,0 |
12,0 |
12,0 |
|
143 Комната инспектора |
10,0 |
10,0 |
10,0 |
10,0 |
10,0 |
|
Помещения вспомогательного и обслуживающего назначения | |||||
|
144 Зал совещаний (вместимостью 75% штатной численности тюрьмы) |
0,9 на одно место в зале | ||||
|
145 Рабочая комната при зале совещаний |
12,0 |
12,0 |
12,0 |
18,0 |
18,0 |
|
146 Комната психологической разгрузки |
10,0 |
15,0 |
18,0 |
18,0 |
24,0 |
|
147 Библиотека для личного состава |
10,0 |
15,0 |
20,0 |
25,0 |
30,0 |
|
148 Комната заведующего библиотекой для работников тюрьмы |
8,0 |
8,0 |
8,0 |
8,0 |
8,0 |
|
149 Мужская гардеробная младших инспекторов отдела охраны с душевой 11 |
0,6 на одного сотрудника мужского пола из расчета 100%-ной численности младших инспекторов отдела; 1,7 на одну душевую сетку | ||||
|
150 Женская гардеробная младших инспекторов отдела охраны с душевой 11 |
0,6 на одного сотрудника женского пола из расчета 100%-ной численности младших инспекторов отдела; 1,7 на одну душевую сетку | ||||
|
151 Помещения для сушки одежды и обуви сотрудников отдела охраны |
8,0 |
8,0 |
10,0 |
10,0 |
12,0 |
|
152 Радиоузел |
10,0 |
10,0 |
10,0 |
10,0 |
10,0 |
|
153 Комната ремонта аппаратуры и хранения материальных ценностей |
9,0 |
9,0 |
12,0 |
12,0 |
12,0 |
|
154 Мастерская по ремонту ТСО, ТСН и средств связи |
9,0 |
9,0 |
12,0 |
12,0 |
12,0 |
|
155 Кроссовая 12 |
Определяется проектом, но не менее 9,0 | ||||
|
156 Аппаратная связи |
18,0 |
18,0 |
18,0 |
22,0 |
22,0 |
|
157 Архив |
10,0 |
12,0 |
18,0 |
20,0 |
24,0 |
|
158 Мужская уборная 13 |
2,2 на один унитаз; 0,8 на один писсуар; 0,8 на один умывальник | ||||
|
159 Женская уборная 14 |
2,2 на один унитаз; 0,8 на один умывальник | ||||
|
160 Помещение хранения уборочного инвентаря |
0,8 на 100 м2 общей площади этажа, но не менее 4,0 | ||||
|
1 Следует предусматривать по необходимости, определяемой заданием на проектирование. В числителе указана норма площади помещения аккумуляторной, в знаменателе - тамбура при входе в помещение. 2 Следует предусматривать в соответствии с заданием на проектирование при наличии самостоятельного стрельбища (тира) либо при удаленности от территориального органа ФСИН России более 100 км. 3 Следует оборудовать мужскую уборную - одним унитазом, одним писсуаром, одним умывальником в тамбуре, женскую - одним унитазом, одним умывальником в тамбуре. 4 Следует оборудовать одной душевой сеткой из расчета на 15 сотрудников дежурной смены. 5 Следует оборудовать одним унитазом, одним умывальником в тамбуре. 6 На площадке дежурной службы количество мест для заряжания (разряжания) оружия, закрытых кабин с выгулом для служебных собак, машино-мест в боксе для транспортных средств резервной группы и вид транспортных средств следует определять заданием на проектирование. Бокс для транспортных средств резервной группы предусматривается только в составе тюрем с протяженностью периметра охраны свыше 1000 м. 7 Следует оборудовать общую уборную - одним унитазом, одним умывальником в тамбуре, мужскую - одним унитазом, одним писсуаром, одним умывальником в тамбуре, женскую - одним унитазом, одним умывальником в тамбуре. 8 В соответствии с заданием на проектирование допускается вместо помещений аптеки предусматривать помещения аптечного распределительного пункта, состав которого устанавливается заданием на проектирование. 9 Кабинет следует предусматривать при лимите наполнения тюрьмы более 600 чел. 10 Кабинет следует предусматривать при лимите наполнения тюрьмы 600 чел. и менее. 11 Следует оборудовать одной душевой сеткой из расчета на 15 сотрудников отдела охраны, работающих в смену. 12 Допускается объединять с аппаратной связи. 13 Следует оборудовать одним унитазом на 25 и одним писсуаром на 18 работников, одним умывальником на четыре унитаза, но не менее одного на уборную. Уборные следует предусматривать на каждом этаже. При численности работающих на двух смежных этажах 30 чел. или менее уборные следует размещать на одном из этажей с наибольшей численностью. 14 Следует оборудовать одним унитазом на 15 работников и одним умывальником на два унитаза, но не менее одного на уборную. Уборные следует предусматривать на каждом этаже. При численности работающих на двух смежных этажах 30 чел. или менее уборные следует размещать на одном из этажей с наибольшей численностью. Примечания 1 Состав и площади помещений, число рабочих мест следует уточнять в зависимости от численности штатов тюрьмы. 2 Комнату отдыха дежурной смены для сотрудников женского пола (строка 31), женскую уборную (строка 37), женскую гардеробную дежурной службы с душевой (строка 39) следует предусматривать при наличии в составе дежурной службы сотрудников женского пола. Женскую гардеробную младших инспекторов отдела охраны с душевой (строка 150) следует предусматривать при наличии в составе младших инспекторов отдела охраны сотрудников женского пола. 3 Допускается оборудование ИБП с блоком аккумуляторных батарей устраивать в энергетическом модуле контейнерного типа и располагать вне административного здания. 4 Количество помещений аппаратных связи допускается определять заданием на проектирование. 5 Кабинет ветеринарного специалиста (строка 11) предусматривается в тюрьме при наличии должности ветеринарного специалиста в штатном расписании учреждения. 6 В строке 72 в числителе указана норма площади гардеробной, в знаменателе - душевой при гардеробной. 7 По заданию на проектирование в комнате ожидания для посетителей (строка 55) допускается предусматривать "уголок матери и ребенка" с размещением детского стола с двумя детскими стульями, стеллажа для игрушек, стульчика для кормления, детского мольберта с магнитной доской, вешалки для верхней одежды, одного стула (для матери). Норма площади комнаты ожидания для посетителей при устройстве "уголка матери и ребенка" принимается на 6,0 м2 больше относительно значений, указанных в строке 55 настоящей таблицы. 8 Комната старшего психолога (строка 78) предусматривается в тюрьме при наличии в штатном расписании учреждения должности старшего психолога в составе отдела охраны. 9 В административном здании с основным КПП предусматриваются общие помещения и помещения вспомогательного назначения: помещение хранения люминесцентных ламп, хранения и ремонта светильников и электрооборудования, исходя из потребности в соответствии с заданием на проектирование; технические помещения (вентиляционная камера, ИТП, электрощитовая и т.п.) в соответствии с 7.3. | |||||
8.7.2 Помещения административного здания с основным КПП следует предусматривать трех типов:
1-й - проходные помещения, находящиеся под постоянным наблюдением должностных лиц учреждения (часовых КПП, дежурной службы);
2-й - помещения, имеющие связь с режимной зоной: оконные или дверные проемы помещений выходят в режимную зону или во внутренний двор административного здания (при наличии двора) при реконструкции существующих тюрем;
3-й - помещения, не имеющие связи с режимной зоной: оконные (дверные) проемы помещений выходят только на локальную зону (изолированную территорию) или на внешнюю неохраняемую территорию.
Планировочные решения должны обеспечивать исключение прохода из помещений 2-го типа непосредственно в помещения 3-го типа. Проход людей из помещений 2-го типа в помещения 3-го типа должен осуществляться только через помещения 1-го типа.
К помещениям 1-го типа следует относить: проходной коридор основного КПП; шлюз для досмотра и пропуска транспортных средств. К помещениям 1-го типа допускается относить общие коридоры этажей (блоков помещений) и лестничные клетки, при этом указанные помещения должны находиться под постоянным видеонаблюдением оператора ЦПТКВ.
К помещениям 2-го типа следует относить: кабинеты начальника тюрьмы и его заместителей; канцелярию; кабинеты и комнаты сотрудников оперативного отдела (группы); отдела режима; отдела охраны; отдела по воспитательной работе с осужденными; отдела коммунально-бытового обеспечения; отдела интендантского и хозяйственного обеспечения. К помещениям 2-го типа допускается относить помещения дежурной службы, помещения вспомогательного, обслуживающего и технического назначения.
К помещениям 3-го типа относятся остальные помещения административного здания. В зависимости от принятых планировочных решений допускается помещения отдела по воспитательной работе с осужденными; отдела коммунально-бытового обеспечения; отдела интендантского и хозяйственного обеспечения, помещения вспомогательного, обслуживающего и технического назначения относить к помещениям 3-го типа.
8.7.3 На первом этаже административного здания следует размещать: блок помещений дежурной службы, помещения для посетителей (в случае их расположения в составе помещений административного здания), аптеку, блок помещений основного КПП, площадку дежурной службы и шлюз для досмотра и пропуска транспортных средств. Дежурную службу следует располагать в непосредственной близости от выхода из административного здания на режимную зону.
Доступ в административное здание должен осуществляться исключительно через проходной коридор основного КПП (за исключением комнаты ожидания для посетителей и аптеки, имеющих выход непосредственно на локальную зону (изолированную территорию), и помещений дежурной службы). На случай экстренной эвакуации людей следует предусматривать эвакуационные выходы из административного здания непосредственно на локальную зону (изолированную территорию), при этом открывание дверей эвакуационных выходов, разблокировку ворот шлюза для досмотра и пропуска транспортных средств, входов в основной КПП должен осуществлять только ДПНТ.
Блок помещений для посетителей и блок помещений аптеки следует обеспечивать отдельными входами с локальной зоны (изолированной территории) и изолировать от остальных помещений административного здания капитальными стенами, отвечающими требованиям 11.4.
Вход сотрудников в бюро пропусков, помещения приема, досмотра и хранения посылок и передач предусматривается из коридора блока помещений дежурной службы. Данные помещения допускается проектировать без естественного освещения.
8.7.4 При проектировании помещений административного здания тюрьмы, посещение и использование которых возможно посетителями исправительного учреждения из числа МГН, следует предусматривать мероприятия по обеспечению доступа и жизнедеятельности данных групп населения (4.3). Подъемные механизмы для обеспечения доступа в административное здание МГН из числа посетителей тюрьмы должны быть расположены в непосредственной близости от проходного коридора основного КПП.
8.7.5 Входы в блок помещений дежурной службы предусматриваются из проходного коридора КПП (общего коридора административного здания) и с площадки дежурной службы.
Вход в помещение ЦПТКВ устраивается из комнаты ДПНТ. Помещение ситуационного центра служит для организации работы ДПНТ и дежурной службы в случае возникновения экстренной ситуации в тюрьме и размещается смежно с комнатой ДПНТ. Вход в помещение ситуационного центра устраивается из коридора блока помещений дежурной службы.
8.7.6 Серверная размещается смежно с помещением ЦПТКВ. Вход в серверную предусматривается из помещения ЦПТКВ.
Вход в помещение ДПНТ предусматривается из коридора блока помещений дежурной службы.
Помещение заместителя ДПНТ и инспекторов-дежурных по надзору располагается в непосредственной близости от комнаты ДПНТ, вход в данное помещение предусматривается из коридора блока помещений дежурной службы.
Комнаты отдыха дежурной смены допускается располагать таким образом, чтобы оконные проемы комнат выходили на локальную зону (изолированную территорию). Гардеробные дежурной службы с душевыми следует располагать смежно с комнатой отдыха дежурной смены.
Комнату подогрева и приема пищи в блоке помещений дежурной службы допускается предусматривать без естественного освещения.
8.7.7 Блок помещений основного КПП, встроенного в административное здание (сблокированного с административным зданием), следует располагать смежно с блоком помещений дежурной службы. При реконструкции тюрем допускается иное взаимное расположение блока помещений основного КПП и блока помещений дежурной службы.
В проходном коридоре основного КПП устраивается отсекающий тамбур, который образуется стенами проходного коридора и двумя решетчатыми перегородками [9], [10], с дверями, оборудованными электромеханическими запорными устройствами, управление которыми осуществляется из комнаты часового КПП.
В отсекающем тамбуре проходного коридора следует предусматривать дверные проемы:
- образующие сам тамбур;
- в помещение хранения личных вещей сотрудников и посетителей.
В объеме отсекающего тамбура проходного коридора КПП предусматривается место для установки стационарного металлообнаружителя и рентгенотелевизионной установки.
В проходном коридоре, вне объема отсекающего тамбура, за пределами зоны свободного доступа посетителей допускается предусматривать внутренние дверные проемы, ведущие:
- в коридор блока помещений основного КПП;
- в коридор блока помещений дежурной службы (при смежном расположении блока помещений основного КПП и дежурной службы);
- в общий коридор первого этажа;
- на центральную лестничную клетку административного здания.
Наличие наружных оконных проемов в проходном коридоре и отсекающем тамбуре не допускается.
8.7.8 Комнату часового КПП следует размещать смежно с отсекающим тамбуром проходного коридора основного КПП. В стене, отделяющей отсекающий тамбур от комнаты часового КПП, следует предусматривать оконный проем с заполнением оконным блоком из пулестойкого стекла (9.2.3), позволяющий просматривать весь отсекающий тамбур, входы в него, по возможности - объем проходного коридора, а также лоток для сдачи документов и оружия часовому КПП.
Дверной проем комнаты часового КПП следует предусматривать выходящим во внутренний коридор блока помещений КПП или коридор блока помещений дежурной службы (при смежном расположении блока помещений основного КПП и дежурной службы). Устройство и оборудование помещения часового КПП, проходного коридора с отсекающим тамбуром должны соответствовать требованиям СанПиН 2.6.1.3488.
8.7.9 Помещение хранения личных вещей сотрудников и посетителей устраивается напротив комнаты часового КПП на противоположной относительно проходного коридора стороне. Вход в данное помещение предусматривается только из отсекающего тамбура проходного коридора. В помещении хранения личных вещей сотрудников и посетителей устанавливают индивидуальные шкафчики.
8.7.10 Помещение группы досмотра транспортных средств и грузов следует размещать смежно с шлюзом для досмотра и пропуска транспортных средств (контрольной площадкой для досмотра транспортных средств). В стене, разделяющей данное помещение и шлюз, следует предусматривать оконный проем с заполнением пулестойким оконным блоком, обеспечивающим максимальный обзор помещения шлюза для досмотра и пропуска транспортных средств с рабочего места сотрудников группы досмотра, а также дверной проем, ведущий в шлюз, с устройством тамбура при входе в помещение группы досмотра. Требования по технической укрепленности помещения группы досмотра транспортных средств и грузов аналогичны требованиям, предъявляемым к комнате часового КПП. Оконный пулестойкий блок по характеристикам принимается аналогичным оконному пулестойкому блоку в комнате часового КПП (9.2.3), за исключением требований по оборудованию блока передаточным лотком. Тип дверного блока на входе в помещение из шлюза принимают с учетом требований 9.1.2.
8.7.11 Помещение для караула по конвоированию следует располагать в блоке помещений основного КПП смежно со шлюзом для досмотра и пропуска транспортных средств.
Вход в помещение для караула по конвоированию предусматривается из коридора блока помещений основного КПП. При смежном расположении помещения для караула по конвоированию и шлюза для досмотра и пропуска транспортных средств вход в помещение для караула по конвоированию следует предусматривать из шлюза с устройством тамбура при входе в помещение.
8.7.12 В непосредственной близости от помещения группы досмотра транспортных средств и грузов и помещения для караула по конвоированию следует располагать уборную.
8.7.13 Требования к оборудованию и конструктивному исполнению проходного коридора основного КПП и шлюза для досмотра и пропуска транспортных средств приведены в [9]. Специальные (режимные) изделия для оборудования КПП приведены в [10].
8.7.14 Помещение караула (резервной группы) следует размещать в непосредственной близости от выхода из административного здания на площадку дежурной службы.
8.7.15 Класс служебно-боевой подготовки дежурной службы располагается в непосредственной близости от помещения ситуационного центра.
8.7.16 Площадка дежурной службы устраивается в виде изолированного участка территории, образуемого ограждением сплошного заполнения (глухим) высотой не менее 3,0 м. По верху ограждения устанавливают козырек из АКЛ и организуют рубеж обнаружения. Для обеспечения действий работников дежурной службы по отражению нападения на помещение дежурной службы в полотне ограждения на высоте 1,5 м оборудуют бойницы размерами 150 x 200 мм, закрываемые металлическими ставнями. Расстояние между бойницами по длине ограждения должно составлять не более 5,0 м.
В тюрьмах с протяженностью периметра охраны свыше 1000 м на площадке дежурной службы предусматривается устройство бокса для транспортных средств резервной группы, располагаемого смежно с блоком помещений дежурной службы и выполняемого в соответствии с требованиями, предъявляемыми к помещениям хранения транспортных средств. В этом случае ограждение площадки дежурной службы для проезда в запретную зону тюрьмы оборудуется металлическими откатными (раздвижными) или подъемными воротами со сплошным заполнением створок (створки) и электромеханическим приводом, управляемым из помещения ДПНТ или ЦПТКВ. Размеры проема ворот должны быть не менее 2,5 x 3,0 м (высота x ширина). Состав и вид транспортных средств резервной группы устанавливаются заданием на проектирование.
Проходы на площадку дежурной службы устраиваются со стороны запретной зоны учреждения и со стороны локальной зоны (изолированной территории). Дверные проемы в ограждении площадки заполняются наружными дверями усиленной конструкции согласно 9.1.1, [9], [10]. Проход на площадку дежурной службы со стороны локальной зоны (изолированной территории) оборудуется отсекающим тамбуром, выполненным из решетчатого ограждения с решетчатой дверью [9].
На площадке дежурной службы оборудуются: площадка для построения караула (резервной группы); места для заряжания (разряжания) оружия; место для курения и чистки обуви; спортивные снаряды; кабины вольеров с выгулами для служебных собак [18]; бокс для транспортных средств резервной группы; пожарный щит. Состав сооружений и количество оборудования площадки дежурной службы устанавливают заданием на проектирование.
8.7.17 Вход в КХО следует предусматривать из помещения караула (резервной группы). Вход в КХСИБиАО предусматривается из комнаты ДПНТ.
Комнату чистки оружия необходимо располагать смежно с КХО и КХСИБиАО. Передаточное окно для выдачи оружия и боеприпасов размерами 180 x 240 мм, на высоте 1100 мм от уровня пола следует предусматривать в стене, отделяющей КХО от комнаты чистки оружия, передаточное окно для выдачи средств индивидуальной бронезащиты и активной обороны следует предусматривать в стене, отделяющей КХСИБиАО от комнаты чистки оружия. Устройство дополнительных входов в КХО, а также оконных проемов (за исключением окна для выдачи оружия) в наружных и внутренних стенах не допускается. В комнате чистки оружия устройство оконных проемов в наружных и внутренних стенах (за исключением окон для выдачи оружия, средств индивидуальной бронезащиты и активной обороны) не допускается. Требования к заполнению передаточных окон изложены в 9.2.5.
Визуальный контроль за зоной выдачи (сдачи) и чистки оружия осуществляется путем оборудования зоны выдачи (сдачи) и чистки оружия СОТ с выводом сигнала в комнату ДПНТ, ЦПТКВ.
Требования к помещениям КХО и КХСИБиАО регламентирующие порядок хранения оружия, боеприпасов, средств индивидуальной бронезащиты, спецсредств, приведены в [16].
Размещение помещений с влажным и мокрым режимом смежно, а также над помещениями КХО и КХСИБиАО не допускается.
8.7.18 Требования к комнате хранения средств противохимической защиты в части хранения регенеративных патронов, пусковых брикетов и брикетов дополнительной подачи кислорода приведены в [16].
8.7.19 Помещение для сушки одежды и обуви следует предусматривать в непосредственной близости от гардеробных.
8.7.20 Для размещения и установки необходимого сетевого оборудования (коммутаторы, концентраторы и т.п.) предусматривается аппаратная связи. Для размещения и установки необходимого кроссового оборудования предусматривается помещение кроссовой. Аппаратная и кроссовая должны располагаться ориентировочно по центру здания по длине этажа. Помещение аппаратной связи должно быть изолированным.
8.7.21 Устройство оконных и дверных проемов в стенах между блоком помещений аптеки и смежных с ними помещений иного функционального назначения не допускается.
8.7.22 Помещения бюро пропусков, приема, досмотра и хранения посылок и передач располагаются смежно относительно друг друга в одном блоке, смежном по отношению к комнате ожидания для посетителей. Расположение этих помещений должно обеспечивать возможность организации окон для приема и выдачи документов (посылок, передач) в комнату ожидания для посетителей.
В стенах помещения бюро пропусков, помещений приема, досмотра и хранения посылок и передач, отделяющих их от комнаты ожидания для посетителей, устраиваются оконные проемы для приема и выдачи документов (посылок, передач) с оконным блоком из многослойного взломостойкого стекла, соответствующего классу защиты Р1В по ГОСТ 30826. Окна для приема и выдачи документов (посылок, передач) в указанных помещениях с внутренней стороны оборудуют закрывающимися металлическими дверцами или жалюзи.
Устройство дверных проемов в стенах между комнатой ожидания для посетителей и помещениями приема, досмотра и хранения посылок и передач, бюро пропусков не допускается.
Устройство и оборудование помещений приема, досмотра и хранения посылок и передач должно соответствовать требованиям СанПиН 2.6.1.3488.
8.7.23 При проектировании помещений канцелярии, кабинета заместителя начальника тюрьмы по организации деятельности оперативно-режимных служб, помещений оперативного отдела (группы) и отдела (группы) специального учета следует учитывать требования нормативных документов, регламентирующих вопросы устройства и оборудования помещений хранения и (или) работы со сведениями, составляющими государственную тайну.
8.7.24 Комнату картотеки отдела (группы) специального учета следует размещать смежно с комнатой сотрудников специального учета, делопроизводителей.
8.7.25 Требования к оснащению и оборудованию помещений административного здания тюрьмы приведены в приложении А и [15].
8.7.26 Необходимость размещения помещений для персонала ЦТАО в административном здании тюрьмы устанавливается заданием на проектирование.
Состав помещений для персонала ЦТАО назначается в каждом конкретном случае заданием на проектирование в зависимости от характера производства.
8.7.27 На плоской кровле административного здания тюрьмы, на случай внезапного нападения, допускается предусматривать площадки, защищенные парапетом (участками парапета) с бойницами для ведения огня из стрелкового оружия, метания и отстрела спецсредств. Высоту парапета (участков парапета) следует принимать не менее 1,6 м. Расположение защищенных площадок на кровле, их число и материал парапета следует принимать в соответствии с заданием на проектирование, исходя из местных условий и принятых объемно-планировочных решений.
8.8 Общежитие для работников УИС РФ
Здание общежития квартирного типа для работников УИС РФ следует предусматривать в соответствии с заданием на проектирование с учетом требований СП 54.13330 из расчета обеспечения жилыми помещениями не менее 30% работников тюрьмы. Число квартир и их типы по количеству комнат следует устанавливать заданием на проектирование индивидуально в каждом конкретном случае исходя из сложившихся местных условий. При здании общежития для работников УИС РФ предусматривают площадки для игр детей, отдыха взрослого населения, занятий физкультурой, а также площадку для хозяйственных целей.
8.9 Столовая для работников учреждения
8.9.1 Столовые для работников тюрьмы следует проектировать согласно требованиям СП 118.13330 и СанПиН 2.3/2.4.3590. Число посадочных мест следует определять из расчета обслуживания 100%-ной штатной численности работников тюрьмы в три посадки, при этом площадь одного посадочного места принимается не менее 1,8 м2.
8.9.2 Необходимость устройства столовой для работников учреждения в составе объектов тюрьмы конкретизируется заданием на проектирование с учетом 6.4.
8.10 Спортивный корпус с тиром
8.10.1 Необходимость устройства спортивного корпуса и тира устанавливается заданием на проектирование с учетом 6.4, при этом допускается предусматривать в составе объектов тюрьмы спортивный корпус без тира или только тир.
Тип стрелкового тира (открытый, полуоткрытый, крытый) и дистанцию стрельбы определяют заданием на проектирование.
8.10.2 Состав и площади помещений спортивного корпуса с тиром для работников тюрьмы следует предусматривать по таблице 8.4.
Таблица 8.4
|
Наименование помещения |
Площадь помещения, м2, не менее, при лимите наполнения тюрьмы, чел. | ||||
|
До 250 включ. |
Св. 250 до 500 включ. |
Св. 500 до 750 включ. |
Св. 750 до 1000 включ. |
Св. 1000 до 1500 включ. | |
|
Помещения спортивного корпуса | |||||
|
1 Универсальный спортивный зал (размеры), м |
24,0 x 15,0 |
24,0 x 15,0 |
30,0 x 18,0 |
30,0 x 18,0 |
30,0 x 18,0 |
|
2 Тренажерный зал |
40,0 | ||||
|
3 Зал для борьбы (размеры), м |
18,0 x 15,0 | ||||
|
4 Вестибюль |
0,5 на одного занимающегося, но не менее 20,0 | ||||
|
5 Гардеробная верхней одежды 1 |
0,1 на одного занимающегося, но не менее 10,0 | ||||
|
6 Раздевальные (мужская и женская раздельно) 2 |
1,4 на одного занимающегося |
1,2 на одного занимающегося | |||
|
7 Душевые при раздевальных 3 |
1,7 на одну душевую сетку | ||||
|
8 Умывальная 4 |
1,3 на один умывальник | ||||
|
9 Уборная мужская 5 |
2,2 на один унитаз; 0,8 на один писсуар | ||||
|
10 Уборная женская 6 |
2,2 на один санитарный прибор | ||||
|
11 Кабинет врача-терапевта |
15,0 | ||||
|
12 Ожидальная |
9,0 | ||||
|
13 Сауна в составе 7^ | |||||
|
- камера сухого жара |
16,0 | ||||
|
- раздевальная |
12,0 | ||||
|
- комната отдыха |
16,0 | ||||
|
- душевая |
1,7 на одну душевую сетку | ||||
|
- уборная |
2,0 | ||||
|
14 Комната инструкторов |
10,0 | ||||
|
15 Помещение хранения уборочного инвентаря |
0,8 на 100 м2 общей площади, но не менее 4,0 | ||||
|
16 Помещение хранения спортивного инвентаря |
18,0 |
18,0 |
24,0 |
24,0 |
24,0 |
|
Помещения тира | |||||
|
17 Стрелковая галерея (количество огневых рубежей, шт.) |
2 |
2 |
3 |
3 |
4 |
|
18 Уборная 8 |
3,0 | ||||
|
19 Комната инструктора |
8,0 | ||||
|
20 Комната для отладки и чистки оружия |
9,0 | ||||
|
21 Помещение хозяйственного инвентаря и материалов |
10,0 | ||||
|
22 Помещение хранения уборочного инвентаря |
0,8 на 100 м2 общей площади, но не менее 4,0 | ||||
|
1 Число мест в гардеробной верхней одежды принимают на 200% занимающихся в смену и на 100% сотрудников спортивного корпуса с тиром. 2 Число мест в раздевальной принимают на 150% занимающихся в смену. Раздевальные оборудуют умывальниками из расчета один умывальник на 30 мест для переодевания, ножными ваннами из расчета одна ванна на 20 мест для переодевания и сушилками для волос из расчета одна сушилка на 10 мест для переодевания в женской раздевальной и на 20 мест для переодевания в мужской раздевальной. 3 Следует оборудовать одной душевой сеткой на пять мест для переодевания в раздевальной. 4 Следует оборудовать одним умывальником на четыре унитаза для женщин, одним умывальником на восемь приборов (унитазы, писсуары) для мужчин. 5 Следует оборудовать одним унитазом на 135 мест и одним писсуаром на 45 мест для переодевания в мужской раздевальной. 6 Следует оборудовать одним унитазом на 30 мест для переодевания в женской раздевальной. 7 Душевую при сауне следует оборудовать четырьмя душевыми сетками, уборную - одним унитазом и одним умывальником в тамбуре. 8 Следует оборудовать одним унитазом, одним писсуаром и одним умывальником в тамбуре. | |||||
8.11 Городок для служебной подготовки
Объекты (оборудование) городка для служебной подготовки следует предусматривать в соответствии с заданием на проектирование, с учетом требований [17].
8.12 Городок для содержания служебных собак с кинодромом
8.12.1 Городок для содержания служебных собак следует размещать на расстоянии не менее 150 м от зданий режимного, жилого, производственного назначения и животноводческих объектов. К территории городка для содержания служебных собак следует предусматривать проезды для автомобильного транспорта, отвечающие требованиям к благоустройству территории исправительного учреждения (5.13). Требования к устройству и размещению сооружений городка для содержания служебных собак с кинодромом, составу и устройству помещений, сетей инженерно-технического обеспечения городка приведены в [18] и настоящем своде правил. Вблизи кормокухни следует устраивать водоразборную колонку или закрытый грунтовый колодец.
8.12.2 Состав, площади помещений и сооружений городка для содержания служебных собак с кинодромом следует предусматривать в соответствии с таблицей 8.5.
Таблица 8.5
|
Наименование сооружения (помещения) городка для содержания служебных собак с кинодромом |
Площадь, м2, не менее, при численности служебных собак | ||||
|
до 5 включ. |
св. 5 до 10 включ. |
св. 10 до 15 включ. |
св. 15 до 20 включ. |
св. 20 до 25 включ. | |
|
1 Кинодром |
Определяется проектом по расстановке оборудования | ||||
|
2 Павильоны (с размещением вольеров) для служебных собак (на каждую): | |||||
|
- выгул |
2,0 x 2,5 м | ||||
|
- кабина |
2,0 x 1,8 м | ||||
|
- помещение (место) для помывки служебных собак |
4,0 | ||||
|
3 Изолятор для больных служебных собак и проведения ограничительных (карантинных) мероприятий (количество): - выгул, размеры, м (2,0 x 2,5) - кабина, размеры, м (2,0 x 1,8) |
Одно помещение |
Два помещения |
Три помещения |
Четыре помещения |
Пять помещений |
|
Административное здание | |||||
|
4 Кормокухня: | |||||
|
- варочный цех |
8,0 |
8,0 |
8,0 - 10,0 |
12,0 |
12,0 |
|
- прихожая с остывочной |
5,0 |
5,0 |
5,0 - 7,0 |
7,0 |
7,0 |
|
- комната повара |
6,0 |
6,0 |
6,0 |
6,0 |
6,0 |
|
- помещение хранения суточного запаса продуктов |
6,0 |
6,0 |
6,0 |
8,0 |
8,0 |
|
5 Ветеринарный пункт: | |||||
|
- кабинет ветеринарного специалиста |
12,0 |
12,0 |
12,0 |
12,0 |
12,0 |
|
- комната для проведения ветеринарных мероприятий со служебными собаками |
12,0 |
12,0 |
12,0 |
12,0 |
12,0 |
|
- комната хранения ветеринарного имущества |
10,0 |
10,0 |
12,0 |
12,0 |
12,0 |
|
- помещение для дезинфицирующих средств |
4,0 |
4,0 |
4,0 |
4,0 |
4,0 |
|
6 Класс специальной подготовки специалистов-кинологов |
2,5 на одного человека, из расчета 100%-ной численности кинологического отделения (группы) | ||||
|
7 Кладовая хранения специального снаряжения и инвентаря |
6,0 |
6,0 |
6,0 |
8,0 |
8,0 |
|
8 Кабинет начальника кинологического подразделения |
10,0 |
10,0 |
10,0 |
10,0 |
10,0 |
|
9 Помещение дежурного по городку для содержания служебных собак |
10,0 |
10,0 |
10,0 |
10,0 |
10,0 |
|
10 Помещение хранения уборочного инвентаря |
0,8 на 100 м2 общей площади, но не менее 4,0 | ||||
|
11 Уборная 1 |
2,0 | ||||
|
12 Мужская гардеробная с душевой 2 |
0,6 на одного человека в гардеробной, но не менее 4,0; 1,7 на одну душевую сетку | ||||
|
13 Женская гардеробная с душевой 2 |
0,6 на одного человека в гардеробной, но не менее 4,0; 1,7 на одну душевую сетку | ||||
|
1 Следует оборудовать одним унитазом, одним умывальником в тамбуре. 2 Следует оборудовать одной душевой сеткой на 15 чел. Примечания 1 Требования к проектированию объектов и помещений городка для содержания служебных собак с кинодромом приведены в [18], состав и площади помещений следует уточнять заданием на проектирование. 2 При промежуточных значениях площади следует определять интерполяцией. 3 Число помещений изолятора для больных служебных собак и проведения ограничительных (карантинных) мероприятий допускается уточнять заданием на проектирование. 4 Женская гардеробная с душевой (строка 13) предусматривается при наличии в составе кинологического отделения (группы) сотрудников женского пола. | |||||
8.12.3 Территория, занимаемая городком для содержания служебных собак с кинодромом, ограждается забором сплошного заполнения высотой 2 - 2,5 м с заглублением заполнения ограждения в грунт на 0,3 м. По верхнему срезу ограждения устраивается козырек из АКЛ.
8.12.4 В климатических подрайонах строительства IIБ, IIIБ, IVА, IVБ, IVВ по СП 131.13330 вместо кабин могут оборудованы выгулы размерами 2,0 x 2,5 x 2,1 м с расположенными в них будками.
8.12.5 Для размещения больных, а также вновь поступающих или возвращающихся из длительной командировки (более 21 дня) служебных собак устраивается изолятор вместимостью 20% общего числа служебных собак (если иное не установлено заданием на проектирование), который размещается отдельно от основных павильонов, огораживается забором сплошного заполнения высотой не менее 2,0 м и оборудуется на входе дезинфекционным ковриком (матом).
8.12.6 На территории городка для содержания служебных собак с кинодромом или на отдельном земельном участке в составе тюрьмы допускается предусматривать племенной питомник для воспроизводства поголовья служебных собак. Требования к устройству и размещению сооружений, составу и устройству сетей инженерно-технического обеспечения племенного питомника приведены в [18].
Территорию племенного питомника [при его расположении на территории (или смежно с территорией) городка для содержания служебных собак с кинодромом] необходимо отделять от территории городка глухим ограждением (сплошного заполнения) высотой 2 - 2,5 м с заглублением заполнения ограждения в грунт на 0,3 м.
Состав зданий, помещений, сооружений, оборудование территории племенного питомника определяются заданием на проектирование.
8.12.7 На расстоянии не менее 60 м от границ территории городка для содержания служебных собак с кинодромом, но в пределах границ территории исправительного учреждения, устраивают площадку с твердым покрытием для размещения контейнеров, предназначенных для сбора мусора и отходов, отдельного контейнера для сбора фекалий.
8.13 Морг
8.13.1 Морг в составе объектов тюрьмы предусматривается в случае отсутствия возможности использования районных и городских моргов, что должно быть оговорено заданием на проектирование.
8.13.2 Морг следует проектировать в составе следующих помещений:
- помещения приема и хранения трупов с кассетным холодильным шкафом, площадью не менее 12,0 м2;
- секционной площадью 20,0 м2;
- кабинета медицинского работника площадью 10,0 м2;
- душевой площадью 1,7 м2 на одну душевую сетку с раздевальной площадью 2,0 м2;
- уборной площадью не менее 2,0 м2, оборудованной одним унитазом и одним умывальником в тамбуре;
- помещения хранения уборочного инвентаря площадью 4,0 м2;
- технических и вспомогательных помещений, определяемых проектом по составу и площадям.
Состав и площади других помещений морга определяются заданием на проектирование. Здание морга следует предусматривать согласно требованиям СП 158.13330, СП 2.1.3678.
Режимная зона
8.14 Общие требования к объектам режимной зоны
8.14.1 Норму жилой площади в расчете на одного осужденного к лишению свободы в тюрьме, за исключением нормы площади в отделении (блоке помещений) для осужденных, находящихся в ежегодном оплачиваемом отпуске, следует принимать не менее 2,5 м2, для осужденных, состоящих на диспансерном учете по туберкулезу, - не менее 8,0 м2.
Норма жилой площади в расчете на одного осужденного хозобслуги - 2,0 м2.
Норма жилой площади в расчете на одного осужденного в отделении (блоке помещений) для осужденных хозобслуги, находящихся в ежегодном оплачиваемом отпуске, - 4,0 м2.
По расстановке мебели и оборудования площадь одноместной камеры, одноместного помещения безопасного места, двухместной камеры следует принимать не менее 6,0 м2.
8.14.2 Устройство в зданиях режимной зоны тюрьмы технических подполий, подвалов, колодцев не допускается:
- в условиях нового строительства при расположении здания на расстоянии менее 30 м от противопобегового заграждения;
- при реконструкции существующих учреждений и расположении здания на расстоянии менее 15 м от основного ограждения.
8.14.3 Для зданий тюрем в каменном (кирпичном, железобетонном) исполнении следует предусматривать бесчердачные (плоские) крыши. По заданию на проектирование допускается предусматривать устройство чердачных крыш (скатных кровель), в том числе для режимных зданий, при условии обеспечения зданий соответствующим составом ТСОН, а также выполнения противопобеговых и противопожарных мероприятий.
8.14.4 При двухстороннем расположении камерных помещений противоположные относительно коридора двери камерных помещений должны предусматриваться одна относительно другой со смещением. В условиях нового строительства смещение дверных проемов должно составлять не менее половины ширины дверного проема камерного помещения.
8.14.5 Каждая спальная комната в общежитии для хозобслуги, отделении (блоке помещений) для осужденных хозобслуги, находящихся в ежегодном оплачиваемом отпуске, должна иметь самостоятельный выход непосредственно в общий коридор.
Помещения для размещения отряда в общежитии для хозобслуги (за исключением отделения (блока помещений) для осужденных хозобслуги, находящихся в ежегодном оплачиваемом отпуске) следует условно разделять на два блока:
- блок помещений ночного пребывания - умывальная, уборная для осужденных, спальные комнаты;
- блок помещений дневного пребывания - умывальная, уборная для осужденных, комната отдыха, групповой психологической работы с осужденными, приема пищи и т.д.
Деление на два блока следует осуществлять архитектурно-планировочными решениями с применением отсекающих решетчатых перегородок с решетчатыми дверями, запираемыми в различное время суток.
8.14.6 В режимном корпусе тюрьмы следует применять только камерную систему размещения осужденных к отбыванию лишения свободы в тюрьме.
Общежитие для хозобслуги, отделение (блок помещений) для осужденных хозобслуги, находящихся в ежегодном оплачиваемом отпуске, следует предусматривать с комнатной системой размещения осужденных. При комнатной системе размещения осужденных общую вместимость четырехместных комнат следует принимать 40% вместимости общежития (отделения), шестиместных - 60% вместимости общежития (отделения).
Вместимость помещений для содержания осужденных (спальных комнат, камер) на режимной зоне тюрьмы следует принимать по таблице 8.6.
Таблица 8.6
|
Наименование типа помещений для содержания осужденных |
Вместимость (комнат, камер), чел. | ||||
|
Режимный корпус |
Отделение (блок помещений) для осужденных хозобслуги, находящихся в ежегодном оплачиваемом отпуске |
Общежитие для хозобслуги |
ШИЗО |
Карантин | |
|
Комнатная система размещения осужденных | |||||
|
1 Спальные комнаты |
- |
4, 6 1 |
4, 6 |
- |
- |
|
Камерная система размещения осужденных | |||||
|
2 Камера |
2, 4, 6 |
- |
- |
- |
2, 4 |
|
3 Камера (для нарушителей из числа осужденных к отбыванию лишения свободы в тюрьме) |
- |
- |
- |
1 |
- |
|
4 Камера (для нарушителей из числа осужденных хозобслуги) |
- |
- |
- |
2 |
- |
|
1 При вместимости отделения (блока помещений) для осужденных хозобслуги, находящихся в ежегодном оплачиваемом отпуске, менее пяти чел., вместимость спальных комнат следует принимать по фактическому наполнению. | |||||
8.14.7 Численность отряда осужденных тюрьмы следует принимать в пределах 50 - 100 (включительно) человек, численность отряда осужденных хозобслуги - до 100 (включительно) человек. При разбивке отрядов их число следует принимать минимально возможным.
8.15 Режимный корпус
8.15.1 Объемно-планировочные решения должны обеспечивать минимальное передвижение осужденных в пределах этажа и через другие этажи режимного корпуса.
Перемещение осужденных по этажам следует осуществлять по лестничным клеткам.
8.15.2 В пределах этажа режимного корпуса камеры следует разбивать на камерные блоки. При этом суммарная вместимость камер в камерном блоке предусматривается равной численности отряда осужденных тюрьмы.
Камерный блок (блоки) режимного корпуса следует размещать обособленно от остальных помещений режимного корпуса и отделять от последних устанавливаемой в общем коридоре поперечной решетчатой металлической перегородкой с решетчатой дверью (9.3.3).
Для раздельного содержания осужденных тюрьмы, отбывающих наказание на общем и строгом режимах, в составе режимного корпуса следует предусматривать не менее двух камерных блоков.
Камерные блоки для осужденных тюрьмы, содержащихся на общем и строгом режимах, целесообразно взаимно изолировать, располагая их на отдельных этажах, в отдельном крыле режимного корпуса, в отдельных режимных корпусах. Допускается расположение камерных блоков для осужденных тюрьмы, содержащихся на общем и строгом режиме, на одном этаже с соблюдением изоляции каждого камерного блока поперечными отсекающими решетчатыми перегородками, устанавливаемыми в общих коридорах камерных блоков.
8.15.3 По заданию на проектирование в составе помещений режимного корпуса тюрьмы допускается предусматривать помещения постирочной и сушилки личного белья осужденных. В этом случае вход в душевую для осужденных и сушилку личного белья предусматривается из помещения постирочной.
Душевые для осужденных, а также постирочные и сушилки личного белья допускается размещать в пределах камерного блока. Помещения вспомогательного назначения и кабинеты следует располагать вне камерного блока. При этом кабинет оперативного работника следует размещать на максимальном удалении от камерного блока - рядом с выходами на лестничные клетки, в местах примыкания переходных галерей и т.п.
Наличие выходов в лестничные клетки из общего коридора камерного блока не допускается.
8.15.4 Состав и площади помещений режимного корпуса тюрьмы следует предусматривать в соответствии с таблицей 8.7.
Таблица 8.7
|
Наименование помещения |
Площадь помещения, м2, не менее |
|
1 2-местная камера 1 |
6,0 |
|
2 4-местная камера 1 |
10,0 |
|
3 6-местная камера 1 |
15,0 |
|
4 Комната хранения продуктов питания 2 |
0,12 на одного осужденного, но не менее 6,0 |
|
5 Комната мытья и хранения посуды 2 |
0,15 на одного осужденного, но не менее 8,0 |
|
6 Помещение хранения чистых постельных принадлежностей, белья и обменного фонда белья |
0,2 на одного осужденного, но не менее 6,0 |
|
7 Постирочная с сушилкой личного белья 2 |
0,2 на одного осужденного, но не менее 8,0 |
|
8 Кабинет начальника отряда - приема осужденных администрацией 2 |
12,0 |
|
9 Кабинет оперативного работника 3 |
12,0 |
|
10 Кабинет сотрудников отдела режима 4 |
12,0 |
|
11 Кабинет врача с процедурной и тамбуром 5 |
12,0/12,0 |
|
12 Кабинет психолога 5 |
12,0 |
|
13 Кабинет начальника корпусного отделения 6 |
10,0 |
|
14 Помещение хранения библиотечного фонда 7 |
0,05 на двадцать книг, но не менее 10,0 |
|
15 Комната отдыха, индивидуальной психологической работы с осужденными, консультаций по общеобразовательной программе 8 |
18,0 |
|
16 Комната для отправления религиозных обрядов 9 |
0,25 на одного осужденного, но не менее 9,0 |
|
17 Парикмахерская с местом хранения уборочного инвентаря 10 |
10,0 |
|
18 Помещение хранения уборочного инвентаря 11 |
0,8 на 100 м2 общей площади, но не менее 4,0 |
|
19 Душевая 12 |
1,7 на одну душевую сетку |
|
20 Уборная для АУП 13 |
2,0 |
|
21 Прогулочные дворы 14 |
6,0 на одного осужденного, но не менее 20,0 |
|
22 Комната младшего инспектора (оператора СОТ) |
10,0 |
|
23 Комната обыска 15 |
10,0 |
|
1 Суммарную вместимость всех камер режимного корпуса (корпусов) в зависимости от лимита наполнения тюрьмы следует принимать по таблице 7.1. Суммарная вместимость двухместных камер должна составлять не менее 11% вместимости режимного корпуса (корпусов), четырехместных - не менее 43%, шестиместных - не более 46%. 2 Следует предусматривать из расчета одно помещение на один отряд осужденных. 3 Следует предусматривать из расчета одно помещение на 250 осужденных, но не менее одного на каждый этаж при расположении камерных блоков на разных этажах. 4 Следует предусматривать из расчета одно помещение на 300 осужденных. 5 Следует предусматривать из расчета одно помещение на 150 осужденных. 6 Следует предусматривать при наличии корпусных отделений из расчета одно помещение на каждое корпусное отделение. 7 Следует предусматривать из расчета пять книг на одного осужденного. 8 Следует предусматривать одно помещение на режимный корпус. Вместимость комнаты предусмотрена с учетом покамерного вывода осужденных для проведения индивидуальной психологической работы, консультаций по общеобразовательной программе. Одновременное пребывание в данном помещении осужденных, содержащихся в разных камерах, не допускается. 9 Число комнат определяется с учетом положений 4.16. 10 Следует предусматривать одно помещение на режимный корпус. 11 Следует предусматривать на каждом этаже, при наличии корпусных отделений - в каждом корпусном отделении. 12 Следует предусматривать на каждом этаже с наличием камерных блоков. Душевые следует оборудовать из расчета одной душевой сетки на 20 осужденных, при этом для обеспечения единовременной помывки число душевых сеток в каждой душевой должно быть четным и соответствовать наполнению камеры максимальной вместимости, расположенной в камерном блоке. Одновременное пребывание в одной душевой осужденных, содержащихся в разных камерах, не допускается. 13 Следует предусматривать на каждом этаже и оборудовать одним унитазом и одним умывальником в тамбуре. 14 Суммарную вместимость прогулочных дворов следует принимать из расчета 20% вместимости режимного корпуса. Вместимость прогулочных дворов следует принимать с учетом покамерного вывода осужденных на прогулку, не допуская одновременного пребывания в одном прогулочном дворе осужденных, содержащихся в разных камерах. 15 Следует оборудовать одним унитазом и одним умывальником (без кабины). Примечания 1 Камеры оборудуются одним унитазом, располагаемым в изолированной кабине, и одним умывальником вне кабины. При этом площадь помещений указана без учета площади, занимаемой санитарной кабиной с унитазом. 2 Заданием на проектирование могут предусматриваться режимные корпуса для осужденных, состоящих на диспансерном учете по туберкулезу, при этом норму жилой площади в камерах следует принимать согласно 8.14.1. При режимном корпусе для осужденных, состоящих на диспансерном учете по туберкулезу, допускается предусматривать производственные мастерские с рабочими камерами. Состав и площади помещений режимного корпуса для осужденных, состоящих на диспансерном учете по туберкулезу, принимаются по настоящей таблице. При этом состав и площади дополнительных помещений, включая помещения производственных мастерских, определяют заданием на проектирование с учетом требований действующих нормативов, регламентирующих бытовые условия и условия труда лиц, страдающих указанным заболеванием. 3 Допускается увеличивать площадь комнаты младшего инспектора (оператора СОТ) исходя из условия, что на каждое дополнительное рабочее место оператора СОТ необходимо добавлять 8,0 м2 площади помещения. Число рабочих мест в комнате младшего инспектора (оператора СОТ) следует определять исходя из условия обслуживания с одного автоматизированного рабочего места оператора СОТ ориентировочно 30 видеокамер. 4 В строке 11 в числителе указана норма площади кабинета врача, в знаменателе - процедурной. Площадь тамбура при входе в кабинет принимается дополнительно 2,0 м2. 5 Корпусные отделения создаются при лимите наполнения тюрьмы 400 осужденных и более, численность корпусного отделения устанавливается заданием на проектирование. | |
8.15.5 Требования к оборудованию, оснащению мебелью и инвентарем помещений режимного корпуса тюрьмы приведены в приложении А и [15].
8.16 Сборное отделение с карантином
8.16.1 Требования к объемно-планировочным решениям блока помещений карантинного отделения тюрьмы аналогичны требованиям, предъявляемым к режимному корпусу тюрьмы.
8.16.2 Санпропускники сборного отделения предусматривают в виде обособленной группы помещений и располагают по возможности на первом этаже здания смежно с комнатой обыска либо на минимально возможном удалении от комнаты обыска.
8.16.3 В санпропускнике между грязным отделением дезинфекционной камеры и раздевальной, между чистым отделением дезинфекционной камеры и одевальной комнатой необходимо устраивать перегородки с передаточными окнами для приема и выдачи подлежащей обработке (обработанной) одежды.
8.16.4 При комнате обыска (смежно с комнатой обыска) необходимо предусматривать одноместные помещения для кратковременного нахождения осужденных, которые должны быть площадью не менее 4,0 м2 каждое. Указанные помещения должны отделяться друг от друга кирпичными перегородками толщиной не менее 120 мм, возводимыми на всю высоту помещений. В ограждающих конструкциях каждого из одноместных помещений следует предусматривать оконный проем площадью не менее 0,5 м2 для естественного освещения или освещения вторым светом. Данные помещения должны оборудоваться вентиляцией и искусственным освещением. Остекление оконного проема одноместного помещения для кратковременного нахождения следует предусматривать из многослойного взломостойкого стекла, соответствующего классу защиты Р1В по ГОСТ 30826.
8.16.5 Комнату обыска по возможности следует предусматривать смежной с помещением временного хранения личных вещей прибывших осужденных либо на минимально возможном удалении от указанного помещения.
8.16.6 Одноместные помещения безопасного места для размещения осужденных в случае угрозы их жизни и здоровью со стороны других осужденных предусматриваются вне блока камерных помещений.
8.16.7 Требования к оборудованию, оснащению мебелью и инвентарем помещений сборного отделения с карантином тюрьмы приведены в приложении А и [15].
8.16.8 Состав и площади помещений сборного отделения с карантином тюрьмы следует принимать по таблице 8.8.
Таблица 8.8
|
Наименование помещения |
Площадь помещения, м2, не менее, при лимите наполнения тюрьмы, чел. | ||||
|
До 250 включ. |
Св. 250 до 500 включ. |
Св. 500 до 750 включ. |
Св. 750 до 1000 включ. |
Св. 1000 до 1500 включ. | |
|
Сборное отделение | |||||
|
1 Кабинет сотрудников отдела режима |
12,0 |
12,0 |
12,0 |
12,0 |
12,0 |
|
2 Комната картотеки при кабинете сотрудников отдела режима |
4,0 |
4,0 |
6,0 |
6,0 |
6,0 |
|
3 Сборная камера для прибывающих/убывающих осужденных 1 |
Две камеры по 10,0 |
Три камеры по 10,0 |
Три камеры по 12,0 |
Четыре камеры по 12,0 |
Четыре камеры по 15,0 |
|
4 Комната обыска 2 |
10,0 | ||||
|
5 Одноместное помещение для кратковременного нахождения при комнате обыска |
Два помещения по 4,0 |
Три помещения по 4,0 |
Три помещения по 4,0 |
Три помещения по 4,0 |
Три помещения по 4,0 |
|
6 Помещение временного хранения личных вещей прибывших осужденных |
0,25 на одного осужденного, но не менее 4,0 | ||||
|
7 Мастерская по ремонту обуви, одежды и постельных принадлежностей |
8,0 | ||||
|
8 Кабинет врача с процедурной и тамбуром |
12,0/12,0 | ||||
|
9 Комната картотеки при кабинете врача |
6,0 |
6,0 |
6,0 |
8,0 |
10,0 |
|
10 Парикмахерская с местом хранения уборочного инвентаря |
10,0 | ||||
|
11 Санпропускник 3: | |||||
|
- грязное отделение дезкамеры |
По расстановке оборудования | ||||
|
- чистое отделение дезкамеры | |||||
|
- душевая сетка для осужденных |
0,8 | ||||
|
- душевая сетка для дезинфектора |
2,3 | ||||
|
- раздевальная |
3,0 | ||||
|
- одевальная |
3,0 | ||||
|
- помещение для дезинфицирующих средств |
4,0 | ||||
|
12 Фотолаборатория: | |||||
|
- съемочная |
12,0 | ||||
|
- кладовая |
4,0 | ||||
|
13 Уборная для АУП 4 |
2,0 | ||||
|
14 Помещение хранения уборочного инвентаря |
0,8 на 100 м2 общей площади, но не менее 4,0 | ||||
|
15 Помещение видеоконференц-связи |
15,0 | ||||
|
Карантинное отделение | |||||
|
16 Кабинет начальника отряда |
12,0 | ||||
|
17 Кабинет оперативного работника |
12,0 | ||||
|
18 Кабинет психолога |
12,0 | ||||
|
19 Кабинет индивидуальной психологической работы с осужденными |
12,0 | ||||
|
20 4-местная камера (количество камер) 5 |
4 |
6 |
6 |
6 |
8 |
|
21 2-местная камера (количество камер) 5 |
2 |
2 |
2 |
2 |
3 |
|
22 Одноместное помещение безопасного места (количество помещений) 5 |
1 |
2 |
2 |
3 |
4 |
|
23 Помещение обменного фонда постельных принадлежностей, белья, одежды и обуви |
0,25 на одного осужденного, но не менее 4,0 | ||||
|
24 Комната мытья и хранения посуды |
8,0 | ||||
|
25 Уборная для АУП 4 |
2,0 | ||||
|
26 Помещение хранения уборочного инвентаря |
0,8 на 100 м2 общей площади, но не менее 4,0 | ||||
|
27 Постирочная с сушилкой личного белья |
0,2 на одного осужденного, но не менее 8,0 | ||||
|
28 Душевая 6 |
1,7 на одну душевую сетку | ||||
|
29 Прогулочные дворы 7 |
6,0 на одного осужденного, но не менее 20,0 | ||||
|
Общие помещения | |||||
|
30 Комната младшего инспектора (оператора СОТ) |
10,0 | ||||
|
1 Оборудуется одним унитазом, располагаемым в изолированной кабине, и одним умывальником, располагаемым вне кабины. Площадь камеры указана без учета площади, занимаемой санитарной кабиной с унитазом. 2 Следует оборудовать одним унитазом и одним умывальником (без кабины). 3 Следует оборудовать двумя дезкамерами (одна рабочая и одна резервная). 4 Следует предусматривать на каждом этаже здания. Уборную следует оборудовать одним унитазом и одним умывальником в тамбуре. 5 Оборудуется одним унитазом, располагаемым в изолированной кабине, и одним умывальником, располагаемым вне кабины. 6 Следует предусматривать на каждом этаже с наличием камерных блоков. Душевые следует оборудовать из расчета одной душевой сетки на 20 осужденных, при этом для обеспечения единовременной помывки число душевых сеток в каждой душевой должно быть четным и соответствовать наполнению камеры максимальной вместимости, расположенной в камерном блоке. Одновременное пребывание в одной душевой осужденных, содержащихся в разных камерах, не допускается. 7 Суммарную вместимость прогулочных дворов следует предусматривать из расчета 20% вместимости карантинного отделения. Вместимость прогулочных дворов следует принимать с учетом покамерного вывода осужденных на прогулку, не допуская одновременного пребывания в одном прогулочном дворе осужденных, содержащихся в разных камерах. Примечания 1 Допускается увеличивать площадь комнаты младшего инспектора (оператора СОТ) или предусматривать одну общую комнату на сборное и карантинное отделение, исходя из условия, что на каждое дополнительное рабочее место оператора СОТ необходимо добавлять 8,0 м2 площади помещения. Количество рабочих мест в комнате младшего инспектора (оператора СОТ) следует определять исходя из условия обслуживания с одного автоматизированного рабочего места оператора СОТ ориентировочно 30 видеокамер. 2 В строке 8 в знаменателе указана норма площади кабинета врача, в числителе - процедурной. Площадь тамбура при входе в кабинет принимается дополнительно 2,0 м2. | |||||
8.17 Здание для проведения длительных и краткосрочных свиданий
8.17.1 Здание (блок помещений) для проведения длительных и краткосрочных свиданий следует размещать в режимной зоне тюрьмы. Размещение здания для проведения длительных и краткосрочных свиданий на периметре охраны учреждения не допускается.
Наиболее целесообразным вариантом расположения здания для проведения длительных и краткосрочных свиданий является его размещение в непосредственной близости от административного здания тюрьмы.
8.17.2 Объемно-планировочные решения здания для проведения длительных и краткосрочных свиданий должны обеспечивать проход лиц, прибывших на свидание, только в помещения для проведения краткосрочных или длительных свиданий и исключать возможность прохода в иные помещения здания, за исключением помещений для посетителей, ожидающих свидания.
8.17.3 В комнате для проведения краткосрочных свиданий (для осужденных к отбыванию лишения свободы в тюрьме) предусматриваются два ряда кабин, разделенных между собой перегородкой, для посетителей и осужденных. Кабины шириной 0,8 м и глубиной 1,0 м каждая отделяются друг от друга перегородками. Продольная перегородка, разделяющая кабины посетителей и осужденных, на высоту 0,9 м выполняется кирпичной, боковые перегородки кабин на высоту 0,9 м от пола выполняются глухими, из материала, определяемого проектом. Выше глухой части перегородок кабин предусматривается остекление из многослойного ударостойкого стекла с классом защиты не ниже Р4А по ГОСТ 30826. Задние стенки кабин для посетителей оборудуются дверными блоками без запорных устройств, а для осужденных - дверными блоками с запорными устройствами, устанавливаемыми с наружной стороны. В кабинах устанавливаются переговорные устройства. Одна-две кабины для посетителей выполняются шириной не менее 1,4 м (для участия в свидании одновременно двух посетителей или посетителей с детьми). В кабинах для посетителей устанавливаются стулья, а в кабинах для осужденных - прикрепленные к полу табуретки. Пара кабин (осужденный-посетитель) и площадь участков прилегающих к кабинам проходов образуют место для проведения краткосрочных свиданий.
Комнату младшего инспектора по проведению краткосрочных свиданий с устройством для контроля, предупреждения и прерывания разговоров следует размещать смежно с комнатой для проведения краткосрочных свиданий в торце блока кабин. Перегородка, отделяющая комнату младшего инспектора по проведению краткосрочных свиданий и комнату для проведения краткосрочных свиданий, выполняется остекленной (по 9.2.10), таким образом, чтобы обеспечивалась возможность визуального контроля за всеми участниками процесса свидания. В перегородке предусматриваются дверные проемы с заполнением остекленным дверным блоком, выходящие к местам посетителей и местам осужденных. Выход из комнаты младшего инспектора по проведению краткосрочных свиданий предусматривается в общий коридор.
Допускается предусматривать комнату младшего инспектора по проведению краткосрочных свиданий внутри комнаты краткосрочных свиданий в середине блока кабин таким образом, чтобы справа и слева от него было не более 5 - 6 пар кабин и обеспечивалась возможность визуального контроля за всеми участниками процесса свидания.
8.17.4 В комнате для проведения краткосрочных свиданий осужденных из числа хозобслуги оборудуются места для проведения краткосрочных свиданий путем установки столов, разделенных между собой пространством (проходом) шириной 1,2 м по длине комнаты. Со стороны прохода столы от уровня пола оборудуются перегородкой, имеющей высоту на 0,2 м выше поверхности столешницы. У столов левого или правого ряда устанавливаются и прикрепляются к полу табуретки для осужденных. Вдоль противоположного ряда столов устанавливается соответствующее число стульев для посетителей.
Комната младшего инспектора по проведению краткосрочных свиданий размещается смежно с комнатой для проведения краткосрочных свиданий. Перегородка, отделяющая комнату младшего инспектора по проведению краткосрочных свиданий и комнату для проведения краткосрочных свиданий, выполняется остекленной (по 9.2.10) таким образом, чтобы просматривался проход между столами для посетителей и столами для осужденных, а также места для посетителей и осужденных. В перегородке предусматриваются дверные проемы с заполнением остекленным дверным блоком, выходящие к местам посетителей и местам осужденных. Выход из комнаты младшего инспектора по проведению краткосрочных свиданий предусматривается в общий коридор.
8.17.5 Требования к обеспечению помещений здания (блок помещений) для проведения длительных и краткосрочных свиданий мебелью, инвентарем, вещевым имуществом, кухонной и столовой посудой приведены в приложении А и [15].
8.17.6 Состав и площади помещений здания для проведения длительных и краткосрочных свиданий следует принимать по таблице 8.9.
Таблица 8.9
|
Наименование помещения |
Площадь помещения, м2, не менее, при лимите наполнения тюрьмы, чел. | ||||
|
До 250 включ. |
Св. 250 до 500 включ. |
Св. 500 до 750 включ. |
Св. 750 до 1000 включ. |
Св. 1000 до 1500 включ. | |
|
Помещения для проведения краткосрочных свиданий | |||||
|
1 Комната для проведения краткосрочных свиданий в кабинах (для осужденных к отбыванию лишения свободы в тюрьме) 1 |
5,0 на одно место для проведения краткосрочных свиданий (одного осужденного с посетителем или двумя посетителями) | ||||
|
2 Комната для проведения краткосрочных свиданий, оборудованная столами (для осужденных хозобслуги) 1 |
3,8 на одно место для проведения краткосрочных свиданий (одного осужденного с посетителем или двумя посетителями) | ||||
|
3 Уборная 2: | |||||
|
- мужская |
3,0 | ||||
|
- женская |
2,0 | ||||
|
4 Комната младшего инспектора по проведению краткосрочных свиданий (одна комната на 10 - 12 мест для проведения краткосрочных свиданий) |
6,0 | ||||
|
5 Комната для свиданий с адвокатами |
12,0 |
12,0 |
Две комнаты по 12,0 |
Две комнаты по 12,0 |
Три комнаты по 12,0 |
|
6 Кабина для телефонных переговоров |
1,2 | ||||
|
Помещения для проведения длительных свиданий | |||||
|
7 Жилая 2-местная комната 3 |
12,0 | ||||
|
8 Жилая 3-местная комната 3 |
18,0 | ||||
|
9 Кухня |
10,0 |
10,0 |
12,0 |
15,0 |
20,0 |
|
10 Игровая |
10,0 |
10,0 |
12,0 |
12,0 |
15,0 |
|
11 Кладовая |
6,0 |
6,0 |
8,0 |
8,0 |
10,0 |
|
12 Санитарный узел при жилой комнате 4 |
3,0 | ||||
|
13 Помещение хранения уборочного инвентаря |
0,8 на 100 м2 общей площади, но не менее 4,0 | ||||
|
14 Комната младшего инспектора по проведению длительных свиданий |
10,0 | ||||
|
15 Помещение хранения обменного фонда белья |
8,0 |
10,0 |
12,0 |
12,0 |
14,0 |
|
Общие помещения | |||||
|
16 Помещение выдачи посылок и передач |
10,0 |
12,0 |
12,0 |
15,0 |
15,0 |
|
17 Помещение для посетителей, ожидающих свидания |
12,0 |
12,0 |
12,0 |
15,0 |
15,0 |
|
18 Комната обыска 5 |
10,0 | ||||
|
19 Уборная для АУП 6 |
2,0 | ||||
|
1 Вместимость комнат (число мест) для проведения краткосрочных свиданий следует принимать по таблице 7.1. 2 Следует оборудовать мужскую уборную - одним унитазом, одним писсуаром, одним умывальником в тамбуре, женскую - одним унитазом, одним умывальником в тамбуре. 3 Общее число жилых комнат для проведения длительных свиданий определяется по таблице 7.1. Соотношение 2- и 3-местных жилых комнат принимается 50% на 50%, в случае нечетного общего количества жилых комнат предусматривается большее количество 2-местных жилых комнат. 4 Следует оборудовать одной душевой сеткой, одним унитазом и одним умывальником. 5 Данное помещение следует размещать в непосредственной близости от входа осужденных в здание для проведения длительных и краткосрочных свиданий (в непосредственной близости от выхода из лестничной клетки или переходной галереи). Комнату обыска следует оборудовать одним унитазом и одним умывальником (без кабины). 6 Следует оборудовать одним унитазом и одним умывальником в тамбуре. Примечания 1 Площадь места для проведения краткосрочных свиданий, комнаты длительных свиданий указана с учетом пребывания осужденного и лиц, прибывших на свидания. 2 По заданию на проектирование в помещении для посетителей, ожидающих свидания (строка 17), допускается предусматривать "уголок матери и ребенка" с размещением детского стола с двумя детскими стульями, стеллажа для игрушек, стульчика для кормления, детского мольберта с магнитной доской, вешалки для верхней одежды, одного стула (для матери). Норма площади помещения для посетителей, ожидающих свидания, при устройстве "уголка матери и ребенка" принимается на 6,0 м2 больше относительно значений, указанных в строке 17 настоящей таблицы. | |||||
8.18 Общежитие для хозобслуги
8.18.1 Общежитие для хозобслуги следует проектировать с учетом поотрядного размещения осужденных в обособленных секциях (этажах). Обособленные отрядные секции в здании общежития в одно- и двухэтажном исполнении обеспечиваются отдельными наружными входами. В зданиях общежитий большей этажности допускается предусматривать выход из обособленной отрядной секции (этажа) в общую лестничную клетку с обеспечением выхода из лестничной клетки непосредственно (или через тамбур) на прилегающую к зданию общежития территорию - в локальный изолированный участок.
8.18.2 В здании общежития для хозобслуги изолированно от других помещений предусматривается отделение (блок помещений) для осужденных хозобслуги, находящихся в ежегодном оплачиваемом отпуске. Отделение должно обеспечиваться обособленным наружным входом.
Также в составе здания общежития для хозобслуги предусматривается изолированный блок помещений магазина продовольственных и непродовольственных товаров. Блок помещений магазина обеспечивается обособленным наружным входом, расположенным вне локального изолированного участка общежития для хозобслуги.
8.18.3 В составе общежития для хозобслуги может предусматриваться изолированное отделение (блок помещений) для осужденных, которым предоставлено право передвижения без конвоя или сопровождения. Необходимость устройства такого отделения в составе помещений общежития для хозобслуги, а также число осужденных, которым предоставлено право передвижения без конвоя или сопровождения, определяются заданием на проектирование. Отделение должно обеспечиваться обособленным наружным входом.
8.18.4 Состав и площади помещений общежития для хозобслуги тюрьмы следует принимать в соответствии с таблицей 8.10.
Помещения, указанные в строках 1, 3, 5 - 17 таблицы 8.10, предусматриваются в расчете на один отряд осужденных. Число кабинетов для индивидуальной психологической работы с осужденными (строка 4 таблицы 8.10) следует определять из расчета одно помещение на два отряда осужденных. При этом площадь данного помещения предусматривается из расчета размещения одного отряда.
Таблица 8.10
|
Наименование помещения |
Площадь помещения, м2, не менее, при лимите наполнения тюрьмы, чел. | ||||
|
До 250 включ. |
Св. 250 до 500 включ. |
Св. 500 до 750 включ. |
Св. 750 до 1000 включ. |
Св. 1000 до 1500 включ. | |
|
Блок помещений общежития для хозобслуги | |||||
|
1 Кабинет начальника отряда |
12,0 | ||||
|
2 Кабинет психолога |
12,0 | ||||
|
3 Комната отдыха, групповой психологической работы с осужденными |
1,0 на одного осужденного, но не менее 30,0 | ||||
|
4 Кабинет индивидуальной психологической работы с осужденными |
0,3 на одного осужденного, но не менее 12,0 | ||||
|
5 Спальные комнаты 1: | |||||
|
- 4-местные |
8,0 | ||||
|
- 6-местные |
12,0 | ||||
|
6 Комната для отправления религиозных обрядов |
0,25 на одного осужденного, но не менее 9,0 | ||||
|
7 Комната хранения продуктов питания и приема пищи 2 |
1,2 на одного осужденного | ||||
|
8 Комната подогрева пищи |
0,2 на одного осужденного, но не менее 6,0 | ||||
|
9 Комната мытья и хранения посуды |
0,15 на одного осужденного, но не менее 8,0 | ||||
|
10 Помещение для сушки одежды и обуви |
0,15 на одного осужденного, но не менее 5,0 | ||||
|
11 Комната быта |
0,2 на одного осужденного, но не менее 10,0 | ||||
|
12 Гардеробная хранения рабочей одежды и обуви |
0,6 на одного осужденного, но не менее 10,0 | ||||
|
13 Душевая 3 |
1,7 на одну душевую сетку | ||||
|
14 Умывальная 4 |
2,0 на один комплект санитарных приборов | ||||
|
15 Уборная 5 |
3,0 на один комплект санитарных приборов | ||||
|
16 Уборная для АУП 6 |
2,0 | ||||
|
17 Помещение хранения уборочного инвентаря |
0,8 на 100 м2 общей площади, но не менее 4,0 | ||||
|
Магазин продовольственных и непродовольственных товаров | |||||
|
18 Торговый зал |
16,0 |
20,0 |
20,0 |
24,0 |
30,0 |
|
19 Помещения хранения и подготовки продовольственных товаров: | |||||
|
- кладовая продовольственных товаров |
8,0 |
10,0 |
10,0 |
14,0 |
16,0 |
|
- фасовочная |
6,0 |
6,0 |
6,0 |
8,0 |
8,0 |
|
20 Кладовая непродовольственных товаров |
8,0 |
10,0 |
10,0 |
14,0 |
16,0 |
|
21 Загрузочная |
6,0 | ||||
|
22 Гардеробная для персонала с местом для приема пищи 7 |
4,0/6,0 | ||||
|
23 Душевая для персонала 8 |
1,7 | ||||
|
24 Уборная для персонала 9 |
2,0 | ||||
|
25 Помещение хранения уборочного инвентаря |
4,0 | ||||
|
Отделение (блок помещений) для осужденных хозобслуги, находящихся в ежегодном оплачиваемом отпуске | |||||
|
26 Комната администрации тюрьмы |
12,0 | ||||
|
27 Спальные комнаты 10 |
В соответствии с 8.14.1 и таблицей 8.6 | ||||
|
28 Комната отдыха (для осужденных) |
12,0 | ||||
|
29 Кухня 10 |
12,0 | ||||
|
30 Уборная 9 |
2,0 | ||||
|
31 Душевая 8 |
1,7 | ||||
|
32 Помещение хранения уборочного инвентаря |
4,0 | ||||
|
1 Суммарная вместимость спальных комнат принимается по таблице 7.1. 2 Число посадочных мест в комнате хранения продуктов питания и приема пищи следует предусматривать исходя из режима приема пищи в одну посадку при вместимости общежития до 25 осужденных включительно, в две посадки - при вместимости общежития от 26 до 50 осужденных включительно, в три посадки - при вместимости общежития более 50 осужденных. 3 Следует оборудовать одной душевой сеткой на 20 осужденных. 4 Следует оборудовать одной ножной ванной и одним умывальником на 15 осужденных. 5 Следует оборудовать одним унитазом и одним писсуаром на 15 осужденных. 6 Следует предусматривать на каждом этаже и оборудовать одним унитазом и одним умывальником в тамбуре. 7 Гардеробные оборудуются индивидуальными закрытыми двойными шкафами. В числителе указана норма площади гардеробной для персонала, в знаменателе - места для приема пищи. 8 Следует оборудовать одной душевой сеткой. 9 Следует оборудовать одним унитазом и одним умывальником в тамбуре. 10 Помещение предназначено для хранения продуктов питания, подогрева и приема пищи, мытья посуды. Оборудуется односекционной мойкой. | |||||
8.18.5 Требования к оборудованию, оснащению мебелью и инвентарем помещений общежития для хозобслуги тюрьмы приведены в приложении А и [15].
8.18.6 Комнату хранения продуктов питания и приема пищи следует размещать смежно с комнатой мытья и хранения посуды.
8.18.7 При проектировании магазинов следует соблюдать требования СП 2.3.6.3668.
8.19 Штрафной изолятор
8.19.1 Вместимость зданий (блоков помещений) ШИЗО следует принимать в соответствии с таблицей 7.1.
8.19.2 Состав и площади помещений ШИЗО следует принимать по таблице 8.11.
Таблица 8.11
|
Наименование помещения |
Площадь помещения, м2, не менее |
|
1 Камеры ШИЗО: | |
|
- 1-местная камера для нарушителей из числа осужденных к отбыванию лишения свободы в тюрьме - 2-местная камера для нарушителей из числа осужденных хозобслуги |
В соответствии с 8.14.1 и таблицей 7.1 |
|
2 Комната обыска 1 |
10,0 |
|
3 Помещение хранения личных вещей осужденных |
0,12 на одного осужденного, но не менее 4,0 |
|
4 Комната медицинского работника |
12,0 |
|
5 Кабинет оперативного работника 2 |
12,0 |
|
6 Кабинет начальника отряда - приема осужденных администрацией |
12,0 |
|
7 Помещение хранения чистых постельных принадлежностей, белья и обменного фонда белья 2 |
0,2 на одного осужденного, но не менее 6,0 |
|
8 Помещение дневного хранения постельных принадлежностей 2 |
0,2 на одного осужденного, но не менее 6,0 |
|
9 Комната мытья и хранения посуды |
0,12 на одного осужденного, но не менее 6,0 |
|
10 Душевая 3 |
1,7 на одну душевую сетку |
|
11 Уборная для АУП 4 |
2,0 |
|
12 Помещение хранения уборочного инвентаря |
0,8 на 100 м2 общей площади, но не менее 4,0 |
|
13 Прогулочные дворы 5 |
6,0 на одного осужденного, но не менее 20,0 |
|
Производственные мастерские | |
|
14 Комната обыска 1 |
10,0 |
|
15 Комната мастера |
10,0 |
|
16 Рабочая камера 6 |
4,0 на одно рабочее место |
|
17 Помещение хранения суточного запаса сырья 6 |
0,07 на одно рабочее место, но не менее 10,0 |
|
18 Помещение временного хранения готовой продукции 6 |
0,12 на одно рабочее место, но не менее 12,0 |
|
19 Помещение временного хранения отходов производства 6 |
0,02 на одно рабочее место, но менее 6,0 |
|
20 Помещение хранения инструмента 6 |
0,03 на одно рабочее место, но не менее 6,0 |
|
21 Помещение хранения уборочного инвентаря |
0,8 на 100 м2 общей площади, но не менее 4,0 |
|
22 Уборная для АУП 4 |
2,0 |
|
Общие помещения | |
|
23 Комната младшего инспектора (оператора СОТ) |
10,0 |
|
1 Следует предусматривать на каждом этаже здания (блока помещений) ШИЗО при наличии на данном этаже камерных блоков. Комнату следует оборудовать одним унитазом и одним умывальником (без кабины). Данное помещение (кроме комнаты обыска при производственных мастерских) следует размещать в непосредственной близости от входа для осужденных в здание ШИЗО (при выходе из переходной галереи, лестничной клетки и т.п.). 2 Следует предусматривать на каждом этаже здания. 3 Следует оборудовать одной душевой сеткой на 20 осужденных. Одновременное пребывание в одной душевой осужденных, содержащихся в разных камерах, не допускается. 4 Следует предусматривать на каждом этаже. Уборную следует оборудовать одним унитазом и одним умывальником в тамбуре. 5 Суммарную вместимость прогулочных дворов следует принимать из расчета 20% суммарной вместимости камер ШИЗО (без учета рабочих камер производственных мастерских). Вместимость прогулочных дворов следует принимать с учетом покамерного вывода осужденных на прогулку, не допуская одновременного пребывания в одном прогулочном дворе осужденных, содержащихся в разных камерах. 6 Норма площади указана для картонажных, плетеночных и швейных работ. При ином профиле производства норма площади определяется заданием на проектирование. 7 Предусматриваются при необходимости в случае размещения ШИЗО в отдельно стоящем здании. Примечания 1 Камеры, рабочие камеры оборудуются одним унитазом, располагаемым в изолированной кабине, и одним умывальником вне кабины. 2 Допускается увеличивать площадь комнаты младшего инспектора (оператора СОТ) исходя из условия, что на каждое дополнительное рабочее место оператора СОТ необходимо добавлять 8,0 м2 площади помещения. Число рабочих мест в комнате младшего инспектора (оператора СОТ) следует определять исходя из условия обслуживания с одного автоматизированного рабочего места оператора СОТ ориентировочно 30 видеокамер. 3 Необходимость устройства производственных мастерских при ШИЗО устанавливается заданием на проектирование. | |
8.19.3 Требования к оборудованию, оснащению мебелью и инвентарем помещений ШИЗО приведены в приложении А и [15].
8.20 Центр трудовой адаптации осужденных
8.20.1 Процент вывода осужденных к отбыванию лишения свободы в тюрьме на работу в ЦТАО следует устанавливать заданием на проектирование. Процент вывода осужденных на работу следует принимать не более 85% численности осужденных к отбыванию лишения свободы в тюрьме при работе в две смены.
8.20.2 В составе ЦТАО создаются рабочие участки численностью до 100 осужденных. При численности работающих осужденных более 100 человек предусматривается создание цеха, состоящего из одного или нескольких рабочих участков.
8.20.3 ЦТАО может предусматриваться сблокированным со зданием режимного корпуса тюрьмы либо в виде отдельно стоящего здания, соединенного со зданием режимного корпуса отапливаемым переходом в соответствии с 6.9.
8.20.4 В здании ЦТАО предусматриваются средства вертикального транспорта в соответствии с 4.12.
8.20.5 Состав и площади помещений здания ЦТАО следует принимать по таблице 8.12.
Таблица 8.12
|
Наименование помещения |
Площадь помещения, м2, не менее, при лимите наполнения тюрьмы, чел. | ||||
|
До 250 включ. |
Св. 250 до 500 включ. |
Св. 500 до 750 включ. |
Св. 750 до 1000 включ. |
Св. 1000 до 1500 включ. | |
|
1 Комната обыска 1 |
10,0 | ||||
|
2 Комната младшего инспектора (оператора СОТ) |
10,0 | ||||
|
3 Кабинет оперативного работника и работника отдела режима |
12,0 | ||||
|
4 Кабинет заместителя начальника ЦТАО |
12,0 | ||||
|
5 Кабинет главного технолога 2 |
10,0 | ||||
|
6 Кабинет начальника цеха 3 |
10,0 | ||||
|
7 Кабинет начальника учебно-производственного участка 4 |
10,0 | ||||
|
8 Кабинет старшего мастера 5 |
10,0 | ||||
|
9 Комната мастеров 6 |
6,0 на одного человека, но не менее 10,0 | ||||
|
10 Комната старших инженеров, инженеров |
6,0 на одного человека, но не менее 10,0 | ||||
|
11 Рабочая камера 7, 8 |
4,0 на одно рабочее место | ||||
|
12 Помещение хранения суточного запаса сырья 8 |
0,07 на одно рабочее место, но не менее 10,0 | ||||
|
13 Помещение временного хранения готовой продукции 8 |
0,12 на одно рабочее место, но не менее 12,0 | ||||
|
14 Помещение временного хранения отходов производства 8 |
0,02 на одно рабочее место, но не менее 6,0 | ||||
|
15 Помещение хранения инструмента 8 |
0,03 на одно рабочее место, но не менее 6,0 | ||||
|
16 Комната мытья и хранения посуды 9 |
0,15 на одного осужденного, но не менее 8,0 | ||||
|
17 Комната приема пищи и отдыха персонала |
12,0 | ||||
|
18 Душевая для персонала 10 |
1,7 на одну душевую сетку | ||||
|
19 Уборная для персонала 11 |
2,0 | ||||
|
20 Помещение хранения уборочного инвентаря |
0,8 на 100 м2 общей площади, но не менее 4,0 | ||||
|
21 Комната инженера по производственному обучению, инженера по охране труда и технике безопасности 2 |
12,0 | ||||
|
22 Кабинет профессионально-технического и специального профиля 12 |
2,4 на одно ученическое место | ||||
|
23 Слесарно-механическая мастерская |
12,0 |
18,0 |
18,0 |
24,0 |
30,0 |
|
24 Помещение для наглядных пособий 13 |
18,0 | ||||
|
1 Следует предусматривать на каждом этаже здания ЦТАО. Данное помещение следует размещать в непосредственной близости от входа осужденных в здание (или при выходе из переходной галереи, лестничной клетки и т.п.). Комнату обыска следует оборудовать одним умывальником и одним унитазом (без кабины). 2 Предусматривается при наличии в штатном расписании ЦТАО данной должности. 3 Предусматривается один кабинет на цех. 4 Предусматривается один кабинет на учебно-производственный участок. 5 Количество должностей старших мастеров определяется из расчета один старший мастер на 50 рабочих. 6 Предусматривается на каждом этаже. Количество должностей мастеров определяется из расчета один мастер на 25 рабочих. 7 Вместимость рабочих камер следует принимать с учетом покамерного вывода осужденных на работу, не допуская одновременного пребывания в одной рабочей камере осужденных, содержащихся в разных камерах. Число рабочих камер следует устанавливать исходя из двухсменного режима работы ЦТАО. Рабочая камера оборудуется одним унитазом, располагаемым в изолированной кабине, одним умывальником вне кабины, камерным столом для приема пищи со скамейками с числом посадочных мест, равным вместимости камеры. Норма площади указана без учета площади, необходимой для размещения санитарной кабины с унитазом и камерного стола со скамейками. 8 Норма площади указана для картонажных, плетеночных и швейных работ. При ином профиле производства норма площади определяется заданием на проектирование. 9 Предусматривается на каждом этаже с наличием рабочих камер. 10 Следует оборудовать одной душевой сеткой на 15 чел. персонала. 11 Следует предусматривать на каждом этаже и оборудовать одним унитазом и одним умывальником в тамбуре. 12 В общую площадь кабинета необходимо дополнительно включать площадь для размещения технологического оборудования по профилю обучения. Число и вместимость кабинетов профессионально-технического и специального профиля следует принимать по заданию на проектирование в зависимости от профиля производства, не допуская одновременного пребывания в одном кабинете осужденных из разных камер (рабочих камер). 13 Помещение для наглядных пособий следует предусматривать из расчета одно помещение на четыре кабинета профессионально-технического и специального профиля. Примечания 1 Состав и площади помещений ЦТАО тюрьмы могут уточняться заданием на проектирование в зависимости от штатного расписания учреждения и профиля производства. 2 Допускается увеличивать площадь комнаты младшего инспектора (оператора СОТ) исходя из условия, что на каждое дополнительное рабочее место оператора СОТ необходимо добавлять 8,0 м2 площади помещения. Число рабочих мест в комнате младшего инспектора (оператора СОТ) следует определять исходя из условия обслуживания с одного автоматизированного рабочего места оператора СОТ ориентировочно 30 видеокамер. 3 При наличии в штатном расписании учреждения должности главного экономиста ЦТАО в составе помещений административного здания или здания ЦТАО следует предусматривать кабинет для его размещения площадью не менее 10,0 м2. | |||||
8.21 Пищеблок
8.21.1 Пищеблок рассчитывается на гарантированное трехразовое питание всех осужденных из расчета четырех условных блюд на человека в сутки (холодное блюдо, первое блюдо, второе блюдо и сладкое блюдо, горячие и холодные напитки не учитываются).
8.21.2 Доставка пищи для осужденных из здания пищеблока осуществляется с помощью термосов, перемещаемых по отапливаемым переходам (6.9) на тележках. В здании пищеблока следует предусматривать грузовые лифты (подъемники) для доставки термосов и тележек к путям транспортирования (4.12).
8.21.3 Размещение, устройство и содержание помещений пищеблока следует выполнять с учетом требований СанПиН 2.3/2.4.3590.
8.21.4 Состав и площади помещений здания пищеблока следует принимать по таблице 8.13.
Таблица 8.13
|
Наименование помещения |
Площадь помещения, м2, не менее, при лимите наполнения тюрьмы, чел. | ||||
|
До 250 включ. |
Св. 250 до 500 включ. |
Св. 500 до 750 включ. |
Св. 750 до 1000 включ. |
Св. 1000 до 1500 включ. | |
|
1 Комната заведующего пищеблоком |
10,0 |
10,0 |
10,0 |
10,0 |
10,0 |
|
2 Горячий цех 1 |
30,0 - 45,0 |
45,0 - 65,0 |
65,0 - 75,0 |
75,0 - 90,0 |
90,0 - 120,0 |
|
3 Помещение для нарезки и хранения хлеба |
10,0 |
12,0 |
16,0 |
16,0 |
23,0 |
|
4 Овощной цех (с двумя отделениями) |
14,0/10,0 |
20,0/16,0 |
20,0/20,0 |
24,0/27,0 |
28,0/33,0 |
|
5 Мясной цех |
16,0 |
20,0 |
22,0 |
26,0 |
32,0 |
|
6 Рыбный цех |
16,0 |
20,0 |
22,0 |
26,0 |
32,0 |
|
7 Холодный цех |
15,0 |
18,0 |
22,0 |
22,0 |
24,0 |
|
8 Цех готовой продукции |
8,0 |
10,0 |
12,0 |
12,0 |
12,0 |
|
9 Моечная кухонной посуды |
6,0 |
8,0 |
10,0 |
12,0 |
16,0 |
|
10 Кладовая сухих продуктов |
10,0 |
12,0 |
12,0 |
15,0 |
15,0 |
|
11 Холодильные камеры пищевых продуктов |
10,0 |
16,0 |
22,0 |
28,0 |
36,0 |
|
12 Помещение фреоновой установки 2 |
8,0 |
8,0 |
8,0 |
8,0 |
8,0 |
|
13 Помещение хранения отходов в зоне цехов |
4,0 |
4,0 |
6,0 |
8,0 |
8,0 |
|
14 Моечная бачков при помещении хранения отходов |
4,0 |
4,0 |
4,0 |
6,0 |
6,0 |
|
15 Помещения обработки термосов: | |||||
|
- моечная термосов |
8,0 |
10,0 |
12,0 |
14,0 |
16,0 |
|
- помещение для сушки и хранения термосов |
8,0 |
10,0 |
12,0 |
14,0 |
16,0 |
|
16 Помещение хранения и мытья тележек |
6,0 |
6,0 |
10,0 |
10,0 |
12,0 |
|
17 Загрузочная |
14,0 |
18,0 |
20,0 |
22,0 |
24,0 |
|
18 Комната приема пищи и отдыха персонала 3 |
12,0 |
12,0 |
12,0 |
14,0 |
16,0 |
|
19 Экспедиция |
6,0 |
6,0 |
6,0 |
8,0 |
10,0 |
|
20 Помещение хранения мягкого, твердого инвентаря и оборудования |
6,0 |
8,0 |
10,0 |
10,0 |
12,0 |
|
21 Гардеробная для персонала 4 |
0,6 на одного работника пищеблока, но не менее 4,0 | ||||
|
22 Душевая для персонала 5 |
1,7 на одну душевую сетку | ||||
|
23 Уборная для персонала 6 |
2,0 |
2,0 |
2,0 |
2,0 |
2,0 |
|
24 Комната кухонного наряда |
8,0 |
10,0 |
10,0 |
10,0 |
12,0 |
|
25 Помещение хранения уборочного инвентаря |
0,8 на 100 м2 общей площади, но не менее 4,0 | ||||
|
1 Площадь помещения указана интервалом площадей на минимальный и максимальный лимиты наполнения тюрьмы по соответствующей графе и зависит от количества оборудования, устанавливаемого в помещении. 2 Помещение предусматривается при необходимости исходя из технических параметров применяемого оборудования и его размещения. 3 При числе работающих до 10 чел. в смену вместо комнаты приема пищи и отдыха персонала допускается предусматривать в гардеробной дополнительное место площадью 6,0 м2 для установки стола для приема пищи. 4 Гардеробные принимаются из расчета хранения одежды в них 100% общего (списочного) числа работающих в пищеблоке с устройством одного закрытого двойного шкафа на одного работающего. 5 Следует оборудовать одной душевой сеткой на 10 чел. производственного персонала. Число душевых сеток принимается из расчета на 50% производственного персонала, работающего в наиболее многочисленной смене. Число работающих в наиболее многочисленной смене принимается равным 60% общего числа работающих. 6 Следует оборудовать одним унитазом и одним умывальником в тамбуре. Примечание - В строке 4 в числителе указана норма площади овощного цеха, в знаменателе - отделения хранения и первичной обработки овощей. | |||||
8.21.5 Требования к составу и количеству технологического оборудования, оснащению помещений здания пищеблока мебелью и инвентарем приведены в приложении А, [15] и [19].
8.22 Прачечная
8.22.1 Производительность прачечной тюрьмы следует принимать из расчета: 0,29 кг сухого белья в сутки на одного осужденного; 2,3 кг сухого белья в сутки на одну койку в стационаре; 0,4 кг сухого белья в сутки на одно посещение амбулатории.
Приведенные показатели для расчета производительности прачечных включают объемы специальной одежды и белья для персонала пищеблока, медицинской части (врачебного, фельдшерского здравпункта), прачечной.
8.22.2 В здании прачечной предусматриваются средства вертикального транспорта в соответствии с 4.12.
8.22.3 Прачечные следует предусматривать механизированными, производительностью при двухсменном режиме работы до 260 кг сухого белья в смену.
8.22.4 Состав и показатели площадей помещений прачечных следует принимать по таблице 8.14.
Таблица 8.14
|
Наименование помещения |
Площадь помещения, м2, не менее |
|
Прачечная | |
|
1 Помещение приемки, сортировки и метки общего грязного белья |
7,0 на 100 кг сухого белья в смену, но не менее 7,0 |
|
2 Ожидальная для сдающих общее грязное белье |
2,5 на 100 кг сухого белья в смену, но не менее 6,0 |
|
3 Помещение для приемки, сортировки и метки больничного грязного белья |
7,0 на 100 кг сухого белья в смену, но не менее 7,0 |
|
4 Ожидальная для сдающих больничное (инфицированное больничное) грязное белье |
2,5 на 100 кг сухого белья в смену, но не менее 6,0 |
|
5 Помещения для дезинфекции постельных принадлежностей и верхней одежды 1: | |
|
- помещение временного хранения постельных принадлежностей и верхней одежды при "грязном" отделении дезкамеры |
8,0 на одну дезкамеру |
|
- помещение временного хранения постельных принадлежностей и верхней одежды при "чистом" отделении дезкамеры |
8,0 на одну дезкамеру |
|
- приемная дезкамеры |
10,0 на одну дезкамеру |
|
- "грязное" отделение дезкамеры |
Определяется по расстановке оборудования |
|
- "чистое" отделение дезкамеры | |
|
- помещение для дезинфицирующих средств |
4,0 |
|
- душевая для дезинфектора (одна душевая сетка) |
2,3 |
|
- помещение для разведения дезинфицирующих средств |
4,0 |
|
- помещение выдачи постельных принадлежностей и верхней одежды |
10,0 |
|
6 Стиральная общего белья |
Определяется по расстановке оборудования |
|
7 Стиральная больничного белья | |
|
8 Кладовая стиральных материалов |
2,0 на 100 кг сухого белья в смену, но не менее 4,0 |
|
9 Помещение приготовления стиральных растворов |
3,2 на 100 кг сухого белья в смену, но не менее 4,0 |
|
10 Склад материального обеспечения |
4,0 на 100 кг сухого белья в смену, но не менее 4,0 |
|
11 Сушильная и гладильная |
Определяется по расстановке оборудования |
|
12 Помещение для разборки, починки и хранения чистого белья |
9,0 на 100 кг сухого белья в смену, но не менее 9,0 |
|
13 Ожидальная для получающих чистое белье |
2,0 на 100 кг сухого белья в смену, но не менее 6,0 |
|
14 Помещение выдачи чистого белья |
2,0 на 100 кг сухого белья в смену, но не менее 6,0 |
|
15 Ремонтно-механическая мастерская |
5,0 на 100 кг сухого белья в смену, но не менее 8,0 |
|
16 Комната заведующего прачечной |
10,0 |
|
17 Гардеробная персонала "чистых" цехов: |
0,3 на одного человека, но не менее 3,0 |
|
- душевая при гардеробной "чистых" цехов 2 |
1,7 на одну душевую сетку |
|
18 Гардеробная персонала "грязных" цехов: | |
|
- "чистое" отделение гардеробной |
0,3 на одного человека, но не менее 3,0 |
|
- "грязное" отделение гардеробной |
0,3 на одного человека, но не менее 3,0 |
|
- душевая при гардеробной "грязных" цехов 2 |
2,3 на одну душевую сетку |
|
19 Комната приема пищи и отдыха персонала 3 |
1,0 на одного человека, но не менее 12,0 |
|
20 Центральная кладовая хранения обменного фонда постельного белья |
3,0 на 100 кг сухого белья в смену, но не менее 10,0 |
|
21 Помещение обменного фонда матрасов, одежды, белья, головных уборов и обуви |
0,025 на одного осужденного, но не менее 12,0 |
|
22 Уборная персонала "чистых" цехов 4 |
2,0 |
|
23 Уборная персонала "грязных" цехов 4 |
2,0 |
|
24 Помещение хранения уборочного инвентаря |
0,8 на 100 м2 общей площади, но не менее 4,0 |
|
25 Помещение хранения тележек |
1,5 на 100 кг сухого белья в смену, но не менее 4,0 |
|
Мастерские по ремонту одежды и обуви | |
|
26 Мастерская: | |
|
- по ремонту обуви |
3,0 на одно рабочее место, но не менее 6,0 |
|
- по ремонту одежды |
5,0 на одно рабочее место, но не менее 6,0 |
|
27 Кладовая при мастерской: | |
|
- одежды |
1,5 на одно рабочее место, но не менее 3,0 |
|
- обуви |
1,5 на одно рабочее место, но не менее 3,0 |
|
1 Следует предусматривать из расчета одна рабочая и одна резервная дезкамера. 2 Следует оборудовать одной душевой сеткой на 15 работающих в каждой смене. 3 При числе работающих до 10 чел. в смену вместо комнаты приема пищи и отдыха персонала допускается предусматривать в гардеробных (для гардеробной персонала "грязных" цехов - в "чистом" отделении гардеробной) дополнительное место площадью 6,0 м2 для установки стола для приема пищи. 4 Следует оборудовать одним унитазом и одним умывальником в тамбуре. Примечания 1 Режим работы прачечной принимается двухсменный. По заданию на проектирование допускается предусматривать односменный режим работы прачечной. 2 Для персонала "грязных" цехов прачечной гардеробные и душевые устраиваются по типу санпропускника. 3 Стирку и дезинфекцию инфицированного больничного грязного белья следует осуществлять в проходных стиральных машинах, устанавливаемых в стиральной больничного белья. При этом помещение стиральной больничного белья разделяется на "чистую" и "грязную" зоны, между которыми следует предусматривать санитарный шлюз (оборудованный одной душевой сеткой) площадью не менее 2,3 м2. Стирка неинфицированного больничного белья может осуществляться в обычных стиральных машинах (непроходного типа). | |
8.22.5 Планировка помещений прачечной должна обеспечивать непрерывность технологического процесса, исключая пересечения линий движения чистого и грязного белья, грязного больничного и грязного общего белья. Помещения "чистой" и "грязной" частей прачечной следует изолировать капитальной стеной или перегородкой. Эти помещения могут сообщаться только через дверь с уплотнением в притворах.
8.22.6 Обособленными наружными входами следует обеспечивать ожидальные:
- сдающих общее грязное белье;
- сдающих больничное (инфицированное больничное) грязное белье;
- получающих чистое белье.
8.22.7 Помещение для разборки, починки и хранения чистого белья следует размещать смежно с помещением сушильной и гладильной.
8.22.8 Требования к оборудованию, оснащению мебелью и инвентарем помещений прачечной приведены в приложении А и [15].
8.22.9 Размещение, устройство и содержание помещений прачечной следует выполнять с учетом требований СП 2.1.3678.
8.23 Медицинская часть
8.23.1 В тюрьмах при лимите наполнения тюрьмы более 500 осужденных следует предусматривать медицинские части с амбулаторией и стационаром, при лимите наполнения свыше 250 до 500 (включительно) осужденных следует предусматривать врачебный здравпункт, а при лимите наполнения до 250 (включительно) осужденных - фельдшерские здравпункты.
Возможность сблокированного размещения зданий (помещений, блоков помещений) медицинского назначения в тюрьмах со зданиями (блоками помещений) иного назначения должна определяться при условии соблюдения требований действующих санитарных правил и норм, а также противопожарных и иных требований и определяться заданием на проектирование.
8.23.2 Процент охвата стационарным и амбулаторным лечением осужденных, содержащихся в тюрьме, следует принимать в соответствии с таблицей 7.1.
8.23.3 Состав и площади помещений медицинской части с амбулаторией и стационаром, врачебного здравпункта следует принимать по таблице 8.15.
Таблица 8.15
|
Наименование помещения |
Площадь помещения, м2, не менее, при лимите наполнения тюрьмы, чел. | ||||
|
До 250 включ. |
Св. 250 до 500 включ. |
Св. 500 до 750 включ. |
Св. 750 до 1000 включ. |
Св. 1000 до 1500 включ. | |
|
Амбулатория | |||||
|
1 Ожидальная |
- |
10,0 |
10,0 |
12,0 |
12,0 |
|
2 Одноместное помещение для кратковременного нахождения при ожидальной |
- |
Три помещения по 4,0 |
Три помещения по 4,0 |
Четыре помещения по 4,0 |
Пять помещений по 4,0 |
|
3 Кабинет начальника медицинской части - врача |
- |
- |
18,0 |
18,0 |
18,0 |
|
4 Кабинет начальника врачебного здравпункта |
12,0 |
12,0 |
- |
- |
- |
|
5 Кабинет врача-терапевта (врача-специалиста) |
12,0 |
12,0 |
12,0 |
12,0 |
12,0 |
|
6 Процедурная |
12,0 |
12,0 |
12,0 |
12,0 |
12,0 |
|
7 Кабинет врача общей практики |
- |
- |
12,0 |
12,0 |
12,0 |
|
8 Кабинет врача-психиатра |
12,0 |
12,0 |
12,0 |
12,0 |
12,0 |
|
9 Кабинет врача-хирурга: |
17,0 |
17,0 |
17,0 |
17,0 |
17,0 |
|
- перевязочная "чистая" |
16,0 |
16,0 |
16,0 |
16,0 |
16,0 |
|
- перевязочная "гнойная" |
16,0 |
16,0 |
16,0 |
16,0 |
16,0 |
|
10 Кабинет врача-фтизиатра |
- |
- |
- |
12,0 |
12,0 |
|
11 Кабинет дерматовенеролога: |
17,0 |
17,0 |
17,0 |
17,0 |
17,0 |
|
- кабина люминесцентной диагностики |
6,0 |
6,0 |
6,0 |
6,0 |
6,0 |
|
12 Физиотерапевтический кабинет (6,0 м2 на одно место): |
12,0 |
12,0 |
18,0 |
18,0 |
24,0 |
|
- подсобное помещение физиотерапевтического кабинета |
8,0 |
8,0 |
8,0 |
8,0 |
8,0 |
|
13 Стоматологический кабинет: | |||||
|
- помещение для хирургического приема |
- |
- |
- |
14,0 |
14,0 |
|
- помещение для терапевтического приема |
14,0 |
14,0 |
14,0 |
14,0 |
14,0 |
|
- стерилизационная |
- |
- |
- |
6,0 |
6,0 |
|
14 Кабинет рентгенодиагностики: | |||||
|
- процедурная с рентгенодиагностическим комплексом с полным набором штативов (поворотный стол - штатив, стол снимков, стойка снимков, штатив снимков) и креслом для снимков зубов 1 |
- |
- |
51,0 |
51,0 |
51,0 |
|
- комната управления |
- |
- |
6,0 |
6,0 |
6,0 |
|
- инженерная |
- |
- |
12,0 |
12,0 |
12,0 |
|
- кабина для приготовления бария |
- |
- |
3,0 |
3,0 |
3,0 |
|
- фотолаборатория 2 |
- |
- |
8,0 |
8,0 |
8,0 |
|
- помещение временного хранения рентгеновской пленки (не более 100 кг) |
- |
- |
6,0 |
6,0 |
6,0 |
|
- кабина для раздевания 3 |
- |
- |
3,0 |
3,0 |
3,0 |
|
- кабинет врача-рентгенолога |
- |
- |
9,0 |
9,0 |
9,0 |
|
15 Флюорографический кабинет: | |||||
|
- процедурная |
14,0 |
14,0 |
14,0 |
14,0 |
14,0 |
|
- кабина для раздевания 3 |
3,0 |
3,0 |
3,0 |
3,0 |
3,0 |
|
- фотолаборатория 2 |
6,0 |
6,0 |
6,0 |
6,0 |
6,0 |
|
- комната управления 4 |
6,0 |
6,0 |
6,0 |
6,0 |
6,0 |
|
16 Кабинет функциональной диагностики |
18,0 |
18,0 |
18,0 |
18,0 |
18,0 |
|
17 Лаборатория: | |||||
|
- комната для забора крови |
9,0 |
9,0 |
9,0 |
12,0 |
12,0 |
|
- помещение приема биоматериала для лабораторных исследований 20 |
8,0 |
8,0 |
8,0 |
8,0 |
8,0 |
|
- лаборантская |
12,0 |
12,0 |
12,0 |
18,0 |
18,0 |
|
- моечная 20 |
8,0 |
8,0 |
10,0 |
10,0 |
10,0 |
|
- моечная с автоклавной 20 |
- |
- |
- |
12,0 |
12,0 |
|
18 Кабинет фельдшера |
12,0 |
12,0 |
12,0 |
12,0 |
12,0 |
|
19 Стерилизационная 20: |
6,0 |
6,0 |
6,0 |
6,0 |
6,0 |
|
- помещение приема и хранения нестерильного инструмента | |||||
|
- комната разборки, мытья и сушки медицинского инструмента |
8,0 |
8,0 |
12,0 |
12,0 |
15,0 |
|
- помещение комплектации и упаковки медицинского инструмента |
6,0 |
6,0 |
8,0 |
8,0 |
10,0 |
|
- помещение хранения моющих и дезинфицирующих средств и упаковочного материала |
6,0 |
6,0 |
6,0 |
6,0 |
6,0 |
|
- санитарный шлюз для персонала 5 |
4,0 |
4,0 |
4,0 |
4,0 |
4,0 |
|
- стерильная зона стерилизационной |
12,0 |
12,0 |
14,0 |
14,0 |
16,0 |
|
- комната хранения и выдачи инструментария |
6,0 |
6,0 |
9,0 |
9,0 |
12,0 |
|
- помещение хранения уборочного инвентаря |
4,0 |
4,0 |
4,0 |
4,0 |
4,0 |
|
20 Комната дезинфектора |
6,0 |
6,0 |
6,0 |
6,0 |
6,0 |
|
21 Помещение суточного хранения дезинфицирующих средств |
4,0 |
4,0 |
4,0 |
4,0 |
4,0 |
|
22 Помещение для разведения дезинфицирующих средств |
4,0 |
4,0 |
4,0 |
4,0 |
4,0 |
|
23 Помещение хранения уборочного инвентаря |
0,8 на 100 м2 общей площади, но не менее 4,0 | ||||
|
24 Уборная 6: | |||||
|
- мужская |
3,0 | ||||
|
- женская |
2,0 | ||||
|
25 Кабинет проведения профилактических прививок |
- |
- |
- |
12,0 |
12,0 |
|
26 Кабинет выдачи таблетированных лекарственных форм |
12,0 |
12,0 |
12,0 |
12,0 |
12,0 |
|
Стационар | |||||
|
27 Ожидальная |
10,0 |
10,0 |
10,0 |
10,0 |
10,0 |
|
28 Приемная |
10,0 |
10,0 |
10,0 |
12,0 |
12,0 |
|
29 Санпропускник 20: | |||||
|
- раздевальная |
3,0 |
3,0 |
3,0 |
3,0 |
3,0 |
|
- ванная комната 7 |
8,0 |
8,0 |
8,0 |
8,0 |
8,0 |
|
- одевальная |
3,0 |
3,0 |
3,0 |
3,0 |
3,0 |
|
- помещение временного хранения вещей |
3,0 |
3,0 |
3,0 |
3,0 |
3,0 |
|
30 Санитарная комната 8, 20: | |||||
|
- помещение для мытья и стерилизации суден, горшков, мытья и сушки клеенок |
4,0 |
4,0 |
4,0 |
6,0 |
6,0 |
|
- помещение временного хранения грязного белья, хранения предметов уборки и дезинфицирующих средств |
4,0 |
4,0 |
4,0 |
6,0 |
6,0 |
|
- помещение временного хранения медицинских отходов |
4,0 |
4,0 |
4,0 |
6,0 |
6,0 |
|
31 Помещение (пост) дежурной медицинской сестры |
6,0 |
6,0 |
6,0 |
6,0 |
6,0 |
|
32 Шлюз при входе в палатное отделение стационара |
6,0 |
6,0 |
6,0 |
6,0 |
6,0 |
|
33 Палата 9 |
12,0 на одну койку в одноместной палате; 8,0 на одну койку в палате на два места; 6,5 на одну койку в палате на четыре места | ||||
|
34 Санитарный узел при палате 10 |
3,0 | ||||
|
35 Процедурная |
12,0 |
12,0 |
12,0 |
12,0 |
12,0 |
|
36 Кабинет врача |
12,0 |
12,0 |
12,0 |
12,0 |
12,0 |
|
37 Кабинет дежурного врача |
10,0 |
10,0 |
10,0 |
10,0 |
10,0 |
|
38 Ванная комната 11 |
10,0 |
10,0 |
10,0 |
10,0 |
10,0 |
|
39 Комната мытья и хранения посуды 12 |
0,15 на одного больного в стационаре, но не менее 8,0 | ||||
|
40 Комната подогрева пищи и хранения продуктов питания |
0,12 на одного больного в стационаре, но не менее 8,0 | ||||
|
41 Помещение ректороманоскопии 13 |
18,0 |
18,0 |
18,0 |
18,0 |
18,0 |
|
42 Уборная для персонала 14 |
2,0 | ||||
|
43 Прогулочные дворы при стационаре 15 |
6,0 на одного осужденного, но не менее 20,0 | ||||
|
Медицинский изолятор (при стационаре) | |||||
|
44 Приемно-смотровой бокс 16 |
15,0 |
15,0 |
15,0 |
15,0 |
15,0 |
|
45 Санпропускник 20: | |||||
|
- раздевальная |
3,0 |
3,0 |
3,0 |
3,0 |
3,0 |
|
- ванная комната с душевой сеткой, ножной ванной и умывальником |
8,0 |
8,0 |
8,0 |
8,0 |
8,0 |
|
- одевальная |
3,0 |
3,0 |
3,0 |
3,0 |
3,0 |
|
- помещение временного хранения вещей |
3,0 |
3,0 |
3,0 |
3,0 |
3,0 |
|
46 Процедурная |
12,0 |
12,0 |
12,0 |
12,0 |
12,0 |
|
47 Шлюз при входе в палатное отделение медицинского изолятора |
6,0 |
6,0 |
6,0 |
6,0 |
6,0 |
|
48 Боксированная палата 17 (8,0 м2 на одну койку) |
Два помещения по 16,0 |
Два помещения по 16,0 |
Два помещения по 16,0 |
Три помещения по 16,0 |
Четыре помещения по 16,0 |
|
49 Санитарный узел при боксированной палате 10 |
3,0 | ||||
|
50 Шлюз при боксированной палате |
3,0 |
3,0 |
3,0 |
3,0 |
3,0 |
|
51 Санитарная комната 8, 20: | |||||
|
- помещение для мытья и стерилизации суден, горшков, мытья и сушки клеенок |
4,0 |
4,0 |
4,0 |
4,0 |
4,0 |
|
- помещение временного хранения грязного белья, хранения предметов уборки и дезинфицирующих средств |
4,0 |
4,0 |
4,0 |
4,0 |
4,0 |
|
- помещение временного хранения медицинских отходов |
4,0 |
4,0 |
4,0 |
4,0 |
4,0 |
|
52 Комната для подогрева пищи, мытья и хранения посуды |
6,0 |
6,0 |
6,0 |
6,0 |
6,0 |
|
Общие помещения | |||||
|
53 Медицинский архив |
0,3 на одну койку в стационаре и 4,0 на 100 посещений в смену амбулатории, но не менее 12,0 | ||||
|
54 Помещение старшей медицинской сестры |
10,0 |
10,0 |
10,0 |
10,0 |
10,0 |
|
55 Помещение хранения наркотических средств и психотропных веществ при кабинете старшей медицинской сестры |
4,0 |
4,0 |
4,0 |
4,0 |
4,0 |
|
56 Помещение хранения расходных материалов и медикаментов |
4,0 |
4,0 |
4,0 |
4,0 |
4,0 |
|
57 Комната сестры-хозяйки |
10,0 |
10,0 |
10,0 |
10,0 |
10,0 |
|
58 Хозяйственная комната |
4,0 |
4,0 |
6,0 |
8,0 |
10,0 |
|
59 Кладовая хранения чистого белья и постельных принадлежностей 20 |
4,0 |
4,0 |
4,0 |
4,0 |
4,0 |
|
60 Комната младшего инспектора (оператора СОТ) |
10,0 |
10,0 |
10,0 |
10,0 |
10,0 |
|
61 Мужская гардеробная персонала для рабочей и домашней одежды с душевыми 18, 20 |
0,6 на одного человека, но не менее 9,0; 1,7 на одну душевую сетку | ||||
|
62 Женская гардеробная персонала для рабочей и домашней одежды с душевыми 18, 20 |
0,6 на одного человека, но не менее 9,0; 1,7 на одну душевую сетку | ||||
|
63 Гардеробная уличной одежды персонала 19, 20 |
0,08 на одного человека, но не менее 9,0 | ||||
|
64 Помещение временного хранения вещей больных 20 |
0,3 на одну койку в стационаре, но не менее 6,0 | ||||
|
65 Комната персонала 20 |
12,0 |
12,0 |
12,0 |
12,0 |
12,0 |
|
66 Помещение временного хранения грязного белья 20 |
4,0 |
4,0 |
4,0 |
4,0 |
4,0 |
|
67 Помещение временного хранения медицинских отходов 20 |
4,0 |
4,0 |
4,0 |
4,0 |
4,0 |
|
68 Уборная для персонала 14 |
2,0 | ||||
|
1 При установке в процедурной иного рентгеновского аппарата площадь процедурной следует принимать по приложению 5 СанПиН 2.6.1.1192-03. 2 Фотолабораторию не следует предусматривать при использовании аппаратов для цифровой рентгенографии и флюорографии. 3 Кабину для раздевания допускается не предусматривать. 4 Комнату управления следует предусматривать при применении флюорографического аппарата без защитной кабины. 5 Проход в помещение стерильной зоны стерилизационной осуществляется через шлюз, который оборудуется умывальником и вешалкой или шкафом для специальной одежды. 6 Следует оборудовать мужскую уборную - одним унитазом, одним писсуаром, одним умывальником в тамбуре, женскую - одним унитазом и одним умывальником в тамбуре. 7 Следует оборудовать одной душевой сеткой, одной ножной ванной и одним умывальником. 8 Все помещения в санитарной комнате следует отделять друг от друга перегородками высотой не менее 1,6 м. Помещение для временного хранения грязного белья, хранения предметов уборки и дезинфицирующих средств следует оборудовать раковиной, поливочным краном и трапом диаметром не менее 50 мм. 9 Вместимость стационара следует принимать в соответствии с таблицей 7.1. Вместимость палат следует принимать на одну койку, две койки, четыре койки. Процентное соотношение палат разной вместимости устанавливается заданием на проектирование. 10 Следует оборудовать одной душевой сеткой, одним унитазом и одним умывальником. 11 По заданию на проектирование для тяжелобольных могут предусматриваться ванные комнаты с подъемниками для гигиенической обработки больных. 12 В стационарах вместимостью до 10 чел. комнату мытья и хранения посуды допускается совмещать с комнатой подогрева пищи и хранения продуктов питания в одном помещении общей площадью 8,0 м2. 13 Следует оборудовать одним унитазом и одним умывальником (без кабины). Необходимость устройства дополнительных помещений в составе кабинета ректороманоскопии следует устанавливать заданием на проектирование. 14 Уборную следует оборудовать одним унитазом и одним умывальником в тамбуре. 15 Суммарную вместимость прогулочных дворов следует предусматривать из расчета 20% вместимости стационара медицинской части тюрьмы. Вместимость прогулочных дворов следует принимать с учетом раздельного вывода на прогулку осужденных, содержащихся в разных палатах, не допуская одновременного пребывания в одном прогулочном дворе осужденных из разных палат. 16 В состав помещения приемно-смотрового бокса входят: тамбур для входа площадью не менее 2,0 м2, помещение для осмотра больного (смотровая) площадью не менее 9,0 м2, уборная с унитазом и умывальником в тамбуре площадью не менее 2,0 м2, шлюз для входа персонала из коридора медицинского изолятора площадью не менее 2,0 м2. 17 Вместимость боксированных палат следует принимать две койки. 18 Число шкафов в гардеробных следует принимать равным 100% списочного состава персонала. Число душевых сеток принимается из расчета: не менее одной душевой сетки на 10 сотрудников медицинского изолятора; для остальных сотрудников - не менее одной душевой сетки на 15 чел., работающих в наиболее многочисленной смене. 19 Количество крючков в гардеробной следует принимать равным 60% списочного состава персонала. 20 Площади помещений допускается уточнять заданием на проектирование, с учетом: габаритов и расстановки оборудования, числа лиц, которые одновременно могут находиться в помещении, последовательности технологических процессов, расстояний, обеспечивающих расстановку оборудования, а также передвижения пациентов и работников. Примечания 1 Женскую уборную и гардеробную персонала для рабочей и домашней одежды с душевыми следует предусматривать при наличии в штатном расписании сотрудников женского пола. 2 Число посещений амбулатории в наибольшую смену следует принимать равным 60% общего числа посещений в день. 3 В тюрьмах с лимитом наполнения до 750 чел. хирургический прием больных врачом-стоматологом осуществляется в помещении терапевтического приема. 4 Допускается увеличивать площадь комнаты младшего инспектора (оператора СОТ) исходя из условия, что на каждое дополнительное рабочее место оператора СОТ необходимо добавлять 8,0 м2 площади помещения. Число рабочих мест в комнате младшего инспектора (оператора СОТ) следует определять исходя из условия обслуживания с одного автоматизированного рабочего места оператора СОТ ориентировочно 30 видеокамер. | |||||
Состав помещений фельдшерского здравпункта определяется заданием на проектирование в каждом конкретном случае, при этом площадь помещений принимается по таблице 8.15 с учетом требований СП 2.1.3678.
8.23.4 Помещение суточного хранения дезинфицирующих средств следует предусматривать смежным с комнатой дезинфектора.
8.23.5 Мероприятия по сбору, временному накоплению, переработке, обеззараживанию и утилизации отходов здравоохранения (медицинских отходов) в тюрьмах следует предусматривать в соответствии с СанПиН 2.1.3684.
Потоки материалов с высокой степенью эпидемиологической опасности (медицинские и пищевые отходы, использованный инструментарий, грязное белье и др.) должны быть максимально изолированы от остальных потоков с помощью планировочных решений или специального оборудования (закрытые тележки, герметичные контейнеры для отходов, проходные стерилизаторы и моечные машины, барьерные стиральные машины, лифты и др.).
8.23.6 При проектировании медицинских частей, врачебных и фельдшерских здравпунктов следует соблюдать требования СП 2.1.3678, СП 158.13330, СП 118.13330.
8.23.7 Стационар должен размещаться в одном здании (корпусе) с амбулаторией медицинской части тюрьмы.
При размещении медицинской части в многоэтажном здании взаимное расположение стационара и амбулатории необходимо принимать:
- при наличии надземной переходной галереи, соединяющей основные режимные здания с медицинской частью, амбулаторию следует размещать на этаже, к которому примыкает переходная галерея, стационар - на других этажах;
- в остальных случаях - амбулаторию на первом этаже, стационар - на вышележащих этажах.
Не следует предусматривать размещение палат стационаров на верхнем этаже четырехэтажного здания медицинской части.
8.23.8 В составе стационара следует предусматривать санпропускник, палатное отделение и медицинский изолятор.
8.23.9 Палатное отделение может включать одну или несколько палатных секций. В составе палатной секции следует предусматривать палаты и лечебно-вспомогательные помещения.
В палатной секции стационаров (за исключением боксированных палат медицинских изоляторов) основной структурной единицей является палата. В медицинских изоляторах основная структурная единица - боксированная палата.
8.23.10 При новом строительстве палатное отделение (палатная секция) предусматривается непроходным. При этом допускается размещение выходов в общие лестничные клетки из палатного отделения для обеспечения эвакуации людей. Организация выходов в лестничные клетки из палатного отделения предусматривается с соблюдением требований СП 2.1.3678.
При входе в палатное отделение (палатную секцию) предусматривается шлюз, при выходе из лифтов в указанные помещения - шлюз или лифтовой холл.
Палатную секцию (секции) следует размещать обособленно от остальных помещений медицинской части и отделять от последних устанавливаемой в общем коридоре отсекающей поперечной решетчатой металлической перегородкой с решетчатой дверью (9.3.3). Расположение отсекающей решетчатой перегородки относительно шлюза при входе в палатную секцию не нормируется.
8.23.11 Во вновь строящихся зданиях медицинского назначения (при их исполнении в два этажа и выше) следует предусматривать лифты, подъемные устройства с учетом требований 4.12, 8.23.5.
8.23.12 Здания медицинского назначения оснащаются инструментарием, оборудованием и инвентарем в соответствии с требованиями нормативных актов, регламентирующих оснащение соответствующих медицинских объектов, медицинское обеспечение лиц, содержащихся в исправительных учреждениях, а также в соответствии с требованиями, устанавливаемыми заданием на проектирование (медико-техническим заданием).
Хозяйственно-складская зона
8.24 Общие требования к объектам хозяйственно-складской зоны
8.24.1 В составе хозяйственно-складской зоны тюрьмы допускается предусматривать здания и сооружения, перечисленные в 6.11.
Хозяйственно-складскую зону тюрьмы следует проектировать единой. Здания складов необходимо группировать по видам хранящегося имущества (продовольственного, вещевого, материально-технического).
Допускается хранение различных видов имущества в одном здании. В этом случае складские помещения должны быть разделены по принадлежности и иметь обособленные входы.
Требования к проектированию складских зданий приведены в СП 56.13330, [20], [21].
В составе помещений складских зданий следует предусматривать необходимые вспомогательные и бытовые помещения (загрузочные, комнаты заведующего складом и кладовщиков, помещения хранения технических средств передвижения, помещения хранения уборочного инвентаря, уборные, гардеробные и др.). По заданию на проектирование в складах допускается предусматривать экспедиции, выделенные в отдельные помещения, вместимость которых определяется исходя из среднесуточного получения-отправки имущества.
8.24.2 Вместимость продовольственных и вещевых складов определяется из условий надежной круглогодовой транспортной связи объекта с районными распределительными складами. В северных районах с навигационной транспортной связью или других отдаленных районах, связь с которыми затруднена или ограничена климатическими условиями, вместимость складов определяется из расчета запаса продовольствия и промышленных товаров на период бездорожья.
В случае расположения тюрьмы в промышленных центрах или вблизи городов объемы хозяйственно-складского строительства определяются по местным условиям, с учетом возможности получения продовольственных товаров, свежих, квашеных и соленых овощей, вещевого имущества, промышленных товаров и хозяйственного инвентаря непосредственно с существующих складов указанных населенных пунктов.
Вместимость складских помещений необходимо принимать в соответствии со следующими положениями:
- продовольственные склады - из расчета трехмесячного запаса продовольствия при круглогодовой транспортной связи и годового запаса при навигационном транспортировании;
- овощехранилища и квасильно-засолочные пункты - из расчета девятимесячного запаса и годового запаса при навигационном транспортировании или в случаях, когда закладка этих продуктов проводится в полном объеме с полей, а также в случаях, когда продукты засыпаются на годовую потребность по планам межобластных перевозок;
- холодильные камеры для скоропортящихся продуктов - из расчета запаса продуктов от 2 недель до 3 мес в зависимости от местных условий;
- склады вещевого имущества, непродовольственных товаров и хозяйственного инвентаря - из расчета годового запаса.
В районах с большой продолжительностью навигационного периода, а также при наличии базисных распределительных складов складские помещения, овощехранилища и квасильно-засолочные пункты принимаются соответственно на меньший запас, размеры которого следует устанавливать при привязке данных зданий и помещений к местным условиям строительства.
Вместимость складских помещений следует принимать исходя из лимита наполнения тюрьмы.
8.24.3 Для предварительных расчетов вместимость и площади зданий и сооружений хозяйственно-складской зоны тюрьмы (без учета вспомогательных и бытовых помещений) следует принимать по таблице 8.16.
Таблица 8.16
|
Наименование здания (сооружения) |
Вместимость на 100 осужденных, т |
Площадь на 100 осужденных, м2 |
|
1 Хлебопекарня (т/сут) |
0,07 |
- |
|
2 Продовольственный склад: | ||
|
- при 3-месячном запасе продуктов |
7,5 - 8,8 |
17,5 - 20,4 |
|
- при годовом запасе продуктов |
30,0 - 35,0 |
70,0 - 81,4 |
|
3 Овощехранилище: | ||
|
- при 9-месячном запасе овощей |
21,8 - 24,5 |
38,0 - 42,0 |
|
- при годовом запасе овощей |
29,0 - 32,6 |
50,0 - 55,0 |
|
4 Квасильно-засолочный пункт: | ||
|
4.1 При 9-месячном запасе |
3,0 - 3,8 |
5,7 - 7,2 |
|
в том числе: | ||
|
- квашеной капусты |
2,4 - 3,0 |
3,9 - 4,8 |
|
- соленых огурцов |
0,6 - 0,8 |
1,8 - 2,4 |
|
4.2 При годовом запасе |
4,0 - 5,0 |
7,5 - 9,4 |
|
в том числе: | ||
|
- квашеной капусты |
3,2 - 4,0 |
5,1 - 6,4 |
|
- соленых огурцов |
0,8 - 1,0 |
2,4 - 3,0 |
|
5 Холодильные камеры для скоропортящихся продуктов: | ||
|
- при 2-недельном запасе продуктов |
0,5 - 0,6 |
3,0 - 3,5 |
|
- при 3-месячном запасе скоропортящихся продуктов |
3,2 - 4,0 |
17,6 - 22,0 |
|
6 Склад вещевого имущества и непродовольственных товаров |
3,0 |
10,0 |
|
7 Склад хозяйственного инвентаря |
4,0 |
6,2 |
|
8 Склад личных вещей 1 |
1,4 |
10,0 |
|
9 Гараж для автомобилей (единиц): | ||
|
- легковых |
Определяется заданием на проектирование |
- |
|
- санитарных | ||
|
- грузовых для хозяйственных, производственных и других целей | ||
|
1 Показатели определены с учетом общего максимального допустимой массы вещей, предметов, продуктов питания, принадлежащих осужденному (50 кг), а также массы вещей, предметов, продуктов питания, которые осужденному разрешается иметь при себе (36 кг). Примечания 1 Меньшие значения следует принимать для осужденных, занятых на работах с обычными условиями труда, большие - для осужденных, занятых на работах с тяжелыми и вредными условиями труда. 2 В складах вещевого имущества дополнительно предусматриваются обособленные помещения для промышленных товаров магазина тюрьмы. Площади этих помещений принимаются в размере 20% площади складов вещевого имущества. 3 Состав и площади помещений гаража устанавливаются заданием на проектирование. 4 При наличии свыше 10 единиц автотранспортных средств в составе помещений гаража предусматривается комната для механика площадью не менее 6,0 м2. | ||
8.24.4 Размеры продовольственных складов определяются исходя из норм суточного довольствия и норм складирования. Подвальные помещения продовольственных складов должны быть оборудованы самостоятельной загрузочной и наружным входом.
Каждая культура овощей должна храниться в обособленных местах - помещениях, закромах, стеллажах, полках, контейнерах. Картофель, свекла хранятся россыпью, высота насыпи 1,5 - 1,8 м, при хранении в хранилищах закромного типа с активной вентиляцией с заездом автомобиля загрузку картофеля осуществляют на полную высоту до 3 м с помощью транспортеров или других механизмов; столовая морковь хранится в ящиках (10 - 20 кг), овощных полуконтейнерах (150 - 180 кг) или ящичных поддонах (300 - 350 кг). При отсутствии тары морковь закладывается в пирамиды шириной 1 м у основания и длиной 3 м и более в зависимости от ширины хранилища; свежая капуста на длительное хранение закладывается на полки или стеллажи, в ящики-клетки, ящичные поддоны россыпью - пирамидами на стеллажах или на полу и подвешенной за стебель. Для хранения лука выделяются отдельные помещения, лук хранится на многоярусных стеллажах насыпью высотой слоя до 50 см на нижних полках и до 30 см - на верхних. Допускается хранение лука в лотках, ящиках, а также в связках или венках (косах) в подвешенном состоянии.
8.24.5 Площадь помещений квасильно-засолочных пунктов следует принимать по таблице 15.2 СП 308.1325800.2017.
8.24.6 Площади складов вещевого имущества определяются исходя из их нормированного запаса, норм складирования и способа хранения, а также требований 8.24.1.
8.24.7 Площади материально-технических складов (непродовольственных товаров и хозяйственного инвентаря) следует определять исходя из способа хранения, видов подъемно-транспортного оборудования и транспортных средств. При определении площадей помещений материально-технических складов следует учитывать:
- ширину проездов - на 0,6 м больше габаритов транспортных средств с учетом возможности провоза крупногабаритного груза;
- ширину проходов между стеллажами (штабелями) и стенами - не менее 0,6 м;
- ширину проходов между стеллажами (штабелями) - не менее 1,0 м при немеханизированной укладке.
8.25 Вместимость складов продовольствия, овощехранилища, квасильно-засолочного пункта и холодильных камер для скоропортящихся продуктов
8.25.1 Вместимость складов продовольствия без учета овощей и скоропортящихся продуктов следует принимать из расчета потребления продуктов на одного осужденного в год ориентировочно 0,3 т.
При расчете вместимости складов следует учитывать увеличение потребления продуктов на одного осужденного, занятого на тяжелых работах и работах с вредными условиями труда, в год на 0,05 т.
8.25.2 Вместимость овощехранилищ без учета соленых и квашеных овощей следует принимать из расчета потребления овощей на одного осужденного в год ориентировочно 0,29 т.
При расчете вместимости овощехранилищ следует учитывать увеличение потребления продуктов на одного осужденного, занятого на тяжелых работах и работах с вредными условиями труда, в год на 0,036 т.
8.25.3 Для предварительных расчетов соотношение овощей следует принимать по таблице 8.17.
Таблица 8.17
|
Наименование продуктов |
Соотношение в килограммах на год |
|
1 Картофель |
201 (219) |
|
2 Свежая капуста |
44 |
|
3 Свежие огурцы, помидоры, кабачки, зелень |
11 (15) |
|
4 Свекла |
11 |
|
5 Морковь |
11 (15) |
|
6 Лук |
15 (18) |
|
Примечание - В скобках даны показатели для осужденных, занятых на работах с тяжелыми и вредными условиями труда. | |
8.25.4 Квасильно-засолочные пункты предназначаются для засолки и хранения капусты и огурцов. Принимают примерное соотношение количества соленых огурцов и квашеной капусты в пределах от 1:4 до 1:6.
Вместимость квасильно-засолочных пунктов следует принимать из расчета потребления соленых и квашеных овощей на одного осужденного в год ориентировочно 0,04 т.
При расчете вместимости квасильно-засолочных пунктов следует учитывать увеличение потребления продуктов на одного осужденного, занятого на тяжелых работах и работах с вредными условиями труда, в год на 0,01 т.
8.25.5 Вместимость холодильных камер для скоропортящихся продуктов следует принимать из расчета потребления скоропортящихся продуктов на одного осужденного в год ориентировочно 0,13 т.
При расчете вместимости холодильных камер следует учитывать увеличение потребления продуктов на одного осужденного, занятого на тяжелых работах и работах с вредными условиями труда, в год на 0,03 т.
8.25.6 Для предварительных расчетов соотношение количества скоропортящихся продуктов следует принимать по таблице 8.18.
Таблица 8.18
|
Наименование продуктов |
Соотношение, % |
|
1 Мясо |
25 (30) |
|
2 Рыба |
28 (27) |
|
3 Жиры |
15 (17) |
|
4 Молочная продукция, яйца |
32 (26) |
|
Примечание - В скобках даны показатели для осужденных, занятых на работах с тяжелыми и вредными условиями труда. | |
8.25.7 Также при расчете вместимости складов следует учитывать повышенные нормы питания для осужденных инвалидов 1-й и 2-й групп.
8.26 Вместимость складов вещевого имущества, непродовольственных товаров и хозяйственного инвентаря
8.26.1 При определении площадей складов вещевого имущества следует учитывать, что стеллажи должны располагаться от наружных стен на 0,75 м, от кровли - 1,0 м, нижняя полка от пола хранилища - не менее 0,2 м. Между стеллажами устраивают проходы (дополнительные) шириной не менее 1,0 м, при этом центральный (основной) проход устраивают шириной 3,5 м. Для удобства товары в помещениях склада группируются по ассортименту. Имущество, бывшее в употреблении, хранят отдельно от нового имущества.
Вместимость складов вещевого имущества и непродовольственных товаров без учета хозяйственного инвентаря следует принимать из расчета потребления на одного осужденного и одного сотрудника в год:
- для осужденных - 0,03 т;
- для личного состава - 0,05 т.
Необходимость складирования вещевого имущества и непродовольственных товаров для сотрудников (личного состава) тюрьмы устанавливается заданием на проектирование.
8.26.2 Для предварительных расчетов соотношение ассортимента вещевого имущества следует принимать по таблице 8.19.
Таблица 8.19
|
Наименование имущества |
Соотношение, % | |
|
Осужденные |
Личный состав | |
|
1 Швейные изделия |
67 |
56 |
|
2 Кожаная и кирзовая обувь |
11 |
8 |
|
3 Меховые изделия |
6 |
8 |
|
4 Валяные изделия |
6 |
4 |
|
5 Ткани, трикотаж, спортивные и культтовары, аптекарские товары |
10 |
24 |
8.26.3 При механизированной укладке имущества расстояния между стеллажами (штабелями) принимают исходя из технических характеристик средств механизации.
Устройства механизации (автоматизации) учета выдачи (получения) имущества следует предусматривать согласно заданию на проектирование.
8.26.4 Склады хозяйственного инвентаря предназначаются для хранения имущества продовольственно-вещевой службы (кухонная посуда, оборудование), метизов и инвентаря бытового и хозяйственного назначения.
Вместимость складов хозяйственного инвентаря следует принимать из расчета расхода его на одного осужденного в год:
- имущества продовольственно-вещевой службы - 0,01 т;
- инвентаря бытового и хозяйственного назначения - 0,03 т.
8.27 Склады хранения личных вещей осужденных
Состав и площади помещений складов хранения личных вещей осужденных следует принимать по таблице 8.20.
Таблица 8.20
|
Наименование помещения |
Площадь, м2, не менее |
|
1 Тамбур |
3,0 |
|
2 Ожидальная |
8,0 |
|
3 Приемная вещей |
10,0 |
|
4 Склад вещевого имущества |
По таблице 8.16 |
|
5 Помещение хранения уборочного инвентаря |
0,8 на 100 м2 общей площади, но не менее 4,0 |
8.28 Здание подразделения ведомственной пожарной охраны
Здание подразделения ведомственной пожарной охраны следует предусматривать отдельно стоящим, со служебными и бытовыми помещениями согласно требованиям [3], СП 380.1325800 и задания на проектирование.
9.1.1 Наружные двери усиленной конструкции следует предусматривать на всех входах в административное здание тюрьмы с основным КПП, на площадку дежурной службы, в здания дополнительных КПП, все здания, размещаемые в режимной зоне, здания гаражей, складов различного назначения, отдельно стоящие здания аптек (аптечных распределительных пунктов), здание спортивного корпуса с тиром, здание подразделения ведомственной пожарной охраны.
Требования к оборудованию наружных дверей усиленной конструкции приведены в [9], [10]. В дополнение к наружным дверям усиленной конструкции, устанавливаемым:
- в административном здании (за исключением наружного входа в тамбур проходного коридора КПП, входов на площадку дежурной службы и наружного входа с площадки дежурной службы в блок помещений дежурной службы);
- режимных корпусах;
- ЦТАО;
- медицинской части;
- сборном отделении с карантином, с внутренней стороны следует предусматривать установку решетчатых дверей.
Наружные двери усиленной конструкции и решетчатые двери следует оборудовать замковыми устройствами.
Наружные двери усиленной конструкции, установленные на входах в тамбуры проходного коридора основного КПП административного здания, следует оснащать электромеханическими замками и СКУД [9]. Допускается оснащать электромеханическими замками и СКУД наружные двери усиленной конструкции, установленные на входах на площадку дежурной службы, в блок помещений дежурной службы с площадки дежурной службы, а также на входах в здания режимного назначения. Наружные двери усиленной конструкции, оборудуемые электромеханическими замками, следует оборудовать доводчиками.
Управление электромеханическими замковыми устройствами следует предусматривать из помещений часовых КПП, младших инспекторов (операторов СОТ) по соответствующим режимным зданиям [9]. Замковое устройство двери входа на площадку дежурной службы, в блок помещений дежурной службы с площадки дежурной службы управляется из помещения ЦПТКВ.
Остальные наружные двери усиленной конструкции следует оборудовать механическими замками проходного типа.
На входе в площадку дежурной службы допускается предусматривать вместо наружного дверного блока усиленной конструкции установку пулестойкой двери.
Наружные двери усиленной конструкции в зависимости от ширины дверного проема могут выполняться однопольными или двупольными. В случае использования двупольных дверей резервное дверное полотно следует оснащать потайными шпингалетами, фиксирующими его в закрытом положении.
Требования к конструкции и применяемым материалам наружных дверных блоков усиленной конструкции приведены в [9], [10]. Заполнение дверного полотна наружной двери усиленной конструкции теплозвукоизоляционным материалом должно отвечать теплотехническим параметрам.
9.1.2 Пулестойкие двери в административном здании тюрьмы следует устанавливать на входах: в помещение группы досмотра транспортных средств и грузов основного КПП из шлюза по досмотру транспортных средств и грузов, в общий коридор блока помещений дежурной службы при входе в него со стороны проходного коридора основного КПП. Класс защиты пулестойкой двери должен быть не ниже Бр4 по ГОСТ 34593. Двери на указанных входах оборудуются электромеханическими замками.
9.1.3 Внутренние двери усиленной конструкции следует устанавливать:
- в административном здании: на входах, ведущих в лестничную клетку; общие коридоры; кабинет начальника тюрьмы; кабинет заместителя начальника тюрьмы по организации деятельности оперативно-режимных служб; блок помещений (помещения) оперативного отдела (группы); в помещение караула (резервной группы); в комнату ДПНТ; помещение заместителя ДПНТ, инспекторов-дежурных по надзору; помещение ЦПТКВ; серверную; во внутренних дверных проемах проходного коридора КПП (за исключением дверей отсекающего тамбура); в дверных проемах КХО; комнаты чистки оружия; КХСИБиАО; комнаты начальника склада вооружения, спецсредств и химического имущества; комнаты хранения средств противохимической защиты; мастерской по ремонту вооружения, спецсредств и химического имущества; комнаты часового КПП; бюро пропусков; помещений приема, досмотра и хранения посылок и передач; материальной аптеки; помещения отдела (группы) специального учета; блок помещений (помещения) отдела кадров и работы с личным составом; в дверных проемах помещения кассы; радиоузла; комнаты ремонта аппаратуры и хранения материальных ценностей; мастерской по ремонту ТСО, ТСН и средств связи; кроссовой; аппаратной связи; электрощитовой; архива; на входе в блок помещений (помещения) канцелярии;
- в дополнительных КПП: во внутренних дверных проемах проходного коридора (за исключением дверей отсекающего тамбура); на входах, ведущих в комнату часового КПП;
- в зданиях сборного отделения с карантином, общежития для хозобслуги, ШИЗО, режимного корпуса: на входах, ведущих в лестничную клетку; входах в общие коридоры; в комнатах (кабинетах) начальников отрядов, администрации тюрьмы, начальника корпусного отделения, медицинского работника, психологов, младшего инспектора (оператора СОТ), оперативного работника, сотрудников отдела режима, начальника отряда - приема осужденных администрацией; на входе в кабинет врача с процедурной и тамбуром (только при непосредственном выходе в общий коридор); в комнату картотеки при кабинете сотрудников отдела режима; картотеки при кабинете врача; в кабинет индивидуальной психологической работы с осужденными; помещение временного хранения личных вещей прибывших осужденных; хранения личных вещей осужденных; в комнате хранения продуктов питания; хранения продуктов питания и приема пищи; в комнате отдыха, индивидуальной психологической работы с осужденными, консультаций по общеобразовательной программе; отдыха, групповой психологической работы с осужденными; в парикмахерской; в помещениях фотолаборатории; в помещении для хранения библиотечного фонда; в комнате мастера; в помещении хранения суточного запаса сырья; временного хранения готовой продукции; хранения инструмента; в помещении видеоконференцсвязи; на входах в торговый зал, помещения хранения и подготовки продовольственных товаров, кладовую непродовольственных товаров магазина;
- в здании медицинской части (врачебном здравпункте, фельдшерском здравпункте): на входах, ведущих в лестничную клетку; входах в общие коридоры; во всех кабинетах и помещениях (за исключением: помещений, расположенных смежно с кабинетами (помещениями) и не имеющих дверного проема в общий коридор; санпропускников; санитарных комнат; ванной комнаты; комнаты мытья и хранения посуды; подогрева пищи, мытья и хранения посуды; помещения ректороманоскопии; уборных; помещений, оборудуемых камерными дверями);
- в здании пищеблока: в кладовой сухих продуктов; помещении для нарезки и хранения хлеба; овощном цехе; холодильных камерах пищевых продуктов; комнате заведующего пищеблоком;
- в здании ЦТАО: во всех кабинетах администрации тюрьмы и ЦТАО; в комнате младшего инспектора (оператора СОТ); в помещениях хранения инструмента, хранения суточного запаса сырья, временного хранения готовой продукции; кабинете профессионально-технического и специального профиля; слесарно-механической мастерской;
- в здании прачечной: в помещениях обменного фонда матрасов, одежды, белья, головных уборов и обуви; в центральной кладовой хранения обменного фонда постельного белья; на складе материального обеспечения; в комнате заведующего прачечной;
- в здании для проведения длительных и краткосрочных свиданий: в комнатах для проведения краткосрочных свиданий; в комнате младшего инспектора по проведению краткосрочных свиданий; в комнате для свиданий с адвокатами; на входе в блок помещений для проведения длительных свиданий; в комнате младшего инспектора по проведению длительных свиданий; помещении выдачи посылок и передач;
- в здании спортивного корпуса с тиром: на входах в общие коридоры; в кабинете врача-терапевта; на входах в стрелковую галерею тира; комнату инструктора тира; комнату для отладки и чистки оружия.
Внутренние двери усиленной конструкции допускается устанавливать в электрощитовых, ИТП, машинных отделениях лифтов зданий тюрем.
9.1.4 Внутренние двери усиленной конструкции, устанавливаемые на входах, ведущих в лестничную клетку, общие коридоры следует оборудовать замками проходного типа и смотровым окном размерами 150 x 200 мм, остекленным многослойным ударостойким стеклом с классом защиты не ниже Р4А по ГОСТ 30826.
Внутренние двери усиленной конструкции, устанавливаемые в здании для проведения длительных и краткосрочных свиданий - в комнатах для проведения краткосрочных свиданий, в комнате для свиданий с адвокатами, на входе в блок помещений для проведения длительных свиданий, следует оборудовать оптическим смотровым глазком и замком камерного типа. Оптический смотровой глазок в комнате для свиданий с адвокатами устанавливают с внешней стороны для наблюдения за обстановкой в комнате.
Внутренние двери усиленной конструкции в остальные помещения, перечисленные в 9.1.3, оборудуют замковыми устройствами механического или электромеханического типа. Внутренние двери усиленной конструкции с электромеханическими замками следует оборудовать доводчиками. Допускается внутренние двери усиленной конструкции в отдельных помещениях, оговариваемых заданием на проектирование, оборудовать СКУД [9] с установкой электромеханических замков и доводчиков.
Внутренние двери усиленной конструкции в зависимости от ширины дверного проема могут выполняться однопольными или двупольными. В случае использования двупольных дверей резервное дверное полотно следует оснащать потайными шпингалетами, фиксирующими его в закрытом положении.
Внутренние двери усиленной конструкции в административном здании тюрьмы на входе в блок помещений (помещения) канцелярии, кабинет начальника тюрьмы, кабинет заместителя начальника тюрьмы по организации деятельности оперативно-режимных служб, блок помещений (помещения) оперативного отдела, помещения отдела (группы) специального учета предусматриваются однопольными и оборудуются замками с секретами, устройствами опечатывания и доводчиками (устройствами самозакрывания).
Требования к конструкции и применяемым материалам внутренних дверных блоков усиленной конструкции приведены в [9], [10].
9.1.5 На входах в подвальные и технические этажи, а также в технические подполья и чердаки необходимо устанавливать двери, люки и лазы усиленной конструкции с соблюдением противопожарных требований [3], СП 4.13130.
9.1.6 Камерные глухие двери устанавливаются: в камерных помещениях (в том числе рабочих камерах, палатах (боксированных палатах) зданий медицинского назначения); одноместных помещениях безопасного места; прогулочных дворах; комнате для отправления религиозных обрядов (в режимном корпусе); одноместном помещении для кратковременного нахождения; в дверных проемах, ведущих в душевые для осужденных и постирочные с сушилкой личного белья из общих коридоров.
Требования к конструкции и применяемым материалам камерных дверей приведены в [9], [10]. Щели в дверных притворах камерных дверей не допускаются. В камерных дверях на высоте 1,0 м от уровня пола необходимо устраивать окна для передачи пищи размерами 180 x 220 мм (ширина x высота). Дверцы окон должны открываться в сторону коридора, удерживаться в горизонтальном положении на кронштейнах и закрываться замками вагонного типа. Окна для передачи пищи не предусматриваются в камерных дверях: прогулочных дворов; комнаты для отправления религиозных обрядов (в режимном корпусе); одноместного помещения для кратковременного нахождения; установленных в дверных проемах, ведущих в душевые для осужденных и постирочные с сушилкой личного белья из общих коридоров.
Для обзора камер в центре дверей на высоте 1,5 м от уровня пола оборудуются смотровые глазки. Глазки должны быть остеклены небьющимся материалом (сталинит, корабельное стекло и др.) и со стороны коридора закрыты крышкой, вращающейся на оси. Конструкция глазка должна обеспечивать полный обзор камеры. Допускается применение оптических глазков, других устройств визуального контроля при обеспечении угла обзора не менее 180° и защите линз от разрушений.
Камерные глухие двери следует навешивать с левой стороны относительно входов в помещения, они должны открываться в сторону коридора и закрываться камерными замками специального типа и дополнительным быстродействующим запорным устройством. Камерные замки специального типа должны быть однотипными в пределах одного поста (камерного блока).
Ключи от этих замков не должны подходить к замкам, установленным на других дверях режимных зданий. Угол открывания дверного полотна должен устанавливаться ограничителем (упором) в полу (цепочкой поверху дверей, доводчиком с фиксатором) из расчета одновременного прохода в помещение не более одного человека, при этом необходимо предусматривать возможность полного открывания дверей.
9.1.7 В зависимости от функционального назначения решетчатые двери устанавливаются в дверном проеме самостоятельно или в дополнение (в одном блоке) к двери усиленной конструкции, камерной двери.
В качестве основной (самостоятельной) решетчатая дверь устанавливается: в помещении хранения личных вещей сотрудников и посетителей, предусматриваемом в составе помещений основного КПП при административном здании тюрьмы или КПП для пропуска на локальную зону (изолированную территорию); отсекающем тамбуре проходного коридора КПП; в отсекающих решетчатых перегородках (предусматриваемых: в торцах камерного блока (палатной секции), в общежитии для хозобслуги при делении на блоки ночного и дневного пребывания, в иных случаях); в торцах переходных галерей.
Решетчатые распашные (складывающиеся) двери следует устанавливать в дополнение к внутренним дверям усиленной конструкции в лестничных клетках на всех этажах административного здания тюрьмы.
Внутренние распашные решетчатые двери следует устанавливать: в дополнение к наружным дверям усиленной конструкции (9.1.1); в КХО с внутренней стороны в дополнение к внутренним дверям усиленной конструкции; в камерах ШИЗО с внутренней стороны в дополнение к дверям камерного типа на входах в лестничные клетки и общие коридоры режимных зданий в дополнение к внутренним дверям усиленной конструкции.
Размеры полотна и размещение решетчатой двери, дублирующей камерную, в дверной коробке должны обеспечивать беспрепятственное открывание их в паре с глухой камерной дверью. Решетчатые двери, предусматриваемые в дополнение к камерным дверям, следует навешивать с левой стороны относительно входов в помещения. Они должны открываться в сторону коридора и оснащаться замком камерного типа. Возможность открывания замка решетчатой двери из помещения должна быть исключена. Исключение открывания замка камерного типа в решетчатой двери может достигаться установкой на замок (вокруг личины) в пространство между дверями отрезка трубы, имеющего длину, равную расстоянию от внешней поверхности замка до полотна камерной глухой двери.
Двери, устанавливаемые в отсекающих решетчатых перегородках, по материалу и параметрам должны соответствовать данным решетчатым перегородкам.
Двери в зависимости от назначения следует оборудовать проходными, электромеханическими, навесными замками, замками камерного типа, механическими запорными устройствами. Решетчатые двери, устанавливаемые в дополнение к дверям усиленной конструкции, выполняются распашными.
Допускается оснащать СКУД и электромеханическими замками решетчатые двери, устанавливаемые в отсекающих решетчатых перегородках, при этом двери оборудуются доводчиками. Решетчатая дверь, установленная в помещении хранения личных вещей сотрудников и посетителей, расположенном в составе помещений основного КПП при административном здании тюрьмы или КПП для пропуска на локальную зону (изолированную территорию), оборудуется электромеханическим замком, управляемым из помещения часового КПП, и доводчиком.
Решетчатые двери в зависимости от ширины дверного проема могут выполняться однопольными или двупольными. Дублирующая внутреннюю усиленную распашная решетчатая дверь в КХО выполняется только однопольной. В случае использования двупольных дверей резервное дверное полотно следует оснащать потайными шпингалетами, фиксирующими его в закрытом положении.
Требования к конструкции и применяемым материалам внутренних решетчатых дверей приведены в [9], [10].
9.1.8 Анкеры для крепления дверных коробок наружных, внутренних дверей усиленной конструкции, решетчатых дверей, камерных дверей следует заделывать в стену на глубину 150 - 300 мм.
9.1.9 Дверные проемы спальных комнат общежития для хозобслуги, отделения (блока помещений) для осужденных хозобслуги, находящихся в ежегодном оплачиваемом отпуске, следует оборудовать обычными дверными блоками с соблюдением требований пожарной безопасности [3], СП 4.13130. Дверное полотно спальных комнат и помещений оборудуется смотровым окном размерами 200 x 300 мм, остекленным многослойным стеклом, безопасным при эксплуатации, по ГОСТ 30826, и механическими замками, управляемыми со стороны коридора.
9.1.10 Двери жилых комнат в блоках помещений для проведения длительных свиданий замками не оборудуются, с внутренней стороны устанавливаются облегченные задвижки (шпингалеты).
9.1.11 Заполнение дверных проемов всех зданий и сооружений тюрьмы должно осуществляться в соответствии с действующими нормативными документами.
При условии разработки и утверждения отдельными распорядительными документами ФСИН России новых видов специальных изделий (усиленных остекленных дверных блоков, позволяющих осуществлять визуальный контроль и обеспечивающих при этом надежную звукоизоляцию; камерных дверей, оборудованных смотровыми окнами, и т.п.) допускается их применение при заполнении соответствующих дверных проемов зданий и сооружений тюрьмы.
Допускается по заданию на проектирование определять дополнительные места установки наружных и внутренних дверей усиленной конструкции, камерных и решетчатых дверей.
9.2.1 Оконные проемы в галереях следует располагать максимально приподнятыми к потолку. Допускается верх оконного проема выполнять ниже уровня потолка переходной галереи на высоту перемычки над оконным проемом в несущих наружных стенах галереи.
Размеры оконных проемов (в свету) в камерных помещениях (за исключением камер ШИЗО), одноместных помещениях безопасного места с внутренней стороны должны составлять не менее 1,2 м по высоте и 0,9 м по ширине.
Размеры оконных проемов (в свету) в камерах ШИЗО, одноместных помещениях для кратковременного нахождения с внутренней стороны должны составлять 0,6 м по высоте и 0,9 м по ширине.
Допускается устройство четвертей в оконных проемах с наружной стороны оконного откоса, с уменьшением размеров оконного проема со стороны фасада.
Оконные проемы камерных помещений, одноместного помещения безопасного места и одноместного помещения для кратковременного нахождения следует располагать на максимальной высоте от уровня пола камерного помещения. Допускается верх оконного проема выполнять ниже уровня потолка камерного помещения, одноместного помещения безопасного места и одноместного помещения для кратковременного нахождения на высоту перемычки над оконным проемом в несущих наружных стенах здания.
В оконных проемах камерных помещений, одноместного помещения безопасного места и одноместного помещения для кратковременного нахождения вместо подоконников следует устраивать откосы с закругленными углами.
9.2.2 На всех оконных проемах режимных зданий (4.8), переходных галерей, здания для проведения длительных и краткосрочных свиданий, первого этажа административного здания, а также помещений, коридоров, переходов, через которые осуществляется конвоирование осужденных, с наружной стороны следует устанавливать металлические оконные решетки [9], [10].
Декоративные стационарные, распашные или раздвижные оконные решетки следует устанавливать с наружной стороны:
- во все оконные проемы второго и вышележащих этажей административного здания (за исключением кассы);
- в оконные проемы помещений, где предусмотрена установка внутренних дверных блоков усиленной конструкции в зданиях иного назначения и зданиях, не являющихся режимными.
В каждом помещении с постоянным пребыванием людей, за исключением камерных помещений (в том числе палат и боксированных палат медицинской части), одноместных помещений безопасного места, одноместных помещений для кратковременного нахождения необходимо предусматривать одну открывающуюся (распашную или раздвижную) наружную оконную решетку на случай вынужденной эвакуации людей. Для обеспечения эвакуации людей открывающиеся оконные решетки допускается предусматривать в оконных проемах общих коридоров, лестничных клеток.
С внутренней стороны на оконных проемах камерных помещений, одноместных помещений безопасного места, одноместных помещений для кратковременного нахождения устанавливаются отсекающие оконные решетки [9], [10]. Допускается применять отсекающие оконные решетки с выступом от стены на 250 - 260 мм. Отсекающие оконные решетки выполняются с распашным решетчатым полотном и снабжаются устройством для открывания форточек (фрамуг, створки) и замковым устройством для запирания полотна. Открывающееся полотно отсекающей оконной решетки предназначено для обеспечения доступа персонала тюрьмы к оконному блоку для его ремонта и проведения уборки.
Анкеры для крепления оконных решеток необходимо заделывать в стену на глубину 150 - 300 мм.
Наружные и внутренние оконные решетки не должны препятствовать открыванию створок, фрамуг, форточек для проветривания помещений.
9.2.3 В стене, разделяющей отсекающий тамбур проходного коридора и комнату часового КПП, следует предусматривать оконный проем с заполнением пулестойким стеклом. Оконный пулестойкий блок должен соответствовать классу защиты не ниже Бр4 по ГОСТ 30826.
Оконный пулестойкий блок следует оборудовать лотком для передачи документов, оружия. Конструкция лотка должна исключать возможность управления им со стороны посетителя. Приемные окна лотка следует защищать со стороны часового и со стороны посетителя управляемыми из помещения часового стальными крышками.
Допускается применение типовых пулестойких оконных блоков и бронесекций соответствующего класса защиты.
9.2.4 Требования к оборудованию передаточного окна для выдачи оружия и боеприпасов в КХО, передаточного окна для выдачи средств индивидуальной бронезащиты и активной обороны в КХСИБиАО, приемных окон помещений приема, досмотра и хранения посылок и передач, а также бюро пропусков приведены в [9], [10].
9.2.5 Допускается оконные проемы блока помещений дежурной службы оборудовать со стороны помещений закрываемыми металлическими пулестойкими ставнями с бойницами, отвечающими требованиям нормативных актов, регламентирующих вопросы оборудования ИТСОН объектов УИС РФ [9], [10], и по классу защиты соответствующими пулестойкому остеклению не ниже Бр4 по ГОСТ 30826.
9.2.6 Независимо от этажа и наличия противостоящих зданий на оконных блоках или на оконных проемах помещений канцелярии, кабинета начальника тюрьмы, кабинета заместителя начальника тюрьмы по организации деятельности оперативно-режимных служб, помещений оперативного отдела и отдела (группы) специального учета следует предусматривать устройства, не позволяющие осуществлять наблюдение за помещением снаружи (жалюзи, шторы и т.п.).
9.2.7 Оконные проемы зданий хозяйственно-складской зоны оборудуются металлическими оконными решетками размерами ячеек не более 150 x 150 мм.
9.2.8 При реконструкции тюрем и невозможности достичь архитектурно-планировочными и режимно-технологическими решениями исключения визуальной и иной связи между камерными помещениями в одном здании, камерными помещениями соседних зданий допускается остекление камерных помещений, помещений здания для проведения длительных и краткосрочных свиданий, а также помещений (коридоров, переходных галерей), через которые осуществляется конвоирование осужденных, предусматривать с использованием матового (узорчатого) стекла либо самоклеящейся виниловой матирующей пленки. Остекление оконных проемов помещений с постоянным пребыванием людей в указанном исполнении применимо при обязательном условии обеспечения нормативного уровня естественного освещения.
9.2.9 Для заполнения оконных проемов зданий и сооружений тюрем допускается использовать деревянные, ПВХ и металлические оконные блоки.
Оконные блоки в камерных помещениях, одноместных помещениях безопасного места, одноместном помещении для кратковременного нахождения для обеспечения проветривания оборудуются форточкой (фрамугой), расположенной в верхней части блока. Допускается оконные блоки оборудовать откидной створкой. Створки и форточки (фрамуги) с откидным открыванием должны открываться под углом не более 45° к плоскости оконного блока. Конструкция оконного блока и механизма открывания должны обеспечивать фиксацию створки, форточки (фрамуги) как в положениях "закрыто" и "открыто", так и в промежуточных положениях.
9.2.10 Остекление в перегородках между комнатой младшего инспектора по проведению краткосрочных свиданий и комнатой для проведения краткосрочных свиданий в здании для проведения длительных и краткосрочных свиданий следует выполнять из многослойного ударостойкого стекла с классом защиты не ниже Р4А по ГОСТ 30826 и ограждать металлической декоративной решеткой.
9.3.1 Внутренняя стена помещения кассы (либо дверной блок на входе в помещение кассы) должна оборудоваться специальным окном для осуществления операций с клиентами.
9.3.2 Рабочие места женского персонала тюрьмы в медицинских и процедурных кабинетах медицинских частей (врачебных и фельдшерских здравпунктов) на всю высоту помещений отделяются решетчатыми перегородками с дверью, располагаемыми таким образом, чтобы у сотрудника имелась возможность полноценно выполнять свои обязанности, при этом исключалась вероятность нападения на сотрудника.
Перегородки, отделяющие рабочее место персонала медицинских кабинетов от места обслуживания осужденных, допускается выполнять с применением ударостойкого стекла с классом защиты не ниже Р4А по ГОСТ 30826.
9.3.3 В независимости от взаиморасположения камерных помещений (в том числе палат и боксированных палат) в коридорах в торцах каждого камерного блока, торце блока палат медицинского назначения (палатной секции) следует устанавливать отсекающую решетчатую поперечную перегородку на всю высоту коридора с распашной решетчатой дверью, оборудованной механическим (электромеханическим) запорным устройством.
9.3.4 В зданиях режимного корпуса, сборного отделения с карантином, ЦТАО, медицинской части, ШИЗО, здании для проведения длительных и краткосрочных свиданий по всей высоте лестничных клеток, по которым осуществляется конвоирование осужденных, следует предусматривать решетку, разделяющую лестничные марши. Решетку выполняют из стального прутка диаметром 8 - 10 мм и размерами ячейки 150 x 150 мм. Допускается разделительную решетку заменять металлической тканой сеткой с размерами ячейки не более 30 x 30 мм на раме из металлических уголков.
Для исключения пересечения путей следования сотрудников и конвоируемых осужденных все переходные галереи (переходы), соединяющие здания тюрьмы между собой, следует разделять продольными перегородками сплошного заполнения. Материал продольных перегородок необходимо оговаривать в задании на проектирование.
9.3.5 Требования к выполнению всех разделительных, отсекающих решетчатых перегородок, за исключением решетки, разделяющей лестничные марши, приведены в [9], [10].
9.3.6 По верху прогулочных дворов следует устанавливать решетку из стального прутка диаметром не менее 10 мм и размерами ячейки не более 170 x 170 мм. Над решеткой следует устанавливать металлическую тканую сетку размерами ячейки не более 50 x 50 мм.
9.3.7 Радиаторы отопления, трубопроводы отопления в камерных помещениях, одноместных помещениях безопасного места, одноместном помещении для кратковременного нахождения следует защищать кожухами из листового металла. Кожух трубопровода отопления допускается предусматривать в виде футляра прямоугольной формы с каркасом из металлического уголка и заполнением листовым металлом толщиной 3,0 мм.
9.3.8 В камерных помещениях, одноместных помещениях безопасного места, одноместном помещении для кратковременного нахождения светильники рабочего и дежурного освещения, а также громкоговорители (ниши с громкоговорителями и светильниками дежурного освещения) в палатах зданий медицинского назначения, камерах следует ограждать металлическими решетками [10].
Для освещения изолированных санитарных узлов палат зданий медицинского назначения, изолированных санитарных кабин камерных помещений (в том числе рабочих камер), санитарных кабин одноместных помещений безопасного места во внутренней стене, разделяющей санитарный узел и общий коридор, на высоте 2,2 м от уровня пола выполняется ниша сечением 270 x 300 x 250 мм, защищенная сварной решеткой, внутри которой предусматривается установка осветительного прибора и датчика движения/объема. Решетка, защищающая данную осветительную нишу, конструктивно аналогична решетке для защиты светильников дежурного освещения, устанавливаемой над дверным проемом камеры.
9.3.9 Приточные и вытяжные вентиляционные отверстия в камерных помещениях, одноместных помещениях безопасного места, одноместных помещениях для кратковременного нахождения следует располагать под потолком и ограждать металлическими решетками, выполняемыми по аналогии с ограждающими решетками громкоговорителей и отвечающими требованиям [10].
10.1 Фундаменты должны быть запроектированы по данным результатов инженерных изысканий в соответствии с требованиями СП 21.13330, СП 22.13330, СП 25.13330, СП 45.13330. Фундаменты режимных зданий следует предусматривать ленточные на естественном основании либо плитные сплошные. Для сложных геологических условий площадки строительства по данным результатов инженерных изысканий допускается устройство ленточных фундаментов на свайном основании.
Особые требования в части обеспечения охраны и реализации противопобеговых мероприятий к конструкции фундаментов зданий, не являющихся режимными, отсутствуют.
При новом строительстве в коридорах режимных зданий наличие выступающих конструктивных и ограждающих элементов не допускается.
В коридорах режимных зданий устанавливаются ключеулавливатели [9], [10], два из которых располагаются с внутренней и внешней стороны отсекающих решетчатых поперечных перегородок, отделяющих камерный блок (палатную секцию) от остального объема коридора, а остальные - у дверных проемов каждой камеры (палаты). Допускается предусматривать установку ключеулавливателей у решетчатых дверей, устанавливаемых на входе в общие коридоры и лестничные клетки этажей с камерными блоками (палатными секциями) режимных зданий.
Конструктивные элементы камерных помещений (в том числе рабочих камер) должны обеспечивать визуальную изоляцию от смежных камерных помещений, камерных помещений, находящихся в этом же здании, камерных помещений соседних зданий режимного назначения и от территории, прилегающей к режимной зоне.
Камеры, одноместные помещения безопасного места необходимо оборудовать унитазами и умывальниками. В камере, одноместном помещении безопасного места унитаз следует размещать в изолированной санитарной кабине. Перегородки кабины следует выполнять кирпичными, толщиной 120 мм, на всю высоту помещения. В дверном проеме кабины устанавливается полноразмерный дверной блок с дверным полотном, открывающимся наружу. Умывальник размещается за пределами кабины.
Все оборудование камерных помещений (кровати, столы, скамьи, тумбочки, подставки под питьевые баки) должно крепиться к полу или стенам путем их приварки к заранее установленным закладным деталям или через анкеровку.
10.2 Режимные здания, административное здание следует предусматривать в каменном (кирпичном, железобетонном) исполнении.
Здания, не относящиеся к режимным зданиям, допускается проектировать по каркасной схеме с устройством ограждающих конструкций из сэндвич-панелей с соблюдением противопожарных требований [3].
10.3 Наружные и внутренние стены (перегородки) режимных зданий, КХО, комнат чистки оружия, КХСИБиАО, комнаты хранения средств противохимической защиты, кассы, блока помещений аптеки, комнаты ожидания для посетителей в административном здании при новом строительстве следует выполнять из керамического полнотелого, силикатного полнотелого кирпича, бетона (бетонных блоков), железобетона.
10.4 Толщину наружных стен зданий следует определять на основании расчетов с учетом требований СП 15.13330, СП 63.13330, СП 50.13330.
При этом толщину наружных стен (без учета толщины утеплителя) камерных помещений (в том числе палат и боксированных палат медицинской части), КХО, комнат чистки оружия, КХСИБиАО, комнаты хранения средств противохимической защиты, кассы следует принимать, мм, не менее:
510 - из полнотелого (без пустот) кирпича;
500 - бетона (бетонных блоков);
200 - железобетона.
Стены и перегородки, отделяющие помещения канцелярии, кабинета начальника тюрьмы, кабинета заместителя начальника тюрьмы по организации деятельности оперативно-режимных служб, помещений оперативного отдела и отдела (группы) специального учета от других помещений, должны быть железобетонными толщиной не менее 100 мм или кирпичными толщиной не менее 120 мм.
При реконструкции существующих зданий, в случае, если невозможно применение утеплителя с наружной стороны стены камеры (медицинской палаты), допускается располагать утеплитель с внутренней стороны наружной стены указанного помещения. Возможность утепления изнутри должна подтверждаться расчетами температурных полей всех характерных узлов и деталей наружных стен. При этом со стороны камеры (медицинской палаты) утеплитель следует защищать сварной сеткой из арматуры диаметром 6 мм размерами ячейки 100 x 100 мм и дополнительной металлической тканой сеткой размерами ячейки 10 x 10 мм.
При реконструкции наружные стены палат зданий медицинского назначения, камер, независимо от материала стены и ее толщины, усиливаются со стороны помещений (палат, камер) сварной решеткой из арматуры диаметром 6 мм размерами ячейки 100 x 100 мм, решетка закрывается слоем штукатурки.
Толщину внутренних стен камерных помещений, КХО, комнат чистки оружия, КХСИБиАО, комнаты хранения средств противохимической защиты, кассы, а также толщину наружных и внутренних стен, отделяющих блок помещений аптеки и комнату ожидания для посетителей от остальных помещений административного здания, следует принимать, мм, не менее:
380 - из полнотелого (без пустот) кирпича;
400 - бетона (бетонных блоков);
200 - железобетона.
Внутренние поверхности наружных стен, поверхности внутренних стен и перегородок следует укреплять в случаях, если наружные, внутренние стены и перегородки в существующих зданиях, подлежащих реконструкции или капитальному ремонту, выполнены:
- из пустотелого кирпича, керамических камней по ГОСТ 530;
- полнотелого кирпича, бетона (бетонных блоков), железобетона, но толщина их ниже допустимой.
При этом стены и перегородки, выполненные из кирпича, бетона, железобетона, при снижении нормативных значений толщин стен не более чем на 30% следует укреплять сварной сеткой из арматуры (таблица 10.1).
Таблица 10.1
|
Стены и перегородки |
Помещения |
Сварная сетка из арматуры | |
|
диаметром, мм |
размерами ячейки, мм | ||
|
Внутренние поверхности наружных стен |
Палаты зданий медицинского назначения, камеры, КХО, комнаты чистки оружия, КХСИБиАО, комнаты хранения средств противохимической защиты, кассы |
10 |
100 x 100 |
|
Разделяющие (с двух сторон) стены и перегородки |
Между палатами зданий медицинского назначения, а также между палатами и смежными с ними помещениями; между камерами, а также между камерами и смежными с ними помещениями |
6 | |
|
Стены, отделяющие блок помещений аптеки и комнату ожидания для посетителей от остальных помещений |
Административные здания | ||
|
Внутренние стены и перегородки (с внутренней стороны) |
КХО, комнаты чистки оружия, КХСИБиАО, комнаты хранения средств противохимической защиты, кассы |
8 | |
|
Примечание - Стены, перегородки, выполненные из пустотелого кирпича, керамических камней и т.п., следует укреплять по аналогии с вышеизложенным сварной сеткой с увеличением диаметра арматуры на 2 мм. | |||
Стены камерных помещений (в том числе палат и боксированных палат медицинской части) в местах прокладки внутристенных вентиляционных каналов, в случае если размеры канала в сечении составляют 270 x 270 мм и более, следует усиливать сварной сеткой из арматуры диаметром 6 мм и размерами ячейки 100 x 100 мм и дополнительной металлической тканой сеткой (штукатурной сеткой) размерами ячейки 10 x 10 мм, с последующим оштукатуриванием.
Сварные сетки из арматуры и тканые металлические сетки следует крепить с применением анкеровки или путем приварки к закладным деталям в стенах (по периметру помещения в полу и потолке) и в последующем оштукатуривать.
При реконструкции в случае отклонения толщины внутренних стен палат зданий медицинского назначения, камер от нормативной либо в случае применения железобетонных перегородок следует предусматривать мероприятия по звукоизоляции камер.
10.5 Наружные и внутренние стены прогулочных дворов следует выполнять из силикатного и керамического кирпича, керамических камней, бетонных блоков, железобетона.
Толщину наружных стен прогулочных дворов следует принимать, мм, не менее:
380 - из силикатного, керамического кирпича, керамических камней;
400 - бетона (бетонных блоков);
150 - железобетона.
Толщину внутренних стен прогулочных дворов следует принимать, мм, не менее:
380 - из силикатного, керамического кирпича, керамических камней;
200 - бетона (бетонных блоков);
150 - железобетона.
10.6 Покрытия и перекрытия режимных зданий (режимных блоков помещений) тюрем следует предусматривать сборные беспустотные или монолитные железобетонные. Толщина монолитных железобетонных перекрытий и покрытий определяется проектом в каждом конкретном случае с учетом конструктивных особенностей зданий, при этом она должна составлять не менее 120 мм. Перекрытия и покрытия над общими коридорами режимных зданий, помещениями (блоками помещений), функционально не предназначенными для содержания осужденных, вспомогательными помещениями допускается выполнять из сборных многопустотных плит.
10.7 Полы в палатах зданий медицинского назначения, камерах следует предусматривать дощатые беспустотные с креплением к трапециевидным деревянным лагам. Для дощатого покрытия пола в целях исключения устройства схронов следует применять шпунтованные доски толщиной не менее 35 мм, укладываемые в замок "паз-гребень". Пространство между лагами в уровень верха лаг заполняется цементно-песчаным раствором или бетоном для исключения внутренних пустот. Полы в санитарной кабине для установки унитаза при камере (санитарном узле при медицинской палате) следует выполнять с перепадом ниже отметки дощатого пола на 10 - 15 мм с устройством покрытия из керамической плитки по цементно-песчаной стяжке и устройством гидроизоляции. Все деревянные элементы полов до монтажа следует обрабатывать антисептирующими составами.
Дощатые полы в палатах зданий медицинского назначения, камерах по периметру помещений следует укреплять деревянными брусками сечением не менее 50 x 50 мм с их креплением к стенам и доскам пола. Применение стандартных деревянных или ПВХ плинтусов при устройстве пола камер не допускается.
Полы в медицинской части с амбулаторией и стационаром, за исключением полов в палатах зданий медицинского назначения, а также в помещениях врачебных и фельдшерских здравпунктов следует предусматривать в соответствии с СП 158.13330, СП 118.13330, СП 2.1.3678.
В помещениях с влажным и мокрым режимами эксплуатации полы следует предусматривать с покрытием из керамической плитки. Полы в помещениях других зданий тюрем следует предусматривать в соответствии с нормативными документами в зависимости от функционального назначения зданий и помещений.
В зданиях тюрем допускается устройство самонивелирующихся наливных полов, допущенных к использованию федеральным органом исполнительной власти по надзору в сфере защиты прав потребителей и благополучия человека, а также отвечающих требованиям норм пожарной безопасности.
Подстилающие слои полов в прогулочных дворах должны выполняться бетонными толщиной не менее 100 мм, покрытия полов следует выполнять из непылящих, нескользких, морозостойких и водостойких материалов с учетом требований СП 29.13330. Устройство покрытий полов прогулочных дворов из штучных материалов, плит, рулонных покрытий, досок не допускается. Конструкция полов прогулочных дворов должна обеспечивать отвод атмосферных осадков. При размещении прогулочных дворов на крыше режимных зданий над помещениями, расположенными под прогулочными дворами, должна устраиваться эксплуатируемая кровля.
10.8 Принимаемые проектные решения по внутренней отделке помещений должны соответствовать требованиям СП 44.13330, помещений медицинского назначения - требованиям СП 2.1.3678, СП 158.13330.
Внутренние поверхности стен камерных помещений, одноместного помещения безопасного места и одноместного помещения для кратковременного нахождения следует штукатурить гладко и окрашивать эмульсионными красками светлых, преимущественно теплых тонов. Для чистовой отделки других помещений зданий тюрем также следует выбирать отделочные материалы светлых, преимущественно теплых тонов.
В цветовых решениях интерьера комнаты психологической разгрузки наиболее целесообразны оттенки синего и зеленого цветов. Не рекомендовано использование красного, оранжевого цветов и оттенков красного цвета.
В зданиях тюрем запрещаются окраска стен и перегородок на путях эвакуации масляными красками, красками на нитрооснове, а также отделка (облицовка) горючими материалами.
Внутренние поверхности стен прогулочных дворов следует штукатурить гладко и окрашивать атмосфероустойчивыми фасадными красками. Наружная чистовая отделка стен прогулочных дворов принимается аналогичной отделке фасадов здания, при котором предусматриваются прогулочные дворы.
В помещениях с влажным и мокрым режимами эксплуатации, а также в помещениях классов чистоты А, Б по СП 2.1.3678 следует предусматривать облицовку стен и перегородок керамической плиткой на всю высоту помещений либо другими влагостойкими материалами, обеспечивающими возможность влажной уборки. Потолки данных помещений окрашиваются водостойкими красками. Допускается предусматривать облицовку стен указанных помещений (за исключением помещений с нормируемыми требованиями к внутренней отделке в составе медицинской части, врачебного и фельдшерского здравпункта, помещений медицинского назначения в других зданиях тюрем) керамической плиткой на высоту 1,8 м; при этом выше облицовки предусматривается окраска стен водостойкими красками.
На поверхности стен и перегородок в коридорах режимных зданий (в камерных блоках) и комнатах обыска допускается предусматривать устройство ленточной панели высотой 250 мм, при этом низ ленточной панели предусматривается на высоте 1600 мм от поверхности пола. Ленточная панель выполняется из материалов, обеспечивающих возможность влажной уборки.
В местах установки умывальников, за исключением камер ШИЗО, следует предусматривать облицовку стен из керамической плитки на высоту 1800 мм от поверхности пола и на ширину не менее 200 мм от оборудования и приборов с каждой стороны.
Для наружной отделки зданий тюрем и внутренней отделки помещений допускается применение инновационных материалов и изделий, разрешенных к использованию федеральным органом исполнительной власти по надзору в сфере защиты прав потребителей и благополучия человека, а также отвечающих требованиям норм пожарной безопасности.
10.9 В местах установки стационарной электроплиты поверхности перегородок, стен, выполненных из горючих материалов, следует изолировать негорючими материалами. Изоляция должна выступать за габариты электроплиты на 100 мм. Электроплита устанавливается на негорючем основании. Толщину изоляционного материала принимают по расчету в зависимости от его теплоизоляционных характеристик.
10.10 Звукоизоляцию и специальные мероприятия по снижению уровня шума в помещениях зданий тюрем следует выполнять в соответствии с положениями СП 51.13330 для жилых комнат (здания (блок помещений) для приезжих, помещения для проведения длительных свиданий), кабинетов и комнат с постоянным рабочим местом персонала зданий тюрьмы.
Ограждающие конструкции (стены и перегородки) комнаты отдыха дежурной смены в блоке помещений дежурной службы должны иметь надежную звукоизоляцию от других помещений, максимальный уровень звука проникающего шума не должен превышать 45 дБА.
Индекс изоляции воздушного шума стенами, перекрытиями и дверями, отделяющими помещение канцелярии, кабинета начальника тюрьмы, кабинета заместителя начальника тюрьмы по организации деятельности оперативно-режимных служб, помещения оперативного отдела и отдела (группы) специального учета от других помещений, должен быть не менее 60 дБ.
Поверхности стен и перегородок внутри помещения аппаратной связи в административном здании должны быть облицованы звукопоглощающими материалами.
10.11 В хозяйственно-складской зоне ворота складов, гаражей следует принимать типовыми: распашными, откатными, подъемными или складывающимися, двери - распашными. Для эвакуации людей в распашных и откатных воротах допускается предусматривать калитки, открывающиеся наружу.
Грузовые рампы (платформы) следует проектировать в соответствии с требованиями СП 56.13330. При реконструкции складских зданий в случае отсутствия перед воротами (входными проемами) складов грузовых рамп с навесами, герметизаторов проема (докшелтеров) необходимо предусматривать козырьки (навесы) над проемами ворот и дверными проемами, предназначенными для осуществления погрузочно-разгрузочных работ. При новом строительстве допускается устройство над проемами ворот и дверными проемами, предназначенными для осуществления погрузочно-разгрузочных работ в складских зданиях, козырьков (навесов) для защиты грузов от воздействия атмосферных осадков.
Требования к эвакуационным путям и выходам, устройству дымоудаления, шлюзов, тамбур-шлюзов, лестничных клеток и лестниц приведены в [3], СП 56.13330, СП 60.13330, СП 1.13130.
Конструкции и материалы оснований и покрытий полов складских помещений следует принимать с учетом восприятия нагрузок от складируемых грузов, вида и интенсивности механического воздействия транспортных средств и в соответствии с требованиями СП 29.13330.
Помещения экспедиций следует отделять от складских помещений с соблюдением требований пожарной безопасности [3], СП 4.13130.
11.1.1 Здания тюрем должны быть оборудованы хозяйственно-питьевым и противопожарным водопроводами, горячим водоснабжением, канализацией и водостоками согласно требованиям СП 30.13330, СП 31.13330, СП 32.13330, СП 118.13330, СП 8.13130, СП 10.13130, [3], [8].
При проектировании элементов и сооружений водопроводно-канализационного хозяйства следует руководствоваться требованиями 5.11, 6.15.
Качество воды, подаваемой на хозяйственно-питьевые нужды, должно соответствовать СанПиН 1.2.3685, СанПиН 2.1.3684.
Необходимость устройства очистных сооружений сточных вод определяется в соответствии с выданными техническими условиями и СП 32.13330.
Необходимость устройства жироуловителей на выпусках канализации определяется требованиями СП 118.13330.
11.1.2 Требования к расходу холодной и горячей воды для осужденных приведены СП 30.13330 и [22].
11.1.3 В каждое камерное помещение (в том числе палату медицинской части) следует предусматривать отдельные вводы систем холодного и горячего водоснабжения. На ответвлении от внутренней сети хозяйственно-питьевого водопровода в коридорах камерного блока и на вводах в палаты зданий медицинского назначения, камеры режимных зданий необходимо предусматривать установку отключающей арматуры. Присоединять санитарно-технические приборы, расположенные в разных камерных помещениях (в том числе палатах медицинской части) в уровне одного этажа, к общему канализационному стояку не допускается. На сетях противопожарного или хозяйственно-противопожарного водопровода следует устанавливать пожарные краны. Число пожарных кранов, источники наружного пожаротушения, расход воды, число пожаров и время их тушения следует определять по 4.9.
11.1.4 Трубопроводы холодного и горячего водоснабжения, канализационные стояки следует размещать за пределами спальных комнат, камер, палат зданий медицинского назначения, одноместных помещений для кратковременного нахождения, одноместных помещений безопасного места и прокладывать в вертикальных штробах или в технических нишах в стенах со стороны коридора. Допускаются размещение трубопроводов и канализационных стояков в приставных коробах при прокладке их в коридорах общежития для хозобслуги, помещений для проведения длительных свиданий, а также прокладка трубопроводов холодного и горячего водоснабжения в исполнении согласно 4.25.
Подводки трубопроводов к санитарным приборам палат зданий медицинского назначения, камер, одноместных помещений безопасного места прокладываются скрыто: трубопроводы водоснабжения - в штрабах, трубопроводы канализации - бетонируются, при этом следует предусматривать надежную фиксацию крепежных элементов лючков сифонов, прочисток и ревизий.
11.1.5 Подводку холодной и горячей воды следует предусматривать:
- к технологическому оборудованию, требующему обеспечения холодной и горячей водой;
- к санитарно-техническим приборам, требующим обеспечения холодной и горячей водой [умывальникам, раковинам, мойкам (ваннам), душевым сеткам и т.п.];
- ко всем зданиям тюрьмы, требующим обеспечения холодной и горячей водой, в зависимости от выбранной конструктивной схемы теплоснабжения учреждения.
К зданиям дополнительных КПП подводку холодной и горячей воды следует предусматривать при наличии уборной в составе помещений. В качестве источника горячего водоснабжения в зданиях дополнительных КПП допускается использование электроводонагревателей.
11.1.6 Санитарные узлы палат зданий медицинского назначения, санитарные кабины камер, одноместных помещений безопасного места необходимо оборудовать антивандальными (из нержавеющей стали) унитазами со сливными бачками и умывальниками; при этом допускается в зависимости от конструктивных особенностей прибора размещение сливного бачка в технической нише за пределами камеры (палаты, помещения). По заданию на проектирование допускается оборудование санитарных узлов палат зданий медицинского назначения, санитарных кабин камер, одноместных помещений безопасного места керамическими унитазами и умывальниками.
В помещениях санитарных узлов, уборных, умывальных, в камерах, одноместных помещениях безопасного места вместо установки умывальника допускается предусматривать раковину для мытья рук.
Комнаты мытья и хранения посуды необходимо оборудовать раковиной, трехсекционной ванной для мытья посуды, трапом диаметром 100 мм, поливочным краном.
Постирочные личного белья осужденных следует оборудовать стиральными машинами, раковиной, трапом диаметром 100 мм, поливочным краном.
Помещения хранения уборочного инвентаря следует оборудовать раковиной для мытья рук, трапом диаметром 50 мм или мелким душевым поддоном (по заданию на проектирование), поливочным краном.
Помещение аккумуляторной следует оборудовать раковиной и трапом диаметром 50 мм. В случае расположения аккумуляторной в подвальном помещении вместо трапа допускается устройство водосборного приемника с автоматической откачкой воды.
11.1.7 Регулирование температуры горячей воды, подаваемой к душевым сеткам санпропускников, душевых для осужденных в режимных зданиях (блоках помещений), постирочным личного белья, следует предусматривать через общий смеситель, располагаемый за пределами указанных помещений.
Для регулирования расхода воды каждая душевая сетка оборудуется регулирующей арматурой.
11.1.8 Для зданий медицинского назначения, санпропускников при новом строительстве и реконструкции следует предусматривать резервное ГВС (централизованное или нецентрализованное). При проведении капитального ремонта зданий медицинского назначения, помещений санпропускников в качестве резервного источника ГВС допускается устанавливать водонагревательные устройства.
В зданиях и помещениях, относящихся к предприятиям общественного питания, следует предусматривать резервное ГВС, а в случае отсутствия технической возможности в качестве резервного источника ГВС допускается устанавливать аварийные источники ГВС - электроводонагреватели.
В комнатах мытья и хранения посуды в зданиях общежития для хозобслуги и режимных корпусов в качестве источника аварийного ГВС следует предусматривать установку электроводонагревателей.
В помещениях пищеблока, помещениях медицинского назначения следует устанавливать аварийные источники ГВС с обеспечением жесткой разводки к местам пользования, которые эксплуатируются в отсутствие централизованного ГВС в период профилактических работ в котельных и на инженерных сетях централизованного ГВС.
11.2.1 При проектировании систем отопления, вентиляции, кондиционирования воздуха в зданиях тюрем, а также тепловых сетей следует выполнять требования действующих нормативных документов, в том числе СП 60.13330, СП 7.13130, СП 124.13330.
Размещение оборудования тепловых пунктов (ИТП, ЦТП), вентиляционных камер, насосных холодильных установок, которые являются источниками шума и вибрации, следует предусматривать в соответствии с требованиями действующих на момент проектирования нормативных документов.
11.2.2 Собственным источником теплоснабжения для зданий тюрем могут быть:
- котельные (в том числе модульные);
- мини-теплоэлектроцентрали.
Для здания стационара или корпуса с постоянным пребыванием больных тепловые сети проектируются первой категории надежности теплоснабжения СП 124.13330.
11.2.3 Отопление зданий, помещений следует проектировать центральным. Отопительные приборы, параметры теплоносителя, предельную температуру на поверхности прибора следует предусматривать в соответствии с действующими на момент проектирования нормативными документами.
11.2.4 Трубопроводы отопления, теплоснабжения приточных установок преимущественно следует прокладывать по чердакам, подвалам, техническим этажам. Допускается прокладка трубопроводов отопления, теплоснабжения приточных установок за подшивными потолками (фальш-потолками), в вертикальных шахтах с поэтажным замоноличиванием, в том числе за фальш-стенами в исполнении, соответствующем требованиям 4.25.
Нагревательные приборы системы отопления в палатах зданий медицинского назначения, камерах, одноместных помещениях безопасного места, одноместных помещениях для кратковременного нахождения должны располагаться под окнами и жестко закрепляться хомутами. Для исключения доступа осужденных, содержащихся в перечисленных помещениях, к конструктивным элементам системы отопления необходимо предусматривать ограждение. Требования к конструкции ограждений трубопроводов отопления и нагревательных приборов системы отопления приведены в 9.3.7, [9], [10].
Во всех остальных помещениях нагревательные приборы системы отопления устанавливают в соответствии с действующими на момент проектирования нормативными документами.
В коридорах с односторонним расположением помещений, переходных галереях (подземных переходах) отопительные приборы следует размещать в нишах для обеспечения нормируемой ширины эвакуационных проходов.
Комната хранения средств противохимической защиты в административном здании тюрьмы предусматривается неотапливаемой.
11.2.5 В помещениях зданий тюрем в зависимости от их назначения следует предусматривать приточно-вытяжную вентиляцию с механическим и естественным побуждением.
Для помещений (блоков помещений) медицинского назначения, магазинов, спортивных корпусов с тиром, прачечных, пищеблоков, ЦТАО, помещений в зданиях хозяйственно-складской зоны тюрьмы расчетные параметры следует определять в соответствии с действующими на момент проектирования нормативными документами с учетом решений технологической части проекта (технологическим заданием).
Расчетную температуру воздуха и кратность воздухообмена в помещениях зданий тюрьмы в холодный период года следует принимать по таблице 11.1.
Таблица 11.1
|
Наименование помещений |
Расчетная температура воздуха, °C |
Кратность воздухообмена за 1 ч | ||
|
Приток |
Вытяжка | |||
|
1 |
Кабинет для индивидуальной психологической работы с сотрудниками; кабинет индивидуальной психологической работы с осужденными; комната для свиданий с адвокатами; комната часового КПП; бюро пропусков; приемная; комната оформления документов; касса; комната приема граждан администрацией; комната отдыха при кабинете начальника тюрьмы; комната заведующего прачечной; комната ветеринарного специалиста; комната заведующего пищеблоком; административные кабинеты, комнаты и помещения (кроме выделенных в отдельные строки настоящей таблицы) |
18 |
2 |
2 |
|
2 |
Библиотека для личного состава; архив; помещение хранения библиотечного фонда; класс служебно-боевой подготовки (при блоке помещений отдела охраны в административном здании); класс служебно-боевой подготовки дежурной службы; класс для проведения инструктажа обысково-маневренной группы; зал совещаний; помещение видеоконференц-связи; кабинет для групповой психологической работы с личным составом; комната отдыха, индивидуальной психологической работы с осужденными, консультаций по общеобразовательной программе; комната отдыха, групповой психологической работы с осужденными |
18 |
Согласно СП 118.13330 | |
|
3 |
Комната психологической разгрузки; медицинский архив |
18 |
- |
1 |
|
4 |
Комната картотеки (в том числе комнаты картотеки при кабинетах сотрудников) |
18 |
- |
2 |
|
5 |
Радиоузел |
18 |
По расчету в зависимости от состава тепловыделяющего оборудования, определяемого проектом, но не менее 20 м3/ч на одного человека | |
|
6 |
Комната отдыха дежурной смены; комната отдыха; комната хранения продуктов питания и приема пищи; комната кухонного наряда |
18 |
2-кратный воздухообмен, но не менее 20 м3/ч на одного человека | |
|
7 |
Помещение группы досмотра транспортных средств и грузов; помещение для караула по конвоированию; ситуационный центр; помещение караула (резервной группы) |
18 |
2-кратный воздухообмен, но не менее 40 м3/ч на одного человека | |
|
8 |
ЦПТКВ; кроссовая; аппаратная связи (аппаратная); комната младшего инспектора (оператора СОТ) |
18 |
По расчету в зависимости от состава тепловыделяющего оборудования, определяемого проектом | |
|
9 |
Серверная |
17 |
В соответствии с ГОСТ Р 58242 | |
|
10 |
Аккумуляторная с тамбуром |
12 |
По расчету в зависимости от состава оборудования, определяемого проектом | |
|
11 |
КХО |
18 |
1-кратный воздухообмен, вентиляция осуществляется посредством смежных помещений | |
|
12 |
Комната чистки оружия |
18 |
8 |
10 |
|
13 |
Комната хранения средств противохимической защиты |
Неотапливаемое |
- |
1 |
|
14 |
Мастерская по ремонту вооружения, спецсредств и химимущества; комната ремонта аппаратуры и хранения материальных ценностей; мастерская по ремонту ТСО, ТСН и средств связи |
18 |
По расчету в соответствии с технологической частью проекта | |
|
15 |
Гардеробная с душевой (или душевыми) в административном здании в составе помещений аптеки, при блоке помещений дежурной службы, в составе помещений вспомогательного и обслуживающего назначения 1: | |||
|
15.1 |
Душевая (душевые) |
25 |
- |
75 м3/ч на одну душевую сетку |
|
15.2 |
Гардеробная |
22 |
Из расчета компенсации вытяжки из душевой (душевых) |
- |
|
16 |
Комната хранения и мытья инвентаря, используемого для проверки передач и посылок |
16 |
4 |
6 |
|
17 |
Электрощитовая |
5 |
- |
1 |
|
18 |
ИТП |
12 |
- |
1 |
|
19 |
Комната ожидания для посетителей; помещение для посетителей, ожидающих свидания |
18 |
По расчету на ассимиляцию избытков теплоты, но не менее 2-кратного воздухообмена | |
|
20 |
КХСИБиАО; помещение хранения личных вещей сотрудников и посетителей; помещение хранения личных вещей осужденных; помещение временного хранения личных вещей прибывших осужденных; помещение хранения люминесцентных ламп, хранения и ремонта светильников и электрооборудования; кладовая; кладовая хранения постельных принадлежностей; помещение хранения имущества и инвентаря; помещение хранения экипировки обысково-маневренной группы; помещение приема, досмотра и хранения передач; помещение приема, досмотра и хранения посылок; помещение выдачи посылок и передач; комната хранения продуктов питания; помещение хранения спортивного инвентаря; помещение хранения уборочного инвентаря; гардеробная хранения рабочей одежды и обуви; помещение хранения тележек |
16 |
- |
1 |
|
21 |
Помещения аптеки, помещения в здании медицинской части, помещения медицинского назначения в других зданиях тюрьмы (кроме указанных в других строках настоящей таблицы) |
В соответствии с СП 158.13330 | ||
|
22 |
Помещения зданий столовой для работников учреждения, магазина продовольственных и непродовольственных товаров (кроме указанных в других строках настоящей таблицы) |
В соответствии с СанПиН 2.3/2.4.3590, СП 118.13330 | ||
|
23 |
Жилые комнаты (при блоке помещений для проведения длительных свиданий; гостинице для приезжих) |
20 |
3 м3/ч на 1 м2 жилой площади | |
|
24 |
Кухня (при здании для приезжих) |
18 |
- |
Не менее 60 м3/ч при электрических плитах и двухконфорочных газовых плитах; не менее 75 м3/ч при трехконфорочных газовых плитах; не менее 90 м3/ч при четырехконфорочных газовых плитах |
|
25 |
Кухня (в блоке помещений для проведения длительных свиданий; отделении (блоке помещений) для осужденных хозобслуги, находящихся в ежегодном оплачиваемом отпуске) |
18 |
- |
Не менее 60 м3/ч (при установке электрических плит) |
|
26 |
Помещение для стирки, сушки и глажения одежды (при гостинице для приезжих); постирочная с сушилкой личного белья (в составе помещений режимного корпуса тюрьмы, помещений карантина); помещения для сушки одежды и обуви (при блоке помещений дежурной службы в административном здании); помещения для сушки одежды и обуви сотрудников отдела охраны (в составе помещений вспомогательного и обслуживающего назначения административного здания); помещение для сушки одежды и обуви (в составе блока помещений общежития для хозобслуги) |
15 |
4 |
6 |
|
27 |
Комната приема пищи и отдыха персонала; комната подогрева и приема пищи; комната подогрева пищи; комната подогрева пищи и хранения продуктов питания |
18 |
По расчету в соответствии с технологической частью проекта | |
|
28 |
Комната мытья и хранения посуды |
20 |
По расчету, но не менее | |
|
4 |
6 | |||
|
29 |
Комната обыска; помещение для досмотра посетителей; одноместное помещение для кратковременного нахождения при комнате обыска |
16 |
1 |
1 |
|
30 |
Спальные комнаты |
18 |
3 м3/ч на 1 м2 площади комнаты | |
|
31 |
1-местная камера; 2-, 4-, 6-местные камеры (за исключением рабочих камер); одноместное помещение безопасного места; сборная камера для прибывающих/убывающих осужденных |
18 |
По расчету на ассимиляцию CO2, но не менее 46 м3/ч на одного человека |
Вентиляция в объеме притока |
|
32 |
Помещение хранения чистых постельных принадлежностей, белья и обменного фонда белья; помещение дневного хранения постельных принадлежностей; помещение обменного фонда постельных принадлежностей, белья, одежды и обуви; помещение хранения обменного фонда белья; центральная кладовая для хранения обменного фонда постельного белья; помещение обменного фонда матрасов, одежды, белья, головных уборов и обуви |
15 |
- |
1 |
|
33 |
Комната для отправления религиозных обрядов |
18 |
- |
2 |
|
34 |
Парикмахерская с местом хранения уборочного инвентаря |
22 |
В соответствии с СП 118.13330, СанПиН 1.2.3685 | |
|
35 |
Комната быта |
18 |
- |
1,5 |
|
36 |
Умывальная |
22 |
- |
1,5 |
|
37 |
Уборная (уборная для посетителей, уборная персонала, уборная для АУП) |
16 |
- |
50 м3/ч на один унитаз, 25 м3/ч на один писсуар |
|
38 |
Санитарный узел (оборудованный унитазом, умывальником и одной душевой сеткой) |
25 |
- |
25 м3/ч |
|
39 |
Мастерская по ремонту обуви, одежды и постельных принадлежностей |
18 |
2 |
3 |
|
40 |
Санпропускник: | |||
|
40.1 |
"Грязное" отделение дезкамеры |
16 |
- |
5 |
|
40.2 |
"Чистое" отделение дезкамеры |
16 |
5 |
- |
|
40.3 |
Душевая |
25 |
- |
75 м3/ч |
|
40.4 |
Раздевальная; одевальная |
22 |
Из расчета компенсации вытяжки из душевой |
- |
|
40.5 |
Помещение для дезинфицирующих средств |
15 |
- |
2 |
|
41 |
Фотолаборатория: | |||
|
41.1 |
Съемочная |
18 |
2 |
2 |
|
41.2 |
Кладовая |
16 |
- |
1 |
|
42 |
Комната для проведения краткосрочных свиданий в кабинах (для осужденных к отбыванию лишения свободы в тюрьме) |
18 |
1,5-кратный воздухообмен на каждую кабину | |
|
43 |
Комната для проведения краткосрочных свиданий, оборудованная столами (для осужденных хозобслуги) |
18 |
По расчету на ассимиляцию избытков теплоты, но не менее 2-кратного воздухообмена | |
|
44 |
Кабина для телефонных переговоров |
18 |
1,5 |
1,5 |
|
45 |
Игровая |
18 |
- |
1,5 |
|
46 |
Рабочие камеры, помещения производственного и складского назначения в составе ЦТА, блока помещений производственных мастерских при ШИЗО |
По расчету в соответствии с технологической частью проекта | ||
|
47 |
Помещения зданий хозяйственно-складской зоны (кроме выделенных в отдельные строки настоящей таблицы) |
По расчету в соответствии с технологической частью проекта, СП 105.13330, [23] | ||
|
48 |
Помещения здания спортивного корпуса с тиром (кроме указанных в других строках настоящей таблицы) |
18 |
В соответствии с СП 118.13330 | |
|
49 |
Отдельные помещения в составе тира: | |||
|
49.1 |
Стрелковая галерея |
18 |
В соответствии с СП 332.1325800 | |
|
49.2 |
Комната для отладки и чистки оружия |
16 |
- |
2 |
|
49.3 |
Помещение хозяйственного инвентаря и материалов |
16 |
- |
1 |
|
50 |
Бокс для транспортных средств резервной группы |
5 |
В соответствии с СП 113.13330 | |
|
51 |
Помещения ветеринарного пункта (кроме указанных в других строках настоящей таблицы): | |||
|
51.1 |
Комната для приема больных собак |
20 |
8 |
10 |
|
51.2 |
Комната для лекарственных средств ветеринарного применения |
18 |
1 |
3 |
|
52 |
Изолятор для больных служебных собак и проведения ограничительных (карантинных) мероприятий |
16 |
8 |
10 |
|
53 |
Помещение для мытья служебных собак |
22 |
3 |
5 |
|
54 |
Помещение хранения специального снаряжения и инвентаря |
10 |
- |
1 |
|
55 |
Помещения морга (кроме указанных в других строках настоящей таблицы) |
В соответствии с СП 158.13330 | ||
|
56 |
Отдельные помещения в составе пищеблока (кроме указанных в других строках настоящей таблицы): | |||
|
56.1 |
Горячий цех |
5 (для расчета дежурного отопления) |
По расчету в соответствии с технологической частью проекта | |
|
56.2 |
Помещение для нарезки и хранения хлеба |
16 |
1 |
1 |
|
56.3 |
Овощной цех (с двумя отделениями); мясной цех; рыбный цех; холодный цех |
16 |
По расчету, но не менее | |
|
3 |
4 | |||
|
56.4 |
Цех готовой продукции |
16 |
2 |
2 |
|
56.5 |
Моечная кухонной посуды; моечная бачков при помещении хранения отходов |
20 |
По расчету, но не менее | |
|
4 |
6 | |||
|
56.6 |
Кладовая сухих продуктов |
12 |
- |
2 |
|
56.7 |
Холодильные камеры пищевых продуктов |
Согласно примечанию 2 к настоящей таблице | ||
|
56.8 |
Помещение фреоновой установки |
16 |
3 |
4 |
|
56.9 |
Помещение хранения отходов в зоне цехов |
12 |
- |
10 |
|
56.10 |
Помещения обработки термосов: | |||
|
56.10.1 |
Моечная термосов |
20 |
По расчету, но не менее | |
|
4 |
6 | |||
|
56.10.2 |
Помещение сушки и хранения термосов |
16 |
- |
1 |
|
56.11 |
Помещение хранения и мытья тележек |
18 |
4 |
6 |
|
56.12 |
Загрузочная; экспедиция |
16 |
3 |
- |
|
56.13 |
Помещение хранения мягкого, твердого инвентаря и оборудования |
16 |
- |
1 |
|
57 |
Отдельные помещения в составе прачечной (кроме указанных в других строках настоящей таблицы): | |||
|
57.1 |
Помещение приемки, сортировки и метки общего грязного белья; помещение для приемки, сортировки и метки больничного грязного белья |
15 |
3,5 |
4,5 |
|
57.2 |
Ожидальная для сдающих общее грязное белье; ожидальная для сдающих больничное (инфицированное больничное) грязное белье |
15 |
7 |
6 |
|
57.3 |
Помещения для дезинфекции постельных принадлежностей и верхней одежды: | |||
|
57.3.1 |
Помещение временного хранения постельных принадлежностей и верхней одежды при "грязном" отделении дезкамеры |
15 |
2 |
3 |
|
57.3.2 |
Помещение временного хранения постельных принадлежностей и верхней одежды при "чистом" отделении дезкамеры; помещение выдачи постельных принадлежностей и верхней одежды |
15 |
1 |
1 |
|
57.3.3 |
Приемная дезкамеры |
18 |
1 |
2 |
|
57.3.4 |
Помещение для разведения дезинфицирующих средств |
15 |
- |
2 |
|
57.4 |
Стиральная общего белья; стиральная больничного белья; сушильная и гладильная |
15 |
По расчету в соответствии с технологической частью проекта, СП 2.1.3678 | |
|
57.5 |
Кладовая стиральных материалов; склад материального обеспечения; помещение выдачи чистого белья |
15 |
1 |
1 |
|
57.6 |
Помещение приготовления стиральных растворов; помещение разборки, починки и хранения чистого белья |
15 |
2 |
3 |
|
57.7 |
Ожидальная для получающих чистое белье |
15 |
2 |
2 |
|
57.8 |
Ремонтно-механическая мастерская |
18 |
2 |
3 |
|
58 |
Мастерская по ремонту одежды и обуви: | |||
|
58.1 |
Мастерская по ремонту обуви; мастерская по ремонту одежды |
18 |
2 |
3 |
|
58.2 |
Кладовые одежды, обуви при мастерской |
16 |
- |
1 |
|
1 Для душевых в составе помещений зданий другого функционального назначения кратность воздухообмена и расчетная температура воздуха принимаются по строке 15.1, для раздевальной или гардеробной при душевой в составе помещений зданий другого функционального назначения - по строке 15.2. Примечание - Температуру воздуха в холодильных камерах следует принимать: для хранения мяса 0 °C; для хранения рыбы -2 °C; для хранения мясных и рыбных полуфабрикатов 0 °C; для хранения овощных полуфабрикатов 2 °C; для хранения молочных продуктов, жиров, гастрономии 2 °C; для хранения кондитерских изделий 6 °C; для хранения продуктов при низкой температуре (мороженого, пельменей и т.п.) -15 °C. Для перечисленных холодильных камер пищевых продуктов вентиляция не требуется. В холодильной камере для хранения фруктов, ягод, овощей и напитков температуру воздуха следует принимать 4 °C, воздухообмен - 4-кратный за одни сутки. | ||||
11.2.6 Во всех спальных комнатах, одноместных помещениях безопасного места, камерных помещениях, одноместных помещениях для кратковременного нахождения следует предусматривать:
- приточную вентиляцию с механическим или естественным побуждением; при этом естественный приток воздуха обеспечивается через регулируемые оконные створки, фрамуги, форточки, клапаны или другие устройства, в том числе автономные стеновые воздушные клапаны с регулируемым открыванием;
- вытяжную вентиляцию с механическим или естественным побуждением.
Магистральный воздуховод механической системы вентиляции следует прокладывать по общему коридору.
Удаление воздуха естественным путем следует предусматривать через внутристенные, пристенные вытяжные каналы (устраиваемые согласно требованиям 4.25), самостоятельные для каждого помещения. Внутристенные каналы следует располагать в стенах, разделяющих помещение камеры (палаты, одноместные помещения) с общим коридором либо световым холлом. Устройство вентиляционных каналов в стенах, разделяющих между собой камеры (в том числе рабочие камеры, палаты, одноместные помещения), не допускается.
Удаление воздуха из палат зданий медицинского назначения, камер, одноместных помещений безопасного места следует предусматривать через санитарные узлы (санитарные кабины) этих помещений.
В случае расположения санитарного узла (санитарной кабины) у наружной стены палаты здания медицинского назначения, камеры, одноместного помещения безопасного места, а также при отсутствии технической возможности устройства внутристенных вентиляционных каналов естественной вентиляции санитарного узла допускается горизонтальная прокладка отдельных участков воздуховодов по помещению (камер, палат, одноместных помещений). При этом данные участки следует выполнять из прямоугольных сварных воздуховодов класса герметичности B по ГОСТ Р ЕН 13779 толщиной не менее 1,5 мм. Монтаж таких участков следует осуществлять вплотную (без зазоров) к стенам и потолку помещений. Выход воздуховода вентиляции санитарного узла (кабины) через наружную стену помещения (камеры, палаты, одноместного помещения безопасного места) и перекрытие запрещен.
Приточные и вытяжные отверстия следует располагать под потолком, за исключением помещений, для которых зоны подачи и удаления воздуха определяются требованиями действующих на момент проектирования нормативных документов. В камерах и палатах зданий медицинского назначения, одноместных помещениях безопасного места, одноместных помещениях для кратковременного нахождения вентиляционные отверстия следует ограждать металлическими решетками (9.3.9), [10].
В случаях размещения помещений в подвальном этаже при проектировании отопления, вентиляции и кондиционирования воздуха следует руководствоваться действующими на момент проектирования нормативными документами с учетом технологических решений проекта.
11.2.7 Очистку воздуха от пыли в системах с искусственным побуждением следует проектировать так, чтобы содержание пыли в подаваемом воздухе не превышало:
- ПДК в атмосферном воздухе населенных пунктов - при подаче его в помещения жилых и общественных зданий;
- 30% ПДК - в воздухе рабочей зоны при подаче его в помещения производственных зданий и сооружений тюрьмы.
Чистота воздуха в помещениях медицинского назначения должна соответствовать требованиям действующих на момент проектирования нормативных документов.
11.2.8 В рабочие комнаты, кабинеты, помещения архива, библиотеки для личного состава, комнату психологической разгрузки и другие помещения с постоянным пребыванием людей подачу приточного воздуха следует предусматривать в верхнюю зону помещений и, при необходимости, в коридор для возмещения объема воздуха, удаляемого из помещений, воздухообмен которых определен по вытяжке.
Допускается часть приточного воздуха, предназначенного для общественных и административно-бытовых помещений, подавать в коридоры или смежные помещения в объеме не более 50% расхода воздуха, предназначенного для обслуживаемого помещения.
11.2.9 Самостоятельные приточные и вытяжные системы должны быть предусмотрены для санпропускников, помещений хранения дезинфицирующих и моющих средств, кабинета рентгенодиагностики и флюорографического кабинета, боксированных палат.
Для остальных помещений в зданиях тюрем самостоятельные вентиляционные системы следует предусматривать по СП 60.13330.
Проектирование естественной вытяжной вентиляции в помещениях с необходимой, но недостаточной инфильтрацией воздуха без установки вентиляционных клапанов не допускается, за исключением помещений с наличием приточной механической вентиляции.
11.2.10 Кондиционирование воздуха в помещениях зданий тюрем (в том числе режимных) следует проектировать по СП 60.13330.
11.2.11 При проектировании должны предусматриваться мероприятия по снижению шума и вибрации.
11.2.12 Аварийную противодымную вентиляцию для удаления дыма при пожаре в зданиях необходимо предусматривать в тех случаях, когда средствами архитектурно-планировочных решений невозможно или экономически нецелесообразно предусмотреть все необходимые мероприятия по обеспечению противодымной защиты в соответствии с действующими на момент проектирования нормативными документами.
11.3.1 Электроприемники зданий и сооружений тюрем следует относить по степени надежности электроснабжения в соответствии с [14].
При проектировании электроснабжения, электрооборудования и электроосвещения зданий и сооружений тюрем следует руководствоваться требованиями ГОСТ Р 50571.28, СП 52.13330, СП 118.13330, СанПиН 1.2.3685, СП 158.13330, СП 256.1325800, [14], [24] и других действующих на момент проектирования нормативных документов.
При выборе технологического и электрооборудования необходимо руководствоваться требованиями [4].
11.3.2 Распределительные трансформаторные подстанции, трансформаторные подстанции, распределительные пункты и дизельные электростанции должны предусматриваться закрытого типа, отдельно стоящими и должны располагаться вне территории режимной зоны тюрьмы.
Дизельную электростанцию следует располагать на локальной зоне (изолированной территории) тюрьмы в непосредственной близости от административного здания.
11.3.3 Электроснабжение электроприемников особой группы первой категории (устройств пожарной сигнализации, подсистем ИСБ), а также электроприемников первой категории (аварийного освещения помещений, дежурного освещения, охранного освещения, пожарных насосов, систем аварийной и противодымной вентиляции, лифтов) в аварийном режиме должно осуществляться от резервного источника питания (дизельной электростанции). На время запуска дизельной электростанции для электропитания электроприемников особой группы первой категории следует предусматривать ИБП.
11.3.4 На территории тюрем все электрические сети независимо от напряжения должны выполняться только кабелями и прокладываться в земле (траншеях) на глубине не менее 0,7 м от планировочной отметки земли с обеспечением защиты кабельных линий в соответствии с [14].
11.3.5 В зданиях и сооружениях тюрем следует предусматривать искусственное освещение: рабочее, аварийное (эвакуационное и резервное) и дежурное.
Оборудование, применяемое для освещения зданий, помещений и сооружений тюрем, должно соответствовать требованиям [4].
11.3.6 Для рабочего освещения служебных помещений следует предусматривать светильники с люминесцентными либо светодиодными лампами, за исключением помещений с неблагоприятными условиями среды и временным пребыванием людей, где необходимо предусматривать светильники с компактными люминесцентными либо светодиодными лампами.
11.3.7 В спальных комнатах, камерах, палатах зданий медицинского назначения, одноместных помещениях безопасного места следует предусматривать рабочее, аварийное и дежурное освещение.
В спальных комнатах общежития для хозобслуги управление рабочим освещением следует обеспечивать непосредственно из комнат, при этом следует предусматривать возможность управления им для каждого этажа здания из кабинета начальника отряда.
Управление рабочим освещением камер, палат зданий медицинского назначения, одноместных помещений безопасного места необходимо обеспечивать выключателями, устанавливаемыми вне этих помещений.
Управление дежурным освещением должно быть предусмотрено из помещения младшего инспектора (оператора СОТ) здания, в общежитии для хозобслуги - кабинета начальника отряда.
При числе светильников рабочего освещения в палатах зданий медицинского назначения, камерах, боксированных палатах более одного рекомендуется установка не менее двух выключателей.
Для дежурного освещения используются светильники (патроны) с компактными люминесцентными или светодиодными лампами, устанавливаемые над дверью, в камерах, палатах зданий медицинского назначения, одноместных помещениях безопасного места - в нишах над дверным проемом.
Для рабочего освещения предусматриваются светильники, устанавливаемые на потолке. Тип ламп для рабочего освещения камер, в том числе рабочих камер, палат зданий медицинского назначения, спальных комнат, одноместных помещений безопасного места (люминесцентные лампы, компактные люминесцентные лампы, светодиодные лампы и др.) следует определять заданием на проектирование.
Для освещения изолированных санитарных узлов (санитарных кабин) палат зданий медицинского назначения, камер, в том числе рабочих камер, одноместных помещений безопасного места следует предусматривать патроны с компактными люминесцентными или светодиодными лампами, устанавливаемые в нише, огражденной металлической решеткой (9.3.8). Управление освещением должно осуществляться в автоматическом режиме посредством ИК-детектора включения освещения, реагирующего на присутствие человека в помещении санитарного узла (санитарной кабины). ИК-детекторы включения освещения следует устанавливать в нише совместно с патронами для ламп. Допускается установка ИК-детекторов непосредственно на стене помещения санитарного узла (санитарной кабины) при условии исключения возможности доступа осужденных к токоведущим частям детектора и вывода из строя оборудования.
11.3.8 Аварийное освещение (эвакуационное и резервное) предусматривается согласно требованиям СП 52.13330, СП 439.1325800, в том числе:
- в кабинетах начальника и заместителей начальника тюрьмы;
- комнате ДПНТ;
- ЦПКТВ;
- ситуационном центре;
- серверной;
- проходном коридоре КПП;
- шлюзе для досмотра и пропуска транспортных средств;
- над местом для заряжания (разряжания) оружия на площадке дежурной службы;
- в помещении приема, досмотра и хранения посылок;
- помещении приема, досмотра и хранения передач;
- КХСИБиАО;
- КХО;
- комнате чистки оружия;
- комнате начальника склада вооружения, спецсредств и химического имущества;
- комнате хранения средств противохимической защиты;
- помещении караула (резервной группы);
- комнате часового КПП;
- комнате группы досмотра транспортных средств и грузов;
- классе служебно-боевой подготовки работников дежурной службы;
- комнате ожидания для посетителей;
- комнате приема граждан администрацией тюрьмы;
- комнате младшего инспектора (в том числе оператора СОТ) во всех зданиях;
- спальных комнатах;
- камерах;
- палатах зданий медицинского назначения;
- одноместных помещениях безопасного места;
- в других помещениях с постоянным и временным пребыванием осужденных (перечень помещений конкретизируется заданием на проектирование);
- помещениях, возможных к использованию осужденными или посетителями, относящимися к МГН, во всех зданиях.
Светильники аварийного освещения выделяются из числа светильников рабочего освещения.
11.3.9 Освещенность камер, боксированных палат, палат стационаров зданий медицинского назначения должна составлять 300 лк; рабочих камер - определяется при проектировании в зависимости от вида производимых работ; спальных комнат общежития для хозобслуги, одноместных помещений безопасного места - 150 лк; прогулочных дворов - 20 лк.
11.3.10 Для подключения бытовых приборов в камерах (за исключением камер ШИЗО), палатах зданий медицинского назначения, одноместных помещениях безопасного места следует предусматривать штепсельные розетки. Управление подачей электроэнергии к штепсельным розеткам в указанных помещениях должно осуществляться из помещения младшего инспектора (с поста оператора СОТ). Оборудование розеток в спальных комнатах общежитий, складских помещениях, а также в помещениях хранения личных вещей осужденных не допускается.
Число розеток:
- одна розетка - в одноместной камере (за исключением одноместных камер ШИЗО), одноместном помещении безопасного места, одноместной палате;
- одна розетка на двух осужденных - в многоместной камере (за исключением многоместных камер ШИЗО), многоместной палате.
В коридорах камерного блока следует устанавливать штепсельные розетки для подключения переносного электрооборудования и уборочных механизмов. Розетки следует устанавливать на расстоянии, обеспечивающем возможность использования переносного электрооборудования и уборочных механизмов с питающим проводником длиной до 15 м.
В рабочих камерах для электроснабжения производственного оборудования должно быть предусмотрено электропитание ~ 380/220 В. Число и места установки штепсельных розеток в рабочих камерах определяются в соответствии с видом производства и количеством производственного оборудования.
В сетях ~ 380/220 В, питающих штепсельные розетки, устанавливаемые в помещениях для содержания осужденных (в камерах, палатах зданий медицинского назначения, одноместном помещении безопасного места), а также штепсельные розетки и силовые разъемы для производственного оборудования в рабочих камерах, должна предусматриваться установка устройств защитного отключения с номинальным током срабатывания не более 30 мА или дифференциальных автоматических выключателей. Розетки, устанавливаемые в перечисленных помещениях, должны быть защищены устройством, автоматически закрывающим гнезда штепсельной розетки при вынутой вилке (защитные шторки).
11.3.11 Проводка в помещениях с постоянным и временным пребыванием осужденных должна выполняться скрытой.
11.4.1 На территории тюрем, в том числе в зданиях и сооружениях, должна предусматриваться трансляция общегосударственных передач проводного или эфирного радиовещания. Оборудование приема и усиления сигналов следует размещать в помещении радиоузла в составе административного здания тюрьмы.
11.4.2 Громкоговорители системы радиофикации устанавливаются во всех административных кабинетах и комнатах, в комнатах и кабинетах медицинских работников и врачебного приема, библиотеке для личного состава, спальных комнатах, комнатах отдыха, камерах, палатах зданий медицинского назначения, одноместных помещениях безопасного места, в местах построения осужденных. Дополнительные места установки громкоговорителей системы радиофикации определяются заданием на проектирование.
В камерах, палатах зданий медицинского назначения, одноместных помещениях безопасного места громкоговорители следует устанавливать в нишах, предусматриваемых во внутренних стенах, разделяющих помещение и общий коридор, и ограждать металлической решеткой [10].
В местах построения осужденных следует устанавливать рупорные оконечные устройства.
Допускается в зданиях использование коммуникаций системы радиофикации совместно с СГГС, СОУЭ в случае использования речевого оповещения. В таком случае громкоговоритель не должен иметь внешних регуляторов громкости.
11.4.3 В тюрьмах предусматривается возможность приема общегосударственных программ системы эфирного вещательного телевидения. Допускается по заданию на проектирование организация системы спутникового телевидения.
Телевизионные розетки устанавливаются: в камерах (за исключением камер ШИЗО, рабочих камер); кабинете для индивидуальной психологической работы с осужденными; комнате отдыха, индивидуальной психологической работы с осужденными, консультаций по общеобразовательной программе; комнате отдыха, групповой психологической работы с осужденными; комнатах отдыха для осужденных; комнате отдыха при кабинете начальника тюрьмы. Дополнительные места установки телевизионных розеток определяются заданием на проектирование.
11.4.4 Здания тюрем должны быть оборудованы системой электрочасофикации. Размещение часов следует предусматривать в коридорах административного здания тюрьмы, режимных зданий, в комнатах дежурных младших инспекторов, а также в следующих помещениях:
- административное здание - приемная, помещение караула (резервной группы), ЦПТКВ, ситуационный центр, проходной коридор основного КПП, зал совещаний, класс служебно-боевой подготовки;
- здание (блок помещений) для проведения длительных и краткосрочных свиданий - комната для проведения краткосрочных свиданий, общие коридоры.
В зоне видимости осужденных, находящихся в прогулочных дворах, следует устанавливать уличные часы, показывающие местное время.
11.4.5 В тюрьмах помимо СОДС, выполняемой в соответствии с требованиями [9], следует предусматривать городскую и административно-хозяйственную телефонную связь.
Городская телефонная связь от городской АТС должна предусматриваться в кабинетах руководства тюрьмы, начальников отделов (групп) и их заместителей, комнате ДПНТ, ЦПТКВ, помещении ситуационного центра, кабинах телефонных переговоров, а также в других помещениях, определяемых заданием на проектирование.
Административно-хозяйственная телефонная связь от АТС тюрьмы должна предусматриваться в кабинетах и служебных помещениях начальствующего состава, рабочих и служащих тюрьмы. Состав помещений, обеспечиваемых административно-хозяйственной телефонной связью, следует устанавливать заданием на проектирование в зависимости от состава помещений здания и их функционального назначения.
11.4.6 Прокладку кабельных линий в камерных помещениях следует осуществлять скрытой.
12.1 При проектировании тюрем необходимо предусматривать следующие средства и системы ТСОН:
- технические средства и системы (подсистемы) охранно-тревожной сигнализации (СОТС);
- технические средства и системы (подсистемы) охранного телевидения (СОТ);
- технические средства и системы (подсистемы) контроля и управления доступом (СКУД);
- технические средства и системы (подсистемы) оперативно-диспетчерской связи (СОДС);
- технические средства и системы (подсистемы) громкоговорящей связи (СГГС);
- приборы контроля и досмотра.
Состав оборудования ТСОН допускается уточнять заданием на проектирование.
При новом строительстве тюрем указанные выше технические средства, системы и подсистемы следует объединять в ИСБ тюрьмы.
При наличии технической возможности в ходе реконструкции и капитального ремонта объектов тюрем вышеуказанные технические средства, системы и подсистемы целесообразно объединять в ИСБ тюрьмы.
Требования к оборудованию средствами ТСОН, в том числе подсистемами ИСБ, приведены в [9], иных нормативных правовых актах, регламентирующих вопросы обеспечения охраны, надзора и инженерно-техническое оборудование объектов УИС РФ, с учетом положений 4.10, 6.4 - 6.7, 6.10 и раздела 9.
12.2 Шкафы с оборудованием ТСН, в том числе с коммутационным, на внутренней территории тюрьмы следует располагать в технических помещениях (аппаратных, кроссовых). При реконструкции и капитальном ремонте зданий тюрем допускается по заданию на проектирование располагать шкафы с оборудованием ТСН в коридорных нишах в шкафах, блокируемых охранной сигнализацией.
При новом строительстве шкафы с оборудованием ТСО, в том числе коммутационным, в пределах запретной зоны следует располагать на противопобеговом заграждении.
Дверцы распределительных шкафов должны быть оборудованы запорными устройствами. Дверцы распределительных шкафов, в которых осуществляется распайка сигнальных жил от датчиков обнаружения, оборудуются датчиками блокировки на открывание.
12.3 Требования к оборудованию помещений КХО, КХСИБиАО административного здания средствами охраны и охранного телевидения приведены в [9].
12.4 Помещение кассы в административном здании тюрьмы оборудуется двумя рубежами обнаружения:
- первым рубежом блокируются двери, стены некапитального исполнения и окна;
- вторым рубежом блокируется помещение кассы с использованием объемных охранных извещателей.
В помещении устанавливается кнопка тревожной сигнализации с выводом сигнала в помещение ЦПТКВ.
12.5 Требования к оборудованию здания (блока помещений) для проведения длительных и краткосрочных свиданий приведены в [9], [10]. Сигналы от охранных извещателей, установленных в здании (блоке помещений) для проведения длительных и краткосрочных свиданий, следует выводить в помещение ЦПТКВ.
12.6 В режимных зданиях (помещениях) следует блокировать: все окна общего коридора (при их наличии в общих коридорах) в пределах камерных блоков; двери каждой камеры, спальной комнаты, прогулочного двора; дверцы окон в камерных дверях (каждая камерная дверь и дверца окна в камерной двери выполняются отдельными шлейфами); решетчатые двери в отсекающих поперечных решетчатых перегородках в торцах камерных блоков.
Необходимость блокировки извещателями системы СОТС конструкций и элементов режимных зданий определяется согласно [9]. Блокировке извещателями системы СОТС в режимных зданиях не подлежат следующие элементы и конструкции помещений, функционально предназначенных для содержания осужденных:
- наружные, внутренние стены (перегородки), покрытия и перекрытия при их толщине не менее нормативной или укрепленные арматурной сеткой при их толщине менее нормативной (раздел 10);
- полы при толщине бетонного основания (перекрытия) не менее 120 мм или укрепленные арматурной сеткой при толщине бетонного основания менее 120 мм;
- полы, не имеющие доступа со стороны подвала, техподполья;
- потолки, не имеющие доступа со стороны чердачных помещений.
При реконструкции зданий наружные, внутренние стены, перегородки, перекрытия (покрытия), полы в случае снижения их нормативной толщины и невозможности применения укрепления арматурной сеткой, а также полы (потолки), имеющие доступ со стороны подвала, техподполья, технического этажа, чердачных помещений, следует блокировать на пролом.
12.7 Прокладку кабельных линий систем ТСОН в пределах камерных помещений следует выполнять скрытой - в подпольных каналах, штрабе. В остальных случаях способ прокладки кабельной линии определяется проектом.
12.8 По степени обеспечения надежности электроснабжения электроприемники установок средств систем ТСОН следует относить к потребителям особой группы первой категории.
12.9 Требования к оборудованию переговорными устройствами с вызывными кнопками наружных дверей (за исключением дверей эвакуационных выходов) в тамбур проходного коридора основного КПП и аптеку в административном здании тюрьмы, в здании для проведения длительных и краткосрочных свиданий, в режимных зданиях, а также калитки в ограждении локальных изолированных участков приведены в [9].
12.10 Средства электропитания должны обеспечивать:
- бесперебойное электроснабжение всех элементов комплекса ТСО;
- стабильность тока и напряжения в пределах норм, оговариваемых в технической документации на аппаратуру;
- независимость электропитания приемников ТСО от других потребителей;
- автоматическое переключение с основного источника питания на резервный без перерывов в работе аппаратуры. На случай непредвиденного перерыва при переключении на резервный источник питания следует предусматривать ИБП с встроенными комплектными аккумуляторными батареями, которые не требуют специального помещения;
- контроль за параметрами тока и напряжения, защиту от перегрузок и короткого замыкания;
- безопасность и удобство эксплуатации.
12.11 Место установки устройств управления электропитанием допускается определять проектом, при этом устройства управления электропитанием необходимо располагать в непосредственной близости от помещения ЦПТКВ.
12.12 Заземление станционных устройств, периметровой аппаратуры, кабельных устройств должно предусматриваться в соответствии с требованиями, приведенными в [14], с учетом физико-механических свойств грунтов площадки.
12.13 Периметр тюрем следует оборудовать охранным освещением.
Охранное освещение предназначено для освещения запретной зоны и подходов к ней со стороны внутренней территории.
Светильники, прожекторы охранного освещения располагаются на специальных стойках (мачтах), размещаемых на внутренней тропе наряда на расстоянии 1,0 м от противопобегового заграждения, над видеокамерами СОТ.
В качестве осветительных приборов используют светильники, прожекторы со светодиодными, ртутными, натриевыми, металлогалогенными лампами. По заданию на проектирование допускается применение других типов ламп.
Типы, число, высота размещения осветительных приборов охранного освещения, интервал между стойками (мачтами) определяются проектной документацией с учетом обеспечения стабильной работы видеокамер (исключение засветок) и обеспечения освещенности запретной зоны, включая верхний срез основного ограждения, и прилегающей к ней внутренней территории не менее 20 лк.
12.14 Охранное освещение разделительного ограждения между смежно расположенными зонами в периметре охраны обеспечивается светильниками, которые размещаются на стойках (мачтах), устраиваемых в створе разделительного ограждения, на высоте не менее 8,0 м от уровня земли.
В качестве осветительных приборов используются светильники, прожекторы со светодиодными, ртутными, натриевыми, металлогалогенными лампами. По заданию на проектирование допускается применение других ламп.
Типы и число осветительных приборов, высота стоек (мачт) освещения разделительного ограждения, расстояния между ними определяются проектной документацией с условием обеспечения освещенности территории, прилегающей к разделительному ограждению, не менее 20 лк.
12.15 Питающие и распределительные линии охранного освещения следует прокладывать независимо от других электросетей. Фидер резервного питания охранного освещения должен прокладываться отдельно от основного (рабочего) фидера.
13.1 Мероприятия по пожарной безопасности земельных участков территорий, зданий, помещений, сооружений тюрем, в том числе выбор конструкций и материалов при проектировании зданий и сооружений тюрем, а также применение облицовочных, отделочных и других материалов следует осуществлять в соответствии с [2], [3], [8], СП 1.13130, СП 3.13130, СП 4.13130, СП 6.13130, СП 7.13130, СП 8.13130, СП 10.13130, СП 11.13130, СП 484.1311500, СП 485.1311500, СП 486.1311500. При этом вопросы обеспечения пожарной безопасности режимных зданий СИЗО в части, касающейся соблюдения режима содержания и изоляции подозреваемых и обвиняемых, должны решаться комплексно, с выполнением требований [5], [6].
13.2 Отдельно расположенные здания и помещения производственного и складского назначения, а также гаражи должны соответствовать действующим противопожарным требованиям соответствующих норм проектирования в зависимости от их функционального назначения.
13.3 Помещения тюрем необходимо обеспечивать первичными средствами пожаротушения в соответствии с [25].
13.4 Степень огнестойкости зданий и сооружений тюрем должна соответствовать требованиям 9.1.
13.5 В соответствии с [3] здания тюрем (сооружения, пожарные отсеки и части зданий, сооружений - помещения или группы помещений, функционально связанные между собой) в зависимости от их назначения относятся к следующим классам функциональной пожарной опасности:
- Ф1.1 - стационар медицинской части (режимное здание); изолятор медицинской части (режимное здание);
- Ф1.2 - режимный корпус (режимное здание); сборное отделение с карантином (режимное здание); здание (блок помещений) ШИЗО (режимное здание); блок помещений для проведения длительных свиданий; здание (блок помещений) для приезжих; общежитие для осужденных хозобслуги, находящихся в ежегодном оплачиваемом отпуске; общежитие для хозобслуги; общежитие для работников УИС РФ;
- Ф3.1 - магазин продовольственных и непродовольственных товаров;
- Ф3.2 - столовая для работников учреждения; пищеблок;
- Ф3.4 - морг; амбулатория;
- Ф3.5 - помещение для отправления религиозных обрядов; парикмахерская; прачечная;
- Ф3.6 - спортивный корпус с тиром (или отдельно тир);
- Ф4.1 - помещения профессиональной образовательной организации (в ЦТАО);
- Ф4.3 - блок помещений для проведения краткосрочных свиданий; административное здание; КПП (всех типов); служебное здание городка для содержания служебных собак с кинодромом;
- Ф4.4 - здание подразделения ведомственной пожарной охраны;
- Ф5.1 - мастерские по ремонту одежды и обуви; производственные здания, помещения и сооружения; здание ЦТАО (режимное здание);
- Ф5.2 - складские здания, помещения и сооружения; гараж с помещениями для ремонта и обслуживания автотранспорта; бокс для транспортных средств резервной группы.
13.6 При проектировании систем вентиляции и кондиционирования противопожарные мероприятия следует предусматривать в соответствии с СП 7.13130 и 11.2.12.
13.7 Прибор приемно-контрольный и управления пожарный устанавливают в помещении согласно СП 484.1311500. В режимных зданиях на посту у камер устанавливают модули индикации и управления. Дублирование сигналов "Пожар" (с указанием места возгорания), "Неисправность прибора" осуществляется в помещения комнаты ДПНТ, помещения пожарного поста здания подразделения ведомственной пожарной охраны (пожарное депо) (при ее наличии в учреждении). При этом при отсутствии здания подразделения ведомственной пожарной охраны сигнал о возникновении пожара в зданиях классов функциональной пожарной опасности Ф1.1, Ф1.2 дублируется в ближайшее подразделение Государственной противопожарной службы без участия персонала тюрьмы.
13.8 Здания, сооружения, помещения необходимо оборудовать системой автоматической пожарной сигнализации и установками автоматического пожаротушения, СОУЭ в соответствии с СП 3.13130, СП 484.1311500, СП 485.1311500, СП 486.1311500.
13.9 При возникновении сигнала "Пожар" в режимных зданиях с наличием в их составе камерных помещений объявляется тревога подачей сигнала на пост ДПНТ. При этом по сигналу на посту ДПНТ немедленно в место возникновения пожара направляется группа сотрудников согласно внутренним инструкциям учреждения для осуществления безопасной эвакуации осужденных из камерных помещений. Устройство электромеханических замков на дверях камерных помещений и их управление при возникновении чрезвычайной ситуации должны обеспечивать одновременную разблокировку дверей камер камерного сектора из комнаты ДПНСИ, кабинета оператора СОТ по соответствующему режимному зданию.
13.10 В составе тюрем для обеспечения расчетного расхода воды для наружного пожаротушения следует предусматривать пожарные водоемы, пожарные резервуары, пожарные гидранты в соответствии с требованиями [3], [8], СП 8.13130. Пожарные водоемы, пожарные резервуары, гидранты допускается размещать в режимной, хозяйственно-складской, локальной зонах и на неохраняемой территории.
Пожарные водоемы или резервуары, приемные колодцы и гидранты следует размещать на площадках, обеспечивающих свободный подъезд пожарной техники к ним. Кроме того, за пределами режимной зоны тюрьмы вблизи административного здания с основным КПП следует предусматривать пожарный водоем (резервуар) емкостью 100 м3 или гидрант.
13.11 Пожарные водоемы (резервуары) и приемные колодцы следует размещать из условий обслуживания ими зданий, находящихся в радиусе:
- при наличии автонасосов - 200 м;
- при наличии мотопомп - 100 - 150 м, в зависимости от типа мотопомп.
Требования к охране окружающей среды принимаются по СП 247.1325800.2016 (раздел 23).
Приложение А
А.1 Административное здание с основным КПП
В комнате отдыха дежурной смены (для мужчин и женщин) размещаются: кушетки на 50% численности дежурной смены (из числа сотрудников мужского или женского пола соответственно), прикроватные тумбочки, стулья, шкаф для одежды, шкаф для постельных принадлежностей.
В комнате подогрева и приема пищи для дежурной службы устанавливаются: столы и стулья с числом посадочных мест на 50% численности работников дежурной смены, стационарная электроплита, микроволновая печь, электрический водонагреватель (при отсутствии централизованного ГВС), бытовой холодильник, раковина, рабочий стол, шкаф для кухонной и столовой посуды, электрический чайник.
В КХО необходимо размещать следующие мебель и оборудование:
- стенд с документацией;
- однотумбовый стол или тумбочка;
- табурет;
- огнетушители (не менее двух);
- металлические шкафы (пирамиды) для хранения автоматов, пулеметов, снайперских винтовок, гранатометов, штык-ножей;
- металлические шкафы для хранения боевых, учебных, сигнальных, спортивных пистолетов и боеприпасов для несения службы;
- металлические шкафы (пирамиды) для хранения незакрепленного оружия;
- металлические шкафы (пирамиды) для хранения учебного и спортивного оружия;
- металлические шкафы для хранения автоматных патронов из состава боевого запаса, предназначенных для несения службы;
- металлические шкафы для хранения учебных патронов;
- металлические шкафы для хранения боеприпасов боевого запаса;
- металлические шкафы для хранения боеприпасов на боевую подготовку;
- металлические шкафы (шкатулки) для хранения специальных изделий;
- шкафы (пирамиды) для хранения противогазов;
- шкафы для хранения изолирующих противогазов (исходя из потребности).
КХСИБиАО оборудуется: стендом с документацией, однотумбовым столом, металлическими шкафами (шкатулками) и стеллажами для хранения средств индивидуальной бронезащиты, средств активной обороны, металлическими шкафами для хранения всех средств связи, примерочной кабиной с зеркалом.
В комнате чистки оружия необходимо устанавливать: столы (разборные, складные или пристенные), закрывающийся металлический ящик для сбора промасленной ветоши, бачок со смазкой, оборудованный разборным краном, огнетушители (не менее двух), плакаты по материальной части оружия, умывальник (раковина).
Комната хранения средств противохимической защиты оборудуется водонепроницаемыми шкафами (ящиками) для регенеративных патронов.
Комнату начальника склада вооружения, спецсредств и химического имущества следует оборудовать: письменным столом, рабочим креслом, книжным шкафом, металлическим шкафом, шкафом для одежды.
Оборудование мастерской по ремонту вооружения, спецсредств и химического имущества следует предусматривать в соответствии с заданием на проектирование, в зависимости от объемов ремонта и технического обслуживания оружия, спецсредств и химического имущества.
Класс служебно-боевой подготовки оборудуется: однотумбовым столом для преподавателя, аудиторными столами и стульями, книжным шкафом (допускается использование книжных полок), подставкой (кронштейном) для телевизора, телевизором с USB-разъемом или DVD-проигрывателем, металлическим шкафом, учебной доской. По заданию на проектирование класс служебной подготовки допускается оборудовать компьютерами, принтером, столом (подставкой) для оргтехники, громкоговорителями, видеопроектором и интерактивной учебной доской.
В гардеробных работников следует предусматривать шкафы, оборудованные вешалками и полками для головных уборов и индивидуальных средств защиты, и скамьи.
В комнате психологической разгрузки следует предусматривать размещение: кресел, диванов, телевизора с USB-разъемом или DVD-проигрывателем, столиков для газет и литературы, аквариума (аквариумов), комнатных растений и т.п. По заданию на проектирование допускается комнату психологической разгрузки оборудовать компьютерами и видеопроекторами с экраном.
В помещении приема, досмотра и хранения посылок (либо в помещении приема, досмотра и хранения передач), отсекающем тамбуре проходного коридора основного КПП предусматривается рентгенотелевизионная установка для проведения досмотра посылок, передач, личных вещей, ручной клади.
Комната персонала в блоке помещений аптеки оборудуется: столом для приема пищи, стульями, стационарной электроплитой для подогрева пищи или микроволновой печью, бытовым холодильником, электрическим чайником, хозяйственным шкафом, раковиной, полкой для туалетных принадлежностей, производственным столом, диваном.
В кабинете начальника тюрьмы следует предусматривать размещение: двухтумбового письменного стола, стола для заседаний, кресла для начальника, кресел (стульев) для посетителей, шкафа для одежды, книжных шкафов, сейфа, металлического шкафа, электрического чайника, персонального компьютера, бытового холодильника, телевизора, уничтожителя документов, принтера или многофункционального устройства (принтер, ксерокс, сканер), кулера, микроволновой печи, кондиционера или вентилятора (по заданию на проектирование).
В комнате отдыха при кабинете начальника тюрьмы следует предусматривать размещение: журнального стола, тумбы для телевизора, телевизора, шкафа для одежды, книжного шкафа, дивана, электрического чайника, бытового холодильника.
В кабинете заместителя начальника тюрьмы (независимо от курируемого направления деятельности) следует предусматривать размещение: двухтумбового письменного стола, стола для заседаний, кресла для заместителя начальника, кресел (стульев) для посетителей, шкафа для одежды, книжных шкафов, металлического шкафа, электрического чайника, персонального компьютера, бытового холодильника, уничтожителя документов, принтера или многофункционального устройства (принтер, ксерокс, сканер), микроволновой печи, вентилятора.
В кабинете начальника отдела тюрьмы (независимо от курируемого направления деятельности) следует предусматривать размещение: двухтумбового письменного стола, подкатной тумбы, приставной тумбы, кресла, стульев, шкафа для одежды, книжных шкафов, металлического шкафа, электрического чайника, персонального компьютера, бытового холодильника, уничтожителя документов, принтера или многофункционального устройства (принтер, ксерокс, сканер), микроволновой печи, вентилятора.
В кабинетах сотрудников отделов на каждого сотрудника следует предусматривать размещение: двухтумбового письменного стола (для заместителей начальников отделов и главных специалистов отделов), письменного стола (кроме заместителей начальников отделов и главных специалистов отделов), компьютерного стола, офисной тумбы, тумбы под оргтехнику (одной на кабинет), кресла, стула, шкафа для одежды (одного на трех сотрудников отдела), книжного шкафа (одного на четырех сотрудников отдела), металлического шкафа (одного на кабинет), электрического чайника (одного на кабинет), персонального компьютера, бытового холодильника (одного на отдел), принтера или многофункционального устройства (принтер, ксерокс, сканер) (одного на кабинет), микроволновой печи (одной на отдел), вентилятора (одного на кабинет).
В остальных помещениях административного здания тюрьмы в зависимости от функционального назначения помещений предусматриваются и размещаются мебель и необходимые для работы сотрудников оборудование и организационная техника, которые, при необходимости, конкретизируются в задании на проектирование.
Комната обыска в блоке помещений основного КПП при административном здании оснащается: однотумбовым столом, табуретом, настенной вешалкой на три - пять крючков, ручным металлодетектором (металлообнаружителем), напольным ковриком, контейнером для сбора личных вещей обыскиваемых лиц.
А.2 Общежития
В спальных комнатах общежитий для хозобслуги необходимо предусматривать размещение следующего оборудования:
- металлическая двухъярусная кровать по числу осужденных;
- прикроватные тумбочки (одна на двух осужденных);
- табуретки (одна на каждого осужденного);
- письменный стол;
- подставка под бак с питьевой водой;
- вешалка для одежды;
- настенные часы.
В спальных комнатах отделения (блока помещений) для осужденных хозобслуги, находящихся в ежегодном оплачиваемом отпуске, необходимо предусматривать размещение следующего оборудования:
- кровать (одна на каждого осужденного);
- прикроватные тумбочки (одна на каждого осужденного);
- полумягкий стул (один на каждого осужденного);
- письменный стол;
- книжная полка;
- шкаф для одежды.
В комнате отдыха, групповой психологической работы с осужденными в общежитиях для хозобслуги предусматривается размещение: ученических столов, стульев, стола преподавателя, шкафов для пособий и игр, стола для настольных игр, телевизора, ученической доски.
В комнате хранения продуктов питания и приема пищи устанавливаются:
- 4-, 6-местные обеденные столы и столовые стулья на количество посадочных мест;
- настенные шкафы для хранения продуктов питания - одна ячейка (полка) на одного человека;
- навесной шкаф для посуды;
- производственный стол;
- бытовая электроплита;
- электрокипятильник;
- бытовые холодильники (количество принимается по заданию на проектирование);
- раковина.
В комнате мытья и хранения посуды устанавливаются: моечные ванны (не менее трех) с подводкой горячей и холодной воды, стол для сбора остатков пищи, навесной шкаф для хранения посуды, настенная кассета для тарелок, навесная полка для хранения моющих средств.
В комнате подогрева пищи устанавливается бытовая электрическая плита, три производственных стола.
Комната быта должна быть оборудована шкафами, умывальником, гладильными столами, утюгами и зеркалами-трюмо.
Кабинет индивидуальной психологической работы с осужденными оборудуется: телевизором с USB-разъемом или DVD-проигрывателем, музыкальным центром, журнальным столом, стульями, креслами, размещаются комнатные растения.
В остальных помещениях вспомогательного, служебного и административного назначения предусматриваются и размещаются мебель и необходимое для функционирования и работы оборудование, которые, при необходимости, конкретизируются в задании на проектирование.
А.3 Здание для проведения длительных и краткосрочных свиданий
В жилых комнатах для проведения длительных свиданий следует предусматривать: не менее двух односпальных кроватей или одной двуспальной, в одной-двух комнатах - детскую кровать, прикроватные тумбочки, обеденный стол, полумягкие стулья, шкаф для одежды, настенное зеркало, тумба под телевизор, телевизор, настенные часы.
В игровой следует предусматривать: детский стол, 4 - 6 штук детских стульев, полки и стеллажи для игрушек.
В кухне следует предусматривать размещение: кухонных столов, навесных шкафов, электрокипятильника, бытовых холодильников, электрических плит, раковины.
В комнате младшего инспектора по проведению краткосрочных свиданий устанавливается: письменный стол, стул, металлический шкаф, аппаратура для прослушивания, предупреждения и прерывания телефонных переговоров осужденных с посетителями.
В составе оборудования блока помещений для проведения длительных свиданий предусматривается один детский стул для кормления, одна переносная пеленальная доска.
Комната обыска оснащается: однотумбовым столом, табуретом, настенной вешалкой на три - пять крючков, стационарным или ручным металлодетектором (металлообнаружителем).
А.4 Пищеблок. Прачечная
В комнате приема пищи и отдыха персонала устанавливаются: стол для приема пищи, стулья, стационарная электроплита для подогрева пищи или микроволновая печь, бытовой холодильник, раковина, полка для туалетных принадлежностей, производственный стол, хозяйственный шкаф, бак с кружкой для питьевой воды, электрический чайник.
А.5 Режимные здания
В камерах следует предусматривать:
- металлическую двухъярусную кровать по числу осужденных;
- прикроватные тумбочки (одна на двух осужденных);
- столы и скамейки с числом посадочных мест по количеству мест в камере из расчета периметра стола и длины скамеек 0,4 пог. м на одного осужденного;
- настенный шкаф или закрытая полка для хранения продуктов (одна ячейка на одного осужденного);
- подставку под бак с питьевой водой;
- настенную вешалку для верхней одежды (один крючок на осужденного);
- настенную полку для туалетных принадлежностей;
- раковину (умывальник);
- изолированную кабину с унитазом.
В камерах ШИЗО следует предусматривать:
- откидные (одноярусные или двухъярусные) металлические койки, закрывающиеся на замок или фиксирующиеся в закрытом положении устройством, расположенным со стороны коридора;
- столы с числом посадочных мест по количеству мест в камере из расчета периметра стола 0,4 пог. м на одного осужденного;
- тумбы для сидения по количеству мест в камере;
- настенную полку для туалетных принадлежностей;
- раковину (умывальник);
- изолированную кабину с унитазом.
Сборная камера для прибывающих/убывающих осужденных оборудуется: скамейками из расчета длины скамеек 0,4 пог. м на одного осужденного, раковиной (умывальником), унитазом, размещаемым в изолированной кабине.
В рабочих камерах для приема пищи следует предусматривать установку столов и скамеек с числом посадочных мест по количеству мест в камере.
Кабинет индивидуальной психологической работы с осужденными оборудуется: телевизором с USB-разъемом или DVD-проигрывателем, музыкальным центром, журнальным столом, стульями, креслами, размещаются комнатные растения.
Комната приема пищи и отдыха персонала в ЦТАО, комната персонала медицинской части оборудуются: столом для приема пищи, стульями, стационарной электроплитой для подогрева пищи или микроволновой печью, бытовым холодильником, электрическим чайником, раковиной, полкой для туалетных принадлежностей, диваном, производственным столом, хозяйственным шкафом.
В комнате хранения продуктов питания устанавливаются:
- шкафы для хранения продуктов питания - одна ячейка (полка) на одного человека;
- стол;
- бытовые холодильники (по заданию на проектирование);
- раковина.
В комнате младшего инспектора (оператора СОТ) следует размещать:
- металлический шкаф (сейф) для хранения служебной документации;
- письменный стол;
- стулья;
- вешалку для одежды;
- настенные часы.
Комната обыска оборудуется: однотумбовым столом, табуретом, настенной вешалкой на три - пять крючков, напольным ковриком, контейнером для сбора личных вещей обыскиваемых лиц. Комнату обыска в обязательном порядке следует оборудовать стационарным металлодетектором (металлообнаружителем).
Одноместное помещение безопасного места следует оборудовать по образцу камеры.
Все оборудование камер (кровати, столы, скамьи, тумбочки, подставки под питьевые баки) должно крепиться к полу или стенам. Острые углы оборудования камер должны округляться.
Приложение Б
Б.1 Нормы складирования продуктов, т/м2, следует принимать:
- сухие продукты - 0,43;
- консервы - 0,29;
- растительное масло, томат паста - 0,35;
- табак, спички, мыло - 0,24;
- мясо - 0,15;
- рыба, жиры - 0,2;
- картофель - 0,67;
- свекла, морковь, огурцы свежие, кабачки, помидоры - 0,53;
- лук - 0,6;
- капуста свежая - 0,4;
- капуста квашеная - 0,63;
- огурцы соленые - 0,34.
Б.2 Нормы складирования вещевого имущества, непродовольственных товаров и хозяйственного инвентаря, т/м2, следует принимать:
- швейные, меховые, валяные изделия, обувь, промтовары - 0,3;
- имущество продовольственной службы - 0,65;
- хозяйственный инвентарь - 0,65.
Приложение В

- основное ограждение;
- противопобеговое заграждение;
- предупредительное ограждение;
- ограждение городка для содержания служебных собак с кинодромом, городка для служебной подготовки, территории котельной;
- разделительное ограждение;
- ограждение локальных изолированных участков;
- ограждение локальной зоны (изолированной территории)
Примечание - Физические препятствия для изменения траектории движения транспортного средства условно не показаны.
Рисунок В.1 - Схема планировочной организации земельного участка тюрьмы (с лимитом наполнения 500 человек), лист 1
|
N позиции по схеме |
Наименование здания, сооружения |
|
Неохраняемая территория | |
|
1 |
Здание для приезжих |
|
2 |
Общежитие для работников УИС РФ |
|
3 |
Детские игровые площадки, отдыха взрослого населения, занятий физкультурой, хозяйственных целей |
|
4 |
Парковка |
|
Локальная зона (изолированная территория) | |
|
5 |
КПП для пропуска людей и автотранспорта в локальную зону (изолированную территорию) с внешней неохраняемой территории |
|
6 |
Городок для содержания служебных собак с кинодромом |
|
7 |
Морг |
|
8 |
Городок для служебной подготовки |
|
9 |
Столовая для работников учреждения |
|
10 |
Спортивный корпус с тиром |
|
11 |
Служебная автопарковка |
|
12 |
Дизельная электростанция |
|
13 |
Административное здание с основным КПП |
|
14 |
Площадка дежурной службы |
|
Режимная зона | |
|
15 |
Здание для проведения длительных и краткосрочных свиданий |
|
16 |
Пищеблок |
|
17 |
Прачечная |
|
18 |
Врачебный здравпункт |
|
19 |
Прогулочные дворы |
|
20 |
Локальная территория на особый период |
|
21 |
Режимный корпус |
|
22 |
Прогулочные дворы |
|
23 |
Переходная галерея |
|
24 |
Сборное отделение с карантином |
|
25 |
Прогулочные дворы (при карантине) |
|
26 |
Здание ЦТАО |
|
27 |
Здание ШИЗО |
|
28 |
Прогулочные дворы |
|
29 |
Общежитие для хозобслуги с отделением (блоком помещений) для осужденных хозобслуги, находящихся в ежегодном оплачиваемом отпуске |
|
30 |
Магазин продовольственных и непродовольственных товаров |
|
31 |
Спортивная площадка |
|
Хозяйственно-складская зона | |
|
32 |
Внутренний КПП для пропуска людей и автотранспорта из режимной зоны в хозяйственно-складскую зону |
|
33 |
Хлебопекарня |
|
34 |
Продовольственный склад, холодильные камеры, квасильно-засолочный пункт, овощехранилище |
|
35 |
Материально-технический склад, склад вещевого имущества, склад хранения личных вещей осужденных, подсобные мастерские |
|
36 |
Котельная |
|
37 |
Трансформаторная подстанция |
|
38 |
Гараж |
|
39 |
Здание подразделения ведомственной пожарной охраны |
Рисунок В.1, лист 2
Библиография
[1] Федеральный закон от 29 декабря 2004 г. N 190-ФЗ "Градостроительный кодекс Российской Федерации"
[2] Федеральный закон от 30 декабря 2009 г. N 384-ФЗ "Технический регламент о безопасности зданий и сооружений"
[3] Федеральный закон от 22 июля 2008 г. N 123-ФЗ "Технический регламент о требованиях пожарной безопасности"
[4] Федеральный закон от 22 ноября 2009 г. N 261-ФЗ "Об энергосбережении и о повышении энергетической эффективности и о внесении изменений в отдельные законодательные акты Российской Федерации"
[5] Федеральный закон от 8 января 1997 г. N 1-ФЗ "Уголовно-исполнительный кодекс Российской Федерации"
[6] Закон Российской Федерации от 21 июля 1993 г. N 5473-1 "Об учреждениях и органах, исполняющих уголовные наказания в виде лишения свободы"
[7] Постановление Правительства Российской Федерации от 16 февраля 2008 г. N 87 "О составе разделов проектной документации и требованиях к их содержанию"
[8] Приказ Федеральной службы исполнения наказаний от 30 марта 2005 г. N 214 "Об утверждении правил пожарной безопасности на объектах учреждений и органов Федеральной службы исполнения наказаний"
[9] Приказ Министерства юстиции Российской Федерации от 4 сентября 2006 г. N 279 "Об утверждении Наставления по оборудованию инженерно-техническими средствами охраны и надзора объектов уголовно-исполнительной системы"
[10] Приказ Федеральной службы исполнения наказаний от 26 июля 2007 г. N 407 "Об утверждении Каталога "Специальные (режимные) изделия для оборудования следственных изоляторов, тюрем, исправительных и специализированных учреждений ФСИН России"
[11] Указ Президента Российской Федерации от 13 октября 2004 г. N 1313 "Вопросы Министерства юстиции Российской Федерации"
[12] Указ Президента Российской Федерации от 13 октября 2004 г. N 1314 "Вопросы Федеральной службы исполнения наказаний"
[13] Приказ Министерства юстиции Российской Федерации от 3 сентября 2007 г. N 178 "Об утверждении Положения о режимных требованиях на территории, прилегающей к учреждению, подведомственному территориальному органу уголовно-исполнительной системы"
[14] ПУЭ Правила устройства электроустановок (6-е и 7-е изд.)
[15] Приказ Федеральной службы исполнения наказаний от 27 июля 2006 г. N 512 "Об утверждении номенклатуры, норм обеспечения и сроков эксплуатации мебели, инвентаря, оборудования и предметов хозяйственного обихода (имущества) для учреждений, исполняющих уголовные наказания в виде лишения свободы, и следственных изоляторов уголовно-исполнительной системы"
[16] Приказ Федеральной службы исполнения наказаний от 28 апреля 2006 г. N 211 "Об утверждении Наставления по организации снабжения, хранения, учета и обеспечения сохранности вооружения и боеприпасов в учреждениях и органах уголовно-исполнительной системы"
[17] Приказ Федеральной службы исполнения наказаний от 24 июня 2013 г. N 359 "Об утверждении Инструкции по оборудованию учебно-материальной базы учреждений и органов уголовно-исполнительной системы"
[18] Приказ Федеральной службы исполнения наказаний от 31 декабря 2019 г. N 1210 "Об утверждении Порядка обращения со служебными животными в учреждениях и органах уголовно-исполнительной системы Российской Федерации"
[19] Приказ Федеральной службы исполнения наказаний от 4 июля 2018 г. N 570 "Об утверждении норм и порядка обеспечения учреждений уголовно-исполнительной системы техникой, продукцией общехозяйственного назначения и имуществом продовольственной службы"
[20] НТП-АПК 1.10.12.001-02 Нормы технологического проектирования предприятий по хранению и обработке картофеля и плодоовощной продукции
[21] Приказ Федеральной службы исполнения наказаний от 12 мая 2005 г. N 354 "Об утверждении Инструкции по организации хранения вещевого имущества на базах и складах учреждений и органов Федеральной службы исполнения наказаний"
[22] Рекомендации по удельному водопотреблению и водоотведению для объектов бюджетной сферы учреждений уголовно-исполнительной системы (утверждены Федеральной службой исполнения наказаний 17 октября 2018 г.)
[23] НТП-АПК 1.10.17.001-03 Нормы технологического проектирования баз и складов общего назначения предприятий ресурсного обеспечения
[24] СО 153-34.21.122-2003 Инструкция по устройству молниезащиты зданий, сооружений и промышленных коммуникаций
[25] Постановление Правительства Российской Федерации от 16 сентября 2020 г. N 1479 "Об утверждении Правил противопожарного режима в Российской Федерации"
[26] Постановление Правительства Российской Федерации от 3 марта 2018 г. N 222 "Об утверждении Правил установления санитарно-защитных зон и использования земельных участков, расположенных в границах санитарно-защитных зон"


