СП 489.1325800.2020 АЭРОДРОМЫ. ГЕОТЕХНИЧЕСКИЙ МОНИТОРИНГ ПРИ ЭКСПЛУАТАЦИИ
Aerodromes. Geotechnical monitoring during operation
Дата введения - 24 июня 2021 г.
Введен впервые
Введение
Настоящий свод правил разработан в целях обеспечения соблюдения требований Федерального закона от 30 декабря 2009 г. N 384-ФЗ "Технический регламент о безопасности зданий и сооружений". Кроме того, применение настоящего свода правил обеспечивает соблюдение федеральных законов от 27 декабря 2002 г. N 184-ФЗ "О техническом регулировании", от 22 июля 2008 г. N 123-ФЗ "Технический регламент о требованиях пожарной безопасности".
Свод правил разработан авторским коллективом ЗАО "ПРОМТРАНСНИИПРОЕКТ" (руководитель темы - д-р техн. наук Л.А. Андреева, И.П. Потапов, И.В. Музыкин, А.О. Иванова), АО "НТК "АЭРОТЕХНИЧЕСКИЙ ЦЕНТР" (руководитель темы - канд. техн. наук В.Н. Вторушин, канд. техн. наук А.Г. Полянкин, канд. техн. наук Д.А. Смирнов, А.Е. Григорьев), ФГУП ГПИ и НИИ ГА "Аэропроект" (руководитель темы - канд. техн. наук М.Д. Суладзе, канд. техн. наук Н.С. Ледовская, Ю.Б. Скоробогатая, А.Ю. Бочарова).
Настоящий свод правил распространяется на геотехнический мониторинг аэродромов при их эксплуатации.
В настоящем своде правил использованы нормативные ссылки на следующие документы:
ГОСТ 17624-2012 Бетоны. Ультразвуковой метод определения прочности
ГОСТ 24846-2012 Грунты. Методы измерения деформаций оснований зданий и сооружений
ГОСТ 25358-2012 Грунты. Метод полевого определения температуры
ГОСТ 31937-2011 Здания и сооружения. Правила обследования и мониторинга технического состояния
ГОСТ Р ИСО 5725-1-2002 Точность (правильность и прецизионность) методов и результатов измерений. Часть 1. Основные положения и определения
СП 22.13330.2016 "СНиП 2.02.01-83* Основания зданий и сооружений" (с изменениями N 1, N 2, N 3)
СП 25.13330.2012 "СНиП 2.02.04-88 Основания и фундаменты на вечномерзлых грунтах" (с изменениями N 1, N 2, N 3, N 4)
СП 121.13330.2019 "СНиП 32-03-96 Аэродромы"
СП 250.1325800.2016 Здания и сооружения. Защита от подземных вод
СП 305.1325800.2017 Здания и сооружения. Правила проведения геотехнического мониторинга при строительстве
СП 446.1325800.2019 Инженерно-геологические изыскания для строительства. Общие правила производства работ
Примечание - При пользовании настоящим сводом правил целесообразно проверить действие ссылочных документов в информационной системе общего пользования - на официальном сайте федерального органа исполнительной власти в сфере стандартизации в сети Интернет или по ежегодному указателю "Национальные стандарты", который опубликован по состоянию на 1 января текущего года, и по выпускам ежемесячного информационного указателя "Национальные стандарты" за текущий год. Если заменен ссылочный документ, на который дана недатированная ссылка, то рекомендуется использовать действующую версию этого документа с учетом всех внесенных в данную версию изменений. Если заменен ссылочный документ, на который дана датированная ссылка, то рекомендуется использовать версию этого документа с указанным выше годом утверждения (принятия). Если после утверждения настоящего свода правил в ссылочный документ, на который дана датированная ссылка, внесено изменение, затрагивающее положение, на которое дана ссылка, то это положение рекомендуется применять без учета данного изменения. Если ссылочный документ отменен без замены, то положение, в котором дана ссылка на него, рекомендуется применять в части, не затрагивающей эту ссылку. Сведения о действии сводов правил целесообразно проверить в Федеральном информационном фонде стандартов.
В настоящем своде правил применены термины и определения по ГОСТ 31937, СП 121.13330 и СП 305.1325800, а также следующие термины с соответствующими определениями:
3.1 автоматизированный геотехнический мониторинг: Геотехнический мониторинг, при котором фиксация контролируемых параметров осуществляется в автоматическом режиме.
3.2 глубинный репер: Геодезический знак, основание которого устанавливается на скальные, полускальные или другие коренные практически несжимаемые грунты.
3.3 грунтовый репер: Геодезический знак, основание которого устанавливается ниже глубины промерзания, оттаивания или перемещения грунта.
3.4 датчик уровня воды: Вид геотехнического оборудования, применяемый для измерения уровня грунтовых вод.
3.5 деформационная марка: Геодезический знак, жестко закрепленный на конструкции сооружения и меняющий вместе с ней свое планово-высотное положение вследствие осадки, просадки, подъема, сдвига.
3.6 дефект: Отдельное несоответствие конструкции аэродромного покрытия или элемента водоотводной и дренажной системы параметрам, установленным нормативными требованиями или проектом.
3.7
|
жизненный цикл здания или сооружения: Период, в течение которого осуществляются инженерные изыскания, проектирование, строительство (в том числе консервация), эксплуатация (в том числе текущие ремонты), реконструкция, капитальный ремонт, снос здания или сооружения. [1, статья 2, часть 2, пункт 5] |
3.8 повреждение: Любое нарушение целостности конструкции аэродромного покрытия или элемента водоотводной и дренажной системы, полученное при строительстве или в процессе эксплуатации.
4.1 Геотехнический мониторинг при эксплуатации аэродрома проводят в целях контроля технического состояния элементов аэродрома по программе, утвержденной заказчиком или оператором аэродрома, путем определения и оценки контролируемых параметров, характеризующих работоспособность объекта обследования и определяющих возможность его дальнейшей безопасной эксплуатации, а также необходимость ремонта или реконструкции.
4.2 По назначению геотехнический мониторинг носит исследовательский или контрольный характер.
К задачам, решаемым в ходе исследовательского мониторинга, относятся:
- выявление причин образования дефектов, повреждений и прогнозирование их развития;
- исследование эксплуатационного воздействия воздушных судов (ВС) на элементы аэродрома, имеющих нагрузку, превышающую расчетную, или в случае снижения несущей способности искусственных покрытий в результате ухудшения физико-механических характеристик грунтов основания;
- исследование работы искусственных покрытий с применением новых конструктивно-технологических решений или материалов.
Основной задачей, решаемой в ходе контрольного мониторинга, является предупреждение возникновения неудовлетворительного состояния искусственных покрытий элементов аэродрома, которые могут быть вызваны чрезвычайными обстоятельствами: природными явлениями и техногенными процессами на территории аэродрома и прилегающих территориях.
4.3 Необходимость проведения геотехнического мониторинга на стадии эксплуатации определяется:
- при разработке проекта нового строительства или реконструкции аэродромов, расположенных на территориях с возможными изменениями состояния окружающей среды, проявлениями аномалий и негативных процессов природно-техногенного характера;
- по результатам визуального или инструментального обследования технического состояния эксплуатируемого объекта в связи с уже проявившимися процессами, повлиявшими на его техническое состояние.
Решение о проведении мониторинга объекта может быть принято на любом из этапов его жизненного цикла.
4.4 По длительности проведения геотехнический мониторинг должен быть периодическим или постоянным.
4.5 В составе работ по мониторингу выделяют следующие этапы:
- разработка программы мониторинга и утверждение ее заказчиком;
- согласование схемы размещения оборудования с заказчиком и (или) эксплуатирующей организацией;
- монтаж необходимого оборудования;
- калибровка установленного оборудования и пусконаладочные работы;
- проведение нулевого (базового) цикла измерений;
- проведение мониторинга (периодического или постоянного);
- анализ результатов, составление отчета и передача всех материалов по итогам мониторинга заказчику или эксплуатирующей организации;
- демонтаж оборудования (при необходимости).
4.6 Методика и состав системы наблюдений при геотехническом мониторинге, включая измерения, должны обеспечивать достоверность и полноту получаемой информации для подготовки исполнителем обоснованного заключения о текущем техническом состоянии объекта и разработки прогноза его технического состояния при дальнейшей эксплуатации.
4.7 Перед началом мониторинга выполняют визуальное и инструментальное (при необходимости) обследование технического состояния элементов аэродрома. При этом фиксируют дефекты и повреждения конструкций, способные повлиять на снижение их работоспособности и уровень безопасной эксплуатации ВС, а также определяют их параметры, подлежащие дальнейшему контролю при проведении мониторинга.
4.8 Геотехнический мониторинг выполняют:
- в ручном режиме, то есть с участием человека в каждом цикле измерений (наблюдений);
- в автоматическом режиме (автоматическая передача информации) в соответствии с приложением А, исключающем участие человека в снятии и передаче результатов измерений.
Необходимая степень автоматизации геотехнического мониторинга определяется программой мониторинга исходя из возможности обеспечения круглогодичного доступа к измерительному оборудованию на аэродроме.
4.9 Оборудование для геотехнического мониторинга следует выбирать исходя из условий обеспечения безопасной эксплуатации ВС на элементах аэродрома, требуемой точности результатов измерений и устойчивости системы к внешним воздействиям, проектного срока действия системы мониторинга в период эксплуатации, а также, при необходимости, возможности автоматической передачи информации.
4.10 В случае получения на каком-либо этапе мониторинга данных, свидетельствующих об ухудшении технического состояния объекта, которые могут привести к неудовлетворительному состоянию и создать угрозу его технической безопасности, организация, проводящая геотехнический мониторинг, должна немедленно информировать о сложившейся ситуации, в том числе в письменном виде, заказчика и эксплуатирующую организацию.
4.11 Разработку программы мониторинга, а также его проведение должны выполнять организации, уполномоченные действующим законодательством на проведение работ по обследованиям и мониторингу аэродромов.
5.1.1 Геотехнический мониторинг эксплуатируемых элементов аэродрома осуществляется в соответствии с программой, разработанной на определенном этапе жизненного цикла объекта.
5.1.2 При разработке программы геотехнического мониторинга необходимо учитывать требования СП 121.13330, а также:
- нагрузки и интенсивность воздействия от ВС;
- особенности прилегающей к аэродрому территории;
- опыт эксплуатации аэродромов, расположенных в аналогичных инженерно-геологических и климатических условиях.
5.1.3 Программа мониторинга должна включать:
- цели и задачи мониторинга;
- основные характеристики объекта мониторинга;
- перечень видов работ и элементов аэродрома, на которых необходимо проводить измерения;
- применяемые средства измерений, приборы, оборудование, порядок и места их установки, порядок измерений и оценку точности измерений;
- систему периодичности измерений и сроки выполнения работ;
- методику обработки данных измерений и анализа результатов;
- мероприятия по обеспечению сохранности установленных марок и приборов от повреждений, вандализма и хищения.
5.1.4 Программа работ по геотехническому мониторингу должна отвечать следующим требованиям:
- фиксация контролируемых параметров должна выполняться как для наиболее опасных, так и для характерных (стабильных) участков элементов аэродрома;
- выбранные методы и точность измерений должны обеспечивать достоверность получаемых результатов и соответствовать точности нормативных и принятых проектных значений;
- все проводимые наблюдения и измерения должны быть увязаны между собой во времени, а их периодичность должна определяться интенсивностью (скоростью) и длительностью протекания процессов изменения контролируемых параметров.
5.2.1 Состав контролируемых параметров следует назначать в зависимости от конструктивных особенностей элементов аэродрома, особенностей инженерно-геологических и климатических условий площадки, технологических решений.
Для эксплуатируемых аэродромов состав контролируемых параметров назначают в зависимости от выявленных при обследовании технического состояния элементов аэродрома дефектов и повреждений, способных при дальнейшем развитии привести к выводу из эксплуатации того или иного элемента аэродрома.
5.2.2 К контролируемым параметрам при геотехническом мониторинге эксплуатируемых аэродромов относятся:
- состав, характер и параметры дефектов и повреждений поверхности искусственных покрытий;
- вертикальные и горизонтальные перемещения контрольных точек поверхности искусственных покрытий элементов аэродрома (деформационные марки, продольные и поперечные профили, углы плит жестких искусственных покрытий);
- вертикальные и горизонтальные перемещения поверхностных грунтовых марок;
- вертикальные перемещения поверхности искусственных покрытий в контрольных точках при испытании покрытий статической нагрузкой;
- уровень подземных вод;
- температура грунтов и грунтовых вод в основании искусственных покрытий и на прилегающих грунтовых участках;
- иные параметры, назначаемые в зависимости от конструктивных особенностей объекта, инженерно-геологических условий территории и характера проявившихся негативных процессов.
5.2.3 Предельные значения контролируемых параметров элементов аэродромов устанавливаются на основе требований СП 121.13330 и прогнозных расчетов с учетом класса аэродрома, функционального назначения элемента аэродрома, эксплуатационной нагрузки, конструкции искусственных покрытий и их технического состояния.
5.3.1 При назначении сроков и периодичности выполнения работ по мониторингу следует учитывать цели проведения мониторинга, скорости протекания негативных процессов, влияющих на техническое состояние объекта, и их изменения во времени.
5.3.2 При отсутствии стабилизации контролируемых параметров, превышении их предельных значений либо выявлении прочих опасных отклонений необходимо корректировать сроки и периодичность выполнения измерений, установленные ранее программой геотехнического мониторинга.
6.1.1 Визуально-инструментальные методы мониторинга состоят из визуальных наблюдений (осмотр элементов аэродрома) и инструментальных измерений (фиксация дефектов и повреждений элементов аэродрома).
6.1.2 Инструментальные наблюдения за развитием трещин, уступов и локальных просадок покрытия осуществляются путем периодических измерений с применением линеек, ручных портативных деформометров, микроскопов, щупов, щелемеров и др.
Фиксация параметров дефектов должна выполняться с использованием ручных и автоматизированных средств измерений.
6.1.3 По результатам визуально-инструментального мониторинга составляют планы дефектов и повреждений с указанием их параметров, журналы наблюдения за динамикой развития дефектов и повреждений (с указанием их мест расположения, дат выявления и наблюдения), фотодокументацию по зафиксированным дефектам и повреждениям.
6.2.1 Геодезические методы в составе геотехнического мониторинга следует применять для измерения вертикальных и горизонтальных перемещений элементов аэродрома и примыкающих грунтовых участков.
6.2.2 Геодезические методы используют с применением нивелиров, теодолитов, тахеометров, сканеров (в том числе оптических, электронных, лазерных и др.) и навигационных спутниковых систем.
6.2.3 При ведении мониторинга геодезическими методами измеряют (отдельно или совместно) следующие параметры:
- вертикальные перемещения (осадки, вертикальные сдвиги, просадки и т.п.);
- горизонтальные перемещения (сдвиги).
6.2.4 Задачами геодезических методов мониторинга являются:
- определение участков элементов аэродрома и прилегающих грунтовых участков, подверженных наибольшим отклонениям от проектного или первоначального положения;
- выявление величины и направления деформационных процессов;
- выявление закономерностей, позволяющих спрогнозировать дальнейшее развитие деформаций;
- контроль за процессами в грунтах основания элементов аэродрома.
6.2.5 При проведении геотехнического мониторинга с применением геодезических методов следует соблюдать требования ГОСТ 24846.
6.2.6 Геодезический мониторинг следует проводить в такой последовательности:
- разработка соответствующего раздела программы мониторинга;
- определение мест расположения и установка опорных геодезических знаков высотной и плановой основы вне зоны возможных деформаций;
- установка деформационных марок в покрытиях, поверхностных грунтовых марок на прилегающих участках летного поля;
- осуществление высотной и плановой привязки установленных опорных геодезических знаков;
- проведение нулевого цикла измерений положения контролируемых деформационных марок и поверхностных грунтовых марок;
- периодические геодезические измерения вертикальных и горизонтальных перемещений в соответствии с разделом программы мониторинга;
- обработка и анализ результатов наблюдений;
- составление отчетной документации.
6.2.7 Опорные геодезические знаки высотной и плановой основы должны сохранять стабильность высотного и планового положения в течение всего времени эксплуатации контролируемого объекта. Опорные геодезические знаки должны располагаться в местах, обеспечивающих беспрепятственный подход к ним в течение всего срока наблюдений и их сохранность.
6.2.8 Установку деформационных марок в покрытия и поверхностных грунтовых марок следует выполнять в соответствии с приложением Б.
6.2.9 Расположение и количество деформационных марок и поверхностных грунтовых марок следует определять программой мониторинга и принимать в зависимости от выявленной картины дефектов и повреждений искусственных покрытий, сложности инженерно-геологических условий, а также от удобства проведения геодезических работ.
Деформационные марки на покрытиях следует располагать с шагом 25-30 м, на проблемных участках - с шагом, кратным длине плиты (для жестких покрытий) или равным 5 м (для нежестких покрытий).
6.2.10 Перечень используемых геодезических методов на объекте мониторинга следует устанавливать в соответствующем разделе программы мониторинга в зависимости от требуемой точности измерений (в соответствии с ГОСТ 24846 и СП 121.13330), степени автоматизации измерительного процесса, конструктивных особенностей элементов аэродрома, инженерно-геологических условий.
Основные геодезические методы и средства измерений, применяемые при геотехническом мониторинге в зависимости от контролируемых параметров, представлены в таблице 6.1.
|
Методы геодезического мониторинга |
Средства измерений и регистрации данных |
Контролируемый параметр |
Возможность автоматизации |
|
Геометрическое нивелирование коротким лучом визирования |
Оптический нивелир |
Вертикальные перемещения элементов аэродромной конструкции, грунтовой части |
Отсутствует |
|
Цифровой нивелир |
Отсутствует | ||
|
Тригонометрическое нивелирование |
Электронный тахеометр |
Имеется | |
|
Оптический теодолит |
Имеется | ||
|
Метод относительных спутниковых измерений с использованием Глобальной навигационной спутниковой системы |
Автоматизированные аппаратно-программные системы, состоящие из приемников (роверов) и базовых станций |
Имеется | |
|
Геодезические наблюдения по кустам глубинных реперов |
Оптический нивелир |
Вертикальные перемещения грунтового массива по глубине |
Отсутствует |
|
Цифровой нивелир |
Отсутствует | ||
|
Электронный тахеометр |
Имеется | ||
|
Метод полигонометрии |
Электронный тахеометр |
Горизонтальные перемещения поверхности покрытий, грунта, склонов водоотводных и нагорных канав, высоких насыпей |
Имеется |
|
Оптический теодолит |
Отсутствует | ||
|
Метод отдельных направлений |
Электронный тахеометр |
Имеется | |
|
Оптический теодолит |
Отсутствует |
6.2.11 Программа мониторинга в части инструментального обеспечения геодезических измерений должна содержать:
- сведения о наличии пунктов государственной геодезической сети на аэродроме и прилегающей территории;
- данные о системе координат и высотных отметок аэродрома;
- описание мест закладки геодезических знаков, обоснование выбора типа знаков;
- предварительную схему измерительной сети;
- требуемую точность измерений;
- методы измерений горизонтальных и вертикальных перемещений;
- применяемые оборудование и инструмент;
- периодичность проведения измерений.
6.2.12 При наличии возможности использования на аэродроме систем на основе автоматизированных тахеометров соответствующий раздел программы должен содержать:
- план расположения измерительного инструмента, контролируемых точек (призм), точек обратной засечки (вне зоны влияния контролируемого объекта);
- схему крепления мониторинговых призм (если это не будет создавать препятствий движению ВС и аэродромной техники);
- конструктивную схему оснащения базовой точки, в которой расположен роботизированный тахеометр.
6.2.13 Геодезические измерения выполняются с периодичностью, определенной программой мониторинга, но не реже двух раз в год: в период максимального оттаивания и в период максимального промерзания грунтов естественного основания.
6.2.14 Камеральную обработку результатов геодезических измерений (проверка полевых журналов, уравнивание ходов, расчеты по оценке точности и подготовка материалов для отчетной документации) следует выполнять отдельно по каждому циклу.
6.2.15 При ведении мониторинга с использованием геодезических методов составляют три вида отчетной документации:
- отчет по результатам нулевого цикла, включающий исполнительные схемы опорной геодезической сети и расположения деформационных марок и поверхностных грунтовых марок, первичные результаты измерений, являющиеся "нулевыми" для последующих измерений;
- промежуточные отчеты (информационные справки), предоставляемые в процессе ведения измерений, содержащие пояснительную записку и результаты измерений в виде таблиц и графиков;
- окончательный отчет по результатам всех геодезических измерений.
6.3.1 При применении параметрических методов в составе геотехнического мониторинга выполняют измерения:
- вертикальных и горизонтальных деформаций (послойные осадки грунтов в теле основания искусственных покрытий; горизонтальные и вертикальные перемещения грунта в основании по глубине);
- напряжений (в естественном и искусственном основании покрытий по глубине).
6.3.2 Основные средства измерений параметрических методов, применяемые при геотехническом мониторинге в зависимости от контролируемых параметров, представлены в таблице 6.2.
|
Контролируемый параметр |
Средства измерений и регистрации данных |
Возможность автоматизации |
|
Послойные осадки (просадки) грунтов оснований |
Струнный экстензометр |
Имеется |
|
Оптоволоконный экстензометр |
Имеется | |
|
Портативные горизонтальные инклинометры |
Отсутствует | |
|
Оптиковолоконные инклинометры |
Имеется | |
|
Напряжения |
Струнные датчики давления |
Имеется |
|
Электрические датчики давления |
Имеется |
6.3.3 Контроль параметров следует осуществлять с использованием измерительных датчиков (первичных преобразователей), устанавливаемых в определенные программой работ измерительные точки.
6.3.4 При измерениях горизонтальных перемещений в массивах грунта основания элементов аэродрома с применением параметрических методов следует использовать портативные или стационарные инклинометры. Измерения следует проводить в скважинах, оборудованных направляющими инклинометрическими трубами (металлическими или пластиковыми с направляющими пазами). Число скважин, их расположение, а также предельно допустимые значения горизонтальных перемещений устанавливают в программе мониторинга на основе геотехнического прогноза. В каждом цикле инклинометрических измерений положение верха инклинометрических труб следует измерять геодезическим способом.
При измерениях напряжений в основании земляного полотна измерительные датчики давления устанавливают группами (три датчика, расположенные ортогонально).
Число контролируемых точек, а также предельно допустимые значения контролируемых параметров устанавливают в программе мониторинга на основе результатов геотехнического прогноза.
6.3.5 При контроле послойных осадок (просадок) основания конструкции элемента аэродрома или грунтовой части следует применять скважинные стационарные (стержневые, струнные, звеньевые, оптоволоконные) и портативные (одноточечные и двухточечные) экстензометры. Число контролируемых скважин, их глубина и число измерительных точек в каждой скважине устанавливают в программе мониторинга на основе результатов геотехнического прогноза осадок (просадок).
6.3.6 В случае одновременного контроля на объекте нескольких параметров с использованием большого количества средств измерений (если осуществление одного измерительного цикла по всем контролируемым точкам требует значительных временных затрат) отдельные датчики и приборы допускается объединять в измерительные системы с различной степенью автоматизации.
6.3.7 Измерительная система должна обеспечивать синхронность проведения измерений с заданным интервалом. Линии связи должны обеспечивать бесперебойную и помехоустойчивую передачу данных на протяжении всего периода эксплуатации системы. Организация передачи данных между отдельными элементами измерительной системы возможна как с использованием кабельных линий, так и с помощью беспроводных систем связи.
6.3.8 При выборе измерительных датчиков, конструкций оголовков скважин и приборов необходимо учитывать специфические условия эксплуатации элементов аэродрома, включая:
- обеспечение необходимого уровня безопасности эксплуатации ВС, сохранности при работе аэродромных машин и механизмов;
- механическое, гидромеханическое или термомеханическое взаимодействия между компонентами системы геотехнических измерений (например, датчиками, линиями связи) и средой, в которой установлены компоненты;
- условия окружающей среды (давление грунта; электромагнитные помехи), которые могут влиять на установленные измерительные датчики и приборы;
- уязвимость информационной связи внутри системы мониторинга (длинные измерительные линии).
6.3.9 Измерительные датчики и приборы должны обладать необходимой надежностью, чтобы эффективно выполнять свои функции в течение всего срока проведения мониторинга с учетом условий воздействия окружающей среды.
6.3.10 Необходимо предусматривать защиту средств измерений, используемых при параметрических методах мониторинга: защитные оголовки для наблюдательных скважин; внешние корпусы, защищающие измерительные датчики от воздействия атмосферных осадков и прямых солнечных лучей; армированные кабельные соединения.
6.3.11 При проведении измерений необходимо предусматривать меры для снижения влияния внешних факторов на результаты измерений: применение датчиков с автоматической компенсацией температурных воздействий и перепадов атмосферного давления, с защитой от перепадов напряжения; применение материалов с низким коэффициентом теплового расширения, высокой коррозионной стойкостью. Конструкция датчиков и технология их установки не должны влиять на результаты мониторинга.
6.3.12 В разделе параметрических методов программы мониторинга должны содержаться:
- перечень контролируемых параметров и оборудования;
- схемы расположения измерительных точек и устанавливаемых в них датчиков и приборов;
- способ установки датчиков и приборов;
- предельные значения контролируемых параметров;
- порядок и периодичность проведения измерений;
- форма отчетности.
6.4.1 Геофизические методы измерений в составе геотехнического мониторинга применяются для контроля пространственно-временного изменения состояния оснований, массивов грунтов и геологической среды в результате эксплуатационных, техногенных и природных воздействий.
По результатам геофизических измерений выявляются и оцениваются изменения напряженно-деформированного состояния грунтов естественного и искусственного основания, их сплошности и целостности.
6.4.2 Геофизические наблюдения в рамках геотехнического мониторинга должны решать следующие задачи:
- контроль напряженно-деформированного состояния грунтов основания элементов аэродрома в результате эксплуатационных, техногенных и природно-климатических воздействий;
- контроль состояния контакта между слоями искусственного покрытия и основания, в том числе в части наличия размеров и расположения зон ослабленного контакта и зон отсутствия такого контакта (пустот);
- выявление и контроль активных проявлений деформационных процессов в искусственных покрытиях и основаниях, связанных с образованием и развитием микро- и макротрещин во вмещающем грунтовом основании, суффозионными процессами, сдвижениями грунтов, изменениями гидрогеологического режима и другими процессами;
-- выявление и контроль зон структурных нарушений, возникающих в результате дополнительных нагрузок и воздействий;
- контроль неблагоприятных геологических процессов (процессы карстообразования, суффозии, термокарста и т.д.).
6.4.3 Геофизические наблюдения в составе геотехнического мониторинга состоят из следующих работ:
- подготовка мест измерений в основании и конструкциях искусственного покрытия;
- монтаж измерительного оборудования;
- проведение измерений;
- обработка результатов измерений.
6.4.4 При геофизических наблюдениях за изменениями состояния грунтов оснований искусственных покрытий следует применять сейсмоакустические или электромагнитные методы в соответствии с СП 446.1325800 и согласно таблице 6.3.
|
Метод |
Технология наблюдений |
Измеряемые параметры |
Решаемые задачи, особые условия |
|
Электромагнитные методы
| |||
|
Радиолокационное зондирование |
По поверхности |
Характеристики электромагнитных импульсов, возбуждаемых внешними устройствами и отраженных от границ сред с различной диэлектрической проницаемостью |
Фиксация в грунтовом массиве изменений границ зон повышенной влажности, зон с различной плотностью и т.д. |
|
Электропрофилирование |
По поверхности |
Кажущиеся электрические сопротивления и удельные электрические сопротивления | |
|
Вертикальное электрическое зондирование | |||
|
Электрокаротаж сопротивлений, токовый каротаж |
В скважинах | ||
|
Метод естественного электромагнитного излучения |
По поверхности, в шурфах, в скважинах |
Амплитудные и частотные характеристики импульсов электромагнитного излучения |
Оценка изменений напряженного состояния участков грунтового массива |
|
Радиоволновое просвечивание |
В скважинах, по поверхности, смешанное |
Изучение компонентов электромагнитного поля при возбуждении в одной скважине и приеме в другой или на поверхности |
Оценка изменений свойств грунтов под покрытиями и на грунтовой части |
|
Сейсмоакустические методы
| |||
|
Корреляционный метод преломленных волн поверхности, метод отраженных волн в модификации общей глубинной точки |
По поверхности |
Изучение динамических и кинематических упругих колебаний в среде, вызванных искусственными источниками колебаний |
Оценка изменений свойств грунтов под покрытиями и на грунтовой части |
|
Сейсмический каротаж, вертикальное сейсмическое профилирование |
В скважинах | ||
6.4.5 Использование конкретных методов геофизических наблюдений следует определять в зависимости от контролируемых параметров (показателей напряженного состояния, трещиноватости, обводнения, плотности грунтов и т.д.), определяющих состояние грунтов основания искусственных покрытий.
6.4.6 При выполнении мониторинга с использованием ультразвуковых измерений следует руководствоваться требованиями к точности измерений, указанными в ГОСТ 17624.
6.4.7 Геофизические наблюдения должны быть увязаны с данными инженерно-геологических изысканий.
6.4.8 При использовании геофизических методов необходимо оценивать и учитывать возможные техногенные помехи, которые могут затруднить проведение геофизических наблюдений и осложнить их интерпретацию.
6.4.9 Автоматизированная система мониторинга предусматривает установку регистрирующего геофизического оборудования как в конструкциях искусственного покрытия, так и непосредственно в основании (естественном и искусственном).
6.4.10 Технические параметры применяемой геофизической аппаратуры (регистрирующие устройства, средства связи, синхронизации, искусственные источники геофизических полей и модули хранения информации) должны обеспечивать проведение наблюдений с необходимой разрешающей способностью, длительностью и масштабностью исследований.
6.5.1 Гидрогеологические методы мониторинга включают комплекс работ по определению изменений уровней подземных вод (УПВ) или значений пьезометрических напоров в водоносных горизонтах на аэродроме и прилегающей территории.
6.5.2 Целью гидрогеологического мониторинга является контроль за изменениями УПВ или пьезометрических напоров для своевременного принятия мер по исключению негативного влияния указанных изменений на элементы аэродрома.
6.5.3 Гидрогеологический мониторинг следует выполнять в случаях, предусмотренных СП 22.13330, а также в случае наличия риска обводнения грунтов основания, склонных к развитию деформаций вследствие замачивания.
6.5.4 Гидрогеологический мониторинг следует осуществлять в соответствии с СП 446.1325800 путем измерений УПВ в скважинах или кустах скважин.
Типовая конструкция гидрогеологической скважины приведена в приложении В.
6.5.5 Организация системы гидрогеологического мониторинга должна соответствовать программе мониторинга.
В программе определяются:
- число скважин и места их расположения;
- конструкция скважин;
- способы бурения;
- описание используемых датчиков, глубины (горизонтов) их установки;
- периодичность циклов наблюдений за УПВ;
- продолжительность мониторинга с указанием условий его прекращения.
6.5.6 Методика гидрогеологических наблюдений, указанная в программе мониторинга, должна быть основана на результатах прогнозных расчетов, выполняемых аналитическими методами в соответствии с требованиями СП 250.1325800.
6.5.7 Замеры УПВ в наблюдательных скважинах следует выполнять гидрогеологической рулеткой, электроуровнем или автоматическим регистратором с электронной памятью. Погрешность измерений не должна превышать 3 см.
6.5.8 Проверку работоспособности и конструктивной целостности наблюдательных скважин следует проводить не реже двух раз в год. В случае выхода скважин из строя рядом следует изготовить новую скважину с теми же конструктивными параметрами и интервалом установки фильтра.
6.5.9 При наблюдениях за изменениями уровней (напоров) нескольких водоносных горизонтов следует организовать кусты наблюдательных скважин, в которых каждая скважина обслуживает соответствующий горизонт.
6.5.10 При осуществлении гидрогеологического мониторинга целесообразно определять температуру и состав грунтовых вод, что позволит определить причину отклонения замеренных УПВ от прогнозных значений в связи с возможными утечками из водонесущих коммуникаций.
6.5.11 При автоматизированной системе гидрогеологического контроля измерительная сеть должна состоять из наблюдательных скважин, оборудованных системой датчиков уровня и гидростатического (порового) давления.
Автоматизация мониторинга предполагает автоматическое снятие показаний с датчиков с заданными последовательностью и частотой, передачу на удаленный сервер для преобразования, обработки и регистрации.
6.5.12 Частоту наблюдений следует назначать исходя из возможности контроля существенных изменений режима подземных вод под воздействием природных или техногенных факторов.
Замеры уровней воды в межень следует проводить через 5-10 сут. В периоды паводков, снеготаяния, ливневых или продолжительных дождей замеры уровня воды в карстовых областях, на участках с неглубоким залеганием уровня грунтовых вод следует проводить ежедневно до прекращения влияния факторов, влияющих на изменения УПВ.
6.5.13 В отчетной документации по результатам гидрогеологических наблюдений в числе прочего должны быть приведены:
- графики изменения УПВ во времени;
- анализ и оценка причин, вызвавших изменения УПВ;
- выводы по результатам наблюдений;
- рекомендации по сохранению работоспособности наблюдательных скважин.
6.6.1 Температурные наблюдения в рамках геотехнического мониторинга проводят в целях контроля и оценки изменений теплового режима многолетнемерзлых грунтов (ММГ) оснований элементов аэродрома, прогноза их устойчивости и разработки инженерных мероприятий по их стабилизации.
6.6.2 Измерения температуры грунтов следует проводить в заранее подготовленных и выстоянных термометрических скважинах. Измерения необходимо выполнять термоизмерительными комплектами, представляющими собой электрические датчики температуры с соответствующей измерительной аппаратурой, устройствами для накопления информации в автоматическом режиме и дистанционной передачи данных.
Типовая конструкция термометрической скважины представлена в приложении Г.
6.6.3 Оборудование термометрических скважин, их конструкция, а также требования к диапазонам и точности температурных измерений должны соответствовать требованиям ГОСТ 25358 и настоящего свода правил.
Инструментальная погрешность приборов для полевых измерений температуры грунтов не должна превышать:
±0,1ºC - в диапазоне измеряемых температур ±3ºC;
±0,2ºC - в диапазоне температур свыше ±3ºC до ±10ºC включительно;
±0,3ºC - в диапазоне температур свыше ±10ºC.
6.6.4 Многоканальные автоматизированные термоизмерительные системы с центральным пультом измерений или персональным компьютером, предназначенные для проведения длительных (режимных) наблюдений за температурой грунтов в основаниях элементов аэродромов, должны обеспечивать надежность измерений с учетом инженерно-геологических и климатических условий района расположения аэродрома.
6.6.5 Периодичность термометрических наблюдений в скважинах принимают на основании программы мониторинга одновременно с геодезическими наблюдениями в зависимости от принципа использования ММГ в качестве основания сооружения в соответствии с разделом 15 СП 25.13330.2012, но не реже:
- при мониторинге ММГ, используемых по принципу I - два раза в год: в период максимального оттаивания (при наступлении отрицательных температур воздуха) и в период максимального промерзания (при наступлении положительных температур воздуха), по принципу II (допущение оттаивания грунтов в период эксплуатации) - в первый год эксплуатации один раз в квартал, в последующие годы - один раз в год;
- при мониторинге в районах распространения пучинистых грунтов - один раз в 10 сут по достижении максимальной глубины промерзания.
6.6.6 В отчетной документации по результатам температурных наблюдений следует приводить:
- данные измерений в виде графиков и таблиц;
- анализ изменения температурного режима грунтов;
- выводы по результатам наблюдений;
- рекомендации по сохранению температурного режима в случае его изменения.
При выборе методов проведения геотехнического мониторинга на аэродромах с особыми инженерно-геологическими условиями и в районах распространения ММГ, а также в сейсмически опасных регионах и территориях, подверженных карстообразованию, следует руководствоваться таблицей 7.1.
|
Территория расположения аэродрома, особые свойства грунтов |
Контролируемые параметры |
Разделы, пункты настоящего свода правил по методам и средствам контроля |
|
Территории распространения просадочных и набухающих грунтов |
Дефекты и повреждения искусственных покрытий |
6.1 |
|
Осадки грунтовой части, осадки и просадки покрытия |
6.2 | |
|
Влажность грунтов |
6.3, 6.4 | |
|
Плотность грунтов | ||
|
УПВ |
6.5 | |
|
Территории распространения пучинистых грунтов |
Дефекты и повреждения искусственных покрытий |
6.1 |
|
Локальные участки подъема поверхности покрытий с образованием трещин и уступов. Взбугривания и подъем грунтовой части летного поля |
6.2 | |
|
Влажность грунтов |
6.3, 6.4 | |
|
Плотность грунтов | ||
|
УПВ |
6.5 | |
|
Районы распространения ММГ и территории, подверженные термокарсту |
Дефекты и повреждения искусственных покрытий |
6.1 |
|
Локальные участки просадки поверхности покрытий с образованием трещин и уступов |
6.2, 6.3, 6.4, 6.6 | |
|
Сейсмически опасные регионы и территории, подверженные карстообразованию |
Дефекты и повреждения искусственных покрытий |
6.1 |
|
Локальные участки просадки поверхности покрытий с образованием трещин и уступов. Подвижка плит покрытия |
6.2, 6.3, 6.4, 6.6 |
8.1.1 Анализ результатов мониторинга включает сопоставление измеренных значений контролируемых параметров с предельными значениями, скорости и характера их изменения, а также определение необходимости реализации плана корректирующих мер. Такими мерами могут быть изменение режима эксплуатации элемента аэродрома, вплоть до его временного закрытия, проведение внеплановых ремонтных мероприятий по устранению дефектов и повреждений, снижающих уровень безопасности эксплуатации ВС, применение специальных технических и геотехнических мероприятий.
8.1.2 Полученные результаты подлежат анализу в зависимости от характера и длительности воздействия. Под воздействием понимается процесс, приводящий к изменению измеряемых значений контролируемых параметров, например климатические изменения, изменение уровня грунтовых вод, снижение дренирующих свойств искусственного основания и др.
8.1.3 В случае установления систематического изменения измеряемого значения контролируемого параметра от постороннего (фонового) воздействия (температурного, атмосферного, техногенного и др.) следует учитывать их при анализе и рассматривать при прогнозировании динамики изменения значений контролируемых параметров и возможности компенсации (снижения) данного воздействия путем выполнения технических и геотехнических мероприятий.
8.1.4 В случае если анализ измерений показывает малую эффективность применяемого метода наблюдений или способа измерений для решения поставленных задач, следует рассмотреть возможность применения других методов и способов измерений при последующих наблюдениях.
8.1.5 Анализ результатов измерений и погрешностей методов измерений следует проводить с учетом требований ГОСТ Р ИСО 5725-1.
При выявлении динамики изменения контролируемых параметров, свидетельствующей о возможности наступления аварийной или предаварийной ситуации, угрожающей безопасной эксплуатации ВС, следует:
- незамедлительно проинформировать заказчика или эксплуатирующую организацию о необходимости оперативного принятия решения по обеспечению безопасной эксплуатации ВС на аэродроме;
- увеличить частоту проведения измерений до момента установления причин наступления аварийной или предаварийной ситуации, их устранения и восстановления прогнозируемой динамики изменения измеряемых значений величин. При этом на проблемных участках возможно увеличение числа точек, видов и периодичности измерений;
- разработать рекомендации по комплексу первоочередных мероприятий, направленных на предотвращение развития аварийной или предаварийной ситуации на объекте;
- установить причины выявленных опасных отклонений контролируемых параметров, в том числе с помощью проведения дополнительных инженерных изысканий;
- разработать рекомендации по обеспечению технической безопасности и эксплуатационной надежности элементов аэродрома.
8.3.1 Состав отчетной документации при проведении геотехнического мониторинга эксплуатируемых элементов аэродрома должен быть определен программой мониторинга, утвержденной заказчиком.
8.3.2 Периодичность представления промежуточной отчетной документации должна обеспечивать своевременность информирования заказчика или эксплуатирующей организации о выявленных отклонениях контролируемых параметров за отчетный период, содержать достаточные данные для принятия обоснованного решения по реализации целей проведения мониторинга или проведения дополнительных видов обследований.
Приложение А
А.1 Необходимость и степень автоматизации геотехнического мониторинга на аэродроме следует определять при соответствующем технико-экономическом обосновании. Систему автоматизированного мониторинга рекомендуется проектировать с возможностью модульной интеграции контрольно-измерительного оборудования мониторинга, позволяющей:
- добавление модулей обработки данных, аналогичных уже интегрированному мониторинговому оборудованию, с различными характеристиками и особенностями настроек;
- разработку и интеграцию нового алгоритма обработки и вывода данных для не используемого ранее типа оборудования для мониторинга;
- интеграцию как автоматизированного, так и ручного способа получения данных с датчиков и устройств.
Система геотехнического мониторинга должна предусматривать оперативный доступ к вспомогательным материалам на объекте (отчеты, регламенты, справки и т.д.).
А.2 Система должна обеспечивать удаленный доступ к данным мониторинга через сеть Интернет. Контрольно-измерительное оборудование должно быть подключено к сети Интернет.
А.3 Данные могут передаваться как с применением кабельных линий, так и с помощью беспроводных систем связи. Линии связи должны обеспечивать бесперебойную и помехоустойчивую передачу данных на протяжении всего периода эксплуатации системы. Организация передачи данных между отдельными элементами измерительной системы возможна как с использованием кабельных линий, так и с помощью беспроводных систем связи.
А.4 При организации передачи данных по каналам связи необходимо предусмотреть создание единого диспетчерского центра для сбора и обработки информации.
При отсутствии единого диспетчерского центра для каждой измерительной точки предусматривается оснащение шкафов с оборудованием, выполняющим обработку измерений и передачу информации на выделенный сервер.
А.5 Блоки сбора-передачи информации должны предусматривать возможность оперативного изменения параметров для возможного корректирования системы.
А.6 Автоматическая фиксация наблюдаемых параметров может проводиться без создания единой автоматизированной системы с помощью локальных систем, состоящих из отдельных приборов, фиксирующих измеряемые параметры с заданной частотой опроса, и накопителей данных.
А.7 Необходимо предусматривать возможность интеграции измерительных датчиков системы геотехнического мониторинга, устанавливаемых в покрытиях и грунтах основания.
А.8 Программное обеспечение следует выбирать в соответствии с требованиями используемых методов мониторинга.
Приложение Б
Б.1 Для установки в покрытия из цементобетона и сборные покрытия из плит ПАГ в качестве деформационных марок при длительных наблюдениях следует применять распорные дюбели из нержавеющей стали или латуни с болтами, имеющими полукруглую или цилиндрическую головку. Дюбели устанавливают в заранее подготовленные отверстия. Глубина отверстий должна обеспечивать ввинчивание болта заподлицо с поверхностью покрытия (на 5-10 мм ниже поверхности). Монтаж дюбелей следует выполнять с применением клеевых составов на основе эпоксидных компаундов или коллоидного цементного клея.
Б.2 Рядом с маркой наносят краской номер в соответствии с планом расположения марок.
Б.3 "Пятка" нивелирной рейки или отражателя должна быть оборудована сферической головкой для точной установки на марку.
Б.4 На асфальтобетонных и цементобетонных (при коротких сроках наблюдения) покрытиях точки нивелирования следует обозначать эмалями для дневной маркировки. Точка обозначается перекрестием двух взаимно перпендикулярных линий шириной 10-20 мм и длиной не менее 100 мм. Рядом с маркой наносят краской номер в соответствии с планом расположения марок.
Б.5 Точки нивелирования и номера марок периодически обновляют по мере необходимости.
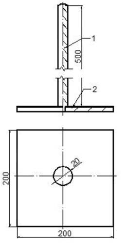
Б.6 Конструкция грунтовой марки и схема установки представлены на рисунках Б.1 и Б.2.
Б.7 На отмостке рядом с грунтовой маркой наносят краской номер в соответствии с планом расположения марок.
Б.8 Места установки грунтовых марок обозначают гибким маячком для их сохранения и легкого нахождения в условиях снегозаноса или травостоя.

1 - площадка; 2 - стержень с оголовком
Рисунок Б.1 — Конструкция грунтовой деформационной марки

Рисунок Б.2 - Схема установки грунтовой деформационной марки
Приложение В
В.1 Наблюдательная гидрогеологическая скважина состоит из фильтровой колонны (трубы), затрубной обсыпки фильтра и оголовка (рисунок В.1).

а - скважина на покрытии; б - скважина на грунтовой части
1 - надфильтровая глухая труба; 2 - фильтр - перфорированная труба; 3 - сетка фильтра; 4 - отстойник; 5 - наконечник; 6 - обсыпка из песка; 7 - крышка скважины; 8 - оголовок скважины; 9 - аэродромное покрытие; 10 - отмостка на грунтовой части
Рисунок В.1 - Конструкция наблюдательной гидрогеологической скважины
В.2 Фильтровая колонна состоит из фильтра, отстойника и надфильтровой глухой трубы. Для изготовления колонны используют трубы диаметром 73-108 мм. Меньшие диаметры не рекомендуются из-за невозможности использования оборудования, применяемого при прокачке скважин, и из-за уменьшения сроков их эксплуатации, связанного с заилением фильтров, трудностью их очистки и ремонта.
В.3 Фильтр представляет собой перфорированную трубу со скважностью 15%-20%, обернутую сеткой и обсыпанную по внешней поверхности песком или гравием. Длина фильтра составляет 2-3 м, отстойника - 1 м. Для сыпучих и связных водоносных грунтов средний диаметр материала обсыпки должен быть в 8-12 раз больше среднего диаметра грунтов в интервале установки фильтра. Для суглинков в качестве фильтровой обсыпки применяют чистые мелко- и среднезернистые пески, а для песков - обсыпку из гравия. Обсыпку выполняют толщиной не менее 50 мм. С учетом этого диаметр бурения скважин составляет 219-273 мм. По высоте скважины обсыпку устраивают в интервале от низа отстойника до отметки на 2 м выше верха фильтра. Как правило, обсыпают всю фильтровую колонну скважины - от забоя до глиняного замка.
В.4 При установке наблюдательной скважины на второй и третий от поверхности водоносные горизонты изоляция между горизонтами обеспечивается с помощью сальника, разжимаемого колонной труб, а также с помощью заливки в затрубное пространство над сальником глинистого или глинисто-цементного раствора.
В.5 Наземная часть наблюдательных скважин оборудуется оголовком и лючком, монтируемым в покрытии (скважина на покрытии), или лючком и отмосткой (скважина на грунтовой части). Герметичный оголовок гидрогеологической скважины (рисунок В.1) должен быть установлен заподлицо с поверхностью покрытия (на 5-10 мм ниже) и закреплен в покрытии материалами, обеспечивающими его неподвижность. При устройстве гидрогеологических скважин на грунтовой части у оголовков следует устанавливать гибкие маячки для их обнаружения при снегозаносах и травостое.
В.6 После установки наблюдательной гидрогеологической скважины проводят прокачку фильтра от глинистых частиц путем кратковременной откачки (оттартовки) воды с помощью насоса или желонки. После окончания прокачки проводят наблюдения за восстановлением уровня в скважине до статического.
Приложение Г
Г.1 Система мониторинга температур грунтов основания состоит из термометрической скважины, датчиков температуры (термокос) с коммутационным устройством, многоканального цифрового устройства и контроллера цифровых датчиков (рисунок Г.1). При автоматизации процессов измерения дополнительно включает линии связи или системы беспроводной связи).
Термокоса представляет собой устройство для многозонного измерения температуры, которое содержит последовательно расположенные измерительные преобразователи (датчики температуры), каждый из которых размещен в отдельном защитном металлическом корпусе, и разъем для подключения к контроллеру или линиям связи. Датчики температуры соединены между собой гибким кабелем.
Г.2 На покрытиях взлетно-посадочных полос термометрические скважины в целях обеспечения необходимого уровня безопасности полетов и выполнения долговременных наблюдений (обеспечение ремонтопригодности и взаимозаменяемости элементов измерительной аппаратуры) следует устраивать на расстоянии не более 1 м от края покрытия. Герметичный оголовок термометрической скважины (рисунок Г.2) должен быть установлен заподлицо с поверхностью покрытия (на 5-10 мм ниже) и закреплен в покрытии материалами, обеспечивающими его неподвижность. При устройстве термометрических скважин на грунтовой части у оголовков следует устанавливать гибкие маячки для их обнаружения при снегозаносах и травостое.
Г.3 Глубина термометрической скважины должна быть:
- для районов распространения ММГ на 0,5 м ниже от верхней поверхности ММГ природного залегания;
- для районов распространения пучинистых грунтов на 1 м ниже средних многолетних значений глубины промерзания.
Г.4 Расположение датчиков температуры в термокосе следует принимать:
- при мониторинге состояния ММГ - с шагом 0,5 м до глубины сжимаемой толщи грунтового основания и далее через 1 м: при наличии в конструкции слоев теплоизоляции предусматривают дополнительные датчики над и под слоем теплоизоляции;
- при мониторинге состояния пучинистых грунтов - с шагом 0,5 м: при наличии в конструкции слоев теплоизоляции предусматривают дополнительные датчики над и под слоем теплоизоляции.

1 - искусственное покрытие; 2 - оголовок скважины; 3 - обсадная труба; 4 - грунт естественного и искусственного основания; 5 - термогирлянда
Рисунок Г.1 - Конструкция термометрической скважины в покрытии и оголовка

1 - крышка; 2 - корпус; 3 - прокладка; 4 - труба
Рисунок Г.2 — Конструкция оголовка термометрической скважины
Библиография
[1] Федеральный закон от 30 декабря 2009 г. N 384-ФЗ "Технический регламент о безопасности зданий и сооружений"


