СП 145.13330.2012 (24.12.2019) ДОМА-ИНТЕРНАТЫ. ПРАВИЛА ПРОЕКТИРОВАНИЯ
С изменениями:
(30 декабря 2015 г., 24 декабря 2019 г.)
Boarding-Houses. Rules of architectural design
Дата введения 1 июля 2013 г.
Введен впервые
Введение
Настоящий свод правил направлен на обеспечение требований Федерального закона от 30 декабря 2009 г. N 384-ФЗ "Технический регламент о безопасности зданий и сооружений".
Разработанный в развитие положений СП 59.13330 настоящий свод правил в соответствии с принципами Конвенции ООН о правах инвалидов, подписанной Российской Федерацией в сентябре 2008 г., содержит рекомендательные нормы и правила по проектированию среды, адаптированной для инвалидов и других маломобильных групп населения.
В настоящем своде правил учтены опыт исследований в данной области отечественных и зарубежных специалистов, а также разработки различных авторов и творческих коллективов. В тексте учтены предложения и замечания специалистов центральных правлений ВОИ, ВОС и ВОГ, НИИ экологии человека и гигиены окружающей среды им. А.Н. Сысина.
Свод правил разработан: ООО "Институт общественных зданий" (руководитель работы - канд. архит. A.M. Гарнец, отв. исполнитель - канд. архит. Т.А. Исаева, компьютерная графика - канд. архит. А.И. Цыганов, инж. И.Р. Домрачева, исполнители: ст. науч. сотрудник Л.В. Сигачева, инж. Н.И. Чернозубова); ОАО "Центральный научно-исследовательский институт жилых и общественных зданий", ЦНИИЭП жилища (канд. архит., проф. А.А. Магай, канд. архит. Н.В. Дубынин); Федеральным бюро медико-социальной экспертизы, ФГБУ ФБ МСЭ, Федеральным медико-биологическим агентством России, ФМБА России (д-р мед. наук, проф. Н.Ф. Дементьева).
Изменение N 2 разработано: АО "ЦНИИПромзданий" (руководитель работы - канд. архитектуры Н.В. Дубынин, ответственный исполнитель - канд. архитектуры А.О. Родимов, исполнители - канд. техн. наук Д.Г. Пронин, канд. архитектуры Б.Л. Крундышев, В.В. Коновалова, канд. архитектуры А.В. Попов, М.Ю. Зверев), ООО "Главный конструктор" (С.А. Тимонин).
1.1 Настоящий свод правил распространяется на проектирование новых зданий, а также на реконструкцию действующих зданий домов-интернатов общего типа, специальных и психоневрологических для нуждающихся в постоянной помощи мужчин старше 65 лет и женщин старше 60 лет, а также инвалидов I и II группы старше 18 лет.
Примечания
1 В переходный период с 2019 по 2028 гг. выход на пенсию определяется в соответствии с [8].
2 Типы квартир и состав обслуживания при специализированных квартирных жилых домах (в том числе в составе отделения в доме-интернате) для проживания лиц указанного возраста и инвалидов определяются заданием на проектирование.
3 Типы квартир (жилых помещений) для инвалидов, предназначенных для проживания с сопровождением [17], требования к их размещению, площади жилых и подсобных помещений (в том числе в составе отделения в доме-интернате) определяются заданием на проектирование.
1.2 Настоящий свод правил не распространяется на дома-интернаты для ветеранов войны, труда, Вооруженных Сил и правоохранительных органов; дома-интернаты ухода (милосердия); психоневрологические интернаты, осуществляющие функции диспансеризации, лечения проживающих, госпитализацию, связанную с тяжело больными психоневрологическими болезнями.
В настоящем своде правил приведены нормативные ссылки на следующие документы:
ГОСТ 12.1.004-1991 Система стандартов безопасности труда. Пожарная безопасность. Общие требования
ГОСТ 5746-2015 (ISO 4190-1:2010) Лифты пассажирские. Основные параметры и размеры
ГОСТ 27751-2014 Надежность строительных конструкций и оснований. Основные положения
ГОСТ 30494-2011 Здания жилые и общественные. Параметры микроклимата в помещениях
ГОСТ 31565-2012 Кабельные изделия. Требования пожарной безопасности
ГОСТ 33652-2015 (EN 81-70:2003) Лифты пассажирские. Технические требования доступности, включая доступность для инвалидов и других маломобильных групп населения
ГОСТ Р 12.2.143-2009 Система стандартов безопасности труда. Системы фотолюминесцентные эвакуационные. Требования и методы контроля
ГОСТ Р 50571.5.52-2011/МЭК 60364-5-52:2009 Электроустановки низковольтные. Часть 5-52. Выбор и монтаж электрооборудования. Электропроводки
ГОСТ Р 51261-2017 Устройства опорные стационарные реабилитационные. Типы и технические требования
ГОСТ Р 51633-2000 Устройства и приспособления реабилитационные, используемые инвалидами в жилых помещениях. Общие технические требования
ГОСТ Р 51671-2015 Средства связи и информации технические общего пользования, доступные для инвалидов. Классификация. Требования доступности и безопасности
ГОСТ Р 52875-2018 Указатели тактильные наземные для инвалидов по зрению. Технические требования
ГОСТ Р 55555-2013 Платформы подъемные для инвалидов и других маломобильных групп населения. Требования безопасности и доступности. Часть 1. Платформы подъемные с вертикальным перемещением
ГОСТ Р 55556-2013 (ИСО 9386-2:2000) Платформы подъемные для инвалидов и других маломобильных групп населения. Требования безопасности и доступности. Часть 2. Платформы подъемные с наклонным перемещением
ГОСТ Р 55966-2014 (CEN/TS 81-76:2011) Лифты. Специальные требования безопасности к лифтам, используемым для эвакуации инвалидов и других маломобильных групп населения
СП 1.13130.2009 Системы противопожарной защиты. Эвакуационные пути и выходы (с изменением N 1)
СП 2.13130.2012 Системы противопожарной защиты. Обеспечение огнестойкости объектов защиты (с изменением N 1)
СП 3.13130.2009 Системы противопожарной защиты. Система оповещения и управления эвакуацией людей при пожаре. Требования пожарной безопасности
СП 4.13130.2013 Системы противопожарной защиты. Ограничение распространения пожара на объектах защиты. Требования к объемно-планировочным и конструктивным решениям (с изменением N 1)
СП 5.13130.2009 Системы противопожарной защиты. Установки пожарной сигнализации и пожаротушения автоматические. Нормы и правила проектирования (с изменением N 1)
СП 6.13130.2013 Системы противопожарной защиты. Электрооборудование. Требования пожарной безопасности
СП 7.13130.2013 Отопление, вентиляция и кондиционирование. Требования пожарной безопасности
СП 8.13130.2009 Системы противопожарной защиты. Источники наружного противопожарного водоснабжения. Требования пожарной безопасности (с изменением N 1)
СП 10.13130.2009 Системы противопожарной защиты. Внутренний противопожарный водопровод. Требования пожарной безопасности (с изменением N 1)
СП 17.13330.2017 "СНиП II-26-76 Кровли" (с изменением N 1)
СП 20.13330.2016 "СНиП 2.01.07-85* Нагрузки и воздействия" (с изменениями N 1, N 2)
СП 30.13330.2016 "СНиП 2.04.01-85* Внутренний водопровод и канализация зданий" (с изменением N 1)
СП 42.13330.2016 "СНиП 2.07.01-89* Градостроительство. Планировка и застройка городских и сельских поселений"
СП 52.13330.2016 "СНиП 23-05-95* Естественное и искусственное освещение"
СП 54.13330.2016 "СНиП 31-01-2003 Здания жилые многоквартирные"
СП 59.13330.2016 "СНиП 35-01-2001 Доступность зданий и сооружений для маломобильных групп населения"
СП 60.13330.2016 "СНиП 41-01-2003 Отопление, вентиляция и кондиционирование воздуха" (с изменением N 1)
СП 118.13330.2012 "СНиП 31-06-2009 Общественные здания и сооружения" (с изменениями N 1, N 2)
СП 136.13330.2012 Здания и сооружения. Общие положения проектирования с учетом доступности для маломобильных групп населения (с изменением N 1)
СП 140.13330.2012 Городская среда. Правила проектирования для маломобильных групп населения (с изменением N 1)
СП 256.1325800.2016 Электроустановки жилых и общественных зданий. Правила проектирования и монтажа (с изменениями N 1, N 2, N 3)
СП 258.1311500.2016 Объекты религиозного назначения. Требования пожарной безопасности
СП 439.1325800.2018 Здания и сооружения. Правила проектирования аварийного освещения
СанПиН 2.2.1/2.1.1.1076-01 Гигиенические требования к инсоляции и солнцезащите помещений жилых и общественных зданий и территорий
СанПиН 2.2.1/2.1.1.1278-03 Гигиенические требования к естественному, искусственному и совмещенному освещению жилых и общественных зданий
СП 2.1.2.3358-16 Санитарно-эпидемиологические требования к размещению, устройству, оборудованию, содержанию, санитарно-гигиеническому и противоэпидемическому режиму работы организаций социального обслуживания
СП 2.3.6.1079-01 Санитарно-эпидемиологические требования к организациям общественного питания, изготовлению и оборотоспособности в них пищевых продуктов и продовольственного сырья
Примечание - При пользовании настоящим сводом правил целесообразно проверить действие ссылочных документов в информационной системе общего пользования - на официальном сайте федерального органа исполнительной власти в сфере стандартизации в сети Интернет или по ежегодному информационному указателю "Национальные стандарты", который опубликован по состоянию на 1 января текущего года, и по выпускам ежемесячного информационного указателя "Национальные стандарты" за текущий год. Если заменен ссылочный документ, на который дана недатированная ссылка, то рекомендуется использовать действующую версию этого документа с учетом всех внесенных в данную версию изменений. Если заменен ссылочный документ, на который дана датированная ссылка, то рекомендуется использовать версию этого документа с указанным выше годом утверждения (принятия). Если после утверждения настоящего свода правил в ссылочный документ, на который дана датированная ссылка, внесено изменение, затрагивающее положение, на которое дана ссылка, то это положение рекомендуется применять без учета данного изменения. Если ссылочный документ отменен без замены, то положение, в котором дана ссылка на него, рекомендуется применять в части, не затрагивающей эту ссылку. Сведения о действии сводов правил целесообразно проверить в Федеральном информационном фонде стандартов.
В настоящем своде правил использованы термины по СП 54.13330, СП 59.13330, а также следующие термины с соответствующими определениями:
3.1 дом-интернат общего типа: Учреждение, предназначенное для стационарного проживания лиц, нуждающихся в социальной и медицинской помощи, и инвалидов.
3.2 дом-интернат психоневрологический: Учреждение, предназначенное для стационарного проживания лиц, нуждающихся в социальной и психологической поддержке, психиатрической помощи и в соответствующем медицинском уходе, и инвалидов.
3.2а дом-интернат специальный: Учреждение, предназначенное для стационарного проживания граждан, частично или полностью утративших способность к самообслуживанию и нуждающихся в постоянном постороннем уходе, из числа освобождаемых из мест лишения свободы особо опасных рецидивистов и других лиц, за которыми в соответствии с действующим законодательством установлен административный надзор, а также престарелых и инвалидов, ранее судимых или неоднократно привлекавшихся к административной ответственности за нарушение общественного порядка, занимающихся бродяжничеством и попрошайничеством, направляемых из учреждений органов внутренних дел.
3.3 Исключен с 25 июня 2020 г. - Изменение N 2
3.4 жилая комната (здесь): Отдельное жилое помещение, предназначенное для использования в качестве места непосредственного проживания граждан в доме-интернате.
3.5 жилое отделение: Функциональный элемент здания, состоящий из жилых групп (от двух до четырех) и общественных помещений в составе отделения.
3.5а реабилитация: Система мероприятий направленных на устранение или создание возможно полной компенсации ограничений жизнедеятельности; реабилитация определяется, как "система и процесс полного или частичного восстановления способностей инвалидов к бытовой, общественной, профессиональной и иной деятельности.
3.6 жилая группа: Элемент жилого отделения, включающий в свой состав несколько жилых ячеек (блоков).
Примечание - Жилые группы, рассчитанные для различных категорий проживающих, называются комплексными.
3.7 жилая ячейка (здесь): Группа жилых комнат, не более двух, объединенных подсобными помещениями общего пользования для заселения проживающих до 6 чел.
Примечание - К подсобным помещениям общего пользования относятся помещения кухонь, коридоров, ванных комнат, душевых, туалетов, санузлов, уборных, встроенных шкафов, кладовых.
3.7а жилой блок: Группа жилых комнат, не более десяти, объединенных подсобными помещениями общего пользования для заселения проживающих до 25 чел.
3.8 комната социально-бытовой адаптации: Помещение для оказания психологической помощи лицам, оказавшимся в затруднительных жизненных ситуациях с полной или частичной потерей трудоспособности, и для возвращения их к обычным социальным условиям общества.
3.9 Исключен с 25 июня 2020 г. - Изменение N 2
3.10 Исключен с 25 июня 2020 г. - Изменение N 2
3.11 трансформация (здесь): Преобразование, видоизменение пространства (помещения) путем изменения его параметров.
3.12 уровень комфортности проживания: Комплекс характеристик выполнения действующих норм по безопасности, объемно-планировочным и конструктивным решениям, эргономике, необходимому инженерно-техническому оснащению, пожарной безопасности, санитарно-эпидемиологическим требованиям, экологической безопасности, безопасности строительных материалов для здоровья человека, комплексной безопасности и антитеррористической защищенности.
3.13 функциональная зона: Пространство, характеризующееся определенными общими признаками, связанными с какой-либо деятельностью, например зона у стола, зона проезда на кресле-коляске по коридору и т.д.
3.14 социальное обслуживание: Деятельность социальных служб, осуществляющих социальные услуги, в том числе бытовые, для граждан находящихся в трудной жизненной ситуации.
4.1 Основными задачами домов-интернатов являются:
обеспечение, создание условий жизнедеятельности, проживания граждан, клиентов домов-интернатов, соответствующих их возрасту и состоянию здоровья;
социально-бытовое, санитарно-гигиеническое обслуживание;
питание;
лечебно-трудовая терапия;
культурно-массовое обслуживание;
медицинское обслуживание, включая реабилитацию;
социально-бытовое обслуживание;
охрана безопасности проживания.
Функциональные схемы размещения отделений, различных групп помещений в домах-интернатах представлены в приложении Б (рисунки Б.1 и Б.2).
В вестибюлях домов-интернатов следует предусматривать установку информационных терминалов/киосков, информационных табло типа "бегущая строка", телефонных устройств с текстовым выходом для посетителей с нарушением слуха, звуковых и радиоинформаторов и/или тактильных и с речевым дублированием информации мнемосхем для слабовидящих посетителей. Перечень устанавливается в задании на проектирование.
4.2 Вместимость психоневрологических домов-интернатов следует принимать по заданию на проектирование.
4.3 Исключен с 25 июня 2020 г. - Изменение N 2
4.4 Численность инвалидов, передвигающихся на креслах-колясках, должна составлять не более 12% общей вместимости дома-интерната.
4.5 При каждом доме-интернате следует предусматривать дополнительное помещение или место площадью не менее 4 м2 для хранения уличных кресел-колясок.
4.6 Минимальную высоту жилых помещений от пола до потолка для нового строительства принимают по СП 54.13330, общественных помещений - не менее 3 м в соответствии с СП 118.13330.
4.7 В домах-интернатах следует обеспечивать инсоляцию согласно СанПиН 2.2.1/2.1.1.1076, СП 42.13330. В жилых комнатах длительность инсоляции должна быть в северной зоне (севернее 58° с.ш.) - не менее 2,5 ч в день в период с 22 апреля по 22 августа; в центральной зоне (58-48° с.ш.) - не менее 2 ч в день в период с 22 апреля по 22 августа; в южной зоне (южнее 48° с.ш.) - не менее 1,5 ч в день в период с 22 февраля по 22 октября.
4.8 Нормируемые показатели естественного и искусственного освещения различных помещений следует устанавливать в соответствии с СП 52.13330, СанПиН 2.2.1/2.1.1.1278.
В случае прерываемого режима инсоляции суммарная длительность инсоляции должна быть увеличена на 0,5 ч, при которой один из периодов должен быть не менее 1,0 ч. Для обеспечения естественного освещения глубину жилых помещений следует устанавливать не более 6 м или по расчету в соответствии с СанПиН 2.2.1/2.1.1.1076.
4.9 Дома-интернаты проектируются двух уровней комфортности проживания классов "М" (минимальный) и "О" (оптимальный).
При проектировании домов-интернатов следует предусматривать обязательный минимальный уровень комфортности проживания класса "М", при котором минимально допустимые параметры обеспечивают благоприятную среду жизнедеятельности, а также безопасность и здоровье людей.
Состав и площади помещений, требования к проектированию зданий с уровнем комфортности проживания класса "М" представлены в таблицах А.1-А.11, на рисунках Б.4-Б.8.
При уровне комфортности проживания класса "О" состав помещений домов-интернатов может быть увеличен по заданию на проектирование.
При проектировании домов-интернатов независимо от уровня комфортности, указанной выше, допускается предусматривать помещение для проведения религиозных обрядов по заданию на проектирование.
4.10 При реконструкции или приспособлении зданий для домов-интернатов следует учитывать также требования СП 54.13330, СП 59.13330, [1], [2], [3], [4], [5], [7].
4.11 При проектировании домов-интернатов сохранение прочности и устойчивости несущих конструкций следует обеспечивать в соответствии с СП 118.13330, СП 20.13330, ГОСТ 27751.
5.1 Дома-интернаты следует размещать на участках, наиболее благоприятных по санитарно-гигиеническим условиям, согласно СП 42.13330, СП 2.1.2.3358, [1], [6], [7].
При выборе площадки строительства следует учитывать ее близость к больницам, социальным центрам адаптации и культовым сооружениям, а также доступность проезда к учреждениям родственников проживающих.
5.2 Требования к площади участков домов-интернатов следует принимать по СП 42.13330. Правила устройства площадок для отдыха МГН приведены в СП 140.13330.
5.3 Ширину пути движения на участке дома-интерната следует принимать с учетом встречного движения инвалидов на креслах-колясках в соответствии с СП 59.13330.
Примечание - Прогулочные дорожки на участке проектируются с учетом обеспечения замкнутого движения и без тупиков.
5.4 Для слабовидящих, проживающих в доме-интернате, следует предусматривать тактильные средства, выполняющие предупредительную функцию на покрытии пешеходных путей участка, согласно СП 59.13330, СП 136.13330, ГОСТ Р 52875.
5.5 Площади участков домов-интернатов следует определять заданием на проектирование с учетом требований региональных нормативов градостроительного проектирования, в случае их отсутствия - по СП 42.13330.
5.6 При строительстве нового здания дома-интерната в районах со стесненной застройкой площадь земельного участка при соответствующем обосновании может быть уменьшена, исходя из условий застройки и задания на проектирование, но не более чем на 20-25% по сравнению с нормами СП 42.13330.
5.7 Территория, предназначенная для домов-интернатов, должна иметь ограждение высотой не менее 2,5 м, а в районах с глубиной снежного покрова более 1 м - не менее 3,5 м.
5.8 На территории земельного участка, принадлежащего дому-интернату, транспортные проезды и пешеходные дороги на пути к учреждению и объектам, посещаемым инвалидами, должны иметь удобные подъезды и подходы , с учетом требований СП 42.13330, СП 59.13330, СП 136.13330. Остановки общественного транспорта следует увязывать с местом размещения здания дома-интерната со стороны главного входа.
5.9 Площадки для физкультурных занятий и гимнастики необходимо предусматривать с зоной для занятий корригирующей гимнастикой из расчета 2 м2/чел. Указанные площадки входят в площадь участка, размеры их зависят от вида здания и вместимости.
5.10 В составе физкультурной площадки предусматривают дорожки для лечебной ходьбы и бега трусцой.
5.11 В психоневрологических домах-интернатах для лиц, самостоятельно передвигающихся, для занятий лечебной физкультурой следует предусматривать площадку из расчета 10 м2/место согласно таблице 5.1.
5.12 В хозяйственной зоне предусматриваются: гараж, стоянка для автомобилей, разгрузочная площадка, площадка для сушки белья и при необходимости - котельная, овощехранилище, прачечная, склады и другие помещения.
6.1 При проектировании зданий домов-интернатов жилые и общественные помещения допускается располагать рассредоточенно, в одном или нескольких зданиях.
6.2 Дома-интернаты следует проектировать 1-3-этажными.
В домах-интернатах высотой 2 этажа и выше следует предусматривать лифты в соответствии с требованиями ГОСТ 5746, ГОСТ 33652, ГОСТ Р 55966, [6], в двухэтажных зданиях допускается установка подъемных платформ в соответствии с требованиями ГОСТ Р 55555, ГОСТ Р 55556. Выбор способа подъема инвалида устанавливается заданием на проектирование.
Размеры кабин лифтов в домах-интернатах, в том числе для инвалидов, пользующихся креслом-коляской, следует принимать в соответствии с ГОСТ 5746 и СП 59.13330, ширину двери - не менее 0,9 м.
Число лифтов для эвакуации МГН, в том числе из пожаробезопасных зон в исполнении "для пожарных подразделений", определяют расчетом. Расчеты должны соответствовать динамике опасных факторов пожара.
Примечание - Устройство подъемных платформ допускается при реконструкции с учетом СП 59.13330.
6.3 Общая площадь домов-интернатов принимается в зависимости от типа зданий, вместимости, уровня комфортности согласно таблицам А.1-А.12 и указывается в задании на проектирование.
Схемы взаимосвязей жилых групп и отделений приведены на рисунках Б.1 и Б.2.
6.4 Минимальную жилую площадь в домах-интернатах следует предусматривать от 7 до 8 м2/чел. в зависимости от степени инвалидности и вида дома-интерната.
Для проживающих, способных к частичному самообслуживанию и передвигающихся с посторонней помощью, жилую площадь следует принимать 7 м2/чел.
Для инвалидов, пользующихся креслами-колясками и нуждающихся в постоянной помощи, следует предусматривать жилую площадь из расчета 8 м2/чел. с учетом разворота кресла-коляски.
Примечание - В случае проектирования жилой комнаты для проживания одного инвалида, передвигающегося на кресле-коляске, ее площадь следует принимать согласно СП 59.13330.2016 (пункт 7.2.5).
6.5 При входе в здание дома-интерната следует обеспечивать безбарьерный вход для инвалидов, при необходимости с пандусом, в соответствии с СП 59.13330. Пандус, служащий путем эвакуации со 2-го этажа, должен быть связан непосредственно через тамбур с выходом наружу.
Лестницы, пандусы, лифты, подъемные платформы, вспомогательные средства и приспособления для передвижения людей по зданию и помещениям следует проектировать в соответствии с требованиями СП 59.13330.
Примечание - Устройство подъемных платформ допускается при реконструкции с учетом СП 59.13330.
6.6 Объемно-планировочные решения домов-интернатов следует проектировать с учетом следующих требований к путям эвакуации (СП 1.13130, [4], [6], СП 3.13130 - СП 5.13130):
на путях эвакуации не следует применять вращающиеся двери и турникеты, винтовые лестницы;
в жилых ячейках (блоках) комнату дежурного персонала следует размещать рядом со спальными комнатами и комнатами для занятий. Такое расположение обусловлено в случае необходимости скорейшей эвакуацией контингента из этих помещений с помощью дежурного персонала. В этих помещениях предусматриваются устройства автоматической пожарной сигнализации;
на путях эвакуации дверные проемы не должны иметь порогов и перепадов высоты пола. При необходимости устройства порогов их высота или перепад высоты не должны превышать 0,014 м в соответствии с требованиями СП 59.13330;
вдоль обеих сторон лестниц и пандусов, а также у всех переходов высотой более 0,45 м необходимо устраивать ограждения с поручнями из негорючих материалов на высоте 0,9 м.
6.7 При проектировании лестниц поручень перил с внутренней стороны должен быть непрерывным. По заданию на проектирование по всей высоте лестницы на поверхности поручня следует предусматривать рельефные обозначения этажей в соответствии с требованиями СП 59.13330.
6.8 На путях движения в здании следует предусматривать:
- смежные с ними зоны отдыха и ожидания не реже чем через каждые 25-30 м, не менее одной на каждом этаже;
- поручни (поручни, совмещенные с отбойной доской) на высоте 0,9 м.
6.9 При всех наружных входах в здания домов-интернатов следует предусматривать тамбуры в соответствии с СП 59.13330.
Двойные тамбуры при входе следует проектировать в соответствии с требованиями СП 54.13330.
6.10 В жилой части здания допускается размещать обслуживающие помещения, библиотеку-читальню, комнаты для кружковых занятий, медпункт, высота которых должна быть равной высоте жилых помещений.
Высоту помещений зрительного зала, лечебно-трудовых и учебно-производственных мастерских, а также помещений столовой следует принимать не менее 3 м в соответствии с СП 118.13330.
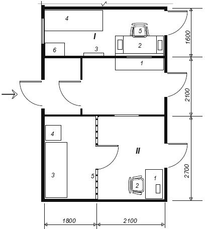
6.11 В домах-интернатах при входе в здание в вестибюльной группе помещений следует предусматривать помещения вахтера и охраны. В домах-интернатах специальных, общего типа со специальными отделениями - помещения вахтера и пост полиции. Схема помещений приведена на рисунке Б.3.
6.12 Состав и площади помещений домов-интернатов следует принимать согласно приложению А.
6.13 Глубина жилых комнат не должна превышать 6 м. Ширина жилых помещений для нуждающихся в посторонней помощи и инвалидов, передвигающихся на креслах-колясках, а также процедурных помещений должна быть не менее 3 м. Отношение длины комнаты к ее ширине не должно превышать 2:1.
6.14 Ширину пути движения внутри здания следует принимать в соответствии с требованиями СП 59.13330.
6.15 В I и II климатических районах по заданию на проектирование предусматривать в домах-интернатах при жилых комнатах лоджии и балконы глубиной не менее 1,4 м. При этом разница отметок пола жилого помещения и балкона (лоджии) не должна превышать 0,014 м.
При решении балконов и лоджий следует учитывать местные условия и при необходимости предусматривать на летних помещениях ветрозащитные, трансформируемые экраны и солнцезащиту в виде штор, козырьков по заданию на проектирование.
Примечания
1 В психоневрологических и специальных домах-интернатах допускается предусматривать остекленную лоджию общего пользования на жилую группу из расчета 1 м2/чел.
2 По заданию на проектирование допускается предусматривать площадки для отдыха на эксплуатируемой кровле при обеспечении требований СП 17.13330.
6.16 Столовую, лечебно-трудовые мастерские (далее - ЛТМ) и учебно-производственные мастерские (далее - УПМ) допускается размещать в отдельных блоках.
6.17 В помещении мастерской, предназначенной для людей, занимающихся трудотерапией, рядом со столом мастера следует предусматривать стол медсестры для наблюдения и оказания в случае необходимости медицинской помощи.
6.18 При учебно-производственных мастерских следует предусматривать кладовые для хранения материалов и кладовые готовых изделий. Состав и площади помещений УПМ представлены в таблице А.9 приложения А и на рисунке Б.14 приложения Б.
6.19 Учебно-производственные мастерские, их вместимость и количество следует определять в соответствии с заданием на проектирование с учетом требований к условиям организации труда на рабочих местах СП 59.13330, приложение А.
6.20 Санитарные узлы допускается проектировать совмещенными или раздельными с контрастным цветовым решением вертикальных и горизонтальных поверхностей. Необходимо предусматривать размещение не менее одного настенного поручня. Для инвалидов с нарушением опорно-двигательного аппарата применяются совмещенные санузлы, оборудованные унитазом, раковиной, ванной или душем с применением опорных поручней в соответствии с ГОСТ Р 51261. Душевые зоны оборудуются поддоном без порога (трапом). Для уменьшения числа перемещений допускается в уборных на стене рядом с унитазом помещать гибкий шланг с душевой насадкой. Площади санузлов и уборных приведены в приложении А (таблицы А.3 и А.5), СП 54.13330, СП 59.13330, СП 118.13330.
6.21 Для психоневрологических больных, не способных к передвижению, предусматриваются санузлы с местом для каталки, со шкафом для суден. Набор оборудования санузлов следует принимать в соответствии с таблицей А.5.
6.22 В уборных общего пользования необходимо предусматривать не менее одной доступной кабины в соответствии с СП 59.13330.
Примечание - По заданию на проектирование допускается устройство универсальных кабин.
6.23 Электрощитовые следует размещать на 1-м этаже с непосредственным выходом на улицу.
7.1 Дома-интернаты включают отделения, группы помещений жилого, обслуживающего и хозяйственного назначения.
Состав и площади основных групп помещений домов-интернатов приведены в таблицах А.1-А.12.
7.2 В домах-интернатах состав помещений вестибюльной группы следует проектировать в соответствии с таблицей А.1. В помещении охраны, поста полиции следует предусматривать технические средства охраны, поста полиции. Требования к средствам охраны, поста полиции приведены в [13], [15].
7.3 Приемно-карантинные отделения, состав, площади и число помещений принимаются по заданию на проектирование в соответствии с таблицей А.2. Приемное и карантинное отделения, помещения охраны следует размещать в обязательном порядке на первом этаже здания дома-интерната.
Необходимость устройства централизованных приемно-карантинных отделений определяется заданием на проектирование.
7.4 Жилые отделения и жилые группы проектируются непроходными.
7.5 Жилые группы помещений следует проектировать специализированными: для лиц, свободно передвигающихся, с нарушением опорно-двигательного аппарата, способных к частичному самообслуживанию, нуждающихся в посторонней помощи, передвигающихся на креслах-колясках и нуждающихся в постельном режиме. Жилые группы проектируются в соответствии с таблицами А.3-А.5 приложения А.
По заданию на проектирование допускается устраивать жилые группы для лиц с различными возможностями к передвижению и обслуживанию. При этом жилые комнаты должны быть специализированными.
7.6 Из вспомогательных помещений в жилой группе следует предусматривать: помещения для хранения носилок (каталки), санитарную комнату и помещение для хранения чистого белья, кухню самообслуживания, буфетную комнату, комнату отдыха, помещение для уборочного инвентаря, кладовую грязного белья с местом для разборки, комнату для персонала, комнату бытового обслуживания, площади которых приведены в таблицах А.3-А.5.
7.7 Набор жилых комнат по вместимости, а также их соотношение в жилых группах и отделениях уточняются при составлении задания на проектирование.
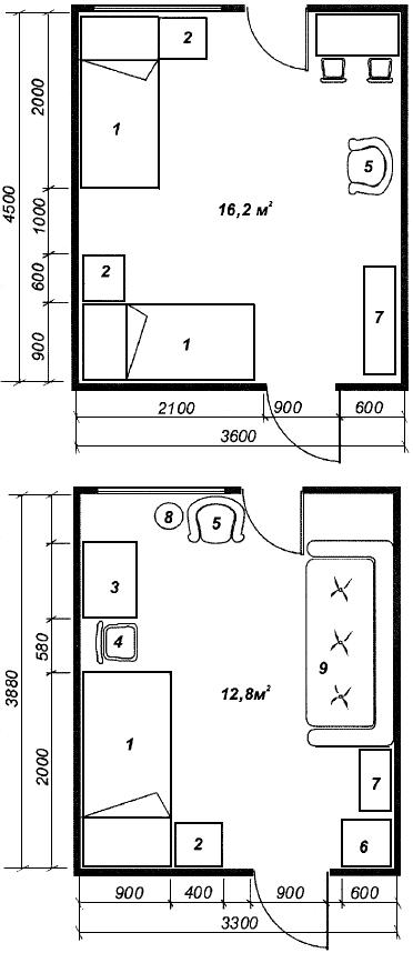
7.8 Типы жилых ячеек представлены на рисунках Б.4-Б.8, состав и площади помещений жилых ячеек приведены в таблицах А.3-А.5. В приложении Б на рисунке Б.8 представлены схемы жилых ячеек (ЖЯ) для домов-интернатов общего типа - ЖЯ-1 по ЖЯ-4; для психоневрологических и специальных домов-интернатов - ЖЯ-5; ЖЯ-6.
В домах-интернатах общего типа жилые ячейки предусматриваются с жилыми комнатами на 1-2 чел., рассчитанными для свободно передвигающихся, способных к самообслуживанию. Эта категория лиц питается в основном в столовой. Для проживающих с нарушением опорно-двигательного аппарата и на креслах-колясках, следует проектировать жилые ячейки (блоки) типа ЖЯ-4 с жилыми комнатами на 2-3 места. При жилых ячейках предусматриваются буфетная и кухня-раздаточная, в которую из столовой доставляется готовая пища для лиц, передвигающихся с трудом.
7.9 В психоневрологических домах-интернатах для жилых групп предусматривают жилые ячейки (блоки) ЖЯ-5 с жилыми комнатами на четыре места, рассчитанными на лиц, способных к частичному самообслуживанию и нуждающихся в реабилитации, лица этой категории в основном питаются в столовой.
Жилые ячейки (блоки) ЖЯ-6 проектируют с жилыми комнатами на 4-6 мест, рассчитанными на лиц, нуждающихся в посторонней помощи и постельном режиме. Эта категория лиц питается в жилых комнатах. Состав и площадь помещений жилой ячейки ЖЯ-6 представлены в таблице А.5.
При ванной комнате в жилой группе с жилыми ячейками (блоками) для нуждающихся в постельном режиме и колясочников (ЖЯ-6) рекомендуется размещать хозяйственную кладовую для грязного белья.
7.10 Минимальная площадь жилых комнат для проживающих, способных к частичному самообслуживанию или нуждающихся в посторонней помощи, приведена в таблице А.4.
7.11 Жилые комнаты для лиц, передвигающихся на креслах-колясках, следует проектировать с учетом функциональных зон, обеспечивающих свободный подъезд человека в кресле-коляске к любой точке помещения, к оборудованию помещения при минимальной ширине зоны маневрирования кресла-коляски не менее 1,4 м согласно СП 59.13330.
7.12 Жилые комнаты рекомендуется оборудовать встроенными шкафами для одежды, обуви, белья и личных вещей, а передние - вешалками для уличной одежды. Встроенные шкафы возможно размещать в передних при наличии индивидуальных замков согласно таблицам А.3-А.5.
7.13 Для лиц, свободно передвигающихся и способных к частичному самообслуживанию, рекомендуются жилые ячейки ЖЯ-1 и ЖЯ-3 с совмещенными санузлами. Для лиц, с нарушением опорно-двигательного аппарата, предусматривают жилые ячейки ЖЯ-4. В жилых ячейках (блоках) этого типа проживающие пользуются санузлом с помощью младшего медицинского персонала. Для удобства наблюдения за проживающими шлюз-передняя не предусматривается.
7.14 Для лиц с психоневрологическими заболеваниями предусматривают жилые ячейки (блоки) ЖЯ-5 и ЖЯ-6. Санитарные узлы в этих жилых ячейках (блоках) по сравнению с ячейками (блоками) ЖЯ-1 и ЖЯ-4 проектируют большей площади (таблица А.5).
Передние в жилых ячейках (блоках) следует принимать площадью не менее 4 м2 при минимальной ширине 1,5 м.
7.15 Состав и площади помещений культурно-массового назначения представлены в таблице А.6 и на рисунках Б.9-Б.13.
7.16 Зрительный зал проектируют, как правило, с амфитеатром. Уклон амфитеатра устанавливается исходя из условий видимости сцены.
Требования к проектированию параметров зрительного зала и киноэкранов должны соответствовать требованиям СП 118.13330.
7.17 В зрительном зале предусматривают места для инвалидов на креслах-колясках из расчета не менее 10-12% и для лиц с психоневрологическими заболеваниями не менее 5-10%. Состав и площади зрительного зала представлены в таблице А.6 и на рисунке Б.10.
7.18 Число мест в зрительном зале необходимо принимать в процентном соотношении от вместимости домов-интернатов:
в домах-интернатах общего типа со специальными отделениями или без них - в расчете не менее 80% лиц, способных к самостоятельному передвижению, не менее 20% лиц, передвигающихся с трудом, а также передвигающихся на креслах-колясках;
в психоневрологических и специальных домах-интернатах - в расчете на 100% лиц, способных к частичному самообслуживанию. Площадь зала принимается из расчета 1,2 м2/место, а для лиц, использующих кресла-коляски, - 1,8 м2/место.
7.19 В зрительных залах должны быть установлены неподвижно прикрепленные к полу полумягкие кресла с неоткидными сиденьями. Для людей с физическими недостатками число мест в ряду должно быть: при односторонней эвакуации из ряда - не более 12, при двусторонней эвакуации - не более 25, ширина прохода между рядами - не менее 0,55 м.
Для лиц, передвигающихся в креслах-колясках, следует предусматривать свободные площадки перед эстрадой или в конце зала и дополнительный проем - выезд из зала шириной не менее 1,6 м размер зоны для размещения человека на кресле-коляске 0,9х1,4 м.
7.20 Артистические комнаты при зрительном зале допускается проектировать без естественного освещения.
7.21 Зрительный зал допускается объединять с фойе в единое пространство (при проведении крупных мероприятий). Тип трансформируемой перегородки между зрительным залом и фойе устанавливается заданием на проектирование.
7.22 Помещения для проведения культовых обрядов следует предусматривать одно на здание в соответствии с таблицей А.6 и рисунком Б.13 в соответствии с требованием заказчика и заданием на проектирование.
7.23 При оптимальном уровне комфортности проживания класса "О" в составе помещений для культурно-массового назначения следует дополнительно предусматривать картинную галерею, зимний сад и др., по заданию на проектирование.
7.24 В зданиях домов-интернатов вместимостью 50 мест и более в составе медицинских помещений предусматривают кабинет фельдшера, в зданиях вместимостью 100-200 мест - кабинет врача вместо кабинета фельдшера в соответствии с таблицей А.7.
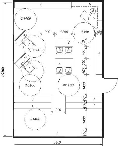
7.25 Число и профиль ЛТМ определяют заданием на проектирование в соответствии с таблицей А.8 и рисунком Б.15. Комнату мастера следует размещать вблизи помещений соответствующей мастерской.
Помещения ЛТМ и ЛПМ следует размещать на одном этаже, или в отдельных корпусах, соединенных с основным зданием теплым переходом. В мастерских, в которых могут работать инвалиды на креслах-колясках, ширину основного прохода, а также расстояние между рабочими местами следует принимать 1,5-2 м.
7.26 Примеры помещений лечебно-трудовых мастерских в психоневрологическом доме-интернате приведены на рисунке Б.14. Состав, площади и профиль таких мастерских и помещений для них следует определять заданием на проектирование.
7.27 В домах-интернатах следует проектировать оборудование индивидуальных рабочих мест или мест обслуживания с учетом размеров зоны досягаемости на рабочей поверхности стола для обеих рук в диапазоне от 0,25 м (от контактной кромки) по глубине и 0,7 м по фронту, до 0,7 м по глубине и 1,7 м по фронту в зависимости от удаленности и наклона туловища в соответствии с требованиями СанПиН 2.1.2.2564, СП 118.13330, ГОСТ Р 51633.
7.28 Учебно-производственные мастерские в учреждениях рассчитываются на лиц, находящихся под наблюдением врача, свободно передвигающихся и колясочников, способных к трудовому и профессиональному обучению и желающих заняться посильной работой по своей профессии или приобрести новую профессию.
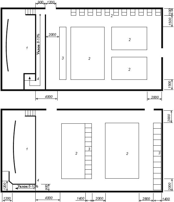
Ориентировочный состав и площади помещений УПМ представлены в таблице А.9. Планировочная схема картонажной мастерской приведена на рисунке Б.14.
7.29 В домах-интернатах проектируют столовые, рассчитанные в целом на учреждение. Для учреждений вместимостью до 100 мест рекомендуется подвоз пищи в термосах в жилые комнаты или буфетные. Буфетные с кухней-раздаточной рассчитывают на жилые группы, в которые из кухни-столовой в буфетные доставляют готовые обеды.
Столовая работает на сырье и полуфабрикатах. Состав и площади помещений столовой представлены в таблице А.10. Обеденный зал столовой предусматривается для свободно передвигающихся лиц, с нарушением опорно-двигательного аппарата и контингента, передвигающегося на креслах-колясках (рисунок Б.17, см. также СП 2.3.6.1079, СП 59.13330).
Состав и площади помещений столовой рекомендуется принимать по таблице А.10.
7.30 Число мест в обеденном зале следует принимать из расчета односменного обслуживания лиц, свободно передвигающихся и передвигающихся на креслах-колясках, списочный состав определяется заданием на проектирование, ориентировочно:
в домах-интернатах общего типа - 90% списочного состава;
в психоневрологических и специальных домах-интернатах - 80% списочного состава.
Обслуживание должно осуществляться официантами.
7.31 Число мест в буфетных для лиц, передвигающихся с трудом, временно заболевших, следует принимать из расчета одновременного обслуживания ориентировочно:
в домах-интернатах общего типа для лиц, не способных к частичному самообслуживанию, - 10%;
в психоневрологических и специальных домах-интернатах для лиц, не способных к частичному самообслуживанию, нуждающихся в постельном режиме, - 20%.
Доставка пищи из кухни-столовой на этажи, где расположены буфетные жилых отделений, производится с помощью подъемников.
7.32 При размещении столовой отдельно от здания дома-интерната при входе в столовую следует предусматривать вестибюль с гардеробом, уборной и умывальником в шлюзе (для мужчин и женщин).
7.33 Площадь обеденного зала следует принимать на одно место в зале не менее: при самообслуживании - 1,8 м2 и 1,4 м2 - при обслуживании официантами в соответствии с СП 118.13330.
В специализированных учреждениях площадь залов принимается по заданию на проектирование.
7.34 В домах-интернатах следует предусматривать помещения для корригирующих упражнений и физкультурных занятий. Для лиц, практически здоровых и свободно передвигающихся, рекомендуется проектировать многоцелевой спортзал.
В интернатах вместимостью до 200 мест помещение для гимнастики проектируется из расчета проведения посменных занятий. Состав и площади помещений представлены в таблице А.1 и на рисунке Б.16.
Физкультурный зал рекомендуется проектировать в соответствии с данными таблицы А.1, что отражается в задании на проектирование.
7.35 Административные и служебно-бытовые, а также хозяйственные помещения рекомендуется проектировать согласно таблицам А.1, А.11, А.12.
7.36 Прачечная, стирально-разборочная, прачечная для самообслуживания при доме-интернате допускаются в том случае, когда отсутствует возможность стирки белья в прачечной населенного пункта.
Производительность прачечной при доме-интернате следует принимать из расчета стирки 1 кг сухого белья в сутки на одного проживающего, передвигающегося с трудом и нуждающегося в посторонней помощи, пользующегося креслом-коляской, и 0,5 кг - для остальных категорий проживающих.
Площадь прачечных, а также площадь кладовых для чистого и грязного белья следует принимать согласно таблицам А.1 и А.12.
7.37 Хозяйственные помещения (центральная бельевая, кладовая, складские помещения, блок дезинфекционных камер, прачечная, кладовые инвентаря) следует определять в соответствии с таблицами А.1, А.12 и заданием на проектирование по расчету исходя из общей вместимости учреждения и местных условий.
7.38 Помещение вахтера рекомендуется функционально связывать с вестибюльной группой помещений для работы вахтера в течение дня с 8.00 до 20.00 ч. Помещения охраны, поста полиции должны быть функционально связаны с вестибюльной группой и административно-служебными помещениями для круглосуточной работы. Состав и площади помещений представлены на рисунке Б.3 и в таблице А.1.
8.1 При проектировании инженерного оборудования зданий домов-интернатов следует руководствоваться СП 7.13130, СП 10.13130, СП 30.13330, СП 54.13330, СП 60.13330, СП 256.1325800, ГОСТ Р 50571.5.52.
8.1а Проектирование систем отопления, общеобменной и противодымной вентиляции следует выполнять в соответствии с требованиями СП 7.13130, СП 54.13330, СП 60.13330. Системы отопления и вентиляции зданий домов-интернатов должны обеспечивать параметры микроклимата, установленные ГОСТ 30494.
8.1б В домах-интернатах вентиляцию допускается выполнять с естественным притоком и удалением воздуха, с механическим притоком и удалением воздуха, в том числе с утилизацией выбросного тепла, а также комбинированную - с механическим удалением воздуха и естественным притоком через регулируемые воздушные клапаны.
8.1в Проектирование систем внутреннего водопровода и канализации следует выполнять в соответствии с требованиями СП 10.13130, СП 30.13330.
8.1г На сети хозяйственно-питьевого водопровода в жилой ячейке (блоке) следует предусматривать отдельный кран для присоединения шланга (рукава) в целях его использования для пожаротушения на ранней стадии. Шланг должен обеспечивать возможность подачи воды в любую точку жилой ячейки (жилого блока) (с учетом длины струи) и быть оборудован распылителем.
При прокладке трубопроводов из полимерных материалов в коммуникационных шахтах, каналах и коробах, ограждающие строительные конструкции следует выполнять из негорючих материалов, за исключением лицевой панели, обеспечивающей доступ к коммуникациям.
8.2 В жилых ячейках (блоках) при установке кранов в умывальники и душевые необходимо предусматривать термостатические регуляторы, исключающие подачу горячей воды температурой более 50°С.
8.3 Исключен с 25 июня 2020 г. - Изменение N 2
8.4 При использовании звуковой сигнализации места для инвалидов с дефектами слуха в общественных помещениях, зрительном зале следует размещать на расстоянии не более 10 м от источника звука или оборудовать специальными переносными приборами усиления звука в соответствии с требованиями СП 59.13330, [10], [11], [12].
Требования к необходимой звуковой, световой, тактильной информации, устанавливаемой в медицинских помещениях, следует предусматривать в соответствии с ГОСТ Р 51671.
8.5 В зданиях домов-интернатов электроприемники противопожарных устройств, охранной сигнализации, индивидуальных тепловых пунктов, лифтов, подъемных платформ для инвалидов, аварийного освещения относятся к первой категории надежности электроснабжения, комплекс остальных электроприемников - ко второй категории надежности электроснабжения [11].
8.5а Проектирование электроустановок зданий домов-интернатов следует выполнять в соответствии с СП 59.13330, СП 256.1325800 и [11].
8.5б Проектирование искусственного освещения зданий домов-интернатов должно осуществляться с учетом требований СП 52.13330.
8.5в Проектирование электрооборудования систем противопожарной защиты следует выполнять с учетом требований СП 6.13130.
Кабели и провода, применяемые в зданиях домов-интернатов, должны быть с медными жилами.
При выборе кабельных изделий следует учитывать требования пожарной безопасности в соответствии с ГОСТ 31565.
8.6 Жилые комнаты, помещения отдыха и общественные помещения с постоянным пребыванием людей, а также помещение охраны, мастерские учебно-производственные, лечебно-трудовые и помещения администрации следует радиофицировать.
8.7 Телефоны устанавливают в кабинетах врачей, в кабинете директора и заместителя директора по хозяйственной части, в помещении охранника и вахтера, бухгалтерии. Телефоны-автоматы следует устанавливать в вестибюле и на каждом этаже домов-интернатов.
В домах-интернатах на 100 мест и более следует предусматривать внутреннее устройство телефонной связи в зависимости от возможности местной телефонной сети. Телефоны с выходом в городскую сеть должны размещаться в кабинете директора и в вестибюле. Перечень других помещений, в которых устанавливают телефоны, определяется заданием на проектирование.
8.8 В домах-интернатах общего типа телевизионное вещание следует предусматривать в жилых комнатах, комнатах отдыха, зрительном зале, фойе. В психоневрологических домах-интернатах - в комнатах отдыха и в зрительном зале.
В психоневрологических домах-интернатах установку телевизоров следует размещать таким образом, чтобы для проживающих они были недоступны (защищены от вандального воздействия).
В домах-интернатах устанавливают видеонаблюдение с размещением монитора в помещении охраны.
8.9 Аварийное освещение устраивают в соответствии с требованиями СП 52.13330, СП 439.1325800.
Для аварийной звуковой сигнализации следует применять приборы согласно [10], СП 5.13130, СП 4.13130.
Аварийное освещение должно выполняться в помещениях вестибюля, гардероба, охраны, аппаратной управления, звукоаппаратной, телефонной станции в соответствии с СП 52.13330, системой оповещения и управления эвакуацией, а также ФЭС.
8.10 Эвакуационное освещение должно быть предусмотрено во всех помещениях, где возможно пребывание не менее 50 чел., а также на всех лестницах, проходах и других путях эвакуации согласно СП 59.13330, СП 118.13330.
8.11 Для вызова дежурного персонала в домах-интернатах общего типа и психоневрологических следует предусматривать сигнализацию (звуковую или световую). Одну кнопку вызова устанавливают у изголовья каждой кровати в жилой комнате, а также в комнатах отдыха, обеденном и зрительном залах, лечебно-трудовых и учебно-производственных мастерских, санузлах и ванных комнатах. В психоневрологических домах-интернатах одна кнопка вызова предусматривается на каждую жилую комнату, обеденный и зрительный залы, лечебно-трудовую мастерскую, санузлы и вестибюли. Сигналы вызова должны поступать в помещение дежурного персонала. Помещения для постоянного пребывания инвалидов могут быть оборудованы автономными пожарными извещателями, сблокированными с общей системой оповещения и управления эвакуацией.
Примечание - Кнопка вызова должна иметь защиту от случайного срабатывания.
8.12 Пожарную, охранную, тревожную сигнализации и средства связи следует проектировать в соответствии с требованиями СП 5.13130.
9.1 В домах-интернатах противопожарную защиту зданий следует обеспечивать в соответствии с техническим регламентом [4]. Дома-интернаты общего типа, дома-интернаты психоневрологические, специальные следует проектировать согласно требованиям СП 118.13330, СП 1.13130, СП 2.13130, СП 3.13130, СП 4.13130, СП 5.13130, СП 7.13130, СП 8.13130, СП 10.13130. Требования приведены также в [10]. Необходимость наличия фотолюминесцентной эвакуационной системы (ФЭС) в домах-интернатах указывается в задании на проектирование.
9.2 По вопросам обеспечения пожарной безопасности рассматриваемые дома-интернаты следует относить к зданиям класса функциональной пожарной опасности Ф1.1 согласно [4].
9.3 Подъезд пожарных подразделений должен быть обеспечен со всех сторон здания.
9.4 На втором этаже и выше от лифтовых холлов лифтов с режимом транспортирования пожарных подразделений должны быть предусмотрены коридоры (холлы, вестибюли), ведущие ко всем жилым помещениям (при наличии - передним жилых ячеек (блоков). Указанные лифтовые холлы должны предусматриваться как безопасные зоны согласно СП 59.13330. При высоте одного препятствия более 0,014 м необходимо устанавливать перекаты.
9.5 Расстояние от выходов из жилых комнат до входов в лифтовые холлы лифтов для пожарных подразделений должно быть не более 60 м.
9.6 Степень огнестойкости и класс конструктивной пожарной опасности зданий следует предусматривать по СП 2.13130 с учетом площади пожарного отсека. При этом следует учитывать требования к высоте размещения залов по СП 118.13330.
9.7 При выделении административных и производственных помещений, предназначенных для обеспечения функционирования зданий домов-интернатов, в самостоятельные пожарные отсеки требования к указанным помещениям следует предусматривать в соответствии с принятым классом функциональной пожарной опасности отсека.
9.8 Встроенные административные, технические помещения, производственные помещения пищеблока должны отделяться от остальной части здания противопожарными стенами 2-го типа (перегородками - 1-го типа) и перекрытиями 3-го типа. Производственные помещения пищеблока допускается отделять от обеденного зала столовой конструкциями с пределом огнестойкости EI 45. Заполнение проемов для выдачи пищи и приема грязной посуды из зала столовой не нормируется.
9.9 Требования к путям эвакуации следует предусматривать в соответствии с СП 1.13130, СП 118.13330 и СП 59.13330. Условия безопасной эвакуации должны подтверждаться расчетом пожарного риска с учетом динамики опасных факторов пожара по ГОСТ 12.1.004 и психофизиологических возможностей МГН различных категорий. На всем протяжении пути эвакуации должна быть установлена ФЭС, обеспечивающая непрерывный маршрут до эвакуационных выходов.
При установке элементов ФЭС на ступенях лестниц для предотвращения получения людьми травм и увеличения времени эвакуации в обязательном порядке должны быть использованы фотолюминесцентные материалы (ФЛМ) совместно с противоскользящим (антискользящим) покрытием.
Запрещается использование элементов ФЭС на основе самоклеящейся пленки. На края ступеней лестницы с помощью накладки устанавливается направляющая контрастная полоса из ФЛМ с противоскользящим (антискользящим) покрытием из карбида кремния.
Вдоль стен и на лестничных площадках на полу, на путях эвакуации размещаются направляющие полосы из ФЛМ, которые должны быть неразрывным продолжением ФЛМ путей эвакуации по лестницам и пандусам. Направляющие полосы из ФЛМ должны иметь нижнее расположение, то есть крепиться к полу. Для надежного крепления ФЛМ к полу его следует размещать на накладке жесткого типа, исключающей несанкционированное изменение маршрута эвакуации в результате воздействия персонала учреждения или посетителей. Поверхности слоя ФЛМ и самой накладки должны быть рифлеными. Не допускается использовать самоклеящуюся пленку. Дверные проемы эвакуационных и аварийных выходов должны быть обозначены по контуру элементами ФЛМ.
Двери эвакуационных и аварийных выходов должны быть оборудованы фотолюминесцентными знаками безопасности. Знаки могут быть установлены непосредственно на самой двери или на поверхности стены, прилегающей к двери, а также в комбинированном варианте.
Места нахождения дверных ручек для открывания дверей (во всех помещениях либо определить каких) должны быть обозначены маркером из ФЛМ размерами не менее 50x50 мм. ФЭС следует размещать и устанавливать в соответствии с требованиями СП 136.13330, ГОСТ Р 12.2.143.
9.10 Из спортивных, актовых и зрительных залов, рассчитанных на 50 человек и более, следует предусматривать не менее двух эвакуационных выходов, ведущих к разным лестничным клеткам. При устройстве двух и более выходов в один коридор данный коридор должен быть разделен противопожарной перегородкой 2-го типа так, чтобы не менее чем по одному выходу из каждого зала вели в разные части коридора к разным лестничным клеткам. Указанные залы должны быть оборудованы системой дымоудаления.
9.11 Жилые комнаты, предназначенные для размещения лиц, передвигающихся на креслах-колясках либо неспособных к самостоятельному передвижению, следует, как правило, размещать на первом надземном этаже. При невозможности по технико-экономическим показателям размещения на первом надземном этаже жилых помещений для всех указанных лиц допускается их размещение на втором и третьем надземных этажах при условии расстояния от уровня земли до подоконника окна жилой комнаты не более 10 м.
9.12 Коридоры должны быть оборудованы системой дымоудаления.
9.13 Систему оповещения и управления эвакуацией при пожаре следует предусматривать по СП 3.13130 не ниже 3-го типа с устройством обратной связи из лифтовых холлов с помещением пожарного поста.
9.14 Требования в части обеспечения пожарной безопасности домовых церквей и других помещений для проведения религиозных обрядов приведены в СП 258.1311500.
9.15 Навесные фасадные конструкции должны быть класса конструктивной пожарной опасности К0.
9.16 Системы электромагнитных замков должны разблокировать двери на путях эвакуации при пожаре.
Приложение А
А.1 В данном приложении приведены состав и площади основных групп помещений зданий домов-интернатов для применения по заданию на проектирование.
|
Помещение |
Минимальная площадь помещения, м2 | |||||
|
минимальный уровень |
оптимальный уровень | |||||
|
при вместимости учреждения, место | ||||||
|
50 |
100 |
200 |
50 |
100 |
200 | |
|
1 Вестибюль, гардероб для посетителей, пост дежурного |
30,0 |
40,0 |
70,0 |
40,0 |
80,0 |
100,0 |
|
помещение вахтера |
9,0 |
9,0 |
9,0 |
9,0 |
9,0 |
9,0 |
|
помещения охраны (поста полиции) |
14,0 |
14,0 |
14,0 |
14,0 |
14,0 |
14,0 |
|
торговый киоск |
- |
4,0 |
4,0 |
4,0 |
4,0 |
4,0 |
|
комната приема гостей |
12,0 |
12,0 |
20,0 |
12,0 |
12,0 |
24,0 |
|
телефоны-автоматы |
1,5 |
1,5 |
1,5 |
1,5 |
1,5 |
1,5 |
|
санузел при вестибюле |
5,0 |
6,0 |
8,0 |
3,0 |
6,0 |
8,0 |
|
2 Комната социально-бытовой адаптации* |
16 |
20 |
40 |
18 |
30 |
60 |
|
3 Кабинет заведующего при комнате социально-бытовой адаптации |
16 |
16 |
16 |
18 |
18 |
18 |
|
4 Прачечная: | ||||||
|
стиральная-разборочная |
12 |
18 |
20 |
12 |
18 |
20 |
|
сушильно-гладильная |
10 |
12 |
12 |
10 |
12 |
12 |
|
хозяйственная кладовая (помещение) |
(7x2) 14 |
(9x2) 18 |
(9x2) 18 |
(7x2) 14 |
(9x2) 18 |
(9x2) 18 |
|
5 Помещения: | ||||||
|
для занятий гимнастикой и физкультурой |
81, одно помещение на здание | |||||
|
комната для раздевания |
14,5 |
14,5x2 |
14,5x2 |
14,5 |
14,5x2 |
14,5x2 |
|
санузел |
3,2 |
3,2x2 |
3,2x2 |
3,2 |
3,2x2 |
3,2x2 |
|
комната для хранения спортинвентаря |
6,5 |
6,5 |
6,5 |
6,5 |
6,5 |
6,5 |
|
санузел для инвалидов на креслах-колясках |
5,0 |
4x2 |
4x2 |
4 |
4x2 |
4x2 |
|
душевая |
6,5 |
6,5 |
6,5 |
6,5 |
6,5 |
6,5 |
|
комната тренера |
8 |
8 |
8 |
8 |
8 |
8 |
|
6 Отапливаемые стоянки для кресел-колясок |
0,8 на каждого передвигающегося на кресле-коляске, но не менее 10 | |||||
|
7 Мастерская ремонта |
7 |
7 |
7 |
7 |
7 |
7 |
|
Кладовая запчастей |
7 |
7 |
7 |
7 |
7 |
7 |
|
8 Многоцелевой спортзал размером 12x24 м |
- |
288 |
288 |
По заданию на проектирование | ||
|
Кладовая для хранения спортивного инвентаря |
- |
16 |
16 |
То же | ||
|
Раздельные комнаты для раздевания для мужчин и женщин с душевыми и санитарными узлами** |
- |
По 2 рожка и одному унитазу на каждую раздевалку |
То же | |||
|
Комната методиста |
- |
12 |
12 |
То же | ||
|
* Помещения предусматривают в домах-интернатах специального и общего типов (со специальным отделением). ** Площадь душевой для инвалидов на кресле-коляске не менее 5,5 м2. Примечание - Для зданий с промежуточной или большей вместимостью число помещений и площади устанавливаются по заданию на проектирование методом интерполяции или экстраполяции. | ||||||
|
Помещения |
Площадь, м2, не менее |
Число помещений |
|
Холл (ожидальная) с тамбуром |
12 |
1 |
|
Кабинет врача, медицинской медсестры |
14 |
1 |
|
Санитарная комната |
6 |
1 |
|
Комната для санобработки и передевания |
12 |
1 |
|
Ванная с душем и подъемником |
6 |
1 |
|
Комната для одевания |
6 |
1 |
|
Палата-изолятор с санузлом и умывальником в шлюзе |
10 + 10 |
2 |
|
Палата карантинного отделения на 1-2 места с санузлом и умывальником в шлюзе |
10 + 10 |
2 |
|
Процедурная |
12 |
1 |
|
Комната сестры-хозяйки |
10 |
1 |
|
Комната для хранения предметов уборки с местом для приготовления дезинфекционных средств |
3 |
1 |
|
Санузел для персонала с умывальником в шлюзе |
3 |
1 |
|
Место для хранения каталок |
2 |
1 |
|
Буфет-пост |
4 |
1 |
|
Помещение |
Число помещений |
Площадь, м2 |
Оборудование |
|
1 Жилая ячейка/блок типа ЖЯ-1: |
По заданию на проектирование | ||
|
жилая комната на 1 чел. |
14,6 |
Кровать, прикроватная тумбочка, стол, два стула, кресло, устройства для местного освещения у кроватей | |
|
то же, на 2 чел. |
16,0 |
Две кровати, 2 прикроватные тумбочки, стол, три стула, устройства для местного освещения у кроватей | |
|
прихожая |
Не менее 4 |
Вешалка для одежды, зеркало, электрохолодильник | |
|
совмещенный санузел |
4,5 |
Унитаз, умывальник, душевой поддон или напольный душ, откидная скамейка, полотенцесушитель, зеркало с полочкой, поручни, кронштейн для одежды и полотенец, корзина для мусора. Обеспечить возможность установки ванны | |
|
встроенный шкаф для одежды, белья, обуви и личных вещей с двумя отделениями |
0,6 |
Одно отделение оборудуется полкой для головных уборов и штангой для одежды, другое - полками для белья. Размер шкафа 60x100 см | |
|
лоджия |
Раскладушка, навесной столик | ||
|
2 Жилая ячейка (блок) типа ЖЯ-2: |
По заданию на проектирование | ||
|
жилая комната на 2 чел. |
16,0 |
Две кровати с прикроватными тумбочками, стол, три стула, два кресла, устройства для местного освещения у кроватей | |
|
прихожая |
Не менее 4 |
Вешалка для одежды, зеркало, электрохолодильник | |
|
совмещенный санузел |
4,5 |
Унитаз, умывальник, душевой поддон или напольный душ, откидная скамейка, полотенцесушитель, зеркало с полочкой, поручни, кронштейн для одежды и полотенец, корзина для мусора | |
|
3 Жилая ячейка (блок) типа ЖЯ-3: |
По заданию на проектирование | ||
|
жилая комната на 2 чел. |
16,0 |
Две кровати с прикроватными тумбочками, стол, два стула, кресло, устройства для местного освещения у кроватей | |
|
то же, на 3 чел. |
21,0 |
Три кровати с прикроватными тумбочками, стол, три стула, кресло, устройства для местного освещения у кроватей | |
|
прихожая |
1 |
Не менее 4 |
Вешалка для одежды, зеркало, столик для телефона, холодильник |
|
совмещенный санузел |
1 |
4,5 |
Унитаз, умывальник, душ, оборудование, аналогичное оборудованию ЖЯ-2 |
|
встроенный шкаф для одежды, белья, обуви |
1 |
0,6 м2/чел. |
По заданию на проектирование |
|
лоджия |
1 м2/чел. |
То же | |
|
Общие помещения на 3-4 жилые ячейки (блоки)
| |||
|
4 Комната дежурной медсестры (процедурная) |
1 |
12 |
Кушетка, стол медсестры, шкаф для хранения медикаментов |
|
5 Комната сестры-хозяйки |
1 |
10 |
Стол, стул, шкаф для хранения белья |
|
6 Гостиная - комната отдыха |
1 |
8-12 |
Кресла с сиденьями высотой 0,5 м и подлокотниками, подставки для ног, стол, журнальный столик, телевизор |
|
7 Кухня-буфетная |
Одна на жилую группу |
Не менее 12 |
Электроплита, мойка, рабочий стол, навесной шкаф-полка, холодильник, ведро для отходов, обеденный стол, четыре стула |
|
8 Моечная с местами для: |
Одна на 2-3 жилые группы | ||
|
а) мытья и стерилизации суден, мытья и сушки клеенок |
8 |
Установка для мойки суден, слив больничный, мойка для клеенок, стол производственный, ванна керамическая, умывальник, зеркало с полочкой, вешалка для полотенец, шкаф для суден, тележка | |
|
б) хранения предметов уборки |
3 | ||
|
в) сортировки, заполаскивания особо грязного белья, сушки и временного хранения грязного белья |
5 | ||
|
9 Кладовая чистого белья |
Одна на 2-3 жилые группы |
4 |
Стеллаж, полки или шкаф |
|
10 Комната для персонала с прихожей и санузлом |
На жилую группу |
8,0 |
Кресла, стол, диван, шкаф, вешалка, зеркало, унитаз, умывальник, душевой поддон, зеркало с полочкой, вешалка для полотенца |
|
11 Постирочная для мелких личных вещей с местами для сушки и глажения |
Одна на жилое отделение |
8,0 |
Небольшая стиральная машина с отжимом, большая мойка с двумя камерами, шкаф для сушки, гладильные приборы |
|
12 Помещение для сушки одежды и обуви, хранение уборочного инвентаря |
Одно на 2-3 жилые ячейки (жилых блока) |
12,0 |
По заданию на проектирование |
|
13 Комната персонала |
На отделение |
8,0 |
То же |
|
Примечание - При применении функциональных кроватей для лежачих пациентов следует руководствоваться рисунком Б.7, г. | |||
|
Помещение |
Площадь помещения жилых групп, м2 | ||
|
для свободно передвигающихся |
для лиц с нарушением опорно-двигательного аппарата |
для нуждающихся в посторонней помощи, передвигающихся на креслах-колясках | |
|
1 Жилая ячейка (блок) типа ЖЯ-4: | |||
|
жилые комнаты на 2 чел. |
16,0 |
16,0 |
- |
|
то же, на 3 чел. |
20,0 |
20,0 |
24,0 |
|
прихожая |
Не менее 4 | ||
|
совмещенный санузел |
5,5 |
5,5 |
5,5 |
|
раздельный санузел (вариант) |
7,5 |
7,5 |
7,5 |
|
встроенный шкаф для хранения белья, одежды и личных вещей (на 1 чел.) |
0,6 |
0,6 |
0,6 |
|
Общие помещения на 3-4 жилые ячейки/блоки
| |||
|
2 Комната дежурной медсестры (процедурная) |
12 |
12 |
12 |
|
3 Комната персонала |
8 |
8 |
8 |
|
4 Комната сестры-хозяйки |
10 |
10 |
10 |
|
5 Гостиная |
8-12 |
8-12 |
8-12 |
|
6 Буфетная |
0,6 |
0,6 |
0,8 |
|
7 Кухня-раздаточная |
14 |
14 |
14 |
|
8 Ванная с раздевальной |
12 |
12 |
12 |
|
9 Душевые кабины с местами для раздевания |
3,0 |
6,0 |
6,0 |
|
10 Санитарная комната с местами для мойки суден и клеенок, временного хранения грязного белья, заполаскивания и сушки особо грязного белья, хранения уборочного инвентаря |
15 |
16 |
16 |
|
11 Помещение для бытовых нужд с местами для стирки и сушки мелких вещей, сушки одежды и обуви, хранения уборочного инвентаря |
12 |
12 |
12 |
|
12 Кладовая чистого белья |
2 |
4 |
2 |
|
13 Санитарный узел для персонала: | |||
|
санузел с умывальником |
3 |
3 |
3 |
|
душ |
2,5 |
2,5 |
2,5 |
|
14 Комната для глажения белья и одежды |
6 |
6 |
8 |
|
15 Кабина гигиенического душа с местом для раздевания |
7 |
7 |
7 |
|
16 Клизменная |
8 |
8 |
8 |
|
17 Место для каталок и кресел-колясок |
4 |
4 |
4 |
|
Итого: |
184,7 |
190,7 |
178,9 |
|
Помещение |
Площадь помещения, м2 | ||
|
для лиц, свободно передвигающихся |
для лиц с нарушением опорно-двигательного аппарата |
для лиц, нуждающихся в посторонней помощи, передвигающихся на креслах-колясках | |
|
1 Жилая ячейка (блок) типа ЖЯ-5: | |||
|
жилые комнаты на 4 чел. |
34,0 |
34,0 |
34,0 |
|
прихожая |
Не менее 4 | ||
|
раздельный санузел (унитаз, биде или писсуар), душевой поддон, умывальник |
6,0 |
6,0 |
- |
|
совмещенный санузел, унитаз, биде (или писсуар), слив, душевой поддон, два умывальника, стеллаж для суден, душевой поддон для дезобработки и мытья клеенок |
- |
- |
18 |
|
встроенный шкаф для хранения белья, одежды, личных вещей (м2/чел.) |
0,6 |
0,6 |
0,6 |
|
буфетная |
- |
4 |
4 |
|
кухня-раздаточная |
- |
8 |
8 |
|
2 Жилая ячейка блок) типа ЖЯ-6: | |||
|
жилые комнаты на 4 чел. |
- |
34,0 |
34,0 |
|
то же, на 6 чел. |
- |
42,0 |
42,0 |
|
прихожая |
- |
6,0 |
6,0 |
|
совмещенный санузел, унитаз, биде (или писсуар), слив, душевой поддон, два умывальника, стеллаж для суден, душевой поддон для дезобработки и мытья клеенок |
- |
18,0 |
18,0 |
|
встроенный шкаф для хранения белья, одежды, личных вещей (м2/чел.) |
- |
0,6 |
0,6 |
|
буфетная |
- |
4,0 |
4,0 |
|
кухня-раздаточная |
- |
8,0 |
12,0 |
|
Общие помещения на 4-6 жилых групп
| |||
|
3 Кабинет врача-психиатра |
12,0 |
12,0 |
12,0 |
|
4 Комната дежурной медсестры (процедурная) |
12,0 |
12,0 |
12,0 |
|
5 Гостиная |
18 |
18 |
18 |
|
6 Процедурная аминозиновая с подготовительной |
18 |
18 |
18 |
|
7 Комната персонала |
10 |
10 |
10 |
|
8 Комната для кружковых занятий |
18 |
18 |
- |
|
9 Комнаты для занятий трудом ориентировочно на 8-10 чел. и для инструктора |
- |
38 + 12 |
- |
|
10 Комната сестры-хозяйки |
10 |
10 |
10 |
|
11 Помещения для глажения белья и одежды |
6 |
6 |
6 |
|
12 Санитарные узлы (мужской и женский) для персонала: уборная (1 кабина), душ (1 кабина) |
12 |
12 |
12 |
|
13 Клизменная |
8 |
8 |
8 |
|
14 Место для хранения каталок и кресел-колясок |
4 |
4 |
4 |
|
15 Помещения для бытовых нужд с местом для стирки и сушки мелких вещей, сушки одежды и обуви, хранения уборочного инвентаря |
12,0 |
12,0 |
6,0 |
|
16 Санитарная комната с местами для мойки суден и клеенок, заполаскивания особо грязного белья, хранения уборочного инвентаря |
- |
16,0 |
16,0 |
|
17 Кладовая чистого белья |
2,0 |
2,0 |
4,0 |
|
18 Ванная комната |
6,0 |
12,0 |
12,0 |
|
19 Комната санитарки (круглосуточный пост) |
10,0 |
10,0 |
10,0 |
|
20 Кабина гигиенического душа с местом для раздевания |
7,0 |
7,0 |
7,0 |
|
Итого: |
209,6 |
406,2 |
350,2 |
|
* Использованы данные СП 54.13330. | |||
|
Помещение |
Дом-интернат общего типа, со специальным отделением |
Дом-интернат психоневрологический специальный | ||||
|
Площадь помещения, м2, при вместимости учреждения, место** | ||||||
|
50 |
100 |
200 |
50 |
100 |
200 | |
|
1 Для посещения культурно-массовых мероприятий | ||||||
|
зрительный зал |
40 |
60 |
70 |
30 |
40 |
60 |
|
эстрада при зале |
- |
30 |
30 |
- |
30 |
30 |
|
фойе |
15 |
30 |
38 |
15 |
30 |
30 |
|
комнаты с уборной (унитаз, умывальник) |
20 |
12 + 12 |
12 + 12 |
20 |
12 + 12 |
12 + 12 |
|
для артистов | ||||||
|
кладовая инвентаря |
4 |
8 |
8 |
4 |
8 |
8 |
|
кинопроекционная |
10 |
10 |
10 |
10 |
10 |
10 |
|
радиоузел |
- |
8 |
8 |
- |
8 |
8 |
|
библиотека-читальня с книгохранилищем |
18 + 24 |
30 + 18 |
30 + 18 |
24 + 18 |
36 + 18 |
30 + 18 |
|
комната для кружковых занятий |
18 |
24 |
24 |
18 |
24 |
24 |
|
комната для музыкальных занятий |
18 |
24 |
24 |
18 |
24 |
24 |
|
санузлы при фойе |
5 |
5 |
5 |
5 |
5 |
5 |
|
2 Для проведения религиозных обрядов |
40 |
60 |
120 |
40 |
60 |
120 |
|
Подсобные помещения: | ||||||
|
комната (келья) для священнослужителя |
7,5 |
7,5 |
7,5 |
7,5 |
7,5 |
7,5 |
|
санузел |
5 |
5 |
5 |
5 |
5 |
5 |
|
передняя |
2,1 |
2,1 |
2,1 |
2,1 |
2,1 |
2,1 |
|
кладовая |
3,3 |
3,3 |
3,3 |
3,3 |
3,3 |
3,3 |
|
Итого: |
224,9 |
344,9 |
422,9 |
214,9 |
330,9 |
404,9 |
|
** Для зданий с промежуточной или большей вместимостью число помещений и площади устанавливаются по заданию на проектирование методом интерполяции или экстраполяции. | ||||||
|
Помещение |
Площадь помещения, м2, при вместимости учреждения, место | ||
|
50 |
100 |
200 | |
|
1 Кабинеты врачей и медсестер | |||
|
Кабинет заведующего медпунктом, главного врача |
16 |
16 |
18 |
|
Кабинет зам. главврача, врача-терапевта |
- |
12 |
12 |
|
Кабинет старшей медсестры и врачей-консультантов (отоларинголога, офтальмолога) |
- |
12 + 8 |
12 + 8 |
|
- |
18 |
18 | |
|
Стоматологический кабинет |
- |
- |
14 |
|
Кабинет медсестры или фельдшера |
12 |
- |
- |
|
Итого: |
28 |
66 |
82 |
|
2 Процедурная и перевязочная | |||
|
Процедурная с местом для гинекологического кресла |
18 |
18 |
18 |
|
Перевязочная |
- |
- |
12 + 6 |
|
Итого: |
18 |
18 |
36 |
|
3 Кабинеты физиотерапии | |||
|
Кабинет электро-светолечения с помещением для обработки прокладок |
12 + 8 |
12 + 8 |
12 + 8 |
|
Кабинет теплолечения с вспомогательными помещениями |
- |
- |
12 + 8 |
|
Сенсорная комната |
- |
12 |
18 |
|
Итого: |
20,0 |
32,0 |
58,0 |
|
4 Изолятор | |||
|
Палаты с санузлом |
14 |
2х14 |
2х14 |
|
Буфет-пост |
- |
4 |
4 |
|
Итого: |
14 |
32 |
32 |
|
5 Помещение ритуального назначения | |||
|
Траурный зал |
- |
36 |
48 |
|
Уборная для персонала |
- |
1,8 |
1,8 |
|
Итого: |
- |
37,8 |
49,8 |
|
6 Аптечные помещения | |||
|
Помещение для хранения и выдачи лекарственных средств |
4 |
6 |
10 |
|
Ассистентская |
8 |
8 |
10 |
|
Кладовая для хранения легковоспламеняющихся жидкостей |
- |
- |
2 |
|
Итого: |
12 |
14 |
22 |
|
7 Лаборатория | |||
|
Помещение с кабиной для приема проб на анализ |
- |
- |
4 + 6 |
|
Кабина для взятия на анализ проб крови (лаборантская) |
- |
10 |
10 |
|
Препараторская |
12 |
14 |
14 |
|
Автоклавная-стерилизационная |
- |
10 |
12 |
|
Итого: |
12 |
34 |
46 |
|
8 Помещение медицинского персонала | |||
|
Комната отдыха |
- |
8 |
10 |
|
Уборные |
1,8 |
1,8 |
1,8 |
|
Итого: |
1,8 |
9,8 |
11,8 |
|
9 Помещения ЛФК | |||
|
Зал ЛФК |
16 |
20 |
35 |
|
Раздевальная с санузлами |
- |
6 |
10 |
|
Кабинет массажа |
- |
- |
- |
|
Помещение для примерки и подгонки протезов |
- |
- |
- |
|
Итого: |
16 |
26 |
45 |
|
Всего: |
121,8 |
269,6 |
382,6 |
|
* Использованы данные СП 54.13330; СП 118.13330. Примечание - Помещения для проведения водных процедур, сауна, душ "шарко", ванны дополняются по заданию на проектирование для повышенных условий комфортности проживания класса "оптимального уровня". Для зданий с промежуточной вместимостью число помещений и площади устанавливают заданием на проектирование, методом интерполяции или экстраполяции. | |||
|
Помещение |
Расчетная площадь, м2/место |
Площадь помещения, м2 | |
|
в учреждениях вместимостью до 100 мест |
в учреждениях вместимостью 101 место и более | ||
|
1 Лечебно-трудовые мастерские (1-3 видов из нижеприведенных): | |||
|
швейные |
4,5 |
45 |
60 |
|
ремонт аппаратуры |
4,5 |
45 |
60 |
|
домоводства |
4,5 |
45 |
60 |
|
живописи* |
6,0 |
60 |
60-70 |
|
2 Кладовые готовой продукции |
- |
12-18 |
18-20 |
|
3 Кладовые материалов и готовой продукции |
- |
28 |
30 |
|
4 Комната персонала (с умывальником в шлюзе) |
- |
8 |
10 |
|
5 Санузел с умывальником (для мужчин и женщин) |
- |
5x2 |
5x2 |
|
6 Кабинет инструктора |
- |
12 |
12 |
|
7 Комната медсестры |
- |
10 |
10 |
|
* При каждой из перечисленных мастерских предусматривают подсобные помещения, комнату мастера и другие помещения, перечисленные в данной таблице. | |||
|
Помещение |
Расчетная площадь, м2/место |
Площадь помещения, м2 | |
|
в учреждениях вместимостью до 100 мест |
в учреждениях вместимостью более 100 мест | ||
|
1 Учебно-производственная мастерская (1-3 видов, как пример): | |||
|
швейная, электромонтажная, обувная |
4,5 |
45,0 |
60,0 |
|
мастерские ручных ремесел, механической сборки, ремонта аппаратуры и бытовой техники |
4,5 |
45,0 |
60,0 |
|
картонажно-переплетная, столярная, ткацкая, токарно-фрезерная, гончарная |
6,0 |
60,0 |
72,0 |
|
2 Кладовая материалов |
- |
8,0 |
16,0 |
|
3 Кладовая готовой продукции |
- |
8,0 |
16,0 |
|
4 Инструментальная |
- |
12 |
25 |
|
5 Помещение для персонала (умывальник в шлюзе) |
- |
8 |
10 |
|
6 Общий санузел |
- |
5x2 |
5x2 |
|
7 Комната мастера |
- |
12 |
12 |
|
8 Методический кабинет |
- |
20 |
25 |
|
Помещение |
Площадь помещения, м2 | |
|
в учреждениях вместимостью до 100 мест |
в учреждениях вместимостью 101 место и более | |
|
1 Для инвалидов с сохраненным интеллектом | ||
|
Обеденный зал при загрузке зала 60% вместимости дома-интерната с холлом, в котором предусматривается умывальник |
2,4 м2/место | |
|
Раздаточная |
16 |
20 |
|
2 Производственные помещения | ||
|
Цех заготовки овощей |
16 |
12 |
|
Цех заготовки мяса и птицы |
16 |
18 |
|
Цех заготовки рыбы |
18 |
24 |
|
Горячий цех |
54 |
70 |
|
Холодная заготовочная |
8 |
10 |
|
Кондитерский цех |
8 |
10 |
|
Моечные кухонной и столовой посуды |
6 |
12 |
|
Кладовая суточного запаса продуктов |
8 |
10 |
|
Экспедиция пищи в жилые группы |
6 |
8 |
|
Складские помещения |
12 |
14 |
|
Охлаждаемые камеры для хранения: | ||
|
мяса, рыбы |
4 |
6 |
|
молочных продуктов, фруктов и зелени, консервов и квашений |
6 |
8 |
|
отходов (с отдельным наружным выходом) |
4 |
6 |
|
Помещение для холодильной установки |
6 |
8 |
|
Кладовая для сухих продуктов |
4 |
6 |
|
Помещение для хранения и резки хлеба |
10 |
14 |
|
Кладовая для овощей |
10 |
12 |
|
Кладовая для хранения белья и инвентаря |
6 |
8 |
|
Загрузочная |
7 |
10 |
|
Тарная |
4 |
6 |
|
3 Административно-бытовые помещения |
32 |
40 |
|
Комната заведующего производством |
8 |
10 |
|
Комната медицинской сестры диетического питания |
14 |
14 |
|
Помещение приема пищи для персонала с подсобными помещениями |
16 + 6 |
18 + 8 |
|
Гардеробные, душевые и уборные для персонала |
10 |
16 |
|
Место для хранения предметов уборки помещений |
2 |
4 |
|
Помещения для хранения и мытья мармитных тележек и тары, применяемых для транспортирования пищи |
6 |
8 |
|
* Использованы данные СП 118.13330. | ||
|
Помещение |
Площадь помещения, м2, при вместимости учреждения, место | ||
|
50 |
100 |
200 | |
|
1 Помещения администрации | |||
|
кабинет директора |
12 |
12 |
18 |
|
приемная директора |
- |
10 |
10 |
|
кабинет заместителя директора |
- |
12 |
12 |
|
кабинет инженерно-технического персонала |
12 |
14 |
14 |
|
канцелярия, отдел кадров, бухгалтерия, касса |
12 |
18 |
24 |
|
архив медицинский |
4 |
6 |
6 |
|
комната общественных организаций |
- |
- |
12 |
|
гардеробные, уборные и душевые персонала |
12 |
16 |
18 |
|
Итого: |
52 |
88 |
114 |
|
2 Комнаты для ночлега гостей с передней и санузлами (унитаз, умывальник, душ) |
14 |
14 |
16 |
|
3 Парикмахерская с местом или помещением для педикюра |
- |
14 |
16 |
|
4 Комната и кладовая сестры-хозяйки |
8 + 7 |
10 + 10 |
10 + 12 |
|
5 Уборная при вестибюле для посетителей на один унитаз с умывальником в шлюзе |
5 |
5 |
6 |
|
Всего: |
84 |
139 |
174 |
|
* Использованы данные СП 118.13330. | |||
|
Помещение |
Площадь помещения, м2, при вместимости учреждения, место | ||
|
50 |
100 |
200 | |
|
1 Центральные кладовые: | |||
|
кладовая чистого белья с местом для починки |
12 |
16 |
16 |
|
кладовая швейной мастерской |
12 |
12 |
12 |
|
кладовая грязного белья |
6 |
8 |
10 |
|
кладовая сезонной одежды и обуви |
18 |
24 |
28 |
|
кладовая личных вещей |
18 |
24 |
32 |
|
кладовая инвентаря и мебели |
18 |
24 |
26 |
|
склад хозяйственный |
18 |
24 |
36 |
|
кладовая садово-огородного инвентаря |
8 |
10 |
12 |
|
Итого: |
110 |
142 |
172 |
|
2 Помещение дезинфекционных камер |
16 |
19 |
19 |
|
кладовая грязного белья с местом для разборки |
7 |
9 |
12 |
|
помещение дежурного персонала |
8 |
8 |
8 |
|
общий санузел, раздельный для мужчин и женщин |
6 |
6 |
6 |
|
комната бытового обслуживания |
8 |
10 |
12 |
|
Итого: |
45 |
52 |
57 |
|
3 Мастерские по ремонту оборудования и инвентаря |
12 + 12 |
18 + 12 |
18 + 12 |
|
4 Помещение для пожарного поста |
4 |
4 |
6 |
|
Итого: |
28 |
34 |
36 |
|
Всего: |
183 |
228 |
265 |
Приложение Б

1 - жилая группа для лиц, свободно передвигающихся, практически здоровых; 2 - жилая группа для лиц, с нарушением опорно-двигательного аппарата; 3 - жилая группа для лиц, передвигающихся на креслах-колясках
Рисунок Б.1 - Схема взаимосвязей жилых групп и помещений дома-интерната общего типа со специальным отделением

1 - жилая группа для лиц, с нарушением опорно-двигательного аппарата, способных к частичному самообслуживанию; 2 - жилая группа для лиц, нуждающихся в посторонней помощи и постельном режиме, передвигающихся на креслах-колясках
Рисунок Б.2 - Схема взаимосвязей жилых групп и помещения психоневрологического, специального дома-интерната

I - Помещение вахтера: 1 - стойка; 2 - стол с телефоном и настольной сигнализацией; 3 - пожарная сигнализация; 4 - топчан для отдыха дежурного; 5 - стул; 6 – шкаф;
II - Стационарный пост полиции: 1 - стол с телефоном и настольной сигнализацией; 2 - стул; 3 - топчан; 4 - тумбочка; 5 - решетчатая перегородка с дверью
Рисунок Б.3 - Помещение охраны и безопасности

1 - кровать; 2 - тумбочка; 3 - стол (тумбочка) для телевизора; 4 - стул; 5 - кресло; 6 - стол; 7 - подвесной шкаф; 8 - топчан; 9 - диван
Рисунок Б.4 - Планировочные схемы комнат жилых ячеек ЖЯ-1 и ЖЯ-3 для лиц, свободно передвигающихся

1 - кровать; 2 - тумбочка; 3 - стол; 4 - стул; 5 - шкаф для одежды; 6 - стол; 7 - кресло-коляска для инвалидов; 8 - диван
Рисунок Б.5 - Планировочные схемы комнат жилых ячеек ЖЯ-4 для двух- и трехместных комнат

1 - кровать общебольничная; 2 - столик надкроватный; 3 - тумбочка прикроватная; 4 - кресло для отдыха; 5 - кресло-судно передвижное; 6 - кресло-коляска; 7 - стул; 8 - стол; 9 - шкаф для одежды; 10 - вешалка для одежды
Рисунок Б.6 - Планировочная схема жилой ячейки (жилого блока) ЖЯ-5

а - четырехместная жилая комната; б - шестиместная жилая комната; в - зона размещения кровати для лиц, способных к частичному самообслуживанию и передвигающихся по дому и прилегающему участку; г - зона размещения кровати для немощных лиц, передвигающихся в пределах жилой комнаты
1 - кровать; 2 - тумбочка; 3 - стол; 4 - стул; 5 - комбинированный шкаф
Рисунок Б.7 - Планировочная схема жилых комнат на 4 и 6 человек в жилых ячейках (блоках) ЖЯ-6 для психоневрологических больных

Рисунок Б.8 - Схемы типов жилых ячеек в домах-интернатах

1 - шкаф для открытого хранения книг; 2 - стол для занятий; 2а - стол для занятий инвалида-колясочника; 3 - стул; 4 - стол для абонементного обслуживания; 5 - табурет; 6 - полки подвесные; 7 - кресло-коляска для инвалидов
Рисунок Б.9 - Пример планировки библиотеки с открытым доступом к книгам и читальным залом

1 - сцена; 2 - места для ходячих зрителей; 3 - места размещения инвалидов на кресле-коляске; 4 - пандус
Рисунок Б.10 - Варианты размещения мест в зрительном зале

1 - стол обеденный; 1а - стол резервный; 2 - стул; 3 - кресло-коляска для инвалидов; 4 - комбинированная стенка; 5 - холодильник; 6 - мойка; 7 - плита; 8 - буфет кухонный; 9 - сервировочная стойка; 10 - разделочный стол; 11 - табурет
Рисунок Б.11 - Помещение для приема гостей на 11 и 21 посадочных мест

1 - стул; 2 - пюпитр; 2а - специальный пюпитр для инвалида на кресле-коляске; 3 - подиум для руководителя; 4 - пианино; 5 - табурет винтовой; 6 - шкаф для музыкальных инструментов и нот; 7 - кресло-коляска для инвалидов; 8 - запасной эвакуационный выход
Рисунок Б.12 - Помещения для музыкальных занятий

1 - помещение для религиозных обрядов; 2 - зона священнослужителя; 3 - служебная ниша; 4 - сейф; 5 - комната (келья для священнослужителя); 6 - санузел (рукомойник, унитаз, душевой поддон); 7 - кладовая; 8 - прихожая с вешалкой
Рисунок Б.13 - Пример планировки зала для молитвенных собраний с подсобными помещениями

Примечание - Рабочие помещения оборудуются в зависимости от вида производства; кладовые оборудуются стеллажами; комната мастера оборудуется столом, стульями, стеллажами.
А - мастерская; Б - комната мастера; В - уборная для инвалида; Г - кладовая материалов; Д - кладовая готовой продукции; Е - общая уборная; Ж - коридор.
1 - стол рабочий; 2 - табурет с регулируемым сиденьем; 3 - проволочно-швейный аппарат; 4 - клееварка; 5 - стол мастера; 6 - стул; 7 - мойка; 8 - кресло-коляска для инвалидов; 9 - второй эвакуационный выход
Рисунок Б.14 - Планировочная схема картонажной мастерской

1 - стол монтажный; 2 - стенд испытательный; 3 - стол с вытяжкой; 4 - стол приемщика; 5 - мойка; 6 - стеллаж для материалов; 7 - табурет с регулируемым сиденьем; 8 - стеллаж приемщика; 9 - стол медсестры; 10 - шкаф медицинский
Рисунок Б.15 - Мастерская по ремонту аппаратуры и бытовой техники

А - комната для раздевания; Б - уборная; В - уборная для инвалидов на кресле-коляске; Г - душевая для инвалидов на кресле-коляске; Д - спортивный зал; Е - комната тренера; Ж - комната для хранения спортинвентаря
1 - гимнастическая стенка, 2 - гимнастический станок-поручень, 3 - место для тренера, 4 - пианино, 5 - скамья, 6 - вешалка
Рисунок Б.16 - Помещения для занятий гимнастикой и физкультурой


1 - стол обеденный 160×90; 2 - стул; 3 - кресло-коляска для инвалидов
Рисунок Б.17 - Варианты планировки мест питания
Библиография
[1] Федеральный закон от 30 марта 1999 г. N 52-ФЗ "О санитарно-эпидемиологическом благополучии населения"
[2] Федеральный закон от 29 декабря 2004 г. N 191-ФЗ "Градостроительный кодекс Российской Федерации"
[3] Федеральный закон от 24 ноября 1995 г. N 181-ФЗ "О социальной защите инвалидов в Российской Федерации"
[4] Федеральный закон от 22 июля 2008 г. N 123-ФЗ "Технический регламент о требованиях пожарной безопасности"
[5] Федеральный закон от 30 декабря 2009 г. N 384-ФЗ "Технический регламент о безопасности зданий и сооружений"
[6] ТРТС 011/2011 Технический регламент Таможенного союза. Безопасность лифтов. Утвержден Решением Комиссии Таможенного союза от 18 октября 2011 г. N 824
[7] Федеральный закон от 23 ноября 2009 г. N 264-ФЗ "Об энергосбережении и о повышении энергетической эффективности и о внесении изменений в отдельные законодательные акты Российской Федерации"
[8] Федеральный закон от 3 октября 2018 г. N 350-ФЗ "О внесении изменений в отдельные законодательные акты Российской Федерации по вопросам назначения и выплаты пенсий"
[9] Исключен с с 25 июня 2020 г. - Изменение N 2
[10] НПБ 110-03 Перечень зданий, сооружений, помещений и оборудования, подлежащих защите автоматическими установками пожаротушения и автоматической пожарной сигнализацией
[11] ПУЭ Правила устройства электроустановок
[12] СО 153-34.21.122-2003 Инструкция по устройству молниезащиты зданий, сооружений и промышленных коммуникаций
[13] Р 078-2019 Инженерно-техническая укрепленность и оснащение техническими средствами охраны объектов и мест проживания и хранения имущества граждан, принимаемых под централизованную охрану подразделениями вневедомственной охраны войск национальной гвардии Российской Федерации. Часть 1. Методические рекомендации
[14] Исключен с с 25 июня 2020 г. - Изменение N 2
[15] ТР 205-09 Технические требования по проектированию систем антитеррористической защищенности и комплексной безопасности высотных и уникальных зданий
[16] Исключен с с 25 июня 2020 г. - Изменение N 2
[17] Приказ Министерства труда и социальной защиты Российской Федерации от 14 декабря 2017 г. N 847 "Об утверждении методических рекомендаций по организации различных технологий сопровождаемого проживания инвалидов, в том числе такой технологии, как сопровождаемое совместное проживание малых групп инвалидов в отдельных жилых помещениях


