СП 144.13330.2012 (28.12.2023) ЦЕНТРЫ И ОТДЕЛЕНИЯ ГЕРИАТРИЧЕСКОГО ОБСЛУЖИВАНИЯ. ПРАВИЛА ПРОЕКТИРОВАНИЯ
Утв. Приказом Федерального агентства по строительству и жилищно-коммунальному хозяйству от 27 декабря 2012 г. N 131/ГС
Centers and department of geriatric services Design rules
ОКС 01.040.93
Дата введения - 1 июля 2013 года
Предисловие
Цели и принципы стандартизации в Российской Федерации установлены Федеральным законом от 27 декабря 2002 г. N 184-ФЗ Федеральный закон РФ "О техническом регулировании", а правила разработки сводов правил - Постановлением Правительства Российской Федерации от 19 ноября 2008 г. N 858 "О порядке разработки и утверждения сводов правил".
Сведения о своде правил
1 ИСПОЛНИТЕЛИ - ОАО "Институт общественных зданий", ЗАО "Гипроздрав" - научно-проектный центр по объектам здравоохранения и отдыха", ОАО "ЦНИИЭП жилища
2 ВНЕСЕН Техническим комитетом по стандартизации ТК 465 "Строительство"
3 ПОДГОТОВЛЕН к утверждению Управлением градостроительной политики
4 УТВЕРЖДЕН Приказом Федерального агентства по строительству и жилищно-коммунальному хозяйству (Госстрой) от 27.12.2012 г. N 131/ГС и введен в действие с 1 июля 2013 г.
5 ЗАРЕГИСТРИРОВАН Федеральным агентством по техническому регулированию и метрологии (Росстандарт)
Информация об изменениях к настоящему своду правил публикуется в ежегодно издаваемом информационном указателе "Национальные стандарты", а текст изменений и поправок - в ежемесячно издаваемых информационных указателях "Национальные стандарты". В случае пересмотра (замены) или отмены настоящего свода правил соответствующее уведомление будет опубликовано в ежемесячно издаваемом информационном указателе "Национальные стандарты". Соответствующая информация, уведомление и тексты размещаются также в информационной системе общего пользования - на официальном сайте Федерального агентства по строительству и жилищно-коммунальному хозяйству (Госстрой) в сети Интернет
Введение
Настоящий свод правил разработан в соответствии с Федеральным законом от 30.12.2009 г. N 384-ФЗ "Технический регламент о безопасности зданий и сооружений".
Настоящий свод правил разработан в развитие требований СП 59.13330.
Свод правил учитывает отечественный и международный опыт создания среды [1], соответствующей требованиям доступности зданий, сооружений и объектов инфраструктуры для групп населения старших возрастов. В новом своде правил учтены предложения и замечания специалистов НИИ экологии человека и гигиены окружающей среды им. А.Н. Сысина.
Свод правил выполнен: ООО "Институт общественных зданий" (руководитель работы - канд. арх. А.М. Гарнец); ЗАО "Гипроздрав" - научно-проектный центр по объектам здравоохранения и отдыха (ответственный исполнитель - канд. арх. Л.Ф. Сидоркова, медицинские технологи: М.В. Толмачева, М.А. Шумилова, Т.В. Майорова, архитекторы: М.Е. Короткова, Е.В. Шулякевич); ОАО "ЦНИИЭП жилища" (канд. арх. А.А. Магай, канд. арх. Н.В. Дубынин).
1.1 Настоящий свод правил устанавливает основные положения и требования к размещению, участку, функциональной организации и архитектурно-планировочным решениям гериатрических учреждений (отделений).
1.2 Настоящий свод правил распространяется на проектирование новых, реконструируемых, капитально ремонтируемых зданий гериатрических центров и отделений.
В настоящем своде правил приведены ссылки на следующие нормативные документы:
СП 42.13330.2011 "Градостроительство. Планировка и застройка городских и сельских поселений"
СП 59.13330.2012 "СНиП 35-01-2001 Доступность зданий и сооружений для маломобильных групп населения"
СП 113.13330.2023 "СНиП 21-02-99* Стоянки автомобилей"
СП 118.13330.2022 "СНиП 31-06-2009 Общественные здания и сооружения" (с изменениями N 1, N 2, N 3)
СП 143.13330.2012 "Помещения для досуговой и физкультурно-оздоровительной деятельности маломобильных групп населения. Правила проектирования"
СП 158.13330.2014 "Здания и помещения медицинских организаций. Правила проектирования"
Примечание - При пользовании настоящим сводом правил целесообразно проверить действие ссылочных стандартов и классификаторов в информационной системе общего пользования - на официальном сайте национального органа Российской Федерации по стандартизации в сети Интернет или по ежегодно издаваемому информационному указателю "Национальные стандарты", который опубликован по состоянию на 1 января текущего года, и по соответствующим ежемесячно издаваемым информационным указателям, опубликованным в текущем году. Если ссылочный документ заменен (изменен), то при пользовании настоящим сводом правил следует руководствоваться заменяющим (измененным) документом. Если ссылочный документ отменен без замены, то положение, в котором дана ссылка на него, применяется в части, не затрагивающей эту ссылку.
В настоящем своде правил использованы следующие термины с соответствующими определениями:
3.1 гериатрическая помощь: Система лечебно-профилактических и социальных мероприятий, осуществляемых учреждениями здравоохранения и социального обеспечения в отношении лиц пожилого и старческого возраста (60 лет и старше), страдающих хроническими заболеваниями с частичной или полной утратой способности к самообслуживанию. Целью гериатрической помощи является продление активного долголетия и повышение качества жизни в пожилом возрасте.
3.2 гериатрический центр: Учреждение медико-социального профиля, предназначенное для оказания стационарной и консультативно-диагностической медицинской помощи населению пожилого возраста и лицам с признаками преждевременного старения организма.
3.3 дневной стационар: Структурное подразделение амбулаторно-поликлинических и стационарных медицинских организаций, предназначенное для проведения профилактических, диагностических, лечебных и реабилитационных мероприятий, требующих медицинского наблюдения больных в течение нескольких часов.
3.4 дом дневного пребывания (далее - ДДП): Комплексный медико-социальный центр, объединяющий функции оказания медицинской помощи, социальной помощи и организации досуга.
3.5 палата: Основное функциональное лечебное помещение палатного отделения, в котором осуществляется диагностика заболеваний, лечение, наблюдение и уход за больными.
3.6 палатное отделение: Основной функциональный структурный элемент стационарных лечебных организаций, включающий палатные секции, палаты, диагностические и лечебные кабинеты, административно-служебные и вспомогательные помещения, обеспечивающие лечебный процесс.
3.7 полустационарные формы: Стационары, в которых пациенты находятся не круглосуточно: дневные, ночные, стационары на дому.
3.8 стационар на дому: Форма госпитализации, при которой медицинская помощь (инъекции, капельницы, диагностика и др.) оказывается путем выезда персонала на дом.
4.1 Исключен с 25 марта 2016 года. - Изменение N 1
4.2 Гериатрическая помощь может иметь амбулаторный и стационарный характер и оказываться как специализированными медицинскими организациями (гериатрические центры), так и структурными подразделениями многопрофильных и специализированных медицинских организаций, а также организаций социальной защиты (гериатрические кабинеты и отделения, отделения медико-социальной помощи (далее - ОМСП)).
4.3 В регионах с низкой плотностью населения и небольших городах с целью приближения стационарной помощи к местам проживания могут организовываться стационарные гериатрические отделения при небольших многопрофильных больницах.
4.4 В регионах с высокой плотностью населения и крупных городах целесообразно создание стационарных гериатрических отделений при крупных многопрофильных больницах, где при оказании медико-реабилитационной помощи возможно своевременное привлечение узких специалистов, использование высокотехнологичных отделений и хорошо оснащенных отделений восстановительного лечения [2] - [7].
4.5 В специализированных медицинских центрах (психиатрических, онкологических, кардиологических и др.) целесообразно выделять гериатрические отделения, соответствующие профилю центров.
4.6 На гериатрические центры, как на один из типов медицинских организаций распространяются требования по пожарной безопасности (класс Ф 1.1) и проектированию инженерного оборудования, предъявляемые к стационарным и поликлиническим медицинским организациям.
5.1 Размеры земельных участков медико-социальных и лечебно-консультативных центров без стационаров следует принимать с учетом подъездных и пешеходных путей из расчета 0,1 га на 100 посещений в смену, но не менее 0,3 га на объект. Исключением являются лечебно-консультативные и медико-социальные центры, встроенные в общественные и жилые здания.
Размеры земельных участков гериатрических центров, в структуре которых есть стационар, следует принимать в соответствии с СП 42.13330.
При наличии в структуре учреждения, как консультативного приема, так и стационара площади участка суммируются. Площади указаны без учета стоянок автомобилей персонала, пациентов и родственников.
5.2 Земельные участки стационарных учреждений для пожилых людей должны иметь сплошное ограждение высотой не менее 2,5 м. По периметру ограждения с внутренней стороны рекомендуется полоса зеленых насаждений.
5.3 Размещение корпусов относительно друг друга, жилых домов и красной линии застройки должно соответствовать нормативным требованиям для медицинских организаций. Перед главным входом в гериатрический центр следует предусматривать площадки для посетителей не менее 50 м2.
5.4 На земельных участках гериатрических центров следует размещать только функционально связанные с ними здания и сооружения. Допускается размещение пансионатов для приезжающих пациентов, родственников, госпитализированных больных, медицинских кафедр, кафетериев, газетных, аптечных и других киосков с товарами, необходимыми для повседневных нужд пациентов, в составе основного здания или на участке организации.
5.5 Исключен с 25 марта 2016 года. - Изменение N 1
5.6 Территория, занятая зелеными насаждениями, должна быть не менее 40% от незастроенной площади участка.
5.7 Рекомендуется на территории организовывать несколько зон отдыха. Суммарная площадь зон отдыха должна приниматься из расчета 0,3 м2 на одного проживающего. Зона отдыха должна представлять собой беседку (площадку), укрытую от дождя и от солнца. Организовывать зону отдыха рекомендуется с видом на декоративный водоем, цветник или другой акцент пейзажа. В затесненных городских условиях зоны отдыха могут размещаться на озелененных огражденных используемых кровлях.
5.8 Территории, предназначенные для пациентов гериатрических центров должны соответствовать требованиям, предъявляемым к безбарьерной среде.
5.9 При размещении парковочных мест на земельных участках ГРЦ на стоянках автомобилей для сотрудников и посетителей следует предусматривать места для хранения (стоянки) электромобилей, оборудованные зарядными устройствами, в соответствии с требованиями СП 113.13330. Расчетную потребность парковочных мест, оборудованных зарядными устройствами, следует устанавливать в соответствии с заданием на проектирование, но не менее установленных СП 118.13330.
6.1.1 Функционально-планировочные решения рассматриваемых организаций должны основываться на их медико-организационной структуре, определяемой характером и объемом оказываемой помощи на разных ее этапах. Этапное оказание медико-социальной помощи людям старших возрастов предполагает использование современных организационных технологий, позволяющих оказывать эту помощь, изменяя ее территориальную доступность с учетом состояния здоровья пациентов: специализированный амбулаторно-поликлинический прием, стационары на дому, круглосуточные стационары. Структура подразделений, состав и площади помещений принимаются по заданию на проектирование.
6.1.2 По состоянию здоровья, степени подвижности и потребности в медицинском и социальном уходе пожилые люди могут быть разделены на три категории (таблица 6.1), влияющие на формы проживания и медицинского обслуживания.
|
Категории лиц пожилого возраста и потребность в медико-социальной помощи |
Типы медико-социальных учреждений (подразделений) | |
|
амбулаторно-поликлинический |
стационарный | |
|
1 Лежачие пациенты, не способные обойтись без посторонней помощи
Постоянный или периодический уход на дому или в стационаре |
Отделения медико-социальной помощи на дому |
Хосписы, стационарные гериатрические отделения по уходу |
|
2 Пациенты, с ограниченными возможностями передвижения
Постоянная амбулаторная и периодическая стационарная |
Гериатрические кабинеты при территориальных поликлиниках и отделениях медико-социальной помощи. Отделения медико-социальной помощи на дому |
Палатные отделения в гериатрических больницах и центрах, гериатрические отделения в многопрофильных больницах |
|
3 Пациенты с относительно сохранившейся подвижностью
Постоянная оздоровительная, первичная амбулаторная, скоропомощная стационарная |
Поликлинические гериатрические отделения. Лечебно-консультационные отделения при гериатрических центрах |
Палатные отделения в гериатрических больницах и центрах, гериатрические отделения в многопрофильных больницах |
6.1.3 В составе гериатрического центра предусматриваются служебно-административные кабинеты, проектируемые по соответствующим нормативным документам (СП 158.13330).
6.1.4 Для обеспечения работы гериатрического центра в его структуру при необходимости включаются вспомогательные подразделения (ЦСО, диагностическая лаборатория и др.) и хозяйственные службы (пищеблок, прачечная, дезотделение, патологоанатомическое отделение и др.). Проектирование этих подразделений должно проводиться на основе СП 158.13330. Наличие в составе гериатрического учреждения перечисленных подразделений зависит от принятой организационной формы. Функции этих подразделений могут выполняться учреждениями, находящимися за пределами гериатрического центра, централизованно для нескольких медицинских организаций.
6.1.5 В таблицах Свода правил приведены минимальные нормативные площади помещений. Наборы помещений того или иного подразделения определяются Программой на проектирование на основе Медицинского задания.
6.1.6 Во все помещения медико-социальных зданий, предназначенные для посещения пациентами (вплоть до кабинета директора) должен быть обеспечен безбарьерный доступ.
6.2.1 В местах постоянного проживания пожилых людей должны быть предусмотрены условия для оказания им первичной амбулаторной медицинской помощи и организации медицинского и бытового ухода.
6.2.2 Исключен с 25 марта 2016 года. - Изменение N 1
6.2.3 Поликлиническое гериатрическое отделение рекомендуется включать в качестве структурного подразделения в состав лечебно-профилактического учреждения (ЛПУ), (территориальная поликлиника, гериатрический центр, учреждение социальной защиты и др.). В составе таких отделений могут располагаться: дневной стационар, стационар на дому, кабинеты реабилитации.
6.2.4 Отделения медико-социальной помощи на дому (стационара на дому) предназначены для персонала выездных бригад, оказывающих помощь по лечению и уходу за инвалидами и пациентами старших возрастных групп, частично или полностью утратившими способность к самообслуживанию. Ориентировочный перечень и минимальные площади помещений, которые могут быть включены в состав стационара на дому приведены в таблице 6.2.
|
N п.п. |
Наименование помещения |
Площадь, м2 |
|
1 |
Кабинет заведующего |
16 |
|
2 |
Комната старшей медицинской сестры |
12 |
|
3 |
Помещение хранения медикаментов |
4 |
|
4 |
Помещение медицинских патронажных сестер |
6 на 1 чел, но не менее 10 |
|
5 |
Диспетчерская - помещение вызова на дом |
8 |
|
6 |
Помещение медицинских сестер на выездах |
6 на 1 чел, но не менее 10 |
|
7 |
Кладовая переносного оборудования |
10 |
|
8 |
Комната отдыха шоферов |
3 на чел., но не менее 10 |
|
9 |
Душевая персонала |
3 |
|
10 |
Уборная персонала |
3 |
6.2.5 Ориентировочный перечень и минимальные площади помещений поликлинического медико-социального гериатрического отделения, обслуживающего 10000 чел. старших возрастных групп (из расчета, что эта возрастная группа составляет 25% населения, что примерно соответствует территории с численностью населения 40000 чел.) отражены в таблице 6.3.
|
Наименование кабинета |
Площадь кабинета, м2 |
|
1 Административные помещения | |
|
1.1 Кабинет заведующего отделением |
16 |
|
1.2 Помещение старшей медицинской сестры отделения |
10 |
|
2 Помещения медико-социального и диагностического приема | |
|
2.1 Кабинет врача-гериатра с диагностическим оборудованием (ЭКГ и др.) |
18 |
|
2.2 Кабинет доврачебной помощи |
12 |
|
2.3 Процедурная |
12 |
|
2.4 Кабинет социального работника |
10 |
|
3 Помещения восстановительного лечения | |
|
3.1 Кабинет физиотерапии |
18 |
|
3.2 Кабинет инструктора ЛФК |
10 |
|
3.3 Мужская и женская раздевальные с душевыми |
6 + 6 |
|
3.4 Зал ЛФК для групповых занятий |
60 |
|
3.5 Кабинет постинсультной трудотерапии |
24 |
|
3.6 Массажный кабинет |
12 |
|
4 Стационар на дому (см. таблицу 6.2) |
При большей численности населения в структуру ОМСП могут включаться дополнительные группы помещений.
6.2.6 Группа кабинетов специализированного врачебного приема: стоматологический, офтальмологический, сурдологический, кардиологический, неврологический и их минимальные площади кабинетов указаны в таблице 6.4. Набор кабинетов определяется заданием. Размеры и оборудование кабинетов отражены на рис. А.1 - А.7.
|
N п.п. |
Наименование помещения |
Минимальная площадь, м2 |
|
Врачебные кабинеты | ||
|
1 |
Кабинет врача-стоматолога на 1 кресло |
14 |
|
2 |
Помещение визиографа при кабинете стоматолога |
8 |
|
3 |
Кабинет врача-офтальмолога с возможностью затемнения |
18 |
|
4 |
Кабинет врача-сурдолога с аудиометрической кабиной |
18 |
|
5 |
Кабинет врача-кардиолога с возможностью проведения ЭКГ |
18 |
|
6 |
Кабинет врача-невролога |
12 |
|
7 |
Кабинет врача - гинеколога-уролога |
18 |
|
8 |
Кабинет врача-логопеда |
12 |
|
Помещения восстановительного лечения | ||
|
9 |
Кабинет физиотерапии с подсобным помещением |
6 на кушетку (но не менее 12) + 8 |
|
10 |
Кабинет ингаляционной терапии с помещением медицинской сестры и стерилизации наконечников |
4 на одно место, но не менее 12 + 6 |
|
11 |
Кабинет лечения электросном |
6 на место, но не менее 12 |
|
12 |
Кабинет теплолечения с подсобным помещением |
6 на кушетку (но не менее 12) + 8 |
|
13 |
Ванный зал |
8 на ванну, но не менее 12 |
|
14 |
Кабинет гидропатии (душевой зал с кафедрой) |
24 |
|
15 |
Массажный кабинет |
8 на кушетку, но не менее 10 |
|
16 |
Кабинет механотерапии |
4 на одно место, но не менее 20 |
|
17 |
Кабинет инструктора ЛФК |
8 |
|
18 |
Мужская и женская раздевальные с душевыми |
6 + 6 |
|
19 |
Зал лечебной физкультуры для групповых занятий на 10 человек |
5 на одно место, но не менее 50 |
|
20 |
Кабинет постинсультной трудотерапии |
4 на одно место, но не менее 20 |
|
21 |
Лечебно-оздоровительный бассейн на 5 чел. с раздевальными и душевыми * |
90 + 12 + 12 |
|
Стационар на дому | ||
|
22 |
Комната персонала: | |
|
22.1 |
на 1 бригаду |
12 |
|
22.2 |
на 2 бригады |
24 |
|
22.3 |
на 3 бригады |
36 |
|
23 |
Диспетчерская |
10 |
|
24 |
Помещение хранения переносной аппаратуры |
8 |
|
25 |
Комната шоферов |
12 |
|
26 |
Уборная для персонала |
3 |
--------------------------------
* Лечебные бассейны должны иметь уборную на 1 - 2 унитаза, подсобные помещения, предназначенные для хранения моющих и дезинфицирующих средств, а также помещение для персонала.
6.2.7 Минимальные площади кабинетов восстановительного лечения, для лиц старших возрастов указаны в таблице 6.4. Габариты и оборудование кабинетов приведены на рисунках А.1 - А.16 приложения А.
6.2.8 Взаимосвязи функциональных групп помещений отделения медико-социальной помощи приведены на рисунке 6.1.

Рисунок 6.1 - Функциональные связи групп помещений ОМСП
6.2.9 В каждом отделении предусматриваются административные (в соответствии со штатным расписанием) и вспомогательные помещения (кладовые, комнаты персонала и др.). При отсутствии тех или иных помещений в нормативных документах их площадь определяется с учетом предполагаемого числа сотрудников и пациентов, одновременно находящихся в помещении, габаритов медицинского и технологического оборудования и возможности организации необходимых технологических проходов.
6.2.10 При размещении гериатрического отделения с отдельным входом предусматривается входная группа помещений, состоящая из вестибюля с гардеробами, санузлами и регистратурой и др.
6.3.1 Исключен с 25 марта 2016 года. - Изменение N 1
6.3.2 В зависимости от профиля лечебного учреждения, при котором организуется дневной гериатрический стационар, он может быть общепрофильным или специализированным (кардиологическим, психиатрическим, офтальмологическим и т.д.).
В состав помещений дневного стационара для пожилых людей могут быть включены: кабинет врача (заведующего), комнату старшей сестры, пост медицинской сестры, помещение подготовки инфузионных систем, комнату подогрева и приема пищи, санитарную комнату, палаты, уборные, помещение персонала, комнату отдыха пациентов. В зависимости от профиля дневного стационара, в его состав может входить специализированный врачебный кабинет, оборудованный соответствующим образом (например, офтальмологический, логопедический), малая операционная и т.д. Гериатрический дневной стационар может быть организован на базе отделений восстановительного лечения. Кроме того, пациентам дневного стационара могут проводиться диагностика или восстановительное лечение в любом кабинете учреждения, куда входит дневной стационар.
6.3.3 Гериатрические дневные центры предназначены для дневного пребывания лиц старших возрастов, требующих ухода, когда все члены семьи на работе.
В таких центрах должны быть предусмотрены помещения для:
- выполнения терапевтических программ;
- реабилитации;
- специализированной программы питания;
- занятий по интересам;
- мест для общения.
Создание таких центров при действующих медицинских организациях обеспечивает совместное использование существующих кабинетов. В гериатрическом дневном центре, рассчитанном не более чем на 12 - 15 человек, целесообразно помимо небольших помещений для различных занятий иметь общий зал дневного пребывания.
6.4.1, 6.4.2 Исключены с 25 марта 2016 года. - Изменение N 1
6.4.3 Палатные отделения состоят из палатных секций и общих помещений.
К общим помещениям отделения относятся кабинет заведующего отделением, комната старшей медицинской сестры с кладовой медикаментов, комната сестры-хозяйки с кладовой чистого белья, буфетная, комнаты персонала, ординаторская и др. Кроме того, в состав общих помещений могут входить диагностический кабинет или кабинет восстановительного лечения, соответствующий профилю данного отделения.
6.4.4 При входе в палатную секцию предусматривается шлюз. В состав секции входят палаты, комната подготовки инфузионных систем (процедурная), помещение (пространство) дневного пребывания, санитарная комната, помещение хранения уборочного инвентаря, клизменная, пост медицинской сестры с подсобным помещением. Вместимость палатных секций рекомендуется принимать с учетом штатных нормативов медицинского персонала соответствующих "Порядков оказания медицинской помощи".
|
Наименование отделений (палат) |
Наименование должностей врачей |
Количество коек на 1 должность врача |
|
Неврологическое [4] |
Невропатолог |
15 |
|
Офтальмологическое [7] |
Офтальмолог |
20 |
|
Психиатрическое [5] |
Психиатр |
25 |
|
Терапевтическое, в том числе кардиологическое [2], гастроэнтерологическое, пульмонологическое и др. [3] |
Терапевт (кардиолог, гастроэнтеролог, пульмонолог и др.) |
15 |
|
Травматолого-ортопедическое [6] |
Травматолог-ортопед |
15 |
|
Хирургическое [10] |
Хирург |
12 |
|
Урологическое [9] |
Уролог |
15 |
|
Гинекологическое [8] |
Гинеколог |
15 |
6.4.5 Прием пищи может организовываться непосредственно в палатах. При организации столовой для больных ее площадь следует принимать из расчета 50% количества коек в палатном отделении.
6.4.6 В палатных отделениях следует:
предусматривать устройство поручней в палатах, санузлах, лечебных кабинетах; непрерывного поручня по пути следования пациентов в коридорах;
устанавливать оборудование с учетом возможности использования пожилыми людьми, передвигающимися на креслах-колясках.
Максимальное количество коек в палате - 4. При каждой палате обязательно предусматривается санузел с унитазом и душевой кабиной, в которой оборудуется сиденье для пациента. Для лежачих пациентов в секции рекомендуется предусматривать ванную комнату, оборудованную специальной ванной для купания маломобильных пациентов или душем без поддона и кабины для купания пациентов на специальной каталке.
Комплекс, объединяющий стационарную и консультативную помощь людям старших возрастов.
6.5.1 Исключен с 25 марта 2016 года. - Изменение N 1
6.5.2 В гериатрических центрах в зависимости от численности обслуживаемого населения могут организовываться специализированные гериатрические отделения, профиль которых должен учитывать заболевания, характерные для людей старших возрастов: эндокринологические, кардиологические, сосудистые, психиатрические, офтальмологические и др.
6.5.3 Мощность и профиль отделений конкретного гериатрического центра определяются с учетом численности населения, его демографической структуры и заболеваемости пожилого населения, проживающего в зоне обслуживания гериатрического центра.
6.5.4 Исключен с 25 марта 2016 года. - Изменение N 1
6.5.5 Для входа в гериатрический центр предусматривается - вестибюльная группа помещений. Площадь вестибюлей-гардеробных определяется с учетом численности посетителей и сопровождающих из расчета не менее 0,5 м2 на одного посетителя в сутки. Число посетителей стационара принимается из расчета 60% количества коек. В вестибюльную группу помещений могут входить гардероб уличной одежды посетителей и персонала, помещения для встреч с лечащими врачами и приема передач больным. При вестибюле могут предусматриваться аптечный киоск и фитобар.
6.5.6 Взаимосвязи функциональных групп помещений гериатрического центра приведены на рисунке 6.2.

Рисунок 6.2 - Функциональные связи групп помещений и подразделений гериатрического центра
6.5.7 Для проведения мониторинга состояния здоровья пожилых людей, диагностики заболеваний и выявления их потребности в медицинской и медико-социальной помощи в структуре центра может быть предусмотрено диагностическое отделение, включающее кабинеты медицинской визуализации, эндоскопии и функциональной диагностики. Это отделение должно быть общим для врачебно-консультативного и стационарного отделений и размещаться между ними.
6.5.8 Для оказания консультативной помощи и подбора адекватных методик лечения пожилым людям в структуре центра предусматривается врачебно-консультативное отделение, включающее ряд специализированных врачебно-консультационных кабинетов. Размеры кабинетов врачей-специалистов с расставленным оборудованием приведены в приложении А.
В соответствии с характером заболеваемости пожилых людей отделение может включать кабинеты по следующим специальностям: гастроэнтерология, гериатрия, гинекология, кардиология, неврология, ортопедо-травматология, оториноларингология, офтальмология, психиатрия, пульмонология, стоматология, урология, хирургия, эндокринология. На рисунках А.1 - А.7 даны планы врачебных кабинетов с расстановкой технологического оборудования.
6.5.9 Стоматологическое отделение может включать кабинеты терапевтической, хирургической, ортопедической стоматологии, зуботехническую лабораторию.
6.5.10 Для обеспечения консультативного приема специалистами по социально-правовым вопросам и вопросам медицинской психологии, в составе помещений желательно предусмотреть кабинеты юриста и психолога.
6.5.11 При отделении могут быть организованы дневной стационар и медико-социальная экспертиза (далее - МСЭК). Ориентировочный набор помещений МСЭК: ожидальные, регистратура с архивом, кабинеты врачей-экспертов.
6.5.12 Основным функциональным структурным элементом гериатрического центра являются стационарные отделения. Обязательные подразделения стационара: приемное и палатные отделения.
6.5.13 В приемном отделении осуществляется прием, регистрация и распределение больных по отделениям, устанавливается предварительный медицинский диагноз, оказывается необходимая первичная медицинская помощь, при необходимости проводится санитарная обработка пациента. Приемное отделение включает вестибюль-ожидальную с регистратурой и уборной, смотровые, душевые или ванные комнаты, процедурную, вспомогательные помещения. Габаритная схема смотровой приемного отделения дана на рисунке А.17.
Отделение приема следует размещать на первом этаже по возможности вблизи главного въезда на территорию больницы или центра. Для подъезда санитарных машин и высадки пациентов следует предусматривать теплый шлюз.
6.5.14 Габаритные схемы палат разной вместимости с расстановкой технологического оборудования размещены на рисунках А.18 - А.20. Габаритные схемы санитарных помещений с возможностью пользования людьми на креслах-колясках показаны на рисунке А.21.
6.5.15 Для реабилитации и восстановительного лечения пациентов старших возрастов, как правило, имеющих несколько хронических заболеваний в гериатрических центрах предусматриваются отделения (кабинеты) восстановительного лечения, использующие наиболее щадящие методы, такие как кабинеты физиотерапии, ванные залы, бассейны для обучения хождению, залы ЛФК, массажные кабинеты и т.д. (рисунки А.8 - А.16). Планировочно эти отделения подразделяются на три группы помещений, отличающиеся характером влажности, требованиями к температурному режиму, электробезопасности и отделке помещений:
помещения физиотерапии;
помещения водолечения и грязелечения;
помещения кинезотерапии (ЛФК и массаж, механотерапия, тренажеры).
6.5.16 В приложении А даны габаритные схемы кабинетов восстановительного лечения разного назначения. Набор кабинетов восстановительного лечения определяется программой на проектирование. При организации централизованного отделения входы в него предусматриваются раздельными для больных стационара и врачебно-консультативного отделения.
6.5.17 Для предотвращения травматизма пожилых людей ванны и кушетки должны устанавливаться с учетом возможного наблюдения за ними. Для обеспечения персоналу возможности наблюдения за состоянием пациентов в ванном зале могут быть использованы видеокамеры, обеспечивающие персоналу возможности наблюдения за состоянием пациентов. Прием ванных процедур для женщин и мужчин осуществляется в разное время.
Вокруг ванны лечебного бассейна следует предусматривать подогреваемые обходные дорожки шириной 1,5 м по продольным сторонам и 3 м по торцевым сторонам с уклоном 0,01 - 0,15 к трапам или решеткам. Дно ванны должно быть с уклоном, обеспечивающим глубину ванны от 0,9 до 1,2 м. Сторону бассейна с глубиной 0,9 м рекомендуется оборудовать откидными сиденьями, прикрепленными к стенке бассейна на расстоянии 40 см от дна.
При гидромассажной ванне целесообразно устанавливать подъемник для помещения в ванну больных с ограниченной подвижностью суставов и ослаблением мышечного тонуса.
6.5.18 Глубина бассейна для лечения движением в воде должна быть не более 0,7 м. В гериатрических центрах могут использоваться бассейны Т-образной или П-образной формы с различной глубиной отсеков, что позволяет одновременное занятие трех (двух) групп лиц с различным состоянием здоровья.
6.5.19 Для проведения профилактики преждевременного старения, санитарно-просветительной работы, содействия в социально-психологической адаптации пожилым и обучения навыкам ухода за ними в структуре гериатрического центра по заданию на проектирование могут создаваться школы пациентов и их родственников.
6.5.20 В функциональную структуру гериатрического центра может быть включен актовый зал, предназначенный для проведения конференций для персонала и лекций по здоровому образу жизни для пациентов и оборудованный современной мультипроекционной, видео- и аудиотехникой.
6.5.21 Состав административно-служебных помещений центра (организационно-методический отдел, кабинет медицинской статистики, серверная, помещение обработки информации и др.) определяется по заданию на проектирование.
6.5.22 Исключен с 25 марта 2016 года. - Изменение N 1
6.5.23 Для работы администрации и персонала необходимо предусматривать служебно-бытовые помещения.
Конкретный состав и площадь служебно-бытовых помещений определяются с учетом штатного расписания и задания на проектирование и должны обеспечить работу администрации, бухгалтерии, службы медицинской статистики и медицинского архива и другое.
6.5.24 При гериатрических центрах, имеющих лечебно-консультативные отделения, целесообразно предусматривать отдельно стоящие пансионаты для пребывания приезжих пациентов в течение консультаций, обследования и лечения. В состав помещений пансионатов могут включаться отдельные помещения медицинского назначения (пост медсестры, процедурная, клизменная).
6.6.1 ДДП - комплекс для пожилых людей, объединяющий пять основных функциональных групп помещений, обеспечивающих лечение и медицинскую реабилитацию, общение и многообразное проведение досуга, питание и уход в дневное время:
консультационное медицинское отделение (см. раздел 6.2);
отделение восстановительного лечения (см. раздел 6.2, таблица 6.4);
отделение социальных услуг (питание, бытовое обслуживание и т.д.);
отделение досуга (кружки, студии, чаепития, зрительный зал, библиотека, мастерские для индивидуального труда и т.д., СП 143.13330);
пансионат дневного пребывания (см. раздел 6.3).
6.6.2 На нижних этажах рекомендуется размещать консультативное медицинское отделение и отделение восстановительного лечения.
6.6.3 Абзац исключен с 25 марта 2016 года. - Изменение N 1
Архитектуру учреждений для пребывания пожилых людей рекомендуется рассматривать как активный лечебный фактор, способствующий бытовому и психологическому комфорту. С учетом ограниченных возможностей передвижения людей пожилого возраста в структуру зданий целесообразно включать холлы и другие пространства общего пользования с элементами природной среды (зимний сад, аквариум и пр.).
7.1 Поскольку геронтологические центры, дома сестринского обслуживания и хосписы относятся к зданиям медицинских организаций, на их проектирование распространяются инженерные требования, изложенные в СП 158.13330. При этом, медицинское газоснабжение в зданиях геронтологических центров, домов сестринского ухода и хосписов не предусматривается.
7.2 Установку телефонов следует предусматривать на посту охранника и в кабине директора. Установка телефонов в других помещениях определяется заданием на проектирование.
7.3 Инженерное оборудование должно быть запроектировано таким образом, чтобы при его эксплуатации выполнение установленных требований к микроклимату помещений и другим условиям обеспечивало эффективное расходование энергетических ресурсов.
8.1 Поскольку геронтологические центры, дома сестринского обслуживания и хосписы относятся к зданиям медицинских организаций, на их проектирование распространяются противопожарные требования, изложенные в СП 158.13330. Медицинское газоснабжение в зданиях геронтологических центров, домов сестринского ухода и хосписов не предусматривают.
Приложение А
(рекомендуемое)
Раздел 1. Кабинеты врачебно-консультативного отделения

1 - стол врача; 2 - стул офисный; 3 - таблица; 4 - кушетка смотровая; 5 - столик инструментальный; 6 - шкаф медицинский; 7 - холодильник бытовой; 8 - умывальник керамический; 9 - стол палатный; 10 - офтальмоскоп; 11 - табурет винтовой; 12 – периметр настольный с регистрирующим устройством; 13 – бачок для отходов; 14 - светозащитный занавес; 15 – стул с подлокотниками; 16 - столик манипуляционный
Рисунок А.1 - Кабинет врачей-консультантов с темной комнатой

1 - стол врача; 2 - стул офисный; 3 - рабочее место врача-офтальмолога (стол для приборов и инструментов поворотный, кресло пациента); 4 - стул; 5 - стул винтовой; 6 - шкаф медицинский; 7 - холодильник бытовой; 8 - умывальник керамический; 9 - офтальмоскоп; 10 - таблица; 11 - столик для офтальмологических приборов; 12 - столик манипуляционный; 13 - светозащитный занавес
Рисунок А.2 - Кабинет врача-офтальмолога

1 - стол врача; 2 - стул офисный; 3 - стул с подлокотниками; 4 - аудиометрическая кабина; 5 - стол палатный; 6 - аудиометр клинический; 7 - ЛОР-установка; 8 – стул винтовой; 9 - шкаф медицинский инструментальный; 10 – шкаф врача; 11 - умывальник керамический; 12 - негатоскоп; 13 - кресло отоларингологическое для пациента
Рисунок А.3 - Кабинет врача-отоларинголога

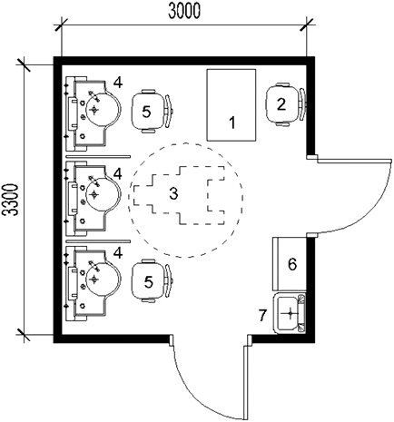
1 - стол врача; 2 - стул офисный; 3 – столик инструментальный; 4 - кушетка смотровая; 5 – инвалидное кресло-коляска; 6 - светильник однорефлекторный передвижной; 7 - стул подъемно-поворотный; 8 - гинекологическое кресло; 9 - столик манипуляционный; 10 - шкаф инструментальный; 11 - ширма медицинская трехстворчатая; 12 - негатоскоп; 13 - бачок для отходов; 14 - умывальник керамический
Рисунок А.4 - Кабинет врача-гинеколога, уролога

1 - стол врача; 2 - стул офисный; 3 - кушетка смотровая; 4 - стул подъемно-поворотный; 5 - аппарат диагностический; 6 - шкаф медицинский инструментальный; 7 – инвалидное кресло-коляска; 8 - шкаф медицинский; 9 - умывальник керамический
Рисунок А.5 - Кабинет диагностический

1 - стол врача; 2 - стул офисный; 3 - инвалидное кресло-коляска; 4 - стул с подлокотниками; 5 - умывальник керамический; 6 - стол палатный; 7 - зеркало; 8 - стеллаж библиотечный; 9 - шкаф медицинский
Рисунок А.6 - Кабинет врача-логопеда

1 - стол врача; 2 - стул офисный; 3 – комплекс стоматологический (кресло стоматологическое, светильник, установка стоматологическая, стул стоматолога, компрессор безмасляный, стол стоматолога, пылеотсос, аппарат для светоотверждения пломб и др.); 4 - комплект медицинской мебели (шкафы, столы со встроенной мойкой и отсеком под встроенный холодильник); 5 - холодильник; 6 - инвалидное кресло-коляска; 7 - умывальник; 8 - негатоскоп стоматологический
Рисунок А.7 - Кабинет ортопедической стоматологии
Раздел 2. Кабинеты восстановительного лечения

1 - кушетка процедурная физиотерапевтическая; 2 - тележка аппаратная; 3 - инвалидное кресло-коляска; 4 - аппарат для проведения электросветолечения; 5 - стул; 6 - консоль настенная световая
Рисунок А.8 - Кабинет электросветолечения (физиотерапии)

1 - стол врача; 2 - стул офисный; 3 – инвалидное кресло-коляска; 4 - ингаляционная панель (ингаляционный аппарат с кронштейном крепления, разделительными панелями, раковиной со смесителем, прибором подачи медикаментов, компрессором в кожухе); 5 - стул с подлокотниками; 6 - шкаф медицинский; 7 - умывальник керамический
Рисунок А.9 - Ингаляторий на 3 места

1 - стол врача; 2 - стул с подлокотниками; 3 - инвалидное кресло-коляска; 4 - кровать для сна; 5 - консоль световая; 6 - тележка аппаратная мобильная; 7 - аппарат для проведения электросна; 8 – штора разделительная; 9 - шкаф медицинский; 10 - умывальник керамический
Рисунок А.10 - Кабинет лечения электросном на 2 кушетки

1 - стол медсестры; 2 - стул с подлокотниками; 3 - кушетка процедурная для теплолечения; 4 - инвалидное кресло-коляска
Рисунок А.11 - Кабинет теплолечения

1 - ванна; 2 - подъемник медицинский; 3 - инвалидное кресло-коляска
Рисунок А.12 - Планировочная схема ванного зала

1 - пульт управления; 2 - душ циркулярный; 3 - душ дождевой; 4 - душ восходящий; 5 - душ Шарко; 6 - откидные поручни; 7 - инвалидное кресло-коляска
Рисунок А.13 - Кабинет гидропатии

1 - стол врача; 2 - стул; 3 - инвалидное кресло-коляска; 4 - штора разделительная; 5 - стол массажный трехсекционный; 6 - стул с подлокотниками; 7 - шкаф медицинский; 8 - умывальник керамический
Рисунок А.14 - Массажный кабинет

1 - стол врача; 2 - стул; 3 - инвалидное кресло-коляска; 4 - место для тренажера; 5 - шкаф; 6 - умывальник керамический
Рисунок А.15 - Кабинет механотерапии

1 - стол врача; 2 - стул с подлокотниками; 3 – весы электронные с ростомером; 4 - снаряды подвесные гимнастические; 5 - скамья гимнастическая универсальная; 6 - мат гимнастический; 7 - стенка гимнастическая; 8 - место для тренажера; 9 - зеркало настенное пленочное для спортзалов; 10 - тележка с гимнастическими снарядами передвижная; 11 - комплект аппаратов для механотерапии; 12 - кушетка смотровая
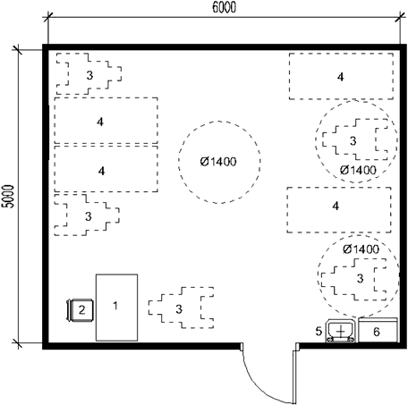
Рисунок А.16 - Зал ЛФК
Раздел 3. Помещения стационара

1 - столик инструментальный; 2 - шкаф медицинский; 3 - стол врача; 4 - стул медицинский полумягкий; 5 - стул с подлокотниками; 6 - кушетка смотровая; 7 - умывальник
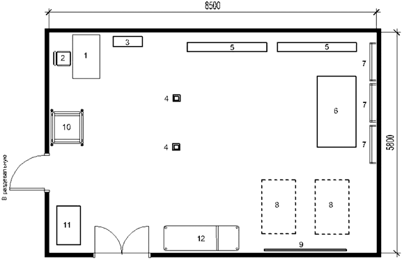
Рисунок А.17 - Смотровая приемного отделения

1 - кровать функциональная; 2 - тумбочка прикроватная; 3 - инвалидное кресло-коляска; 4 - стол; 5 – стол журнальный; 6 - кресло-кровать; 7 - кресло для отдыха; 8 - стул с подлокотниками; 9 - умывальник; 10 - холодильник; 11 - столик надкроватный; 12 - кресло-судно передвижное
Рисунок А.18 - Палата на 1 койку

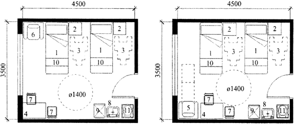
1 - кровать функциональная; 2 - тумбочка прикроватная; 3 - инвалидное кресло-коляска; 4 - стол; 5 - кресло-кровать; 6 - кресло для отдыха; 7 - стул с подлокотниками; 8 - умывальник; 9 - холодильник; 10 - столик надкроватный; 11 - кресло-судно передвижное
Рисунок А.19 - Палата на 2 койки

1 - кровать функциональная; 2 - тумбочка прикроватная; 3 - инвалидное кресло-коляска; 4 - стол; 5 - кресло-кровать; 6 - стул с подлокотниками; 7 - умывальник; 8 - холодильник; 9 - столик надкроватный; 10 - кресло-судно передвижное
Рисунок А.20 - Палата на 3 койки

1 - поручень настенный; 2 - унитаз; 3 - душ; 4 - умывальник керамический; 5 - инвалидное кресло-коляска; 6 - стул настенный складной для ванны; 7 - полка настенная; 8 - каталка медицинская; 9 - душ на гибком шланге; 10 - ванна для купания маломобильного больного; 11 - подъемник для перемещения больного в ванну
Рисунок А.21 - Планировочные схемы санитарно-гигиенических помещений
Библиография
[1] Приказ МЗ РФ от 28 июля 1999 г. N 297 "О совершенствовании организации медицинской помощи гражданам пожилого и старческого возрастов в Российской Федерации"
[2] Приказ от 19 августа 2009 г. N 599н (в ред. 28.04.2011) "Об утверждении порядка оказания плановой и неотложной медицинской помощи населению РФ при болезнях системы кровообращения кардиологического профиля"
[3] Приказ Министерства здравоохранения и социального развития Российской Федерации от 24 декабря 2010 г. N 1183н "Об утверждении Порядка оказания медицинской помощи взрослому населению Российской Федерации при заболеваниях терапевтического профиля"
[4] Приказ Министерства здравоохранения и социального развития Российской Федерации от 13 апреля 2011 г. N 316н "Порядок оказания медицинской помощи взрослому населению при заболеваниях нервной системы по профилю "неврология"
[5] Приказ Министерства здравоохранения и социального развития Российской Федерации от 17 мая 2012 г. N 566н "Об утверждении порядка оказания медицинской помощи при психических расстройствах и расстройствах поведения"
[6] Приказ Министерства здравоохранения Российской Федерации от 12 ноября 2012 г. N 901н г. Москва "Об утверждении порядка оказания медицинской помощи населению по профилю "травматология и ортопедия"
[7] Приказ Министерства здравоохранения Российской Федерации от 12 ноября 2012 г. N 902н "Порядок оказания медицинской помощи взрослому населению при заболеваниях глаза, его придаточного аппарата и орбиты"
[8] - [10] Исключены с 25 марта 2016 года. - Изменение N 1




