СП 142.13330.2012 (30.12.2015) ЗДАНИЯ ЦЕНТРОВ РЕСОЦИАЛИЗАЦИИ. ПРАВИЛА ПРОЕКТИРОВАНИЯ
(30 декабря 2015 г.)
The buildings of social service centres. Rules of architectural design
Дата введения 1 июля 2013 г.
Введение
Настоящий свод правил разработан в соответствии с Федеральным законом от 30 декабря 2009 г. N 384-ФЗ "Технический регламент о безопасности зданий и сооружений".
Свод правил устанавливает требования, соответствующие современной нормативной базе, науке и технике, в целях совершенствования деятельности учреждений социальной помощи для лиц, занимающихся бродяжничеством и нуждающихся в социальной помощи.
В настоящем своде правил учтены требования Федеральных законов [1], [2].
Свод правил выполнен: ООО "Институт общественных зданий" (руководитель работы, канд. архит. A.M. Гарнец; отв. исполнитель - канд. архит. Т.А. Исаева; исполнители - инж. Л.В. Сигачева, инж. Н.И. Чернозубова; компьютерная графика: канд. техн. наук А.И. Цыганов, инж. И.Р. Домрачева); при участии ОАО "ЦНИИЭП жилища" (канд. архит., проф. А.А. Магай, канд. архит. Н.В. Дубынин); ФМБА России, "Федеральное медико-биологическое агентство России" (д-р мед. наук, проф. Н.Ф. Дементьева); ДСЗН "Департамент социальной защиты населения города Москвы" (канд. соц. наук А.В. Пентюхов).
1.1 Настоящий свод правил устанавливает правила проектирования зданий центров ресоциализации (далее - ЦР) в системе органов социальной защиты.
1.2 Требования распространяются только на здания центра ресоциализации, проектирование новых объектов, реконструкции и модернизации существующего фонда, а также при обустройстве помещений действующих центров ресоциализации.
1.3 Требования свода правил не распространяются на учреждения для лиц, вышедших из мест лишения свободы, за которыми установлен административный надзор.
В настоящем своде правил даны ссылки на следующие нормативные документы:
ГОСТ 12.1.004-91 "ССБТ. Пожарная безопасность. Общие требования"
ГОСТ Р 12.2.143-2009 Системы стандартов безопасности труда. Системы фотолюминесцентные эвакуационные. Требования и методы контроля
СП 5.13130.2009 "Системы противопожарной защиты. Установки пожарной сигнализации и пожаротушения автоматические. Нормы и правила проектирования" (с Изменением N 1)
СП 30.13330.2012 "СНиП 2.04.01-85* Внутренний водопровод и канализация зданий"
СП 42.13330.2011 "СНиП 2.07.01-89* Градостроительство. Планировка и застройка городских и сельских поселений"
СП 52.13330.2011 "СНиП 23-05-95* Естественное и искусственное освещение"
СП 54.13330.2011 "СНиП 31-01-2003 Здания жилые многоквартирные"
СП 59.13330.2012 "СНиП 35-01-2001 Доступность зданий и сооружений для маломобильных групп населения"
СП 60.13330.2012 "СНиП 41-01-2003 Отопление, вентиляция и кондиционирование воздуха"
СП 132.13330.2011 "Обеспечение антитеррористической защищенности зданий и сооружений. Общие требования проектирования"
СП 133.13330.2012 "Сети проводного радиовещания и оповещения в зданиях и сооружениях"
СП 136.13330.2012 "Здания и сооружения. Общие положения проектирования с учетом доступности для маломобильных групп населения"
СП 141.13330.2012 "Учреждения социального обслуживания маломобильных групп населения"
СанПиН 2.1.2.2564-09 "Гигиенические требования к размещению, устройству, оборудованию, содержанию объектов организаций здравоохранения и социального обслуживания, предназначенных для постоянного проживания престарелых и инвалидов, санитарно-гигиеническому и противоэпидемиологическому режиму их работы".
Примечание - При пользовании настоящим сводом правил целесообразно проверить действие ссылочных стандартов и сводов правил в информационной системе общего пользования - на официальном сайте национального органа Российской Федерации по стандартизации в сети Интернет или по ежегодно издаваемому информационному указателю "Национальные стандарты", который опубликован по состоянию на 1 января текущего года, и по соответствующим ежемесячно издаваемым информационным указателям, опубликованным в текущем году. Если ссылочный документ заменен (изменен), то при пользовании настоящим сводом правил следует руководствоваться замененным (измененным) документом. Если ссылочный документ отменен без замены, то положение, в котором дана ссылка на него, применяется в части, не затрагивающей эту ссылку.
Термины и определения, использованные в настоящем своде правил, приведены ниже:
3.1 комнаты временного приема: Помещения временного приема для людей, оказавшихся в тяжелой жизненной ситуации.
3.2 лица, занимающиеся бродяжничеством: Граждане, нуждающиеся в создании условий для самореализации основных жизненных потребностей в социальной, психологической, материальной, моральной и медицинской помощи.
3.3 санпропускник: Совокупность бытовых, медицинских помещений в учреждении временного пребывания с санитарно-гигиеническим оборудованием для медицинского осмотра прибывших лиц, проведения с ними санитарной обработки и обеспечения их чистой одеждой.
3.4 центр ресоциализации: Учреждение, основными задачами которого является предоставление гражданам, занимающимся бродяжничеством и оказавшихся в трудной ситуации, социальных услуг (бытовых, медицинских, психологических, экономических).
3.5 отделение дневного пребывания граждан, занимающихся бродяжничеством: Организация, основными задачами которой является оказание социально-бытовых, культурных услуг, медицинской помощи, реализации питания, отдых и привлечение к посильной работе.
4.1 Центр ресоциализации предназначен для граждан, занимающихся бродяжничеством. ЦР проектируется с дневными и ночными отделениями, а также при необходимости с круглосуточным пребыванием (от недели до 3 месяцев).
4.2 Состав и площади помещений принимаются по заданию на проектирование.
4.3 В своде правил рассматриваются по своему физическому состоянию две группы людей:
свободно передвигающиеся;
нуждающиеся в посторонней помощи, в том числе инвалидов на креслах-колясках.
4.4 Здания ЦР следует проектировать двух-, трехэтажными, а при стесненных условиях этажность может увеличиваться до четырех-пяти этажей. На нижних этажах следует проектировать жилые группы преимущественно для людей с ограниченными возможностями с учетом СП 54.13330 и СП 60.13330.
4.5 В вестибюльной группе предусматриваются: помещения охраны и вахтера, помещения оформления приема и выписки, а также комната дежурного администратора.
4.6 Число жилых ячеек, в которых учитываются возможности маломобильных людей, рекомендуется принимать около 20%. В таких ячейках целесообразно предусматривать приспособления, соответствующие требованиям с СП 59.13330.
4.7 Вместимость зданий ЦР рекомендуется принимать согласно заданию на проектирование.
4.8 Необходимость применения фотолюминесцентной эвакуационной системы (ФЭС) в центрах ресоциализации устанавливается в задании на проектирование.
5.1 Площадь земельного участка принимается из расчета 10 м2 на 1 место. В условиях стесненной застройки участок может не предусматриваться.
5.2 На территории земельного участка проектируются зоны отдыха, хозяйственная зона, зона озеленения. Площадь озеленения рекомендуется принимать не менее 25% территории участка.
5.3 При размещении учреждений ЦР в загородных условиях на территории участка могут быть предусмотрены условия для проживания обслуживающего персонала.
5.4 Земельный участок должен иметь капитальное ограждение высотой не менее 1,6 м.
5.5 Особенности использования земельного участка здания центра ресоциализации определяются СП 42.13330 и [7].
5.6 На территории участка следует предусматривать два самостоятельных въезда, один из них должен быть хозяйственным. При въезде на участок необходимо предусматривать помещение для охранника (8 м2) по аналогии с помещением для охранника ночного отделения при вестибюле (приложение А)".
6.1.1 Функциональная структура зданий учреждений ЦР включает пять основных групп помещений:
жилую;
питания;
санитарно-гигиеническую (в том числе санпропускник);
административно-бытовую;
хозяйственную.
6.1.2 Минимальные площади помещений приведены в приложении А.
6.1.3 Схема функциональных взаимосвязей групп помещений отражена на рисунке В.1 приложения В.
Группы следует проектировать с учетом требований доступности для лиц на креслах-колясках согласно СП 59.13330.
6.1.4 Здания центров ресоциализации следует проектировать, как правило, отдельно стоящими.
6.1.5 Высоту жилых помещений от пола до потолка следует принимать не меньше 2,5 м, высоту общественных помещений от пола до потолка - не менее 3 м.
6.1.6 Пути эвакуации из зданий центров ресоциализации следует рассчитывать по установленным или апробированным методикам с учетом динамики опасных факторов пожара по ГОСТ 12.1.004 и психофизиологических возможностей МГН различных категорий по СП 141.13330, [8].
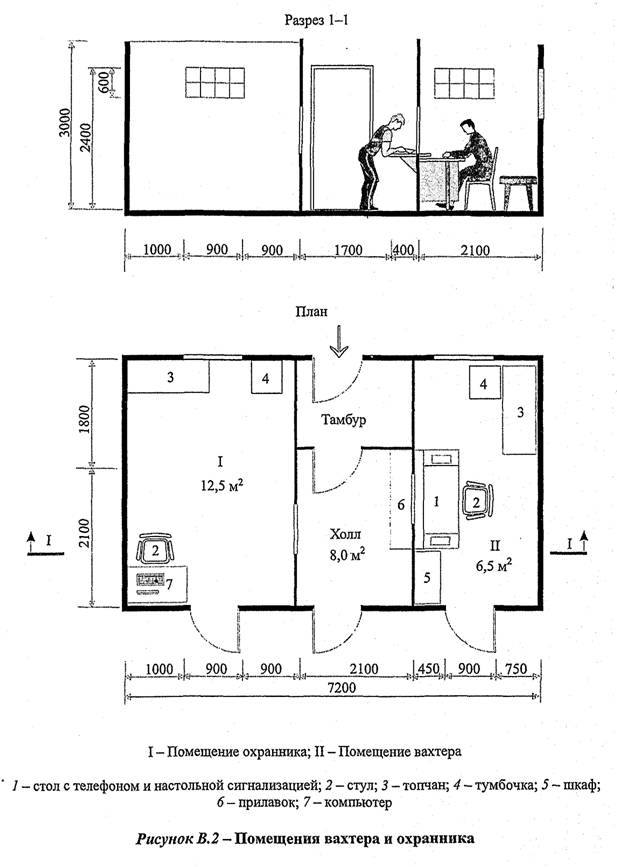
6.2.1 При входе в здание предусматривается вестибюль. При вестибюле проектируют помещения охранника и вахтера, а также кабинет дежурного администратора (рисунок В.2 приложения В).
6.2.2 При входе в вестибюль следует обеспечить систему контроля доступа в учреждение.
6.2.3 Приемный вестибюль должен соединяться с санпропускником, расположенным на первом этаже. В помещении врача (при санпропускнике) предусматриваются раздельные вход и выход.
6.2.4 При вестибюле может предусматриваться комната временного приема (для адаптации лиц, находящихся в неадекватном состоянии) (рисунок В.3 приложения В).
6.3.1 Санпропускник предназначается для обязательной санобработки лиц, поступающих в ЦР, и должен располагаться по пути следования из приемного вестибюля в жилую группу.
6.3.2 Примерная схема и площадь санпропускника с проведением процедур по санобработке и планировке санпропускника представлены в приложении А и на рисунке В.4 приложения В.
6.3.3 В санпропускнике предусматриваются: помещение раздевания и сдачи одежды на дезинфекцию, помещения для прохождения санобработки с душевыми сетками, комната одевания после санобработки, кабинет фельдшера или врача, помещение дезинфектора.
6.3.4 Число душевых сеток в санпропускнике следует устанавливать из расчета 1 сетка на 10 чел. в день. Помещение санобработки с душевой проектируется из расчета 2,5-3,0 м2 на одну душевую сетку.
6.3.5 Состав и площади помещений, число душевых рожков определяются заданием на проектирование с учетом местных условий и утверждаются заказчиком (эксплуатирующей организацией).
6.4.1 Жилая площадь принимается из расчета 4,5 м2/место для свободно передвигающихся и 5,5 м2/место для инвалидов-колясочников.
6.4.2 Вместимость жилых комнат 5-10-15 мест (рисунок В.5 приложения В).
6.4.3 Жилая ячейка представляет собой несколько жилых комнат, объединенных общим холлом, помещением для уборочного инвентаря, гардеробной, буфетной и комнатой социальных работников (рисунок В.6 приложения В).
6.5.1 Санитарно-гигиенические помещения для жилых ячеек (уборные, умывальные комнаты, душ) принимаются из расчета: 1 унитаз и 1 умывальник на 5 чел., 1 душ на 12 чел.
6.5.2 При проектировании уборной и умывальной для маломобильных лиц следует учитывать место для размещения приспособлений (палок, крючков) для удобного передвижения.
6.5.3 Площадь уборной следует принимать: 1,1х1,6 м и 0,9x1,2 м.
6.5.4 Для персонала должны предусматриваться на каждом этаже 2 санитарных узла по 3 м2 каждый (раздельно для мужчин и женщин) с умывальником в шлюзе.
6.6.1 Помещения общественного питания (столовые или буфеты), предусматриваемые в составе ЦР, работают, как правило, на полуфабрикатах или получают горячие блюда в контейнерах и термосах централизованным путем.
6.6.2 В зависимости от характера и вместимости учреждения определяется и рассчитывается число смен и посадочных мест в столовой и буфете. Примерное число посадочных мест в дневном и ночном отделениях дано в таблице 1.
Таблица 1
|
Наименование помещений |
Вместимость отделений ЦР | |||
|
50 |
100 |
200 |
300 | |
|
Буфет (для дневного отделения) |
Эпизодическое посещение, проектируется в соответствии с приложением А настоящего свода правил | |||
|
Столовая (для ночного и круглосуточного отделений) |
Количество посадочных мест при питании в 2 смены | |||
|
20-25 |
40-50 |
80-100 |
120-150 | |
6.6.3 Состав и площади помещений общественного питания следует принимать в соответствии с приложением А и с учетом СанПиН 2.1.2 2564.
6.6.4 Помещения общественного питания работают по принципу самообслуживания.
6.7.1 Рекомендуемые состав и площади административных, хозяйственных и бытовых помещений ЦР представлены в приложении А и на рисунке В.7 приложения В.
6.7.2 При расчете площадей административных помещений рекомендуется использовать примерные штатные нормативы, приведенные в приложении Б.
Расчетная численность сотрудников (штатное расписание) для учреждений социальной защиты уточняется при составлении задания на проектирование.
6.7.3 Площадь административно-служебных помещений следует проектировать из расчета 4,0 м2/на рабочее место, при оборудовании компьютером - 6,0 м2/место.
6.7.4 Для персонала рекомендуется предусматривать отдельный вход, при котором должна быть гардеробная персонала для переодевания из домашней одежды в служебную. При гардеробных персонала предусматриваются душевые кабины и уборные.
6.8.1 В состав медицинских помещений могут входить кабинеты врачей: терапевта, миколога, психолога и психиатра, кабинет медсестры, флюорографический кабинет, перевязочная.
6.8.2 При наличии в ЦР ночного отделения следует предусматривать изолятор. Изолятор предназначается для временной изоляции лиц с признаками инфекционных заболеваний до их госпитализации в стационар. В его составе предусматривается не менее двух палат. Палаты могут быть одно- или двухместными. При входе в палату изолятора предусматривается шлюз. Вход в санузел (унитаз, умывальник) предусматривается непосредственно из палаты.
Расчетное число мест в изоляторе принимается до 6 в зависимости от вместимости учреждения из расчета 1 место на 50 чел.
6.9.1 В учреждениях ЦР могут предусматриваться помещения для проведения религиозных обрядов.
6.9.2 В ЦР предусматриваются реабилитационные трудовые и творческие мастерские. Мастерские трудотерапии следует проектировать в соответствии с СанПиН 2.1.2.2564. Состав помещений мастерских, их площади и оснащение определяются заданием на проектирование.
6.9.3 Культурно-информационные помещения (комнаты для просмотра телепрограмм и компьютерные) рекомендуется принимать по заданию на проектирование.
6.9.4 Число мест зрительного зала предусматривается с учетом численности проживающих в ЦР.
7.1 Системы водопровода, канализации и горячего водоснабжения следует проектировать в соответствии с действующими нормативными документами.
7.2 Системы отопления помещений рассматриваемых учреждений следует проектировать в соответствии с требованиями СП 60.13330. В палатах следует принимать только нагревательные приборы водяного отопления, которые должны закрываться экранами. В качестве нагревательных приборов системы водяного отопления следует принимать радиаторы или конвекторы.
7.3 Расчетную температуру теплоносителя для системы отопления учреждений следует принимать согласно СП 30.13330 и [6].
7.4 Все помещения должны быть оборудованы системами отопления и вентиляции, обеспечивающими соответствующую температуру, влажность, очистку и обезвреживание воздуха. Кондиционирование административных кабинетов предусматривается по заданию на проектирование.
Центр ресоциализации должен быть оборудован системами приточно-вытяжной вентиляции с механическим побуждением и естественной вытяжкой без механического побуждения. Вытяжная вентиляция с механическим побуждением предусматривается из помещений автоклавных моек, душевых, уборных, санитарных комнат, помещений для грязного белья, временных хранений отходов и кладовых для хранения дезинфекционных средств.
В жилых комнатах допускается оборудование естественной вентиляции по СП 60.13330 и СанПиН 2.1.2.2564.
7.5 Инженерное оборудование должно быть запроектировано таким образом, чтобы при его эксплуатации выполнение установленных требований к микроклимату помещений и другим условиям обеспечивало эффективное расходование энергетических ресурсов с учетом Федерального закона Российской Федерации [1].
7.6 Электрооборудование рассматриваемых учреждений следует проектировать в соответствии с требованиями СП 52.13330 и правилами[4].
7.7 Здания центров ресоциализации должны быть оборудованы сетями проводного вещания (радиотрансляция), телефонами и антенными телевизионными сетями, пожарной и охранной сигнализацией, видеонаблюдением (СП 133.13330), системой оповещения и управления эвакуацией, а также фотолюминесцентной эвакуационной системой.
7.8 Установку телефонов целесообразно предусматривать на посту охранника, вахтера, в кабинете директора, в помещениях столовой, комнате фельдшера и кабинете врача, а также в помещениях, определяемых заданием на проектирование.
Жилые помещения для пребывания инвалидов могут быть оборудованы автономными пожарными извещателями, сблокированными с общей системой оповещения и управления эвакуацией.
7.9 При проектировании пожарной, охранной и тревожной сигнализации и средств связи следует руководствоваться нормативными документами [2], [3], [5], СП 5.13130, СП 132.13330 и ГОСТ 12.1.004.
7.10 ФЭС должна быть установлена на всем протяжении пути эвакуации и указывать непрерывный маршрут до эвакуационных выходов.
На края ступени лестницы с помощью специальной накладки устанавливается направляющая контрастная полоса из фотолюминесцентного материала (ФЛМ) с противоскользящим (антискользящим) покрытием из карбида кремния.
Цвет перил должен быть контрастным по цвету по отношению к прилегающим поверхностям стены и пола и быть, как правило, желтым. При этом разрешается направляющую полосу из ФЛМ устанавливать на верхней или боковой, внешней по отношению к маршу, поверхности поручней.
Вдоль стен и на лестничных площадках на полу, на путях эвакуации размещаются направляющие полосы из ФЛМ, которые должны быть неразрывным продолжением путей эвакуации лестниц и пандусов. Направляющие полосы из ФЛМ должны иметь нижнее расположение, то есть крепиться к полу. Дверные проемы эвакуационных и аварийных выходов должны быть обозначены по контуру элементами из ФЛМ за исключением порогов.
Двери эвакуационных и аварийных выходов должны быть оборудованы фотолюминесцентными знаками безопасности. Знаки могут быть установлены непосредственно на самой двери или на поверхности стены прилегающей к двери, а также в комбинированном варианте.
ФЭС следует выполнять в соответствии с требованиями СП 136.13330, ГОСТ Р 12.2.143.
На путях эвакуации размещают направляющие полосы из фотолюминесцентного материала, которые должны быть неразрывным продолжением путей эвакуации, по лестницам и пандусам, ведущим к эвакуационным выходам.
Дверные проемы эвакуационных и аварийных выходов должны быть обрамлены по контуру элементами# фотолюминесцентного материала, а также обозначены фотолюминесцентными знаками безопасности. Знаки устанавливают непосредственно на самой двери или на поверхности стены прилегающей к двери".
Приложение А
(рекомендуемое)
Таблица А.1
|
Помещение |
Количество |
Площадь, м2, при вместимости учреждения, мест |
| ||
|
50 |
100 |
200 |
| ||
|
1 Дневное отделение
|
| ||||
|
Вестибюль - обособленное организованное место для дневного отделения |
1 |
0,8 м2/место |
| ||
|
Комната вахтера |
1 |
6 |
| ||
|
Административно-служебные помещения
|
| ||||
|
Комната социальных работников по приему, обслуживанию граждан дневного отделения |
1 помещение на трех социальных работников |
18 |
| ||
|
Дежурный администратор |
1 |
8 |
| ||
|
Санитарно-гигиенические помещения
|
| ||||
|
Дежурная медсестра |
1 |
10 |
| ||
|
Совмещенный санузел с душем (для инвалида) |
1 |
5,4 |
| ||
|
Досуговое помещение
|
| ||||
|
Холл с телевизором |
1 |
25 |
45,0 |
| |
|
Буфет |
1 |
12 |
| ||
|
Помещение для уборочного инвентаря |
1 |
2 |
| ||
|
2 Ночное отделение
|
| ||||
|
Вестибюль - обособленное организованное место для ночного отделения |
1 |
0,8 м2/место |
| ||
|
Комната охранника |
1 |
8 |
| ||
|
Комната временного приема |
1 |
12,0 |
| ||
|
Санузел (при комнате охранника) |
1 |
3,5 |
| ||
|
Административно-служебные помещения
|
| ||||
|
Комната дежурного персонала |
1 |
8 |
| ||
|
Комната социальных работников по учету, приему и обслуживанию граждан |
2 |
8+8 |
| ||
|
Санузел для персонала, раздельный для мужчин и женщин |
1 |
4,2 |
| ||
|
Комната сестры-хозяйки |
1 |
8 |
| ||
|
Жилая ячейка
|
| ||||
|
Жилая ячейка на 25 мест Жилые комнаты на 5-10-15 мест |
По заданию на проектирование |
5 м2/чел. |
| ||
|
Пятиместная палата в составе жилой ячейки |
То же |
50 м2/чел. |
| ||
|
Прихожая с вешалкой для верхней одежды и галошницей |
На 1 жилую ячейку |
12,0 |
| ||
|
Встроенный шкаф для одежды, белья, личных вещей (индивидуальный) |
В зависимости от вместимости комнаты по заданию на проектирование |
0,6 м2/чел. |
| ||
|
Санузел
|
| ||||
|
Уборная |
1 на жилую ячейку |
1,1*/1,8 |
| ||
|
Умывальная |
То же |
1,1*/1,2 |
| ||
|
Душ |
2 на жилую ячейку |
1,1*/1,8 |
| ||
|
Организованное место в жилой ячейке для дежурного персонала |
То же |
1,8x2,0 |
| ||
|
Жилая ячейка для инвалида-опорника (на 1-м этаже)
|
| ||||
|
Жилая комната |
1 |
12 |
| ||
|
Совмещенный санузел |
1 |
3,6 |
| ||
|
Передняя |
1 |
7,5 |
| ||
|
Столовая (с доставкой готовой продукции)
|
| ||||
|
Зал столовой |
1 |
1,8 м2/место |
| ||
|
Помещение для разогрева пищи (с электроплитой, холодильником, мойкой) Раздаточная |
1 |
30 |
| ||
|
Кладовая и мойка термоконтейнеров |
1 |
8 |
| ||
|
Загрузочная |
1 |
12 |
| ||
|
Бытовая комната для санитарки |
1 |
7 |
7 |
7 |
|
|
3 Сопутствующие помещения общего пользования для дневного и ночного отделений
|
| ||||
|
Административно-служебные помещения
|
| ||||
|
Офис: |
|
|
| ||
|
Комната директора |
1 |
18 |
| ||
|
Комната зам. директора по хозяйственной части |
1 |
10 |
| ||
|
Комната главбуха и бухгалтера |
1 |
10+7 |
| ||
|
Комната социального работника |
2 |
8+8 |
| ||
|
Комната юриста |
1 |
10 |
| ||
|
Помещения санитарно-гигиенические и медико-социальные
|
| ||||
|
Комната фельдшера |
1 |
10 |
| ||
|
Комната медсестры и процедурная |
1 |
8+6 |
| ||
|
Комната миколога |
1 |
12 |
| ||
|
Комната флюорографии |
1 |
40 |
| ||
|
Комната психолога |
1 |
12 |
18 |
| |
|
Санпропускник
|
| ||||
|
Комната санобработки и дезинфекции |
1 |
12,5 |
| ||
|
Раздевальная комната |
1 |
8 |
8 |
12 |
|
|
Грязное отделение (сдача грязного белья, одежды) |
1 |
6,0 |
14 |
| |
|
Дезокамера |
2 |
3,0 |
3,0 |
3,0 |
|
|
Шлюз для сотрудников |
1 |
4,01 |
4,01 |
4,0 |
|
|
Чистое отделение (получение чистого белья и одежды) |
1 |
14,0 |
14,0 |
14,0 |
|
|
Изолятор для заболевшего
|
| ||||
|
Палата со шлюзом |
2 |
7 м2/место |
| ||
|
Санузел: унитаз, раковина для мытья рук |
1 |
3,0 |
| ||
|
душ |
1 |
1,4 |
| ||
|
Комната для санобработки и переодевания |
1 |
10,0 |
| ||
|
Комната врача и медсестры |
1 |
10,0 |
| ||
|
Санузел с раковиной для мытья рук и шлюзом для персонала |
1 |
3,2 |
| ||
|
Помещения бытового обслуживания
|
| ||||
|
Комната обслуживающего персонала |
1 |
8 |
10 |
12 |
|
|
Гладильная комната |
1 |
4 |
| ||
|
Прачечная: |
|
|
|
| |
|
помещение для приема и сортировка грязного белья |
1 |
6 |
8 |
| |
|
помещение чистого белья |
1 |
6 |
| ||
|
стиральная комната |
1 |
12 |
| ||
|
гладильная |
1 |
10 |
| ||
|
Парикмахерская с подсобным помещением |
1 |
10+4 |
| ||
|
Пункт ремонта обуви |
1 на учреждение |
6,0 |
6,0 |
8,0 |
|
|
Телефон-автомат |
То же |
0,9 |
| ||
|
Кладовая уборочного инвентаря |
1 |
4 |
4 |
6 |
|
|
Центральная бельевая с помещением для починки одежды |
1 на учреждение |
8+4 |
10+6 |
| |
|
Группа помещений культурно-массового назначения
|
| ||||
|
Универсальный зал для просмотра кино, организационных лекций, выставок |
1 на учреждение |
50 |
100 |
120 |
|
|
Помещение с компьютером |
1 |
12 |
18 |
20 |
|
|
Комната общения по интересам |
1 |
12 |
18 |
25 |
|
|
Холл-гостиная |
1 на учреждение |
18 |
24 |
39 |
|
|
* В числителе обозначены площади уборной и умывальной комнаты для свободно передвигающихся лиц, в знаменателе обозначены площади уборной и умывальной комнаты для лиц, нуждающихся в посторонней помощи социального работника. | |||||
Приложение Б
(справочное)
Таблица Б.1 - Примерные штатные нормативы центра ресоциализации на 200 мест
|
Должность |
Количество ставок |
|
Директор |
1 |
|
Заместитель директора |
1 |
|
Главный бухгалтер |
1 |
|
Юрист-консультант |
1 |
|
Заведующий хозяйством |
1 |
|
Заведующий складом |
1 |
|
Слесарь-электрик |
1 |
|
Слесарь-сантехник |
1 |
|
Водитель |
2 |
|
Подсобный рабочий |
1 |
|
Инструктор по труду |
1 |
|
Повар |
3 |
|
Врач, зав. ночного отделения |
1 |
|
Психолог |
2 |
|
Миколог |
1 |
|
Медсестра палатная |
5 |
|
Фельдшер дневного отделения |
1 |
|
Сестра хозяйка |
1 |
|
Санитарка-буфетчица |
2 |
|
Санитарка-уборщица |
2 |
|
Социальный работник |
5 |
|
Примечания 1 Примерное штатное расписание центра ресоциализации принято по аналогу действующих учреждений. 2 На одного социального работника приходится 10 маломобильных граждан. | |
Приложение В
(рекомендуемое)
Библиография
[1] Федеральный закон Российской Федерации от 22 июня 2006 г. N 123-ФЗ "Технический регламент о требованиях пожарной безопасности"
[2] Федеральный закон Российской Федерации от 23 ноября 2009 г. N 261-ФЗ "Об энергосбережении и о повышении энергетической эффективности и о внесении изменений в отдельные законодательные акты Российской Федерации"
[3] РД 78.35.003-2002 Инженерно-техническая укрепленность. Технические средства охраны проектирования по защите объектов от преступных посягательств
[4] ПУЭ Правила устройства электроустановок
[5] СО 153-34.21.122-2003 Инструкция по устройству молниезащиты зданий, сооружений и промышленных коммуникаций
[6] СП 41-104-2000 "Проектирование автономных источников теплоснабжения"
[7] Федеральный закон от 29 декабря 2004 г. N 190-ФЗ "Градостроительный кодекс Российской Федерации"
[8] Федеральный закон Российской Федерации от 22 июня 2008 г. N 123-ФЗ "Технический регламент о требованиях пожарной безопасности".


