СП 150.13330.2012 (28.12.2023) ДОМА-ИНТЕРНАТЫ ДЛЯ ДЕТЕЙ-ИНВАЛИДОВ. ПРАВИЛА ПРОЕКТИРОВАНИЯ
Утв. Приказом Федерального агентства по строительству и жилищно-коммунальному хозяйству (Госстрой) от 27 декабря 2012 г. N 136/ГС
Boarding schools (institutions) for disabled children Rules of architectural design
ОКС 01.040.93
ОКП 74.20
Дата введения - 1 июля 2013 года
Предисловие
Цели и принципы стандартизации в Российской Федерации установлены Федеральным законом от 27 декабря 2002 г. N 184-ФЗ "О техническом регулировании", а правила разработки - Постановлением Правительства Российской Федерации от 19 ноября 2008 г. N 858 "О порядке разработки и утверждения сводов правил".
Сведения о своде правил
1 ИСПОЛНИТЕЛИ ООО "Институт общественных зданий" и ОАО "ЦНИИЭП жилища"
2 ВНЕСЕН Техническим комитетом по стандартизации ТК 465 "Строительство"
3 ПОДГОТОВЛЕН к утверждению Управлением градостроительной политики
4 УТВЕРЖДЕН Приказом Федерального агентства по строительству и жилищно-коммунальному хозяйству (Госстрой) от 27 декабря 2012 г. N 136/ГС и введен в действие с 1 июля 2013 г.
5 ЗАРЕГИСТРИРОВАН Федеральным агентством по техническому регулированию и метрологии (Росстандарт)
Информация об изменениях к настоящему своду правил публикуется в ежегодно издаваемом информационном указателе "Национальные стандарты", а текст изменений и поправок - в ежемесячно издаваемых информационных указателях "Национальные стандарты". В случае пересмотра (замены) или отмены настоящего свода правил соответствующее уведомление будет опубликовано в ежемесячно издаваемом информационном указателе "Национальные стандарты". Соответствующая информация, уведомление и тексты размещаются также в информационной системе общего пользования - на официальном сайте Госстандарта в сети Интернет
Введение
Настоящий свод правил разработан с учетом: Федерального закона от 30 декабря 2009 г. N 384-ФЗ "Технический регламент о безопасности зданий и сооружений", Федерального закона от 29 декабря 2004 г. N 190-ФЗ "Градостроительный кодекс Российской Федерации", Федерального закона от 22 июня 2006 г. N 123 "Технический регламент о требованиях пожарной безопасности", Федерального закона от 23 ноября 2009 г. N 261-ФЗ "Об энергосбережении и о повышении энергетической эффективности и о внесении изменений в отдельные законодательные акты Российской Федерации".
Свод правил разработан в развитие положений СП 59.13330 и в соответствии с принципами Конвенции ООН о правах инвалидов, подписанной Российской Федерацией в сентябре 2008 г., содержит рекомендательные нормы и правила по проектированию среды, адаптированной для инвалидов и других маломобильных групп населения.
В своде правил учтены опыт исследований в данной области отечественных и зарубежных специалистов, а также разработки различных авторов и творческих коллективов. В тексте учтены предложения и замечания специалистов Центральных правлений ВОИ, ВОС и ВОГ, НИИ экологии человека и гигиены окружающей среды им. А.Н. Сысина.
При подготовке использованы материалы НИР Ивановгражданпроект, СибЗНИИЭП, ОАО "ЦНИИЭП жилища", ГУП МНИИТЭП; нормативные, обзорные и рекомендательные документы, разработки прошлых лет, данные зарубежных источников и другие материалы.
Редакция выполнена ООО "Институт общественных зданий" (руководитель работы - канд. архит., проф. А.М. Гарнец, ответственный исполнитель - канд. архит. Т.А. Исаева, компьютерная графика - канд. техн. наук А.И. Цыганов, инж. И.Р. Домрачева, исполнители - ст. науч. сотр. Л.В. Сигачева, инж. Н.И. Чернозубова, архит. Н.В. Пронькина) при участии ОАО "ЦНИИЭП жилища" (канд. архит., проф. А.А. Магай, канд. архит. Н.В. Дубынин); ФМБА России, "Федеральное медико-биологическое агентство России" (д-р мед. наук Н.Ф. Дементьева).
1.1 Настоящий свод правил устанавливает правила проектирования зданий домов-интернатов (далее - дома-интернаты) для стационарного проживания детей-инвалидов с сохранным интеллектом и физическими недостатками (от 3 до 16 лет) и с нарушением интеллекта с различной инвалидностью (от 4 до 18 лет).
1.2 Требования свода правил распространяются на проектирование новых объектов, реконструкцию и модернизацию существующего фонда.
В настоящем своде правил приведены ссылки на следующие нормативные документы:
ГОСТ Р 50571.28-2006 Электроустановки зданий. Часть 7-710. Требования к специальным электроустановкам. Электроустановки медицинских помещений
ГОСТ 12.1.004-91 ССБТ Пожарная безопасность. Общие требования
ГОСТ Р 12.2.143-2009 Системы стандартов безопасности труда. Системы фотолюминесцентные эвакуационные. Требования и методы контроля
ГОСТ 30494-96 Здания жилые и общественные. Параметры микроклимата в помещениях
СП 2.13130.2012 "Системы противопожарной защиты. Обеспечение огнестойкости объектов защиты"
СП 4.13130.2013 "Системы противопожарной защиты. Ограничение распространения пожара на объектах защиты"
СП 5.13130.2009 "Системы противопожарной защиты. Установки пожарной сигнализации и пожаротушения автоматические. Нормы и правила проектирования" с Изменением N 1
СП 30.13330.2012 "СНиП 2.04.01-85* Внутренний водопровод и канализация зданий"
СП 42.13330.2011 "СНиП 2.07.01-89* Градостроительство. Планировка и застройка городских и сельских поселений"
СП 52.13330.2011 "СНиП 23-05-95* Естественное и искусственное освещение"
СП 54.13330.2011 "СНиП 31-01-2003 Здания жилые многоквартирные"
СП 59.13330.2012 "СНиП 35-01-2001 Доступность зданий и сооружений для маломобильных групп населения"
СП 60.13330.2012 "СНиП 41-01-2003 Отопление, вентиляция и кондиционирование"
СП 113.13330.2023 "СНиП 21-02-99* Стоянки автомобилей"
СП 118.13330.2012 "СНиП 31-06-2009 Общественные здания и сооружения" с Изменением N 1
СП 132.13330.2011 "Обеспечение антитеррористической защищенности зданий и сооружений. Общие требования проектирования"
СП 133.13330.2011 "Сети проводного радиовещания и оповещения зданий и сооружений"
СП 145.13330.2012 "Дома-интернаты. Правила проектирования"
СП 147.13330.2012 "Здания для учреждений социального обслуживания. Правила реконструкции"
СанПиН 2.1.2.2564-09 Гигиенические требования к размещению, устройству, оборудованию, содержанию объектов организаций здравоохранения и социального обслуживания, предназначенных для постоянного проживания престарелых и инвалидов, санитарно-гигиеническому и противоэпидемическому режиму их работы
СанПиН 2.1.3.2630-10 Санитарно-эпидемиологические требования к организациям, осуществляющим медицинскую деятельность
СанПиН 2.2.1/2.1.1.1076-01 Гигиенические требования к инсоляции и солнцезащите помещений жилых и общественных зданий и территорий
СанПиН 2.4.1201-03 Гигиенические требования к устройству, содержанию, оборудованию и режиму работы специализированных учреждений для несовершеннолетних, нуждающихся в социальной реабилитации с Изменением N 1
СанПиН 2.1.4.3049-13 Санитарно-эпидемиологические требования к устройству, содержанию и организации режима работы в дошкольных образовательных организациях
Примечание - При пользовании настоящим сводом правил целесообразно проверить действие ссылочных стандартов и классификаторов в информационной системе общего пользования - на официальном сайте национальных органов Российской Федерации по стандартизации в сети Интернет или по ежегодно издаваемому информационному указателю "Национальные стандарты", который опубликован по состоянию на 1 января текущего года, и по соответствующим ежемесячно издаваемым информационным указателям, опубликованным в текущем году. Если ссылочный документ заменен (изменен), то при пользовании настоящим сводом правил следует руководствоваться замененным (измененным) документом. Если ссылочный документ отменен без замены, то положение, в котором дана ссылка на него, применяется в части, не затрагивающей эту ссылку.
Основные термины и определения, а также сокращения в тексте приняты в соответствии с СП 145.13330, СП 54.13330 и СП 59.13330, кроме того использованы следующие термины:
3.1 абилитация: Медико-социальные мероприятия по отношению к инвалидам с детства, направленные на адаптацию их к жизни.
3.2 дом-интернат для детей-инвалидов: Организация стационарного содержания детей с физическими недостатками и с сохранным интеллектом (с 3 до 16 лет), детей с врожденной либо развившейся с раннего возраста инвалидностью, нуждающихся в реабилитации, и детей с нарушением интеллекта с различной инвалидностью (с 4 до 18 лет).
3.3 комната позиционирования: Медицинское помещение для детей-инвалидов. Комната позиционирования используется для разнообразных терапевтических поз-укладок в зависимости от медицинских показаний ребенка-инвалида.
3.4 сенсорная комната: Медицинское реабилитационное помещение, предназначенное для психического и физического развития нуждающихся в реабилитации детей с физическими и умственными недостатками. Сенсорная комната оснащается аппаратурой с набором различных управляемых переключателей, сенсорной панелью, стимулирующей двигательные, визуальные и акустические эмоции.
3.5 реабилитация: Система мероприятий, направленных на устранение или создание возможно полной компенсации ограничений жизнедеятельности.
4.1 Здания учреждений домов-интернатов для детей-инвалидов рассчитаны на проживание различных возрастных групп детей:
с сохранным интеллектом, имеющих физические недостатки, в возрасте от 3 до 16 лет в соответствии с таблицей А.1;
с нарушением интеллекта в возрасте от 4 до 18 лет в соответствии с таблицей А.2.
4.2 В учреждениях для детей-инвалидов следует предусматривать необходимый набор помещений: жилых, служебно-бытовых, хозяйственных, административных, медицинских, культурно-массовых и досугового назначения, а также создавать условия для обеспечения обстановки, максимально приближенной к домашней, сочетая ее с необходимым медицинским обслуживанием.
Структура учреждений и взаимосвязь помещений приведены на рисунке Г.1, состав и площади помещений приведены в таблицах В.1 - В.7.
В учреждениях домов-интернатов для детей-инвалидов предусматривается стационарное или пятидневное в неделю проживание детей с сохранным интеллектом (от 3 до 16 лет) и детей с нарушением интеллекта (с 4 до 18 лет).
4.3 Вместимость учреждений для детей-инвалидов рекомендуется принимать 100 - 200 мест в соответствии с таблицами Б.1 и Б.2 приложения Б.
4.4 При проектировании домов-интернатов для детей-инвалидов следует учитывать требования к зданиям общественного назначения согласно СП 118.13330 и СП 59.13330, [1], [2], а также следует соблюдать гигиенические требования к устройству и организации режима работы в домах-интернатах для детей-инвалидов в соответствии с СанПиН 2.1.4.3049.
4.5 В домах-интернатах для детей-инвалидов противопожарную защиту следует обеспечивать в соответствии с требованиями СП 4.13130, СП 5.13130. По функциональной пожарной опасности интернаты относятся к классу Ф1.1. Наличие фотолюминесцентной эвакуационной системы (ФЭС) в домах-интернатах для детей-инвалидов указывается в задании на проектирование.
4.6 Оптимальную этажность домов-интернатов для детей-инвалидов рекомендуется принимать 1 - 2 этажа, при стесненных условиях - до 4 этажей.
При числе этажей более двух учреждения для детей-инвалидов должны быть оборудованы лифтами (по расчету), в том числе и коечными. Число лифтов в каждом конкретном случае определяется заданием на проектирование.
В интернатах для детей-инвалидов следует предусматривать кроме лифтов и пандусы. Уклон пандуса на путях передвижения инвалидов на колясках внутри и снаружи здания следует принимать не более 1:6 согласно СП 42.13330, СанПиН 2.1.4.3049.
Число лифтов для спасения МГН в исполнении "для пожарных подразделений" допускается определять расчетом. Расчеты должны соответствовать динамике опасных факторов пожара и их влиянию на МГН. В случае невозможности устройства в здании лифтов соответствующего исполнения, для спасения МГН следует создавать зону безопасности на этаже размещения палат для лежачих пациентов. Для создания зоны безопасности на каждом этаже следует выделять одну из палат для лежачих пациентов. Зону безопасности следует обустраивать в соответствии с требованиями СП 2.13130, как для пожарного отсека.
4.7 В зависимости от возраста и тяжести заболевания принцип размещения групп детей по этажам должен подчиняться следующим правилам:
лежачие, обездвиженные дети размещаются не выше первого этажа;
дети до 6 лет с физическими недостатками - не выше второго этажа.
В учреждении для детей-инвалидов с поражением опорно-двигательного аппарата расчетное число колясочников в отделении следует принимать 20 - 30% вместимости отделения. В отделении для детей с нарушением интеллекта, передвигающихся с трудом, число колясочников рекомендуется принимать 2 - 3% вместимости отделения. Общую численность колясочников следует уточнять при составлении задания на проектирование.
4.8 Жилая площадь в домах-интернатах для детей-инвалидов принимается 4 м2/место для дошкольных групп и 6 м2/место для остальных групп согласно таблицам В.1 и В.2.
4.9 Высоту помещений от пола до потолка в домах-интернатах для нового строительства следует принимать 3 м; высоту общественных помещений, кроме столовой, следует принимать не менее 3 м согласно СП 118.13330.
4.10 Следует учитывать требования к организации инсоляции согласно СанПиН 2.1.3.2630.
4.11 Необходимость решений по проектированию учреждений гражданской обороны следует принимать в каждом конкретном случае заданием на проектирование.
4.12 Рекомендуется в доме-интернате для детей-инвалидов, кроме лежачих обездвиженных, предусматривать зал лечебной физкультуры площадью 60 - 70 м2 с кладовой инвентаря 12 м2 в соответствии с СанПиН 2.1.2.2564.
4.13 Организация внутреннего и внешнего пространства, учитывающая особенности детей-инвалидов, проектируется исходя из обязательных минимально допустимых параметров комфортного проживания.
4.14 Оборудование помещений для детей-инвалидов следует принимать в соответствии с антропологическими и эргонометрическими данными детей, имеющих различные нарушения физического и умственного развития. Параметры помещений для детей с физическими недостатками (нарушением зрения, слуха, речи) принимаются такими же, как и для помещений, рассчитанных на здоровых детей, в соответствии с СанПиН 2.4.1.3049.
На основе антропологических и эргонометрических данных детей-инвалидов жилые помещения следует принимать не менее, м2:
спальные комнаты для детей-инвалидов с физическими недостатками - 4,0; для слепых (с остротой зрения 0 - 0,05) - 4,5;
спальные комнаты для детей-инвалидов лежачих - 6,0;
комнаты дневного пребывания - 3;
классные комнаты в жилых ячейках - 2,5.
4.15 В составе жилой ячейки для детей с физическими недостатками, для старшеклассников следует предусматривать дополнительно комнаты для индивидуальных занятий площадью на одного воспитанника не менее 1,5 м2/место, а для детей-инвалидов с последствиями полиомиелита и церебральных параличей - не менее 1,8 м2/место.
4.16 При реконструкции зданий для домов-интернатов следует учитывать требования настоящего свода правил, требования СП 147.13330.
5.1 Дома-интернаты для детей-инвалидов следует размещать в зеленой зоне селитебной территории в соответствии с требованиями нормативных документов, предъявляемыми к планировке и застройке домов-интернатов для детей инвалидов (СП 42.13330, СП 118.13330, а также СанПиН 2.1.4.3049) [3].
5.2 Площадь земельного участка учреждений для детей-инвалидов следует принимать в соответствии с таблицами Б.1, Б.2.
При строительстве нового здания дома-интерната для детей-инвалидов в районах с стесненной застройкой площадь земельного участка может быть уменьшена, но не более чем на 20%.
5.3 На участке следует разграничивать его территорию на площадки для групп детей с сохранным интеллектом и детей умственно отсталых:
учебно-производственной зоны;
зоны отдыха (площадки для встречи с родителями, площадки, оборудованные скамейками и столами, цветниками, прогулочные дорожки, лужайки для игр);
хозяйственной зоны.
Площадь участка и состав площадок для различных групп следует принимать в соответствии с таблицами Б.1 и Б.2 и СП 42.13330.
5.4 На территории участка следует предусматривать два самостоятельных въезда, один из въездов должен быть хозяйственным. При въезде на участок необходимо предусматривать стоянку легковых автомобилей в соответствии с требованиями СП 113.13330. Количество стояночных мест устанавливается в задании на проектирование, но должно быть не менее трех машино-мест.
При размещении парковочных мест следует предусматривать места для хранения (стоянки) электромобилей, оборудованные зарядными устройствами, в соответствии с требованиями СП 113.13330. Расчетную потребность парковочных мест, оборудованных зарядными устройствами, следует устанавливать в соответствии с заданием на проектирование, но не менее установленных СП 118.13330.
Для пожарных автомобилей должен быть обеспечен круговой проезд по дороге с твердым покрытием.
5.5 Озеленение участка следует принимать не менее 40% площади участка.
5.6 Участок здания учреждения для детей-инвалидов необходимо ограждать оградой высотой 2 м с запирающимися калиткой и воротами.
5.7 При проектировании протяженных (блокированных) зданий должны быть предусмотрены сквозные проезды шириной в свету не менее 4,25 м.
5.8 На участке дома-интерната для детей с нарушением опорно-двигательного аппарата уклон дорожек и тротуаров предусматривается не более 5% (1:20), ширина дорожек и тротуара не менее 1,6 м по СанПиН 2.4.1.3049.
6.1.1 Приемно-карантинное отделение следует проектировать с отдельным самостоятельным выходом на участок. Приемное отделение должно иметь непосредственную связь с карантинным отделением.
Площадь на одно приемно-смотровое место приведена в таблице 1.
|
Помещения |
Площадь, м2 |
|
Холл (ожидальная) с тамбуром |
10 |
|
Палаты на 1 - 2 места |
Не менее 10 (7 м2/на койку) |
|
Санузел с умывальником в шлюзе |
3 |
|
Комната для санобработки и переодевания |
12 |
|
Место для хранения каталок |
6 |
|
Кабинет врача, медсестры |
10 |
|
Буфетная |
12 |
|
Комната сестры-хозяйки |
10 |
В карантинном отделении число мест ориентировочно принимается 3% общего числа детей-инвалидов в доме-интернате.
6.1.2 Окна в карантинном отделении следует проектировать из небьющегося стекла. Высота подоконника проектируется не менее 0,9 м от уровня пола. На окнах необходимо предусмотреть фрамуги или форточки, высоту размещения затворов фрамуг и форточек следует принимать от уровня пола 2,0 - 2,2 м.
6.1.3 Дома-интернаты для детей-инвалидов с сохранным интеллектом, детей умственно отсталых формируются из жилых отделений, жилых групп и жилых ячеек, помещений медицинского, хозяйственного и бытового назначения. При проектировании рекомендуется предусматривать вариант решения учреждения (многопрофильного) с блокировкой жилых отделений для детей с сохранным интеллектом и для умственно отсталых детей при четком разграничении отделений. Планировку здания необходимо решать исходя из функциональной структуры учреждения, с единым блоком медицинских, административных, хозяйственных, культурно-массовых помещений и столовой. Состав и площадь помещений следует принимать в соответствии с таблицами В.1 - В.7.
Пути эвакуации детей из домов-интернатов следует рассчитывать по установленным или апробированным методикам с учетом динамики опасных факторов пожара ГОСТ 12.1.004 и психофизиологических возможностей, детей находящихся в доме-интернате.
6.1.4 В состав домов-интернатов для детей-инвалидов входят следующие основные группы помещений:
вестибюль (таблица В.5);
приемно-карантинное отделение (таблица 1);
жилые отделения для умственно отсталых детей (таблица В.2);
жилые отделения для детей с сохранным интеллектом, имеющих физические нарушения (таблица В.1);
общественные помещения:
учебной и профессиональной подготовки и трудового обучения (таблица В.3);
медицинского обслуживания (таблица В.4);
административно-бытового назначения (таблица В.5);
столовой и производственных помещений кухни (таблица В.6);
культурно-массового обслуживания (таблица В.7);
хозяйственного назначения;
помещения проживания персонала (при загородном размещении дома-интерната для детей-инвалидов).
6.1.5 Все основные группы помещений учреждений для детей-инвалидов должны быть, как правило, функционально изолированы и взаимосвязаны через коммуникационные пространства. На практике обеспечить всем группам помещений необходимую изоляцию достаточно сложно. Поэтому допускается некоторые группы помещений, кроме жилых, предусматривать проходными.
Функционально-планировочную организацию домов-интернатов для детей-инвалидов следует проектировать с жилыми отделениями, которые рекомендуется соединять с блоком общественных помещений короткими (6 м) теплыми переходами.
6.2.1 Жилые ячейки для детей-инвалидов с физическими недостатками, но с сохранным интеллектом следует дифференцировать в зависимости от возраста и степени инвалидности в соответствии с таблицей В.1 и рисунком Г.2.
6.2.2 Площадь помещений в жилых ячейках принимается из расчета на одного проживающего не менее:
для спальных комнат - 4 м2;
для спальных комнат лежачих детей - 6 м2;
для комнат дневного пребывания (комнат отдыха) - 3 м2;
для классных комнат в учебно-жилых ячейках - 2,5 м2, но не менее 12 м2;
для гардеробных - 1,0 м2;
для санитарно-гигиенических помещений - 1,0 м2;
для помещений сушки одежды - 0,35 м2;
для кладовых - 0,5 м2.
6.2.3 Жилую ячейку типа 1а следует предусматривать для детей-инвалидов в возрасте 3 - 7 лет. Жилая ячейка должна включать жилые комнаты на 4 - 6 человек, буфетную, комнату для игр, раздевальную, комнату воспитателя и санитарно-гигиенические помещения в соответствии с рисунком Г.3, таблица В.1.
6.2.4 Жилую ячейку типа 1б следует предусматривать для детей-инвалидов подросткового возраста, подготовительной группы к общеобразовательным школьным занятиям в возрасте 6 - 7 лет и группы детей профессионального обучения 8 - 16 лет.
В жилой ячейке должны быть жилые комнаты на 2 - 3 - 4 человека, которые представлены на рисунке Г.2, таблица В.1.
В составе жилой ячейки типа 1б (рисунок Г.2) следует предусматривать классы для обучающихся детей, состав и площади которых представлены в таблице В.3.
Помещения жилой ячейки для детей с нарушением опорно-двигательного аппарата следует проектировать с учетом функциональных зон, обеспечивающих подъезд ребенка-инвалида в кресле-коляске к любой точке помещения. Зону размещения кресла-коляски следует принимать шириной 0,9 м и длиной 1,5 м.
6.2.5 Жилая ячейка типа 1в (рисунки Г.3 и Г.4, таблица В.1) предусматривается для лежачих детей, имеющих физические недостатки, не способных к передвижению, физически обездвиженных. Жилые комнаты следует рассчитывать на возрастные группы от 3 до 7 лет и от 8 до 16 лет. Вместимость жилых комнат следует проектировать на 6 - 8 человек.
Для удобства наблюдения за проживающими в жилых ячейках типа 1в шлюз-передняя не предусматривается. В ванной комнате следует предусмотреть зону для мытья клеенок. Состав и площади помещений жилой ячейки типа 1в представлены в таблице В.1.
6.2.6 Жилые ячейки для детей с нарушением интеллекта следует дифференцировать в зависимости от возраста и инвалидности по таблице В.2 и рисунку Г.5:
для младшей группы - тип 2а;
для средней и старших групп - тип 2б;
для лежачих детей-инвалидов - тип 2в.
6.2.7 Жилую ячейку типа 2а (рисунок Г.6) следует предусматривать для детей младших групп в возрасте 4 - 8 лет с нарушенным интеллектом. В жилых ячейках типа 2а следует предусматривать: комнату воспитателя, игровую-столовую, жилые комнаты на 4 - 6 чел. Схема планировки жилой ячейки типа 2а представлена на рисунках Г.3, Г.6. Состав и площади помещений жилой ячейки типа 2а представлены в таблице В.2.
6.2.8 Жилая ячейка типа 2б рассчитывается для детей в возрасте 8 - 12 лет и 12 - 18 лет, свободно или с трудом передвигающихся, способных к обучению. Жилые комнаты принимаются вместимостью на 2 - 3 - 4 чел. Схема планировки жилой ячейки представлена на рисунках Г.4 и Г.5. Состав и площади помещений жилой ячейки типа 2б принимаются согласно таблице В.2.
6.2.9 В составе помещений жилой ячейки типа 2б для детей с нарушением интеллекта 8 - 12 лет следует предусматривать учебные помещения (классы) исходя из подготовительной работы с ребенком по овладению им трудовых навыков для дальнейшего обучения в учебно-производственных мастерских (рисунок Г.7).
6.2.10 Жилую ячейку типа 2в следует предусматривать для детей-инвалидов с нарушением интеллекта, не способных к передвижению, обездвиженных, лежачих (таблица В.2). Она состоит из жилых комнат на 6 - 8 чел., при которых размещаются ванна с зоной для мытья клеенок, буфетная и кладовые для уборочного инвентаря и хозяйственные шкафы. В жилой ячейке типа 2в возможно размещение двух спален, вариант такого решения представлен на рисунках Г.5 и Г.6.
Состав и площади помещений жилой ячейки типа 2в представлены в таблице В.2.
6.2.11 Раздевальные помещения для жилых ячеек типов 2а и 2б следует оборудовать шкафами с подсушкой одежды и обуви.
В спальных помещениях жилых ячеек следует предусматривать встроенные шкафы для хранения запаса чистого белья и спальных принадлежностей (0,15 м2/чел.). Схемы решения жилых ячеек типа 2 представлены на рисунке Г.5.
6.2.12 На каждые две жилые ячейки обучаемых детей-инвалидов рекомендуется устраивать одну неотапливаемую веранду площадью 1 м2/чел.
6.3.1 Для занятий детей с нарушением интеллекта подготовительных групп обучение предусматривается для среднего и старшего возраста детей в учебно-производственных мастерских, таблица В.3.
6.3.2 Учебная группа помещений для 1-го класса состоит из помещений для индивидуальных занятий и комнаты для игр, выполняющей функцию рекреационного помещения для отдыха во время занятий. Площади помещений приведены в таблицах В.1 и В.2.
6.3.3 Учебная группа помещений для воспитанников II - IV классов состоит из классных комнат, мастерских для трудового обучения, рекреаций и санитарных узлов, площади которых представлены в таблице В.3.
6.3.4 Учебная группа помещений для средних и старших классов состоит из учебных классов, кабинетов лабораторий, лаборантских при них, рекреационных помещений и санитарных узлов.
Учебные кабинеты и лаборатории для средних и старших классов могут быть использованы для кружковых и индивидуальных занятий в неурочное время.
6.3.5 Лаборантские предусматриваются при каждом кабинете, а при лабораториях - по каждому предмету (химии, физике, биологии). Лаборантские являются местом для размещения отраслевой библиотеки, информационно-пленочных материалов, частичного хранения средств обучения, наглядных пособий. Состав помещений учебной и профессиональной подготовки для детей с сохранным интеллектом представлен в таблице В.3.
6.3.6 Рекреационные помещения проектируются из расчета не менее 1 м2 на одного учащегося с учетом их универсального использования для занятий кружков, секций, игр (в том числе настольного тенниса).
6.3.7 Площадь класса принимается из расчета 2 м2 на человека. Классы оборудуются одноместными столами для детей, доской школьного типа, однотумбовым столом для воспитателя, шкафами для хранения наглядных пособий и тетрадей.
6.3.8 В классах необходимо предусмотреть сквозное или угловое проветривание, которое допускается осуществлять через рекреационное помещение или коридор.
Площадь застекленной поверхности окон в классах составляет 1/5 - 1/6 площади пола; 50% окон следует устраивать с фрамугами или форточками. На столы обучающихся детей свет должен падать слева (СанПиН 2.2.1/2.1.1.1076).
6.3.9 Учебные кабинеты для детей с уменьшенным нарушением интеллекта (ручного труда, домоводства, агротехники и т.п.) должны состоять из двух помещений: собственно помещения для занятий и комнаты для хранения инструмента и запасного материала.
6.3.10 Для производственной практики обучающихся предусматриваются учебно-производственные мастерские (далее - УПМ). Учебно-производственные мастерские следует проектировать с учетом возраста детей.
Возраст обучаемых детей рекомендуется следующий:
дошкольная группа - 4 - 8 лет;
подготовительная группа к трудовому обучению - 8 - 12 лет;
группа трудового обучения - 12 - 18 лет;
диагностическая группа - 4 - 18 лет.
Возраст необучаемых детей:
младшая группа - 4 - 8 лет;
средняя группа - 8 - 12 лет;
старшая группа - 12 - 18 лет.
6.3.11 Для детей с сохранным интеллектом УПМ профессиональной подготовки включают учебные классы, учебные кабинеты, мастерские. Взаимосвязь учебно-производственных помещений профессиональной подготовки должна осуществляться через коридоры и рекреации при обеспечении изолированности всех учебных кабинетов и мастерских.
Площадь учебных помещений рассчитывается для воспитанников I - IV классов 1,7 м2/место; V - IX (или V - XI) классов - 2,2 м2/место.
6.3.12 Для самостоятельно передвигающихся детей с нарушением интеллекта помещения УПМ принимаются из расчета от 3 до 8 м2/место.
Высоту помещений для учебно-производственных мастерских рекомендуется принимать 4,2 м.
6.3.13 При УПМ на каждую мастерскую площадью 90 м2 предусматриваются: комната организатора работ (8 м2), склады заготовок (12 м2); складские помещения должны быть связаны с мастерскими.
6.4.1 Учебно-производственные мастерские детского дома-интерната для обучаемых детей с нарушением интеллекта состоят из классов, кабинета домоводства, производственных мастерских, кабинета заведующего учебной частью, методического кабинета в соответствии с таблицей В.3, рисунок Г.7.
Помещение по ремонту аппаратуры и бытовой техники УПМ представлены на рисунке Е.7.
6.4.2 В домах-интернатах для обучаемых детей с нарушением интеллекта старшей группы в целях осуществления лечебно-трудовой и активирующей терапии необходимо создание лечебно-трудовых мастерских (далее - ЛТМ), таблица В.3.
Для детей-инвалидов 16 - 18 лет следует проектировать ЛТМ, предусматривающие обучение доступным профессиям. Выбор профиля мастерских уточняется заданием на проектирование в зависимости от контингента детей, а также конкретных условий и возможностей места строительства.
6.4.3 Площадь помещений мастерских определяется из условий размещения станочного оборудования, стола инструктора и рабочих мест обучаемых. При этом следует учитывать, что расстояние между рядами (проход вдоль мастерской) должно быть не менее 90 см.
6.4.4 В мастерских для детей-инвалидов ширина основного прохода 1,5 м, расстояние между столами в ряду, предназначенными для детей-инвалидов, должно быть не менее 1,5 м.
6.4.5 Лечебно-трудовые мастерские следует предусматривать для детей-инвалидов старших групп - воспитанников с сохранным интеллектом и нарушенным интеллектом, способных к частичному самообслуживанию. Вместимость и профиль лечебно-трудовых мастерских следует определять заданием на проектирование и в соответствии с таблицей В.3.
6.5.1 Медицинские помещения предназначаются для лечебных и коррекционно-оздоровительных мероприятий. Их следует проектировать общими на весь дом-интернат для детей-инвалидов.
Общие на здание медицинские помещения домов-интернатов для детей-инвалидов состоят из кабинетов врачей, врачей-консультантов, кабинета медсестры, физиотерапевтического кабинета, общеклинической лаборатории, аптеки, кабинета ЛФК, сенсорной и позиционирующей комнат, изолятора. Состав и площади помещений представлены в таблице В.4.
При планировке лечебных помещений следует учитывать, что умственно отсталые дети на процедуры приходят группами до 15 чел. в сопровождении персонала, процедуры происходят в открытых просматриваемых помещениях и залах. Применение закрытых кабин запрещается.
6.5.2 Медицинские помещения изолятора предназначены для поступивших детей, нуждающихся в абилитации. Состав помещений и их площади представлены в таблице В.4. Изолятор следует проектировать рядом с приемно-карантинным отделением с отдельным выходом из здания.
6.6.1 В состав служебно-бытовых помещений входят следующие помещения: вестибюль с гардеробом и санузлом, со шлюзом и раковиной для мытья рук, приемное отделение, комната для посетителей, помещение инженерно-технического персонала, комната отдыха персонала, кабинет директора, заместителя директора по хозяйственной части, бытовые помещения персонала с комнатой отдыха, кладовые сезонной одежды и обуви, мебели и инвентаря, комната бухгалтерии, архив, парикмахерская, мастерская текущего ремонта оборудования и инвентаря, хозяйственный склад, радиоузел, АТС, прачечная-постирочная с группой помещений, площади которых следует принимать по таблице В.5.
6.6.2 Прачечную-постирочную следует проектировать из расчета ее работы в две смены производительностью 1 кг белья в сутки на одно место для отделений детей, имеющих отклонение в развитии (с сохранным интеллектом и умственно отсталых); 2 кг белья в сутки на одно место для лежачих детей, имеющих отклонение в развитии.
6.6.3 В состав прачечной-постирочной входят: помещение для сортировки грязного белья с постирочной, дезинфицирующее отделение, помещение для хранения дезинфекционных средств и приготовления растворов, центральная бельевая; комната для хранения одежды, предназначенной на списание, помещения для персонала в соответствии с таблицей В.5.
6.7.1 В домах-интернатах для детей-инвалидов предусматриваются помещения питания:
буфетная с мойкой на жилую ячейку, в которую из производственных помещений кухни-столовой для категории детей, передвигающихся с трудом, лежачих питание доставляется в бачках и термосах в помещение буфетной жилой ячейки. Питание происходит в жилой комнате. В жилых ячейках для обездвиженных детей помимо буфетных проектируются шкафы для хозяйственных принадлежностей и место для тары, площадь которых следует принимать в соответствии с таблицами В.1 и В.2;
столовая с обеденным залом (пищеблок), рассчитанная в целом на учреждение. Столовая работает на сырье. Обеденный зал проектируется на детей, самостоятельно передвигающихся. Состав и площади столовой и обеденного зала следует принимать в соответствии с таблицей В.6, СанПиН 2.1.3.2630, СП 59.13330.
6.7.2 Площадь обеденного зала столовой следует принимать для детей-инвалидов младших групп 1,4 м2/место, для детей-инвалидов средних и старших групп - 2,4 м2/место. При числе более 150 мест следует предусматривать несколько залов (два-три). Рядом с обеденным залом для персонала рекомендуется предусматривать обеденный зал площадью не менее 14 - 16 м2.
6.8.1 Зальные помещения следует предусматривать для детей с сохранным интеллектом и умственно отсталых обучаемых детей-инвалидов. Зальные помещения включают спортивный и актовый залы, фойе. Состав и площади зальных помещений представлены в таблице В.7.
6.8.2 Площадь актового зала проектируется из расчета размещения в нем 75% воспитанников при 0,8 м2 площади на одно место в соответствии с таблицей В.7.
6.9.1 Состав и площади помещений культурно-массового назначения рекомендуется проектировать в соответствии с таблицей В.7.
6.9.2 Для детей-инвалидов, нуждающихся в улучшении координации движения, проектируется зал ритмики (занятия под музыку) площадью из расчета 5 м2 на воспитанника.
6.9.3 Площади кинопроекционной и радиоузла следует принимать в соответствии с требованиями СП 59.13330.
6.9.4 В доме-интернате для детей-инвалидов рекомендуется проектировать библиотеку, включающую читальный зал (2,5 м2/место), книгохранилище площадью не менее 18 м2 и информационно-справочную комнату площадью не менее 12 м2. Число мест в читальном зале рекомендуется принимать 10% вместимости дома-интерната.
7.1.1 В домах-интернатах для детей-инвалидов следует предусматривать хозяйственно-питьевое, противопожарное и горячее водоснабжение, а также канализацию и водостоки, проектируемые в соответствии с СП 30.13330 и СП 118.13330.
7.1.2 На сети хозяйственно-питьевого водопровода следует предусматривать отдельный кран для присоединения шланга (рукава) в целях возможности его использования в качестве первичного устройства в жилых ячейках пожаротушения на ранней стадии.
Шланг должен обеспечивать возможность подачи воды в любую точку жилой ячейки с учетом длины струи 3 м, быть длиной не менее 15 м, диаметром 19 мм и оборудован распылителем.
7.1.3 В кранах умывальников и душевых жилых ячеек следует устанавливать термостатические регуляторы, исключающие подачу горячей воды температурой более 50 °C.
7.1.4 Нагревательные приборы в помещениях для пребывания детей должны иметь ограждения, обеспечивающие нормальную конвекцию воздуха и удобство чистки приборов.
7.1.5 В районах без централизованных инженерных сетей допускается в одно-, двухэтажных зданиях домов-интернатов на 50 мест проектировать неканализованные уборные (люфт-клозеты), предусматриваемые в жилых ячейках в пределах отапливаемой части здания в соответствии с СП 118.13330, СП 60.13330.
7.2.1 В домах-интернатах отопление, вентиляцию, расчетные параметры воздуха и кратность воздухообмена в помещениях следует принимать согласно СП 60.13330.
Необходимость устройства кондиционирования воздуха устанавливается соответствующими документами. В помещениях, где длительное время работает кондиционер, нахождение детей недопустимо.
7.2.2 Для помещений с нормируемой вытяжкой компенсацию удаляемого воздуха следует предусматривать как за счет поступления наружного воздуха, так и за счет перетекания воздуха из других помещений жилой ячейки.
Вытяжную вентиляцию жилых комнат и жилых ячеек следует предусматривать через вытяжные каналы кухонь, уборных, ванных, сушильных шкафов.
Если метеорологические условия и чистота воздуха не могут быть обеспечены вентиляцией с естественным побуждением, следует предусматривать вентиляцию с механическим побуждением притока и удаления воздуха или комбинированную вентиляцию с естественным притоком и удаление воздуха через вентиляционные каналы с частичным использованием механического побуждения согласно СП 60.13330.
7.2.3 Систему вентиляции следует предусматривать с раздельными вентиляционными коробами для каждой из жилых групп, размещенных в пределах одного пожарного отсека, согласно СП 60.13330.
На воздуховодах систем общеобменной вентиляции необходимо предусматривать противопожарные клапаны, воздушные затворы, место и расположение которых принимаются по ГОСТ 30494.
7.2.4 Отопительные приборы, трубопроводы с температурой поверхности доступных частей выше 75 °C в помещениях домов-интернатов, лестничных клетках, вестибюлях должны иметь защитные ограждения (съемные деревянные решетки) или тепловую изоляцию трубопроводов согласно СП 60.13330, СП 118.13330.
7.3.1 В домах-интернатах следует предусматривать электроосвещение (СП 52.13330), силовое электрооборудование, телефонизацию, радиофикацию, телевизионные антенны и звуковую сигнализацию. Диспетчеризацию систем инженерного оборудования следует предусматривать в проектах застройки микрорайона.
Внутридомовые, внутри жилых ячеек и жилых отделений электрические сети должны оборудоваться устройствами защитного отключения согласно [4], ГОСТ Р 50571.28.
В домах-интернатах установку штепсельных розеток рекомендуется предусматривать в защищенном от детей исполнении в соответствии с размещением оборудования, предусмотренным технологической частью проекта.
7.3.2 В зданиях учреждений необходимо предусматривать прямую телефонную связь помещения поста старшей медсестры с ближайшей пожарной частью (ГОСТ 12.1.004).
Двусторонняя селекторная связь предусматривается:
между кабинетом заведующего со следующими помещениями: групповыми, медицинской комнатой, пищеблоком, комнатой завхоза, комнатой охранника, вахтера и комнатой кастелянши;
между Постом дежурного персонала и помещениями самостоятельного пребывания инвалидов с нарушением опорно-двигательного аппарата и инвалидов, не способных к самостоятельному передвижению.
7.3.3 Здания домов-интернатов должны быть оборудованы сетями проводного вещания (радиотрансляция), телефонами и антенными телевизионными сетями, охранной сигнализацией, видеонаблюдением (СП 133.13330, СП 132.13330), системой оповещения и управления эвакуацией, (СОУЭ, а также фотолюминесцентной эвакуационной системой по ГОСТ Р 12.2.143.
При проектировании пожарной, охранной и тревожной сигнализации и средств связи следует руководствоваться СП 5.13130, ГОСТ 12.1.004.
Помещения для постоянного пребывания детей (жилые ячейки) оборудуются автономными пожарными извещателями сблокированными с общей системой оповещения и управления эвакуацией по СП 1.13130, СП 2.13130.
7.3.4 ФЭС должна быть на всем протяжении пути эвакуации в виде непрерывного маршрута до эвакуационных выходов.
На путях эвакуации, размещают направляющие полосы из фотолюминесцентного материала (ФЛМ), которые должны быть неразрывным продолжением путей эвакуации на лестничных площадках, на полу, на лестницах и пандусах.
Дверные проемы эвакуационных и аварийных выходов должны быть обозначены по контуру элементами из фотолюминесцентного материала и оборудованы фотолюминесцентными знаками безопасности. Знаки устанавливаются непосредственно на самой двери или на поверхности стены прилегающей к двери.
Приложение А
(справочное)
|
Наименование группы |
Возраст детей, лет |
Мест в спальной комнате/спальных комнат в жилой ячейке для детей, имеющих отклонение в развитии | ||||
|
нарушение зрения |
нарушение слуха |
нарушение речи |
нарушение опорно-двигательного аппарата |
лежачие | ||
|
Дошкольная группа |
3 - 7 |
4 - 6 ----- 4 |
6 --- 3 |
4 - 6 ----- 4 |
4 --- 4 |
6 - 8 ----- 3 |
|
Подготовительная группа к общеобразовательным школьным занятиям |
6 - 7 |
3 - 4 ----- 4 |
3 - 4 ----- 4 |
3 - 4 ----- 4 |
3 - 4 - 6 --------- 4 |
6 - 8 ----- 3 |
|
Группа профессионального обучения |
8 - 16 |
2 - 4 ----- 4 |
2 - 4 ----- 4 |
2 - 4 ----- 4 |
2 - 4 - 6 --------- 4 |
6 - 8 ----- 3 |
|
Наименование группы |
Возраст детей, лет |
Мест в спальной комнате/спальных комнат в жилой ячейке для детей, имеющих отклонение в развитии | |||
|
самостоятельно передвигающиеся |
передвигающиеся с трудом с помощью приспособления |
не способные к самостоятельному передвижению |
лежачие | ||
|
Обучаемые дети | |||||
|
Дошкольная группа |
4 - 8 |
4 - 6 ----- 4 |
4 - 6 ----- 3 |
4 - 6 ----- 4 |
6 - 8 ----- 3 |
|
Подготовительная группа к трудовому обучению |
8 - 12 |
4 --- 2 |
4 --- 2 |
4 --- 2 |
6 - 8 ----- 3 |
|
Группа трудового обучения |
12 - 18 |
4 --- 3 |
4 --- 3 |
4 --- 3 |
6 - 8 ----- 3 |
|
Диагностическая группа |
4 - 18 |
4 --- 3 |
4 --- 3 |
4 --- 3 |
6 - 8 ----- 3 |
|
Необучаемые дети | |||||
|
Младшая группа |
4 - 8 |
6 - 8 ----- 2 |
6 - 8 ----- 2 |
6 - 8 ----- 2 |
6 - 8 ----- 3 |
|
Средняя группа |
8 - 12 |
6 - 8 ----- 2 |
6 - 8 ----- 2 |
6 - 8 ----- 2 |
6 - 8 ----- 3 |
|
Старшая группа |
12 - 18 |
6 - 8 ----- 2 |
6 - 8 ----- 2 |
6 - 8 ----- 2 |
6 - 8 ----- 2 |
|
Примечание - Диагностическая группа создается с целью выяснения степени нарушения интеллекта, возможности трудового обучения и уточнения методов коррекционно-воспитательной работы с воспитанниками. | |||||
Приложение Б
(рекомендуемое)
|
Площадки функциональных зон |
Площадь участка, м2/место, при вместимости дома-интерната для детей-инвалидов, мест | |||||
|
100 |
120 |
200 | ||||
|
с сохранным интеллектом |
с нарушением интеллекта |
с сохранным интеллектом |
с нарушением интеллекта |
с сохранным интеллектом |
с нарушением интеллекта | |
|
Детские площадки: | ||||||
|
групповые |
2,08 |
2,08 |
1,9 |
1,8 |
1,5 |
1,2 |
|
общие физкультурные |
12,5 |
11 |
10 |
8 |
9 |
7 |
|
огород-ягодник |
0,12 |
0,1 |
0,12 |
0,1 |
0,1 | |
|
уголок для животных и птиц |
0,18 |
- |
0,16 |
- |
0,15 |
- |
|
Хозплощадки |
1 |
1,2 |
1,0 |
1,2 |
1 |
1,2 |
|
Дороги, проезды |
По расчету в соответствии с планировкой | |||||
|
Зеленые посадки |
Не менее 40% площади участка | |||||
|
Теневой навес |
2,6 |
2,08 |
2,2 |
2 |
2 |
1,8 |
|
Тип здания |
Вместимость, мест |
Площадь участка, м2/место |
|
Дом-интернат для детей-инвалидов |
100 |
80 |
|
120 |
60 | |
|
200 |
50 | |
|
Примечание - Площадь участков промежуточной вместимости определяется интерполяцией. | ||
Приложение В
(рекомендуемое)
|
Помещение |
Расчетная площадь на 1 место, м2 (или площадь помещения, м2) | ||||||||||
|
Жилые ячейки для младших групп |
Жилые ячейки для подростков и старшеклассников | ||||||||||
|
Тип 1а |
Тип 1в |
Тип 1б |
Тип 1в | ||||||||
|
Нарушение слуха и речи |
Нарушение зрения |
Нарушение опорно-двигательного аппарата |
Лежачие обездвиженные |
Нарушение слуха и речи |
Нарушение зрения |
Нарушение опорно-двигательного аппарата |
Лежачие обездвиженные | ||||
|
А. Помещения жилых ячеек | |||||||||||
|
Раздевальная |
1,0 |
1,0 |
1,0 |
- |
1,0 |
0,1 |
1,0 |
- | |||
|
Групповая |
4 |
4 |
4 |
- |
4 |
4 |
4 |
- | |||
|
Спальная |
4 |
4 |
4 |
6 - 8 |
4 |
4 |
4 |
6 - 8 | |||
|
Санузел, уборная, умывальная, душ |
0,8 |
0,8 |
0,8 |
- |
0,8 |
0,8 |
0,8 |
- | |||
|
Ванная со шкафом для суден |
- |
- |
- |
(20) на 1 - 2 жилые ячейки |
- |
- |
- |
(20) на 1 - 2 жилые ячейки | |||
|
Буфетная |
(Не менее 4) на жилую ячейку |
(6 - 9) на 1-2 жилые ячейки |
(Не менее 4) на жилую ячейку |
(6 - 9) на 1-2 жилые ячейки | |||||||
|
Кладовая хозяйственная |
(2) на жилую ячейку |
(4) |
(2) на жилую ячейку |
(4) | |||||||
|
Комната хранения уборочного инвентаря |
(4) на жилое отделение |
(4) на жилое отделение | |||||||||
|
Учебная комната для приготовления уроков |
- |
- |
- |
- |
(12 - 18) на 1 - 2 жилые ячейки |
- | |||||
|
Комната воспитателя |
(12) на жилое отделение |
(12) на жилое отделение | |||||||||
|
Летняя веранда |
1 |
1 |
1 |
1 |
1 |
1 |
1 |
1 | |||
|
Класс |
- |
- |
- |
- |
3 |
3 |
3 |
- | |||
|
Б. Общие помещения на отделение (4 - 5 жилых ячеек) | |||||||||||
|
Кабинет заведующего |
(12) на отделение | ||||||||||
|
Пост дежурного персонала |
(6) на отделение | ||||||||||
|
Комната дежурной медсестры |
(12 - 15) на отделение | ||||||||||
|
Кабинет логопеда |
(12) на отделение | ||||||||||
|
Кабинет ортопеда |
(12) на отделение | ||||||||||
|
Место хранения кресел-колясок |
(3) на жилую ячейку | ||||||||||
|
Комната для хранения чистого белья |
(12) на отделение | ||||||||||
|
Помещение для гимнастических и музыкальных занятий и лечебной физкультуры |
60 - 70 м2 с кладовой 12 м2 |
60 - 70 м2 с кладовой 12 м2 |
- | ||||||||
|
Кабинет личной гигиены для девочек |
(4) на жилое отделение |
- |
(4) на жилое отделение |
- | |||||||
|
Комната для встреч с родителями |
(24) на отделение | ||||||||||
|
Комната персонала, при которой туалетная с душевой |
(12) на отделение | ||||||||||
|
Помещение |
Расчетная площадь на 1 место, м2 (или площадь помещения, м2) | |||||
|
Жилая ячейка для младшей группы |
Жилая ячейка для средней и старшей групп | |||||
|
Тип 2а |
Тип 2в |
Тип 2б |
Тип 2в | |||
|
Свободно передвигающиеся |
Передвигающиеся с трудом |
Лежачие |
Свободно передвигающиеся |
Передвигающиеся с трудом |
Лежачие | |
|
Раздевальная |
1 |
1 |
- |
- |
- |
- |
|
Групповая, в том числе используемая в качестве обеденного помещения |
- |
1,2 | ||||
|
Спальная комната |
4 |
4 |
6 |
6 |
6 |
6 |
|
Санузел: | ||||||
|
уборная, умывальная, душ и ванная |
(8) на жилую ячейку |
(9) на жилую ячейку |
(5) на жилую ячейку |
(9) на жилую ячейку |
(5) на жилую ячейку | |
|
со шкафом для суден |
- |
- |
1,6 |
- |
1,6 | |
|
Буфетная с мойкой |
(3) на жилую ячейку |
(3) на жилую ячейку |
- |
- |
- | |
|
Кладовая |
- |
- |
(3) на жилую ячейку |
(3) на жилую ячейку |
(3) на жилую ячейку |
(3) на жилую ячейку |
|
Комната хранения уборочного инвентаря |
(4) на жилую ячейку | |||||
|
Учебная комната для приготовления уроков |
- |
- |
- |
(12) на жилые ячейки |
- | |
|
Комната психолога и воспитателя |
- |
- |
- |
(12 - 14) на жилые ячейки | ||
|
Летняя веранда |
1 |
1 |
1 |
1 |
1 |
1 |
|
Класс-комната трудового обучения |
- |
- |
- |
3 |
3 |
- |
|
Б. Общие помещения на отделение (4 - 5 жилых ячеек) | ||||||
|
Кабинет заведующего |
(12) на отделение | |||||
|
Комната старшей медицинской сестры |
(15) на отделение | |||||
|
Помещение для гимнастических и музыкальных занятий и лечебной физкультуры |
(24) на отделение | |||||
|
Комната встречи родителей с детьми |
(20) на отделение | |||||
|
Комната персонала с туалетом и душевой |
(8) на отделение | |||||
|
Комната хранения кресел-колясок |
(6) на жилую ячейку | |||||
|
Комната хранения чистого белья |
(12) на отделение | |||||
|
Комната личной гигиены для девочек |
- |
- |
- |
Один кабинет на жилую ячейку |
- | |
|
Пост дежурного персонала |
4 м2 | |||||
|
Примечание - В группах для необучаемых детей раздевальная и групповая не предусматриваются, а площадь спален принимается 8 м2/чел. | ||||||
|
Помещение |
Площадь помещений, м2, учебной и профессиональной подготовки |
Примечания | |||
|
для детей с сохранным интеллектом |
для детей с нарушением интеллекта | ||||
|
на 1 место |
общая площадь |
на 1 место |
общая площадь | ||
|
Учебно-игровые комнаты для школьников и младших классов |
4 |
- |
3,6 |
- |
Для разновозрастных групп |
|
Классы на 8 - 10 детей |
Устанавливае тся по заданию на проектирование |
В домах-интернатах для детей с нарушениями умственного развития допускается принимать численность обучающихся из расчета на 50% детей от вместимости учреждения | |||
|
I - V классы |
3 |
24 - 30 |
3 | ||
|
V - IX классы |
3 |
24 - 30 |
3 | ||
|
X - XI классы |
3,6 |
36 |
3 | ||
|
Класс на 12 человек |
- |
- |
3 |
36 | |
|
Кабинет домоводства |
- |
50 |
- |
50 + 16 | |
|
Производственные мастерские (столярная) |
4,5 |
- |
4,5 |
- | |
|
Склад сырья |
- |
- |
- |
16 |
На мастерскую |
|
Склад готовой продукции |
- |
- |
- |
16 |
То же |
|
Инструментальная комната |
- |
- |
- |
25 | |
|
Кабинет методический и учебных пособий |
- |
- |
- |
40 | |
|
Санузел |
- |
- |
- |
3Ч2 | |
|
Кабинет зав. учебной частью |
12 |
На отделение | |||
|
Рекреационные помещения |
1,2 |
- |
1,4 |
- | |
|
Кабинет физики с лаборантской |
- |
54 |
- |
54 + 18 | |
|
Гимнастический зал |
- |
18 x 9 |
- |
- |
На отделение |
|
Кабинет химии с лаборантской |
- |
54 + 18 |
- |
- |
Для средних и старших школьников (для обучаемых детей) |
|
Класс машинописи с подсобным помещением |
- |
54 + 18 |
- |
- | |
|
Класс рисования - изостудия с кладовой |
- |
54 + 18 |
- |
54 + 18 | |
|
Компьютерный класс с подсобным помещением |
- |
54 + 18 |
- |
- |
То же |
|
Класс биологии - живой уголок с лаборантской |
- |
54 + 18 |
- |
- |
Для средних и старших школьников (для обучаемых детей) |
|
Комната музыкальных занятий с кладовой инструментов |
- |
54 + 18 |
- |
54 + 18 |
Для средних и старших школьников (для обучаемых детей) |
|
Классы: |
- |
- |
- |
21 + 10 |
То же |
|
чтения |
- |
- |
- |
36 + 10 | |
|
математики |
- |
- |
- |
36 | |
|
счета |
- |
- |
- |
36 | |
|
Кабинет социально-бытовой адаптации, помещение для приема гостей |
- |
72 + 10 |
- |
36 + 10 | |
|
Библиотека с книгохранилищем и читальным залом, кабинет русского и иностранного языков |
- |
120 |
- |
60,0 |
На отделение |
|
Методический кабинет |
- |
36 |
- |
- | |
|
Кабинет заведующего учебной частью |
- |
18 |
- |
- | |
|
Комната учителей, мастеров, организатора работ |
- |
54 |
- |
- | |
|
Кладовая мебели, инвентаря |
- |
24 |
- |
- | |
|
Санитарные узлы для мальчиков и девочек |
- |
По расчету |
- |
По расчету |
Распределяются поэтажно |
|
Учебно-производственные мастерские с инвентарными и подсобными помещениями: |
Для средних и старших школьников с нарушением интеллекта | ||||
|
швейная |
- |
36 + 12 + 10 |
- |
36 | |
|
картонажно-переплетная |
- |
72 + 18 + 10 |
- |
72 | |
|
столярная |
- |
54 + 18 + 10 |
- |
54 | |
|
ткацкая |
- |
54 + 18 + 10 |
- |
- | |
|
механической сборки |
- |
36 + 18 |
- |
- | |
|
электро-монтажная |
- |
36 + 18 |
- |
- | |
|
токарно-фрезерная |
- |
72 + 18 |
- |
- | |
|
гончарная |
- |
36 + 18 + 10 |
- |
36 | |
|
обувная |
- |
36 |
- |
36 | |
|
ручных ремесел (вязания, лозоплетения и пр.) |
- |
36 + 12 + 10 |
- |
36 + 12 + 10 | |
|
ремонта аппаратуры и бытовой техники |
- |
36 + 18 + 10 |
- |
36 + 18 + 10 | |
|
Класс подготовки младшего медицинского персонала с кладовой учебных пособий |
- |
36 + 10 |
- |
36 + 10 |
Для средних и старших школьников с нарушениями умственного развития |
|
Класс для обучения детей с нарушением интеллекта |
- |
- |
2,0 |
- | |
|
Лечебно-трудовые мастерские с кладовой: |
- |
60 + 18 |
- |
60 + 18 |
По заданию на проектирование |
|
мастерская производи-тельного общественно-полезного труда |
1,7 |
- |
1,7 |
- | |
|
картонажная мастерская |
1,0 |
- |
1,0 |
- | |
|
швейная мастерская |
1,2 |
- |
1,2 |
- | |
|
кулинария |
- |
18,0 |
- |
18,0 | |
|
помещение музыкальных занятий |
- |
36,0 |
- |
36,0 | |
|
кабинет домоводства |
- |
36,0 |
- |
36,0 | |
|
Помещение |
Площадь помещений, м2, общих на отделения для детей с сохранным интеллектом и детей с нарушением интеллекта при вместимости домов-интернатов, мест |
Примечания | ||
|
100 |
120 |
200 | ||
|
Кабинет заместителя директора по медицинской работе |
16 |
18 |
18 | |
|
Кабинет педиатра |
15 |
15 |
15 | |
|
Кабинет консультативного приема с темной комнатой |
20 + 8 | |||
|
Кабинет старшей медицинской сестры |
12 |
12 |
12 x 2 | |
|
Комната клинической лаборатории (анализы крови, мочи) |
18,0 | |||
|
Аптечная комната |
- |
8 + 4 |
10 + 4 | |
|
Стерилизационно-автоклавная с помещением хранения и выдачи стерильных материалов |
12 + 6 |
12 + 6 |
14 + 6 | |
|
Стоматологический кабинет |
16,0 | |||
|
Кабинет психоневролога |
15 |
15 |
15 x 2 | |
|
Кабинет логопеда |
18 |
18 | ||
|
Кабинет ЛФК |
24 |
36 | ||
|
Кабинет индивидуального массажа и занятий ЛФК |
18 |
18 + 2 | ||
|
Ингаляторий |
24 |
30 | ||
|
Кабинет гидротерапии |
24 |
28 | ||
|
Раздевальная |
14 |
14 | ||
|
Водолечение: |
По 7 - 8 м2 на 1 ванну в открытом помещении, одна ванна должна быть приспособлена для обслуживания детей-опорников | |||
|
ванный зал |
28 |
28 x 2 | ||
|
раздевальная |
14 |
18 | ||
|
кабинет подводного массажа |
18 (для детей с сохранным интеллектом) | |||
|
Кабинет светолечения |
12 |
12 |
18 | |
|
Подсобная комната |
10 | |||
|
Аминозиновый кабинет с подсобным помещением |
18 + 6 | |||
|
Кабинет озокерито-парафинолечения, горячих укутываний |
16 + 6 (для детей с сохранным интеллектом) | |||
|
Кабинет механотерапии |
28 |
Для детей с сохранным интеллектом | ||
|
Кабинет электросна |
18 |
28 | ||
|
Кабинет оксигенотерапии |
14 |
20 | ||
|
Кабинет психологической разгрузки |
18 |
24 | ||
|
Комната персонала |
14 |
12 + 2 | ||
|
Санитарные узлы для мальчиков и девочек с умывальниками в шлюзе |
16 |
16 x 2 |
18 x 2 | |
|
Комнаты хранения предметов уборки |
4 |
4 x 2 |
4 x 2 | |
|
Санузлы персонала с умывальниками в шлюзе |
3 |
3 x 2 |
3 x 2 | |
|
Сенсорная комната |
18 |
24 |
36 | |
|
Комната позиционирования |
18 |
24 |
36 | |
|
Диагностический кабинет |
24 |
36 | ||
|
Отделение психиатрической помощи: | ||||
|
кабинет психиатра |
12 |
12 x 2 | ||
|
комната медсестры |
12 |
14 |
12 x 2 | |
|
Медицинские помещения изолятора *: | ||||
|
медицинский кабинет |
12 |
12 |
12 | |
|
процедурный кабинет |
8 |
8 |
8 | |
|
изолятор |
не менее 4 м2 (1 палата) |
не менее 4 м2 (1 палата) |
не менее 4 м2 (1 палата) | |
|
туалет с местом для приготовления дезинфекционных растворов |
6 |
6 |
6 | |
|
* По СанПиН 2.4.1.2660, таблица 1, приложение 1. | ||||
|
Помещения |
Площадь помещений, м2, при вместимости домов-интернатов, мест |
Примечания | ||
|
100 |
120 |
200 | ||
|
Вестибюль с гардеробом для посетителей |
74 |
80 |
90 | |
|
Санитарные узлы мужские и женские с умывальником в шлюзе |
10 (5 x 2) |
10 (5 x 2) |
15 (5 x 3) | |
|
Помещение дежурного |
10 |
10 |
10 | |
|
Кабинет директора |
18 |
18 |
24 | |
|
Канцелярия-приемная |
12 |
14 |
18 | |
|
Кабинет заместителя директора по хозяйственной части |
12 |
14 |
16 | |
|
Помещение дежурного персонала технического обслуживания |
10 |
14 |
14 | |
|
Бухгалтерия с кассой |
12 + 4 |
12 + 4 |
18 + 4 | |
|
Комната отдыха персонала |
24 |
24 |
36 | |
|
Комната сестры-хозяйки с кладовой |
10 + 6 |
12 + 6 |
12 + 6 | |
|
Кладовые грязного белья и чистого белья с починочной |
10 + 12 |
10 + 12 |
16 + 20 | |
|
Помещение архива |
8 |
10 |
12 |
Может располагаться в подвале |
|
АТС |
18 |
18 |
24 |
То же |
|
Гардероб персонала с душевой и санитарным узлом |
24 |
24 |
36 |
" |
|
Кладовые, инвентарные |
30 |
30 |
40 |
" |
|
Помещение ремонта электроаппаратуры с подсобным помещением |
12 + 4 |
12 + 4 |
14 + 6 |
" |
|
Комнаты хранения предметов уборки |
4 + 4 |
4 + 4 |
4 + 4 | |
|
Постирочная |
8 + 18 + 6 |
8 + 18 + 6 |
8 + 22 + 8 |
В случае если в составе помещений хозяйственного обслуживания прачечная не предусмотрена |
|
Прачечная-постирочная: | ||||
|
центральная бельевая с текущим ремонтом белья |
18 |
18 |
20 | |
|
комната хранения одежды для списания |
6 |
6 |
6 | |
|
помещение для сортировки грязного белья, |
48 |
50 |
55 | |
|
в том числе: | ||||
|
цех приема белья |
6 |
6 |
6 | |
|
стиральный цех |
14 |
14 |
17 | |
|
сушильно-гладильный цех |
12 |
12 |
15 | |
|
цех разборки и упаковки белья |
6 |
6 |
8 | |
|
гардеробная персонала |
4 |
4 |
4 | |
|
уборная для персонала с умывальником в шлюзе |
3 |
3 |
3 | |
|
дезинфекционное отделение, в том числе: |
42 |
44 |
44 | |
|
прием и сортировка вещей |
6 |
6 |
8 | |
|
грязное отделение |
10 |
10 |
10 | |
|
разгрузочное отделение |
15 |
15 |
15 | |
|
шлюз между ними |
- |
3 |
4 | |
|
выдача вещей |
6 |
8 |
8 | |
|
помещение для дезинфекционных средств и приготовления растворов |
4 + 4 | |||
|
Помещение |
Площадь помещений, м2, при вместимости домов-интернатов, мест |
Примечания | ||
|
100 |
120 |
200 | ||
|
Обеденный зал |
2,4 м2 на 1 место |
Для детей-инвалидов среднего и старшего возраста | ||
|
1,4 м2 на 1 место |
Для детей-инвалидов младших групп | |||
|
Умывальные |
3 м2 (1 умывальник) на каждые 18 - 20 мест |
То же | ||
|
Раздаточная |
18 |
18 |
24 |
" |
|
Сервизная |
6 |
6 |
8 |
" |
|
Моечная столовой посуды |
16 |
18 |
30 - 36 |
" |
|
Горячий цех |
54 |
54 |
70 | |
|
Хлеборезка, хранение хлеба |
6 |
6 |
8 | |
|
Моечная кухонной посуды |
8 |
8 |
10 | |
|
Холодный цех |
10 |
10 |
14 | |
|
Цех мучных изделий |
10 |
10 |
14 | |
|
Мясо-рыбный цех |
18 |
18 |
24 | |
|
Овощной цех |
15 |
15 |
15 | |
|
Комната заведующего производством |
8 |
8 |
8 | |
|
Кладовая суточного запаса продуктов |
8 |
8 |
10 | |
|
Кладовая сухих продуктов |
10 |
10 |
14 | |
|
Охлаждаемые камеры: |
Не менее двух камер | |||
|
продуктов |
30 |
30 |
32 | |
|
отходов |
4 |
4 |
4 | |
|
Помещение первичной обработки продуктов (овощей и птицы) |
8 + 6 |
8 + 6 |
10 + 8 | |
|
Загрузочная, кладовая тары |
14 |
14 |
18 | |
|
Кладовая белья: | ||||
|
чистого |
6 |
6 |
8 | |
|
грязного |
4 |
4 |
6 | |
|
Кладовая и моечная тары |
12 |
12 |
16 | |
|
Комната персонала с душевой и санитарным узлом |
18 |
18 |
24 | |
|
Комната кладовщика |
- |
6 |
6 | |
|
Кладовая овощей, солений |
12 + 6 |
12 + 6 |
16 + 8 | |
|
Комната хранения предметов уборки |
4 |
4 |
4 | |
|
Раздаточная |
16 |
16 |
20 | |
|
Обеденный зал для персонала с подсобным помещением |
16 + 6 |
16 + 6 |
18 + 6 |
С выходом на участок |
|
Помещение |
Площадь помещений, м2, при вместимости домов-интернатов, мест |
Примечания | ||
|
100 |
120 |
200 | ||
|
Зрительный зал |
1,5 |
1,8 |
1,8 |
1 м2 на 1 место в зрительном зале |
|
Эстрада при зале |
54 | |||
|
Кинопроекционная с перемоточной и радиоузлом |
27 | |||
|
Фойе |
1 м2 на 1 место в зрительном зале |
Используется как выставочный зал, зал для танцев и игр в настольный теннис | ||
|
36 |
36 |
54 | ||
|
Библиотека (читальный зал + книгохранилище) |
15 + 15 | |||
|
Санитарный узел с умывальником в шлюзе |
3 + 3 |
6 + 6 | ||
|
Радиоузел |
12 | |||
|
Фильмовидеотека |
18 | |||
|
Помещение пожарного поста |
10 | |||
|
Студия кабельного телевидения |
18 |
24 | ||
|
Кладовая мебели и реквизита |
18 |
24 | ||
|
Кладовая аппаратуры |
8 |
12 | ||
|
Комната художника |
12 |
12 |
12 | |
|
Кружковые помещения: | ||||
|
танцевальный класс с помещением для переодевания и санитарным узлом |
54 + 18 |
72 + 18 + 3 | ||
|
кружок лепки |
24 + 8 |
36 + 8 + 10 | ||
|
Кладовая инвентаря и готовых изделий |
12 |
18 | ||
|
Физкультурно-спортивный зал: |
Используется также для занятий ЛФК | |||
|
12 x 16 м |
132 |
288 | ||
|
12 x 24 м | ||||
|
Хранение спортивного инвентаря |
12 |
16 | ||
|
Раздевальные для девочек и мальчиков с душевыми и санитарными узлами: | ||||
|
для детей с нарушением интеллекта |
18 x 2 |
36 x 2 |
По два душевых рожка и одному унитазу на каждую раздевальную | |
|
для детей с нарушениями физического развития |
21 x 2 |
42 x 2 | ||
|
Комната инструктора-методиста |
12 |
12 |
12 | |
|
Лечебно-оздоровительный бассейн с ванной 5Ч10 м |
8 x 10 |
160 |
На 10 - 12 детей | |
|
Комната методиста с санитарным узлом |
8 + 4 |
10 + 4 | ||
|
Раздевальная с душевой и санитарным узлом |
24 |
36 | ||
|
Помещения уборочного инвентаря |
6 |
6 |
6 | |
|
Узел управления |
6 |
6 |
6 | |
|
Лаборатория анализа воды |
8 |
8 |
8 | |
|
Комната медсестры |
10 |
10 |
12 | |
|
Кладовая спортивного инвентаря |
6 |
8 |
8 | |
Приложение Г
(рекомендуемое)

1 - жилые группы для детей-инвалидов с физическими недостатками, с сохранным интеллектом; 2 - то же, для лежачих с сохранным интеллектом; 3 - то же, для умственно отсталых, способных к обучению; 4 - то же, для умственно отсталых, не способных к обучению; 5 - то же, для лежачих, умственно отсталых
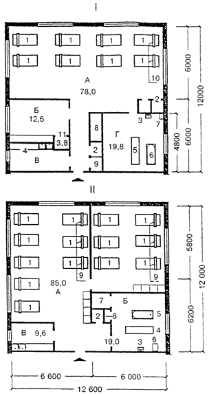
Рисунок Г.1 - Схема взаимодействия помещений


А - Планировочная схема жилой ячейки типа 1а для дошкольников 1 - раздевальная; 2 - игровая; 3 - столовая; 4 – буфетная с мойкой; 5 - класс; 6 - комната воспитателя; 7 - санузел; 8 - комната для сушки одежды и обуви; 9 - гладильная; 10 - спальная комната на 6 мест; 11 - спальная комната на 4 места; 12 - кладовая демонстрационного и подсобного материала
Б - Планировочная схема жилой ячейки типа 1б для подростков и старшеклассников 1 - раздевальная; 2 - спальная комната на 4 места; 3 - спальная комната на 3 места; 4 - комната воспитателя с кладовой личных вещей; 5 - комната отдыха; 6 - буфетная; 7 - комната для занятий с кладовой; 8 - туалет; 9 - умывальник; 10 - комната для сушки одежды и обуви
В. Планировочная схема жилой ячейки типа 1в для лежачих детей-инвалидов с сохранным интеллектом 1 - кровать (200 x 90 см); 2 - встроенный шкаф для спальных принадлежностей и чистого белья; 3 - умывальник (60 x 40 см); 4 - буфет-мойка (180 x 60 см); 5 - каталка (225 x 60 см); 6 - ванна (170 x 70 см); 7 - слив (45 x 50 см); 8 - встроенный шкаф для суден; 9 - шкаф для хозяйственных принадлежностей; 10 - надкроватный столик; 11 - комната воспитателя с кладовой для демонстрационного школьного материала; 12 - спальная комната на 8 мест
Рисунок Г.2 - Жилые ячейки для детей-инвалидов с сохранным интеллектом


А - спальная комната на 6 мест для детей-инвалидов младших групп дошкольников; Б - обеденное место в столовой с буфетной
1 - кровать 190 (200) x 70 см; 2 - тумбочка 40 x 50 см; 3 - инвалидная коляска; 4 - шкаф комбинированный; 5 - стол 100 x 60 см; 6 - стул 40 x 40 см; 7 – стол детский обеденный 140 (160) x 90 см
Рисунок Г.3 - Планировочные схемы спальной комнаты и обеденного места в столовой


А - четырехместная спальная комната; Б – трехместная спальная комната; В - двухместная спальная комната
1 - кровать 190 x 70 см; 2 - диван; 3 - тумбочка 40 x 80 см; 4 - тумбочка 40 x 40 см; 5 - стол 60 x 100 см; 6 - стул 40 x 40 см; 7 - кресло 50 x 50 см; 8 - торшер; 9 - банкетка; 10 - инвалидная коляска; 11 - комбинированный шкаф
Рисунок Г.4 - Планировочная схема спальных комнат


А - Планировочная схема жилой ячейки типа 2а для младшей группы детей-инвалидов 1 - раздевальная; 2 - групповая-столовая; 3 - буфетная с мойкой; 4 - спальная комната на 8 мест; 5 - спальная комната на 6 мест; 6 - умывальная; 7 - туалетная; 8 - ванная
Б - Планировочная схема жилой ячейки типа 2б для детей-инвалидов подростковой и старшей трудового обучения групп 1 - раздевальная; 2 - комната дневного пребывания; 3 - класс; 4 - спальная комната на 8 мест; 5 - спальная комната на 6 мест; 6 - туалетная; 7 - умывальная; 8 - шкаф для демонстрационного материала; 9 - бытовая кладовка; 10 - буфетная с мойкой
В - Планировочная схема жилой ячейки типа 2в для необучаемых, лежачих детей-инвалидов 1 - спальная комната на 8 мест; 2 - спальная комната на 6 мест; 3 - ванная со шкафом для суден; 4 – буфетная с мойкой; 5 - кровать (200 x 90 см); 6 - встроенный шкаф для спальных принадлежностей и чистого белья; 7 - умывальник (60 x 40 см); 8 - каталка (224 x 60 см); 9 - ванна; 10 - слив; 11 - встроенный шкаф для суден; 12 - шкаф для хозяйственных принадлежностей; 13 - надкроватный столик
Рисунок Г.5 - Жилые ячейки для умственно отсталых детей

I - планировочная схема жилых комнат жилой ячейки типа 1в для лежачих детей с сохранным интеллектом А - спальная комната; Б - комната воспитателя; В – буфетная с мойкой; Г - ванная со шкафом для суден; 1 - кровать (200 x 90 см); 2 - встроенный шкаф для спальных принадлежностей и чистого белья; 3 - умывальник; 4 - буфетная с мойкой (180 x 60 см); 5 - каталка; 6 - ванна; 7 - слив (45 x 50 см); 8 - встроенный шкаф для суден; 9 - шкаф для хозяйственных принадлежностей; 10 - надкроватный столик; 11 – кладовая для демонстрационного школьного материала
II - планировочная схема жилых комнат жилой ячейки типа 2а для лежачих детей, умственно отсталых А - спальные комнаты на 6 и 8 человек; Б – ванная со шкафом для суден; В - буфетная с мойкой; 1 - кровать (200 x 90 см); 2 - встроенный шкаф для спальных принадлежностей и чистого белья; 3 - умывальник; 4 - каталка; 5 - ванна; 7 - слив (45 x 50 см); 8 - встроенный шкаф для суден; 9 - шкаф для хозяйственных принадлежностей; 10 - надкроватный столик
Рисунок Г.6 - Планировочная схема спальных комнат

1 - стол монтажный; 2 - стенд испытательный; 3 - стол с вытяжкой; 4 - стол приемщика; 5 - мойка; 6 - стеллаж для материалов; 7 - табурет с регулируемым сиденьем; 8 - стеллаж приемщика
Рисунок Г.7 - Планировочная схема помещения учебно-производственной мастерской по ремонту аппаратуры и бытовой техники
Библиография
[1] ПУЭ Правила устройства электроустановок, изд. 7-е, 2003 г.
[2] СО 153-34.21.122-2003 Инструкция по устройству молниезащиты зданий, сооружений и промышленных коммуникаций
[3] РД 78.36.003-2002 Инженерно-техническая укрепленность. Технические средства охраны. Требования и нормы проектирования по защите объектов от преступных посягательств
[4] СП 31-110-2003 Проектирование и монтаж электроустановок жилых и общественных зданий


