ГОСТ 21.508-2020 СИСТЕМА ПРОЕКТНОЙ ДОКУМЕНТАЦИИ ДЛЯ СТРОИТЕЛЬСТВА. ПРАВИЛА ВЫПОЛНЕНИЯ РАБОЧЕЙ ДОКУМЕНТАЦИИ ГЕНЕРАЛЬНЫХ ПЛАНОВ ПРЕДПРИЯТИЙ, СООРУЖЕНИЙ И ЖИЛИЩНО-ГРАЖДАНСКИХ ОБЪЕКТОВ
System of design documents for construction. Rules for execution of the working documentation of general layouts of enterprises, buildings and civil housing objects
МКС 01.100.30
Дата введения - 1 января 2021 г.
Взамен ГОСТ 21.508-93
Предисловие
Цели, основные принципы и общие правила проведения работ по межгосударственной стандартизации установлены ГОСТ 1.0 "Межгосударственная система стандартизации. Основные положения" и ГОСТ 1.2 "Межгосударственная система стандартизации. Стандарты межгосударственные, правила и рекомендации по межгосударственной стандартизации. Правила разработки, принятия, обновления и отмены"
Сведения о стандарте
1 Разработан Акционерным обществом "Центр технического и сметного нормирования в строительстве" (АО "ЦНС")
2 Внесен Техническим комитетом по стандартизации ТК 465 "Строительство"
3 Принят Межгосударственным советом по стандартизации, метрологии и сертификации (протокол от 30 марта 2020 г. N 128-П)
За принятие проголосовали:
|
Краткое наименование страны по МК (ИСО 3166) 004-97 |
Код страны по МК (ИСО 3166) 004-97 |
Сокращенное наименование национального органа по стандартизации |
|
Армения |
AM |
Минэкономики Республики Армения |
|
Беларусь |
BY |
Госстандарт Республики Беларусь |
|
Киргизия |
KG |
Кыргызстандарт |
|
Россия |
RU |
Росстандарт |
|
Таджикистан |
TJ |
Таджикстандарт |
4 Приказом Федерального агентства по техническому регулированию и метрологии от 23 июня 2020 г. N 280-ст межгосударственный стандарт ГОСТ 21.508-2020 введен в действие в качестве национального стандарта Российской Федерации с 1 января 2021 г.
5 Взамен ГОСТ 21.508-93
Настоящий стандарт устанавливает состав и правила оформления рабочей документации генеральных планов предприятий, сооружений и жилищно-гражданских объектов 1) различного назначения (далее - генеральные планы).
──────────────────────────────
1) В качестве жилищно-гражданских объектов здесь и далее рассматривают микрорайоны, кварталы, группы жилых домов и общественных зданий.
──────────────────────────────
В настоящем стандарте использованы нормативные ссылки на следующие межгосударственные стандарты:
ГОСТ 2.303 Единая система конструкторской документации. Линии
ГОСТ 21.001 Система проектной документации для строительства. Общие положения
ГОСТ 21.110 Система проектной документации для строительства. Спецификация оборудования, изделий и материалов
ГОСТ 21.114 Система проектной документации для строительства. Правила выполнения эскизных чертежей общих видов нетиповых изделий
ГОСТ 21.204 Система проектной документации для строительства. Условные графические обозначения и изображения элементов генеральных планов и сооружений транспорта
ГОСТ 21.207 Система проектной документации для строительства. Условные графические обозначения на чертежах автомобильных дорог
ГОСТ 21.302 Система проектной документации для строительства. Условные графические обозначения в документации по инженерно-геологическим изысканиям
ГОСТ 21.701-2013 Система проектной документации для строительства. Правила выполнения рабочей документации автомобильных дорог
ГОСТ 21.702 Система проектной документации для строительства. Правила выполнения рабочей документации железнодорожных путей
Примечание - При пользовании настоящим стандартом целесообразно проверить действие ссылочных стандартов в сети Интернет на официальном сайте Межгосударственного совета по стандартизации, метрологии и сертификации (www.easc.by) или в указателях национальных стандартов, издаваемых в государствах, указанных в предисловии, или на официальных сайтах соответствующих национальных органов по стандартизации. Если на стандарт дана недатированная ссылка, то следует использовать стандарт, действующий на текущий момент, с учетом всех внесенных в него изменений. Если заменен ссылочный стандарт, на который дана датированная ссылка, то следует использовать указанную версию этого стандарта. Если после принятия настоящего стандарта в ссылочный стандарт, на который дана датированная ссылка, внесено изменение, затрагивающее положение, на которое дана ссылка, то это положение применяется без учета данного изменения. Если ссылочный стандарт отменен без замены, то положение, в котором дана ссылка на него, применяется в части, не затрагивающей эту ссылку.
В настоящем стандарте применены термины по ГОСТ 21.001, а также следующие термины с соответствующими определениями:
3.1 генеральный план: Часть проектной 1) и рабочей документации, содержащая комплексное решение вопросов планировки и благоустройства объекта строительства, размещения зданий, сооружений, транспортных коммуникаций, сетей инженерно-технического обеспечения.
──────────────────────────────
1) В Российской Федерации соответствующему разделу проектной документации присвоено наименование "Схема планировочной организации земельного участка".
──────────────────────────────
3.2 благоустройство территории: Комплекс мероприятий по инженерной подготовке к озеленению, устройству покрытий, освещению, размещению малых архитектурных форм и объектов монументального искусства, направленных на улучшение функционального, санитарного, экологического и эстетического состояния участка.
3.3 красная линия: Граница, отделяющая территорию квартала, микрорайона и других элементов планировочной структуры от улиц, дорог, проездов, площадей, а также других земель общего пользования в городских и сельских поселениях.
3.4
|
строительная геодезическая сетка: Геодезическая сеть в виде системы квадратов или прямоугольников, ориентированных параллельно большинству разбивочных осей сооружений. [ГОСТ 22268-76, статья 145] |
3.5 элементы благоустройства территории: Декоративные, технические, планировочные, конструктивные устройства, растительные компоненты, различные виды оборудования и оформления, малые архитектурные формы, некапитальные нестационарные сооружения, наружная реклама и информация, применяемые как составные части благоустройства.
4.1 Рабочую документацию генеральных планов выполняют в соответствии с требованиями настоящего стандарта и других взаимосвязанных стандартов системы проектной документации для строительства (СПДС).
4.2 В состав рабочей документации генерального плана включают:
- рабочие чертежи генерального плана (основной комплект рабочих чертежей марки ГП). При объединении в одном основном комплекте рабочих чертежей генерального плана и сооружений транспорта основному комплекту рабочих чертежей присваивают марку ГТ;
- эскизные чертежи общих видов нетиповых изделий, конструкций, устройств и малых архитектурных форм, выполняемые по ГОСТ 21.114;
- спецификацию оборудования, изделий и материалов;
- локальную смету (при необходимости).
4.3 В состав основного комплекта рабочих чертежей генерального плана включают:
- общие данные по рабочим чертежам;
- разбивочный план;
- план организации рельефа;
- план земляных масс;
- сводный план сетей инженерно-технического обеспечения;
- план благоустройства территории.
При большой насыщенности планов выполняют выносные элементы (фрагменты, узлы).
4.4 При малой насыщенности изображений допускается совмещать несколько различных планов в один с присвоением ему соответствующего наименования.
Примеры
1 Разбивочный план и план организации рельефа.
2 План организации рельефа и земляных масс.
4.5 Рабочие чертежи выполняют на основе инженерно-топографического плана (кроме плана земляных масс).
Рабочие чертежи на бумажном носителе и в виде электронных документов могут быть выполнены на основе цифровой модели местности.
Допускается разбивочный план, сводный план инженерных сетей и план благоустройства территории выполнять без нанесения горизонталей рельефа местности.
4.6 Контуры проектируемых зданий и сооружений наносят на план согласно рабочим чертежам архитектурных решений, принимая координационные оси зданий и сооружений совмещенными с внутренними гранями стен.
Если расстояние от наружной грани стены здания или сооружения до координационной оси в масштабе изображения превосходит толщину линии контура здания, последнюю относят от координационной оси на соответствующее расстояние.
4.7 Планы располагают длинной стороной условной границы территории вдоль длинной стороны листа, при этом северную часть территории, как правило, располагают вверху. Допускается отклонение ориентации на север в пределах 90° влево или вправо. Планы, расположенные на разных листах, выполняют с одинаковой ориентацией.
Направление севера на планах указывают в левом верхнем углу листа стрелкой с буквой "С" у острия.
4.8 Допускается делить план на несколько участков, размещая их на отдельных листах. В этом случае на каждом листе, где показан участок плана, приводят схему целого плана с разбивкой его на участки, указывают номера листов, на которых они размещены, и штриховкой обозначают участок, показанный на данном листе.
4.9 Рабочие чертежи генеральных планов допускается выпускать поэтапно - разработками по мере выполнения соответствующих рабочих чертежей зданий, сооружений проектируемого предприятия или жилищно-гражданского объекта.
В этом случае каждую разработку оформляют по состоянию на определенную дату с соответствующими дополнениями рабочих чертежей. Разработкам присваивают порядковые номера.
Вторую и последующие разработки не рассматривают и не оформляют как внесение изменений.
Примечание - При выпуске рабочих чертежей в виде электронных документов порядковый номер разработки учитывается как номер версии электронного документа.
4.10 При выпуске второй и последующих разработок слева от основной надписи в соответствии с рисунком 1 наносят графы, предназначенные для подписания документа, аналогичные графам основной надписи.

Рисунок 1
Над основной надписью помещают ведомость разработок чертежа:
- для разбивочного плана, планов организации рельефа, земляных масс и благоустройства территории - по форме 1 (приложение А);
- для сводного плана сетей инженерно-технического обеспечения - по форме 2 (приложение А).
Примеры оформления ведомостей разработок приведены на рисунках Б.1 и Б.2 (приложение Б).
4.11 Изображения на чертежах генерального плана выполняют линиями по ГОСТ 2.303 с учетом дополнительных требований ГОСТ 21.204:
- сплошной толстой основной - контуры проектируемых зданий и сооружений (кроме зданий и сооружений на плане земляных масс), проектируемые наземные и надземные сети инженерно-технического обеспечения, красную линию;
- штриховой толстой - проектируемые подземные сети инженерно-технического обеспечения, контуры проектируемых подземных сооружений;
- штриховой тонкой - линии "нулевых" работ и перелома проектного рельефа;
- штрихпунктирной тонкой - оси коммуникационных сооружений;
- сплошной тонкой - проектируемые здания, сооружения на плане земляных масс, оси строительной геодезической сетки, контуры существующих зданий, сооружений, существующие дороги и сети инженерно-технического обеспечения, проектные горизонтали с отметками, не кратными 0,50 м, все остальные элементы генерального плана;
- сплошной тонкой утолщенной - проектные горизонтали с отметками, кратными 0,50 м.
Нижнюю границу (подошву) откоса насыпи изображают пунктирной линией.
Поперечные профили проектируемых тротуаров, дорожек, площадок изображают линиями, предусмотренными ГОСТ 21.701 для поперечных профилей автомобильных дорог.
4.12 Основные условные графические обозначения и изображения элементов генерального плана и сооружений транспорта принимают по ГОСТ 21.204.
Условные графические обозначения элементов автомобильных дорог принимают по ГОСТ 21.207.
Условные графические обозначения материалов и грунтов, используемые на поперечных профилях тротуаров, дорожек и площадок, принимают по ГОСТ 21.302.
4.13 Система высотных отметок, принимаемая в рабочих чертежах генеральных планов, должна соответствовать системе высотных отметок, принятой на инженерно-топографическом плане.
4.14 Размеры, координаты и высотные отметки указывают в метрах с двумя десятичными знаками, отделенными от целого числа запятой.
4.15 Угловые размеры указывают в градусах, минутах, а при необходимости - секундах, с обозначением единицы измерения, например 4°; 4° 30'; 12° 45' 30''.
4.16 Числовое значение уклонов указывают в промилле без обозначения единицы измерения.
Крутизну откосов указывают в виде отношения единицы высоты откоса к соответствующей горизонтальной проекции.
Пример - 1:1; 1:1,5; 1:0,5.
4.17 При выполнении рабочих чертежей генерального плана порядковые номера зданий и сооружений (в том числе ограждений, подпорных стенок, эстакад, галерей, тоннелей) принимают, как правило, по генеральному плану, разработанному на предыдущих стадиях проектирования.
Водоотводным сооружениям (канавам, лоткам, трубам) присваивают самостоятельные порядковые номера.
При объединении в одном основном комплекте чертежей генерального плана и сооружений транспорта железнодорожным путям и автомобильным дорогам присваивают самостоятельные порядковые номера.
Допускается не присваивать порядковые номера автомобильным дорогам и водоотводным сооружениям. В этом случае на плане указывают их координаты.
4.18 К планам (кроме плана земляных масс) составляют:
- экспликацию зданий и сооружений по форме 3 (приложение А) - для генеральных планов предприятий производственного назначения;
- ведомость жилых и общественных зданий и сооружений по форме 4 (приложение А) - для генеральных планов жилищно-гражданских объектов.
Допускается экспликацию или ведомость зданий и сооружений приводить только в общих данных по рабочим чертежам или в виде отдельного документа основного комплекта рабочих чертежей. В этом случае в технических требованиях на листах чертежей рекомендуется приводить соответствующую ссылку.
4.19 В графах экспликации зданий и сооружений указывают:
- в графе "Номер на плане" - номер или код здания, сооружения;
- в графе "Наименование" - наименование здания, сооружения;
- в графе "Координаты квадрата сетки" - координаты нижнего левого угла квадрата строительной геодезической сетки, в пределах которого на изображении здания и сооружения нанесен его номер.
Пример оформления экспликации зданий и сооружений приведен на рисунке В.1 (приложение В).
4.20 В графах ведомости жилых и общественных зданий и сооружений указывают:
- в графе "Номер на плане" - номер или код здания, сооружения;
- в графе "Наименование и обозначение" - наименование здания, сооружения с указанием его обозначения;
- в остальных графах - данные в соответствии с наименованиями граф.
Пример оформления ведомости жилых и общественных зданий и сооружений приведен на рисунке Г.1 (приложение Г).
4.21 Чертежи выполняют в масштабах по ГОСТ 2.302 с учетом насыщенности их информацией. Рекомендуемые масштабы изображений приведены в таблице 1.
Таблица 1
|
Наименование изображения |
Масштаб | |
|
основной |
допускаемый | |
|
Ситуационный план |
1:5000; 1:10 000 |
1:25 000 |
|
Разбивочный план; план организации рельефа; план земляных масс; сводный план сетей инженерно-технического обеспечения; план благоустройства территории |
1:500; 1:1000 |
1:2000 |
|
Фрагменты плана |
1:200 |
1:100 |
|
Поперечные профили тротуаров, дорожек, площадок |
1:20 |
1:10 |
|
Узлы |
1:10 |
- |
Если на листе помещено одно изображение, его масштаб указывают в основной надписи после наименования изображения.
Если на листе помещено несколько изображений, выполненных в разных масштабах, их масштабы указывают в круглых скобках после наименования каждого изображения на поле чертежа.
5.1 В состав общих данных по рабочим чертежам марки ГП в дополнение к общим сведениям 1) включают при необходимости ситуационный план размещения объекта капитального строительства (для объектов производственного назначения).
──────────────────────────────
1) В Российской Федерации требования к выполнению и содержанию общих данных по рабочим чертежам, в том числе общих указаний, установлены в ГОСТ Р 21.1101-2013 "Система проектной документации для строительства. Основные требования к проектной и рабочей документации".
──────────────────────────────
5.2 Ведомость спецификаций в составе общих данных по рабочим чертежам марки ГП не выполняют.
5.3 На ситуационном плане показывают размещение объекта строительства в увязке с производственной базой строительно-монтажной организации, ближайшими населенными пунктами, источниками и внешними сетями энерго-, тепло- и водоснабжения, сооружениями и сетями канализации, транспорта и связи, карьерами и отвалами, а также основные особенности природных условий территории в районе строительства (в виде розы ветров, волнений и т.п.).
5.4 В общих указаниях в дополнение к общим сведениям приводят:
- обозначения и наименования документов, являющихся основанием для разработки рабочих чертежей генерального плана (например, материалов инженерно-геодезических и инженерно-геологических изысканий),
- сведения о принятых при топографической съемке системе высот и системе координат.
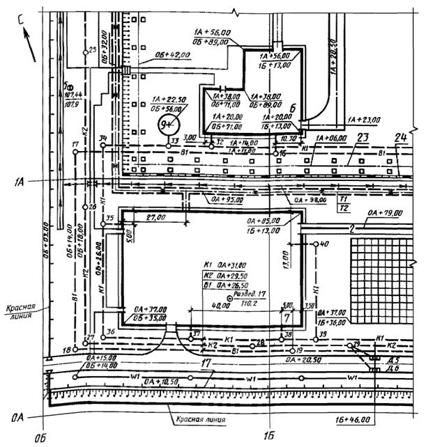
6.1 На разбивочном плане (плане расположения зданий и сооружений) наносят и указывают:
- строительную геодезическую сетку или заменяющий ее разбивочный базис, а для жилищно-гражданских объектов, кроме того, городскую геодезическую сеть, которая должна перекрывать весь план;
- красную линию, отделяющую территорию, предназначенную под застройку, от улиц, дорог, проездов, площадей, и границу земельного участка, предоставленного для размещения объекта капитального строительства;
- ограждения с воротами и калитками. При размещении ограждения на красной линии или на границе земельного участка наносят только ограждение с соответствующим пояснением на чертеже;
- скважины и шурфы инженерно-геологических изысканий, не указанные на инженерно-топографическом плане;
- здания и сооружения, в том числе коммуникационные (эстакады, тоннели);
- площадки производственные и складские;
- автомобильные дороги и площадки с дорожным покрытием;
- железнодорожные пути;
- элементы благоустройства (тротуары, площадки спортивные и для отдыха);
- элементы и сооружения планировочного рельефа (откосы, подпорные стенки, пандусы);
- водоотводные сооружения.
6.2 Разбивочный план выполняют с координатной привязкой в системе координат строительной геодезической сетки или инженерно-топографического плана или с размерной привязкой от разбивочного базиса.
6.3 Строительную геодезическую сетку наносят на весь разбивочный план в виде квадратов со сторонами 100 мм.
Начало координат принимают в нижнем левом углу листа.
Оси строительной геодезической сетки обозначают арабскими цифрами, соответствующими количеству сотен метров от начала координат, и прописными буквами русского алфавита ("А" - для горизонтальных осей, "Б" - для вертикальных). Допускается применять в обозначении буквы латинского алфавита.
Примеры
1 0А (начало координат); 1А; 2А; 3А.
2 0Б (начало координат); 1Б; 2Б; 3Б.
На планах, выполняемых в масштабе 1:500, оси строительной геодезической сетки наносят через 50 м. Промежуточным осям присваивают обозначение предшествующей оси с добавлением индекса "+ 50".
Примеры
1 0А+50; 1А+50; 2А+50.
2 0Б+50; 1Б+50; 2Б+50.
Допускается при необходимости применение отрицательных значений осей строительной геодезической сетки.
Примеры
1 0А-50; - 1А; - 1А-50; - 2А; - 2А-50.
2 0Б-50; - 1Б; - 1Б-50; - 2Б; - 2Б-50.
Допускается при реконструкции и техническом перевооружении действующих предприятий сохранять ранее принятые обозначения осей строительной геодезической сетки.
Координаты точек обозначают по типу 2А+25,00; 3Б+77,50; 0А-85,00; - 1Б-40,30 и на чертеже наносят: вертикальную - над полкой линии-выноски, горизонтальную - под полкой. На чертежах, выполняемых в масштабе 1:500, координаты точек указывают от основных осей.
6.4 Строительную геодезическую сетку на план не наносят в случае привязки отдельных проектируемых зданий и сооружений в системе координат инженерно-топографического плана к разбивочному базису или существующим зданиям и сооружениям.
Разбивочным базисом может быть любая прямая линия, проходящая через две закрепленные на местности точки, которые обозначают прописными буквами.
6.5 В системе координат инженерно-топографического плана координаты точек на чертеже наносят: координату X (на север) - над полкой линии выноски, координату Y (на восток) - под полкой линии-выноски.
Пример -
.
6.6 Здания и сооружения на плане наносят в масштабе чертежа с указанием проемов ворот и дверей, крайних осей и при необходимости координат осей ворот или привязки ворот к координационным осям здания.
6.7 Внутри контура здания (сооружения) указывают:
а) номер здания, сооружения в нижнем правом углу;
б) абсолютную отметку, соответствующую условной нулевой отметке, принятой в чертежах здания, сооружения, которую помещают на полке линии-выноски знака отметки уровня (для жилищно-гражданских объектов - при необходимости).
6.8 На контуре здания, сооружения указывают:
- координаты точек пересечения координационных осей здания, сооружения в двух его противоположных углах, а при сложной конфигурации здания, сооружения или расположении его не параллельно осям строительной геодезической сетки - во всех углах; для центрических сооружений - координаты центра и одной характерной точки, а также диаметр; для линейных сооружений - координату оси или координаты начала и конца отдельных участков;
- размерную привязку координационных осей здания, сооружения к разбивочному базису и размеры здания, сооружения между осями при отсутствии строительной геодезической сетки;
- обозначение координационных осей здания, сооружения в координируемых точках.
6.9 Вокруг контура здания, сооружения показывают отмостку и въездные пандусы, наружные лестницы и площадки у входов.
6.10 При наличии отдельного основного комплекта рабочих чертежей автомобильных дорог (марки АД) на разбивочном плане основного комплекта рабочих чертежей марки ГП в части автомобильных дорог наносят и указывают:
- переезды через железнодорожные пути;
- транспортные развязки;
- координаты или привязки осей автомобильных дорог и при необходимости их номера;
- ширину автомобильных дорог;
- радиусы кривых по кромке проезжей части автомобильных дорог в местах их взаимного пересечения и примыкания;
- откосы насыпей и выемок (при необходимости).
6.11 При выполнении чертежей автомобильных дорог в составе основного комплекта рабочих чертежей марки ГТ (см. 4.2) разбивочный план выполняют с учетом положений ГОСТ 21.701.
6.12 При наличии отдельного основного комплекта рабочих чертежей железнодорожных путей (марки ПЖ) на разбивочном плане основного комплекта рабочих чертежей марки ГП в части железнодорожных путей наносят и указывают:
- номера путей;
- стрелочные переводы;
- упоры;
- откосы насыпей и выемок (при необходимости).
6.13 При выполнении чертежей железнодорожных путей в составе основного комплекта рабочих чертежей марки ГТ разбивочный план выполняют с учетом положений ГОСТ 21.702. При этом отметки дна и значение уклонов водоотводных сооружений и уклоноуказатели не указывают.
6.14 К разбивочному плану составляют ведомость водоотводных сооружений по форме 5 (приложение А).
Пример оформления ведомости водоотводных сооружений приведен на рисунке Д.1 (приложение Д).
6.15 Пример оформления разбивочного плана производственного предприятия с координатной привязкой приведен на рисунке Е.1 (приложение Е).
7.1 План организации рельефа выполняют на основе разбивочного плана без указания и нанесения координационных осей зданий и сооружений, координат, размеров и размерных привязок.
7.2 На плане организации рельефа наносят и указывают:
- абсолютные отметки внутри контура зданий и сооружений в соответствии с перечислением б) 6.7;
- проектные отметки и уклоноуказатели по красным линиям;
- проектные горизонтали или проектные отметки опорных точек планировки с указанием направления уклона проектного рельефа;
- отметки низа и верха откосов, лестниц, подпорных стенок, пандусов;
- отметки дна в местах переломов продольного профиля, направление и числовое значение уклонов водоотводных сооружений;
- дождеприемные решетки в пониженных точках проектного рельефа с отметками верха решеток;
- проектные отметки планировки и фактические отметки рельефа местности по внешнему контуру отмостки в углах зданий и сооружений или при отсутствии отмостки указанные отметки в местах пересечения наружных граней стен с рельефом в углах зданий и сооружений - в виде дроби с проектной отметкой в числителе и фактической - в знаменателе;
- проектные отметки планировки и фактические отметки рельефа местности (при необходимости) по верху площадок различного назначения в местах пересечения их краев с рельефом по углам и в характерных точках;
- линии перелома проектного рельефа - при выполнении плана в проектных отметках опорных точек планировки;
- направление уклона проектного рельефа: бергштрихами - при выполнении плана в проектных горизонталях и стрелками - при выполнении плана в проектных отметках.
7.3 На плане организации рельефа в части автомобильных дорог наносят и указывают:
- проектные горизонтали - при выполнении плана в проектных горизонталях;
- контуры поперечного профиля автомобильных дорог - при выполнении плана в проектных отметках,
- точки перелома продольного профиля с проектными отметками;
- уклоноуказатели по оси проезжей части автомобильных дорог;
- водоотводные сооружения - кюветы, лотки с отметками дна в местах переломов продольного профиля и значение уклонов дна сооружений;
- дождеприемные решетки в пониженных точках продольного профиля с отметками верха решеток.
7.4 На плане организации рельефа в части железнодорожных путей наносят и указывают:
- уклоноуказатели;
- отметки дна водоотводных сооружений в местах переломов продольного профиля и значение уклонов дна сооружений.
7.5 План организации рельефа, как правило, выполняют в проектных горизонталях.
7.6 При выполнении плана организации рельефа в проектных горизонталях их проводят с сечением рельефа через 0,10 или 0,20 м по всей планируемой территории (земляной поверхности, автомобильным дорогам, площадкам). Допускается на участках с однообразным уклоном рельефа наносить проектные горизонтали с сечением рельефа через 0,50 м.
Отметки проектных горизонталей надписывают со стороны повышения рельефа. Отметки проектных горизонталей, кратные 1,00 м, указывают полностью, промежуточные - приводят в виде целого числа, соответствующего двум знакам после запятой.
7.7 При выполнении плана организации рельефа в проектных отметках опорных точек планировки в качестве опорных точек, как правило, принимают:
- углы зданий, сооружений и площадок;
- повышенные и пониженные точки проектного рельефа;
- пересечение осей автомобильных дорог;
- точки перелома продольного профиля автомобильных дорог и железнодорожных путей.
7.8 Проектные отметки входа и выхода по дну труб и междушпальных лотков, отметки переломных точек по дну водоотводных канав и лотков указывают на полке линии-выноски от соответствующих точек водоотводных канав и лотков, при этом перед отметками приводят сокращения: Д. л. - дно лотка; Д. к. - дно канавы.
7.9 Примеры оформления планов организации рельефа в проектных горизонталях и проектных отметках опорных точек планировки приведены соответственно на рисунке Ж.1 (приложение Ж) и рисунке И.1 (приложение И).
8.1 Подсчет объемов земляных масс выполняют, как правило, методом квадратов.
Допускается выполнять план земляных масс с использованием других методов. Содержание и форму плана определяют методом подсчета объемов земляных масс и условиями производства работ.
8.2 На плане земляных масс наносят и указывают:
- строительную геодезическую сетку или заменяющий ее разбивочный базис;
- сетку квадратов для подсчета объема земляных масс с проектными, фактическими и рабочими отметками в углах квадратов, линию "нулевых" работ с выделением площади выемок штриховкой под углом 45° к основанию сетки и указанием объема земляных масс в пределах каждого квадрата или иной фигуры, образуемой контуром планировки;
- здания и сооружения;
- ограждение или условную границу территории;
- откосы, подпорные стенки.
8.3 Сетку квадратов, как правило, вписывают в строительную геодезическую сетку, принимая сторону квадрата соответствующей 20 м в масштабе чертежа. Допускается привязка сетки квадратов к красной линии или разбивочному базису, а также применение сетки квадратов со сторонами, соответствующими 10, 25, 40 или 50 м в масштабе чертежа, в зависимости от характера рельефа и обеспечения требуемой точности подсчета объема земляных масс.
Допускается в зависимости от конфигурации планируемой территории для подсчета объема земляных масс применять фигуры, отличные от квадрата. В этих случаях размеры фигур указывают на чертеже.
8.4 Под каждой колонкой квадратов плана земляных масс приводят таблицу по форме 6 (приложение А), в соответствующих графах которой указывают суммарные объемы насыпи и выемки по колонке квадратов, а в строках суммарных объемов справа - общие объемы насыпи и выемки по всей планируемой территории.
8.5 В случае залегания в пределах планируемой территории грунтов, подлежащих удалению (плодородный почвенный слой, торф, грунт, не пригодный в качестве основания зданий, сооружений), до разработки плана земляных масс для всей территории выполняют план удаления грунтов в пределах контура залегания грунтов, подлежащих удалению, оформляя его аналогично плану земляных масс.
На плане удаления грунтов за проектные отметки принимают отметки низа подлежащего снятию грунта, которые при последующем выполнении плана земляных масс рассматривают как фактические отметки.
При наличии на территории строительства разнородных грунтов допускается выполнять планы для каждого вида грунта, присваивая чертежу соответствующее наименование.
Примеры
1 План земляных масс. Снятие строительного мусора.
2 План земляных масс. Разработка скальных грунтов.
В случае залегания грунтов, подлежащих удалению, слоем одной мощности план удаления грунтов допускается не выполнять. При этом за фактические отметки для плана земляных масс принимают отметки низа грунтов, подлежащих удалению, а вычисленный объем удаляемых грунтов вносят в соответствующие строки и графы ведомости объемов земляных масс, которую составляют к плану земляных масс по форме 7 (приложение А).
8.6 На плане земляных масс приводят технические требования о необходимости корректировки рабочих отметок в местах устройства газонов, корыта под одежду дорог, площадок и верхнего строения железнодорожных путей.
8.7 Примеры оформления плана земляных масс и ведомости объемов земляных масс приведены соответственно на рисунке К.1 (приложение К) и на рисунке Л.1 (приложение Л). Примеры разработаны для случая выполнения вертикальной планировки до начала возведения зданий и сооружений.
9.1 Сводный план сетей инженерно-технического обеспечения выполняют на основе разбивочного плана, но без указания абсолютных отметок зданий, сооружений, привязки ворот и обозначений координационных осей зданий, сооружений.
Сети инженерно-технического обеспечения выполняют условными графическими обозначениями по ГОСТ 21.204.
При необходимости на сводном плане сетей наносят внешние контуры подошвы фундаментов проектируемых и существующих зданий, сооружений.
На изображениях автомобильных дорог и железнодорожных путей указывают только координаты или привязки их осей.
9.2 На сводном плане сетей наносят и указывают:
- коммуникационные сооружения для прокладки сетей;
- подземные, наземные и надземные сети;
- дождеприемные решетки, опоры и стойки коммуникационных сооружений;
- места подключения проектируемого объекта к существующим сетям инженерно-технического обеспечения.
9.3 Сети инженерно-технического обеспечения наносят по рабочим чертежам соответствующих основных комплектов с координатной или линейной привязкой оси сети на каждом характерном участке, с изображением компенсаторов, ниш, колодцев, камер и с указанием их обозначений.
9.4 Пример оформления сводного плана сетей инженерно-технического обеспечения приведен на рисунке М.1 (приложение М).
10.1 План благоустройства территории выполняют на основе разбивочного плана без указания координационных осей, координат и размерных привязок, абсолютных отметок зданий, сооружений.
На изображениях автомобильных дорог и железнодорожных путей при необходимости указывают только координаты или привязки их осей.
10.2 На плане благоустройства территории наносят и указывают:
- проезды, тротуары, пешеходные дорожки, велодорожки и их ширину;
- стоянки для автомобилей и их размеры;
- площадки различного назначения и их размеры;
- малые архитектурные формы (в том числе ограждения площадок и стоянок) и переносные изделия площадок для отдыха;
- деревья, кустарники, цветники, газоны.
10.3 При большой насыщенности плана благоустройства территории допускается выполнять вместо него несколько планов по видам работ с присвоением каждому плану соответствующего наименования.
Примеры
1 План озеленения.
2 План расположения малых архитектурных форм.
3 План проездов; тротуаров, дорожек и площадок.
10.4 Деревья, кустарники, цветники, газоны наносят условными графическими обозначениями по ГОСТ 21.204.
Малые архитектурные формы (беседки, навесы, фонтаны, скульптуры, перголы и т.п.) и другие конструкции, изделия, устройства (скамьи, урны и т.п.) наносят в виде упрощенных изображений в масштабе чертежа или условными графическими обозначениями.
10.5 Элементы благоустройства привязывают к наружным граням стен зданий, сооружений, красным линиям, автомобильным дорогам или железнодорожным путям.
Для рядовой посадки деревьев и кустарников приводят размерную привязку ряда.
10.6 При сложной конфигурации дорожек, при расположении деревьев и кустарников свободными группами допускается взамен размерной привязки наносить на участках их расположения вспомогательную сетку в виде квадратов со сторонами 10 мм, с привязкой ее к строительной геодезической сетке, разбивочному базису, зданиям, сооружениям, автомобильным дорогам и железнодорожным путям.
10.7 Элементам благоустройства присваивают позиционные обозначения (номера позиций), которые указывают на плане и в соответствующих ведомостях.
Номера позиций тротуаров, дорожек, площадок на плане указывают на полках линий-выносок или внутри контура (для площадок).
Номера позиций малых архитектурных форм и переносных изделий на плане указывают в окружностях диаметром 6-8 мм согласно рисунку 2а.
Позиционные обозначения элементов озеленения на плане указывают в окружностях диаметром 8-12 мм в виде дроби, в числителе которой приводят порядковый номер породы или вида насаждения, а в знаменателе - количество или площадь (для цветников) согласно рисунку 2б.
|
|
|
|
а |
б |
Рисунок 2
10.8 К плану благоустройства территории выполняют:
- ведомость малых архитектурных форм и переносных изделий по форме 8 (приложение А), пример оформления которой приведен на рисунке Н.1 (приложение Н);
- ведомость элементов озеленения по форме 9 (приложение А), пример оформления которой приведен на рисунке П.1 (приложение П);
- ведомость тротуаров, дорожек и площадок по форме 10 (приложение А), пример оформления которой приведен на рисунке Р.1 (приложение Р);
- поперечные профили тротуаров, дорожек и площадок, выполняемые согласно подразделу 9.2 ГОСТ 21.701-2013. Примеры оформления поперечных профилей тротуаров, дорожек и площадок приведены на рисунках С.1-С.3 (приложение С);
- ведомость автомобильных дорог, подъездов и проездов по форме 2 ГОСТ 21.701 - для жилищно-гражданских объектов. Пример оформления ведомости приведен на рисунке Р.2 (приложение Р).
На планах приводят соответствующие технические требования, например по условиям посадки деревьев и кустарников, устройству цветников и газонов и т.п.
10.9 Допускается ведомости, указанные в 10.8, помещать в общих данных по рабочим чертежам.
10.10 Примеры оформления плана благоустройства, выполненного в виде нескольких планов по видам работ (см. 10.3), приведены:
- на рисунке Т.1 (приложение Т) - план озеленения;
- на рисунке У.1 (приложение У) - план расположения малых архитектурных форм и переносных изделий;
- на рисунке Ф.1 (приложение Ф) - план проездов, тротуаров, дорожек, площадок.
11.1 Спецификацию оборудования, изделий и материалов (далее - спецификация) к основному комплекту рабочих чертежей марки ГП составляют и обозначают по ГОСТ 21.110 с учетом требований настоящего стандарта.
11.2 Устройства (изделия) и материалы в спецификации записывают по группам в следующей последовательности:
- элементы площадок различного назначения, подъездов, проездов, тротуаров, наружных лестниц из сборных конструкций;
- элементы водоотводных и укрепительных устройств из сборных конструкций;
- трубопроводы дренажные;
- малые архитектурные формы и переносные изделия;
- элементы озеленения;
- материалы.
В группы "Элементы площадок различного назначения, подъездов, проездов, тротуаров, наружных лестниц" и "Элементы водоотводных и укрепительных устройств" включают элементы сборных конструкций (плиты дорожные, тротуарные, камни бортовые, а также опоры под них, блоки и плиты лотков, плиты и упоры укрепления, изделия арматурные для монолитных конструкций, элементы наружных лестниц и другие элементы сборных конструкций).
В группу "Трубопроводы дренажные" включают трубопровод по каждому диаметру с указанием в графе "Наименование и техническая характеристика" наименований труб и обозначений документов на трубы.
В группу "Элементы озеленения" включают деревья, кусты, семена, удобрения.
В группу "Материалы" включают щебень, гравий, песок, цемент и/или бетон, асфальтобетон, битум, гидроизоляционные, геосинтетические и другие основные материалы, необходимые для производства строительно-монтажных работ по устройству площадок, проездов, подъездов, тротуаров, дорожек, водоотвода, укрепления земляного полотна.
11.3 В спецификации принимают следующие единицы измерений:
- плиты дорожные, тротуарные, камни бортовые, блоки и плиты лотков, плиты и упоры укрепления, изделия арматурные для монолитных конструкций, элементы наружных лестниц и другие элементы сборных конструкций, а также деревья, кусты - шт.;
- трубопроводы дренажные - м;
- гидроизоляционные и геосинтетические материалы (георешетки, геотекстиль) - м2;
- искусственные покрытия детских, спортивных и других площадок - м2;
- щебень, гравий, песок, бетон - м3;
- семена, удобрения, другие материалы (например, цемент, битум, асфальтобетон, краска) - кг или т.
11.4 При объединении рабочих чертежей генерального плана и сооружений транспорта в один основной комплект марки ГТ спецификацию, как правило, делят на части:
- генеральный план;
- дороги автомобильные;
- пути железнодорожные.
Оборудование, устройства (изделия) и материалы в частях спецификации "Дороги автомобильные" и "Пути железнодорожные" записывают в соответствии с ГОСТ 21.701 и ГОСТ 21.702.
11.5 При выполнении основного комплекта рабочих чертежей марки ГП поэтапными разработками спецификацию составляют по каждой разработке. В этом случае к обозначению спецификации (СО) добавляют порядковый номер, соответствующий номеру разработки, например СО1, СО2.
Приложение А
(рекомендуемое)
Форма 1

Форма 2

Форма 3

Примечание - При привязке зданий и сооружений к разбивочному базису графу "Координаты квадрата сетки" исключают или заменяют графой "Примечание".
Форма 4

Форма 5

Форма 6 - Таблица к плану земляных масс

Примечание - Количество граф n и их ширина t должны соответствовать сетке квадратов плана земляных масс.
Форма 7

Примечания
1 Содержание боковика, размеры граф и количество строк уточняют по проектным данным.
2 Во второй строке головки таблицы вместо многоточия приводят наименование территории, по которой приводят данные, например "Предзаводская территория", "Жилая застройка". Количество выделяемых частей территории уточняют по проектным данным.
Форма 8

Форма 9

Форма 10

Приложение Б
(рекомендуемое)

Рисунок Б.1 - Пример оформления ведомости разработок чертежа

Рисунок Б.2 - Пример оформления ведомости разработок сводного плана сетей инженерно-технического обеспечения
Примечание - Пример оформления ведомости приведен с привязкой сетей в системе координат строительной геодезической сетки.
Приложение В
(справочное)

Рисунок В.1
Приложение Г
(справочное)

Рисунок Г.1
Приложение Д
(справочное)

Рисунок Д.1
Приложение Е
(справочное)

Рисунок Е.1
Приложение Ж
(справочное)

Рисунок Ж.1
Приложение И
(справочное)

Рисунок И.1
Приложение К
(справочное)

Рисунок К.1
Приложение Л
(справочное)
|
Наименование грунта |
Количество, м3 |
Примечание | |||
|
Заводская территория |
Предзаводская территория | ||||
|
Насыпь (+) |
Выемка (-) |
Насыпь (+) |
Выемка (-) | ||
|
1 Грунт планировки территории |
150 000 |
96 480 * |
61 240 |
56 660 |
ГП (6) |
|
2 Вытесненный грунт, |
- |
74 120 |
10 600 |
- | |
|
в т.ч. при устройстве: | |||||
|
а) подземных частей зданий и сооружений |
- |
(25 000) |
- |
- |
КЖ (2,4) |
|
б) автомобильных дорог |
- |
(46 000) |
(10 420) |
АД (2) | |
|
в) ж.-д. путей |
(1500) |
- |
- |
ПЖ (2) | |
|
г) подземных сетей |
- |
(300) |
(40) |
НВК (1, 2) | |
|
д) водоотводных сооружений |
- |
(460) |
- |
- |
ГП (3) |
|
е) плодородной почвы на участках озеленения |
- |
(860) |
- |
(140) |
ГП (4) |
|
3 Грунт для устройства высоких полов зданий и обвалований сооружений |
6900 |
- |
- |
- |
АР (7) |
|
4 Поправка на уплотнение |
15 690 |
- |
6120 |
- |
Инж.-геол. изыск. |
|
5 Всего пригодного грунта |
172 590 |
170 600 |
67 360 |
67 260 | |
|
6 Недостаток/избыток пригодного грунта |
- |
1990 ** |
- |
100 * | |
|
7 Грунт, непригодный для устройства насыпи оснований зданий, сооружений и подлежащий удалению с территории (торф) |
47 300 *** |
47 300 |
7140 * |
7140 |
ГП (5) |
|
8 Плодородный грунт, всего, |
- |
44 500 |
- |
7340 |
ГП (4) |
|
в т.ч.: | |||||
|
а) используемый для озеленения территории |
860 |
- |
140 |
- | |
|
б) избыток плодородного грунта (рекультивация земель) |
43 640 |
- |
7200 |
- | |
|
9 Итого перерабатываемого грунта |
264 390 |
264 390 |
81 840 |
81 840 | |
|
* С учетом предварительной срезки плодородного грунта. ** В карьере. *** В отвале. | |||||
Рисунок Л.1
Приложение М
(справочное)

Рисунок М.1
Приложение Н
(справочное)

Рисунок Н.1
Приложение П
(справочное)

Рисунок П.1
Приложение Р
(справочное)

Рисунок Р.1 - Пример оформления ведомости тротуаров, дорожек и площадок

Рисунок Р.2 - Пример оформления ведомости дорог, подъездов и проездов
Приложение С
(справочное)

Рисунок С.1

Рисунок С.2 Дорожка, площадка (тип ...)

Рисунок С.3
Приложение Т
(справочное)

Рисунок Т.1
Приложение У
(справочное)

Рисунок У.1
Приложение Ф
(справочное)

Рисунок Ф.1




