электронный сборник нормативных документов по строительству
Обновления
27.04.2026 22:55
электронный сборник нормативных документов по строительству

ГОСТ 26067.1-83 ЗВЕНЬЯ ЖЕЛЕЗОБЕТОННЫЕ БЕЗНАПОРНЫХ ТРУБ ПРЯМОУГОЛЬНОГО СЕЧЕНИЯ ДЛЯ ГИДРОТЕХНИЧЕСКИХ СООРУЖЕНИЙ. КОНСТРУКЦИЯ И РАЗМЕРЫ

Введен в действие постановлением Госстроя СССР от 8 декабря 1983 г. N 317
Государственный стандарт СССР ГОСТ 26067.1-83
"ЗВЕНЬЯ ЖЕЛЕЗОБЕТОННЫЕ БЕЗНАПОРНЫХ ТРУБ ПРЯМОУГОЛЬНОГО СЕЧЕНИЯ ДЛЯ ГИДРОТЕХНИЧЕСКИХ СООРУЖЕНИЙ. КОНСТРУКЦИЯ И РАЗМЕРЫ"

Reinforced concrete sections of nonpressure rectangular cross-section pipes for hydraulic structures. Structure and dimensions

Дата введения 1 января 1985 г.

1. Настоящий стандарт распространяется на железобетонные звенья безнапорных труб прямоугольного сечения, предназначенные для прокладки трубопроводов гидротехнических сооружений, и устанавливает конструкцию звеньев и арматурных изделий к ним.

2. Звенья должны удовлетворять всем требованиям ГОСТ 26067.0-83 и требованиям, изложенным в соответствующих пунктах настоящего стандарта.

3. Технические показатели звеньев приведены в таблице.

Марка звена

Класс бетона по прочности на сжатие

Марка бетона по водонепроницаемости

Расход материалов

Бетон, м3

Сталь, кг

ЗТП15.20-1

В225

W6

1, 93

111, 3

ЗТП15.20-2

1, 93

126, 5

ЗТП20.20.1

1, 66

103, 3

ЗТП20.20-2

1, 66

135, 1

ЗТП20.20-3

2, 36

174, 4

ЗТП25.20-1

2, 29

148, 3

ЗТП25.20-2

2, 29

194, 1

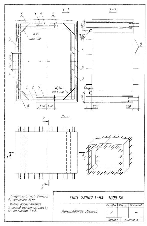
4. Армирование звеньев должно соответствовать указанному на листах 1-3 сборочного черт. 1000 СБ ГОСТ 26067.1-83.

5. Спецификация арматурных изделий на одно звено приведена на листах 1-3 черт. 1000; выборка стали - на листе 1 черт. 0000 ВС ГОСТ 26067.1-83.

6. Форма и размеры арматурных изделий должны; соответствовать указанным на черт. 1100 СБ, 1110 СБ, 1120 СБ, 1130 СБ, 1140 СБ, 1150 СБ, 1160 СБ, 1170 СБ ГОСТ 26067.1-83.

7. Спецификация арматурных изделий сеток приведена на черт. 1100, 1110, 1120 и 1130 ГОСТ 26067.1-83, каркасов - на черт. 1140 ГОСТ 26067.1-83.

8. Изготовление каркасов и сеток следует производить контактной точечной сваркой в соответствии с требованиями ГОСТ 10922-75 и СН 093-78.

9. Деталь стыка между звеньями трубы и расход стали на один стык приведены в рекомендуемом приложении.

image001.jpg
image002.jpg
image003.jpg
image004.jpg
image005.jpg
image006.jpg
image007.jpg
image008.jpg
image009.jpg
image010.jpg
image011.jpg
image012.jpg
image013.jpg
image014.jpg
image015.jpg
image016.jpg
image017.jpg
image018.jpg
image019.jpg
image020.jpg

Приложение

Рекомендуемое

Деталь стыка между звеньями трубы
image021.jpg
Ведомость расхода стали на один стык между звеньями

Поз.

Кол., шт.

Эскиз

Обозначение

Длина одной позиции, мм

Масса стали на один стык, кг

Примечание

1

4

-

6AI

ГОСТ 5781-82

1700

1700

2200

2200

2300

2800

2800

1, 5

1, 5

1, 95

1, 95

3, 6

2, 5

2, 5

2

4

-

8AIII

ГОСТ 5781-82

1700

2, 7

10AIII

ГОСТ 5781-82

1700

4, 2

14AIII

ГОСТ 5781-82

2200

2800

106, 0

14, 5

13, 5

16AIII

ГОСТ 5781-82

--

2200

2300

13, 9

18AIII

ГОСТ 5781-82

--

2500

2800

22, 4

3

4

-

6AIII

ГОСТ 5781-82

2300

2300

2400

2600

2500

2, 0

2, 0

2, 13

2, 25

2, 20

8AI

ГОСТ 5781-82

2400

2, 13

4, 10

4

4

-

6AI

ГОСТ 5781-82

2400

2500

2500

2, 13

2, 25

2, 20

8AI

ГОСТ 5781-82

2300

2300

2400

2600

3, 0

3, 6

2, 13

10AIII

ГОСТ 5781-82

3, 46

Вязальная

проволока

0, 50

0, 60

0, 80

1, 00

1, 40

1, 00

1, 50

Марка

ЗТП 15.20-1

ЗТП 15.20-2

ЗТП 20.20-1

ЗТП 20.20-2

ЗТП 20.20-3

ЗТП 25.20-1

ЗТП 25.20-2

ЗТП 15.20-1

ЗТП 15.20-2

ЗТП 20.20-1

ЗТП 20.20-2

ЗТП 20.20-3

ЗТП 25.20-1

ЗТП 25.20-2

Яндекс.Метрика