ГОСТ 21924.3-84 (28.12.1987) ПЛИТЫ ЖЕЛЕЗОБЕТОННЫЕ ДЛЯ ПОКРЫТИЯ ГОРОДСКИХ ДОРОГ. АРМАТУРНЫЕ И МОНТАЖНО-СТЫКОВЫЕ ИЗДЕЛИЯ. КОНСТРУКЦИЯ И РАЗМЕРЫ
С изменениями:
(28 декабря 1987 г.)
Reinforced concrete slabs for pavements of city roads. Structure fittings products. Structure and dimensions
Срок введения с 1 января 1985 г.
1. Настоящий стандарт распространяется на арматурные и монтажно-стыковые изделия железобетонных предварительно-напряженных плит по ГОСТ 21924.1-84 и плит с ненапрягаемой арматурой по ГОСТ 21924.2-84, предназначенных для устройства постоянных и временных городских дорог.
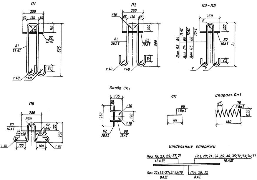
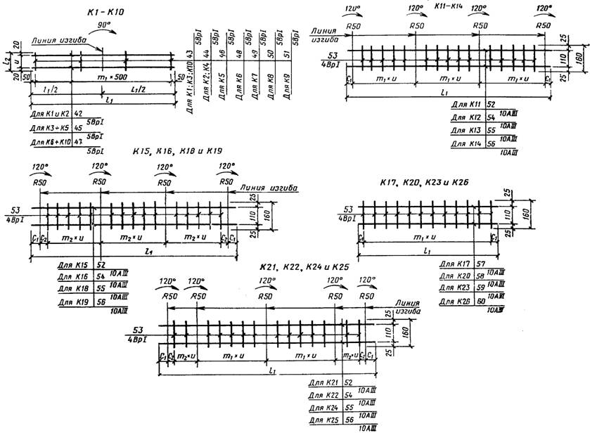
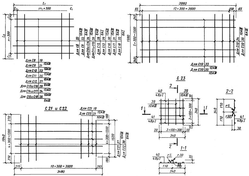
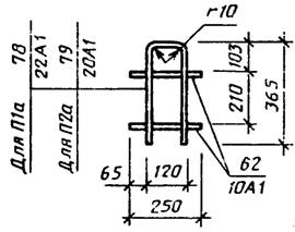
2. Форма и размеры арматурных и монтажно-стыковых изделий должны соответствовать указанным на черт.1 - 4 и в табл.1.
Примечание 1. При применении термомеханически упрочненной арматурной стали класса Ат-IIIС по ГОСТ 10884-81 стержнями из этой арматурной стали следует заменять в изделиях стержни из арматурной стали класса А-III тех же диаметров.
3. Спецификация и выборка арматурной стали на арматурные и монтажно-стыковые изделия приведены в табл.2.
4. В арматурных сетках должны быть сварены все пересечения стержней.
5. Соединения стержней в арматурных сетках и каркасах, монтажно-стыковых изделиях следует выполнять контактно-точечной сваркой по ГОСТ 14098-68.
6. Режимы сварки - по СН 393-78.
7. Технические требования, правила приемки и методы контроля - по ГОСТ 21924.0-84.
С1, С3, С5
С2, С4 и С6
Черт. 1
С8-С18
С19 и С20
Черт. 2
Черт. 3
П1а и П2а
Черт. 4
Таблица 1
|
Марка |
Размеры, мм | |||||||||
|
l1 |
l2 |
m1 |
m2 |
n |
u |
c1 |
c2 |
R |
r | |
|
C1 |
1820 |
- |
- |
- |
500 |
160 |
- |
- |
- | |
|
C2 |
600 |
10 | ||||||||
|
С3 |
1700 |
500 |
100 | |||||||
|
C4 |
560 |
10 | ||||||||
|
C5 |
1950 |
580 |
105 | |||||||
|
C6 |
640 |
15 | ||||||||
|
C8, C9 |
3480 |
2730 |
10 |
7 |
- |
240 |
315 | |||
|
C10, C11, C12 |
2980 |
1730 |
8 |
4 |
290 |
265 | ||||
|
C13, C14, C15 |
1730 |
1730 |
4 |
4 |
265 |
265 | ||||
|
C16, C17, C18 |
1480 |
3 |
290 | |||||||
|
K1 |
2600 |
95 |
5 |
- |
55 | |||||
|
K2 |
105 |
65 | ||||||||
|
К3 |
2100 |
95 |
4 |
55 | ||||||
|
K4 |
105 |
65 | ||||||||
|
K5 |
110 |
70 | ||||||||
|
K6 |
1600 |
80 |
3 |
40 | ||||||
|
K7 |
90 |
50 | ||||||||
|
K8 |
100 |
60 | ||||||||
|
K9 |
85 |
45 | ||||||||
|
K10 |
95 |
55 | ||||||||
|
K11 |
3630 |
- |
6 |
195 |
60 | |||||
|
K12 |
3025 |
5 |
50 | |||||||
|
K13 |
3360 |
6 |
180 |
60 | ||||||
|
K14 |
2800 |
5 |
- |
50 | ||||||
|
K15 |
3630 |
6 |
5 |
195 |
145 |
110 | ||||
|
K16 |
3025 |
5 |
4 |
135 | ||||||
|
K17 |
2360 |
11 |
- |
107 (108) |
- | |||||
|
K18 |
3360 |
6 |
5 |
180 |
160 |
80 | ||||
|
K19 |
2800 |
5 |
4 |
150 | ||||||
|
K20 |
2220 |
11 |
- |
120 |
- | |||||
|
К21 |
3630 |
6 |
2 |
195 |
140 |
115 | ||||
|
K22 |
3025 |
5 |
1 |
132 (133) |
210 | |||||
|
K23 |
2130 |
10 |
- |
90 |
- | |||||
|
K24 |
3360 |
6 |
2 |
180 |
145 |
95 | ||||
|
K25 |
2800 |
5 |
1 |
140 |
180 | |||||
|
K26 |
1990 |
10 |
- |
95 |
- | |||||
|
П3 |
495 |
- |
- |
50 |
30 |
30 | ||||
|
П4 |
435 |
30 |
20 | |||||||
|
П5 |
370 | |||||||||
Таблица 2
|
Выборка арматурной стали | |||||||||
|
Марка |
Поз. |
Сечение, мм |
Длина, мм |
Число |
Общая длина, м |
Масса, кг |
Сечение, мм |
Масса, кг |
Масса изделия, кг |
|
С1 |
1 |
5ВрI |
5100 |
4 |
20, 40 |
2, 94 |
5ВрI |
16, 31 |
16, 31 |
|
2 |
5ВрI |
1820 |
51 |
92, 82 |
13, 37 |
- |
- | ||
|
3 |
8АIII |
2540 |
1 |
2, 54 |
1, 00 |
8АIII |
4, 60 | ||
|
С2 |
4 |
8АIII |
1820 |
5 |
9, 10 |
3, 60 |
5ВрI |
0, 11 |
4, 71 |
|
5 |
5ВрI |
380 |
2 |
0, 76 |
0, 11 |
- |
- | ||
|
С3 |
1 |
5ВрI |
5100 |
4 |
20, 40 |
2, 94 |
5ВрI |
15, 42 |
15, 42 |
|
6 |
5ВрI |
1700 |
5 |
86, 70 |
12, 48 |
- |
- | ||
|
7 |
8АIII |
2420 |
1 |
2, 42 |
0, 96 |
8АIII |
4, 32 | ||
|
С4 |
8 |
8АIII |
1700 |
5 |
8, 50 |
3, 36 |
5ВрI |
0, 11 |
4, 43 |
|
5 |
5ВрI |
380 |
2 |
0, 76 |
0, 11 |
- |
- | ||
|
С5 |
1 |
5ВрI |
5100 |
4 |
20, 40 |
2, 94 |
5ВрI |
17, 26 |
17, 26 |
|
9 |
5ВрI |
1950 |
51 |
99, 45 |
14, 32 |
- |
- | ||
|
10 |
8АIII |
2670 |
1 |
2, 67 |
1, 06 |
8АIII |
4, 91 | ||
|
С6 |
11 |
8АIII |
1950 |
5 |
9, 75 |
3, 85 |
5ВрI |
0, 11 |
5, 02 |
|
5 |
5ВрI |
380 |
2 |
0, 76 |
0, 11 |
- |
- | ||
|
12 |
8АI |
1920 |
6 |
11, 52 |
4, 55 |
8АI |
21, 32 | ||
|
13 |
8АI |
1790 |
7 |
12, 53 |
4, 95 |
5ВрI |
5, 70 | ||
|
14 |
8АI |
1670 |
7 |
11, 69 |
4, 62 |
- |
- | ||
|
С7 |
15 |
8АI |
1540 |
7 |
10, 78 |
4, 26 |
- |
- |
27, 02 |
|
16 |
8АI |
1490 |
5 |
7, 45 |
2, 94 |
- |
- | ||
|
17 |
5ВрI |
5450 |
6 |
32, 70 |
4, 71 |
- |
- | ||
|
18 |
5ВрI |
3425 |
2 |
6, 85 |
0, 99 |
- |
- | ||
|
С8 |
19 |
12АIII |
3480 |
8 |
27, 84 |
24, 72 |
12АIII |
24, 72 |
43, 25 |
|
20 |
10АIII |
2730 |
11 |
30, 03 |
18, 53 |
10АIII |
18, 53 | ||
|
С9 |
21 |
10АIII |
3480 |
8 |
27, 84 |
17, 18 |
10АIII |
17, 18 |
29, 04 |
|
22 |
8АIII |
2730 |
11 |
30, 03 |
11, 86 |
8АIII |
11, 86 | ||
|
С10 |
23 |
12АIII |
2980 |
5 |
14, 90 |
13, 23 |
12АIII |
13, 23 |
22, 84 |
|
24 |
10АIII |
1730 |
9 |
15, 57 |
9, 61 |
10АIII |
9, 61 | ||
|
С11 |
25 |
10АIII |
2980 |
5 |
14, 90 |
9, 19 |
10АIII |
9, 19 |
15, 34 |
|
26 |
8АIII |
1730 |
9 |
15, 57 |
6, 15 |
8АIII |
6, 15 | ||
|
С12 |
27 |
8АIII |
2980 |
5 |
14, 90 |
5, 89 |
8АIII |
5, 89 |
12, 04 |
|
28 |
8АI |
1730 |
9 |
15, 57 |
6, 15 |
8АI |
6, 15 | ||
|
С13 |
29 |
12АIII |
1730 |
10 |
17, 30 |
15, 36 |
12АIII |
15, 36 |
15, 36 |
|
С14 |
24 |
10АIII |
1730 |
10 |
17, 30 |
10, 67 |
10АIII |
10, 67 |
10, 67 |
|
С15 |
26 |
8АIII |
1730 |
10 |
17, 30 |
6, 83 |
8АIII |
6, 83 |
6, 83 |
|
С16 |
29 |
12АIII |
1730 |
4 |
6, 92 |
6, 14 |
12АIII |
6, 14 |
10, 71 |
|
30 |
10АIII |
1480 |
5 |
7, 40 |
4, 57 |
10АIII |
4, 57 | ||
|
С17 |
24 |
10АIII |
1730 |
4 |
6, 92 |
4, 27 |
10АIII |
4, 27 |
7, 19 |
|
31 |
8АIII |
1480 |
5 |
7, 40 |
2, 92 |
8АIII |
2, 92 | ||
|
С18 |
26 |
8АIII |
1730 |
4 |
6, 92 |
2, 73 |
8АIII |
2, 73 |
5, 65 |
|
32 |
8АI |
1480 |
5 |
7, 40 |
2, 92 |
8АI |
2, 92 | ||
|
С19 |
33 |
12АIII |
3880 |
6 |
23, 28 |
20, 67 |
12АIII |
20, 67 |
37, 77 |
|
34 |
10АIII |
1980 |
14 |
27, 72 |
17, 10 |
10АIII |
17, 10 | ||
|
С20 |
35 |
10АIII |
3880 |
6 |
23, 28 |
14, 36 |
10АIII |
14, 36 |
25, 31 |
|
36 |
8АIII |
1980 |
14 |
27, 72 |
10, 95 |
8АIII |
10, 95 | ||
|
С21 |
19 |
12АIII |
3480 |
5 |
17, 40 |
15, 45 |
12АIII |
15, 45 |
27, 19 |
|
37 |
10АIII |
1940¸ 1520 |
11 |
19, 03 |
11, 74 |
10АIII |
11, 74 | ||
|
С22 |
21 |
10АIII |
3480 |
5 |
17, 40 |
10, 74 |
10АIII |
10, 74 | |
|
38 |
8АIII |
1940¸ 1520 |
11 |
19, 03 |
7, 52 |
8АIII |
7, 52 |
18, 26 | |
|
39 |
10АIII |
340 |
4 |
1, 36 |
0, 84 |
10АIII |
0, 84 | ||
|
С23 |
40 |
4ВрI |
390 |
2 |
0, 78 |
0, 07 |
4ВрI |
0, 14 |
0, 98 |
|
41 |
4ВрI |
380 |
2 |
0, 76 |
0, 07 |
- |
- | ||
|
K1 |
42 |
5ВрI |
2600 |
2 |
5, 20 |
0, 75 |
5ВрI |
0, 83 |
0, 83 |
|
43 |
5ВрI |
95 |
6 |
0, 57 |
0, 08 |
- |
- | ||
|
K2 |
42 |
5ВрI |
2600 |
2 |
5, 20 |
0, 75 |
5ВрI |
0, 84 |
0, 84 |
|
44 |
5ВрI |
105 |
6 |
0, 63 |
0, 09 |
- |
- | ||
|
K3 |
45 |
5ВрI |
2100 |
2 |
4, 20 |
0, 60 |
5ВрI |
0, 67 |
0, 67 |
|
43 |
5ВрI |
95 |
5 |
0, 48 |
0, 07 |
- |
- | ||
|
K4 |
45 |
5ВрI |
2100 |
2 |
4, 20 |
0, 60 |
5ВрI |
0, 68 |
0, 68 |
|
44 |
5ВрI |
105 |
5 |
0, 53 |
0, 08 |
- |
- | ||
|
K5 |
45 |
5ВрI |
2100 |
2 |
4, 20 |
0, 60 |
5ВрI |
0, 68 |
0, 68 |
|
46 |
5ВрI |
110 |
5 |
0, 55 |
0, 08 |
- |
- | ||
|
K6 |
47 |
5ВрI |
1600 |
2 |
3, 20 |
5ВрI |
0, 51 |
0, 51 | |
|
48 |
5ВрI |
80 |
4 |
0, 32 |
0, 05 |
- |
- | ||
|
K7 |
47 |
5ВрI |
1600 |
2 |
3, 20 |
0, 46 |
5ВрI |
0, 51 |
0, 51 |
|
49 |
5ВрI |
90 |
4 |
0, 36 |
0, 05 |
- |
- | ||
|
K8 |
47 |
5ВрI |
1600 |
2 |
3, 20 |
0, 46 |
5ВрI |
0, 52 |
0, 52 |
|
50 |
5ВрI |
100 |
4 |
0, 40 |
0, 06 |
- |
- | ||
|
K9 |
47 |
5ВрI |
1600 |
2 |
3, 20 |
0, 46 |
5ВрI |
0, 51 |
0, 51 |
|
51 |
5ВрI |
85 |
4 |
0, 34 |
0, 05 |
- |
- | ||
|
K10 |
47 |
5ВрI |
1600 |
2 |
3, 20 |
0, 46 |
5ВрI |
0, 51 |
0, 51 |
|
43 |
5ВрI |
95 |
4 |
0, 38 |
0, 05 |
- |
- | ||
|
K11 |
52 |
10АIII |
3630 |
2 |
7, 26 |
4, 48 |
10АIII |
4, 48 |
4, 70 |
|
53 |
4ВрI |
160 |
15 |
2, 40 |
0, 22 |
4ВрI |
0, 22 | ||
|
K12 |
54 |
10АIII |
3025 |
2 |
6, 05 |
3, 73 |
10АIII |
3, 73 |
3, 91 |
|
53 |
4ВрI |
160 |
12 |
1, 92 |
0, 18 |
4ВрI |
0, 18 | ||
|
K13 |
55 |
10АIII |
3360 |
2 |
6, 72 |
4, 15 |
10АIII |
4, 15 |
4, 37 |
|
53 |
4ВрI |
160 |
15 |
2, 40 |
0, 22 |
4ВрI |
0, 22 | ||
|
K14 |
56 |
10АIII |
2800 |
2 |
5, 60 |
3, 46 |
10АIII |
3, 46 |
3, 64 |
|
53 |
4ВрI |
160 |
12 |
1, 92 |
0, 18 |
4ВрI |
0, 18 | ||
|
K15 |
52 |
10АIII |
3630 |
2 |
7, 26 |
4, 48 |
10АIII |
¦ 4, 48 |
4, 70 |
|
53 |
4ВрI |
160 |
15 |
2, 40 |
0, 22 |
4ВрI |
0, 22 | ||
|
K16 |
54 |
10АIII |
3025 |
2 |
6, 05 |
3, 73 |
10АIII |
3, 73 |
3, 91 |
|
53 |
4ВрI |
160 |
12 |
1, 92 |
0, 18 |
4ВрI |
0, 18 | ||
|
K17 |
57 |
10АIII |
2360 |
2 |
4, 72 |
2, 91 |
10АIII |
2, 91 |
3, 09 |
|
53 |
4ВрI |
160 |
12 |
1, 92 |
0, 18 |
10АIII |
0, 18 | ||
|
K18 |
55 |
10АIII |
3360 |
2 |
6, 72 |
4, 15 |
10АIII |
4, 15 |
4, 37 |
|
53 |
4ВрI |
160 |
15 |
2, 40 |
0, 22 |
4ВрI |
0, 22 | ||
|
K19 |
56 |
10АIII |
2800 |
2 |
5, 60 |
3, 46 |
10АIII |
3, 46 |
3, 64 |
|
53 |
4ВрI |
160 |
12 |
1, 92 |
0, 18 |
4ВрI |
0, 18 | ||
|
K20 |
58 |
10АIII |
2220 |
2 |
4, 44 |
2, 74 |
10АIII |
2, 74 |
2, 92 |
|
53 |
4ВрI |
160 |
12 |
1, 92 |
0, 18 |
4ВрI |
0, 18 | ||
|
K21 |
52 |
10АIII |
3630 |
2 |
7, 26 |
4, 48 |
10АIII |
4, 48 |
4, 69 |
|
53 |
4ВрI |
160 |
14 |
2, 24 |
0, 21 |
4ВрI |
0, 21 | ||
|
K22 |
54 |
10АIII |
3025 |
2 |
6, 05 |
3, 73 |
10АIII |
3, 73 |
3, 88 |
|
53 |
4ВрI |
160 |
10 |
1, 60 |
0, 15 |
4ВрI |
0, 15 | ||
|
K23 |
59 |
10АIII |
2130 |
2 |
4, 26 |
2, 63 |
10АIII |
2, 63 |
2, 79 |
|
53 |
4ВрI |
160 |
11 |
1, 76 |
0, 16 |
4ВрI |
0, 16 | ||
|
K24 |
55 |
10АIII |
3360 |
2 |
6, 72 |
4, 15 |
10АIII |
4, 15 |
4, 36 |
|
53 |
4ВрI |
160 |
14 |
2, 24 |
0, 21 |
4ВрI |
0, 21 | ||
|
K25 |
56 |
10АIII |
2800 |
2 |
5, 60 |
3, 46 |
10АIII |
3, 46 |
3, 61 |
|
53 |
4ВрI |
160 |
10 |
1, 60 |
0, 15 |
4ВрI |
0, 15 | ||
|
K26 |
60 |
10АIII |
1990 |
2 |
3, 98 |
2, 46 |
10АIII |
2, 46 |
2, 62 |
|
53 |
4ВрI |
160 |
11 |
1, 76 |
0, 16 |
4ВрI |
0, 16 | ||
|
П1 |
61 |
22АI |
1670 |
1 |
1, 67 |
4, 98 |
22АI |
4, 98 |
5, 13 |
|
62 |
10АI |
250 |
1 |
0, 25 |
0, 15 |
10АI |
0, 15 | ||
|
П1а |
78 |
22АI |
850 |
1 |
0, 85 |
2, 53 |
22АI |
2, 53 |
2, 83 |
|
62 |
10АI |
250 |
2 |
0, 50 |
0, 30 |
10АI |
0, 30 | ||
|
П2 |
63 |
20АI |
1420 |
1 |
1, 42 |
3, 51 |
20АI |
3, 51 |
3, 66 |
|
62 |
10АI |
250 |
1 |
0, 25 |
0, 15 |
10АI |
0, 15 | ||
|
П2а |
79 |
20АI |
850 |
1 |
0, 85 |
2, 38 |
20АI |
2, 38 |
2, 68 |
|
62 |
10АI |
250 |
2 |
0, 50 |
0, 30 |
10АI |
0, 30 | ||
|
П3 |
64 |
14АI |
1260 |
1 |
1, 26 |
1, 52 |
14АI |
1, 52 |
1, 67 |
|
62 |
10АI |
250 |
1 |
0, 25 |
0, 15 |
10АI |
0, 15 | ||
|
П4 |
65 |
12АI |
1060 |
1 |
1, 06 |
0, 94 |
12АI |
0, 94 |
1, 09 |
|
62 |
10АI |
250 |
1 |
0, 25 |
0, 15 |
10АI |
0, 15 | ||
|
П5 |
66 |
10АI |
930 |
1 |
0, 93 |
0, 57 |
10АI |
0, 72 |
0, 72 |
|
62 |
10АI |
250 |
1 |
0, 25 |
0, 15 |
- |
- | ||
|
П6 |
67 |
10АI |
930 |
1 |
0, 93 |
0, 57 |
10АI |
0, 72 |
0, 72 |
|
62 |
10АI |
250 |
1 |
0, 25 |
0, 15 |
16АI |
0, 57 | ||
|
Ск1 |
68 |
16АI |
360 |
1 |
0, 36 |
0, 57 |
- |
- |
0, 72 |
|
62 |
10АI |
250 |
1 |
0, 25 |
0, 15 |
10АI |
0, 15 | ||
|
Ф1 |
69 |
4ВрI |
90 |
1 |
0, 09 |
0, 01 |
4ВрI |
0, 01 |
0, 01 |
|
Сп1 |
70 |
3ВрI |
1290 |
1 |
1, 29 |
0, 07 |
3ВрI |
0, 07 |
0, 07 |
|
19 |
12АIII |
3480 |
1 |
3, 48 |
3, 09 |
12АIII |
3, 09 |
3, 09 | |
|
20 |
10АIII |
2730 |
1 |
2, 73 |
1, 68 |
10АIII |
1, 68 |
1, 68 | |
|
21 |
10АIII |
3480 |
1 |
3, 48 |
2, 15 |
10АIII |
2, 15 |
2, 15 | |
|
22 |
8АIII |
2730 |
1 |
2, 73 |
1, 08 |
8АIII |
1, 08 |
1, 08 | |
|
23 |
12АIII |
2980 |
1 |
2, 98 |
2, 65 |
12АIII |
2, 65 |
2, 65 | |
|
24 |
10АIII |
1730 |
1 |
1, 73 |
1, 07 |
10АIII |
1, 07 |
1, 07 | |
|
Отде- |
25 |
10АIII |
2980 |
1 |
2, 98 |
1, 84 |
10АIII |
1, 84 |
1, 84 |
|
льные |
26 |
8АIII |
1730 |
1 |
1, 73 |
0, 68 |
8АIII |
0, 68 |
0, 68 |
|
стер- |
27 |
8АIII |
2980 |
1 |
2, 98 |
1, 18 |
8АIII |
1, 18 |
1, 18 |
|
жни |
28 |
8АI |
1730 |
1 |
1, 73 |
0, 68 |
8АI |
0, 68 |
0, 68 |
|
29 |
12АIII |
1730 |
1 |
1, 73 |
1, 54 |
12АIII |
1, 54 |
1, 54 | |
|
30 |
10АIII |
1480 |
1 |
1, 48 |
0, 91 |
10АIII |
0, 91 |
0, 91 | |
|
31 |
8АIII |
1480 |
1 |
1, 48 |
0, 58 |
8АIII |
0, 58 |
0, 58 | |
|
32 |
8АI |
1480 |
1 |
1, 48 |
0, 58 |
8АI |
0, 58 |
0, 58 | |
|
33 |
12АIII |
3880 |
1 |
3, 88 |
3, 45 |
12АIII |
3, 45 |
3, 45 | |
|
35 |
10АIII |
3880 |
1 |
3, 88 |
2, 39 |
10АIII |
2, 39 |
2, 39 | |
|
71 |
12АIII |
3490 |
1 |
3, 49 |
3, 10 |
12АIII |
3, 10 |
3, 10 | |
|
72 |
10АIII |
1970 |
1 |
1, 97 |
1, 22 |
10АIII |
1, 22 |
1, 22 | |
|
73 |
10АIII |
1490 |
1 |
1, 49 |
0, 92 |
10АIII |
0, 92 |
0, 92 | |
|
74 |
10АIII |
3490 |
1 |
3, 49 |
2, 15 |
10АIII |
2, 15 |
2, 15 | |
|
75 |
8АIII |
1970 |
1 |
1, 97 |
0, 78 |
8АIII |
0, 78 |
0, 78 | |
|
76 |
8АIII |
1490 |
1 |
1, 49 |
0, 59 |
8АIII |
0, 59 |
0, 59 | |
|
77 |
10АIII |
550 |
1 |
0, 55 |
0, 34 |
10АIII |
0, 34 |
0, 34 | |
Примечание. Для арматурной стали класса Ат-IIIС сечение, длину и массу следует принимать одинаковыми с арматурной сталью класса А-III.


