ГОСТ 21924.2-84 (28.12.1987) ПЛИТЫ ЖЕЛЕЗОБЕТОННЫЕ С НЕНАПРЯГАЕМОЙ АРМАТУРОЙ ДЛЯ ПОКРЫТИЙ ГОРОДСКИХ ДОРОГ. КОНСТРУКЦИЯ И РАЗМЕРЫ
С изменениями:
(28 декабря 1987 г.)
Reinforced concrete slabs of unstressed fittings for pavements of city roads. Structure and dimensions
Срок введения с 1 января 1985 г.
1. Настоящий стандарт распространяется на железобетонные плиты с ненапрягаемой арматурой, изготовляемые из тяжелого бетона и предназначенные для устройства покрытий постоянных и временных городских дорог под автомобильную нагрузку Н-30 и Н-10, и устанавливает конструкцию этих плит.
Плиты применяют для дорог в районах с расчетной температурой наружного воздуха (средней наиболее холодной пятидневки района строительства по СНиП 2.01.01-82) до минус 40°С включ.
При применении плит в климатическом подрайоне IVA должны учитываться дополнительные требования СНиП 2.03.01-84 к конструкциям, предназначенным для эксплуатации в этих условиях.
Допускается применение данных плит для дорог в районах с расчетной температурой наружного воздуха ниже минус 40°С при соблюдении требований, предъявляемых СНиП 2.03.01-84 к конструкциям, предназначенным для эксплуатации в этих условиях.
2. Форма и основные параметры плит - по ГОСТ 21924.0-84.
3. Технические показатели плит приведены в табл.1.
4. Плиты должны удовлетворять всем требованиям ГОСТ 21924.0-84 и настоящего стандарта.
5. Армирование плит должно соответствовать приведенному на черт.1 - 7.
Армирование плит термомеханически упрочненной арматурной сталью класса Ат-IIIС по ГОСТ 10884-81 аналогично армированию арматурном сталью класса A-III по ГОСТ 5781-82.
Примечание. Допускается применение для фиксации арматурных сеток вместо элементов К1-К10 и Ф1 фиксаторов других типов, которые без увеличения расхода стали на плиту обеспечивают фиксацию арматуры согласно требованиям данного стандарта при исключении выхода металла на лицевую поверхность плиты в пределах защитного слоя бетона.
6. Спецификация арматурных и монтажно-стыковых элементов приведена в табл.2, выборка арматурной стали для их изготовления на одну плиту - в табл.3.
7. Форма и размеры арматурных и монтажно-стыковых элементов - по ГОСТ 21924.3-84.
8. Значения контрольной нагрузки (без учета собственного веса плиты) для испытания плит по прочности и трещиностойкости приведены в табл.4.
9. Контрольная ширина раскрытия трещин при испытании плит по трещиностойкости не должна превышать 0, 2 мм.
Таблица 1
|
Расход материалов | ||||||
|
Марка плиты |
Класс бетона по прочности на |
Марка бетона по прочности на |
Площадь постели, |
Бетон на плиту, |
Сталь, кг | |
|
сжатие |
растяжение при изгибе |
м2 |
м2 |
на плиту |
на 1 м2 постели | |
|
1 |
2 |
3 |
4 |
5 |
6 |
7 |
|
1П35.28-30 |
В30 |
113, 92 |
11, 87 | |||
|
2П35.28-30 |
В22, 5 |
9, 6 |
1, 63 | |||
|
1П35.28-10 |
В30 |
79, 36 |
8, 27 | |||
|
2П35.28-10 |
В22, 5 | |||||
|
1П30.18-30 |
В30 |
66, 26 |
12, 74 | |||
|
2П30.18-30 |
В22, 5 |
5, 2 |
0, 88 |
46, 48 |
8, 94 | |
|
1П30.18-10 |
В30 | |||||
|
2П30.18-10 |
В22, 5 |
37, 24 |
7, 16 | |||
|
1П18.18-30 |
В30 |
46, 94 |
15, 65 | |||
|
2П18.18-30 |
В22, 5 |
3, 0 |
0, 48 |
33, 80 |
11, 27 | |
|
1П18.18-10 |
В30 | |||||
|
2П18.18-10 |
В22, 5 |
23, 02 |
7, 67 | |||
|
1П18.15-30 |
В30 |
35, 12 |
13, 51 | |||
|
2П18.15-30 |
В22, 5 |
2, 6 |
0, 41 |
24, 88 |
9, 57 | |
|
1П18.15-10 |
В30 | |||||
|
2П18.15-10 |
В22, 5 |
50 |
20, 26 |
7, 79 | ||
|
1ПББ35.20-30 |
7, 8 |
1, 35 |
100, 43 |
12, 88 | ||
|
1ПББ35.20-10 |
В30 |
71, 27 |
9, 14 | |||
|
1ПТ35-30 |
79, 75 |
13, 07 | ||||
|
2ПТ35-30 |
В22, 5 |
6, 1 |
1, 03 | |||
|
1ПТ35-10 |
В30 |
56, 58 |
9, 28 | |||
|
2ПТ35-10 |
В22, 5 | |||||
|
1ПШ13-30 |
0, 72 | |||||
|
1ПШД13-30 |
4, 0 |
0, 76 |
25, 22 |
6, 30 | ||
|
1ПШП13-30 |
0, 77 | |||||
|
1ПШ12-30 |
0, 63 | |||||
|
1ПШД12-30 |
В30 |
3, 5 |
0, 66 |
24, 02 |
6, 86 | |
|
1ПШП12-30 |
0, 67 | |||||
|
1ДПШ13-30 |
2, 0 |
0, 36 |
16, 25 |
8, 12 | ||
|
1ДПШ12-30 |
1, 7 |
0, 31 |
15, 48 |
9, 10 | ||
|
1ППШ13-30 |
2, 0 |
0, 36 |
16, 60 |
8, 30 | ||
|
1ППШ12-30 |
1, 7 |
0, 31 |
15, 83 |
9, 31 | ||
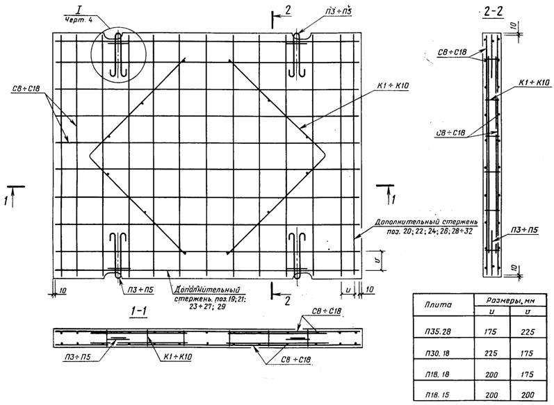
Плиты П35, П30.18, П18.18 и П18.15
Черт. 1
Плита ПББ35.20
Черт. 2
Плита ПТ35
Черт. 3
Черт. 4
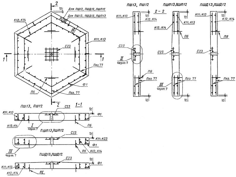
Плиты ПШ13, ПШ12, ПШД13, ПШД12, ПШП13 и ПШП12
Черт. 5
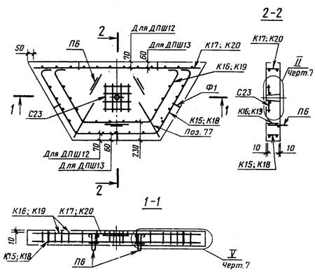
Плиты ППШ13 и ППШ12
Черт. 6
Черт. 7
Таблица 2
|
Марка плиты |
Арматурные сетки |
Арматурные каркасы |
Монтажные петли |
Скобы |
Фиксаторы |
Отдельные стержни | |||||||
|
Марка |
Число |
Марка |
Число |
Марка |
Число |
Марка |
Число |
Марка |
Число |
Позиция |
Число | ||
|
1 |
2 |
3 |
4 |
5 |
6 |
7 |
8 |
9 |
10 |
11 |
12 |
13 | |
|
1П35.28-30 2П35.28-30 |
С8 |
K1 |
П3 |
19 20 | |||||||||
|
1П35.28-10 2П35.28-10 |
С9 |
K2 |
21 22 | ||||||||||
|
1П30.18-30 |
С10 |
K3 |
23 24 |
4 | |||||||||
|
2П30.18-30 1П30.18-10 |
С11 |
K4 |
П4 |
25 26 | |||||||||
|
2П30.18-10 |
С12 |
K5 |
2 |
27 28 | |||||||||
|
1П18.18-30 |
С13 |
K6 |
29 | ||||||||||
|
2П18.18-30 1П18.18-10 |
С14 |
2 |
K7 |
24 |
8 | ||||||||
|
2П18.18-10 |
С15 |
K8 |
26 | ||||||||||
|
1П18.15-30 |
С16 |
K9 |
П5 |
29 30 | |||||||||
|
2П18.15-30 1П18.15-10 |
С17 |
K10 |
4 |
24 31 | |||||||||
|
2П18.15-10 |
С18 |
K8 |
26 32 |
4 | |||||||||
|
1ПББ35.20-30 |
С19 |
K9 |
Ск1 |
4 |
33 | ||||||||
|
1ПББ35.20-10 |
С20 |
K10 |
35 | ||||||||||
|
1ПТ35-30 2ПТ35-30 |
С21 |
K3 |
3 |
П3 |
71 | ||||||||
|
72 73 |
2 | ||||||||||||
|
1ПТ35-10 2ПТ35-10 |
С22 |
K4 |
74 |
4 | |||||||||
|
75 76 |
2 | ||||||||||||
|
1ПШ13-30, 1ПШД13-30, 1ПШП13-30 |
K11, K12 |
2 |
6 |
12 | |||||||||
|
1ПШ12-30, 1ПШД12-30, 1ПШП12-30 |
K13, K14 | ||||||||||||
|
1ДПШ13-30 |
С23 |
1 |
K15, K16, K17 |
П6 |
Ф1 |
5 |
77 |
4 | |||||
|
1ДПШ12-30 |
K18, K19, K20 |
1 |
3 | ||||||||||
|
1ППШ-13-30 |
K21, K22, K23 |
6 |
6 | ||||||||||
|
1ППШ12-30 |
K24, K25, K26 | ||||||||||||
Таблица 3
кг
|
Марка плиты |
Арматурная сталь по ГОСТ 5781 |
Арматурная сталь по ГОСТ 6727 |
Всего | |||||||||||
|
Класс А-III |
Класс А-I |
Класс Вр-I | ||||||||||||
|
Диаметр, мм |
Итого |
Диаметр, мм |
Итого |
Диаметр, мм | ||||||||||
|
8 |
10 |
12 |
8 |
10 |
12 |
14 |
16 |
4 |
5 |
Итого | ||||
|
1П35.28-30, |
- |
43, 78 |
61, 80 |
105, 58 |
- |
0, 60 |
- |
6, 08 |
- |
6, 68 |
- |
1, 66 |
1, 66 |
113, 92 |
|
2П35.28-30 | ||||||||||||||
|
1П35.28-10, |
28, 04 |
42, 96 |
- |
71, 00 |
1, 68 |
1, 68 |
79, 36 | |||||||
|
2П35.28-10 | ||||||||||||||
|
1П30.18-30 |
- |
23, 50 |
37, 06 |
60, 56 |
3, 76 |
- |
4, 36 |
1, 34 |
1, 34 |
66, 26 | ||||
|
2П30.18-30, |
15, 02 |
25, 74 |
40, 76 |
1, 36 |
1, 36 |
46, 48 | ||||||||
|
1П30.18-10 | ||||||||||||||
|
2П30.18-10 |
16, 50 |
- |
16, 50 |
15, 02 |
19, 38 |
37, 24 | ||||||||
|
1П18.18-30 |
43, 04 |
43, 04 |
- |
2, 88 |
- |
2, 88 |
1, 02 |
1, 02 |
46, 94 | |||||
|
2П18.18-30, |
29, 90 |
29, 90 |
33, 80 | |||||||||||
|
1П18.18-10 | ||||||||||||||
|
2П18.18-10 |
19, 10 |
- |
19, 10 |
1, 04 |
1, 04 |
23, 02 | ||||||||
|
1П18.15-30 |
- |
12, 78 |
18, 44 |
31, 22 |
1, 02 |
1, 02 |
35, 12 | |||||||
|
2П18.15-30, |
8, 16 |
12, 82 |
- |
20, 98 |
24, 88 | |||||||||
|
1П18.15-10 | ||||||||||||||
|
2П18.15-10 |
8, 18 |
- |
8, 18 |
8, 16 |
11, 04 |
1, 04 |
1, 04 |
20, 26 | ||||||
|
1ПББ35.20-30 |
- |
34, 20 |
55, 14 |
89, 34 |
- |
1, 20 |
6, 08 |
2, 28 |
9, 56 |
1, 53 |
1, 53 |
100, 43 | ||
|
1ПББ35.20-10 |
21, 90 |
38, 28 |
- |
60, 18 |
71, 27 | |||||||||
|
1ПТ35-30, |
- |
27, 76 |
43, 30 |
71, 06 |
0, 60 |
- |
6, 68 |
2, 01 |
2, 01 |
79, 75 | ||||
|
2ПТ35-30 | ||||||||||||||
|
1ПТ35-10, |
17, 78 |
30, 08 |
- |
47, 86 |
2, 04 |
2, 04 |
56, 58 | |||||||
|
2ПТ35-10 | ||||||||||||||
|
1ПШ13-30, |
- |
21, 34 |
21, 34 |
2, 88 |
- |
2, 88 |
1, 00 |
- |
1, 00 |
25, 22 | ||||
|
1ПШД13-30, | ||||||||||||||
|
1ПШП13-30 | ||||||||||||||
|
1ПШ12-30, |
20, 14 |
20, 14 |
24, 02 | |||||||||||
|
1ПШД12-30, | ||||||||||||||
|
1ПШП12-30 | ||||||||||||||
|
1ДПШ13-30 |
13, 32 |
13, 32 |
2, 16 |
2, 16 |
0, 77 |
0, 77 |
16, 25 | |||||||
|
1ДПШ12-30 |
12, 55 |
12, 55 |
15, 48 | |||||||||||
|
1ППШ13-30 |
13, 72 |
13, 72 |
0, 72 |
0, 72 |
16, 60 | |||||||||
|
1ППШ12-30 |
12, 95 |
12, 95 |
15, 83 | |||||||||||
Примечание. При применении арматурной стали класса Ат-IIIС ее диаметр и расход следует принимать одинаковым с арматурной сталью класса А-III.
Таблица 4
|
Марка плиты |
Контрольная нагрузка (без учета собственного веса плиты), кH (тс), при испытании плит | |
|
по прочности |
по трещиностойкости | |
|
1П35.28-30 |
115, 6 (11, 8) |
63, 7 (6, 5) |
|
2П35.28-30 |
113, 7 (11, 6) |
62, 7 (6, 4) |
|
1П35.28-10 |
67, 6 (6, 9) |
37, 2 (3, 8) |
|
2П35.28-10 |
66, 6 (6, 8) |
37, 2 (3, 8) |
|
1П30.18-30 |
107, 8 (11, 0) |
59, 8 (6, 1) |
|
2П30.18-30 |
68, 6 (7, 0) |
37, 2 (3, 8) |
|
1П30.18-10 |
69, 6 (7, 1) |
38, 2 (3, 9) |
|
2П30.18-10 |
33, 3 (3, 4) |
18, 6 (1, 9) |
|
1П18.18-30 |
184, 2 (18, 8) |
100, 9(10, 3) |
|
2П18.18-30 |
128, 4 (13, 1) |
70, 6 (7, 2) |
|
1П18.18-10 |
129, 4 (13, 2) |
71, 5 (7, 3) |
|
2П18.18-10 |
78, 4 (8, 0) |
43, 1 (4, 4) |
|
1П18.15-30 |
179, 3 (18, 3) |
99, 0(10, 1) |
|
2П18.15-30 |
122, 5 (12, 5) |
67, 6 (6, 9) |
|
1П18.15-10 |
123, 5 (12, 6) |
67, 6 (6, 9) |
|
2П18.15-10 |
73, 5 (7, 5) |
40, 2 (4, 1) |
|
1ПББ.35.20-30 |
69, 6 (7, 1) |
38, 2 (3, 9) |
|
1ПББ.35.20-10 |
38, 2 (3, 9) |
21, 6 (2, 2) |
|
1ПТ35-30 |
83, 3 (8, 5) |
46, 1 (4, 7) |
|
2ПТ35-30 |
82, 3 (8, 4) |
45, 1 (4, 6) |
|
1ПТ35-10 |
50, 0 (5, 1) |
27, 4 (2, 8) |
|
2ПТ35-10 |
50, 0 (5, 1) |
27, 4 (2, 8) |
|
1ПШ13, 1ПШД13, 1ПШП13 |
94, 1 (9, 6) |
51, 9 (5, 3) |
|
1ПШ12, 1ПШД12, 1ПШП12 |
79, 4 (8, 1) |
44, 1 (4, 5) |
|
Начальник отдела технических
|
В.И. Байко |
|
Главный специалист |
В.М. Скубко |


