Постановление от 19.05.2015 г. № 299-ПП (07.10.2025) ОБ УТВЕРЖДЕНИИ ПРАВИЛ ПРОВЕДЕНИЯ ЗЕМЛЯНЫХ РАБОТ, УСТАНОВКИ ВРЕМЕННЫХ ОГРАЖДЕНИЙ, РАЗМЕЩЕНИЯ ВРЕМЕННЫХ ОБЪЕКТОВ В ГОРОДЕ МОСКВЕ
ПРАВИТЕЛЬСТВО МОСКВЫ
ПОСТАНОВЛЕНИЕ
от 19 мая 2015 г. N 299-ПП
ОБ УТВЕРЖДЕНИИ ПРАВИЛ ПРОВЕДЕНИЯ ЗЕМЛЯНЫХ РАБОТ, УСТАНОВКИ ВРЕМЕННЫХ ОГРАЖДЕНИЙ, РАЗМЕЩЕНИЯ ВРЕМЕННЫХ ОБЪЕКТОВ В ГОРОДЕ МОСКВЕ
С изменениями:
(в ред. постановлений Правительства Москвы от 22.03.2016 N 108-ПП, от 07.03.2017 N 85-ПП, от 21.03.2017 N 114-ПП, от 11.09.2017 N 656-ПП, …, от 19.05.2025 N 1112-ПП, от 03.07.2025 N 1579-ПП, от 06.08.2025 N 1927-ПП, с изм., внесенными постановлением Правительства Москвы от 07.10.2025 N 2408-ПП)
В целях совершенствования порядка проведения земляных работ и отдельных работ в области благоустройства в городе Москве Правительство Москвы постановляет:
1. Утвердить:
1.1. Правила проведения земляных работ, установки временных ограждений, размещения временных объектов в городе Москве (приложение 1).
1.2. Требования к декоративно-художественному оформлению временных ограждений мест проведения работ по строительству, реконструкции объектов капитального строительства в городе Москве (приложение 3).
1.3. Требования к составу сведений, размещаемых на информационных щитах при проведении земляных работ, установке временных ограждений, размещении временных объектов в городе Москве (приложение 4).
2. Внести изменения в постановление Правительства Москвы от 13 ноября 2012 г. N 636-ПП "О размещении и установке на территории города Москвы объектов, не являющихся объектами капитального строительства" (в редакции постановлений Правительства Москвы от 20 февраля 2013 г. N 99-ПП, от 17 мая 2013 г. N 296-ПП, от 2 июля 2013 г. N 427-ПП, от 23 июля 2013 г. N 484-ПП, от 6 августа 2013 г. N 520-ПП, от 6 сентября 2013 г. N 587-ПП, от 13 сентября 2013 г. N 606-ПП, от 23 декабря 2013 г. N 868-ПП, от 26 декабря 2013 г. N 908-ПП, от 18 ноября 2014 г. N 674-ПП, от 9 декабря 2014 г. N 740-ПП, от 23 апреля 2014 г. N 227-ПП):
2.1. В абзаце первом пункта 1 приложения 1 к постановлению слова "объектов благоустройства (элементов благоустройства территории) -" исключить.
2.2. В пункте 2 приложения 1 к постановлению цифры "5-30" заменить цифрами "5-31".
2.3. В абзаце первом пункта 5 приложения 1 к постановлению слова "некапитальные объекты" заменить словами "объекты благоустройства (элементы благоустройства территории)".
2.4. Приложение 1 к постановлению дополнить пунктом 5(1) в следующей редакции:
"5(1). Наряду с объектами благоустройства (элементами благоустройства территории), указанными в пункте 5 настоящего порядка, на территории города Москвы за счет внебюджетных источников могут размещаться следующие объекты:
5(1).1. Подземные линейные сооружения, а также их наземные части и сооружения, технологически необходимые для их использования, для размещения которых не требуется разрешения на строительство.
5(1).2. Водопроводы и водоводы всех видов, для размещения которых не требуется разрешения на строительство.
5(1).3. Линейные сооружения канализации (в том числе ливневой) и водоотведения, для размещения которых не требуется разрешения на строительство.
5(1).4. Линии электропередачи классом напряжения до 35 кВ, для размещения которых не требуется разрешения на строительство.
5(1).5. Газопроводы и иные трубопроводы давлением до 1,2 МПа, для размещения которых не требуется разрешения на строительство.
5(1).6. Тепловые сети всех видов, включая сети горячего водоснабжения, для размещения которых не требуется разрешения на строительство.
5(1).7. Линии и сооружения связи, для размещения которых не требуется разрешения на строительство.".
2.5. Приложение 1 к постановлению дополнить пунктом 31 в следующей редакции:
"31. Размещение объектов, указанных в пункте 5(1) настоящего порядка, осуществляется без оформления договора на размещение, разрешения (разрешения на использование земель или земельного участка).".
3. Признать утратившими силу правовые акты города Москвы согласно приложению 2 к настоящему постановлению.
4. Настоящее постановление вступает в силу с 1 августа 2015 г.
5. Контроль за выполнением настоящего постановления возложить на заместителя Мэра Москвы в Правительстве Москвы по вопросам жилищно-коммунального хозяйства и благоустройства Бирюкова П.П., заместителя Мэра Москвы в Правительстве Москвы по вопросам градостроительной политики и строительства Ефимова В.В., министра Правительства Москвы, начальника Главного контрольного управления города Москвы Данчикова Е.А.
Мэр Москвы
С.С. Собянин
Приложение 1
к постановлению Правительства
Москвы
от 19 мая 2015 г. N 299-ПП
ПРАВИЛА ПРОВЕДЕНИЯ ЗЕМЛЯНЫХ РАБОТ, УСТАНОВКИ ВРЕМЕННЫХ ОГРАЖДЕНИЙ, РАЗМЕЩЕНИЯ ВРЕМЕННЫХ ОБЪЕКТОВ В ГОРОДЕ МОСКВЕ
1. Общие положения
1.1. Правила проведения земляных работ, установки временных ограждений, размещения временных объектов в городе Москве (далее - Правила) распространяются на проведение (производство) земляных работ с заглублением более 0,5 м (далее - земляные работы), установку временных ограждений, размещение временных объектов в городе Москве, осуществляемые в случаях и порядке, установленных Правительством Москвы.
Правила не распространяются на проведение пахотных работ, работ по монтажу (демонтажу) ярмарочных и фестивальных площадок, нестационарных торговых объектов, работ на территориях мест погребения, а также работ на землях, предоставленных в целях обеспечения обороны страны и безопасности государства.
1.2. Если иное не установлено Правительством Москвы, проведение земляных работ, установка временных ограждений, размещение временных объектов в городе Москве производится на основании разрешения, выданного уполномоченным органом исполнительной власти города Москвы (далее - ордер (разрешение).
Если иное не установлено Правительством Москвы, проведение земляных работ, установка временных ограждений, размещение временных объектов в городе Москве при отсутствии ордера (разрешения), при истечении срока действия ордера (разрешения), с несоблюдением цели проведения работ, указанной в ордере (разрешении), не допускается и является основанием для привлечения к ответственности, установленной законодательством.
Если иное не установлено Правительством Москвы, проведение земляных работ, установка временных ограждений, размещение временных объектов должны осуществляться в соответствии с оформленным в установленном порядке проектом проведения (производства) земляных работ (установки временных ограждений, размещения временных объектов).
1.2(1). Если иное не установлено правовыми актами города Москвы, осуществление земляных работ, установка временных ограждений, размещение временных объектов в городе Москве в целях проведения работ, предусмотренных пунктами 1.1(1) - 1.1(6) постановления Правительства Москвы от 19 мая 2015 г. N 283-ПП "О проведении земляных работ, установке временных ограждений, размещении временных объектов в уведомительном порядке", при отсутствии направленного в установленном порядке уведомления в Объединение административно-технических инспекций города Москвы, а также после истечения указанного в уведомлении срока окончания работ не допускается и является основанием для привлечения виновных лиц к ответственности, установленной законодательством Российской Федерации и законодательством города Москвы.
1.2(2). Если иное не установлено Правительством Москвы, осуществление земляных работ, установка временных ограждений, размещение временных объектов в городе Москве в целях проведения аварийно-восстановительных работ на инженерных коммуникациях и (или) сооружениях и иных объектах при отсутствии уведомления о проведении аварийно-восстановительных работ, зарегистрированного в соответствии с Порядком уведомления о проведении аварийно-восстановительных работ в городе Москве, утвержденным Правительством Москвы, а также после истечения указанного в уведомлении срока окончания работ не допускается и является основанием для привлечения виновных лиц к ответственности, установленной законодательством Российской Федерации и законодательством города Москвы.
1.3. Утратил силу с 21 ноября 2022 года. - Постановление Правительства Москвы от 15.11.2022 N 2474-ПП.
1.3(1). До истечения срока действия ордера (разрешения) заявителю необходимо обеспечить:
1.3(1).1. Завершение работ.
1.3(1).2. Восстановление нарушенного благоустройства, в том числе восстановление дорожного покрытия и тротуаров (при проведении работ на объектах транспортной инфраструктуры).
1.3(1).3. Представление в Комитет по архитектуре и градостроительству города Москвы исполнительной документации в составе, определенном нормативными правовыми актами Российской Федерации и города Москвы, материалов и результатов инженерных изысканий для размещения в Государственной информационной системе обеспечения градостроительной деятельности города Москвы.
1.3(1).4. Восстановление постоянной схемы дорожного движения (при проведении работ на объектах транспортной инфраструктуры), подтверждаемое письмом Департамента транспорта и развития дорожно-транспортной инфраструктуры города Москвы.
1.3(1).5. Проведение контрольно-геодезической съемки по вызову организации, осуществляющей аварийно-восстановительные работы (при проведении аварийно-восстановительных работ, предусмотренных пунктом 1.1(1).7.1 порядка оформления ордеров (разрешений) на проведение земляных работ, установку временных ограждений, размещение временных объектов в городе Москве, утвержденного постановлением Правительства Москвы от 19 мая 2015 г. N 284-ПП "Об утверждении порядка оформления ордеров (разрешений) на проведение земляных работ, установку временных ограждений, размещение временных объектов в городе Москве").
1.3(2). До истечения срока действия уведомления о проведении аварийно-восстановительных работ, зарегистрированного в соответствии с порядком уведомления о проведении аварийно-восстановительных работ в городе Москве, утвержденным постановлением Правительства Москвы, заявителю необходимо обеспечить проведение контрольно-геодезической съемки по вызову организации, осуществляющей аварийно-восстановительные работы.
1.4. Контроль за выполнением настоящих Правил осуществляется Объединением административно-технических инспекций города Москвы.
2. Порядок проведения земляных работ
2.1. В целях обеспечения благоприятной среды жизнедеятельности на участке проведения работ и прилегающей территории проведение работ должно соответствовать требованиям:
- безопасности производства работ, включая безопасность используемой техники, оборудования и применяемых материалов, изделий, конструкций;
- защиты прилегающих территорий и объектов недвижимости от воздействий чрезвычайных ситуаций природного и техногенного характера;
- охраны окружающей среды, санитарного благополучия;
- защиты расположенных на участке строительства и подлежащих сохранению объектов недвижимости, благоустройства, озеленения;
- соответствия технико-эксплуатационным и эстетическим условиям обустройства, содержания и ограждения участков производства работ;
- защиты прилегающих территорий от неблагоприятных воздействий, связанных с производством работ, их транспортным обслуживанием и инженерным обеспечением, в том числе от шумовых воздействий, вибрации, загазованности и запыления атмосферного воздуха;
- загрязнения почвы и искусственных покрытий поверхности земли;
- обеспечения беспрепятственного и безопасного доступа граждан к объектам социальной, транспортной и инженерной инфраструктур, отдыха и озеленения;
- комплексного благоустройства, инженерного обеспечения прилегающих территорий, бесперебойного транспортного и коммунально-бытового обслуживания населения;
- безопасности дорожного движения.
2.2. В подготовительный период до начала основных работ необходимо в соответствии с проектом проведения (производства) работ осуществить следующие мероприятия по обустройству места проведения работ:
2.2.1. Установить временное ограждение в соответствии с требованиями настоящих Правил, проекта проведения (производства) работ и ордера (разрешения).
2.2.2. Оборудовать и обозначить указателями и знаками пути объезда транспорта и прохода пешеходов (в частности, оборудовать пешеходные галереи, настилы, перила, мостки, обустроенные объезды, дорожные знаки).
Оборудованные указатели, знаки пути объезда транспорта и прохода пешеходов (настилы, пешеходные галереи, мостки, перила, обустроенные объезды, дорожные знаки) должны обеспечивать безопасность и содержаться в чистоте.
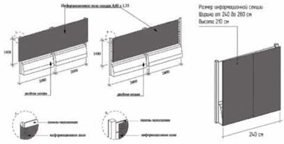
2.2.3. Установить при въезде на строительную площадку (ограждаемую территорию, используемую для проведения реконструкции и ремонта объектов, размещения техники, складирования строительных материалов, оборудования и выполнения строительно-монтажных работ) и выезде с нее информационные щиты с указанием сведений в соответствии с Требованиями к составу сведений, размещаемых на информационных щитах, установленными в приложении 4 к настоящему постановлению.
Информационные щиты устанавливаются на секции временного ограждения.
2.2.4. Смонтировать аварийное освещение и освещение мест, являющихся потенциальным источником нанесения вреда или представляющих угрозу жизни и (или) здоровью.
Смонтированное аварийное освещение не должно иметь повреждений и загрязнений.
2.2.5. Оборудовать выезды с площадок моечными постами в соответствии с проектом проведения (производства) работ и ордером (разрешением).
2.2.6. Закрыть фасады зданий и сооружений, на которых проводятся работы и которые непосредственно выходят на улично-дорожную сеть, баннером с изображением объекта строительства, реконструкции или ремонта.
2.2.7. Разместить на территории бытовые и подсобные помещения, временные здания и сооружения производственного и складского назначения в соответствии с нормативными требованиями и проектом проведения (производства) работ.
Обеспечить подключение бытовых помещений к централизованным инженерным коммуникациям в случаях, когда такое подключение предусмотрено проектом проведения (производства) земляных работ, установки временных ограждений, размещения временных объектов.
2.2.8. Оборудовать места для складирования почв, грунтов, материалов, отходов строительства и сноса, изделий, конструкций и инвентаря, а также места для установки землеройной и грузоподъемной техники в соответствии с проектом проведения (производства) работ.
2.2.9. Установить бункер-накопитель для сбора строительного мусора или выгородить для этих целей специальную площадку, исключающую вынос мусора на прилегающие территории.
2.2.10. Оборудовать автотранспорт, перевозящий сыпучие грузы, специальными съемными тентами.
2.2.11. Произвести срезку и складирование растительного слоя грунта в специально отведенных местах, вертикальную планировку площадки с уплотнением насыпей до плотности грунта в естественном состоянии.
2.2.12. Выполнить работу по водоотводу, устройству временных внутриплощадочных дорог и инженерных сетей, необходимых на время проведения работ и предусмотренных проектом проведения (производства) работ.
2.2.13. Произвести вырубку и пересадку деревьев и кустарников, установить ограждение сохраняемых деревьев на основании соответствующего разрешения, оформленного в порядке, установленном Правительством Москвы.
2.2.14. Проведение земляных работ в границах особо охраняемых природных территорий производится при наличии, в зависимости от цели проведения земляных работ, одного или нескольких следующих документов:
- разрешения на строительство;
- заключения государственной экологической экспертизы;
- заключения специально уполномоченного органа Правительства Москвы - Департамента природопользования и охраны окружающей среды города Москвы;
- договора на размещение некапитальных объектов, заключенного с Департаментом природопользования и охраны окружающей среды города Москвы.
2.2.15. Предусмотреть на месте проведения работ по строительству, реконструкции объектов капитального строительства в городе Москве применение технических средств объективной фиксации, обеспечивающих передачу информации в государственные информационные системы и ресурсы города Москвы, в порядке, установленном совместным правовым актом Комитета государственного строительного надзора города Москвы и Департамента информационных технологий города Москвы.
2.2.16. Установить биометрические системы контроля и управления доступом с использованием изображения лица человека, получаемого с помощью фотовидеоустройств, на всех контрольно-пропускных пунктах строительных площадок на территории города Москвы.
2.3. До начала проведения земляных работ необходимо осуществить следующие мероприятия:
2.3.1. Оформить имущественные отношения в установленном порядке и получить все необходимые разрешения, согласования, заключения и иные документы, подлежащие оформлению в соответствии с требованиями федеральных законов и иных правовых актов Российской Федерации, законов города Москвы и иных правовых актов города Москвы.
2.3.2. В срок не позднее трех календарных дней до начала производства земляных работ исполнитель работ извещает о начале указанных работ заказчика, эксплуатационные организации подземных сетей и коммуникаций, находящихся в зоне работ, правообладателей (балансодержателей) территорий, на которых осуществляется производство работ.
2.3.3. Организации, эксплуатирующие подземные коммуникации и сооружения, правообладатели (балансодержатели) подземных коммуникаций и сооружений направляют своих уполномоченных представителей на место производства работ либо сообщают исполнителю работ об отсутствии на месте производства работ принадлежащих им подземных коммуникаций и сооружений.
2.3.4. Прибывшим представителям организаций исполнитель работ предъявляет ордер (разрешение) на проведение (производство) земляных работ (в случаях необходимости его оформления для проведения планируемых работ), проектную документацию, проект проведения (производства) земляных работ.
2.3.5. Исполнитель работ совместно с прибывшими уполномоченными представителями наносит на рабочие чертежи фактическое положение подземных коммуникаций и сооружений, места вскрытия шурфов и зоны ручной раскопки траншеи (котлована), устанавливает знаки, указывающие местоположение подземных коммуникаций и сооружений в зоне работ, а также вручает машинистам строительных машин схему производства работ механизированным способом (при наличии данных работ).
2.4. При проведении земляных, ремонтных, аварийно-восстановительных и иных работ запрещено:
- проведение работ за пределами территории, указанной в ордере (разрешении);
- повреждать существующие сооружения, инженерные коммуникации, зеленые насаждения и элементы благоустройства;
- приготовлять раствор и бетон непосредственно на проезжей части улиц и магистралей;
- производить откачку воды из колодцев, траншей, котлованов непосредственно на тротуары и проезжую часть улиц и магистралей;
- размещать на проезжей части улиц, магистралей, тротуарах и газонах почву, грунты и отходы строительства и сноса, а также проводить их захоронение или сжигание на строительной площадке во время производства и после окончания работ;
- занимать излишнюю площадь под складирование, ограждение работ сверх установленных границ;
- загромождать проходы и въезды во дворы, препятствовать проезду транспорта и движению пешеходов;
- производить выезд автотранспорта с мест производства земляных, аварийных, ремонтных и иных видов работ без очистки колес от налипшего грунта;
- загрязнять почвенный слой на территории проведения (производства) работ горюче-смазочными материалами при работе транспортных средств, строительной техники и механизмов.
2.5. При проведении земляных работ необходимо соблюдать следующие требования:
2.5.1. Дорожные покрытия, тротуары, газоны и другие разрытые участки должны быть восстановлены в сроки, указанные в ордере (разрешении).
2.5.2. Не допускается засыпка грунтом крышек люков колодцев и камер, решеток дождеприемных колодцев, лотков дорожных покрытий, зеленых насаждений, а также складирование материалов и конструкций на газонах, на трассах действующих подземных коммуникаций, в охранных зонах газопроводов, теплотрасс, линий электропередачи и линий связи, а также других коммуникациях и сооружениях (в частности на коммуникациях и сооружениях водоснабжения, водоотведения, коллекторах).
2.5.3. Засыпка траншей и котлованов должна производиться в срок, указанный в ордере (разрешении).
2.5.4. Разработка грунта в траншеях и котлованах при пересечении ими подземных коммуникаций допускается после установления фактического местоположения этих сооружений.
Положение подземных инженерных сетей и сооружений, проложенных параллельно оси строящегося сооружения (вдоль бровки траншеи или стенки котлована), должно определяться отрывкой шурфов не реже чем через 25 метров вдоль трассы и на всех углах поворота, а для кабеля - через 5 метров.
2.5.5. Проведение земляных работ в непосредственной близости от существующих инженерных коммуникаций и пересечений с ними осуществляется в соответствии с требованиями проектной документации и нормативных документов эксплуатационных организаций. Указанные работы выполняются под наблюдением ответственного производителя работ, которому выдан ордер (разрешение), а также представителей технического надзора заказчика и эксплуатационных служб, которые на месте определяют границы разработки грунта вручную.
2.5.6. Применение землеройных механизмов, ударных инструментов (ломы, кирки, клинья, пневматические инструменты и др.) вблизи действующих подземных коммуникаций и сооружений запрещается. При разработке траншей и котлованов вскрытые подземные сооружения и коммуникации защищаются специальным коробом и подвешиваются.
2.5.7. При обнаружении в процессе проведения земляных работ несоответствия фактического расположения действующих инженерных коммуникаций и сооружений указанному в проекте проведения (производства) работ (или указанному представителями эксплуатационных организаций), исключающего возможность реализации проектного решения, а также при обнаружении объектов, обладающих признаками объектов археологического наследия, работы приостанавливаются.
К месту проведения земляных работ вызываются представители проектной организации, заказчика, эксплуатационных организаций подземных коммуникаций, организации, Государственного бюджетного учреждения города Москвы "Московский городской трест геолого-геодезических и картографических работ" (далее - Уполномоченная организация), а также органов государственной власти, уполномоченных в области сохранения, использования, популяризации и государственной охраны объектов культурного наследия, для фиксации фактического положения и принятия согласованных решений по дальнейшему производству работ с оформлением в установленном порядке необходимых документов.
2.5.8. Изменение планово-высотного положения запроектированных коммуникаций и подземных сооружений в процессе проведения земляных работ без согласования Уполномоченной организации и автора проекта проведения (производства) работ запрещается.
2.5.9. Ликвидируемые подземные коммуникации и сооружения должны извлекаться из грунта. Допускается их сохранение в грунте при условии осуществления в соответствии с проектом проведения (производства) работ освобождения сооружений (коммуникаций) от транспортируемых продуктов, демонтажа запорной арматуры, разборки камер и колодцев на глубину не менее 1,0 метра, тщательного заполнения всех пустот. Факт извлечения коммуникаций (сооружений) должен быть подтвержден соответствующим актом с приложением графического плана в масштабе 1:500. Один экземпляр оформленного акта направляется в Уполномоченную организацию.
В зоне сооружений метрополитена все каналы, трубопроводы, другие сооружения, имеющие свободное пространство, в обязательном порядке должны заполняться песчано-глинистым раствором под давлением.
2.5.10. При проведении земляных работ с целью прокладки, реконструкции, демонтажа подземных коммуникаций и сооружений заказчики совместно с исполнителями работ в срок не позднее 5 календарных дней до дня засыпки траншеи (котлована) должны обеспечить проведение контрольно-геодезической съемки подземных коммуникаций и сооружений в соответствии с требованиями Свода правил СП 126.13330.2017 "СНиП 3.01.03-84 Геодезические работы в строительстве". Контрольная геодезическая съемка производится представителями Уполномоченной организации в порядке, установленном Правительством Москвы.
При прокладке подземных инженерных коммуникаций способом горизонтального направленного бурения вызов на контрольную геодезическую съемку должен быть оформлен на дату контрольной протяжки зонда.
2.5.11. Земляные работы для производства аварийно-восстановительных работ выполняются в соответствии с проектами проведения работ (включая технологические карты), предусматривающими необходимые мероприятия по недопущению загрязнения территории города Москвы.
Условия выполнения земляных работ для производства аварийно-восстановительных работ согласовываются на месте проведения работ с представителями заинтересованных организаций (правообладателями территорий, коммуникаций и объектов, расположенных в зоне производства работ).
Объединение административно-технических инспекций города Москвы информирует ГИБДД УВД по административному округу ГУ МВД России по г. Москве и Департамент транспорта и развития дорожно-транспортной инфраструктуры города Москвы о месте и сроках проведения земляных работ для производства аварийно-восстановительных работ, если проведение таких работ предполагает занятие проезжей части, до начала их проведения.
2.5.12. Мероприятия по проведению аварийно-восстановительных работ и восстановлению нарушенного благоустройства территории проводятся в срок не позднее 8 календарных дней со дня регистрации уведомления о проведении аварийно-восстановительных работ в соответствии с Порядком уведомления о проведении аварийно-восстановительных работ в городе Москве, утвержденным Правительством Москвы.
В случае если срок проведения мероприятий по проведению аварийно-восстановительных работ и восстановлению нарушенного благоустройства территории превышает 8 календарных дней, правообладателем (балансодержателем) инженерных коммуникаций и (или) сооружений и иных объектов направляется запрос на оформление ордера (разрешения) на срок не более 90 календарных дней со дня, следующего за днем истечения срока выполнения работ, указанного в уведомлении о проведении аварийно-восстановительных работ.
Подача запроса на оформление ордера (разрешения) осуществляется до истечения срока действия уведомления о проведении аварийно-восстановительных работ.
2.5.12(1). При наличии явных признаков аварийной ситуации на инженерных коммуникациях и (или) сооружениях, требующей незамедлительного устранения (в том числе утечки газа, повреждения единственной питающей кабельной линии, дефекта трубопровода, приводящего к излитию воды, сточных вод, отключения потребителей), правообладатель (балансодержатель) таких инженерных коммуникаций и (или) сооружений незамедлительно приступает к проведению аварийно-восстановительных работ с одновременным направлением уведомления о проведении аварийно-восстановительных работ в Объединение административно-технических инспекций города Москвы в соответствии с Порядком уведомления о проведении аварийно-восстановительных работ в городе Москве, утвержденным Правительством Москвы, и оповещением об аварийной ситуации в порядке, установленном постановлением Правительства Москвы от 15 октября 2014 г. N 607-ПП "Об утверждении Регламента оповещения при отключении систем тепло-, водо-, газо-, электроснабжения объектов жилой и социальной сфер в городе Москве".
В случае выполнения требований, предусмотренных абзацем первым настоящего пункта, установленный порядок уведомления о проведении аварийно-восстановительных работ считается соблюденным.
2.5.13. Восстановление благоустройства в местах проведения работ осуществляется в объеме нарушенного благоустройства и в соответствии с общей схемой восстановления нарушенного благоустройства с учетом пункта 2.5.16 настоящих Правил.
В день окончания проведения работ в ведомственной системе Объединения административно-технических инспекций города Москвы автоматически формируется напоминание об окончании срока проведения работ. В срок не позднее трех рабочих дней со дня окончания срока проведения работ должностное лицо Объединения административно-технических инспекций города Москвы обследует объект с целью установления факта завершения работ и восстановления нарушенного благоустройства территории и постановки ордера (разрешения) или уведомления на контроль в случае, если работы не завершены и (или) благоустройство не восстановлено.
В случае невозможности установления факта восстановления нарушенного благоустройства в зимний период ввиду наличия снежного покрова и наледи заказчику работ необходимо устранить обстоятельство, препятствующее установлению факта восстановления нарушенного благоустройства. Должностное лицо Объединения административно-технических инспекций города Москвы повторно обследует объект в срок не позднее трех рабочих дней со дня выявления обстоятельства, препятствующего установлению факта восстановления нарушенного благоустройства.
При окончании срока проведения работ, указанного в ордере (разрешении) или уведомлении, в зимний период (с 15 октября по 15 апреля) и невозможности восстановления нарушенного благоустройства, невозможности восстановления малых архитектурных форм, зеленых насаждений и необходимости перекладки асфальтового покрытия заказчик работ представляет в Объединение административно-технических инспекций города Москвы гарантийное обязательство о выполнении работ по благоустройству в срок не позднее 1 мая после окончания зимнего периода.
При окончании срока проведения работ, указанного в ордере (разрешении) или уведомлении, в период с 16 апреля по 14 октября и невозможности восстановления нарушенного благоустройства, невозможности восстановления малых архитектурных форм, зеленых насаждений и необходимости перекладки асфальтового покрытия заказчик работ представляет в Объединение административно-технических инспекций города Москвы гарантийное обязательство о выполнении работ по благоустройству в срок не позднее 14 октября.
Объект проведения работ снимается с контроля после проверки фактического выполнения работ по благоустройству и их качества должностными лицами Объединения административно-технических инспекций города Москвы.
До снятия объекта проведения работ с контроля в случае отсутствия гарантийного обязательства о выполнении работ по восстановлению нарушенного благоустройства подача заказчиком работ запроса на оформление ордера (разрешения) или уведомления по другим адресам проведения земляных работ, установки временных ограждений, размещения временных объектов не допускается.
2.5.13(1). Восстановление благоустройства территории в местах проведения аварийно-восстановительных работ осуществляется в объеме нарушенного благоустройства.
В случае если окончание срока проведения работ, указанного в уведомлении о проведении аварийно-восстановительных работ, приходится на зимний период (с 15 октября по 15 апреля) и при этом невозможно осуществить восстановление нарушенного благоустройства, малых архитектурных форм, зеленых насаждений и (или) существует необходимость перекладки асфальтового покрытия, правообладатель (балансодержатель) объекта проведения аварийно-восстановительных работ обязан выполнить соответствующие работы по благоустройству в срок не позднее 1 мая после окончания зимнего периода.
Объект проведения аварийно-восстановительных работ снимается с контроля после проверки фактического выполнения работ по благоустройству территории и их качества должностными лицами Объединения административно-технических инспекций города Москвы.
2.5.14. Проведение плановых работ под видом аварийно-восстановительных запрещено.
2.5.15. При выполнении работ в ночное время суток необходимо:
- обеспечивать глушение двигателя автотранспорта в период нахождения на площадке;
- исключить громкоговорящую связь;
- не производить сварочные работы без установки защитных экранов;
- исключить забивку свай, шпунта и производство прочих работ, сопровождаемых шумами с превышением допустимой нормы;
- не допускать освещение прожекторами фасадов жилых зданий, примыкающих к месту производства работ;
- исключить работу оборудования, имеющего уровни шума и вибрации, превышающие допустимые нормы.
2.5.16. Комплексное восстановление нарушенного благоустройства производится в объемах в соответствии с проектом проведения (производства) земляных работ и условиями проведения работ, указанными в ордере (разрешении).
После проведения работ с занятием проезжей части и тротуаров асфальтобетонное (плиточное) покрытие восстанавливается в следующих объемах:
- покрытие тротуаров восстанавливается на всю ширину тротуаров по всей протяженности участка земляных работ;
- покрытие проезжей части восстанавливается большими картами (по ширине - от борта до борта проезжей части, по длине - по всей протяженности участка разрытия плюс 5 метров в обе стороны от кромки разрытия, за исключением разрытия траншей шириной не более 5 см.
2.5.17. Заказчик работ совместно с исполнителем работ в течение одного года несут ответственность за качество засыпки траншеи (котлована), устройство основания дорожного покрытия и в случае возникновения просадок (провалов) обязаны их устранить и восстановить нарушенное при этом благоустройство.
Устранение просадок (провалов), возникших в результате проведения работ по прокладке подземных коммуникаций и сооружений закрытым способом, обеспечивается заказчиком и исполнителем работ после завершения работ в течение двух лет.
2.5.17(1). Заказчик работ совместно с исполнителем работ в течение одного года с момента окончания работ несут ответственность за восстановление нарушенного благоустройства в соответствии с законодательством Российской Федерации и законодательством города Москвы.
2.5.18. Растительный грунт, песок, песчаный грунт и другие компоненты почвогрунтов, завозимые на строительные объекты, должны иметь санитарно-эпидемиологические заключения, сертификаты качества и данные по радиационным, экологическим и агрохимическим характеристикам.
2.5.19. Производство земляных работ планируется в соответствии с результатами лабораторных и инструментальных исследований почвы (грунтов) на участке строительства.
2.5.20. Не допускается засыпка траншей и котлованов на проезжей части и тротуарах грунтом с включениями строительного мусора, сколом асфальта.
2.5.21. При благоустройстве, рекультивации озелененной территории после завершения земляных работ запрещено использовать органический мусор и загрязненные (непригодные к вторичному использованию) грунты и почвы.
2.5.22. Почвы, грунты, отходы строительства и сноса, непригодные к вторичному использованию, подлежат утилизации в местах захоронения, отведенных в установленном порядке.
3. Порядок установки временных ограждений
3.1. Необходимость установки временных ограждений, расположение и выбор типа временного ограждения определяются проектом проведения (производства) работ в зависимости от конкретных условий проведения работ, места проведения работ, видов выполняемых работ.
3.2. Временные ограждения по функциональному назначению подразделяются на:
1) сигнальные, предназначенные для предупреждения о границах участка, территории, места проведения работ;
2) защитные, предназначенные для предотвращения доступа посторонних лиц на участки, территории, в места проведения работ;
3) защитно-охранные, предназначенные для предотвращения доступа посторонних лиц на территории, участки, в места проведения работ, а также для охраны материальных ценностей, размещенных на территориях, участках, в местах проведения работ.
3.3. Технические требования к ограждениям:
- ограждения должны соответствовать требованиям настоящих Правил;
- в ограждениях должны предусматриваться ворота для проезда строительных и других машин и калитки для прохода людей;
- ограждения должны быть сборно-разборными с унифицированными элементами, соединениями и деталями крепления.
3.4. Конструкция ограждения должна обеспечивать:
- дефис утратил силу с 20 мая 2025 года. - Постановление Правительства Москвы от 12.11.2024 N 2548-ПП;
- безопасность монтажа и эксплуатации;
- долговечность;
- возможность повторного применения;
- отсутствие заглубленных фундаментов;
- возможность установки доборных элементов (защитных козырьков, перил, подкосов, настилов);
- безопасность дорожного движения.
3.5. На территории города Москвы допускается применение только типов ограждений, указанных в приложении к настоящим Правилам.
3.5(1). В случае утверждения заказчиком стиля (цветовая гамма, шрифт), используемого для декоративно-художественного оформления временных ограждений при проведении работ за счет средств бюджета города Москвы, применение такого утвержденного стиля для декоративно-художественного оформления временных ограждений при проведении работ за счет внебюджетных источников финансирования не допускается, за исключением работ, проводимых за счет средств некоммерческих организаций, учредителем которых является город Москва.
Информационные материалы об утвержденном заказчиком стиле, указанном в настоящем пункте, подлежат размещению в информационно-телекоммуникационной сети Интернет.
3.5(2). При проведении (производстве) работ за счет средств бюджета города Москвы и средств государственных учреждений города Москвы на защитных и защитно-охранных временных ограждениях допускается размещение информационных носителей со сменным изображением, на которых размещается информация о строящемся, реконструируемом или ремонтируемом объекте.
Яркость размещаемого на временном ограждении информационного носителя в дневное/ночное время суток должна соответствовать нормируемым показателям установленного уровня суммарной вертикальной освещенности, а также учитываться в соответствии с функциональным назначением окружающей застройки. Негативные последствия избыточной яркости размещаемого информационного носителя должны корректироваться с использованием технических и иных ограничителей.
Информационные носители должны быть оборудованы системой аварийного отключения от сети электропитания и соответствовать требованиям пожарной безопасности.
3.6. Ограждения мест производства работ должны иметь надлежащий вид: очищены от грязи, промыты, не иметь проемов, не предусмотренных проектом, поврежденных участков, отклонений от вертикали, посторонних наклеек, объявлений и надписей, обеспечивать безопасность дорожного движения. По периметру ограждений должно быть установлено освещение.
3.7. Ограждения и их конструкции должны быть окрашены красками, устойчивыми к неблагоприятным погодным условиям, а при повторном использовании - отремонтированы и окрашены заново.
3.8. При расположении объектов производства работ в стесненных условиях городской застройки, вблизи мест интенсивного движения пешеходов и транспорта для обеспечения безопасности их прохода и перемещения над ограждением устанавливается защитный козырек, а на тротуаре - настил для пешеходов, оборудованный перилами со стороны движения транспорта.
3.9. При проведении (производстве) работ за счет средств бюджета города Москвы или средств, предоставленных из бюджета города Москвы, в случае, если заказчиком по таким работам выступают орган исполнительной власти города Москвы, входящий в Комплекс градостроительной политики и строительства города Москвы, подведомственные ему организации, Московский фонд реновации жилой застройки, Московский фонд защиты прав граждан - участников долевого строительства, автономные некоммерческие организации, в отношении которых указанный орган исполнительной власти города Москвы осуществляет от имени города Москвы полномочия единственного учредителя, и хозяйственные общества, в уставном капитале которых доля города Москвы превышает 50 процентов и функции по координации и контролю деятельности которых осуществляет орган исполнительной власти города Москвы, входящий в Комплекс градостроительной политики и строительства города Москвы, а также дочерние хозяйственные общества, в уставном капитале которых более 50 процентов долей в совокупности принадлежит указанным юридическим лицам, поддержание временных ограждений строительных площадок в состоянии, соответствующем требованиям порядка установки временных ограждений, предусмотренного настоящими Правилами, осуществляется с учетом следующих особенностей:
3.9.1. Проведение мониторинга состояния временных ограждений в целях соблюдения требований настоящих Правил осуществляется автономной некоммерческой организацией, производящей мониторинг выполнения работ на строительных площадках в городе Москве, в отношении которой от имени города Москвы полномочия единственного учредителя осуществляет Департамент градостроительной политики города Москвы (далее - Организация, осуществляющая мониторинг).
3.9.2. В случае выявления временных ограждений, не соответствующих требованиям настоящих Правил, Организация, осуществляющая мониторинг, в срок не позднее трех рабочих дней со дня выявления таких временных ограждений направляет информацию о необходимости приведения временных ограждений строительных площадок в состояние, соответствующее требованиям настоящих Правил, заказчику, указанному в абзаце первом настоящего пункта 3.9.
3.9.3. Заказчик, указанный в абзаце первом настоящего пункта 3.9, на основании полученной от Организации, осуществляющей мониторинг, информации в срок не позднее трех рабочих дней со дня ее получения направляет исполнителю по государственному контракту (договору), предусматривающему выполнение строительно-монтажных работ (далее - подрядчик), уведомление о необходимости приведения временного ограждения в соответствие с требованиями настоящих Правил в следующие сроки:
- в течение трех рабочих дней со дня поступления подрядчику уведомления - в случае выявления отклонений от вертикали временного ограждения, являющегося потенциальным источником нанесения вреда или представляющего угрозу жизни и (или) здоровью граждан в связи с наличием риска его обрушения;
- в течение 10 рабочих дней со дня поступления подрядчику уведомления - в иных случаях.
3.9.4. В случае неустранения подрядчиком нарушений в сроки, предусмотренные пунктом 3.9.3 настоящих Правил, заказчик, указанный в абзаце первом настоящего пункта 3.9:
- в срок не позднее одного рабочего дня со дня истечения срока, предусмотренного пунктом 3.9.3 настоящих Правил, направляет в Организацию, осуществляющую мониторинг, информацию о неустранении подрядчиком нарушений;
- применяет к подрядчику меры ответственности в соответствии с условиями государственного контракта (договора), предусматривающего выполнение строительно-монтажных работ.
3.9.5. Организация, осуществляющая мониторинг, в срок не позднее 5 рабочих дней со дня получения информации о неустранении подрядчиком нарушений обеспечивает приведение временного ограждения в соответствие с требованиями настоящих Правил с учетом утвержденного стиля (при его утверждении заказчиком, указанным в абзаце первом настоящего пункта 3.9) и места размещения ранее установленного временного ограждения за счет предоставленной в установленном порядке субсидии.
3.9.6. Организация, осуществляющая мониторинг, в соответствии с решением Мэра Москвы привлекает для проведения работ по установке соответствующего требованиям настоящих Правил временного ограждения организацию, указанную в таком решении, в качестве единственного поставщика (далее - организация, обеспечивающая выполнение работ по установке временных ограждений) на основании договора подряда в пользу третьего лица, по которому выгодоприобретателем является подрядчик, по форме, утвержденной Департаментом градостроительной политики города Москвы.
Заказчик, указанный в абзаце первом настоящего пункта 3.9, обеспечивает допуск подрядчиком на строительную площадку представителей Организации, осуществляющей мониторинг, и организации, обеспечивающей выполнение работ по установке временных ограждений.
3.9.7. В срок не позднее одного рабочего дня, следующего за днем установки временного ограждения, организация, обеспечивающая выполнение работ по установке временных ограждений, направляет заказчику, указанному в абзаце первом настоящего пункта 3.9, подрядчику и Организации, осуществляющей мониторинг, акт выполненных работ по форме, утвержденной Департаментом градостроительной политики города Москвы, содержащий стоимость работ, с приложением иной необходимой документации.
Заказчик, указанный в абзаце первом настоящего пункта 3.9, обеспечивает в соответствии с условиями государственного контракта (договора), предусматривающего выполнение строительно-монтажных работ, приемку выполненных работ и подписание подрядчиком акта выполненных работ по договору подряда, указанному в пункте 3.9.6 настоящих Правил.
3.9.8. Заказчик, указанный в абзаце первом настоящего пункта 3.9, обеспечивает возмещение затрат бюджета города Москвы по приведению в соответствие с настоящими Правилами временных ограждений, рассчитанных в соответствии с территориальными сметными нормативами для города Москвы (ТСН-2001), за счет средств подрядчика в соответствии с условиями государственного контракта (договора), предусматривающего выполнение строительно-монтажных работ.
4. Порядок размещения временных объектов
4.1. К временным объектам, которые размещаются в местах проведения работ, относятся:
- строительные леса для организации работ на фасадах зданий и сооружений (далее - строительные леса);
- бытовые и подсобные строения для временного размещения людей и организации их работы, питания, бытового и медицинского обслуживания;
- производственные и складские строения, сооружения, помещения для хранения инвентаря, инструментов, материалов, изделий, конструкций, а также для организации выполнения (изготовления, наладки, подготовки необходимых изделий, конструкций) работ;
- оборудованные площадки для складирования почв, грунтов, отходов строительства и сноса, материалов, изделий, конструкций;
- временные дороги для организации движения транспорта в местах проведения работ;
- пункты мойки (очистки) колес автомобилей;
- контейнеры (бункеры) для сбора бытового мусора, отходов производства, складирования и хранения сыпучих и пылевидных материалов;
- мобильные туалетные кабины, за исключением мобильных туалетных кабин, размещаемых для проведения собраний, митингов, демонстраций, шествий и других публичных мероприятий, спортивных, зрелищных и иных массовых мероприятий;
- временные коммуникации (трубопроводы, кабельные линии), опоры для коммуникаций;
- пешеходные галереи;
- силовые конструкции (временные конструкции, такие как укосины, подпорки, контрфорсы).
4.2. Необходимость размещения временных объектов, их состав, количество, расположение определяется проектом проведения (производства) работ в зависимости от видов выполняемых работ, конкретных условий и места выполнения работ.
4.3. Требования к строительным лесам:
4.3.1. При проведении работ, для выполнения которых не требуется получение разрешения на строительство, работ по размещению объектов благоустройства территории города Москвы и проведении иных работ на территории города Москвы разрешается использование сборных инвентарных строительных лесов заводского изготовления в соответствии с требованиями ГОСТ 27321-2023 "Леса стоечные приставные для строительно-монтажных работ. Технические условия". Не допускается использование строительных лесов, материалом изготовления которых является дерево (деревянные леса).
4.3.2. Конструкции строительных лесов должны отвечать следующим требованиям:
- устойчивость, прочность и надежность конструкции;
- устойчивость к атмосферным осадкам и коррозии;
- длительный срок службы;
- надежность эксплуатации.
4.3.3. На строительных лесах навешивается декоративно-сетчатое ограждение или баннер для укрытия фасадов зданий и сооружений в ходе работ.
Декоративно-сетчатое ограждение и баннеры выполняются из специально предусмотренных для этой цели материалов, пригодных по своим декоративным, прочностным и пожароопасным качествам, сохраняющих свои первоначальные свойства не менее одного года. Сетчатые ограждения или баннеры натягиваются и закрепляются по всей поверхности лесов. Не допускается наличие значительных искривлений и провисаний сетчатого ограждения или баннера.
Фасады со стороны улиц должны укрываться баннерами с изображением объекта строительства, реконструкции или ремонта.
В случае установки декоративно-сетчатых ограждений и баннеров для укрытия фасадов зданий и сооружений в ходе работ, финансируемых за счет средств бюджета города Москвы и средств государственных учреждений города Москвы, такие декоративно-сетчатые ограждения и баннеры могут содержать изображения вывесок организаций и индивидуальных предпринимателей, чьи вывески на фасадах зданий заслоняются указанными декоративно-сетчатыми ограждениями или баннерами во время проведения работ, в размерах, не превышающих размеры дублируемых вывесок, при условии, что указанные вывески соответствуют требованиям Правил размещения и содержания информационных конструкций в городе Москве, утвержденных постановлением Правительства Москвы от 25 декабря 2013 г. N 902-ПП "О размещении информационных конструкций в городе Москве".
4.3.4. Металлические строительные леса должны быть заземлены (занулены) согласно действующим нормам сразу после их установки на место, до начала каких-либо работ (пункт 6.4.9 СНиП 12-03-2001).
4.4. Требования к размещению бытовых и подсобных строений для временного размещения людей и организации их работы, питания, бытового и медицинского обслуживания; размещению производственных и складских строений (сооружений, помещений) для хранения инвентаря, инструментов, материалов, изделий, конструкций, а также для организации выполнения, изготовления, наладки, подготовки необходимых изделий, конструкций, работ:
4.4.1. Бытовые и производственные (складские) строения возводятся (устанавливаются) из готовых конструкций заводского изготовления (цельнопередвижные, контейнерного типа, модульного типа, сборно-разборные конструкции).
4.4.2. Технические требования к размещению бытовых и производственных (складских) строений (сооружений):
- бытовые и производственные (складские) строения (сооружения) должны размещаться на свободных территориях и не должны препятствовать движению транспорта и пешеходов;
- бытовые и производственные (складские) строения должны располагаться на спланированной площадке с отводом поверхностных вод, с максимальным приближением к месту проведения работ;
- бытовые и производственные (складские) строения подлежат огораживанию ограждением защитно-охранного типа (в случае их размещения на обособленной территории отдельно от места проведения работ);
- бытовые, производственные (складские) строения должны иметь надлежащий внешний вид, не иметь посторонних наклеек, объявлений, надписей, промыты, очищены от грязи, окрашены красками, устойчивыми к неблагоприятным погодным условиям.
4.4.3. Запрещается проживание рабочих в бытовых и производственных (складских) строениях.
4.5. Требования к размещению контейнеров (бункеров) для сбора бытового мусора, отходов производства, хранения сыпучих и пылевидных материалов:
4.5.1. На территории площадки для проведения работ устанавливаются контейнеры и бункеры для сбора мусора и отходов, хранения сыпучих и пылевидных материалов.
4.5.2. Количество и размеры контейнеров и бункеров определяются в зависимости от количества накапливаемого мусора и отходов с тем, чтобы не допускать их переполнения и складирования мусора и отходов вне контейнеров и бункеров.
4.5.3. Бункеры, контейнеры, ящики и другие емкости для хранения сыпучих и пылевидных материалов оборудуются плотно закрывающимися крышками.
4.5.4. На бункеры и другие емкости для хранения сыпучих и пылевидных материалов наносится маркировка с указанием их назначения и предельно допустимой нагрузки.
4.5.5. Бункеры, контейнеры, ящики и другие емкости для хранения сыпучих и пылевидных материалов изготавливаются из механически прочных материалов, защищенных от воздействия коррозии, исключающих пыление, обеспечивающих сохранность материалов и возможность применения средств механизации погрузочно-разгрузочных работ.
4.5.6. Бункеры, контейнеры, ящики и другие емкости должны иметь надлежащий вид, очищены от грязи, промыты и окрашены красками, устойчивыми к неблагоприятным погодным условиям.
4.6. Требования к обустройству временных дорог и оборудованных площадок для складирования материалов, изделий, конструкций:
4.6.1. Временные дороги устраиваются для обеспечения возможности перемещения транспорта на территории (участке, площадке) проведения работ.
Оборудованные площадки для временного складирования материалов, изделий, конструкций устраивают для упорядочения складирования материалов, изделий, конструкций и обеспечения их сохранности в соответствии с нормативными требованиями по условиям хранения.
Оборудованные площадки для временного складирования почв, снимаемых со строительных площадок, грунтов, пригодных для использования при благоустройстве и озеленении, и почвогрунтов устраиваются для защиты их от загрязнения, размыва, выветривания и смешивания с нижележащим подстилающим грунтом.
Площадки для временного размещения почв и грунтов, отходов строительства и сноса, опасных и не пригодных для вторичного использования, должны быть оборудованы таким образом, чтобы обеспечить соблюдение экологических, санитарных и иных требований, установленных законодательством Российской Федерации в области охраны окружающей природной среды и здоровья человека.
4.6.2. Временные подъездные пути (дороги) и площадки для складирования должны иметь твердое покрытие, оборудованы необходимыми дорожными знаками, указателями и приспособлениями, очищены от грязи, снега и наледи (в зимний период).
4.7. Требования к пунктам мойки (очистки) колес автомобилей:
4.7.1. Для предотвращения выноса грязи (грунта) на территории общего пользования в составе проекта проведения (производства) работ должно предусматриваться оснащение мест проведения работ пунктами мойки (очистки) колес автомобилей.
4.7.2. Пункт мойки (очистки) колес автомобилей устанавливается на объектах, где ведутся работы по выемке и перемещению грунта автомобильным транспортом за границы участка проведения работ, а также работы, связанные с перемещением транспортных средств вне обустроенных дорог с твердым покрытием в местах проведения работ и с последующим выездом на территорию общего пользования.
4.7.3. На территории города Москвы допускается использование только сертифицированных пунктов мойки (очистки) колес автомобилей заводского изготовления с замкнутым циклом водооборота и утилизацией стоков.
4.7.4. Конструктивные и технологические решения пунктов мойки (очистки) колес автомобилей должны соответствовать техническим и экологическим требованиям и гарантировать исключение выноса грунта (грязи) колесами автомобилей с территории производства работ.
4.7.5. В зимнее время при температуре воздуха ниже минус 5 °C пункты мойки (очистки) колес автомобилей должны оборудоваться компрессорами для сухой очистки колес сжатым воздухом.
4.7.6. Пункты мойки (очистки) колес автотранспорта устанавливаются на асфальтированной площадке с обратным уклоном.
4.7.7. Допускается установка мобильных моечных постов с установкой на железобетонных плитах, деревянных настилах (при ведении работ по прокладке и ремонту инженерных коммуникаций).
4.8. Требования к размещению мобильных туалетных кабин:
4.8.1. Места проведения работ, размещения бытовых и производственных (складских) строений подлежат комплектованию передвижными туалетными кабинами (биотуалетами).
4.8.2. Передвижные туалетные кабины (биотуалеты) устанавливаются в местах, определенных проектом проведения (производства) работ.
4.8.3. Передвижные туалетные кабины (биотуалеты) должны обслуживаться специализированными организациями, своевременно очищаться и промываться в соответствии с санитарными требованиями.
4.8.4. Использование выгребных туалетов запрещается.
4.9. Требования к размещению временных коммуникаций (трубопроводов, кабельных линий), опор коммуникаций.
4.9.1. Временные коммуникации должны быть выполнены в соответствии с техническими условиями на присоединение ресурсоснабжающих организаций и в соответствии с проектом прокладки указанных коммуникаций, согласованным с ресурсоснабжающими организациями.
4.9.2. Проект прокладки коммуникаций должен соответствовать требованиям прокладки, устройства и эксплуатации временных коммуникаций, утвержденных соответствующими нормативными и правовыми документами органов исполнительной власти, министерств, ведомств.
4.9.3. Использование существующих опор для прокладки, устройства временных коммуникаций должно быть согласовано с владельцами (балансодержателями) существующих опор.
4.9.4. Размещение временных опор для прокладки (устройства) временных коммуникаций на территориях, находящихся в собственности; пользовании на правах аренды, безвозмездного пользования или другого вещного права, должно быть согласовано с собственником, пользователем соответствующего земельного участка.
4.9.5. Временные опоры и временные коммуникации не должны препятствовать свободному перемещению транспортных средств и пешеходов.
4.9.6. Внешний вид временных опор и коммуникаций должен соответствовать современным эстетическим требованиям. Не допускается сводное провисание кабельных коммуникаций, элементов подвесок, изоляции. Трубопроводы должны быть заизолированы и окрашены.
5. Требования к содержанию мест проведения работ
5.1. Уборка и содержание мест производства работ осуществляется в соответствии с Правилами санитарного содержания территорий, организации уборки и обеспечения чистоты и порядка в г. Москве, утвержденными Правительством Москвы.
5.2. Обустройство и содержание строительных площадок выполняется с соблюдением требований, указанных в санитарных правилах СП 2.2.3670-20 "Санитарно-эпидемиологические требования к условиям труда".
5.3. Исполнитель работ обязан систематически производить осмотр состояния мест производства работ и принимать меры по устранению выявленных нарушений, вывозу грунта, разобранных асфальтовых покрытий, уборке отходов и мусора.
5.4. Разобранное асфальтовое покрытие (скол), образовавшееся в результате производства работ, вывозится с места производства работ в течение рабочего дня. Складирование разобранного асфальтового покрытия в течение более чем одного календарного дня запрещается. Временное складирование скола асфальта на газонах и участках с зелеными насаждениями запрещено.
5.5. Не допускается при уборке строительных отходов и мусора сбрасывать их с этажей зданий и сооружений без применения закрытых лотков (желобов), бункеров-накопителей, закрытых ящиков или контейнеров.
5.6. На месте производства работ сбор отходов (включая отходы строительства и сноса) и мусора осуществляется в контейнеры для сбора и временного хранения отходов и мусора и/или на оборудованных, специализированных площадках.
5.7. На месте производства работ запрещается захоронение мусора, отходов строительства и сноса, закапывание их в грунт или сжигание.
5.8. Не допускается вынос грунта (грязи) колесами автотранспорта за границы места производства работ.
5.9. Производственные и бытовые стоки, образующиеся при производстве работ, подлежат очистке, обезвреживанию и удалению в соответствии с временными техническими условиями эксплуатирующих организаций.
5.10. Для предотвращения поступления пыли в атмосферный воздух при проведении работ предпринимаются следующие меры:
5.10.1. При складировании сыпучих и пылевидных материалов применяются меры против их распыления в процессе погрузки и выгрузки.
5.10.2. Загрузочные воронки закрываются защитными кожухами.
5.10.3. Узлы пересыпки сыпучих материалов и другое технологическое оборудование с источниками пыления должны иметь надежное уплотнение.
5.10.4. За состоянием уплотнений и средствами, предотвращающими пыление, должен быть установлен периодический контроль. Замеченные неисправности должны ликвидироваться в кратчайшие сроки.
5.10.5. Для защиты от пыли территорий, прилегающих к строительным площадкам, ограждения строительных площадок могут быть оснащены сетками, обеспечивающими удержание строительной пыли.
5.10.6. В летний период, в жаркие дни для предотвращения пыления открытых участков территорий мест проведения работ осуществляется полив технической водой.
5.11. В случае проведения (производства) работ с занятием проезжей части улиц и магистралей, территории остановок общественного транспорта, отстойно-разворотных площадок общественного транспорта, велосипедных дорожек, в том числе в целях обеспечения прохода пешеходов, а также с полным перекрытием тротуаров, проведение таких работ осуществляется по согласованию в установленном порядке с Департаментом транспорта и развития дорожно-транспортной инфраструктуры города Москвы.
Работы на проезжей части улиц и магистралей должны производиться с соблюдением типовых схем организации дорожного движения при производстве работ на проезжей части улиц и магистралей, утвержденных Департаментом транспорта и развития дорожно-транспортной инфраструктуры города Москвы.
5.12. Проведение земляных работ, установка временных ограждений, размещение временных объектов в целях проведения работ в границах территории объекта культурного наследия, выявленного объекта культурного наследия должно осуществляться с соблюдением требований законодательства об охране объектов культурного наследия.
5.13. Производство земляных работ, установка временных ограждений, размещение временных объектов на трассах (маршрутах) проезда, в местах постоянного и временного пребывания объектов государственной охраны в городе Москве должны выполняться с учетом требований Федеральной службы охраны Российской Федерации.
Приложение
к Правилам
ТИПЫ ОГРАЖДЕНИЙ, ИСПОЛЬЗУЕМЫЕ ПРИ ПРОВЕДЕНИИ ЗЕМЛЯНЫХ РАБОТ, УСТАНОВКЕ ВРЕМЕННЫХ ОГРАЖДЕНИЙ, РАЗМЕЩЕНИИ ВРЕМЕННЫХ ОБЪЕКТОВ В ГОРОДЕ МОСКВЕ
Типы ограждений, используемые при проведении земляных работ, установке временных ограждений, размещении временных объектов в городе Москве (далее - Альбом), определяют типовые схемы ограждений с учетом требований к внешнему виду и визуальной проницаемости в зависимости от мест их установки и проводимых работ.
Типы ограждений определены с учетом серийного их изготовления для размещения на строительных площадках, а также применения новых технологичных и безопасных материалов.
Классификация ограждений объектов строительства, реконструкции и капитального ремонта принята в зависимости от условий проведения и видов строительных и ремонтных работ.
В том числе в зависимости от условий применения разработаны 3 типа ограждений:
- "Тип 1" - сигнальное ограждение;
- "Тип 2" - защитное ограждение;
- "Тип 3" - защитно-охранное ограждение.
В зависимости от технических характеристик элементов в соответствии с принятой конструктивной схемой разработаны подтипы ограждений.
Предусмотрены варианты заполнения конструкций ограждений: прозрачные ("П") и непрозрачные ("Н"). Конструкции варианта "П" используются для всех типов ограждения, варианта "Н" - для всех типов, кроме 2В, 3В и 3Г.
Каталожные листы ограждений представлены в настоящем приложении.
На каталожном листе каждого типа ограждения указаны основные требования к ограждению, включая данные по цветовому решению (RAL), приведены примеры решения типовой секции, секций с доборными элементами и общий вид ограждения.
Для всех типов ограждений:
- предусмотрена возможность размещения опор, светильников и сигнальных маячков, применения вариантов заполнения панелей из различных материалов, пригодных по своим физическим и конструктивным свойствам для ограждений, в том числе монолитного поликарбоната, крепление пленочных, тканевых или сетчатых защитных пыле- и атмосферозащитных экранов;
- определены согласованные с Москомархитектурой требования к вариантам окраски опорных элементов и элементов ограждения, ворот и калиток;
- приняты решения без заглубленных фундаментов (кроме несущих стоек ворот и калиток);
- разработаны принципиальные решения калитки и ворот.
Все типы ограждений, предназначенные для ограждения строительных площадок и зон производства ремонтных работ с перекрытием пешеходных зон и на фасадах зданий, могут модифицироваться в зависимости от градостроительной ситуации:
- с оснащением защитным наклонным козырьком;
- с устройством деревянного (или из металлических решеток) настила тротуаров (ширина не менее 1,2 м) со специальным антискользящим покрытием и пандусом (уклон 1:20) для заезда на него;
- с дополнением-ограждением парапетного типа из железобетонных блоков специального профиля (со стороны движения транспорта) с устройством поручней.
Применение ограждения высотой менее 2 м возможно при обосновании с учетом ГОСТ Р 58967-2020.
Конструкции, применяемые в ограждениях "Тип 1", предусматривают возможность монтажа и демонтажа без участия грузоподъемных механизмов.
Допускается в качестве опорных блоков ограждений "Тип 2" и "Тип 3" вместо указанных в каталожных листах решений использовать блоки типа ФБС (сплошные), соответствующие ГОСТ 13579-2018.
Защиту от коррозии ограждений выполнять нанесением двух слоев эмали ПФ-1189 (ТУ 6-10-1710-79) общей толщиной 50-60 мкм или другими равноценными эмалями по слою грунтовкой ГФ-021 (ГОСТ 25129-2020).
Опорные элементы и элементы ограждения, ворот и калиток окрашивать по каталогу "RAL К7 classic" в следующие цвета:
RAL 7016 (темно-серый);
RAL 7042 (светло-серый);
RAL 7039 (коричнево-серый);
RAL 7032 (песочно-серый);
RAL 9007 (темно-алюминиевый);
RAL 5003 (темно-синий);
RAL 5005 (ярко-синий).
Абзац утратил силу. - Постановление Правительства Москвы от 03.12.2024 N 2754-ПП.
Металлическое ограждение (тип 3А) изготавливается на производстве, оснащенном соответствующим современным оборудованием, с полным соблюдением технологии.
Прокладка кабелей (проводов) выполняется в соответствии с требованиями Правил устройства электроустановок (ПУЭ) в местах въездов и выездов с установкой столбов (опор) с сохранением над проездом высоты от уровня отметки земли до кабеля не менее 6 м.
Все металлические ограждения с проложенной кабельной линией подлежат заземлению при помощи отдельного ответвления в соответствии с требованиями Правил технической эксплуатации электроустановок потребителей.
Типы ограждений, обустройства и оформления строительных площадок обеспечивают безопасность перемещения людей и транспорта в местах, расположенных вблизи строящихся или реконструируемых объектов городской застройки или мест производства ремонтных или благоустроительных работ.
КЛАССИФИКАЦИЯ ТИПОВ ОГРАЖДЕНИЙ ПО УСЛОВИЯМ ПРОВЕДЕНИЯ И ПО ВИДАМ ПРОВОДИМЫХ РАБОТ
|
Условия размещения ограждений |
Типы ограждений | ||||||||||||||||
|
Тип 1 |
Тип 2 |
Тип 3 | |||||||||||||||
|
А |
Б |
В |
А |
Б |
В |
А |
Б |
В |
Г | ||||||||
|
П |
Н |
П |
Н |
П |
Н |
П |
Н |
П |
Н |
П |
П |
Н |
П |
Н |
П |
П | |
|
1АП |
1АН(1) 1АН(2) |
1БП |
1БН(1) 1БН(2) 1БН(3) |
1ВП |
1ВН(1) 1БН(2) |
2АП |
2АН(1) 2АН(2) |
2БП |
2БН(1) 2БН(2) |
2ВП |
3АП |
3АН |
3БП |
3БН(1) 3БН(2) 3БН(3) |
3ВП |
3ГП | |
|
1 |
2 |
3 |
4 |
5 |
6 |
7 |
8 |
9 |
10 |
11 |
12 |
13 |
14 |
15 |
16 |
17 |
18 |
|
А) ПО УСЛОВИЯМ ПРОВЕДЕНИЯ РАБОТ: | |||||||||||||||||
|
в застройке с выходом на магистрали и улицы города |
+ |
+ |
+ |
+ |
+ |
+ |
+ |
+ |
+ | ||||||||
|
в стесненных условиях городской застройки с перекрытием пешеходных зон |
+ |
+ |
+ |
+ |
+ |
+ |
+ |
+ |
+ |
+ | |||||||
|
в промзоне или на свободной от застройки территории (на пустыре) |
+ |
+ |
+ |
+ |
+ |
+ |
+ |
+ |
+ |
+ |
+ |
+ | |||||
|
на особо охраняемых природных территориях, природных и озелененных территориях, особо охраняемых зеленых территориях |
+ |
+ |
+ |
+ |
+ |
+ |
+ |
+ | |||||||||
|
иных озелененных территориях или пустырях |
+ |
+ |
+ |
+ |
+ |
+ |
+ |
+ |
+ | ||||||||
|
на проезжей части дорог |
+ |
+ |
+ |
+ |
+ |
+ |
+ |
+ |
+ |
+ | |||||||
|
Б) ПО ВИДАМ СТРОИТЕЛЬНЫХ И РЕМОНТНЫХ РАБОТ: | |||||||||||||||||
|
позиция утратила силу. - Постановление Правительства Москвы от 08.02.2022 N 111-ПП | |||||||||||||||||
|
новое строительство, ремонт, реконструкция зданий и сооружений, в том числе работы на фасадах зданий |
+ |
+ |
+ |
+ |
+ |
+ | |||||||||||
|
ремонт и содержание дорог |
+ |
+ |
+ |
+ |
+ |
+ |
+ |
+ | |||||||||
|
аварийные разрытия для ремонта подземных коммуникаций |
+ |
+ |
+ |
+ |
+ |
+ |
+ |
+ |
+ |
+ | |||||||
|
прокладка кабельных коммуникаций мелкого заложения (до 1 метра включительно) |
+ |
+ |
+ |
+ |
+ |
+ | |||||||||||
|
прокладка, ремонт, реконструкция инженерных коммуникаций глубокого заложения (более 1 метра) |
+ |
+ |
+ |
+ |
+ |
+ |
+ |
+ |
+ |
+ | |||||||
|
строительство и реконструкция объектов дорожно-мостового хозяйства |
+ |
+ |
+ |
+ |
+ |
+ |
+ |
+ | |||||||||
|
строительство и реконструкция объектов метрополитена |
+ |
+ |
+ |
+ |
+ | ||||||||||||
|
на объектах со стационарными ограждениями, являющимися зоной проведения строительно-монтажных работ |
+ |
+ |
+ |
+ |
+ |
+ |
+ |
+ | |||||||||
|
капитального строительства на объектах государственной охраны |
+ |
+ |
+ | ||||||||||||||
|
благоустроительные работы |
+ |
+ |
+ |
+ |
+ |
+ |
+ |
+ | |||||||||
Условные обозначения:
А, Б, В - тип конструктивного решения ограждения;
П - прозрачный тип ограждения;
Н - непрозрачный тип ограждения;
1, 2, 3 - варианты применяемых материалов ограждения.
Тип 1. Сигнальное ограждение
Тип 1А П
Тип 1А Н(1)
Тип 1А Н(2)
Тип 1БП
Тип 1Б Н(1)
Тип 1Б Н(2)
Тип 1Б Н(3)
Тип 1ВП
Тип 1В Н(1)
Тип 1В Н(2)
Тип 2. Защитное ограждение
Тип 2 АП
Тип 2А Н(1)
Тип 2А Н(2)
Тип 2БП
Тип 2Б Н(1)
Тип 2Б Н(2)
Тип 2ВП
Тип 3. Защитно-охранное ограждение
Тип 3АП
Тип 3А Н
Тип 3БП
Тип 3Б Н(1)
Тип 3Б Н(2)
Тип 3Б Н(3)
Тип 3ВП
Тип 3ГП
Калитка и распашные ворота
Кабель наружного освещения
Приложение 2
к постановлению Правительства
Москвы
от 19 мая 2015 г. N 299-ПП
ПЕРЕЧЕНЬ ПРАВОВЫХ АКТОВ ГОРОДА МОСКВЫ, ПРИЗНАВАЕМЫХ УТРАТИВШИМИ СИЛУ
1. Постановление Правительства Москвы от 7 декабря 2004 г. N 857-ПП "Об утверждении Правил подготовки и производства земляных работ, обустройства и содержания строительных площадок в городе Москве".
2. Постановление Правительства Москвы от 12 апреля 2005 г. N 215-ПП "О внесении изменений в постановление Правительства Москвы от 7 декабря 2004 г. N 857-ПП".
3. Постановление Правительства Москвы от 11 октября 2005 г. N 780-ПП "О внесении изменений в постановление Правительства Москвы от 7 декабря 2004 г. N 857-ПП".
4. Постановление Правительства Москвы от 6 декабря 2005 г. N 980-ПП "Об обеспечении сохранности подземных сетей и коммуникаций при производстве земляных и строительных работ в городе Москве".
5. Постановление Правительства Москвы от 17 января 2006 г. N 19-ПП "О совершенствовании системы выдачи разрешительных документов на осуществление строительных и земляных работ".
6. Постановление Правительства Москвы от 22 августа 2006 г. N 596-ПП "О внесении изменений в постановление Правительства Москвы от 7 декабря 2004 г. N 857-ПП".
7. Постановление Правительства Москвы от 12 сентября 2006 г. N 687-ПП "О внесении изменений и дополнений в отдельные правовые акты Правительства Москвы".
8. Пункт 1 постановления Правительства Москвы от 7 ноября 2006 г. N 866-ПП "О внесении изменений и дополнений в постановление Правительства Москвы от 7 декабря 2004 г. N 857-ПП и распоряжение Правительства Москвы от 30 июня 2004 г. N 1312-РП".
9. Постановление Правительства Москвы от 13 марта 2007 г. N 173-ПП "О внесении изменений и дополнений в постановление Правительства Москвы от 7 декабря 2004 г. N 857-ПП".
10. Постановление Правительства Москвы от 10 апреля 2007 г. N 240-ПП "Об утверждении Регламента подготовки и выдачи ордеров на производство земляных и строительных работ в городе Москве".
11. Постановление Правительства Москвы от 19 июня 2007 г. N 482-ПП "О внесении изменений в постановление Правительства Москвы от 7 декабря 2004 г. N 857-ПП".
12. Постановление Правительства Москвы от 31 июля 2007 г. N 650-ПП "О внесении изменений в постановление Правительства Москвы от 7 декабря 2004 г. N 857-ПП".
13. Постановление Правительства Москвы от 11 декабря 2007 г. N 1068-ПП "О внесении изменений в постановление Правительства Москвы от 7 декабря 2004 г. N 857-ПП".
14. Постановление Правительства Москвы от 25 декабря 2007 г. N 1113-ПП "О внесении изменений в постановление Правительства Москвы от 7 декабря 2004 г. N 857-ПП".
15. Постановление Правительства Москвы от 4 марта 2008 г. N 157-ПП "О внесении изменений в постановление Правительства Москвы от 7 декабря 2004 г. N 857-ПП".
16. Распоряжение Правительства Москвы от 19 марта 2008 г. N 523-РП "О совершенствовании работ Городской комиссии по упорядочению разрытий при производстве строительных работ на территории города Москвы".
17. Пункт 1.2 постановления Правительства Москвы от 29 апреля 2008 г. N 357-ПП "О приведении правовых актов города Москвы в соответствие с Законом города Москвы от 21 ноября 2007 г. N 45".
18. Постановление Правительства Москвы от 12 августа 2008 г. N 725-ПП "О внесении изменений в постановление Правительства Москвы от 10 апреля 2007 г. N 240-ПП".
19. Постановление Правительства Москвы от 14 октября 2008 г. N 929-ПП "О внесении изменений и дополнений в постановление Правительства Москвы от 7 декабря 2004 г. N 857-ПП".
20. Пункт 6.9 постановления Правительства Москвы от 15 июня 2010 г. N 492-ПП "О полномочиях и функциях органов исполнительной власти в рамках ведения Реестра деловой репутации партнеров Правительства Москвы".
21. Пункт 6.2 постановления Правительства Москвы от 4 октября 2011 г. N 475-ПП "О Комиссии при Правительстве Москвы по рассмотрению вопросов осуществления градостроительной деятельности в границах достопримечательных мест и зон охраны объектов культурного наследия".
22. Пункт 3 постановления Правительства Москвы от 28 марта 2012 г. N 114-ПП "О колористических решениях фасадов зданий, строений, сооружений в городе Москве".
23. Постановление Правительства Москвы от 25 апреля 2012 г. N 186-ПП "О внесении изменений в постановление Правительства Москвы от 7 декабря 2004 г. N 857-ПП и признании утратившими силу правовых актов (отдельных положений правовых актов) города Москвы".
24. Постановление Правительства Москвы от 13 ноября 2012 г. N 638-ПП "О внесении изменений в постановление Правительства Москвы от 7 декабря 2004 г. N 857-ПП".
25. Пункт 1 постановления Правительства Москвы от 22 января 2013 г. N 22-ПП "О внесении изменений в правовые акты Правительства Москвы".
26. Пункт 3 постановления Правительства Москвы от 6 марта 2013 г. N 129-ПП "О внесении изменений в правовые акты города Москвы".
27. Постановление Правительства Москвы от 13 июня 2013 г. N 378-ПП "О внесении изменений в постановление Правительства Москвы от 10 апреля 2007 г. N 240-ПП".
28. Пункт 1 постановления Правительства Москвы от 10 октября 2013 г. N 675-ПП "О внесении изменений в правовые акты Правительства Москвы".
29. Постановление Правительства Москвы от 2 декабря 2013 г. N 775-ПП "О внесении изменения в постановление Правительства Москвы от 10 апреля 2007 г. N 240-ПП".
Приложение 3
к постановлению Правительства
Москвы
от 19 мая 2015 г. N 299-ПП
ТРЕБОВАНИЯ К ДЕКОРАТИВНО-ХУДОЖЕСТВЕННОМУ ОФОРМЛЕНИЮ ВРЕМЕННЫХ ОГРАЖДЕНИЙ МЕСТ ПРОВЕДЕНИЯ РАБОТ ПО СТРОИТЕЛЬСТВУ, РЕКОНСТРУКЦИИ И РЕМОНТУ ОБЪЕКТОВ КАПИТАЛЬНОГО СТРОИТЕЛЬСТВА В ГОРОДЕ МОСКВЕ
1. Требования к декоративно-художественному оформлению временных ограждений мест проведения работ по строительству, реконструкции и ремонту объектов капитального строительства в городе Москве (далее - Требования) распространяются исключительно на временные ограждения защитного и защитно-охранного типа. Неотъемлемой составной частью Требований является Графическое приложение к Требованиям (приложение к настоящим Требованиям).
Настоящие Требования не распространяются на временные ограждения мест проведения работ на объектах благоустройства.
2. Декоративно-художественное оформление информационных панелей может содержать:
- информационное поле без изображения;
- информационное поле с текстом;
- информационное поле с графическим изображением (3d, карта, фото и иные объекты, кроме рекламы).
3. Каждое информационное поле может содержать информацию об объекте, а именно: название (в том числе коммерческое) и логотип проекта, сроки завершения строительства или проведения работ по реконструкции и ремонту, фактические данные (количество запланированных объектов строительства, реконструкции и ремонта, преимущества, которые обеспечит объект), а также иные информационные сообщения и слоганы, относящиеся непосредственно и исключительно к данному проекту и не являющиеся рекламой.
4. Каждое 4-е информационное поле должно содержать QR-код, полученный при оформлении ордера (разрешения) на проведение земляных работ, установку временных ограждений, размещение временных объектов в городе Москве, регистрации уведомлений о проведении земляных работ, установке временных ограждений и размещении временных объектов в городе Москве, формируемых с использованием Информационно-аналитической системы управления градостроительной деятельностью, посредством которого обеспечивается перенаправление пользователя информационно-телекоммуникационной сети Интернет на интерактивную страницу, содержащую сведения из цифрового паспорта объекта капитального строительства, порядок формирования и актуализации которого утвержден постановлением Правительства Москвы от 4 октября 2022 г. N 2125-ПП "Об утверждении Порядка формирования и актуализации цифровых паспортов объектов капитального строительства, ведения реестра цифровых паспортов объектов капитального строительства, Порядка присвоения и применения уникального идентификационного номера объекта капитального строительства и внесении изменений в правовые акты города Москвы", в том числе сведения о 3D-модели будущего здания, визуализации объекта, уникальный идентификационный номер объекта капитального строительства, сведения об участниках строительства, функциональное назначение, информацию о ходе строительства, технико-экономические показатели, сроки проведения работ и ввода в эксплуатацию объекта.
Формирование QR-кода осуществляется Департаментом градостроительной политики города Москвы. В случае поступления письменного заявления заказчика работ Департамент градостроительной политики города Москвы размещает на указанной в абзаце первом настоящего пункта интерактивной странице ссылку на созданную застройщиком страницу проекта в информационно-телекоммуникационной сети Интернет.
Размер QR-кода, размещенного на информационном поле, должен быть не менее 0,8 x 0,8 м.
5. Каждое информационное поле может также содержать логотипы организаций, участвующих в реализации проекта (девелопер проекта, генеральный подрядчик проекта, организации, финансирующие строительство, архитектурные и дизайнерские бюро и компании, непосредственно задействованные при реализации проекта).
6. В качестве элементов декоративно-художественного оформления используются визуализации (единая визуальная информация о строящемся объекте, в том числе внешнем виде объекта, благоустройства, интерьеров общественных пространств, видов из окон, планировочных решений) и (или) текстовые изображения, не являющиеся рекламой.
7. На визуализации или текстовом изображении должны быть указаны:
7.1. В случае оформления временных ограждений мест проведения работ по строительству, реконструкции и ремонту объектов капитального строительства в городе Москве, осуществляемых за счет внебюджетных источников финансирования:
7.1.1. В рамках верхнего поля - QR-код, посредством которого обеспечивается перенаправление на страницу сервиса "Все стройки Москвы" официального сайта Комплекса градостроительной политики и строительства города Москвы в информационно-телекоммуникационной сети Интернет - www.stroi.mos.ru.
7.1.2. В рамках нижнего поля - адрес официального сайта Правительства Москвы в информационно-телекоммуникационной сети Интернет - www.mos.ru и официального сайта Комплекса градостроительной политики и строительства города Москвы в информационно-телекоммуникационной сети Интернет - www.stroi.mos.ru.
7.2. В случае оформления временных ограждений мест проведения работ по строительству, реконструкции и ремонту объектов капитального строительства в городе Москве, осуществляемых за счет средств бюджета города Москвы:
7.2.1. В рамках верхнего поля - герб города Москвы и слова "Правительство Москвы".
7.2.2. В рамках нижнего поля - QR-код, посредством которого обеспечивается перенаправление на страницу сервиса "Все стройки Москвы" официального сайта Комплекса градостроительной политики и строительства города Москвы в информационно-телекоммуникационной сети Интернет - www.stroi.mos.ru.
8. При оформлении временных ограждений мест проведения работ по строительству, реконструкции и ремонту объектов капитального строительства в рамках комплексного развития территорий в городе Москве размещение информации производится на информационном поле двойной секции с текстом и графикой.
При этом информационная панель состоит из двух информационных полей, каждое из которых при делении вертикально содержит в левой части текстографическую информацию, в правой части - рендеры строящегося объекта (не повторяющиеся в рамках одной информационной панели).
На первом информационном поле информационной панели в левой части (текстографическая часть) должны быть указаны:
- в рамках левого верхнего поля - герб города Москвы, слова "Правительство Москвы", логотип проекта "Программа комплексного развития территорий", а также QR-код, посредством которого обеспечивается перенаправление пользователя информационно-телекоммуникационной сети Интернет на страницу проекта "Программа комплексного развития территорий" - https://krt.mos.ru, а также QR-код, посредством которого обеспечивается перенаправление пользователя информационно-телекоммуникационной сети Интернет на страницу сервиса "Все стройки Москвы" официального сайта Комплекса градостроительной политики и строительства города Москвы в информационно-телекоммуникационной сети Интернет - www.stroi.mos.ru;
- в рамках левого нижнего поля - название проекта "Программа комплексного развития территорий", адрес официального сайта Правительства Москвы в информационно-телекоммуникационной сети Интернет - www.mos.ru, адрес сайта проекта "Программа комплексного развития территорий" в информационно-телекоммуникационной сети Интернет - https://krt.mos.ru, адрес официального сайта Комплекса градостроительной политики и строительства города Москвы в информационно-телекоммуникационной сети Интернет - www.stroi.mos.ru.
На втором информационном поле информационной панели в левой части (текстографическая часть) размещается информация о строящемся объекте в соответствии с пунктом 3 настоящих Требований.
9. На визуализации или текстовом изображении может содержаться информация с информационных щитов, установленных при въезде на строительную площадку и выезде с нее.
10. Элементы декоративно-художественного оформления должны относиться исключительно к строящемуся объекту и соответствовать проектной документации и разрешению на строительство, реконструкцию объекта капитального строительства.
11. Декоративно-художественное оформление производится путем непосредственного нанесения на поверхность информационных панелей визуализаций и (или) текстового изображения методом покраски, наклейки и иными методами, обеспечивающими устойчивость к неблагоприятным погодным условиям на период строительства, реконструкции или ремонта объекта, либо путем монтажа на защитные и защитно-охранные ограждения полностью скрывающих их основные конструктивные элементы панелей-заполнения в соответствии с приложением к настоящим Требованиям.
12. Используемые при декоративно-художественном оформлении информационные панели, полностью скрывающие основные конструктивные элементы ограждения, могут изготавливаться из:
12.1. Поливинилхлорида (ПВХ) или ударопрочного стекла, в том числе из аналогичных материалов, отвечающих требованиям раздела 5 ГОСТ Р 58967-2020 "Ограждения инвентарные строительных площадок и участков производства строительно-монтажных работ. Технические условия" и позволяющих наносить на них изображение.
12.2. Алюминиевого композитного материала.
13. По верхней грани ограждения допускается установка контурной подсветки светодиодной лентой шириной не более 40 мм со степенью защиты не ниже IP67 под металлическим кожухом.
14. При декоративно-художественном оформлении не допускается:
14.1. Нарушение геометрических параметров панелей ограждений.
14.2. Нарушение места размещения элементов декоративно-художественного оформления.
14.3. Размещение элементов оформления на калитках и распашных воротах.
14.4. Вертикальный порядок расположения букв на информационном поле визуализаций.
14.5. Размещение элементов декоративно-художественного оформления с использованием картона, ткани, за исключением баннерной ткани.
14.6. На информационных панелях временных ограждений запрещается нанесение и размещение визуализаций и текстовых изображений:
14.6.1. Содержащих призывы к совершению противоправных действий.
14.6.2. Призывающих к насилию и жестокости.
14.6.3. Порочащих честь, достоинство и (или) деловую репутацию физических и (или) юридических лиц.
14.6.4. Содержащих информацию порнографического характера.
14.6.5. Содержащих рекламу, в том числе социальную рекламу, политическую рекламу, спонсорскую рекламу и логотипы (за исключением логотипов проекта и организаций, участвующих в реализации проекта).
14.6.6. Демонстрирующих процессы курения и потребления алкогольной продукции.
14.6.7. Содержащих наименования табака, табачной продукции, табачных изделий и курительных принадлежностей, в том числе трубок, кальянов, сигаретной бумаги, зажигалок, а также наименования алкоголя, алкогольной продукции.
14.6.8. Содержащих указание на то, что изображение одобряется органами государственной власти или органами местного самоуправления либо их должностными лицами, за исключением случаев размещения информации об органе государственной власти, органе местного самоуправления, организующими нанесение изображения на объект.
14.6.9. Содержащих бранные слова, непристойные и оскорбительные образы, сравнения и выражения, в том числе в отношении пола, расы, национальности, профессии, социальной категории, возраста, официальных государственных символов (флагов, гербов, гимнов), религиозных символов, объектов культурного наследия (памятников истории и культуры) народов Российской Федерации, а также объектов культурного наследия, включенных в Список всемирного наследия ЮНЕСКО.
14.6.10. Наркотических средств, психотропных веществ и их прекурсоров, растений, содержащих наркотические средства или психотропные вещества либо их прекурсоры, и их частей, содержащих наркотические средства или психотропные вещества либо их прекурсоры.
14.6.11. Взрывчатых веществ и материалов.
14.6.12. Дискредитирующих родителей и воспитателей, подрывающих доверие к ним у несовершеннолетних.
14.6.13. Показывающих несовершеннолетних в опасных ситуациях, включая ситуации, побуждающие к совершению действий, представляющих угрозу их жизни и (или) здоровью, в том числе к причинению вреда своему здоровью.
15. Стиль (цветовая гамма, шрифт), используемый при декоративно-художественном оформлении ограждений, утверждается заказчиком на производимые работы по строительству, реконструкции объектов.
16. Контроль за выполнением настоящих Требований осуществляется Объединением административно-технических инспекций города Москвы:
16.1. В случае поступления от Департамента средств массовой информации и рекламы города Москвы, иных органов исполнительной власти города Москвы, граждан и организаций, в том числе поданных с использованием подсистемы Единой городской автоматизированной системы обеспечения поддержки деятельности Открытого правительства города Москвы - портала "Наш город" (www.gorod.mos.ru), сведений о выявлении временного ограждения, не соответствующего требованиям к его оформлению, Объединение административно-технических инспекций города Москвы проводит проверку указанных сведений и в случае их подтверждения выдает Департаменту средств массовой информации и рекламы города Москвы предписание о демонтаже оформления временного ограждения, не соответствующего установленным требованиям.
16.2. Демонтаж оформления временного ограждения, не соответствующего требованиям, осуществляется Департаментом средств массовой информации и рекламы города Москвы в установленном им порядке.
16.3. Департамент средств массовой информации и рекламы города Москвы после проведения работ по демонтажу оформления временного ограждения, не соответствующего требованиям, в семидневный срок направляет информацию о проведенном демонтаже в Объединение административно-технических инспекций города Москвы. Форма предоставления информации о проведенном демонтаже оформления временного ограждения, не соответствующего установленным требованиям, утверждается Объединением административно-технических инспекций города Москвы.
16.4. Расходы на выполнение работ по демонтажу подлежат возмещению за счет собственника или иного законного владельца временного ограждения по требованию Департамента средств массовой информации и рекламы города Москвы.
Приложение
к Требованиям
ГРАФИЧЕСКОЕ ПРИЛОЖЕНИЕ К ТРЕБОВАНИЯМ К ДЕКОРАТИВНО-ХУДОЖЕСТВЕННОМУ ОФОРМЛЕНИЮ ВРЕМЕННЫХ ОГРАЖДЕНИЙ МЕСТ ПРОВЕДЕНИЯ РАБОТ ПО СТРОИТЕЛЬСТВУ, РЕКОНСТРУКЦИИ И РЕМОНТУ ОБЪЕКТОВ КАПИТАЛЬНОГО СТРОИТЕЛЬСТВА В ГОРОДЕ МОСКВЕ
1. Элементы ограждения
Защитно-охранные, защитные ограждения состоят из следующих элементов :
1) бетонный блок;
2) поручень;
3) сварная рама;
4) панель-заполнение;
5) козырек (навес);
6) дорожный элемент;
7) сигнальный фонарь;
8) информационная панель;
9) лоток кабельный;
10) кронштейн настенный.
--------------------------------
Типы защитно-охранных, защитных ограждений определяются проектными решениями ограждений объектов строительства.


2. Габариты информационных панелей
Габариты информационных панелей, используемых в защитных, защитно-охранных ограждениях
--------------------------------
Данный тип размера является идентичным для всех типов защитных, защитно-охранных ограждений.

3. Информационные панели, используемые при декоративно-художественном оформлении временных ограждений
Одиночное информационное поле

Двойное информационное поле

4. Декоративно-художественное оформление панелей
Декоративно-художественное оформление секций может состоять из:
1) информационного поля без изображения;

2) информационного поля с текстом;

3) информационного поля с графическим изображением (3d, карта, фото и иные объекты, кроме рекламы).

Приложение 4
к постановлению Правительства
Москвы
от 19 мая 2015 г. N 299-ПП
ТРЕБОВАНИЯ К СОСТАВУ СВЕДЕНИЙ, РАЗМЕЩАЕМЫХ НА ИНФОРМАЦИОННЫХ ЩИТАХ ПРИ ПРОВЕДЕНИИ ЗЕМЛЯНЫХ РАБОТ, УСТАНОВКЕ ВРЕМЕННЫХ ОГРАЖДЕНИЙ, РАЗМЕЩЕНИИ ВРЕМЕННЫХ ОБЪЕКТОВ В ГОРОДЕ МОСКВЕ
1. Требования к составу сведений, размещаемых на информационных щитах при проведении земляных работ, установке временных ограждений, размещении временных объектов в городе Москве (далее - Требования), определяют единые требования к составу сведений, размещаемых на информационных щитах при проведении земляных работ, установке временных ограждений, размещении временных объектов в городе Москве, осуществляемых в целях, указанных в пункте 1.1(1) приложения 1 к постановлению Правительства Москвы от 19 мая 2015 г. N 284-ПП "Об утверждении порядка оформления ордеров (разрешений) на проведение земляных работ, установку временных ограждений, размещение временных объектов в городе Москве" (далее - постановление Правительства Москвы от 19 мая 2015 г. N 284-ПП).
2. При проведении любых работ в целях, указанных в пункте 1.1(1) приложения 1 к постановлению Правительства Москвы от 19 мая 2015 г. N 284-ПП, размещаемые информационные щиты должны содержать следующие сведения:
2.1. Наименование объекта проведения работ с указанием вида и цели проводимых работ.
2.2. Местонахождение объекта проведения работ (адрес или адресный ориентир места проведения работ).
2.3. Даты начала и окончания работ.
2.4. Реквизиты (дата и регистрационный номер) разрешения, выданного уполномоченным органом исполнительной власти города Москвы на проведение земляных работ, установку временных ограждений, размещение временных объектов, либо уведомления о проведении земляных работ, установке временных ограждений, размещении временных объектов, либо уведомления о проведении аварийно-восстановительных работ.
2.5. Сведения о воздействии работ на состояние зеленых насаждений в виде ответа на вопрос, сопровождаются ли работы уничтожением и (или) пересадкой зеленых насаждений.
2.6. Основание для удаления, пересадки деревьев и (или) кустарников (в случае проведения работ, сопровождающихся удалением, пересадкой деревьев и (или) кустарников).
2.7. Количество деревьев и кустарников, подлежащих пересадке и вырубке в месте проведения работ (в случае проведения работ, сопровождающихся уничтожением и (или) пересадкой зеленых насаждений).
2.8. Количество высаживаемых деревьев и кустарников (в штуках с уточнением породного состава и количества каждого вида высаживаемых деревьев и кустарников, возраста деревьев), устраиваемых газонов и цветников (в квадратных метрах) в месте проведения работ и (или) в местах проведения компенсационного озеленения и (или) озеленительных работ с указанием адресов или адресных ориентиров проведения компенсационного озеленения и (или) озеленительных работ (в случае проведения работ, сопровождающихся уничтожением и (или) пересадкой зеленых насаждений).
2.9. Номер телефона Единой справочной службы города Москвы +7 (495) 777-77-77.
2.10. Герб города Москвы и слова "Правительство Москвы" (в случае проведения работ, осуществляемых за счет средств бюджета города Москвы, а также работ, проведение которых предусмотрено адресной инвестиционной программой города Москвы за счет средств автономных некоммерческих организаций, учредителем которых является город Москва).
2.11. Символика национального проекта (в случае проведения работ в рамках реализации национальных проектов (программ) Российской Федерации).
3. При проведении работ в целях, указанных в пункте 1.1(1).1 приложения 1 к постановлению Правительства Москвы от 19 мая 2015 г. N 284-ПП, размещаемые информационные щиты должны содержать, помимо сведений, указанных в пункте 2 настоящих Требований, следующую информацию:
3.1. Наименование застройщика (технического заказчика) с указанием контактного телефона, а также логотипа (при наличии).
3.2. Наименование представителя застройщика (технического заказчика) - должностного лица, отвечающего за ведение строительного контроля, с указанием контактного телефона, а также логотипа (при наличии).
3.3. Наименование исполнителя работ (подрядной организации, генеральной подрядной организации) - инициалы, фамилия, должность, номер в национальном реестре специалистов, контактный телефон представителя исполнителя работ, а также логотип (при наличии).
3.4. Сведения о разрешении на строительство.
3.5. Графическое изображение (визуализация) планируемых объектов.
3.6. Изображение основных и вспомогательных зданий и сооружений, въездов, подъездов, схем движения транспорта, местонахождения водоисточников, средств пожаротушения и связи.
3.7. Схема окружающей участок строительства территории, на которой отображаются планируемые на период строительства мероприятия по благоустройству территории.
3.8. Адрес и контактный телефон Комитета государственного строительного надзора города Москвы.
3.9. Адрес и контактный телефон Объединения административно-технических инспекций города Москвы.
4. При проведении работ в целях, указанных в пунктах 1.1(1).2 - 1.1(1).9 приложения 1 к постановлению Правительства Москвы от 19 мая 2015 г. N 284-ПП, размещаемые информационные щиты, помимо сведений, указанных в пункте 2 настоящих Требований, должны содержать следующую информацию:
4.1. Наименование заказчика проведения работ с указанием контактного телефона.
4.2. Наименование исполнителя работ (подрядной организации) с указанием контактного телефона, а также инициалов, фамилий, должностей исполнителя работ.
4.3. Графическое изображение (визуализацию) проектного решения объекта проведения работ (в случае проведения видов работ, указанных в пунктах 1.1(1).4.2, 1.1(1).5, 1.1(1).8.1, 1.1(1).8.4 приложения 1 к постановлению Правительства Москвы от 19 мая 2015 г. N 284-ПП).
5. Допускается размещение сведений, указанных в пунктах 2.6 - 2.8, 3.7 настоящих Требований, на информационном щите в виде QR-кода, обеспечивающего доступ к созданной заказчиком проведения работ странице проекта в информационно-телекоммуникационной сети Интернет, содержащей сведения, указанные в пунктах 2.6 - 2.8, 3.7 настоящих Требований.
Помимо сведений, указанных в пунктах 2.6 - 2.8, 3.7 настоящих Требований, созданная заказчиком проведения работ страница проекта в информационно-телекоммуникационной сети Интернет, указанная в абзаце первом настоящего пункта, может содержать иные сведения, указанные в пунктах 2 - 4 настоящих Требований, а также информацию об объекте, не являющуюся рекламой, в том числе 3D-модель объекта, сведения об участниках работ, функциональное назначение объекта, информацию о ходе работ и технико-экономические показатели объекта.
6. На информационном щите также должен быть размещен QR-код, полученный при оформлении ордера (разрешения) на проведение земляных работ, установку временных ограждений, размещение временных объектов в городе Москве, посредством которого обеспечивается перенаправление пользователя информационно-телекоммуникационной сети Интернет на интерактивную страницу, содержащую сведения из цифрового паспорта объекта капитального строительства, порядок формирования и актуализации которого утвержден постановлением Правительства Москвы от 4 октября 2022 г. N 2125-ПП "Об утверждении Порядка формирования и актуализации цифровых паспортов объектов капитального строительства, ведения реестра цифровых паспортов объектов капитального строительства, Порядка присвоения и применения уникального идентификационного номера объекта капитального строительства и внесении изменений в правовые акты города Москвы".
Формирование QR-кода осуществляется Департаментом градостроительной политики города Москвы. В случае поступления письменного заявления заказчика работ Департамент градостроительной политики города Москвы размещает на указанной в абзаце первом настоящего пункта интерактивной странице ссылку на созданную застройщиком страницу проекта в информационно-телекоммуникационной сети Интернет.
7. Графическое изображение информации, размещаемой на информационном щите при проведении земляных работ, установке временных ограждений, размещении временных объектов в городе Москве, осуществляемых в целях, указанных в пунктах 1.1(1), 1.1(1).1 приложения 1 к постановлению Правительства Москвы от 19 мая 2015 г. N 284-ПП, приведено на рисунке 1.
Рисунок 1

8. Графическое изображение информации, размещаемой на информационном щите при проведении земляных работ, установке временных ограждений, размещении временных объектов в городе Москве, осуществляемых в целях, указанных в пунктах 1.1(1), 1.1(1).2 - 1.1(1).9 приложения 1 к постановлению Правительства Москвы от 19 мая 2015 г. N 284-ПП, приведено на рисунке 2.
Рисунок 2



