СП 142.13330.2023 ЗДАНИЯ ЦЕНТРОВ СОЦИАЛЬНОЙ АДАПТАЦИИ. ПРАВИЛА ПРОЕКТИРОВАНИЯ
Утв. и введен в действие Приказом Министерства строительства и жилищно-коммунального хозяйства РФ (Минстрой России) от 28 декабря 2023 г. N 1023/пр
The buildings of social adaptation. Rules of architectural design
Дата введения - 29 января 2024 года
Предисловие
Сведения о своде правил
1 ИСПОЛНИТЕЛИ - Федеральное автономное учреждение "Федеральный центр нормирования, стандартизации и технической оценки соответствия в строительстве" (ФАУ "ФЦС") при участии ФГБУ "ЦНИИП Минстроя России", ГБУ Геронтологический центр "Западный" Департамента труда и социальной защиты населения города Москвы, ГБУ "Ресурсный центр для инвалидов" Департамента труда и социальной защиты населения города Москвы
2 ВНЕСЕН Техническим комитетом по стандартизации ТК 465 "Строительство"
3 ПОДГОТОВЛЕН к утверждению Департаментом градостроительной деятельности и архитектуры Министерства строительства и жилищно-коммунального хозяйства Российской Федерации (Минстрой России)
4 УТВЕРЖДЕН приказом Министерства строительства и жилищно-коммунального хозяйства Российской Федерации (Минстрой России) от 28 декабря 2023 г. N 1023/пр и введен в действие с 29 января 2024 г.
5 ЗАРЕГИСТРИРОВАН Федеральным агентством по техническому регулированию и метрологии (Росстандарт). Пересмотр СП 142.13330.2012 "Здания центров ресоциализации. Правила проектирования"
В случае пересмотра (замены) или отмены настоящего свода правил соответствующее уведомление будет опубликовано в установленном порядке. Соответствующая информация, уведомление и тексты размещаются также в информационной системе общего пользования - на официальном сайте разработчика (Минстрой России) в сети Интернет
Введение
Настоящий свод правил разработан в целях обеспечения соблюдения требований федеральных законов от 30 декабря 2009 г. N 384-ФЗ "Технический регламент о безопасности зданий и сооружений" [1], от 28 декабря 2013 г. N 442-ФЗ "Об основах социального обслуживания граждан в Российской Федерации" [2].
Пересмотр настоящего свода правил разработан ФАУ "ФЦС" при участии ФГБУ "ЦНИИП Минстроя России" (канд. архитектуры С.И. Яхкинд), ГБУ Геронтологический центр "Западный" Департамента труда и социальной защиты населения города Москвы (И.С. Баранов, Д.Ю. Ермакова), ГБУ "Ресурсный центр для инвалидов" Департамента труда и социальной защиты населения города Москвы (В.Б. Осиновская).
1.1 Настоящий свод правил распространяется на проектирование и реконструкцию зданий центров социальной адаптации или иных организаций, предназначенных для предоставления социальных услуг лицам, занимающимся бродяжничеством, и лицам без определенного места жительства в системе социального обслуживания субъектов Российской Федерации.
1.2 Настоящий свод правил не распространяется на объекты социального обслуживания, проектируемые по СП 145.13330, СП 147.13330, СП 150.13330.
В настоящем своде правил приведены нормативные ссылки на следующие документы:
ГОСТ 34428-2018 Системы эвакуационные фотолюминесцентные. Общие технические условия
СП 1.13130.2020 Системы противопожарной защиты. Эвакуационные пути и выходы
СП 3.13130.2009 Системы противопожарной защиты. Система оповещения и управления эвакуацией людей при пожаре. Требования пожарной безопасности
СП 6.13130.2021 Системы противопожарной защиты. Электроустановки низковольтные. Требования пожарной безопасности
СП 7.13130.2013 Отопление, вентиляция и кондиционирование. Требования пожарной безопасности (с изменениями N 1, N 2)
СП 10.13130.2020 Системы противопожарной защиты. Внутренний противопожарный водопровод. Нормы и правила проектирования
СП 30.13330.2020 "СНиП 2.04.01-85* Внутренний водопровод и канализация зданий" (с изменениями N 1, N 2)
СП 42.13330.2016 "СНиП 2.07.01-89* Градостроительство. Планировка и застройка городских и сельских поселений" (с изменениями N 1, N 2, N 3, N 4)
СП 52.13330.2016 "СНиП 23-05-95* Естественное и искусственное освещение" (с изменениями N 1, N 2)
СП 59.13330.2020 "СНиП 35-01-2001 Доступность зданий и сооружений для маломобильных групп населения" (с изменениями N 1, N 2)
СП 60.13330.2020 "СНиП 41-01-2003 Отопление, вентиляция и кондиционирование воздуха" (с изменениями N 1, N 2)
СП 113.13330.2023 "СНиП 21-02-99* Стоянки автомобилей"
СП 132.13330.2011 Обеспечение антитеррористической защищенности зданий и сооружений. Общие требования проектирования
СП 133.13330.2012 Сети проводного радиовещания и оповещения в зданиях и сооружениях. Нормы проектирования (с изменением N 1)
СП 136.13330.2012 Здания и сооружения. Общие положения проектирования с учетом доступности для маломобильных групп населения (с изменениями N 1, N 2)
СП 137.13330.2012 Жилая среда с планировочными элементами, доступными инвалидам. Правила проектирования (с изменением N 1)
СП 138.13330.2012 Общественные здания и сооружения, доступные маломобильным группам населения. Правила проектирования (с изменением N 1)
СП 145.13330.2020 Дома-интернаты. Правила проектирования
СП 147.13330.2012 Здания для учреждений социального обслуживания. Правила реконструкции (с изменением N 1)
СП 150.13330.2012 Дома-интернаты для детей-инвалидов. Правила проектирования (с изменением N 1)
СП 158.13330.2014 Здания и помещения медицинских организаций. Правила проектирования (с изменениями N 1, N 2, N 3)
СП 379.1325800.2020 Общежития. Правила проектирования
СП 484.1311500.2020 Системы противопожарной защиты. Системы пожарной сигнализации и автоматизация систем противопожарной защиты. Нормы и правила проектирования
СП 485.1311500.2020 Системы противопожарной защиты. Установки пожаротушения автоматические. Нормы и правила проектирования
СП 486.1311500.2020 Системы противопожарной защиты. Перечень зданий, сооружений, помещений и оборудования, подлежащих защите автоматическими установками пожаротушения и системами пожарной сигнализации. Требования пожарной безопасности
Примечание - При пользовании настоящим сводом правил целесообразно проверить действие ссылочных документов в информационной системе общего пользования - на официальном сайте федерального органа исполнительной власти в сфере стандартизации в сети Интернет, на официальном сайте федерального органа исполнительной власти, разработавшего и утвердившего настоящий свод правил, или по ежегодному информационному указателю "Национальные стандарты", который опубликован по состоянию на 1 января текущего года, и по выпускам ежемесячного информационного указателя "Национальные стандарты" за текущий год. Если заменен ссылочный документ, на который дана недатированная ссылка, то рекомендуется использовать действующую версию этого документа с учетом всех внесенных в данную версию изменений. Если заменен ссылочный документ, на который дана датированная ссылка, то рекомендуется использовать версию этого документа с указанным выше годом утверждения (принятия). Если после утверждения настоящего свода правил в ссылочный документ, на который дана датированная ссылка, внесено изменение, затрагивающее положение, на которое дана ссылка, то это положение рекомендуется применять без учета данного изменения. Если ссылочный документ отменен без замены, то положение, в котором дана ссылка на него, рекомендуется применять в части, не затрагивающей эту ссылку. Сведения о действии сводов правил целесообразно проверить в Федеральном информационном фонде стандартов.
В настоящем своде правил применены следующие термины с соответствующими определениями:
3.1 лица, занимающиеся бродяжничеством, и лица без определенного места жительства: Граждане, находящиеся в трудной жизненной ситуации и нуждающиеся в обретении необходимых психологических навыков, предоставлении социальной и иной помощи в целях ее разрешения.
3.2
|
маломобильные группы населения; МГН: Люди, испытывающие затруднения при самостоятельном передвижении, получении услуги, необходимой информации или при ориентировании в пространстве. К маломобильным группам населения для целей настоящего свода правил здесь отнесены: инвалиды, люди с временным нарушением здоровья, люди с нарушением интеллекта, люди старших возрастов, беременные женщины, люди с детскими колясками, с малолетними детьми, тележками, багажом и т.д. [СП 59.13330.2020, пункт 3.13] |
3.3 помещение временного пребывания (ожидания): Помещение временного пребывания (ожидания) лиц, занимающихся бродяжничеством, и лиц без определенного места жительства.
3.4 санпропускник: Совокупность помещений, предназначенных для санитарной обработки лиц, занимающихся бродяжничеством, и лиц без определенного места жительства, их вещей, а также обеспечения указанных лиц чистой одеждой и обувью.
3.5 центр социальной адаптации или иная организация, предназначенная для предоставления социальных услуг лицам, занимающимся бродяжничеством, и лицам без определенного места жительства: Организация, предназначенная для предоставления социальных услуг (социально-бытовых, социально-медицинских, социально-психологических, социально-педагогических, социально-трудовых, социально-правовых услуг в целях повышения коммуникативного потенциала получателей социальных услуг, имеющих ограничения жизнедеятельности, срочных социальных услуг) лицам, занимающимся бродяжничеством, и лицам без определенного места жительства, в том числе лицам, освобожденным из мест лишения свободы, иностранным гражданам и лицам без гражданства, признанным нуждающимися в социальном обслуживании.
4.1 Состав помещений центра социальной адаптации или иной организации, предназначенной для предоставления социальных услуг лицам, занимающимся бродяжничеством, и лицам без определенного места жительства (далее - центр) принимается в зависимости от формы (форм) предоставления социальных услуг:
- в определенное время суток - в полустационарной форме социального обслуживания;
- при постоянном, временном или пятидневном (в неделю) круглосуточном пребывании получателей социальных услуг - в стационарной форме социального обслуживания.
По заданию на проектирование при центрах указанных выше форм социального обслуживания предусматриваются помещения для предоставления срочных социальных услуг согласно [3].
Примечание - Иные организации, предназначенные для предоставления социальных услуг лицам, занимающимся бродяжничеством, и лицам без определенного места жительства, - дома ночного пребывания, социальные гостиницы, социальные приюты по [4] - проектируются по заданию на проектирование, определяющему в том числе форму и сроки предоставления услуг.
4.2 Состав и площади помещений центра принимаются по заданию на проектирование; ориентировочные минимальные площади помещений и состав групп помещений приведены в приложении А.
4.3 Здания центров следует проектировать двух-, трехэтажными, в условиях стесненной застройки этажность может увеличиваться до четырех-пяти этажей. На нижних этажах следует проектировать жилые помещения преимущественно для инвалидов с нарушениями опорно-двигательного аппарата (групп мобильности М3, М4, НМ, НТ).
Примечание - Группы мобильности МГН определяются по СП 59.13330.2020 (приложение Б).
4.4 В вестибюльной группе центров, предоставляющих социальные услуги в полустационарной и стационарной формах социального обслуживания, предусматриваются: помещения для охраны, информационная стойка, помещение (место) для работников, предоставляющих (организующих предоставление) социальные услуги (специалистов по социальной работе, социальных работников), гардеробная, туалет. Входная группа, вестибюль и помещения здания должны соответствовать требованиям СП 59.13330. При реконструкции и приспособлении существующих зданий при невозможности обеспечить доступность всего здания на уровне входа должны быть выделены специальные помещения, зоны или блоки для обслуживания инвалидов основными социальными услугами, оказываемыми в центре.
4.5 Расчетное число жилых помещений (в процентах) для инвалидов по группам мобильности определяется заданием на проектирование; данные помещения проектируют в соответствии с СП 59.13330.
Жилые помещения для МГН групп мобильности М4, НМ, НТ и НО предусматривают не выше второго этажа здания центра; при размещении данных жилых помещений выше первого этажа следует предусматривать лифт, а также доступные пути эвакуации и зоны безопасности согласно СП 59.13330. При капитальном ремонте и реконструкции допускается применение подъемных платформ при условии обеспечения безопасности в соответствии с требованиями СП 1.13130 и других нормативных документов по пожарной безопасности.
4.6 Вместимость зданий центров принимают согласно заданию на проектирование.
4.7 Необходимость применения фотолюминесцентной эвакуационной системы (ФЭС) в центрах определяется заданием на проектирование.
5.1 Площадь земельного участка принимают из расчета не менее 10 м2 на одно место или согласно требованиям региональных (местных) нормативов градостроительного проектирования (при наличии). В условиях стесненной застройки допускается не предусматривать территорию земельного участка, свободную от застройки. Размещение центров - с учетом [8, глава IX].
5.2 Зоны для отдыха, хозяйственно-бытовой деятельности, физкультурно-оздоровительных занятий и озеленение предусматривают по заданию на проектирование при наличии свободной от застройки территории земельного участка центра. Площадь озеленения принимают не менее 25% свободной от застройки территории земельного участка.
Примечание - В условиях стесненной застройки зоны отдыха, хозяйственно-бытовой деятельности, физкультурно-оздоровительных занятий и озеленение могут не предусматриваться.
Зона отдыха оборудуется скамьями, навесами, беседками, урнами.
5.3 При размещении центров за пределами территории городских и сельских поселений на территории земельного участка могут проектироваться здания для проживания работников организации с жилыми ячейками (помещениями), проектируемыми согласно требованиям СП 379.1325800.
5.4 При наличии ограждения земельного участка центра его предусматривают визуально непроницаемым, высотой - не менее 1,6 м.
5.5 Особенности размещения земельного участка здания центра определяются с учетом СП 42.13330 и [6].
5.6 На территории земельного участка следует предусматривать не менее двух отдельных въездов, в том числе один из них - хозяйственный. При въезде на участок необходимо предусматривать помещение для охраны (контрольно-пропускной пункт) площадью не менее 8 м2 на одно рабочее место; число рабочих мест устанавливается заданием на проектирование [аналогично помещению для охраны при вестибюле отделения предоставления услуг в стационарной или полустационарной форме (см. приложение А)].
5.7 В пределах территории земельного участка центра допускается предусматривать открытую стоянку автомобилей, число машино-мест определяется заданием на проектирование; машино-места на стоянке автомобилей должны быть запроектированы в соответствии с требованиями СП 59.13330, СП 113.13330.
Расчетную потребность в размещении устройств для заряда электромобилей при машино-местах на стоянке автомобилей следует устанавливать заданием на проектирование.
6.1.1 Функциональная структура зданий центра включает следующие основные группы помещений:
- проживания (при предоставлении социальных услуг с обеспечением проживания);
- для организации питания и социальной адаптации (при предоставлении соответствующих услуг);
- приема граждан, включая санитарно-гигиенические помещения (в том числе санпропускник);
- оказания медицинской помощи (при планируемом оказании центром данной услуги);
- административная, служебная и бытовая (для получателей социальных услуг и работников центра).
6.1.2 Минимальные площади помещений приведены в приложении А.
6.1.3 Схема функциональных взаимосвязей групп помещений отражена на рисунке Б.1 приложения Б.
При капитальном ремонте и реконструкции в центрах с предоставлением социальных услуг лицам с инвалидностью должны предусматриваться помещения, предназначенные для их приема, пребывания и социальной адаптации. Эти группы помещений следует проектировать согласно СП 59.13330 с учетом потребностей получателей социальных услуг.
6.1.4 Здания центров следует проектировать отдельно стоящими согласно [5].
6.1.5 Высоту жилых помещений от пола до потолка следует принимать не менее 2,5 м, высоту общественных помещений от пола до потолка - не менее 3 м.
6.1.6 Пути эвакуации из зданий центров следует рассчитывать по установленным или апробированным методикам с учетом динамики опасных факторов пожара, а также потребностей получателей социальных услуг.
6.2.1 Центр допускается оборудовать отдельным входом для приема вновь поступающих лиц с инвалидностью и других МГН при обеспечении его доступности согласно СП 59.13330.
Планировочные решения центра не должны предусматривать пересечение потоков вновь поступающих граждан и граждан, которым социальные услуги уже предоставляются.
В центре с предоставлением социальных услуг с обеспечением проживания предусматривают изолированные помещения для граждан, ожидающих результаты лабораторных исследований, необходимых при зачислении в центр.
При входе в здание центра предусматривают вестибюль. При вестибюле проектируют помещения для охраны, а также помещение (место) для работников, предоставляющих (организующих предоставление) социальные услуги (специалистов по социальной работе, социальных работников) (рисунки Б.2, Б.3 приложения Б).
6.2.2 При входе в вестибюль следует предусматривать размещение системы контроля доступа в центр.
6.2.3 Вестибюль при входе в центр следует соединять с санпропускником, расположенным на первом этаже. В медицинском кабинете при санпропускнике (при его наличии по 6.3) предусматривают раздельные вход и выход.
6.2.4 В вестибюле при входе в центр, предоставляющем в том числе срочные социальные услуги, может предусматриваться помещение временного пребывания (ожидания) лиц, находящихся в состоянии алкогольного, наркотического или иного токсического опьянения, а также лиц, нуждающихся в психиатрической помощи в экстренной и неотложной формах.
6.3.1 В центрах, предоставляющих срочные социальные услуги (включая обеспечение питанием, предоставление спального места для ночлега, оказание юридических услуг), необходимо предусматривать санпропускник в соответствии с [5, глава IX].
6.3.2 Санпропускник рекомендуется располагать по пути следования граждан из вестибюля в помещения для предоставления срочных социальных услуг.
6.3.3 Примерная планировочная схема санпропускника с проведением процедур по санитарной обработке представлена на рисунке Б.4 приложения Б, состав и ориентировочные площади его помещений - в таблице А.1 приложения А.
6.3.4 В санпропускнике предусматривают: помещения для раздевания и сдачи одежды и обуви на дезинфекцию (раздевальная), грязное отделение (включая дезинфекционную камеру), помещения для прохождения санитарной обработки, включая душевые, помещения для одевания после прохождения санитарной обработки, кабинет медицинского персонала (при необходимости), помещение (с санитарным узлом) для работников, включая дезинфектора.
6.3.5 Помещения для прохождения санитарной обработки с душевыми проектируют из расчета 2,5 - 3,0 м2 на одну душевую установку (сетку или кабину) исходя из вместимости центра. Не менее одной из душевых следует проектировать универсальной (доступной для инвалидов по габаритам и оборудованию согласно СП 59.13330).
6.3.6 Состав и площади помещений санпропускника, число душевых установок (сеток или кабин) определяют в задании на проектирование с учетом местных условий.
6.4.1 Жилую площадь жилых помещений и помещений для предоставления срочной социальной услуги в виде спального места для ночлега принимают из расчета не менее 4 м2 на одну кровать (одно- или двухъярусную) и 5,3 м2 на одну кровать для инвалида на кресле-коляске.
В центрах, предоставляющих услуги гражданам, способным осуществлять самообслуживание и самостоятельное передвижение, ориентироваться, общаться, контролировать свое поведение, обучаться и заниматься трудовой деятельностью, допускается оборудование жилых помещений и помещений для предоставления срочной социальной услуги в виде спального места для ночлега с двухъярусными кроватями с расстоянием от ее верхней спинки до потолка не менее 0,75 м с проходами между кроватями.
6.4.2 В жилых помещениях (рисунок Б.5 приложения Б) и помещениях для предоставления срочной социальной услуги в виде спального места для ночлега допускается размещение до 30 человек в одном помещении.
6.4.3 В группе жилых помещений жилые помещения и (или) помещения для предоставления срочной социальной услуги в виде спального места для ночлега и места общего пользования (душевые, санитарные узлы) должны быть связаны между собой коридором (коридорами).
6.4.4 В центрах, предоставляющих услуги с обеспечением проживания инвалидов и других МГН, предусматривают отдельные помещения (места) для хранения технических средств реабилитации.
6.5.1 Санитарно-гигиенические помещения (туалеты, умывальные, душевые) проектируют из расчета: один унитаз на 10 человек, одна раковина и одна душевая установка (сетка или кабина) на 20 человек; при размещении оборудования предусмотреть не менее 5% доступных кабин туалетов и одну душевую, а также одну универсальную кабину на каждом доступном этаже.
В центрах, планирующих предоставление социальных услуг без проживания, на каждом этаже проектируются туалеты (раздельные для мужчин и женщин).
6.5.2 При проектировании туалетных, умывальных и душевых следует предусматривать универсальные и доступные кабины с учетом требований СП 59.13330.
При проектировании санитарных узлов и размещении в них оборудования следует обеспечивать требования СП 59.13330, СП 136.13330, СП 138.13330.
6.5.3 Для работников центра должно предусматриваться не менее двух санитарных узлов (раздельные для мужчин и женщин) с раковиной в шлюзе, площадь каждого санитарного узла - не менее 3 м2; их поэтажное размещение определяется проектом. Состав санитарно-гигиенического оборудования принимают на основании расчетной численности работников, формы социального обслуживания в центре и его мощности.
Расчетную численность работников уточняют при составлении задания на проектирование согласно проекту штатного расписания центра.
6.6.1 В центре, предоставляющем социальные услуги с обеспечением проживания, предусматривают помещения для питания [столовая и (или) помещение для приема пищи] с учетом определенного заданием на проектирование варианта (вариантов) организации питания: приготовление пищи в пищеблоке столовой; предоставление привозного (порционного) питания или полуфабрикатов; обеспечение возможности самостоятельного приготовления и приема пищи. Состав и площади помещений для приготовления пищи определяют в задании на проектирование.
В помещениях (местах) приготовления и приема пищи следует предусматривать место (места) для размещения холодильного оборудования.
6.6.2 В зависимости от формы (форм) социального обслуживания (стационарная или полустационарная формы по 4.1), видов социальных услуг (в том числе срочные), которые планируется предоставлять в центре, а также от его вместимости определяют число смен и посадочных мест в зале столовой (помещении для приема пищи). Примерное число посадочных мест представлено в таблице 1.
Таблица 1
|
Наименование помещений |
Вместимость отделений центра, мест | |||
|
50 |
100 |
200 |
300 | |
|
Помещение для приема пищи |
Эпизодическое посещение в соответствии с приложением А | |||
|
Число посадочных мест при питании в две смены | ||||
|
Зал столовой |
20 - 25 |
40 - 50 |
80 - 100 |
120 - 150 |
|
Примечание - Тип помещения для питания [зал столовой и (или) помещение для приема пищи] определяют в задании на проектирование. | ||||
6.6.3 Состав и площади помещений для питания следует принимать в соответствии с приложением А при обеспечении требований [7].
6.6.4 Питание получателей социальных услуг в помещении для приема пищи и (или) в зале столовой организуют по принципу самообслуживания.
6.6.5 В центре предусматриваются места для обеспечения питьевого режима: для получения бутилированной питьевой воды или размещения кулера с питьевой водой.
6.7.1 Ориентировочные состав и площади административных, служебных и бытовых помещений центра представлены в приложении А; планировочная организация размещения отдельных служебных помещений представлена на рисунке Б.6 приложения Б.
6.7.2 При расчете площадей административных помещений необходимо использовать нормативы штатной численности центров, утвержденные органами государственной власти субъектов Российской Федерации в сфере социального обслуживания.
Расчетную численность работников уточняют при составлении задания на проектирование согласно проекту штатного расписания центра.
6.7.3 Площадь административных и служебных помещений следует проектировать из расчета 4,0 м2 на одно рабочее место, при оборудовании компьютером - 6,0 м2 на одно рабочее место.
6.7.4 Для работников рекомендуется предусматривать отдельный вход, при котором проектируют: раздевальные (раздельные для мужчин и женщин) с душевыми и туалетами при них.
6.8.1 В составе помещений для оказания медицинской помощи по заданию на проектирование предусматриваются: кабинеты врачей-специалистов (терапевта, медицинского психолога, психиатра, психиатра-нарколога), помещения для среднего медицинского персонала, процедурная, рентгеновский кабинет для рентгенографии легких или флюорографии, смотровой кабинет.
Перечень кабинетов в составе помещений для оказания медицинской помощи в центре определяется исходя из формы (форм) социального обслуживания (полустационарная, стационарная), а также социальных услуг (включая срочные социальные услуги), которые планируется предоставлять.
6.8.2 В центре, планирующем предоставление услуг получателям социальных услуг с обеспечением проживания (стационарная форма социального обслуживания по 4.1), предусматривают изолятор [помещение для временного изолирования подозрительных на инфекционное заболевание граждан и контактировавших с ними лиц, представляющих эпидемическую опасность для окружающих (после проведения комплекса гигиенических мероприятий), до оказания им необходимой медицинской помощи или вызова скорой медицинской помощи].
Число мест в палатах изолятора принимают в зависимости от вместимости центра из расчета одно место на 50 человек; состав помещений и их площади определяют с учетом СП 158.13330. Палаты могут быть одно- или двухместными; вход в палату предусматривают через шлюз, вход в санитарный узел (оборудованный унитазом и умывальником) - непосредственно из палаты.
В центре, планирующем предоставление социальных услуг их получателям без обеспечения проживания (в полустационарной форме социального обслуживания, а также при предоставлении срочных социальных услуг), предусматривают помещение для временного изолирования подозрительных на заболевание граждан и контактировавших с ними лиц (после проведения комплекса гигиенических мероприятий) до оказания им необходимой медицинской помощи или вызова скорой медицинской помощи. Состав и площади помещений определяют в задании на проектирование.
6.9.1 В центре по заданию на проектирование допускается предусматривать помещения для проведения религиозных обрядов и предоставления психологической помощи [3].
6.9.2 В центре по заданию на проектирование допускается предусматривать учебно-производственные (лечебно-трудовые) и творческие мастерские. Учебно-производственные (лечебно-трудовые) мастерские следует проектировать в соответствии с [8] и [9]. Допускается размещение учебно-производственных мастерских в одном блоке с помещениями для проживания. Состав помещений мастерских, их площади и оснащение оборудованием определяют в задании на проектирование.
6.9.3 Помещения для просмотра телепрограмм и информационный центр (помещение, оборудованное средствами вычислительной техники с обеспечением доступа в информационно-телекоммуникационную сеть "Интернет") предусматривают по заданию на проектирование.
6.9.4 Число мест в актовом зале предусматривают с учетом численности проживающих в центре.
6.9.5 В центре по заданию на проектирование допускается предусматривать помещения:
- для осуществления мероприятий по оказанию помощи лицам, находящимся в состоянии алкогольного, наркотического или иного токсического опьянения, в соответствии с требованиями [10];
- для прохождения больными наркоманией социальной реабилитации в соответствии с требованиями [11].
7.1 Системы водоснабжения (холодного и горячего) и водоотведения следует проектировать в соответствии с СП 30.13330 и [8].
7.2 Системы отопления помещений центра следует проектировать в соответствии с требованиями СП 60.13330 и [8]. В жилых помещениях и помещениях для предоставления срочной социальной услуги в виде спального места для ночлега следует предусматривать закрытые экранами нагревательные приборы водяного отопления.
7.3 Параметры теплоносителя для системы отопления следует принимать согласно СП 60.13330 и [12].
7.4 Все помещения должны быть оборудованы системами отопления и вентиляции, обеспечивающими оптимальную температуру, влажность, очистку и обезвреживание воздуха. Кондиционирование административных кабинетов предусматривают по заданию на проектирование.
Центр должен быть оборудован системами приточно-вытяжной вентиляции с механическим побуждением и естественной вытяжкой без механического побуждения. Вытяжную вентиляцию с механическим побуждением предусматривают из помещений автоклавных моек, душевых, туалетов, совмещенных санитарных узлов, помещений для грязного белья, временного хранения отходов и кладовых для хранения дезинфекционных средств.
В жилых комнатах допускается оборудование естественной вентиляции по СП 60.13330 и [8].
7.5 Инженерное оборудование должно быть запроектировано таким образом, чтобы при его эксплуатации выполнение установленных требований к микроклимату помещений и другим условиям обеспечивало эффективное расходование энергетических ресурсов с учетом [13].
7.6 Электрооборудование центров следует проектировать в соответствии с требованиями СП 52.13330 и [14].
7.7 Здания центров должны быть оборудованы сетями проводного вещания (радиотрансляция), стационарными телефонами и антенными телевизионными слаботочными сетями, системой оповещения и управления эвакуацией (по СП 133.13330), видеонаблюдением (по заданию на проектирование), а также ФЭС.
Установку стационарных телефонов предусматривают в помещении для охраны, в кабинете руководителя центра, в помещении для работников, предоставляющих (организующих предоставление) социальные услуги (специалистов по социальной работе, социальных работников), в столовой, кабинетах врачей, а также в других помещениях, определяемых в задании на проектирование.
Жилые помещения для пребывания инвалидов могут быть оборудованы автономными пожарными извещателями, сблокированными с общей системой оповещения и управления эвакуацией.
7.8 Системы противопожарной защиты следует предусматривать в соответствии с СП 3.13130, СП 6.13130, СП 7.13130, СП 10.13130, СП 484.1311500, СП 485.1311500, СП 486.1311500.
7.9 В зданиях центров должны быть предусмотрены мероприятия по антитеррористической защищенности согласно СП 132.13330.
7.10 Допускается применение ФЭС на всем протяжении пути эвакуации для обозначения непрерывного маршрута до эвакуационных выходов.
При установке элементов ФЭС на ступенях лестниц допускается использовать фотолюминесцентный материал совместно с противоскользящим (антискользящим) покрытием.
Следует выполнять ФЭС в соответствии с требованиями СП 136.13330, ГОСТ 34428.
Приложение А
(рекомендуемое)
Таблица А.1
|
Помещение |
Число |
Площадь, м2, при вместимости организации, мест | ||
|
50 |
100 |
200 | ||
|
Отделение для предоставления социальных услуг в полустационарной, стационарной формах социального обслуживания | ||||
|
Вестибюль |
1 |
0,8 м2/место | ||
|
Помещение для охраны |
1 |
8 | ||
|
Санитарный узел (при помещении для охраны) |
1 |
3,5 | ||
|
Служебные помещения | ||||
|
Помещение (зона при вестибюле) для работников, предоставляющих (организующих предоставление) социальные услуги (включая специалистов по социальной работе, социальных работников) |
2 |
8 + 8 | ||
|
Помещение для работников, предоставляющих (организующих предоставление) социальные услуги (включая специалистов по социальной работе, социальных работников) |
2 |
8 + 8 | ||
|
Раздевальные (раздельные для мужчин и женщин) |
2 |
По заданию на проектирование | ||
|
Санитарные узлы для работников (раздельные для мужчин и женщин) |
2 |
2,1 | ||
|
Комната сестры-хозяйки |
1 |
8 | ||
|
Группа жилых помещений | ||||
|
Жилые помещения (или помещения для предоставления срочной социальной помощи в виде спального места для ночлега) до 30 мест |
По заданию на проектирование |
4 м2/1 кровать (на одно- или двухъярусную) | ||
|
Передняя (прихожая) |
На группу помещений |
12,0 | ||
|
Помещение санитарного узла с душевой и туалетом, в том числе с условиями для лиц с инвалидностью и других МГН |
1 |
На этаж по расчету 1 | ||
|
Жилое помещение для лиц с инвалидностью и других МГН |
Согласно 4.6 по заданию на проектирование |
4 м2 - на одну кровать 5,3 м2 - на одну кровать для инвалида на кресле-коляске 2 | ||
|
Совмещенный санитарный узел с условиями для лиц с инвалидностью и других МГН |
На этаж - по расчету с учетом числа жилых комнат с условиями для МГН по заданию на проектирование |
5,5 3 | ||
|
Столовая 4 | ||||
|
Зал столовой 5, 6 |
1 |
1,8 м2 на одно посадочное место | ||
|
и (или) помещение для приема пищи 5 |
По заданию на проектирование |
По заданию на проектирование | ||
|
Помещение для разогрева пищи |
1 |
По заданию на проектирование | ||
|
Кладовая и мойка термоконтейнеров |
1 |
8 | ||
|
Загрузочная |
1 |
12 | ||
|
Бытовая комната |
1 |
7 |
7 |
7 |
|
Помещения общего пользования | ||||
|
Административные помещения | ||||
|
Кабинет руководителя |
По нормативу штатной численности |
18 | ||
|
Кабинет заместителя руководителя |
По заданию на проектирование |
10 м2 на один кабинет | ||
|
Кабинет бухгалтерии |
1 |
15 | ||
|
Помещение для социальных работников |
2 |
8 + 8 | ||
|
Кабинет юридической службы |
1 |
10 | ||
|
Помещения для оказания медицинской помощи 4 | ||||
|
Кабинеты врачей-специалистов |
По заданию на проектирование |
По СП 158.13330.2014, таблица В.6: поз. 2 - без специализированных кресел, аппаратных методов диагностики; поз. 4 - со специально оборудованным местом | ||
|
Помещение для среднего медицинского персонала |
1 |
По СП 158.13330.2014, таблица В.6: поз. 2 - без специализированных кресел, аппаратных методов диагностики | ||
|
Процедурная |
1 |
По СП 158.13330.2014, таблица В.6: поз. 6 | ||
|
Рентгеновский кабинет для рентгенографии легких или флюорографии |
1 |
По СП 158.13330.2014, таблица В.7: поз. 3 | ||
|
Смотровой кабинет |
1 |
По СП 158.13330 | ||
|
Санпропускник 4 | ||||
|
Комната санитарной обработки и дезинфекции |
1 |
12,5 | ||
|
Помещение для раздевания (раздевальная) |
1 |
8 |
8 |
12 |
|
Грязное отделение (сдача грязного белья, одежды) |
1 |
6,0 |
14 | |
|
Дезинфекционная камера |
2 |
3,0 |
3,0 |
3,0 |
|
Шлюз для работников |
1 |
4,01 |
4,01 |
4,0 |
|
Чистое отделение (получение чистого белья и одежды) |
1 |
14,0 |
14,0 |
14,0 |
|
Душевая (для санобработки) |
По заданию на проектирование |
2,5 - 3,0 м2 - на одну душевую установку; 5,5 м2 - на одну душевую установку для инвалидов 3 | ||
|
Помещение для одевания |
1 |
8 |
8 |
12 |
|
Помещение (с санитарным узлом) для работников |
По заданию на проектирование |
По заданию на проектирование | ||
|
Кабинет медицинского работника | ||||
|
Изолятор или помещение для временного изолирования 7 | ||||
|
Изолятор: - палата со шлюзом |
По расчету по 6.8.2 |
7 м2 на одно место | ||
|
- туалет: унитаз, раковина |
То же |
3,0; 3,6 (доступная кабина) | ||
|
- душевая |
1,4; 5,0 (доступная душевая) | |||
|
- помещение для санитарной обработки и переодевания |
1 |
По СП 158.13330 | ||
|
- санитарный узел (с раковиной) и шлюзом для работников |
1 |
По СП 158.13330 | ||
|
Помещение временного изолирования |
По заданию на проектирование |
По заданию на проектирование | ||
|
совмещенный санитарный узел |
5,5 3 | |||
|
Помещения бытового обслуживания | ||||
|
Комната обслуживающего персонала |
1 |
8 |
10 |
12 |
|
Гладильная |
1 |
4 | ||
|
Прачечная: | ||||
|
помещение для приема и сортировки грязного белья |
1 |
6 |
8 | |
|
помещение для хранения чистого белья |
1 |
6 | ||
|
комната для стирки белья |
1 |
12 | ||
|
гладильная |
1 |
10 | ||
|
Парикмахерская с подсобным помещением |
По заданию на проектирование |
10 + 4 | ||
|
Пункт ремонта обуви |
Один на центр |
6,0 |
6,0 |
8,0 |
|
Зона для размещения стационарного телефона |
Один на здание |
1,8 | ||
|
Помещение (место) уборочного инвентаря |
1 |
4 |
4 |
6 |
|
Помещение для хранения постельного белья и одежды с помещением для ремонта одежды |
Один на центр |
8 + 4 |
10 + 6 | |
|
Группа помещений для предоставления социально-бытовых (в части досуговых мероприятий), социально-психологических, социально-педагогических, социально-трудовых услуг | ||||
|
Актовый зал для просмотра фильмов, проведения мероприятий, лекций, выставок |
1 на центр |
50 |
100 |
120 |
|
Информационный центр (или помещение), оборудованный средствами вычислительной техники с обеспечением доступа в информационно-телекоммуникационную сеть "Интернет" 4 |
1 |
12 |
18 |
20 |
|
Помещение для общения по интересам |
1 |
12 |
18 |
25 |
|
Холл-гостиная |
Одна на центр |
18 |
24 |
39 |
|
1 Площадь туалетов, умывальных, душевых определяют в зависимости от вместимости центра из расчета размещения санитарно-технического оборудования согласно 6.5.1. 2 Размещение оборудования в жилом помещении с местом для инвалида на кресле-коляске с учетом СП 137.13330, в том числе с подходом к кровати шириной не менее 0,9 м. 3 Габаритные размеры помещения - не менее 2,2 x 2,5 м, оборудование душевой сеткой и сливом в уровне пола. 4 При наличии, по заданию на проектирование. 5 Тип помещения для питания - зал столовой и (или) помещение для приема пищи - определяют в задании на проектирование. 6 Оборудование помещения с учетом обеспечения доступности места для питания инвалида на кресле-коляске - по СП 59.13330 и СП 138.13330. 7 По 6.8.2 в зависимости от формы социального обслуживания центра по 4.1. | ||||
Приложение Б
(справочное)

1 - вестибюльная группа помещений с постом вахтера, охранника и местом для работников, предоставляющих (организующих предоставление) социальные услуги (специалистов по социальной работе, социальных работников); 2 - помещения санитарно-гигиенического обслуживания; 3 - жилые помещения (или помещения для оказания социальной услуги по предоставлению спального места для ночлега); 4 - группа административных и служебных помещений, помещений бытового обслуживания; 5 - санпропускник; 6 - столовая; 7 - изолятор; 8 - помещения для предоставления социально-бытовых (в части досуговых мероприятий) услуг; 9 - помещение учебно-производственных (лечебно-трудовых) мастерских; 10 - холл для отдыха; 11 – коммуникационное пространство; 12 - помещение для приема пищи
Рисунок Б.1 - Схема функциональной организации взаимосвязи помещений центра

I - Помещение для охраны; II - Помещение для работников, предоставляющих (организующих предоставление) социальные услуги (специалистов по социальной работе, социальных работников)
1 - стол с телефоном и настольной сигнализацией; 2 - стул; 3 - топчан; 4 - тумбочка; 5 - шкаф; 6 - прилавок; 7 - компьютер
Рисунок Б.2 - Помещения для охраны и для работников, предоставляющих (организующих предоставление) социальные услуги (специалиста по социальной работе, социальных работников)

1 - стол для работников, предоставляющих (организующих предоставление) социальные услуги (специалистов по социальной работе, социальных работников); 2 – стол помощника; 3 - стул; 4 - сейф; 5 - шкаф для бумаг; 6 – шкаф для канцелярских принадлежностей
Рисунок Б.3 - Помещение для работников, предоставляющих (организующих предоставление) социальные услуги (специалистов по социальной работе, социальных работников)

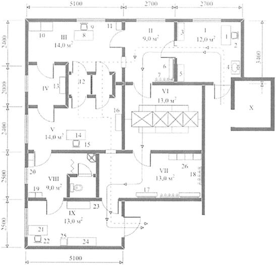
|
|
Линия движения прибывшего для санобработки |
|
|
Линия движения вещей и одежды, подлежащих дезинфекции и возврату прибывшему |
I - комната санобработки и дезинфекции: 1 - стол; 2 - стул; 3 - шкаф чистого белья; 4 - умывальник; 5 - шкаф дезинфекционных средств;
II - раздевальная: 6 - скамейка; 7 - крючки-вешалки;
III - грязное отделение (с дезинфекционной камерой): 8 - стол; 9 - стул; 10 - шкаф грязного белья; 11 - емкость для грязных вещей; 12 - дезинфекционная камера;
IV - шлюз для работников: 13 - смеситель;
V - чистое отделение: 14 - стол; 15 - стул; 16 - шкаф чистого белья;
VI - душевая (для санобработки);
VII - помещение для одевания: 17 - скамейка; 18 - крючки-вешалки; 26 - шкаф чистого белья;
VIII - помещение (с санитарным узлом) для работников, в том числе для дезинфектора: 19 - шкафчик; 20 - стеллаж для моющих средств;
IX - кабинет медицинского работника: 21 - стол; 22 - стул; 23 - шкаф; 24 - кушетка; 25 - тумбочка;
X - санитарный узел, доступный для МГН (при входе в санпропускник)
Рисунок Б.4 - Санпропускник (примерное решение центра на 200 мест)

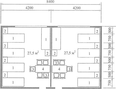
1 - кровать; 2 - тумбочка; 3 - стул; 4 - стол
Примечание - В жилых комнатах для проживания МГН проход к кровати для инвалида на кресле-коляске следует увеличивать до 0,9 м.
Рисунок Б.5 - Вариант планировки жилых комнат на 10 мест (5 + 5)
а)

б)

1 - стул; 2 - пианино; 3 - табурет; 4 - шкаф для нот и книг; 5 - телевизор; 6 - диван; 7 - декоративные цветы; 8 - стол
Рисунок Б.6 - Холл для отдыха (а) и место в вестибюле для работников, предоставляющих (организующих предоставление) социальные услуги (специалистов по социальной работе, социальных работников), и получателей социальных услуг (б)
Библиография
[1] Федеральный закон от 30 декабря 2009 г. N 384-ФЗ "Технический регламент о безопасности зданий и сооружений"
[2] Федеральный закон от 28 декабря 2013 г. N 442-ФЗ "Об основах социального обслуживания граждан в Российской Федерации"
[3] Постановление Правительства Российской Федерации от 24 ноября 2014 г. N 1236 "Об утверждении примерного перечня социальных услуг по видам социальных услуг"
[4] Приказ Министерства труда и социальной защиты Российской Федерации от 17 декабря 2020 г. N 918н "Об утверждении примерной номенклатуры организаций социального обслуживания"
[5] СанПиН 2.1.3684-21 Санитарно-эпидемиологические требования к содержанию территорий городских и сельских поселений, к водным объектам, питьевой воде и питьевому водоснабжению, атмосферному воздуху, почвам, жилым помещениям, эксплуатации производственных, общественных помещений, организации и проведению санитарно-противоэпидемических (профилактических) мероприятий
[6] Федеральный закон от 29 декабря 2004 г. N 190-ФЗ "Градостроительный кодекс Российской Федерации"
[7] СанПиН 2.3/2.4.3590-20 Санитарно-эпидемиологические требования к организации общественного питания населения
[8] СП 2.1.3678-20 Санитарно-эпидемиологические требования к эксплуатации помещений, зданий, сооружений, оборудования и транспорта, а также условиям деятельности хозяйствующих субъектов, осуществляющих продажу товаров, выполнение работ или оказание услуг
[9] СП 2.2.3670-20 Санитарно-эпидемиологические требования к условиям труда
[10] Приказ Министерства здравоохранения Российской Федерации N 796н, Министерства труда и социальной защиты Российской Федерации N 788н, Министерства внутренних дел Российской Федерации N 962 от 19 декабря 2022 г. "Об утверждении Правил организации деятельности специализированных организаций для оказания помощи лицам, находящимся в состоянии алкогольного, наркотического или иного токсического опьянения"
[11] Приказ Министерства здравоохранения Российской Федерации N 208н, Министерства труда и социальной защиты Российской Федерации N 432н от 3 мая 2023 г. "Об утверждении Порядка прохождения больными наркоманией медицинской и социальной реабилитации"
[12] СП 41-104-2000 Проектирование автономных источников теплоснабжения
[13] Федеральный закон от 23 ноября 2009 г. N 261-ФЗ "Об энергосбережении и о повышении энергетической эффективности и о внесении изменений в отдельные законодательные акты Российской Федерации"
[14] ПУЭ Правила устройства электроустановок (7-е изд.)


