СП 527.1325800.2023 ТРУБОПРОВОДЫ СИСТЕМ ВОДОСНАБЖЕНИЯ И ВОДООТВЕДЕНИЯ ИЗ ПОЛИМЕРНЫХ ПРЕДВАРИТЕЛЬНО ИЗОЛИРОВАННЫХ ТРУБ. ПРАВИЛА ПРОЕКТИРОВАНИЯ И МОНТАЖА
Утв. и введен в действие Приказом Министерства строительства и жилищно-коммунального хозяйства РФ от 19 июля 2023 г. N 512/пр
Pipelines of water supply and sanitation systems made of polymer pre-insulated pipes. Design and installation rules
Дата введения - 20 августа 2023 года
Предисловие
Сведения о своде правил
1 ИСПОЛНИТЕЛЬ - Общество с ограниченной ответственностью "Группа ПОЛИПЛАСТИК" (ООО "Группа ПОЛИПЛАСТИК")
2 ВНЕСЕН Техническим комитетом по стандартизации ТК 465 "Строительство"
3 ПОДГОТОВЛЕН к утверждению Департаментом градостроительной деятельности и архитектуры Министерства строительства и жилищно-коммунального хозяйства Российской Федерации (Минстрой России)
4 УТВЕРЖДЕН приказом Министерства строительства и жилищно-коммунального хозяйства Российской Федерации от 19 июля 2023 г. N 512/пр и введен в действие с 20 августа 2023 г.
5 ЗАРЕГИСТРИРОВАН Федеральным агентством по техническому регулированию и метрологии (Росстандарт)
6 ВВЕДЕН ВПЕРВЫЕ
В случае пересмотра (замены) или отмены настоящего свода правил соответствующее уведомление будет опубликовано в установленном порядке. Соответствующая информация, уведомление и тексты размещаются также в информационной системе общего пользования - на официальном сайте разработчика (Минстрой России) в сети Интернет
Введение
Настоящий свод правил разработан в целях обеспечения требований Федерального закона от 30 декабря 2009 г. N 384-ФЗ "Технический регламент о безопасности зданий и сооружений" с учетом требований федеральных законов от 27 декабря 2002 г. N 184-ФЗ "О техническом регулировании" и от 7 декабря 2011 г. N 416-ФЗ "О водоснабжении и водоотведении".
Свод правил содержит требования к проектированию и монтажу полимерных предварительно изолированных трубопроводов на наружных сетях водоснабжения и водоотведения, включая использование полимерных материалов при реконструкции (ремонте) существующих трубопроводов, для обеспечения требований СП 31.13330.2021 "СНиП 2.04.02-84* Водоснабжение. Наружные сети и сооружения", СП 32.13330.2018 "СНиП 2.04.03-85 Канализация. Наружные сети и сооружения" и СП 399.1325800.2018 "Системы водоснабжения и канализации наружные из полимерных материалов. Правила проектирования и монтажа".
Настоящий свод правил разработан авторским коллективом ООО "Группа ПОЛИПЛАСТИК" (руководитель организации - канд. техн. наук М.И. Гориловский; руководитель разработки - канд. техн. наук Е.И. Зайцева; исполнители - канд. техн. наук И.А. Аверкеев, И.П. Сафронова); ООО "Группа ПОЛИМЕРТЕПЛО" (канд. техн. наук Е.М. Желваков, А.Е. Клементьев, А.Ф. Чугров).
1.1 Настоящий свод правил устанавливает требования к проектированию, строительству (реконструкции) наружных сетей холодного водоснабжения и водоотведения с использованием полимерных предварительно изолированных труб, в т.ч. имеющих систему электрического обогрева, а также соединительных деталей, изготовленных из полиэтилена и блок-сополимера пропилена.
1.2 Настоящий свод правил распространяется на напорные и безнапорные трубопроводы при:
- подземной прокладке в траншее;
- подземной бестраншейной прокладке методом горизонтального направленного бурения или прокола;
- подземной прокладке в канале (проходном, непроходном) без засыпки грунтом (песком);
- подземной прокладке в непроходном канале с засыпкой грунтом (песком);
- наземной прокладке в обваловании или канале без засыпки;
- надземной прокладке;
- прокладке в особых природно-климатических условиях, включая просадочные и многолетнемерзлые грунты, подрабатываемые территории, а также площадки с сейсмичностью свыше 6 баллов;
- устройстве технологических трубопроводов, транспортирующих среды, не агрессивные к полиэтилену или блок-сополимеру пропилена.
1.3 Настоящий свод правил не распространяется:
- на сети горячего водоснабжения;
- сети производственной канализации, транспортирующие агрессивные к полимерам сточные воды;
- сети водоснабжения и водоотведения с использованием труб из полипропилена гомополимера и рандом-сополимера;
- на трубопроводы технических устройств, относящихся к опасным производственным объектам в составе сетей водоснабжения или канализации.
В настоящем своде правил использованы нормативные ссылки на следующие документы:
ГОСТ 12.1.007-76 Система стандартов безопасности труда. Вредные вещества. Классификация и общие требования безопасности
ГОСТ 12.1.044-89 (ИСО 4589-84) Система стандартов безопасности труда. Пожаровзрывоопасность веществ и материалов. Номенклатура показателей и методы их определения
ГОСТ 12.3.030-83 Система стандартов безопасности труда. Переработка пластических масс. Требования безопасности
ГОСТ 15150-69 Машины, приборы и другие технические изделия. Исполнения для различных климатических районов. Категории, условия эксплуатации, хранения и транспортирования в части воздействия климатических факторов внешней среды
ГОСТ 18599-2001 Трубы напорные из полиэтилена. Технические условия
ГОСТ 22235-2010 Вагоны грузовые магистральных железных дорог колеи 1520 мм. Общие требования по обеспечению сохранности при производстве погрузочно-разгрузочных и маневровых работ
ГОСТ 23279-2012 Сетки арматурные сварные для железобетонных конструкций и изделий. Общие технические условия.
ГОСТ 24297-2013 Верификация закупленной продукции. Организация проведения и методы контроля
ГОСТ 26653-2015 Подготовка генеральных грузов к транспортированию. Общие требования
ГОСТ 30244-94 Материалы строительные. Методы испытаний на горючесть
ГОСТ 30402-96 Материалы строительные. Метод испытания на воспламеняемость
ГОСТ 32960-2014 Дороги автомобильные общего пользования. Нормативные нагрузки, расчетные схемы нагружения
ГОСТ IEC 60079-30-2-2011 Взрывоопасные среды. Электронагреватель резистивный распределенный. Часть 30-2. Руководство по проектированию, установке и техническому обслуживанию
ГОСТ Р 54475-2011 Трубы полимерные со структурированной стенкой и фасонные части к ним для систем наружной канализации. Технические условия
ГОСТ Р 54476-2011 Грунты. Методы лабораторного определения характеристик сопротивляемости сдвигу грунтов в дорожном строительстве
ГОСТ Р ИСО 12176-3-2014 Трубы и фитинги пластмассовые. Оборудование для сварки полиэтиленовых систем. Часть 3. Идентификация оператора
СП 14.13330.2018 "СНиП II-7-81* Строительство в сейсмических районах" (с изменениями N 2, N 3)
СП 18.13330.2019 Производственные объекты. Планировочная организация земельного участка (СНиП II-89-80* Генеральные планы промышленных предприятий) (с изменениями N 1, N 2)
СП 22.13330.2016 "СНиП 2.02.01-83* Основания зданий и сооружений" (с изменениями N 1, N 2, N 3, N 4)
СП 24.13330.2021 "СНиП 2.02.03-85 Свайные фундаменты"
СП 25.13330.2020 "СНиП 2.02.04-88 Основания и фундаменты на вечномерзлых грунтах" (с изменением N 1)
СП 31.13330.2021 "СНиП 2.04.02-84* Водоснабжение. Наружные сети и сооружения"
СП 32.13330.2018 "СНиП 2.04.03-85 Канализация. Наружные сети и сооружения" (с изменениями N 1, N 2)
СП 36.13330.2012 "СНиП 2.05.06-85* Магистральные трубопроводы" (с изменениями N 1, N 2, N 3, N 4)
СП 45.13330.2017 "СНиП 3.02.01-87 Земляные сооружения, основания и фундаменты" (с изменениями N 1, N 2, N 3)
СП 48.13330.2019 "СНиП 12-01-2004 Организация строительства" (с изменением N 1)
СП 61.13330.2012 "СНиП 41-03-2003 Тепловая изоляция оборудования и трубопроводов" (с изменением N 1)
СП 124.13330.2012 "СНиП 41-02-2003 Тепловые сети" (с изменениями N 1, N 2, N 3)
СП 129.13330.2019 "СНиП 3.05.04-85* Наружные сети и сооружения водоснабжения и канализации"
СП 131.13330.2020 "СНиП 23-01-99* Строительная климатология" (с изменением N 1)
СП 399.1325800.2018 Системы водоснабжения и канализации наружные из полимерных материалов. Правила проектирования и монтажа
Примечание - При пользовании настоящим сводом правил целесообразно проверить действие ссылочных документов в информационной системе общего пользования - на официальном сайте федерального органа исполнительной власти в сфере стандартизации в сети Интернет или по ежегодному информационному указателю "Национальные стандарты", который опубликован по состоянию на 1 января текущего года, и по выпускам ежемесячного информационного указателя "Национальные стандарты" за текущий год. Если заменен ссылочный документ, на который дана недатированная ссылка, то рекомендуется использовать действующую версию этого документа с учетом всех внесенных в данную версию изменений. Если заменен ссылочный документ, на который дана датированная ссылка, то рекомендуется использовать версию этого документа с указанным выше годом утверждения (принятия). Если после утверждения настоящего свода правил в ссылочный документ, на который дана датированная ссылка, внесено изменение, затрагивающее положение, на которое дана ссылка, то это положение рекомендуется применять без учета данного изменения. Если ссылочный документ отменен без замены, то положение, в котором дана ссылка на него, рекомендуется применять в части, не затрагивающей эту ссылку. Сведения о действии сводов правил целесообразно проверить в Федеральном информационном фонде стандартов.
В настоящем своде правил применены термины по СП 399.1325800, а также следующие термины с соответствующими определениями:
3.1.1 балочный способ прокладки: Надземная прокладка с размещением опор трубопровода (подвижных, неподвижных) на траверсах эстакады или отдельных стойках с расстояниями между ними (пролетами), не превышающими предельные расстояния между опорами.
Примечание - Предельные расстояния между опорами вычисляют из условия допустимого провисания трубопровода в виде неразрезной балки.
3.1.2 безнапорная полимерная предварительно изолированная труба: Полимерная предварительно изолированная труба, в которой транспортируемая среда движется под действием сил гравитации.
3.1.3 кабель-канал: Направляющий элемент в виде трубы из пластика или металла различного профиля, закрепляемый на наружной поверхности рабочей полимерной предварительно изолированной трубы и соединительной теплоизолированной детали под слоем теплоизоляции в заводских условиях и используемый для размещения в нем обогревающего кабеля в ходе монтажа трубопровода, предполагающего использование электрического обогрева для защиты от замерзания или поддержания требуемой температуры транспортируемой среды.
3.1.4 лекало: Деревянная конструкция, позволяющая выполнять упругий изгиб трубопровода.
3.1.5 напорная полимерная предварительно изолированная труба: Полимерная предварительно изолированная труба, внутри которой транспортируемой средой создается избыточное давление.
3.1.6 направляющая опора: Опора, допускающая перемещение в осевом направлении и передающая вертикальную и горизонтальную (осевую и радиальную) нагрузки от трубопровода на строительную конструкцию.
3.1.7 непрерывное основание: Ложемент по всей длине опирания трубопровода, допускающий разрывы только на поворотах, присоединениях и местах установки неподвижных опор.
Примечание - Ложемент может быть изготовлен в виде повернутого швеллера с ограничителями радиальных смещений, установленными с равным шагом.
3.1.8 осевой компенсатор: Вид компенсаторов (сальниковых, полимерных, линзовых, сильфонных), предназначенных для уменьшения температурных напряжений и нагрузок (самокомпенсация) в трубопроводе.
3.1.9 полимерная предварительно изолированная труба: Конструкция, состоящая из рабочей трубы и защитной оболочки, скрепленная жестким или полужестким пенополиуретаном заливочного типа.
3.1.10 прерывистое основание: Конструкция с продольными несущими профилями и опорными (между ними) поперечинами с шагом, не превышающим допустимый пролет для прокладываемого трубопровода.
3.1.11 профилированное основание: Техническое решение по увеличению площади соприкосновения оболочки с основанием, предназначенное для уменьшения напряжений в слое теплоизоляции из ППУ до допустимых значений.
3.1.12 проходная опора: Опора трубопровода с полимерной оболочкой, проложенного в футляре, допускающая перемещение вдоль оси футляра, передающая нагрузки от трубопровода на футляр в грунте.
3.1.13 рабочая труба: Труба, имеющая непосредственный контакт с транспортируемой средой и изготовленная из полимерных материалов.
3.1.14 радиальная компенсация: Способ уменьшения температурных (и силовых) напряжений и нагрузок в трубопроводе за счет применения упруго деформируемых элементов (Г-, П-, Z-образных) или естественных углов поворота трубопровода.
3.1.15 релаксационная самокомпенсация: Самокомпенсация трубопровода, при которой возникающие в стенках труб начальные температурные напряжения и нагрузки (или напряжения и нагрузки от внешних силовых воздействий) уменьшаются с течением времени за счет процесса релаксации в рабочей трубе и оболочке из полимерных материалов.
3.1.16 релаксационный модуль: Значение модуля упругости, МПа, через определенный промежуток времени при определенной температуре после завершения процесса растяжения образца в разрывной машине.
3.1.17 релаксация: Процесс уменьшения с течением времени напряжений в полимерных материалах после деформации в результате межмолекулярной перегруппировки.
3.1.18 самокомпенсация: Способность трубопровода компенсировать возникающие в нем вследствие температурной деформации напряжения и нагрузки за счет особенностей конструкции (например, упругой деформации замков спирально навитой оболочки из оцинкованной стали) применяемых труб без использования компенсаторов.
3.1.19 скользящая (подвижная) опора: Опора, ограничивающая вертикальное перемещение вниз, а также незначительное плоскостное смещение или вращение и передающая вертикальную и горизонтальную (через трение) нагрузки от трубопровода на строительную конструкцию.
3.1.20 соединительная теплоизолированная деталь: Конструкция (изготовленная в заводских условиях), состоящая из отрезка рабочей трубы или соединительной детали (отвод, тройник и т.д.) и защитной оболочки, скрепленная жестким пенополиуретаном заливочного типа.
3.1.21 схема закрепления: Схема расстановки неподвижных опор на трубопроводе, которая определяет способ компенсации продольных напряжений и удлинений трубопровода, а также направление и величину продольных и поперечных перемещений трубопровода на смежных расчетных участках.
3.1.22 угловая неподвижная опора: Соединительная теплоизолированная деталь, представляющая собой отвод, защищенный с двух сторон щитовыми упорами, передающими продольные нагрузки на грунт.
3.1.23 фиксирование стыков: Закрепление безнапорных трубопроводов с профилированной стенкой оболочки за счет применения технических решений для недопущения образования зазоров между торцами теплоизоляции из пенополиуретана на стыках полимерной предварительно изолированной трубы и соединительной теплоизолированной деталью, под воздействием продольных температурных нагрузок и иных силовых воздействий, обусловленных прокладкой в особых условиях.
3.1.24 щитовая неподвижная опора: Опора в виде соединительной теплоизолированной детали, ограничивающая перемещения и повороты в точках установки трубопровода и передающая нагрузки от трубопровода на строительную конструкцию или грунт на подземных трубопроводах через железобетонный щит.
В настоящем своде правил применены следующие сокращения:
БППИТ - безнапорная полимерная предварительно изолированная труба;
ГНБ - горизонтальное направленное бурение;
ЗН - закладной нагреватель;
ММГ - многолетнемерзлые грунты;
НППИТ - напорная полимерная предварительно изолированная труба;
ППИТ - полимерная предварительно изолированная труба;
ППР - проект производства работ;
ППУ - пенополиуретан;
ПУ - полиуретан;
ППЭ - пенополиэтилен;
ПЭ - полиэтилен;
ПЭТ - полиэстер;
ТЗИ - торцевая заглушка изоляции;
ТУЛ - термоусаживаемая лента с замковой пластиной;
ТУМ - термоусаживаемая манжета (муфта);
УЗК - устройство затяжки кабеля;
СТД - соединительная теплоизолированная деталь;
SDR - Standard Dimension Ratio - стандартное размерное отношение;
MRS - Minimum Require Strength - минимальная длительная прочность.
4.1 Проектирование и монтаж трубопроводов водоснабжения и водоотведения из ППИТ следует осуществлять в соответствии с СП 31.13330, СП 32.13330, СП 129.13330, СП 399.1325800 и настоящим сводом правил.
4.2 Для напорных сетей водоснабжения и водоотведения, эксплуатирующихся в условиях нулевой или отрицательной температуры окружающей среды, следует применять рабочие трубы, технические характеристики которых соответствуют ГОСТ 18599, при этом между рабочей трубой и защитной оболочкой должна быть жесткая или полужесткая тепловая изоляция заливочного типа, запроектированная по СП 61.13330, с последующим изготовлением в заводских условиях.
4.3 Для безнапорных сетей водоотведения (систем канализации закрытого типа и безлотковых колодцев с размещением в них СТД), эксплуатирующихся в условиях нулевой или отрицательной температуры окружающей среды, следует применять рабочие трубы, технические характеристики которых соответствуют ГОСТ Р 54475, ГОСТ 18599, при этом между рабочей трубой и защитной оболочкой должна быть жесткая или полужесткая тепловая изоляция заливочного типа, запроектированная по СП 61.13330, с последующим изготовлением в заводских условиях.
4.4 Полимерные предварительно изолированные трубы могут иметь систему электрического обогрева для предотвращения замерзания транспортируемой среды, которая должна отвечать требованиям, установленным разделом 7.
4.5 Электрический обогрев ППИТ осуществляют:
- саморегулирующимися нагревательными кабелями;
- с помощью индукционно-резистивных нагревателей;
- с помощью резистивных нагревательных кабелей.
Резистивные несаморегулирующиеся нагревательные кабели применяют только при наличии независимых дублирующих систем управления и силового коммутационного оборудования, исключающих возможность возникновения режима неконтролируемого нагрева.
4.6 Полимерные предварительно изолированные трубы и СТД с рабочей трубой и защитной оболочкой, изготовленные из полимеров с соответствующей хладостойкостью, предназначены для подземной траншейной и бестраншейной прокладок, надземной прокладки и прокладки по эстакадам по непрерывному и прерывистому основанию с защитой от прямых солнечных лучей, например, под навесом или в футлярах (лотках).
4.7 Полимерные предварительно изолированные трубы и СТД с рабочей трубой, изготовленной из полимера с соответствующей хладостойкостью, защитной спирально навитой оболочкой из оцинкованной стали (далее - металла) предназначены для надземной прокладки по эстакадам, прокладки в проходных каналах, туннелях, проветриваемых технических подпольях.
4.8 Для обеспечения минимальных тепловых потерь в трубопроводе в качестве теплоизоляционного слоя труб и соединительных деталей используют ППУ. Толщина теплоизоляции СТД должна быть не менее толщины теплоизоляции ППИТ.
Для теплоизоляции ППИТ следует использовать системы компонентов, применяемые для получения жесткого ППУ заливочного типа, для теплоизоляции гибких ППИТ используют ПУ-компоненты для получения ППУ полужесткого типа.
Торцы тепловой изоляции ППИТ и СТД имеют гидроизоляционное мастичное покрытие. При обосновании гидроизоляционное покрытие не наносят.
4.9 При соединении ППИТ между собой и с СТД не должно оставаться неизолированных участков (зазоров в теплоизоляции) трубопровода. Для теплоизоляции стыков ППИТ и СТД следует использовать системы компонентов для получения ППУ заливочного типа.
4.10 Теплоизолирующие материалы и оболочки для ППИТ или СТД должны соответствовать требованиям пожарной безопасности, принятым для теплопроводов в соответствии с СП 61.13330 и СП 124.13330.
5.1.1 Выбирать ППИТ и СТД следует в соответствии с их назначением (водоснабжение или водоотведение), с учетом рекомендаций изготовителей по давлению и температуре транспортируемой среды, с последующим уточнением на основании результатов гидравлических, прочностных и технико-экономических расчетов, способа прокладки и особенностей эксплуатации трубопроводов.
5.1.2 Полимерные предварительно изолированные трубы должны применять для систем водоснабжения и напорного водоотведения при температуре воды (сточных вод) не более 40 °C.
5.1.3 Трубопровод из НППИТ без электрического обогрева применяют для систем, не предусматривающих прекращение транспортирования среды, в том числе временное. Протяженность необогреваемого участка трубопровода не должна превышать критической длины, определенной в соответствии с 7.2.
5.1.4 Обогрев НППИТ должны осуществлять при превышении критической длины необогреваемого участка трубопровода, при этом выбор электрического обогрева (электрическими саморегулирующимися нагревательными лентами, с помощью индукционно-резистивных нагревателей или иных систем электрического обогрева) определяют на основе технико-экономического обоснования.
5.1.5 Полимерные предварительно изолированные трубы с кольцами усиления, расположенными поверх защитной оболочки с определенным шагом, предназначены для прокладки в футлярах, в том числе в футлярах при бестраншейной прокладке, например, методом ГНБ.
5.1.6 Полимерные предварительно изолированные трубы применяют при температуре транспортируемой среды (стоков) не более 60 °C. Допускается применение при температуре стоков не более 95 °C (включительно), если длительность воздействия стоков с такой температурой не превышает одной минуты. В случае использования рабочей трубы из термостойкого полимера максимальную температуру стоков принимают по данным изготовителя трубы.
5.1.7 При проектировании трубопровода из ППИТ, для обеспечения надежности, безопасности и долговечности, применяют СТД и опоры одного изготовителя. Допускается применение СТД и опор разных изготовителей при условии полной их взаимозаменяемости по материалу, техническим характеристикам и присоединительным размерам.
5.1.8 Если размеры СТД (в плане) превышают внутренний диаметр колодца (размеры камеры) и не позволяют выполнять монтаж в колодце с ранее установленными кольцами (или собранной стенкой), то в проектной документации указывают порядок, определяющий последовательность монтажа СТД или сборки колодца (камеры). В таких случаях следует предусматривать установку стеновых колец и устройство стен камер после монтажа СТД. На безнапорных трубопроводах, при условии согласования с эксплуатирующей организацией, размещают отводы, соединения и присоединения за пределами колодца, при условии размещения прочистки или ревизии в колодце, непосредственно за СТД по потоку.
5.1.9 На безнапорных трубопроводах, если размеры СТД (в плане) превышают внутренний диаметр колодца (размеры камеры) и не позволяют выполнять монтаж в колодце с ранее установленными кольцами (или собранной стенкой), то, при условии согласования с эксплуатирующей организацией, размещают отводы, соединения и присоединения за пределами колодца, при условии размещения прочистки или ревизии в колодце непосредственно за СТД по потоку.
5.2.1 Выбор способа прокладки трубопровода (надземный, наземный, подземный, в т.ч. канальный, бесканальный или бестраншейный), необходимость и способ обогрева должны соответствовать его назначению, конструктивной целесообразности, результатам теплотехнического расчета и учитывать требования 5.1.1.
5.2.2 Поворот трассы трубопровода из НППИТ следует выполнять с применением СТД, в виде отвода. Допускается осуществлять поворот трубопровода из НППИТ с полимерной оболочкой с использованием лекала. Ответвление от трубопровода осуществляют с помощью СТД в виде тройника.
5.2.3 Поворот трассы трубопроводов водоотведения из БППИТ следует выполнять из СТД в виде отвода с ревизией или соединительными камерами. Потоки соединяют через СТД в виде тройника с ревизиями или соединительными камерами (рисунок 5.1).

Рисунок 5.1 - Схема присоединения ответвления безнапорного трубопровода с помощью СТД в виде тройника
5.2.4 Значения допустимых углов смещения трубопровода из БППИТ при соединении с применением уплотнительных колец должны составлять:
1,5° при диаметре рабочей трубы менее 315 мм;
1,0° при диаметре рабочей трубы от 315 мм до 630 мм включ.;
0,5° при диаметре рабочей трубы более 630 мм.
5.2.5 Надземную и наземную (в насыпи) прокладку трубопроводов из ППИТ применяют на участках с резко пересеченным рельефом местности, в заболоченных местах, на участках, длительное время залитых водой, в зонах распространения ММГ.
5.2.6 При надземной прокладке напорных трубопроводов на общих опорах (траверсах) расстояния в свету между параллельными оболочками ППИТ принимают исходя из удобства монтажа и эксплуатации, но не менее значений, приведенных в таблице 5.1.
|  
         Диаметр оболочки ППИТ D, мм  |   
         Расстояние Lmin, мм  |   
         Диаметр оболочки ППИТ D, мм  |   
         Расстояние Lmin, мм  | 
|  
         75 - 160  |   
         180  |   
         630 - 710  |   
         300  | 
|  
         180 - 200  |   
         200  |   
         800  |   
         350  | 
|  
         225 - 250  |   
         220  |   
         900 - 1000  |   
         380  | 
|  
         315 - 560  |   
         250  |   
         1200  |   
         400  | 
5.2.7 Высоту прокладки надземного трубопровода от поверхности земли до низа оболочки трубопровода принимают:
- не менее 0,5 м, в местах свободного прохода людей - 2,5 м;
- не менее 3,0 м - на путях миграции крупных животных;
- по СП 18.13330 - при пересечении автомобильных дорог;
- на участках ММГ - из условия обеспечения мерзлого состояния грунта под опорами и трубопроводом.
5.2.8 Выбор схемы закрепления трубопровода из ППИТ на местности определяют экономическим обоснованием с учетом показателей надежности и предполагаемого срока эксплуатации трубопровода.
Для подземных трубопроводов с профилированной оболочкой по ГОСТ Р 54475 схемы закрепления не выбирают, для аналогичных надземных трубопроводов схемы закрепления приведены в 5.2.27 - 5.2.34.
В зависимости от условий прокладки напорных и безнапорных трубопроводов с рабочей трубой применяются разные схемы закрепления.
В зависимости от конфигурации трассы допускается применять комбинированные схемы закрепления трубопроводов.
5.2.8.1 Схема с компенсацией температурных удлинений на поворотах и изгибах трассы (с применением Г-, Z- и П-образных компенсаторов) предназначена для регионов с сейсмичностью до 9 баллов включительно и ее применяют на трубопроводах из ППИТ:
- с оболочкой из металла, при использовании подвижных опор на эстакадах, в наземных лотках без засыпки грунтом, в проветриваемых подпольях, тоннелях и т.п.;
- с полимерной гладкой оболочкой, при прокладке в наземных или подземных непроходных каналах без засыпки грунтом с применением скользящих полиэтиленовых опор с расстоянием между ними по 6.5.42 или без применения опор, но с устройством песчаного основания под трубопроводы.
5.2.8.2 Схема с прямыми участками и участками с одним углом поворота, не превышающим 10° для надземных трубопроводов и значений, приведенных в таблице 5.2 для подземных трубопроводов бесканальной прокладки, работающими в режиме релаксационной самокомпенсации (с неподвижными опорами на концах этих участков), предназначена для регионов с сейсмичностью до 8 баллов включительно и ее применяют для трубопроводов из ППИТ:
- с оболочкой из металла, при использовании направляющих опор на эстакадах, стойках и т.п.;
- с полимерной гладкой оболочкой, проложенных бесканально, в том числе в условиях ММГ, в непроходных каналах с засыпкой;
- с полимерной гладкой оболочкой на непрерывном основании (на эстакаде) и в непроходных каналах без засыпки с устройством направляющих опор, расстояние между которыми принимают по 6.5.42.
|  
         Значение SDR  |   
         21  |   
         17  |   
         11  | 
|  
         Значение угла отвода  |   
         20°  |   
         15°  |   
         10°  | 
На подходах к углам поворота подземного трубопровода, превышающим значения, приведенные в таблице 5.2, применяют угловые неподвижные опоры.
На подходах к углам поворота надземного трубопровода применяют неподвижные опоры.
5.2.8.3 Схема змейкой, с компенсацией температурных удлинений по всей длине трассы за счет изменения величины расчетной высоты хорды Hхор., которую определяют температурой монтажа трубопровода. Длина хорды Lхор. зависит от типоразмера трубопровода. Схема применима для гибких ППИТ с полимерной оболочкой на прерывистом основании (рисунок 5.2) в регионах с повышенной сейсмической опасностью, а также при прокладке по эстакадам, мостам и т.д.

1 - трубопровод; 2 - обрезиненный хомут; 3 - прерывистое основание
Рисунок 5.2 - Схема змейкой на прерывистом основании
Схему змейкой, работающей в режиме релаксационной самокомпенсации при неизменяемой геометрии трубопроводов в процессе эксплуатации, проложенных с естественными изгибами труб, применяют в траншее и каналах с засыпкой грунтом.
5.2.8.4 Схему зигзагом на подвесных и шаровых опорах по [1] применяют для трубопроводов с оболочкой из металлов в регионах с сейсмичностью 9 и более баллов.
5.2.8.5 При реализации схемы наземной прокладки в обваловании с плавным упругим изгибом трубопровода с гладкой полимерной оболочкой, в режиме релаксационной самокомпенсации радиусы изгибов не должны превышать минимально допустимых значений по 6.5.9).
5.2.9 При пересечениях болот, водных преград, на участках подземной прокладки ППИТ с уровнем грунтовых вод выше низа оболочки, а также при прокладке в ММГ выше глубины сезонного оттаивания, при котором влагонасыщение грунта позволяет всплывать трубе, следует применять балластирующие устройства мягкого типа (из нетканых синтетических материалов, полимерных контейнеров и т.п.).
5.2.10 Расстояние между подвижными опорами на прямом участке горизонтального трубопровода с металлической оболочкой принимают по расчету прогиба с учетом ледовой, снеговой и ветровой нагрузок.
Допустимый прогиб трубопровода с металлической оболочкой рекомендуется принимать в пределах 0,03 диаметра оболочки.
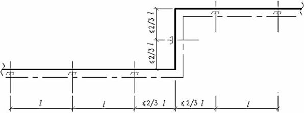
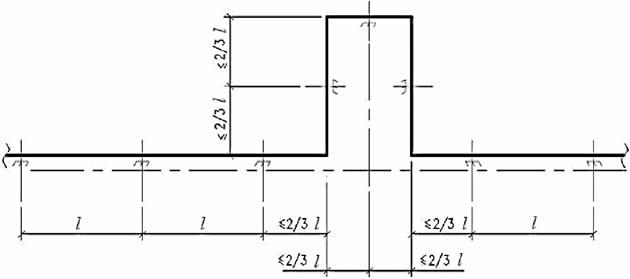
Расстояние между подвижными опорами l, на которые опираются горизонтальные Г-образные (рисунок 5.3, а), Z-образные (рисунок 5.3, б) или П-образные (рисунок 5.3, в) компенсаторы трубопровода принимают не более 2/3 расстояния на прямом участке.
а

б

в

Рисунок 5.3 - Расстановка подвижных опор: а - на Г-образном компенсаторе; б - на Z-образном компенсаторе; в - на П-образном компенсаторе
5.2.11 Для компенсации теплового удлинения нагревательных лент в кабель-каналах, элементы выводов обогревающего кабеля рекомендуется размещать в непосредственной близости от Г- или Z-образных компенсаторов. При применении П-образных компенсаторов применяют "встроенные" в спинку или вылет компенсатора элементы выводов обогревающих кабелей.
5.2.12 На площадках с сейсмичностью более 6 баллов рекомендуется применять увеличенный траверс шириной, определяемой расчетом по СП 14.13330, удлиненные подвижные опоры и ограничители боковых перемещений на траверсе, предотвращающие сползание опор с траверсы при сейсмической волне. В зонах с сейсмической опасностью 10 баллов дополнительно применяют демпфирующие устройства, выполняемые из органических эластичных материалов, защищенных от воздействия прямых солнечных лучей.
5.2.13 На подземных трубопроводах, с применением рабочих труб по ГОСТ 18599 с прямыми участками, работающими в режиме релаксационной самокомпенсации, неподвижные опоры устанавливают дополнительно:
- на границах участков с существенным отличием прочности грунтов;
- на переходах диаметров трубопровода;
- на верхних отметках выпуклого профиля;
- перед входами в колодец со стальной вставкой с фланцами;
- перед входами в колодец на поворотах БППИТ, кроме труб с профилированной оболочкой.
5.2.14 Для схем подземных напорных трубопроводов с прямыми участками, работающими в режиме релаксационной самокомпенсации на поворотах трассы, подъемах и спусках с углами, превышающими значения, приведенные в таблице 5.2, вместо отводов применяют угловые неподвижные опоры.
В условиях сезонно промерзающих или ММГ, при подходе к углам поворотов, превышающих значения, приведенные в таблице 5.2, для исключения повреждения ППУ теплоизоляции перерезающими продольную ось отводов нагрузками следует защищать отводы с двух сторон неподвижными опорами (рисунок 5.4) или применять угловую неподвижную опору на основе СТД (рисунок 5.5).

Рисунок 5.4 - Схема неподвижной опоры на прямом участке

Рисунок 5.5 - Схема угловой неподвижной опоры
Для подземных ППИТ с гладкой рабочей трубой и гладкой защитной оболочкой, с прямыми участками, работающими в режиме релаксационной самокомпенсации, перед входами в колодец с разъемными фланцевыми соединениями, необходимо предусматривать установку неподвижных опор или применять съемные ограничители перемещения фланцев, возникающего под воздействием продольной нагрузки в трубопроводе (5.2.13).
На подземных ППИТ с гладкой рабочей трубой и гладкой защитной оболочкой при обосновании прочностным расчетом используют колодец в качестве неподвижной опоры, применив конструкцию (упоры, косынки и др.), передающую нагрузки от входящих труб на стенку колодца.
Конструкцией неподвижной опоры должна быть предусмотрена возможность передачи продольных нагрузок от рабочей трубы и оболочки на траверсу эстакады или грунт. Узел крепления к рабочей ПЭ трубе может иметь разную конструкцию, которую задает изготовитель ППИТ по результатам расчетов напряжений в элементах конструкции и сварных швах. Эти напряжения не должны превышать допустимых значений (5.4.1.17).
Расчет нагрузок на упорные элементы неподвижных опор приведен в приложении А.
5.2.15 При надземной прокладке, на участках затяжных спусков и подъемов устанавливают промежуточные неподвижные опоры, для разгрузки от продольных весовых нагрузок.
На надземных трубопроводах, работающих в режиме релаксационной самокомпенсации (схемы закрепления 5.2.8.2 и 5.2.8.5), предусматривают разрывы в защитной оболочке, например, для установки вставок со съемной изоляцией, при условии защиты этих участков неподвижными опорами с обеих сторон или применения технических решений, не допускающих передачу суммарной нагрузки от трубы и оболочки на рабочую трубу в зоне разрыва.
5.2.16 При проектировании по принципу использования ММГ основания в мерзлом состоянии, сохраняемом в процессе строительства и в течение всего заданного периода эксплуатации, участки трубопровода из ППИТ до ввода в здание выполняют в проветриваемом канале.
5.2.17 При расположении трубопровода в грунте на вводах в здания с подвальными помещениями (в камеры) неподвижную опору устанавливают на расстоянии не более 6 м от стенового ограждения или после ввода в подвальное помещение.
5.2.18 Установку неподвижной опоры перед вводом надземного трубопровода в здание следует предусматривать на расстоянии не более 12 м, при этом ввод заканчивают отводом (в обоснованных случаях с ТЗИ). Если стальная внутренняя разводка имеет протяженный прямой участок (более 6 м), соосный вводу, то предусматривают установку неподвижной опоры на стальном участке, на минимальном расстоянии от узла перехода ПЭ на сталь, при условии применения Г-, Z- или П-образного компенсатора на примыкающем участке наружного трубопровода.
5.2.19 Между смежными прямыми участками трубопроводов надземной прокладки, работающих в режиме релаксационной самокомпенсации, с углами поворота между ними более 10° и менее 45°, применяют конструкции, состоящие из двух линейных неподвижных опор и отвода между ними. Для подгонки расстояний от отводов до ближайших траверс (мест крепления упорных плит неподвижных опор) применяют удлиненные (со стороны одного плеча) неподвижные опоры или дополнительно устанавливают промежуточные траверсы. Допускается устраивать дополнительные промежуточные траверсы для крепления стандартных неподвижных опор и передачи нагрузок на смежные траверсы (рисунок 5.6). Нагрузка на эстакаду от неподвижных опор должна быть не более допустимых значений.

1 - напорный трубопровод; 2 - отвод; 3 - неподвижная опора; 4 - траверса эстакады; 5 - дополнительные траверсы эстакады; 6 - направляющие опоры; 7 - упорная плита неподвижной опоры
Рисунок 5.6 - Пример крепления упорных плит неподвижных опор на поворотах трассы
5.2.20 Расчет нагрузок на неподвижную опору надземного трубопровода и элементов ее крепления (на траверсе, стойке и т.д.) следует выполнять для самого неблагоприятного случая сочетания нагрузок, от рабочей трубы и оболочки из оцинкованной стали (режим охлаждения зимой в аварийной ситуации, после опорожнения трубопровода).
5.2.21 На участках трубопроводов с использованием компенсаторов радиального типа (Г-, Z-, П-образные компенсаторы) применяют скользящие опоры, применение направляющих опор не допускается.
5.2.22 Предусматривают не менее чем трехточечное опирание П-образных горизонтальных компенсаторов на скользящие опоры (рисунок 5.3, в) (т.е. дополнительное опирание полки компенсатора) и не менее чем двухточечное опирание вертикальных Z-образных компенсаторов (рисунок 5.7).

Рисунок 5.7 - Двухточечное опирание вертикального Z-образного компенсатора
5.2.23 Тройники на подземных трубопроводах ППИТ с гладкой оболочкой защищают неподвижными опорами:
- от радиального смещения - установкой на ответвлении на минимальном расстоянии, но не более 6 м;
- от продольного смещения - установкой по концам прямолинейного участка независимо от количества тройников с неразъемными соединениями на этом участке.
5.2.24 В месте соединения стального и полимерного трубопроводов необходимо устанавливать неподвижную опору, со стороны стального трубопровода.
5.2.25 Для надземных трубопроводов, проектируемых с применением компенсаторов, рассчитанных на радиальную компенсацию, неподвижные опоры расставляют на границах расчетных участков, компенсаторы размещают, как правило, в середине расчетных участков. На надземных трубопроводах с металлической оболочкой с применением радиальных компенсаторов (5.2.8.1), на поворотах с углами более 10° и менее 45° рекомендуется применять П- и U-образные компенсаторы (в виде отводов) при условии прохождения по гидравлическому сопротивлению и свойствам транспортируемой среды. На трубопроводах гидротранспорта применение отводов ограничено, поэтому применяют повороты упругим изгибом (5.2.8.5).
5.2.26 При надземной прокладке безнапорных трубопроводов с профилированной оболочкой (а также в непроходных каналах, без присыпки грунтом на высоту не менее 0,4 м над верхом оболочки) не допускается свободная прокладка труб без дополнительной фиксации разъемных муфтовых соединений с применением ТУМ, ТУЛ или иными способами.
5.2.27 Предельное расстояние между опорами при балочном способе надземной прокладки безнапорных трубопроводов с профилированной рабочей трубой и оболочкой, с учетом допустимого прогиба труб, не должно превышать значений, приведенных в таблице 5.3. Стальные хомуты (неподвижных опор) с установленными на них резино-тканевыми рукавами устанавливают во впадине между гофрами оболочки трубы.
|  
         Диаметр рабочей трубы/диаметр оболочки, мм  |   
         110/200  |   
         110/250  |   
         160/250  |   
         160/315  |   
         200/315  |   
         200/400  |   
         250/400  |   
         315/500  | 
|  
         Предельное расстояние между опорами, м  |   
         3,2  |   
         3,4  |   
         3,5  |   
         3,7  |   
         4,0  |   
         4,3  |   
         4,5  |   
         5,5  | 
5.2.28 При надземной прокладке безнапорных труб с профилированной оболочкой с зафиксированными стыками с расстояниями между траверсами, превышающими значения в таблице 5.3, применяют непрерывное профилированное основание (в виде лотка). При этом расстояния между хомутовыми неподвижными опорами допустимо увеличивать в 1,5 раза от приведенных в таблице 5.3, кроме участков, непосредственно примыкающих к отводам или тройниковым присоединениям.
5.2.29 Для исключения передачи температурных продольных нагрузок от непрерывного основания на несущие конструкции (мосты, эстакады и т.д.) в непрерывном основании устраивают тепловые зазоры (например, между торцами металлических П-образных профилей).
5.2.30 При балочном способе прокладки безнапорных трубопроводов с профилированной оболочкой по эстакаде хомутовые неподвижные опоры жестко крепят к траверсам. Крепление труб хомутовыми неподвижными опорами выполняют к поддерживающим П-образным конструкциям (рисунок 5.8). Для конструкции хомутовой неподвижной опоры предусматривают профилированное основание для недопущения повреждения оболочки и увеличения продольной устойчивости.

Рисунок 5.8 - Пример крепления ППИТ и СТД при балочном способе прокладки
5.2.31 На эстакадах с большими расстояниями между траверсами допускается применять прокладку трубопроводов с профилированной оболочкой по прерывистому основанию (рисунок 5.9). Не допускается крепление трубопроводов хомутовыми неподвижными опорами в местах установки наружных муфт. Расстояние между поперечинами прогонов должно быть не более значений, приведенных в таблице 5.3.

Рисунок 5.9 - Крепление труб к прерывистому основанию
5.2.32 П-образные рамы хомутовых опор конструктивно выполняют двух типов. Рамы первого типа предназначены для крепления к вертикальным конструкциям (стеновым панелям и т.д.), а рамы второго типа - для крепления к плитам перекрытий и другим потолочным конструкциям (рисунок 5.6).
5.2.33 Для крепления безнапорного трубопровода с профилированной оболочкой и диаметром оболочки до 250 мм включительно при их надземной прокладке применяют однохомутовые неподвижные опоры.
5.2.34 Для крепления безнапорного трубопровода с профилированной оболочкой и диаметром оболочки от 315 до 500 мм включительно при их надземной прокладке применяют двуххомутовые неподвижные опоры. Для оболочек диаметром 630 мм и более применяют неподвижные опоры индивидуальной конструкции, которые предоставляют изготовители ППИТ.
5.3.1 Гидравлический расчет трубопроводов из ППИТ следует выполнять в соответствии с требованиями СП 399.1325800.
5.3.2 Для предварительной оценки гидравлических параметров работы трубопроводов применяют таблицы для гидравлического расчета.
5.4.1.1 Максимальное рабочее давление и выбор SDR для рабочих ППИТ и СТД принимают с учетом гидравлического расчета, профиля трассы и условий прокладки. Для особых условий прокладки (просадка, пучение грунта, сейсмическая активность и т.д.) принимают пониженные значения SDR.
5.4.1.2 Для подземных трубопроводов дополнительно выполняют расчет овализации труб под воздействием поперечных нагрузок, по показателям номинальной кольцевой жесткости труб.
Тепловой расчет для трубопроводов, проложенных наземно, следует проводить с учетом температуры окружающего воздуха.
5.4.1.3 В зонах с особыми условиями прокладки дополнительно учитывают возможные силовые воздействия (просадка, пучение грунта и т.д.), в зонах с повышенной сейсмической активностью дополнительно учитывают сейсмические воздействия.
5.4.1.4 При расчетах труб из ПЭ 100 используют линии равных интервалов релаксации в виде номограмм, приведенных на рисунке 5.10.

Рисунок 5.10 - Номограмма зависимости значений релаксационного модуля ПЭ 100 от температуры и времени релаксации
5.4.1.5 Значение коэффициента релаксации γτ при постоянной температуре может быть определено по выражению
γτ = E(τ2)/E(τ=1c), (5.1)
где E(τ=1c) - начальное значение релаксационного модуля на интервале релаксации (принимают по кривой, соответствующей временному интервалу релаксации, равному 1 с, рисунок 5.10), МПа;
E(τ2) - конечное значение релаксационного модуля на интервале релаксации при постоянной температуре (принимают по кривой, соответствующей временному интервалу релаксации номограммы на рисунке 5.10), МПа;
τ - продолжительность релаксации, ч.
5.4.1.6 При расчете нагрузок и напряжений, а также пределов прочности сварных конструкций рекомендуется принимать значение предела текучести для конечной температуры на расчетном температурном интервале.
Зависимость предела текучести (предела вынужденной эластичности или прочности) ПЭ 100 от температуры, в диапазоне температур от минус 60 °C до плюс 60 °C, приведена на рисунке 5.11.

Рисунок 5.11 - Зависимость предела текучести ПЭ 100 от температуры
5.4.1.7 В многослойных конструкциях, например элементах конструкций неподвижных опор, значение предела текучести рассчитывают по температуре наиболее нагруженного среднего слоя как среднеарифметическое значение температуры рабочей трубы и оболочки.
5.4.1.8 Расчет предельной нагрузки Nоп.(t), Н, на неподвижную опору при средней температуре упорной полимерной плиты, отличной от 20 °C, выполняют по формуле
, (5.2)
где Nоп.пред - значение предельной нагрузки на неподвижную опору при 20 °C (значение предельной нагрузки запрашивают у изготовителя СТД), Н;
σт(t) - предел текучести материала упорной плиты при соответствующей средней расчетной температуре, МПа;
σт(+20) - предел текучести материала упорной плиты при температуре 20 °C, МПа.
5.4.1.9 Среднюю температуру упорной плиты неподвижной опоры Tоп, °C, определяют как среднеарифметическое значение между температурой рабочей трубы и оболочки по формуле
Tоп = (Tтр + Tоб)/2, (5.3)
где Tтр - температура стенки рабочей трубы, °C (в теплоизолированных трубах допустимо принимать по температуре транспортируемой жидкости);
Tоб - температура защитной оболочки, °C (в теплоизолированных трубах допускается принимать по температуре окружающего воздуха или грунта).
5.4.1.10 У трубопроводов, проложенных в грунте, при температуре транспортируемой среды от 0 °C до 20 °C температуру оболочки допускается принимать равной температуре грунта на оси трубопровода. При других температурах транспортируемой среды выполняют расчет температурных полей грунта.
5.4.1.11 У теплоизолированных трубопроводов надземной прокладки, при температуре воздуха более 0 °C, температуру оболочки из стали Tср.об, °C, принимают с учетом ее нагрева солнечными лучами по формуле
Tср.об = tв + 20, (5.4)
где tв - абсолютная максимальная температура воздуха теплого периода года по СП 131.13330, °C.
Дополнительный нагрев оболочки из стали солнечными лучами определяют с применением других методик - с учетом широты расположения региона строительства.
Суммарную нагрузку на неподвижную опору и стенку рабочей трубы рассчитывают как сумму векторов сил в рабочей трубе и металлической оболочке.
5.4.1.12 Вид изолиний на номограмме (рисунок 5.10) показывает, что в наибольшей степени характер кривых (угол их наклона) меняется в "характерных" температурных точках: минус 40 °C; минус 20 °C; 0 °C; плюс 20 °C; плюс 40 °C. Это свидетельствует о сложной нелинейной зависимости релаксационного модуля от температуры. Поэтому, при наличии нескольких "характерных" температурных точек на расчетном интервале, рекомендуется разбивать его на промежуточные расчетные температурные участки, ограниченные соседними "характерными" точками, и рассчитывать среднее значение релаксационного модуля 
 при среднем значении температуры tср.i для каждого участка.
5.4.1.13 Тогда, средневзвешенное значение E(τ,t), МПа, на всем интервале релаксации, может быть определено по формуле
, (5.5)
где 
 - среднее значение релаксационного модуля на первом участке интервала релаксации, МПа;
 - среднее значение релаксационного модуля на i-м участке интервала релаксации, МПа;
Δt1 - разность температур на первом участке релаксации, °C;
Δti - разность температур на i-м участке релаксации, °C;
Δtинт - разность температур на интервале релаксации, °C.
Примечание - Следует избегать расчетов с четырьмя и более "характерными" температурными точками (более чем с тремя участками), не принимать слишком большой продолжительность расчетных временных интервалов релаксации (максимально до 2200 ч, т.е. примерно 3 мес), выполнять расчеты только для случаев монотонного сезонного изменения температурного тренда (только на понижение или только на повышение).
5.4.1.14 Термоупругая продольная сила Nпр.тр.I, Н, возникающая в стенке рабочей трубы при изменении температуры трубы на первом (или начальном) интервале релаксации τI, действует на концевые неподвижные опоры защемленных участков ППИТ. Она пропорциональна значению средневзвешенного релаксационного модуля Eтр(τ,t) и ее определяют по формуле
Nпр.трI = Eтр(τ,t)I·αтр(τ)I·Δtтр.I·Fтр, (5.6)
где Eтр(τ,t)I - средневзвешенное значение релаксационного модуля трубы на интервале релаксации τI, МПа;
αтр(τ)I - коэффициент линейного температурного расширения материала рабочей трубы в конце первого (или начального) интервала релаксации, °C-1;
Δtтр.I - перепад температуры рабочей трубы на интервале релаксации, °C;
Fтр - площадь сечения рабочей трубы, мм2.
Дополнительную температурную нагрузку от полиэтиленовой оболочки Nпр.об.I, Н, при изменении ее температуры на первом интервале релаксации τI, определяют по формуле
Nпр.обI = Eоб(τ,t)I·αоб.I·Δtоб.I·Fоб, (5.6а)
где Eоб(τ,t)I - значение релаксационного модуля на интервале релаксации τI, МПа;
Fоб - площадь сечения оболочки, мм2;
αоб.I - коэффициент линейного температурного расширения материала оболочки в конце временного интервала релаксации τI, °C-1;
Δtоб.I - перепад температуры оболочки на интервале релаксации τI, °C.
В спиральношовной стальной оболочке релаксация нагрузок/напряжений незначительна, поэтому дополнительную температурную нагрузку от стальной оболочки при изменении ее температуры на первом временном интервале Nпр.ст.об.I, Н, определяют, используя неизменяющийся модуль упругости, по формуле
Nпр.ст.обI = Eст.об.·αст.об.I·Δtст.об.I·Fст.об., (5.6б)
где Eст.об. - значение модуля упругости на растяжение (при понижении температуры воздуха) или на сжатие (при повышении температуры воздуха), принимаемое по данным предприятия - изготовителя ППИТ, МПа;
αст.об.I - коэффициент линейного температурного расширения стальной оболочки, °C-1;
Δtст.об.I - перепад температуры стальной оболочки на интервале релаксации τI, °C;
Fст.об. - площадь сечения стальной оболочки, мм2.
В теории упругости принято считать, что продольные нагрузки и напряжения при повышении температуры имеют отрицательное значение, а при понижении температуры - положительное. Соответственно в формулах (5.6), (5.6а), (5.6б) произведение имеет положительное значение при понижении температуры и отрицательное при повышении.
Результирующая нагрузка на концевые неподвижные опоры от температурных нагрузок рабочей трубы и оболочки в конце первого интервала релаксации Nпр.I, Н, составляет
Nпр.I = Nпр.тр.I ± Nпр.об.I. (5.6в)
Результирующая нагрузка должна быть меньше предельной нагрузки на неподвижную опору, определяемой по формуле (5.2)
Nпр.I 
Зависимость коэффициента линейного теплового расширения ПЭ 100 от температуры отображена на рисунке 5.12.

Рисунок 5.12 - Зависимость коэффициента линейного теплового расширения ПЭ 100 от температуры
5.4.1.15 Расчет напряжения в рабочей трубе σпр.тр.I, МПа, в момент завершения первого интервала времени релаксации и выполняют по формуле
σпр.тр.I = Nпр.I/Fтр. (5.7)
Соответственно, напряжение в оболочке σпр.об.I, МПа, в момент завершения первого интервала времени релаксации τI составит
σпр.об.I = Nпр.I/Fоб. (5.8)
Расчет напряжений в полимерной оболочке выполняют для оценки значения продольного температурного напряжения (допустимое значение - не более 50% предела текучести материала, при соответствующей температуре), только для самых неблагоприятных случаев температурного нагружения. Расчет напряжений в стальной спиральношовной оболочке не выполняют.
5.4.1.16 Для расчета нагрузок и напряжений на втором и последующих временных интервалах релаксации предшествующая продольная нагрузка (на интервале τI) от трубы и оболочки на неподвижную опору алгебраически суммируют с аналогичной нагрузкой в момент завершения очередного (второго τII и последующих) интервала(-ов) релаксации. Суммарную нагрузку Nпр.II, Н, от трубы и оболочки на неподвижную опору в конце второго интервала релаксации определяют по формуле
Nпр.II = Nпр.I ± (Nпр.тр.II ± Nпр.об.II), (5.9)
где Nпр.I - результирующая продольная нагрузка в трубе в конце предшествующего интервала релаксации, Н;
Nпр.тр.II - температурная нагрузка от рабочей трубы в момент завершения второго интервала релаксации, Н;
Nпр.об.II - дополнительная температурная нагрузка от оболочки в момент завершения второго интервала релаксации, Н.
Текущее продольное напряжение в стенке трубы σпр.тр.II, МПа, в конце второго интервала релаксации τII в сумме с предшествующим значением на первом интервале релаксации τI может быть рассчитано по уравнению
σпр.тр.II = Nпр.II/Fтр. (5.9а)
Соответственно, текущее продольное напряжение в оболочке σпр.об.II, МПа, в конце второго интервала релаксации τII в сумме с предшествующим значением τI может быть рассчитано по уравнению
σпр.об.II = Nпр.II/Fоб. (5.10)
Различия в скоростях релаксации продольных напряжений в ПЭ трубах при кольцевых напряжениях, обусловленных рабочим давлением [формула (5.10б)], или при их отсутствии с течением времени нивелируют, поэтому при расчете сезонных температурных нагрузок влияние величины кольцевых напряжений в стенке рабочей трубы на скорость релаксации, как правило, не учитывают.
Для расчетов принимают значения для наиболее неблагоприятных случаев температурной нагрузки, но следует избегать расчетов с четырьмя и более "характерными" температурными точками (т.е. более чем с тремя участками на интервале релаксации), не принимать слишком большую продолжительность расчетных временных интервалов релаксации (оптимально до 2200 ч, т.е. примерно 3 мес), выполнять расчеты только для случаев монотонного сезонного изменения температурного тренда (только на понижение или только на повышение).
Для надземных трубопроводов влияние суточного (и краткосрочного) хода температур учитывают только на заключительном участке расчетного интервала релаксации (в последние сутки). Это обусловлено тем, что влияние суточного (и краткосрочного) хода температур (на понижение или повышение) на скорость сезонной релаксации с течением времени также нивелируется, т.к. после окончания каждого похолодания наступает потепление.
Допустимое начальное (кратковременное) напряжение в стенках опорожненной рабочей ПЭ трубы, а также в ПЭ оболочке к концу каждого из интервалов релаксации не должно превышать 50% значения предела текучести данной марки ПЭ, при соответствующей температуре
σпр.тр.об.(t) ≤ 0,5·σт(t). (5.10а)
5.4.1.17 Максимально рабочее давление воды в трубопроводе, МПа, рассчитывают по формуле
, (5.10б)
где C - коэффициент запаса прочности, равный 1,25 для воды;
MOP - максимальное рабочее давление в трубопроводе, МПа;
MRS - минимальная длительная прочность, МПа;
Ct - коэффициент снижения максимального рабочего давления в зависимости от температуры транспортируемой среды [ГОСТ 18599-2001 (таблица А.1)];
γn1; γn2; γn3 - коэффициенты надежности по давлению, принимают в зависимости от класса ответственности водопровода (5.4.1.23 и 5.4.1.24);
γn - коэффициент надежности сварных соединений. Для косых швов с углом не более 7,5° коэффициент надежности соединений принимают, как для прямых швов, равным 1,0 (таблица 5.4).
|  
         Вид нагрузки  |   
         Характеристика нагрузки  |   
         Коэффициент надежности по нагрузке γ  | 
|  
         Постоянные  |   
         Собственный вес трубопровода, арматуры и элементов γq  |   
         1,1 (1,0)  | 
|  
         Вес и давление грунта (засыпки насыпи) γm  |   
         1,2 (0,8)  | |
|  
         Деформация и давление грунта засыпки γg  |   
         1,0  | |
|  
         Концентрация давления грунта γkg  |   
         1,0  | |
|  
         Начальное напряжение трубопровода (упругий, изгиб по заданному профилю) γi  |   
         1,0  | |
|  
         Гидростатическое давление воды γgν  |   
         1,0  | |
|  
         Выталкивающее давление воды γw  |   
         1,0 (1,05 - 1,1)  | |
|  
         Внутреннее давление транспортируемой среды γp  |   
         1,0  | |
|  
         Вес транспортируемой среды γpc  |   
         1,1 (1,0)  | |
|  
         Температурный перепад стенок трубопровода γt  |   
         1,0  | |
|  
         Нагрузки от давления на поверхности земли (дорожной одежды, снежного покрова и т.п.) γν  |   
         1,4  | |
|  
         Нагрузки от веса балластирующих устройств γb  |   
         0,85 - 0,95  | |
|  
         Временные  |   
         Нагрузки от давления гусеничного транспорта γtg  |   
         1,1  | 
|  
         Нагрузки от воздействия снега, ветра, льда γs  |   
         1,4  | |
|  
         Нагрузки от давления колесного транспорта γtk  |   
         1,4  | |
|  
         Сейсмические воздействия γc  |   
         1,0  | |
|  
         Неравномерные деформации грунта, сопровождающиеся изменением его структуры (селевые потоки и оползни, деформации земной поверхности в районах горных выработок и карстовых районах, деформации просадочных грунтов при замачивании или вечномерзлых при оттаивании и т.п.) γz  |   
         1,1  | |
|  
         Специальные коэффициенты  |   
         Надежность сварных соединений γn:  |  |
|  
         - при сварке деталями с ЗН или прямых швов нагретым инструментом встык;  |   
         1,0  | |
|  
         - для косых швов в сварных отводах, тройниках;  |   
         1,25  | |
|  
         - для ручной экструзионной сварки;  |   
         4  | |
|  
         - для переходов "полиэтилен-сталь", предназначенных для систем водоснабжения  |   
         1,0  | |
|  
         Соответственно, коэффициенты по внутреннему давлению от степени ответственности участка трубопровода:  |  ||
|  
         γn1  |   
         0,9  | |
|  
         γn2  |   
         0,95  | |
|  
         γn3  |   
         1,0  | |
|  
         Коэффициенты релаксации продольных напряжений:  |  ||
|  
         - от давления γпр.p  |   
         1,0 - 0,25  | |
|  
         - от изменения температуры γпр.t  | ||
|  
         - от внешних силовых воздействий γпр.s  | ||
|  
         Примечание - Значения коэффициентов, указанные в скобках, принимают при расчете на устойчивость против всплытия.  | ||
5.4.1.18 Величину кольцевого (тангенциального) напряжения σк, МПа, обусловленного давлением Pраб, МПа, в полиэтиленовой рабочей трубе, определяют по формуле
σк = Рраб·(SDR – 1)/2. (5.10в)
Максимальное длительное кольцевое напряжение σк и, соответственно, принимаемое ему равным (ввиду изотропных свойств полиэтилена и результатов опытов с плоским и объемным нагружением) длительное продольное напряжение σпр составляют для рабочей трубы из ПЭ 100:
σк = σпр = Рраб·(SDR – 1)/2 = 1,6·10/2 = 8,0 МПа. (5.10г)
5.4.1.19 Величина максимального рабочего давления, рассчитанного по формуле (5.10б), является предварительной. Для трубопроводных систем окончательные значения рабочего давления (и соответствующего SDR) ППИТ и СТД могут быть приняты только после выполнения гидравлического расчета. Для подземных трубопроводов дополнительно выполняют расчет овализации труб под воздействием поперечных нагрузок по показателям номинальной кольцевой жесткости труб. В зонах с особыми условиями прокладки дополнительно учитывают возможные силовые воздействия (просадка, пучение грунта и т.д.), в зонах повышенной сейсмической активности дополнительно учитывают сейсмические воздействия.
Рабочее давление не должно превышать значение максимального рабочего давления. Напряжения в стенке трубы во всех перечисленных выше режимах работы должны быть не более допустимых значений.
5.4.1.20 Расчет суммы действующих продольных нагрузок рекомендуется выполнять для наихудшего варианта сочетания нагрузок с положительным знаком (для температурных нагрузок - при понижении температуры), когда направления векторов всех действующих продольных напряжений/нагрузок (в том числе от внешних воздействий) имеют положительное направление. Тогда результирующий вектор напряжений и результирующая продольная нагрузка Nпр, Н, на растяжение, действующая на сварные швы и неподвижные опоры, может быть рассчитана по уравнению
Nпр = Nпр.р + Nпр.t + Nпр.t.об + Nпр.изг + Nпр.оу + Nпр.с, (5.10д)
где Nпр.р - продольная нагрузка, обусловленная внутренним давлением в рабочей трубе, Н;
Nпр.t - продольная температурная нагрузка от рабочей трубы, Н;
Nпр.t.об - продольная температурная нагрузка от оболочки, Н;
Nпр.изг - продольная нагрузка, обусловленная упругим изгибом трубы в процессе монтажа, Н;
Nпр.оу - продольная нагрузка, обусловленная особыми условиями прокладки, Н;
Nпр.с - продольная нагрузка, обусловленная сейсмическим воздействием, Н.
Соответственно, уравнение баланса продольных напряжений σпр, МПа, для наиболее неблагоприятного случая сочетания продольных растягивающих напряжений может быть записано в виде
σпр = σпр.р + σпр.t + σпр.t.об + σпр.изг + σпр.оу + σпр.с, (5.10е)
где σпр.р - напряжение, обусловленное внутренним давлением в рабочей трубе, МПа;
σпр.t - напряжение, обусловленное температурной нагрузкой рабочей трубы, МПа;
σпр.t.об - напряжение в рабочей трубе, обусловленное температурной нагрузкой от оболочки, МПа;
σпр.изг - напряжение в рабочей трубе, обусловленное упругим изгибом трубы в процессе монтажа, МПа;
σпр.оу - напряжение, обусловленное особыми условиями прокладки, МПа;
σпр.с - напряжение, обусловленное сейсмическим воздействием, МПа.
Если результаты проверочных статических расчетов на всех этапах и во всех режимах работы подтверждают, что напряжения в полиэтиленовой рабочей трубе не превышают предельно допустимых значений напряжения в элементах силовых конструкций неподвижных опор, а также в полиэтиленовой оболочке, не превышают допустимых значений, в том числе с учетом особых условий прокладки и сейсмических условий, степень овализации трубы под воздействием грунтовой, транспортной нагрузки (и балластировки) не превышает величины 5%, выполняется условие (5.35), то значение SDR выбрано правильно. Тогда срок эксплуатации предварительно изолированного трубопровода составит не менее 50 лет.
5.4.1.21 Для надземных трубопроводов влияние суточного (и краткосрочного) хода температур учитывают только на заключительном участке расчетного интервала релаксации. Это обусловлено тем, что влияние суточного (и краткосрочного) хода температур (на понижение или повышение) на скорость сезонной релаксации с течением времени нивелируется, т.к. после окончания каждого похолодания наступает потепление.
5.4.1.22 Прогнозный расчет наиболее высокой сезонной продольной температурной нагрузки на неподвижные опоры (а также наиболее высоких напряжений в ПЭ трубе) рекомендуется выполнять исходя из климатических условий строительства.
Температуру ПЭ трубы с момента аварийного отключения системы электрического обогрева понижают до значения Tпэ.кон, °C, которое рекомендуется принимать равным
Tпэ.кон = Tmin + 5, (5.11)
где Tmin - абсолютная минимальная температура (для трубопроводов диаметром ПЭ рабочей трубы 110 мм и менее) или температура наиболее холодной пятидневки с обеспеченностью 0,92 (для трубопроводов диаметром ПЭ рабочей трубы более 110 мм) для региона строительства, °C (по значениям в СП 131.13330).
5.4.1.23 При расчетах поперечных нагрузок и овализации труб и соединительных деталей трубопроводов водоснабжения рекомендуется учитывать коэффициенты надежности, представленные в таблице 5.4.
5.4.1.24 В обоснованных случаях принимают следующие значения коэффициентов надежности γn по давлению трубопроводов из ППИТ подземной бесканальной прокладки в зависимости от класса ответственности трубопровода или его участка:
1 класс γn1 = 0,9;
2 класс γn2 = 0,95;
3 класс γn3 = 1,0.
5.4.1.25 При выполнении статических расчетов сезонные допустимые значения кольцевых и продольных напряжений в рабочей трубе, принимают в зависимости от температуры транспортируемой воды, с учетом значения коэффициента снижения давления или принимают значение пропорционально изменению модуля текучести (для конечной температуры на расчетном интервале) по графику на рисунке 5.11.
5.4.1.26 Величину продольного напряжения от воздействия внутреннего давления определяют по уравнению
, (5.12)
где μ - коэффициент Пуассона;
σк - кольцевое напряжение под воздействием внутреннего давления, МПа;
γэфф.р - эффективный коэффициент релаксации продольных напряжений в стенке рабочей трубы, обусловленный внутренним давлением, принимают равным γэфф.р = 0,25.
5.4.1.27 Величину продольной нагрузки Nпр.р от воздействия внутреннего давления определяют по уравнению
, (5.13)
где F - площадь сечения стенки трубы, м2.
5.4.1.28 Значение эффективного коэффициента релаксации продольных нагрузок, обусловленных воздействием внутреннего давления, принимают равным γэфф.р = 0,25.
5.4.1.29 В период гидравлических испытаний защемленной трубы величину дополнительного продольного растягивающего напряжения σпр.г.и и для участка закрепленной по концам трубы рассчитывают по уравнению
, (5.14)
где ΔРг.и = (Рг.и –Р) - разность между давлением при гидравлических испытаниях Pг.и, МПа, и рабочим давлением P, МПа;
γэфф.г.и - эффективный коэффициент релаксации продольных напряжений в стенке рабочей трубы, обусловленный внутренним давлением, рекомендуется принимать γэфф.г.и = 0,5.
5.4.1.30 При гидравлическом ударе в защемленной трубе, в период воздействия положительной волны давления, значение дополнительного продольного напряжения в стенке трубы σпр.г.у определяют по уравнению
, (5.15)
где ΔРг.у = (Рг.у –Р) - разность между давлением при гидравлическом ударе Pг.у, МПа, рабочим давлением P, МПа;
γэфф.г.у - эффективный коэффициент релаксации продольных напряжений в стенке рабочей трубы, обусловленный внутренним давлением, рекомендуется принимать γэфф.г.у = 1,0.
Примечание - Расчет нагрузок на неподвижные опоры при гидравлическом ударе допускается не выполнять, если проектом предусматривают мероприятия по исключению возможности его возникновения или минимизации его последствий.
5.4.1.31 Предельное кратковременное внешнее давление (вакуум), которое может выдержать труба из ПЭ, рассчитывают по формуле
рвн = 2·E(τ,t)/(SDR)3, (5.16)
где pвн - внешнее избыточное давление (при полном вакууме pвн = 0,1 МПа);
E(τ,t) - релаксационный модуль, принимают в зависимости от температуры стенок трубы по верхней кривой на рисунке 5.10 для условий кратковременного воздействия, МПа.
5.4.1.32 У труб с ППУ теплоизоляцией принимают температуру стенки рабочей трубы равной температуре транспортируемой среды.
5.4.1.33 При проектировании напорных трубопроводов из ППИТ не рекомендуется задавать значение скорости воды более 3,0 м/с.
5.4.1.34 При выполнении расчетов на прочность элементов, не нагруженных внутренним давлением (например, при расчете нагрузок на упорные элементы неподвижных опор опорожненного в аварийной ситуации при экстремально низкой температуре зимой трубопровода), допустимое относительное продольное изменение линейных размеров принимают не более 1,5%.
5.4.1.35 Допускаемое начальное продольное напряжение σпр, при допустимой величине деформации εд, составляет
, (5.17)
где E(τ=1c) - начальное значение релаксационного модуля, при 20 °C;
εд - допустимая относительная линейная деформация, %;
γn - коэффициент надежности, принимают по таблице 5.4.
5.4.1.36 При расчете прочности сварных конструкций из ПЭ, выполненных ручной экструзионной сваркой, рекомендуется принимать четырехкратный запас прочности [коэффициент надежности по нагрузке γn = 4 (см. таблицу 5.4)] от величины предельно допустимых продольных напряжений σпр.
5.4.1.37 Для жестких ППУ допускаемые линейные напряжения растяжения-сжатия составляют:
- при кратковременном действии нагрузки σппу.кр = 0,3 МПа;
- при длительном действии нагрузки σппу.дл = 0,15 МПа.
При оценке воздействий длительных продольных и поперечных температурных нагрузок на слой ППУ теплоизоляции, например, в теплоизолированных отводах с углами не выше значений, приведенных в таблице 5.2, защемленных в мерзлом грунте, следует принимать значение при длительном действии нагрузки.
Для полужестких ППУ допускаемые линейные напряжения принимают по данным изготовителей ППИТ.
5.4.1.38 Модуль упругости на сжатие для жестких ППУ с кажущейся плотностью 60 - 70 кг/м3, при 20 °C, рекомендуется принимать равным 21 МПа, а значение коэффициента линейного теплового расширения α = 5,0·10-5 °C-1.
5.4.1.39 Напорные полимерные предварительно изолированные трубы и безнапорные полимерные предварительно изолированные трубы с зафиксированными стыками допускается эксплуатировать при подземной, наземной и надземной прокладках в режиме релаксационной самокомпенсации - без применения компенсаторов.
5.4.1.40 Трубы со спиралешовной оболочкой из стали применяют как в режиме радиальной компенсации, так и в режиме релаксационной самокомпенсации (на участках жесткого защемления концов неподвижными опорами).
Для изготовления ТППИ использование непрофилированных стальных оболочек не допускается. Высота выпуклого профиля (профилей) на стальной оболочке должна составлять не менее 2,3 - 2,5 толщины ее стенки. Это позволяет увеличить несущую способность ТППИ, уменьшить величину деформации спиральных замков и продольную температурную нагрузку от стальной оболочки.
5.4.1.41 При проектировании трубопроводов подземной прокладки в сезонно промерзающих и многолетнемерзлых грунтах расчет нагрузок и напряжений выполняется для режима релаксационной самокомпенсации (за исключением канальной прокладки без засыпки грунтом).
5.4.1.42 В регионах с высокой сейсмической активностью принимают дополнительные меры для повышения устойчивости. Для трубопроводов напорных и безнапорных надземной прокладки (с оболочкой из стали) не рекомендуется учитывать свойство релаксационной самокомпенсации в зонах с сейсмической активностью более 6 баллов, а в трубопроводах подземной прокладки - более 8 баллов.
5.4.1.43 Расчет времени охлаждения труб, в зависимости от конкретных условий строительства, может быть выполнен проектными организациями, по соответствующим методикам. Эти расчеты могут быть также выполнены техническими специалистами предприятий-изготовителей. В таблице 5.5 приведены расчетные значения интервалов охлаждения некоторых типоразмеров труб.
|  
         Типоразмер  |   
         Температура воздуха Tв, ч  | ||
|  
         минус 20 °C  |   
         минус 40 °C  |   
         минус 60 °C  | |
|  
         Время охлаждения наполненной трубы на воздухе от 5 °C до 0 °C при скорости ветра 5 м/с, ч  | |||
|  
         63/160  |   
         3,6  |   
         1,7  |   
         1,1  | 
|  
         110/200  |   
         6,8  |   
         3,3  |   
         2,0  | 
|  
         225/315  |   
         21  |   
         9,7  |   
         5,7  | 
|  
         500/710  |   
         76,9  |   
         33,9  |   
         19,0  | 
|  
         Время охлаждения опорожненной трубы от 0 °C до T = Tв + 5 °C, при скорости ветра 5 м/с, ч  | |||
|  
         63/160  |   
         4,1  |   
         6,1  |   
         7,3  | 
|  
         110/200  |   
         7,2  |   
         10,8  |   
         12,9  | 
|  
         225/315  |   
         21,9  |   
         32,9  |   
         39,0  | 
|  
         500/710  |   
         82,5  |   
         129,7  |   
         147,8  | 
|  
         Среднемесячная температура воздуха (грунт 1 м над осью трубы)  | |||
|  
         Алдан, Саха  |   
         -4,5  |   
         -15,5  |   
         -24,3  | 
|  
         Время охлаждения наполненной водой трубы в грунте на глубине 1 м от 5 °C до 0 °C, ч  | |||
|  
         63/160  |   
         11,6  |   
         10,8  |   
         11,1  | 
|  
         110/200  |   
         22,5  |   
         21,1  |   
         26,1  | 
|  
         225/315  |   
         70,0  |   
         68,0  |   
         85,0  | 
|  
         Время охлаждения опорожненной трубы от 0 °C до расчетной температуры грунта T, на глубине 1 м, при среднемесячной температуре воздуха, ч  | |||
|  
         Алдан, Саха  |   
         -4,5  |   
         -15,5  |   
         -24,3  | 
|  
         63/160  |   
         23,5  |   
         22,0  |   
         22,8  | 
|  
         110/200  |   
         30,0  |   
         30,0  |   
         29,3  | 
|  
         225/315  |   
         83,0  |   
         84,0  |   
         81,0  | 
|  
         Примечание - Время охлаждения для других типоразмеров труб рассчитывают методом интерполяции.  | |||
5.4.1.44 Расчет параметров (нагрузки, напряжения и удлинения) надземных трубопроводов с защитной оболочкой из полимерных материалов (в зонах, защищенных от прямых солнечных лучей, в т.ч. в проветриваемых каналах) выполняют для максимального интервала изменения температуры в процессе эксплуатации (например, летний монтаж и аварийный слив зимой с отключением обогрева), при котором возникают максимальные нагрузки на конструкции. Расчет интервала изменения температуры выполняют для холодного и теплого периода года зоны применения трубопровода.
Расчет параметров (нагрузки на траверсы, напряжения и удлинения) надземных трубопроводов с защитной оболочкой из стали выполняют для максимального интервала изменения температуры в процессе эксплуатации (например, летний монтаж и аварийное опорожнение зимой с отключением обогрева).
Температуры холодного (абсолютно минимальная) и теплого периодов года (температура монтажа) для расчета интервала принимают по СП 131.13330.
5.4.1.45 При выполнении статических прочностных расчетов, а также теплотехнических расчетов температуру окружающего воздуха принимают для надземных трубопроводов с диаметром рабочей трубы до 110 мм включительно, равной абсолютной минимальной для холодного периода года, а для трубопроводов с диаметром рабочей трубы более 110 мм - равной температуре наиболее холодной пятидневки, с вероятностью 0,92 по СП 131.13330. При подземной прокладке трубопроводов температуру окружающего воздуха принимают равной средней температуре самого холодного месяца по СП 131.13330.
5.4.1.46 Максимальное продольное напряжение при упругом изгибе в различных слоях (стенках) ППИТ можно оценить по формуле
, (5.18)
где E(t) - модуль упругости рассчитываемого слоя ППИТ на растяжение при соответствующей температуре t, МПа.
r - радиус соответствующего слоя ППИТ, м;
R - радиус изгиба рабочей трубы, м;
εa - деформация рассчитываемого слоя ППИТ, %.
Для определения напряжений применима схема изгиба трубы на рисунке 5.13.

Рисунок 5.13 - Схема изгиба трубы
5.4.1.47 Максимальный радиус изгиба труб с полимерной оболочкой определяют исходя из допустимой величины долговременной деформации наименее прочного слоя трубы - теплоизолирующей трубы из ППУ теплоизоляции. При этом напряжение в слое ППУ не должно превышать значения его прочности, при максимально допустимой линейной деформации на сжатие, при ε ≤ 3%. Для жесткого ППУ значение предельно допустимого долговременного напряжения на сжатие составляет σппу = 0,15 МПа.
5.4.1.48 В трубопроводах, работающих в режиме релаксационной самокомпенсации, для исключения возможного отклонения трубопровода от прямой, при балочном способе прокладки необходимо применять направляющие опоры.
5.4.1.49 Нагрузки на неподвижные опоры надземных балочных систем трубопроводов принимают равными сумме усилий, передающихся от примыкающих участков трубопровода, если эти усилия направлены в одну сторону, и разности усилий - если эти усилия направлены в разные стороны. В последнем случае, меньшую из нагрузок принимают с коэффициентом, равным 0,8.
Возникающее от воздействия температуры и внутреннего давления радиальное усилие, действующее на направляющую опору, принимают по расчету на устойчивость, но не менее 0,01 величины максимального эквивалентного продольного усилия Nпр в трубопроводе.
5.4.1.50 Прокладка труб на подвесках без выполнения расчетов на статическую и динамическую устойчивость и на величины температурных удлинений не допускается.
5.4.1.51 Для статических расчетов на прочность и устойчивость трубопроводов надземной прокладки температурные условия окружающей среды принимаются для конкретных условий прокладки по СП 131.13330, при этом, на заключительном расчетном участке, при расчете температурных нагрузок в опорожненном при аварийной ситуации трубопроводе, следует дополнительно учитывать воздействие резких перепадов температур наружного воздуха (суточный ход температур). Амплитуду суточного хода рекомендуется рассчитывать как разность между средней и экстремально низкой температурами для данного месяца (по СП 131.13330).
5.4.1.52 Допустимость прокладки изолированного трубопровода в конкретных условиях строительства обосновывают проверочным расчетом на величину полного давления грунта на оболочку (с учетом давления от массы грунта, выталкивающей силы грунтовых вод, локальных нагрузок от балластировки, транспортной нагрузки, степени овализации трубы) и т.д.
Допустимость прокладки изолированного трубопровода в конкретных условиях строительства оценивают по критериальному уравнению
Рэкв ≤ σппу ≤ 0,15 МПа, (5.19)
где Pэкв - полное эквивалентное давление на оболочку, кН/м2, вызванное суммой поперечных нагрузок;
σппу = 0,15 МПа - допустимое длительное напряжение на сжатие жесткой ППУ теплоизоляции.
Овализация сечения трубопровода под воздействием суммы поперечных нагрузок не должна превышать 5%.
5.4.1.53 Полная эквивалентная нагрузка на оболочку Qэкв, кН/м, определяется по формуле
Qэкв = ξ·∑βi·Qi, (5.20)
где Qi - составляющие полной эквивалентной нагрузки, кН/м;
ξ - коэффициент распределения нагрузки и опорной реакции, принимаемый равным:
1,3 - при укладке на плоское основание;
1,2 - при укладке на спрофилированное основание;
βi - коэффициенты приведения нагрузок, принимаемые равными:
- для нагрузок от давления грунта:
β1 = 0,75 - при укладке на плоское основание;
β1 = 0,55 - при укладке на спрофилированное основание с углом охвата 70°;
β1 = 0,50 - при угле охвата 90°;
β1 = 0,45 - при угле охвата 120°;
- для нагрузок от веса трубопровода:
β 2 = 0,75 - при укладке на плоское основание;
β 2 = 0,35 - при укладке на спрофилированное основание с углом охвата 70°;
β 2 = 0,30 - при угле охвата 90°;
β 2 = 0,25 - при угле охвата 120°;
- для нагрузок от выталкивающей силы воды, равномерно распределенной нагрузки на поверхности земли и от подвижных транспортных средств значения коэффициентов βi принимаются: β3 = β4 = β5 = 1.
5.4.1.54 Расчетное внешнее радиальное давление на трубопровод Pw, кН/м2, приравниваемое к гидростатическому, определяют по формуле
Pw = γgν·ρw·Hw, (5.21)
где ρw - удельный вес грунтовых вод с учетом растворенных в ней солей, принимаемый по данным инженерных изысканий, обычно в пределах 10,2 - 10,4 кН/м3;
Hw - высота уровня грунтовых вод над верхом изоляции трубы, м;
γgν - коэффициент надежности по давлению грунтовых вод.
При прокладке на необводненных участках Pw принимают равным нулю.
5.4.1.55 Расчетную вертикальную нагрузку на единицу длины трубопровода от давления грунта определяют по формуле
, (5.22)
где γm - коэффициент надежности по весу и давлению грунта;
γg - коэффициент надежности по деформации грунта засыпки;
Bтр - ширина траншеи на уровне верха трубы, м;
qm - нормативная равномерно распределенная нагрузка от давления грунта, кН/м, определяемая по формуле
qm = ρm·De·H, (5.23)
где ρm - плотность грунта засыпки, кН/м3;
De - наружный диаметр защитной оболочки трубы, м;
H - глубина заложения от верха трубы, м;
Kгр - коэффициент вертикального давления грунта засыпки, принимают по данным таблицы 5.6.
|  
         Глубина заложения трубы, м  |   
         Коэффициент Kгр при категории грунта засыпки  | |
|  
         Пески, супеси, суглинки твердые  |   
         Суглинки пластичные, глины твердые  | |
|  
         0,5  |   
         0,82  |   
         0,85  | 
|  
         1,0  |   
         0,75  |   
         0,78  | 
|  
         2,0  |   
         0,67  |   
         0,7  | 
|  
         3,0  |   
         0,55  |   
         0,58  | 
|  
         4,0  |   
         0,49  |   
         0,52  | 
|  
         5,0  |   
         0,43  |   
         0,46  | 
|  
         Примечание - При расчете нагрузок на трубу наземной прокладки (под трапецией из грунта) в уравнении (5.34) значение Bтр принимают равным 3D.  | ||
5.4.1.56 Расчетную нагрузку от собственного веса заполненного транспортируемой средой трубопровода определяют по формуле
Qq = γq·qq + ρв·π·L(d – 2s)2/4, (5.24)
где γq - коэффициент надежности по весу трубы;
qq - вес одного погонного метра трубы, кН/м, по каталогу;
ρв - вес транспортируемой среды, кН/м3;
d - наружный диаметр напорной трубы, м;
s - номинальная толщина стенки напорной трубы, м;
L - длина трубопровода, м.
5.4.1.57 Расчетная нагрузка на оболочку от выталкивающей силы грунтовых вод определяется по формуле
Qw = γw·qw, (5.25)
где γw - коэффициент надежности по нагрузке от выталкивающей силы воды, принимаемый по таблице 5.4;
qw - нормативная равномерно распределенная нагрузка от выталкивающей силы воды, кН/м
qw = ρw·π·De2/4, (5.26)
где De - наружный диаметр защитной оболочки трубы, м.
5.4.1.58 Расчетная нагрузка от равномерно распределенной нагрузки на поверхности грунта
Qν = γν·γkg·qν·De, (5.27)
где γν - коэффициент надежности по нагрузке от дорожной одежды;
γkg - коэффициент надежности по концентрации давления грунта, принимаемый по таблице 5.4;
qv - нормативная нагрузка от равномерно распределенной нагрузки, кН/м2, принимаемая при отсутствии специальных требований 5 кН/м2.
При регулярном движении транспорта используют кривые Н-18 (для автомобильного транспорта) или НГ-60 (для гусеничного транспорта).
5.4.1.59 Расчетную нагрузку на оболочку трубопровода от транспорта определяют по формуле
Qt = γtg(tk)·qt·De, (5.28)
где γtg(tk) - коэффициент надежности по нагрузке от транспорта;
qt - нормативная равномерно распределенная нагрузка от транспорта, кН/м2, передаваемая на трубопровод через грунт, определяемая в зависимости от глубины прокладки трубопровода, Н.
При учете нагрузки от транспорта расчетную нагрузку от равномерно распределенной нагрузки на поверхности грунта Qv не учитывают.
5.4.1.60 Полная погонная эквивалентная нагрузка Q на оболочку трубы с учетом транспортной нагрузки составляет
Q = ξ·(∑βI·Qi) = ξ·( βI·Qm + β2·Qq + β3·Qw + β5·Qt). (5.29)
Полное эквивалентное давление, кН/м2, на оболочку трубы составляет:
, (5.30)
где De - диаметр оболочки трубопровода, м;
Pw - расчетное внешнее гидростатическое давление, кН/м2.
5.4.1.61 Расчет транспортных (временных) нагрузок на подземные трубопроводы на автомобильных и железных дорогах выполняют с учетом требований СП 399.1325800. Схему нагружения колесного транспорта АК или НК определяет проектировщик в зависимости от вида транспорта по ГОСТ 32960.
5.4.1.62 Нагрузку на оболочку трубы от транспорта в проверочных расчетах учитывают, поскольку в период строительства засыпку и уплотнение грунта осуществляют механизированным способом.
5.4.1.63 Дополнительно учитывают локальные нагрузки (например, нагрузки от давления балластирующих устройств на оболочку трубы).
5.4.1.64 Критическая величина деформации (овализации) оболочки НППИТ и трубы - более 5%.
5.4.1.65 Величину относительной овализации труб рассчитывают по уравнению
, (5.31)
где Pэкв - эквивалентное давление на трубу, МПа;
Gн - номинальная кольцевая жесткость ППИТ, кН/м2;
E's - секущий модуль грунта, МПа.
5.4.1.66 Для насыпного грунта, песка и гравия в таблицах 5.7 и 5.8 приведены минимальные значения секущего модуля грунта E's, которые рекомендуется использовать при определении овализации по уравнению (5.31), а также диапазоны значений E's с учетом характеристик грунта и степени его уплотнения.
|  
         Глубина засыпки, м  |   
         Значения секущего модуля грунта E's, МПа  | ||
|  
         Неуплотненного  |   
         Уплотненного вручную  |   
         Уплотненного механически  | |
|  
         1  |   
         0,5  |   
         1,2  |   
         1,5  | 
|  
         2  |   
         0,5  |   
         1,3  |   
         1,8  | 
|  
         3  |   
         0,6  |   
         1,5  |   
         2,1  | 
|  
         4  |   
         0,7  |   
         1,7  |   
         2,4  | 
|  
         Тип грунта  |   
         Значения секущего модуля грунта E's, МПа  | |
|  
         Неуплотненный грунт  |   
         Уплотненный под контролем грунт  | |
|  
         Песок крупный и средней крупности  |   
         0,7  |   
         2,0 - 5,0  | 
|  
         Мелкий песок  |   
         0,6  |   
         1,2 - 3,0  | 
|  
         Супеси и суглинки  |   
         0,5  |   
         1,0 - 2,5  | 
|  
         Плывун, глина  |   
         0,3  |   
         0,6  | 
5.4.2.1 При надземной прокладке трубопроводов, а также при подземной прокладке в промерзающих, многолетнемерзлых или подвижных грунтах, в зонах с сейсмичностью свыше 6 баллов, применяют только неподвижные соединения (рисунок 5.14).

Рисунок 5.14 - Схема действия нагрузок на растяжение/сжатие на участке без стыка
5.4.2.2 Расчет температурных деформаций, нагрузок, напряжений и овализации в безнапорных трубопроводах, в т.ч. с профилированными стенками, выполняют по аналогии с напорными (гладкими) трубами (5.4.1), при этом следует учитывать ряд отличий. Основные отличия заключаются в отсутствии учета нагрузок и напряжений, обусловленных воздействием внутреннего давления. Толщину стенки трубы с профилированными стенками принимают по сумме толщин внутреннего слоя и гофры (в зонах их прилегания). Влияние жесткости гофр в продольном направлении не учитывают, ввиду их малой величины, соответственно, не учитывают их влияние на продольные нагрузки и напряжения в трубе.
5.4.2.3 Значения коэффициентов надежности для подземных безнапорных трубопроводов принимают по таблице 5.9.
|  
         Вид нагрузки  |   
         Характеристика нагрузки  |   
         Коэффициент надежности по нагрузке γ  | 
|  
         Постоянные  |   
         Собственный вес трубопровода и элементов обустройства γq  |   
         1,1 (1,0)  | 
|  
         Вес и давление грунта (засыпки насыпи) γm  |   
         1,2 (0,8)  | |
|  
         Деформация и давление грунта засыпки γg  |   
         1,1  | |
|  
         Концентрация давления грунта γkg  |   
         1,1  | |
|  
         Выталкивающее давление воды γw  |   
         1,0 (1,05 - 1,1)  | |
|  
         Вес транспортируемой среды γpc  |   
         1,1 (1,0)  | |
|  
         Температурный перепад стенок трубопровода γt  |   
         1,2  | |
|  
         Нагрузки от давления на поверхности земли (дорожной одежды, снежного покрова и т.п.) γν  |   
         1,4  | |
|  
         Нагрузки от веса балластирующих устройств γb  |   
         0,85 - 0,95  | |
|  
         Нагрузки от давления гусеничного транспорта γtg  |   
         1,1  | |
|  
         Нагрузки от давления колесного транспорта γtk  |   
         1,4  | |
|  
         Сейсмические воздействия γс  |   
         1,0  | |
|  
         Временные  |   
         Неравномерные деформации грунта, изменение его структуры (селевые потоки и оползни, деформации земной поверхности в районах горных выработок и карстовых районах, деформации просадочных грунтов при замачивании или вечномерзлых при оттаивании и т.п.) γz  |   
         1,0  | 
|  
         Эффективный коэффициент релаксации γτ  |   
         0,25 - 1,0  | |
|  
         Примечание - Значения, указанные в скобках, принимают при расчете трубопровода на устойчивость против всплытия.  | ||
5.4.3.1 Расчет на прочность и устойчивость трубопровода в особых условиях прокладки проводят с учетом силового, деформационного, при необходимости и сейсмического воздействий. При расчетах на прочность и устойчивость трубопроводов из ППИТ срок службы принимают равным 50 годам.
К силовым воздействиям относятся внутреннее давление транспортируемой среды, вес заполненного изолированного трубопровода, сооружений на нем, давление грунта и другие внешние воздействия (нагрузка от людей, снега, транспорта и т.д.), гидростатическое давление, выталкивающая сила грунтовой воды, нагрузки, возникающие при укладке и испытаниях.
К деформационным воздействиям относятся температурные воздействия, воздействия предварительного напряжения трубопровода (упругий изгиб), неравномерные воздействия от деформации грунта (просадка, осадка, набухание, пучение, деформация земной поверхности в районах горных выработок, распространения карста, в вечномерзлых грунтах и т.д.).
К сейсмическим воздействиям относятся нагрузки, определяемые в предположении упругого деформирования изолированного трубопровода от колебаний земной поверхности.
Расчет на прочность трубопроводов из ППИТ проводят с учетом силовых и деформационных продольных нагрузок, а при необходимости и продольных сейсмических воздействий.
Продольные напряжения:
σпр.р - продольные температурные напряжения, возникающие в результате воздействия внутреннего давления транспортируемой среды на стенки напорной трубы, МПа;
σпр.t - продольные температурные напряжения, возникающие в результате изменения температуры стенок напорной трубы, МПа;
σпр.r - продольные деформационные (фибровые) напряжения на участках упругого изгиба трубопровода радиусом r, МПа;
σпр.оу - продольные деформационные напряжения при прокладке в особых условиях, обусловленные воздействием вертикальных деформаций грунта (просадка, осадка земной поверхности в районах горных выработок, распространения карста и т.д.), МПа;
σпр.с - продольные напряжения, возникшие в результате воздействия сейсмической волны, МПа.
Сумма всех продольных длительных напряжений должна быть не более предельно допустимого длительного напряжения σпр с учетом коэффициента надежности γn (таблица 5.4).
5.4.3.2 Для того, чтобы теплоизолированный трубопровод выдержал без сокращения рабочего ресурса (не менее 50 лет) сумму продольных напряжений, необходимо обеспечивать "запас прочности" за счет ограничений величины допускаемых напряжений в различных режимах работы. Эти ограничения задают с помощью критериальных уравнений (5.32) - (5.35).
Если участок трубопровода защемлен между неподвижными опорами, то в рабочей трубе ППИТ и СТД возникают продольные напряжения, обусловленные внутренним давлением [уравнение (5.10в)] среды σпр.р, величина которых, по модулю, должна быть не более значения, установленного критериальным уравнением
σпр.р = |γэфф.р·σк·μ·γр| ≤ 0,2·σпр, (5.32)
где μ = 0,43 - коэффициент Пуассона для полиэтиленовой трубы;
γэфф.р = 0,25 - эффективный коэффициент релаксации напряжений, обусловленных внутренним давлением среды;
γp - коэффициент надежности по нагрузке, принимают по таблице 5.4;
σк - кольцевое (тангенциальное) рабочее напряжение в стенке напорной трубы, МПа.
5.4.3.3 Суммарное значение продольного напряжения от воздействия внутреннего давления и температурного напряжения растяжения/сжатия [уравнение (5.7)], взятых по модулю, должно быть не более значения, установленного критериальным уравнением
σпр.р + σпр.t = |γэфф.р·σк·μ + α(t)·E(τ,t)·Δt| ≤ 0,5·σпр, (5.33)
где γэфф.р = 0,25 - эффективный коэффициент релаксации напряжений, обусловленных внутренним давлением среды;
E(τ,t) - средневзвешенное значение релаксационного модуля полиэтилена, МПа, определяемое по выражению (5.5);
α(t) - коэффициент линейного теплового расширения полиэтилена, °C-1, принимают по графику на рисунке 5.12.
5.4.3.4 Дополнительно, при прокладке напорных теплоизолированных трубопроводов на отдельных участках методом упругого изгиба (в вертикальной или горизонтальной плоскостях) при наличии особых условий прокладки σпр.оу, определяют результирующее значение продольных напряжений, которое должно быть не более
σпр.р + σпр.t + σпр.r + σпр.оу = |γэфф.р·σк·μ·γр + α(t)·E(τ,t)·Δt| + E(τ,t)·r/R·γi + σпр.оу·γz ≤ 0,8·σпр, (5.34)
где Δt - расчетный перепад температур в материале труб, °C;
γi - коэффициент релаксации напряжений, рассчитывают с учетом температурно-временных факторов, по номограммам на рисунке 5.10;
σпр.оу - дополнительные напряжения в рабочей трубе, МПа, обусловленные его прокладкой в особых грунтовых условиях (пучинистых, просадочных, набухающих грунтах и т.п.);
r - радиус рабочей трубы, м;
R - радиус изгиба трубы, м;
γz - коэффициент надежности неравномерных деформаций грунта (таблица 5.4).
Значение σпр.оу принимают на основании эмпирических данных, приведенных ниже. Так в пучинистых грунтах при глубине промерзания от 1 до 4 м в расчетах изолированных трубопроводов на прочность учитывают соответствующие этим глубинам дополнительные напряжения в трубах в пределах:
- для среднепучинистых 0,3 - 0,7 МПа;
- для сильнопучинистых 0,4 - 0,9 МПа;
- для чрезмернопучинистых 0,5 - 1,0 МПа.
Для средненабухающих грунтов и грунтов II типа просадочности значения σпр.оу принимают равными 0,6 МПа, для сильнонабухающих грунтов и на подрабатываемых территориях - 0,8 МПа.
В слабопучинистых - слабонабухающих грунтах и грунтах I типа просадочности, а также при прокладке трубопровода в просадочных, пучинистых и набухающих грунтах, где невозможно замачивание просадочных и набухающих грунтов, δпр.оу принимают равным нулю.
5.4.3.5 При прокладке изолированных трубопроводов на площадках сейсмичностью 7 и более баллов должны учитывать дополнительные напряжения, вероятность возникновения которых обусловлена последствиями воздействия сейсмических нагрузок σпр.с
σпр.р + σпр.t + σпр.r + σпр.оу + σпр.с·γс ≤ 1,0·σпр, (5.35)
где σпр.с - дополнительное продольное напряжение в трубопроводе, МПа, от воздействия сейсмической нагрузки;
γс - коэффициент надежности при сейсмических воздействиях (таблица 5.4).
5.4.3.6 Значения напряжений от воздействия сейсмических нагрузок на изолированный трубопровод σпр.с, прокладываемый в районах сейсмичностью 7 - 9 баллов, принимают по формуле
, (5.36)
где m0 - коэффициент защемления трубопроводов грунтом (таблица 5.10);
Vс - скорость распространения продольных сейсмических волн Vс, определяемая по таблице 5.10.
В формуле (5.36) учтен преобладающий период сейсмических колебаний грунтового массива T0, по аналогии с расчетом магистральных трубопроводов (согласно СП 36.13330). Значение T0 определяют при инженерных изысканиях.
Значения коэффициента сейсмических ускорений α0 принимают для районов сейсмичностью 7, 8, 9 и более 9 баллов равными 0,1 м/с2; 0,2 м/с2; 0,4 м/с2 и 0,8 м/с2 соответственно.
|  
         Тип грунта  |   
         Значение коэффициента m0  |   
         Скорость распространения сейсмических волн Vс, см/с  | 
|  
         Насыпные рыхлые пески, супеси, суглинки и другие грунты, кроме водонасыщенных  |   
         0,5  |   
         0,12·105  | 
|  
         Песчаные маловлажные  |   
         0,5  |   
         0,12·105  | 
|  
         Песчаные средней влажности  |   
         0,45  |   
         0,25·105  | 
|  
         Песчаные водонасыщенные  |   
         0,45  |   
         0,32·105  | 
|  
         Супеси и суглинки  |   
         0,6  |   
         0,30·105  | 
|  
         Глинистые полутвердые и твердые  |   
         0,7  |   
         2,00·105  | 
|  
         Скальные породы (монолиты)  |   
         Принимают по грунту засыпки  |   
         2,20·105  | 
|  
         Известняки, сланцы, песчаники (слабовыветрелые и сильновыветрелые)  |   
         1,50·105  | |
|  
         Лесс и лессовидные  |   
         0,5  |   
         0,40·105  | 
|  
         Торф  |   
         0,2  |   
         0,10·105  | 
|  
         Низкотемпературные мерзлые грунты (песчаные, глинистые, насыпные)  |   
         1,0  |   
         2,20·105  | 
|  
         Высокотемпературные мерзлые грунты (песчаные, глинистые, насыпные)  |   
         1,0  |   
         1,15·105  | 
6.1.1 Входной контроль ППИТ и СТД следует проводить в соответствии с требованиями СП 399.1325800.
6.1.2 При входном контроле следует проверять наличие маркировки, целостность и наличие дефектов на защитной оболочке и торцах изоляции, проходимость кабель-каналов (при наличии).
Допускают:
- следы от формующего и калибрующего инструментов на наружной поверхности трубы и углубления от маркирующего устройства, глубиной не более 0,5 мм;
- использование труб-оболочек, сваренных из нескольких отрезков;
- отдельные царапины на ПЭ оболочке, не превышающие 10% толщины оболочки;
- небольшую овальность;
- волнистость, неровности на гладкой внутренней поверхности труб БППИТ и СТД, не снижающие проходимость потока в трубопроводе;
- наличие буртиков внутри кабель-каналов ППИТ и СТД ввиду конструктивной особенности изделия при условии неуменьшения площади проходного сечения кабель-канала.
Оболочка должна быть герметичной. В случае обнаружения царапин, вмятин на поверхности оболочки, ее ремонтируют.
Не допускается наличие вмятин на крайних впадинах профилированных оболочек (в местах установки уплотняющих колец) на концах БППИТ и СТД.
6.1.3 Толщина слоя тепловой изоляции должна быть равномерной по всей длине ППИТ в пределах отклонений, приведенных в таблице 6.1. Не допускаются к применению трубы со сквозным повреждением оболочки при невозможности проведения ремонта этого места, вмятинами глубиной более 7% толщины теплоизоляции.
|  
         Номинальный наружный диаметр защитной оболочки, мм  |   
         Отклонение осевых линий, не более, мм  | 
|  
         От 125 до 315 включ.  |   
         10,0  | 
|  
         Св. 315 до 630 включ.  |   
         14,0  | 
|  
         Св. 630 до 1200 включ.  |   
         20,0  | 
Торцы теплоизоляции труб могут иметь гидроизоляционное покрытие.
Полимерные предварительно изолированные трубы и СТД с дефектами, для ремонта которых требуется наличие стационарного оборудования, используемого при изготовлении, следует отбраковывать.
Отклонение осевых линий внутренней трубы и оси защитной оболочки для ППИТ и СТД не должно превышать значений, указанных в таблице 6.1.
6.1.4 Процедуру входного контроля следует осуществлять с учетом требований изготовителя ППИТ.
6.1.5 Оформление документов о проведении входного контроля следует осуществлять в соответствии с ГОСТ 24297.
6.2.1 Транспортирование и хранение напорных ППИТ и соединительных деталей проводят в условиях 9 (ОЖ1) по ГОСТ 15150.
6.2.2 Транспортирование и хранение безнапорных ППИТ и соединительных деталей выполняют в соответствии с ГОСТ 15150-69 (раздел 10) в условиях 5 (ОЖ4 - навесы в макроклиматических районах с умеренным и холодным климатом). Допускается хранение в условиях 8 (ОЖ3 - открытые площадки в макроклиматических районах с умеренным и холодным климатом) сроком не более 12 месяцев.
6.2.3 Предварительно изолированные трубы и изделия перевозят любым видом транспорта в соответствии с правилами перевозки, размещения и крепления грузов, действующими на данном виде транспорта, а также ГОСТ 22235 на железнодорожном транспорте.
6.2.4 Подготовку труб к транспортированию проводят в соответствии с требованиями ГОСТ 26653. ППИТ транспортируют подготовленным автотранспортом с удлиненным прицепом, при этом свободные концы труб должны выступать за пределы кузова не более чем на 1 м.
6.2.5 При подготовке транспортного средства к перевозке предварительно изолированных труб автоперевозчиком должны быть предусмотрены меры, исключающие скатывание и перемещение труб в кузове автомобиля, при этом ППИТ должны фиксировать мягкими стяжными ремнями. Не допускается использование тросов, цепей или проволоки для крепления предварительно изолированных труб и соединительных деталей.
6.2.6 При отрицательных температурах стойкость тонкостенной защитной полиэтиленовой оболочки к воздействию динамических нагрузок снижается, поэтому работы следует проводить с соблюдением особых мер предосторожности. При погрузке-разгрузке труб с полиэтиленовой защитной оболочкой должна быть исключена возможность возникновения продольного изгиба радиусом менее 100 наружных диаметров рабочей трубы - при положительной температуре окружающей среды и менее 200 наружных диаметров - в условиях отрицательных температур.
6.2.7 Погрузку и разгрузку ППИТ производят автопогрузчиками или вручную. Погрузочно-разгрузочные работы предварительно изолированных труб следует проводить с использованием траверс и мягких полотенец или ленточных строп шириной 100 - 200 мм, располагаемых на одну треть длины труб от их торцов. Рекомендуемые нормы загрузки автотранспортных средств напорными предварительно изолированными трубами приведены в приложении Б.
6.2.8 Безнапорные ППИТ можно транспортировать с укладкой в ряды или в седло, а трубы разного диаметра - с укладкой друг в друга. Во избежание продольного перемещения, перекатывания или падения при движении трубы должны быть надежно закреплены. Изъятие телескопированных труб выполняют с помощью вспомогательных средств, которые исключают повреждение труб.
6.2.9 Запрещается сбрасывание и стягивание (скатывание) ППИТ и соединительных деталей с транспортного средства, а также их соударение или волочение по земле.
6.2.10 Полимерные предварительно изолированные трубы и соединительные детали хранят в постоянных или временных складских помещениях, или под навесами на ровных горизонтальных площадках, не подверженных затоплению водой, очищенных от камней и других посторонних предметов, которые могут привести к повреждению оболочки, при температуре окружающего воздуха от минус 70 °C до плюс 60 °C в условиях, исключающих их деформирование, длительное воздействие прямых солнечных лучей, масел и смазок и не ближе 1 м от нагревательных приборов.
6.2.11 Безнапорные полимерные предварительно изолированные трубы в штабелях хранят на ровных площадках, очищенных от камней и острых предметов. При хранении труб высота штабеля должна быть не более 3 м. Для предотвращения самопроизвольного раскатывания труб следует устанавливать боковые опоры.
6.2.12 Должны быть приняты меры по исключению попадания влаги на торцы теплоизоляции и/или внутрь кабель-каналов. Для предотвращения попадания влаги в трубы и кабель-каналы при хранении на открытом воздухе закрывают торцы труб и выводов кабель-каналов полиэтиленовыми заглушками или стрейч-пленкой.
6.2.13 Все комплектующие изделия, в том числе уплотнительные кольца, должны хранить поштучно в горизонтальном положении, в закрытом помещении, в контейнерах, исключающих прямое воздействие солнечных лучей и источников тепла. Необходимо исключать их контакт с маслами, растворителями и жирами, а также не подвергать воздействию нагрузок, приводящих к их деформации.
6.3.1 Соединение НППИТ осуществляют: сваркой рабочих труб и/или СТД нагретым инструментом встык или с помощью муфт и иных соединительных деталей с ЗН, гидроизоляцией стыка труб с ПЭ защитной оболочкой с помощью термоусаживаемых муфт, а труб с металлической оболочкой - с помощью разъемных металлических муфт с последующей изоляцией полученного соединения с применением ПУ компонентов.
6.3.2 Сварку нагретым инструментом встык или с помощью соединительных деталей с ЗН следует выполнять в соответствии с требованиями СП 399.1325800.
6.3.3 Для соединения НППИТ и СТД со стальными трубопроводами применяют полиэтиленовые втулки под фланец, стальные фланцы с полимерным покрытием или неразъемные соединения полимер-сталь.
6.3.4 Для соединения НППИТ не допускается применять компрессионные соединительные детали.
6.3.5 Сварку и последующую изоляцию мест соединений выполняют в траншее или над ней на лежнях, уложенных с шагом 2 - 3 м поперек траншеи.
6.3.6 В периоды неблагоприятных погодных условий (дождь, снег), а также при понижении температуры воздуха ниже 0 °C в месте выполнения сварочных работ устанавливают монтажную палатку (или прочие укрытия) и предусматривают ее обогрев.
6.3.7 Укладку в траншею плети из ППИТ производят после полного остывания теплоизоляции на последнем соединении.
6.3.8 При проведении сварочных работ свободные концы труб и кабель-каналов должны быть закрыты заглушками или обмотаны стрейч-пленкой.
6.3.9 При укладке и сварке обеспечивают правильную ориентацию кабель-каналов. Рекомендуется проведение фотофиксации этапов работ по монтажу стыков труб, с приобщением данных материалов к актам скрытых работ.
6.3.10 При выполнении работ по сварке деталями с ЗН применяют трубы, длина неизолированных концов которых соответствует указанным в таблицах 6.2 и 6.3.
|  
         Диаметр оболочки изолированных труб и соединительных деталей, мм  |   
         Длина неизолированного конца трубы от торца тепловой изоляции, мм  | 
|  
         До 355 включ.  |   
         150  | 
|  
         От 400 до 710 включ.  |   
         210  | 
|  
         От 800 до 1200 включ.  |   
         300  | 
|  
         Диаметр оболочки изолированных труб и соединительных деталей, мм  |   
         Длина неизолированного конца трубы от торца тепловой изоляции, мм  | 
|  
         До 180 включительно  |   
         150  | 
|  
         От 160 до 400 включ.  |   
         210  | 
|  
         От 355 до 800 включ.  |   
         250  | 
|  
         От 710 и более  |   
         По согласованию с заказчиком  | 
Примечание - Допустимое отклонение значения длины неизолированных концов труб не должно превышать ± 20 мм.
6.3.11 При невозможности соблюдения требований 6.3.10 следует производить прогрев труб в оборудованных обогреваемых укрытиях или выполнять обрезку оболочки и удаление части тепловой изоляции на торцах для того, чтобы обеспечивать необходимую длину участков труб, свободных от теплоизоляции.
6.3.12 Для уменьшения величины удлинений концевых участков труб и последующих нагрузок на неподвижные опоры производят сварочные работы в периоды минимального суточного и недельного хода температур, первый этап обратной засыпки трубопровода выполняют непосредственно в день проведения сварочных и укладочных работ.
6.3.13 Наружные гидроизолирующие ТУМ устанавливают на сварное соединение только после проведения гидравлических испытаний трубопроводов, за исключением соединений, непосредственно примыкающих к концевым неподвижным опорам, монтаж и гидроизоляцию которых выполняют в первоочередном порядке и в полном объеме. На этих участках проводят первоочередные локальные гидравлические испытания сварных стыков или применяют неподвижные опоры с увеличенной длиной плеч, обеспечивающей возможность установки ТУМ вне габаритов грунта засыпки неподвижной опоры.
6.3.14 Зимой сварку последних соединений выполняют при максимально высокой наружной температуре, летом - максимально низкой. Предпочтителен режим работы трубопровода, при котором сварные соединения работают в рабочем режиме преимущественно на сжатие (режим теплового удлинения труб). Для уменьшения сезонных продольных температурных нагрузок при замыкании крайних сварных соединений трубопроводов при надземной прокладке (на участках между неподвижными опорами без применения компенсаторов) придерживаются следующих значений температур проведения работ: в северных широтах - от минус 10 °C до 10 °C, в средней полосе и на юге - от 0 °C до 20 °C. Эти же температуры оптимальны для проведения работ по тепло- и гидроизоляции соединений.
На участках трубопровода с радиальными или осевыми компенсаторами температуру замыкания последнего стыка не регламентируют.
6.3.15 Допустимость выполнения работ по сварке последних соединений на расчетных участках надземных трубопроводов, работающих в режиме релаксационной самокомпенсации при температурах, отличных от приведенных в 6.3.14, должна быть обоснована проектом.
6.3.16 Работы по тепло- и гидроизоляции соединений выполняют только при обеспечении положительных значений среднеобъемных температур стенок труб, оболочек труб и соединительных деталей из полиэтилена и стали (прогрев на всю толщину), в зонах, прилегающих к месту сварки и термоусадки, а также соответственно, полиэтиленовых ТУМ и ТУЛ. Выполнение работ в зимний период должны производить в монтажных палатках и прочих укрытиях с обогревом.
6.3.17 Для обеспечения одновременного прогрева нескольких элементов трубопровода используют достаточное количество источников нагрева: тепловые пушки, саморегулирующиеся нагревательные кабели, промышленные фены, электрические маты или грелки (для нагрева пенополиуретановых компонентов) и т.д. Температура пенополиуретановых компонентов должна составлять, в момент их перемешивания, (20 ± 2) °C.
6.3.18 Монтаж предварительно изолированных трубопроводов должен выполнять персонал, прошедший обучение в компетентных организациях, допущенных в установленном порядке органами государственной власти или оператором трубопровода к организации учебных курсов с выдачей идентификационных карт по ГОСТ Р ИСО 12176-3.
6.4.1 Безнапорные полимерные предварительно изолированные трубы, имеющие в качестве рабочей трубы стандартную трубу с профилированной стенкой, изготовленную в соответствии с ГОСТ Р 54475, соединяют механическим способом с применением уплотнительных колец. Общая схема соединения представлена на рисунке 6.1.

1 - рабочая труба; 2 - ППУ; 3 - оболочка; 4 - внутренняя муфта; 5 - внешняя муфта (на оболочке); 6 - уплотнительные кольца; 7 - направление сопряжения
Рисунок 6.1 - Схема соединения безнапорных полимерных предварительно изолированных труб
Предварительно изолированные безнапорные трубы, имеющие в качестве рабочей трубы стандартную трубу, следует соединять способами, указанными в 6.3.
6.4.2 Сопрягаемые поверхности труб со структурированной стенкой, муфты и уплотнительные кольца при монтаже соединений должны быть предварительно очищены от загрязнений.
6.4.3 Уплотнительные кольца на патрубке на оболочках труб со структурированной стенкой тщательно центруют для недопущения "закусывания" язычка уплотнительного кольца между муфтой и профилированной поверхностью при сборке.
6.4.4 При значительном возрастании сил сопротивления в ходе сопряжения, следует проверять уплотнительное кольцо на "закусывание" язычка и, при необходимости, дополнительно наносить антифрикционную смазку.
6.4.5 Для выполнения работ по соединению БППИТ с профилированной стенкой и СТД применяют рычажные механизмы, а при соединении труб больших типоразмеров - ручные лебедки.
6.4.6 Объем работ и особенность их выполнения, перечень комплектующих и вспомогательных материалов, применяемых при монтаже стыковых соединений БППИТ, должны быть определены в инструкции по монтажу стыковых соединений, предоставляемой изготовителем ППИТ и СТД при поставке продукции на объект строительства.
6.4.7 Количество уплотнительных колец и их расположение на наружной поверхности рабочей трубы определяет изготовитель трубы, в зависимости от диаметра рабочей трубы.
Язычки уплотнительных колец должны быть установлены так, чтобы при сборке они изгибались и прижимались к поверхности кольца, но не изгибались и не ложились на выступы гофрированной поверхности.
В условиях отрицательных температур кольца устанавливают в монтажной обогреваемой палатке, при этом перед установкой кольца ее прогревают до 30 °C - 40 °C.
6.4.8 При осуществлении механического соединения безнапорных предварительно изолированных труб следует применять антифрикционные смазки, к которым материал труб и уплотнительных колец химически стоек. Применение смазок, содержащих нефтепродукты, не допускается.
6.4.9 Смазку наносят на сопрягаемые поверхности трения: на вершины гофр рабочей трубы и трубы-оболочки, внутренние поверхности муфт, "язычки" всех резиновых уплотнительных колец. На поверхности между гофрами труб и под резиновые уплотнительные кольца смазку не наносят, т.к. это может привести к нарушению устойчивости колец при сборке за счет уменьшения сил трения (защемления) между гофрами.
6.4.10 При прокладке трубопровода ниже уровня грунтовых вод, на заболоченных участках, на участках с сезонным оттаиванием водонасыщенных грунтов, в просадочных и пучинистых грунтах, в деятельном слое многолетнемерзлых грунтов, в регионах с высокой сейсмической опасностью, а также при надземной прокладке (в т.ч. при прокладке труб в проветриваемых каналах, лотках, без присыпки грунтом) наружную муфту дополнительно фиксируют и герметизируют по краям ТУМ или ТУЛ.
6.4.11 Работы по фиксации наружных муфт выполняют после успешного проведения приемочных гидравлических (пневматических) испытаний.
6.5.1 Прокладку сетей водоснабжения и водоотведения следует выполнять в соответствии с требованиями СП 45.13330, СП 48.13330, СП 399.1325800.
6.5.2 При прокладке используют только профилированное опирание труб на основание за счет создания в пазухах под трубами песчаной "подушки". В ППР должны предусматривать мероприятия по максимальному уплотнению (95% - 98%) и выравниванию песчаной постели.
6.5.3 С целью предотвращения повреждения тонкостенной полимерной оболочки ППИТ не допускается укладывать трубы с полимерной защитной оболочкой непосредственно на бетонные опоры или поверхности. На дне траншеи перед укладкой труб следует предусматривать постель из песка толщиной 100 - 150 мм (рисунок 6.2).

Рисунок 6.2 - Общая схема укладки трубопровода
6.5.4 При засыпке трубопроводов над верхом трубы обязательно устройство защитного слоя толщиной не менее 150 мм из песчаного или местного грунта, не содержащего твердых включений.
6.5.5 Засыпку следует выполнять песком или местным грунтом (просеянным на сите с ячейками 1 x 1 мм) при степени уплотнения слоев после трамбовки 94% - 98%. Песок или грунт, применяемый для обратной засыпки выше уровня вторичной засыпки, не должен содержать камней и других твердых включений или комков глины диаметром более 1 мм. Допускается наличие не более 8% комков глины диаметром 8 - 20 мм.
6.5.6 Уплотнять грунт слоев вторичной засыпки, включая защитный слой, следует ручной механической трамбовкой до достижения коэффициента уплотнения, установленного проектом. Уплотнение грунта в пазухах выполняют ручным инструментом, а слоев первичной засыпки между трубой и стенками траншеи - механизированным инструментом. Для уплотнения песка применяют проливку водой.
6.5.7 Соединения (стыки) трубопроводов оставляют не засыпанными до проведения предварительных испытаний на герметичность. Засыпку соединений и уплотнение грунта в приямках (после выполнения работ по теплоизоляции стыков) выполняют с использованием механических трамбовок.
6.5.8 Устранение несоосности концов ППИТ и СТД, изменение направления трубопровода, может быть выполнено упругим изгибом участка трубопровода с помощью лекала и стяжных ремней (рисунок 6.3).

1 - труба; 2 - лекало; 3 - стяжные ремни с храповым механизмом; 4 - временные ограничители
Рисунок 6.3 - Схема выполнения поворота методом упругого изгиба
6.5.9 Упругий изгиб участка трубопровода выполняют непосредственно в траншее, при этом минимальный радиус упругого изгиба трубопровода должен быть не менее 100 диаметров рабочей трубы при температуре окружающего воздуха выше 0 °C. Выполнять упругий изгиб при отрицательных температурах, без прогрева всех слоев трубы внешним источником тепла до температуры не менее 20 °C (например, разогрев участка трубы в монтажной палатке тепловой пушкой и нагревательной лентой), не допускается.
6.5.10 Лекало, применяемое при устройстве упругого изгиба, изготавливают из древесины или другого материала с гладкой поверхностью в зонах сопряжения с изгибаемой трубой.
6.5.11 Поперечный изгиб ППИТ по профилю лекала формируют ленточными стропами с храповыми механизмами натяжения, шириной 50 - 100 мм с интервалом между ними 1,5 - 2 м. Конструкцией лекала должно быть обеспечено равномерное распределение сил бокового отпора на оболочку трубы при ее изгибе.
6.5.12 Послойную засыпку и уплотнение грунта в зоне упругого изгиба (до уровня первичной засыпки) выполняют, не удаляя ограничители вдоль трубы. Только после надежной фиксации трубы в грунте временные ограничители перемещений удаляют.
6.5.13 Деревянные ограничители (колышки) забивают в грунт по обеим сторонам трубы и лекала с интервалом 1 - 1,5 м. Высоту ограничителей должны устанавливать исходя из возможности их извлечения после выполнения первичной засыпки трубы.
6.5.14 Для выполнения упругого изгиба лекала устанавливают так, чтобы выдерживалось расстояние не менее 1,0 м - для труб диаметром рабочей трубы до 110 мм и не менее 1,5 м - для труб диаметром более 110 мм от торца. Выполнение упругого изгиба на этих участках (в зонах стыков) не допускается.
6.5.15 Монтаж узлов в железобетонных колодцах выполняют одновременно с прокладкой трубопровода. Трубопроводы присоединяют к фланцам, запорной и регулирующей арматуре перед засыпкой трубопровода.
6.5.16 При прокладке труб в водонасыщенных грунтах со слабой водоотдачей предусматривают бетонное или втрамбованное в грунт щебеночное основание.
6.5.17 При прокладке труб в заболоченных, заиленных, заторфованных или просадочных грунтах должны быть приняты меры по обеспечению несущей способности грунтов не менее 0,1 МПа за счет замены грунтов, устройства эстакад и т.д.
6.5.18 Для скальных грунтов следует предусматривать выравнивание основания слоем песчаного грунта толщиной не менее 150 мм над выступами. Допускается использование для этих целей местного грунта (супесей и суглинков) при условии уплотнения его до объемного веса скелета грунта не менее 1,5 т/м3.
6.5.19 В илах, заторфованных и других слабых водонасыщенных грунтах трубы необходимо укладывать на песчаное основание по сплошному бетонному основанию.
6.5.20 Засыпка пазух траншей местным грунтом с неконтролируемой степенью уплотнения или при наличии твердых включений, а также уплотнение защитного слоя трамбовкой непосредственно над трубами не допускается.
6.5.21 Защитный слой над трубами не должен содержать твердых частиц, комков, а также твердых включений в виде щебня, камней и т.д.
6.5.22 На участках трубопроводов, где невозможно обеспечить требуемое качественное уплотнение местного грунта (суглинков, глин и т.п.) выполняют вторичную засыпку привозным песчаным грунтом на высоту не менее 150 мм над трубопроводом.
6.5.23 При наземной прокладке трубопроводов земляные насыпи должны выполнять с тщательным послойным уплотнением и поверхностным закреплением грунта.
6.5.24 При пересечении водотоков в теле насыпи должны быть предусмотрены водопропускные сооружения. Дно водопропускных сооружений и примыкающие к ним откосы насыпи укрепляют железобетонными плитами, камнем или одерновкой.
6.5.25 Возможность использования полиэтиленовых футляров при пересечении трубопроводом различных наземных сооружений обосновывают расчетом на прочность (овализацию), а также способом прокладки, например, горизонтальным направленным бурением.
6.5.26 С целью обеспечения сохранности поверхности полиэтиленовой оболочки при протаскивании теплоизолированной трубы через футляр (проходка методом ГНБ) используют трубы с усиленной полиэтиленовой оболочкой.
6.5.27 Защиту поверхности оболочки предусматривают при протяжке трубы в футляре, с помощью проходных опор. Способы защиты, в частности количество опор, расстояния между ними, определяют расчетом стрелы прогиба.
6.5.28 Если состояние внутренней поверхности футляра из полиэтиленовой трубы исключает возможность повреждения усиленной полиэтиленовой оболочки, то дополнительных мер по ее защите допускается не предусматривать.
6.5.29 Перед протяжкой основной плети труб выполняют пробную протяжку трубы длиной не менее 3 м.
Примечание - В обоснованных расчетом случаях протяжку теплоизолированного трубопровода без футляра осуществляют в мягких грунтах (песок, глина), не содержащих острых каменных включений (не окатанных обломочных пород). Для уменьшения сил трения канал заполняют буровым раствором, усилие протяжки не должно превышать 75% предела текучести полиэтилена (по сумме сечений трубы и оболочки) при данной температуре.
6.5.30 Если монтаж трубопровода ведут в холодное время года, принимают меры по защите дна траншеи от промерзания, чтобы под уложенным трубопроводом не осталось промерзшего твердого грунта. Не рекомендуется выполнять работы по укладке труб с полиэтиленовой защитной оболочкой при температуре окружающей среды ниже минус 20 °C.
6.5.31 Трубы с защитной оболочкой из стали укладывают по эстакаде при температуре наружного воздуха до минус 40 °C, при этом должны быть приняты меры по исключению ударных механических воздействий на концы труб, свободных от теплоизоляции.
6.5.32 В процессе укладки труб с проектным уклоном не допускается их продольное выравнивание методом приложения вертикальной силы.
6.5.33 Трубопровод следует укладывать на уплотненный выравнивающий слой на дне траншеи толщиной 100 - 150 мм. Этот насыпной слой не допускается укладывать на замерзшее дно траншеи. Если на дне траншеи имеется снег или лед, его удаляют непосредственно перед отсыпкой выравнивающего слоя из талого грунта.
6.5.34 Следует заполнять грунтом обе пазухи траншеи одновременно. Не рекомендуется сброс грунта непосредственно на трубопровод.
6.5.35 В процессе уплотнения грунта в защитных зонах нельзя допускать ударов уплотняющего оборудования о стенки оболочки труб. Для этого оборудование следует располагать от стенок трубы на расстоянии, равном толщине слоя грунта над трубопроводом. Уплотняющие механизмы не следует располагать по отношению к полимерному трубопроводу ближе, чем на половину его диаметра.
6.5.36 Для укладки труб в проектное положение насыпной выравнивающий слой мягкого грунта уплотняют механическим путем. Плотность естественного грунта на дне траншеи должна быть меньше плотности насыпного грунта в защитных зонах. В противном случае, дно траншеи перед укладкой труб следует несколько разрыхлить.
6.5.37 Перед уплотнением первого слоя грунта в защитных зонах необходимо убедиться в том, что трубопровод опирается на основание траншеи равномерно по всей длине и занимает проектное положение.
6.5.38 При уплотнении всегда следует стремиться к достижению однородной плотности грунта во всех зонах, за исключением зон непосредственно над трубой.
6.5.39 Обратную засыпку траншеи и уплотнение грунта механизированным способом непосредственно над трубопроводом проводят только в тех случаях, когда толщина слоя засыпки, уложенного над полимерными трубами вручную, не менее 300 мм. При уплотнении тяжелыми агрегатами (массой более 300 кг) толщина засыпки над трубопроводом должна быть не менее 750 мм.
6.5.40 Подбивку грунта вокруг труб необходимо производить равномерно, одновременно с обеих сторон, чтобы избежать сдвига трубопровода.
6.5.41 Допускается снятие креплений с боковых стенок траншей, если засыпаемый в траншею грунт сразу же уплотняется. При снятии крепления следует соблюдать особую осторожность для предотвращения обвала грунта в верхней части зоны и образования пустот под трубопроводом либо сбоку от него.
6.5.42 В непроходных каналах (в т.ч. проветриваемых) предпочтительнее прокладка труб с полимерной защитной оболочкой по слою (в слое) песка. Если выполнять прокладку по песку невозможно, то для предотвращения истирания оболочки (например, по бетону в лотке) применяют полиэтиленовые скользящие опоры с креплением их к защитной оболочке. Расстояние между скользящими опорами выбирают согласно таблице 6.4.
|  
         Наружный диаметр труб, мм  |   
         Расстояние между креплениями  | |||||||
|  
         На вертикальных участках  |   
         На горизонтальных участках  | |||||||
|  
         при перепаде температуры Δt  | ||||||||
|  
         20 °C  |   
         40 °C  |   
         20 °C  |   
         40 °C  | |||||
|  
         Тип труб  | ||||||||
|  
         SDR 21 - 26  |   
         SDR 9 - 17  |   
         SDR 21 - 26  |   
         SDR 9 - 17  |   
         SDR 21 - 26  |   
         SDR 9 - 17  |   
         SDR 21 - 26  |   
         SDR 9 - 17  | |
|  
         32  |   
         0,5  |   
         0,5  |   
         0.35  |   
         0,35  |   
         0,5  |   
         0,55  |   
         0,45  |   
         0,5  | 
|  
         40  |   
         0,65  |   
         0,6  |   
         0,45  |   
         0,4  |   
         0,6  |   
         0,6  |   
         0,55  |   
         0,55  | 
|  
         50  |   
         0,8  |   
         0,75  |   
         0,55  |   
         0,55  |   
         0,65  |   
         0,75  |   
         0,6  |   
         0,7  | 
|  
         63  |   
         1  |   
         0,95  |   
         0,7  |   
         0,65  |   
         0,7  |   
         0,85  |   
         0,75  |   
         0,8  | 
|  
         75  |   
         1,2  |   
         1,15  |   
         0,85  |   
         0,8  |   
         0,9  |   
         1  |   
         0,85  |   
         0,9  | 
|  
         90  |   
         1,4  |   
         1,35  |   
         1  |   
         0,95  |   
         1  |   
         1,1  |   
         0,95  |   
         1,05  | 
|  
         110  |   
         1,75  |   
         1,65  |   
         1,25  |   
         1,15  |   
         1,15  |   
         1,3  |   
         1,1  |   
         1,25  | 
|  
         125  |   
         2  |   
         1,9  |   
         1,4  |   
         1,35  |   
         1,25  |   
         1,4  |   
         1,2  |   
         1,35  | 
|  
         140  |   
         2,2  |   
         2,1  |   
         1,6  |   
         1,5  |   
         1,35  |   
         1,5  |   
         1,3  |   
         1,45  | 
|  
         160  |   
         2,5  |   
         2,4  |   
         1,8  |   
         1,7  |   
         1,5  |   
         1,65  |   
         1,45  |   
         1,6  | 
|  
         180  |   
         2,9  |   
         2,7  |   
         2  |   
         1,9  |   
         1,6  |   
         1,8  |   
         1,6  |   
         1,75  | 
|  
         200  |   
         3,2  |   
         3  |   
         2,25  |   
         2,15  |   
         1,75  |   
         1,95  |   
         1,7  |   
         1,9  | 
|  
         225  |   
         3,6  |   
         3,4  |   
         2,5  |   
         2,4  |   
         1,9  |   
         2,1  |   
         1,85  |   
         2,05  | 
|  
         250  |   
         4  |   
         3,8  |   
         2,8  |   
         2,65  |   
         2  |   
         2,25  |   
         2  |   
         2,2  | 
|  
         280  |   
         4,4  |   
         4,2  |   
         3,2  |   
         3  |   
         2,15  |   
         2,45  |   
         2,15  |   
         2,4  | 
|  
         315  |   
         5  |   
         4,7  |   
         3,5  |   
         3,4  |   
         2,35  |   
         2,6  |   
         2,35  |   
         2,6  | 
|  
         355  |   
         5,6  |   
         5,3  |   
         4  |   
         3,8  |   
         2,55  |   
         2,9  |   
         2,5  |   
         2,9  | 
|  
         400  |   
         6,4  |   
         6,01  |   
         4,5  |   
         4,3  |   
         2,75  |   
         3,1  |   
         2,75  |   
         3,1  | 
|  
         450  |   
         7,1  |   
         6,8  |   
         5  |   
         4,8  |   
         3  |   
         3,4  |   
         3  |   
         3,4  | 
|  
         500  |   
         8,2  |   
         7,5  |   
         5,6  |   
         5,35  |   
         3,5  |   
         3,6  |   
         3,2  |   
         3,7  | 
|  
         560  |   
         9,1  |   
         8,4  |   
         6,3  |   
         5,99  |   
         3,8  |   
         3,9  |   
         3,5  |   
         4,0  | 
|  
         630  |   
         10,2  |   
         9,5  |   
         7,1  |   
         6,7  |   
         4,3  |   
         4,3  |   
         3,8  |   
         4,4  | 
|  
         710  |   
         11,5  |   
         10,7  |   
         7,96  |   
         7,6  |   
         4,75  |   
         4,6  |   
         4,15  |   
         4,8  | 
|  
         800  |   
         12,9  |   
         12,0  |   
         8,97  |   
         8,6  |   
         5,3  |   
         5,03  |   
         4,5  |   
         5,2  | 
|  
         900  |   
         14,5  |   
         13,5  |   
         10,1  |   
         9,6  |   
         5,9  |   
         5,45  |   
         4,9  |   
         5,7  | 
|  
         1000  |   
         16,2  |   
         15,0  |   
         11,2  |   
         10,7  |   
         6,5  |   
         5,9  |   
         5,3  |   
         6,15  | 
|  
         Примечание - Расстояния между опорами принимают для напорных и безнапорных ППИТ с гладкой ПЭ оболочкой по диаметру рабочей трубы.  | ||||||||
6.5.43 Прокладку трубопроводов на эстакадах, в необогреваемых подвалах, проветриваемых подпольях и на чердаках, в проходных каналах и галереях выполняют трубами с оболочкой из стали. В местах выхода труб из каналов, грунта, при устройстве вводов через стеновые ограждения применяют комбинированную оболочку полиэтилен-сталь. Часть трубы с защитной оболочкой из стали на месте монтажа защищают ТУЛ или ТУМ (по длине соприкосновения с грунтом плюс 200 мм или по длине гильзы на вводе). Выход из грунта осуществляют с применением линейной неподвижной опоры и вертикального отвода или вертикальной угловой неподвижной опоры.
6.5.44 При переходе из бесканальной прокладки в надземную, оболочка из стали должна переходить в полиэтиленовую на расстоянии не менее 200 мм над землей, полиэтиленовая оболочка выше уровня грунта должна быть защищена от воздействия прямых солнечных лучей экраном (например, зонтом из стали). Для возможности проведения работ по изоляции стыков труба должна выходить за пределы футляра не менее чем на 500 мм. В случае попадания в футляр нескольких стыков ППИТ, испытания на герметичность протягиваемого в футляре участка трубопровода необходимо проводить до и после протяжки.
6.6.1 Если повреждение гофры на оболочке безнапорной трубы имеет небольшую площадь, то герметизацию зоны повреждения производят методом установки термоклеевой латки или ТУЛ.
6.6.2 Если площадь повреждения гофр на оболочке значительна, повреждение находится вне зоны установки наружной муфты, без сквозного повреждения ППУ теплоизоляции и рабочей трубы, то ремонт производят с применением термоусаживаемой ленты.
6.6.3 Перед установкой термоусаживаемой ленты поверхность поврежденной гофры очищают, выравнивают, зачищают и обезжиривают зону установки термоусаживаемой ленты. Термоусаживаемую ленту с клеевым подслоем нагревают промышленным феном или "мягким" пламенем газовой горелки, со стороны подслоя, до температуры плавления клея (он начинает блестеть и становится липким), затем, в один виток (с нахлестом не менее 100 мм), устанавливают, с небольшим натягом, ленту по окружности оболочки, с захватом не поврежденных смежных гофр.
6.6.4 Если гофра оболочки в зоне установки наружной муфты повреждена с нарушением геометрии или жесткости гофры, то после ремонта места повреждения (с помощью латки) соединение труб выполняют с последующей герметизацией места соединения термоусаживаемыми лентами (по краям наружной муфты).
В процессе термоусадки ленту прикатывают резиновым валиком. Не допускается даже кратковременное воздействие пламени газовой горелки на гофры вне зоны установки термоленты (или латки).
6.6.5 В случае, если повреждение гофр произошло у рабочей трубы на участке, свободном от теплоизоляции, и повреждение не удалось устранить вышеописанными методами, при этом не обеспечена герметичность соединения, то такую ППИТ или СТД признают негодной для дальнейшей эксплуатации.
6.6.6 При механическом повреждении оболочки трубопровода и ППУ теплоизоляции в грунте (без сквозного повреждения рабочей трубы) производят удаление поврежденного слоя ППУ теплоизоляции, при необходимости, восстановление теплоизоляции с применением монтажных пенопакетов или емкостей с ПУ компонентами. Подробное описание трех различных способов ремонта сквозных повреждений в трубах и соединительных деталях приведено в таблице 6.5.
|  
         Последовательность операций  |   
         Графическое отображение  | 
|  
         1 Вырезать поврежденный участок  |   
         
  | 
|  
         2 На один из концов трубы надвинуть ТУМ или ПЭ оболочку  |   
         
  | 
|  
         3 Сформировать патрубки на концах труб. При этом, с одной стороны длина очищенного патрубка должна быть равна длине муфты плюс одна гофра  |   
         
  | 
|  
         4 На длинный очищенный от ППУ патрубок устанавливают уплотнительное кольцо, затем муфту соответствующего диаметра, предварительно удалив в ней внутренний центрирующий ограничитель (буртик). На торцы наносят три слоя теплоизоляции гидроизолирующей мастикой  |   
         
  | 
|  
         5 Подготовить отрезок трубы необходимой длины с установленными на нем двумя уплотнительными кольцами и муфтой с удаленным на ней буртиком, установить на короткий патрубок уплотнительное кольцо  |   
         
  | 
|  
         6 Ввести отрезок трубы с муфтой с минимальными зазорами между концами трубы. Выполнить центровку обеих муфт на стыках  |   
         
  | 
|  
         7 Варианты гидроизоляции стыков  | |
|  
         7.1 С применением термоусаживаемой муфты и термоклея Термоклей (адгезивную ленту) оборачивают без нахлеста по окружности оболочек, затем производят центровку. Термоусадку ТУМ выполняют мягким пламенем газовой горелки. Затем в муфте сверлят 1 - 2 отверстия диаметром 25 мм, производят заливку ППУ компонентов, отверстия в муфтах герметизируют за счет вварки в них полиэтиленовых пробок  |   
         
  | 
|  
         7.2 С применением ПЭ оболочки и ручного сварочного экструдера - ручным сварочным экструдером производят обварку краев муфты на трубе. В муфте сверлят отверстия диаметром 25 мм, внутренний объем муфты заполняют пенополиуретановыми компонентами, после пневматических испытаний отверстия в муфтах герметизируют вваркой в них полиэтиленовых пробок  |   
         
  | 
|  
         7.3 С применением муфты из оцинкованного стального листа, термоклея (адгезивной ленты) и ТУЛ После нагрева газовой горелкой и посадки металлической муфты на адгезивные ленты (термоклей), выдержки для охлаждения, в муфте сверлят отверстия диаметром 25 мм. Внутренний объем муфты заполняют пенополиуретановыми компонентами, отверстия в муфтах герметизируют с помощью термоклея и латок  |   
         
  | 
|  
         8 Гидроизоляция муфты из оцинкованной стали После спиральной намотки термоусаживаемой ленты с нахлестом не менее 30 мм, производят термоусадку мягким пламенем газовой горелки  |   
         
  | 
При сквозном повреждении оболочки трубы выполняют герметизацию оболочки с использованием муфты из оцинкованной стали (по адгезивным лентам) с последующей гидроизоляцией муфты термоусаживаемой лентой.
6.6.7 Приведенные в таблице 6.5 способы ремонта труб не применяют для ремонта труб с кабель-каналами.
6.6.8 Ремонт труб с кабель-каналами проводят методом замены полного отрезка поврежденной трубы на трубную вставку, соответствующую 4.3 и 4.4 с применением необходимых переходов, учитывающих различия в конструкции ремонтируемой трубы и трубной вставки.
6.6.9 На участке трубопровода, имеющего сквозное повреждение защитной оболочки, выполнение ремонтных работ без снятия напряжения с нагревательной секции не допускается.
7.1.1 Для обогрева ППИТ преимущественно используют низкотемпературные саморегулирующиеся электрические нагревательные кабели (рисунок 7.1). Другие обогревающие кабели применяют по согласованию с поставщиком (изготовителем) трубных систем или разработчиками систем обогрева.

1 - медные луженые жилы; 2 – полупроводящая саморегулирующаяся матрица; 3 - изоляция из термопластичного эластомера; 4 - оплетка из медных луженых проволок; 5 - оболочка (в зависимости от исполнения)
Рисунок 7.1 - Конструкция саморегулирующегося нагревательного кабеля
7.1.2 Конструкцией корпусов соединительных (клеммных) коробок должна быть обеспечена защита от проникновения влаги и пыли IP66 и высокая коррозионная стойкость.
7.1.3 В системах управления электрообогревом для контроля температуры трубопровода применяют температурные датчики, позволяющие изменять диапазон автоматического поддержания температуры обогреваемого трубопровода в процессе его эксплуатации.
7.1.4 Исполнение и комплектация шкафа управления определяют проектом, разработанным проектной организацией, имеющей право выполнять данный вид работ.
Проект рекомендуется согласовать с предприятием - изготовителем труб.
7.1.5 Датчики температуры монтируют на трубопровод в заводских условиях и в условиях строительной площадки.
7.1.6 Для защиты от механического воздействия и от несанкционированного доступа соединительные коробки линий силового питания и управления размещают в устройствах механической защиты (коверах).
7.1.7 Конструкцией ковера предусматривают наличие запорного устройства, не позволяющего произвести открытие ковера без применения ключа.
7.1.8 Не допускается обогрев ПЭ трубопроводов без использования средств автоматического регулирования температуры.
7.1.9 Не рекомендуется эксплуатация обогреваемого трубопровода без дополнительного контроля температуры стенки трубопровода в зоне контакта с греющим кабелем (7.2.5) или температуры греющего кабеля.
7.1.10 В трубопроводах из ППИТ для размещения греющего кабеля используют направляющие элементы - кабель-каналы. Количество кабель-каналов определяют исходя из результатов теплотехнического расчета и линейной мощности греющего кабеля.
В напорных трубопроводах из ППИТ греющий(-е) кабель(-ли) должны размещать в нижней половине наружной поверхности рабочей трубы, что позволяет в режиме останова трубопровода обеспечивать минимальное значение вертикального градиента температуры транспортируемой среды.
В безнапорных трубопроводах из ППИТ греющий кабель размещают под лотком рабочей трубы.
Для улучшения условий теплопередачи принимают меры для уменьшения (или исключения) воздушной прослойки между нагревательным кабелем и стенкой кабель-канала, обращенной в сторону рабочей трубы.
7.2.1 При применении труб без системы электрического обогрева, учитывая случаи ее аварийного возможного отключения, следует определять критическую длину трубопровода, на которой температура транспортируемой жидкости понизится до 0 °C.
Критическую длину рассчитывают по формуле
Lкр = 1164·Q·tн/q, (7.1)
где Q - расход жидкости, м3/ч;
tн - температура жидкости в начале трубопровода, °C;
q - мощность тепловых потерь через теплоизоляцию и защитную оболочку на 1 пог. м трубы, Вт/м.
7.2.2 Время полного промерзания трубопровода τз, с, с учетом выделения теплоты водой в процессе кристаллизации, можно оценить по формуле
τз = λл·ρв·V/q, (7.2)
где λл = 3,35·105 Дж/кг - удельная теплота кристаллизации воды;
ρв - плотность воды, равная 1000 кг/м3;
V - емкость одного погонного метра трубопровода, м3;
q - удельная мощность тепловых потерь воды при среднеобъемной температуре воды 0 °C, Вт/м.
7.2.3 Средняя (по толщине) температура стенки рабочей трубы по линии нормали к нагревателю tср.н определяют выражением
tср.н = (tк + tвн)/2, (7.3)
где tк - расчетная температура в точке (на линии) контакта нагревателя с наружной поверхностью рабочей трубы по нормали к нагревателю, °C;
tвн - расчетная температура в точке (или по линии) пересечения с нормалью внутренней поверхности трубы, °C.
7.2.4 Мощность системы распределенного электрического обогрева рассчитывают исходя из мощности тепловых потерь с поверхности изолированного трубопровода в период минимальных значений температуры окружающей среды с учетом коэффициента запаса. Для саморегулирующихся нагревательных лент принимают коэффициент запаса kз, равный 1,2.
7.2.4.1 Расчет мощности тепловых потерь для подземных напорных трубопроводов из ППИТ производят по:
- минимальной температуре пятидневки обеспеченностью 0,92 при глубине прокладки трубопровода до 0,7 м - от поверхности грунта до защитной оболочки трубопровода;
- средней температуре самого холодного месяца при глубине прокладки трубопровода более 0,7 м.
7.2.5 Для недопущения перегрева стенки рабочей трубы в режиме останова трубопровода используют не менее двух датчиков температуры: первый - непосредственно на рабочей трубе, служит для регулирования температуры транспортируемой среды; второй - в качестве аварийного датчика перегрева, размещают в контактной зоне между саморегулирующейся нагревательной лентой и рабочей трубой.
7.2.6 Определение мест контроля температуры для управления работой системы электрического обогрева трубопровода следует выполнять согласно ГОСТ IEC 60079-30-2.
7.2.7 Для обеспечения наибольшей площади сопряжения поверхности греющего кабеля и внутренней стенки направляющего элемента рекомендуется выбирать плоский кабель-канал. Уменьшение воздушных прослоек между греющим кабелем и стенкой кабель-канала обеспечивают с помощью прижимной армированной упаковочной ПЭТ ленты (далее - полиэстеровой), которую затягивают в кабель-канал одновременно с греющим кабелем.
7.2.8 На протяженных более 1 км трубопроводах рекомендуется применять нагревательные кабели постоянной мощности, при этом 7.1.1 обязателен к исполнению.
Примечание - Перед наполнением протяженного трубопровода в условиях низких температур окружающей среды рекомендуется выполнять прогрев рабочей ПЭ трубы до положительных значений температуры подачей напряжения на нагревательные кабели.
7.2.9 Применение саморегулирующегося нагревательного кабеля без регулятора температуры не допускается, во избежание нагрева воды в трубе до 40 °C и выше.
7.2.10 Температурные датчики системы электрообогрева размещают в местах с наиболее напряженным тепловым режимом, обусловленным (в том числе с наиболее низким суммарным сопротивлением теплопередаче):
- наименьшим термическим сопротивлением грунта;
- наименьшей высотой грунта над верхом оболочки трубы на участке;
- предполагаемой минимальной толщиной снежного покрова на участке;
- наиболее высокой строительной отметкой на участке кольцевого трубопровода;
- расположением в верхней части вертикальных вводов в здания, спусков, отводов, вертикальных фасонных компенсаторов (переходов).
7.2.11 Не рекомендуется размещать термодатчики на элементах трубопровода, устанавливаемых в колодцах, камерах, под проезжей частью дорог, вблизи тротуаров, а также в местах с затрудненным доступом для обслуживания ковера, ремонта или замены термодатчиков.
7.2.12 Не допускается производить дополнительную теплоизоляцию трубопровода в месте установки термодатчиков.
7.2.13 Расчетную суммарную длину греющих кабелей и количество нагревательных секций складывают из общей протяженности обогреваемого трубопровода, расхода кабеля на обогрев участков со съемной теплоизоляцией (фланцев, стальной арматуры, пожарных гидрантов, сливных кранов и воздушных клапанов), а также монтажных участков ("горячих" концов греющего кабеля) до распределительных коробок. Длину греющих кабелей следует принимать с запасом в 2% - 3%.
7.2.14 Затяжку нагревательных кабелей производят после гидравлических испытаний трубопровода. Для снижения сил натяжения кабелей при затяжке греющих кабелей в кабель-каналы следует применять антифрикционные смазки. Варианты выполнения монтажных работ при затяжке кабелей для различных участков прокладки устанавливают проектом и ППР. Затяжку нагревательных лент на отдельных участках напорных трубопроводов выполняют в двух вариантах:
- А - затяжка нагревательных кабелей после выполнения работ по заделке стыков (после термоусадки гидроизолирующих муфт на оболочке и теплоизоляции стыков);
- Б - затяжка нагревательных кабелей до выполнения работ по заделке стыков на оболочке труб (или совмещение затяжки с монтажом участков трубопровода).
7.2.15 Затяжку нагревательного кабеля по варианту А применяют преимущественно на прямых участках трубопровода и осуществляют с помощью УЗК.
7.2.16 Проектом предусматривают установку элементов вывода обогревающих кабелей под теплоизоляцию через защитную оболочку, исходя из возможности протяжки греющих кабелей без приложения чрезмерных сил и оперативной замены нагревательных секций в процессе эксплуатации без выполнения работ по вскрытию промежуточных стыков и без остановки работы трубопровода.
7.2.17 Вариант Б применяют на участках трубопроводов со сложной конфигурацией. Не рекомендуется применение варианта Б на подземных трубопроводах без колодцев. При применении варианта Б, затяжку греющего кабеля выполняют последовательно на коротких участках от соединения до соединения (т.е. до установки наружных муфт).
7.2.17.1 При необходимости выполнения гидравлических испытаний в условиях отрицательных наружных температур, в проекте предусматривают затяжку греющих кабелей перед проведением гидравлических испытаний, но до выполнения работ по заделке соединений (до установки муфт на защитной оболочке). При этом, на стыках участков труб на период гидравлических испытаний, при необходимости, производят установку временной съемной теплоизоляции.
7.2.17.2 При монтаже нагревательного кабеля по варианту Б допускается изменять ориентацию кабель-каналов (вдоль трубы) на стыках ППИТ и СТД до ± 3 ч.
7.2.17.3 Затяжку греющих кабелей рекомендуется выполнять с применением прижимной ленты и антифрикционной силиконовой гель-смазки на водной основе. При необходимости замены неисправной нагревательной секции на участках подземного трубопровода с применением варианта затяжки Б, следует вскрыть грунт и несколько соединений.
7.2.17.4 Грунт вскрывают в местах расположения элементов вывода обогревающих кабелей (кроме случаев их расположения в колодцах), одновременно с извлечением греющего кабеля производится протяжка устройства затяжки кабелей.
Если усилие затяжки нового кабеля (вместо удаленного) становится избыточным, то наносят силиконовую антифрикционную смазку, разбирая один или несколько промежуточных стыков.
7.2.17.5 После выполнения ремонта на разобранных стыках трубопроводов надземной или подземной прокладки, устанавливают муфты из стали (ремонтные - взамен удаленных при демонтаже), с последующей теплоизоляцией стыков ПУ компонентами. На подземных трубопроводах дополнительно производят защиту от коррозии муфт из стали термоусаживаемой лентой на клеевой основе не менее чем в два слоя.
7.2.18 Для трубопроводов небольшой протяженности подача воды в охлажденный трубопровод может быть произведена на несколько минут раньше включения электрического обогрева. Это позволяет повысить температуру нагревательного кабеля перед подачей напряжения, что в свою очередь приводит к снижению стартового тока нагревательного кабеля при подаче электропитания.
7.2.19 Пусковая аппаратура системы обогрева наполненного водой трубопровода может быть рассчитана на стартовый ток включения системы обогрева для значения температуры не ниже значения, определяемого по выражению
tвкл. = |0,5·tос|, (7.4)
где tвкл. - расчетная температура включения нагревательной ленты, °C;
tос - минимальная температура окружающей среды <1>.
--------------------------------
<1> Рекомендуется принимать температуру грунта по справочникам или данным исследований.
7.2.20 Проектом системы управления электрообогревом должны быть предусмотрены мероприятия по уменьшению стартовых нагрузок (например, поэтапное включение нагревательных секций, применение устройств для плавного пуска).
7.2.21 Мощность тепловых потерь для надземных и наземных напорных трубопроводов из ППИТ рассчитывают по:
- абсолютной минимальной температуре наружного воздуха для рабочих труб диаметром до 110 мм;
- минимальной температуре пятидневки обеспеченностью 0,92 для рабочих труб диаметром более 110 мм.
7.2.22 Расчет мощности тепловых потерь для подземных напорных трубопроводов из ППИТ рекомендуется производить по:
- минимальной температуре пятидневки обеспеченностью 0,92 при глубине прокладки трубопровода до 0,7 м (от поверхности грунта до защитной оболочки трубопровода);
- средней температуре самого холодного месяца при глубине прокладки трубопровода более 0,7 м.
Примечания
1 Если расчетная температура включения ниже минус 25 °C, то уменьшают длину нагревательной секции или предусматривают применение пусковой аппаратуры с повышенным значением пусковых токов.
2 Если пусковую аппаратуру "выбивает" из-за повышенных значений пусковых токов, то включение производят периодической подачей напряжения на пониженном напряжении питания или производят замену пусковой аппаратуры, характеристики которой обеспечивают необходимые значения пусковых токов.
7.2.23 Выбор типа силового кабеля и способа прокладки выполняют в соответствии с [3]. Выбор сечения токопроводящих жил силового кабеля производится исходя из допустимости потерь напряжения в питающей линии не более 7% номинала.
7.2.24 Кабели на всем протяжении должны быть защищены от механических повреждений. На пересечении автомобильных и железных дорог, где проектом предусмотрено устройство защитного футляра трубопровода, укладку кабеля следует предусматривать в футлярах из труб (в т.ч. полимерных) на расстоянии не менее 0,5 м от оболочки трубопровода.
7.2.25 В качестве меры по защите кабеля от механических повреждений допускается использовать прокладку кабеля в предназначенной для этих целей защитной полимерной трубе.
Места выхода кабеля из защитной трубы и защитной трубы из футляра необходимо герметизировать с помощью термоусаживаемых уплотнителей кабельных проходов на клеевой основе или трубками холодной усадки.
7.2.26 Прокладку кабеля в траншее выполняют с засыпкой дренирующим грунтом (крупнозернистым песком или мелким гравием).
7.2.27 При прокладке трассы кабельной линии в незастроенной местности должны быть установлены опознавательные знаки на столбиках из бетона на поворотах и через каждые 100 м на прямых участках. Опознавательные знаки с табличками устанавливают в местах соединения деталей с выводами в грунт кабелей питания или управления.
7.2.28 Глубина прокладки контрольных кабелей (кабелей управления) должна соответствовать значениям для силовых электрических кабелей и их устанавливают согласно [3].
7.2.29 Кабели управления должны быть с экранирующей оплеткой, заземленной со стороны шкафа управления.
7.2.30 При прокладке контрольных кабелей в условиях вечной мерзлоты или в слое промерзающего грунта следует соблюдать требования 7.2.28.
7.2.31 Теплотехнический расчет самотечных ППИТ
7.2.31.1 Теплотехнический расчет самотечных ППИТ для режимов работы с минимальным наполнением в период минимального сброса стоков, при минимальных расчетных температурах окружающей среды, принимаемых в зависимости от условий прокладки трубопровода, следует выполнять для определения температуры лотка рабочей трубы с учетом влияния предшествующего режима работы тепловой инерции трубопровода.
7.2.31.2 Продолжительность указанного периода определяют исходя из назначения проектируемого объекта. Если отсутствуют данные по температуре стоков в холодный период, их значения принимают:
- для объектов с горячим водоснабжением - в дневное время не более 20 °C, в ночное время не более 10 °C;
- для объектов без горячего водоснабжения - в дневное время не более 15 °C, в ночное время не более 8 °C.
7.2.31.3 Объем стоков в ночной период принимают равномерным, для не более 50% проектной численности канализируемого населения или всего ночного персонала, из расчета 8 л/чел.
7.2.31.4 Если расчетная температура лотка в период минимальных расходов стоков имеет отрицательное значение, следует применять обогрев лотка рабочей трубы трубопровода.
7.3.1 Монтаж электрических систем обогрева должны производить в соответствии с [2], [3], проектно-сметной и рабочей документацией на систему обогрева, а также ППР.
7.3.2 Не допускается производить затяжку нагревательных кабелей с креплением троса протяжки только за токопроводящие жилы.
7.3.3 Заглушки, установленные в кабель-каналах для предотвращения попадания в них влаги, необходимо извлекать непосредственно перед протяжкой нагревательных кабелей.
7.3.4 Работы по протяжке нагревательного кабеля следует проводить при температуре не ниже минус 15 °C. При более низких температурах работы по монтажу ведут с прогревом - методом подключения питающего напряжения через разделительный трансформатор к нагревательным секциям.
До выполнения прогрева следует устанавливать на нагревательную секцию концевую заделку и присоединять силовой кабель. Продолжительность прогрева 3 - 5 мин. При прогреве не допускается применять разделительные трансформаторы напряжением выше 220 В.
7.3.5 Усилие протяжки должно быть не более значений, установленных изготовителями нагревательных кабелей. Уменьшение нагрузки на нагревательную ленту при протяжке достигается одновременным приложением усилий с тянущей и подающей стороны кабеля и применением антифрикционной силиконовой смазки. Если в процессе монтажа усилие протяжки превышает допустимое значение, необходимо вытянуть нагревательный кабель из кабель-канала и принять дополнительные меры по уменьшению усилия протяжки.
7.3.6 Для уменьшения усилия протяжки используют возможность доступа к нагревательному кабелю на соединениях кабель-каналов на стыках ППИТ и (или) нанесение на нагревательный кабель и внутреннюю поверхность кабель-каналов силиконовой антифрикционной смазки.
7.3.7 Смазку внутри кабель-каналов наносят с применением устройства затяжки кабеля, методом многократной протяжки тампона, обильно смоченного антифрикционным составом (перед протяжкой тампона в кабель-канал закладывают порцию смазки).
7.3.8 В процессе монтажа напорных трубопроводов следует ориентировать кабель-канал на 3 ч (по направлению потока). Если применяют трубы и СТД с двумя кабель-каналами, то их ориентируют последовательно на 3 ч и 9 ч. Кабель-канал самотечных трубопроводов, работающих преимущественно с неполным наполнением, следует ориентировать на 6 ч.
7.3.9 Для улучшения условий теплопередачи, сокращения потребления электрической энергии на обогрев, затяжку нагревательной ленты выполняют с прижимной ПЭТ лентой (рисунок 7.2).

Рисунок 7.2 - Затяжка с применением прижимной полиэстеровой ленты
7.3.10 Рекомендуется применять жесткую армированную упаковочную ПЭТ ленту, которая обладает хорошей остаточной "памятью" после деформации, шириной 11 - 13 мм и толщиной 0,7 - 0,8 мм.
7.3.11 В процессе затяжки производят изгиб прижимной ленты в "гармошку" с шагом не менее 50 мм (рисунок 7.3). Ниже приведены рекомендации по затяжке нагревательной ленты.

Рисунок 7.3 - Обрезка концов нагревательной и прижимной лент
7.3.12 Концы нагревательной и полиэстеровой лент заостряют (рисунок 7.3) и протягивают трос устройства затяжки кабеля через кабель-канал собранной трубной плети и совмещают срезанные концы нагревательной и прижимной лент.
7.3.13 Для усиления соединения накладывают на нагревательную ленту и трос устройства затяжки кабеля капроновый шнур толщиной 3 - 4 мм по 100 - 150 мм в каждую сторону (рисунок 7.4).

Рисунок 7.4 - Нагревательная и прижимная ленты, трос устройства затяжки кабеля, капроновый шнур, изоляционная лента в исходном положении
7.3.14 Соединяют конец троса устройства затяжки кабеля с совмещенными концами лент и шнуром посредством обмотки их ПВХ изоляционной лентой в несколько слоев по 100 - 150 мм влево и вправо.
7.3.15 Намотку изоляционной ленты производят так, чтобы получилось плавное увеличение диаметра конструкции "на конус" от троса устройства затяжки кабеля до совмещенных лент (рисунок 7.5).

Рисунок 7.5 - Соединение прижимной и нагревательной лент с тросом устройства затяжки кабеля
7.3.16 Перед затяжкой следует наносить слой антифрикционной смазки на поверхность изоляционной ленты и заложить порцию этой же смазки в торец кабель-канала.
7.3.17 Затяжку производят бригадой в составе не менее трех человек:
- первый - разматывает из бухты и изгибает в "змейку" по ходу полиэстеровую ленту с шагом не менее 50 мм;
- второй - разматывает из бухты нагревательную ленту, смазывает тампоном антифрикционной смазкой (по мере затяжки) поверхности нагревательной и прижимной лент и подает с небольшим усилием толкающими движениями греющую и прижимную ленты в кабель-канал;
- третий (с противоположной стороны) - вытягивает трос УЗК с прикрепленными нагревательной и прижимной лентами.
7.3.18 Соединение кабель-каналов на стыках ППИТ и СТД осуществляют соединительным кабель-каналом в виде гибкой трубы или рукава, позволяющего обеспечивать максимально возможное плотное прилегание к поверхности в месте соединения рабочих труб. Соединение кабель-канала с соединительной трубой должно быть таким, чтобы исключить попадание ПУ компонентов внутрь кабель-канала при выполнении операций по теплоизоляции стыков ППИТ (рисунки 7.6 - 7.9).

Рисунок 7.6 - Соединительная муфта

Рисунок 7.7 - Соединительная труба

Рисунок 7.8 - Пример соединения кабель-каналов при диаметре труб менее 110 мм с применением двух муфт и гофрированной трубки диаметром 20 мм

Рисунок 7.9 - Пример соединения кабель-каналов при диаметре труб 110 мм и более с применением гофрированной трубки диаметром 25 мм
7.3.19 Для улучшения условий теплопередачи между соединительным кабель-каналом и рабочей трубой наносят слой теплопроводящей пасты. Затем плотно прижимают соединительный кабель-канал по всей длине и закрепляют всю конструкцию на рабочей трубе двумя продольными отрезками крепежной адгезивной (самоклеящейся) ленты с нахлестом 5 мм.
7.3.20 Отрезок трубы необходимой длины плотно насаживают на концы (круглых или плоских) кабель-каналов. Зазоры в местах соединений, для исключения попадания пены в период заливки ПУ компонентов, надежно герметизируют термоусаживаемыми муфтами, манжетами или, как исключение, самоклеящимся армированным скотчем в два слоя. Теплостойкость гофрированных труб для соединения кабель-каналов должна быть не менее 90 °C.
8.1 Испытание трубопроводов следует производить с учетом требований СП 399.1325800 и СП 129.13330.
8.2 Обязательное предварительное условие до проведения предварительных гидравлических испытаний (на прочность и плотность) - первичная засыпка (на 2/3 высоты оболочки) и трамбовка грунта в пазухах оболочки и вокруг их железобетонных щитов неподвижных опор. Железобетон щитов неподвижных опор должен набрать расчетную прочность. Стыковые соединения землей не засыпают. Наружные гидроизолирующие термоусаживаемые муфты (без снятия упаковочной ПЭ пленки) должны быть сдвинуты со стыков, что позволяет выявлять протечки.
8.3 В условиях отрицательных температур гидравлические испытания могут быть проведены с использованием обогревающего кабеля, обеспечивающего поддержание положительной температуры транспортируемой среды. На стыках устанавливают временную (съемную) гидрофобную теплоизоляцию (например, скорлупы или рулоны из вспененного полиэтилена). Не допускается выдержка трубопровода под испытательным давлением более 3 ч. Установка гидроизолирующих муфт и теплоизоляция стыков ПУ компонентами производится после успешных гидравлических испытаний.
8.4 При необходимости проведения повторных гидравлических испытаний необходима выдержка трубы без давления не менее 24 ч, для обеспечения релаксации напряжений в рабочей трубе.
8.5 После испытаний трубопровод следует промыть, после чего приступить к тепло- и гидроизоляции стыков, установке приборов и арматуры, которые не рассчитаны на давление испытания, засыпке траншеи.
8.6 Пневматические испытания напорных трубопроводов проводят в следующих случаях:
- применение воды недопустимо по техническим причинам;
- вода в необходимом количестве отсутствует;
- в условиях низких температур не может быть выполнен монтаж системы обогрева.
Порядок пневматических испытаний трубопровода и повышенные требования безопасности при пневматических испытаниях устанавливают проектом.
8.7 Безнапорные трубопроводы следует испытывать пневматическим способом.
Порядок проведения пневматических испытаний трубопроводов и требования безопасности устанавливают проектом.
8.8 В процессе испытаний применяют различные методы для глушения (герметизации) участков трубопровода. Для этих целей применяют, например, надувные пакеры - для глушения участков в зоне установки прочисток или ревизий, а также полиэтиленовые заглушки, разработанные изготовителем труб.
8.9 Перед проведением пневматических испытаний заглушки на кабель-каналах и трубах надежно фиксируют (например, с помощью двух стяжек из отожженной проволоки) с целью предотвращения их срыва под воздействием давления сжатого воздуха. Надежно фиксируют от продольного перемещения также концевые (крайние) трубы или соединительные детали.
8.10 Нахождение людей с измерительными приборами в зоне расположения концевых заглушек и крайних труб участка не допускается.
8.11 Непосредственно перед пневматическими испытаниями герметичности соединений рабочей трубы в трубной системе, но не ранее чем через 24 ч после выполнения последнего клеевого соединения стыков кабель-каналов, проводят испытания герметичности кабель-канала.
8.11.1 Для этого на участке трубопровода, подвергаемого испытаниям, в кабель-канал, заглушенный с одной стороны, подают испытательное давление сжатого воздуха, равное 0,05 МПа. На протяжении 1 ч осуществляют периодическую подкачку давления до 0,05 МПа. Затем, если в течение 20 мин испытательное давление воздуха не падает, то кабель-канал на данном участке считают герметичным.
8.11.2 Если наблюдают падение давления, то производят поиск места утечки воздуха и повторную герметизацию соединения. Поиск мест утечки воздуха на стыках производят по методике, аналогичной испытаниям герметичности рабочих труб.
8.12 Пневматические испытания трубопроводов подземной прокладки проводят по окончании монтажа каждого участка трубопровода (между колодцами или тройниками, от стояков до колодцев или до тройников).
8.13 Предусматривают предварительную засыпку (до уровня 0,7 высоты трубы) и качественную трамбовку грунта на крайних участках трубопровода подземной прокладки.
8.14 Для проведения пневматических испытаний рабочих труб используют две полимерные заглушки.
Одну заглушку устанавливают на отрезке трубы, предназначенном для испытаний.
Вторую заглушку устанавливают на патрубок последней соединительной детали на участке. Обе заглушки дополнительно фиксируют хомутами или иными приспособлениями, для предотвращения их срыва под воздействием давления сжатого воздуха. На одной из заглушек устанавливают устройство для подачи воздуха в трубу и контроля падения давления в ней. Контроль ведут по манометру с максимальным значением шкалы 0,1 МПа.
8.15 Смежные участки трубопровода отсекают методом установки (через ревизии или тройники) пневматических заглушек соответствующего диаметра, обеспечивающих надежную герметизацию внутренней полости рабочей трубы.
8.16 Контрольные отверстия диаметром 3 - 5 мм в наружных соединительных муфтах безнапорных труб высверливают до сборки стыков, строго по середине муфты.
8.17 Для недопущения попадания атмосферных осадков отверстия на период испытаний герметизируют водостойким скотчем.
8.18 Если предусмотрено применение термоусаживающихся муфт, то до момента их термоусадки защитную ПЭ оболочку с них не снимают, а на период испытаний муфты сдвигают со стыка.
8.19 Для проведения испытаний на герметичность испытательное давление сжатого воздуха, равное 0,05 МПа, подают в рабочую трубу. Если в течение 20 мин испытательное давление воздуха не падает, то трубопровод считают герметичным.
В случае, если по манометру наблюдают падение давления сжатого воздуха в трубе, то давление воздуха поддерживают подкачкой до значения 0,05 МПа в течение времени, необходимого для осмотра стыков и выявления негерметичности по звуку выходящего из контрольных отверстий в наружных муфтах воздуха. Для поиска негерметичных стыков (в условиях положительных температур окружающей среды) наносят на контрольные отверстия в наружных муфтах мыльный водный раствор.
8.20 В условиях низких температур для поиска протечек используют манометр с пределом измерения 6 - 10 кПа с резиновой соединительной трубкой и конусной проходной пробкой, при этом, в необходимых случаях, увеличивают диаметр контрольных отверстий в наружных муфтах для обеспечения плотной посадки конусной пробки.
8.21 Некачественно собранные стыковые соединения труб (или кабель-каналов) подвергают разборке, осмотру, выявлению причин некачественной сборки (замятие язычка, недостаточное количество антиадгезивной смазки, отсутствие центровки труб и уплотнителей и т.д.) и повторной сборке. Затем вновь проводят пневматические испытания.
8.22 После проведения пневматических испытаний контрольные отверстия в наружных муфтах герметизируют с помощью латок термоклея. Для этого необходимо очистить поверхность вокруг отверстия от загрязнений, обезжирить, зачистить наждачной бумагой и еще раз обезжирить. После этого латку термоклея с размерами 40 x 40 мм нагревают горелкой или феном до появления плавящегося клеевого слоя и накладывают на отверстие. Затем термоклей необходимо прикатать валиком.
8.23 В случаях, когда требуется выполнить фиксацию стыков термоусаживаемой лентой, одновременно выполняют герметизацию контрольных отверстий в муфтах.
9.1.1 Прочность и устойчивость изолированных трубопроводов, проектируемых для прокладки на подрабатываемых территориях, должны быть обеспечены за счет:
- увеличения подвижности оболочки трубопровода в грунте;
- снижения воздействия деформирующегося грунта на трубопровод.
9.1.2 Для обеспечения подвижности трубопровода в грунте и снижения воздействия деформирующегося грунта на трубопровод предусматривают: применение малозащемляющих материалов для засыпки траншей после укладки труб; применение оберточных материалов (например, полиэтиленовой пленки) для уменьшения коэффициента трения между оболочкой изолированного трубопровода и грунтом, уменьшение глубины прокладки трубопровода (за исключением участков со слабыми грунтами по ГОСТ Р 54476) до минимально допустимой: для напорных трубопроводов минимальная глубина прокладки 0,6 м, для безнапорных - 0,7 м.
9.1.3 В качестве малозащемляющих материалов для засыпки траншей трубопровода используют песчаный грунт.
9.1.4 Протяженность зоны защиты трубопровода определяют длиной мульды сдвижения, увеличенной на 150 диаметров оболочки трубопровода в каждую сторону от ее границы.
9.1.5 Переходы трубопроводов через реки, овраги и железнодорожные пути в выемках, а также в местах, где возможно образование провалов и трещин, предусматривают с применением футляров.
9.1.6 Трасса трубопроводов на подрабатываемых территориях должна быть увязана с планами производства горных работ и ее предусматривают преимущественно по территориям, на которых уже закончились процессы деформации поверхности, а также по территориям, подработку которых намечают на более позднее время.
9.2.1 Для грунтов типа I по просадочности, проектирование трубопроводов проводят как для условий непросадочных грунтов. Проектирование подземных трубопроводов для районов распространения грунтов типа II по просадочности необходимо осуществлять с учетом требований СП 22.13330.
9.2.2 Гибкое полотнище из геотекстильных материалов применяют на участках грунта II типа по просадочности, на подрабатываемых территориях, при пересечении водонасыщенных и заболоченных участков.
9.2.3 Схема выполнения работ приведена на рисунке 9.1.

1 - геотекстильное полотно; 2 - основание; 3 - постель; 4 - труба; 5 - пазухи; 6 - первичная засыпка; 7 – вторичная засыпка; 8 - крепление шва; 9 - сигнальная лента; 10 - обратная засыпка
Рисунок 9.1 - Прокладка трубопроводов в просадочных грунтах II типа
Примечание - При двухтрубной прокладке рекомендуется применять две сигнальные ленты - по оси каждого трубопровода, уложенного на глубину свыше 600 мм.
9.2.4 Работы по прокладке трубопроводов в просадочных грунтах II типа следует выполнять в следующей последовательности:
- укладка геотекстильного полотна по дну и откосам траншеи;
- укладка щебня в основание (или бетона) для создания равномерной нагрузки - 200 мм;
- подсыпка постели мелкозернистым песком не менее 150 мм;
- укладка трубопроводов;
- первичная засыпка песком на 0,75D с послойной проливкой водой и трамбовкой его в пазухах трубопроводов;
- вторичная засыпка песком на 300 - 500 мм над верхом оболочки трубопровода;
- продольное скрепление геотекстильного полотна с помощью скоб или прошивкой капроновой нитью;
- обратная засыпка грунта с укладкой сигнальной ленты (и сигнального проводника для облегчения поиска трубы кабелеискателем).
9.2.5 Соединение полотен в продольном направлении проводят укладкой внахлест (не менее 0,5 м), а в поперечном направлении - сваркой или прошивкой синтетическими нитями.
9.2.6 Для дополнительной защиты наиболее уязвимых участков и узлов трубопровода применяют компенсационные демпфирующие маты из сшитого пенополиэтилена толщиной не менее 100 мм.
9.2.7 Низкое сопротивление сжатию сшитого пенополиэтилена обеспечивает защиту кабельных выводов (камер для законцовки и муфтовых соединений) соединительных деталей с электрическим обогревом, а также тройниковых отводов, участков трубопровода, непосредственно примыкающих к неподвижным опорам, вводам в здания и сооружения в подвижных грунтах, при морозном пучении и осадке конструкций.
9.2.8 Рекомендуемая длина защитных демпфирующих зон от 4 до 6 наружных диаметров от краев соединительной детали (по оболочке трубы), но не менее 1,5 м.
9.2.9 Гидроизоляцию демпфирующих подушек не выполняют, достаточно обернуть маты снаружи ПЭ пленкой для уменьшения сил трения в грунте. Крепление демпфирующих кожухов осуществляют упаковочными полипропиленовыми лентами с шагом 300 - 400 мм.
9.2.10 На трубопроводах, работающих в режиме релаксационной самокомпенсации, с оболочкой из оцинкованной стали, концевые неподвижные опоры размещают на расстоянии не более 12 м от вводов или непосредственно в зданиях (сооружениях). У трубопроводов подземной канальной и бесканальной прокладки с ПЭ оболочкой, концевые неподвжиные опоры размещают на расстоянии не более 6 м от ввода или в подвале (в т.ч. проветриваемом подполье). На трубопроводах, работающих в режиме радиальной компенсации, рекомендуется на концевых участках (перед концевыми неподвижными опорами) предусматривать установку Г-образных компенсаторов.
9.2.11 При прокладке в болотистых или водонасыщенных грунтах выполняют балластировку труб полимерными контейнерами, заполненными цементно-песчаной смесью.
9.2.12 На отдельных участках прокладки устраивают монолитное основание, железобетонные щиты неподвижных опор в слабых и подвижных грунтах опирают на свайное основание.
9.2.13 Засыпку изолированного трубопровода в водонасыщенных грунтах ведут в две стадии: первичная и вторичная засыпка изолированного трубопровода песком с послойным уплотнением на 300 - 500 мм выше верхней образующей оболочки (не допуская поперечного смещения изолированного трубопровода), затем засыпка с образованием трапеции грунта. При этом предусматривают мероприятия по недопущению размыва грунта. При прокладке трубопроводов по направлению уклона местности свыше 20% рекомендуется предусматривать устройство противоэрозионных экранов и перемычек, как из естественного грунта (например, глинистого), так и из искусственных материалов, применять неподвижные опоры.
9.2.14 При проектировании трубопроводов, укладываемых на косогорах, необходимо предусматривать устройство нагорных канав для отвода поверхностных вод от трубопровода.
9.2.15 При невозможности избежать возникновения просадки основания под трубопроводами при расчете трубопровода на прочность в особых условиях прокладки следует учитывать дополнительные напряжения от изгиба, вызванные просадкой основания.
9.2.16 При наличии вблизи трассы оврагов и провалов, которые влияют на безопасную эксплуатацию трубопроводов, следует предусматривать мероприятия по их укреплению.
9.3.1 Прокладку трубопроводов следует выполнять в долинах рек вне зоны затопления или по водораздельным участкам, избегая неустойчивые и крутые склоны, районы селевых потоков.
9.3.2 В оползневых районах при малой толщине сползающего слоя грунта следует предусматривать подземную прокладку с заглублением трубопровода ниже плоскости скольжения. Оползневые участки большой протяженности следует обходить выше оползневого склона.
9.3.3 Для защиты трубопроводов при прокладке их в указанных районах предусматривают уполаживание склонов, водозащитные устройства, дренирование подземных вод, сооружение подпорных стен, контрфорсов.
9.3.4 При проектировании трубопроводов, укладку которых должны производить на косогорах с поперечным уклоном более 8°, необходимо предусматривать срезку и подсыпку грунта для устройства рабочей полосы (полки).
Устройство полки в этом случае следует обеспечивать за счет отсыпки насыпи непосредственно на косогоре.
9.3.5 При поперечном уклоне косогора 12° - 18° необходимо предусматривать, с учетом свойств грунта, уступы для предотвращения сползания грунта по косогору.
На косогорах с поперечным уклоном свыше 18° полки предусматривают только за счет срезки грунта.
Для трубопроводов, укладываемых по косогорам с поперечным уклоном свыше 35°, следует предусматривать устройство подпорных стен.
9.3.6 Ширину полки должны назначать из условия производства работ и возможности устройства траншеи.
9.4.1 Проектирование изолированных трубопроводов, прокладываемых в районах с многолетнемерзлыми грунтами, выполняют с учетом требований СП 25.13330.
9.4.2 В условиях сплошного распространения многолетнемерзлых грунтов прокладку линейной части трубопроводов производят по принципу I (с сохранением мерзлоты), подземно в проветриваемых каналах, надземно на опорах (с применением при необходимости устройств для термостабилизации температуры грунта вокруг свайных опор), в регионах с высокой сейсмической активностью - наземно на низких опорах с увеличенной шириной траверс.
9.4.3 При проектировании трубопровода в зонах с многолетнемерзлыми грунтами по принципу I (с сохранением мерзлоты) выполняют прогнозный расчет по обоснованию возможности сохранения устойчивости опор эстакады (в т.ч. с применением стабилизаторов температуры грунта). Необходимо предусматривать мероприятия по обеспечению технического геокриомониторинга в процессе эксплуатации трубопровода.
9.4.4 Подземная бесканальная прокладка в условиях сплошного распространения многолетнемерзлых грунтов может быть произведена с применением горизонтальных устройств для термостабилизации грунта.
9.4.5 В условиях островного распространения многолетнемерзлых грунтов применяют подземную прокладку. Для обеспечения подвижности трубопровода в грунте и снижения воздействия деформирующегося при замерзании грунта на трубопровод предусматривают: применение песчаного грунта для засыпки траншей после укладки труб; применение оберточных материалов (например, полиэтиленовой пленки) для уменьшения коэффициента трения между оболочкой изолированного трубопровода и грунтом, уменьшение глубины прокладки трубопровода до предельно допустимых значений.
9.4.6 Трубопроводы, прокладываемые на участках многолетнемерзлых грунтов при использовании их по принципу II (при отсутствии технических решений по термостабилизации грунта вдоль трубопровода), необходимо рассчитывать на дополнительные напряжения, возникающие из-за просадки и пучения.
9.4.7 Для равномерного распределения нагрузок на участках, прилегающих к линзам пучения, трубопровод прокладывают в "чулке" из ПЭ пленки.
9.4.8 В слабых (талых) грунтах для повышения удерживающей способности применяют неподвижные опоры с удлиненными теплоизолированными патрубками, в зонах многолетнемерзлых грунтов применяют опирание неподвижных опор на свайное основание.
9.4.9 При подземной прокладке трубопроводов на участках многолетнемерзлых грунтов по принципу сохранения вечной мерзлоты для минимального воздействия подземного изолированного трубопровода на окружающий грунт применяют ППИТ с теплоизоляцией толщиной, обеспечивающей сохранение вечной мерзлоты на протяжении расчетного строка эксплуатации трубопровода. В обоснованных случаях дополнительно применяют термостабилизаторы грунта.
9.4.10 При резко отличающихся между собой свойствах грунта вдоль трассы трубопровода высоту песчаного основания под трубопроводом принимают не менее 200 мм в каждую сторону от места стыковки разнородных грунтов при полной длине ее не менее 50 диаметров оболочки трубопровода; присыпку песком в этом случае осуществляют на высоту не менее 300 мм.
9.4.11 В соответствии с генеральным планом должен быть организован отвод поверхностных, надмерзлотных и межмерзлотных вод и вод сезонного оттаивающего слоя с начала строительства и в эксплуатационный период.
9.4.12 Для недопущения сезонного (весна-осень) переувлажнения грунта обратной засыпки в траншее поверхностными водами (до уровня сезонного оттаивания) на высоте 150 - 200 мм над верхом изоляции трубопровода устраивают водонепроницаемую мембрану в виде свода до уровня постели (в т.ч. над железобетонными щитами неподвижных опор) с устройством, при необходимости, попутного дренажа по краям траншеи.
9.4.13 Водонепроницаемую мембрану устраивают при прокладке трубопровода с частичным заглублением под призмой грунта.
9.4.14 Конструкцией ввода трубопровода должна быть обеспечена возможность взаимных перемещений трубопровода и зданий из-за осадок зданий или грунта.
9.4.15 Для защиты наиболее уязвимых узлов трубопровода (тройники, элементы вывода обогревающего кабеля, отводы, участки трубопроводов, непосредственно примыкающие к железобетонным щитам неподвижных опор или вводам в здания и сооружения) рекомендуется использовать демпфирующие маты.
9.4.16 В зонах многолетнемерзлых грунтов для защиты питающих линий (установочных проводов) к электрическим выводам обогревающих кабелей, тройникам, колодцам, коверам, электрическим шкафам рекомендуется применять гофрированные двустенные трубы диаметром 50 мм, при этом, поверх труб дополнительно устанавливают демпфирующие скорлупы из вспененного полиэтилена, толщиной 50 мм.
9.4.17 Герметичное соединение защитной трубы с гермовыводом производят с помощью клеевой термоусаживаемой манжеты.
9.4.18 Не допускается установка демпфирующих матов и другой теплоизоляции на элементы вывода кабелей термодатчиков.
9.4.19 При балластировке трубопроводов пригрузами ширину траншеи следует назначать из условия обеспечения расстояния между пригрузом и стенкой траншеи не менее 0,2 м.
9.4.20 На участках просадочных грунтов должны предусматривать мероприятия, снижающие тепловое воздействие трубопровода на грунты и обеспечивающие восстановление вечной мерзлоты в зимний период.
В зимний период температуру транспортируемой среды поддерживают с помощью систем автоматического регулирования на минимальном уровне (в диапазоне от 2 °C до 5 °C), применяют полносборные ПЭ сварные колодцы и устройства термостабилизации многолетнемерзлых грунтов.
9.5.1 Дополнительные напряжения в подземных трубопроводах следует определять как результат воздействия сейсмической волны на растяжение, направленной вдоль оси трубопровода, вызванной напряженным состоянием грунта.
9.5.2 Для защиты наиболее уязвимых узлов трубопровода (ответвления, камеры для законцовок и муфтовых соединений на электрических выводах обогревающих кабелей, тройников), участки ППИТ, непосредственно примыкающие к железобетонным щитам неподвижных опор или вводам в здания и сооружения, рекомендуется использовать демпфирующие маты (подушки), например, из сшитого ППЭ, толщиной 50 - 100 мм (рисунок 9.2).

Рисунок 9.2 - Установка демпфирующих подушек на тройнике
9.5.3 Гидроизоляцию демпфирующих подушек выполнять не требуется, достаточно обернуть маты снаружи ПЭ пленкой для уменьшения сил трения в грунте.
9.5.4 Крепление демпфирующих матов осуществляют упаковочными полипропиленовыми лентами с шагом 300 - 400 мм.
9.5.5 В местах установки подушек должна быть увеличена ширина траншеи. Засыпку подушек в зонах компенсации выполняют просеянным на сите 1 x 1 мм песком или грунтом на высоту не менее 150 мм от верха оболочки, обеспечивают требуемое уплотнение грунта в пазухах и только после этого выполняют окончательную засыпку траншеи местным грунтом.
9.5.6 Для уменьшения сил защемления трубы в грунте рекомендуется оборачивать оболочку труб ПЭ пленкой, а также уменьшать глубину прокладки трубопровода до предельно допустимых значений.
9.5.7 При прохождении участка трассы с грунтами, резко отличающимися друг от друга сейсмическими свойствами, необходимо предусматривать возможность свободного перемещения и деформирования трубопровода.
При подземной прокладке трубопровода на таких участках устраивают траншеи с пологими откосами и засыпку трубопровода крупнозернистым песком, торфом, устанавливают трубопровод и соединительные детали из сжимаемых пористых материалов (демпфирующих подушек) и т.д.
9.5.8 В регионах с высокой сейсмической активностью для защиты питающих линий (установочных проводов) к электрическим выводам обогревающих кабелей, тройникам, колодцам, коверам, электрическим шкафам применяют гофрированные двустенные трубы диаметром 50 мм, при этом, поверх труб дополнительно устанавливают демпфирующие скорлупы из вспененного полиэтилена или каучука, толщиной 50 мм. Герметичное соединение защитной трубы с гермовыводом выполняют с помощью клеевой термоусаживаемой манжеты.
9.5.9 Конструкцией опор надземных трубопроводов должна быть обеспечена возможность перемещений трубопроводов, возникающих во время землетрясения.
9.5.10 В качестве компенсаторов используют естественные повороты, в обоснованных случаях применяют осевые компенсаторы.
9.5.11 Участки со сложными геологическими условиями (в т.ч. участки разломов и возможных оползней) выполняют с применением надземной прокладки с применением радиальных, осевых и естественных компенсаторов на углах поворотов. Предпочтительнее использование поверхностных фундаментов, невысоких опор эстакады, траверс с увеличенной шириной, боковыми ограничителями перемещений и демпферами.
10.1 Полимерные предварительно изолированные трубы и СТД (в том числе рабочая труба, полиэтиленовая оболочка и теплоизоляция из пенополиуретана) в условиях эксплуатации и хранения не выделяют в окружающую среду токсичных веществ и не оказывают при непосредственном контакте вредного действия на организм человека, работа с ними не требует применения средств индивидуальной защиты.
10.2 При выполнении работ с ППИТ и СТД не допускается воздействие огня в виде открытого пламени или искр на тепловую изоляцию по длине трубопровода и в торцевых сечениях.
10.3 Безопасность технологического процесса при монтаже стыков ППИТ и СТД должна соответствовать ГОСТ 12.3.030. Класс опасности и ПДК в воздухе рабочей зоны при работе с компонентами при заливке ПУ компонентов (для получения на стыках ППУ теплоизоляции) по ГОСТ 12.1.007 и [4], а также их действие на организм приведены в таблице 10.1.
|  
         Наименование продукта  |   
         Предельно допустимая концентрация, мг/м3  |   
         Класс опасности  |   
         Действие на организм  | 
|  
         Изоцианатный компонент  |   
         0,5  |   
         2  |   
         Раздражающее, сенсибилизирующее  | 
|  
         Полиэфирный компонент  |   
         3  |   
         3  |   
         Общее токсическое  | 
10.4 Полиэтилен и пенополиуретан, из которых изготовляют ППИТ и СТД, относят к группе "горючие" по ГОСТ 12.1.044, температура воспламенения полиэтилена - более 300 °C, пенополиуретана - более 550 °C.
Материалы теплоизоляции относят к группе горючести Г3 и Г4 по ГОСТ 30244, группа воспламеняемости - В3 по ГОСТ 30402.
10.5 В период выполнения работ с ПУ компонентами на открытом воздухе следует использовать средства индивидуальной защиты для защиты глаз. При работах с компонентами в закрытом помещении (например, в палатке) необходимо использовать очки и фильтрующий респиратор.
10.6 При возгорании ППИТ и СТД пламя необходимо тушить любыми средствами, например, распыленной водой со смачивателем, огнетушащими составами (средства): двуокисью углерода, огнетушащим порошком, песком, кошмой. В помещении (подвале, колодце, проходном канале) следует тушить пламя только в изолирующем противогазе.
10.7 Трубопроводы и системы хозяйственно-питьевого водоснабжения необходимо промывать и дезинфицировать перед проведением испытаний трубопровода под давлением на прочность и целостность, а также для санитарной обработки перед вводом в эксплуатацию или после ремонтных работ на водопроводных инженерных сетях.
10.8 Перед запуском трубопровода необходимо очистить его внутреннюю полость от образовавшихся в процессе монтажа загрязнений и случайных посторонних предметов. Очистку производят с помощью обводных трубопроводов, соединенных с запускаемым. Скорость протока воды, при условии, что трубопровод заполнен полностью, должна быть не менее 1 м/с.
10.9 Если протяженность трубопровода велика, то его промывку выполняют последовательно на каждом из участков длиной не более 3 км через постоянные водовыпуски. При отсутствии водовыпусков промывку и дезинфекцию допускается осуществлять через временные водовыпуски, оборудованные для этих целей, или пожарные гидранты.
10.10 Дезинфекцию проводят хлорсодержащим раствором концентрацией Cl 40 мг/л. Трубопровод заполняют раствором хлора и выдерживают в течение 24 ч. Затем хлорную воду спускают и производят повторную промывку трубопровода чистой водой с помощью промывочных компрессоров или насосов. Все работы необходимо выполнять, строго соблюдая все правила техники безопасности: одевать защитную одежду и обувь, средства индивидуальной защиты дыхания.
10.11 Выбор трассы, конструктивных, технологических и природоохранных решений, прокладку трубопроводов должны осуществлять в строгом соответствии с законодательными актами Российской Федерации в области охраны окружающей природной среды.
10.12 Промышленные отходы, образующиеся при монтаже изолированных труб, подлежат утилизации в соответствии с [4]. Неиспользованные компоненты пенополиуретана (полиол и полимерный дифенилметандиизоцианат (ПИЦ)) подлежат вывозу и захоронению по согласованию с органами Роспотребнадзора.
10.13 Применительно к использованию, транспортированию и хранению ППИТ и СТД из полиэтилена специальные требования к охране окружающей среды не применяются.
10.14 Допускается утилизация отработанной воды путем ее сброса в систему хозяйственно-бытовой канализации. В ином случае, во избежание вредного воздействия хлорсодержащей воды на окружающую среду ее разбавляют в месте выпуска чистой проточной водой, пока содержание хлора в воде не достигнет 1,5 - 2 мг/л, или дехлорируют с помощью гипосульфита натрия. Порядок и место сброса загрязненной воды должны быть согласованы с органами санитарно-эпидемиологического надзора согласно [4], [5]. Не допускается сброс хлорсодержащей воды в открытые водоемы, чтобы не представлять угрозу для окружающей среды.
Приложение А
А.1 Неподвижные опоры, расположенные в грунте, должны быть закреплены в армированном бетоне класса не ниже B15, причем фиксирующие их бетонные конструкции должны устанавливать на твердый и тщательно уплотненный грунт или на свайное основание.
А.2 Конструкции не должны создавать дополнительную нагрузку на трубопровод, а главное - обеспечивать сопротивление, соответствующее расчетной нагрузке. Максимальное усилие, передаваемое на железобетонный щит, рассчитывают как сумму осевых (продольных) сил в напорной трубе. Если силы, действующие с обеих сторон опоры, имеют одинаковое направление, то принимают их сумму, если силы действуют в противоположном направлении, значение наименьшей из сил принимают с коэффициентом 0,8.
А.3 При параллельной прокладке нескольких трубопроводов общее усилие, воспринимаемое железобетонным щитом, - сумма осевых сил ∑Ni от каждого трубопровода.
А.4 Размеры щита неподвижной опоры определяют при заданных значениях A и C методом подбора размеров A и B [в уравнении (А.1)], исходя из условия
Rбис. = f1·(A·C – πr2) + f2·2(B·C) + f2·2·A·B, (А.1)
где Rбис. - расчетная удерживающая сила железобетонного щита, действующая по биссектрисе внутреннего угла отвода, кН;
r - наружный радиус оболочки трубы (r = d/2).
В обычных условиях прокладки рекомендуется принимать следующие значения расчетного сопротивления грунта:
f1 = 150 кПа - расчетное сопротивление насыпного грунта с послойным уплотнением (через 150 - 200 мм), рекомендуется принимать по СП 22.13330.2016 (таблица Б.9);
f2 = 35 кПа и 42 кПа - расчетное сопротивление на боковой поверхности (при φгр = 90°) для песчаных грунтов средней плотности крупных и средней крупности на глубине соответственно 1 или 2 м [СП 24.13330.2021 (таблица 7.2)].
А.5 В угловых неподвижных опорах (рисунки А.1 и А.2), между направлением действия реакции опоры Rбис. и плоскостью боковых граней железобетонного щита существует угол φгр, поэтому формула (А.1) для трапецеидального в сечении железобетонного щита может быть преобразована к виду
Rбис. = f1·(A·C) + f1·2(B·C – πr2)·cosφгр + f2·(A + D)·hтр, (А.2)
где φгр = α - угол между боковой гранью железобетонного щита и биссектрисой внутреннего угла;
hтр - высота трапеции, м;
D - длина основания трапеции, м.
Размеры A и B принимают по типоразмеру трубопровода.

Рисунок А.1 - Щитовая линейная неподвижная опора

Рисунок А.2 - Щитовая угловая неподвижная опора
|  
           а 
  |   
           б 
  | 
|  
           а - конструкция неподвижной опоры при однотрубной прокладке  |   
           б - каркас неподвижной опоры при двухтрубной прокладке  | 
Рисунок А.3 - Схема неподвижной опоры при однотрубной прокладке
Примечание - Значение расчетного сопротивления талых грунтов следует принимать по данным геологических исследований.
Rбис. = f1·(A·C) + f1·2(B·C – πr2)·cosφгр + f2·(A + D)·hтр, (А.3)
где φгр = α - угол между боковой гранью железобетонного щита и биссектрисой внутреннего угла;
hтр - высота трапеции, м;
D - длина основания трапеции, м.
Размеры A и B принимают по типоразмеру трубопровода.
Размер C - высоту щита, принимают исходя из глубины прокладки трубопровода, при условии наличия слоя грунта над железобетонным щитом не менее 300 мм с учетом габаритных размеров упорных плит элемента неподвижной опоры из условия, что значение высоты и ширины железобетонной плиты должно быть не менее чем на 200 мм больше габаритных размеров упорной ПЭ плиты.
А.6 Характеристики арматуры железобетонных щитов неподвижных опор при глубине заложения трубы 1 м от верха изоляции трубы, приведены в таблице А.1.
|  
         Диаметры изолированных труб d/D, мм  |   
         Характеристика арматуры  | |
|  
         Количество горизонтальных стержней, шт.  |   
         Диаметр, мм  | |
|  
         32 - 75  |   
         2  |   
         4  | 
|  
         90 - 110  |   
         2  |   
         6  | 
|  
         125 - 200  |   
         2  |   
         8  | 
|  
         225 - 250  |   
         2  |   
         8  | 
|  
         280 - 315  |   
         4  |   
         10  | 
|  
         400 - 500  |   
         4  |   
         10  | 
|  
         560 - 630  |   
         4  |   
         12  | 
|  
         710 - 900  |   
         4  |   
         12  | 
|  
         Примечание - Для армирования угловых неподвижных опор применяются сварные арматурные сетки по ГОСТ 23279. Габариты арматурного каркаса задают исходя из обеспечения разности размеров A, B, C железобетонной плиты и каркаса в диапазоне 50 - 100 мм.  | ||
А.7 Размеры железобетонного щита принимают в зависимости от числа труб, проходящих через щит. Размер B щита прямой неподвижной опоры зависит от диаметра и количества прутков силовой арматуры. Таким образом, размеры A, B и C щита зависят от целого ряда параметров и их должны рассчитывать индивидуально для каждого конкретного случая.
А.8 Условие неподвижности линейной неподвижной опоры определяется уравнением
R ≥ kз·Nпр, (А.4)
где R - расчетная удерживающая горизонтальная сила железобетонного щита, кН;
kз - коэффициент запаса, рекомендуется принимать не менее 1,2.
Для угловых неподвижных опор выражение (А.3) может быть преобразовано к виду
Rбис. ≥ kз·Nбис., (А.5)
где Nбис. - расчетная сила, действующая по биссектрисе внутреннего угла неподвижной опоры, Н;
Rбис. - сила отпора грунта, действующая по биссектрисе внутреннего угла, кН.
Необходимо учитывать, что нормативную прочность бетон в железобетонной плите неподвижной опоры набирает только через 28 сут при 20 °C. При более низких температурах скорость набора прочности бетона существенно замедляется.
А.9 В таблице А.2 приведены значения прочности бетона на сжатие в процентах от нормативной прочности бетона B15 (М200) в зависимости от его выдержки. Для заливки железобетонных щитов неподвижных опор рекомендуется применять бетон с характеристиками не ниже B15.
|  
         Шлакопортландцемент марки 300  |   
         Класс бетона  |   
         Выдержка, сут, мес  |   
         Прочность бетона - % от класса при температуре среды, °C  | |||
|  
         0 ... 5  |   
         5 ... 10  |   
         10 ... 15  |   
         20 ... 25  | |||
|  
         B15  |   
         1 сут  |   
         6  |   
         12  |   
         17  |   
         22  | |
|  
         2 сут  |   
         15  |   
         18  |   
         26  |   
         32  | ||
|  
         3 сут  |   
         18  |   
         25  |   
         32  |   
         38  | ||
|  
         5 сут  |   
         25  |   
         32  |   
         40  |   
         48  | ||
|  
         7 сут  |   
         38  |   
         45  |   
         58  |   
         65  | ||
|  
         14 сут  |   
         48  |   
         55  |   
         63  |   
         75  | ||
|  
         28 сут  |   
         55  |   
         62  |   
         82  |   
         100  | ||
|  
         3 мес  |   
         70  |   
         85  |   
         90  |   
         110  | ||
А.10 Самокомпенсация продольных напряжений, обеспечивающая взаимную неподвижность слоев трубы на прямых участках и участках плавного упругого изгиба труб не обеспечивает неподвижность трубы на участках крутых поворотов с использованием фасонных изделий (отводов).
А.11 При расчете размеров железобетонного блока необходимо учитывать допустимое давление на грунт, которое устанавливают на основе геотехнических изысканий. В большинстве случаев рекомендуется пользоваться формулой
, (А.6)
где B - ширина крепежного блока, м;
C - высота крепежного блока, м;
Rверт. - результирующая вертикальная сила, кН;
σгрунта - допускаемое давление на грунт (в большинстве случаев принимают равным 200 кН/м2).
А.12 Явление продольной ползучести в отводе и участках труб, непосредственно примыкающих к отводу, обусловлено тем, что в крутоизогнутом отводе возникают силы (рисунок А.4), стремящиеся растянуть плечи отвода. Чем большее значение имеет угол поворота, тем выше значение этих растягивающих и изгибающих сил. В результате в защемленном мерзлым грунтом изолированном отводе возникает результирующая сила на растяжение Nбис.p, направленная по биссектрисе внутреннего угла, стремящаяся растянуть плечи отвода в сторону наружной образующей (т.е. выпрямить фитинг), что со временем приводит к появлению зоны подвижности отвода в грунте или деформации ППУ теплоизоляции отвода.

Рисунок А.4 - Расчет нагрузок на отвод или железобетонный щит угловой неподвижной опоры в грунте
А.13 В документации изготовителей, как правило, углы поворотов отводов и угловых неподвижных опор задают между продолжением направления трубы до отвода и направлением по оси отвода. В связи с этим необходим пересчет на значение половины внутреннего угла отвода (180 – α)/2.
А.14 Поскольку результирующая сила Nбис.p действует по биссектрисе внутреннего угла отвода, она может быть определена по формуле
, (А.7)
где Nбис.p - сила, действующая по биссектрисе внутреннего угла, под воздействием внутреннего давления среды в отводе, Н;
α - угол поворота трубопровода (рисунок А.4);
r - внутренний радиус рабочей трубы, м;
p - давление среды в трубопроводе, МПа.
А.15 Результирующий вектор Nбис.1 от сложения двух равных продольных сил обусловленных давлением σпр.р и изменением температуры рабочей трубы σпр.t, как уже отмечалось выше, действует по биссектрисе внутреннего угла и может быть определен (для случая продольной нагрузки на растяжение, вызванных охлаждением рабочей трубы) по формуле
. (А.8)
А.16 Соответственно, при нагрузках в трубопроводе, обусловленных повышением температуры трубопровода, оба слагаемых Nпр.t и Nпр.p имеют отрицательные значения. Это может случиться при наполнении водой охлажденного до низких климатических температур трубопровода, например, после ликвидации аварии зимой. Поэтому перед наполнением охлажденного трубопровода рекомендуется производить предварительный его разогрев подачей напряжения на нагревательную ленту.
А.17 Допустимое давление, с которым ПЭ соединительная деталь может длительно воздействовать на ППУ теплоизоляцию в отводе, составляет не более чем 0,15 МПа [уравнение (5.19)].
А.18 Площадь ППУ, на который действует сила Nбис.отв в отводе, рекомендуется принимать равной двум площадям сечения рабочей ПЭ трубы по уравнению
Fппу = 2·(π·d2/4), (А.9)
где d - наружный диаметр напорной трубы.
А.19 Площадь ППУ, на который действует сила Nбис.отв в сварном или гнутом отводе, рекомендуется принимать примерно равной трем площадям сечения рабочей ПЭ трубы по формуле
Fппу = 3·(π·d2/4). (А.10)
А.20 Постоянное продольное растягивающее напряжение вызывает бесконечное продольное удлинение - ползучесть трубы. Существует радиальная ползучесть рабочей трубы, вызванная воздействием внутреннего давления.
А.21 Предел ползучести - наибольшее напряжение, при котором скорость или деформация ползучести за определенный промежуток времени не превышает значения, установленного документацией изготовителя (обычно для ПЭ труб принимают, что радиальная ползучесть не превышает 3% за 50 лет). В этом общем случае предел ползучести равен MRS.
А.22 В связи с этим, для недопущения явления ползучести, для отводов, защемленных в мерзлом грунте, суммарная нагрузка от действия всех сил, действующих по биссектрисе внутреннего угла Nбис., в трубопроводах подземной прокладки должна быть уравновешена силой сопротивления ППУ теплоизоляции и грунта.
А.23 Длительная прочность ППУ на сжатие от воздействия в отводе перерезывающих сил (сил, действующих поперек слоя ППУ теплоизоляции в центральной зоне отвода) незначительна (0,15 МПа), прочность мерзлого грунта может быть на несколько порядков выше. Следовательно, в мерзлом грунте существует вероятность повреждения ППУ теплоизоляции в отводе, например, в период возникновения перерезывающих сил в отводе в результате охлаждения в аварийной ситуации опорожненного трубопровода. В связи с этим, при проектировании трубопроводов с прокладкой в условиях промерзающих или многолетнемерзлых грунтов, не следует применять теплоизолированные отводы с углами, превышающими значения, приведенные в таблице 5.2, вместо них следует применять угловые неподвижные опоры.
А.24 Для увеличения площади взаимодействия отвода с грунтом и увеличения силы сопротивления грунта (в т.ч. сезонно оттаивающего) применяют железобетонные щиты.
Приложение Б
|  
         Номинальный наружный диаметр оболочки D, мм  |   
         Максимальное количество рядов, при укладке в седло  | 
|  
         32/125  |   
         16  | 
|  
         40/125  |   
         16  | 
|  
         50/125  |   
         16  | 
|  
         63/140  |   
         13  | 
|  
         75/160  |   
         11  | 
|  
         90/180  |   
         10  | 
|  
         110/200  |   
         10  | 
|  
         125/225  |   
         9  | 
|  
         140/250  |   
         8  | 
|  
         160/280  |   
         7  | 
|  
         180/315  |   
         6  | 
|  
         200/315  |   
         6  | 
|  
         225/355  |   
         5  | 
|  
         250/400  |   
         5  | 
|  
         280/450  |   
         4  | 
|  
         315/500  |   
         4  | 
|  
         355/630  |   
         3  | 
|  
         400/630  |   
         3  | 
|  
         450/710  |   
         3  | 
|  
         500/800  |   
         3  | 
|  
         560/900  |   
         3  | 
|  
         630/1000  |   
         3  | 
|  
         710/1200  |   
         2  | 
|  
         900/1200  |   
         2  | 
Библиография
[1] СН 510-78 Инструкция по проектированию сетей водоснабжения и канализации для районов распространения вечномерзлых грунтов
[2] Приказ Министерства энергетики Российской Федерации от 12 августа 2022 г. N 811 "Об утверждении правил технической эксплуатации электроустановок потребителей электрической энергии"
[3] ПУЭ Правила устройства электроустановок (Издание седьмое)
[4] СанПиН 2.1.3684-21 Санитарно-эпидемиологические требования к содержанию территорий городских и сельских поселений, к водным объектам, питьевой воде и питьевому водоснабжению, атмосферному воздуху, почвам, жилым помещениям, эксплуатации производственных, общественных помещений, организации и проведению санитарно-противоэпидемических (профилактических) мероприятий
[5] СанПиН 1.2.3685-21 Гигиенические нормативы и требования к обеспечению безопасности и (или) безвредности для человека факторов среды обитания














