СП 501.1325800.2021 ЗДАНИЯ ИЗ КРУПНОГАБАРИТНЫХ МОДУЛЕЙ. ПРАВИЛА ПРОЕКТИРОВАНИЯ И СТРОИТЕЛЬСТВА. ОСНОВНЫЕ ПОЛОЖЕНИЯ
Building from large modules. Design and construction code. Basic statements
Дата введения - 14 ноября 2021 г. 
  
 Введен впервые
 
  
 
Предисловие
Сведения о своде правил
1 ИСПОЛНИТЕЛЬ - Общество с ограниченной ответственностью "Группа Компаний "МонАрх"
2 ВНЕСЕН Техническим комитетом по стандартизации ТК 465 "Строительство"
3 ПОДГОТОВЛЕН к утверждению Департаментом градостроительной деятельности и архитектуры Министерства строительства и жилищно-коммунального хозяйства Российской Федерации (Минстрой России)
4 УТВЕРЖДЕН приказом Министерства строительства и жилищно-коммунального хозяйства Российской Федерации от 13 мая 2021 г. N 284/пр и введен в действие с 14 ноября 2021 г.
5 ЗАРЕГИСТРИРОВАН Федеральным агентством по техническому регулированию и метрологии (Росстандарт)
6 ВВЕДЕН ВПЕРВЫЕ
В случае пересмотра (замены) или отмены настоящего свода правил соответствующее уведомление будет опубликовано в установленном порядке. Соответствующая информация, уведомление и тексты размещаются также в информационной системе общего пользования - на официальном сайте разработчика (Минстрой России) в сети Интернет
Введение
Настоящий свод правил разработан с учетом требований [1] - [5] и содержит рекомендации по проектированию, расчету, изготовлению конструкций и возведению зданий из крупногабаритных модулей повышенной заводской готовности, а также по их транспортированию.
Основной крупногабаритный модуль представляет собой прямоугольную замкнутую пространственную конструкцию, собираемую на заводе-изготовителе из плоских элементов. Предельные габаритные размеры модуля: продольный - 15,5 м; поперечный - 7,5 м; высота - 3,55 м.
Крупногабаритный модуль может быть использован для строительства жилых, общественных и административных зданий.
На строительную площадку могут поступать модули комплектной поставки - полностью оснащенные инженерными сетями, оборудованием, фасадными системами, дверьми, окнами и с завершенной внутренней отделкой.
Аналогично основным модулям проектируются модули повышенной заводской готовности: лестнично-лифтовые узлы, лоджии, эркеры, входная группа и т.д.
Технико-экономической предпосылкой строительства зданий из крупногабаритных модулей и получения экономического эффекта, по сравнению со строительством аналогичных зданий в крупнопанельном или монолитном исполнении, является:
- производство квартир, жилых и нежилых помещений в заводских условиях на конвейере;
- повышенный контроль за качеством поставляемых материалов и комплектующих;
- высококачественное и высокоточное производство в оптимальных заводских условиях, минимизация неблагоприятных воздействий на строительной площадке;
- повышение производительности труда;
- рациональное объединение всех видов строительных работ под одним руководством, организованные команды специалистов на производстве и стандартизованные рабочие процессы;
- энергоэффективность заводского производства;
- гарантия качества работ завода-изготовителя;
- снижение расходов на транспортную составляющую;
- снижение объемов нагрузки на дорожную сеть;
- сокращение трудоемкости работ на строительной площадке за счет максимальной механизации и роботизации всех видов работ в заводских условиях (90% трудозатрат на производстве для возведения здания переносятся на завод-изготовитель);
- снижение загрязнения окружающей среды в районе строительства;
- снижение общей себестоимости работ;
- сокращение продолжительности возведения здания и, как следствие, ускорение сроков окупаемости проекта;
- улучшенные условия для строительства в регионах с преобладающими отрицательными температурами в течение года, где транспортирование готовых модулей выгоднее, чем доставка сырья и материалов на объект.
Настоящий свод правил нормирует требования на этапах: проектирование, изготовление изделий, сборка крупногабаритных модулей, транспортирование на объект строительства и возведение зданий.
Учитывая, что максимальная площадь модуля может достигать 116 м2, а масса - 80 т, при изготовлении и возведении зданий требуется обеспечить строгое соблюдение допусков и проведения геодезического контроля. При транспортировании следует применять специально оборудованные транспортные средства и погрузочно-разгрузочную оснастку.
Настоящий свод правил разработан авторским коллективом: ООО "Концерн МонАрх" (руководитель разработки - д-р техн. наук С.А. Амбарцумян, исполнители: д-р техн. наук А.В. Манукян, А.С. Мещеряков, А.В. Антоненко), ООО "Комбинат Инновационных Технологий - МонАрх" (Е.В. Агарцев, Ю.С. Стоянчук, Д.А. Зуйков), НИУ МГСУ (д-р техн. наук О.В. Мкртычев) при участии ООО "АМЦ-Проект" (С.В. Цыцин, Л.И. Столяр), ООО "Строй-Монолит" (Д.Е. Мочалин), ООО "Сетевая компания" (С.Ю. Филимонов), ООО "ФСиК" (Р.Е. Монахов).
Настоящий свод правил распространяется на здания из крупногабаритных модулей (КГМ) жилищного и общественного назначения высотой до 100 м и устанавливает основные требования к их проектированию и строительству.
В настоящем своде правил использованы нормативные ссылки на следующие документы:
ГОСТ 12.0.004-2015 Система стандартов безопасности труда. Организация обучения безопасности труда. Общие положения
ГОСТ 12.0.230-2007 Система стандартов безопасности труда. Системы управления охраной труда. Общие требования
ГОСТ 12.1.003-2014 Система стандартов безопасности труда. Шум. Общие требования безопасности
ГОСТ 12.1.005-88 Система стандартов безопасности труда. Общие санитарно-гигиенические требования к воздуху рабочей зоны
ГОСТ 12.1.012-2004 Система стандартов безопасности труда. Вибрационная безопасность. Общие требования
ГОСТ 12.1.046-2014 Система стандартов безопасности труда. Строительство. Нормы освещения строительных площадок
ГОСТ 12.2.003-91 Система стандартов безопасности труда. Оборудование производственное. Общие требования безопасности
ГОСТ 12.3.002-2014 Система стандартов безопасности труда. Процессы производственные. Общие требования безопасности
ГОСТ 12.3.009-76 Система стандартов безопасности труда. Работы погрузочно-разгрузочные. Общие требования безопасности
ГОСТ 12.4.026-2015 Система стандартов безопасности труда. Цвета сигнальные, знаки безопасности и разметка сигнальная. Назначение и правила применения. Общие технические требования и характеристики. Методы испытаний
ГОСТ 12.4.244-2013 Система стандартов безопасности труда. Средства индивидуальной защиты органов дыхания. Полумаски и четвертьмаски из изолирующих материалов. Общие технические условия
ГОСТ 166-89 (ИСО 3599-76) Штангенциркули. Технические условия
ГОСТ 427-75 Линейки измерительные металлические. Технические условия
ГОСТ 535-2005 Прокат сортовой и фасонный из стали углеродистой обыкновенного качества. Общие технические условия
ГОСТ 1759.0-87 Болты, винты, шпильки и гайки. Технические условия
ГОСТ 3242-79 Соединения сварные. Методы контроля качества
ГОСТ 3262-75 Трубы стальные водогазопроводные. Технические условия
ГОСТ 3749-77 Угольники поверочные 90°. Технические условия
ГОСТ 5746-2015 (ISO 4190-1:2010) Лифты пассажирские. Основные параметры и размеры
ГОСТ 5781-82 Сталь горячекатаная для армирования железобетонных конструкций. Технические условия
ГОСТ 6727-80 Проволока из низкоуглеродистой стали холоднотянутая для армирования железобетонных конструкций. Технические условия
ГОСТ 7473-2010 Смеси бетонные. Технические условия
ГОСТ 7502-98 Рулетки измерительные металлические. Технические условия
ГОСТ 7566-2018 Металлопродукция. Правила приемки, маркировка, упаковка, транспортирование и хранение
ГОСТ 8026-92 Линейки поверочные. Технические условия
ГОСТ 8267-93 Щебень и гравий из плотных горных пород для строительных работ. Технические условия
ГОСТ 8269.0-97 Щебень и гравий из плотных горных пород и отходов промышленного производства для строительных работ. Методы физико-механических испытаний
ГОСТ 8478-81 Сетки сварные для железобетонных конструкций. Технические условия
ГОСТ 8732-78 Трубы стальные бесшовные горячедеформированные. Сортамент
ГОСТ 8736-2014 Песок для строительных работ. Технические условия
ГОСТ 9087-81 Флюсы сварочные плавленые. Технические условия
ГОСТ 9573-2012 Плиты из минеральной ваты на синтетическом связующем теплоизоляционные. Технические условия
ГОСТ 10060-2012 Бетоны. Методы определения морозостойкости
ГОСТ 10178-85 Портландцемент и шлакопортландцемент. Технические условия
ГОСТ 10704-91 Трубы стальные электросварные прямошовные. Сортамент
ГОСТ 12004-81 Сталь арматурная. Методы испытания на растяжение
ГОСТ 13015-2012 Изделия бетонные и железобетонные для строительства. Общие технические требования. Правила приемки, маркировки, транспортирования и хранения
ГОСТ 14019-2003 (ИСО 7438:1985) Материалы металлические. Метод испытания на изгиб
ГОСТ 14098-2014 Соединения сварные арматуры и закладных изделий железобетонных конструкций. Типы, конструкции и размеры
ГОСТ 14192-96 Маркировка грузов
ГОСТ 14782-86 Контроль неразрушающий. Соединения сварные. Методы ультразвуковые
ГОСТ 15588-2014 Плиты пенополистирольные теплоизоляционные. Технические условия
ГОСТ 17624-2012 Бетоны. Ультразвуковой метод определения прочности
ГОСТ 18105-2018 Бетоны. Правила контроля и оценки прочности
ГОСТ 19223-90 Светодальномеры геодезические. Общие технические условия
ГОСТ 21779-82 (СТ СЭВ 2681-80) Система обеспечения точности геометрических параметров в строительстве. Технологические допуски
ГОСТ 21780-2006 Система обеспечения точности геометрических параметров в строительстве. Расчет точности
ГОСТ 22690-2015 Бетоны. Определение прочности механическими методами неразрушающего контроля
ГОСТ 22845-2018 Лифты. Лифты электрические. Монтаж и пусконаладочные работы. Правила организации и производства работ, контроль выполнения и требования к результатам работ
ГОСТ 22904-93 Конструкции железобетонные. Магнитный метод определения толщины защитного слоя бетона и расположения арматуры
ГОСТ 23118-2019 Конструкции стальные строительные. Общие технические условия
ГОСТ 23279-2012 Сетки арматурные сварные для железобетонных конструкций и изделий. Общие технические условия
ГОСТ 23407-78 Ограждения инвентарные строительных площадок и участков производства строительно-монтажных работ. Технические условия
ГОСТ 23616-79 Система обеспечения точности геометрических параметров в строительстве. Контроль точности
ГОСТ 23732-2011 Вода для бетонов и строительных растворов. Технические условия
ГОСТ 23858-2019 Соединения сварные стыковые арматуры железобетонных конструкций. Ультразвуковые методы контроля качества. Правила приемки
ГОСТ 24211-2008 Добавки для бетонов и строительных растворов. Общие технические условия
ГОСТ 24258-88 Средства подмащивания. Общие технические условия
ГОСТ 24259-80 Оснастка монтажная для временного закрепления и выверки конструкций зданий. Классификация и общие технические требования
ГОСТ 24297-2013 Верификация закупленной продукции. Организация проведения и методы контроля
ГОСТ 25192-2012 Бетоны. Классификация и общие технические требования
ГОСТ 25621-83 Материалы и изделия полимерные строительные герметизирующие и уплотняющие. Классификация и общие технические требования
ГОСТ 25772-83 Ограждения лестниц, балконов и крыш стальные. Общие технические условия
ГОСТ 25781-2018 Формы стальные для изготовления железобетонных изделий. Технические условия
ГОСТ 25878-2018 Формы стальные для изготовления железобетонных изделий. Поддоны. Технические условия
ГОСТ 26433.0-85 Система обеспечения точности геометрических параметров в строительстве. Правила выполнения измерений. Общие положения
ГОСТ 26433.1-89 Система обеспечения точности геометрических параметров в строительстве. Правила выполнения измерений. Элементы заводского изготовления
ГОСТ 26433.2-94 Система обеспечения точности геометрических параметров в строительстве. Правила выполнения измерений параметров зданий и сооружений
ГОСТ 26633-2015 Бетоны тяжелые и мелкозернистые. Технические условия
ГОСТ 26887-86 Площадки и лестницы для строительно-монтажных работ. Общие технические условия
ГОСТ 27006-2019 Бетоны. Правила подбора состава
ГОСТ 27751-2014 Надежность строительных конструкций и оснований. Основные положения
ГОСТ 27772-2015 Прокат для строительных стальных конструкций. Общие технические условия
ГОСТ 28570-2019 Бетоны. Методы определения прочности по образцам, отобранным из конструкций
ГОСТ 28984-2011 Модульная координация размеров в строительстве. Основные положения
ГОСТ 30247.0-94 (ИСО 834-75) Конструкции строительные. Методы испытаний на огнестойкость. Общие требования
ГОСТ 30494-2011 Здания жилые и общественные. Параметры микроклимата в помещениях
ГОСТ 30515-2013 Цементы. Общие технические условия
ГОСТ 30971-2012 Швы монтажные узлов примыкания оконных блоков к стеновым проемам. Общие технические условия
ГОСТ 31108-2020 Цементы общестроительные. Технические условия
ГОСТ 31384-2017 Защита бетонных и железобетонных конструкций от коррозии. Общие технические требования
ГОСТ 31565-2012 Кабельные изделия. Требования пожарной безопасности
ГОСТ 31914-2012 Бетоны высокопрочные тяжелые и мелкозернистые для монолитных конструкций. Правила контроля и оценки качества
ГОСТ 32144-2013 Электрическая энергия. Совместимость технических средств электромагнитная. Нормы качества электрической энергии в системах электроснабжения общего назначения
ГОСТ 32396-2013 Устройства вводно-распределительные для жилых и общественных зданий. Общие технические условия
ГОСТ 32495-2013 Щебень, песок и песчано-щебеночные смеси из дробленого бетона и железобетона. Технические условия
ГОСТ 33652-2015 (EN 81-70:2003) Лифты пассажирские. Технические требования доступности, включая доступность для инвалидов и других маломобильных групп населения
ГОСТ 34028-2016 Прокат арматурный для железобетонных конструкций. Технические условия
ГОСТ 34278-2017 Соединения арматуры механические для железобетонных конструкций. Технические условия
ГОСТ 34305-2017 (EN 81-72:2015) Лифты пассажирские. Лифты для пожарных
ГОСТ 34329-2017 Опалубка. Общие технические условия
ГОСТ ISO 2531-2012 Трубы, фитинги, арматура и их соединения из чугуна с шаровидным графитом для водо- и газоснабжения. Технические условия
ГОСТ Р 21.1101-2013 Система проектной документации для строительства. Основные требования к проектной и рабочей документации
ГОСТ Р 50571.5.52-2011/МЭК 60364-5-52:2009 Электроустановки низковольтные. Часть 5-52. Выбор и монтаж электрооборудования. Электропроводки
ГОСТ Р 51613-2000 Трубы напорные из непластифицированного поливинилхлорида. Технические условия
ГОСТ Р 52023-2003 Сети распределительные систем кабельного телевидения. Основные параметры. Технические требования. Методы измерений и испытаний
ГОСТ Р 52086-2003 Опалубка. Термины и определения
ГОСТ Р 52544-2006 Прокат арматурный свариваемый периодического профиля классов А500С и В500С для армирования железобетонных конструкций. Технические условия
ГОСТ Р 53195.1-2008 Безопасность функциональная связанных с безопасностью зданий и сооружений систем. Часть 1. Основные положения
ГОСТ Р 53195.2-2008 Безопасность функциональная связанных с безопасностью зданий и сооружений систем. Часть 2. Общие требования
ГОСТ Р 53245-2008 Информационные технологии. Системы кабельные структурированные. Монтаж основных узлов системы. Методы испытания
ГОСТ Р 53246-2008 Информационные технологии. Системы кабельные структурированные. Проектирование основных узлов системы. Общие требования
ГОСТ Р 53296-2009 Установка лифтов для пожарных в зданиях и сооружениях. Требования пожарной безопасности
ГОСТ Р 53340-2009 Приборы геодезические. Общие технические условия
ГОСТ Р 53611-2009 Глобальная навигационная спутниковая система. Методы и технологии выполнения геодезических и землеустроительных работ. Общие технические требования
ГОСТ Р 53780-2010 Лифты. Общие требования безопасности к устройству и установке
ГОСТ Р 55966-2014 (CEN/TS 81-76:2011) Лифты. Специальные требования безопасности к лифтам, используемым для эвакуации инвалидов и других маломобильных групп населения
ГОСТ Р 56178-2014 Модификаторы органоминеральные типа МБ для бетонов, строительных растворов и сухих смесей. Технические условия
ГОСТ Р 56592-2015 Добавки минеральные для бетонов и строительных растворов. Общие технические условия
ГОСТ Р 57997-2017 Арматурные и закладные изделия сварные, соединения сварные арматуры и закладных изделий железобетонных конструкций. Общие технические условия
ГОСТ Р 58520-2019 Средства грузозахватные. Классификация и общие технические требования
ГОСТ Р ЕН 13779 Вентиляция в нежилых зданиях. Технические требования к системам вентиляции и кондиционирования
СП 1.13130.2020 Системы противопожарной защиты. Эвакуационные пути и выходы
СП 2.13130.2020 Системы противопожарной защиты. Обеспечение огнестойкости объектов защиты
СП 3.13130.2009 Системы противопожарной защиты. Система оповещения и управления эвакуацией людей при пожаре. Требования пожарной безопасности
СП 4.13130.2013 Системы противопожарной защиты. Ограничение распространения пожара на объектах защиты. Требования к объемно-планировочным и конструктивным решениям (с изменением N 1)
СП 6.13130.2013 Системы противопожарной защиты. Электрооборудование. Требования пожарной безопасности
СП 7.13130.2013 Отопление, вентиляция и кондиционирование. Требования пожарной безопасности (с изменениями N 1, N 2)
СП 10.13130.2020 Системы противопожарной защиты. Внутренний противопожарный водопровод. Нормы и правила проектирования
СП 14.13330.2018 "СНиП II-7-81 Строительство в сейсмических районах"
СП 16.13330.2017 "СНиП II-23-81 Стальные конструкции" (с изменениями N 1, N 2)
СП 17.13330.2017 "СНиП II-26-76 Кровли" (с изменениями N 1, N 2)
СП 20.13330.2016 "СНиП 2.01.07-85* Нагрузки и воздействия" (с изменениями N 1, N 2, N 3)
СП 22.13330.2016 "СНиП 2.02.01-83* Основания зданий и сооружений" (с изменениями N 1, N 2, N 3)
СП 24.13330.2011 "СНиП 2.02.03-85 Свайные фундаменты" (с изменениями N 1, N 2, N 3)
СП 28.13330.2017 "СНиП 2.03.11-85 Защита строительных конструкций от коррозии" (с изменениями N 1, N 2)
СП 30.13330.2020 "СНиП 2.04.01-85* Внутренний водопровод и канализация зданий"
СП 42.13330.2016 "СНиП 2.07.01-89* Градостроительство. Планировка и застройка городских и сельских поселений" (с изменениями N 1, N 2)
СП 48.13330.2019 "СНиП 12-01-2004 Организация строительства"
СП 50.13330.2012 "СНиП 23-02-2003 Тепловая защита зданий" (с изменением N 1)
СП 51.13330.2011 "СНиП 23-03-2003 Защита от шума" (с изменением N 1)
СП 54.13330.2016 "СНиП 31-01-2003 Здания жилые многоквартирные" (с изменениями N 1, N 2, N 3)
СП 59.13330.2020 "СНиП 35-01-2001 Доступность зданий и сооружений для маломобильных групп населения"
СП 60.13330.2020 "СНиП 41-01-2003 Отопление, вентиляция и кондиционирование воздуха"
СП 61.13330.2012 "СНиП 41-03-2003 Тепловая изоляция оборудования и трубопроводов" (с изменением N 1)
СП 63.13330.2018 "СНиП 52-01-2003 Бетонные и железобетонные конструкции. Основные положения" (с изменением N 1)
СП 68.13330.2017 "СНиП 3.01.04-87 Приемка в эксплуатацию законченных строительством объектов. Основные положения" (с изменением N 1)
СП 70.13330.2012 "СНиП 3.03.01-87 Несущие и ограждающие конструкции" (с изменениями N 1, N 3, N 4)
СП 71.13330.2017 "СНиП 3.04.01-87 Изоляционные и отделочные покрытия" (с изменением N 1)
СП 72.13330.2016 "СНиП 3.04.03-85 Защита строительных конструкций и сооружений от коррозии" (с изменением N 1)
СП 118.13330.2012 "СНиП 31-06-2009 Общественные здания и сооружения" (с изменениями N 1, N 2, N 3, N 4)
СП 126.13330.2017 "СНиП 3.01.03-84 Геодезические работы в строительстве"
СП 130.13330.2018 "СНиП 3.09.01-85 Производство сборных железобетонных конструкций и изделий"
СП 131.13330.2020 "СНиП 23-01-99* Строительная климатология"
СП 133.13330.2012 Сети проводного радиовещания и оповещения в зданиях и сооружениях. Нормы проектирования (с изменением N 1)
СП 134.13330.2012 Системы электросвязи зданий и сооружений. Основные положения проектирования (с изменениями N 1, N 2)
СП 136.13330.2012 Здания и сооружения. Общие положения проектирования с учетом доступности для маломобильных групп населения (с изменением N 1)
СП 137.13330.2012 Жилая среда с планировочными элементами, доступными инвалидам. Правила проектирования (с изменением N 1)
СП 138.13330.2012 Общественные здания и сооружения, доступные маломобильным группам населения. Правила проектирования (с изменением N 1)
СП 140.13330.2012 Городская среда. Правила проектирования для маломобильных групп населения (с изменением N 1)
СП 147.13330.2012 Здания для учреждений социального обслуживания. Правила реконструкции (с изменением N 1)
СП 160.1325800.2014 Здания и комплексы многофункциональные. Правила проектирования (с изменениями N 1, N 2)
СП 246.1325800.2016 Положение об авторском надзоре за строительством зданий и сооружений
СП 253.1325800.2016 Инженерные системы высотных зданий
СП 296.1325800.2017 Здания и сооружения. Особые воздействия (с изменением N 1)
СП 311.1325800.2017 Бетонные и железобетонные конструкции из высокопрочных бетонов. Правила проектирования
СП 335.1325800.2017 Крупнопанельные конструктивные системы. Правила проектирования (с изменением N 1)
СП 385.1325800.2018 Защита зданий и сооружений от прогрессирующего обрушения. Правила проектирования. Основные положения (с изменением N 1)
СП 430.1325800.2018 Монолитные конструктивные системы. Правила проектирования
СП 432.1325800.2019 Покрытия огнезащитные. Мониторинг технического состояния
СП 435.1325800.2018 Конструкции бетонные и железобетонные монолитные. Правила производства и приемки работ
СП 484.1311500.2020 Системы противопожарной защиты. Системы пожарной сигнализации и автоматизация систем противопожарной защиты. Нормы и правила проектирования
СП 485.1311500.2020 Системы противопожарной защиты. Установки пожаротушения автоматические. Нормы и правила проектирования
СП 486.1311500.2020 Системы противопожарной защиты. Перечень зданий, сооружений, помещений и оборудования, подлежащих защите автоматическими установками пожаротушения и системами пожарной сигнализации. Требования пожарной безопасности
Примечание - При пользовании настоящим сводом правил целесообразно проверить действие ссылочных документов в информационной системе общего пользования - на официальном сайте федерального органа исполнительной власти в сфере стандартизации в сети Интернет или по ежегодному информационному указателю "Национальные стандарты", который опубликован по состоянию на 1 января текущего года, и по выпускам ежемесячного информационного указателя "Национальные стандарты" за текущий год. Если заменен ссылочный документ, на который дана недатированная ссылка, то рекомендуется использовать действующую версию этого документа с учетом всех внесенных в данную версию изменений. Если заменен ссылочный документ, на который дана датированная ссылка, то рекомендуется использовать версию этого документа с указанным выше годом утверждения (принятия). Если после утверждения настоящего свода правил в ссылочный документ, на который дана датированная ссылка, внесено изменение, затрагивающее положение, на которое дана ссылка, то это положение рекомендуется применять без учета данного изменения. Если ссылочный документ отменен без замены, то положение, в котором дана ссылка на него, рекомендуется применять в части, не затрагивающей эту ссылку. Сведения о действии сводов правил целесообразно проверить в Федеральном информационном фонде стандартов.
В настоящем своде правил применены термины по [4], а также следующие термины с соответствующими определениями:
3.1.1 закладная деталь в железобетоне: Металлическая деталь, устанавливаемая в железобетонных конструкциях до бетонирования и используемая для соединения конструкций, установки и крепления технологического оборудования и т.д.
3.1.2 крупногабаритный модуль: Автономный большеразмерный компоновочный пространственный объемно-планировочный элемент здания, который может содержать готовую к использованию квартиру, офисное или торговое помещение, часть шахты лифтов, входную группу здания и т.п.
Примечание - В настоящем своде правил термин используется применительно к конструктивному решению модуля из железобетона.
3.1.3 монтаж: Сборка, установка в проектное положение с последующим постоянным закреплением конструкций или конструктивных элементов для дальнейшей нормальной эксплуатации зданий.
3.1.4
|  
         навесная фасадная система: Фасадная система, включающая в себя внешний облицовочный, внутренний и утепляющий слой (при необходимости), прикрепленные к несущим конструкциям здания (стенам, колоннам и/или перекрытиям). [СП 267.1325800.2016, пункт 3.21]  | 
3.1.5 панель: Плоскостной сборный элемент, применяемый для возведения стен и перегородок.
3.1.6 плиты перекрытия: Сборный элемент междуэтажной горизонтальной конструкции.
3.1.7 поддон: Элемент формы, предназначенный для образования в процессе формования нижней поверхности изделия.
3.1.8 самобалансирующий строп: Строповочное устройство, позволяющее стальным канатам обеспечить с помощью системы полиспастов равное усилие натяжения в каждой ветви при подъеме крупногабаритных изделий.
3.1.9
|  
         стенды: Формовочные площадки, оборудованные механизмами для формования изделий на месте. [СП 130.13330.2018, пункт 3.1.12]  | 
3.1.10 строп: Грузозахватное устройство, снабженное на конце крюком, скобой, кольцом и т.п.
3.1.11 траверса: Приспособление, применяемое для подъема краном грузов с их закреплением одновременно в нескольких местах с помощью грузозахватных устройств.
В настоящем своде правил применены следующие сокращения:
АВР - автоматический ввод резерва;
АРМ - автоматизированное рабочее место;
АСКУЭ - автоматическая система коммерческого учета водоснабжения и электроэнергии;
АУПС - автоматическая установка пожарной сигнализации;
ВПВ - внутренний противопожарный водопровод;
ВРУ - вводно-распределительные устройства;
ВТЗ - воздушно-тепловая завеса;
ГВС - горячее водоснабжение;
ГО - гражданская оборона;
ГРО - геодезическая разбивочная основа;
ГРЩ - главный распределительный щит;
ИТП - индивидуальный тепловой пункт;
ИТР - инженерно-технические работники;
КГМ - крупногабаритный модуль;
ЛЛУ - лестнично-лифтовой узел;
МОП - места общего пользования;
ПОС - проект организации строительства;
ППР - проект производства работ;
ППУ - панели противопожарных устройств;
ПТО - пластинчатые теплообменники;
СКС - структурированная кабельная система;
СОУЭ - система оповещения и управления эвакуацией;
СТС - специализированные транспортные средства;
ТП - трансформаторная подстанция;
ХВС - холодное водоснабжение;
ЧС - чрезвычайные ситуации;
ШЛ - шахты лифтов;
ЭВЛ - эвакуационно-лестничный узел.
4.1 Градостроительные требования, предъявляемые при проектировании, следует принимать в соответствии с СП 42.13330, а также с региональными нормативами градостроительного проектирования и иными нормативными документами по проектированию.
4.2 Расчет площадей помещений, общей площади строительного объема здания следует определять в зависимости от функционального назначения зданий по СП 160.1325800, СП 118.13330 или СП 54.13330.
4.3 Минимальная высота помещений различного назначения определяется в соответствии с СП 54.13330, СП 118.13330. В жилых помещениях высота от пола до потолка должна быть не менее 2,5 м.
4.4 Санитарно-эпидемиологические требования следует принимать в соответствии с действующими гигиеническими нормативами.
4.5 Безопасность на всех этапах жизненного цикла здания обеспечивается в соответствии с требованиями [1], ГОСТ Р 53195.1, ГОСТ Р 53195.2.
4.6 Конструктивная система здания должна обеспечивать прочность, жесткость и устойчивость на стадиях изготовления, транспортирования, возведения и в период эксплуатации при действии всех проектных нагрузок и воздействий.
4.7 Срок службы здания следует определять в задании на проектирование в соответствии с требованиями ГОСТ 27751.
4.8 Монолитные конструктивные системы фундаментов и первого этажа проектируют в соответствии с требованиями СП 430.1325800, СП 311.1325800 с учетом СП 63.13330, используя жесткие узлы сопряжений.
Сборные железобетонные конструкции должны соответствовать требованиям СП 63.13330, СП 70.13330 и СП 311.1325800.
Требования к проектированию инженерных сетей, систем приведены в разделе 9.
4.9 В рабочей документации (ГОСТ Р 21.1101) в необходимых случаях должны быть указаны характеристики материалов, в частности для наружных подземных конструкций и фундаментов, водонепроницаемость и коррозионная стойкость, обеспечивающие прочность и устойчивость здания на всех этапах жизненного цикла, а также предусмотрена возможность транспортирования КГМ и возведения здания при отрицательных температурах и неблагоприятных погодных условиях.
4.10 Доступность здания для маломобильных групп населения, планировка участка, помещений, предназначенных для пребывания или проживания маломобильных групп населения, должны соответствовать требованиям СП 59.13330, СП 136.13330, СП 137.13330, СП 138.13330, СП 140.13330, СП 147.13330.
4.11 Обеспечение пожарной безопасности следует выполнять в соответствии с требованиями [5], ГОСТ 30247.0, СП 2.13130, СП 4.13130.
Детализация требований пожарной безопасности приведена в 9.7 настоящего свода правил.
4.12 Производство изделий должно включать следующие технологические процессы: складирование арматуры и хранение исходного сырья для приготовления бетона; изготовление арматурных и закладных изделий; приготовление бетонной смеси; формование изделий; тепловлажностная обработка; распалубка и доводка; комплектация и отделка объемного КГМ.
4.13 При производстве изделий КГМ необходимо соблюдать требования СП 130.13330 и технологической документации на оснастку, инструмент, технологические процессы применительно к условиям конкретного производства и виду изделий, а также требования настоящего свода правил.
4.14 Организация и производство работ по возведению здания должны соответствовать требованиям законодательства Российской Федерации, СП 48.13330 и СП 70.13330.
4.15 Выполнение строительных работ следует начинать только при наличии комплексной проектно-технической утвержденной документации и ППР, разработанного в соответствии с СП 48.13330.
4.16 Работы следует выполнять в соответствии с ППР, соблюдая: последовательность выполнения работ по монтажу; пространственную неизменяемость конструкций в процессе их укрупнительной сборки и установки в проектное положение; устойчивость смонтированных конструкций; безопасные условия труда.
4.17 Строительная площадка должна быть ограждена в соответствии с требованиями ГОСТ 23407, оборудована знаками безопасности по ГОСТ 12.4.026, освещена в темное время по ГОСТ 12.1.046.
4.18 Выезд с территории строительной площадки должен быть оборудован пунктом мойки колес.
4.19 До начала работ по возведению наземной части здания следует завершить выполнение работ подготовительного и нулевого циклов, включая прокладку коммуникаций, планировку прилегающей территории, устройство постоянных или временных дорог, установку инвентарных временных сооружений для размещения рабочих и инженерно-технического персонала.
4.20 Выбор средств механизации и параметров технологического процесса следует осуществлять поэтапно, в зависимости от основного технологического процесса (подготовка строительной площадки, разработка котлована, устройство монолитных фундаментов и первого этажа, монтаж КГМ и т.д.).
4.21 Монтаж КГМ следует проводить в соответствии с СП 70.13330. Временное складирование материалов и изделий следует осуществлять с учетом последовательности монтажа.
4.22 Возведение монолитных конструкций в соответствии с требованиями СП 435.1325800 должно включать выполнение комплекса взаимосвязанных процессов:
- опалубочные работы (изготовление и установка в проектное положение опалубки);
- арматурные работы (изготовление и установка арматурных изделий (каркасов, сеток) и закладных деталей);
- бетонные работы (приготовление, транспортирование и подача бетонной смеси к месту укладки, ее укладку, уплотнение и уход за твердеющим бетоном).
4.23 При планировании выполнения монолитных работ в ППР должны быть определены:
- выбор типа и комплекта опалубки;
- правила армирования, изготовления, транспортирования, хранения и складирования арматурных изделий и закладных деталей;
- способ подачи и укладки бетонной смеси;
- выбор бетоноукладочного комплекса;
- способ обеспечения условий твердения бетона в конструкции.
4.24 За основу строительного процесса монтажа необходимо принять следующие положения:
- поточность строительства;
- монтаж КГМ по часовому графику с транспортных средств;
- комплектация и централизованная поставка всех материалов по графикам непосредственно на рабочее место;
- максимальное совмещение работ по монтажу КГМ с внутренними общестроительными и специальными работами, включая монтаж лифтов и окончательные санитарно-технические, электромонтажные и отделочные работы.
4.25 Операционный контроль при изготовлении железобетонных конструкций КГМ следует осуществлять в соответствии с СП 130.13330. Также строительный контроль КГМ, в том числе контроль актирования скрытых работ, осуществляется на заводе-изготовителе в соответствии с требованиями СП 48.13330.
При возведении здания строительный контроль следует осуществлять в соответствии с требованиями СП 48.13330 и СП 70.13330.
Точность геометрических параметров конструкций следует назначать на основании расчета точности по ГОСТ 21779 и ГОСТ 21780.
4.26 Требования по обеспечению безопасности при выполнении работ и требования к качеству продукции приведены в разделах, посвященных отдельным этапам, и в обобщенном виде в разделе 12.
5.1.1 В рабочей документации следует указать необходимые параметры по ГОСТ 25192, в том числе: номинальные значения характеристик и свойств бетона (классы, марки и другие показатели); фактическую прочность бетона (в проектном возрасте, отпускная); морозостойкость и водонепроницаемость.
5.1.2 Материалы для приготовления бетонных смесей должны соответствовать ГОСТ 7473.
5.1.3 Для приготовления бетонных смесей следует применять цементы по ГОСТ 30515 и ГОСТ 31108. Заполнители для тяжелых и мелкозернистых бетонов должны удовлетворять требованиям ГОСТ 26633, ГОСТ 31914, а также требованиям стандартов на конкретные виды заполнителей: ГОСТ 8267, ГОСТ 8736, ГОСТ 32495. Бетонные смеси, готовые к употреблению, изготовляют, транспортируют и хранят в соответствии с требованиями ГОСТ 7473.
5.1.4 Для регулирования технологических свойств бетонной смеси, а также для выполнения проектных требований по прочности, водонепроницаемости и морозостойкости применяют три вида добавок: химические, минеральные и органоминеральные. Добавки должны соответствовать требованиям ГОСТ 24211, ГОСТ Р 56178 и ГОСТ Р 56592.
5.1.5 Вода для приготовления бетона должна соответствовать требованиям ГОСТ 23732.
5.2.1 Применяемая арматура, арматурные и закладные изделия должны соответствовать требованиям ГОСТ 5781, ГОСТ 6727, ГОСТ 8478, ГОСТ 34278, ГОСТ 23279, ГОСТ 34028, ГОСТ Р 52544, ГОСТ Р 57997.
5.2.2 В рабочей документации следует указать: форму и размеры арматуры, арматурных изделий; классы и марки стали; положение арматуры и арматурных изделий; покрытие поверхности арматуры, арматурных изделий, арматурных выпусков, при необходимости, антикоррозионным составом.
6.1.1 Форма КГМ - это шестигранный параллелепипед, изготовление которого возможно в условиях роботизированного производства.
6.1.2 Использование КГМ позволяет создавать разнообразные объемно-планировочные решения квартир и помещений общественного назначения в пределах максимальных размеров модуля: поперечный - 7,5 м; продольный - 15,5 м; высота - 3,55 м.
Примечание - Общая площадь такого модуля составляет обычно не более 100 м2 (рисунок 6.1).

Рисунок 6.1 - Габариты основного модуля без потолочного покрытия
6.1.3 В пределах выбранных габаритных размеров модуля допускается менять планировку и использовать помещения для общественных целей (сервисные службы, магазин и т.д.), соединяя, при необходимости, два-три модуля.
6.1.4 Здания с применением объемных КГМ следует проектировать по основному варианту схемы - поэтажная перекладка ("перевязка") модулей, за исключением модулей МОП и ЛЛУ (рисунок 6.2).

а - пространственная схема сборки блоков; б - план верхнего этажа; в - план нижнего этажа; 1 - 6 - основной КГМ; 7, 8 - модуль МОП; 9 - двухэтажный модуль ЭВЛ
Рисунок 6.2 - Пример схемы сборки здания
6.1.5 В крупногабаритных модулях в соответствии с архитектурно-планировочным решением рекомендуется предусматривать лоджии, балконы, кухни, санузлы, а также другие помещения, насыщенные инженерным оборудованием. В модулях целесообразно устанавливать оконные и дверные блоки, вентиляционные системы, санитарно-технические приборы, оборудование и подводки к ним, скрытую электропроводку, встроенную мебель, при необходимости, а также проводить внутреннюю отделку всех помещений и устройств фасадов.
6.1.6 Состав, площади и взаимное расположение функционально-планировочных компонентов определяют заданием на проектирование.
6.1.7 Лестницы и лифты, входные группы проектируются в виде отдельных КГМ.
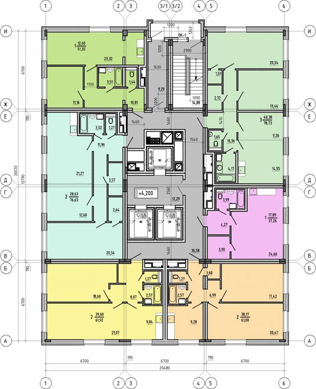
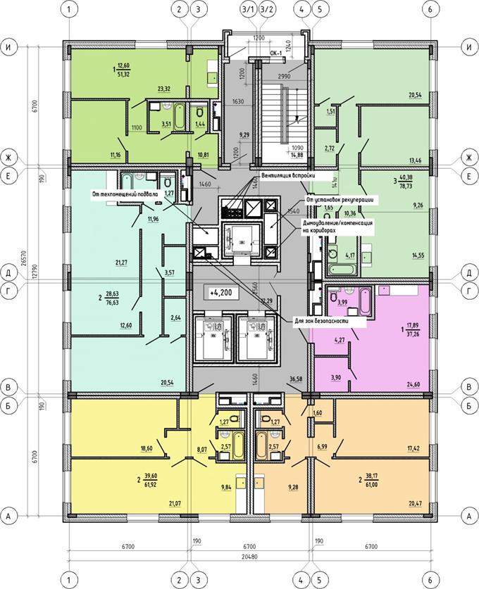
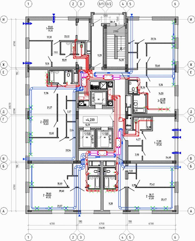
Пример плана этажа здания из КГМ приведен на рисунке 6.3.

Рисунок 6.3 - Пример плана типового этажа жилого здания
6.1.8 Полнота отделки и степень заводской готовности объемных КГМ и пространственных элементов устанавливаются заказчиком с учетом технико-экономического обоснования, региональных и местных условий, а также времени года и обеспеченности их защиты при транспортировании и монтаже.
6.1.9 Степень заводской готовности может достигать 95% - 98% для модулей-квартир и 90% - 95% для модулей МОП, в том числе ЭВЛ, при обязательной полной готовности санитарно-технической, электротехнической и слаботочной разводки сетей с установкой оборудования, окончательной отделкой стен, потолков и устройством полов.
6.1.10 При проектировании и последующем исполнении элементы конструкций и инженерного оборудования, срок службы которых меньше срока службы здания (столярные изделия, покрытия полов и кровель, оборудование, инженерные сети и т.п.), должны быть легко заменяемы. Их замена не должна нарушать несущую способность смежных элементов конструкций и связей.
6.1.11 Размещение инженерного оборудования и разводок сантехнических, электротехнических и слаботочных систем в конструктивных элементах модуля здания следует проектировать с учетом возможного доступа к ним для устройства стыков этих систем, последующей их опрессовки, дальнейшей эксплуатации, ремонта и замены без нарушения тепло-, звуко-, гидро- и пожароизоляции помещений (квартир).
6.1.12 Для достижения вариантности и художественной выразительности зданий допускается предусматривать взаимные смещения, сдвиги и повороты секций, отдельных модулей (блоков, секций) при соблюдении условий надежности и безопасности здания.
6.1.13 Проекты модульных зданий должны предусматривать возможность возведения их в зимнее время. В этих целях в проектах необходимо учитывать размещение теплоизоляции во всех гранях (шесть сторон) модуля, одновременно выполняющей в период эксплуатации здания функции звуко-, тепло- и пожароизоляции помещений.
6.1.14 Назначение размеров объемных модулей и пространственных элементов (ширины, длины и высоты) следует осуществлять в допускаемых пределах на основе модульной координации. При этом следует применять осевой принцип установления размеров между модульными разбивочными осями.
Основная номенклатура и типы КГМ и пространственных элементов показаны на рисунке 6.4:
1 - основной КГМ (жилая часть - одна или несколько квартир (помещений)) - система ребристых диафрагм внутренних и наружных стен, ограждающей верхней на металлокаркасе и несущей нижней плит перекрытий;
2 - КГМ с меньшим числом пилонов;
3 - КГМ МОП ЛФУ. Вертикальные стены модуля МОП имеют сплошные сечения со встроенными в них рабочими пилонами;
4 - модуль ЭВЛ, от одного до трех этажей (частично замкнутый пространственный элемент);
5 - блок-модуль ШЛ, от одного до трех этажей (частично замкнутый пространственный элемент);
6 - блок многоэтажной системы балконов, эркеров и т.п. (частично замкнутый пространственный элемент из легких конструктивных материалов);
7 - вход (вариант - незамкнутый пространственный элемент).

1 - основной КГМ; 2 - КГМ с меньшим числом пилонов; 3 - КГМ МОП ЛФУ; 4 - модуль ЭВЛ; 5 - блок-модуль ШЛ; 6 - блок многоэтажной системы балконов, эркеров и т.п.; 7 - вход
Рисунок 6.4 - Номенклатура объемных модулей и пространственных элементов
6.1.15 В КГМ, как правило, в жилых зданиях располагаются все помещения квартиры - передняя (прихожая), коридоры (холлы), кладовая, кухня, санузлы, гостиная и спальни, а в общественных - холлы, рекреации, офисы, классы, игровые комнаты и т.д.
6.1.16 Номенклатура пространственных элементов может быть разнообразной и представлять собой уникальные (штучные) цельноформованные изделия (детали входов, эркеры), объединенные между собой на заводе-изготовителе в объемную конструкцию с плоскими или другими объемными элементами стальных и алюминиевых металлоконструкций (объемные балконы с остеклением, витражи, ограждения лоджий (ГОСТ 25772), эркеров, фрагменты крыш, фасадов и других частей здания).
6.1.17 Типоразмеры объемных модулей и пространственных элементов определяют из условий грузоподъемности транспортно-монтажных механизмов, а также действующих ограничений при перевозках их специальным транспортом.
6.1.18 Ширину и длину объемных модулей при проектировании и строительстве зданий рекомендуется принимать кратными укрупненному размеру 3М (30 см) по ГОСТ 28984 с учетом использования запроектированного и действующего технологического оборудования на заводе-изготовителе.
6.1.19 Высоту модуля следует назначать исходя из высоты и ширины ступеней лестничной клетки и высоты потолков помещений (СП 54.13330 и СП 118.13330).
6.1.20 Конкретный выбор номенклатуры, типоразмеров объемных модулей или марок конструкций определяется проектом здания. Рекомендуется при проектировании в одном здании (секции) размещать в плане этажа-секции не более пяти-шести габаритных типоразмеров (марок) модулей, укрупняя их до возможных габаритов.
6.2.1 Плоские детали (стены) ЛЛУ и МОП могут объединяться в крупногабаритную конструкцию единой железобетонной плитой по технологии производства КГМ (см. рисунок 6.4, 3).
6.2.2 При проектировании необходимо учитывать, что стены модуля МОП ЭВЛ (см. рисунок 6.4, 4) имеют сплошное сечение и в объемно-сборном исполнении работают на горизонтальные ветровые и вертикальные нагрузки, как вертикальные связи (диски жесткости) модуля, секции и здания в целом.
6.2.3 В стенах модуля ЛЛУ в определенных проектом местах в плоскости изделий следует размещать опорные пилоны со смещением по вертикали вниз относительно плит перекрытия, так же, как и в крупногабаритных модулях, в целях обеспечения общей конструктивной схемы стыковки модулей на "перевязку". Толщина стен модуля равна толщине опорных пилонов.
В модулях МОП должны быть предусмотрены сквозные проемы, необходимые для эксплуатации этажей-секций, исходя из несущей способности конструкций.
6.2.4 В числе проходов необходимо предусмотреть проходы в квартиры и помещения инженерного назначения, на эвакуационную лестницу и в ШЛ, а также проемы под системы общеобменной вентиляции, кондиционирования, подпора воздуха и дымоудаления.
6.2.5 Конструкция верхней и нижней плит перекрытия модуля МОП не отличается от конструкции плит КГМ, за исключением дополнительного армирования по расчету ребер нижней плиты в местах примыкания к проходам вертикальных стояков сетей, блоков дымоудаления и ШЛ в целях усиления в этих местах плит перекрытий.
6.2.6 Армирование стен модуля, кроме мест установок основных несущих арматурных каркасов пилонов, осуществляется установкой дополнительных спаренных плоских сеток, объединенных в объемные каркасы.
6.3.1 Шахты лифтов объемно-модульного домостроения могут исполняться в одно-, двух- или трехэтажном вариантах. Это объемный элемент, выполненный на заводе-изготовителе в монолитном или сборно-монолитном варианте, с толщиной железобетонных стен по расчету, но не менее 80 мм, в зависимости от грузоподъемности лифта, числа этажей и применяемого оборудования по ГОСТ 5746, ГОСТ 22845, ГОСТ 33652, ГОСТ 34305, ГОСТ Р 53296, ГОСТ Р 53780, ГОСТ Р 55966 (см. рисунок 6.4, 5).
6.3.2 Объемный элемент ШЛ может быть исполнен как единая конструкция на два лифта в плане модуля, однако при этом необходимо учитывать этажность исполнения изделия, и соответственно, его массу и габаритные размеры.
6.3.3 Объемный элемент ШЛ работает в конструкции секции здания как независимый элемент. Все вертикальные нагрузки - собственный вес, вес людей и оборудования, направляющих, кабины лифта и т.п. - передаются через вертикальные стенки ШЛ непосредственно на фундаментную плиту. Таким образом, объемный элемент ШЛ исключен из работы ядра жесткости здания.
6.3.4 В местах соприкосновения со стенами жесткости одноэтажного модуля МОП, ЛЛУ необходимо запроектировать вибро-, звукоизоляционные вставки по всему внешнему периметру ШЛ толщиной не менее 4 см и высотой на толщину высоты ребер нижней плиты перекрытия, а также скользящие вертикальные опоры-направляющие, обеспечивающие устойчивость конструкции ШЛ при эксплуатации и точность установки при монтаже (рисунок 6.5).

Рисунок 6.5 - Пример узла примыкания шахты к стене модуля МОП
6.3.5 Объемные элементы ШЛ стыкуются по высоте через закладные детали, установленные в углах объемных железобетонных элементов (не менее четырех единиц на одну опорную плоскость, с размерами и толщиной пластины и диаметрами выпусков арматуры по расчету). Стык пластин (закладных) в готовых элементах объемных ШЛ осуществляется на сухую (контактный стык) с точностью установки ШЛ друг на друга с возможным допуском (отклонением) не более 5 мм.
6.3.6 Армирование объемной ШЛ представляет собой объемный арматурный каркас, изготовленный на станке из плоских сеток с диаметрами продольной и поперечной арматуры и шагом установки по расчету. В углах объемной ШЛ, как правило, устанавливают дополнительную угловую арматуру в виде отдельных сеток.
6.3.7 На заводе-изготовителе в ШЛ проводят монтаж направляющих и оборудования лифтов, кабины, устанавливают противовесы и т.д. Наладку работы лифтов следует осуществлять после монтажа здания непосредственно на объекте.
6.4.1 При строительстве зданий с применением КГМ ЭВЛ представляют собой крупногабаритную конструкцию объемного полузамкнутого модуля высотой от двух до трех этажей. Один такой модуль монтируется без "перевязки" с основными одноэтажными КГМ с передачей вертикальных нагрузок на фундаментную плиту через пилоны нижележащих этажей (см. рисунок 6.4, 4).
6.4.2 Горизонтальные связи между уложенными с "перевязкой" КГМ, а также между одноэтажными модулями МОП, ЛЛУ и ЭВЛ следует выполнять с помощью металлических соединителей, болтовых затяжек в местах сопряжения пилонов этих модулей, встроенных в конструкцию стен (на каждый пилон не менее двух единиц по высоте одного этажа).
6.4.3 Z-образные марши торцевыми плоскостями площадок с помощью выпусков арматуры, выходящих из них, соединяются между собой и с двумя железобетонными стенами сплошного сечения, внутри которых размещены опорные пилоны (не менее двух на одну стену), объединенные между собой обвязочными балками.
6.4.4 На постах отделки завода-изготовителя на каркас объемного блока монтируются навесные фасады, а также выполняются инженерные и отделочные работы.
6.4.5 Z-образные лестницы армируют аналогично железобетонным маршам, применяемым в полносборном крупнопанельном домостроении, но в целях снижения массы многоэтажного КГМ лестницы проектируют в облегченном тонкостенном варианте с несущими железобетонными продольными ребрами лестничных маршей и площадок.
6.4.6 Армирование стен, объединяющих марши, следует проводить дополнительными спаренными сетками, которые заложены между несущими каркасами пилонов, установленных в форму-установку в двух- или трехэтажном исполнении.
6.4.7 Многоэтажный ЭВЛ дополнительно усиливает ядро жесткости секции и здания в целом как объемный модуль с учетом вертикальной "перевязки".
6.4.8 Ступени маршей по действующим нормам, исходя из высоты этажа модулей, имеют типовые размеры 300 x 150 мм. Ширину маршей и площадок в модуле проектируют в соответствии с нормами пожарной безопасности и в зависимости от назначения здания по СП 1.13130.
6.4.9 В многоэтажных стенах модуля должны быть запроектированы дверные проемы в соответствии с принятыми объемно-планировочными решениями секций.
6.4.10 Дополнительная объемная жесткость лестничного блока (двух- или трехэтажного модуля) обеспечивается установкой распорных металлоконструкций, на которые крепят фасадные элементы, окна и витражи.
6.4.11 Объемный лестничный модуль в трехэтажном исполнении с устройством фасадов, установкой окон, дверей и витражей не должен весить более 80 т и превышать габариты транспортирования.
6.5.1 Фасады здания должны отличаться художественной выразительностью, достигаемой использованием объемных лоджий, карнизов и выступающих эркеров, подчеркивающих пластику фасадов (см. рисунок 6.4, 6).
6.5.2 На заводе-изготовителе может быть организовано кроме плоскостных производство нестандартных элементов, формирующих наружную фасадную часть модулей в виде эркеров или объемных закрытых лоджий. Изготовление таких модулей с установкой в форму-стапель уникальных деталей возможно с криволинейными плоскостями и по технологии, не отличающейся от изготовления КГМ, прямоугольных в плане.
6.5.3 Проектирование эркеров или лоджий на одной крупноразмерной плите позволяет получить дополнительную площадь в здании, однако общий размер модуля не должен превышать габариты транспортирования.
6.5.4 В крупномодульном домостроении допускается проектирование балконов в виде отдельных элементов на высоту двух-трех этажей, навешиваемых и закрепленных на выступающие закладные детали фасада с помощью болтовых соединений.
6.5.5 На заводе-изготовителе такой объемный элемент изготовляют отдельно и облицовывают остекленными витражами.
6.6.1 Конструкция наружных стен модуля должна предусматривать возможность устройства фасадов здания с необходимыми архитектурно-художественной выразительностью и фактурой с размещением на них доборных и выступающих элементов (карнизов) и др.
6.6.2 В целях снижения веса модуля рекомендуется выполнять фасады из легких, прочных конструктивных и облицовочных материалов с исключением мокрых процессов. Например, монтаж наружного утеплителя следует проводить на быстротвердеющий клей.
6.6.3 В крупномодульном домостроении допускается также устройство вентилируемых фасадов.
6.6.4 Облицовочным слоем фасада могут быть различные декоративные материалы, по качеству соответствующие нормативным требованиям (плитка под кирпич, керамогранит, кассеты из стального оцинкованного листа и композитных материалов, композит, стеклофибробетон, штукатурные декоративные включения и др.).
6.6.5 Крепление фасадных элементов следует осуществлять к конструкциям модуля с его фасадных сторон к верхним обвязочным балкам, несущим ребрам нижней плиты и вертикальным и горизонтальным ребрам элементов модуля.
6.6.6 Конструктивная часть фасадов и их крепления разрабатываются в отдельном разделе проекта по заданию архитекторов.
6.6.7 Разрезку наружных стен принимают по принципу "шаг-этаж", как в полносборном домостроении. Горизонтальные и вертикальные швы на фасаде должны иметь ширину проектного раскрытия не более 10 мм (в случае кассет из стального оцинкованного листа допускается 20 - 22 мм).
6.6.8 При выборе типа конструкции и материалов утеплителя наружных стен модулей следует учитывать в комплексе следующие климатические воздействия: температура и влажность наружного воздуха, скорость ветра, интенсивность осадков и солнечной радиации, агрессивность среды.
6.6.9 Из возможных вариантов конструкций наружных стен предпочтение следует отдавать той конструкции, которая обеспечивает наибольший комфорт для проживания людей, более высокую надежность эксплуатационных характеристик, меньшую трудоемкость изготовления и монтажа, а также более широкое применение местных материалов. При этом необходимо рассматривать и отдавать приоритет фасадам с наибольшими привлекательностью и художественной выразительностью, с учетом приведенных затрат.
6.6.10 Наружная утепляющая часть стены может быть устроена из блоков или плит:
- из пенополистирола по ГОСТ 15588 с учетом противопожарных требований;
- плит из минеральной ваты по ГОСТ 9573 плотностью не более 90 кг/м3;
- других теплоизоляционных материалов.
Толщину утеплителя определяют теплотехническим расчетом (по СП 50.13330).
6.6.11 Конструкция подсистемы, крепления утеплителя и элементов навесного фасада, а также устройство (гидроизоляция) горизонтальных и вертикальных швов должны обеспечивать в процессе эксплуатации нормативный тепловлажностный режим в помещениях здания.
6.6.12 Необходимо предусматривать технические и иные средства для обслуживания и ремонта фасадов, в том числе на крыше здания, обеспечивающие безопасность персонала и не нарушающие архитектурных и конструктивных решений здания. Для ремонта фасада следует разрабатывать отдельный проект, предусматривающий технические средства и последовательность производства работ.
6.7.1 Входная группа может быть выполнена на заводе-изготовителе в виде единой объемной пространственной полузамкнутой конструкции, выступающей за внешние габариты секции на уровне первого или первого и второго этажей здания.
6.7.2 В модуле входной группы на заводе-изготовителе устанавливают окна, двери, крупноразмерные витражи, карнизные элементы фасада и др. Внутри модуля выполняют отделку и устанавливают инженерное оборудование.
6.7.3 Транспортирование блока на объект следует проводить отдельно. Это важно учитывать при проектировании, в том числе и как временное укрытие входа на период монтажа здания для обеспечения теплового контура.
6.8.1 Оконные блоки, двери и витражные заполнения фасадов могут производиться на том же заводе-изготовителе, который производит модули, или с доставкой комплектов окон по заданной номенклатуре со смежного завода-изготовителя.
6.8.2 Оконные блоки и витражи для КГМ выполняют из различных материалов - металлокаркас с алюминиевым обрамлением, алюминиевые профили, деревянные и пластиковые короба и рамы с установкой двойных или тройных стеклопакетов в зависимости от теплотехнических расчетов и назначения здания.
6.8.3 Сопряжения оконных и витражных коробов с наружными стенами должны быть герметичными и выполненными в зависимости от применяемых материалов (ГОСТ 30971), конфигурации и размеров окон (витражей).
6.9.1 При производстве отдельных конструкций модуля используют способ раскладки и крепления материалов, позволяющий впоследствии обеспечить звуко-, тепло- и пожароизоляцию всех помещений здания.
6.9.2 Эти материалы также выполняют функции опалубки несущих ребер внутренних и наружных стен-скорлупок, а также нижней плиты перекрытия.
6.9.3 В межреберном пространстве нижней плиты размещают жесткую минераловатную плиту плотностью от 70 кг/м3. Толщину плиты принимают по расчету, но не менее 100 мм.
6.9.4 В межреберном пространстве вертикальных стен может быть размещен негорючий экструдированный пенополистирол марки не менее B35, толщиной по теплотехническому расчету, но не менее 70 мм по расчету огнестойкости, уложенный при производстве на мягкую, сплошного сечения, минеральную вату плотностью не менее 70 кг/м3 и толщиной не менее 80 мм.
6.9.5 В целях дополнительной пожарной безопасности в местах оконных и дверных проемов наружных и внутренних стен в соответствии с нормативными требованиями с внутренней стороны следует проводить обрамление железобетонного ребра установкой жесткой минераловатной плиты плотностью не менее 70 кг/м3 и на ширину не менее 150 мм от внутренней грани ребра по всему периметру обрамления.
6.9.6 После объемной сборки шести граней на главном производственном конвейере со всех внутренних сторон КГМ имеет ровные поверхности стен, потолка и нижней плиты, подготовленные под окончательную финишную отделку с установкой оконечных устройств инженерных систем.
6.9.7 Внутренние перегородки между помещениями, кухнями, комнатами, санузлами, коридорами рекомендуется выполнять из гипсокартона с устройством в них требуемой звукоизоляции с прокладкой инженерных электрических сетей. Толщина стен должна быть не менее 100 мм.
6.9.8 Гипсокартон между кухнями и санузлами, а также смежных с ними комнат и коридоров необходимо применять во влагостойком исполнении.
6.10.1 При модульном домостроении кровли зданий проектируют в соответствии с СП 17.13330 и выполняют в различных вариантах, в том числе с устройством жилой мансарды, в зависимости от этажности здания, места строительства и архитектурно-художественной выразительности фасадов.
6.10.2 По способу отвода атмосферных осадков кровли в модульном исполнении могут быть плоские, двух- и четырехскатные с внутренним или внешним отводом воды (для малоэтажных зданий).
6.10.3 Вариант плоской кровли крупных модулей с устройством внутреннего водостока не отличается принципиально от конструкций плоской кровли, запроектированной для зданий крупнопанельного или монолитного домостроения.
6.10.4 Крупногабаритные модули с кровельным покрытием по конструктивным особенностям аналогичны нижележащим этажам модулей, за исключением высоты.
6.10.5 В модулях кровли должна быть запроектирована организация слива воды в систему внутреннего водостока.
6.10.6 Свободные пространства в кровельных модулях допускается проектировать в пределах габарита, однако при этом следует выдерживать соотношения площадей бетонных стен модуля и свободных проемов для обеспечения жесткости конструкции.
6.10.7 Как правило, в верхних КГМ размещают внутреннее инженерное оборудование, в том числе оборудование управления лифтами, системы пожарной безопасности и др.
6.10.8 Кровли могут быть эксплуатируемыми. Исходя из этого, покрытия должны быть запроектированы в соответствии с действующими нормами с обеспечением теплового контура, гидроизоляции и др., включая устройство выходов на кровлю и монтаж необходимого технологического оборудования с установкой и испытанием на заводе-изготовителе. Правила устройства эксплуатируемых крыш изложены в СП 160.1325800. В части обеспечения пожарной безопасности следует руководствоваться 9.7 настоящего свода правил.
6.10.9 На эксплуатируемых кровлях допускается размещать площадки различного назначения: архитектурно-ландшафтные, с зелеными насаждениями и пешеходными дорожками, зоны отдыха, зимний сад и т.п.
6.10.10 При проектировании зданий пониженной этажности, включая малоэтажное или коттеджное строительство, допускается организация на заводе-изготовителе производства скатных кровель, т.е. двух-, трех- или четырехскатных модулей с отводом воды в наружные водосливы.
6.10.11 Строительная часть кровли может быть запроектирована в металле, железобетоне или деревянных конструкциях с выполнением покрытия стропильной части на заводе-изготовителе.
6.10.12 Необходимо учитывать при проектировании, что высота отдельных скатных модулей не может превышать 3,55 м исходя из условий транспортирования изделия на объект.
6.10.13 На объекте после монтажа следует предусмотреть доработку межмодульных стыков в соответствии с проектным решением. Как правило, гидроизоляционные слои кровли рекомендуется выполнять на объекте строительства после завершения монтажа модулей в проектное положение во избежание протечек в местах их примыкания.
6.10.14 На крышах с эксплуатируемыми площадками вентиляционные каналы, находящиеся в границах данных площадок или на расстоянии до 8 м от них по горизонтали, предназначенные для приема наружного воздуха, следует предусматривать с минимальным расстоянием от кровли до нижней части приемного устройства наружного воздуха, но не менее 3 м.
Вентиляционные каналы, предназначенные для удаления воздуха, следует предусматривать с расстоянием от кровли до нижней части выпускного устройства не менее 5 м. При этом следует учитывать требования ГОСТ Р ЕН 13779.
7.1.1 Для обеспечения надежности здания в течение расчетного срока его эксплуатации следует:
- применять, исходя из конструктивных решений, обеспечивающих нормативную несущую способность здания, качественное сырье и материалы, отвечающие проектным требованиям по прочности, долговечности и ремонтопригодности конструкций, выполненных из этих материалов;
- учитывать при проектировании условия климатического района строительства, т.е. назначать параметры сырья и материалов, исходя из физико-механических, теплотехнических, огнестойких, акустических и других характеристик с учетом особенностей технологии изготовления, монтажа, эксплуатации, а также возможного изменения их свойств во времени;
- предусматривать последовательность и порядок выполнения работ по устройству конструкций модулей, в том числе связей, стыков и узлов, позволяющих обеспечить надежную работу их в процессе эксплуатации здания.
7.1.2 Долговечность конструкции КГМ обеспечивается:
- выбором для конструкций наружных ограждений и их отдельных слоев материалов с морозостойкостью, соответствующей климатическому району строительства и требованиям эксплуатации;
- сочетанием в слоистых конструкциях материалов, исключающих во время расчетного срока эксплуатации расслоение, старение утеплителя и разрушение от коррозии расчетных металлических соединений и связей по ГОСТ 31384, СП 28.13330, СП 72.13330;
- применением тепло-, звуко-, гидро- и пожароизоляционных материалов и прокладок по СП 50.13330, СП 51.13330, расположенных в толще несущих конструкций, соответствующих расчетному сроку эксплуатации здания;
- конструированием внутренних и наружных стен, плит перекрытий, соединений их между собой и с другими элементами объемных модулей или пространственными конструкциями, обеспечивающих необходимый уровень трещиностойкости.
7.1.3 Выбор конструктивного решения здания из объемных модулей и пространственных элементов следует проводить в зависимости от его конкретного назначения и зоны строительства на основе статических и, при необходимости, динамических расчетов конструкций здания, геологических и климатических условий строительной площадки, исходя из имеющейся базы индустриального домостроения, а также с возможностью ее развития, освоения новой номенклатуры изделий, наличия подъемно-транспортных механизмов необходимой грузоподъемности, достигнутого уровня строительного производства, возможности его контроля.
7.1.4 Прочность и надежность зданий с применением объемных КГМ и пространственных конструкций определяются совместной работой всех элементов, обеспечиваемой расчетными и конструктивными связями в стыках и узлах соединений.
7.2.1 Пространственная жесткость здания с применением КГМ обеспечивается их совместной работой и надежной перевязкой с модулями одноэтажных МОП, а также многоэтажных ЭВЛ в сочетании с работой металлических горизонтальных связей.
7.2.2 С учетом "перевязки" модулей в работу включаются опорные пилоны, работающие на сжатие и на горизонтальный сдвиг от воздействия вертикальных нагрузок с совместной работой с распорными, горизонтальными, обвязочными балками, несущих ребер нижней плиты и торцевыми вертикальными рамами модуля, объединенными между собой с помощью болтовых соединений. От воздействия горизонтальных нагрузок на сдвиг в работу включаются нижняя монолитная несущая плита (горизонтальный диск жесткости) и вертикальные связи рамных конструкций модуля (рисунок 7.1).

а - нижние опорные зоны; б - верхние опорные зоны
Рисунок 7.1 - Опорные зоны модуля
7.2.3 Тяжелые модули ЭВЛ в двух- или трехэтажном исполнении и МОП в одноэтажном исполнении не "перевязываются" в системе здания, но в своей конструкции имеют внутренние стены сплошного сечения со встроенными в них несущими пилонами, которые, в свою очередь, соединяются горизонтальными связями с пилонами вертикальных стен "перевязываемых" модулей (рисунок 7.2).

Рисунок 7.2 - Модули эвакуационно-лестничного узла (а) и мест общего пользования (б)
7.2.4 Поэтажное опирание объемных модулей следует осуществлять непосредственной стыковкой верхних и нижних пластин пилонов (металлических закладных по системе "сухой стык"). Число опор-пилонов и их поперечное сечение, так же как и сечение распорных, обвязочных балок, несущих ребер нижней плиты, следует определять по расчету в зависимости от объемно-планировочных решений секций здания и его этажности, а также от класса здания по пожарной безопасности.
7.2.5 Конструктивное решение опирания пилонов КГМ должно обеспечивать передачу вертикальных нагрузок с минимальным значением эксцентриситета, которое не должно превышать 5 мм в двух направлениях.
7.2.6 При проектировании следует принимать, что в период производственно-технологических процессов на заводе-изготовителе, при транспортировании модулей, погрузочно-разгрузочных и монтажных работах на основные конструктивные элементы модуля (пилоны) воздействуют растягивающие усилия до 10 т на один пилон.
7.2.7 Ребристая диафрагма стен обеспечивает жесткость объемной конструкции модуля при транспортных и монтажных нагрузках в сочетании с устойчивой работой горизонтальных связей - нижней железобетонной и верхней на металлическом каркасе плит перекрытий.
7.2.8 При проектировании необходимо учитывать, что объемный КГМ не является монолитным элементом, а представляет собой сборную конструкцию, где все отдельные плоские стены из сборного железобетона объединяются в единый объем с нижней ребристой плитой и сборной плитой перекрытия на металлическом каркасе.
7.2.9 Все плоскостные изделия, из которых на заводе-изготовителе собирают КГМ, на первой стадии (до сборки) следует рассчитывать как отдельные изделия в соответствии с действующими нормативными требованиями, в том числе ГОСТ 13015, а далее, после объединения их в единую конструкцию, - в составе объемного сборного элемента.
7.2.10 В проектах при сборке зданий из объемных КГМ предусматривают только высокоточный монтаж с соблюдением требований ГОСТ 21779, ГОСТ 21780 и ГОСТ 23616. Для этого на заводских технологических линиях используют установку опалубки роботизированным способом, который обеспечивает высокоточное изготовление плоских стеновых панелей с допустимыми отклонениями от проектной документации по параметрам (рисунок 7.3):
- по длине - минус 2 мм;
- по ширине - минус 2 мм;
- по высоте сечения - минус 2 мм;
- по диагоналям изделия - ± 4 мм;
- в (из) плоскости изделия - ± 3 мм;
- по установке закладных деталей - ± 2 мм.

Рисунок 7.3 - Допуски на изготовление стеновых панелей и установку закладных деталей
7.2.11 После сборки модулей в объемный элемент допустимые отклонения от проектной документации составляют по параметрам (рисунок 7.4):
- по длине модуля - минус 5 мм;
- по ширине модуля - минус 5 мм;
- по высоте модуля - минус 5 мм;
- по высоте нижней плиты перекрытия - ± 3 мм;
- по диагонали нижней плиты перекрытия - ± 4 мм;
- в (из) плоскости нижней плиты - ± 3 мм;
- по установке закладных деталей нижней плиты - ± 2 мм;
- по высоте железобетонной верхней плиты - ± 3 мм;
- по диагонали верхней плиты - ± 4 мм;
- по диагонали объемного модуля - ± 7 мм (рисунок 7.3).

Рисунок 7.4 - Допуски на отклонения в собранном модуле верхней (а) и нижней плит (б)
7.2.12 Контроль за допустимыми отклонениями изделий осуществляют до начала бетонных работ только с применением высокоточного оборудования.
7.2.13 В зданиях горизонтальные связи (узлы сопряжения) должны быть установлены в уровне каждого перекрытия и этажа между всеми смежными и несущими конструкциями в пределах деформационного отсека. Две смежные несущие конструкции должны иметь узлы сопряжения, число и места установки которых определяют расчетом (рисунок 7.5).

Рисунок 7.5 - Угловой узел сопряжения двух смежных модулей
Размеры объемных модулей в плане и привязки их к планировочным осям зависят от схемы опираний пилонов верхних модулей на пилоны нижних и их расположения в зависимости от объемно-планировочных решений секций, квартир, МОП, исходя из необходимой несущей способности элементов конструкции.
7.3.1 Стыки модулей следует разделять по месту их расположения в здании на горизонтальные и вертикальные, каждые из которых, в свою очередь, подразделяются на наружные и внутренние. По типу сопрягаемых элементов они разделяются на стыки:
- модуля с модулем с поэтажной "перевязкой";
- модуля с модулем без поэтажной "перевязки" (модули ЭВЛ и МОП).
7.3.2 При проектировании стыков необходимо учитывать следующие требования:
а) эксплуатационные:
- обеспечение нормативной теплоизоляции,
- обеспечение гидроизоляции от атмосферных осадков,
- обеспечение требуемой звукоизоляции,
- обеспечение проектной долговечности,
- отсутствие элементов, ухудшающих интерьер помещений,
- обеспечение огнестойкости конструкции;
б) конструктивные:
- обеспечение работы стыка в соответствии с принятой расчетной схемой здания,
- обеспечение равнопрочности соединяемых в стыке участков сборных элементов на расчетные силовые воздействия,
- обеспечение необходимой пространственной жесткости и устойчивости здания на всех этапах монтажа и при эксплуатации с учетом возможных аварийных воздействий, в том числе предотвращения прогрессирующего обрушения,
- обеспечение несущей способности закладных деталей в бетоне и болтовых соединений;
в) производственные:
- обеспечение механизации и роботизации изготовления модулей,
- обеспечение условий монтажа модулей, в том числе при отрицательных температурах на строительной площадке.
Пример конструктивного решения узла сопряжения приведен на рисунке 7.6. Пример конструктивного решения узлов передачи вертикальных усилий через пилоны и нижние обвязочные балки приведен на рисунке 7.7.

Рисунок 7.6 - Пример конструктивного решения узла сопряжения модулей

Рисунок 7.7 - Конструктивное решение узлов передачи вертикальных усилий через пилоны и нижние обвязочные балки
7.3.3 При любых расчетных деформациях здания эксплуатационные качества стыков должны соответствовать требованиям нормативных документов.
7.3.4 При проектировании здания с использованием серийных модулей допускается внесение изменений, направленных на улучшение конструкций, в том числе с применением более эффективных герметизирующих и звуко-, теплоизоляционных материалов при соблюдении конструктивных требований.
7.3.5 Передача вертикальных нагрузок от вышележащего блока на нижерасположенный осуществляется через пилоны соосно практически без эксцентриситетов, а также горизонтальные обвязочные балки и нижние ребра плиты модуля.
7.3.6 При расчетах на сжатие пилонов в работу включается стержневая арматура, вваренная в торцевые пластины пилонов в раззенкованные отверстия. Число стержней, их диаметры, а также установка поперечной арматуры по высоте пилонов определяются расчетом.
7.3.7 Между пластинами верхних и нижних пилонов при проектировании допускается установка герметизирующих, тонких, выравнивающих подкладок из прочного материала толщиной не более 1 мм.
7.3.8 Горизонтальные стыки между элементами объемных модулей (кроме пилонов) заполняют герметичными звукоизоляционными прокладками из упругого материала толщиной не более 1,2 - 1,4 см, который после монтажа уплотняется до размера, соответствующего проектным допускам, с тем чтобы исключить движение воздушных потоков в межмодульном пространстве с обеспечением водонепроницаемости и звукоизоляции. Надежную герметичность необходимо обеспечить в местах стыковых соединений модулей как по вертикальным, так и по горизонтальным поверхностям.
7.3.9 Пространство между смежными модулями заполняется по всей плоскости (площади) вертикальной стены модуля, уложенной и закрепленной в изделии на заводе-изготовителе минеральной ватой плотностью не менее 70 кг/м3 с наклейкой гидроизоляционного материала.
7.3.10 При стыковке смежные, поэтажно "перевязываемые" модули соединяются между собой и с "неперевязываемыми" модулями МОП и ЭВЛ с помощью металлических горизонтальных элементов сопряжения (не менее двух единиц на высоту пилона каждого этажа). Привязка, размещение элементов сопряжения и их сечения определяются расчетом.
7.3.11 Элементы сопряжения следует устанавливать после монтажа модулей через отверстия в нишах пилонов с обеспечением проектной огнестойкости.
7.3.12 При монтаже и стыковке всех модулей секции на монтажном горизонте, сразу после их установки в проектное положение, следует проводить герметизацию горизонтальных и вертикальных стыков модуля по ГОСТ 25621 во избежание попадания в межмодульное пространство атмосферных осадков.
7.4.1 Объемный КГМ представляет собой железобетонную объемную замкнутую призматическую оболочку, собранную на заводе-изготовителе из шести граней в единый объемно-сборный конструктивный элемент (рисунок 7.8).

Рисунок 7.8 - Объемный крупногабаритный модуль в сборе
7.4.2 Модуль состоит из железобетонных вертикальных плоских продольных (по большему размеру) стен, торцевых и (возможно) внутренних рам (по меньшему размеру), отдельных дополнительных элементов и опорных пилонов, а также инженерных блоков, расположенных на железобетонной плите, имеющей ребристую структуру в продольном и поперечном направлениях, а сверху закрытых тонкостенной сборной железобетонной плитой на металлическом облегченном каркасе, соединенной с верхними обвязочными балками продольных и поперечных вертикальных стен ребристых диафрагм (рисунок 7.9).

Рисунок 7.9 - Вариант объемного крупногабаритного модуля с большими проемами для проектов со свободной планировкой (металлокаркас верхней плиты перекрытия)
7.4.3 Вертикальные стены по граням связаны между собой торцевыми распорными рамами путем болтового соединения (ГОСТ 1759.0), примеры которого показаны на рисунках 7.6 и 7.10.

Рисунок 7.10 - Пример узла сопряжения вертикальных стен
7.4.4 В каждой стене модуля допускается устраивать проемы между опорными пилонами с размерами, определенными расчетом.
7.4.5 Для обеспечения достаточной жесткости модуля, особенно в период транспортирования и монтажа, рекомендуется запроектировать железобетонные ребристые стены-диафрагмы в местах, где отсутствуют дверные, оконные и любые другие проемы, в том числе инженерного назначения.
7.4.6 Верхние балки (ригели) вертикальных стен развиты в сечении и совместно с сечениями пилонов представляют собой жесткую раму в объединенной конструкции, которая дополнительно усилена ребристой стеной-диафрагмой. На раму равномерно по периметру модуля опирается несущая нижняя плита вышележащего модуля.
7.4.7 Верхняя балка нижележащего модуля воспринимает нагрузки от давления рабочих продольных и поперечных балок нижней плиты вышележащего модуля, где они включаются в совместную работу, вызывая уменьшение значения изгибающих моментов и поперечных сил, в том числе за счет жесткости узлов соединения балок (ригелей) с пилонами.
7.4.8 В местах стыковки пилонов с верхней балкой должны быть запроектированы шпоночные углубления размером в плане, равным сечению пилонов, и высотой 10 см.
7.4.9 Использование шпоночного соединения в качестве системы ловителей позволяет обеспечить высокоточный монтаж модулей на монтажном горизонте.
7.4.10 Система шпоночных соединений с учетом "перевязки" модулей должна надежно воспринимать горизонтальные нагрузки (ветер, просадки, сейсмические воздействия по СП 14.13330).
7.4.11 Все усилия передаются на конструктивные элементы каркаса здания. При этом в работу включаются все элементы модуля - пилоны, ригели, ребристые оболочки-стенки жесткости, а также плиты перекрытий.
7.4.12 В зависимости от этажности зданий меняются нагрузки, и в модулях нижних этажей может потребоваться запроектировать дополнительное число опорных пилонов, встроенных в ребристую диафрагму, или по расчету увеличить сечение вертикальных ребер оболочки по сравнению с приведенными примерами.
7.4.13 Толщину стен принимают 3 см. Вертикальная и горизонтальная ребристые системы создают диафрагму-оболочку. Причем вертикальные ребра в диафрагме развиты и включаются в работу на восприятие вертикальных и горизонтальных нагрузок.
7.4.14 Шаг размещения продольных и поперечных ребер в стене-оболочке определяется расчетом, но не более 500 мм по осям. Сечения ребер в обоих направлениях принимают по расчету. В местах проемов (со всех сторон проема) ребра должны иметь усиленные сечения размером по высоте не менее толщины пилона.
7.4.15 Торцевые распорные и внутренние стены имеют ребристую систему, такую же, как и в продольных стенах.
7.4.16 В местах обрамления оконных и дверных проемов ребра должны иметь усиленные сечения максимального размера (не менее толщины стены), позволяющие надежно устанавливать и закреплять окна и двери.
7.4.17 Все без исключения стеновые конструкции по нижней грани имеют выпуски рабочей арматуры, которые на 2 см меньше, чем высота ребер нижней железобетонной плиты модуля с учетом толщины опорных пластин закладных деталей.
7.4.18 Внутренние поверхности ребристых диафрагм за счет шлифовки изделий на конвейере должны быть категории бетонных поверхностей не ниже А7 по ГОСТ 13015 и быть абсолютно ровными, готовыми под финишную отделку, наклейку стеновых плиток, покраску или наклейку обоев. Все оконные и дверные проемы не должны имеют торцевых технологических уклонов.
7.4.19 Нижняя горизонтальная грань стены-диафрагмы заканчивается горизонтальным сплошным ребром высотой не менее 100 мм, за исключением мест дверных и других проемов, а также размерами не более толщины пилона и имеет выпуски рабочей арматуры для заделки в нижнюю плиту перекрытия.
7.4.20 Верхняя часть стены имеет завершение в виде обвязочной железобетонной балки высотой не менее 450 мм и толщиной, равной толщине пилона, с установкой в нее опорных закладных деталей для крепления системы металлокаркаса верхней железобетонной плиты. Число и конструкция закладных деталей определяются расчетом.
7.4.21 Петель и подъемных приспособлений на объемном модуле нет. Однако в целях транспортирования отдельных элементов стен-скорлупок и непосредственно самого модуля в производственных цехах завода-изготовителя проектом должны быть предусмотрены в верхних пластинах пилонов отверстия с закрытым объемным контуром верхней части пилона, в котором фиксируются грузозахватные приспособления. Требования к проектированию захватных устройств в конструкциях пилонов включают обеспечение нормативных защитных слоев и анкеровку.
7.5.1 Нижняя плита модуля
7.5.1.1 Нижняя часть модуля представляет собой монолитную ребристую плиту, где высота несущих ребер в продольном и поперечном направлениях по всему периметру изделия, а также поперечных внутренних несущих ребер меньшего сечения составляет 250 мм (постоянная величина) или, при необходимости, по расчету в зависимости от высоты здания.
7.5.1.2 Нижняя железобетонная ребристая плита при сборке модуля объединяет выпуски всех внутренних и наружных стен, установленных на стапеле, образуя при этом частично замкнутую сборную объемную систему типа "стакан".
7.5.1.3 Размеры поперечных сечений несущих ребер плиты зависят от вертикальной нагрузки на перекрытии. При постоянной высоте сечения 250 мм его ширина может меняться в сторону увеличения в зависимости от этажности и назначения класса здания по пожарной безопасности, до толщины сечения пилонов, но не более 250 мм. Шаг поперечных ребер всегда равен 600 мм. Толщина внутренних ребер - 100 мм, за исключением поперечных ребер, объединяющих пилоны.
7.5.1.4 Нижняя плита имеет дополнительные продольные ребра для обеспечения нормативной прочности, жесткости и прогиба в местах максимального пролета. Шаг ребер и сечения определяют расчетом, однако при проектировании рекомендуется устанавливать размер 600 мм с учетом "перевязки" модулей и работы горизонтальных дисков, образованных общей системой плит и узлов сопряжения здания, на восприятие горизонтальных нагрузок.
Размеры сечений продольных ребер, определяемые расчетом, должны быть не менее 130 x 100 мм с шагом 600 мм.
7.5.1.5 Нижнюю плиту изготовляют из высокопрочного, пластичного, самоуплотняющегося бетона класса B70 с использованием бетононасоса, без применения на стапеле каких-либо виброплощадок.
7.5.1.6 Верхнюю часть нижней плиты на стапеле следует обрабатывать шлифовальным оборудованием, которое обеспечивает ровную поверхность изделия (категория поверхности не ниже А7 по ГОСТ 13015), готовую под окончательную отделку и устройство чистых полов.
7.5.1.7 В межреберном пространстве нижней плиты в определенных проектом местах следует устраивать свободные проемы для прохождения горизонтальных разводок инженерных коммуникаций, размещения коммуникаций сантехкабин, непосредственно отопительных приборов, а также другого оборудования.
7.5.1.8 Нижнюю плиту перекрытия модуля следует армировать в период монтажа ранее изготовленных ребристых диафрагм и торцевых стен в роботизированный с гидравлическим управлением стапель для сборки модуля в объемный элемент. Создание объемных каркасов основных, несущих уширенных ребер нижней плиты проводится таким же образом, как и армирование верхних ребер обвязочных балок-стен ребристых диафрагм.
7.5.1.9 Рабочая горизонтальная арматура несущих продольных и поперечных ребер плиты должна быть соединена с выпусками арматуры пилонов с торцевых и продольных сторон с помощью резьбовых соединительных муфт. Поперечную арматуру (хомуты) устанавливают с шагом и диаметром по расчету.
7.5.1.10 Плоские поперечные и продольные каркасы нижней плиты перекрытия устанавливают в объемные каркасы на толщину ребра и развязывают между собой с установкой дополнительной арматуры в виде скоб в местах образования поперечных ребер. Пример армирования приведен на рисунке 7.11.

Рисунок 7.11 - Пример армирования нижней плиты модуля
7.5.1.11 На собранную каркасную систему нижней плиты сверху должна быть уложена сетка с размером ячеек по расчету для армирования тела плиты (оболочки), которая закрепляется к арматурным ребрам каркаса.
7.5.2 Верхняя плита перекрытия модуля
7.5.2.1 Плиту потолка объемного модуля следует выполнять из тяжелого бетона класса B70 толщиной 30 мм по всей площади изделия и армировать сеткой из высокопрочной проволоки Вр500 диаметром 4 - 5 мм с шагом установки продольной и поперечной арматуры по расчету с последующим образованием монолитного армированного пояса-стыковки верхних обвязочных балок модуля с металлокаркасом верхней плиты перекрытия (рисунок 7.12).

Рисунок 7.12 - Общий вид верхней плиты с металлическим каркасом
7.5.2.2 Для обеспечения нормативной прочности и жесткости к сетке следует крепить легкий, жесткий металлический каркас (система металлических балок) с помощью связей из нержавеющей стали (ГОСТ 535, ГОСТ 27772).
7.5.2.3 Металлокаркас в плане представляет собой перекрестную систему с размерами ячеек 1200 x 1200 мм. Плоские каркасы образованы из пластин толщиной 8 мм с высотой ребра не менее 210 мм. Пластины облегчены по массе за счет образования в них крупноразмерных отверстий (максимум до 110 мм), через которые проектом предусматривается прокладка инженерных систем (рисунок 7.12).
7.5.2.4 Верхнюю плиту следует соединять с верхними обвязочными балками стен-оболочек (рисунок 7.13).

Рисунок 7.13 - Фрагмент плиты и верхней балки стены-оболочки
7.5.2.5 Все закладные детали модуля, а также отдельные, плоские и объемные арматурные каркасы должны изготовляться в кондукторах сборки для обеспечения требуемой точности геометрических размеров изделий.
Отклонения изготовления закладных и арматурных изделий не должны превышать ± 2 мм от размеров, указанных в рабочей документации.
7.5.3 Продольные и торцевые стены
7.5.3.1 Пилоны стеновых панелей являются одним из важнейших элементов зданий. Пилоны в объемно-модульных зданиях воспринимают переменные нагрузки как на сжатие при эксплуатации, так и на растяжение при транспортировании и монтаже.
7.5.3.2 Надежную работу этих конструкций обеспечивает высокая точность монтажа. Для этого в верхней и нижней частях пилонов запроектированы и установлены металлические пластины (закладные детали) толщиной не менее 20 мм и размерами в плане, соответствующими размерам поперечного сечения этих пилонов (например, для зданий высотой до 17 этажей - 500 x 180 мм по расчету).
7.5.3.3 Пластины обеспечивают надежное сварное соединение с внутренней продольной рабочей арматурой пилона. Число стержней в сечении и их диаметры определяются расчетом.
7.5.3.4 Сварное соединение пластин с рабочей арматурой в раззенкованные отверстия следует осуществлять в высокоточных кондукторах сварки, имеющих допуск не более 2 мм.
7.5.3.5 После сварки рабочей арматуры с пластиной следует осуществлять тщательную шлифовку наружных поверхностей пластин в целях обеспечения точных горизонтальных плоскостей.
7.5.3.6 Передача вертикальных нагрузок при условии высокоточного монтажа позволяет включать, при необходимости ("сухой стык"), в работу арматуру на сжатие при плотном примыкании пластин (закладных деталей).
7.5.3.7 Вдоль вертикальной (продольной) рабочей арматуры пилона по его высоте расположена поперечная арматура с диаметрами и шагом расположения по расчету.
7.5.3.8 Для удобства и обеспечения высокоточного монтажа выступающие и скрытые части пилонов с закладными деталями выполняют роль нижних и верхних "ловителей", а для этого в модуле все несущие пилоны вместе с верхними и нижними закладными деталями смещены относительно нижней и верхней плит модуля на 100 мм вниз (см. рисунок 7.11).
Такая схема монтажа с учетом поэтажной "перевязки" модулей позволяет обеспечить дополнительную конструктивную жесткость здания.
7.5.3.9 Рабочая арматура обвязочных балок, соединяющих между собой пилоны, представляет собой объемный каркас из продольных стержней с обвязкой поперечной арматурой, пересекающий пилон в верхней его части.
7.5.3.10 Наличие стыков в стержнях продольной арматуры по всей длине обвязочной балки в одном поперечном сечении не допускается. Диаметры продольной и поперечной арматуры и шаг их установки следует определять расчетом.
7.5.3.11 В расширенных ребрах изделий устанавливают плоские каркасы, соединяемые затем с помощью отдельных арматурных элементов в объемные пространственные каркасы. Плоские сварные каркасы следует устанавливать в бетонные ребра меньшей площади сечений.
7.5.3.12 В диафрагму, в плоскую поверхность части стены, должна быть установлена крупногабаритная плоская сетка с диаметрами и шагом ячеек по расчету.
7.5.3.13 Плоский элемент стены изготовляется как единый элемент и в одной своей нижней части грани имеет выпуски арматуры (кроме тела пилонов) и закладные детали на величину толщины ребра нижней плиты минус 2 см (постоянное значение).
7.5.3.14 Армирование торцевых поперечных стен модулей аналогично продольным стенам, за исключением случаев, когда в соответствии с проектом пилоны размещены в торцевых поперечных стенах вместо продольных.
7.5.3.15 В целях точной установки изделий торцевых стен в кондукторе сборки с продольными стенами к выпускам арматуры следует устанавливать не менее двух опорных пластин на одно изделие, используемых в качестве монтажных закладных деталей.
7.6.1 Фундаменты
7.6.1.1 Фундаменты рекомендуется принимать в зависимости от инженерно-геологических условий плитными или свайно-плитными. Плиту изготовляют из монолитного бетона.
7.6.1.2 Плитные фундаменты следует проектировать постоянной или переменной толщины. Толщину плит, класс бетона и армирование следует определять расчетом из условия обеспечения прочности, включая прочность на продавливание пилонами или сваями, жесткости и трещиностойкости.
7.6.1.3 Толщину сплошных плит следует принимать по расчету, класс бетона не менее B25, коэффициент продольного армирования не менее 0,3%, марка по водопроницаемости не менее W6, морозостойкость F75.
7.6.1.4 Температурные швы допускается не предусматривать в фундаменте при условии учета дополнительных напряжений и деформаций.
7.6.1.5 Подготовка основания под плиту и конструкция фундаментов зданий должны обеспечивать равномерную осадку здания или с отклонениями не более допуска ± 5 мм по плоскости секций здания. Крен здания не должен превышать допустимых значений.
7.6.1.6 Ленточные фундаменты при проектировании зданий из КГМ допускается принимать при малоизменяемых по сжимаемости основаниях с нормативным давлением не менее 2,5 кгс/см2 и малой этажности. При этом необходимо проектировать ленточные фундаменты в монолитном исполнении.
7.6.1.7 Отклонения при установке закладных деталей от размеров, предусмотренных проектной документацией, на фундаментах по осям x, y, z допускаются не более ± 5 мм в одной секции. При разметке закладных деталей необходимо тщательно выверять размеры диагоналей под установку модулей в секции, с тем чтобы впоследствии обеспечить высокое качество монтажа надземной части здания.
7.6.1.8 По наружному контуру фундаментной плиты целесообразно устраивать полузамкнутое пространство ("корыто") с возведением монолитных вертикальных стен и с последующим устройством внешней гидроизоляции на высоту выше уровня грунтовых вод до отметки ± 0,00.
7.6.1.9 Готовые на заводе-изготовителе модули нулевого цикла устанавливают вовнутрь монолитного полузамкнутого пространства ("корыто"). Такая конструкция обеспечивает герметичность устройства подвальной части здания, гаража-паркинга и помещений инженерного назначения.
7.6.1.10 Свайно-плитные фундаменты выполняют из монолитного железобетона под всей площадью здания в виде фундаментной плиты постоянной или переменной толщины и свай по СП 24.13330.
7.6.1.11 Проектом допускается предусматривать в подземной или полузаглубленной части здания гаражи-паркинги в крупногабаритном исполнении или при строительстве зданий в малоэтажном исполнении с опиранием опорных частей модулей (пилонов) непосредственно на фундаментную плиту.
7.6.2 Перекрытие подвала и первый этаж
7.6.2.1 Перекрытие над подвалом, являющееся основанием для монтажа КГМ, как правило, проектируют из монолитного железобетона.
7.6.2.2 Перекрытие из монолитного железобетона следует проектировать и над первым этажом, если в нем размещены магазины, рестораны, аптеки, в том числе с высотой помещения, превышающей 3,5 м.
7.6.2.3 Монолитные конструкции подвала или первого этажа, как правило, выполняют с вертикальными несущими элементами, расположенными соосно с пилонами КГМ.
7.6.2.4 Если вертикальные несущие элементы подвала и (или) первого этажа не выполнены по одной вертикальной оси, под ними располагают распределительные балки, балки-стенки или предусматривают утолщение перекрытий.
7.6.2.5 При пролетах до 6 - 8 м перекрытия выполняют преимущественно плоскими, а при больших значениях - с капителями, ребристыми или кессонными.
При пролетах более 6 м и соответствующем технико-экономическом обосновании допускается применение напрягаемой арматуры с натяжением на бетон.
7.6.2.6 Основные конструктивные параметры - толщины плит, класс бетона и армирование зависят от нагрузки, длины пролетов и определяются расчетом.
7.6.2.7 При расчете рекомендуется учитывать нелинейные свойства железобетона, образование трещин и понижение жесткости сечений.
В первом приближении при расчете горизонтальных элементов рекомендуется принимать пониженный коэффициент модуля деформации бетона - 0,3.
7.6.2.8 Минимальный поперечный размер колонн рекомендуется принимать 300 мм, стен и пилонов - не менее 200 мм, процент армирования - не более 10.
7.6.2.9 При необходимости применения большего процента армирования рекомендуется использовать сталежелезобетонные колонны.
7.6.2.10 При расчете колонн и пилонов в первом приближении рекомендуется принимать пониженный коэффициент модуля деформации бетона 0,6.
8.1.1 При расчете следует руководствоваться требованиями СП 16.13330, СП 20.13330, СП 22.13330, СП 24.13330, СП 63.13330, СП 131.13330, СП 296.1325800, СП 385.1325800 и СП 430.1325800.
8.1.2 Расчет основных несущих элементов конструкций отдельных модулей и многоэтажных зданий из модулей должен учитывать следующие виды нагрузок и воздействий:
- эксплуатационные нагрузки;
- монтажные нагрузки;
- транспортные нагрузки;
- нагрузки в стадии изготовления;
- аварийные воздействия (защита от прогрессирующего обрушения).
8.1.3 Пространственная конструктивная система отдельных модулей и многоэтажных зданий из них является статически неопределимой системой. Для расчета несущих конструктивных систем рекомендуется использовать дискретные расчетные модели, в основном рассчитываемые методом конечных элементов.
8.1.4 Дискретизацию конструктивной системы рекомендуется проводить с применением оболочечных, стержневых и объемных (при необходимости) конечных элементов, используемых в принятой расчетной программе.
Принимают следующие обозначения и направления армирования (рисунки 8.1 и 8.2).

Рисунок 8.1 - Армирование плоского элемента

Рисунок 8.2 - Армирование стержня
Для плит перекрытий местные оси x1, y1, z1 назначают так, чтобы они совпадали с глобальными осями расчетной схемы (рисунок 8.1). Для пилонов и стен местную ось x1 направляют горизонтально, ось y1 направляют вертикально.
8.1.5 Расчет здания из КГМ рекомендуется проводить в такой последовательности:
1-й этап - расчет многоэтажного здания по предварительно разработанному объемно-планировочному и конструктивному решению. Внесение изменений в конструктивные решения здания и модулей;
2-й этап - расчетный анализ работы пространственных КГМ - основного и вспомогательных - элементы входной группы, ШЛ и лестничные клетки, балконы и лоджии и т.д. на усилия, полученные из расчета здания в целом, и на нагрузки, возникающие при сборке модулей, транспортировании и монтаже. Внесение изменений в конструктивные решения модулей;
3-й этап - расчет плоских элементов КГМ на усилия, полученные из расчета 2-го этапа, и на нагрузки, возникающие при изготовлении, транспортировании и сборке. Внесение изменений в конструктивные решения элементов модулей;
4-й этап - расчет многоэтажного здания, его модулей и элементов с уточненными параметрами сечений, армирования и характеристиками узловых сопряжений на эксплуатационные и доэксплуатационные нагрузки. Внесение изменений в конструктивные решения здания и модулей. Расчетный анализ многоэтажного здания на защиту от прогрессирующего обрушения. Внесение дополнительных конструктивных решений при необходимости.
8.2.1 При расчете железобетонных и стальных конструкций зданий из КГМ надежность конструкций устанавливают согласно ГОСТ 27751 полувероятностным методом расчета путем использования расчетных значений нагрузок и воздействий, расчетных характеристик бетона и арматуры (или конструкционной стали), определяемых с помощью соответствующих коэффициентов надежности по нормативным значениям этих характеристик с учетом уровня ответственности зданий.
8.2.2 Нормативные значения нагрузок и воздействий, значения коэффициентов надежности по нагрузке, а также деление нагрузок на постоянные и временные (длительные и кратковременные) принимают в соответствии с СП 20.13330, СП 63.13330 и СП 131.13330.
8.2.3 Расчетные значения нагрузок и воздействий принимают в зависимости от вида расчетного предельного состояния и расчетной ситуации.
8.2.4 При расчете конструкций отдельных модулей в условиях монтажа следует учитывать только постоянные и временные длительно действующие нагрузки. Значения нагрузок следует принимать равными нормативным значениям с учетом коэффициента динамичности γ=1,4.
Допускается принимать более низкие, обоснованные в установленном порядке, значения коэффициентов динамичности, но не ниже 1,25.
8.2.5 При расчете конструкций отдельных модулей при транспортировании, погрузке и разгрузке следует учитывать только постоянные и временные длительно действующие нагрузки. Значения нагрузок следует принимать равными нормативным значениям с учетом коэффициента γ=1,6. Необходимо учитывать горизонтальные нагрузки при торможении и движении под значительным углом.
Допускается принимать более низкие, обоснованные в установленном порядке, значения коэффициентов динамичности, но не ниже 1,25.
8.2.6 Расчетные и нормативные характеристики бетона, арматуры и стали следует принимать в соответствии с СП 16.13330 и СП 63.13330.
8.3.1 При разработке расчетной схемы следует использовать пространственные стержневые и плоскостные конечные элементы.
8.3.2 В случае элемента, моделирующего упругую связь между узлами, для конечного элемента задаются следующие характеристики:
Rx - погонная жесткость связи на растяжение-сжатие вдоль глобальной оси x;
Ry - погонная жесткость связи на растяжение-сжатие вдоль глобальной оси y;
Rz - погонная жесткость связи на растяжение-сжатие вдоль глобальной оси z;
Rux - погонная жесткость связи на поворот вокруг глобальной оси x;
Ruy - погонная жесткость связи на поворот вокруг глобальной оси y;
Ruz - погонная жесткость связи на поворот вокруг глобальной оси z.
Для плит перекрытий местные оси x1, y1, z1 назначают так, чтобы они совпадали с глобальными осями расчетной схемы. Для пилонов и стен местную ось x1 направляют горизонтально, ось y1 - вертикально.
8.3.3 Рекомендуется при расчете узлов, отдельных блоков и здания в целом применять многоцелевые конечно-элементные программные комплексы, учитывающие геометрическую, физическую и конструктивную нелинейности в статической и динамической постановках.
8.3.4 При выполнении расчетов здания в целом необходимо контролировать следующие параметры:
- давление под подошвой фундамента;
- разница осадок и крены фундаментных конструкций (определяют по СП 22.13330);
- перемещения здания от основного сочетания нагрузок (в том числе с учетом действия ветровой нагрузки), горизонтальное смещение верха здания;
- ускорение колебаний верхних этажей (в соответствии с СП 20.13330);
- перекос конструкций одного этажа;
- укорочение наиболее нагруженных пилонов;
- усилия, напряжения и армирование в основных несущих элементах (фундаментных конструкциях, пилонах, ребрах и оболочки стен, балках и плитах перекрытий);
- максимальная ширина раскрытия трещин;
- усилия и перемещения в узлах сопряжения конструкций по результатам общего расчета конструктивной системы;
- прогибы плит и балок перекрытий;
- коэффициент запаса устойчивости формы и положения конструктивной системы;
- формы и частоты собственных колебаний здания.
8.3.5 Полученные значения параметров конструктивной системы не должны превышать предельно допустимых значений, установленных нормативными документами.
8.4.1 Расчет железобетонных конструкций следует выполнять в соответствии с требованиями СП 63.13330.
Расчет стальных конструкций следует выполнять в соответствии с требованиями СП 16.13330.
8.4.2 Расчеты на эксплуатационные нагрузки следует проводить по первой и второй группам предельных состояний. При отсутствии дополнительных помимо указанных в задании на проектирование требований ширину раскрытия трещин принимают равной, мм:
0,3 - при продолжительном раскрытии трещин;
0,4 - при непродолжительном раскрытии трещин.
8.4.3 Расчет с учетом стадийности возведения предполагает следующие этапы возведения (монтажа) блоков здания:
- 1-я стадия - конструкции первого этажа с учетом постоянных нагрузок;
- (2 - n)-я стадия - конструкции со второго по n этаж с учетом постоянных нагрузок;
- (n + 1)-я стадия - приложение временных нагрузок;
- (n + 2)-я стадия - приложение ветровой нагрузки.
Модальный анализ здания следует выполнять с учетом постоянных и временных длительных нагрузок.
8.4.4 Коэффициенты постели следует определять при вычислении модели грунта при соответствующих характеристиках грунтов на строительной площадке. Динамические коэффициенты постели при расчете на ветровые нагрузки допускается определять путем увеличения модуля деформации грунтов основания в восемь раз.
8.4.5 Расчет отдельных модулей допускается выполнять на жестком основании, при этом опирание контурных балок необходимо выполнять с учетом соответствующей связи конечной жесткости, моделирующей опирание на нижележащий модуль. При расчете модулей на монтажные нагрузки предполагается крепление подъемных устройств поверху пилонов (не менее восьми точек).
8.4.6 Расчет многоэтажных зданий следует выполнять в предположении совместной работы блоков соседних этажей. Для этого в расчетной схеме между пилонами и между нижними балками верхнего блока и верхними балками нижнего блока введены связи для учета совместной работы по осям x, y и z.
8.4.7 Узлы сопряжения пилонов с балками приняты жесткими (в плоскости пилона) и шарнирными (из плоскости пилона). Коэффициент расчетной длины пилонов принят равным 0,9, как для элемента с шарнирным несмещаемым опиранием на одном конце и с податливой (допускающей ограниченный поворот) заделкой на другом конце.
8.4.8 Парные пилоны блока связаны между собой по перемещениям по осям x, y и z по высоте пилонов (не менее четырех точек). Соседние пилоны различных блоков связаны между собой по перемещениям по осям x, y и z по высоте пилонов (не менее двух точек).
8.4.9 Усилия в связях во многом зависят от грунтов основания и этажности. Элементы связей являются одними из наиболее ответственных узлов здания, т.к. соединяют отдельные блоки между собой и с ядром жесткости в единую структуру.
Связи блоков следует проектировать на действие продольной и двух поперечных сил. Для снижения возникающих усилий, при необходимости, следует увеличить число связей по высоте пилонов. Требования к расчету закладных деталей приведены в СП 63.13330 и [6].
8.4.10 Для повышения надежности здания в целом узлы сопряжения целесообразно запроектировать с учетом усилий, возникающих при различных сценариях отказа вертикальных конструкций пилонов.
8.5.1 Методики определения податливости (жесткости) соединения элементов приведены в СП 335.1325800 и [7].
8.5.2 Податливость горизонтального стыка пилонов и балок при сжатии складывается из податливостей: растворного шва, железобетонной балки перекрытия суммарной толщиной 550 мм при классе бетона B70, холодного шва между закладной деталью пилона/балки нижележащего этажа и пилона/балки с балкой перекрытия. При растяжении стык "расслаивается", и жесткость при растяжении равна нулю.
8.5.3 В соответствии с СП 335.1325800 и [7] податливость стыка различна в зависимости от продолжительности действия нагрузки. В связи с тем, что основной вклад в усилия в элементах конструкций вносят длительно действующие нагрузки, податливости соединений допускается определять при длительном действии нагрузки.
8.5.4 При кратковременном действии нагрузки податливость стыка определяют по формуле
, (8.1)
где λm,τ - коэффициент податливости растворного шва;
hpl - толщина железобетонной конструкции;
Epl,τ - модуль упругости железобетонной конструкции;
 - податливость холодного шва (верх панели - низ плиты перекрытия).
8.5.5 Податливость холодного шва следует принимать равной податливости горизонтальных швов бетонирования стен из монолитного бетона в соответствии с СП 335.1325800.
8.5.6 При отсутствии растворного шва между конструкциями податливость растворного шва следует принимать равной нулю.
8.5.7 В связи с применением новых решений по устройству узлов соединения железобетонных элементов объемных блоков и в связи с отсутствием нормативных данных при определении жесткости горизонтальных стыков рекомендуется вводить дополнительный коэффициент надежности. В связи со значительно меньшим значением сжимающих напряжений в шве значения жесткостей вертикальных связей горизонтального стыка между балками допускается принимать в пять - десять раз меньше значений вертикальной связи горизонтального стыка пилонов. Значения жесткостей горизонтальных связей вертикального стыка между пилонами допускается принимать в пять - десять раз меньше значений вертикальной связи горизонтального стыка пилонов.
8.5.8 После проведения комплекса соответствующих экспериментальных и численных исследований значение вводимых коэффициентов надежности может быть уточнено.
9.1.1 Инженерные сети следует выполнять в соответствии с требованиями ГОСТ 30494, СП 3.13130, СП 6.13130, СП 7.13130, СП 10.13130, СП 30.13330, СП 60.13330, СП 61.13330, СП 71.13330, СП 133.13330, СП 134.13330, СП 484.1311500, СП 485.1311500, СП 486.1311500.
Инженерные системы зданий жилых зданий высотой более 75 м, общественных зданий высотой более 55 м следует предусматривать в соответствии с СП 253.1325800.
9.1.2 Распределительные инженерные сети должны быть размещены в подвале с обеспечением доступа для обслуживания.
9.1.3 Вертикальные стояки и разводки (коллекторные шкафы - рисунок 9.1) следует размещать в межквартирных коридорах в выделенных коммуникационных нишах с обеспечением доступа к запорно-регулирующей арматуре и другим элементам инженерных сетей (рисунки 9.2 и 9.3).

Рисунок 9.1 - Образец коллекторного шкафа

Рисунок 9.2 - Схема размещения инженерных сетей и систем

Рисунок 9.3 - Схема размещения на этаже вертикальных инженерных сетей на примере жилого здания
9.1.4 От коллекторных шкафов горизонтальная разводка осуществляется в межмодульном пространстве, где закладные под разводящие сети проходят через середину сечений ребер нижней плиты модуля. Установку закладных следует проводить с пересечением арматурных каркасов поперечных ребер нижней плиты перед укладкой минераловатных вкладышей в стапеле.
9.1.5 Закладные разводящих сетей должны иметь ребристую поверхность (гофры), которые надежно крепятся к ребрам плиты и при этом позволяют, при необходимости, проводить замену сетевых трубопроводов.
9.1.6 От этажных шкафов до потребителя прокладку следует осуществлять в защитной гофре и изоляции.
9.2.1 После узла учета должен быть предусмотрен узел согласования давлений и ограничения расхода на базе регулятора перепада давления для стабилизации располагаемого перепада давления и оптимальной работы автоматики.
9.2.2 Применяемые регуляторы давления должны иметь функцию разгрузки по давлению. Импульсы давления подключаются к регулятору по внешним импульсным трубкам с возможностью их очистки без отключения системы теплоснабжения, а также обеспечивают нормальную работу при заявленных параметрах тепловой сети (Tмах, Pмах) с указанием технического коэффициента Z (коэффициента начала температурной кавитации) для проверки.
9.2.3 Схема присоединения систем отопления и вентиляции - независимая через разборные пластинчатые теплообменники (ПТО), горячего водоснабжения (ГВС) - независимая двухступенчатая смешанная через разборные пластинчатые теплообменники, подбор и проверку которых на переходный период следует осуществлять посредством расчетной программы изготовителя.
9.2.4 Теплообменное оборудование систем отопления подбирают с разбивкой по нагрузке 100% + 100%, вентиляции следует подбирать с разбивкой по нагрузке 50% + 50% (при необходимости). Подпитка систем выполняется через запорно-регулирующий клапан с электроприводом с насосами подпитки или станцию поддержания давления.
9.2.5 Циркуляционные и подпиточные насосы должны быть установлены с резервированием по схеме (1 + 1). Циркуляционные насосы систем отопления и теплоснабжения вентиляции должны быть оборудованы частотными регуляторами для снижения энергопотребления, например преобразователями частоты с функцией автоматической оптимизации энергопотребления.
9.2.6 В ИТП должны быть предусмотрены аварийная перемычка после головных задвижек, запорная арматура после аварийной перемычки на прямом и обратном трубопроводах тепловой сети и спутник (диаметром, рассчитанным в соответствии с тепловой нагрузкой на отопление) после дублирующей запорной арматуры на обратном трубопроводе.
9.2.7 В качестве основного типа запорной арматуры следует использовать стальные шаровые краны с максимально возможной пропускной способностью Kv среди класса проходных кранов.
9.2.8 В качестве регулирующей арматуры применяются седельные регулирующие клапаны, разгруженные по давлению, обеспечивающие нормальную работу при заявленных параметрах тепловой сети (Tмах, Pмах), с указанием технического коэффициента Z (коэффициент начала температурной кавитации) для проверки и имеющие высокий динамический диапазон регулирования (не менее 1:50). Управление регулирующими клапанами должно осуществляться с помощью редукторных электрических приводов, для которых предусмотрены возможность ручного управления, индикация положения штока клапана, функция автоматического определения хода штока.
9.2.9 Раздельные системы учета контуров теплоснабжения:
- ГВС здания аренды и жилья;
- отопление аренды и жилья;
- вентиляция и ВТЗ коммерческих помещений (при необходимости).
Вторичные контуры систем отопления, теплоснабжения, вентиляции, ГВС должны быть оборудованы терморегуляторами, приборами контроля и учета с ультразвуковыми теплосчетчиками в соответствии с правилами учета тепловой энергии и теплоносителя в действующих сводах правил.
9.2.10 Тепловую изоляцию трубопроводов целесообразно выполнять из минераловатных цилиндров (некашированных), толщину изоляции принимают в зависимости от температуры теплоносителя. Поверх тепловой изоляции следует устанавливать кожух из алюминиевого или оцинкованного листа толщиной 0,5 мм.
Для теплоизоляции теплообменного оборудования следует предусматривать теплоизоляционные кожухи.
Трубопроводы сетевого контура, систем отопления, теплоснабжения вентиляции и ГВС выполняют из стальных труб по ГОСТ 8732, ГОСТ 10704 и водогазопроводных труб по ГОСТ 3262. Температурный график тепловой сети принимают в соответствии с техническими условиями.
9.2.11 Число и места размещения ИТП следует принимать в соответствии с архитектурной концепцией и требованиями сводов правил.
9.2.12 Расчетные температурные графики местных систем теплоснабжения и ГВС:
- отопление - 90 °C - 65 °C;
- теплоснабжение стоянки автомобилей - 90 °C - 65 °C;
- вентиляция - 90 °C - 65 °C;
- ГВС - 65 °C (на выходе из теплообменника).
9.2.13 Электрические водоподогреватели на период отключения горячего водоснабжения в ИТП отсутствуют.
Средства крепления, неподвижные и подвижные опоры, виброизоляторы и компенсаторы следует выбирать в соответствии с расчетом и учетом удобства эксплуатации.
9.2.14 Данное оборудование монтируется в КГМ нулевого цикла в заводских условиях.
9.3.1 Система ГВС - независимая двухступенчатая смешанная с циркуляцией через разборные пластинчатые теплообменники.
9.3.2 В системе ХВС хозяйственно-питьевой водопровод вне квартир следует располагать отдельно от системы противопожарного водопровода.
9.3.3 Подающие и магистральные сети ГВС и ХВС в подвале следует выполнять из стальных водогазопроводных оцинкованных труб по ГОСТ 3262.
9.3.4 Монтаж водомерного узла следует выполнять согласно требованиям ресурсоснабжающей организации.
9.3.5 Вертикальные стояки и разводка по квартирам выполняются в полимерных или металлополимерных трубах с изоляцией из вспененного каучука.
9.4.1 Сброс канализационных вод выполняется самотеком.
9.4.2 Расстояние в свету между выпусками - минимум 0,4 м согласно СП 30.13330.
9.4.3 Выпуски канализации для жилых и встроенных помещений следует выполнять отдельно.
9.4.4 Следует предусматривать мероприятия (трапы, дренажные стояки и т.д.) для возможности отвода дренажа систем кондиционирования воздуха.
9.4.5 Отвод дождевых стоков следует выполнять через водосточные воронки с электрообогревом.
9.4.6 Для водоотведения из технических помещений (ИТП, насосные, водомерный узел, вентиляционные камеры приточных установок) следует выполнять дренажные приямки с насосами.
9.4.7 Поквартирные стояки и вытяжную часть канализационных стояков - канализационную трубу из полипропилена с противопожарными манжетами следует устанавливать поэтажно.
9.4.8 В системе внутренних водостоков (ливнестоки) стояки следует выполнять из трубы из непластифицированного поливинилхлорида (ГОСТ Р 51613) с изоляцией.
9.4.9 В системе водоотведения по подвалу следует использовать чугунную безраструбную трубу, выпуск из здания - трубу из чугуна с шаровидным графитом с внутренним химически-стойким покрытием и наружным цинкованием по ГОСТ ISO 2531.
9.4.10 Предусматривают водосточные воронки с надставным элементом.
9.4.11 Канализацию случайных и переливных вод предусматривают напорную из стальной оцинкованной водогазопроводной трубы по ГОСТ 3262.
9.5.1 Электроснабжение проектируемого объекта от наружных ТП 20/0,4 кВ следует осуществлять в соответствии с нормативными документами.
9.5.2 В соответствии с [8] обеспечивается электроснабжение по второй категории надежности электроснабжения (электроснабжение осуществляется от двух независимых взаимно резервирующих источников).
Обеспечение качества электроэнергии и уровней напряжения следует предусмотреть в соответствии с требованиями ГОСТ 32144.
9.5.3 В системе электроснабжения необходимо предусмотреть кабельные линии напряжением 0,4 кВ и самостоятельные ВРУ для каждой из групп потребителей (стоянка автомобилей, жилые корпуса при необходимости) с подключением к разным секциям ТП по радиальной схеме двумя взаимно резервируемыми кабелями.
9.5.4 При необходимости следует предусмотреть самостоятельные ВРУ с подключением к разным секциям ТП по радиальной схеме двумя взаимно резервируемыми кабелями для электроснабжения насосной, ИТП.
9.5.5 Для электроснабжения встроенных нежилых помещений необходимо предусмотреть самостоятельные ВРУ.
9.5.6 Все ВРУ следует размещать в специально выделенных запирающихся помещениях (электрощитовых) по функциональному назначению.
9.5.7 При выборе кабельной продукции необходимо учесть требования ГОСТ Р 50571.5.52.
9.5.8 Разводку выполняют с применением кабелей с медными жилами согласно ГОСТ 31565.
В системе ВРУ-РУ (ГРЩ) 0,4 кВ ТП электрическая нагрузка на вводных панелях ВРУ не превышает 630 А в соответствии с ГОСТ 32396, а ток отходящих линий - 250 А.
Магистральные распределительные сети квартирных "стояков" следует выполнять с применением медных токопроводящих жил.
9.5.9 Для обеспечения степени компенсации реактивной мощности значений tgφ≤0,35 в точках присоединения энергопринимающих устройств напряжением 0,4 кВ должна быть предусмотрена установка устройств компенсации реактивной мощности. Устройства компенсации следует размещать в помещениях, соответствующих ВРУ.
9.5.10 Данное оборудование следует монтировать в КГМ нулевого цикла в заводских условиях.
9.5.11 В соответствии с действующими нормативными документами к потребителям первой категории надежности электроснабжения здания отнесены:
- насосная станция;
- центральный тепловой пункт (или ИТП);
- электропитание оборудования постов охраны, аппаратуры технических средств безопасности;
- лифты (предназначенные для транспортирования пожарных бригад);
- оборудование сетей связи;
- огни светового ограждения;
- электроприемники системы противодымной защиты;
- системы автоматической пожарной сигнализации, оповещения и управления эвакуацией;
- аварийное и эвакуационное освещение;
- электроприемники систем автоматического пожаротушения и противопожарного водопровода;
- электроприемники противопожарных устройств систем инженерного оборудования;
- силовые щиты цепей управления защиты от замораживания приточных установок.
9.5.12 Остальные электроприемники следует относить ко второй и третьей категориям по обеспечению надежности электроснабжения.
9.5.13 Для электроприемников первой категории надежности электроснабжения следует предусмотреть установку устройства автоматического ввода резерва - АВР, подключаемого к двум независимым взаимно резервируемым источникам питания.
9.5.14 Питание светильников аварийного освещения следует осуществлять от собственных щитов аварийного освещения с подключением через АВР в жилой части непосредственно с секции АВР ВРУ.
9.5.15 Освещение в машинных помещениях лифтов следует выполнять с учетом требований правил устройства и безопасной эксплуатации лифтов.
9.5.16 Выбор светильников следует проводить в соответствии с назначением и средой помещений.
9.5.17 Для освещения лестничных клеток, коридоров, лифтовых холлов и стоянки автомобилей следует применять преимущественно светодиодные светильники.
Рабочее освещение:
- автоматическое - от сумеречных датчиков;
- местное (ручное) - с фасада щита освещения;
- с диспетчерского поста.
Аварийное/эвакуационное:
- включено постоянно;
- местное (ручное) - с фасада щита освещения;
- с диспетчерского поста.
9.5.18 Управление освещением мест общего пользования жилой части (межквартирные коридоры, лифтовые холлы, вестибюли входных групп)
Рабочее освещение:
- включено постоянно;
- местное (ручное) - с фасада щита освещения;
- с диспетчерского поста.
Аварийное/эвакуационное:
- включено постоянно (в случае отсутствия естественного освещения);
- местное (ручное) - с фасада щита освещения;
- с диспетчерского поста.
9.5.19 Управление освещением лестничных клеток подземной части
Рабочее освещение:
- автоматическое - датчики движения;
- местное (ручное) - с фасада щита освещения;
- с диспетчерского поста.
Аварийное/эвакуационное:
- включено постоянно;
- местное (ручное) - с фасада щита освещения;
- с диспетчерского поста.
9.5.20 Управление освещением входов в здание, номерных знаков, указателей пожарных гидрантов и заграждений:
- автоматическое - от астрономического реле;
- местное (ручное) - с фасада щита освещения;
- с диспетчерского поста.
9.5.21 Управление освещением световым заграждением:
- автоматическое - от сумеречных датчиков;
- местное (ручное) - с фасада щита освещения;
- с диспетчерского поста.
9.5.22 Управление освещением санузлов, служебных, подсобных и технических помещений предусматривают местное, из помещений.
9.5.23 Щиты освещения следует укомплектовать оборудованием для управления освещением в зависимости от назначения в автоматическом режиме (через систему диспетчеризации здания (дистанционно)) и в ручном режиме.
Световые указатели выходов и направления движения эвакуации необходимо запроектировать, исключая дублирование с указателями, предусматриваемыми в 9.9.7, и подключить к сети аварийного освещения.
9.6.1 Для повышения безопасности эксплуатации инженерных систем здания в крупномодульном домостроении должна быть внедрена система комфортного дома, разделенная на две зоны ответственности:
- МОП, нежилые помещения;
- жилые помещения (квартиры).
9.6.2 Система обеспечивает в автоматическом режиме измерение текущих значений параметров инженерных систем и сравнение их с заданными значениями, учет различных условий и ограничений, выработку соответствующих управляющих воздействий на исполнительные устройства, логическую обработку информации в целях выдачи аварийных, предупредительных и других информационных сигналов, документирование массивов информации. Система комфортного дома обеспечивает оперативное вмешательство диспетчерской службы в функционирование инженерного и другого оборудования путем изменения заданных параметров или путем перехода в ручной режим управления от диспетчера.
9.6.3 Отдельно для комфортного управления инженерными системами жилых помещений разработаны три пакета функций управления: "Стандарт", "Комфорт", "Бизнес" (рисунок 9.4).

Рисунок 9.4 - Функции управления
9.6.4 Функции управления инженерными системами МОП, нежилых помещений включают:
- контроль и управление системой подготовки воздуха в здании;
- контроль и управление освещением по датчику присутствия и освещенности в МОП и на придомовой площадке;
- централизованный контроль протечек воды;
- контроль и учет энергоносителей (вода, тепло, электроэнергия);
- систему контроля доступа и охранная сигнализация;
- видеодомофон;
- пожарную сигнализацию;
- мониторинг работы лифтового хозяйства;
- систему видеонаблюдения в МОП;
- систему оперативной диспетчерской связи между техническими помещениями и службами;
- систему речевого оповещения в МОП и квартирах;
- тревожную сигнализацию в МОП и квартирах.
9.6.5 Функции управления инженерными системами жилых помещений (квартир) по пакету "Стандарт" включают:
- контроль и управление с устройств под управлением операционных систем iOS/Android;
- контроль и управление температурой воздуха в помещении (управление запорной арматурой батарей отопления, управление вентиляцией);
- контроль и управление освещением по датчику присутствия и освещенности, управление шторами или жалюзи;
- контроль присутствия в помещении для определения необходимости ограничения подачи энергоносителей;
- контроль протечек воды;
- учет энергоносителей (вода, тепло, электроэнергия);
- домофон.
9.6.6 В пакете "Комфорт" дополнительно к пакету "Стандарт" присутствуют:
- система контроля доступа и охранная сигнализация;
- видеодомофон;
- программируемый сценарий управления энергообеспечением и освещением в квартире.
9.6.7 В пакете "Бизнес" дополнительно к пакету "Комфорт" предусмотрены:
- мультирум;
- домашний кинотеатр.
9.6.8 Основными протоколами передачи данных для взаимодействия оборудования различных систем являются Modbus, BACnet, Ethernet. Транспортной системой для передачи и обмена данными является СКС.
9.6.9 Структурированная кабельная система должна отвечать следующим требованиям:
- обеспечивать передачу разнородной информации - данные, голос, видео;
- обеспечивать передачу данных в комплексе со скоростями передачи данных 100 Мбит/с в горизонтальной подсистеме и до 1 Гбит/с в подсистеме внутренних магистралей;
- иметь модульную структуру, обеспечивающую оперативность масштабирования;
- обеспечивать высокую надежность в работе;
- обеспечивать безопасные условия эксплуатации и технического обслуживания.
9.6.10 Структура и архитектура СКС должны соответствовать ГОСТ Р 53246, ГОСТ Р 53245.
9.6.11 Топология СКС должна быть типа "звезда" и включать следующие подсистемы:
- горизонтальная подсистема;
- подсистема внутренних магистралей.
Все подсистемы должны быть взаимосвязаны между собой, ни одна из подсистем не может решать возложенные на нее задачи в полном объеме без другой подсистемы.
9.6.12 Горизонтальная кабельная подсистема должна соединять горизонтальные кроссы с телекоммуникационными розетками на рабочих местах и включать следующие элементы:
- кабель горизонтальной подсистемы;
- коммутационные шнуры и кроссировочные перемычки горизонтального кросса;
- коммутационное оборудование в горизонтальном кроссе, на котором терминирован кабель горизонтальной подсистемы;
- телекоммуникационную розетку на рабочем месте, на которой терминирован кабель горизонтальной подсистемы;
- консолидационную точку.
9.6.13 Кабель горизонтальной подсистемы должен проходить непрерывным сегментом от горизонтального кросса до телекоммуникационной розетки на рабочем месте, за исключением случая использования консолидационной точки.
9.6.14 Подсистема внутренних магистралей должна соединять главные кроссы с горизонтальными кроссами зданий и включать в себя следующие элементы:
- кабели магистральной подсистемы (оптоволоконный кабель, кабель с медными жилами);
- коммутационные шнуры и перемычки;
- коммутационное оборудование, на котором терминированы кабели магистральной подсистемы в главном и горизонтальном кроссах.
9.6.15 Система коллективного приема телевидения должна в соответствии с [9] обеспечивать прием и распределение сигналов общероссийских обязательных общедоступных телеканалов, по которым передаются сообщения (сигналы) оповещения о чрезвычайных ситуациях.
Документацией должна быть предусмотрена кабельная распределительная сеть с возможностью расширения. Система должна соответствовать ГОСТ Р 52023 и обеспечивать уровень сигнала на телевизионной розетке в диапазоне 60 - 80 дБ.
9.6.16 В состав системы коллективного приема телевидения должны входить:
- оборудование присоединения к сети оператора (DVB-C, DVB-T2 - выбор стандарта приема телевизионного сигнала следует определить на этапе проектирования);
- оборудование усиления широкополосного телевизионного сигнала (усилители);
- кроссовое оборудование (делители, ответвители);
- внутренняя распределительная сеть;
- телевизионные розетки.
9.6.17 Распределительную сеть телевидения следует выполнять с использованием магистрального коаксиального кабеля. Необходимо провести расчет затухания широкополосного сигнала. На основании расчета следует расставить оборудование и элементы сети.
Общее число рабочих мест и высоту их установки в помещениях следует определить при проектировании.
Активные устройства системы телевидения должны быть присоединены к системе электропитания.
9.6.18 Автоматическая система коммерческого учета водоснабжения и электроэнергии (АСКУЭ) предназначена для измерения потребленной электроэнергии, сбора, обработки и хранения информации об измерениях, состоянии объектов и средств измерения с последующей передачей данных в сбытовую компанию. Система должна соответствовать техническим условиям территориальной сбытовой компании.
9.6.19 Для уменьшения кабельной нагрузки в местах общего пользования и жилых помещениях в АСКУЭ следует применять приборы учета с возможностью передачи данных по радиоканалу. Приемные устройства следует располагать в стояках, расположенных в МОП.
Мониторинг и учет профилей мощности, а также передача данных от устройства сбора и передачи данных проводятся на АРМ диспетчера.
9.7.1 Защите системой пожарной сигнализации подлежат все помещения и коридоры, независимо от площади, кроме помещений с мокрыми процессами (душевые, санузлы, охлаждаемые камеры, помещения мойки и т.п.), насосных водоснабжения, бойлерных и других помещений для инженерного оборудования здания, в которых отсутствуют горючие материалы, категорий В4 и Д по пожарной опасности, лестничных клеток.
9.7.2 Автоматическая установка пожарной сигнализации предназначена для своевременного обнаружения возможного возгорания на ранней стадии его развития и усиления существующего на объекте комплекса мер, направленных на обеспечение безопасности людей и сохранение собственности в результате возникновения пожара.
9.7.3 Все оборудование и применяемые материалы АУПС должны иметь соответствующие документы оценки соответствия, подтверждающие соответствие требованиям нормативных документов по пожарной безопасности.
9.7.4 В качестве средств обнаружения пожара в местах общего пользования и жилых помещениях следует использовать адресные дымовые оптико-электронные извещатели.
Для локализации короткого замыкания в адресные линии необходимо включить модули-изоляторы короткого замыкания.
9.7.5 На путях эвакуации следует установить ручные пожарные извещатели. Извещатели следует устанавливать в соответствии с требованиями и рекомендациями инструкции по установке и эксплуатации для соответствующего типа извещателей, а также СП 484.1311500.
Ручные пожарные извещатели следует устанавливать на высоте (1,5 ± 0,1) м от уровня пола до органов управления извещателей.
Приборы управления должны быть установлены на негорючем основании на высоте 0,8 - 1,5 м от уровня пола.
9.7.6 Монтаж технических средств сигнализации и электропроводок следует выполнить в соответствии с [8] и технической документацией на средства пожарной сигнализации.
9.7.7 Система оповещения и управления эвакуацией
Для оповещения о возникновении пожара и других ЧС и управления эвакуацией людей в проектируемом комплексе должна быть запроектирована СОУЭ в соответствии с требованиями СП 3.13130 (для последующего применения в системах оповещения МЧС России).
Оборудование СОУЭ следует разместить на пожарно-охранных постах каждого корпуса (помещение консьержа), помещений охраны парковки и в центральном пункте управления системой противопожарной защиты.
С помощью СОУЭ должны быть обеспечены:
- трансляция специально разработанных речевых сообщений во все зоны оповещения одновременно или в каждую по отдельности;
- трансляция сигналов ГО и ЧС во все зоны объекта в соответствии с технической документацией.
Предусматривают ручное включение системы оповещения (с микрофонной консоли) и автоматическое по сигналу "Пожар" системы пожарной сигнализации.
Все оборудование должно быть разрешено к эксплуатации на территории Российской Федерации в соответствии с порядком, установленным действующим законодательством Российской Федерации.
В соответствии с СП 134.13330 следует предусмотреть систему этажного оповещения жителей с установкой оповещателей (громкоговорителей) в лифтовых холлах, межквартирном коридоре на каждом этаже зданий.
Кабельные проводки систем противопожарных мероприятий необходимо выполнять огнестойкими линиями в соответствии с ГОСТ 31565.
При параллельной прокладке расстояние от проводов и кабелей пожарной сигнализации с напряжением до 60 В до силовых и осветительных кабелей должно быть не менее 0,5 м. Допускается уменьшить расстояние до 0,25 м от проводов и кабелей шлейфов и соединительных линий пожарной сигнализации без защиты от наводок до одиночных осветительных проводов и контрольных кабелей.
9.7.8 Согласно СП 484.1311500 приемно-контрольные приборы и приборы управления необходимо разместить в помещении с круглосуточным дежурством (пост охраны). В этом же помещении следует разместить АРМ с монитором для отображения состояния системы АУПС.
9.7.9 Внутренний противопожарный водопровод
Система ВПВ должна быть с закольцованными вводами и кольцевым магистральным трубопроводом при тупиковых стояках, раздельной с другими системами пожаротушения здания. Кольцевой магистральный трубопровод, расположенный на нижнем техническом этаже, должен быть разделен на ремонтные участки (полукольца). Пожарные краны и дополнительное оборудование (рукава, спрыски, огнетушители) в помещениях без конкретной технологии следует располагать в пожарных шкафах для двух комплектов пожарного крана и двух огнетушителей, пожарные краны в межквартирных коридорах располагаются в шкафах для двух комплектов пожарного крана. Для удобства замены/переноса ПК в помещениях без конкретной технологии на подводках должны быть установлены краны Ду50. Расстановку пожарных кранов следует выполнять в соответствии с требованиями СП 10.13130 с учетом расположения помещений и обеспечивать тушение пожара в любой точке двумя струями с расходом не менее 2,5 л/с (фактически, согласно таблице 7.3 СП 10.13130.2020 - 2,9 л/с), продолжительность работы ВПВ - 3 ч, требуемый расход - 5,8 л/с (2 x 2,9 л/с).
9.7.10 Система спринклерного пожаротушения
В зависимости от назначения помещений должна быть выполнена система сплинклерного пожаротушения.
9.7.11 Противопожарные мероприятия
Противопожарные мероприятия в смежных системах инженерного обеспечения следует выполнять согласно СП 6.13130, СП 484.1311500, СП 485.1311500, СП 486.1311500.
9.7.12 Системы противопожарных мероприятий относятся к электроприемникам первой категории надежности электроснабжения согласно [8].
Питание электроприемников систем противопожарных мероприятий должно осуществляться от ППУ, которая питается от вводной панели ВРУ с устройством АВР или от ГРЩ с устройством АВР согласно СП 6.13130. Панели ППУ и АВР должны иметь боковые стенки для противопожарной защиты установленной в них аппаратуры.
9.7.13 Системы противодымной вентиляции следует выполнять в соответствии с действующими нормами и правилами на основании расчетов.
9.7.14 Для помещений пожаробезопасных зон, а также лифтовых холлов, совмещенных с пожаробезопасными зонами, следует монтировать две самостоятельные системы (с расходом воздуха на открытую и закрытую двери) с общим напорным воздуховодом. В межквартирных коридорах исключается горизонтальная разводка воздуховодов противодымной вентиляции.
9.7.15 Для электродвигателей вентиляционных агрегатов приточной и вытяжной противодымной вентиляции мощностью более 15 кВт, а также для осевых вентиляторов предусмотрено частотное регулирование.
9.7.16 В системах противодымной вентиляции следует использовать огнезадерживающие нормально закрытые клапаны с реверсивными приводами с напряжением питания 220 В. Должно быть исключено использование обратных клапанов, не соответствующих требованиям СП 7.13130.
9.7.17 Вентиляционные установки систем противодымной защиты следует устанавливать на виброопорах и фундаментах.
9.8.1 Система вентиляции жилых помещений должна быть приточно-вытяжной с рекуперацией индивидуальными блоками (рисунок 9.5).

Рисунок 9.5 - Схема рекуперации типового этажа на примере жилого здания
Приток воздуха в систему поквартирной рекуперации происходит через клапаны на фасаде здания.
9.8.2 Вентиляционные установки встроенных помещений при производительности до 1000 м3/ч приняты с электрическими калориферами, в остальных случаях - с водяными. Следует предусмотреть, по возможности, размещение узлов обвязки приточных систем рядом с коллекторным узлом системы отопления, но не далее 8 м от калорифера приточной системы.
9.8.3 Параметры внутреннего воздуха для расчета систем вентиляции встроенных помещений следует принимать согласно технологической части проекта и в соответствии с действующими нормативными документами.
9.8.4 Вентиляция встроенных помещений должна быть приточно-вытяжной с механическим побуждением.
В системе вентиляции сдаваемых в аренду зон должны быть предусмотрены точки подключения для воздухозабора и выброса воздуха с учетом выполнения требований СП 60.13330.
9.8.5 Для офисных помещений воздухообмен принимают не менее однократного. Следует предусмотреть два раздельных магистральных воздуховода систем выброса (на кровлю) с расходом воздуха в процентном соотношении 70/30. Дополнительный выброс следует предусматривать для подсобных и складских помещений.
9.8.6 Забор воздуха общеобменной вентиляции допускается осуществлять с фасада здания, выброс воздуха следует предусмотреть на кровле.
На входных группах должна быть предусмотрена установка ВТЗ.
9.8.7 Для помещений с теплоизбытками проектом следует предусматривать систему приточной вентиляции без подогрева приточного воздуха со 100% резервированием и рециркуляцией воздуха в холодный период года. Воздухообмен определяют расчетом по теплопоступлениям от оборудования.
9.8.8 Вентиляционное оборудование необходимо разместить в вентиляционных камерах за пределами помещений электрощитовых.
В помещениях ИТП следует предусмотреть приточно-вытяжную вентиляцию, рассчитать на воздухообмен, определяемый по теплопоступлениям от трубопроводов и установленного оборудования.
9.8.9 Система кондиционирования для жилых и коммерческих помещений не предусматривается.
Для помещений серверных и диспетчерских пунктов, а также для иных помещений, требующих поддержания определенного температурно-влажностного режима, должно быть предусмотрено технологическое кондиционирование.
10.1.1 На заводе-изготовителе КГМ собирают на конвейере из плоских, ранее изготовленных на других конвейерах, шести железобетонных изделий с соблюдением требований СП 130.13330.
Геометрические размеры изделий, а также устройство и размещение дверных и оконных проемов определяются проектом.
10.1.2 Плоские железобетонные изделия внутренних стен изготовляют на роботизированной карусельной технологической линии (стенде), на которой робот на идеально плоскую паллету устанавливает и с помощью магнитов закрепляет торцевые борта высотой на толщину изделия с высокой точностью установки бортов: ± 1 мм по осям x и y и ± 2 мм по диагоналям, ± 1 мм в плоскости и из плоскости изделия.
10.1.3 Изделия облегчают за счет установки на технологической линии несъемной опалубки в виде вкладышей из жесткой минераловатной плиты. Они позволяют отформовать по рабочей документации продольные (горизонтальные) и поперечные (вертикальные) армированные железобетонные ребра различных (по расчету) сечений.
10.1.4 В вертикальной системе образуются несущие пилоны модуля (скрытые опоры), которые имеют выпуски арматуры, за исключением нижних каркасов опорных балок нижней плиты.
Несъемная опалубка - минераловатная плита закрепляется к ребрам и служит впоследствии звуко-, тепло-, пожароизоляцией модуля.
10.1.5 Четыре изделия - плоские внутренние вертикальные стены имеют с одной стороны нижней торцевой грани выпуски арматурных объемных каркасов. После объединения четырех вертикальных стен в коробчатую структуру нижние выпуски арматуры на сборочном конвейере объединяют между собой путем формования (бетонирования) армированной нижней плиты (пола) модуля. Далее модуль накрывают облегченной верхней железобетонной плитой на металлическом каркасе.
10.2.1 Основной модуль состоит из нескольких плоских элементов: стеновые панели и плита пола, армированные пространственными и плоскими каркасами, сварными сетками и отдельными стержнями; плита потолка, армированная сварной сеткой и усиленная металлическим каркасом из перфорированного стального листа для обеспечения общей жесткости.
10.2.2 Арматурные изделия изготовляются в соответствии с требованиями ГОСТ Р 57997 и подразделяются на следующие виды:
- отдельные стержни (см. 5.2.1) со сварными на станках-автоматах или муфтовыми соединениями по длине стержня;
- арматурные сетки;
- плоские и пространственные арматурные каркасы.
10.2.3 Заготовку стержней из арматурной проволоки, поставляемой в мотках, следует проводить на правильно-отрезных станках-автоматах.
10.2.4 Резку стержневой, проволочной арматуры и сеток необходимо проводить механическими, гидравлическими или пневматическими ножницами, пилами трения или устройствами для плазменной резки.
10.2.5 Гибку стержней следует проводить на приводных станках.
10.2.6 Плоские арматурные сетки следует изготовлять из продольных и поперечных стержней диаметром до 14 мм включительно. Поперечные стержни могут быть на всю ширину сетки или смещены.
10.2.7 Стержни в сетках расположены в двух взаимно перпендикулярных направлениях и соединяются в местах пересечений сваркой (крестообразное соединение).
10.2.8 Сетки изготовляются с квадратными или прямоугольными ячейками на автоматизированном оборудовании.
10.2.9 Размеры, геометрия ячеек и общие размеры сеток принимают согласно рабочей документации на конкретное изделие.
10.2.10 Плоские каркасы применяют для армирования поперечных ребер стеновых панелей и плит пола.
10.2.11 Каркасы выполняют из отдельных продольных и поперечных стержней периодического профиля из арматуры классов А500С, А400, В500С и А240, соединенных в местах пересечения сваркой (крестообразное соединение).
10.2.12 Размеры, шаг, геометрическое положение отдельных элементов каркасов, диаметры и классы используемой арматуры следует принимать согласно рабочей документации.
10.2.13 Пространственные каркасы применяют следующих типов:
- каркасы для армирования пилонов;
- каркасы для армирования наружных балок, продольных ребер стеновых панелей и плиты пола.
10.2.14 Каркасы для армирования пилонов представляют собой арматурное изделие из продольных отдельных стержней периодического профиля из арматуры классов А500С, А400 или В500С и поперечных хомутов из арматуры класса А240, соединенных между собой вязальной проволокой или сваркой (крестообразное соединение в двух плоскостях), а по торцам ограниченное стальными пластинами, в раззенкованные отверстия которых вварены продольные стержни каркаса.
10.2.15 Соединение продольных стержней с торцевыми пластинами выполняют посредством сварки по ГОСТ 14098.
10.2.16 Заготовку отдельных изделий каркаса выполняют на автоматизированном оборудовании, сборку проводят вручную в кондукторе. Сварное соединение арматурных изделий и закладных деталей проводят на автоматизированном высокопроизводительном оборудовании.
10.2.17 Каркасы для армирования наружных балок, продольных ребер стеновых панелей и плиты пола выполняют из продольных отдельных арматурных стержней периодического профиля классов А500С, А400 или В500С и поперечных класса А240, соединенных между собой вязальной проволокой (крестообразное соединение в двух плоскостях) при ручной сборке в кондукторе или сваркой (крестообразное соединение) при механизированной сборке.
10.2.18 Заготовку отдельных изделий каркаса выполняют на автоматизированном оборудовании.
10.2.19 Объемные каркасы должны иметь жесткость, достаточную для транспортирования, складирования, соблюдения проектного положения в форме, и соответствовать требованиям ГОСТ Р 57997.
10.3.1 Закладные сварные детали подразделяют на два типа: закрытые и открытые.
К закладным деталям закрытого типа относятся следующие:
- закладные детали для соединения между собой стеновых панелей посредством болтов;
- закладные детали для крепления между собой арматурных элементов обвязочной балки стеновых панелей посредством болтов;
- закладные детали для крепления между собой арматурных элементов обвязочной балки плиты пола посредством муфтовых соединений;
- прочие детали, предусмотренные рабочей документацией, расположенные "в теле" железобетонных конструкций.
К закладным деталям открытого типа относятся:
- закладные детали торцов арматурных каркасов пилонов;
- закладные детали для крепления плиты потолка;
- металлический каркас плиты потолка, выполненный из перфорированного листового проката;
- прочие детали, предусмотренные рабочей документацией, расположенные не "в теле" железобетонных конструкций.
10.3.2 Размеры, конфигурацию, марку стали и прочие технические требования необходимо принимать согласно рабочей документации и требованиям ГОСТ Р 57997. Все закладные детали должны быть защищены антикоррозионным покрытием. Для закрепления закладных изделий в форме следует предусматривать в них отверстия для технологических фиксаторов к формам.
10.4.1 Бетон и технические требования к нему должны соответствовать рабочей документации и указаниям 5.1.
10.4.2 Перед началом работ до бетонирования должны быть выполнены предварительные работы:
- очистка поверхности паллеты и бортов;
- установка бортов и пустотообразователей в проектное положение (автоматизированный процесс);
- установка элементов звуко- и теплоизоляции и несъемной опалубки в проектное положение;
- армирование и устройство инженерных сетей.
10.4.3 Для обеспечения точности и соответствия проекту до начала работ по бетонированию должен быть выполнен пооперационный контроль всех предшествующих работ ответственным ИТР.
10.4.4 Транспортирование бетонной смеси к месту укладки в конструкцию проводят с применением системы адресной подачи бетоносмесительного узла. Оператор контролирует своевременность, частоту и необходимый объем подачи.
10.4.5 Характеристики бетона должны соответствовать требованиям ГОСТ 7473 и ГОСТ 26633, обеспечивая нормативные и проектные требования по прочности, плотности и другим показателям.
10.4.6 Укладываемая бетонная смесь должна иметь:
- требуемую удобоукладываемость с допусками по подвижности не более 2 см и жесткости не более 3 с;
- температуру от 13 °C до 30 °C.
10.4.7 Уплотнение бетонной смеси происходит посредством системы вибрации паллеты, а также с использованием глубинного вибратора при необходимости. Заглаживание свежей поверхности бетона проводят рейками. Затирку бетонной поверхности, соответствующей категории А7 по ГОСТ 13015, проводят перед загрузкой изделия на тепловую обработку через 1,5 - 2 ч после бетонирования на специализированном посту.
10.4.8 Качество поверхности должно соответствовать требованиям ГОСТ 13015.
Для получения примыкающих к поддону гладких поверхностей с минимальным числом каверн и пор необходимо применять специальные технологические приемы, в том числе:
- смазки на основе синтетических и минеральных масел;
- эмульсионную смазку на основе восковых компонентов и подвижную бетонную смесь;
- высокочастотные режимы уплотнения.
10.5.1 Тепловлажностную обработку железобетонных изделий проводят при их изготовлении в целях ускорения твердения бетона и достижения им распалубочной, отпускной и проектной прочности в соответствии с проектом и техническими условиями на изделия.
Примечания
1. Распалубочная прочность бетона изделий - минимальная прочность, при которой возможны распалубка (выемка из форм) и безопасное внутризаводское транспортирование изделий без их повреждений.
2. Отпускная прочность бетона изделий - нормируемая прочность, при которой изделия разрешается отгружать с завода-изготовителя потребителю.
3. Проектная прочность бетона - нормируемая прочность бетона в возрасте 28 сут, при которой возможно загружать его полной проектной нагрузкой.
10.5.2 Класс бетона указывается в проекте и должен быть гарантированно достигнут в сроки, указанные в проектной документации, независимо от условий твердения бетона.
10.5.3 Тепловлажностную обработку изделий выполняют в автоматизированной многоярусной камере тепловой обработки при температуре 50 °C - 55 °C в течение 10 - 12 ч.
10.5.4 При тепловой обработке изделий в камере рекомендуется поддерживать относительную влажность воздуха на уровне 90%. Для поддержания необходимой влажности в тепловых камерах должна быть предусмотрена система распыления воды.
10.5.5 Общий цикл тепловлажностной обработки подразделяется на следующие периоды:
- от момента окончания формования изделия до начала повышения температуры среды камеры - период предварительного выдерживания;
- от начала повышения температуры среды в камере до достижения средой заданного наивысшего уровня температуры - период подъема температуры;
- выдерживание при наивысшей заданной температуре - период изотермического прогрева;
- понижение температуры среды камеры - период охлаждения.
Режим твердения выражается суммой его отдельных периодов в часах.
10.5.6 Тепловлажностную обработку следует выполнять в соответствии с указаниями проектной документации.
10.6.1 Здание компонуется из нескольких видов объемных модулей: основной, лестничный, лифтовой и инженерный модули.
10.6.2 Основной модуль состоит из плоских элементов (стеновые железобетонные панели), плиты пола (ребристая железобетонная плита), балки жесткости в верхнем уровне модуля (железобетонная балка) и плиты потолка (облегченная конструкция, состоящая из железобетонной плиты, армированной сеткой, и металлокаркаса из перфорированного стального листа).
10.6.3 Лестничный и лифтовой модули, как правило, представляют собой железобетонные шахты высотой в три этажа здания.
10.6.4 В лестничный модуль устанавливают железобетонные лестницы, заформованные с междуэтажными и этажными площадками, выполненные на конвейере завода-изготовителя.
10.6.5 Конвейер завода-изготовителя для сборки модулей зданий представляет собой непрерывную технологическую цепочку, состоящую из нескольких линий, обеспечивающих выпуск продукции, в виде объемного КГМ с внутренней отделкой, инженерными сетями, фасадными системами и конструкциями, готового к монтажу на строительной площадке.
10.6.6 Основной модуль состоит из стеновых панелей, плиты пола, балки жесткости в верхнем уровне, плиты потолка.
10.6.7 Формование стеновых панелей (ГОСТ 25781, ГОСТ 25878) выполняется на первой линии конвейера в виде плоских элементов, расположенных горизонтально. Перед бетонированием в арматурный каркас панели монтируются обозначенные проектом инженерные сети. Затем выполняют затирку поверхности и тепловую обработку изделий.
10.6.8 После тепловой обработки и набора бетоном прочности, необходимой для монтажа элемента, стеновые панели подают на стапель сборки, где их устанавливают в вертикальное положение.
10.6.9 Стеновые панели крепятся друг к другу с помощью закладных деталей, обеспечивающих болтовое соединение. Затем проводят установку балки жесткости с помощью болтового крепления к стеновым панелям.
10.6.10 После сборки стеновых панелей объемного модуля выполняют болтовые соединения закладных изделий обвязочных и поперечных балок плиты пола и стеновых панелей и муфтового соединения арматурных стержней.
10.6.11 Перед бетонированием плиты пола в арматурный каркас устанавливают инженерные сети согласно рабочей документации.
10.6.12 После бетонирования плиты пола выполняют затирку ее поверхности и тепловую обработку.
10.6.13 После выхода модуля из камеры тепловлажностной обработки осуществляют монтаж сантехкабины и установку плиты потолка.
10.6.14 Плита потолка выполняется на другой линии конвейера на автоматизированной паллете, где выполняются следующие технологические операции: устройство металлокаркаса из перфорированного стального листа (автоматизированная сборка), устройство арматурного каркаса из сетки, крепление металлокаркаса к арматурному каркасу плиты, бетонирование, тепловлажностная обработка.
10.6.15 После тепловой обработки плиты потолка и набора бетоном прочности, необходимой для монтажа, проводят монтаж плиты потолка на объемный железобетонный каркас блока.
10.6.16 Затем основной модуль поступает на линию отделки, гидроизоляции, устройства инженерных сетей в верхнем уровне модуля и устройства фасада.
10.6.17 Лестничный модуль представляет собой жесткий объемный железобетонный элемент высотой в три этажа здания, объединенный Z-образными лестницами с этажными и междуэтажными площадками.
10.6.18 Лестницы формуются в вертикальных регулируемых формах, а затем после набора бетоном необходимой для монтажа прочности подаются в форму для устройства стеновых элементов лестничного блока.
10.6.19 Формование стеновых элементов проводят в вертикальной форме.
10.6.20 Лифтовой модуль представляет собой объемный жесткий железобетонный шахтный элемент высотой до трех этажей здания. Формование трехэтажного модуля проводят в объемной форме за два раза.
10.6.21 После набора необходимой прочности проводят его отделку и установку лифтового оборудования в соответствии с ГОСТ 22845, ГОСТ Р 53780, ГОСТ Р 55966.
10.6.22 Инженерный модуль - это модуль, предназначенный для монтажа в него основных инженерных магистралей здания. Представляет собой жесткий монолитный железобетонный объемный элемент.
10.6.23 Бетонирование проводят за два раза. Сначала выполняют вертикальные элементы (стены) с выпусками арматурных стержней в нижней части, а затем проводят бетонирование плиты пола.
10.6.24 Инженерный модуль подвергается тепловлажностной обработке, а затем доставляется на линию отделки, монтажа инженерных сетей и т.д.
10.6.25 Объемные модули выполняют в строгом соответствии с рабочей документацией. При изготовлении модулей должен выполняться пооперационный контроль производства ответственным ИТР.
11.1.1 Организация и производство работ на строительной площадке должны проводиться с соблюдением законодательства Российской Федерации и требований СП 48.13330.
11.1.2 Возведение зданий следует выполнять при наличии утвержденной в установленном порядке проектной и рабочей документации, проекта организации строительства (ПОС) и проекта производства работ (ППР), разработанных в соответствии с требованиями СП 48.13330, СП 63.13330, СП 70.13330, СП 430.1325800 и СП 435.1325800.
11.1.3 В ППР должны быть перечислены исполнительные документы, которые подтверждают проведение контроля качества материалов и проведения строительных и монтажных работ.
11.1.4 Перечень исполнительной документации и рекомендации по ее заполнению приведены в [10], [11].
11.1.5 При возведении зданий необходимо руководствоваться ППР, включающим технологические карты, и технологическими регламентами, в которых кроме общих информационных разделов приводятся:
- описание применяемой технологии возведения зданий с учетом климатических условий и видов выполняемых операций;
- последовательность и порядок выполнения технологических процессов с учетом ГОСТ 24258, ГОСТ 24259, ГОСТ 26887, ГОСТ Р 58520;
- виды используемых машин и механизмов при выполнении работ;
- объем и порядок осуществления контроля выполнения нормируемых показателей качества;
- промежуточные значения нагрузок, характеристик и материалов (например, распалубочная прочность при монтажных работах и др.).
11.1.6 Основными видами работ, определяющими качество, при возведении зданий являются:
- монолитные работы по устройству фундаментов, конструкций подвала и возведение первого этажа;
- монтаж КГМ, начиная со второго этажа здания;
- монтаж систем инженерно-технического обеспечения.
11.1.7 Транспортирование крупногабаритных модулей осуществляется с учетом требований приложения А.
11.1.8 По окончании работ нулевого цикла перед началом монтажа надземной части для оперативного подключения монтируемых модулей к внутренним инженерным сетям необходимо выполнить работы по монтажу приемно-распределительных устройств ВРУ, ИТП, водомерного узла с возможностью подключения по временной или постоянной схеме к внешним инженерным сетям.
11.1.9 В осенне-зимний период для обеспечения положительной температуры в смонтированных модулях надземной части рекомендуется оперативное подключение смонтированных этажей к сетям теплоснабжения посредством быстросоединяемых узлов (обжимных фитингов) и электроснабжения посредством болтовых соединений и коннекторов.
11.2.1 Возведение монолитных конструкций включает три основных последовательно выполняемых взаимосвязанных процесса:
- опалубочные работы;
- арматурные работы;
- бетонные работы.
11.2.2 Опалубка должна соответствовать требованиям ГОСТ 34329 и ГОСТ Р 52086 и обеспечивать проектные геометрические размеры и качество поверхности.
Выбор типа опалубки и технологии опалубочных работ определяется видом бетонируемых конструкций (колонны, пилоны, стены и т.д.).
Нагрузки и данные для расчета опалубки приведены в приложении С СП 70.13330.2012.
11.2.3 Опалубочные работы следует выполнять в соответствии с ППР (технологические карты), в котором должны быть разработаны и отражены:
- комплекты опалубочных элементов;
- детальные схемы монтажа, демонтажа и укрупнительной сборки опалубки;
- схемы разбивки на технологические захватки;
- режим и последовательность бетонирования;
- схемы и порядок установки и снятия страховочных элементов;
- способ выверки проектного положения;
- средства подмащивания и допускаемые на них нагрузки;
- несущая способность опалубочных элементов;
- рекомендуемые типы смазок;
- мероприятия по безопасному ведению работ.
11.2.4 Поверхность опалубки, соприкасающаяся с бетоном, должна быть тщательно очищена и покрыта тонким слоем смазки.
11.2.5 Демонтаж опалубки проводят по достижении бетоном распалубочной прочности с промежуточной проверкой прочности при частичном распалубливании.
11.2.6 Арматура для изготовления конструкций должна соответствовать проекту и требованиям ГОСТ 5781, ГОСТ 6727, ГОСТ 34028, ГОСТ Р 52544 и иметь документы, подтверждающие качество.
11.2.7 Арматурные изделия применяют в виде сеток по ГОСТ 8478, ГОСТ 23279 и плоских или пространственных арматурных каркасов.
11.2.8 Допускается армирование выполнять отдельными стержнями, соединяемыми в арматурных изделиях вязальной проволокой, обеспечивающей невозможность смещения в процессе установки и бетонирования. В длину стержни рекомендуется соединять с помощью обжимных муфт или винтовых втулок по ГОСТ 34278.
11.2.9 Сварные соединения в сетках, каркасах следует выполнять с применением контактно-точечной сварки (ГОСТ 14098 и ГОСТ Р 57997) или иными способами, обеспечивающими необходимую прочность.
11.2.10 Арматурные изделия и стержни, устанавливаемые в арматурных изделиях, должны быть очищены от грязи, льда и снега, налета ржавчины.
11.2.11 Толщину защитного слоя, предохраняющего арматуру от коррозии, высоких температур при пожаре и обеспечивающего совместную работу арматуры и бетона, выполняют в соответствии с проектом и требованиями СП 28.13330, СП 72.13330 и СП 63.13330.
11.2.12 Рекомендуется применять полимерные фиксаторы-прокладки заводского изготовления, обеспечивающие проектную толщину защитного слоя. Допускается применять бетонные или растворные прокладки, а также стальные.
11.2.13 Арматурные изделия и закладные детали изготовляют по ГОСТ 14098 и контролируют по ГОСТ Р 57977.
11.2.14 Бетонирование следует начинать после проведения контрольной проверки опалубки и установленной арматуры.
11.2.15 Состав бетонной смеси следует подбирать по ГОСТ 27006 с учетом требований ГОСТ 31384 и указаний проектной документации.
11.2.16 Производство готовых смесей на заводах приготовления товарного бетона или БСУ на строительных площадках должно удовлетворять требованиям ГОСТ 7473.
11.2.17 Марка бетонной смеси по удобоукладываемости задается в ППР и зависит от многих факторов, в том числе от вида конструкции, коэффициентов армирования, способа подачи и уплотнения бетонной смеси (ГОСТ 7473).
11.2.18 Завоз бетонных смесей с заводов товарного бетона следует осуществлять в автобетоносмесителях. В зимних условиях необходимо контролировать сохранность свойств бетона после транспортирования.
Допускается для восстановления удобоукладываемости по согласованию со службой контроля качества вводить после доставки пластифицирующие добавки.
11.2.19 При применении автобетононасосов с распределительной стрелой или стационарных бетононасосов следует обеспечить непрерывность подачи бетонной смеси, а технологические перерывы не должны превышать 20 мин. При подготовке бетононасоса к работе следует осуществлять смазку бетоновода путем перекачивания первой порции высокоподвижной бетонной смеси. В зимних условиях следует утеплять бетононасос и бетоновод.
11.3.1 Работы по возведению зданий должны проводиться грузоподъемными механизмами, указанными в ППР, в соответствии с проектом и при строгом соблюдении требований по точности установки КГМ (см. 12.1), пространственной неизменяемости модулей в процессе установки и безопасных условий труда.
11.3.2 В соответствии с требованиями СП 70.13330 данные следует ежедневно вносить в журналы работ по монтажу строительных конструкций (приложение А СП 70.13330.2012), сварочных работ (приложение Б СП 70.13330.2012), антикоррозионной защиты сварных соединений (приложение В СП 70.13330.2012, СП 432.1325800) и замоноличивания монтажных стыков и узлов (приложение Г СП 70.13330.2012).
Следует ежедневно фиксировать положение вновь смонтированных конструкций на геодезических схемах.
11.3.3 Конструкции КГМ рекомендуется устанавливать, как правило, с транспортных средств грузозахватными приспособлениями, приведенными в 11.4.
11.3.4 Перед монтажом каждого модуля необходимо проверить:
- соответствие его проектной марке;
- состояние закладных деталей и установленных рисок;
- отсутствие грязи, снега, наледи, повреждений отделки и окраски;
- правильность и надежность закрепления грузозахватных устройств.
11.3.5 Строповку модулей следует проводить в местах, указанных в рабочих чертежах. В случае необходимости изменения мест строповки должно быть получено согласование автора проекта.
11.3.6 Монтируемые модули следует поднимать плавно, без рывков, раскачивания и вращения, используя оттяжки.
11.4.1 Погрузочно-разгрузочные и такелажные работы осуществляются в соответствии с правилами по охране труда, рекомендациями настоящего раздела, а также с действующими нормативными документами.
11.4.2 На заводе-изготовителе погрузка модулей на СТС осуществляется мостовыми и козловыми кранами или портальными транспортерами (рисунок 11.1) с использованием согласованных грузозахватных механизмов и иных приспособлений в зависимости от технических требований и конструктивных особенностей модуля (согласно утвержденному ППР или технологическим регламентам).

Рисунок 11.1 - Портальные транспортеры
11.4.3 На этапе возможной перегрузки модуля, при транспортировании между заводом-изготовителем и объектом монтажа на автомобильных СТС, может быть оборудован склад временного хранения, на котором модуль может быть выгружен до востребования автомобильным или гусеничным краном (рисунок 11.2), на опоры (рисунок 11.3) или портальной системой. Модуль может находиться на складе временного хранения до востребования или перемещаться далее к месту монтажа портальными системами, самоходными транспортными системами или автомобильными СТС. Погрузка в данном случае будет осуществляться ранее описанными способами в зависимости от сложившихся обстоятельств и индивидуальных инженерных решений, не противоречащих действующим нормам и правилам в соответствии с ППР.

Рисунок 11.2 - Погрузка-выгрузка автомобильным или гусеничным краном

Рисунок 11.3 - Схема расположения и вариант исполнения тумб-опор под проставки при самовыгрузке СТС
11.4.4 К грузозахватным механизмам относятся: автоматическая полноповоротная самопозиционируемая траверса (рисунок 11.4), немеханизированная траверса (рисунок 11.5) и др. Траверсы укомплектовываются саморегулируемыми стропами.

Рисунок 11.4 - Полноповоротная самопозиционируемая траверса

Рисунок 11.5 - Немеханизированная траверса
Все грузозахватные механизмы и приспособления согласовываются и применяются в соответствии с утвержденным ППР и конструктивными особенностями монтируемого модуля.
12.1.1 Геодезические работы при строительстве зданий из КГМ следует проводить в соответствии с требованиями и рекомендациями СП 126.13330, ГОСТ Р 53611, ГОСТ 26433.0, ГОСТ 26433.1, ГОСТ 26433.2, ГОСТ 23616, ГОСТ 21779, ГОСТ 21780, а также ГОСТ Р 53340 и ГОСТ 19223, при этом необходимо выполнить:
- создание геодезической разбивочной основы (ГРО) на местности по 12.1.2 - 12.1.4;
- построение ГРО на возводимом горизонте по 12.1.5 - 12.1.7;
- перенос осей при возведении подземной части и первого этажа здания, составление исполнительных схем по 12.1.8 и 12.1.9;
- перенос осей на монтажные горизонты, подготовительные работы к монтажу модулей и составление исполнительных схем конструкций по 12.1.10 - 12.1.27.
12.1.2 До начала строительно-монтажных работ заказчик должен передать генподрядчику техническую документацию на ГРО, закрепленные на строительной площадке пункты и знаки этой основы, в том числе:
- оси, определяющие положение и габариты здания в плане, закрепленные не менее чем четырьмя створными знаками на каждую ось;
- оси, ограничивающие зоны возведения;
- реперы (не менее двух), расположенные по разные стороны от здания.
12.1.3 Места расположения знаков следует оградить инвентарными обносками.
12.1.4 Приемке-передаче геодезических работ подлежат в натуре и по акту знаки закрепления осей и реперы. Допускается осевые знаки и высотные отметки закреплять на ранее смонтированных элементах трудносмываемой краской.
12.1.5 Для определения на местности положения строящегося здания в плане и по высоте заказчик обязан создать ГРО, включающую перенос осей на возводимый горизонт, вынос высотных отметок для определения возводимого горизонта и др.
12.1.6 Геодезические работы по созданию ГРО на исходном горизонте следует выполнять по СП 126.13330.
12.1.7 Допускаемые средние квадратические погрешности не должны превышать:
- при измерении углов - 10";
- вынесении или определении отметок - 2 мм.
12.1.8 Перенос осей при возведении нулевого цикла следует проводить тахеометрами или теодолитами на инвентарные металлические скамейки или смонтированные железобетонные конструкции.
12.1.9 По окончании строительных работ по возведению подземной части здания следует составлять исполнительные схемы.
Правильность составления исполнительных схем должны проверять совместно геослужбы организаций - приступающей к возведению надземной части здания и окончившей работы по возведению подземной части здания организаций.
12.1.10 Число контрольных измерений должно быть не менее:
а) в плане:
- пяти участков стен;
- одной ШЛ на каждую секцию здания;
б) по высоте:
- одна отметка опорной поверхности на каждые 50 м2 сдаваемого участка.
12.1.11 Перенос осей на монтажные горизонты следует проводить с применением приборов вертикального проектирования через отверстия в перекрытии.
12.1.11.1 Отклонения от проектных положений разбивочных осей не должны превышать следующих значений:
- расстояние между крайними осями по длине здания - ± 6 мм;
- двухсекционные здания - ± 6 мм;
- расстояние между крайними осями по ширине здания - ± 3 мм.
12.1.12 До начала монтажа модулей следует проводить:
- проверку монтажного горизонта по 12.1.15 - 12.1.20;
- отметку ориентирных рисок по 12.1.21, 12.1.22.
12.1.13 Под каждый устанавливаемый модуль следует нивелировать точки опирания.
12.1.14 Нивелирование следует выполнять в условной системе высот.
12.1.15 В точках нивелирования, где фактические отметки превышают отметку монтажного горизонта Hср более чем на 2 мм, их следует уменьшать до минимально допустимого (2 мм) и отмечать краской на перекрытии. Монтажники и ИТР должны быть осведомлены об этом.
Регулирование по высоте в этих местах необходимо проводить за счет специальных прокладок.
12.1.16 При нивелировании длина визирного луча не должна превышать 40 м. За исходную точку нивелирования следует принимать любую выступающую из перекрытия металлическую закладную деталь.
Отсчеты по рейке, установленной на исходной точке, следует брать по черной и красной сторонам дважды (до начала и до окончания нивелирования). Разность отсчетов по рейке, установленной на исходной точке нивелирования, по одноименным сторонам должна быть не более 2 мм.
12.1.17 Выравнивание монтажного горизонта следует проводить на каждом этаже.
Колебания отметок монтажного горизонта не должны превышать 2 мм.
12.1.18 Монтаж модулей следует проводить от ориентирных рисок.
Разметку ориентирных рисок необходимо выполнять от точек базисной осевой системы на монтажном горизонте.
Схемы размещения рисок следует приводить в проекте производства геодезических работ, который разрабатывается с учетом ГРО. Ориентирные риски для монтажа следует указывать для всех модулей, а также ШЛ и сантехкабин.
Для каждого модуля следует наносить три риски: две в продольном направлении и одну в поперечном.
12.1.19 При нанесении ориентирных рисок следует соблюдать однообразие в смещении их на всех этажах.
12.1.20 Установку модулей в проектное положение в нижнем сечении следует проводить по риске с использованием шаблона. Выверку модулей в отвесном положении следует выполнять рейкой с уровнем или отвесом.
12.1.21 Предельные отклонения при монтаже модулей в соответствии с СП 70.13330 приведены в таблице 12.1.
Таблица 12.1
|  
         Наименование отклонений  |   
         Предельные отклонения, мм  | 
|  
         Отклонение плоскостей модулей в верхнем сечении от вертикали (на высоту этажа)  |   
         2  | 
|  
         Несоосность двух смежных по высоте модулей  |   
         2  | 
12.1.22 Ориентирование при установке объемных элементов ШЛ следует проводить от ориентирных рисок.
Для каждого объемного элемента ШЛ следует выносить ориентирные риски двух взаимно перпендикулярных стен.
Проверку правильности установки объемных элементов ШЛ, сантехкабин следует проводить аналогично проверке основных модулей.
Значения предельных отклонений при монтаже объемных элементов ШЛ с учетом требований СП 70.13330 приведены в таблице 12.2.
Примечание - Низ дверного проема объемного элемента ШЛ следует устанавливать на 20 мм ниже отметки лестничной площадки.
Таблица 12.2
|  
         Наименование отклонений  |   
         Предельные отклонения, мм  | 
|  
         Отклонение от ориентирных рисок передних стенок ШЛ в нижнем сечении  |   
         5  | 
|  
         Отклонение от вертикали передней и боковой стенок ШЛ  |   
         5  | 
|  
         Отклонение по высоте порога дверного проема относительно посадочной площадки  |   
         ± 5  | 
|  
         Отклонение внутренней плоскости стен ствола ШЛ от отвесной линии на высоту ШЛ  |   
         10  | 
12.1.23 По окончании монтажа каждого этажа следует проводить исполнительную съемку планового и высотного положения смонтированных элементов.
Положение модуля в нижнем сечении необходимо определять от ориентирных рисок, а отклонение стен модуля - от вертикали в верхнем сечении.
В тех случаях, когда по результатам исполнительных съемок погрешности монтажа элементов превышают допуски, приведенные в СП 70.13330, необходимо провести переустановку модуля, после чего выполнить повторную съемку.
12.2.1 При подготовке, выполнении и приемке работ следует осуществлять входной контроль и операционный контроль, а также оценку соответствия выполненных работ требованиям проекта и нормативных документов.
12.2.2 Входной контроль необходимо осуществлять при приемке строительных материалов и изделий в целях подтверждения соответствия их характеристик проектным (ГОСТ 24297).
Результаты входного контроля заносят в журнал входного контроля.
12.2.2.1 При входном контроле следует проводить контроль:
- состава проектной документации;
- применяемых строительных материалов и изделий.
12.2.2.2 Входной контроль состава проектной документации следует проводить в соответствии с СП 48.13330.
12.2.2.3 Входной контроль строительных материалов и изделий включает:
а) внешний осмотр и проверку:
- соответствия партии продукции требованиям технических условий, а также требованиям ГОСТ 13015, ГОСТ 7566, ГОСТ 14192 к их маркировке и упаковке;
- наличия и содержания сопроводительных технических документов, подтверждающих соответствие продукции требованиям проекта;
б) измерение геометрических показателей продукции и проверку допускаемых их отклонений от требований технических условий и проекта;
в) определение показателей качества продукции в случае отсутствия сопроводительных документов, в случае выявленных внешним осмотром дефектов и в других заранее оговоренных заказчиком случаях.
12.2.2.4 Прочность бетона определяют по ГОСТ 18105. Инструментальные измерения прочностных параметров выполняют с использованием метода отрыва со скалыванием по ГОСТ 22690, ультразвукового метода по ГОСТ 17624, а также метода упругого отскока по ГОСТ 22690.
Объем продукции, подлежащей контролю, устанавливают в ППР.
12.2.2.5 Инструментальное измерение геометрических показателей продукции и их отклонений проводят штангенциркулями по ГОСТ 166, линейками по ГОСТ 427, рулетками по ГОСТ 7502, поверочными угольниками и линейками по ГОСТ 3749 и ГОСТ 8026 или другими измерительными приборами.
12.2.2.6 Материалы, не принятые по результатам входного контроля по 12.2.2.3, перечисления а), б) и в), возвращаются с рекламацией. При невозможности возвращения материалов их следует хранить отдельно и использовать только по согласованию с проектной организацией.
12.2.2.7 Металл, используемый для арматурных работ, должен соответствовать проектной документации и требованиям по приемке, маркировке, упаковке, транспортированию и хранению, приведенным в ГОСТ 7566.
12.2.2.8 Подтверждение соответствия показателей поставленных металлических изделий требованиям проектной документации и техническим условиям на их изготовление по 12.2.2.3, перечисление в), должно быть в сопроводительных технических документах поставщиков или получено путем проведения испытаний по методикам, приведенным в ГОСТ 12004 и ГОСТ 14019.
12.2.2.9 При изготовлении бетонной смеси на строительной площадке необходимо контролировать соответствие показателей компонентов бетонной смеси требованиям ГОСТ 7473, ГОСТ 8267, ГОСТ 8269.0, ГОСТ 8736, ГОСТ 10060, ГОСТ 10178, ГОСТ 23732, ГОСТ 24211, ГОСТ 30515, ГОСТ 25192, ГОСТ 26633, ГОСТ 27006, ГОСТ 28570, ГОСТ 31108, ГОСТ 31914, ГОСТ Р 56592 по приведенным в них методикам.
12.2.3 При выполнении строительно-монтажных работ следует проводить операционный контроль выполнения:
- выноса на монтажный горизонт геодезических отметок и разметки мест установки конструкций;
- подготовки поверхности основания для железобетонного элемента;
- проверки готовности строительных элементов к монтажу;
- установки и временного раскрепления конструкций;
- герметизации стыков;
- арматурных работ;
- сварочных работ;
- антикоррозионных работ;
- постоянного закрепления в соответствии с проектным решением;
- бетонных работ.
12.2.4 Операционный контроль выноса на монтажный горизонт геодезических отметок и разметки мест установки конструкций проводят перед началом монтажа каждого этажа.
12.2.5 Операционный контроль подготовки поверхности основания для установки железобетонного элемента проводится в целях проверки отсутствия пыли, грязи, мусора, снега, льда и т.п., наличия естественной или искусственно образованной шероховатости поверхности, обеспечивающей надежность сцепления и совместную работу с бетонной смесью.
12.2.6 Операционный контроль готовности элементов к монтажу проводят перед монтажом конструкции в целях проверки отсутствия грязи, наледи, снега, наплывов и брызг бетона на поверхности закладных деталей.
12.2.7 Операционный контроль установки и временного закрепления конструкций проводят во время монтажа конструкции, при этом проверяют точность монтажа монтируемого элемента в соответствии с СП 70.13330 и допусками на отклонения, приведенными в настоящем своде правил, а также надежности временного закрепления строительной конструкции.
12.2.8 Операционный контроль герметизации стыков, обеспечивающий их плотность, непродуваемость и водонепроницаемость (СП 71.13330), включает проверку:
- устройства воздухоизоляции стыков;
- установки теплоизоляционных вкладышей;
- установки уплотняющих прокладок (ГОСТ 25621, ГОСТ 30791);
- устройства защитного покрытия.
12.2.8.1 Качество сцепления воздухоизоляционной ленты с поверхностью панели контролируют методом отрыва. При надлежащем сцеплении отрыв происходит по материалу ленты.
12.2.8.2 Операционный контроль качества герметизации стыков мастикой включает:
- проверку подготовки поверхностей кромок стыков;
- контроль температуры мастики;
- контроль толщины и непрерывности слоя мастики.
12.2.8.3 Выполнение герметизационных работ фиксируют в журнале контроля качества герметизационных работ и отмечают посменно на фасадных схемах герметизации стыков в этом журнале.
12.2.9 Операционный контроль соединений арматуры и других металлических изделий осуществляется в соответствии с требованиями ГОСТ 535, ГОСТ 1759.0, ГОСТ 3242, ГОСТ 8478, ГОСТ 9087, ГОСТ 14782, ГОСТ 22904, ГОСТ 23118, ГОСТ 23616, ГОСТ 23858, ГОСТ 27772, ГОСТ Р 57997, СП 63.13330, СП 16.13330 и СП 435.1325800.
12.2.10 При операционном контроле установки соединений арматуры и других металлических изделий следует:
а) визуально:
- убедиться в отсутствии на металле наледи, следов бетонной смеси, масляных пятен, коррозии и ржавчины,
- проверить правильность применяемого способа сварки по ГОСТ Р 57997,
- проверить на отсутствие дефектов каждое сварное соединение и перевязку вязальной проволокой;
б) в соответствии с требованиями ГОСТ 26433.2 выполнить измерения следующих геометрических параметров:
- установка элементов,
- длины соединений;
в) провести оценку правильности установки элементов сравнением полученных результатов измерений геометрических параметров их установки с предусмотренными в проектной документации, настоящем своде правил и СП 70.13330 допусками на отклонения.
12.2.11 При операционном контроле выполнения сварочных работ следует контролировать соблюдение заданного технологического режима сварки и качество сварных швов.
12.2.12 При операционном контроле нанесения защитного покрытия от воздействия внешней среды в соответствии с требованиями СП 432.1325800 следует контролировать технологию нанесения антикоррозионных составов, толщину отдельных слоев и общую толщину покрытия, внешний вид покрытия и прочность сцепления с защищаемой поверхностью.
12.2.13 Операционный контроль соответствия постоянного закрепления проектному решению заключается в проверке соответствия геометрических размеров монтажных элементов и их расположения проекту.
12.2.14 Операционный контроль бетонирования должен выполняться в соответствии с требованиями СП 70.13330 и включать:
а) проверку поверхности основания для укладки бетона по 12.2.5;
б) контроль параметров бетонной смеси по 12.2.2.9;
в) визуальный контроль уплотнения бетонной смеси;
г) визуальный контроль выдерживания и ухода за бетоном.
12.2.15 Результаты операционного контроля выполнения работ по 12.2.5 - 12.2.14 должны быть оформлены актами освидетельствования скрытых работ, а для работ по герметизации стыков - дополнительно в специальном журнале работ.
12.2.16 Результаты операционного контроля выполнения всех видов работ должны быть оформлены записью в общем или специальном журнале учета выполнения работ при строительстве.
12.2.17 Оценку соответствия выполненных работ требованиям проекта и нормативным документам следует проводить в комплексе по всем видам общестроительных работ по возведению здания в целом или его отдельных частей.
12.2.18 Оценку соответствия выполненных работ требованиям проекта и технических регламентов следует выполнять в соответствии с требованиями СП 68.13330 и предусматривать:
- визуальную проверку соответствия геометрии выполненных в натуре конструкций рабочим чертежам проекта и внесенным в них изменениям, оформленных в соответствии с требованиями СП 68.13330;
- инструментальную проверку требованиям проекта сечений элементов и катета швов сварных металлических конструкций штангенциркулями по ГОСТ 166, линейками по ГОСТ 427 и рулетками по ГОСТ 7502 с учетом допускаемых отклонений;
- проверку документов о качестве или других документов (записей в журнале входного контроля), удостоверяющих качество материалов, конструкций и изделий, применяемых при производстве строительно-монтажных работ, требованиям проектной документации и ППР;
- проверку соответствия результатов промежуточных обследований и выборочных проверок выполненных конструкций требованиям проекта;
- проверку результатов испытаний материалов и их соединений, применяемых при производстве работ, на соответствие их требованиям проектной документации и ППР;
- проверку актов (освидетельствования и приемки) и записей в общем и специальном журналах учета выполненных работ, а также в журнале авторского надзора;
- проверку иной исполнительной документации при производстве работ, предусмотренной проектной документацией, СП 246.1325800 и другими нормативными документами, регламентирующими порядок ведения исполнительной документации.
12.2.19 При оценке качества монтажа сборных элементов следует использовать геодезические приборы и другой измерительный инструмент, позволяющий определять отклонения от проектных геометрических параметров с погрешностью, не превышающей 0,2 значения предельного (допустимого) отклонения. Выбор средств измерений осуществляют в соответствии с ГОСТ 23616.
12.3.1 Безопасность производства должна быть обеспечена выбором соответствующих технологических процессов, режимов работы, расстановки оборудования, способов хранения и транспортирования исходных материалов и готовой продукции, обучением работающих и использованием средств защиты.
12.3.2 Производственные процессы должны соответствовать ГОСТ 12.3.002, а применяемое оборудование - ГОСТ 12.2.003, погрузочно-разгрузочные работы - ГОСТ 12.3.009, условия труда - ГОСТ 12.1.003, ГОСТ 12.1.005, ГОСТ 12.1.012 и ГОСТ 12.4.244.
Требования к организации системы обучения безопасности труда изложены в ГОСТ 12.0.004, а общие требования системы управления охраной труда содержатся в ГОСТ 12.0.230.
12.3.3 Особое внимание следует обратить на соблюдение правил пожарной безопасности в соответствии с требованиями [5].
Приложение А
А.1 По параметрам и массе КГМ относятся к грузам, транспортируемым по правилам [12, пункт 23]. Для транспортирования модулей требуется специальное разрешение в соответствии с [13].
А.2 Для обеспечения безопасного дорожного движения транспортное средство должно быть оборудовано в соответствии с [14].
А.3 Внутризаводское транспортирование или перемещение модулей обеспечивается работой соответствующего технологического оборудования - рольганги, передаточные телеги, тяжелые мостовые или козловые краны.
При перемещении необходимо обеспечить строго горизонтальное положение модуля.
А.4 Завершенные производством и упакованные в защитный материал объемные модули транспортируются в складское помещение по рольгангам передвижения с помощью специальных тележек, где должны быть обеспечены тепловой режим и мероприятия по защите конструкций от воздействия атмосферных осадков. При складировании модули находятся постоянно в горизонтальном положении, с опиранием нижней части на основания пилонов. При складировании отклонения опорной поверхности пилонов в одной плоскости более чем на 5 мм не допускаются (рисунок А.1).

Рисунок А.1 - Складирование модулей
А.5 Прочность бетона всех элементов модуля при складировании на заводе-изготовителе перед днем отгрузки должна быть не менее 100% проектного класса. Во избежание ударов опорных поверхностей пилонов и других частей модуля в процессе перемещения, при складировании и погрузке на устройстве передвижения все манипуляции необходимо проводить тяжелыми козловыми или мостовыми кранами (Q = 100 т) с минимальной скоростью горизонтального передвижения, а также вертикального перемещения груза.
А.6 Транспортирование модулей на строительную площадку проводится только специализированными транспортными средствами (СТС) - низкорамными грузовыми платформами, запроектированными так, чтобы модули опирались на платформу в местах опорных закладных деталей нижней части пилонов.
А.7 При проектировании грузовой платформы для перемещения КГМ со смещенным центром тяжести необходимо разработать мероприятия, обеспечивающие точную горизонтальную перевозку груза за счет автоматического выравнивания грузовой платформы гидравлическими или пневматическими стабилизаторами. Для этого при перевозке следует использовать детали крепления, распорки и другие приспособления, обеспечивающие стабильность положения и уменьшение динамических нагрузок на отдельные элементы модуля.
А.8 Параметры и характеристики СТС согласовываются с заводом - изготовителем модулей.
А.9 Для обеспечения высокой маневренности и устойчивости СТС с модулем при транспортировании по автомобильным дорогам общего пользования, территориям строительной площадки и завода-изготовителя. СТС должны быть с принудительным рулевым управлением и гидравлической подвеской (рисунок А.2).

Рисунок А.2 - Грузовая платформа
А.10 Для обеспечения транспортирования модулей СТС могут доукомплектовываться системой гидравлических опор (рисунок А.3), опорный контур которых приходится на пилоны (рисунок А.4), с шириной от 4800 до 7500 мм.

а - общий вид; б - вид сзади с грузом; в – позиция под загрузку; г - позиция под порожний проезд
Рисунок А.3 - СТС, укомплектованное системой гидравлических опор

Рисунок А.4 - Габариты и точки опирания
А.11 При транспортировании допускается применение специально запроектированных и изготовленных проставок, применяемых на стандартных транспортных средствах (рисунок А.5).

а - общий вид; б - "проставка"
Рисунок А.5 - Перевозка модулей на стандартных транспортных средствах
А.12 При осуществлении крепления модулей на СТС следует учитывать наличие фасадов и отделочных материалов на модуле. Способы и методы крепления проектируются индивидуально в соответствии с конфигурацией и весогабаритными характеристиками модуля и СТС. Крепление должно обеспечивать условия безопасности дорожного движения и сохранность модуля на всем маршруте его транспортирования.
А.13 При организации безопасности дорожного движения при перевозке нужно учитывать весогабаритные характеристики СТС с грузом (модулем), особенности дорожной инфраструктуры (подмостовые габариты под путепроводами/мостами, железнодорожные переезды, наличие на маршруте троллейбусно-трамвайных контактных сетей, воздушных линий электропередачи, радиусы поворотов, тип и качество дорожного полотна и т.д.). По итогам обследования маршрута составляется отчет, в котором должны быть отражены все особенности маршрута.
А.14 Транспортирование КГМ следует проводить по утвержденному графику производства и комплектации, в ночное время в сопровождении спецтранспорта (рисунок А.6).

Рисунок А.6 - Пример транспортирования модуля
А.15 Для перевозок модулей на дальние расстояния могут быть использованы кроме автомобильного транспорта железнодорожный, морской и речной. Для транспортирования модулей в облегченном варианте допускается использовать воздушный транспорт.
Библиография
[1] Федеральный закон от 30 декабря 2009 г. N 384-ФЗ "Технический регламент о безопасности зданий и сооружений"
[2] Федеральный закон от 27 декабря 2002 г. N 184-ФЗ "О техническом регулировании"
[3] Федеральный закон от 23 ноября 2009 г. N 261-ФЗ "Об энергосбережении и о повышении энергетической эффективности и о внесении изменений в отдельные законодательные акты Российской Федерации"
[4] Федеральный закон от 29 декабря 2004 г. N 190-ФЗ "Градостроительный кодекс Российской Федерации"
[5] Федеральный закон от 22 июля 2008 г. N 123-ФЗ "Технический регламент о требованиях пожарной безопасности"
[6] Рекомендации по проектированию стальных закладных деталей для железобетонных конструкций/НИИЖБ Госстроя СССР. - М.: Стройиздат, 1984. - 87 с.
[7] Пособие по проектированию жилых зданий. Выпуск 3. Часть 1, 2. Конструкции жилых зданий (к СНиП 2.08.01-85)/ЦНИИЭП жилища Москомархитектуры. - М.: Стройиздат, 1989. - 304 с.
[8] ПУЭ Правила устройства электроустановок (7-е изд.)
[9] Указ Президента Российской Федерации от 24 июня 2009 г. N 715 "Об общероссийских обязательных общедоступных телеканалах и радиоканалах"
[10] РД-11-02-2006 Требования к составу и порядку ведения исполнительной документации при строительстве, реконструкции, капитальном ремонте объектов капитального строительства и требования, предъявляемые к актам освидетельствования работ, конструкций, участков сетей инженерно-технического обеспечения
[11] РД-11-05-2007 Порядок ведения общего и (или) специального журнала учета выполнения работ при строительстве, реконструкции, капитальном ремонте объектов капитального строительства
[12] Постановление Правительства Российской Федерации от 23 октября 1993 г. N 1090 "О Правилах дорожного движения"
[13] Приказ Министерства транспорта Российской Федерации от 5 июня 2019 г. N 167 "Об утверждении порядка выдачи специального разрешения на движение по автомобильным дорогам тяжеловесного и (или) крупногабаритного транспортного средства"
[14] Приказ Министерства транспорта Российской Федерации от 31 августа 2020 г. N 343 "Об утверждении требований к организации движения по автомобильным дорогам тяжеловесного и (или) крупногабаритного транспортного средства"


