СП 468.1325800.2019 (28.12.2023) БЕТОННЫЕ И ЖЕЛЕЗОБЕТОННЫЕ КОНСТРУКЦИИ. ПРАВИЛА ОБЕСПЕЧЕНИЯ ОГНЕСТОЙКОСТИ И ОГНЕСОХРАННОСТИ
Утв. и введен в действие Приказом Министерства строительства и жилищно-коммунального хозяйства РФ от 10 декабря 2019 г. N 790/пр
Concrete and reinforced concrete structures. Rules for ensuring of fire resistance and fire safety
Дата введения - 11 июня 2020 года
Предисловие
Сведения о своде правил
1 ИСПОЛНИТЕЛЬ - АО "НИЦ "Строительство" - Научно-исследовательский, проектно-конструкторский и технологический институт бетона и железобетона им. А.А. Гвоздева (НИИЖБ им. А.А. Гвоздева)
2 ВНЕСЕН Техническим комитетом по стандартизации ТК 465 "Строительство"
3 ПОДГОТОВЛЕН к утверждению Департаментом градостроительной деятельности и архитектуры Министерства строительства и жилищно-коммунального хозяйства Российской Федерации (Минстрой России)
4 УТВЕРЖДЕН приказом Министерства строительства и жилищно-коммунального хозяйства Российской Федерации от 10 декабря 2019 г. N 790/пр и введен в действие с 11 июня 2020 г.
5 ЗАРЕГИСТРИРОВАН Федеральным агентством по техническому регулированию и метрологии (Росстандарт)
6 ВВЕДЕН ВПЕРВЫЕ
В случае пересмотра (замены) или отмены настоящего свода правил соответствующее уведомление будет опубликовано в установленном порядке. Соответствующая информация, уведомление и тексты размещаются также в информационной системе общего пользования - на официальном сайте разработчика (Минстрой России) в сети Интернет
Введение
Настоящий свод правил разработан в целях обеспечения соблюдения требований Федерального закона от 30 декабря 2009 г. N 384-ФЗ "Технический регламент о безопасности зданий и сооружений". Кроме того, применение настоящего свода правил обеспечивает соблюдение федеральных законов от 22 июля 2008 г. N 123-ФЗ "Технический регламент о требованиях пожарной безопасности", от 29 июня 2015 г. N 162-ФЗ "О стандартизации в Российской Федерации".
Свод правил разработан АО "НИЦ "Строительство" (руководитель работы - канд. техн. наук И.С. Кузнецова, главный консультант - д-р техн. наук, профессор А.Ф. Милованов, исполнители: В.Г. Рябченкова, Ю.С. Рянзина).
Изменение N 1 к настоящему своду правил разработано авторским коллективом АО "НИЦ "Строительство" (руководитель работы - канд. техн. наук Д.В. Кузеванов, канд. техн. наук И.С. Кузнецова, В.Г. Рябченкова).
Настоящий свод правил устанавливает требования к проектированию бетонных и железобетонных конструкций, обеспечивающие огнестойкость и огнесохранность при воздействии стандартного температурного режима пожара.
Свод правил распространяется на бетонные и железобетонные конструкции жилых, общественных и производственных зданий и сооружений.
Свод правил не распространяется на:
- сталежелезобетонные конструкции;
- на конструкции из жаростойких бетонов;
- конструкции из полимербетонов;
- конструкции из бетонов крупнопористой структуры.
В настоящем своде правил использованы нормативные ссылки на следующие документы:
ГОСТ 7076-99 Материалы и изделия строительные. Метод определения теплопроводности и термического сопротивления при стационарном тепловом режиме
ГОСТ 10180-2012 Бетоны. Методы определения прочности по контрольным образцам
ГОСТ 15588-2014 Плиты пенополистирольные теплоизоляционные. Технические условия
ГОСТ 23250-78 Материалы строительные. Метод определения удельной теплоемкости
ГОСТ 24452-80 Бетоны. Методы определения призменной прочности, модуля упругости и коэффициента Пуассона
ГОСТ 27751-2014 Надежность строительных конструкций и оснований. Основные положения
ГОСТ 30247.0-94 (ИСО 834-75) Конструкции строительные. Методы испытаний на огнестойкость. Общие требования
ГОСТ 30247.1-94 Конструкции строительные. Методы испытаний на огнестойкость. Несущие и ограждающие конструкции
ГОСТ 31310-2015 Панели стеновые трехслойные железобетонные с эффективным утеплителем. Общие технические условия
ГОСТ 31937-2011 Здания и сооружения. Правила обследования и мониторинга технического состояния
ГОСТ 34028-2016 Прокат арматурный для железобетонных конструкций. Технические условия
ГОСТ Р 52544-2006 Прокат арматурный свариваемый периодического профиля классов А500С и В500С для армирования железобетонных конструкций. Технические условия
СП 2.13130.2020 Системы противопожарной защиты. Обеспечение огнестойкости объектов защиты
СП 14.13330.2018 СНиП II-7-81* Строительство в сейсмических районах (с изменениями N 2, N 3)
СП 20.13330.2016 СНиП 2.01.07-85* Нагрузки и воздействия (с изменениями N 1, N 2, N 3, N 4)
СП 50.13330.2012 "СНиП 23-02-2003 Тепловая защита зданий" (с изменениями N 1, N 2)
СП 63.13330.2018 СНиП 52-01-2003 Бетонные и железобетонные конструкции. Основные положения (с изменениями N 1, N 2)
СП 297.1325800.2017 Конструкции фибробетонные с неметаллической фиброй. Правила проектирования (с изменениями N 1, N 2)
СП 329.1325800.2017 Здания и сооружения. Правила обследования после пожара
СП 430.1325800.2018 Монолитные конструктивные системы. Правила проектирования (с изменением N 1)
СП 432.1325800.2019 Покрытия огнезащитные. Мониторинг технического состояния
Примечание - При пользовании настоящим сводом правил целесообразно проверить действие ссылочных документов в информационной системе общего пользования - на официальном сайте федерального органа исполнительной власти в сфере стандартизации в сети Интернет или по ежегодному информационному указателю "Национальные стандарты", который опубликован по состоянию на 1 января текущего года, и по выпускам ежемесячного информационного указателя "Национальные стандарты" за текущий год. Если заменен ссылочный документ, на который дана недатированная ссылка, то рекомендуется использовать действующую версию этого документа с учетом всех внесенных в данную версию изменений. Если заменен ссылочный документ, на который дана датированная ссылка, то рекомендуется использовать версию этого документа с указанным выше годом утверждения (принятия). Если после утверждения настоящего свода правил в ссылочный документ, на который дана датированная ссылка, внесено изменение, затрагивающее положение, на которое дана ссылка, то это положение рекомендуется применять без учета данного изменения. Если ссылочный документ отменен без замены, то положение, в котором дана ссылка на него, рекомендуется применять в части, не затрагивающей эту ссылку. Сведения о действии сводов правил целесообразно проверить в Федеральном информационном фонде стандартов.
В настоящем своде правил применены следующие термины с соответствующими определениями:
3.1 высокотемпературное воздействие пожара: Воздействие температур свыше 200 °C на строительные конструкции при пожаре, при котором возникают температурные напряжения, могут меняться физико-механические и упругопластические свойства материалов конструкций и уменьшаться работоспособное сечение элемента.
3.2 высокотемпературный нагрев: Нагрев конструкции свыше 200 °C при воздействии пожара.
3.3 кратковременный высокотемпературный нагрев: Однократное высокотемпературное воздействие пожара на конструкцию продолжительностью от нескольких минут до нескольких часов.
3.4
|
конструктивный способ огнезащиты: Облицовка объекта огнезащиты материалами или иные конструктивные решения по его огнезащите. [ГОСТ Р 53295-2009, пункт 3.6] |
3.5 нормируемый (требуемый) предел огнестойкости железобетонной конструкции: Значение предела огнестойкости, устанавливаемое в нормах и (или) проекте.
3.6
|
огнестойкость строительной конструкции: Способность строительной конструкции сохранять несущие и (или) ограждающие функции в условиях пожара. [СП 2.13130.2012, пункт 3.1] |
3.7 огнесохранность строительной конструкции: Способность строительной конструкции сохранять после пожара несущие и (или) ограждающие функции, характеризует состояние ремонтопригодности конструкции без ее усиления после пожара.
3.8 поврежденный слой бетона: Поврежденный пожаром, ослабленный слой бетона, легко удаляемый при простукивании поверхностей железобетонных конструкций молотком (вручную, без применения электроинструментов).
3.9
|
пожар: Неконтролируемое горение, причиняющее материальный ущерб, вред жизни и здоровью граждан, интересам общества и государства. [2, глава 1, статья 1] |
3.10 повышенная температура: Температура воздействия на бетонные и железобетонные конструкции в интервале от 50 °C до 200 °C включительно.
3.11 предел огнестойкости конструкции (заполнения проемов противопожарных преград): Промежуток времени от начала огневого воздействия в условиях стандартных испытаний до наступления одного из нормированных для данной конструкции (заполнения проемов противопожарных преград) предельных состояний.
3.12
|
предельное состояние конструкции по огнестойкости: Состояние конструкции, при котором она утрачивает способность сохранять несущие и/или ограждающие функции в условиях пожара. [ГОСТ 30247.0-94, пункт 3.3] |
3.13 предел огнестойкости по потере несущей способности (R): Предельное состояние несущей строительной конструкции при пожаре вследствие ее обрушения или возникновения предельных деформаций.
Примечание - Предельные деформации определяют по ГОСТ 30247.1-94 (приложение А).
3.14 предел огнестойкости по потере теплоизолирующей способности (I): Предельное состояние несущей и (или) ограждающей строительной конструкции при пожаре вследствие повышения температуры на необогреваемой поверхности конструкции в среднем более чем на 140 °C, или в любой другой точке этой поверхности более чем на 180 °C в сравнении с температурой конструкции до испытания, или более 220 °C независимо от температуры конструкции до испытания.
3.15 предел огнестойкости по потере целостности (E): Предельное состояние несущей и (или) ограждающей строительной конструкции при пожаре в результате образования в конструкции сквозных трещин или отверстий, через которые на необогреваемую поверхность проникают продукты горения или пламя.
3.16 собственный предел огнестойкости железобетонной конструкции: Предел огнестойкости, который обеспечивается при проектировании за счет параметров железобетонного сечения конструкции (геометрия сечения, армирование, толщина защитного слоя бетона, классы бетона и арматуры), без применения средств огнезащиты.
3.17
|
средство огнезащиты: Огнезащитный состав или материал, обладающий огнезащитной эффективностью и предназначенный для огнезащиты различных объектов. [ГОСТ Р 53295-2009, пункт 3.2] |
3.18
|
стандартный температурный режим пожара: Логарифмическая зависимость "температура - длительность пожара". [ГОСТ 30247.0-94, пункт 6.1] |
3.19 фактический предел огнестойкости железобетонной конструкции: Предел огнестойкости, которым обладает существующая (эксплуатируемая) бетонная или железобетонная конструкция, в том числе с учетом ее технического состояния и наличия огнезащитных покрытий.
3.20 критическая температура нагрева арматуры: Температура нагрева растянутой арматуры, при которой происходит обрушение изгибаемой железобетонной конструкции при пожаре.
3.21 микрофибра: Искусственно созданные тонкие волокна длиной до 20 мм и диаметром менее 0,3 мм.
3.22 макрофибра: Искусственно созданные проволока, стружка, ленты, нити или ровинги длиной до 70 мм и диаметром более 0,3 мм.
4.1 При проектировании должны быть подтверждены пределы огнестойкости железобетонных конструкций для установления возможности их применения в зданиях и сооружениях заданной степени огнестойкости по СП 2.13130. Классификация зданий, сооружений и пожарных отсеков по степени огнестойкости и порядок определения степени огнестойкости установлены в [1, статьи 30, 87].
4.2 Согласно пожарно-технической классификации по огнестойкости [1, статья 35] различают три предельных состояния, характеризующих наступление пределов огнестойкости строительных конструкций: потеря несущей способности R, потеря теплоизолирующей способности I, потеря целостности E. Признаки предельных состояний определены в разделе 8 ГОСТ 30247.1-94.
Характеристика огнестойкости относится только к строительным конструкциям и не относится к строительным материалам. Строительные материалы характеризуются пожарной опасностью.
4.3 Нормируемые значения пределов огнестойкости строительных конструкций приведены в [1, таблица 21] в зависимости от степени огнестойкости зданий, сооружений и пожарных отсеков.
Для несущих стержневых конструкций (колонны, балки, фермы, прогоны, рамы, арки, связевые конструкции), а также для маршей и площадок лестничных клеток регламентируется один предел огнестойкости по потере несущей способности R.
Для несущих конструкций стен, плит перекрытий, настилов (в том числе противопожарных) регламентируют три предела огнестойкости: по потере несущей способности R, по потере теплоизолирующей способности I, по потере целостности E.
Для наружных несущих стен и плит покрытия регламентируются два предела огнестойкости: по потере несущей способности R и по потере целостности E.
Для наружных ненесущих стен регламентируется один предел огнестойкости по потере целостности E.
Для ненесущих внутренних стен и перегородок регламентируются два предела огнестойкости: по потере теплоизолирующей способности I и по потере целостности E.
4.4 К железобетонным конструкциям, выполняющим функции противопожарных преград, относятся противопожарные стены, перекрытия и перегородки. Огнестойкость железобетонной конструкции противопожарной преграды определяется огнестойкостью:
- ограждающей части противопожарной преграды;
- конструкций, обеспечивающих устойчивость противопожарной преграды;
- опорных конструкций для противопожарной преграды;
- узлов примыкания и сопряжения противопожарных преград со смежными конструкциями.
Нормируемые пределы огнестойкости и типы железобетонных конструкций, выполняющих функции противопожарных преград, приведены в [1, таблица 23].
Пределы огнестойкости железобетонных конструкций, обеспечивающих устойчивость, и/или опорных для противопожарной преграды, а также узлов сопряжения преград со смежными конструкциями по признаку R, а узлов примыкания - по признакам EI, должны быть не менее предела огнестойкости противопожарной преграды.
4.5 Проектирование железобетонных конструкций должно осуществляться таким образом, чтобы собственные и/или фактические пределы огнестойкости конструкций были не менее нормируемых значений [1, таблицы 21, 23]. При этом огнестойкость должна обеспечиваться за счет рационального конструирования сечения железобетонной конструкции, без применения огнезащитных средств.
Применение средств огнезащиты для железобетонных конструкций требуется в некоторых специально оговоренных случаях согласно разделу 11.
Следует учитывать основные параметры, оказывающие влияние на предел огнестойкости бетонных и железобетонных конструкций, - вид бетона, вяжущего и заполнителя, классы бетона и арматуры, тип конструкций, форма и размеры поперечного сечения, количество и расположение арматуры по сечению конструкции, толщина защитного слоя бетона, условия нагревания конструкции при пожаре, нагрузка и влажность бетона.
4.6 Подтверждение соответствия фактических пределов огнестойкости железобетонных конструкций нормируемым значениям производится в соответствии с [1, статья 87].
4.7 Расчетно-аналитические методы оценки огнестойкости железобетонных элементов, приведенные в настоящем своде правил, основаны на результатах многочисленных исследований и огневых испытаний.
4.8 Выполнение расчетов огнестойкости железобетонных конструкций с применением программных комплексов возможно только после апробации результатов программных расчетов огневыми испытаниями, проведенными в испытательном центре.
4.9 Приведенные далее расчетные методы оценки огнестойкости железобетонных конструкций не применимы к несущим бетонным конструкциям с арматурой композитной полимерной (АКП). Огнестойкость несущих бетонных конструкций с АКП обеспечивается согласно разделу 15.
Бетон
5.1 Нормативные Rbn и расчетные Rb, Rb,ser сопротивления бетона осевому сжатию (призменная прочность) и растяжению Rbtn, Rbt и Rbt,ser, начальный модуль упругости Eb и модуль деформации бетона при сжатии Ebτ следует принимать по действующим нормативным документам по расчету железобетонных конструкций.
При пожаре железобетонные конструкции в нагруженном состоянии подвергаются кратковременному высокотемпературному нагреву, который изменяет свойства бетона.
Изменение нормативного и расчетного сопротивлений бетона на осевое сжатие с увеличением температуры учитывается коэффициентом условий работы бетона γbt
Rbnt = Rbnγbt; Rb,tem = Rbγbt; Rb,ser,t = Rb,serγbt. (5.1)
Значение коэффициента условий работы γbt принимают по средней температуре бетона при расчете
сжатой зоны - по формулам (8.10), (8.11), (8.25) - (8.27), (8.35), (8.36);
сжатой полки - по формуле (8.16);
сжатого ребра - по формулам (8.17), (8.18), (8.21);
поперечного сечения - по формуле (8.23);
в зоне анкеровки - по формуле (8.15).
5.2 Значения коэффициентов условий работы на сжатие γbt бетонов следует устанавливать экспериментально. Для тяжелых бетонов на силикатном и карбонатном заполнителях, конструкционного керамзитобетона и некоторых видов высокопрочных бетонов коэффициенты условий работы на сжатие γbt приведены в таблице 5.1 в зависимости от температуры нагрева бетона.
Таблица 5.1
|
Вид бетона |
Коэффициент |
Значение коэффициентов γbt, βb и φb,cr для бетона при температуре, °C | |||||||
|
20 |
200 |
300 |
400 |
500 |
600 |
700 |
800 | ||
|
Тяжелый, на силикатном заполнителе |
γbt |
1,0 ----- 1,0 |
0,98 ------ 0,95 |
0,95 ------ 0,90 |
0,85 ------ 0,80 |
0,80 ------ 0,70 |
0,60 ------ 0,50 |
0,20 ------ 0,15 |
0 --- 0 |
|
βb |
1,0 |
0,70 |
0,50 |
0,40 |
0,30 |
0,20 |
0,10 |
0 | |
|
φb,cr |
1,5 |
3,0 |
5,7 |
9,0 |
13,0 |
19,0 |
- |
0 | |
|
Тяжелый, на карбонатном заполнителе |
γbt |
1,0 ----- 1,0 |
1,0 ------ 0,95 |
0,95 ------ 0,90 |
0,90 ------ 0,85 |
0,85 ------ 0,80 |
0,65 ------ 0,60 |
0,30 ------ - |
0,15 ------ - |
|
βb |
1,0 |
0,75 |
0,55 |
0,45 |
0,35 |
0,25 |
0,15 |
0,10 | |
|
φb,cr |
1,2 |
2,4 |
4,6 |
7,2 |
10,0 |
15,0 |
- |
- | |
|
Конструкционный керамзитобетон |
γbt |
1,0 ----- 1,0 |
1,0 ----- 1,0 |
1,0 ----- 1,0 |
0,95 ------ 1,0 |
0,85 ------ 0,95 |
0,70 ------ 0,80 |
0,50 ------ 0,55 |
0,25 ------ 0,30 |
|
βb |
1,0 |
0,85 |
0,80 |
0,70 |
0,60 |
0,45 |
0,30 |
0,15 | |
|
φb,cr |
0,7 |
3,2 |
5,9 |
9,2 |
13,5 |
20,0 |
- |
- | |
|
Высокопрочный бетон классов B60 - B100 на шлакопортландцементе и гранитном заполнителе, с добавкой микрокремнезема 6% - 13% |
γbt |
1,0 ----- 1,0 |
- ------ 0,95 |
- ------ 0,85 |
- ------ 0,80 |
- ------ 0,60 |
- ------ 0,40 |
- ------ 0,25 |
- ------ 0,10 |
|
Примечания 1 Значения коэффициентов γbt над чертой и βb приведены для бетона в нагретом состоянии и применяются при расчете огнестойкости. 2 Значения коэффициентов γbt под чертой и φb,cr приведены для бетона после нагрева в охлажденном состоянии и применяются при расчете огнесохранности. 3 Значения коэффициента βb после нагрева равны 1. 4 Для высокопрочных бетонов иного вещественного состава классов B60 и выше коэффициенты условий работы следует определять экспериментально. 5 Знак "тире" в таблице означает необходимость выполнения экспериментальных исследований для определения коэффициентов γbt, βb и φb,cr. | |||||||||
5.3 Нормативные Rbtn и расчетные Rbt и Rbt,ser сопротивления бетона растяжению при огневом воздействии также изменяются. Изменение сопротивлений бетона растяжению с увеличением температуры нагрева учитывают коэффициентом условий работы бетона на растяжение γbtn
Rbtnt= Rbtnγbtt; Rbtt= Rbtγbtt; Rbt,ser,t= Rtb,serγbtt. (5.2)
При расчете железобетонных элементов на действие поперечных сил по 8.24 значения коэффициента γbtt принимают по средней температуре бетона сечения, при расчете усилия в зоне анкеровки по формуле (8.15) - по температуре анкерующего стержня арматуры.
Значения коэффициента γbtt при кратковременном воздействии температур принимают по таблице 5.2.
Таблица 5.2
|
Вид бетона |
Значение коэффициента γbtt при температуре нагрева, °C | |||||||
|
20 |
200 |
300 |
400 |
500 |
600 |
700 |
800 | |
|
Тяжелый, на силикатном заполнителе |
1,0 ----- 1,0 |
0,65 ------ 0,60 |
0,50 ------ 0,45 |
0,35 ------ 0,30 |
0,20 ------ 0,15 |
0,05 ------ 0,03 |
0 --- 0 |
0 --- 0 |
|
Тяжелый, на карбонатном заполнителе и конструкционный керамзитобетон |
1,0 ----- 1,0 |
0,70 ------ 0,65 |
0,55 ------ 0,50 |
0,40 ------ 0,35 |
0,25 ------ 0,20 |
0,1 ------ 0,05 |
0 --- 0 |
0 --- 0 |
|
Примечания 1 Значения коэффициентов условий работы γbtt над чертой приведены для бетона в нагретом состоянии и применяются при расчете огнестойкости, под чертой - для бетона в охлажденном состоянии после нагрева и применяются при расчете огнесохранности. 2 Для высокопрочных бетонов классов B60 и выше коэффициенты условий работы следует определять экспериментально. | ||||||||
5.4 Температуру нагрева бетона определяют теплотехническим расчетом в соответствии с разделом 6 или по приложениям А и Б. Среднюю температуру бетона сжатой зоны tbm, расположенной у обогреваемой грани сечения, допускается принимать
при xt<ξRh0t - по температуре бетона, на расстоянии 0,2h0t и для плит 0,1h0t от сжатой грани сечения;
при xt≥ ξRh0t и xt = h0 - на расстоянии 0,5xt от сжатой грани сечения.
Среднюю температуру бетона сжатой зоны у необогреваемой грани сечения балки принимают по рисунку 5.1.

Рисунок 5.1 - Средняя температура бетона сжатой зоны (у необогреваемой стороны) в балке при трехстороннем нагреве и длительности стандартного температурного режима пожара от 30 до 240 мин
5.5 При расчете огнестойкости изменение значения начального модуля упругости при кратковременном высокотемпературном нагреве с увеличением температуры учитывают коэффициентом βb
Ebt= Ebβb. (5.3)
Значение коэффициента βb принимают по таблице 5.1.
5.6 При расчете огнесохранности железобетонной конструкции по предельным состояниям второй группы на продолжительное действие нагрузок значения начального модуля деформаций бетона определяют по формуле
Ebτ= Eb/(1 + φb,cr). (5.4)
Коэффициент ползучести бетона φb,cr после нагрева принимают по таблице 5.1.
5.7 При нагревании бетона естественной влажности его температурная деформация состоит из двух видов: обратимой - температурное расширение и необратимой - температурная усадка.
Значения коэффициентов температурной деформации расширения αbt приведены в таблице 5.3 и температурной усадки αcs - в таблице 5.4.
Таблица 5.3
|
Вид бетона |
Коэффициент температурного расширения бетона αbt·10-6, °C-1, при температуре бетона, °C | ||||
|
20 - 50 |
100 |
300 |
500 |
700 - 1100 | |
|
Тяжелый, на силикатном заполнителе |
9 |
9 |
8 |
11 |
14,5 |
|
Тяжелый, на карбонатном заполнителе |
10 |
10 |
9 |
12 |
15,5 |
|
Конструкционный керамзитобетон |
8,5 |
8,5 |
7 |
5,5 |
4,5 |
|
Примечание - Данные распространяются на бетоны классов не выше B55. | |||||
Таблица 5.4
|
Вид бетона |
Коэффициент температурной усадки бетона αcs·10-6, °C-1, при температуре бетона, °C | ||||
|
20 - 50 |
100 |
300 |
500 |
700 - 1100 | |
|
Тяжелый, на силикатном заполнителе |
0,5 |
1,0 |
1,0 |
-1,8 |
-6,8 |
|
Тяжелый, на карбонатном заполнителе |
0,5 |
1,5 |
1,1 |
1,3 |
1,5 |
|
Конструкционный керамзитобетон |
2 |
2 |
1,5 |
1,5 |
1,5 |
|
Примечание - Данные распространяются на бетоны классов не выше B55. | |||||
5.8 В таблицах 5.1 - 5.4 приведены данные об изменении прочностных и деформационных характеристик тяжелых бетонов на силикатном и карбонатном заполнителе, а также конструкционного керамзитобетона классов не выше B55 при кратковременном воздействии повышенных и высоких температур. Для других видов бетонов, в том числе высокопрочных бетонов, эти характеристики необходимо определять экспериментально.
5.9 Относительные деформации сжатия бетона при однозначной равномерной эпюре εb0 и при двухзначной эпюре в нормальном сечении εb2 в зависимости от вида расчета (на огнестойкость или огнесохранность) принимают по таблице 5.5.
Относительные деформации обычного тяжелого бетона на силикатном заполнителе приведены в таблице 5.5 и применимы при расчетах огнестойкости и огнесохранности сжатых элементов.
Таблица 5.5
|
Наименьшая температура нагрева сжатого бетона в сечении, °C |
Относительные деформации обычного тяжелого бетона на силикатном заполнителе при сжатии и расчете на | |||||
|
огнестойкость |
огнесохранность | |||||
|
εb1,red |
εb0 |
εb2 |
εb1,red |
εb0 |
εb2 | |
|
20 |
0,0015 |
0,0020 |
0,0035 |
0,0028 |
0,0034 |
0,0048 |
|
100 |
0,0019 |
0,0025 |
0,0044 |
0,0035 |
0,0043 |
0,0060 |
|
200 |
0,0026 |
0,0035 |
0,0061 |
0,0049 |
0,0060 |
0,0084 |
|
300 |
0,0038 |
0,0050 |
0,0088 |
0,0070 |
0,0085 |
0,0120 |
|
400 |
0,0049 |
0,0065 |
0,0114 |
0,0091 |
0,0111 |
0,0156 |
|
500 |
0,0068 |
0,0090 |
0,0158 |
0,0126 |
0,0153 |
0,0216 |
|
Примечания 1 Данные распространяются на тяжелый бетон на силикатном заполнителе класса не выше B55. 2 Для других видов и классов бетонов относительные деформации бетона при сжатии следует определять экспериментально. | ||||||
Арматура
5.10 Нормативные Rsn, расчетные Rs, Rsc значения сопротивлений арматуры и модуля упругости арматуры Es при нормальной температуре следует принимать по действующим нормативным документам.
5.11 При кратковременном высокотемпературном нагреве прочностные и деформационные свойства арматуры изменяются.
5.12 Изменение сопротивления арматуры растяжению и сжатию при высокотемпературных воздействиях учитывают коэффициентом условий работы γst= γ'st по формулам:
Rsnt= Rsnγst; Rst= Rsγst; (5.5)
Rsct= Rscγ'st; Rswt= Rswγ'st; (5.6)
5.13 Изменение модуля упругости арматуры с повышением температуры учитывают коэффициентом βs
Est= Esβs. (5.7)
5.14 Коэффициенты условий работы арматуры определяются опытным путем для арматуры каждого вида. Экспериментально установлено, что способ производства арматуры оказывает существенное влияние на изменение ее свойств при высокотемпературном нагреве. Рекомендуемые значения коэффициентов γst и βs приведены в таблице 5.6 в зависимости от температуры нагрева растянутой и сжатой арматуры.
Таблица 5.6
|
Класс арматуры |
Коэффициент |
Значение коэффициентов γst, βs при нагреве арматуры до температуры, °C | |||||||
|
20 |
200 |
300 |
400 |
500 |
600 |
700 |
800 | ||
|
А240, А300, А400, А500 |
γst |
1,0 ---- 1,0 |
1,0 ---- 1,0 |
1,0 ---- 1,0 |
0,85 ------ 1,0 |
0,60 ------ 1,0 |
0,37 ------ 1,0 |
0,22 ------ 0,92 |
0,10 ------ 0,85 |
|
βs |
1,0 |
0,92 |
0,90 |
0,85 |
0,80 |
0,77 |
0,72 |
0,65 | |
|
А600, А800, А1000 |
γst |
1,0 ---- 1,0 |
1,0 ---- 1,0 |
0,96 ------ 1,0 |
0,80 ------ 1,0 |
0,55 ------ 0,86 |
0,30 ------ 0,66 |
0,12 ------ 0,56 |
0,08 ------ 0,46 |
|
βs |
1,0 |
0,90 |
0,85 |
0,80 |
0,76 |
0,70 |
0,66 |
0,61 | |
|
Проволочная В500, Вр1200, Вр1300, Вр1400, Вр1500 и канатная К1400, К1500 |
γst |
1,0 ---- 1,0 |
1,0 ---- 1,0 |
0,90 ------ 1,0 |
0,65 ------ 0,9 |
0,35 ------ 0,8 |
0,15 ------ 0,6 |
0,05 ------ 0,5 |
0,02 ------ 0,4 |
|
βs |
1,0 |
0,94 |
0,86 |
0,77 |
0,64 |
0,55 |
0,45 |
0,35 | |
|
* А500С марки 25Г2С горячекатаная ГОСТ Р 52544-2006 |
γst |
1,0 ---- 1,0 |
1,0 ---- 1,0 |
1,0 ---- 1,0 |
0,92 ------ 1,0 |
0,87 ------ 1,0 |
0,76 ------ 1,0 |
0,39 ------ 0,96 |
0,18 ------ 0,80 |
|
βs |
1,0 |
1,0 ------ 0,99 |
1,0 ------ 0,99 |
0,99 ------ 0,99 |
0,94 ------ 0,98 |
0,93 ------ 0,98 |
0,77 ------ 0,97 |
0,60 ------ 0,97 | |
|
* А600С марки 18Г2СФ термомеханически упрочненная |
γst |
1,0 ---- 1,0 |
0,92 ------ 0,96 |
0,84 ------ 0,93 |
0,76 ------ 0,97 |
0,82 ------ 1,00 |
0,69 ------ 0,92 |
0,42 ------ 0,84 |
0,13 ------ 0,63 |
|
βs |
1,0 |
0,99 ------ 0,98 |
0,99 ------ 0,98 |
0,91 ------ 0,98 |
0,91 ------ 0,98 |
0,83 ------ 0,94 |
0,72 ------ 0,94 |
0,65 ------ 0,92 | |
|
* А500С марки Ст3Гпс термомеханически упрочненная ГОСТ 34028-2016 |
γst |
1,0 ---- 1,0 |
0,97 ------ 1,0 |
0,94 ------ 1,0 |
0,87 ------ 1,0 |
0,85 ------ 0,98 |
0,72 ------ 0,97 |
0,43 ------ 0,90 |
0,17 ------ 0,61 |
|
βs |
1,0 |
1,0 |
1,0 |
0,98 |
0,93 ------ 0,99 |
0,88 ------ 0,99 |
0,82 ------ 0,99 |
0,67 ------ 0,93 | |
|
* В500С марки Ст3Гпс ГОСТ Р 52544-2006 холоднодеформированная, стержневая, диаметром не менее 12 мм |
γst |
1,0 ---- 1,0 |
1,0 ---- 1,0 |
1,0 ---- 1,0 |
1,0 ---- 1,0 |
1,0 ---- 1,0 |
0,81 ------ 0,85 |
0,33 ------ 0,38 |
0,18 ------ 0,19 |
|
βs |
1,0 |
1,0 |
1,0 |
1,0 |
1,0 |
0,97 ------ 0,97 |
0,91 ------ 0,91 |
0,63 ------ 0,63 | |
|
* Классы арматуры применительно к конкретным маркам сталей современного способа производства. Примечания 1 Значения коэффициентов γst и βs над чертой даны в нагретом состоянии, и они используются при расчете огнестойкости. 2 Значение коэффициентов γst и βs под чертой даны в охлажденном состоянии после нагрева, и они используются при расчете огнесохранности. 3 Значения коэффициента βs, указанные без дробных чисел, применимы для нагретого состояния арматуры. Значения коэффициента βs после нагрева в охлажденном состоянии принять равными единице. 4 Для иных видов арматуры и классов арматурных сталей современного способа производства коэффициенты условий работы при нагреве и в охлажденном состоянии после нагрева следует определять экспериментально. | |||||||||
5.15 Относительные деформации удлинения арматуры εs0 при достижении напряжением расчетного сопротивления определяют как упругие по формуле
εs0= Rst/Est. (5.8)
5.16 Коэффициент температурного расширения арматуры αst с повышением температуры возрастает и превышает коэффициент температурной деформации бетона. Коэффициенты температурного расширения арматуры αst при различных температурах нагрева приведены в таблице 5.7.
Таблица 5.7
|
Класс арматуры |
Коэффициент температурного расширения арматуры αbt·10-6, °C-1, при температуре, °C | ||||||||
|
20 |
100 |
200 |
300 |
400 |
500 |
600 |
700 |
800 | |
|
А240, А300, А400, А500, А540, А600, А800, А1000; Холоднодеформированная проволочная классов В500, Вр1200 - Вр1500 и стержневая класса В500С; Канатная: К1400, К1500 |
11,5 |
12,0 |
12,5 |
13,0 |
13,5 |
14,0 |
14,5 |
15,0 |
15,5 |
6.1 Для расчета предела огнестойкости железобетонных конструкций необходимо знать распределение температур по бетону поперечного сечения элемента от воздействия стандартного температурного режима пожара по ГОСТ 30247.0.
6.2 Решение задачи нестационарной теплопроводности сводится к определению температуры бетона в любой точке поперечного сечения элемента для конкретных промежутков времени от начала нагрева. Функциональная зависимость температуры в твердых телах от времени описывается дифференциальным уравнением теплопроводности при нелинейных граничных условиях и сложном процессе тепло- и массопереноса. Расчеты прогрева сечений железобетонных конструкций выполняют с применением компьютерных программ или по графикам и изотермам по приложениям А и Б.
Алгоритм расчета представляет собой систему уравнений для определения температуры в каждом узле накладываемой на сечение координатной сетки. Координатная сетка накладывается так, чтобы ее узлы располагались не только по толщине сечения, но и по его периметру. Шаг сетки рекомендуется задавать в пределах 0,01 - 0,03 м, но обязательно больше максимального диаметра рабочей арматуры.
6.3 Для теплотехнического расчета железобетонных элементов коэффициент теплопроводности λ, Вт/(м·°C), рекомендуется принимать:
для тяжелого бетона на силикатном заполнителе
λ = 1,2 - 0,00035T, (6.2)
для тяжелого бетона на карбонатном заполнителе
λ = 1,14 - 0,00055T, (6.3)
для конструкционного керамзитобетона
λ = 0,36 - 0,00012T. (6.4)
Удельную теплоемкость C, кДж/(кг·°C), рекомендуется принимать:
для тяжелого бетона на силикатном или карбонатном заполнителе
C = 0,71 + 0,00083T, (6.5)
для конструкционного керамзитобетона
C = 0,83 + 0,00042T. (6.6)
Приведенный коэффициент температуропроводности ared, м2/ч, характеризующий скорость нестационарного прогрева бетонного сечения конструкции, определяют по формуле
ared= 3,6λ/(C + 0,05W)ρ,, (6.7)
где λ и C - расчетные средние значения коэффициента теплопроводности и удельной теплоемкости бетона при 450 °C;
ρ - плотность сухого бетона, кг/м3;
T - температура нагрева бетона, °C;
W - эксплуатационная (массовая) влажность бетона, %, принимаемая по СП 50.13330.2012 (приложение Т, таблица Т.1).
В элементах с жесткой арматурой при наличии перепада температуры по длине полок и высоте стенок жесткой арматуры необходимо учитывать теплопроводность стали. Коэффициент теплопроводности стали, Вт/(м·°C), определяют по формуле
λ = 58 - 0,0048T. (6.8)
Удельная теплоемкость стали, кДж/(кг·°C), определяют по формуле
C = 0,48 - 0,00063T. (6.9)
6.4 Приведенные теплотехнические характеристики применимы для бетонов классов по прочности на сжатие не выше B55. Для высокопрочных бетонов теплотехнические характеристики следует определять экспериментально.
6.5 Для упрощенного решения задач теплотехнического расчета в приложениях А и Б приведены изотермы прогрева типовых сечений железобетонных конструкций плит, стен, балок и колонн при одно-, двух-, трех- и четырехстороннем нагреве в зависимости от различной длительности воздействия стандартного температурного режима пожара.
7.1 Расчетная оценка предела огнестойкости железобетонной конструкции по теплоизолирующей способности I для плит и стен производится путем решения теплотехнической задачи с целью определения значений температур на необогреваемой поверхности стен или плит и их сопоставления с критериальной температурой нагрева по признаку потери теплоизолирующей способности I по приложению А ГОСТ 30247.1-94.
Температура на необогреваемой поверхности конструкции стены или плиты при одностороннем огневом воздействии зависит от условий теплообмена на этой поверхности, которые характеризуются коэффициентом теплоотдачи.
В расчет вводится среднеарифметическое начального и конечного коэффициентов теплоотдачи. Начальное значение находят при повышении температуры на 1 °C на необогреваемой поверхности. Конечное значение коэффициента теплоотдачи определяют при повышении температуры на необогреваемой поверхности до 160 °C, т.е. при наступлении предела огнестойкости конструкции по потере теплоизолирующей способности. Затем теплотехническим расчетом находят время достижения предела огнестойкости по потере теплоизолирующей способности.
7.2 Предел огнестойкости по потере теплоизолирующей способности I при одностороннем нагреве плит, стен из тяжелого бетона на силикатном и карбонатном заполнителях и из конструкционного керамзитобетона при длительности огневого воздействия до 300 мин допускается определять графически по рисунку 7.1.

1 - тяжелого бетона на силикатном заполнителе; 2 - тяжелого бетона на карбонатном заполнителе; 3 - конструкционного керамзитобетона
Рисунок 7.1 - Предел огнестойкости по потере теплоизолирующей способности плит (стен) при одностороннем воздействии стандартного температурного режима пожара
Для многопустотных плит предел огнестойкости по потере теплоизолирующей способности следует умножать на коэффициент 0,65 (по опытным данным).
7.3 Оценка предела огнестойкости по потере теплоизолирующей способности I бетонных и железобетонных конструкций из других видов бетонов, в том числе из высокопрочного бетона, возможна после экспериментального установления коэффициентов теплопроводности и теплоемкости при высокотемпературном нагреве для конкретного вида бетона.
Основные положения
8.1 Предел огнестойкости по потере несущей способности R железобетонной конструкции наступает вследствие снижения прочностных характеристик рабочей арматуры и бетона при воздействии пожара и, как следствие, снижения несущей способности конструкции до нормативных значений усилий от нагрузки, при которых происходит обрушение конструкции при пожаре.
Оценку огнестойкости железобетонных конструкций из высокопрочного бетона следует производить с учетом влияния взрывообразного разрушения бетона на предел огнестойкости по потере несущей способности по 9.19.
8.2 Расчет предела огнестойкости железобетонной конструкции по потере несущей способности R состоит из теплотехнической и статической частей.
Решение теплотехнической задачи следует производить для заданной длительности пожара. В теплотехнической части расчета определяются температуры нагрева бетона и арматуры по сечению железобетонной конструкции при заданной длительности стандартного температурного режима с целью определения коэффициентов условий работы арматуры и бетона при нагреве.
8.3 В статической части расчета производится расчет на прочность нагретой конструкции с учетом изменения свойств бетона и арматуры от температурных воздействий и специфики схем разрушения при пожаре.
Прочностной расчет базируется на общих требованиях расчета железобетонных конструкций по предельным состояниям первой группы по СП 63.13330 и настоящему своду правил.
8.4 Статический расчет предела огнестойкости по потере несущей способности R следует производить на нормативные нагрузки и нормативные сопротивления бетона и арматуры при огневом воздействии.
За нормативные нагрузки следует принимать основное сочетание, состоящее из постоянных Pd и временных длительных P1, без учета кратковременных нагрузок Pt (согласно классификации нагрузок по СП 20.13330.2016 (раздел 5)). При этом не следует учитывать динамическую составляющую крановых нагрузок и оборудования (приняв коэффициент динамичности равным 1,0). Расчет на особое сочетание с учетом особых нагрузок (сейсмических и аварийных) не производится, так как совпадение особых нагрузок с пожаром маловероятно.
Схема приложения нормативных нагрузок в расчетах огнестойкости должна соответствовать принятой в проекте.
8.5 В общем случае предел огнестойкости по потере несущей способности R обеспечивается при выполнении условия
Nn(Mn) ≤ Nult,t(Mult,t), (8.1)
где Nn(Mn) - нормативное продольное усилие или изгибающий момент от внешней нагрузки (постоянной и временной длительной);
Nult,t(Mult,t) - несущая способность (прочность) железобетонной конструкции при пожаре длительностью, равной значению R.
Для оценки соответствия нормируемого и собственного значений предела огнестойкости по потере несущей способности R железобетонного элемента расчеты производятся из условия (8.1) с учетом длительности воздействия стандартного режима пожара, эквивалентной нормируемому пределу огнестойкости.
При необходимости определения собственного предела огнестойкости железобетонного элемента нахождение условий его предельного состояния при пожаре основано на принципе последовательных приближений для заданных значений длительности стандартного режима пожара. За собственный предел огнестойкости принимается длительность стандартного пожара, при которой удовлетворяется условие (8.1).
8.6 Поэлементный расчет огнестойкости железобетонных конструкций производится по приведенному сечению, когда сечение элемента разбивается на малые характерные участки, нагретые до различных температур, и каждый малый участок приводится к ненагретому бетону с учетом соответствующих понижающих характеристик прочности бетона. Для каждого малого участка принимают коэффициент γbt меньше 1,0 в зависимости от средней температуры нагрева бетона малого участка. Далее определяют значения Rbnt по формуле (5.1) и Rbtnt - по формуле (5.2) для каждого малого участка, которые подставляют в формулы прочности нормальных и наклонных сечений действительных размеров.
8.7 Возможно применение упрощенного метода поэлементного расчета огнестойкости железобетонных конструкций, при котором рассматривают уменьшенное поперечное сечение конструкции за вычетом толщин слоев бетона, нагретого выше критической температуры.
За критическую температуру нагрева тяжелого бетона на силикатном заполнителе принимают 500 °C, на карбонатном заполнителе и конструкционного керамзитобетона - 600 °C (структура бетона повреждена, прочностные характеристики значительно снижены).
При применении упрощенного расчета значение коэффициента условий работы бетона на сжатие γbt принимают равным единице (γbt= 1) при нагреве бетона до критической температуры и равным нулю (γbt= 0) при нагреве бетона выше критической температуры.
При упрощенном расчете расчетная площадь уменьшенного поперечного сечения бетона конструкции ограничивается изотермой критической температуры нагрева бетона tb,cr, и коэффициент условий работы бетона γbt в уменьшенном сечении принимают равным 1,0.
При упрощенном расчете уменьшенные размеры сечений железобетонных элементов определяют по формулам (8.2) - (8.9), в формулах прочности нормальных и наклонных сечений применяют параметры: Rbn, Rbtn, bt, ht, b'ft, h'ft, Ared и hot.
Упрощенный метод применяется для обычных и преднапряженных железобетонных конструкций с учетом воздействия осевой нагрузки, изгибающего момента и их сочетаний.
8.8 При упрощенном расчете железобетонных элементов приведенные размеры сечений принимают равными:
при трехстороннем нагреве
ширина балки, колонны bt = b - 2at, (8.2)
ширина полки b'ft = b'f - 2at, (8.3)
высота полки h'ft = h'f - at, (8.4)
высота сечения балки, колонны ht = h - at, (8.5)
площадь балки Ared = 0,95(b - 2at)(h - at); (8.6)
при четырехстороннем нагреве
высота сечения колонны ht = h - 2at, (8.7)
площадь сечения колонны Ared = 0,9(b - 2at)(h - 2at). (8.8)
Рабочая высота сечения при нагреве со стороны сжатой зоны определяется по формуле
h0t = h0 - at. (8.9)
Глубина прогрева бетона at до критической температуры в балке от обогреваемой грани сечения при действии стандартного температурного режима пожара приведена на рисунке 8.1.

а - на силикатном заполнителе; б - на карбонатном заполнителе; 30, 45 ... 240 - длительность стандартного температурного режима пожара, мин
Рисунок 8.1 - Глубина прогрева at до критической температуры tb,cr тяжелого бетона в балке от нагреваемой грани сечения при действии стандартного температурного режима пожара
Глубина прогрева бетона at до критической температуры в колонне при четырехстороннем воздействии стандартного температурного режима пожара приведена на рисунке 8.2.

а - на силикатном заполнителе; б - на карбонатном заполнителе; 30, 60 ... 240 - длительность стандартного температурного режима пожара, мин
Рисунок 8.2 - Глубина прогрева at до критической температуры тяжелого бетона в колонне при четырехстороннем воздействии стандартного температурного режима пожара
Статически определимые конструкции
Плоские изгибаемые элементы (плиты, настилы, панели)
8.9 Разрушение плоских изгибаемых железобетонных плит, шарнирно опертых по двум противоположным сторонам, при одностороннем нагреве снизу происходит в результате образования пластического шарнира в середине пролета из-за снижения нормативного сопротивления арматуры растяжению до рабочих напряжений от нормативной нагрузки. Схема усилий в сечении, нормальном к продольной оси плиты в середине пролета, приведена на рисунке 8.3а.

Рисунок 8.3 - Схема усилий и эпюра напряжений в сечении, нормальном к продольной оси: балочной плиты в пролете (а) и консольной плиты на опоре (б), обогреваемых с нижней стороны
Момент Mult,t плоского изгибаемого элемента в состоянии предельного равновесия при воздействии пожара определяют по формуле
Mult,t = Rbntbxt(h0 - 0,5xt) + RsctA's(h0 - a'). (8.10)
При этом высоту сжатой зоны определяют по формуле
xt = (RsntAs - RsctA's)/Rbntb. (8.11)
В сильно армированных плитах при ξ <ξR предельный момент пролетного сечения допускается определять по формуле
Mult,t = RsntAs(h0 - 0,5xt) + RsctA's(0,5xt - a'). (8.12)
Высоту сжатой зоны xt следует определять по формуле (8.11).
8.10 Для статически определимых изгибаемых железобетонных элементов оценка предела огнестойкости по потере несущей способности R может сводиться к определению значения критической температуры нагрева растянутой рабочей арматуры ts,cr.
Критическая температура нагрева арматуры ts,cr в растянутой зоне изгибаемых железобетонных элементов, при которой образуется пластический шарнир в средней части пролета и наступает предел огнестойкости по потере несущей способности R, ориентировочно равна для арматуры без предварительного напряжения:
горячекатаной - 500 °C;
холоднодеформированной - 400 °C.
Критическое значение коэффициента условий работы растянутой арматуры при xt<ξR, вычисляют по формулам:
при одиночном армировании
γst,cr= Mn/RsnAs(h0 - 0,5xt); (8.13)
при двойном армировании
γst,cr= [Mn- RsctA's(0,5xt- a')]/RsnAs(h0 - 0,5xt), (8.14)
где Mn - момент от нормативной нагрузки;
xt - по формуле (8.11).
Зная критическое значение коэффициента условий работы арматуры γst,cr, в зависимости от класса арматуры по таблице 5.6 определяют критическую температуру нагрева арматуры ts,cr.
Время наступления предела огнестойкости находят по графикам прогрева бетона плит (рисунки А.1 - А.6). На вертикальной оси графика находят значение критической температуры арматуры и проводят горизонтальную прямую до пересечения с кривой нагрева бетона, расположенного на расстоянии, равном расстоянию от оси арматуры до нагреваемой поверхности плиты. Из этой точки опускают перпендикуляр до пересечения с горизонтальной осью и находят длительность стандартного температурного режима пожара в минутах, которая будет соответствовать пределу огнестойкости по потере несущей способности R.
8.11 Предел огнестойкости по потере несущей способности R многопустотных плит принимается как для сплошных панелей с коэффициентом 0,9, установленным по результатам испытаний на огнестойкость серий многопустотных плит заводского изготовления. При толщине панелей 150 - 220 мм, диаметре пустот 80 - 160 мм и защитном слое до центра арматуры 20 - 40 мм коэффициенты уменьшения времени прогрева арматуры до критических температур в пустотных плитах колеблются от 0,85 до 0,92. Принятый коэффициент 0,9 является усредненной величиной уменьшения огнестойкости многопустотных панелей по признаку потери несущей способности.
Предел огнестойкости по потере несущей способности R многопустотных плит при действии равномерно распределенной нагрузки может наступать за счет образования пластических шарниров, как в пролетном сечении от действия изгибающего момента, так и в опасном наклонном сечении от действия поперечной силы.
Момент образования пластического шарнира в середине пролета определяют по формулам (8.10) и (8.12), где вместо ширины ребра b подставляют ширину сжатой полки b'f, и полученное значение момента умножают на 0,9.
Расчет огнестойкости при действии изгибающего момента в опасном наклонном сечении производится из условия (8.63) СП 63.13330.2018. Полученное значение момента умножают на коэффициент 0,9.
При огневом воздействии момент, воспринимаемый продольной арматурой, пересекающей растянутую зону наклонного сечения, определяют по формуле (8.64) СП 63.13330.2018, где усилие Ns, воспринимаемое анкерующим стержнем арматуры при ds ≤ 32 в зоне анкеровки, определяют по формуле
Ns= (η1Rbtntlsus/α)
где η1 - коэффициент, учитывающий влияние вида поверхности арматуры и равный 1,5 - для гладкой арматуры; 2,0 - для холоднодеформируемой арматуры периодического профиля; 2,5 - для горячекатаной арматуры периодического профиля;
Rbtnt - нормативное сопротивление бетона осевому растяжению, определяемое по формуле (5.2), в которой коэффициент условий работы бетона на растяжение γbtt принимают в зависимости от температуры бетона, равной температуре анкерующего стержня на опоре;
Rsnt - нормативное сопротивление арматуры растяжению, определяемое по формуле (5.5), в которой коэффициент условий работы γst принимают в зависимости от температуры нагрева арматуры в зоне анкеровки при опирании плиты на железобетонный ригель или стену, равной 0,8ts, и при опирании на металлическую балку - ts;
ls - расстояние от конца анкеруемого стержня до рассматриваемого поперечного сечения плиты, принимаемого в качестве длины анкеровки (не менее 15ds и 200 мм), требуемой для передачи усилия в арматуре Ns на бетон;
us - периметр поперечного сечения анкеруемого стержня, определяемый по его номинальному диаметру;
α - коэффициент, учитывающий влияние напряженного состояния бетона и арматуры и конструктивного решения элемента в зоне анкеровки на длину анкеровки. При анкеровке стержней периодического профиля с прямыми концами или гладкой арматуры с крюками или петлями без дополнительных анкерующих устройств α принимают равным 1,0 для растянутых стержней и равным 0,75 - для сжатых стержней.
Момент, воспринимаемый хомутами в пределах растянутой зоны наклонного сечения при огневом воздействии, определяют по формуле (8.65) СП 63.13330.2018.
За предел огнестойкости многопустотной плиты принимается минимальное значение из пределов огнестойкости при образовании пластического шарнира в середине пролета и у края наклонной трещины.
8.12 Консольные плиты имеют жесткую заделку на одной опоре. При одностороннем огневом воздействии снизу прочность опорного сечения снижается, в основном, за счет нагрева до высоких температур сжатого бетона и, как следствие, уменьшения расчетной высоты сечения (рисунок 8.3, б). Расчетная высота сечения уменьшается на толщину слоя бетона at, прогретого до критической температуры.
Прочность опорного сечения при действии нормативной нагрузки и огневом воздействии снизу определяют по формуле (8.10), в которой (h0 - 0,5xt) заменяют на (h0t - 0,5xt), а значение h0t вычисляют по формуле (8.9).
Для плит из бетона классов B30 и ниже с ненапрягаемой арматурой, если полученное из расчета по формуле (8.11) значение xt> ξRh0t, допускается производить расчет, принимая высоту сжатой зоны xt= ξRh0t.
8.12а Для плит из высокопрочного бетона на гранитном заполнителе классов B60 - B100 расчетный предел огнестойкости следует обеспечивать с запасом не менее 20 мин с учетом 9.19.
Стержневые изгибаемые элементы (балки, прогоны, ригели)
8.13 При пожаре балки подвергаются трехстороннему нагреву с нижней и двух боковых поверхностей. При этом происходит нагрев растянутой и сжатой арматуры, а также бетона сжатой зоны (рисунок 8.4). Разрушение балок происходит за счет образования пластического шарнира в пролете.

а - прямоугольного сечения; б - таврового сечения со сжатой зоной в полке; в - таврового сечения со сжатой зоной в ребре
Рисунок 8.4 - Схема усилий и эпюра напряжений, возникающих в сечении, нормальном к продольной оси изгибаемого железобетонного элемента, от трехстороннего огневого воздействия пожара, при расчете на огнестойкость
При оценке предела огнестойкости по потере несущей способности R шарнирно опертой балки прямоугольного сечения Mult,t определяют по формулам (8.10) и (8.11), в которые вместо b подставляют приведенную ширину балки bt, вычисленную по формуле (8.2).
8.14 Прочность тавровых и двутавровых изгибаемых элементов определяют в зависимости от положения сжатой зоны:
а) если граница сжатой зоны проходит в полке (рисунок 8.4, б), т.е. соблюдается условие
RsntAs
значение Mult,t определяют по формулам (8.10) и (8.12) как для прямоугольного сечения шириной b'ft, где ширина полки b'ft, - по формуле (8.3);
б) если граница сжатой зоны проходит в ребре (рисунок 8.4, в), т.е. условие (8.15) не соблюдается, значение Mult,t определяют по формуле
Mult,t = Rbntbtxt(h0 - 0,5xt) + Rbn(b'ft - bt)h'ft(h0 - 0,5h'ft) + RsctAs(h0 - a'), (8.17)
при этом высоту сжатой зоны бетона xt при нагреве определяют по формуле
xt = [RsntAs - RsctA's - Rbn(b'ft - bt)h'ft]/Rbntbt. (8.18)
8.15 В балках, армированных разными классами сталей, при многорядном армировании арматура рядов разных уровней будет нагреваться неодинаково. В этом случае при ξ <ξR значение Mult,t определяют по формуле
Mult,t = ∑RsntAs(h0 - 0,5xt) + ∑RsctA's(0,5xt - a'). (8.19)
8.16 Критическая температура нижней растянутой арматуры статически определимой балки при ξ <ξR определяет наступление предела огнестойкости по потере несущей способности.
Критическое значение коэффициента условия работы растянутой арматуры вычисляют:
в балках прямоугольного сечения при одиночной арматуре (без учета сжатой арматуры) - по формуле (8.13);
в балках прямоугольного сечения с учетом сжатой арматуры - по формуле (8.14);
в балках таврового сечения, когда граница сжатой зоны проходит в ребре, по формуле
γs,cr = (Mn – A - B)/RsnAs(h0 - 0,5xt); (8.20)
A = Rbnt[btxt(h0 - 0,5xt) + (b'ft - bt)h'ft(h0 - 0,5h'ft)]; (8.21)
B = RsctAs(h0 - a'), (8.22)
где A и B - моменты внутренних усилий по бетону и арматуре соответственно.
Значения высоты сжатой зоны xt при пожаре определяют по формулам (8.11), (8.18), приведенной ширины балки bt - по формуле (8.2), ширины полки b'ft - по формуле (8.3).
Зная критическое значение коэффициента условий работы арматуры γst,cr, в зависимости от класса арматуры, по таблице 5.6 определяют критическую температуру нагрева арматуры ts,cr, для крайнего стержня арматуры в балке. Зная расстояние от оси арматуры до нижней и боковой поверхностей балки, на графиках прогрева балок (рисунки Б.7 - Б.22) находят ту схему прогрева балки, в которой температура бетона равна критической температуре оси арматуры крайнего стержня. На этой схеме сверху будет указана длительность стандартного пожара, которая соответствует пределу огнестойкости балки по потере несущей способности R.
При промежуточных значениях температуры ts,cr на схемах прогрева балок предел огнестойкости определяется по линейной интерполяции.
Сжатые элементы (колонны, стены)
8.17 Отдельно стоящие колонны подвергаются воздействию пожара с четырех сторон. Колонны, находящиеся в стенах, подвергаются огневому воздействию пожара с одной, двух и трех сторон.
При расчете огнестойкости колонн ветровые и крановые нагрузки (при их наличии) не учитывают.
Огневое воздействие вызывает неравномерное распределение температуры в бетоне по поперечному сечению колонны. Периферийные слои бетона прогреваются значительно больше, чем внутренние, что приводит к снижению прочности и сильному развитию деформаций бетона у краев сечения колонны. Менее нагретый бетон центральной части сечения обладает большей прочностью и меньшей деформативностью. Разрушение колонн происходит по менее нагретому, более прочному бетону при деформации сжатия, близкой к предельной.
В арматуре, расположенной у краев сечения колонны, при высоких температурах нагрева развиваются большие пластические деформации, и она перестает воспринимать усилия от внешней нагрузки, которые передаются на менее нагретый бетон в центральной части колонны.
8.18 Расчет по прочности при четырехстороннем огневом воздействии прямоугольных сечений внецентренно сжатых колонн с арматурой, расположенной у противоположных в плоскости изгиба сторон сечения, при эксцентриситете продольной силы e0 ≤ h/30 и гибкости λ = l0/ht≤ 20 производят по формуле
Nult,t ≤ φ(RbntAred + RsctAs,tot), (8.23)
где Ared - приведенная площадь сечения, которую определяют по формуле (8.8);
As,tot - площадь всей продольной арматуры в сечении.
8.19 Коэффициент продольного изгиба φ колонн прямоугольного и круглого сечений при нагреве следует принимать в зависимости от отношения расчетной длины колонны l0 к приведенным высоте ht или диаметру dt по таблице 8.1.
Таблица 8.1
|
l0/ht |
6 - 12 |
16 |
20 |
|
l0/dt |
5 - 10 |
14 |
17 |
|
φ для тяжелого бетона |
0,90 |
0,80 |
0,70 |
|
φ для конструкционного керамзитобетона |
0,85 |
0,68 |
0,55 |
Площадь приведенного круглого сечения
Ared = 0,785dt2 = 0,785(d - 2at)2. (8.24)
Приведенную высоту сечения колонны ht определяют по формуле (8.5) или (8.7).
Глубину прогрева бетона at для круглой колонны находят по рисунку 8.2, принимая dt = 0,9bt и найденное значение at умножают на коэффициент 1,11.
8.20 Расчет по прочности прямоугольных сечений внецентренно сжатых колонн при огневом воздействии производят из условия
Nn·e ≤ Rbntbtxt(h0t - 0,5xt) + RsctA's(h0 - a'). (8.25)
Высоту сжатой зоны определяют по формуле (рисунок 8.5)
при ξ = xt/h0t≤ ξR
xt = (Nn + RsnlAs - RsctAs)/Rbntbt; (8.26)
при ξ = xt/h0t> ξR
. (8.27)

а - при трехстороннем; б - при четырехстороннем обогреве и расчете на огнестойкость
Рисунок 8.5 - Схема усилий и эпюра напряжений в сечении, нормальном к продольной оси внецентренно сжатого железобетонного элемента
При четырехстороннем воздействии пожара приведенную рабочую высоту сечения определяют по формуле h0t = h - a - at.
Приведенную ширину bt в формулах (8.25) - (8.27) определяют по формуле (8.2).
8.21 Эксцентриситет или расстояние от точки приложения продольной силы Nn до центра тяжести сечения растянутой или менее сжатой арматуры колонны при огневом воздействии определяют по формуле
e = e0η + 0,5(h0 - a') + et. (8.28)
Первые два слагаемых в формуле (8.28) определяются по пункту 8.1.14 СП 63.13330.2018 с учетом изменения прочностных и деформативных характеристик бетона и арматуры при нагреве. При этом модуль упругости бетона Ebt определяют по формуле (5.3) в центре тяжести приведенного сечения, модуль упругости арматуры Est - по формуле (5.7).
et - дополнительный эксцентриситет (или прогиб) от огневого воздействия при одно-, двух- или трехстороннем неравномерном нагреве по высоте сечения внецентренно сжатой колонны определяют по формуле
et = a(αstts - αbttb)l02/8h0t. (8.29)
При четырехстороннем нагреве et = 0.
Для колонн с несмещающимися заделками на двух концах (без поворота) l0 = 0,5l; a = 0,55.
Для колонн с несмещающимися заделками на двух концах с податливым ограниченным поворотом l0 = 0,8l; a = 0,7.
Для колонн с шарнирными опорами на двух концах l0 = l, a = 1,0.
Коэффициент αbt принимают по таблице 5.3 в зависимости от температуры бетона менее нагретой сжатой грани сечения и αst - по таблице 5.7 в зависимости от температуры арматуры у нагреваемой грани.
8.22 Эксцентриситет, или расстояние от точки приложения продольной силы Nn до центра тяжести сечения растянутой или менее сжатой арматуры колонны при четырехстороннем огневом воздействии, допускается определять по формуле
, (8.30)
где Eb1 - определяют по формуле (12.7);
Jred - по формуле (8.125) СП 63.13330.2018 с учетом формулы (12.6).
8.23 Расчет огнестойкости колонн при косвенном армировании следует выполнять по формуле (8.23) или (8.25), подставляя в них вместо Rbn приведенную призменную прочность бетона Rbn,red, определенную с учетом влияния огневого воздействия на нормативные сопротивления арматурной стали сетки или спирали.
8.24 Железобетонные несущие стены сплошного сечения гибкостью λ ≤ 83(l0/ht≤ 24) при одностороннем огневом воздействии, с жесткими несмещаемыми опорами, когда продольная сжимающая сила приложена с начальным или случайным эксцентриситетом со стороны обогреваемой поверхности, работают на внецентренное сжатие. Предел огнестойкости по потере несущей способности наступает при прогибе стены, направленном в необогреваемую сторону.
Прогиб от неравномерного нагрева стены по высоте сечения в расчете не учитывают, так как он направлен в обогреваемую сторону и уменьшает эксцентриситет приложения продольной сжимающей силы.
8.25 При одностороннем огневом воздействии и с жестким опиранием стены прочность внецентренно сжатых плоских элементов при приложении продольной силы с большим эксцентриситетом (рисунок 8.6), когда ξ = xt/h0t≤ ξR, определяют по формулам (8.25) - (8.27), в которых вместо bt принимают b = 1000 мм.

а - расчетные размеры стены; б - схема разрушения стены при одностороннем огневом воздействии; в – схема сечения стены при расчете огнестойкости
Рисунок 8.6 - Железобетонная стена с ограниченным поворотом опорных сечений
8.26 В условиях пожара двухсторонний обогрев железобетонной стены не всегда происходит. В случае одновременного нагревания с двух сторон в железобетонной стене практически не возникает температурного прогиба (эксцентриситета et), и стена работает на сжатие. Предел огнестойкости по потере несущей способности R такой стены будет выше, чем при одностороннем нагреве.
Растянутые элементы
8.27 В несущих конструкциях ферм и арок присутствуют железобетонные элементы, которые работают на центральное и внецентренное растяжения. Эти элементы во время пожара обогреваются со всех сторон.
8.28 Оценку предела огнестойкости по потере несущей способности R растянутых прямоугольных железобетонных элементов при всестороннем огневом воздействии производят из условия
Nn ≤ Nult,t, (8.31)
где Nn - продольная растягивающая сила от нормативной внешней нагрузки;
Nult,t - предельное значение продольной силы, которое может быть воспринято элементом, определяемое по формуле
при центральном растяжении
Nult,t= ∑RsntAstot, (8.32)
где Astot - площадь сечения всей продольной растянутой арматуры;
при внецентренном растяжении и продольной силе, приложенной между усилиями в арматуре S и S' (рисунок 8.7 а)
Nne ≤ RsntA's(h0 - a'); (8.33)
Nne' ≤ RsntAs(h0 - a'); (8.34)
при продольной силе, приложенной за пределами расстояния между усилиями в арматуре S и S' (рисунок 8.7, б)
Nult,te ≤ Rbntbtxt(h0t - 0,5xt) + RsctA's(h0 - a'). (8.35)

а - продольная сила приложена между усилиями в арматуре As и A's; б - продольная сила приложена за пределами расстояния между усилиями в арматуре As и A's
Рисунок 8.7 - Схема усилий и эпюра напряжений в сечении, нормальном к продольной оси внецентренно растянутого железобетонного элемента, при четырехстороннем воздействии пожара при расчете огнестойкости
Высота сжатой зоны при нагреве xt равна
xt = (RsntAs - RsctA's - Nn)/Rbntbt. (8.36)
Если xt> ξRh0t, в формулу (8.39) подставляют xt= ξRh0t.
Эксцентриситет продольной силы или расстояние e от растягивающей продольной силы до равнодействующей усилий в арматуре определяют по формуле (8.28) без коэффициента η, так как нет дополнительного продольного изгиба от растягивающей силы, и без дополнительного эксцентриситета продольной силы et, так как при всестороннем огневом воздействии нет дополнительного выгиба от неравномерного нагрева.
Железобетонные элементы при действии поперечных сил
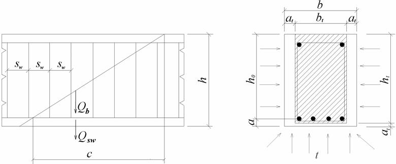
8.29 Расчет огнестойкости по потере прочности железобетонных элементов при действии поперечных сил в условиях огневого воздействия проводят на основе модели наклонных сечений по 8.1.31 - 8.1.34 СП 63.13330.2018. При этом в формулах вместо значения b принимают значение bt (рисунок 8.8), определяемое по формуле (8.2). Значения коэффициентов условий работы γbt и γbtt принимают по средней температуре бетона поперечного сечения.

Рисунок 8.8 - Схема усилий при расчете железобетонных элементов по наклонному сечению на действие поперечных сил при трехстороннем нагреве
Расчет железобетонных элементов на продавливание
8.30 При одностороннем воздействии пожара снизу расчет на продавливание плоских железобетонных элементов (плит) производят согласно 8.1.46 СП 63.13330.2018 с учетом нормативных сопротивлений растяжению бетона Rbtnt и поперечной арматуры Rswt.
Учет влияния высокотемпературного воздействия на бетон производят по формуле (5.2). При этом значение коэффициента условий работы бетона на растяжение при нагреве γbtt принимают по среднеарифметическому значению средних температур нагрева бетона элементарных участков, на которые разбивают сечение плиты по высоте (рисунок 8.9).

1 - расчетное поперечное сечение; 2 - контур расчетного поперечного сечения; 3 - температурная кривая нагрева бетона по высоте плиты; 4 - средняя температура элементарного участка; 5 - пирамида продавливания
Рисунок 8.9 - Условная модель для расчета плиты на продавливание при одностороннем огневом воздействии снизу
Учет влияния высокотемпературного воздействия на поперечную арматуру следует производить по формуле (5.9). Коэффициент условий работы арматуры при нагреве γst принимают по таблице 5.6 для максимального значения температуры поперечной арматуры.
Статически неопределимые конструкции
8.31 В статически неопределимых изгибаемых элементах из монолитного железобетона (плитах, балках, ригелях и колоннах) предел огнестойкости по потере несущей способности R необходимо определять с учетом жесткости узлов сопряжения элементов и специфики схем разрушения. В многопролетных многоэтажных зданиях и сооружениях при локальном пожаре в одном пролете или на одном этаже взаимодействие отдельных монолитно сопряженных элементов может приводить к возникновению дополнительных усилий в других пролетах, где пожар не происходил.
8.32 Усилия в статически неопределимой конструкции от нагрузки и огневого воздействия при пожаре определяют по формулам строительной механики как в упругой системе.
Перемещения в основной системе, вызванные воздействием температуры в i-м направлении, равны
, (8.37)
где Mi и Ni - изгибающий момент и продольная сила в сечении x-элемента основной системы от действия в i-ом направлении соответствующей единичной силы;
(1/r)tx, εtx - температурные кривизна и деформация x-элемента, вызванные огневым воздействием.
8.33 Температурный изгибающий момент от неравномерного нагрева по высоте сечения элемента, заделанного на опорах, а также в замкнутых рамах кольцевого, квадратного и прямоугольного очертаний, имеющих одинаковое сечение, определяют по формуле
Mt = (1/r)tD, (8.38)
где (1/r)t - температурная кривизна, определяемая по формулам (8.41а) и (8.41б);
D - жесткость сечения в предельной по прочности стадии, определяемая по формуле (8.41в).
В центрально и внецентренно сжатых и растянутых железобетонных элементах температурные моменты полностью снимаются продольной силой до наступления предельного состояния и не влияют на прочность.
Продольные температурные деформации в железобетонном элементе могут вызывать напряжения сжатия при несмещаемых опорах и увеличение эксцентриситета сжимающей силы в колоннах от температурного удлинения ригеля.
8.34 В элементах статически неопределимых железобетонных конструкций от силовых и огневых воздействий происходит перераспределение усилий. Расчет в упругой системе является базовым для учета перераспределения усилий методом предельного равновесия.
Перераспределение усилий происходит от развития пластических деформаций арматуры в бетоне, образования и раскрытия трещин в момент исчерпания несущей способности элемента системы. Усилия в каждом элементе конструкции ограничены предельными условиями, с достижением которых деформации этих элементов могут значительно возрастать, образовывая пластические шарниры. Пластические шарниры превращают статически неопределимую конструкцию в статически определимую, в которой рост деформаций происходит без возрастания усилий. Статически неопределимую конструкцию в состоянии предельного равновесия следует представлять разделенной на части пластическими шарнирами.
8.35 В статически неопределимом изгибаемом железобетонном элементе, заделанном на опорах, от одностороннего огневого воздействия снизу возникает отрицательный температурный момент Mt, который приводит к образованию пластических шарниров (трещин) на опорах, где моменты от нагрузки и температурного перепада по высоте сечения суммируются (рисунок 8.10).

а - момент от равномерно распределенной нагрузки; б - температурный момент от огневого воздействия; в - моменты, действующие в элементе перед образованием первых пластических шарниров на опорах; г – суммарный момент при образовании пластического шарнира в пролете
Рисунок 8.10 - Моменты в статически неопределимом изгибаемом элементе
8.36 Температурные усилия влияют на образование пластических шарниров, но значения температурных моментов снижаются на 50% из-за развития пластических деформаций бетона и арматуры, нагретых до высоких температур. Момент образования пластического шарнира на опоре определяется по формуле
Mош = Mо + 0,5Mt, (8.39)
где Mош - момент образования опорного пластического шарнира;
Mо и Mt - опорные моменты от нагрузки и нагрева соответственно.
В пролете момент от нагрузки снижается из-за образования температурного момента другого знака. После образования опорных пластических шарниров железобетонный элемент превращается в статически определимую конструкцию. Температурный момент в пролете уменьшается, и остается только момент от нагрузки. Полное разрушение элемента происходит при образовании пластического шарнира в середине пролета, когда резко увеличиваются пластические деформации арматуры при более высоких значениях нагрузки и температуры нагрева, чем в статически определимой балке.
8.37 Снижение прочности опорных сечений происходит из-за прогрева сжатого бетона и арматуры до высоких температур.
При трехстороннем нагреве опорного сечения статически неопределимых балок бетон сжатой зоны нижней и боковых граней сечения, нагретый до температуры выше критической, выключается из работы. Прочность опорных сечений снижается, в основном, за счет нагрева бетона сжатой зоны до критической температуры и, вследствие этого, уменьшения рабочей высоты сечения (рисунок 8.11).

Рисунок 8.11 - Схема усилий и эпюра напряжений в опорном сечении, нормальном к продольной оси изгибаемого статически неопределимого железобетонного элемента, при трехстороннем обогреве сжатой зоны при пожаре и расчете огнестойкости
Глубина прогрева бетона at до критической температуры у нагреваемых граней сечения балки находится по рисунку 5.1.
8.38 Прочность пролетных сечений снижается от нагрева растянутой арматуры до критической температуры.
Разрушение сечений происходит от снижения нормативного сопротивления нагретой арматуры до рабочих напряжений. Преждевременного разрушения сжатой зоны пролетных сечений до начала увеличения пластических деформаций арматуры не происходит, так как она находится под действием меньших усилий, чем до начала огневого воздействия. Прочность пролетных сечений статически неопределимых железобетонных балок при трехстороннем огневом воздействии вычисляют по формуле (8.10).
8.39 Предел огнестойкости по потере несущей способности R статически неопределимого изгибаемого элемента обеспечивается при выполнении условий:
в пролетном сечении
Mn ≤ Mult,t, (8.40)
где Mn - нормативный изгибающий момент от внешней нагрузки (постоянной и временной длительной);
Mult,t - несущая способность железобетонной конструкции при пожаре длительностью, равной значению предела огнестойкости по потере несущей способности R;
в опорном сечении
Mо + 0,5Mt ≤ Mult,t, (8.41)
где Mо - нормативный момент от внешней нагрузки в опорном сечении (постоянной и временной длительной);
Mt - температурный изгибающий момент, определяемый по формуле (8.38).
8.40 При проектировании статически неопределимых изгибаемых конструкций предел огнестойкости по потере несущей способности R рассчитывают следующим образом.
8.40.1 Устанавливают вид огневого воздействия на несущий элемент и значение нормируемого предела огнестойкости по потере несущей способности.
8.40.2 Для каждого элемента от действия нормативных постоянных и временных длительных нагрузок находят их неблагоприятное сочетание.
8.40.3 Теплотехническим расчетом или по приложениям А и Б от воздействия стандартного пожара длительностью (в минутах), соответствующей значению нормируемого предела огнестойкости, находят значения температур нагрева и коэффициентов условий работы бетона и арматуры в поперечном сечении элемента.
8.40.4 При расчете упругой системы статически неопределимой конструкции необходимо определять усилия в элементах. Производят расчет по прочности пролетного сечения элемента из условия (8.40). Если условие прочности пролетного сечения соблюдается, то производят расчет по прочности для опорного сечения элемента.
8.40.5 Определяют жесткость сечения с учетом наличия трещин от огневого воздействия по всей длине элемента и изменения физико-механических свойств бетона и арматуры от нагрева, температурные моменты в опорных сечениях изгибаемых элементов, суммируют их с моментами от нагрузки и проверяют условие прочности опорного сечения (8.41).
8.40.6 Если условия прочности (8.40) и (8.41) выполняются, то предел огнестойкости статически неопределимого элемента обеспечен. Если одно из условий не выполняется, то производят перерасчет огнестойкости с внесением изменений в конструкцию сечения элемента, для которого условие прочности не выполняется (путем увеличения толщины защитного слоя, диаметра арматуры и т.д.).
8.41 В общем случае расчет предела огнестойкости по потере несущей способности статически неопределимой конструкции осуществляется методом предельного равновесия в зависимости от схемы разрушения системы в целом, когда она превратится в кинематический механизм.
8.42 При расчете на прочность сечений железобетонных элементов в условиях огневого воздействия возможно применение метода конечных элементов.
Несущую способность элемента в нормальном расчетном сечении определяют суммой несущей способности отдельных конечных элементов (бетонных и арматурных), на которые разбивается сечение. Оценка несущей способности каждого элемента (бетонного и арматурного) основывается на предварительном выявлении степени изменения прочностных и деформативных свойств бетона и арматуры в сечении рассматриваемого элемента при заданной длительности температурного воздействия в условиях стандартного пожара. При этом прочность и деформативность бетона и арматуры в каждом конечном элементе устанавливают по температуре в центре элемента, который одновременно является узлом координатной сетки, накладываемой на поперечное сечение конструкции при определении температурного поля по 6.2.
В расчете учитываются только конечные бетонные элементы, расположенные в сжатой зоне. Конечные арматурные элементы учитываются полностью, независимо от расположения в сжатой или растянутой зонах сечения.
Высота сжатой зоны сечения в первом приближении задается значением, равным (0,4 - 0,5)/h0, и в дальнейшем корректируется на основе условия предельного равновесия конструкции в рассматриваемом промежутке времени воздействия стандартного температурного режима пожара.
8.43 При проверке прочности сечений статически неопределимых железобетонных элементов в условиях огневого воздействия допускается использовать упрощенный метод расчета, когда в сечении железобетонного элемента не учитывается слой бетона, нагретый свыше критической температуры нагрева бетона по 8.7.
8.44 В поэлементном расчете огнестойкости воздействие температурных деформаций учитывается только в поперечном сечении вследствие появления температурного градиента от неравномерного нагрева по толщине конструкций, а воздействием осевого или плоскостного температурного расширения пренебрегают. Граничные условия на опорах и в пролетах конструкций считаются неизменными в течение всего пожара и принимаются из статического расчета конструкций при нормальной температуре (проектные усилия).
8.44а Следует учитывать, что с повышением температуры огневого воздействия до 500 °C наблюдаются наибольшие значения температурного момента. При температуре 900 °C температурный момент снижается. В практических расчетах криволинейное распределение температуры нагрева бетона по высоте сечения элемента приводится к прямолинейному. Перепад температуры по высоте сечения элемента определяют из равенства статических моментов и площадей действительной криволинейной эпюры и приведенной расчетной трапецеидальной эпюры температур. Температуру растянутой арматуры определяют по теплотехническому расчету [3].
8.44б Для железобетонного элемента с трещинами в растянутой зоне при прямолинейной эпюре температурную кривизну оси элемента определяют:
при расположении растянутой арматуры у нагреваемой грани сечения
, (8.41а)
при расположении сжатого бетона у нагреваемой грани сечения
, (8.41б)
где αbt и αst - коэффициенты температурной деформации бетона и арматуры, принимаемые по таблицам 5.3 и 5.7 в зависимости от температуры бетона менее нагретой и температуры бетона более нагретой грани сечения (500 °C) и температуры нагрева арматуры [3].
Жесткость изгибаемых железобетонных элементов в предельной стадии допускается определять по формуле
D = φ1Es,tAsz(h0 – xt). (8.41в)
Коэффициент φ1 в формуле (8.41в) учитывает влияние температуры на жесткость элемента и принимается равным 0,5 при пределе огнестойкости до R120 включительно, 0,4 - при R180 и 0,3 - при R240 [3]. При промежуточных значениях предела огнестойкости коэффициент φ1 определяется интерполяцией.
Для элементов прямоугольного сечения при отсутствии (или без учета) сжатой арматуры значение z - расстояния от центра тяжести растянутой арматуры до точки приложения равнодействующей усилий в сжатой зоне - определяют по формуле
z = h0 - xt/3. (8.41г)
Для элементов прямоугольного, таврового (с полкой в сжатой зоне) и двутаврового поперечных сечений значение z допускается принимать равным 0,85h0. Высоту сжатой зоны в формулах (8.41в) и (8.41г) допускается вычислять по формуле (8.11) без учета сжатой арматуры. При ξ = xt/h0> ξR значение xt = ξRh0.
Для железобетонных элементов с трещинами в растянутой зоне при линейной эпюре температур по высоте сечения температурное удлинение оси элемента определяется по формуле
, (8.41д)
где αbt и αst принимают как в формулах (8.41а) и (8.41б).
Расчет плиты безбалочного перекрытия
8.45 Для безбалочного железобетонного перекрытия в виде плоской плиты сплошного сечения с жестким опиранием на колонны, при одностороннем воздействии пожара снизу предел огнестойкости определяют методом предельного равновесия путем расчета прочности на излом по продольной и поперечной полосам (рисунок 8.12).

а - с образованием параллельных краю плиты пластических шарниров; б - с образованием перпендикулярных краю пластических шарниров; 1 - линейный пластический шарнир около колонн с раскрытием трещины сверху плит; 2 - линейный пластический шарнир в середине пролета с раскрытием трещины снизу плиты
Рисунок 8.12 - Схема излома плиты в безбалочном перекрытии при одностороннем воздействии пожара снизу
При расчете на излом отдельной поперечной или продольной полосы плиты предполагается, что в рассматриваемой полосе плиты образуются линейные пластические шарниры, параллельные оси этой полосы: один линейный пластический шарнир в пролете с раскрытием трещины снизу плиты и по одному линейному пластическому шарниру у колонн с раскрытием трещин сверху плиты.
В консольном свесе плиты, выступающем за крайний ряд колонн, принимается, что пластический шарнир не образуется, если свес консоли не более 0,25l1. Если свес консоли больше, то производят дополнительный расчет по формуле (8.42) на излом плиты у консоли колонн с образованием дополнительного пластического шарнира, параллельного краю перекрытия.
Для конструкций, симметричных относительно середины рассматриваемой полосы, проверку прочности средних панелей ведут из условия
, (8.42)
где q - интенсивность нормативной постоянной и временной длительной нагрузок, равномерно распределенных по полосе на 1 пог. м с коэффициентом перегрузки γf = 1;
l1, l2 - расстояния между рядами колонн в перпендикулярном направлении и вдоль рассматриваемой полосы (рисунок 8.12);
c - расстояние от крайних пластических шарниров до ближайших к ним рядов колонн;
AsI, A'sI - площади верхней растянутой арматуры в левом и правом опорных пластических шарнирах в пределах одной плиты;
As1 - площадь нижней растянутой арматуры в среднем пролетном пластическом шарнире в пределах одной плиты;
zI, z1, z'I - плечи внутренней пары сил в левом, среднем и правом пластических шарнирах соответственно, которые определяют по формуле
zI = h0 - 0,5xi,t, (8.43)
где высота сжатой зоны в правом и левом опорных пластических шарнирах определяется по формулам
;
. (8.44)
В формуле (44) Rbnt определяют по формуле (5.1), принимая значения γbt по таблице 5.1 в зависимости от средней температуры бетона сжатой зоны. Допускается значение γbt принимать равным единице при замене h0 на h0t, которое определяют по формуле (8.9).
Высота сжатой зоны в среднем пролетном пластическом шарнире равна
. (8.45)
В формуле (8.44) Rsnt определяют по формуле (5.5), принимая значения γst по таблице 5.6 в зависимости от температуры арматуры на уровне ее оси.
Температуру бетона и арматуры определяют теплотехническим расчетом или по приложениям А и Б для требуемого предела огнестойкости.
Если условие (8.42) выполняется, то требуемый предел огнестойкости обеспечен. Сжатую арматуру в пластических шарнирах не учитывают.
При применении квадратных или прямоугольных в плане капителей с наклоном нижней части капители не менее 45° расчет на излом плит производят при расположении опорных пластических шарниров по месту перелома очертания капителей. При этом в формуле (8.42) значение c = lk/2, где lk - длина капители.
Плиты, опертые по контуру
8.46 При одностороннем огневом воздействии снизу огнестойкость плит перекрытия, работающих в двух направлениях и монолитно связанных с балками, определяют кинематическим способом метода предельного равновесия. Предполагают, что плита разламывается на плоские звенья, соединенные между собой по линиям излома пластическими шарнирами (рисунок 8.13).

а - схема излома плиты; б - направления действия предельных моментов; 1 - 4 - номера звеньев; 1', 2' – шарниры соответственно пролетные и опорные
Рисунок 8.13 - К расчету плиты, опертой по контуру
При равномерно распределенной нагрузке и неизменном по длине пролета армировании предел огнестойкости плиты определяют из условия
, (8.46)
где l1 и l2 - меньший и больший пролеты плиты;
q - нормативная постоянная длительная и временная равномерно распределенная нагрузка на 1 м2 плиты.
Моменты в пролете плиты определяют по формулам
M̅1 = As1Rsnt1z1; M̅2 = As2Rsnt2z2. (8.47)
Моменты на опорах плиты определяются по формулам
|
M̅I = AsIRsnIzI; M̅II = AsIIRsnIIzII; |
(8.48) |
|
M̅'I = A'sIRsnIz'I; M̅'II = A'sIIRsnIIz'II, |
где As1 - площадь сечения стержней, пересекающих пролетные пластические шарниры, параллельных короткой стороне плиты;
As2 - то же, для стержней, параллельных длинной стороне плиты;
AsI - площадь сечения растянутой арматуры, расположенной вдоль пролета l2, в сечении I-I;
A'sI - площадь сечения растянутой арматуры, расположенной вдоль пролета l2, в сечении I'-I';
AsII - площадь сечения растянутой арматуры, расположенной вдоль пролета lI в сечении II-II;
A'sII - площадь сечения растянутой арматуры, расположенной вдоль пролета lI, в сечении II'-II';
z1, z2 - плечи внутренних пар сил в пролетных пластических шарнирах, вычисляются по формуле (8.43), в которой x1 определяют по формуле (8.45), а при вычислении x2 в формуле (8.44) значения As1 заменяют на As2, l2 на l1;
zI, z'I, zII, z'II - плечи внутренних пар сил в опорных пластических шарнирах, вычисляют по формуле (8.43), в которой xI и x'I определяют по формуле (8.44). При вычислении xII и x'II в формуле (8.43) значения AsI и A'sI заменяют соответственно на AsII и A'sII, значение l2 на l1.
При определении значений As1 и As2 стержни, отогнутые или оборванные до пересечения с пролетными шарнирами, не учитывают (рисунок 8.14), а оборванные или отогнутые только у одной из опор и пересекающие пролетные шарниры одним из концов вводят в расчет с половинной площадью.

1 - линия обрыва или отгиба стержней; 2 - не учитываемые в работе стержни
Рисунок 8.14 - К определению As1 и As2 для плиты, защемленной по контуру
Если арматуру обрывают (отгибают) на расстоянии a1 от длинной и a2 от короткой сторон, необходимо дополнительно производить проверку по несущей способности плиты при изломе по схеме, приведенной на рисунке 8.15, из условия
, (8.49)
где
;
;
,
- площади доходящей до опор части растянутой арматуры, параллельной соответственно короткой и длинной сторонам плиты.
Если условие (8.46) или (8.49) соблюдаются, то требуемый предел огнестойкости плиты обеспечен.

Рисунок 8.15 - Возможная схема излома плиты при обрыве или отгибе арматуры
Потери предварительного напряжения в арматуре при нагреве
8.47 При высокотемпературном нагреве во время пожара происходят дополнительные потери предварительного напряжения в арматуре от температурной усадки и ползучести бетона на уровне продольной арматуры, релаксации напряжений в арматуре при нагреве, разности температурных деформаций бетона и арматуры и снижения модуля упругости арматуры при нагреве.
Учет дополнительных потерь предварительного напряжения в арматуре необходим при расчете деформаций и при решении вопроса дальнейшего использования изгибаемых элементов после пожара (пункт 9.9 СП 329.1325800.2017).
При температурном воздействии бетон на уровне продольной арматуры интенсивно прогревается, происходит температурная усадка бетона. Деформация температурной усадки тяжелого бетона даже при кратковременном нагреве больше, чем при нормальной температуре. Значение дополнительных потерь предварительного напряжения от температурной усадки бетона при пожаре допускается принимать равным Δσsp,t,sh= 40 МПа.
Дополнительные потери предварительного напряжения от релаксации напряжений в арматуре при нагреве за счет развития пластических деформаций зависят от значения напряжений в арматуре и температуры ее нагрева. Потери предварительного напряжения в арматуре от релаксации напряжений за 1 - 3 ч нагрева допускается принимать равными
Δσsp,t,1 = 0,001Δt'sσsp, (8.50)
где Δt's - разность между температурой нагрева арматуры при пожаре и температурой при натяжении;
σsp - предварительное напряжение в арматуре принимается с учетом всех потерь при нормальной температуре.
Дополнительные потери предварительного напряжения от разности температурных деформаций бетона и арматуры учитываются только при нагреве и принимаются равными
Δσsp,t,1 = (αst- αbt)ΔtsEst, (8.51)
где значения коэффициента αbt определяют по таблице 5.3, коэффициента αst - по таблице 5.7, Est - по формуле (5.7) в зависимости от температуры нагрева арматуры. В охлажденном состоянии после нагрева дополнительные потери предварительного напряжения от разности температурных деформаций бетона и арматуры не учитываются, т.к. при остывании конструкции после пожара эти деформации обратимы.
Дополнительные потери предварительного напряжения в арматуре, вызванные быстро натекающей ползучестью бетона при нагреве, зависят от напряжений в бетоне на уровне продольной арматуры. Их допускается принимать равными 10σbp, где σbp - сжимающие напряжения в бетоне на уровне продольной арматуры.
В железобетонных конструкциях из бетона классов B30 и выше, имеющих предварительное напряжение уровней σsp= (0,5 - 0,7)Rs, после пожара потери предварительного напряжения σsp,t в стержневой арматуре допускается определять
классов А500, А600
σsp= 84 - 0,4ts; (8.52)
класса А800
σsp= 87 - 0,39ts; (8.53)
класса А1000
σsp= 92 - 0,26ts; (8.54)
в проволочной арматуре классов Вр1200 - Вр1500 и канатной К1400, К1500
σsp= 89 - 0,27ts, (8.55)
где σsp,t≥ 0 - остаток предварительного напряжения в арматуре, % исходного значения при изготовлении преднапряженной конструкции;
ts> 20 - температура арматуры при пожаре, °C.
Из формул (8.52) - (8.55) следует, что во время пожара от температурного воздействия происходит полная потеря предварительного напряжения в стержневой арматуре класса А600 при нагреве свыше 210 °C, класса А800 - свыше 220 °C, класса А1000 - свыше 350 °C, в проволочной арматуре классов Вр1200 - Вр1500 и канатной К1400, К1500 - свыше 330 °C.
Потери предварительного напряжения в арматуре при ее нагреве выше температуры, при которой происходит полная потеря предварительного напряжения при пожаре, в охлажденном состоянии после пожара не восстанавливаются.
При нагреве арматуры ниже температуры, при которой во время пожара происходит полная потеря предварительного напряжения, в охлажденном состоянии после пожара может наблюдаться некоторое восстановление потерь предварительного напряжения в арматуре из-за обратимости дополнительных потерь от разности температурных деформаций арматуры и бетона.
8.48 Расчет огнестойкости предварительно напряженных железобетонных конструкций производится по СП 63.13330 с учетом 8.47.
9.1 Предел огнестойкости по целостности E характеризуется по образованию сквозных отверстий или трещин в бетоне железобетонных конструкций вследствие его хрупкого (взрывообразного) разрушения при пожаре либо за счет нарушения структуры бетона в конструкциях в результате прогрева бетона по толщине элемента до критической температуры.
Возможность наступления предела огнестойкости по целостности E оценивается экспериментально или аналитически.
9.2 В плитах, стенах и стенках двутавровых балок при двухстороннем нагреве предел огнестойкости по целостности с образованием сквозных трещин наступает при прогреве бетонного сечения по всей толщине элемента до критической температуры нагрева бетона, когда полностью нарушается структура бетона. Оценка возможности потери целостности за счет возникновения прогрева бетона по сечению выше критической температуры при пожаре производится путем анализа температур прогрева элементов по всему сечению (приложения А, Б). Критические температуры нагрева бетона приведены в 8.7.
9.3 Хрупкое взрывообразное разрушение при пожаре возникает в бетонных и железобетонных конструкциях из тяжелого бетона на силикатном заполнителе с влажностью более 3,0% - 3,5%, карбонатном заполнителе с влажностью более 4%, из легкого конструкционного керамзитобетона с влажностью более 5% и плотностью более 1200 кг/м3, высокопрочного бетона класса B60 и выше, а также в плитах, стенах и стенках двутавровых балок при двустороннем нагреве бетона в расчетном сечении выше критической температуры нагрева.
Хрупкое взрывообразное разрушение бетона начинается через 5 - 15 мин от начала огневого воздействия, длится в течение 20 - 45 мин от начала огневого воздействия, проявляется в виде отколов от нагреваемой поверхности конструкции кусков бетона (лещадей) площадью от 1 см2 до 0,5 - 1 м2 и толщиной до 15 мм, сопровождается звуковым эффектом в виде треска различной интенсивности или "взрыва". Отрыв лещадей в одной и той же зоне конструкции может неоднократно повторяться с интервалом 5 - 15 минут, что приводит к уменьшению толщины сечения конструкции, интенсивному нагреву арматуры, выходу из плоскости и пережогу оголенных арматурных стержней.
9.4 Хрупкое взрывообразное разрушение бетона при пожаре приводит к снижению предела огнестойкости за счет:
- уменьшения размера бетонного сечения конструкции,
- увеличения напряжений в поврежденной части сечения,
- уменьшения толщины или полного разрушения защитного слоя бетона,
- интенсивного прогрева оголенной арматуры свыше критической температуры,
- образования трещин и сквозных отверстий в тонкостенных железобетонных конструкциях толщиной 40 - 100 мм (стенки двутавровых балок, плиты перекрытий и покрытий, полки ребристых плит).
Причиной хрупкого взрывообразного разрушения бетона при пожаре является образование трещин в структуре бетона и их переход в неравновесное спонтанное развитие под воздействием внешней нагрузки неравномерного нагрева и фильтрации пара по толщине сечения элемента.
9.5 Следует учитывать, что хрупкое разрушение бетона при пожаре зависит от состава, структуры и влажности бетона, температуры и скорости нагрева при пожаре, граничных условий конструкции и внешней нагрузки, т.е. оно зависит как от материала (бетона), так и от вида бетонной или железобетонной конструкции.
9.6 При проектировании следует оценивать возможность возникновения хрупкого взрывообразного разрушения бетона при пожаре и его влияние на предел огнестойкости бетонных и железобетонных конструкций, предусматривать меры по борьбе с хрупким разрушением бетона конструкции в целом.
Опасность хрупкого разрушения бетона практически может быть сведена к минимуму при выполнении соответствующих мероприятий.
Оценку возможности возникновения хрупкого взрывообразного разрушения бетона в железобетонной конструкции при пожаре допускается производить по рисунку 9.1 по напряжениям сжатия независимо от вида бетона.

Рисунок 9.1 - Зависимость хрупкого разрушения бетона от напряжений сжатия в бетоне и толщины элемента
Общая оценка возможности хрупкого разрушения бетона при пожаре
9.7 Общая расчетная оценка возможности хрупкого разрушения бетона при пожаре на стадии проектирования производится, если известен вещественный и количественный состав бетона.
Возможность хрупкого разрушения при пожаре бетонов нормального твердения оценивается по значению критерия хрупкого разрушения F, который определяется по формуле
, (9.1)
где a - коэффициент пропорциональности, равный 1,16·10-2 Вт·м5/2/кг;
αbt - коэффициент линейной температурной деформации бетона, 1/°C;
Ebt - модуль упругости нагретого бетона, МН/м2 (1 МН/м2 = 1 МПа = 10 кгс/см2);
ρ - плотность бетона в сухом состоянии, кг/м3;
K'1 - коэффициент псевдоинтенсивности напряжений неоднородного материала, МН·м-3/2;
П - общая пористость, м3/м3;
λ - коэффициент теплопроводности бетона, Вт/(м·°C), определяют по формулам (6.2), (6.3), (6.4) для температуры бетона 200 °C;
Wэ - объемная эксплуатационная влажность бетона, м3/м3.
Значения коэффициентов αbt, Ebt и λ определяют по таблицам 9.1 - 9.3 для средней температуры бетона 200 °C - 300 °C.
Коэффициент линейной температурной деформации бетона αbt нормального твердения в зависимости от вида и содержания в нем крупного заполнителя приведен в таблице 9.1.
Таблица 9.1
|
Вид заполнителя |
Значения αbt·106, 1/°C, при содержании крупного заполнителя в бетоне, % | ||
|
40 |
60 |
80 | |
|
Природный песок и гранитный щебень |
9,2 |
9,3 |
9,5 |
|
Природный песок и известняковый щебень |
6,2 |
5,2 |
4,4 |
|
Известняковый песок и щебень |
4,7 |
4,3 |
4 |
|
Природный песок и крупный керамзитовый заполнитель |
8 |
7,6 |
7,2 |
|
Примечание - Для бетона тепловлажностной обработки значения αbt увеличиваются в 1,1 раза. | |||
Модуль упругости нагретого до температур 200 °C - 300 °C бетона в зависимости от проектного класса бетона на сжатие приведен в таблице 9.2.
Таблица 9.2
|
Бетон |
Значения Ebt·10-4, МН/м2, для класса бетона | |||||||
|
B7,5 |
B15 |
B22,5 |
B30 |
B40 |
B45 |
B55 |
B60 | |
|
Тяжелый |
1 |
1,4 |
1,7 |
2 |
2,2 |
2,3 |
2,3 |
2,4 |
|
На пористых заполнителях с плотностью, кг/м3: | ||||||||
|
1400 |
0,6 |
0,7 |
0,8 |
- |
- |
- |
- |
- |
|
1800 |
0,7 |
0,9 |
1,1 |
1,2 |
- |
- |
- |
- |
|
2200 |
- |
1,1 |
1,3 |
1,4 |
- |
- |
- |
- |
|
Примечание - Для бетона тепловлажностной обработки при атмосферном давлении значения Ebt умножаются на 0,9, для бетона автоклавной обработки - на 0,77. | ||||||||
Коэффициент теплопроводности бетона λ для средней температуры 200 °C - 300 °C в зависимости от вида и содержания крупного заполнителя приведен в таблице 9.3.
Таблица 9.3
|
Вид заполнителя |
Значения λ, Вт/(м·°C), при содержании крупного заполнителя в бетоне, % | |
|
40 |
60 | |
|
Природный песок и гранитный щебень |
1,9 |
2,3 |
|
Природный песок и известняковый щебень |
1,3 |
2,0 |
|
Известняковый песок и щебень |
0,9 |
1,4 |
|
Природный песок и крупный керамзитовый заполнитель |
0,4 |
0,3 |
Общая пористость П бетона с плотным заполнителем в зависимости от В/Ц и расхода цемента Ц приведена в таблице 9.4.
Таблица 9.4
|
Водоцементное отношение (В/Ц) |
Значение П, м3/м3, при расходе цемента Ц, кг/м3 | ||
|
300 |
400 |
500 | |
|
0,3 |
0,07 |
0,1 |
0,12 |
|
0,5 |
0,09 |
0,12 |
0,15 |
|
0,7 |
0,16 |
0,20 |
0,25 |
Общую пористость бетона с плотным заполнителем П можно определять по формулам:
для В/Ц ≥ 0,4
П = Ц(В/Ц - 0,2)·10-3; (9.2)
для В/Ц <0,4
П = В/ЦЦ·0,8·10-3. (9.3)
Для бетона с пористым заполнителем общая пористость П' увеличивается на значение пористости заполнителя П3, умноженное на относительное объемное содержание заполнителя в бетоне V3, т.е. в этом случае
П' = П + V3П3, (9.4)
где П' - общая пористость бетона с пористым заполнителем;
V3 - относительное объемное содержание заполнителя в бетоне;
П3 - общая пористость заполнителя.
Коэффициент псевдоинтенсивности напряжений K'1 для бетона на портландцементе принимают по таблице 9.5 в зависимости от вида и количества заполнителей.
Таблица 9.5
|
Вид заполнителя |
Количество крупного заполнителя, % |
Значения K'1 для бетонов нормального твердения, МН·м-3/2 |
|
Природный песок и гранитный щебень |
50 и более |
0,53 |
|
20 и менее |
0,42 | |
|
Природный песок и керамзитовый заполнитель |
- |
0,31 |
|
Природный песок и известняковый щебень |
50 и более |
0,44 |
|
20 и менее |
0,35 | |
|
Примечания 1 Значения K'1 приведены для бетонов с наибольшей крупностью заполнителя 10 мм. При крупности заполнителя более 10 мм значение K'1 следует умножать на 1,14. 2 Для бетона, подвергнутого тепловлажностной обработке, значение K'1 следует уменьшать в 1,4 раза. 3 Значения K'1 для составов с расходом заполнителя менее 50% и более 20% принимаются по линейной интерполяции. | ||
Эксплуатационная объемная влажность бетона Wэ с плотными заполнителями определяется как его средняя равновесная влажность по формуле
Wэ = Wbρ·10-3, (9.5)
где Wb - равновесная влажность бетона по массе, кг/кг;
ρ - плотность бетона в сухом состоянии, кг/м3.
Влажность бетона по массе Wb принимается по таблице 9.6 в зависимости от относительной расчетной влажности воздуха φ, при которой будет эксплуатироваться рассматриваемая конструкция, и от расхода цемента.
Таблица 9.6
|
Расход цемента на 1 м3 бетона, кг |
Влажность бетона по массе Wb·102, кг/кг, при относительной расчетной влажности воздуха φ, % | |||
|
15 |
25 |
50 |
75 | |
|
200 |
0,5 |
0,6 |
0,9 |
1,2 |
|
300 |
0,9 |
1 |
1,3 |
2,5 |
|
400 |
1,2 |
1,5 |
2,1 |
3,0 |
|
500 |
1,5 |
2 |
2,7 |
3,8 |
|
700 |
2,1 |
3 |
3,9 |
5,4 |
|
Примечание - Промежуточные значения Wb принимаются по линейной интерполяции. | ||||
При применении пористых заполнителей влажность бетона следует увеличивать на значение
Wэз = V3Wb3·ρ·10-3; (9.6)
где Wэз - часть эксплуатационной объемной влажности бетона, обусловленная наличием в нем крупного пористого заполнителя, м3/м3;
V3 - относительный объем пористого заполнителя в бетоне;
ρ - плотность бетона в сухом состоянии, кг/м3;
Wb3 - равновесная влажность заполнителя по массе, кг/кг.
Для керамзита среднюю равновесную влажность Wb3 по массе принимают по таблице 9.7 в зависимости от относительной расчетной влажности воздуха φ помещения, где будут эксплуатироваться бетонные или железобетонные конструкции.
Таблица 9.7
|
Относительная расчетная влажность воздуха φ, % |
Равновесная влажность керамзита Wb3, кг/кг |
|
15 |
0,006 |
|
25 |
0,0075 |
|
50 |
0,012 |
|
75 |
0,015 |
|
100 |
0,028 |
Относительную расчетную влажность воздуха φ в помещениях жилых зданий принимают равной 75%.
Относительную расчетную влажность воздуха в помещениях промышленных зданий принимают в зависимости от влажности воздуха в помещении по таблице 9.8.
Таблица 9.8
|
Влажность воздуха в помещении, % |
Относительная расчетная влажность воздуха в помещениях промышленных зданий φ, % |
|
60 - 90 |
75 |
|
30 - 60 |
45 |
|
10 - 30 |
15 |
При эксплуатации железобетонных конструкций во влажных условиях или в первый месяц влажного твердения бетона, когда все поры и капилляры заполнены водой, максимальную равновесную влажность бетона определяют по формуле
Wb,max= Пρw/ρ1, (9.7)
где П - пористость бетона;
ρw - плотность воды, равная 1000 кг/м3;
ρ1 - плотность бетона естественной влажности.
Наибольшая влажность бетона наблюдается непосредственно после изготовления железобетонной конструкции, по мере твердения бетон высыхает. Поэтому необходимо рассматривать возможность хрупкого разрушения бетона при пожаре как во время строительства и пуска объекта в эксплуатацию, так и в процессе эксплуатации сооружения в зависимости от относительной расчетной влажности воздуха.
По значению критерия F устанавливают возможность хрупкого разрушения бетона при пожаре.
При F ≤ 4 бетон не будет подвержен хрупкому взрывообразному разрушению при пожаре, и дополнительные мероприятия по защите конструкций от хрупкого разрушения при пожаре не требуются.
При 4
При F ≥ 6 хрупкое разрушение бетона при пожаре неизбежно. Необходимо проведение мероприятий в соответствии с 9.14, 9.15.
9.8 Вывод о возможности хрупкого разрушения бетона при пожаре в ненесущих конструкциях делают на основании средних значений критической влажности бетонов по массе Wbcr, равных
3% - для тяжелого бетона с крупным заполнителем из гранита;
4% - для тяжелого бетона с крупным заполнителем из карбонатных пород;
5% - для легкого конструкционного бетона с крупным пористым заполнителем;
2% - для тяжелых силикатных бетонов.
Если эксплуатационная влажность бетона Wэ меньше критической влажности бетона по массе, умноженной на плотность бетона: Wэ
Проверка возможности хрупкого разрушения бетона в конструкции при пожаре
9.9 Бетон со значениями критерия 4
Возможность хрупкого разрушения бетона при пожаре оценивается следующим образом.
От длительной нормативной нагрузки определяют значение сжимающих напряжений σсж в крайнем сжатом волокне бетона, которое при пожаре может подвергнуться воздействию огня.
Вычисляют значение объемной критической влажности бетона W0cr по формуле
, (9.8)
где c - коэффициент пропорциональности, равный 0,58 Вт·м/(МН·°C);
П - общая пористость бетона, м3/м3;
Rbtn - нормативное сопротивление бетона осевому растяжению, МН/м2;
λ - коэффициент теплопроводности бетона, Вт/(м·°C);
σb - сжимающее расчетное напряжение от длительной нормативной нагрузки на поверхности конструкции, которая при пожаре может подвергнуться воздействию огня, МН/м2.
Для бетонов, прошедших тепловлажностную обработку, полученное значение W0cr следует уменьшать в 1,4 раза.
Значение W0cr сравнивают со значением эксплуатационной объемной влажности Wэ, определяемой по формуле (9.5).
Если Wэ > W0cr, то бетон в конструкции хрупко разрушается при пожаре. В этом случае необходимо проводить мероприятия по защите бетона от хрупкого разрушения при пожаре по 9.14, 9.15 или снижать сжимающие напряжения в бетоне до значения n·σb.
Значения понижающего коэффициента n в зависимости от относительных сжимающих напряжений в крайнем волокне бетона приведены в таблице 9.9.
Таблица 9.9
|
Относительные сжимающие напряжения в крайнем волокне бетона |
Коэффициент n |
|
0 |
1,0 |
|
0,1 |
0,95 |
|
0,3 |
0,85 |
|
0,5 |
0,80 |
|
0,7 |
0,70 |
|
0,9 |
0,65 |
Если Wэ
9.10 Для оценки хрупкого разрушения бетона в несущих конструкциях при пожаре можно применять средние значения критической влажности бетона по массе, как указано в 9.8. При этом значение критической влажности бетона по массе следует умножать на соответствующее значение коэффициента n в зависимости от относительных сжимающих напряжений в крайнем волокне бетона, подвергнутом нагреву, при длительной нормативной нагрузке.
9.11 Если бетон имеет значения критерия F больше 4 или меньше 6, то минимальная толщина элемента конструкции принимается в зависимости от относительных сжимающих напряжений по таблице 9.10.
Таблица 9.10
|
Относительные сжимающие напряжения σb/Rbn |
Минимальная толщина элемента конструкции, см |
|
0,0 |
4,0 |
|
0,2 |
5,0 |
|
0,4 |
6,0 |
|
0,6 |
7,0 |
|
0,8 |
8,0 |
|
0,9 |
9,0 |
Значение критерия хрупкого разрушения бетона F зависит от физических свойств и объемной эксплуатационной влажности бетона. Чем больше влажность бетона, тем больше значение критерия хрупкого разрушения и тем больше опасность возможности хрупкого разрушения бетона при пожаре.
9.12 При проектировании бетонных и железобетонных конструкций задается проектный класс бетона, а его вещественный состав не регламентируется. Следовательно, определение критерия хрупкого разрушения бетона на стадии проектирования не представляется возможным.
С учетом вышесказанного, на стадии проектирования необходимо вводить четкие ограничения влажностных условий эксплуатации железобетонных конструкций. Если эксплуатационная влажность конструкций задается выше критических значений влажности бетона по массе Wbcr, приведенных в 9.8, то необходима разработка мероприятий по защите бетонных и железобетонных конструкций от хрупкого разрушения при пожаре.
9.13 Для балок, плит и растянутых элементов при влажности бетона выше критических значений влажности по массе Wbcr влияние взрывообразного разрушения бетона на предел огнестойкости по потере несущей способности R ориентировочно учитывается следующим образом: локальное разрушение защитного слоя бетона принимается адекватным утрате одного арматурного стержня или одного ряда стержней, наиболее близко расположенных к нагреваемым граням в поперечном сечении элемента (в зависимости от схемы армирования элемента или конструкции: для плитных конструкций - 1 стержень рабочей арматуры, для балок - наиболее обогреваемый ряд стержней), с дальнейшей проверкой потери несущей способности сечения. Температура прогрева остальных арматурных стержней принимается без учета разрушения защитного слоя бетона.
Такая проверка не требуется для конструкций, отсутствие взрывообразного разрушения для которых проверено экспериментально, или для которых применяется дополнительное огнезащитное покрытие, прошедшее соответствующие испытания.
Мероприятия по защите бетонных и железобетонных конструкций от хрупкого разрушения при пожаре
9.14 Бетонные и железобетонные конструкции, запроектированные из бетона со значением критерия хрупкого разрушения F> 4, конструкции из высокопрочного бетона классов B60 и выше, а также конструкции, эксплуатация которых предусматривается в условиях повышенной влажности (подземные конструкции, тоннели и т.п.) более 3%, требуют разработки и выполнения мероприятий по защите от хрупкого взрывообразного разрушения при пожаре.
9.15 Мероприятия по защите бетонных и железобетонных конструкций от хрупкого разрушения при пожаре подразделяют на 3 группы:
I - ликвидирующие хрупкое разрушение бетона при пожаре;
II - снижающие вероятность хрупкого разрушения;
III - профилактические.
9.16 К I группе мероприятий, ликвидирующих хрупкое разрушение бетона при пожаре, относятся:
- проектное ограничение эксплуатационной влажности в помещении до значений, при которых в случае пожара хрупкое разрушение бетона не происходит, и систематический контроль (мониторинг) влажности в помещениях в процессе эксплуатации здания или сооружения;
- установка в поверхностном нагреваемом слое конструкции противооткольной сетки на расстоянии ≥ 15 мм от нагреваемой поверхности. При этом применяются сетки из проволоки диаметром ≤ 4 мм с шагом ячеек ≤ 75 мм;
- применение огнезащитных штукатурных покрытий на основе перлита и вермикулита толщиной не менее 20 мм с их нанесением на защищаемую бетонную поверхность по арматурной сетке. При этом толщина огнезащитного покрытия должна быть обоснована расчетом или соответствующими испытаниями с учетом собственного предела огнестойкости железобетонной конструкции;
- применение добавки полипропиленовой микрофибры в бетон в количестве не менее 1 кг/м3;
Следует учитывать, что добавление полипропиленовой микрофибры в бетон не выполняет функцию дисперсного армирования, но обеспечивает функцию защиты от хрупкого разрушения бетона при пожаре. В расчетах огнестойкости необходимо учитывать снижение прочности бетона за счет введения добавки полипропиленовой микрофибры. В таблице 9.11 приведены опытные данные о процентном снижении прочности на сжатие и растяжение при изгибе для обычного тяжелого бетона на гранитном заполнителе класса B45 с добавкой полипропиленовой микрофибры в количестве 1 кг/м3.
Таблица 9.11
|
Вид прочностной характеристики бетона |
Снижение прочности, %, для обычного тяжелого бетона на гранитном заполнителе класса B45 при введении добавки полипропиленовой микрофибры в количестве 1 кг/м3 в охлажденном состоянии после нагрева до температур, °C | ||||||
|
20 |
100 |
200 |
300 |
400 |
500 |
600 | |
|
Прочность на сжатие |
15 |
14 |
13 |
12 |
13 |
23 |
35 |
|
Прочность на растяжение при изгибе |
18 |
17 |
3 |
7 |
15 |
7 |
8 |
9.17 К II группе мероприятий, снижающих вероятность хрупкого разрушения бетона, относятся:
- применение крупных заполнителей с низкими коэффициентами линейного температурного расширения (известняка, базальта, диабаза вместо гранита);
- замена части (не менее 1/3) или полностью природного песка на песок из известняка, базальта, диабаза, сиенита или диорита;
- применение бетонов с шамотным заполнителем;
- применение составов бетонов с ограниченным расходом вяжущего (портландцемента не более 400 кг на 1 м3 бетонной смеси) и пониженными значениями водоцементного отношения (В/Ц ≤ 0,5);
- применение бетонов с легкими заполнителями;
- применение бетонов на основе шлакопортландцемента.
9.18 К III группе профилактических мероприятий относятся:
- повышение уровня пожарной безопасности путем обеспечения возможности ликвидации пожара на начальной стадии;
- применение в железобетонных конструкциях арматуры той же площади, но из стержней меньшего диаметра;
- применение поперечных сечений конструкций без выступающих углов (например, колонн круглого поперечного сечения или со срезанными углами вместо колонн прямоугольного или квадратного поперечного сечения).
Возможно применение иных мероприятий по защите бетонных и железобетонных конструкций от хрупкого разрушения при пожаре при соответствующем опытном обосновании.
Взрывообразное разрушение высокопрочного бетона
9.19 При оценке огнестойкости конструкций из высокопрочных бетонов классов B60 и выше следует учитывать хрупкое взрывообразное разрушение высокопрочного бетона при пожаре, которое приводит к преждевременному наступлению предела огнестойкости по потере несущей способности за счет уменьшения толщины защитного слоя бетона на обширной (до 60% - 80%) площади поверхности конструкции и увеличения скорости прогрева сечения. При проектировании железобетонных конструкций из высокопрочных бетонов необходимо предусматривать мероприятия по защите от хрупкого разрушения при пожаре по 9.20.
Следует учитывать, что предел огнестойкости по потере несущей способности плит перекрытий из высокопрочного бетона на гранитном заполнителе с добавкой микрокремнезема на 20 мин меньше предела огнестойкости аналогичных конструкций из обычного тяжелого бетона.
9.20 При проектировании бетонных и железобетонных конструкций из высокопрочных бетонов применимы следующие способы защиты от хрупкого разрушения при пожаре:
- применение бетонов с содержанием микрокремнезема менее 6% (ограничение содержания микрокремнезема должно быть указано в проектной документации);
- применение типа высокопрочного бетона, для которого экспериментально (путем огневых испытаний крупногабаритных плитных конструкций) установлено отсутствие хрупкого разрушения бетона при нагреве;
- дополнительное конструктивное армирование защитного слоя бетона со стороны обогреваемой поверхности противооткольной сеткой по 9.16. Толщина защитного слоя до рабочей арматуры должна составлять> 40 мм;
- нанесение на обогреваемую бетонную поверхность огнезащитного покрытия с соответствующим экспериментальным обоснованием целесообразности;
- добавление в бетонную смесь не менее 1 кг/м3 моноволокнистой полипропиленовой микрофибры. При этом необходимо учитывать, что добавка полипропиленовой микрофибры в высокопрочный бетон снижает его прочность на 15%.
Возможно применение иного экспериментально подтвержденного метода.
10.1 Нормируемые пределы огнестойкости железобетонных конструкций следует обеспечивать путем рационального проектирования и конструирования, так как бетон и железобетон относятся к негорючим (НГ), стойким к огневому и тепловому воздействию строительным материалам.
10.2 Исключен с 29.01.2024. - Изменение N 1
10.3 Исключен с 29.01.2024. - Изменение N 1
10.4 Обеспечение требуемого предела огнестойкости железобетонной конструкции следует достигать рациональным подбором толщины защитного слоя бетона. С увеличением толщины защитного слоя бетона увеличивается предел огнестойкости железобетонной конструкции.
При толщине защитного слоя бетона более 40 мм, назначенной по конструктивным требованиям СП 63.13330 и с учетом требований раздела 14, следует предусматривать установку противооткольной сетки из проволоки диаметром 2 - 4 мм с ячейками 40 - 75 мм на расстоянии 15 - 20 мм от нагреваемой поверхности. Противооткольную сетку следует фиксировать к нижней рабочей арматуре плит и конструктивной арматуре по периметру сечения балок.
10.5 При назначении параметров поперечных сечений и армирования колонн следует учитывать, что предел огнестойкости колонны бóльшего поперечного сечения с меньшим процентом армирования больше предела огнестойкости колонны меньшего поперечного сечения с большим процентом армирования.
10.6 Исключен с 29.01.2024. - Изменение N 1
10.7 При конструировании арматурных каркасов железобетонных колонн с продольной арматурой в количестве более четырех стержней вдоль одной грани сечения следует предусматривать многорядное армирование с максимально возможным по расчету удалением внутренних рядов от обогреваемой поверхности.
10.8 Исключен с 29.01.2024. - Изменение N 1
10.9 Для повышения предела огнестойкости балок следует регулировать форму их сечения: предпочтительнее широкие и низкие балки, а не узкие и высокие. Рабочую арматуру балок следует предусматривать в количестве более трех стержней и размещать ее в несколько рядов с максимально возможным удалением арматуры от обогреваемых поверхностей.
10.10 Для повышения предела огнестойкости балок следует регулировать форму их сечения: предпочтительнее широкие и низкие балки, а не узкие и высокие. Рабочую арматуру балок следует предусматривать в количестве более трех стержней и размещать ее в несколько рядов с максимально возможным удалением арматуры от обогреваемых поверхностей.
10.11 Для сборных железобетонных конструкций на опорах в стыках между балками, между балкой и стеной необходимо предусмотреть зазор для обеспечения свободного удлинения балок при нагреве.
10.12 Исключен с 29.01.2024. - Изменение N 1
10.13 В монолитных железобетонных перекрытиях по стальному профилированному настилу последний следует применять в качестве несъемной опалубки. Арматуру в гофрах надлежит соединять с профилированным настилом при помощи дополнительных коротышей с шагом не менее 800 мм по длине арматурного стержня во избежание отслоения профнастила от бетона при пожаре.
Для повышения огнестойкости многопролетных плит из монолитного железобетона на стальном профилированном настиле до R150 в первом крайнем пролете плиты следует увеличивать площадь арматуры на 30% сверх расчета, сечение арматуры на первой промежуточной опоре предусматривать в 2 раза больше, чем в первом пролете.
10.14 Трубобетонные колонны следует проектировать с учетом внешней металлической трубы-обоймы в качестве несъемной опалубки, без ее учета в работе колонны.
При необходимости включения металлической обоймы в работу колонны следует применять средства огнезащиты. При выборе средства и толщины огнезащиты не следует допускать нагрев металлической обоймы свыше 400 °C.
10.15 Влияние статической неопределимости конструкций балок и плит на предел огнестойкости учитывается при соблюдении следующих требований:
- не менее 20% требуемой на опоре верхней арматуры должно проходить над серединой пролета;
- верхняя арматура над крайними опорами неразрезной системы должна заводиться на расстояние не менее 0,4l в сторону пролета от опоры и затем постепенно обрываться (l - длина пролета);
- вся верхняя арматура над промежуточными опорами должна продолжаться к пролету не менее чем на 0,15l.
10.16 Узлы сопряжения конструкций должны соответствовать нормируемым критериям огнестойкости R, E, I сопрягаемых конструкций, обеспечивая несущую способность всей конструктивной системы при пожаре.
Для обеспечения теплоизолирующей способности ширина зазоров в узлах сопряжения элементов должна быть не более 20 мм, а глубина зазора - не более половины минимальной толщина b сопрягаемого элемента (рисунок 10.1).

Рисунок 10.1 - Размеры зазоров в узлах сопряжения железобетонных элементов
Для зазоров шириной более 20 мм и при необходимости применения изоляционных материалов, их огнестойкость должна быть документально подтверждена результатами соответствующих испытаний.
Для обеспечения требуемой огнестойкости швов в железобетонных конструкциях их заполнение следует выполнять с применением негорючих материалов с низкой теплопроводностью.
10.17 При применении в стеновых панелях или перекрытиях горючего утеплителя следует предусматривать его огнезащиту по периметру с применением негорючих материалов.
10.18 Засыпка, стяжка и покрытие пола из негорючих материалов при теплотехническом расчете могут быть включены в общую толщину плиты при оценке предела огнестойкости по потере теплоизолирующей способности I.
10.19 Изгибаемые элементы с заделкой на опорах следует рассматривать как неразрезные системы.
10.20 Исключен с 29.01.2024. - Изменение N 1
10.21 В случае если собственный предел огнестойкости существующей железобетонной конструкции не соответствует нормируемому значению, увеличение параметров сечения, армирования и класса бетона технически невозможно и (или) экономически нецелесообразно, нормируемый предел огнестойкости следует обеспечить за счет применения средств огнезащиты.
10.22 При проектировании и конструировании статически определимых железобетонных конструкций с позиций обеспечения огнестойкости следует учитывать требования раздела 14.
Оценку соответствия нормируемому значению собственного предела огнестойкости статически неопределимых конструкций следует проводить расчетами огнестойкости с учетом 14.12 или проведением огневых испытаний с воспроизведением жестких узлов сопряжения конструкций.
11.1 Огнезащита для бетонных и железобетонных конструкций применяется в случаях, если:
- собственный или фактический предел огнестойкости существующей конструкции не соответствует нормируемому пределу огнестойкости;
- в процессе реконструкции и/или изменения класса функциональной пожарной опасности при функциональном перепрофилировании зданий и сооружений, при котором повышаются требования к пределам огнестойкости железобетонных конструкций;
- необходимо обеспечение нормируемого предела огнестойкости поврежденной пожаром или дефектной конструкции, подлежащей усилению;
- необходимо обеспечение мероприятий по защите от хрупкого (взрывообразного) разрушения при пожаре;
- в процессе проектирования невозможно обеспечить нормируемый предел огнестойкости за счет конструирования собственного сечения железобетонной конструкции в связи с ограничением геометрических параметров сечений. Это, в основном, касается стержневых элементов конструкций, стенок двутавровых и тавровых балок, тонких плитных конструкций и т.п.
11.2 Выбор способа и толщины средства огнезащиты зависит от:
- собственного или фактического предела огнестойкости конструкции, а также от значения приращения огнестойкости, необходимого для обеспечения соответствия конструкции нормируемому пределу огнестойкости;
- температурно-влажностных условий эксплуатации защищаемой конструкции;
- вида защищаемой конструкции (колонна, балка, плита и т.д.);
- специфических требований обеспечения стойкости средства огнезащиты (механическая прочность, стойкость к агрессивным средам, вибрационным, ударным воздействиям, истиранию и т.п.);
- выбора приемлемого в условиях существования конструкции способа нанесения или устройства средства огнезащиты;
- сейсмического района расположения объекта защиты (с учетом СП 14.13330);
- архитектурных и эстетических требований.
11.3 Основные способы конструктивной огнезащиты бетонных и железобетонных конструкций:
- применение огнезащитных штукатурных составов;
- устройство облицовок плитами или листами из огнезащитных материалов;
- применение рулонных материалов на основе базальта или минерального волокна;
- обетонирование конструкций;
- обкладка кирпичом или легкобетонными блоками.
Возможны другие способы огнезащиты железобетонных конструкций при соответствующем экспериментальном обосновании их надежности и долговечности.
11.4 Применение штукатурных огнезащитных покрытий - традиционный способ огнезащиты бетонных и железобетонных конструкций.
Известково-цементная штукатурка толщиной 15 мм, гипсовая толщиной 10 мм, перлитовая или вермикулитовая толщиной 5 мм, теплоизоляция из минерального волокна толщиной 5 мм эквивалентны увеличению на 10 мм толщины защитного слоя тяжелого бетона (установлено экспериментально).
При толщине огнезащитного покрытия более 30 мм, его нанесение необходимо осуществлять по проволочной сетке диаметром 2 - 3 мм с ячейкой не более 100 x 100 мм, установленной в середине толщины покрытия и точечно закрепленной анкерами в бетон конструкции.
Преимущества штукатурных покрытий - долговечность и возможность локального ремонта.
Недостаток штукатурных покрытий - увеличение веса железобетонной конструкции с огнезащитной штукатуркой.
Эффективная толщина штукатурных покрытий: от 1 до 4 см. Способ нанесения - ручной или методом торкретирования.
Применение облегченных напыляемых штукатурных огнезащитных покрытий на гипсовой и цементной основах объемным весом не более 450 кг/м3 - эффективный способ конструктивной огнезащиты. Штукатурные напыляемые составы огнезащитных покрытий наносятся механизированным способом и могут применяться в условиях повышенной влажности и воздействия агрессивных сред. Долговечность напыляемых штукатурок может достигать 50 лет.
11.5 Применение облицовок плитными и листовыми огнезащитными материалами в качестве огнезащиты бетонных и железобетонных конструкций позволяет совмещать функции огнезащиты и отделки поверхностей.
Огнезащитные плиты или листы изготавливают на основе перлита, вермикулита, керамзита, минеральных волокон (силикатных, хризотиловых, базальтовых, диабазовых), волокон из других материалов (каолиновых, кремнеземистых, кварцевых). Существуют влагостойкие огнезащитные плиты и листовые материалы.
Крепление плитных и листовых облицовок к бетонным поверхностям осуществляется несколькими способами: анкерным - листы прикручиваются непосредственно к бетонной поверхности, профильным - листы и плиты крепятся на готовый каркас.
В перекрытиях огнезащитные плиты крепятся непосредственно к несущему профилю подвесного потолка. Снижение прочности, деформация и разрушение элементов крепления при нагревании могут привести к преждевременному обрушению плит или листов огнезащитного материала, появлению щелей между ними, в результате огонь проникнет к защищаемой поверхности.
Недостатки огнезащитных облицовок плитными и листовыми материалами:
- зависимость показателя огнестойкости облицовок от огнестойкости узлов их крепления к защищаемой конструкции;
- высокая трудоемкость монтажа;
- большой вес, приводящий к увеличению веса защищаемой конструкции (для некоторых разновидностей плитных и листовых облицовок);
- заделка зазоров между листами огнезащиты производится герметиками, срок службы которых значительно меньше срока службы листов огнезащиты;
- ограничения при эксплуатации во влажной среде для некоторых видов листовой огнезащиты;
- возможность появления биологических (грибковых) образований в пространстве между конструкцией и огнезащитой на каркасе вследствие повышенной влажности и отсутствия проветривания в процессе эксплуатации.
Предпочтительно применение типов плитных и листовых облицовок, для которых проработаны и подтверждены огневыми испытаниями решения узлов сопряжения и крепления элементов облицовок к защищаемым конструкциям.
11.6 Способ огнезащиты путем обетонирования применим в случае необходимости обеспечения нормируемого предела огнестойкости поврежденной пожаром или дефектной усиливаемой бетонной или железобетонной конструкции. Обетонирование совмещает усиливающую и огнезащитную функции и выполняется с соответствующим армированием на основе расчетов на прочность и огнестойкость.
При устройстве обетонирования следует применять класс бетона, аналогичный классу бетона конструкции, новую несущую арматуру усиления соединять со старой существующей арматурой, предусматривать армирование защитного слоя бетона противооткольной сеткой.
Недостаток способа обетонирования - трудоемкость, увеличение веса и размеров конструкции.
11.7 Способ конструктивной огнезащиты путем обкладки железобетонной конструкции кирпичом или легкобетонными блоками применяется для стеновых конструкций в процессе реконструкции или изменения функционального назначения зданий и сооружений при повышении требований огнестойкости.
Недостаток такого способа огнезащиты - трудоемкость, увеличение веса и размеров конструкции.
11.8 Выбор способа и толщины средства огнезащиты должен быть обоснован в проектных решениях расчетными методами при известных теплотехнических характеристиках средства огнезащиты (теплопроводность, теплоемкость) или протоколами соответствующих испытаний.
Проект по огнезащите должен содержать расчетное или экспериментальное обоснование необходимости и достаточности применения того или иного средства огнезащиты для конкретной защищаемой конструкции. Толщина наносимого или устраиваемого средства огнезащиты должна назначаться с учетом собственного предела огнестойкости бетонной или железобетонной конструкции.
11.9 При применении средств конструктивной огнезащиты должна быть обеспечена их сохранность и долговечность (сохранение огнезащитных свойств и целостности) на период проектного срока эксплуатации зданий и сооружения.
11.10 Оценку технического состояния огнезащитных покрытий в процессе эксплуатации объектов защиты следует проводить в рамках обследований технического состояния железобетонных конструкций по ГОСТ 31937, мониторинг технического состояния огнезащитных покрытий - по СП 432.1325800.
12.1 При проектировании железобетонных конструкций зданий, сооружений и многофункциональных комплексов различного назначения с развитой подземной частью, высотных зданий, относящихся к повышенному уровню ответственности (ГОСТ 27751), а также транспортных тоннелей, отказы которых после пожара могут приводить к тяжелым экономическим и экологическим последствиям, и конструкций, восстановление которых невозможно в процессе эксплуатации или требует больших технических сложностей и затрат, рекомендуется обеспечивать их огнесохранность после пожара.
Обеспечение огнесохранности целесообразно предусматривать для железобетонных конструкций, которые участвуют в обеспечении общей устойчивости и геометрической неизменяемости здания или сооружения, в том числе при воздействии пожара.
При жестких сопряжениях элементов в рамной или рамно-связевой пространственной конструктивной системе выход из строя (обрушение) одного или нескольких элементов (например, за счет возникновения пластических шарниров в опорных зонах статически неопределимых изгибаемых элементов) при пожаре может привести к изменению конструктивной системы здания, нарушению его пространственной жесткости, устойчивости и разрушению в целом. Изменение конструктивной системы недопустимо для зданий и сооружений повышенного уровня ответственности (например, для высотных зданий).
При назначении требования огнесохранности в проекте необходимо выполнять идентификацию строительных конструкций как элементов несущей конструктивной системы здания, которые влияют на устойчивость всего здания или сооружения.
12.2 За огнесохранность железобетонной конструкции после пожара принимают такое ее состояние, при котором остаточная прочность или остаточные необратимые деформации обеспечивают работу несущих конструкций в соответствии с требованиями нормативных документов. Состояние огнесохранности конструкции позволяет обеспечивать ее ремонтопригодность без дополнительного конструктивного усиления или замены.
12.3 Расчет огнесохранности железобетонной конструкции после пожара производится по предельным состояниям двух групп при длительности стандартного температурного режима пожара, эквивалентной нормируемому пределу огнестойкости конструкции. При этом расчетно-аналитическим путем следует предусматривать всевозможные последствия разрушающего воздействия пожара на наружные слои бетона и арматуру.
12.4 Расчет огнесохранности железобетонной конструкции после пожара следует проводить на расчетные сочетания нагрузок по СП 20.13330 и при расчетных значениях сопротивлений бетона и арматуры, с учетом изменения свойств бетона и арматуры в охлажденном состоянии после кратковременного высокотемпературного нагрева.
Для обеспечения огнесохранности конструкции после пожара необходимо, чтобы во время пожара температура нагрева арматуры не превышала:
400 °C - для арматуры без предварительного напряжения всех классов (во избежание полных потерь сцепления арматуры с бетоном);
100 °C - для преднапрягаемой арматуры всех классов (во избежание потерь предварительного напряжения),
12.5 Оценка огнесохранности железобетонных конструкций производится путем расчетов остаточной прочности и остаточных прогибов после пожара и сопоставления результатов с требованиями нормативных документов.
Остаточная прочность после пожара
12.6 Расчеты остаточной прочности железобетонных элементов после пожара для нормальных и наклонных сечений производятся согласно разделу 8.
При применении упрощенного метода расчета сопротивление сжатию бетона, нагретого выше критической температуры согласно 8.7, допускается не учитывать. Сопротивление бетона сжатию принимается равномерно распределенным по сжатой зоне. Расчетные сопротивления сжатию принимают равными Rb, расчетные сопротивления арматуры растяжению и сжатию после огневого воздействия при пожаре принимают соответственно равными Rst и Rsct. Расчет проводят по приведенному сечению площадью Ared, параметры которого определяют по 8.8.
Значения коэффициентов условий работы арматуры γst в охлажденном состоянии после пожара принимают по таблице 5.6 в зависимости от температуры нагрева арматуры во время пожара. Прогрев бетона до критической температуры во время пожара устанавливают по рисункам 5.1, 8.1 и 8.2 и теплотехническим расчетом (приложения А, Б).
12.7 При расчете прочности нормальных сечений железобетонных элементов следует учитывать, что в элементах, рассчитанных на работу до пожара при x ≤ ξRh0, после пожара возможен случай x> ξRh0t из-за уменьшения сжатой зоны бетона после прогрева наружных слоев бетона выше критической температуры.
Если условие x ≤ ξRh0t не соблюдается, момент определяют по формулам (8.10) и (8.12), подставляя в них значения высоты сжатой зоны, определяемой по формуле
x = ξRh0t. (12.1)
Значение ξR вычисляется по формуле
ξR = x/h0t = 0,8/(1 + εs,el/εb,ult). (12.2)
Относительная деформация растянутой арматуры εs,el при напряжениях, равных Rst, определяется
εs,el= Rst/Est. (12.3)
Относительную деформацию сжатого бетона εb,ult при напряжениях Rb,tem принимают равной εb2 по таблице 5.5. Модуль упругости арматуры после нагрева определяют по формуле (5.7).
12.8 Для обеспечения огнесохранности железобетонной конструкции должно соблюдаться условие прочности, при котором несущая способность сечения должна быть не менее усилия от внешних нагрузок.
Остаточный прогиб после пожара
12.9 Во время пожара в изгибаемых, внецентренно сжатых и внецентренно растянутых элементах при эксплуатационной нагрузке от температурного воздействия происходит развитие дополнительного прогиба из-за значительного нагрева растянутой арматуры и перепада температур по высоте сечения.
При пожаре прогиб элемента возникает вследствие воздействия нагрузки и температуры. При температурах нагрева арматуры до 350 °C прогиб железобетонного элемента развивается, в основном, за счет температурных расширений арматуры и бетона у более нагреваемой поверхности. При нагреве свыше 350 °C прогиб развивается преимущественно вследствие высокотемпературной ползучести арматуры.
После пожара в охлажденном состоянии прогиб от неравномерного нагрева по высоте сечения элемента уменьшается (носит обратимый характер), и остаточный прогиб от нагрузки значительно больше, чем прогиб от нагрузки до пожара из-за снижения модуля упругости бетона и развития необратимых пластических деформаций арматуры при нагреве.
В охлажденном состоянии после пожара прочностные и упругопластические свойства бетона практически не восстанавливаются, а в арматуре происходит частичное восстановление прочности и полное восстановление упругости.
12.10 После пожара железобетонные элементы имеют трещины с нагреваемой стороны по всей длине пролета.
Для изгибаемых элементов постоянной высоты по длине, в пределах которой изгибаемый момент не меняет знак, кривизну допускается вычислять для наиболее напряженного сечения, принимая ее для остальных сечений изменяющейся пропорционально значению изгибаемого момента.
Для свободно опертых и консольных элементов максимальный прогиб допускается определять по формуле
f = sl2(1/r)max, (12.4)
где s - коэффициент, зависящий от вида нагрузки и расчетной схемы элемента. При действии равномерно распределенной нагрузки: для свободно опертой балки s = 5/48, для консольной балки s = 1/4.
12.11 Кривизну изгибаемых, внецентренно сжатых и внецентренно растянутых элементов с трещинами в растянутой зоне определяют по формуле
(1/r)max = (1/r)1 - (1/r)2 + (1/r)3 - (1/r)cs, (12.5)
где (1/r)1 - кривизна от непродолжительного действия всей нагрузки, на которую производят расчет по деформациям;
(1/r)2 - кривизна от непродолжительного действия постоянных и временных длительных нагрузок;
(1/r)3 - кривизна от продолжительного действия постоянных и временных длительных нагрузок;
(1/r)cs - кривизна от температурной усадки бетона.
12.12 Кривизны железобетонных элементов от действия соответствующих нагрузок определяют по 8.2.25 СП 63.13330.2018.
12.13 Жесткость железобетонного элемента D на участке без трещин в растянутой зоне определяют по 8.2.26 СП 63.13330.2018.
В формуле (8.144) СП 63.13330.2018 коэффициент приведения растянутой и сжатой арматуры к бетону равен
α = Es/Eb1. (12.6)
Модуль упругости бетона Eb1 определяют по формуле
Eb1 = 0,85Ebt, (12.7)
где Ebt определяют по формуле (5.3), в которой коэффициент βb принимают по таблице 5.1 в зависимости от температуры бетона в центре тяжести приведенного сечения.
В формуле (8.147) СП 63.13330.2018 при продолжительном действии нагрузок Ebt заменяют на Ebτ, который определяют по формуле (5.4), принимая коэффициент φb,cr по таблице 5.1 в зависимости от температуры бетона в центре тяжести приведенного сечения.
12.14 Жесткость железобетонного элемента на участке с трещинами в растянутой зоне определяют по 8.2.27 - 8.2.31 СП 63.13330.2018.
Значения коэффициентов приведения арматуры к бетону по формулам (8.157) и (8.158) СП 63.13330.2018 принимают равными
для сжатой арматуры
; (12.8)
для растянутой арматуры
. (12.9)
Значение приведенного модуля деформации сжатого бетона Eb,red,t определяют по температуре крайнего сжатого волокна бетона по формуле
Eb,red,t = Rbt/εb1,red. (12.10)
Значение коэффициента ψs для изгибаемых элементов без учета арматуры допускается определять
, (12.11)
где прочность бетона на растяжение Rbt,ser,t определяют по формуле (5.2) в зависимости от температуры нагрева бетона на уровне растянутой арматуры.
12.15 Кривизну элемента при остывании от температурной усадки неравномерно нагретого бетона во время пожара определяют по формуле
(1/r)cs = (αcs1tb1 - αcstb)/h, (12.12)
где αcs1 и αcs - коэффициенты температурной усадки бетона, принимаемые по таблице 5.4 в зависимости от температуры бетона более tb1 и менее tb нагретой грани сечения, которая была при пожаре.
12.16 После пожара прогиб элемента является одним из критериев возможности дальнейшей эксплуатации конструкции. Для обеспечения огнесохранности расчетные значения остаточного прогиба после пожара не должны превышать предельно допустимых значений по СП 20.13330.
12.17 Положения по расчету остаточной прочности и остаточных прогибов применимы для поверочных расчетов при оценке технического состояния железобетонных конструкций после пожара по СП 329.1325800.
13.1 Конструктивные требования, обеспечивающие огнесохранность железобетонных конструкций, следует назначать с учетом физико-химических процессов и структурных изменений, происходящих в бетоне при высокотемпературном нагреве (рисунок 13.1).

1 - до 250 °C - хрупкое взрывообразное разрушение поверхности бетона с влажностью> 3,5%; 2 - от 250 °C до 350 °C - в бетоне образуются трещины от температурной усадки бетона; 3 - до 450 °C - в бетоне образуются трещины, преимущественно, от разности температурных деформаций цементного камня и заполнителей; свыше 450 °C – нарушение структуры бетона из-за дегидрации Ca(OH)2, когда свободная известь в цементном камне гасится влагой воздуха с увеличением объема; 4 - свыше 573 °C – нарушение структуры бетона из-за модификационного превращения α-кварца в β-кварц в граните, сопровождающегося увеличением объема заполнителя; 5 - свыше 750 °C - структура бетона полностью разрушена
Рисунок 13.1 - Нарушение структуры бетона после высокотемпературного нагрева
13.2 Огнесохранность железобетонной конструкции после пожара следует обеспечивать в соответствии с разделом 12.
При этом критическую температуру нагрева ненапрягаемой арматуры принимают не выше 400 °C во избежание полной утраты сцепления арматуры с бетоном. Согласно опытным данным, при нагреве порядка 100 °C сцепление арматуры периодического профиля с бетоном уменьшается почти на 30%, а при температуре 450 °C сцепление нарушается полностью. Следовательно, толщину защитного слоя бетона следует назначать с учетом сохранности сцепления арматуры с бетоном.
13.3 При расчете огнесохранности следует учитывать частичное или полное восстановление прочностных свойств арматуры в зависимости от температуры нагрева при пожаре (коэффициенты условий работы арматуры в охлажденном состоянии после нагрева - в таблице 5.6).
В случае применения холоднодеформированной стержневой арматуры класса В500С современного способа производства необходимо учитывать, что в охлажденном состоянии после нагрева до 600 °C и свыше ее физико-механические характеристики не восстанавливаются. Расположение стержневой арматуры класса В500 в сечениях железобетонных элементов должно исключать ее нагрев при пожаре свыше 500 °C.
13.4 Для обеспечения огнесохранности предварительно напряженных железобетонных конструкций необходимо ограничивать нагрев предварительно напряженной арматуры не более 100 °C для исключения потерь предварительного напряжения.
13.5 В железобетонных изгибаемых плитных конструкциях следует предусматривать поперечное конструктивное армирование хомутами и поперечными стержнями, предотвращающее выпучивание (выход из плоскости) нижней продольной арматуры в случае обрушения защитного слоя бетона при пожаре. Поперечные конструктивные стержни или хомуты следует принимать из арматуры диаметром не менее 6 мм с шагом не менее 500 мм в обоих направлениях.
13.6 Проектирование железобетонных конструкций с учетом требования огнесохранности следует производить с учетом мероприятий по защите от хрупкого разрушения бетона при пожаре.
13.7 В жестких конструктивных схемах высотных зданий из монолитного железобетона (статически неопределимые конструкции) конструирование изгибаемых элементов следует производить на основе результатов расчетов остаточной прочности опорных зон из условия недопущения образования опорных пластических шарниров, т.к. образование опорных пластических шарниров в одном изгибаемом элементе приводит к изменению конструктивной схемы всего здания в целом.
14.1 Данные в таблицах 14.1 - 14.8, содержащие минимально допустимые значения размеров сечений и расстояний от оси арматуры до обогреваемых поверхностей элементов (толщины защитных слоев) для обеспечения нормируемых пределов огнестойкости, приведены для статически определимых конструкций и должны быть не менее значений по СП 63.13330.
Таблицы составлены на основе опытных данных. При соблюдении требований табличных данных расчеты огнестойкости статически определимых конструкций могут не производиться.
14.2 Значения параметров таблиц 14.1 - 14.5, 14.7 применяют для несущих железобетонных конструкций при действии полных нормативных нагрузок с соотношением длительно действующей части нагрузки Gser к полной нагрузке Vser, равным 1. Если это отношение равно 0,3, то табличное значение предела огнестойкости увеличивается в 2 раза. Для промежуточных значений Gser/Vser предел огнестойкости принимается по линейной интерполяции.
14.3 Минимальные расстояния до оси арматуры и размеры элементов для обеспечения требуемого предела огнестойкости конструкций зависят от вида бетона. Теплопроводность легких бетонов на 10% - 20% и бетонов на крупном карбонатном заполнителе на 5% - 10% меньше, чем теплопроводность тяжелого бетона на силикатном заполнителе. С учетом теплопроводности бетонов разных видов, расстояния до оси арматуры для конструкций из легкого бетона или из тяжелого бетона с карбонатным заполнителем может быть принято меньшим, чем для конструкций из тяжелого бетона на силикатном заполнителе при одинаковом пределе огнестойкости выполненных из этих бетонов конструкций.
Значения параметров таблиц 14.1 - 14.3, 14.5, 14.7 и 14.8, применимы для железобетонных конструкций из бетона на крупном заполнителе из силикатных пород, а также плотного силикатного бетона классов по прочности на сжатие до B40 включительно. Минимальные размеры поперечного сечения и расстояния от оси арматуры до поверхности изгибаемого элемента могут быть уменьшены:
- на 10% - для железобетонных конструкций из бетонов на карбонатном заполнителе;
- на 20% - для конструкций из легких бетонов плотностью 1200 кг/м3;
- на 30% - для изгибаемых конструкций из легких бетонов плотностью 800 кг/м3 и керамзитоперлитобетона плотностью 1200 кг/м3.
14.4 На рисунках 14.1 и 14.2 приведены расстояния от обогреваемой поверхности до оси арматуры и геометрические параметры сечений применительно к таблицам 14.1 - 14.5, 4.7.

Рисунок 14.1 - Обозначения расстояний до оси арматуры

Рисунок 14.2 - Расстояния до оси арматуры
В случае расположения арматуры на разных уровнях сечения железобетонного элемента, среднее расстояние до оси арматуры a определяется с учетом площадей (A1, A2, ..., An) и соответствующих им расстояний до осей (a1, a2, ..., an) арматуры, измеренных от ближайшей нагреваемой (нижней или боковой) поверхности элемента, по формуле
. (14.1)
Колонны
14.5 В таблице 14.1 приведены значения геометрических параметров железобетонных колонн из тяжелого и легкого бетонов при четырехстороннем и одностороннем нагреве: минимальная ширина b и расстояние a от нагреваемой поверхности до оси арматуры. При одностороннем нагреве размер b относится только к колоннам, нагреваемая поверхность которых находится на одном уровне со стеной, или для части колонны, выступающей из стены. Предполагается, что в стене отсутствуют отверстия вблизи колонны в направлении минимального размера b.
Для колонн сплошного круглого сечения в качестве размера b следует принимать их диаметр.
Колонны с параметрами, приведенными в таблице 14.1, имеют внецентренно приложенную нагрузку или нагрузку со случайным эксцентриситетом при армировании колонн не более 3% поперечного сечения бетона, за исключением стыков. При коэффициенте армирования колонны более 3% табличные данные не применяют - необходим расчет огнестойкости.
Предел огнестойкости железобетонных колонн с дополнительным армированием в виде сварных поперечных сеток, установленных с шагом не более 250 мм, следует принимать по таблице 14.1, с учетом повышающего коэффициента 1,5.
Таблица 14.1
|
Вид бетона |
Вид огневого воздействия |
Ширина b колонны и расстояние a до оси арматуры |
Минимальное значение параметра, мм, колонны при пределе огнестойкости, мин | |||||
|
30 |
60 |
90 |
120 |
150 |
180 | |||
|
Тяжелый |
С четырех сторон |
b |
150 |
200 |
240 |
300 |
400 |
450 |
|
a |
10 |
25 |
35 |
40 |
50 |
50 | ||
|
С одной стороны |
b |
100 |
120 |
140 |
160 |
200 |
240 | |
|
a |
10 |
25 |
35 |
40 |
40 |
40 | ||
|
Легкий (γв = 1,2 т/м3) |
С четырех сторон |
b |
150 |
160 |
190 |
240 |
320 |
360 |
|
a |
10 |
25 |
35 |
40 |
40 |
40 | ||
|
С одной стороны |
b |
100 |
100 |
115 |
130 |
160 |
190 | |
|
a |
10 |
25 |
35 |
40 |
40 |
40 | ||
Стены
14.6 Для несущих сплошных железобетонных стен значения предела огнестойкости, толщины стены ht и расстояния a до оси арматуры приведены в таблице 14.2 и применимы к центрально- и внецентренно сжатым стенам при условии расположения суммарной силы в средней трети ширины поперечного сечения стены. При этом отношение высоты стены к ее толщине должно быть λ = l0/ht≤ 20.
Для стеновых панелей с платформенным опиранием при толщинах не менее 14 см значения пределов огнестойкости следует принимать по таблице 14.2, умножая их на коэффициент 1,5.
Таблица 14.2
|
Вид бетона |
Толщина ht и расстояние a до оси арматуры |
Минимальное значение параметра стены, мм, при пределе огнестойкости, мин | |||||
|
30 |
60 |
90 |
120 |
150 |
180 | ||
|
Тяжелый |
tc |
100 |
120 |
140 |
160 |
200 |
240 |
|
a |
10 |
15 |
20 |
30 |
30 |
30 | |
|
Легкий (γ = 1200 кг/м3) |
tc |
100 |
100 |
115 |
130 |
160 |
190 |
|
a |
10 |
15 |
20 |
30 |
30 |
30 | |
Огнестойкость ребристых стеновых панелей должна определяться по толщине плитной части. Ребра должны быть связаны с плитой хомутами. Минимальные размеры ребер и расстояния до осей арматуры в ребрах должны удовлетворять требованиям, предъявляемым к балкам (таблицы 14.3 и 14.4).
Таблица 14.3
|
Предел огнестойкости, мин |
Ширина балки b и расстояние a до оси арматуры |
Минимальное значение параметра балки из тяжелого бетона, мм |
Минимальное значение ширины ребра bω, мм | |||
|
30 |
b |
80 |
120 |
160 |
200 |
80 |
|
a |
25 |
15 |
10 |
10 | ||
|
60 |
b |
120 |
160 |
200 |
300 |
100 |
|
a |
40 |
35 |
30 |
25 | ||
|
90 |
b |
150 |
200 |
280 |
400 |
100 |
|
a |
55 |
45 |
40 |
35 | ||
|
120 |
b |
200 |
240 |
300 |
500 |
120 |
|
a |
65 |
55 |
50 |
45 | ||
|
150 |
b |
240 |
300 |
400 |
600 |
140 |
|
a |
80 |
70 |
65 |
60 | ||
|
180 |
b |
280 |
350 |
500 |
700 |
160 |
|
a |
90 |
80 |
75 |
70 | ||
|
aω= a +10 |
aω= a | |||||
Таблица 14.4
|
Предел огнестойкости, мин |
Ширина балки b и расстояние a до оси арматуры |
Минимальное значение параметра балки, мм, из легкого бетона (γ = 1200 кг/м3) |
Минимальное значение ширины ребра bω, мм | |||
|
30 |
b |
80 |
120 |
160 |
200 |
80 |
|
a |
25 |
15 |
10 |
10 |
- | |
|
60 |
b |
100 |
160 |
200 |
300 |
80 |
|
a |
40 |
30 |
25 |
20 |
- | |
|
90 |
b |
120 |
200 |
280 |
400 |
80 |
|
a |
55 |
40 |
35 |
30 |
- | |
|
120 |
b |
160 |
240 |
300 |
500 |
100 |
|
a |
65 |
50 |
40 |
35 |
- | |
|
150 |
b |
190 |
300 |
400 |
600 |
115 |
|
a |
80 |
65 |
55 |
50 |
- | |
|
180 |
b |
225 |
350 |
500 |
700 |
130 |
|
a |
90 |
75 |
65 |
55 |
- | |
|
aω= a +10 |
aω= a | |||||
Предел огнестойкости наружных стен из двухслойных панелей, состоящих из ограждающего слоя толщиной не менее 24 см из крупнопористого керамзитобетона классов B2 - B2,5 (γ = 600…900 кг/м3) и несущего слоя толщиной не менее 10 см, с напряжениями сжатия в нем не более 5 МПа, составляет 180 мин.
При применении в стеновых панелях или перекрытиях сгораемого утеплителя, необходимо предусматривать защиту этого утеплителя по периметру несгораемым материалом.
Предел огнестойкости стен из трехслойных панелей, состоящих из двух ребристых железобетонных плит и утеплителя из несгораемых или трудносгораемых минераловатных или фибролитовых плит, при общей толщине поперечного сечения 25 см составляет не менее 180 мин.
Предел огнестойкости наружных ненесущих и самонесущих стен из трехслойных сплошных панелей (ГОСТ 31310), состоящих из наружного (толщиной не менее 50 мм) и внутреннего бетонных армированных слоев и среднего слоя из сгораемого утеплителя (пенополистирола марки ПСБ по ГОСТ 15588) составляет не менее 60 мин при общей толщине поперечного сечения 15 ... 22 см. Предел огнестойкости для аналогичных несущих стен с соединением слоев металлическими связями при общей толщине 25 см, с внутренним несущим слоем из армированного бетона класса B15 с напряжениями сжатия в нем не более 2,5 МПа и толщиной 10 см или B25 с напряжениями сжатия в нем не более 10 МПа и толщиной 14 см, составляет 150 мин.
Предел распространения огня по этим конструкциям равен нулю.
Балки
14.7 Для статически определимых свободно опертых балок при трехстороннем воздействии пожара значения пределов огнестойкости, ширины балок b и расстояния до оси арматуры a, aω (рисунок 14.3) приведены для тяжелого бетона в таблице 14.3 и для легкого бетона (γ = 1200 кг/м3) - в таблице 14.4.

Рисунок 14.3 - Геометрические параметры и расстояния до оси арматуры в балке
При нагреве балок с одной стороны соответствия между значениями геометрических размеров и пределов огнестойкости принимаются по таблице 14.5 как для плит.
Таблица 14.5
|
Вид бетона, параметры плиты и вид опирания |
Толщина t плиты и расстояние a до оси арматуры |
Минимальное значение параметра плиты, мм, при пределе огнестойкости, мин | |||||||
|
15 |
30 |
60 |
90 |
120 |
150 |
180 | |||
|
Тяжелый |
Толщина плиты |
t |
30 |
50 |
80 |
100 |
120 |
140 |
155 |
|
Опирание по двум сторонам или по контуру при ly/lx ≥ 1,5 |
a |
10 |
15 |
25 |
35 |
45 |
60 |
70 | |
|
Опирание по контуру ly/lx <1,5 |
a |
10 |
10 |
10 |
15 |
20 |
30 |
40 | |
|
Легкий γ = 1200 кг/м3 |
Толщина плиты |
t |
30 |
40 |
60 |
75 |
90 |
105 |
120 |
|
Опирание по двум сторонам или по контуру при ly/lx ≥ 1,5 |
a |
10 |
10 |
20 |
30 |
40 |
50 |
55 | |
|
Опирание по контуру ly/lx <1,5 |
a |
10 |
10 |
10 |
10 |
15 |
25 |
30 | |
Для балок с наклонными сторонами ширина b должна измеряться по центру тяжести растянутой арматуры (рисунок 14.3).
При определении предела огнестойкости отверстия в полках балки могут не учитываться, если оставшаяся площадь поперечного сечения в растянутой зоне не меньше 2b2.
Для предотвращения откалывания бетона в ребрах балок расстояние между хомутом и поверхностью должно быть не более 0,2 ширины ребра.
Минимальное расстояние ai от поверхности элемента до оси любого стержня арматуры должно быть не менее указанного в таблице 14.3 для предела огнестойкости 30 мин и не менее половины a.
При пределе огнестойкости 120 мин и более на свободно опертых двутавровых балках с расстоянием между центрами тяжести полок более 120 см должны быть предусмотрены концевые утолщения, равные ширине балки.
Для двутавровых балок, у которых отношение ширины полки к ширине стенки b/bω (рисунок 14.3) больше 2, в ребре балки необходимо устанавливать поперечную арматуру. При отношении b/bω> 1,4 расстояние до оси арматуры должно быть увеличено до
. При b/bω> 3 таблицы 14.3 и 14.4 применять нельзя.
В балках с большими перерезывающими усилиями, воспринимаемыми хомутами, установленными около наружной поверхности элемента, расстояние a (таблицы 14.3 и 14.4) относится также к хомутам при условии их расположения в зонах, где расчетное значение растягивающих напряжений больше 0,1 прочности бетона на сжатие.
Предел огнестойкости балок из армополимербетона на основе фурфуролацетонового мономера с геометрическими параметрами: b = 160 мм и a = 45 мм, aω= 25 мм и армированных сталью класса А-III, равен 60 мин.
Плиты
14.8 Для свободно опертых плит предел огнестойкости, толщина плит t, расстояние до оси арматуры a приведены в таблице 14.5.
Минимальная толщина t плиты обеспечивает требование предела огнестойкости по потере теплоизолирующей способности I. Засыпки, стяжки и пол из негорючих материалов включаются в общую толщину плиты и способствуют повышению ее предела огнестойкости. Сгораемые изоляционные слои, уложенные на цементную подготовку, не снижают предел огнестойкости плит.
Эффективная толщина многопустотной плиты для обеспечения нормируемого предела огнестойкости определяется делением площади поперечного сечения плиты за вычетом площадей пустот на ее ширину.
Пределы огнестойкости многопустотных и ребристых с ребрами вверх панелей и настилов следует принимать по таблице 14.5, умножая их на коэффициент 0,9.
Пределы огнестойкости по прогреву двухслойных плит из легкого и тяжелого бетонов (при расположении бетона со стороны огневого воздействия) и необходимые толщины слоев приведены в таблице 14.6.
Таблица 14.6
|
Вид бетона |
Толщина t1 слоев двухслойной плиты из легкого и t2 из тяжелого бетона |
Минимальное значение параметра плиты, мм, при пределе огнестойкости, мин | |||||
|
30 |
60 |
90 |
120 |
150 |
180 | ||
|
Тяжелый |
t1 |
20 |
25 |
35 |
40 |
50 |
60 |
|
t2 |
25 |
35 |
45 |
55 |
55 |
55 | |
|
Легкий (γ = 1200 кг/м3) |
t1 |
25 |
40 |
50 |
60 |
70 |
80 |
|
t2 |
20 |
20 |
30 |
30 |
30 |
30 | |
В случае расположения всей арматуры в одном уровне, расстояние от боковой поверхности плиты до оси арматуры должно быть не менее толщины слоя, приведенного в таблицах 14.3 и 14.4.
Растянутые элементы
14.9 Для растянутых элементов ферм и арок с ненапрягаемой и предварительно напряженной арматурой, нагреваемых со всех сторон, минимальные значения ширины b поперечного сечения и расстояния a до оси арматуры при различных пределах огнестойкости приведены в таблице 14.7.
Полная площадь поперечного сечения бетона элемента должна быть не менее 2b2min, где bmin определяют по таблице 14.7.
Таблица 14.7
|
Вид бетона |
Ширина b поперечного сечения и расстояние a до оси арматуры |
Минимальные значения параметров растянутых элементов, мм, при пределе огнестойкости, мин | |||||
|
30 |
60 |
90 |
120 |
150 |
180 | ||
|
Тяжелый |
b |
80 |
120 |
150 |
200 |
240 |
280 |
|
a |
25 |
40 |
55 |
65 |
80 |
90 | |
|
Легкий (γ = 1200 кг/м3) |
b |
80 |
120 |
150 |
200 |
240 |
280 |
|
a |
25 |
35 |
45 |
55 |
65 |
70 | |
Ненесущие перегородки
14.10 Предел огнестойкости ненесущих бетонных и железобетонных перегородок и их минимальная толщина tn приведены в таблице 14.8. При этом минимальная толщина перегородок гарантирует, что температура на необогреваемой поверхности бетонного элемента в среднем повысится не более чем на 160 °C и не превысит 220 °C при воздействии стандартного температурного режима пожара. При определении tn следует учитывать дополнительные огнезащитные покрытия и штукатурки согласно 11.4.
Таблица 14.8
|
Вид бетона |
Минимальные значения толщины tn перегородки, мм, при пределе огнестойкости, мин | |||||||
|
15 |
30 |
45 |
60 |
90 |
120 |
150 |
180 | |
|
Тяжелый |
30 |
50 |
60 |
70 |
90 |
105 |
120 |
130 |
|
Легкий (γ = 1200 кг/м3) |
30 |
35 |
45 |
55 |
65 |
75 |
85 |
95 |
|
Ячеистый (γ = 800 кг/м3) |
- |
- |
- |
- |
- |
- |
75 |
80 |
14.11 При проектировании железобетонных конструкций с применением табличных данных следует учитывать возможность хрупкого взрывообразного разрушения бетона при пожаре и, в случае необходимости, предусматривать мероприятия по защите бетонных и железобетонных конструкций от хрупкого разрушения при пожаре (раздел 9).
14.12 Значения параметров таблиц 14.1 - 14.5, 14.7 применимы для задания в первом приближении геометрических параметров сечений статически неопределимых монолитных конструкций колонн, пилонов стен и перекрытий при условии их соответствия рекомендациям по определению оптимальных конструктивных параметров, изложенных в СП 430.1325800.2018 (пункты 5.2.8 - 5.2.14), но при условии последующего проведения расчетной оценки огнестойкости монолитных конструкций согласно положениям настоящего свода правил.
15.1 При проектировании бетонных конструкций с АКП следует учитывать, что предел огнестойкости бетонных конструкций плит перекрытий с АКП на 40% - 60% меньше предела огнестойкости аналогичных конструкций из обычного тяжелого бетона с металлической арматурой.
15.2 При проектировании и проведении огневых испытаний бетонных конструкций плит перекрытий с АКП следует учитывать, что предел огнестойкости по потере несущей способности наступает при достижении критического прогиба, равного ~ (L/30 - L/35) (где L - пролет плиты), приводящего к обрушению конструкции.
15.3 При проектировании и огневых испытаниях необходимо учитывать следующую специфику поведения бетонных плит с АКП при пожаре:
- критические прогибы плит после пожара необратимы и неминуемо приводят к обрушению конструкций;
- разрушение при пожаре бетонных конструкций плит перекрытий с АКП носит хрупкий, внезапный характер;
- критический прогиб плиты достигается за счет потери сцепления АКП с бетоном вследствие термодеструкции связующего (смолы) до его полного выгорания при температуре нагрева АКП до 300 °C;
- после пожара сцепление АКП с бетоном не восстанавливается.
15.4 Огнестойкость бетонных конструкций с АКП следует определять путем огневых испытаний в нагруженном состоянии при воздействии стандартного режима пожара.
Распространение результатов огневых испытаний бетонных конструкций с АКП от одного производителя на аналогичные конструкции с АКП других производителей не допускается.
15.5 Не следует применять АКП в несущих бетонных конструкциях многоэтажных жилых, общественных и промышленных зданий с нормальным и повышенным уровнем ответственности (ГОСТ 27751), к которым предъявляются требования обеспечения огнестойкости, за исключением конструкций, не наводящих магнитных полей (пункты взимания дорожной платы, использующие технологию радиочастотной идентификации, боксы высокоточного научного, медицинского оборудования, такого как магнитно-резонансные томографы).
Требование неприменимости АКП в качестве рабочей арматуры обосновано тем, что бетонные конструкции плит перекрытий с АКП, не разрушившиеся после пожара, но имеющие необратимые прогибы, неминуемо обрушаются через несколько минут после завершения пожара и могут спровоцировать прогрессирующее обрушение конструкций нижележащих этажей. Механизм разрушения несущих конструкций при пожаре связан с потерей сцепления АКП с бетоном.
15.6 АКП следует применять в качестве рабочей арматуры в бетонных конструкциях при строительстве:
- сооружений, эксплуатируемых в условиях высоких электромагнитных полей и разности потенциалов, подвергаемых воздействию токов утечки (конструкции высоковольтных линий и электроподстанций и т.д.);
- объектов химических производств, токсичных захоронений, водоподготовки и водоочистки, мелиорации (армирование бетонных емкостей очистных сооружений, отстойники, каналы и т.д.);
- объектов городской инженерной инфраструктуры (изделия для канализационных коллекторов и колодцев, проходных лотков и т.д.);
- в бетонных конструкциях на распределенном основании (фундаментные плиты, полы, ростверки, буронабивные сваи т.д.);
- в конструкциях, не наводящих магнитных полей (пункты взимания дорожной платы, использующие технологию радиочастотной идентификации, боксы высокоточного научного медицинского оборудования, такого как магнитно-резонансные томографы);
- в наружных стеновых панелях.
Не ограничивается применение АКП в качестве конструктивной (распределительной) арматуры - во всех остальных бетонных конструкциях.
15.7 При необходимости применения АКП в качестве рабочего армирования бетонной конструкции, не наводящей магнитных полей, требуемая огнестойкость такой конструкции должна обеспечиваться путем применения средств огнезащиты (штукатурки, листовое покрытие). Толщину огнезащиты следует определять путем огневых испытаний по ГОСТ 30247.0 и ГОСТ 30247.1. Ориентировочно толщину огнезащитного покрытия можно назначать, исходя из ограничения прогрева АКП свыше 300 °C.
16.1 Проектирование фибробетонных конструкций с неметаллической фиброй следует производить с учетом общих положений по обеспечению огнестойкости железобетонных конструкций.
16.2 При проектировании фибробетонных конструкций с неметаллической фиброй (полипропиленовая, стеклопластиковая, базальтовая, углеродная, целлюлозная) необходимо учитывать специфику их поведения в условиях высокотемпературного воздействия пожара, которая определяется экспериментально, путем огневых испытаний разных типов конструкций (колонна, балка, плита и т.п.) по ГОСТ 30247.0 и ГОСТ 30247.1.
16.3 Несущие конструкции с неметаллической фиброй, к которым предъявляются требования обеспечения предела огнестойкости по потере несущей способности R, следует проектировать с рабочей стержневой металлической арматурой.
16.4 Фибробетон с добавкой полипропиленовой микрофибры в количестве 1 кг/м3 применяется для снижения или исключения интенсивности взрывообразного разрушения бетона при пожаре. При этом следует учитывать, что при введении добавки полипропиленовой микрофибры в бетон, его прочностные характеристики и класс бетона понижаются на 15%.
16.5 Фибробетон с добавкой композитной полимерной (стеклопластиковой) макрофибры не следует применять в несущих тонкостенных конструкциях (толщиной менее 80 мм), к которым предъявляются требования огнестойкости, т.к. добавка композитной полимерной (стеклопластиковой) макрофибры в бетон при пожаре не проявляет свойств дисперсного армирования и снижения интенсивности трещинообразования, но увеличивает интенсивность взрывообразного разрушения бетона, приводит к образованию сквозных трещин и отверстий и преждевременному наступлению предела огнестойкости по потере целостности E.
16.6 При расчете огнестойкости фибробетонных конструкций необходимо учитывать изменение прочностных и деформативных свойств фибробетона с неметаллической фиброй разного рода (базальтовая, стекловолоконная, углеродная, полипропиленовая, целлюлозная) при нагреве.
16.7 Изменение нормативного и расчетного сопротивлений осевому сжатию фибробетона с увеличением температуры учитывается коэффициентом условий работы фибробетона на сжатие γfbt
Rfb,n,t = Rfb,nγfbt. (16.1)
Изменение нормативного и расчетного сопротивлений растяжению фибробетона с увеличением температуры учитывается коэффициентом условий работы фибробетона на растяжение γfbtt
Rfbt,n,t = Rfbt,nγfbtt (16.2)
Изменение значения начального модуля упругости при кратковременном высокотемпературном нагреве с увеличением температуры учитывают коэффициентом βfbt
Efbt = Efbβfbt. (16.3)
16.8 Значения коэффициентов условий работы в условиях кратковременного высокотемпературного воздействия устанавливаются опытным путем по ГОСТ 10180 и ГОСТ 24452 для каждого вида фибробетона в зависимости от вида примененной фибры и от ее количества в 1 куб. м бетона.
16.9 Значения коэффициентов условий работы для фибробетонов на гранитном заполнителе с добавкой полипропиленовой микрофибры в количестве 1 кг/м3 и композитной полимерной (стекловолоконной) макрофибры в количестве 8 кг/м3 в зависимости от температуры нагрева приведены в таблице 16.1.
Таблица 16.1
|
Вид фибробетона |
Коэффициент |
Коэффициенты условий работы γfbt, γfbtt, βfb и φfb,cr в зависимости от температуры нагрева, °C | |||||||
|
20 |
200 |
300 |
400 |
500 |
600 |
700 |
800 | ||
|
Тяжелый на гранитном заполнителе с добавкой полипропиленовой микрофибры в количестве 1 кг/м3 |
γfbt |
1,0 ----- 1,0 |
0,95 ------ 0,9 |
0,9 ------ 0,85 |
0,85 ------ 0,80 |
0,7 ------ 0,62 |
0,5 ------ 0,45 |
- --- - |
0 --- 0 |
|
γfbtt |
1,0 ----- 1,0 |
- ----- 1,0 |
- ------ 0,90 |
- ------ 0,80 |
- ------ 0,70 |
- ------ 0,60 |
- --- - |
0 | |
|
βfb |
1,0 |
0,70 |
0,50 |
0,40 |
0,30 |
0,20 |
- |
0 | |
|
Фибробетон на портландцементе и гранитном заполнителе с добавкой макрофибры композитной полимерной в количестве 8 кг/м3 |
γbt |
1,0 ----- 1,0 |
- ----- 0,88 |
- ----- 0,85 |
- ----- 0,80 |
- ----- 0,65 |
- ----- 0,40 |
- ----- 0,20 |
0 --- 0 |
|
γfbtt |
1,0 ----- 1,0 |
- ----- 0,98 |
- ----- 0,95 |
- ----- 0,80 |
- ----- 0,40 |
- ----- 0,30 |
- ----- 0,05 |
0 --- 0 | |
|
βfb |
- |
- |
- |
- |
- |
- |
- |
0 | |
|
Примечания 1 Значения коэффициентов условий работы γfbt, γfbtt над чертой и βfb приведены для бетона в нагретом состоянии и применяются при расчете огнестойкости, под чертой - для бетона в охлажденном состоянии после нагрева и применяются при расчете огнесохранности. 2 При отсутствии экспериментальных данных значения коэффициента βb после нагрева равны 1,0. 3 Коэффициенты условий работы для промежуточных значений температур нагрева следует определять интерполяцией. 4 При отсутствии экспериментальных данных при нагреве допускается в расчетах огнестойкости учитывать коэффициенты условий работы бетонов в охлажденном состоянии, умноженные на коэффициент 1,05. 5 Для фибробетонов иного вещественного состава коэффициенты условий работы следует определять экспериментально. 6 Знак "тире" в таблице означает отсутствие опытных данных. | |||||||||
16.10 Расчет предела огнестойкости по потере несущей способности фибробетонных конструкций с неметаллической фиброй производится аналогично бетонным и железобетонным конструкциям без содержания фибры, согласно разделу 8, с учетом коэффициентов условий работы того или иного вида фибробетона при нагреве.
16.11 Оценку предела огнестойкости по потере теплоизолирующей способности фибробетонных конструкций следует производить согласно разделу 7. При этом распределение температур по сечению фибробетонных конструкций с полипропиленовой микрофиброй в количестве 1 кг/м3 и стеклопластиковой макрофиброй в количестве 8 кг/м3 допускается принимать аналогичным конструкциям из обычного тяжелого бетона по приложениям А и Б, если отсутствуют иные опытные данные.
Распределение температур по сечению фибробетонных конструкций на основе других видов фибр (базальтовая, углеродная, целлюлозная) следует определять экспериментально или теплотехническим расчетом на основе опытных испытаний теплотехнических характеристик фибробетона: коэффициента теплопроводности λ (Вт/(м·°C)) по ГОСТ 7076 и удельной теплоемкости C (кДж/(кг·°C)) по ГОСТ 23250.
16.12 Оценка предела огнестойкости по потере целостности E конструкций из фибробетонов с разного рода неметаллической фиброй (базальтовая, стекловолоконная, углеродная, полипропиленовая, целлюлозная) производится путем огневых испытаний или аналитически, с применением результатов ранее проведенных огневых испытаний.
Приложение А
Теплотехническим расчетом определены температуры прогрева по сечениям плит и стен из тяжелого бетона плотностью 2350 кг/м3, влажностью до 2,5% - 3,0%, на силикатном и карбонатном заполнителях, а также из конструкционного керамзитобетона плотностью 1400 - 1600 кг/м3, влажностью до 5%.
Температура прогрева на уровне оси арматуры ts (рисунки А.1 - А.6) принимается по температуре прогрева бетона на расстоянии от нагреваемой поверхности до оси арматуры.
Температуры прогрева бетона в плитах и стенах при одностороннем воздействии стандартного температурного режима пожара

Длительность стандартного пожара, мин
0 - 120 - глубина прогрева бетона от нагреваемой поверхности, мм
Рисунок А.1 - Температуры прогрева тяжелого бетона на силикатном заполнителе в плитах и стенах высотой сечения 40, 60, 80, 100 и 120 мм при одностороннем воздействии пожара

Длительность стандартного пожара, мин
0 - 200 - глубина прогрева бетона от нагреваемой поверхности, мм
Рисунок А.2 - Температуры прогрева тяжелого бетона на силикатном заполнителе в плитах и стенах высотой сечения 140, 160, 180 и 200 мм при одностороннем воздействии пожара

Длительность стандартного пожара, мин
0 - 120 - глубина прогрева бетона от нагреваемой поверхности, мм
Рисунок А.3 - Температуры прогрева тяжелого бетона на карбонатном заполнителе в плитах и стенах высотой сечения 40, 60, 80, 100 и 120 мм при одностороннем воздействии пожара

Длительность стандартного пожара, мин
0 - 200 - глубина прогрева бетона от нагреваемой поверхности, мм
Рисунок А.4 - Температуры прогрева тяжелого бетона на карбонатном заполнителе в плитах и стенах высотой сечения 140, 160, 180 и 200 мм при одностороннем воздействии пожара

Длительность стандартного пожара, мин
0 - 120 - глубина прогрева бетона от нагреваемой поверхности, мм
Рисунок А.5 - Температуры прогрева конструкционного керамзитобетона в плитах и стенах высотой сечения 40, 60, 80, 100 и 120 мм при одностороннем воздействии пожара

Длительность стандартного пожара, мин
0 - 200 - глубина прогрева бетона от нагреваемой поверхности, мм
Рисунок А.6 - Температуры прогрева конструкционного керамзитобетона в плитах и стенах высотой сечения 140, 160, 180 и 200 мм при одностороннем воздействии пожара
Предел огнестойкости по потере несущей способности устанавливают по точке пересечения горизонтальной прямой на уровне критической температуры бетона tb,cr с кривой прогрева слоя бетона толщиной at от обогреваемой поверхности до оси растянутой арматуры.
Предел огнестойкости многопустотных и ребристых плит с ребрами вверх следует определять как для сплошных плит с коэффициентом 0,9.
Температуры прогрева тяжелого бетона на силикатном заполнителе монолитных железобетонных плит по профилированному настилу общей толщиной 200 мм указаны на рисунках А.7 и А.8.

Рисунок А.7 - Температуры прогрева тяжелого бетона на силикатном заполнителе в плитах по профилированному настилу при одностороннем воздействии пожара длительностью 60 и 100 мин

Рисунок А.8 - Температуры прогрева тяжелого бетона на силикатном заполнителе в плите по профилированному настилу при одностороннем воздействии пожара длительностью 120 и 150 мин

Рисунок А.9 - Температуры прогрева бетона в многопустотных и сплошных железобетонных плитах из обычного тяжелого бетона на известняковом заполнителе при одностороннем воздействии пожара
Приложение Б
Теплотехническим расчетом определены температуры прогрева тяжелого бетона с силикатным заполнителем плотностью 2000 - 2400 кг/м3 и влажностью 2% - 3% при воздействии стандартного температурного режима пожара. Температуры прогрева тяжелого бетона с карбонатным заполнителем следует определять с коэффициентом 0,9, а конструкционного керамзитобетона - с коэффициентом 0,85 по значению температур, приведенных в номограммах:
- для колонн сечением:
200 x 200 мм - рисунки Б.1; Б.2;
300 x 300 мм - рисунок Б.3;
400 x 400 мм - рисунок Б.4, Б.5;
- для балок сечением:
160 x 320 мм - рисунок Б.7;
300 x 600 мм - рисунки Б.8, Б.9;
- для монолитного ребристого перекрытия с балкой сечением 160 x 320 мм и плитой толщиной 100 мм - рисунки Б.10, Б.11:
~ 300 x 600 мм - 200 мм - рисунки Б.12 - Б.17;
- для двутавровых балок с шириной полки 240 мм и стенки 80 мм - рисунок Б.18:
~ 300 мм - 120 мм - рисунки Б.19, Б.20;
~ 400 мм - 120 мм - рисунки Б.21, Б.22.
Температуры и изотермы прогрева бетона в колоннах, балках и ребристых конструкциях

Рисунок Б.1 - Температуры прогрева бетона в колонне сечением 200 x 200 мм при четырехстороннем воздействии пожара длительностью 30 и 60 мин

Рисунок Б.2 - Температуры прогрева бетона в колонне сечением 200 x 200 мм при четырехстороннем воздействии пожара длительностью 90 и 120 мин

Рисунок Б.3 - Изотермы в бетоне колонны сечением 300 x 300 мм при четырехстороннем воздействии пожара длительностью 30, 60, 90, 120, 180 и 240 мин

Рисунок Б.4 - Температуры прогрева бетона в колонне сечением 400 x 400 мм при четырехстороннем воздействии пожара длительностью 30 и 60 мин

Рисунок Б.5 - Температуры прогрева бетона в колонне сечением 400 x 400 мм при четырехстороннем воздействии пожара длительностью 90 и 120 мин

Рисунок Б.6 - Температуры прогрева бетона в колонне сечением 400 x 400 мм при четырехстороннем воздействии пожара длительностью 180 и 240 мин

Рисунок Б.7 - Температуры прогрева бетона в балке сечением 160 x 320 мм при трехстороннем воздействии пожара длительностью 30, 60, 90 и 120 мин

Рисунок Б.8 - Изотермы в бетоне балки сечением 300 x 600 мм при трехстороннем воздействии пожара длительностью 30, 60 и 90 мин

Рисунок Б.9 - Изотермы в бетоне балки сечением 300 x 600 мм при трехстороннем огневом воздействии стандартного пожара длительностью 120, 180 и 240 мин

Рисунок Б.10 - Температуры прогрева бетона в монолитном ребристом перекрытии с балкой сечением 160 x 320 мм и плитой толщиной 100 мм при пожаре длительностью 30 и 60 мин

Рисунок Б.11 - Температуры прогрева бетона в монолитном ребристом перекрытии с балкой сечением 160 x 320 мм и плитой толщиной 100 мм при пожаре длительностью 90 и 120 мин

Рисунок Б.12 - Температуры прогрева бетона в монолитном ребристом перекрытии с балкой сечением 300 x 600 мм и плитой толщиной 200 мм при пожаре длительностью 30 мин

Рисунок Б.13 - Температуры прогрева бетона в монолитном ребристом перекрытии с балкой сечением 300 x 600 мм и плитой толщиной 200 мм при пожаре длительностью 60 мин

Рисунок Б.14 - Температуры прогрева бетона в монолитном ребристом перекрытии с балкой сечением 300 x 600 мм и плитой толщиной 200 мм при пожаре длительностью 90 мин

Рисунок Б.15 - Температуры прогрева бетона в монолитном ребристом перекрытии с балкой сечением 300 x 600 мм и плитой толщиной 200 мм при пожаре длительностью 120 мин

Рисунок Б.16 - Температуры прогрева бетона в монолитном ребристом перекрытии с балкой сечением 300 x 600 мм и плитой толщиной 200 мм при пожаре длительностью 180 мин

Рисунок Б.17 - Температуры прогрева бетона в монолитном ребристом перекрытии с балкой сечением 300 x 600 мм и плитой толщиной 200 мм при пожаре длительностью 240 мин

Рисунок Б.18 - Температуры прогрева бетона в двутавровой балке со стенкой толщиной 80 мм и полкой шириной 240 мм при пожаре длительностью 30 и 60 мин

Рисунок Б.19 - Температуры прогрева бетона в двутавровой балке со стенкой толщиной 120 мм и полкой шириной 300 мм при пожаре длительностью 30 и 60 мин

Рисунок Б.20 - Температуры прогрева бетона в двутавровой балке со стенкой толщиной 120 мм и полкой шириной 300 мм при пожаре длительностью 90 и 120 мин

Рисунок Б.21 - Температуры прогрева бетона в двутавровой балке со стенкой толщиной 120 мм и полкой шириной 400 мм при пожаре длительностью 30 и 60 мин

Рисунок Б.22 - Температуры прогрева бетона в двутавровой балке со стенкой толщиной 120 мм и полкой шириной 400 мм при пожаре длительностью 90 и 120 мин
Температуры прогрева бетона, приведенные в приложениях А и Б, применимы при расчетах огнестойкости и огнесохранности железобетонных конструкций жилых, гражданских, спортивных, административных, промышленных зданий, сооружений и тоннелей. Для железобетонных конструкций автодорожных и железнодорожных тоннелей, в которых перевозят горючие жидкости, значения температуры допускается умножать на 1,1, а при перевозке углеводородных газов - на 1,2, в складских помещениях для хранения каучука, синтетических материалов, масел, лаков, красок, сжиженного газа, бумаги, зерна и муки - на 1,25.
Температуры бетона в плитах, балках и колоннах промежуточных размеров допускается определять интерполяцией, а имеющих бóльшие размеры сечений - экстраполяцией.
Для колонн круглого поперечного сечения температуры нагрева по радиусу колонны допускается определять аналогично температурам по оси стороны квадратной колонны.
На рисунках Б.1 - Б.22 геометрические параметры сечений указаны в миллиметрах.
Приложение В
Усилия от нагрузки и температуры в поперечном сечении элемента при температурном воздействии пожара
|
Mn, M, Mt |
- |
изгибающий момент от нормативной и расчетной нагрузок и от температуры в результате воздействия пожара; |
|
Nn, N, Nt |
- |
продольная сила от нормативной и расчетной нагрузок и от температуры в результате воздействия пожара; |
|
Qn, Q, Qt |
- |
поперечная сила от нормативной и расчетной нагрузок и от температуры в результате воздействия пожара; |
|
ξR |
- |
граничная относительная высота сжатой зоны бетона; |
|
ξ |
- |
относительная высота сжатой зоны бетона; |
|
Rbnt = Rbnγbt |
- |
нормативное сопротивление бетона сжатию; |
|
Rb,tem = Rbγγbt |
- |
расчетное сопротивление бетона сжатию; |
|
Rbtnt = Rbtnγtt |
- |
нормативное сопротивление бетона растяжению; |
|
Rbtt = Rbtγtt |
- |
расчетное сопротивление бетона растяжению; |
|
Rsnt = Rsnγst |
- |
нормативное сопротивление арматуры растяжению; |
|
Rst = Rsγst |
- |
расчетное сопротивление арматуры растяжению; |
|
Rsct = Rscγst |
- |
расчетное сопротивление арматуры сжатию; |
|
Rswt = Rswγst |
- |
расчетное сопротивление поперечной арматуры растяжению; |
|
Ebt = Ebβb |
- |
модуль упругости бетона; |
|
Ebτ |
- |
модуль деформации бетона; |
|
Est = Esβs |
модуль упругости арматуры; | |
|
γbt, γtt, γfbt, γfbtt |
- |
коэффициенты условий работы бетона при сжатии и растяжении; |
|
γst |
- |
коэффициент условий работы арматуры при сжатии и растяжении; |
|
γst,cr |
- |
критическое значение коэффициента условий работы растянутой арматуры; |
|
βb, βs, βfb |
- |
коэффициенты, учитывающие изменения модулей упругости бетона и арматуры; |
|
φb,cr |
- |
коэффициент ползучести сжатого бетона; |
|
αbt, αcs, αst |
- |
коэффициенты температурной и усадочной деформации бетона и температурной деформации арматуры; |
|
εt, εsc |
- |
температурная деформация и деформации усадки бетона; |
|
λ, C, ared |
- |
коэффициент теплопроводности, удельная теплоемкость бетона и арматуры и приведенный коэффициент температуропроводности бетона соответственно; |
|
εb0, εb2 |
- |
предельные относительные деформации бетона при осевом сжатии и однородном напряженном состоянии и крайнего волокна бетона сжатой зоны, при неоднородном напряженном состоянии; |
|
εs0, εs2 |
- |
относительные деформации арматуры при напряжении, равном Rst; |
|
e, e' |
- |
расстояние от точки приложения продольной силы N до равнодействующей усилий соответственно в арматуре S и S'; |
|
e0 |
- |
эксцентриситет продольной силы N относительно центра тяжести приведенного сечения. |
Геометрические характеристики
|
a, a' |
- |
расстояния от равнодействующей усилий соответственно в арматуре S и S' до ближайшей грани сечения; |
|
at |
- |
глубина прогрева бетона до критической температуры tb,cr; |
|
h0t |
- |
рабочая высота сечения при нагреве бетона сжатой зоны до критической температуры бетона tb,cr; |
|
tb, ts |
- |
температуры нагрева бетона и арматуры; |
|
bt |
- |
ширина прямоугольного сечения, ширина ребра таврового и двутаврового сечений при нагреве бетона до критической температуры; |
|
b'ft |
- |
ширина полки таврового и двутаврового сечений в сжатой зоне при нагреве бетона до критической температуры. |
Библиография
[1] Федеральный закон от 22 июля 2008 г. N 123-ФЗ "Технический регламент о требованиях пожарной безопасности"
[2] Федеральный закон от 21 декабря 1994 г. N 69-ФЗ "О пожарной безопасности"


