СП 120.13330.2012 (24.12.2019) МЕТРОПОЛИТЕНЫ Актуализированная редакция СНиП 32-02-2003
С изменениями:
(18 февраля 2014 г., 16 декабря 2016 г., 14 октября, 24 декабря 2019 г.)
Subways
Дата введения 1 января 2013 г.
Введение
Актуализация СНиП 32-02-2003 в формате свода правил проведена с целью повышения уровня безопасности пассажиров метрополитена, повышения эксплуатационной надежности метрополитена, сохранности материальных ценностей в соответствии с Федеральным законом от 30 декабря 2009 г. N 384-ФЗ "Технический регламент о безопасности зданий и сооружений" и Федеральным законом от 22 июля 2008 г. N 123-ФЗ "Технический регламент о требованиях пожарной безопасности". Учитывались также требования сводов правил системы противопожарной защиты.
Свод правил содержит требования по проектированию, строительству и приемке в эксплуатацию новых и реконструируемых линий, объектов и устройств метрополитена.
Актуализация выполнена авторским коллективом ОАО "Метрогипротранс" при участии: ОАО "Ленметрогипротранс", ГУП "Московский метрополитен", Тоннельной Ассоциации России, ООО "Инжтоннельгеодезия", ФБУЗ "Центр гигиены и эпидемиологии в городе Москве" (Филиал на метрополитене), НИЦ ТМ ОАО "ЦНИИС", ОАО "Московский метрострой", ОАО "Институт "Казгражданпроект", ЗАО "ИГИТ", ЗАО "НПЦ ИРЭБ", СПбФ ФБУ ВНИИПО МЧС России, ООО НПО "МОСТОВИК", ОАО "НИИАС".
Изменение N 2 внесено авторскими коллективами АО "Мосинжпроект", ОАО "Ленметрогипротранс" и ОАО "Метрогипротранс" при участии: ГУП "Московский метрополитен", ФГБУ ВНИИПО МЧС России, НИЦ ТМ АО "ЦНИИС", ООО МСП "Опора России", ЗАО "ГК Пенетрон-Россия", ЗАО "СиСофт Девелопмент", НК "Российское лифтовое объединение" под общей редакцией В.Е. Меркина, Д.С. Конюхова, И.Я. Дормана, Г.Р. Захарова, Д.А. Дощатова, Е.Г. Козина и Е.В. Щекудова.
1.1 Настоящий свод правил устанавливает требования к проведению инженерных изысканий, проектированию, производству и приемке работ при строительстве сооружений и устройств метрополитена.
1.2 Настоящий свод правил распространяется на новые и реконструируемые сооружения и устройства метрополитена.
Перечень нормативных документов, на которые даны ссылки, приведен в приложении А.
Примечание - При пользовании настоящим сводом правил целесообразно проверить действие ссылочных стандартов и классификаторов в информационной системе общего пользования - на официальном сайте Федерального агентства по техническому регулированию и метрологии в сети Интернет или по ежегодно издаваемому информационному указателю "Национальные стандарты", который опубликован по состоянию на 1 января текущего года, и по соответствующим ежемесячно издаваемым информационным указателям, опубликованным в текущем году. Если ссылочный стандарт заменен (отменен), то при пользовании настоящим сводом правил следует руководствоваться заменяющим (измененным) стандартом. Если ссылочный стандарт отменен без замены, то положение, в котором дана ссылка на него, применяется в части, не затрагивающем эту ссылку.
Термины, применяемые в настоящем своде правил, и их определения приведены в приложении Б.
4.1 Метрополитены в соответствии с Градостроительным кодексом Российской Федерации относятся к особо опасным и технически сложным объектам, при проектировании, строительстве и реконструкции которых следует предусматривать:
- технические решения, обеспечивающие безаварийный процесс строительства и эксплуатации сооружений метрополитена, а также прилегающих к ним подземных и наземных объектов;
- применение современных материалов, оборудования, изделий, соответствующих стандартам и другим нормативным документам Российской Федерации, а также применение материалов, оборудования и изделий, изготовленных по зарубежным нормам и стандартам, имеющих сертификаты соответствия и технические свидетельства Российской Федерации;
- индустриализацию строительства на базе современных средств комплексной механизации и автоматизации строительного производства, а также применение типовых конструкций и узлов, оборудования и аппаратуры, отвечающих мировым стандартам;
- технические средства, объемно-планировочные решения подземных сооружений и условия эксплуатации, обеспечивающие пожарную безопасность и безопасность движения поездов, безопасность пассажиров при нахождении во всех пассажирских помещениях станционных комплексов и в подвижном составе;
- технические решения, обеспечивающие выполнение требований санитарных норм и правил, правил охраны труда рабочих и служащих в периоды строительства и эксплуатации;
- максимальную механизацию и автоматизацию процессов эксплуатации, повышение комфорта проезда пассажиров, повышение производительности труда персонала, соблюдение принципов эргономики и технической эстетики;
- мероприятия по охране окружающей среды, памятников истории и культуры;
- мероприятия, обеспечивающие необходимый уровень доступности зданий и сооружений, связанных с перевозкой пассажиров всех категорий;
- мероприятия, исключающие оказание влияния вибраций от движения поездов на конструкции зданий и сооружений окружающей застройки.
4.2 Сеть метрополитена следует проектировать на основе Комплексной схемы развития всех видов городского транспорта, утвержденной схемы развития метрополитена, отражающей направление, протяженность, места расположения станций, электродепо, административных зданий и производственных предприятий, соединения с путями общей сети железных дорог.
4.3 Линии метрополитена следует проектировать в основном подземными - открытого или закрытого способов работ. При пересечении водных преград, в незаселенных местах, вдоль линий железных дорог и т.п. возможно предусматривать наземные или надземные участки в галереях закрытого типа, а также открытые наземные и надземные участки линий.
4.4 Прокладка участков линий мелкого заложения, сооружаемых открытым способом, на землях заповедников, заказников, ботанических садов, дендрологических парков, лесопарков и в охранных зонах памятников истории и культуры не допускается, за исключением размещения локальных, нелинейных объектов метрополитена.
4.5 Для обеспечения строительства участков линий метрополитена необходимо предусматривать технические зоны шириной не менее 40 м. Возведение зданий и сооружений в технической зоне до окончания строительства сооружений метрополитена допускается по согласованию с дирекцией строящегося метрополитена.
4.6 Возведение зданий и сооружений, прокладку подземных коммуникаций и посадку зеленых насаждений в технической зоне, а также застройку территории шириной 30 м с обеих сторон от границ технической зоны следует предусматривать по согласованию с организацией, эксплуатирующей метрополитен.
4.6а При пересечении в плане линий метрополитена подземными инженерными коммуникациями требования к их расположению и конструкции не предъявляются в следующих случаях:
- расстояние от верха (низа) конструкции метрополитена до низа (верха) коммуникации более 20 м;
- между сооружением метрополитена и коммуникацией залегают устойчивые грунты по ГОСТ 25100 (плотные глины, нетрещиноватые полускальные и скальные породы) мощностью не менее 6 м.
4.6б В случаях, отличных от условий по 4.6а, к расположению и конструкциям прокладываемых инженерных коммуникаций предъявляются следующие требования:
- трасса коммуникации на участке пересечения с сооружениями метрополитена должна быть прямолинейной в плане и профиле, с уходом за габариты конструкции не менее чем на 10 м, после чего допускаются криволинейные участки;
- пересечение коммуникациями над и под сооружениями метрополитена допускается только при условии применения защитных технических решений (футляры, железобетонные обоймы, коллекторы, трубы с массивным защитным покрытием и др.), исключающих нарушение гидроизоляции;
- защитные футляры должны выводиться за габариты сооружений метрополитена не менее чем на 10 м в каждую сторону;
- прокладка коммуникаций под наземными линиями метрополитена должна предусматриваться в футлярах, концы которых должны выводиться за пределы ограждения территории метрополитена не менее чем на 3 м;
- расстояние в свету между прокладываемой коммуникацией (с учетом защитного футляра, обоймы или технологического бурового канала) и конструкцией метрополитена должно соответствовать требованиям, регламентируемым соответствующим нормативным документом для данного вида коммуникации, проверяться геотехническим расчетом из условия предотвращения негативных воздействий при прокладке и во всех случаях составлять не менее 1,0 м.
Прокладка газопроводов под подземными сооружениями метрополитена не допускается.
4.7 Пересечение линий метрополитена между собой и с линиями других видов транспорта следует предусматривать в разных уровнях.
Линию метрополитена необходимо соединять:
- с одной или двумя пересекающими ее линиями - однопутной соединительной веткой;
- с электродепо на этой линии - двухпутной соединительной веткой.
4.8 На каждой линии метрополитена следует предусматривать автономное движение поездов. В сложных транспортных узлах допускается предусматривать соединения между линиями и организацию маршрутного движения поездов.
4.9 Линии метрополитена следует проектировать двухпутными с правосторонним движением поездов.
4.10 Первая линия метрополитена должна иметь соединение с путями общей сети железных дорог. При увеличении сети метрополитена на каждые 50 км следует предусматривать, при необходимости, дополнительные соединения с путями общей сети железных дорог.
4.11 Станции следует предусматривать в центрах пассажирообразующих нагрузок территорий, вблизи железнодорожных, автобусных и речных вокзалов и других объектов массового посещения города с учётом комплексного использования подземного пространства.
4.12 Трассу линии в плане и профиле следует назначать исходя из направлений максимальных перспективных пассажиропотоков на городских магистралях, размещения станций в пассажирообразующих узлах, минимальных затрат времени пассажиров на поездку, применения наиболее экономичного продольного профиля по расходу электроэнергии, а также с учетом инженерно-геологических, геоморфологических, гидрологических условий и коррозионной активности среды.
4.13 На каждой линии необходимо предусматривать электродепо, тупики и пункт технического обслуживания (ПТО) подвижного состава.
4.14 На линии при длине до 20 км (в двухпутном исчислении) должно сооружаться одно электродепо, при длине линии более 20 км и свыше 40 км - соответственно второе и третье электродепо.
Допускается использование одного электродепо для двух линий с однотипным подвижным составом в течение первого периода эксплуатации второй линии.
4.15 При проектировании линий метрополитена следует предусматривать возможность ввода их в эксплуатацию отдельными участками.
4.16 На линии через 5-8 км необходимо предусматривать тупик за станцией для оборота и отстоя поездов. Длину тупика следует принимать с учетом отстоя необходимого числа составов на линии при максимальных размерах движения.
При необходимости возможно устройство оборота поездов перед станцией.
На первом пусковом участке линии протяженностью до 20 км в одном из тупиков необходимо предусматривать пункт технического обслуживания (ПТО) подвижного состава с производственными и санитарно-бытовыми помещениями.
При протяженности линии свыше 20 км ПТО следует размещать по заданию технического заказчика. По заданию технического заказчика в ПТО может предусматриваться только смотровая канава без помещений.
У станции, вблизи которой предусматривается строительство электродепо, ПТО не размещается.
4.17 Ночной отстой составов следует предусматривать в электродепо и на станционных путях линии. Комнаты ночного отдыха локомотивных бригад следует располагать в наземных зданиях или наземных вестибюлях (павильонах) станций.
4.18 При расстоянии между торцами платформ соседних станций 3000 м и более в средней части перегона следует предусматривать дополнительный аварийный выход для вывода пассажиров из тоннеля на поверхность.
4.19 Основные параметры сооружений и устройств линии, обеспечивающие ее провозную и пропускную способность, следует устанавливать по максимальным расчетным пассажирским потокам в следующие периоды эксплуатации линии:
а) первый период - с первого по десятый годы;
б) второй период - с десятого по двадцатый годы;
в) третий период - расчетный срок (более 20 лет).
4.20 Конструкция входов в подземные сооружения должна исключать возможность поступления в них вод при паводках и наводнениях с вероятностью превышения высшего уровня вод один раз в 300 лет.
4.21 На линиях метрополитена следует предусматривать мероприятия по защите помещений станций, а также зданий, расположенных вдоль трассы, от шума и вибрации, возникающих при движении поездов, работе эскалаторов и других установок метрополитена.
4.22 В метрополитене могут предусматриваться дополнительные сооружения и устройства [1], позволяющие использовать его в качестве защитного сооружения гражданской обороны для защиты работников наибольшей работающей смены метрополитена и населения в соответствии с СП 165.1325800, СП 88.13330 и [67].
Решение о приспособлении линий метрополитена в качестве защитного сооружения гражданской обороны для защиты населения принимается уполномоченным органом исполнительной власти субъекта Российской Федерации.
Примечание - На новых участках линий метрополитена в городской застройке, в которой имеются защитные сооружения гражданской обороны или предусмотрены мероприятия гражданской обороны, допускается не предусматривать дополнительные сооружения и устройства.
4.23 Для размещения административно-управленческого и эксплуатационного персонала, диспетчерских служб, ремонтно-монтажных, медицинских и других специализированных подразделений следует предусматривать наземные здания или, при обосновании, - подземные.
Подразделения персонала, непосредственно связанные с обслуживанием линии, следует располагать на станциях.
4.24 Торговые зоны, павильоны и другие объекты попутного обслуживания пассажиров в сооружениях метрополитена не допускается размещать ниже уровня кассового зала вестибюля станции.
Указанные объекты не должны ограничивать зоны прохода и обслуживания пассажиров и отрицательно воздействовать на технологию обслуживания метрополитена.
4.25 В процессе изысканий, проектирования и строительства объектов метрополитена необходимо осуществлять научно-техническое сопровождение в соответствии с пунктом 10.5 ГОСТ 27751-2014.
4.26 При проектировании, строительстве и реконструкции станций следует предусматривать возможность пользования метрополитеном маломобильными группами населения.
4.27 На линиях метрополитена следует предусматривать единую автоматизированную систему оплаты проезда и контроля прохода пассажиров на станции, автоматизированное управление движением поездов, эскалаторами и другими производственными установками из диспетчерских пунктов линий и станций, преимущественно исключающими участие человека в принятии управляющих решений.
Управление работой станций следует предусматривать с применением системы управления работой станции (СУРС) согласно приложению В.
Диспетчерские пункты (ДП) линий должны состоять из отраслевых ДП: управления движением поездов, электроснабжения, эскалаторов, электромеханических устройств, а также ДП охраны общественного порядка и безопасности, пожарной безопасности, пассажирских конвейеров, подъемно-транспортного оборудования для МГН.
ДП оборудуются автоматизированными рабочими местами, системами телеуправления и необходимыми видами диспетчерских связей на современной элементной базе.
4.28 Рекомендуется предусматривать системы платформенных раздвижных дверей как отдельно стоящих на платформе станции, так и встроенных в конструкцию станции.
4.29 При проектировании, строительстве и эксплуатации сооружений метрополитенов, при наличии соответствующих требований в техническом задании на проектирование, следует использовать технологию информационного моделирования. Информационная модель сооружения метрополитена должна представлять собой набор сведений о конструкции и оснащении сооружения метрополитена, структурированный в виде трехмерной параметрической модели связанных между собой объектов и предусматривать возможность включения в общую эксплуатационную информационную модель сети метрополитена.
5.1.1.1 Инженерно-геологические изыскания должны проводиться на следующих стадиях проектирования:
1) Инженерно-геологические изыскания для подготовки документов территориального планирования, документации по планировке территории и выбора площадок (трасс) строительства.
2) Инженерно-геологические изыскания для архитектурно-строительного проектирования при подготовке проектной документации объектов капитального строительства:
2.1) Инженерно-геологические изыскания для подготовки проектной документации - первый этап.
2.2) Инженерно-геологические изыскания для подготовки проектной документации - второй этап.
3) Инженерно-геологические изыскания при строительстве и реконструкции зданий и сооружений.
Результаты инженерно-геологических изысканий должны содержать необходимые и достаточные данные для проектирования и выполнения сопутствующих расчетов.
5.1.1.2 Инженерно-геологические изыскания [2], [66] на всех стадиях проектирования, а также в период строительства и эксплуатации метрополитена следует проводить в соответствии с СП 47.13330.
На каждый этап изысканий составляются техническое задание и программа инженерно-геологических изысканий. Техническое задание на выполнение инженерно-геологических изысканий должно содержать данные о расположении и длине трассы, включая ее варианты, перечень и идентификацию объектов метрополитена, габариты зданий и сооружений, данные о предполагаемых типах фундаментов, глубине заложения фундаментов и подземных частей зданий и сооружений, проектируемых нагрузках на основание, данные о высоте и этажности зданий и сооружений, диаметрах и глубине заложения тоннелей, способах строительства сооружений, ограждающих конструкций, а также данные о техногенных нагрузках на геологическую среду.
5.1.1.3 Программа изысканий устанавливает состав и объемы инженерно-геологических изысканий в зависимости от особенностей проектируемого сооружения, стадии изысканий, степени изученности территории, категории сложности инженерно-геологических условий и технологии проходки. При необходимости к составлению технического задания и программы инженерно-геологических изысканий на территориях со сложными инженерно-геологическими условиями привлекаются специализированные и научно-исследовательские организации. Выполнение инженерно-геологических изысканий без программы изысканий не допускается.
5.1.1.4 Требования к определению категорий сложности инженерно-геологических условий приведены в [2].
Результаты инженерно-геологических изысканий должны содержать необходимые и достаточные данные для проектирования подземных сооружений и их комплексов; выполнения расчетов по предельным состояниям, геотехнических расчетов с применением нелинейных моделей грунтов (5.11.5, 5.18.3); выполнения долгосрочного прогноза изменения инженерно-геологических и гидрогеологических условий территории (5.1.12, 5.1.18); разработки мероприятий по обеспечению сохранности и безопасной эксплуатации окружающей застройки и подземных сооружений, расположенных в зоне влияния строительства (5.18.3, 5.24.2, 6.1.2) в соответствии с требованиями СП 22.13330.
5.1.1.4 На этом этапе изыскания следует проводить с целью определения и детализации инженерно-геологических условий и уточнения инженерно-геологической обстановки.
5.1.1.5 Инженерно-геологические изыскания на этапе разработки проектной документации проводятся в объеме, необходимом для комплексного изучения инженерно-геологических условий выбранной трассы и прогнозных изменений в период строительства с детальностью, достаточной для:
- выбора оптимального варианта положения трассы в плане и по глубине заложения;
- выбора видов конструкций и способов производства работ, позволяющих вести строительство с минимальным воздействием на окружающую геологическую среду и поверхностную инфраструктуру;
- проектирования перегонных тоннелей, станций, наклонных тоннелей, вертикальных шахтных стволов, других подземных и надземных сооружений, а также проектируемых депо метрополитена.
Требования к выбору категорий сложности геологических условий приведены в [2].
5.1.1.6 В состав изысканий должны входить следующие основные работы:
- сбор, обобщение и анализ архивных инженерно-геологических материалов;
- рекогносцировка местности вдоль трассы;
- плановая разбивка, плановая и высотная привязка выработок и скважин;
- проходка разведочных выработок;
- опробование грунтов и подземных вод;
- полевые исследования грунтов;
- опытно-фильтрационные работы;
- геофизические исследования;
- лабораторные исследования грунтов и химического состава подземных вод;
- камеральная обработка результатов изысканий и составление отчета.
Для районов с неблагоприятными инженерно-геологическими условиями следует проводить целевые научно-исследовательские работы с привлечением специализированных организаций. Глубина разведочных скважин должна превышать глубину заложения подошвы тоннеля на 10-15 м.
При назначении объема инженерно-геологических изысканий необходимо размещать разведочные выработки в зоне влияния строительства и обеспечить получение данных для разработки защитных мероприятий, обеспечивающих сохранность окружающей застройки. Зона влияния проектируемого объекта подземного строительства устанавливается в соответствии с требованиями 5.18.3.3.
Примерные расстояния между скважинами по трассе при выполнении изысканий для первого этапа должны соответствовать таблице 5.1.
Таблица 5.1
|
Категория сложности геологических условий |
Примерное расстояние между скважинами по трассе, м | ||
|
Глубокое заложение |
Мелкое заложение | ||
|
Открытый способ строительства |
Закрытый способ строительства | ||
|
I |
200-250 (300) |
150-200 |
100-120 (200) |
|
II |
80-120 (200) |
100-150 |
80-100 (150) |
|
III |
50-100 |
50-100 |
Менее 80 м* |
|
Примечание - В таблице не учтены объемы бурения для опытно-фильтрационных работ, гидрогеологического мониторинга, инженерно-геологических изысканий на участках строительства стволов шахт, станций, инженерно-геологических аномалий в виде тектонических разломов, погребенных речных долин и участков распространения специфических грунтов. В скобках приведены расстояния между скважинами для I и II категорий сложности при использовании тоннелепроходческих комплексов. Для детально изученных территорий расстояния между скважинами допускается увеличивать на 10%-15% для I и II категорий сложности условий. * Расстояния между скважинами уточняются в процессе проведения изысканий. | |||
5.1.1.7 В результате проведения изысканий и исследований необходимо устанавливать и оценивать:
- геологическое строение (генезис, стратиграфическую принадлежность, залегание, формы избирательной эрозии, состав и состояние пород), геоморфологические, тектонические и неотектонические условия;
- гидрогеологические условия;
- геологические процессы и явления;
- складчатые и разрывные нарушения, трещиноватость пород;
- степень сейсмоопасности;
- геокриологические условия;
- физико-механические и теплофизические свойства грунтов с прогнозной оценкой их изменения под эксплуатационным воздействием метрополитена;
- агрессивность подземных вод и грунтов.
5.1.1.8 При выявлении неблагоприятных для строительства зон следует устанавливать границы их распространения, интенсивность развития, степень влияния на условия строительства и работу сооружения.
5.1.1.9 Показатель степени нарушенности скальных грунтов по методу RQD (отношение суммы ненарушенных кусков керна длиной 10 см и более к длине исследуемого интервала скважины, %) следует принимать по таблице 5.2.
Таблица 5.2
|
Величина RQD |
Состояние грунта |
|
90-100 |
Ненарушенное |
|
45-90 |
Незначительно нарушенное |
|
50-75 |
Слабо нарушенное |
|
25-50 |
Сильно нарушенное |
|
0-25 |
Весьма сильно нарушенное |
5.1.1.10 Скважины, пробуренные в процессе изысканий, подлежат обязательной ликвидации с тампонированием ствола скважины в соответствии с техническими условиями на ликвидацию скважин.
Акты на тампонирование скважин с указанием способа тампонажа выпускаются отдельным отчетом.
5.1.1.11 При попадании разведочных скважин в сечение проектируемых выработок глубокого заложения или на расстояние менее 10 м от контура сооружения акты на тампонаж, координаты скважин направляются в строительную организацию для составления специального проекта производства работ в зоне расположения скважин.
5.1.1.12 При проложении трассы линии метрополитена в плотной городской застройке, природоохранных зонах, на участках с возможным расположением не указанных на геоподоснове коммуникаций, погребенных элементов сооружений (фундаментов, свай и т.п.) и других незадокументированных подземных объектов выполняются геофизические исследования.
Выбор метода геофизических исследований следует устанавливать в "Программе работ" в соответствии с поставленными задачами, плотностью городской застройки, а также с наличием и уровнем помех, возникающих от движения транспорта (шум, вибрация) и воздействия электрических установок.
Результаты геофизических исследований увязываются с данными других исследований и отражаются в отчете.
5.1.1.13 Гидрогеологические исследования обеспечивают получение исходных данных для определения водопритоков в проектируемых сооружениях, размеров будущих депрессионных воронок, способа выполнения строительных работ, оценки возможного барражирования от воздействия строящихся сооружений, направления и скорости движения грунтовых вод, гидростатического давления на обделку, температуры, химического состава и агрессивности подземных вод к материалу конструкции сооружений. С этой целью проводятся опытные наливы, откачки, геофизические исследования и пр.
5.1.1.14 В случае необходимости определения свойств песчано-глинистых грунтов в зоне взаимодействия геологической среды с сооружениями проводятся полевые исследования свойств грунтов (статическое и динамическое зондирование, прессиометрические и штамповые испытания), в том числе с построением кривой нагрузки для определения модуля деформации грунта при повторном нагружении.
5.1.1.15 Комплекс лабораторных исследований физико-механических свойств грунтов приведен в [2]. При необходимости получения дополнительной информации по согласованию с проектной и/или специализированной научно-исследовательской организацией, выполняющей геотехнические расчеты и/или научное сопровождение строительства, проводятся специальные исследования свойств грунтов. Примерный перечень дополнительных физико-механических характеристик грунтов приведен в приложении М.
5.1.1.16 По итогам проведенных изысканий и исследований составляется технический отчет, состав и содержание которого должны соответствовать требованиям СП 47.13330. В заключение отчета должны быть сформулированы рекомендации по инженерно-геологическим условиям проходки тоннелей и предложения о необходимости последующих изысканий, рекомендации по проектированию.
5.1.1.17 Инженерно-геологические изыскания на втором этапе на стадии рабочей документации проводятся с целью детализации сведений об инженерно-геологических условиях, уточнения инженерно-геологической обстановки на участках применения специальных методов работ, подготовки мониторинга геологической среды.
5.1.1.18 В состав изысканий должны входить следующие основные работы:
- сбор, обобщение и анализ инженерно-геологических материалов;
- рекогносцировка местности вдоль трассы;
- плановая разбивка, плановая и высотная привязка выработок и скважин [80] (выполняется в соответствии с указаниями для данного вида работ);
- проходка разведочных выработок;
- опробование грунтов и подземных вод;
- полевые исследования грунтов;
- опытно-фильтрационные работы;
- геофизические исследования;
- лабораторные исследования грунтов и химического состава подземных вод;
- камеральная обработка результатов изысканий и составление отчета.
В районах развития неблагоприятных инженерно-геологических процессов, при необходимости, рекомендуется проводить научно-исследовательские работы с привлечением специализированных организаций.
5.1.1.19 В результате изысканий и исследований необходимо детализировать:
- геологическое строение (условия залегания, состав пород), геоморфологию, тектонику, неотектонику;
- гидрогеологические условия;
- геологические процессы и явления;
- складчатые и разрывные нарушения, трещиноватость пород;
- геокриологические условия;
- физико-механические и теплофизические свойства грунтов;
- агрессивность подземных вод и грунтов;
- температуру подземных вод и грунтов.
Примерные расстояния между скважинами по трассе для второго этапа с учетом скважин, пробуренных на первом этапе, должны соответствовать таблице 5.3.
Таблица 5.3
|
Категория сложности инженерно- геологических условий |
Примерное расстояние между скважинами по трассе, м | ||
|
Глубокое заложение |
Мелкое заложение | ||
|
Открытый способ строительства |
Закрытый способ строительства | ||
|
I |
100-150 (200) |
80-100 |
50-80 (120) |
|
II |
50-100 (150) |
50-80 |
30-50 (100) |
|
III |
30-60 |
30-50 |
Менее 30* |
|
Примечание - В таблице не учтены объемы бурения для опытно-фильтрационных работ, гидрогеологического мониторинга, инженерно-геологических изысканий на участках строительства стволов шахт, станций, инженерно-геологических аномалий в виде тектонических разломов, погребенных речных долин и участков распространения специфических грунтов. В скобках приведены расстояния между скважинами для I и II категорий сложности при использовании тоннелепроходческих комплексов. Для детально изученных территорий расстояния между скважинами можно увеличивать на 10%-15% для I и II категорий сложности. * Расстояния между скважинами уточняются в процессе проведения изысканий. | |||
5.1.1.20 Скважины, пробуренные в процессе изысканий, подлежат обязательной ликвидации с тампонированием ствола скважины в соответствии с техническими условиями на ликвидацию скважин.
Акты на тампонирование скважин с указанием способа тампонажа выпускаются отдельным отчетом.
5.1.1.21 При попадании разведочных скважин в сечение проектируемых выработок глубокого заложения или на расстояние менее 10 м от контура сооружения акты на тампонаж, координаты скважин направляются в строительную организацию для составления специального проекта производства работ в зоне расположения скважин. Глубина разведочных скважин должна превышать глубину заложения подошвы тоннеля на 10-15 м.
5.1.1.22 При прохождении трассы линии в условиях, указанных в 5.1.1.13, выполняются геофизические исследования. Выбор вида геофизических исследований следует определять в соответствии с поставленными задачами, плотностью городской застройки, а также с наличием и уровнем помех, возникающих от движения транспорта (шум, вибрация) и воздействия электрических установок. Результаты геофизических исследований увязываются с данными других исследований и отражаются в отчете.
5.1.1.23 Гидрогеологические исследования обеспечивают получение исходных данных для определения водопритоков в проектируемых сооружениях, размеров будущих депрессионных воронок, способа выполнения строительных работ, оценки возможного барражирования от воздействия строящихся сооружений, гидростатического давления на обделку, определение температуры, химического состава и агрессивности подземных вод к материалу конструкции сооружений. С этой целью проводятся опытные наливы, откачки, химические анализы воды, геофизические исследования, различные виды моделирования.
5.1.1.24 При необходимости определения свойств песчано-глинистых грунтов в зоне взаимодействия геологической среды с сооружениями проводятся полевые исследования свойств грунтов (статическое и динамическое зондирование, прессиометрические и штамповые испытания).
5.1.1.25 Комплекс лабораторных исследований физико-механических свойств грунтов следует проводить в соответствии с СП 47.13330, в случае необходимости получения дополнительной информации по отдельному заданию проводятся специальные исследования свойств грунтов.
5.1.1.26 По итогам проведенных изысканий и исследований составляется технический отчет, состав и содержание которого должны соответствовать СП 11-105 [2], включающий текстовую и графическую части. В заключение отчета должны быть сформулированы рекомендации по проектированию.
5.1.1.27 Инженерно-геологические изыскания в период строительства и эксплуатации должны предоставлять материалы о состоянии и изменениях компонентов геологической среды в сфере ее взаимодействия с тоннелями на основании СП 47.13330.
5.1.1.28 В период строительства следует устанавливать соответствие инженерно-геологических условий, принятых в проектной и рабочей документации, фактическим на основе обследования инженерно-геологической обстановки при проходке тоннелей, шахтных стволов, котлованов и других выработок для оперативного решения вопросов по увязке полученных данных с производством строительных работ. На участках, представляющих опасность в геологическом и инженерно-геологическом отношении (зоны развития карстовых и суффозионных явлений, оползневые процессы, подтопление, зоны развития неустойчивых грунтов и т.д.), в период строительства необходимо предусматривать мониторинг изменения компонентов геологической среды.
5.1.1.29 Результаты инженерно-геологических изысканий в период строительства следует представлять в соответствии с требованиями СП 47.13330 в виде технического отчета, в котором должны быть отражены результаты анализов грунтов, грунтовых вод, геофизических исследований и стационарных наблюдений с приложением зарисовок в масштабе от 1:20 до 1:100.
5.1.1.30 При проектировании реконструкций станций инженерно-геологические изыскания следует проводить по отдельному техническому заданию и программе с учетом особенностей сооружений.
5.1.1.31 В период эксплуатации метрополитенов следует осуществлять локальный мониторинг отдельных компонентов геологической среды на основе сети наблюдательных пунктов для наблюдений за развитием опасных инженерно-геологических процессов, деформациями зданий, земной поверхности. Локальный мониторинг следует осуществлять по программе с применением геодезических и геофизических методов, зондирования и контрольно-измерительной аппаратуры, установленной в несущих конструкциях тоннелей, и расположенных в сфере взаимодействия зданий и сооружений, а также на участках развития геологических и инженерно-геологических процессов.
5.1.2.1 Инженерно-геодезические изыскания должны обеспечивать получение топографо-геодезических материалов и данных о ситуации, рельефе местности (в том числе дна водотоков, водоемов и акваторий), существующих зданиях и сооружениях (наземных, подземных) и других элементах планировки, необходимых для комплексной оценки природных и техногенных условий по проектируемой трассе линии, обоснования проектирования, строительства и эксплуатации метрополитена.
5.1.2.2 Требования к полноте результатов инженерно-геодезических изысканий, цели и задачи таких изысканий, требования к технологии, методике и точности инженерно-геодезических изысканий определяются техническим заданием, требования к составлению которого приведены в [80].
5.1.2.3 Геодезические приборы, используемые для изысканий, должны быть аттестованы и проверены в соответствии с требованиями государственных стандартов.
5.1.2.4 Изыскания на стадии разработки проектной документации следует проводить по всем вариантам проектируемых трасс.
В состав работ должны входить:
- сбор и анализ топографических (инженерно-топографических) карт и планов в масштабах 1:500 - 1:2000, фотопланов (аэро- и космофотопланов), землеустроительных и лесоустроительных планов, материалов изысканий прошлых лет по развитию опорных геодезических сетей, земельного, градостроительного и иных кадастров;
- обследование пунктов государственной геодезической опорной сети и выполнение сгущения или развития ее в случае необходимости;
- обновление топографических карт и планов, если они не соответствуют современному состоянию ситуации, рельефа местности и расположения подземных коммуникаций;
- создание геодезических планово-высотных сетей и выполнение топографической съемки при отсутствии необходимых топографических материалов;
- промеры глубин на реках и водоемах, нивелирование поверхности дна водотоков и составление продольного профиля на исследуемом участке реки и поперечных профилей по промерным створам;
- геодезические работы при изучении опасных природных и техноприродных процессов (карст, склоновые процессы, переработка берегов рек, морей, озер и водохранилищ, а также в случаях подрабатывания и подтопления территории);
- изучение материалов по деформациям оснований зданий и сооружений на земной поверхности, происшедшим до начала строительства;
- рекогносцировочное обследование вариантов трассы и мест расположения сооружений при необходимости визуальных осмотров с целью дополнительной проверки достоверности имеющихся материалов.
Изыскания на стадии разработки проекта должны обеспечивать составление:
- уточненного ситуационного плана в масштабах 1:2000 - 1:500 с указанием на нем существующих и проектируемых внешних коммуникаций, инженерных сетей;
- проекта инженерной подготовки строительных площадок с указанием существующих и подлежащих сносу зданий и сооружений;
- чертежей плана линии и вертикальной планировки территории;
- плана природоохранных мероприятий;
- материалов геодезического обеспечения строительства.
5.1.2.5 Ширину полосы съемки вдоль трассы следует устанавливать с учетом полосы отвода для строительства и природных условий местности, производства инженерно-геологических изысканий и градостроительной ситуации.
5.1.2.6 В технический отчет должны входить:
- общие сведения о физико-географических и геологических особенностях района работ, о топографо-геодезической изученности района изысканий;
- схемы созданной геодезической планово-высотной основы, картограмма топографо-геодезической изученности по трассе строительства, абрисы закрепленных пунктов геодезической планово-высотной основы, а также каталоги их координат и высот;
- планы подземных сооружений;
- планы и продольные профили по вариантам трасс (по согласованию с заказчиком последние допускается не составлять);
- графики наблюдений за оседаниями и деформациями сооружений, земной поверхности;
- сведения о методике и технологии выполненных работ, о проведении технического контроля и приемке работ;
- заключение о результатах работ;
- схемы расположения геологических выработок или выкопировок с карты, каталог координат и высот.
5.1.2.7 Изыскания на стадии разработки рабочей документации должны обеспечить получение дополнительных топографо-геодезических материалов и данных для доработки генерального плана трассы, уточнения и детализации проектных решений.
В состав изысканий входят:
- анализ и доработка материалов, выполненных на предшествующих стадиях проектирования;
- рекогносцировочное обследование участков трассы и сооружений вдоль проектируемой трассы линии;
- при необходимости - полевое трассирование (вынос трассы в натуру);
- планово-высотная привязка трассы к пунктам государственной (опорной) геодезической сети;
- топографическая съемка полосы местности вдоль трассы (съемка текущих изменений при наличии планов) в масштабах 1:1000-1:500, на сложных участках в масштабе 1:200, досъемка переходов, пересечений и вновь появившихся (после уточнений для разработки проекта) инженерных коммуникаций;
- привязка геолого-разведочных скважин, выработок, геофизических и других точек инженерных изысканий;
- инструментальные наблюдения за оседаниями и деформациями зданий, сооружений и земной поверхности до начала строительства;
- составление и размножение инженерно-топографических планов;
- геодезическое обеспечение других видов изысканий;
- составление технического отчета.
5.1.2.8 В состав изысканий для обеспечения строительно-монтажных работ входят:
- определение проектного положения объекта строительства на местности и в подземных горных выработках;
- создание геодезического и маркшейдерского опорного планового и высотного обоснований строительства (ГРО - геодезическая разбивочная основа);
- наблюдения за осадками и деформациями зданий и сооружений на поверхности и подземных сооружений и их частей в процессе строительства, в том числе при выполнении локального мониторинга, за опасными природными и техноприродными процессами;
- геодезическо-маркшейдерские работы по определению в натуре скрытых подземных сооружений и их частей в процессе строительства и при строительстве, ремонтных и других работах;
- составление исполнительных чертежей подземных и наземных сооружений и другой технической документации;
- создание геодезического опорного планового и высотного обоснования до начала строительно-монтажных работ на весь объект (линию) строительства метрополитена;
- создание маркшейдерского опорного планового и высотного обоснования по мере сооружения подземных горных выработок открытого и закрытого способов строительства метрополитена.
5.1.3.1 Инженерно-экологические изыскания (ИЭИ) выполняются в целях оценки состояния окружающей среды в районах предполагаемого сооружения объектов метрополитена, а также для получения исходных данных, необходимых для разработки проектной документации в периоды строительства (реконструкции) и эксплуатации объектов метрополитена.
Не допускаются подготовка и реализация проектной документации без выполнения ИЭИ.
5.1.3.2 ИЭИ выполняются для экологического обоснования строительства объектов метрополитена с целью предотвращения, снижения или ликвидации неблагоприятных экологических и связанных с ними социальных, экономических и других последствий и сохранения оптимальных условий жизни населения, а также для изучения значимых компонентов природной среды при оценке экологической безопасности объектов метрополитена.
5.1.3.3 В соответствии с положениями действующего природоохранного законодательства и нормативных документов, описывающих методики выполнения отдельных видов работ, заказчик и исполнитель определяют состав работ, осуществляемых в ходе ИЭИ, их объем и метод выполнения с учетом специфики соответствующих территорий и расположенных на них земельных участков.
5.1.3.4 Программа и техническое задание инженерно-экологических изысканий разрабатываются согласно СП 11-102 [3].
5.1.3.5 Инженерно-экологические изыскания для строительства должны проводиться в три этапа: подготовительный, полевые исследования, камеральная обработка материалов.
На подготовительном этапе осуществляются сбор и анализ фондовых и опубликованных материалов и данных о состоянии природной среды, предполевое дешифрирование, поиск объектов-аналогов, функционирующих в сходных природных условиях.
На основании технического задания в состав полевых исследований могут быть включены:
- маршрутные наблюдения с покомпонентным описанием природной среды и ландшафтов в целом, состояния наземных и водных экосистем, источников и признаков загрязнения;
- эколого-гидрогеологические исследования;
- почвенные исследования;
- геоэкологическое опробование и оценка загрязненности атмосферного воздуха, почв, грунтов, поверхностных и подземных вод;
- исследование и оценка радиационной обстановки;
- газогеохимические исследования;
- исследование и оценка физических воздействий;
- изучение растительности и животного мира;
- социально-экономические исследования;
- санитарно-эпидемиологические и медико-биологические исследования;
- стационарные наблюдения (экологический мониторинг);
- разминирование, археология, сейсмические исследования.
Геоэкологическое опробование почв, грунтов и подземных вод целесообразно проводить в увязке с инженерно-геологическими изысканиями.
На этапе камеральной обработки материалов проводится комплекс лабораторных исследований, включая химико-аналитические, токсикологические, санитарно-эпидемиологические и др., выполняется анализ полученных данных, осуществляются прогнозы динамики геоэкологического состояния окружающей среды, в том числе оценка теплового влияния многолетней эксплуатации метрополитена на естественный тепловой режим окружающего грунтового массива, разрабатываются рекомендации, составляется технический отчет.
При выполнении эколого-гидрогеологических исследований следует устанавливать:
- наличие водоносных горизонтов, которые могут испытывать негативное влияние в процессе строительства и эксплуатации подземных сооружений и подлежат защите от загрязнения и истощения; области питания грунтовых вод (в случае, если они находятся в зоне возможного негативного влияния проектируемого подземного сооружения) и области разгрузки грунтовых вод, на характеристиках которых может отразиться подземное строительство;
- условия залегания и распространения горизонтов грунтовых вод и их защищенность; состав, фильтрационные и сорбционные свойства грунтов зоны аэрации и водовмещающих пород, их пространственную изменчивость;
- закономерности движения грунтовых вод; наличие и характер гидравлической взаимосвязи между горизонтами и поверхностными водами;
- условия формирования под влиянием проектируемого подземного строительства новых водоносных горизонтов; температуру и химический состав грунтовых вод, их загрязненность вредными компонентами; возможность проникновения в грунтовые воды загрязнений из поверхностных вод;
- влияние изменений в грунтовых водах на охраняемые территории и рекреационные ресурсы города; возможность, характер и степень влияния техногенных факторов на изменение гидрогеологических условий.
5.1.3.6 Отчетная документация о выполнении инженерных изысканий (технический отчет) должна содержать текстовую и графическую части, а также приложения (в текстовой, графической и цифровой формах).
5.1.3.7 При оформлении технического отчета следует руководствоваться положениями СП 47.13330.
5.1.3.8 При строительстве или реконструкции сооружений метрополитена необходимо выполнять экологический мониторинг, обеспечивающий контроль:
- источников выбросов загрязняющих веществ в атмосферный воздух;
- источников сброса загрязняющих веществ в поверхностные воды;
- воздействия образующих отходов;
- состояния загрязнения почв;
- состояния загрязнения подземных вод.
5.2.1 Пропускную способность линии следует принимать не более 40 пар поездов в час.
Для расчета устройств электроснабжения автоматики и телемеханики движения поездов пропускную способность линии следует увеличить на 10%-20% исходя из учета перспективной интенсивности движения.
5.2.2 Число вагонов в поезде необходимо определять для каждого периода эксплуатации.
5.2.3 Пропускную и провозную способность линии на периоды эксплуатации следует определять в зависимости от расчетного числа пассажиров в поезде на перегоне, наиболее загруженном в часы максимальных перевозок (часы пик).
При определении размеров движения на линии в часы пик (число пар поездов в час и число вагонов в поезде) вместимость вагонов следует принимать из расчета, что все места для сидения заняты пассажирами и на 1 м2 свободной площади пола пассажирского салона размещается не более 4,5 стоящих пассажиров (при необходимости данный показатель определяется заказчиком в рамках указанного норматива).
5.2.4 Пропускную способность, поперечные размеры проходов на участках пути движения пассажиров, число входов, пассажирского подъемно-транспортного оборудования, контрольно-пропускных пунктов, касс и кассовых автоматов следует определять расчетом по величине 15-минутного пассажирского потока в часы пик.
Пропускную способность участков пути следует принимать по таблице 5.4.
Таблица 5.4
|
Наименование участка пути |
Ширина пути, м |
Пропускная способность, чел./ч |
|
Горизонтальный путь: | ||
|
одностороннее движение |
1,0 |
4000 |
|
двустороннее движение |
1,0 |
3400 |
|
через дверной проем |
0,8 |
3200 |
|
Контрольный пункт: | ||
|
автоматический на входе |
0,5-1,0 |
1200 |
|
автоматический на выходе |
0,5-1,0 |
2500 |
|
Эскалатор |
1,0 |
8200 |
|
Лестница: | ||
|
одностороннее движение вверх |
1,0 |
3000 |
|
одностороннее движение вниз |
1,0 |
3500 |
|
двустороннее движение вверх и вниз |
1,0 |
3200 |
|
Примечания 1 Пропускная способность пассажирского подъемно-транспортного оборудования, не указанного в настоящей таблице (пассажирских конвейеров, лифтов и др.), принимается по паспортным характеристикам оборудования. 2 Указанная в настоящей таблице пропускная способность горизонтального пути движения пассажиров не относится к движению пассажиров по платформе. | ||
Величину 15-минутного пассажирского потока следует рассчитывать по максимальному пассажирскому потоку, ожидаемому в час пик, с учетом коэффициента неравномерности распределения потока в течение одного часа:
а) для пересадочных и временно конечных станций, для станций, расположенных вблизи железнодорожных и автобусных вокзалов и стадионов, в местах пересечения значительного числа линий городского транспорта, транспортно-пересадочных узлов, сосредоточения предприятий и учреждений - до 1,4;
б) для остальных станций - до 1,2.
Допускается проведение расчетов пассажиропотоков по региональным расчетным методикам.
5.2.5 Пропускная способность участков пути движения пассажирских потоков на станции или переходе между станциями должна быть равнозначна или больше пропускной способности участка с ее минимальным значением.
5.3.1 При сопряжении прямых участков линии радиусы круговых кривых в плане должны быть не менее, м:
- 600 - на главных путях;
- 200 - на съездах станционных путей;
- 150 - на соединительных путях.
В трудных условиях допускается уменьшение радиусов, м:
- до 300 - на главных путях;
- до 100 - на соединительных путях.
5.3.2 Минимальную глубину заложения подземных сооружений следует принимать с учетом защиты верха строительных конструкций от промерзания, а также возможности устройства дорожного покрытия.
5.3.3 Расстояние от поверхности земли до верха конструкций подземной станции должно быть не менее толщины дорожного покрытия и теплоизоляционного слоя.
Над перегонными тоннелями, на участках пересечения магистральных улиц и дорог это расстояние должно быть не менее 3 м. В остальных местах допускается уменьшать расстояние при условии защиты тоннелей от промерзания и возможности устройства над ними дорожного покрытия.
5.3.4 Стрелочные переводы надлежит размещать на прямых участках пути с уклоном не более 5‰; в трудных условиях - с уклоном не более 10‰. Расстояние от начальных точек кривых в плане, а также от вертикальных кривых в профиле до центра стрелочного перевода - не менее 20 м. Расстояние от центра стрелочного перевода до начала платформы станции - не менее 25 м. Стрелочные переводы и перекрестные съезды не должны располагаться на стыках пролетных строений.
5.3.5 Прямые и кривые участки главного пути в плане радиусом 2000 м и менее, а также смежные круговые кривые разных радиусов следует сопрягать посредством переходных кривых, длины которых указаны в таблице 5.5.
Таблица 5.5
|
Главные пути |
Соединительные пути | |||||||||
|
Радиус кривой, м |
Возвышение наружного рельса, мм |
Длина переходной кривой, м |
Скорость движения поездов, км/ч, при непогашенном ускорении, м/с2 |
Радиус кривой, м |
Возвышение наружного рельса, мм |
Длина переходной кривой, м |
Скорость движения поездов, км/ч, при непогашенном ускорении, м/с2 | |||
|
-0,4 |
0 |
+0,4 |
0 |
+0,7 | ||||||
|
3000 |
- |
- |
- |
- |
125 |
600 |
- |
0-60 |
- |
75 |
|
2000 |
10 |
20-30 |
- |
40 |
110 |
500 |
- |
0-60 |
- |
65 |
|
1500 |
20 |
20-40 |
- |
50 |
100 |
400 |
- |
0-60 |
- |
60 |
|
1200 |
40 |
20-50 |
- |
60 |
100 |
350 |
- |
0-60 |
- |
55 |
|
1000 |
60 |
30-70 |
- |
70 |
100 |
300 |
- |
0-60 |
- |
50 |
|
800 |
80 |
40-80 |
30 |
70 |
95 |
250 |
- |
0-60 |
- |
45 |
|
600 |
100 |
50-80 |
40 |
70 |
90 |
200 |
10 |
0-60 |
10 |
45 |
|
500 |
120 |
60-80 |
45 |
70 |
85 |
175 |
30 |
0-60 |
20 |
45 |
|
400 |
120 |
60-80 |
40 |
60 |
75 |
150 |
40 |
0-60 |
20 |
45 |
|
350 |
120 |
60-80 |
40 |
60 |
70 |
125 |
70 |
0-60 |
25 |
45 |
|
300 |
120 |
60-80 |
35 |
55 |
65 |
100 |
110 |
0-60 |
30 |
45 |
|
Примечания 1 Переходные кривые разбиваются по радиоидальной спирали. 2 На главных путях при возможности следует принимать большие значения переходных кривых. 3 В трудных условиях на главных путях длины переходных кривых и величины возвышения наружного рельса следует определять расчетом | ||||||||||
5.3.6 На кривых участках пути, за исключением стрелочных переводов и съездов, путей в границах платформ станций, путей на смотровых канавах укладку наружного рельса следует предусматривать с возвышением над внутренним рельсом.
Возвышение наружного рельса в тоннелях и на закрытых наземных участках необходимо предусматривать путем поднятия наружного рельса на половину требуемой величины возвышения и опускания на ту же величину внутреннего рельса, на открытых наземных участках - путем поднятия наружного рельса на полную величину требуемого возвышения.
При расположении кривой частично в тоннеле и на открытом наземном участке возвышение наружного рельса устраивается так же, как и на кривых, расположенных в тоннелях.
Отвод возвышения наружного рельса должен быть предусмотрен на протяжении переходной кривой, а при отсутствии переходной кривой - на круговой кривой и на прямом участке, примыкающем к круговой кривой, по расчету.
Уклон отвода возвышения наружного рельса должен быть не более 2‰ в сумме на обе рельсовые нити, а для трудных условий - 3‰.
5.3.7 Смежные круговые кривые на главных путях допускается сопрягать без переходных кривых при условии
(5.1)
где R1 и R2 - радиусы первой и второй кривых.
На соединительных путях прямые и кривые участки допускается сопрягать без переходных кривых.
Длина круговой кривой с постоянной величиной возвышения наружного рельса должна быть не менее 15 м.
Длину прямого участка, не имеющего возвышения наружного рельса, следует принимать не менее, м:
а) на главных путях - 20, в трудных условиях - 15;
б) на соединительных путях - 15.
5.3.8 Габариты приближения строений и расстояния между осями смежных путей следует принимать по ГОСТ 23961.
Для двухпутных тоннелей закрытого способа работ расстояния между осями смежных тоннелей и габариты приближения строений следует принимать как для двухпутных тоннелей открытого способа работ без промежуточных опор.
5.3.9 Продольный уклон подземных и наземных участков линий должен быть 3‰, в трудных условиях не менее 2‰. В обоснованных случаях допускается располагать отдельные участки линий на горизонтальной площадке. При этом продольный уклон дна водоотводного лотка должен быть не менее 3‰.
Продольный уклон подземных и закрытых наземных участков линий должен быть не более 40‰, открытых наземных участков - не более 35‰.
В трудных условиях на одном или двух смежных подземных и закрытых наземных участках общей протяженностью не более 1500 м, которые разделены станцией или перегоном протяженностью до 500 м, допускается принимать продольный уклон не более 45‰ с учетом уклона отвода возвышения наружного рельса при его наличии. При необходимости на этих участках скорость движения поездов следует ограничивать с применением технических средств.
Станционные пути, предназначенные для оборота и отстоя поездов, необходимо располагать на уклоне 3‰ с подъемом к станции.
Прямолинейные смежные элементы продольного профиля при алгебраической разности значений уклонов, равной или превышающей 2‰, следует сопрягать в вертикальной плоскости круговыми кривыми радиусами, м:
3000 - на главных путях у станции;
5000 - на главных путях перегонов;
1500 - на соединительных путях.
Для трудных условий допускается уменьшать радиусы вертикальных кривых на главных путях у станций до 2000 м, на перегонах - до 3000 м.
Сопряжение двух элементов продольного профиля, направленных в разные стороны с уклонами, превышающими 5‰, следует выполнять элементом профиля с уклоном не более 5‰.
Длину элемента продольного профиля необходимо принимать не менее расчетной длины поезда на перспективу, за исключением нескольких смежных элементов, направленных в одну сторону, с алгебраической разностью значений уклонов менее 2‰, сумма длин которых должна составлять не менее расчетной длины поезда на перспективу.
Длину прямой вставки между смежными кривыми следует принимать не менее 50 м.
5.3.10 На мостах и эстакадах надлежит принимать такие же сочетания плана и продольного профиля, как и на других участках линии.
5.3.11 На станциях с путевым развитием для оборота и отстоя поездов следует предусматривать один или два станционных пути.
Длину станционного пути необходимо определять как расстояние от центра стрелочного перевода до бруса упора.
Длина станционного пути для оборота поездов и отстоя одного состава в ночное время должна быть больше длины поезда в перспективе на 100 м - для подземных участков, и 135 м - для открытых и приравненных к ним участков.
Длину станционного пути для оборота поездов и отстоя в ночное время нескольких составов следует определять как сумму длин составов в перспективе и расстояний, м:
а) между составами - 5;
б) от состава до бруса упора - 7, при наличии ПТО - 15;
в) от центра стрелочного перевода до первого состава ночного отстоя - 35.
Длину станционного пути за временно конечной станцией на последующем продлении главного пути, предназначенного для отстоя составов, следует определять как сумму длины состава в перспективе и расстояний, м:
а) между составами - 5;
б) от состава до бруса упора - 7;
в) дополнительно, при противошерстном движении поездов по стрелочному переводу на станционный путь - 47, при пошерстном движении - 22.
Длина станционного пути за временно конечной станцией на последующем продлении главного пути должна быть кратной 12,5 м.
Длина предохранительного пути должна быть не менее 135 м, а пути, не используемого для указанной цели, - не менее 47 м, считая от края платформы станции.
При применении других схем станционных путей для оборота и отстоя поездов необходимо соблюдать указанные выше расстояния.
5.3.12 На участке станционных путей, предназначенных для оборота поездов, следует располагать служебную платформу, длина которой должна на 11 м превышать максимальную расчетную длину поезда. Начало платформы следует принимать на расстоянии 25,6 м от центра стрелочного перевода (допускается увеличивать это расстояние с учетом размещения знака ОПВ), высоту платформы 1150 мм от уровня головок рельсов на прямых участках (на кривых - по расчету). Ширину прохода по платформе следует принимать не менее 700 мм на высоте 1500 мм от пола.
При двух станционных путях платформу следует размещать между путями, при обосновании допускается размещать две односторонние платформы.
При одном станционном пути платформу следует размещать с одной стороны.
Островная служебная платформа по всей длине должна иметь ограждение со стороны поезда высотой не менее 1100 мм с разрывом напротив первой и последней пассажирских дверей каждого вагона. Ограждение должно располагаться за пределами габарита приближения оборудования.
Для спуска с платформы в торцах должны быть лестницы шириной в уровне пола платформы не менее 500 мм из негорючих материалов с ограждением высотой 1100 мм. Внизу лестницы должна быть площадка шириной не менее 400 мм и длиной не менее 1000 мм.
При обороте поездов с использованием главного пути временно конечной станции следует предусматривать временную служебную платформу, демонтируемую при продлении линии.
В тупиках следует располагать мусоросборник.
5.3.13 В тупике пункта технического обслуживания по оси одного станционного пути следует предусматривать смотровую канаву.
Дополнительно смотровые канавы на станционных путях выполняются по заданию заказчика.
Размеры канавы должны быть:
а) ширина - 1,2 м;
б) длина между нижними ступенями схода - на 2 м больше максимальной расчетной длины поезда;
в) длина схода в плане - 1,5 м;
г) глубина от уровня головки рельсов в однопутных тоннелях кругового очертания - 1,2 м; в тоннелях прямоугольного очертания и двухпутных тоннелях кругового очертания - 1,4 м.
Допускается смотровую канаву размещать за зоной оборота подвижного состава. Служебная платформа в этом случае может не предусматриваться, но предусматриваются служебные мостики.
В тупиках, временно используемых для оборота и отстоя подвижного состава, смотровую канаву допускается не предусматривать.
5.3.14 В перегонных тоннелях внутренним диаметром 5,2 м и менее, со стороны, противоположной контактному рельсу, следует располагать пешеходную дорожку (для прохода обслуживающего персонала) высотой 0,2 м от уровня головок рельсов по ГОСТ 23961. Пешеходную дорожку допускается прерывать через 300-350 м на длину до 30 м для размещения покилометрового запаса рельсов.
5.4.1.1 Станции необходимо располагать в плане на прямых участках пути, в профиле на односкатном уклоне, равном 3‰. Допускается размещение станции в плане на кривых участках пути радиусом не менее 800 м и на продольном уклоне до 5‰ или на горизонтальной площадке. При этом продольный уклон дна водоотводного лотка должен быть не менее 3‰.
5.4.1.2 Планировочные решения станций и пересадочных сооружений должны обеспечивать организацию движения пассажиров, по возможности, без пересечения их потоков и максимальное снижение скорости воздушного потока от движения подвижного состава.
5.4.1.3 Пассажирские платформы станций проектируются островного и берегового типов.
Длина посадочной части платформы должна не менее чем на 8 м превышать длину поезда на максимальный расчетный период эксплуатации в соответствии с 4.19.
Посадочную часть платформы допускается проектировать с раздвижными автоматическими дверьми. Длину беспроемных участков по концам посадочной части платформ станции следует принимать не более 1/3 длины посадочной платформы и определять из условий, что освобождение пассажирами этого участка должно осуществляться за время не более минимального интервала между поездами и в пределах расчетного времени эвакуации пассажиров со станции.
5.4.1.4 Ширину платформ, коридоров и лестниц следует принимать в соответствии с требованиями раздела 5.2 и таблицы 5.6.
Таблица 5.6
|
Наименование показателя |
Размер, м, не менее |
|
Ширина островной платформы станции: | |
|
мелкого заложения, наземной, надземной, односводчатой глубокого заложения, станции закрытого типа |
10,0 |
|
то же, колонной глубокого заложения |
12,0 |
|
Ширина боковой платформы |
4,0 |
|
Расстояние от края платформы: | |
|
до колонн станций мелкого и глубокого заложения |
1,6 |
|
до пилонов и стен беспроемных частей станции мелкого и глубокого заложения |
2,3 |
|
Ширина проходов между боковыми и средним залами станции пилонного типа |
2,5 |
|
Ширина лестницы между островной платформой и вестибюлем или промежуточным залом |
5,0 |
|
Ширина открытой лестницы с ограждением между этажами производственных, бытовых и других помещений |
0,8 |
|
То же, для закрытой лестницы |
0,9 |
|
Ширина коридоров в производственных, бытовых и других помещениях |
1,2 |
|
Ширина среднего зала станции закрытого типа |
8,0 |
|
Примечание - Размеры показаны до облицовки сооружений. При наличии колонн на боковой платформе ширина участка платформы от линии колонн до боковой стены станции должна составлять не менее 4 м. | |
Расстояние от оси пути до раздвижных автоматических дверей, устанавливаемых на платформах станций, должно быть не менее 1505 мм.
Положение раздвижных дверей станций закрытого типа определяется габаритом приближения строений и оборудования станций закрытого типа в соответствии с пунктом 2.4 ГОСТ 23961-80.
Длина участка в уровне кассового зала в вестибюле от АКП до балюстрады эскалатора должна быть не менее 5 м.
Перед входом на эскалатор должна быть предусмотрена площадка шириной не менее расстояния между наружными краями поручней, длиной не менее 4,5 м.
Высота проходов по оси движения пассажиров должна быть не менее 2,5 м; при обосновании - не менее 2,1 м. При арочном очертании свода высота прохода - не менее 1,7 м в месте опирания арки.
Высота от низа конструкций перекрытия производственных помещений должна определяться в зависимости от технологической необходимости, но не менее 2,2 м. Высота служебных и бытовых помещений должна быть не менее 2,5 м. Высота помещений для размещения оборудования АТДП и связи - не менее 2,75 м; при обосновании допускается местное снижение высоты до 2,1 м.
5.4.1.5 Число вестибюлей станций метрополитена следует определять расчетом в зависимости от величины максимальных расчетных пассажирских потоков.
При проектировании станции с одним вестибюлем в целях перспективного развития следует предусматривать возможность строительства второго вестибюля.
Каждая из станций в пересадочном узле должна иметь для входа и выхода вестибюль, отдельный для каждой станции или общий для нескольких станций.
Для обеспечения безопасной эвакуации людей при чрезвычайных ситуациях допускается вместо второго вестибюля устраивать дополнительный эвакуационный выход со станции.
5.4.1.6 Пассажирское подъемно-транспортное оборудование на станциях (внутри вестибюлей, с уровня платформы на пересадку, с уровня платформы на уровень вестибюлей) и в коридорах между станциями следует предусматривать:
- при высоте более 4 м и до 5,5 м - только для подъема пассажиров;
- при высоте более 5,5 м - для подъема и спуска пассажиров.
В подуличных пешеходных переходах, имеющих входы в подземные вестибюли станций метрополитена, продольный уклон пола тоннеля должен быть не более 40‰, поперечный уклон - не более 10‰. При суммарной высоте подземных лестниц пешеходных переходов от уровня входа в вестибюль до уровня поверхности земли более 6 м следует предусматривать устройство пассажирского подъемно-транспортного оборудования.
Допускается увеличение высоты подъема и спуска до 5,5 м без устройства пассажирского подъемно-транспортного оборудования при реконструкции станций или по заданию заказчика.
Число эскалаторов на станции необходимо определять исходя одновременно из следующих условий:
1) в обычном эксплуатационном режиме:
- пропуск максимального расчетного потока пассажиров;
- вывод одного эскалатора в ремонт;
2) в режиме эвакуации пассажиров в экстремальных случаях:
- пропуск максимального расчетного потока пассажиров в режиме их эвакуации со станции;
- вывод одного эскалатора в ремонт;
- остановка одного эскалатора по непредвиденным причинам.
При этом для станции с одним вестибюлем число эскалаторов следует предусматривать по расчету, но не менее четырех.
Для станции с двумя вестибюлями число эскалаторов принимается по расчету.
При реконструкции станции со строительством второго вестибюля число эскалаторов принимается по расчету.
В пересадочном сооружении, не имеющем разделения пассажирских потоков по направлениям, число эскалаторов следует принимать по расчету, но не менее четырех; при разделении потоков - по расчету, но не менее двух в каждом направлении.
5.4.1.7 В пассажирских помещениях и помещениях с постоянным пребыванием эксплуатационного персонала станций глубокого заложения следует предусматривать водоотводящие зонты при расположении помещений под сводом обделки.
От зонтов и из-за пространства между стенами и конструкциями декоративной облицовки помещений, выполняемыми на относе, следует предусматривать отвод воды в общую водоотводящую сеть. Необходимо обеспечить возможность проветривания пространства между зонтом и несущей конструкцией.
В производственных помещениях станций глубокого заложения, предназначенных для размещения электрооборудования, аппаратуры АТДП, связи и управления, следует предусматривать:
1) в ТПП - устройство металлических водоотводящих зонтов;
2) в БТП при расположении оборудования в помещениях верхнего этажа - устройство водоотводящих зонтов из негорючих материалов; при расположении оборудования в помещениях нижнего или промежуточного этажа - устройство металлоизоляции над помещениями.
В производственных помещениях станций мелкого заложения и наземных станций, предназначенных для размещения электрооборудования, аппаратуры АТДП, связи и управления, следует предусматривать:
1) в СТП - устройство металлических водоотводящих зонтов-желобов из негорючих материалов над РУ 10 кВ и РУ 825 В;
2) в БТП и технических помещениях вестибюлей - устройство металлоизоляции над помещениями верхних и промежуточных этажей;
Для защиты электрооборудования от пыли и влаги щитовые инженерно-технических установок, расположенные в потоке воздуха, необходимо размещать по возможности в отдельных помещениях.
Для тех же помещений, расположенных под междуэтажными перекрытиями, следует предусматривать зонты и/или гидроизоляцию в конструкции полов над ним.
5.4.1.8 Для покрытия полов в пассажирских помещениях необходимо применять полированные плиты, на площадках и ступенях лестниц, в подуличных пешеходных переходах - плиты из горных пород или искусственных материалов, имеющие шероховатую структуру, препятствующую скольжению.
Применяемые для облицовки полов в пассажирских помещениях материалы должны иметь прочность на сжатие не менее 60 МПа и по истираемости - не более 0,5 г/см2.
Полы должны иметь уклон в сторону водоприемных устройств.
5.4.1.9 Лестницы для движения пассажиров следует принимать с уклоном 1:3; в отдельных случаях - с увеличением уклона, но не более 1:2,6.
Ширину проступи ступеней следует принимать не менее 30 см и не более 36 см.
Число ступеней в одном лестничном марше или на перепаде уровней необходимо принимать не менее трех и не более 18.
В проходах из среднего зала к пересадочному коридору над путями и в других обоснованных случаях допускается уклон лестниц 1:2 и число ступеней в одном лестничном марше не более 22.
Лестницы на путях следования пассажиров должны быть оборудованы согласно ГОСТ Р 51261.
5.4.1.10 Вестибюли станций следует принимать наземного или подземного типа исходя из градостроительных условий. Для надземных станций допускается принимать надземные вестибюли.
Лестничные сходы в подуличные пешеходные переходы, примыкающие к подземным вестибюлям, рекомендуется закрывать павильонами.
На входах в вестибюли надлежит предусматривать тамбуры с двумя рядами дверей, на входах в павильоны следует предусматривать один ряд дверей.
5.4.1.11 С каждой стороны улицы в одном из лестничных сходов в пешеходный переход и на лестничном сходе из кассового зала на платформу при отсутствии лифта необходимо предусматривать возможность движения пассажиров с детскими колясками.
5.4.1.12 В подуличных пешеходных переходах с открытыми лестничными сходами участок примыкания вестибюля следует отделять перегородками с одним рядом дверей.
5.4.1.13 Перед входом (выходом) в наземный или сходом в подземный вестибюль должна быть обогреваемая площадка высотой 12-15 см от максимальной отметки вертикальной планировки тротуара. В местах, подверженных затоплению при дождях или авариях водоводов, высоту площадки следует определять расчетом. Между площадкой и тротуаром необходимо предусматривать пандус для детских колясок.
5.4.1.14 Около вестибюлей с эскалаторами следует предусматривать площадку для временного складирования узлов эскалаторов с возможностью подъезда автотранспорта.
5.4.1.15 Для сбора воды и грязи необходимо предусматривать приямки:
а) в подуличных пешеходных переходах - у нижней ступени лестничного схода;
б) в наземном вестибюле - в теплой зоне;
в) на платформе станции мелкого заложения - у нижней ступени лестницы из кассового зала вестибюля.
Минимальные размеры решеток по пути движения пассажиров следует принимать для:
а) 1 м; б) 3 м; в) 0,5 м.
Решетки следует устанавливать по всей ширине лестничных маршей.
Ширина щелей в решетках должна быть не более 15 мм.
5.4.1.16 В пассажирской зоне вестибюля следует размещать:
- АКП на входах и выходах;
- кассовый блок и/или автоматы по продаже билетов (АПБ);
- автоматы проверки для числа поездок/срока действия проездных билетов;
- кабину контролера, оборудуемую средствами контроля за работой АКП, устройствами связи, громкоговорящего оповещения и электроотопления;
- барьеры у эскалаторов с перекрывателями движения и лестниц для направления пассажиропотоков;
- автоматы для продажи проездных документов;
- пульт управления эскалаторами рядом с эскалатором со стороны входа в машинное помещение;
- шкафы с пожарными и поливочными кранами;
- схему линий метрополитена, правила пользования метрополитеном;
- элементы визуальной информации пассажиров;
- часы, громкоговорители, видеокамеры, телефонные аппараты или переговорные устройства различных видов связи;
- пост управления транспортной безопасностью и пункт досмотра;
- оборудование для досмотра пассажиров и багажа и иные технические средства обеспечения транспортной безопасности;
- перекрыватели движения у эскалаторов;
- пульт управления эскалаторами в непосредственной близости от эскалатора;
- информационный терминал (ИТ).
В уровне платформы станции следует размещать:
- кабину дежурного у эскалаторов, оборудованную пультом остановки эскалаторов, экранами видеонаблюдения, устройствами связи, громкоговорящего оповещения и электроотопления. При невозможности установки кабины, следует предусматривать отдельное помещение дежурного по эскалаторам;
- кабину дежурного по приему и отправлению поездов на конечных станциях и станциях с путями в электродепо, оборудованную устройствами связи и электроотопления;
- барьеры у эскалаторов с перекрывателями движения для направления пассажиропотоков;
- визуальную информацию для пассажиров;
- видеокамеры, громкоговорители, телефонные аппараты ОТС;
- шкафы для инвентарных огнетушителей;
- шкафы с пожарными и поливочными кранами;
- пульт управления эскалаторами;
- обзорные зеркала, мониторы заднего вида у головной кабины управления поезда;
- сходные устройства на каждый путь в концах платформы;
- ограждающие барьеры у дверей входа в перегонные тоннели;
- скамьи для отдыха;
- две кабины для машинистов электропоездов, производящих оборот подвижного состава на конечных станциях и станциях зонного оборота;
- переговорные устройства различных видов связи;
- выносные посты громкоговорящего оповещения в каждом торце станции;
- устройства информирования пассажиров о маршруте следования поездов:
- табло отсчета обратного времени - в конце перрона,
- табло отсчета времени до прибытия поезда (для вилочного движения),
- в торцах со стороны головы поезда - интервальные часы, торцевые часы, повторители интервальных часов и табло отсчета обратного времени.
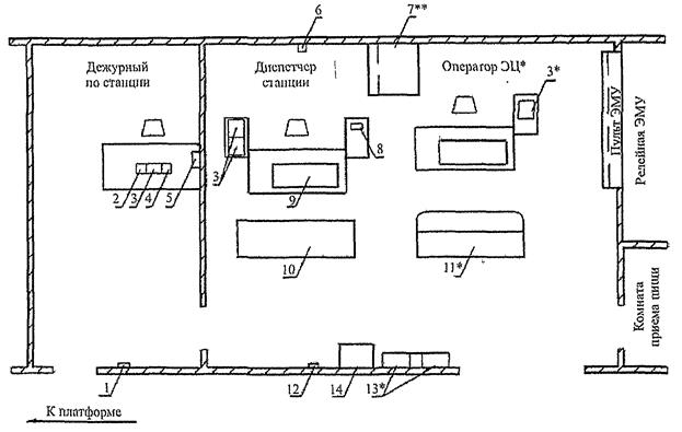
Требования по проектированию блоков служебных и технологических помещений устанавливаются заказчиком в задании на проектирование, исходя из потребностей строящегося метрополитена, с учетом его перспективного развития и с использованием требований таблицы Н.3.
5.4.1.17 Служебный мостик за торцом платформы станции должен иметь ширину прохода не менее 0,75 м на уровне 1,5 м от пола ограждение, исключающее возможность проникновения в тоннель посторонних лиц, на всю длину высотой 2,1 м, при необходимости иметь съемные элементы в месте входа в коридор блока производственных помещений.
Открывание двери мостика следует предусматривать в сторону платформы.
Для спуска с мостика или с платформы станции в тоннель необходимо предусматривать лестницу 2-го типа из негорючих материалов с ограждением высотой 1,2 м. Ширину марша лестницы при входе на мостик или платформу следует принимать не менее 0,7 м, ширину проступи - не менее 25 см, высоту ступени - не более 22 см.
5.4.1.18 Скамьи для отдыха, размещаемые на платформе, не должны затруднять движение пассажиров.
5.4.1.19 Места для хранения и подзарядки поломоечных машин, подъемного оборудования, лестниц и вышек в уровнях кассовых залов и платформ следует предусматривать вне пределов пассажирских помещений.
5.4.1.20 Отделку помещений с постоянным пребыванием персонала следует предусматривать согласно СП 44.13330 и нормам пожарной безопасности с применением антибактериальных красок.
Для отделки потолков и стен помещений ДПС, медицинского пункта, машиниста эскалаторов, пункта смены машинистов, кассового блока, помещения персонала участков службы сигнализации и связи следует применять звукопоглощающие материалы.
Прочность элементов помещений, возводимых из легких материалов, должна обеспечивать возможность крепления к ним технологических коммуникаций (венткоробов, кабелей, труб, канализационных устройств и т.д.).
5.4.1.21 Полы в производственных помещениях и коридорах необходимо предусматривать из негорючих и нетоксичных материалов с высокой степенью сопротивляемости истиранию и низким уровнем водопоглощения.
Полы во всех помещениях должны выдерживать нагрузку не менее 5 кН/м2, в производственных помещениях - с учетом нагрузки от устанавливаемого в них оборудования.
5.4.1.22 Двери во всех помещениях необходимо применять однотипные.
Размеры дверей должны приниматься из учета эксплуатационных требований, условий транспортирования размещаемого в них оборудования и соответствовать требованиям раздела 5.16.
Двери помещений оборудуются замками и устройствами для самозакрывания.
Дверь в кассовый блок следует предусматривать металлической, с двумя замками, цепочкой и "глазком". С внутренней стороны дверь в кассовый блок необходимо дополнительно ограждать решетчатой металлической дверью.
Двери на всех путях движения пассажиров должны быть открывающимися в обе стороны, прозрачными, из ударопрочного материала, габаритами прохода в свету не менее: высотой 2,2 м, шириной 0,8 м. Нижняя часть дверей должна быть защищена противоударной полосой шириной 0,3 м. На поверхность прозрачных дверей наносится контрастная маркировка, низ которой располагается на уровне 1,5 м от пола.
Двери вестибюлей, ведущие наружу, должны иметь приспособления для фиксации в открытом положении. При необходимости устройства тамбура расстояние между рядами дверей должно быть не менее 2,2 м.
5.4.1.23 В помещениях с постоянным пребыванием персонала и в производственных помещениях АТДП и связи прокладка транзитных технологических коммуникаций (венткоробов, труб, кабелей) не допускается.
5.4.1.24 Станции и подходы к ним следует оборудовать системой визуальной информации пассажиров в виде указателей, символов и электронных табло.
Указатели следует размещать по направлению движения пассажиров:
- перед входом (выходом) в подземный вестибюль из пешеходного перехода;
- вверху и внизу перед эскалатором (лестницей) из кассового зала вестибюля на платформу станции и в пересадочное сооружение;
- на платформе станции в среднем зале и в проходах между пилонами (колоннами) на станциях глубокого заложения.
По длине станции, с каждой стороны направления движения поездов, следует размещать не менее двух маршрутных схем линии с указанием пересадок на станции других линий.
На порталах лестниц в пешеходные переходы, примыкающие к подземным вестибюлям станций, на павильонах над лестничными сходами, на наземных вестибюлях и лифтовых павильонах следует устанавливать светящиеся символы - букву "М" - и название станции.
5.4.1.25 Для транспортирования крупногабаритного оборудования эскалаторов из машинного помещения на поверхность земли или на путь линии следует предусматривать ходки и шахту с подъемно-транспортным устройством грузоподъемностью не менее веса главного вала эскалатора и площадкой для обслуживания этого устройства.
При расположении выхода шахты на поверхность земли в месте, удобном для подъезда автотранспорта и проведения такелажных работ, допускается доставка оборудования через шахту с помощью крана. Конструкция выхода должна быть сборно-разборной и иметь гидроизоляцию.
Для транспортирования оборудования через вестибюль или средний зал станции в перекрытии машинного зала следует предусматривать съемные плиты перекрытия, а для мелкого оборудования - люк размерами не менее 1,5x2 м.
5.4.1.26 На станциях метрополитена следует применять обходные кабельные тоннели (коллекторы), рассчитанные на прокладку основного потока кабелей. Эти тоннели необходимо соединять с пристанционными сооружениями и перегонными тоннелями. Допускается не проектировать обходные кабельные тоннели исходя из конструктивных решений станций.
Обходные кабельные тоннели в местах соединения с пристанционными сооружениями и перегонными тоннелями должны иметь противопожарные перегородки и двери согласно 5.16.
5.4.1.27 Ступени лестниц на путях движения пассажиров должны быть ровными, без выступов, иметь шероховатую структуру, препятствующую скольжению. Край первых ступеней лестниц при спуске и подъеме, в том числе крайних ступеней между площадками на лестничных маршах, необходимо выделять полосами яркой контрастной окраски желтого цвета.
5.4.2.1 Перегонные тоннели в зависимости от глубины заложения, инженерно-геологических условий, типа принятых конструкций обделки и способов сооружения следует предусматривать однопутными либо двухпутными кругового, подковообразного или прямоугольного очертания. Они должны иметь внутренние размеры, обеспечивающие пропуск поездов, а также размещение в них путевых устройств, служебных мостиков, оборудования, светильников, кабельных коммуникаций и др.
5.4.2.2 Тоннельные сооружения должны отвечать требованиям ГОСТ 23961.
Расположение и внутренние размеры притоннельных сооружений производственного назначения, дополнительных выходов на поверхность земли и зон коллективной защиты пассажиров, а также проходов между однопутными перегонными тоннелями должны устанавливаться исходя из их назначения с учетом технологических и эксплуатационных требований, градостроительной ситуации и обеспечения пожарной безопасности.
5.4.2.3 При расположении перекрытия тоннелей выше глубины промерзания необходимо предусматривать его теплоизоляцию. На припортальных участках, где в наиболее холодный месяц температура внутреннего воздуха будет ниже 0°С, теплоизоляцию допускается не предусматривать.
Материал и толщину изоляции следует принимать по расчету.
Защиту порталов в зависимости от климатических условий следует предусматривать в соответствии с 5.8.2.22.
На открытых наземных участках линий следует предусматривать освещение и сплошное ограждение высотой не менее 2,5 м.
5.4.2.4 В тоннелях, перед примыканием к ним притоннельных сооружений и в местах расстановки составов на ночной отстой, следует предусматривать служебные мостики.
5.4.2.5 Внутреннюю поверхность чугунных тюбингов обделок тоннелей необходимо покрывать водостойкими негорючими составами светлых тонов на длине по 50 м от торцов станций по условиям лучшей видимости машинистами метропоездов.
5.4.2.6 В тоннелях надлежит размещать сигнальные знаки.
5.4.2.7 Для прохода обслуживающего персонала между однопутными тоннелями следует предусматривать соединительные сбойки. Шаг сбоек должен быть не более 1000 м.
Ширина прохода в сбойках должна быть не менее 1,5 м, высота - не менее 2,0 м, ширина дверного проема - не менее 1,0 м.
5.4.2.8 При остановке поезда по техническим причинам на длительный период в перегонном тоннеле эвакуация пассажиров осуществляется через первый и последний вагоны по верхнему строению пути до ближайшей станции.
5.4.2.9 Конструкции дверей, ведущих в притоннельные сооружения, их запирающих и фиксирующих устройств должны быть устойчивыми при воздействии на них длительных знакопеременных нагрузок, возникающих от "поршневого" действия поездов. Открывание дверей должно предусматриваться внутрь помещений.
5.4.2.10 В перегонных тоннелях следует предусматривать установку надежно закрепленных контейнеров для мусора на расстоянии не более чем через 200 м.
5.5.1.1 При новом проектировании и реконструкции объектов метрополитена следует предусматривать для инвалидов и маломобильных групп населения (МГН) технические средства или мероприятия, обеспечивающие передвижение в пассажирских зонах и в тоннелях при эвакуации из поезда, остановившегося на перегоне, в соответствии с требованиями нормативных документов.
5.5.1.2 Система средств информационной поддержки должна быть обеспечена на всех путях движения, доступных для инвалидов и МГН на все время эксплуатации. В системе визуальной информации пассажиров следует предусматривать световые и цветовые указатели и символы, а также электронные табло с изменяемой информацией.
5.5.1.3 На станциях следует предусматривать технические устройства или мероприятия для доставки МГН с поверхности на уровень пассажирской платформы (лифты, доступные для МГН, подъемные платформы для инвалидов с вертикальным или наклонным перемещением, пандусы и др.).
5.5.2.1 На каждой станции или ином объекте метрополитена, предназначенном для пассажиров, должен быть как минимум один вход, приспособленный для МГН, с поверхности земли и из каждого доступного для инвалидов и МГН подземного или надземного перехода, соединенного с этой станцией или другим пассажирским объектом.
5.5.2.2 Тактильные средства, выполняющие предупредительную функцию на покрытии пешеходных путей на прилегающем к объекту метрополитена участке, следует размещать не менее чем за 0,8 м до начала опасного участка, изменения направления движения, входа и т.п. Правила применения, назначение, места расположения тактильных средств должны соответствовать требованиям норм.
5.5.2.3 Продольный уклон пути движения, по которому возможен проезд МГН на креслах-колясках, не должен превышать 5%. В исключительных случаях допускается увеличивать продольный уклон до 8% на протяжении не более 10 м. Поперечный уклон пути движения следует принимать в пределах 1%-2%.
5.5.2.4 На путях движения МГН не допускается применять вращающиеся двери и вращающиеся турникеты.
5.5.2.5 В каждом ряду турникетов входа/выхода метрополитена следует предусматривать не менее одного расширенного прохода шириной не менее 0,9 м в свету, позволяющего проезд кресла-коляски.
5.5.2.6 Прозрачные двери и ограждения следует выполнять из ударопрочного материала. На прозрачных полотнах дверей следует предусматривать яркую контрастную маркировку желтого цвета в виде прямоугольника высотой не менее 0,1 м и шириной не менее 0,2 м или круга диаметром 0,15 м, расположенную на уровне не ниже 1,2 м и не выше 1,5 м от поверхности пешеходного пути. Нижняя часть стеклянных дверных полотен на высоту не менее 0,3 м от уровня пола должна быть защищена противоударной полосой.
5.5.2.7 Ширина дверных и открытых проемов в стене на пути следования МГН должна быть не менее 0,9 м. Дверные проемы не должны иметь порогов и перепадов высоты пола. При необходимости устройства порогов их высота или перепад высоты не должны превышать 0,014 м, точность остановки лифтов для МГН не должна превышать 0,010 м.
5.5.2.8 Глубина пространства для маневрирования кресла-коляски перед дверью при открывании "от себя" и "к себе" должна быть не менее 2,2 м при ширине не менее 2,2 м.
5.5.2.9 При наличии контроля на входе следует предусматривать контрольные устройства, приспособленные для пропуска тех категорий МГН, для которых будет доступен данный объект.
5.5.2.10 Участки пола на путях движения на расстоянии 0,6 м перед дверными проемами и входами на лестницы и пандусы, а также перед поворотом коммуникационных путей должны иметь предупредительную рифленую и/или контрастно окрашенную поверхность. Тактильные поверхности покрытий полов должны обеспечивать возможность их быстрого распознавания, а также уборки (очистки). Они не должны самопроизвольно сдвигаться, зацепляться и задираться обувью или средствами реабилитации. Правила применения, назначение, места расположения тактильных средств должны соответствовать требованиям норм.
5.5.2.11 Покрытие участка платформ шириной 60 см от края следует предусматривать термообработанным гранитом с шероховатой поверхностью. На расстоянии 60 см от края платформы необходимо укладывать полосу из контрастного материала шириной 10 см, на расстоянии 120 см - полосу гранита с шероховатой поверхностью со снятыми фасками, выступающую на 5 мм из плоскости пола, для обеспечения ориентации на платформе слабовидящих и слепых пассажиров.
5.5.3.1 Подземные переходы метрополитена следует оборудовать пандусами или подъемными устройствами для МГН. Ширина одностороннего пандуса должна быть не менее 1,3 м, двустороннего - 1,8 м. В исключительных случаях допускается предусматривать винтовые пандусы. Пандусы в своих верхней и нижней частях должны иметь свободное пространство размерами не менее 1,5х1,5 м.
С каждой стороны улицы в одном из лестничных сходов в пешеходный переход должна быть предусмотрена зона шириной 1 м оборудованная аппарелями, для движения пассажиров с детскими колясками.
5.5.3.2 Пандусы, специальные подъемные устройства и лестницы на путях следования МГН должны выполняться и оборудоваться в соответствии с СП 59.13330.
5.5.3.3 Лестницы на путях следования инвалидов и МГН должны по обе стороны оборудоваться поручнями. Поручни следует предусматривать на высоте 0,7 и 0,9 м, отстоящие от стены на 40 мм, круглого или прямоугольного сечения, удобного для охвата рукой.
Поручни должны быть непрерывными по всей высоте лестницы или пандуса. Концы поручней должны быть округленными и гладкими, исключающими травмирование.
5.5.3.4 Лестницы допускается дублировать не только пандусами, но и другими средствами подъема (подъемными платформами для инвалидов, лифтами, доступными для МГН, и т.п.).
Поручни пандусов и лестниц должны соответствовать техническим требованиям к опорным стационарным устройствам по ГОСТ Р 51261.
5.5.3.5 Исключен с 25 июня 2020 г. - Изменение N 4
5.5.4.1 На станциях мелкого заложения лифт на платформу станции при технической возможности следует предусматривать непосредственно с поверхности земли в наиболее доступном для инвалидов месте. Над входом в лифт необходимо устраивать павильон или встраивать его в другие здания или сооружения.
При отсутствии возможности предусмотреть лифт с поверхности земли на платформу на станциях мелкого заложения следует предусматривать лифт на платформу станции с уровня кассового зала вестибюля, а на лестницах с каждой стороны пешеходного перехода, примыкающего к вестибюлю с лифтом, устанавливать подъемные платформы для инвалидов или лифты рядом с лестницей.
5.5.4.2 Для обеспечения доставки инвалидов на станциях глубокого заложения возможно использовать эскалаторы с применением мер организационного характера. При наличии технической возможности и по заданию заказчика в рамках "разумного приспособления" в соответствии с СП 59.13330 допускается предусматривать лифт, доступный для МГН, с поверхности земли в уровень платформы или в коридор, размещаемый в промежуточном уровне, и подъемную платформу для инвалидов из коридора на платформу.
5.5.4.3 Выбор и установку лифтов, доступных для МГН, и подъемных платформ для инвалидов следует предусматривать в соответствии с требованиями ГОСТ 5746, ГОСТ 33652, ГОСТ Р 55555, ГОСТ Р 55556.
5.5.4.4 Лифтовые холлы оборудуются системой управления доступа, ограничивающей категории пользователей.
5.6.1.1 Ограждающие и внутренние несущие конструкции подземных сооружений, а также материалы архитектурной отделки должны отвечать требованиям прочности, долговечности, пожарной безопасности, устойчивости к различным воздействиям внешней среды в соответствии с действующими нормативными документами.
Принимаемые технические решения, конструкции и материалы должны обеспечивать срок службы тоннельных обделок не менее 100 лет.
5.6.1.2 Тип обделки следует принимать на основе сравнения вариантов. При этом необходимо учитывать совместную работу обделок с окружающим грунтом.
5.6.1.3 Обделки должны быть замкнутыми и состоять из железобетонных или металлических (чугунных, стальных с антикоррозионной защитой и др.) элементов, из монолитного бетона, железобетона или набрызг-бетона.
5.6.1.4 Подземные сооружения должны быть защищены от проникновения поверхностных и грунтовых вод и других жидкостей.
5.6.1.5 При проектировании сооружений, возводимых закрытым способом, следует применять высокоточную сборную железобетонную обделку.
Допускается применять обделку из чугунных тюбингов в следующих условиях:
- в несвязных водоносных грунтах и слабых (текучих, текучепластичных и мягкопластичных) глинистых грунтах;
- в водоносных грунтах с гидростатическим давлением на конструкцию свыше 0,15 МПа (1,5 кгс/см2);
- при притоках воды в забой свыше 20 м3/ч;
- для вентиляционных шахт и тоннелей, эксплуатируемых при знакопеременных температурах, а также для перегонных тоннелей по 200 м в обе стороны от примыкания вентиляционных тоннелей;
- в непосредственной близости от других сооружений метрополитена, путей железных дорог, трамвайных линий, а также коммуникаций и сооружений подземного хозяйства, когда применение нечугунной обделки создает опасность их повреждения;
- на отдельных участках длиной менее 25 м, когда это вызывается технической необходимостью, связанной с производством работ (прорезные кольца, монтажные камеры, короткие притоннельные сооружения и др.) или с укладкой колец для устройства примыкания притоннельных сооружений.
Обделки перегонных тоннелей необходимо предусматривать внутренним диаметром не менее 5,1 м, за исключением тоннелей в несвязных водоносных или слабых глинистых грунтах, переходных участков с глубокого на мелкое заложение и участков тоннелей, сооружаемых методом продавливания, где следует предусматривать обделки внутренним диаметром не менее 5,4 м.
При проектировании обделок тоннелей, сооружаемых щитовыми комплексами с активным пригрузом забоя в сложных инженерно-геологических и гидрологических условиях, следует применять сборные обделки кругового очертания из железобетонных блоков высокой точности изготовления с прокладками в стыках из эластичного материала по контуру каждого блока.
Форма блоков должна обеспечивать использование обделки как для прямолинейных участков трассы, так и для кривых в плане и профиле.
5.6.1.6 Сборные обделки смежных станционных и других расположенных в зоне взаимного влияния тоннелей, в нескальных грунтах, а также тоннелей, располагаемых на расстоянии менее 2 м от подстилающих водоносных песчаных или слабых глинистых грунтов, должны иметь конструктивные связи растяжения.
5.6.1.7 При проектировании обделок тоннелей в несвязных водоносных или слабых глинистых грунтах, на переходных участках с глубокого на мелкое заложение сборные обделки следует предусматривать с постоянными продольными и поперечными связями растяжения и перевязкой швов, обеспечивая их долговечность.
5.6.1.8 Сборную железобетонную обделку с цилиндрическими стыками допускается применять в устойчивых связных грунтах, оказывающих упругий отпор, при гидростатическом давлении на конструкцию не выше 0,05 МПа (0,5 кгс/см2).
5.6.1.9 Эскалаторные тоннели следует изготавливать из чугунных тюбингов, высокоточных железобетонных элементов с продольными и поперечными связями растяжения и перевязкой швов или из монолитного железобетона с гидроизоляцией.
5.6.1.10 Внутренние несущие конструкции станций и других подземных сооружений следует изготавливать (предпочтительно) из монолитного или сборного железобетона, а также из армометаллоблоков. Применение стальных конструкций допускается в сооружениях, возводимых закрытым способом, для:
- станционных колонн и перемычек, прогонов, затяжек и элементов их соединений;
- гидроизоляции наиболее ответственных узлов конструкций;
- сопряжений сборных обделок тоннелей различных диаметров;
- отдельных элементов реконструируемых сооружений в сложных инженерно-геологических условиях.
5.6.2.1 Материалы для обделок и их гидроизоляции, для внутренних строительных конструкций, а также отделочные материалы должны отвечать требованиям прочности, долговечности, пожарной безопасности, устойчивости к химической агрессивности грунтовых вод, другим выявленным видам агрессивного воздействия внешней среды, в том числе к воздействию микроорганизмов, не должны выделять токсичных соединений в условиях строительства и эксплуатации сооружений.
5.6.2.2 Бетонные и железобетонные несущие конструкции следует предусматривать из тяжелых бетонов по ГОСТ 26633. Допускается применение бетонов плотностью не ниже 1600 кг/м3 на искусственных и природных пористых заполнителях.
5.6.2.3 Классы бетона по прочности на сжатие для обделок, их элементов и внутренних бетонных и железобетонных конструкций следует принимать на основании необходимой по расчетам несущей способности, но не ниже указанных в таблице 5.7.
Таблица 5.7
|
Вид конструкции |
Класс бетона, не менее |
|
Железобетонные блоки сборных обделок для закрытого способа работ |
В40 |
|
Железобетонные элементы обделок для открытого способа работ (включая цельносекционные), несущих конструкций "стена в грунте" и внутренних конструкций, армированные буронабивные сваи ограждений котлованов |
В30 |
|
Железобетонные и бетонные монолитные обделки, бетонные монолитно-прессованные обделки |
В25 |
|
Ограждающие конструкции для крепления котлованов, внутренние монолитные железобетонные конструкции открытого способа работ |
В20 |
|
Жесткое основание пути, путевой бетонный слой верхнего строения пути, бетонное основание под полы, бетон для водоотводящих и кабельных лотков, бетонные подготовки под гидроизоляцию, нормированные буронабивные сваи ограждений котлованов |
В15 |
5.6.2.4 Проектную марку бетона обделок по водонепроницаемости необходимо принимать по таблице 5.41.
5.6.2.5 Проектную марку бетона обделок и внутренних конструкций по морозостойкости в зонах знакопеременных температур следует принимать по таблице 5.42.
При отсутствии знакопеременных температур проектные марки бетона обделок по морозостойкости не должны быть ниже F100.
5.6.2.6 Железобетонные водосборники (зумпфы ВОУ, ямы для очистки ног) следует выполнять без внутренней гидроизоляции из бетона класса не ниже В25, марки по водонепроницаемости W10, марки по морозостойкости F300 в солях. При обосновании допускается применение бетонов по таблицам 5.41 и 5.42 с устройством внутренней гидроизоляции с усиленной защитой от механических воздействий.
5.6.2.7 Армирование конструкций следует выполнять с применением стержневой (по СП 63.13330) и/или дисперсной (фибровой) арматуры.
5.6.2.8 Характеристики чугуна тюбинговых обделок из серого литейного чугуна должны соответствовать ГОСТ 1412, из высокопрочного чугуна - ГОСТ 7293.
5.6.2.9 Нормативные и расчетные сопротивления проката для стальных конструкций и отливок из серого чугуна разных марок принимаются по СП 16.13330.
5.6.2.10 Требования к проектированию конструкций с дисперсным армированием приведены в [77] и [78].
5.6.3.1 При закрытом способе работ обделки должны быть кругового или сводчатого очертания. Очертания стен и сводов должны определяться расчетом.
Пустоты за обделкой следует заполнять твердеющими составами, приведенными в [68], [6], или обеспечивать силовое прижатие монтируемых колец обделки к грунту.
5.6.3.2 В элементах (блоках) высокоточных железобетонных обделок следует предусматривать пазы для размещения упругих герметизирующих прокладок. В других типах сборных обделок блоки должны иметь по внутреннему контуру фальцы, образующие в собранной обделке чеканочные канавки.
5.6.3.3 Устройство однослойных обделок из набрызг-бетона допускается в малообводненных скальных грунтах и твердых глинах в сочетании с арматурной сеткой, анкерами, металлическими арками или при условии армирования набрызг-бетона фибрами ([77] и [78]), при этом срок службы металлических изделий должен соответствовать требованиям 5.6.1.1.
5.6.3.4 Размеры монолитных и сборных железобетонных обделок следует назначать по расчету, из условий выполнения требований СП 63.13330.
Элементы бетонных и железобетонных обделок должны иметь толщину не менее, мм:
а) железобетонные блоки сплошного сечения - 150;
б) ребра и спинки ребристых железобетонных блоков - 60;
в) своды и стены из монолитного бетона и железобетона - 200;
г) своды и стены из набрызг-бетона - 100.
5.6.3.5 При раскрытии выработок в скальных грунтах по частям возможно применение обделок в виде свода переменной жесткости (с выносными пятами) из монолитного бетона, опирающегося одновременно на облегченные стены и на грунт.
5.6.3.6 Для монолитных железобетонных конструкций рам (узлов) сопряжения обделок закрытого способа работ следует предусматривать внутреннюю металлическую изоляцию, заанкеренную в бетон обделки. Допускается применять мембранную или напыляемую гидроизоляцию.
Конструкцию металлоизоляции следует назначать в зависимости от гидростатического давления.
Толщина листа металлоизоляции должна быть не менее 8 мм, для торцевых стен - не менее 10 мм.
5.6.3.7 Для сооружений, эксплуатируемых в условиях гидростатического давления свыше 0,3 МПа или знакопеременных температур, допускается применять сборно-монолитные обделки в виде армометаллоблоков.
5.6.3.8 При сооружении тоннелей способом продавливания следует применять обделки кругового очертания из чугунных тюбингов или обделки в виде цельных секций (жестких рамных конструкций) прямоугольного очертания из монолитного железобетона.
Железобетонные секции заводского изготовления надлежит предусматривать максимальной длины, определяемой возможностями транспортного и грузоподъемного оборудования. Секции, изготовляемые непосредственно на строительной площадке, могут иметь длину до 20-30 м и более.
Для объединения цельных секций в продольном направлении следует использовать сварку выпусков арматуры, болтовые скрепления закладных деталей в пазах по торцам секций или соединение и обжатие продольной преднапряженной арматурой.
5.6.3.9 В обделках перегонных и станционных тоннелей из монолитного бетона, железобетона и набрызг-бетона следует предусматривать устройство деформационных швов через 40 м, в обделках из сборных элементов с омоноличенными стыками - через 60 м.
5.6.3.10 Обделки тоннелей при открытом способе работ следует предусматривать в виде одно-, двух-, трех- или многопролетных замкнутых рам прямоугольного очертания либо в виде сводчатых конструкций из сборного, монолитного или сборно-монолитного железобетона.
5.6.3.11 В качестве сборных конструкций, возводимых в открытом котловане, следует использовать обделки, состоящие из блоков перекрытия, стеновых, фундаментных и лотковых блоков, подколонников, колонн и прогонов. Модификации конструкций осуществляют путем изменения конфигурации, размеров и типов отдельных блоков.
Объединение сборных элементов в рамную конструкцию следует предусматривать сваркой выпусков арматуры или закладных деталей, бетонированием зазоров, заполнением швов безусадочным цементным раствором.
5.6.3.12 Конструкции тоннелей при слабом грунтовом основании (пылеватые и мелкие водоносные пески, слабые глинистые грунты) необходимо предусматривать с предварительным устройством в основании сооружения распределительной железобетонной плиты толщиной не менее 30 см, если состояние грунтов не требует проведения специальных работ, предотвращающих осадки конструкции.
5.6.3.13 Рамные сборные конструкции обделок перегонных тоннелей возможно применять в виде цельносекционных обделок. При преодолении водных преград возможно использовать специальный способ сооружения обделки в виде погружных секций.
5.6.3.14 Требования к возведению конструкций с применением технологии траншейных стен в грунте приведены в [7].
Конструкции открытого способа работ следует разделять сквозными вертикальными деформационными швами. Расстояния между швами следует устанавливать расчетом, который допускается не выполнять при расстоянии между швами не более 60 м.
При назначении мест устройства деформационных швов следует дополнительно учитывать:
- изменение типа конструкции;
- изменение вида грунта в основании;
- резкое изменение нагрузок на конструкцию.
Детали архитектурной отделки станций также должны иметь швы по линии деформационных швов конструкций.
5.6.3.15 Исключен с 17 июня 2017 г. - Изменение N 2, утвержденное приказом Минстроя России от 16 декабря 2016 г. N 576/пр
5.6.3.16 При строительстве тоннельных сооружений в сейсмических районах расстояние между деформационными швами определяют расчетом по ВСН 193 [8].
5.6.3.17 Тип и конструкция гидроизоляции обделок разных видов определяются инженерно-геологическими условиями строительства, величиной гидростатического давления, наличием агрессивных воздействий внешней среды, типом обделки, возможностями обеспечения водонепроницаемости бетона при принятой технологии ведения строительных работ и ремонтопригодности, другими производственными условиями.
5.6.3.18 Конструкции тоннелей открытого и полузакрытого способов работ должны иметь замкнутую по контуру гидроизоляцию, предотвращающую при повреждении бесконтрольную миграцию просочившихся грунтовых вод по поверхности изолируемых конструкций.
5.6.3.19 Гидроизоляция (наплавляемая, напыляемая, оклеечная, мембранного типа и др.) при открытом способе производства работ должна выполняться из битумно-полимерных и полимерных материалов, соответствующих требованиям, указанным в таблице 5.8.
Таблица 5.8
|
Наименование параметра |
Норма для материалов | |
|
битумно-полимерных (на полимерной основе) |
полимерных (безосновных) | |
|
Условная прочность, МПа, не менее |
Не нормируется |
10*(4) |
|
Разрывная сила при растяжении, Н, не менее |
600 |
Не нормируется |
|
Водопоглощение в течение 24 ч, % по массе, не более |
1 |
1 |
|
Водонепроницаемость при гидростатическом давлении, МПа, не менее |
0,2 |
0,3 |
|
Температура хрупкости вяжущего, °С, не выше |
Минус 25 |
Минус 50 |
|
Гибкость на брусе с закруглением радиусом (10±0,2) мм, не выше |
Минус 15 |
Минус 40 |
|
Теплостойкость, °С в течение 2 ч, не ниже |
85 |
85 |
|
Относительное удлинение при разрыве, %*(1) |
30-40 |
150-200 |
|
Адгезия к бетону, МПа, не менее*(2) |
0,5 |
0,5 |
|
Химическая стойкость (снижение условной прочности и относительного удлинения или разрывной силы при воздействии солей, кислот, щелочей, бензина, минеральных масел и др.), %, не более*(3) |
10 |
10 |
|
*(1) Определяется условиями эксплуатации тоннеля. *(2) За исключением гидроизоляционных мембран, не имеющих адгезии к железобетонным конструкциям. *(3) Для гидроизоляции тоннельных конструкций, подверженных воздействию агрессивных сред. *(4) В двухслойных бетонных и железобетонных обделках допускается применение напыляемых полимерных гидроизоляционных материалов с условной прочностью не менее 3 МПа. | ||
5.6.3.19а Требования к проектированию гидроизоляции сооружений открытого способа работ приведены в [69]. Гидроизоляционные материалы при открытом способе производства работ должны соответствовать требованиям ГОСТ 32805. Указания по применению насыпной гидроизоляции из полимерминеральных композитов приведены в [72], [73], физико-технические характеристики материалов для гидроизоляции транспортных тоннелей - в [76, таблица 1].
5.6.3.19б При расположении перекрытий и стен сооружений, эксплуатируемых при положительных температурах, в зоне промерзания необходимо предусматривать их теплоизоляцию. Конструктивные решения гидроизоляции в этом случае могут быть выполнены в традиционном (при расположении водоизоляционного ковра над теплоизоляцией) и в инверсионном (при расположении водоизоляционного ковра под теплоизоляцией) вариантах в соответствии с СП 17.13330. В инверсионном варианте в качестве теплоизоляции должны применяться материалы с водопоглощением не более 0,7% по объему за 28 сут. Толщину теплоизоляции следует принимать по расчету.
5.6.3.20 В лотковой части гидроизоляцию следует укладывать на бетонную подготовку (класс бетона не ниже В15) толщиной не менее 10 см, армированную стальными или полимерными сетками с ячейками 100x100 мм или 150x150 мм, с выравнивающей стяжкой из цементно-песчаного раствора или мелкозернистого бетона.
В местах устройства деформационных швов для наружной гидроизоляции необходимо предусматривать компенсаторы, а в качестве дополнительной гарантии водонепроницаемости обделки допускается применение герметизирующих элементов различных конструкций.
При устройстве гидроизоляции, предварительно наносимой на поверхность элементов сборной обделки, следует предусматривать надежные способы соединения гидроизоляции отдельных элементов в процессе их монтажа и защиты ее в процессе строительства от повреждений.
5.6.3.21 Гидроизоляционное покрытие должно быть надежно защищено от возможных механических повреждений. Защиту покрытия гидроизоляции следует предусматривать с учетом условий эксплуатации подземного сооружения, его конструктивных особенностей, технологии ведения строительных работ и вида применяемого гидроизоляционного материала.
Защитные покрытия для лотковой части и перекрытия сооружения следует предусматривать из мелкозернистого бетона класса не ниже В25 толщиной 4-10 см. Защитный слой на перекрытии необходимо армировать стальными или полимерными сетками с ячейками 100х100 мм или 150x150 мм.
Гидроизоляцию по стенам сооружения следует защищать кирпичной стенкой, набрызг-бетоном по сетке, полимерными профилированными мембранами или другими материалами.
При применении полимерных напыляемых материалов с условной прочностью более 10 МПа допускается отказ от устройства защитных слоев на стеновых конструкциях при производстве обратной засыпки грунтом.
5.6.3.22 Гидроизоляцию конструкций типа "стена в грунте", используемых в качестве постоянных несущих конструкций в обводненных грунтах, допускается осуществлять металлическими листами толщиной не менее 10 мм.
5.6.3.23 При сооружении тоннелей закрытым способом по технологии НАТМ с монолитной набрызг-бетонной или бетонной крепью по контуру выработки сплошную гидроизоляцию следует заключать между наружной набрызг-бетонной (или бетонной) и внутренней железобетонной несущей конструкцией тоннеля.
5.6.3.24 Гибкую гидроизоляцию, устраиваемую с внутренней стороны ограждения котлована "стена в грунте" или с внутренней стороны обделки, следует защищать внутренней конструкцией в виде прижимной стенки или вторичной обделки соответственно, рассчитанной на восприятие ожидаемого гидростатического давления. При этом необходимо обеспечить сплошное адгезионное сцепление гидроизоляции к внутренней конструкции не менее 0,5 МПа или при отсутствии адгезионного сцепления оснастить гидроизоляцию секционной контрольно-инъекционной системой восстановления водонепроницаемости.
5.5.6.3.25 В сборных железобетонных и чугунных обделках тоннелей закрытого способа работ должна быть обеспечена герметизация швов между элементами обделки, болтовых отверстий (при чугунной обделке) и отверстий для нагнетания постановкой упругих уплотнителей или чеканкой. Требования к герметизации швов приведены в [9] и [34].
Требования к проектированию сборных железобетонных обделок приведены в [77].
5.6.4.1 Нагрузки и воздействия по продолжительности их действия на обделки тоннелей следует подразделять по СП 20.13330 на постоянные и временные (длительные, кратковременные и особые).
5.6.4.2 К постоянным нагрузкам и воздействиям относятся:
- вес насыпного грунта, горное давление;
- гидростатическое давление в зоне взаимодействия геологической среды с сооружениями (в том числе в слабых глинистых грунтах);
- вес частей сооружений, в том числе несущих строительных конструкций;
- вес зданий и сооружений, находящихся в зонах их воздействия на подземную конструкцию;
- сохраняющиеся усилия от предварительного обжатия обделки.
5.6.4.3 К временным длительным нагрузкам и воздействиям относятся:
- силы морозного пучения грунта;
- вес стационарного оборудования;
- сезонные температурные воздействия, воздействия усадки и ползучести бетона и некоторые другие по СП 20.13330;
- усилия от предварительного обжатия обделки.
К кратковременным нагрузкам относятся:
- нагрузки и воздействия от внутритоннельного и наземного транспорта;
- нагрузки и воздействия в процессе сооружения тоннеля: от давления щитовых домкратов, от нагнетания раствора за обделку, от усилий, возникающих при подаче и монтаже элементов сборных конструкций, от воздействия веса проходческого и другого строительного оборудования и некоторые другие, определяемые особенностями производства работ.
5.6.4.4 К особым воздействиям и нагрузкам следует относить сейсмические и взрывные воздействия, температурные воздействия, воздействия от сдвиговых деформаций грунтового массива и некоторые другие особые нагрузки по СП 20.13330, которые имеют отношение к проектируемому объекту.
5.6.4.5 При реконструкции объектов метрополитена исходными данными являются результаты повторных инженерно-геологических, гидрологических и геотехнических изысканий.
5.6.4.6 Вертикальные и горизонтальные нагрузки от веса насыпного грунта при открытом способе работ, от давления грунта при закрытом способе работ или от других постоянных нагрузок, действующих в пределах всего пролета или всей высоты сооружения или выработки, при расчетах тоннельных обделок следует принимать как равномерно распределенные по формулам (5.2), (5.3).
5.6.4.7 Для объектов, сооружаемых открытым способом, величину нормативной вертикальной нагрузки от насыпного грунта следует принимать в соответствии с давлением всей его толщи над сооружением с учетом веса наземных зданий и других сооружений, строительство которых предусмотрено над данным объектом или в пределах призмы обрушения грунта.
5.6.4.8 Нормативные вертикальные и горизонтальные нагрузки на обделки тоннелей, сооружаемых закрытым способом, надлежит определять по результатам инженерно-геологических изысканий с учетом возможности образования в грунтах самонесущего свода (рисунок 5.1).

Рисунок 5.1 - Схема для расчета высоты свода обрушения
5.6.4.9 В неустойчивых грунтах, в которых сводообразование невозможно (водонасыщенные несвязные и слабые глинистые грунты), нагрузки следует принимать с учетом давления всей толщи грунтов над тоннельным сооружением. В таких случаях нормативную вертикальную и горизонтальную нагрузки qн и pн, кН/м2, необходимо определять по формулам:
; (5.2)
, (5.3)
где Yi - нормативный удельный вес грунта, кН/м3;
Hi - толщина соответствующего слоя напластования, м;
n - число слоев напластований;
φ - угол внутреннего трения грунта, нормативный для несвязных грунтов или кажущийся для скальных грунтов в уровне сечения тоннеля, град.
Такие же нагрузки следует принимать и при наличии сводообразования, если расстояние от вершины свода обрушения до земной поверхности или до контакта с неустойчивыми грунтами меньше высоты свода обрушения.
5.6.4.10 Нормативные равномерно распределенные нагрузки (вертикальную qн и горизонтальную pн, кН/м2), в условиях сводообразования для однородной толщи грунта следует определять по формулам:
qн=γh1; (5.4)
pн=γ(h1+0,5h)tg2(45°-φ/2), (5.5)
где h1 - высота свода обрушения над верхней точкой обделки (рисунок 5.1), м, определяемая по 5.6.4.11 и 5.6.4.12;
γ - нормативная плотность грунта, кН/м3;
h - высота выработки, м;
φ - угол внутреннего трения грунта, нормативный для несвязных грунтов или кажущийся для скальных грунтов в уровне сечения тоннеля, град.
5.6.4.11 Высоту свода обрушения h1 над верхней точкой обделки в условиях сводообразования (рисунок 5.1) для нескальных необводненных грунтов следует определять по формуле
, (5.6)
где L - величина пролета свода обрушения, определяемая по формуле
L=b+2htg(45°-φ/2); (5.7)
f - коэффициент крепости, принимаемый по таблице 5.9;
h - величина пролета выработки, м.
Таблица 5.9
|
Вид грунта в сечении и кровле выработки |
Коэффициент крепости f |
|
Глины твердые литифицированные (сланцеватые, аргиллитоподобные, мергелистые и т.п.) |
1 |
|
Глины твердой консистенции переуплотненные типа верхнекаменноугольных |
0,9 |
|
Глины твердой консистенции переуплотненные типа протерозойских |
1,5 |
|
Крупнообломочные грунты с супесчано-песчаным заполнителем плотные, глины и суглинки твердой консистенции |
0,8 |
|
Пески плотные маловлажные или супесчано-суглинистые грунты |
0,7 |
|
Глины и суглинки полутвердой консистенции |
0,6 |
Высоту свода обрушения h1 над верхней точкой обделки для тоннелей, сооружаемых в глинистых грунтах на глубине более 45 м, следует принимать с коэффициентом K = H / 45, где H - глубина заложения тоннеля от поверхности земли до низа тоннельной обделки, м.
При заложении тоннелей в глинистых грунтах, прочность которых уменьшается под влиянием поступающих подземных вод, высоту свода обрушения h1 надлежит увеличивать в пределах до 30%.
Примечание - Для трехсводчатых станций за величину пролета выработки b принимается суммарная ширина станционных выработок.
5.6.4.12 Высоту свода обрушения h1 над верхней точкой обделки в условиях сводообразования для скальных грунтов следует определять по формулам:
а) для скальных грунтов, оказывающих вертикальное и горизонтальное давление:
; (5.8)
б) для скальных грунтов, оказывающих только вертикальное давление:
, (5.9)
где R - предел прочности грунта на сжатие "в куске" (образце), МПа;
α - коэффициент, учитывающий влияние трещиноватости массива, принимаемый по таблице 5.10 исходя из предела прочности грунта на сжатие "в куске" (образце) и категории массива по степени трещиноватости, которая определяется в зависимости от трещинной пустотности и густоты трещин (среднего расстояния между трещинами наиболее развитой их системы) по таблице 5.11.
Таблица 5.10
|
Категория массива скальных грунтов по степени трещиноватости |
Коэффициент α при пределе прочности грунта "в куске" на сжатие, МПа | ||||
|
10 |
20 |
40 |
80 |
160 | |
|
I - практически нетрещиноватые |
1,7 |
1,4 |
1,2 |
1,1 |
1 |
|
II - малотрещиноватые |
1,4 |
1,2 |
1 |
0,9 |
0,8 |
|
III - среднетрещиноватые |
1,2 |
0,9 |
0,7 |
0,6 |
0,5 |
|
IV - сильнотрещиноватые |
0,9 |
0,7 |
0,5 |
0,4 |
0,3 |
|
V - раздробленные (разборная скала) |
0,7 |
0,4 |
0,3 |
0,2 |
0,1 |
Таблица 5.11
|
Величина трещинной пустотности,% |
Категория грунтов при густоте трещин, м | |||
|
очень редкой (более 1) |
редкой (1,0-0,3) |
густой (0,3-0,1) |
очень густой (менее 0,1) | |
|
Малая - менее 0,3 |
I |
II |
III |
IV |
|
Средняя - 0,3-1,0 |
II |
III |
IV |
V |
|
Большая - 1,0-3,0 |
III |
IV |
V |
V |
|
Очень большая - более 3,0 |
IV |
V |
V |
V |
|
Примечания 1 При определении трещинной пустотности рыхлый или глиноподобный материал заполнения трещин не учитывается. 2 При большой и очень большой трещинной пустотности и одновременно хорошо выраженной расчлененности массива на блоки по степени трещиноватости его следует относить к V категории (раздробленным) вне зависимости от густоты трещин. 3 В условиях ожидаемого полного нарушения сплошности скальных грунтов в результате интенсивного их расслоения (кливаж) грунты следует относить к V категории. 4 При наличии поверхностей скольжения категорию грунта по степени трещиноватости необходимо повышать на одну ступень. 5 При трещинах, залеченных частично твердым (кристаллическим) материалом, категорию грунта по степени трещиноватости нужно понижать на одну ступень, а при полностью залеченных трещинах - принимать по I категории. | ||||
Расчет обделки следует выполнять в двух вариантах: при наличии горизонтального давления и без него.
5.6.4.13 Полученную по формулам (5.8) и (5.9) высоту свода обрушения скальных грунтов необходимо корректировать умножением ее на коэффициенты, учитывающие влияние следующих факторов:
а) приток воды в выработку для случаев, когда трещины заполнены рыхлым или размокаемым глиноподобным материалом, - 1,2;
б) расположение трещин наиболее развитой их системы под углом к оси тоннеля менее 45° - 1,1;
в) проходка выработок без применения буровзрывных работ - 0,8.
5.6.4.14 В случаях когда в грунтовом массиве возможно развитие неблагоприятных для обделки процессов (проявления тектонической напряженности, пучение, ползучесть грунтов, карстово-суффозионные явления) или предполагается значительное изменение свойств или состояния грунтов в результате применения специальных способов производства работ, величины нагрузок на обделки необходимо устанавливать на основании специальных исследований.
5.6.4.15 При высоте свода обрушения скального грунта менее 1/6 его пролета расчет подземных конструкций следует выполнять на воздействие вывалов. Вертикальную нагрузку интенсивностью, полученной из условия сводообразования, необходимо распределять по площади, соответствующей 1/4 пролета выработки в наиболее невыгодном для работы обделки положении.
5.6.4.16 При наличии над тоннельным сооружением в пределах свода обрушения контакта с менее прочным грунтом нагрузку на обделку следует определять от свода обрушения по параметрам менее прочного грунта, а при наличии слабых грунтов, не обладающих способностью к сводообразованию, - от веса всей вышележащей толщи грунтов.
Если контакт с более слабым грунтом находится в границах от одной до трех высот свода обрушения, значение нормативной вертикальной нагрузки qн, кН/м, следует определять по формуле
, (5.10)
где
- нормативная вертикальная нагрузка, полученная от свода обрушения по параметрам менее прочного грунта, или нагрузка от веса всей толщи грунтов над тоннельным сооружением (при наличии в пределах от двух до трех высот свода обрушения слабых грунтов, не обладающих способностью к сводообразованию), кН/м2;
- нормативная вертикальная нагрузка от грунта, вмещающего тоннель, кН/м2;
а - расстояние от вершины свода обрушения до контакта с менее прочным грунтом или со слабым грунтом, не обладающим способностью к сводообразованию, м;
h1 - высота свода обрушения грунта, вмещающего тоннель, м.
5.6.4.17 Величину вертикальной нагрузки от горного давления на обделки параллельных близко расположенных тоннелей при возможности сводообразования следует определять в зависимости от размеров выработок, размеров и несущей способности целиков между ними, а также технологии производства работ:
а) при условии образования самостоятельного свода обрушения над каждой выработкой - для каждой выработки в отдельности;
б) при условии образования общего свода обрушения над выработками - как для выработки, пролет которой равен сумме пролетов всех выработок и ширины целиков между ними.
5.6.4.18 Значение нормативной нагрузки на обделку тоннеля в водонасыщенных несвязных грунтах, содержащих свободную воду, следует принимать в виде совместного действия гидростатического давления воды и давления грунта во взвешенном состоянии. При этом нормативный удельный вес грунта с учетом взвешивающего действия воды γsb определяется по формуле
, (5.11)
где γs - удельный вес частиц грунта, принимаемый равным для песчаного грунта 26 кН/м3 (2,6 т/м3), для пылевато-глинистого - 27 кН/м3 (2,7 т/м3);
γw - удельный вес воды, принимаемый равным 10 кН/м3 (1,0 т/м3);
е - коэффициент пористости.
Величину гидростатического давления следует принимать с учетом наивысшего прогнозируемого уровня вскрытых сооружением водоносных горизонтов.
5.6.4.19 Нагрузку от веса зданий, расположенных над тоннельным сооружением, надлежит принимать в зависимости от их этажности в размере 10 кН/м2 (1 т/м2) на один этаж.
При расположении зданий и других наземных сооружений в пределах призмы обрушения грунта необходимо учитывать соответствующее увеличение горизонтальной нагрузки.
5.6.4.20 Нормативную горизонтальную нагрузку на обделки кругового очертания в глинистых грунтах текучей и пластичной консистенции, в водонасыщенных грунтах, а также в грунтах, переходящих в условиях эксплуатации в разжиженное состояние, следует принимать не более 0,75 величины нормативной вертикальной нагрузки, определяемой от веса вышележащей толщи грунтов.
Для конструкций, сооружаемых открытым способом в глинистых грунтах, боковое давление определяется с учетом сцепления по СП 22.13330.
5.6.4.21 Нормативная вертикальная нагрузка от собственного веса конструкций определяется исходя из проектных размеров конструкций и удельного веса материалов.
Если собственный вес обделки составляет менее 5% вертикального давления, допускается его не учитывать.
5.6.4.22 Коэффициенты надежности на постоянные нагрузки при расчетах конструкций обделок по потере несущей способности следует принимать по таблице 5.12.
Таблица 5.12
|
Вид нагрузки |
Коэффициент надежности | |
|
Вертикальная от давления грунта: | ||
|
от веса всей толщи грунта над тоннелем: | ||
|
а) в природном залегании |
1,1 (0,9) | |
|
б) насыпные |
1,15 (0,9) | |
|
от горного давления при сводообразовании для грунтов: | ||
|
а) скальных |
1,6 | |
|
б) глинистых |
1,5 | |
|
в) песков и крупнообломочных |
1,4 | |
|
от давления грунта при вывалах |
1,8 | |
|
Горизонтальная - от давления грунта |
0,8 (1,2) | |
|
Гидростатическое давление |
0,9 (1,1) | |
|
Собственный вес конструкции: | ||
|
сборной железобетонной |
1,1 (0,9) | |
|
монолитной бетонной и железобетонной |
1,2 (0,8) | |
|
металлической |
1,05 | |
|
изоляционных, выравнивающих, отделочных слоев |
1,3 | |
|
Сохраняющиеся усилия от предварительного обжатия обделки и давления щитовых домкратов |
1,3 | |
|
Примечание - Коэффициент надежности, указанный в скобках, следует принимать в случае, когда его применение приводит к более невыгодному нагружению обделки. | ||
При расчетах конструкций на прочность и устойчивость для стадии строительства коэффициенты надежности по постоянным нагрузкам принимаются равными 1.
5.6.4.23 Обделки сооружений открытого способа работ, заложенные ниже прогнозируемого уровня подземных вод, следует рассчитывать на всплытие на расчетные нагрузки по формуле
, (5.12)
где ∑G - сумма всех постоянных нагрузок, сопротивляющихся всплытию, с коэффициентами надежности по нагрузке, равными 1;
А - площадь подошвы сооружения;
hw - расстояние от уровня грунтовых вод до подошвы сооружения (без учета бетонной подготовки);
γw - удельный вес воды, равный 1 т/м3;
γf - коэффициент надежности по нагрузке, принимаемый равным 1,2.
Для расчетов на всплытие принимается наибольший прогнозируемый уровень подземных вод. При наличии опытных данных в случае применения "стены в грунте" в качестве постоянной несущей конструкции допускается учитывать силы трения между конструкцией и грунтом.
5.6.4.24 Нормативную временную вертикальную и горизонтальную нагрузки на обделки от наземного транспорта, коэффициенты надежности и коэффициенты динамичности принимают по СП 35.13330.
5.6.4.25 Нормативную временную вертикальную нагрузку на рельсовый путь (рисунок 5.2) от каждой оси подвижного состава с пассажирами надлежит принимать равной 150 кН (15тс).

Рисунок 5.2 - Схема нагружения от подвижного состава на рельсовый путь, м
Нормативную горизонтальную поперечную нагрузку от центробежной силы и ударов подвижного состава, продольную нагрузку от торможения или силы тяги, а также коэффициенты надежности и динамические коэффициенты к этим нагрузкам следует принимать согласно СП 35.13330.
5.6.4.26 Временную нормативную равномерно распределенную нагрузку на платформы станций, лестницы, перекрытия машинных помещений эскалаторов, кассовых залов и другие перекрытия, по которым предусматривается передвижение пассажиров, следует принимать равной 4 кН/м2 (400 кгс/м2) с коэффициентом надежности 1,4.
5.6.4.27 Временные нагрузки на обделки, возникающие в процессе строительства, определяются в соответствии с принятой технологией производства работ с учетом характера воздействия на обделку проходческого, подъемно-транспортного, монтажного или другого оборудования.
Коэффициент надежности по нагрузке к временной нагрузке от давления щитовых домкратов на обделку следует принимать равным 1,3.
5.6.4.28 Воздействие морозного пучения грунта в пределах слоя сезонного промерзания (оттаивания) следует принимать в виде приложенных по периметру сооружения вертикальных касательных сил. Для сооружений на пучинистых грунтах, сезонно промерзающих на глубину до 2 м, величины сил морозного пучения следует принимать в соответствии с требованиями СП 22.13330. Для сооружений на вечномерзлых, а также на пучинистых грунтах, сезонно промерзающих на глубину свыше 2 м, величины сил морозного пучения следует принимать в соответствии с требованиями СП 25.13330.
Коэффициент надежности по нагрузке при определении нагрузки от сил морозного пучения следует принимать как для нагрузки от горного давления при сводообразовании по таблице 5.12.
5.6.4.29 Коэффициенты надежности к временной нагрузке для других временных нагрузок или воздействий, которые следует учитывать при проектировании специфических строительных конструкций или по условиям производства работ (вес стационарного оборудования, нагрузка от подвесного кранового оборудования, воздействие усадки и ползучести бетона и др.), следует принимать по СП 20.13330.
5.6.4.30 Сейсмическое воздействие на тоннельную обделку следует учитывать для сооружений, возводимых в районах (зонах) с сейсмичностью 7 баллов и более. Проектирование подземных сооружений, расположенных в районах (зонах) с сейсмичностью 7 баллов и более, следует выполнять в соответствии с СП 14.13330.
5.6.5.1 Расчеты подземных конструкций следует выполнять по предельным состояниям с учетом возможных неблагоприятных сочетаний нагрузок и воздействий на отдельные элементы или сооружение в целом, которые действуют одновременно при строительстве или при эксплуатации.
Расчетные схемы конструкций должны в максимальной степени соответствовать условиям работы сооружений и особенностям взаимодействия элементов проектируемой конструкции между собой и грунтом.
5.6.5.2 Расчеты подземных конструкций следует проводить в соответствии с основными положениями ГОСТ 27751 с учетом возможных для отдельных элементов или всего сооружения в целом неблагоприятных сочетаний нагрузок и воздействий, которые действуют одновременно при строительстве или при эксплуатации. При этом необходимо рассматривать:
- основные сочетания нагрузок, составляемые из постоянных и временных (длительных и кратковременных) нагрузок и воздействий;
- особые сочетания нагрузок, составляемые из постоянных нагрузок, наиболее вероятных временных и одной из особых нагрузок или воздействий.
Одновременно действующие временные нагрузки следует учитывать согласно СП 20.13330.
5.6.5.3 Конструкции следует рассчитывать по предельным состояниям первой и второй групп по ГОСТ 27751.
5.6.5.4 Расчеты по предельным состояниям первой группы выполняются на основные и особые сочетания нагрузок с применением коэффициентов надежности, коэффициентов сочетаний нагрузок согласно СП 20.13330, коэффициентов условий работы конструкций и расчетных значений прочностных характеристик их материалов, а при необходимости - и динамических коэффициентов.
Тоннельные обделки на выносливость не проверяются, за исключением обделок пролетом более 9 м с минимальной засыпкой над перекрытием менее 1 м, которые рассчитываются по мостовой схеме.
5.6.5.5 Расчеты конструкций, возводимых закрытым способом, по предельным состояниям первой группы следует выполнять с учетом особенностей их работы:
а) для монолитных бетонных и монолитных железобетонных обделок в необводненных грунтах или при наличии гидроизоляции - возможности образования в наиболее напряженных сечениях пластических шарниров;
б) для сборных чугунных и железобетонных обделок со связями растяжения - податливости стыков и возможности образования в них пластических шарниров.
При расчетах бетонных и железобетонных обделок следует применять дополнительный коэффициент условий работы конструкции, равный 0,9, отражающий для монолитных обделок неточность в назначении расчетной схемы, для сборных обделок - деформативность стыков.
5.6.5.6 Расчеты обделок по предельным состояниям второй группы выполняются на основные сочетания нагрузок с использованием коэффициентов надежности по нагрузкам и по условиям работы конструкции, равных 1, и нормативных значений прочностных характеристик материалов.
5.6.5.7 При расчетах обделок открытого способа работ необходимо учитывать следующие требования:
- для железобетонных элементов перекрытий следует определять величины вертикальных прогибов и раскрытия трещин, при этом величина прогиба от воздействия постоянной и временной вертикальной нагрузок в пределах пролета не должна превышать 1/200L (L - длина расчетного пролета) при предельной величине длительного раскрытия отдельных трещин до 0,2 мм, кратковременного - до 0,3 мм;
- для железобетонных элементов стен следует определять величину горизонтальных прогибов и раскрытия трещин, при этом величина прогиба от воздействия постоянной и временной нагрузок для стен подземных сооружений не должна превышать 1/300H, для стен рамп - 1/200H (Н - расчетная высота стены) при предельной величине длительного раскрытия отдельных трещин до 0,3, кратковременного - до 0,4 мм.
Конструкции кругового очертания, возводимые закрытым способом, на деформативность не проверяются.
Для расчета обделок закрытого способа работ без наружной гидроизоляции на трещиностойкость предельно допустимая величина продолжительного раскрытия трещин со стороны грунта приведена в таблице 5.41 в зависимости от степени агрессивности окружающей среды. Предельная величина продолжительного раскрытия трещин внутренней поверхности обделки - 0,2 мм.
Расчет путевого бетонного слоя на трещиностойкость не проводится. В путевом бетоне допускается продолжительное раскрытие трещин до 0,4 мм. Путевое полотно с раскрытием трещин более 0,4 мм подлежит ремонту.
5.6.5.8 Расчеты тоннельных конструкций на внешние виды воздействий следует выполнять методами строительной механики на заданные нагрузки с учетом отпора грунтового массива, аналитическими методами механики сплошной среды или методами численного моделирования с использованием нелинейных моделей сплошных сред и нелинейных контактных моделей, выбираемых в зависимости от типа грунтов и конструктивных особенностей сооружения.
Деформационные характеристики грунтового массива (модуль деформации, коэффициент поперечной деформации, коэффициент упругого отпора) и физико-механические характеристики грунта, необходимые для численного моделирования с использованием нелинейных моделей, должны определяться на основании данных инженерно-геологических изысканий, натурных и лабораторных исследований в соответствии с требованиями 5.1.1.15, а также данных, полученных при строительстве тоннелей в аналогичных инженерно-геологических условиях. При отсутствии опытных данных коэффициент отпора допускается принимать по таблице 5.13.
Расчеты на действие гравитационного поля, тектонического и сейсмического воздействия возможно выполнять методами механики сплошной среды.
В расчетах обделок методом механики сплошной среды на прочность и трещиностойкость, возводимых в песчано-глинистых влажных и маловлажных грунтах, следует использовать значение модуля деформации грунта при повторном нагружении.
Расчеты должны выполняться с использованием программных комплексов, сертифицированных для использования на территории Российской Федерации.
Таблица 5.13
|
Наименование грунтов в сечении выработки |
Коэффициент отпора, Н/см3 (кгс/см3), при удельном давлении на грунт | |
|
до 0,4 МПа (4 кгс/см2) |
св. 0,4 МПа (4 кгс/см2) | |
|
Скальные средней прочности (временное сопротивление одноосному сжатию в водонасыщенном состоянии 25-40 МПа (250-400 кгс/см2): | ||
|
слаботрещиноватые |
1000-1500 (100-150) |
1000-1500 (100-150) |
|
сильнотрещиноватые |
400-600 (40-60) |
400-600 (40-60) |
|
Скальные средней прочности и малопрочные (временное сопротивление одноосному сжатию в водонасыщенном состоянии 8-25 МПа (80-250 кгс/см2): | ||
|
слаботрещиноватые |
700-1000 (70-100) |
700-1000 (70-100) |
|
сильнотрещиноватые |
200-400 (20-40) |
20000 (20-40) |
|
Глины твердые ненарушенные |
150-250 (15-25) |
80-150 (8-15) |
|
Глины полутвердые или твердые нарушенные |
100-200 (10-20) |
50-100 (5-10) |
|
Крупнообломочные, пески плотные |
70-100 (7-10) |
50-70 (5-7) |
5.6.5.9 Предварительные и поверочные (при реконструкции) расчеты конструкций допускается проводить исходя из предпосылки линейной работы материала конструкции и грунтового массива.
В уточненных расчетах следует учитывать свойства ползучести и нелинейности работы материала конструкции.
5.6.5.10 Силы трения и сцепления между тоннельной обделкой и грунтом следует учитывать в случаях, когда проектом предусматриваются мероприятия, обеспечивающие надежный контакт обделки с грунтом, кроме случаев заложения тоннеля в слабых грунтах. При этом величины передаваемых на грунт касательных напряжений не должны превышать величин предельных сдвигающих напряжений для грунта.
5.6.5.10а При проектировании ограждений котлованов и несущих стен, возводимых способом "стена в грунте", следует руководствоваться требованиями СП 22.13330.
5.6.5.11 При расположении тоннеля в обводненных мелких и пылеватых песках или переувлажненных связанных грунтах, а также в случае резкого изменения их свойств по трассе тоннель в целом следует рассчитывать по схеме балки на упругом основании. Расчет производят от нагрузки проходящего поезда. При скорости поезда до 70 км/ч коэффициент динамичности следует принимать равным 1, при скорости 70 км/ч и более - 1,1. По результатам расчета выполняют проверку прочности стыков между кольцами.
5.6.5.12 При расчетах обделок, обжимаемых в грунт, в основном сочетании нагрузок на стадии их монтажа необходимо учитывать полное усилие обжатия и временные строительные нагрузки. Для стадии эксплуатации обделок остаточное усилие обжатия следует учитывать в случае, если оно превышает нормальную силу от горного давления. В противном случае расчет ведется так же, как и для необжатых обделок.
5.6.5.13 Проверку прочности сечений бетонных и железобетонных обделок проводят по СП 63.13330.
Проверку прочности сечений чугунных тоннельных обделок по предельным состояниям проводят по СП 16.13330.
5.6.5.14 Стыки элементов сборной обделки, стягиваемые болтами, рассчитывают на прочность и трещиностойкость при предельных усилиях в болтах. Эти усилия следует вычислять по нормативному сопротивлению болтовой стали с коэффициентом 1,25.
5.6.5.15 Конструкции колонных станций, сооружаемых закрытым способом при последовательном возведении отдельных станционных тоннелей, проверяют по расчетным схемам, предусматривающим различные стадии напряженно-деформированного состояния конструкции и отдельных ее частей в процессе строительства.
Стальные колонны следует проектировать с учетом коэффициента условий работы, равного 0,8, и эксцентриситетов в поперечном и продольном направлениях станции, принимаемых в зависимости от конструкции опорных узлов, см:
а) при шарнирном опирании - 3;
б) при плоском опирании - 10;
в) при опирании через центрирующие прокладки - от 5 до 9 (в зависимости от их размеров);
г) при шарнирах с тангенциальными опорными частями - 2.
При соблюдении мер, исключающих смещение колонн в процессе строительства и раскрытие стыков между колоннами и торцами тюбингов при плоском их опирании, эксцентриситеты в поперечном направлении допускается уменьшать до 5 см.
5.7.1.1 Электрифицированные рельсовые пути на линии следует предусматривать под расчетные статические нагрузки и скорости движения поездов согласно таблице 5.14.
Таблица 5.14
|
Пути |
Статическая нагрузка от оси пассажирского вагона на рельсы, кН (тс) |
Скорость движения поездов, км/ч, не более |
|
Главные |
147 (15) |
100 |
|
Станционные |
78 (8) |
40 |
|
Соединительные |
78 (8) |
75 |
Все элементы пути должны обеспечивать:
- безопасное и плавное движение поездов с установленными скоростями;
- стабильность рельсовой колеи и пути в целом;
- изоляцию электрических рельсовых цепей;
- технологичность текущего содержания и ремонтов пути.
Конструкции пути должны быть однотипными и ремонтопригодными.
Для защиты наземных (подземных) объектов от шума и вибрации, возникающих при эксплуатации линии, следует применять виброзащитные конструкции пути на всей длине защищаемого объекта, а также на подходах к нему длиной по 150 м с каждой стороны.
5.7.1.2 Рельсы путей следует использовать также в качестве электрических проводников в сети электроснабжения подвижного состава, в устройствах управления движением поездов и контроля целостности рельсовых нитей.
5.7.1.3 Параметры плана и продольного профиля путей должны соответствовать 5.3.
5.7.1.4 В качестве нижнего строения пути необходимо предусматривать:
а) на подземных участках - плоское основание из железобетона или монолитного бетона по таблице 5.7;
б) на наземных участках - плоское основание из железобетона или земляное полотно по СП 119.13330 для железных дорог I категории;
в) на надземных участках - железобетонные или металлические конструкции мостов (в том числе путепроводов, эстакад) по СП 35.13330.
5.7.1.5 Для земляного полотна наземных участков необходимо предусматривать:
- уплотнение грунтов в насыпях;
- защитный слой из песков (за исключением мелких и пылеватых) под балластной призмой по таблице 5.15. Крутизна откосов защитного слоя должна быть 1:2;
- отвод поверхностных и грунтовых вод от земляного полотна;
- укрепление откосов земляного полотна.
Таблица 5.15
|
Пути |
Толщина защитного слоя (песчаной подушки), м, не менее, при грунтах земляного полотна | |
|
дренирующих |
недренирующих | |
|
Главные |
0,2 |
1,1 |
|
Станционные и соединительные |
0,2 |
0,8 |
5.7.1.6 В качестве верхнего строения пути следует предусматривать рельсы, рельсовые скрепления, стрелочные переводы, перекрестные съезды, глухое пересечение, подрельсовое основание, путевой бетонный или балластный слой.
5.7.1.7 Верхнее строение пути должно соответствовать таблице 5.16.
Таблица 5.16
|
Элемент пути |
Главные пути |
Станционные пути |
Соединительные пути | ||
|
вне границ платформ станции |
в границах платформ станции |
вне границ смотровых канав |
в границах смотровых канав | ||
|
для типов рельсов | |||||
|
Р50/Р65 |
Р50/Р65; |
Р50/Р65 (С) |
Р50/Р65; Р50/Р65 (С) | ||
|
Число подрельсовых оснований, шт., на 1 км пути | |||||
|
Шпалы на путевом бетонном слое |
1680 --------- 1840 |
- |
1680 -------- 1840 |
- |
1680 -------- 1840 |
|
Шпалы на балластном слое |
1840 -------- 2000 |
1600 -------- 1760 |
- |
1600 -------- 1760 | |
|
Шпалы-коротыши на путевом бетонном слое |
2x1680 --------- 2x1840 |
2x1680 ---------- 2x1840 |
2x1600 ---------- 2x1600 |
2x1680 ----------- 2х1840 | |
|
Лежни на путевом бетонном слое |
2x400 ---------- 2x400 |
2x400 --------- 2x400 |
- |
2x400 ----------- 2x400 | |
|
Примечания 1 Буквой "С" обозначены типы старогодных рельсов. 2 Число подрельсовых оснований указано: над чертой - на прямых и кривых участках радиусом 1200 м и более, под чертой - на кривых участках радиусом менее 1200 м. 3 Род подрельсового основания (дерево, композиционный материал, железобетон) принимается в соответствии с техническим заданием. 4 Лежни располагаются вдоль пути, на каждом лежне предусматривается не менее четырех промежуточных рельсовых скреплений. 5 Рельсы более тяжелых типов применяются на главных путях по заданию заказчика. 6 При использовании подрельсовых железобетонных оснований допускается изменение эпюры в сторону уменьшения их количества на 1 км пути по особенностям конструкции, при этом применяемая эпюра должна быть подтверждена расчетом. | |||||
5.7.1.8 Номинальный размер ширины колеи между внутренними гранями головок рельсов на прямых и кривых участках радиусом от 1200 м и более должен быть 1520 мм. На всех кривых участках пути ширина колеи должна быть при радиусе:
- на кривых участках радиусом менее 1200 до 601 м - 1524 мм;
- на кривых участках радиусом менее 601 до 400 м - 1530 мм;
- на кривых участках радиусом менее 400 до 125 м - 1535 мм;
- на кривых участках радиусом менее 125 до 100 м - 1540 мм;
- на кривых участках радиусом менее 100 м - 1544 мм.
Отклонения от нормы ширины колеи на прямых и кривых участках не должны превышать 2 мм.
5.7.1.9 Ширину колеи на кривых участках пути следует принимать:
а) на двухпутных участках главных путей с шириной междупутья менее 6,5 м - одинаковой для обоих путей в зависимости от радиуса кривой по разбивочной оси междупутья;
б) на других участках главных путей, а также на станционных и соединительных путях - по каждому пути в отдельности в зависимости от радиуса кривой по разбивочной оси пути при наличии переходной кривой и в зависимости от радиуса кривой по оси пути при отсутствии переходной кривой.
5.7.1.10 Рельсы главных путей на прямых и кривых подземных участках радиусом 300 м и более следует сваривать в рельсовые плети.
5.7.1.11 Сварку рельсов в рельсовые плети следует предусматривать электроконтактным или алюминотермитным способом.
5.7.1.12 На главных путях подземных участках линий радиусом менее 300 м следует предусматривать охранные приспособления в виде контррельсов охранного типа, на надземных участках линий следует предусматривать охранные приспособления в виде контррельсов мостового типа или контруголков.
5.7.1.13 Контррельсы охранного типа на подземных участках должны соответствовать типу укладываемых рельсов и устанавливаться внутри колеи вдоль внутреннего рельса. Контррельсы мостового типа на надземных участках пути должны соответствовать типу укладываемых рельсов и устанавливаться внутри колеи вдоль обоих рельсов каждого пути. В качестве контррельсов рекомендуется использовать старогодные рельсы.
5.7.1.14 На металлических мостах с температурными пролетами более 100 м для компенсации продольного перемещения рельсов следует применять уравнительные приборы, соответствующие типу укладываемых рельсов, с обводными электросоединителями.
5.7.1.15 Промежуточные рельсовые скрепления должны обеспечивать:
- электрическую изоляцию рельсов от нижнего строения пути, тоннельной обделки, путевого бетонного слоя, железобетонного подрельсового основания согласно 5.21;
- возможность быстрой смены рельсов и регулировки их положения по высоте при подрельсовом основании, уложенном на путевом бетонном слое.
Скрепления, устанавливаемые на деревянном подрельсовом основании, необходимо предусматривать с рельсовыми подкладками и путевыми шурупами:
а) на подземных участках вне границ смотровых канав и наземных участках при подрельсовом основании, уложенном на путевом бетонном слое, - раздельного типа с упругим или свободным закреплением рельса и упругими прокладками;
б) на подземных участках в границах смотровых канав - нераздельного типа;
в) на наземных участках при подрельсовом основании, уложенном на балластном слое, - раздельного типа на главных путях, раздельного или нераздельного типа на станционных и соединительных путях;
г) на надземных участках и подходах к ним длиной по 200 м с каждой стороны и на стрелочных переводах, размещенных на этих участках, раздельного типа с обеспечением электрической изоляции рельсовых подкладок от подрельсового основания, путевых шурупов и промежуточных шурупных скреплений контррельсов мостового типа.
На кривых подземных и наземных участков главных путей радиусом 400 м и менее на деревянном подрельсовом основании, укладываемых на путевом бетонном слое, следует частично применять промежуточные скрепления с удлиненными восьмидырными рельсовыми подкладками.
Скрепления для подрельсового основания иного типа необходимо принимать в соответствии с технической документацией, согласованной заказчиком и утвержденной организацией, эксплуатирующей метрополитен.
Болтовые рельсовые стыки следует предусматривать электропроводящими или изолирующими согласно 5.21.
5.7.1.16 Для обеспечения электропроводимости болтовых рельсовых стыков необходимо применять:
а) на подземных и закрытых наземных (надземных) участках, где эффективный тяговый ток в часы пик в обоих рельсах одного пути не превышает 1500 А, - графитную смазку или тарельчатые пружины, где превышает 1500 А - графитную смазку совместно с электросоединителями или тарельчатые пружины;
б) на открытых наземных (надземных) участках - тарельчатые пружины, в отдельных случаях совместно с электросоединителями;
в) на стрелочных переводах и перекрестных съездах - электросоединители.
Электрическое сопротивление болтового рельсового стыка должно быть не более сопротивления целого участка рельса длиной 1 м.
Величина зазоров в электропроводящих болтовых рельсовых стыках должна соответствовать таблице 5.17.
Таблица 5.17
|
Температура рельсов* при сборке стыка,°С |
Зазоры в стыках, мм | ||||
|
Подземные участки, расположенные на расстоянии более 200 м от портала тоннеля |
Подземные участки, расположенные на расстоянии менее 200 м от портала тоннеля, наземные и надземные участки | ||||
|
От |
До |
Рельсы длиной 25 м и менее |
Рельсовые плети длиной 300 м и менее |
Рельсы длиной 12,5 м |
Рельсы длиной 25 м |
|
-60 |
-50 |
- |
- |
18,0 |
21,0 |
|
-50 |
-40 |
- |
- |
16,5 | |
|
-40 |
-25 |
- |
- |
15,0 | |
|
-25 |
-20 |
- |
- |
13,5 |
19,5 |
|
-20 |
-15 |
- |
- |
18,0 | |
|
-15 |
-10 |
- |
- |
12,0 |
16,5 |
|
-10 |
-5 |
9,0 |
12,0 |
10,5 |
15,0 |
|
-5 |
0 |
13,5 | |||
|
0 |
5 |
7,0 |
9,0 |
9,0 |
12,0 |
|
5 |
10 |
10,5 | |||
|
10 |
15 |
4,5 |
6,0 |
7,5 |
9,0 |
|
15 |
20 |
7,5 | |||
|
20 |
25 |
2,0 |
3,0 |
6,0 |
6,0 |
|
25 |
30 |
4,5 | |||
|
30 |
35 |
0 |
0 |
4,5 |
3,0 |
|
35 |
40 |
1,5 | |||
|
40 |
50 |
- |
- |
3,0 |
0 |
|
50 |
60 |
- |
- |
0 | |
|
* Отрицательные температуры рельсов указаны со знаком "-" | |||||
Изолирующие болтовые рельсовые стыки следует предусматривать с полимерными накладками или клееболтового типа.
5.7.1.17 Стрелочные переводы и перекрестные съезды путей должны соответствовать типу укладываемых рельсов и иметь крестовины соответственно марок 1:9 и 2:9.
5.7.1.18 На главных путях перед остряками стрелочных переводов, располагаемых противошерстно для поездов, следующих в правильном направлении, должны быть установлены отбойные брусья. Такие же брусья должны быть установлены перед остряками стрелочных переводов и перекрестных съездов на станционных путях независимо от направления движения поездов.
На подземных и закрытых наземных и надземных участках вблизи мест укладки стрелочных переводов и перекрестных съездов следует предусматривать площадки в уровне головок рельсов для хранения металлических частей переводов и съездов.
5.7.1.19 Стрелочные переводы и перекрестные съезды, располагаемые на открытых наземных и надземных участках и включаемые в электрическую централизацию, должны оборудоваться устройствами автопневмообдува или, согласно заданию на проектирование, устройствами электрообогрева, а также устройствами для подключения шлангов ручной обдувки. Устройства автопневмообдува и электрообогрева должны оборудоваться дистанционным управлением с постов централизации.
5.7.1.20 В качестве подрельсового основания необходимо предусматривать:
- деревянные шпалы и деревянные шпалы-коротыши по ГОСТ 22830;
- деревянные брусья для стрелочных переводов и перекрестных съездов по ГОСТ 8816;
- железобетонные, композиционные и другие конструкции по технической документации, согласованной заказчиком и утвержденной организацией, эксплуатирующей метрополитен.
Деревянные подрельсовые основания должны пропитываться антисептиками, не проводящими электрического тока.
5.7.1.21 Для укладки подрельсового основания следует предусматривать:
а) на плоском основании из железобетона или монолитного бетона - путевой бетонный слой с характеристиками бетона для применяемой в проекте конструкцией верхнего строения пути;
б) на земляном полотне - балластный слой;
в) на конструкциях мостов - балластный слой;
г) на стрелочных переводах и перекрестных съездах - балластный или бетонный слой в соответствии с проектом стрелочного перевода и перекрестного съезда.
Деревянное подрельсовое основание, укладываемое на путевом бетонном слое, следует располагать верхней пластью вниз, на балластном слое - верхней пластью вверх.
Длину деревянных шпал-коротышей на главных путях в границах платформ станций следует принимать равной 0,9 м, на станционных путях в границах смотровых канав - 0,75 м, для подрельсового основания иного типа длину необходимо принимать в соответствии с технической документацией, согласованной заказчиком и утвержденной организацией, эксплуатирующей метрополитен.
Торцы деревянных шпал, распиливаемых при укладке в путь, а также вновь просверленные в деревянном подрельсовом основании шурупные отверстия должны быть три раза промазаны антисептиками, не проводящими электрического тока.
Для путевого бетонного слоя следует применять бетон класса не ниже В 15 по прочности на сжатие по СП 63.13330, для балластного слоя - щебень из плотных горных пород для балластного слоя железнодорожного пути.
Поперечный профиль путевого бетонного слоя должен обеспечивать отвод воды от рельсов и промежуточных рельсовых скреплений, изменение ширины (площади) водоотводного лотка на перегонах и станциях с учетом требований к конструктивным особенностям подрельсового основания следует принимать не менее расчетных, с учетом всех источников наполнения лотка.
Ширину балластной призмы поверху на однопутных открытых наземных участках следует принимать, м, не менее:
3,6 - на главных путях;
3,4 - на станционных и соединительных путях.
На кривых участках главного пути радиусом менее 600 м ширину балластной призмы с наружной стороны необходимо увеличивать на 0,1 м.
Крутизна откосов балластной призмы должна быть 1:1,5.
Поверхность балластной призмы должна быть на 3 см ниже верхней пласти деревянного подрельсового основания и в одном уровне с верхом средней части железобетонных шпал.
Наименьшую толщину путевого бетонного и балластного слоя под деревянным подрельсовым основанием следует принимать по таблице 5.18.
Таблица 5.18
|
Вид подрельсового основания |
Толщина слоя, см, не менее | ||
|
в местах расположения рельсов |
в местах расположения внутреннего рельса на кривых участках с возвышением наружного рельса | ||
|
на прямых и кривых участках без возвышения наружного рельса |
на стрелочных переводах и перекрестных съездах | ||
|
Путевой бетонный слой |
16 |
16 |
10 |
|
Балластный слой в уплотненном состоянии: | |||
|
на плоском основании из железобетона или монолитного бетона |
30 |
24 |
24 |
|
на земляном полотне |
30 ----- 25 |
30 ----- 25 |
30 ----- 25 |
|
на надземных участках |
24 |
- |
24 |
|
Примечание - Толщина балластного слоя над чертой - на главных путях; под чертой - на станционных и соединительных путях. | |||
Толщину балластного слоя под железобетонными шпалами необходимо принимать на 5 см больше, чем под деревянным подрельсовым основанием.
5.7.1.22 У подземных станций, а также посередине подземных и наземных перегонов длиной между центрами соседних станций более 1,5 км следует размещать кладовые службы пути площадью 15-18 м2 для хранения тяжелого путейского инструмента и материалов.
В кладовой следует предусматривать освещение, автоматическую пожарную сигнализацию с выводом сигнала в ДПС станции и не менее двух металлических ларей для хранения инструментов. В кладовых следует предусматривать дымогазонепроницаемые противопожарные двери с открыванием вовнутрь.
Пол кладовой следует устраивать в уровне головки рельса. Допускается совмещение кладовых с другими притоннельными сооружениями.
В двухпутных перегонных тоннелях для хранения путевого инструмента кладовые предусматриваются только в комплексе с другими притоннельными сооружениями. Если притоннельные сооружения на перегоне не выполняются, то в междупутье следует предусматривать установку шкафов для хранения путевого инструмента с откатными дверьми.
По требованию заказчика у камер съездов следует размещать кабину стрелочника площадью не менее 1,5 м2. В кабине следует предусматривать освещение, электроотопление и телефон станционной связи.
5.7.2.1 Электрифицированные пути должны быть оборудованы контактным рельсом с нижним токосъемом.
Контактный рельс следует закрывать электроизоляционным защитным коробом.
5.7.2.2 Контактный рельс располагают с левой стороны по направлению движения поездов, на отдельных участках - с правой стороны.
На кривых подземных участков пути радиусом менее 200 м контактный рельс располагают с внешней стороны кривой, в границах островных платформ подземных станций и служебных платформ - под платформой.
5.7.2.3 Устройства крепления контактного рельса должны обеспечивать:
- электрическую изоляцию контактного рельса от верхнего строения пути и тоннельной обделки;
- возможность регулировки положения контактного рельса;
- возможность подключения к контактному рельсу устройств электроснабжения;
- крепление кронштейнов контактного рельса к подрельсовому основанию и путевому бетону;
- в экстренных ситуациях при эксплуатации - ускоренный монтаж и демонтаж узлов крепления контактного рельса.
5.7.2.4 Расстояние между кронштейнами для крепления контактного рельса принимают от 4,5 до 5,4 м.
Расстояние между кронштейнами следует уменьшать в интервале от 2,25 до 2,7 м с установкой резервных упоров в указанных интервалах:
- на участках главных путей с продольным уклоном более 40‰;
- на кривых участках в плане радиусом 400 м и менее.
5.7.2.5 Сварку контактного рельса в плети следует предусматривать электроконтактным способом. Длина плетей должна составлять, м, не более:
а) на подземных участках, расположенных на расстоянии более 200 м от портала тоннеля, при тяговом токе до 3000 А - 100, при тяговом токе, превышающем 3000 А, - 75;
б) на подземных участках, расположенных на расстоянии менее 200 м от портала тоннеля, наземных и надземных участках - 37,5,
В местах соединений сварных плетей следует предусматривать температурные стыки.
Электрическое сопротивление температурного стыка должно быть не более сопротивления целого участка контактного рельса длиной 1,25 м.
Зазоры в температурных стыках принимаются по таблице 5.19.
Таблица 5.19
|
Температура рельсов* при сборке стыка, °С |
Зазоры в стыках, мм | ||
|
От |
До |
Подземные участки на расстоянии более 200 м от портала тоннеля |
Подземные участки на расстоянии менее 200 м от портала тоннеля, наземные и надземные участки |
|
Менее -30 |
- |
38 | |
|
-29 |
-26 |
- |
32 |
|
-25 |
-21 |
- |
30 |
|
-20 |
-16 |
- |
27 |
|
-15 |
-11 |
- |
25 |
|
-10 |
-6 |
38 |
23 |
|
-5 |
-1 |
36 |
20 |
|
0 |
4 |
32 |
18 |
|
5 |
9 |
26 |
16 |
|
10 |
14 |
20 |
14 |
|
15 |
19 |
14 |
11 |
|
20 |
24 |
8 |
9 |
|
25 |
29 |
2 |
7 |
|
30 |
34 |
0 |
5 |
|
35 |
39 |
- |
2 |
|
40 и более |
- |
0 | |
|
* Отрицательные температуры рельсов указаны со знаком "-". | |||
Расстояние между кронштейнами, смежными с температурным стыком, принимают не более 2,5 м.
5.7.2.6 Контактный рельс следует закреплять от угона путем установки четырех противоугонов на сварную плеть независимо от ее длины. На главных путях, располагаемых на продольном уклоне более 30‰, и в границах платформ станций в середине сварной плети следует дополнительно предусматривать спаренные кронштейны с противоугонами.
5.7.2.7 В местах секционирования контактной сети, расположения стрелочных переводов, перекрестных съездов, уравнительных приборов и оборудования, размещаемого в зоне прокладки контактного рельса, предусматривают воздушные промежутки контактного рельса.
5.7.2.8 В местах устройства воздушных промежутков на контактном рельсе главных путей предусматривают концевые отводы с уклоном 1:30 (принимающий конец) и 1:25 (отдающий конец), на станционных и соединительных путях - 1:25.
Расстояние между металлическими концами отводов контактного рельса, перекрываемое токоприемниками одного пассажирского вагона, должно быть не более 10 м, неперекрываемое токоприемниками вагона - не менее 14 м.
На участках пути с рельсами более тяжелых типов, чем Р50, расстояние между токоприемниками одного пассажирского вагона должно быть не менее 12 м.
Оборудование, устанавливаемое в пределах воздушного промежутка контактного рельса, следует располагать на расстоянии не менее 0,8 м от металлического конца отвода.
5.7.2.9 Длина контактного рельса с концевыми отводами должна быть не менее 18,7 м. В стесненных условиях, при необходимости размещения оборудования в зоне прокладки контактного рельса, длину контактного рельса с концевыми отводами допускается принимать не менее 12,5 м с его закреплением противоугонами на каждом кронштейне.
5.7.2.10 Длину контактного рельса в пределах смотровой канавы станционного пути, размещаемой за зоной оборота подвижного состава, допускается принимать по 5.7.2.9.
5.7.2.11 Рельсы путей и контактный рельс должны быть закреплены от угона.
5.7.2.12 Вдоль путей необходимо предусматривать установку путевых и сигнальных знаков.
У стрелочных переводов и перекрестных съездов следует предусматривать установку предельных реек (предельных столбиков).
5.7.2.13 Проектная документация на сооружение пути должна содержать следующие сведения об элементах пути:
- пикеты и высотные отметки путейских реперов;
- пикеты и геометрические параметры элементов плана и продольного профиля оси пути, рельсовых нитей и рельсовых стыков.
В состав документации на новые конструкции пути должны входить проект производства путевых работ и инструкция по их эксплуатации.
5.7.2.14 Расчеты верхнего строения пути и контактного рельса выполняют исходя из следующих интервалов колебания температуры рельсов:
а) на подземных участках, расположенных на расстоянии более 200 м от портала тоннеля, - от 0 до 30°С;
б) на подземных участках, расположенных на расстоянии менее 200 м от портала тоннеля, наземных и надземных участках - по техническим указаниям [11].
5.7.2.15 На станционных путях ПТО для удобного осмотра подвижного состава контактный рельс следует располагать со стороны служебной платформы.
Длина контактного рельса должна соответствовать длине служебной платформы, обеспечивать безопасный проход к помещениям ПТО и спуск в канавы.
5.8.1.1 Подземные сооружения следует оборудовать системами тоннельной и местной вентиляции с механическим побуждением воздуха.
5.8.1.2 Системы вентиляции должны обеспечивать нормируемые воздухообмен и скорости движения воздуха в сооружениях и помещениях.
5.8.1.3 Местную вентиляцию следует предусматривать для подземных и наземных производственных, бытовых и других помещений.
5.8.1.4 В помещениях станций в холодный и переходный периоды года следует предусматривать отопление или подогрев приточного воздуха или/и отопление и подогрев приточного воздуха в зависимости от мест расположения помещений и забора воздуха.
В теплый период года, при необходимости, следует предусматривать охлаждение приточного воздуха.
5.8.1.5 Расчетную температуру и теплосодержание наружного воздуха для помещений, в которые приточный воздух подается с поверхности земли, следует принимать согласно СП 131.13330 с учетом изменения параметров при прохождении его по воздушным каналам. Для подземных помещений, в которые приточный воздух подается из тоннелей, температуру воздуха следует принимать равной расчетному значению в соответствующем участке тоннеля с учетом принятой схемы тоннельной вентиляции.
5.8.1.6 Отопление наземных помещений, зданий и других сооружений следует проектировать согласно СП 60.13330.
5.8.1.7 Присоединение к тепловым сетям и наружные тепловые сети следует предусматривать по СП 124.13330.
5.8.1.8 Для нужд отопления в качестве вторичных энергоресурсов следует
использовать воздух, удаляемый системами вентиляции, а также тепло- и холодоносители производственных установок, пригодные для этих целей.
5.8.1.9 Допустимые уровни звукового давления в помещениях станций и перегонных тоннелях принимаются согласно таблице 5.37.
В качестве материалов для шумоглушения следует использовать пористые бетонные блоки, конструкции с синтетическими и другими материалами, отвечающие условиям эксплуатации в сооружениях метрополитена.
5.8.1.10 Подземные и закрытые наземные участки линий необходимо оборудовать телеметрической системой контроля следующих параметров воздуха:
а) температуры °С, относительной влажности %, СО2 (% по объему), СО (мг/м3) в центре станции, в вестибюлях (кассовых залах) станций, в центре переходов между станциями, в местах сосредоточения пассажиров, в вентиляционных киосках УТВ, по центру перегона между станцией и перегонной УТВ и по центру между УТВ, если их число на перегоне больше одной;
б) взрывоопасных и ядовитых газов на участках: пересечения газоносных геологических слоев, газо- и нефтепроводов, близко расположенных к АЗС и промышленным предприятиям, - в машинных помещениях УТВ.
5.8.1.11 Тоннельная вентиляция в комплексе с другими инженерно-техническими мероприятиями при пожаре должна обеспечивать эффективную защиту путей эвакуации людей от опасных факторов пожара.
5.8.1.12 Конструкции вентиляционных установок не должны способствовать накоплению пыли, микроорганизмов и распространению их в обслуживаемые помещения.
Воздуховоды и другие элементы установок должны иметь устройства для возможности очистки внутренних поверхностей.
5.8.1.13 В вентиляционных установках следует предусматривать устройства для обеспечения возможности замеров производительности систем.
5.8.1.14 Воздухозаборные киоски следует размещать в местах с наименьшей концентрацией вредных веществ и пыли в воздухе, при возможности - в зонах существующих или специально создаваемых зеленых насаждений (деревьев и кустарников).
Расстояние от наземных киосков вентиляционных установок тоннельной вентиляции до магистральных улиц и дорог, открытых и закрытых стоянок автотранспорта, торговых мест и окон зданий и сооружений должно быть не менее 25 м, до автозаправочных станций, складов нефти и нефтепродуктов, горючих газов, лесоматериалов, газо- и нефтепроводов, объектов нефтеперерабатывающей и химической промышленности - не менее 100 м. Допускается уменьшать указанное расстояние до значений, при которых концентрация вредных веществ в местах размещения воздухозаборных устройств не превышает ПДК с учетом фоновых концентраций.
В условиях стесненной городской застройки для трасс мелкого заложения киоски вентиляционных установок в постоянном режиме эксплуатации, работающие как на выброс, так и на приток, допускается размещать на расстоянии менее 25 м от проезжей части дорог и менее 100 м от газо- и нефтепроводов. В этом случае положение вентиляционного киоска определяется требованиями норм генерального плана по размещению сооружений относительно подземных коммуникаций и при условии выполнения требований 5.8.2.11.
Киоски УТВ глубокого заложения необходимо располагать с относом от стволов шахт с учетом градостроительных условий и требований по охране окружающей среды. Допускается, при обосновании, располагать киоски непосредственно на оголовке ствола.
Отверстия в воздухозаборных и воздуховыпускных каналах тоннельной вентиляции, встроенных в здания или размещаемых на расстоянии от здания менее нормированного значения, следует располагать на высоте не менее 2 м над кровлей более высокой части здания.
Расположение киосков станционных установок при их работе в режиме дымоудаления не должно препятствовать эвакуации пассажиров и персонала.
Вентиляционные киоски УТВ и УМВ следует размещать отдельно стоящими, встроенными в наземные вестибюли станций или пристроенными к другим зданиям.
Воздухозаборные и воздуховыпускные отверстия киосков следует размещать на расстоянии, исключающем рециркуляцию удаляемого воздуха. Размеры отверстий должны быть не менее:
для УТВ - 25 м по горизонтали; по вертикали - согласно расчету, но не менее 6 м;
для УМВ - 10 м по горизонтали или 6 м по вертикали.
Расстояние от низа отверстий киосков до поверхности земли следует принимать не менее 2 м (для периодически подтапливаемых мест - выше уровня подтопления).
Конструкция решеток на воздухозаборных и воздуховыпускных отверстиях киосков должна исключать попадание внутрь атмосферных осадков. С внутренней стороны решеток необходимо закреплять металлическую сетку с ячейками 20x20 мм и антивандальные решетки.
Конструкция киосков должна исключать несанкционированное попадание внутрь людей, животных, птиц и посторонних предметов.
Входы в киоски должны иметь пороги высотой 0,2 м от уровня земли.
Киоски должны иметь охранную сигнализацию согласно 5.22.2.
В киосках УТВ следует предусматривать балку грузоподъемностью не менее 1 т.
5.8.1.15 В вентиляционных установках необходимо предусматривать размещение оборудования, обеспечивающее его удобную и безопасную эксплуатацию, площадки для обслуживания, монтажные проемы, грузоподъемные устройства и другие средства механизации для его транспортирования через вентиляционные киоски и перегонные тоннели.
Грузоподъемность и размеры устройств следует принимать исходя из условий транспортирования наибольшего по массе и размерам элемента оборудования.
Зоны обслуживания вентиляторов, размеры проемов и размещение грузоподъемных устройств следует предусматривать с учетом рекомендаций предприятий - изготовителей оборудования.
5.8.1.16 Электроснабжение и управление вентиляционными установками предусматривают согласно 5.10, 5.11 и 5.16.
5.8.2.1 Тоннельную вентиляцию следует предусматривать для пассажирских помещений подземных и наземных закрытых станций, пересадочных коридоров между станциями, перегонных и тупиковых тоннелей, тоннелей соединительных веток, а также наземных закрытых участков линий.
5.8.2.2 При проектировании системы тоннельной вентиляции следует учитывать:
- нормируемые параметры микроклимата и состава воздуха в сооружениях согласно 5.17;
- нормируемые метеорологические условия города;
- гидрогеологические условия залегания линии;
- наличие термальных и сернистых вод в окружающих грунтах;
- выделение радона, метана и иных газов из окружающих грунтов;
- преобладание количества приточного воздуха над удаляемым на 15%-20%;
- обеспечение не менее чем трехкратного воздухообмена в час по внутреннему объему пассажирских и других помещений, обслуживаемых тоннельной вентиляцией;
- подачу наружного воздуха не менее 30 м3/ч на одного пассажира;
- обеспечение предельно допустимых концентраций вредных веществ в воздухе тоннелей и пассажирских помещений согласно 5.17;
- годовой тепловой баланс, обеспечивающий допустимые параметры температуры и относительной влажности воздуха при минимальном росте температуры окружающих грунтов;
- влияние негативных факторов, возникающих при прогнозируемых чрезвычайных ситуациях техногенного и другого характера;
- применение устройств для снижения шума и вибрации, возникающих при работе вентиляционных агрегатов;
- изменение теплового режима окружающего грунтового массива и его теплофизических характеристик под воздействием многолетней эксплуатации метрополитена;
- изменение нагрузок на систему тоннельной вентиляции за счет прогнозируемого роста пассажиропотоков и теплового воздействия на окружающий грунтовый массив;
- дымоудаление при пожаре на станции или в тоннеле;
- применение мероприятий по снижению влияния эффекта "дутья", возникающего при движении поездов.
При определении расчетных нагрузок на систему тоннельной вентиляции следует учитывать изменение (увеличение) температур окружающего грунтового массива, вызванное многолетней эксплуатацией метрополитена, и использовать в качестве расчетных параметров и температур грунтового массива параметры и температуры грунта, ожидаемые не менее чем на пятый год эксплуатации метрополитена.
5.8.2.3 При обосновании допускается принимать количество воздуха, подаваемого системой тоннельной вентиляции, из условий поддержания нормируемых параметров микроклимата и ПДК вредных веществ без обеспечения трехкратного воздухообмена.
5.8.2.4 Схемы вентиляции следует принимать однонаправленными - с круглогодичной подачей наружного воздуха в перегонные тоннели или на станции либо реверсивными - с сезонной подачей наружного воздуха в перегонные тоннели или на станции с удалением воздуха со станций или из перегонных тоннелей соответственно.
Для закрытых наземных участков линии допускается принимать естественную вентиляцию за счет использования поршневого действия поездов. Возможность использования естественной вентиляции в режиме дымоудаления определяют расчетом.
Допускается применение иных схем вентиляции, обеспечивающих реализацию нормируемых требований во всех эксплуатационных режимах.
5.8.2.5 Для обеспечения нормируемых условий в пассажирских помещениях станций и тоннелях применяются нагрев и охлаждение подаваемого вентиляционными установками воздуха, с рекуперацией и/или утилизацией теплоты удаляемого вытяжного воздуха, включая его частичную рециркуляцию, с сохранением подачи нормируемого количества наружного воздуха и обеспечения режима дымоудаления.
5.8.2.6 Для вентиляции отстойно-оборотных тупиков и тупиковых участков главных тоннелей следует предусматривать отдельные вентиляционные установки с удалением воздуха непосредственно на поверхность земли. Допускается на участках глубокого и, при обосновании, мелкого заложения, для вентиляции однопутных отстойно-оборотных тупиков, тупиковых участков главных путей и однопутных тупиков, расположенных на перегоне, предусматривать сбойки в тоннели главных путей с установкой в одной из них двух вентиляторов.
5.8.2.7 Количество приточного воздуха (или смеси наружного и рециркуляционного воздуха) для обеспечения нормируемых метеорологических условий, кратности воздухообмена, требований раздела 5.16 и СП 60.13330 следует определять расчетом.
5.8.2.8 Для вентиляции тоннелей соединительных веток и веток в депо приточный воздух следует подавать из атмосферы или из перегонных тоннелей.
5.8.2.9 При применении охлаждения или нагрева приточного воздуха в вентиляционных установках следует использовать поверхностные теплообменники. При использовании контактных воздухоохладителей следует предусматривать оборотное водоснабжение с очисткой воды до параметров согласно СанПиН 2.1.4.1074.
Системы холодоснабжения надлежит предусматривать по СП 60.13330.
5.8.2.10 УТВ должны обеспечивать нормативные микроклиматические условия в пассажирских помещениях согласно 5.17, при этом необходимо принимать следующие расчетные параметры микроклимата в обслуживаемых сооружениях и помещениях:
- в теплый период года:
а) температуру воздуха в платформенных и кассовых залах станций и коридорах между станциями, не выше:
1) 28°С - для городов с расчетными температурами наружного воздуха по параметру А 24°С и менее;
2) 30°С - для городов с расчетными температурами наружного воздуха по параметру А более 24°С;
б) температуру удаляемого воздуха в конце расчетного участка для городов с расчетными температурами наружного воздуха по параметру А 24°С и менее при пропускной способности линии 40 пар поездов в час - не выше, соответственно, 33°С - при удалении на перегоне, при соблюдении нормативных значений величины интегрального показателя тепловой нагрузки в соответствии с СанПиН 2.2.4.548;
в) температуру удаляемого воздуха в конце расчетного участка для городов с расчетными температурами наружного воздуха по параметру А более 24°С независимо от пропускной способности линии - не выше 35°С - при удалении на перегоне, при соблюдении нормативных значений величины интегрального показателя тепловой нагрузки согласно СанПиН 2.2.4.548;
- в холодный период года:
а) температуру воздуха в платформенных залах станций и коридорах между станциями:
1) для городов с расчетной температурой наружного воздуха для теплого периода года по параметру А 24°С и менее - не выше чем на 2°С естественной температуры грунта, но не ниже 5°С;
2) для городов с расчетной температурой наружного воздуха для теплого периода года по параметру А более 24°С - не выше естественной температуры грунта, но не ниже 10°С;
б) температуру воздуха в кассовых залах - не ниже 10°С.
Необеспеченность указанных параметров должна составлять не более 700 ч времени работы в течение года.
5.8.2.11 Концентрация вредных веществ в тоннелях и на станциях не должна превышать ПДК согласно ГОСТ 12.1.005 с учетом фоновых концентраций этих веществ в местах размещения воздухоприемных устройств.
Концентрацию вредных веществ в местах забора наружного воздуха следует принимать с учетом фоновых концентраций этих веществ, но не более ПДК в воздухе населенных мест.
При превышении ПДК вредных веществ в местах забора воздуха обеспечение подачи приточного воздуха с нормируемым содержанием вредных веществ должно осуществляться снижением их концентрации до нормируемых величин. Мероприятия и затраты по нормализации воздушной среды следует определять на ранних стадиях проектирования с участием территориальных органов власти и служб Роспотребнадзора.
5.8.2.12 В расчетах систем вентиляции подземных и закрытых наземных линий следует принимать следующие параметры наружного воздуха:
а) в теплый период года - параметры А согласно СП 60.13330;
б) в холодный период года - для подземных линий - средние температуры и соответствующие им теплосодержания в этот период согласно СП 131.13330;
в) для закрытых наземных участков линий - параметры Б согласно СП 60.13330.
Расчеты необходимо проводить с учетом следующих положений:
а) для линий глубокого заложения - изменения расчетной температуры приточного воздуха в каналах вентиляционной установки с учетом их протяженности и расчетного периода года;
б) для линий мелкого заложения в теплый период года - влияния солнечной радиации на температуру прилегающих к тоннелям грунтов;
в) для однонаправленной схемы вентиляции с круглогодичной подачей наружного воздуха на перегоне и удалением со станции - принимать температуру в конце расчетного участка равной нормируемым параметрам на станциях в соответствующий период года.
В холодный период года температуру воздуха на платформах станций и в коридорах между станциями при обосновании невозможности поддержания нормируемых верхних пределов температуры следует принимать по результатам расчета такой, при которой достигаются нормируемые значения параметров воздушной среды в течение расчетного срока эксплуатации. При этом предельную температуру воздуха следует принимать равной 16°С.
5.8.2.13 В УТВ станций, перегонных тоннелей и тупиков, включая однопутные тупики, следует предусматривать не менее двух вентиляторов, в УТВ соединительных тоннелей - один вентилятор. Вентиляторы следует оборудовать устройством плавного пуска и регулирования производительности.
Вентиляторы должны обеспечивать поддержание расчетных условий в заданных режимах эксплуатации, включая противодымную вентиляцию, с учетом местных климатических условий.
Производительность каждого вентилятора, в зависимости от применяемой схемы вентиляции, должна составлять 50% или 100% требуемой производительности УТВ.
Производительность и напор вентиляторов необходимо определять с учетом:
- параллельной работы вентиляторов;
- влияния поршневого эффекта, возникающего при движении поездов;
- обеспечения противодымной вентиляции при пожаре согласно 5.16.
Электрооборудование следует размещать в отдельном помещении (щитовой), примыкающем к машинному помещению. В щитовой должны быть системы вентиляции и отопления, обеспечивающие температуру воздуха не менее 5°С.
Машинные помещения и щитовые следует располагать в уровне перегонных тоннелей, допускается их расположение и в уровне верхнего вентиляционного тоннеля.
5.8.2.14 Для вентиляции тоннелей ветки в электродепо следует предусматривать отдельную вентиляционную установку. Расположение установки следует принимать исходя из конструкции тоннеля и трассы ветки.
Возможно применение струйных вентиляторов в сочетании с приточной вентиляционной камерой или без нее. Необходимость реверсирования определяется схемой вентиляции. Возможно применение других технических решений.
5.8.2.15 Вентиляционный тоннель УТВ должен примыкать независимо к каждому тоннелю. Допускается примыкание к одному тоннелю при условии сооружения сбойки между тоннелями, площадь живого сечения которой определяют расчетом. При этом должен быть обеспечен режим противодымной вентиляции из каждого тоннеля независимо от другого.
Примыкание вентиляционных тоннелей к перегонным следует предусматривать сбоку, к сбойке между тоннелями - сверху или, в исключительных случаях, снизу с обеспечением возможности удаления дренажных вод из вентиляционных тоннелей, расположенных ниже уровня головок рельсов. Примыкание вентиляционных тоннелей к двухпутному перегонному тоннелю следует предусматривать исходя из конструкции тоннеля с учетом требований 5.16.5.3. Для приточных шахт, размещаемых в одном котловане со станцией, вентиляционный тоннель должен примыкать к перегонному тоннелю в торце станции при обеспечении мер, исключающих попадание холодного воздуха на станцию и в станционные сооружения.
Примыкание каналов сверху (за исключением каналов эжекционной вентиляционной установки) или снизу непосредственно к перегонным тоннелям не допускается.
В городах со средней температурой наружного воздуха самого холодного месяца ниже 0°С примыкание приточных каналов следует предусматривать не ближе 200 м от ВОУ. При невозможности соблюдения этого требования должны быть предусмотрены технические решения, обеспечивающие работоспособность ВОУ и прилегающих к ней открытых и закрытых дренажей при воздействии отрицательных температур.
5.8.2.16 Количество приточного воздуха для теплого и холодного периодов года определяется с учетом 5.8.2.4, 5.8.2.7, 5.8.2.9:
а) по теплоизбыткам, составляющим разницу между тепловыделениями в тоннелях и теплопоступлениями в грунт, - для теплого периода года;
б) по тепловыделениям, составляющим сумму тепловыделений в тоннелях и теплопоступлений из грунтов, - для холодного периода года, и следует принимать наибольший из полученных результатов.
В расчетах необходимо определять:
- среднечасовые значения суммарных тепловыделений в тоннелях и на станциях от поездов, оборудования, осветительных приборов, кабельных сетей и пассажиров в течение суток за период движения поездов;
- нестационарный тепловой поток из тоннелей в грунт в теплый период года, а также из грунта в тоннели в холодный период года для охлаждения грунтов до температуры, минимально превышающей естественную температуру грунта, определенную до начала эксплуатации линий. При этом следует учитывать изменение (увеличение) температур окружающего грунтового массива, вызванное многолетней эксплуатацией метрополитена, и в качестве расчетных тепловых потоков использовать потоки, ожидаемые не менее чем на десятый год эксплуатации метрополитена;
- циркуляционные потоки воздуха, возникающие при движении поездов;
- аэродинамическое сопротивление воздушного тракта (включая перегонные тоннели и станционные пассажирские помещения) при движении по нему воздуха, подаваемого вентиляторами с учетом циркуляционных потоков воздуха, создаваемых поршневым действием при движении поездов.
За расчетный участок следует принимать расстояние между осями двух смежных станций или между осью станции и вентиляционной установкой, расположенной в конце тупика.
Удаление избыточного тепла, аккумулированного грунтом в теплый период года, следует предусматривать путем охлаждения приточного воздуха с помощью теплонасосного или холодильного оборудования в сочетании с использованием максимальной производительности вентиляционных установок в переходные периоды года при температуре наружного воздуха выше 0°С и ниже температуры грунтов, окружающих тоннели, включая ночное время суток. При этом использование максимальной производительности вентиляционных установок должно быть подтверждено численной оценкой параметров теплового режима окружающего грунтового массива, ожидаемых на десятый год эксплуатации.
5.8.2.17 Подачу и удаление воздуха необходимо предусматривать:
а) в уровне пассажирских платформ станций - по горизонтальным каналам под платформами или над ними и по вертикальным каналам у обоих концов платформ и через отверстия под и над платформой или в их концах; на станциях пилонного типа, кроме того (при конструктивной возможности), по вертикальным каналам в каждом пилоне, с выпуском (забором) воздуха со стороны платформенных и средних залов, а также другие способы распределения с учетом принятой схемы тоннельной вентиляции;
б) в эскалаторном тоннеле - раздельно по двум частям сечения тоннеля: верхней - пассажирской и нижней - вентиляционно-кабельному отсеку. Вместо вентиляционно-кабельного отсека возможно использовать ствол станционной шахты, сооружаемой для обеспечения подземных строительных работ, а также специально сооружаемые ствол или скважины;
в) в коридорах между станциями длиной менее 50 м - по сечению коридора; длиной более 50 м - по воздуховоду (каналу) с выпуском воздуха равномерно вдоль коридора или сосредоточенно и удалением - по сечению коридора;
г) в перегонных тоннелях, тупиковых и соединительных тоннелях, кассовых залах вестибюлей станций, подуличных пешеходных переходах - по сечению указанных сооружений;
д) посредством использования вентиляционного канала или воздуховода.
Высота горизонтальных каналов в свету должна быть не менее 1,8 м; на отдельных участках длиной не более 15 м допускается уменьшение высоты каналов до 1,1 м.
5.8.2.18 Перегонные УТВ следует располагать с учетом принятой системы вентиляции:
а) для схем вентиляции обоих тоннелей одной установкой - в середине перегона и, по возможности, между тоннелями. Для линий в городах с расчетной температурой наружного воздуха самого холодного месяца ниже 0°С допускается расстояние от конца платформы станции до места примыкания вентиляционного тоннеля к перегонному принимать равным 1/3 длины перегона, но не менее 400 м;
б) для схем с раздельной вентиляцией каждого тоннеля - у станций (с принятием технических решений, исключающих охлаждение станций);
в) для схем вентиляции двухпутного тоннеля УТВ следует выполнять на перегоне, в объеме станционных комплексов или в объеме стартовых котлованов. УТВ может располагаться на удалении от точек подачи при наличии вентиляционной сети (канал, воздуховод).
5.8.2.19 УТВ на станциях следует располагать между тоннелями, сбоку, а для станций мелкого заложения - и над перекрытием станций с учетом их планировочных особенностей.
Вход в машинные помещения с уровня платформы станции предусматривается через тамбуры.
5.8.2.20 При расположении УТВ двух линий в месте их пересечения в качестве воздушного вертикального канала допускается использовать вентиляционный ствол шахты одной из установок с устройством в нем сплошной противопожарной перегородки с пределом огнестойкости не менее REI90. Расстояние между вентиляционными киосками установок следует определять расчетом, но принимать не менее 25 м.
5.8.2.21 Скорость движения воздуха, м/с, следует принимать, не более:
а) в горизонтальных и вертикальных вентиляционных тоннелях - 8;
б) в вентиляционно-кабельных отсеках эскалаторных тоннелей, а также, при обосновании, в вентиляционных тоннелях - 15;
в) через решетки вентиляционных киосков - 5.
5.8.2.22 Для защиты тоннелей от переохлаждения в местах их выхода на поверхность используются:
- воздушные завесы шиберующего типа или воздушно-тепловые завесы смесительного типа;
- сбойки между тоннелями у порталов (площадь сечения определяют расчетом) и диафрагмы, ограничивающие площадь живого сечения тоннелей до предельно допустимой, располагаемые в каждом однопутном тоннеле после сбойки (по направлению движения поезда);
- подпор воздуха на прилегающем участке линии.
5.8.2.23 Воздуховыпускные и воздухозаборные отверстия на станции следует предусматривать с регулируемым сечением.
5.8.2.24 Регулирование количества подаваемого или удаляемого воздуха при различных режимах работы следует предусматривать путем изменения числа работающих вентиляторов, числа оборотов рабочих колес вентиляторов, угла установки лопаток рабочих колес, применения дросселирующих устройств и других способов.
5.8.2.25 Для снижения эффекта "дутья" при превышении нормируемых расчетных скоростей воздуха на станциях мелкого заложения между прилегающими к ней перегонными тоннелями следует предусматривать по две циркуляционные сбойки:
в торцах станций или в удалении от них на расстоянии не более 120 м, площадь поперечного сечения сбойки - 40-50 м2;
вторая - на расстоянии не более 250 м от первой и не менее расчетной длины поезда на перспективу, площадь поперечного сечения - 20-30 м2.
При невозможности сооружения второй сбойки в вестибюлях станции следует предусматривать установку дополнительно одного ряда входных дверей.
У станций с путевым развитием циркуляционные сбойки предусматривают только со стороны, противоположной путевому развитию.
При расчетном обосновании вентиляционные сбойки возможно не предусматривать.
При установке перегородок, отделяющих путевую часть станции от пассажирской, необходимость сооружения циркуляционных сбоек следует определять из конструктивных решений по вентиляции пассажирской части станции и объемно-планировочных решений станционного комплекса.
При превышении нормируемых расчетных скоростей воздуха следует принимать объемно-планировочные решения станций, обеспечивающие снижение скорости воздуха.
5.8.2.26 Места примыкания проемов машинных помещений и тоннелей УТВ, вентиляционных сбоек (кроме циркуляционных сбоек) к перегонным и тупиковым тоннелям следует закрывать решетками с дверями, открывающимися внутрь. Узлы крепления решеток должны обеспечивать их удобный и быстрый демонтаж.
5.8.2.27 В УТВ в качестве регулирующих и перекрывающих устройств необходимо использовать клапаны с плотным прилеганием створок на нагрузку не менее 100 кгс/м2 (1 кПа). Управление и сигнализацию вентиляционных клапанов в шахтах и противодутьевых сбойках следует предусматривать из диспетчерского пункта инженерного корпуса метрополитена с учетом режимов работы шахт тоннельной вентиляции в транспортном режиме и режиме дымоудаления. В зависимости от условий применения клапаны должны иметь электрический и ручной или только ручной приводы и сигнализацию положения.
В перегородках машинных помещений, разделяющих зоны всасывания и нагнетания, применяют уплотненные двери, обеспечивающие безопасный проход при работающих вентиляторах, оборудованные сигнализацией положения, или тамбуры.
5.8.2.28 Системы тоннельной вентиляции должны обеспечивать эффективную противодымную защиту путей эвакуации людей в соответствии с 5.16.
Транзитные воздуховоды, прокладываемые до санитарно-бытовых, бытовых и производственных помещений или через эти помещения в местах прохода через конструкции с нормируемыми пределами огнестойкости, должны отвечать требованиям по противопожарной безопасности для систем отопления, вентиляции и кондиционирования.
5.8.2.29 Для вентиляции подземных кассовых залов вестибюлей станций, примыкающих к ним подуличных переходов, кабельных тоннелей и коридоров между станциями следует использовать воздух, подаваемый на станции системой тоннельной вентиляции.
Для вентиляции подземных вестибюлей станций, включающих в свой объем зоны попутного обслуживания пассажиров (магазины, предприятия общественного питания и т.д.), возможно использовать наружный воздух.
5.8.2.30 Количество приточного воздуха (наружного или смеси наружного и рециркуляционного воздуха) следует определять расчетом по СП 60.13330 или по кратности воздухообмена согласно таблице 5.20 исходя из обеспечения нормируемых метеорологических условий, требований 5.17 или кратности воздухообмена. Воздухообмен в производственных помещениях с избытками тепла следует рассчитывать с учетом ассимиляции тепла приточным воздухом без учета тепла, поступающего в грунт.
Кратность воздухообмена согласно таблице 5.20 для помещений наземных вестибюлей с окнами, за исключением помещений, указанных в пунктах 6, 7, 12, 14 и 15, следует уменьшать на 60%.
Таблица 5.20
|
Назначение (наименование) помещения |
Расчетная температура воздуха, °С, в период года |
Кратность воздухообмена в час | ||
|
холодный |
теплый |
приток |
вытяжка | |
|
1 Пассажирские помещения |
Не ниже 10 |
Примечание 1 |
- |
- |
|
2 Платформа станции |
Не ниже 5 |
- |
- |
- |
|
3 Помещение касс, старшего кассира, бригадира кассового участка, начальника станции, поста полиции, мастера эскалаторной службы, машиниста эскалатора, служб электромехаников, линейного пункта машинистов, ДПС**, ДСП-КПОП**, серверной, службы безопасности, диспетчерская, пожарный пост |
20 |
22 |
6* |
4* |
|
4 Помещение подсчета монет |
20 |
Примечание 1 |
6* |
4* |
|
5 Комнаты ночного отдыха локомотивных бригад (ММ) |
22-24 |
22 |
6* |
4* |
|
6 Медицинский пункт |
22-24 |
23-25 |
4 |
6 |
|
7 Помещение приема пищи |
22 |
Примечание 1 |
4* |
6* |
|
8 Кладовые (за исключением кладовых КСМ), машинные помещения вентиляционных установок |
Примечание 1*** |
То же |
4* |
4* |
|
9 КСМ |
Примечание 1*** |
Примечание 1 |
- |
20 |
|
10 Кладовая ТБО |
То же |
То же |
- |
4 |
|
11 Кладовая опилок |
5 |
" |
- |
4 |
|
12 Кубовая |
16 |
" |
6 |
10 |
|
13 Мастерская, гардеробная |
16 |
" |
6 |
6 |
|
14 Душевая |
25 |
" |
- |
6 |
|
15 Помещение для сушки специальной одежды |
16 |
" |
- |
25 м3/ч от шкафа |
|
16 Гардеробная при душевой |
23 |
" |
6 |
- |
|
17 Туалет |
16 |
" |
- |
100 м3/ч на унитаз |
|
18 Умывальная, кладовая на перегоне***, натяжная камера*** |
16 |
" |
- |
4 |
|
19 Насосная на станции***, насосная на перегоне, камера артезианской скважины, камера сантехнической скважины |
5 |
" |
- |
5 |
|
20 Тепловой пункт*, водомерный узел |
5*** |
" |
4 |
4 |
|
21 Аккумуляторная |
Примечание 1*** |
20 |
3* |
3* |
|
22 Машинное помещение подстанции |
То же |
35 |
4* |
4* |
|
23 Помещение РУ подстанции, щитовая |
16** |
30 |
4* |
4* |
|
24 Кабельный тоннель |
- |
35 |
4 |
4 |
|
25 Машинное помещение эскалаторов |
16*** |
Примечание 2 |
8* |
6* |
|
26 Кабина контролера АКП, кабина оператора эскалатора, помещение стрелочника |
22** |
Примечание 1 |
- |
3 (но не менее 60 м3/ч) |
|
27 Коридор между станциями*, служебные коридоры |
Примечание 1*** |
Примечание 2 |
4 |
4 |
|
28 Релейная, аппаратная, кроссовая, радиоузел, ЛАЦ |
18** |
28 |
6* |
4* |
|
29 Щитовые ИБП, СГЭ |
20** |
20 |
6* |
4* |
|
Примечания 1 Расчетную температуру следует принимать по 5.8.2.10 применительно к пассажирским помещениям станций (для остальных помещений - с учетом сноски ***). 2 Температура должна быть на 5°С выше расчетной наружной температуры, но не более 28°С. В машинных помещениях эскалаторов пересадочных узлов допускается температура воздуха 32°С. 3 В помещениях с постоянным пребыванием персонала, где более 40% поверхности стен, потолков и пола непосредственно примыкает к грунту, расчетную температуру воздуха для отопления следует принимать на 2°С выше указанной в таблице. * Следует проверять расчетом и принимать по максимальному значению. ** Следует применять электроотопление. *** Отопление не требуется. | ||||
5.8.2.31 Вентиляционные установки машинных помещений с сухими трансформаторами и помещений в ТПП на станциях и в ПП на перегонах ТПП, производственных, административных и других помещений с постоянным пребыванием людей в течение рабочей смены, на подземных станциях следует предусматривать не менее чем с двумя приточными и двумя вытяжными вентиляторами; производительность каждого из них должна быть не менее 50% расчетной производительности установки.
5.8.2.32 Для помещений с постоянным пребыванием людей следует применять отдельные вентиляционные установки с подогревом воздуха в холодный период года воздухонагревателями или охлаждением его в теплый период кондиционерами.
Наружные блоки кондиционеров следует устанавливать в отдельных помещениях, оборудованных системой приточно-вытяжной вентиляции, или на поверхности в венткиосках, в помещениях и сооружениях, вентилируемых системой тоннельной вентиляции. Допускается наружные блоки кондиционеров устанавливать в помещениях, соединяемых проемами с пешеходными переходами, вентилируемыми системой тоннельной вентиляции; на фасаде, крыше вестибюля при условии обеспечения доступа для обслуживания оборудования. Расход приточного воздуха для вентиляции помещения наружных блоков кондиционеров следует определять из условия ассимиляции избыточного тепла, выделяемого при работе оборудования.
5.8.2.32а Конструкции воздуховодов (вентиляционных веток) диаметром более 300 мм систем местной вентиляции, имеющих выход на поверхность, должны исключать проникновение посторонних лиц на объекты метрополитена.
5.8.2.33 Помещения медицинских пунктов, туалетов, канализационных установок, кладовых КСМ, ТБО и опилок, комнаты приема пищи следует оборудовать отдельными вытяжными установками.
5.8.2.34 Оборудование УМВ туалетов, медицинских пунктов, кладовых КСМ следует устанавливать в отдельных помещениях.
5.8.2.35 При размещении отверстий для притока или выброса воздуха в перекрытии перегонных тоннелей проекция отверстия в плане должна располагаться за пределами габарита подвижного состава.
5.8.2.36 Воздухозаборы и воздуховыпуски установок допускается размещать в подуличных переходах, являющихся входами в подземные вестибюли станций на высоте не менее 2 м, за исключением воздуховыпусков из помещений туалетов, кладовых КСМ, машинных помещений эскалаторов, медпунктов и душевых. Скорость движения воздуха через решетки воздухозаборных и воздуховыпускных устройств следует определять из условий их расположения, но не более 5 м/с.
5.8.2.37 Расход приточного воздуха в машинные помещения эскалаторов и ТПП следует определять из условий ассимиляции избыточного тепла, выделяемого при работе оборудования.
Расход приточного воздуха для помещений АБ, в зависимости от типа батареи, определяют расчетом.
При использовании в аккумуляторных герметизированных необслуживаемых аккумуляторов забор воздуха предусматривается из перегонного тоннеля, по которому поезд прибывает на станцию, а выброс - в перегонный тоннель, по которому поезд уходит со станции.
При применении АБ открытого типа выбросы из помещений АБ следует осуществлять на поверхность земли.
5.8.2.38 Воздух, подаваемый в производственные и бытовые помещения подземных станций, следует забирать:
а) в помещения на уровнях этажей вестибюля - с поверхности земли, из подуличного перехода у лестничного схода, из вестибюля или из тоннеля;
б) в помещения на уровне платформенной части станции, включая помещения с постоянным пребыванием людей, - с поверхности земли, со станции или из перегонного тоннеля.
Воздух из помещений туалетов и канализационных установок, КСМ, медпунктов, душевых и помещений для сушки спецодежды, комнат приема пищи, машинных помещений эскалаторов следует удалять на поверхность земли. Для станций глубокого и мелкого заложения допускается удаление воздуха в тоннель из помещений медпунктов, туалетов, кладовых КСМ и комнат приема пищи. В вентиляционных установках при этом предусматривают резервные вентиляторы и фильтры на полную производительность системы.
При удалении воздуха на поверхность земли из помещений туалетов и канализационных установок на станциях глубокого заложения следует использовать кольцевое пространство между напорным трубопроводом установки и обсадной трубой ее скважины, из помещений туалетов на станциях мелкого заложения - самостоятельный воздуховод.
Воздух, удаляемый из других помещений, следует возвращать в тоннель за местом его забора по направлению движения поезда, уходящего со станции, на поверхность земли или в подуличный пешеходный переход.
5.8.2.39 Для аппаратных АТДП, аккумуляторных и машинных помещений эскалаторов необходимо предусматривать отдельные приточно-вытяжные вентиляционные установки. Для обеспечения санитарно-гигиенических условий труда, паспортных требований по обеспечению условий работы машин и оборудования, необходимо предусматривать рециркуляцию, а также подогрев или охлаждение воздуха.
Удаление воздуха из машинных помещений эскалаторов пересадочных сооружений станций глубокого заложения следует предусматривать в тоннели или вентиляционные каналы под платформой с учетом работы тоннельной вентиляции и организации режима противодымной вентиляции.
5.8.2.40 Для КСМ надлежит предусматривать отдельные вытяжные вентиляционные установки. Поступление воздуха необходимо предусматривать из коридоров через клапаны избыточного давления, устанавливаемые в стенах тамбуров на входах в тамбуры из коридора и отверстия в стенах, разделяющих тамбуры и помещения с установкой противопожарных нормально открытых клапанов.
Для машинных помещений подземных ТПП предусматривают отдельные приточно-вытяжные вентиляционные установки с забором воздуха с поверхности земли или из перегонного тоннеля, по которому поезд прибывает на станцию, и выпуском воздуха на поверхность или в перегонный тоннель после станции по направлению движения поезда, для помещений РУ подстанций - приточно-вытяжные установки с забором воздуха из перегонного тоннеля. Решение уточняется в зависимости от категории помещения.
Допускается применение рециркуляционных систем вентиляции с охлаждением воздуха.
5.8.2.41 Для вентиляции помещений водоотливных установок и зумпфа следует использовать вытяжную вентиляцию с забором и удалением воздуха из одного тоннеля независимо от места расположения установки. Выброс воздуха в тоннель располагают за местом забора воздуха по ходу движения поезда.
5.8.2.42 Размещение оборудования вентиляционных установок предусматривают в соответствии с СП 60.13330 и нормативными документами по пожарной безопасности. Используемые в вентиляционных системах противопожарные клапаны должны отвечать требованиям противопожарных норм.
Вентиляторы вытяжных установок КСМ следует устанавливать взрывозащищенного типа с взрывозащищенным электродвигателем. Используемые в вентиляционных системах противопожарные клапаны должны соответствовать требованиям нормативных документов по пожарной безопасности. При возникновении пожара вентилятор должен автоматически отключаться, противопожарный клапан - закрываться. Решение уточняется в зависимости от категории помещения.
В машинных помещениях установок предусматривают закладные элементы для крепления инвентарных грузоподъемных средств малой механизации.
5.8.2.43 Для обеспечения в вестибюлях и платформенных залах станций нормируемых параметров воздушной среды в холодный период года в городах со средней температурой наружного воздуха самого холодного месяца ниже 0°С следует предусматривать воздушно-тепловую или воздушную завесу. Температуру и теплосодержание наружного воздуха для расчета ВТЗ следует принимать по параметрам Б СП 60.13330.
Забор воздуха для ВТЗ следует предусматривать из помещения кассового зала вестибюля, подачу - в тамбур между двумя линиями дверей входов в кассовый зал. Допускаются иные схемы подачи и забора воздуха (вертикальной струей, односторонней подачей в тамбур и в кассовый зал), а также использование подвесных и напольных ВТЗ.
При горизонтальной подаче скорость воздуха в подающей решетке должна быть не более 6 м/с, низ решетки необходимо располагать на высоте 0,3 м от пола, верх - не выше 1,5 м.
При вертикальной подаче скорость воздуха определяют в зависимости от высоты расположения приточной решетки.
Перед калориферами предусматривают очистку подаваемого воздуха в противопыльных фильтрах.
Трубную обвязку калорифера ВТЗ следует рассчитывать на подачу в тамбур воздуха температурой не выше 45°С в объеме, обеспечивающем подогрев поступающего в кассовый зал наружного воздуха до температуры 10°С.
На трубопроводах теплоснабжения ВТЗ следует устанавливать шаровые вентили с электроприводами, сблокированные с работой ВТЗ.
Необходимость устройства ВЗ или ВТЗ в порталах тоннелей следует устанавливать расчетом исходя из обеспечения в холодный период года температуры воздуха на ближайшей к порталу станции не ниже 5°С.
5.8.2.44 В производственных и бытовых помещениях станций применяют воздуховоды из негорючих материалов, соответствующих санитарно-гигиеническим требованиям.
Прокладка транзитных воздуховодов через помещение КСМ не допускается.
5.8.2.45 Разработку технических решений по использованию тепловых вторичных энергетических ресурсов следует выполнять по СП 60.13330.
5.8.3.1 Для каждого вестибюля станции следует предусматривать самостоятельный ввод тепловой сети и тепловой пункт. При обосновании возможно предусматривать один ввод на два вестибюля станции. Теплоснабжение вестибюлей станций и подогрев/охлаждение приточного воздуха тоннельных систем вентиляции следует осуществлять за счет теплонасосных систем теплохладоснабжения (ТСТ), использующих низкопотенциальное тепло вытяжного воздуха метрополитена, а при соответствующем обосновании - от городских распределительных тепловых сетей ТЭЦ, районных котельных, водяных или паровых котельных, предприятий или жилых зданий, а также от иных автономных источников тепла. Расчетную температуру в помещениях следует принимать согласно таблице 5.20.
5.8.3.2 Вводы наружных тепловых сетей следует предусматривать в помещения тепловых пунктов, располагаемые в вестибюлях станций; высота помещения - не менее 2,2 м, ширина проходов для обслуживания оборудования - не менее 0,8 м. Тепловые пункты предусматривать следует с учетом СП 41-101 [13].
Не допускается размещение тепловых пунктов, ВТЗ и УМВ с перегретой водой в качестве теплоносителя над пассажирскими помещениями, помещениями аппаратных, релейных, кроссовых, подстанций, машинных помещений эскалаторов, над перегонными тоннелями. Полы помещений теплового пункта, ВТЗ и УМВ должны иметь металлическую гидроизоляцию с выводом на стены на 200 мм выше отметки чистого пола.
5.8.3.3 При применении на станции одного теплового ввода тепловые пункты вестибюлей следует соединять трубопроводом, который прокладывают в подземном канале высотой не менее 1100 мм. На станции мелкого заложения допускается прокладка трубопровода по коридорам, производственным помещениям, разрешенным для прокладки трубопроводов перегретой воды, и в вентиляционном канале под платформой, при этом на трубопроводе в тепловых пунктах устанавливают задвижки с электроприводом и дистанционным управлением из ДПС, выполняют инструментальную проверку качества сварки всех стыков и защиту трубопроводов и изоляции кожухом из оцинкованной стали.
5.8.3.4 Прокладку тепловой сети к вестибюлям станций следует предусматривать в проходных, полупроходных и непроходных каналах высотой не менее 1100 мм с уклоном в сторону городской теплосети; примыкающие к вестибюлям станций каналы тепловой сети на длине 5 м следует предусматривать из монолитного железобетона с гидроизоляцией. Допускается применение бесканальной прокладки вводов тепловых сетей к вестибюлям из стальных трубопроводов с индустриальной тепловой изоляцией из пенополиуретана в полиэтиленовой оболочке и с системой ОДК.
5.8.3.5 Ввод трубопроводов следует предусматривать через неподвижные опоры, устанавливаемые в стене подземного вестибюля, с устройством сальниковых узлов или через газонепроницаемые сальники с устройством неподвижной опоры на расстоянии не более 2 м от ввода. Стена должна иметь теплостойкую гидроизоляцию по площади примыкающего канала тепловой сети.
На трубопроводах вводов необходимо предусматривать стальные задвижки, электроизолирующие фланцы.
Оборудование теплового пункта и водомерного узла располагают в отдельных помещениях.
5.8.3.6 Удаление воды из каналов тепловой сети предусматривают в городские сети водостока.
5.8.3.7 На вводах тепловых сетей следует предусматривать телеметрические устройства контроля работы тепловых пунктов, коммерческого учета и учета расхода тепла с передачей информации на диспетчерский пункт.
5.8.3.8 В тепловых сетях применяют трубы следующих типов:
а) магистральные теплопроводы тепловых сетей - стальные трубы по ГОСТ 8732 и трубы и стальные фасонные изделия с тепловой изоляцией из пенополиуретана с защитной оболочкой, изготовленные в заводских условиях по ГОСТ 30732, с системой оперативного дистанционного контроля состояния тепловой изоляции;
б) разводящие наружные сети при температуре воды до 115°С и давлении до 1,6 МПа включительно допускается применять из неметаллических труб, если их качество и технические характеристики удовлетворяют санитарным и техническим нормам, а также параметрам теплоносителя;
в) разводящие внутренние сети после ИТП - трубы стальные, электросварные по ГОСТ 10704 и стальные оцинкованные по ГОСТ 3262 для горячего водоснабжения.
5.8.3.9 Трубопроводную арматуру для подающего и обратного трубопроводов выбирают по наибольшему давлению в подающем трубопроводе, но не менее 1,0 МПа и по температуре в подающем трубопроводе при расчетной температуре наружного воздуха для проектирования отопления.
5.8.3.10 Стальные трубопроводы должны иметь защиту от химической коррозии и электрокоррозии согласно ГОСТ 9.602 и 5.21.
5.8.3.11 Системы теплоснабжения сооружений метрополитена следует проектировать согласно СП 60.13330, СП 124.13330; требования к проектированию тепловых пунктов приведены в [13]. Узлы устройств коммерческого учета тепла следует проектировать согласно [81].
5.8.4.1 Отопление следует предусматривать:
а) в городах со средней температурой наружного воздуха самого холодного месяца ниже 0°С - в кассовых залах, санитарно-бытовых, производственных и других помещениях вестибюлей подземных и наземных станций. При размещении касс в уровне пешеходных переходов с оплатой проезда пассажирами из этой зоны отопление в пешеходном переходе не требуется;
б) в городах со средней температурой выше 0°С - в помещениях касс и помещениях с постоянным пребыванием персонала.
Расчетные температуры и теплосодержание наружного воздуха для расчета систем отопления (в том числе воздушного) наземных помещений следует принимать по параметру Б СП 60.13330.
Расчетную температуру в помещениях следует принимать согласно таблице 5.20.
5.8.4.2 В качестве источника теплоснабжения следует применять городские распределительные тепловые сети ТЭЦ, районные котельные, водяные или паровые котельные предприятий или жилых зданий, а также автономные источники тепла с учетом СП 373.1325800.
5.8.4.2а При проектировании систем с тепловым насосом предпочтительнее применение воздушных систем, где источником отбора тепла является воздух. Допускается применение тепловых насосов - геотермальных и смешанного типа.
Теплонасосное оборудование допускается применять как отдельно, так и совместно в следующих системах:
- теплоснабжение систем водяного и воздушного отопления и вентиляции;
- теплоснабжение систем ГВС;
- холодоснабжение систем кондиционирования.
5.8.4.3 В качестве теплоносителя следует предусматривать:
а) для отопления бытовых и производственных помещений наземных и подземных вестибюлей станций, а также помещений станций мелкого заложения - воду с температурным графиком не выше 95°С (подключение к ИТП по независимой схеме) или электрические приборы отопления;
б) для воздухонагревателей ВТЗ на входах в кассовые залы вестибюлей станций, приточных УМВ, приборов отопления кассовых залов вестибюлей - воду с температурным графиком не выше 150°С (подключение к ИТП по зависимой схеме). Допускается (при сложных объемно-планировочных решениях) использовать воду с температурным графиком не выше 95°С (подключение к ИТП по независимой схеме). Для отопления помещений вестибюлей станций, включая кассовый зал, допускается применять электрическую энергию;
в) для бытовых и производственных помещений в уровне платформенной части станций глубокого заложения, а также для кабин дежурных у АКП, у эскалаторов и на платформе станции - электрические приборы отопления;
г) для подогрева ступеней лестниц подуличных переходов, совмещенных с входами в подземные вестибюли станций, а также примыкающих к лестницам участков тротуаров длиной 3 м - электрические нагревательные кабели, электрические инфракрасные излучатели с защищенными нагревательными элементами или другие устройства, обеспечивающие расчетную температуру подогреваемых поверхностей не ниже 3°С;
д) для теплонасосных систем - воду (пропиленгликоль) с температурным графиком 55°С - 40°С или фреоновые хладагенты.
Для перегонных тоннелей и других сооружений или их элементов, склонных к обледенению, допускается применение электрических инфракрасных излучателей и греющих кабелей (саморегулируемых резистивных и других типов) с защищенными нагревательными элементами, соответствующих требованиям по эксплуатации в условиях метрополитена.
5.8.4.4 Нагревательные приборы в кассовых залах вестибюлей станций следует закрывать съемной металлической сеткой с ячейками 10x10 мм и декоративными решетками из негорючих материалов. Расстояние до низа решеток должно обеспечивать возможность уборки пола. Под приборами водяного отопления кассовых залов вестибюлей следует предусматривать устройство водоотводящих лотков и трапов.
5.8.4.5 Обогрев подножных решеток в наземных вестибюлях станций необходимо предусматривать только в городах со средней температурой наружного воздуха самого холодного месяца ниже 0°С. Для обогрева подножных решеток применяют инфракрасные обогреватели с закрытыми нагревательными элементами, приточную вентиляцию с подогревом воздуха и другие способы обогрева.
Подогрев ступеней лестниц и участков тротуаров перед лестницами следует предусматривать для районов со средней температурой наружного воздуха самого холодного месяца ниже 0°С.
5.8.4.6 В помещениях ВОУ, располагаемых сбоку от перегонных тоннелей или на участках тоннелей, где возможна температура воздуха ниже 5°С, следует предусматривать электрическое отопление.
5.8.4.7 Электрические приборы отопления необходимо применять с закрытыми нагревательными элементами и температурой поверхности не более 95°С, они должны закрепляться стационарно, их присоединение к электрической сети предусматривают согласно 5.10.5.7.
Водоотливные установки в зависимости от их назначения и расположения разделяются на основные, транзитные и местные. Водоотливные установки следует располагать:
- основные - в пониженных местах трассы линии, а также на станциях мелкого заложения, когда установка принимает воду из перегонных тоннелей;
- транзитные - на середине участков с затяжными уклонами трассы при расстоянии от водораздела до пониженной точки более 1500 м;
- местные - в пониженных местах станций и притоннельных сооружений, откуда вода не может быть удалена самотеком.
Каждая ВОУ должна располагаться в отдельном помещении. Водосборники ВОУ должны быть доступны для механизированной очистки.
В городах со средней температурой наружного воздуха самого холодного месяца ниже 0°С расстояние между примыканием к тоннелю приточной УТВ и ВОУ должно обеспечивать работу ВОУ в зоне положительных температур и уточняется расчетом в зависимости от климатических условий.
Целесообразно оснащение ВОУ дополнительным теплообменным оборудованием для "пассивного" использования "холода" удаляемой воды для охлаждения приточного воздуха системы тоннельной вентиляции.
5.8.4.8 Трубопроводы систем отопления, теплоснабжения воздухонагревателей систем вентиляции, кондиционирования и воздушно-тепловых завес (далее - трубопроводы систем отопления) следует проектировать из стальных, медных и полимерных труб, разрешенных к применению в строительстве.
В системах отопления и теплоснабжения воздухонагревателей следует применять трубы следующих типов:
а) стальные электросварные по ГОСТ 10704, стальные водогазопроводные по ГОСТ 3262;
б) для дренажных и воздуховыпускных трубопроводов - оцинкованные трубы по ГОСТ 3262.
5.8.5.1 В нижней части эскалаторного тоннеля или в одном из проходов между конструкциями эскалаторов следует предусматривать стальную трубу условным диаметром 50 мм. На трубе через 25 м следует устанавливать патрубки с вентилями для присоединения пневматических механизмов.
Подачу сжатого воздуха в трубу следует предусматривать от передвижного компрессора. Трубу следует выводить на поверхность земли в место, исключающее неконтролируемое присоединение к ней.
5.9.1.1 Сооружения метрополитена должны иметь внутреннюю объединенную или раздельные системы хозяйственно-питьевого, противопожарного и технологического водопровода.
Источником водоснабжения должна быть сеть городского водопровода или другие источники.
При объединенной системе следует предусматривать присоединение двумя вводами к различным участкам наружной кольцевой сети водопровода, при отдельных системах - одним вводом для хозяйственно-питьевых и технологических нужд и не менее двух вводов для противопожарных нужд.
На подземных и закрытых наземных участках должна быть объединенная система магистральных линий водопровода для подачи воды на станции, в тоннели и в притоннельные сооружения и локальные разводящие сети от магистральных линий до потребителей воды.
Выбор системы внутреннего водопровода следует производить в зависимости от технико-экономической целесообразности, санитарно-гигиенических и противопожарных требований, а также с учетом принятой системы наружного водопровода и технологических требований.
5.9.1.2 На каждую станцию следует предусматривать два ввода:
- для станций глубокого заложения двумя трубопроводами в каждый вестибюль;
- для станций мелкого заложения либо двумя трубопроводами в один из вестибюлей, либо в каждый вестибюль по одному трубопроводу.
Водопроводные вводы должны быть закольцованы в пределах станции.
На вводах следует предусматривать задвижки с электроприводом, обратные клапаны, электроизолирующие фланцы и приборы для дистанционного и местного учета расхода воды.
Для пропуска противопожарного расхода воды на водомерном узле в случае, если счетчик воды не рассчитан на пропуск противопожарного расхода воды, следует предусматривать обводную линию, оборудованную задвижкой с электроприводом.
Допускаются установка и использование дифференцированных (комбинированных) приборов учета холодной воды, разработанных специально для объектов с широким диапазоном расхода воды, непостоянным уровнем расхода, варьирующим в течение суток, сезонов или условий технологического процесса, объектов кратковременного учета большого расхода, где при нормальной ситуации протекает небольшое количество воды.
Водомерные узлы следует разрабатывать в соответствии с СП 10.13130 и СП 30.13330.
Диаметры водопроводных вводов определяются расчетом. Проходы труб через наружные стены выполняют с применением сальников.
5.9.1.3 При недостаточном гидростатическом напоре на вводе необходимо предусматривать самостоятельные насосные установки для противопожарных и хозяйственно-питьевых нужд с размещением их в отдельном помещении или в помещении водомерного узла.
Противопожарные повысительные насосы должны обеспечивать требуемую производительность пожарной струи и напор у пожарного крана при пожаротушении в вестибюлях, на платформе и на участках перегонов, обслуживаемых станцией линий мелкого заложения, и в вестибюлях станций глубокого заложения.
Установки оборудуются двумя насосами, один из которых является резервным и включается автоматически при остановке основного насоса.
5.9.1.4 Сеть объединенного водопровода должна обеспечивать пропуск расчетного расхода воды на пожаротушение, включая максимальный расход ее на хозяйственно-питьевые и производственные нужды. При этом расход воды на пользование душами, поливку территории, промывку сооружений и устройств не учитывается.
5.9.1.5 Расход воды на хозяйственно-питьевые нужды принимают по числу водопотребителей в наиболее многочисленной смене согласно СП 30.13330.
Расход воды на технологические нужды следует определять исходя из потребности соответствующего оборудования.
Для влажной уборки помещений станции и примыкающих к ней перегонных тоннелей следует принимать для запорной арматуры следующие расходы воды, л/с:
а) поливочный кран диаметром 50 мм - 3;
б) поливочный кран диаметром 20 мм - 0,3;
в) заполнение агрегата для мытья тоннелей с использованием двух кранов диаметром 50 мм - 6. Расход и диаметр уточняют в зависимости от типа используемого агрегата.
Количество воды на одновременную работу устройств определяется расчетом на основании регламента технологического обслуживания метрополитена.
5.9.1.6 Расход воды на пожаротушение следует определять согласно разделам 5.16 и 5.9.1.4.
Условный диаметр труб элементов водопроводной сети следует принимать не менее, мм:
а) обводная линия водомерного узла, магистрали на станциях и в тупиках - 100;
б) магистрали в тоннелях - 80;
в) разводящая сеть - по расчету.
5.9.1.7 Прокладку водопровода следует предусматривать в каждом тоннеле выше головки рельса, по слаботочной стороне с учетом размещения других коммуникаций. При размещении водопровода со стороны контактного рельса трубопровод заключают в футляр. В двухпутном тоннеле водопровод прокладывают по обеим сторонам.
Трубопровод, прокладываемый в штрабах путевого бетонного слоя, необходимо выделять с двух сторон задвижками с ручным приводом и электроизолирующими фланцами с соблюдением требований 5.21. При соединении с трубопроводом из композитного материала установка токоразмыкателя не требуется.
5.9.1.8 На тоннельном водопроводе и на участках, закрытых галереями, следует устанавливать задвижки с ручным приводом не более чем через 500 м.
Запорная арматура с электроприводом устанавливается:
- на тоннельном водопроводе с размещением их на станции;
- на выделяемых участках водопровода в тоннелях, примыкающих к приточной УТВ и попадающих в зону отрицательных температур. Задвижки следует размещать в зоне тоннеля с положительной температурой.
На участке тоннельного водопровода между станцией и вентиляционной шахтой необходимо устраивать перемычку.
Тупиковые участки тоннельного водопровода следует соединять между собой перемычкой через ближайшую сбойку с установкой в ней задвижки с ручным приводом.
5.9.1.9 На водопроводной сети необходимо устанавливать поливочные, водоразборные, пожарные краны для наполнения промывочных агрегатов.
Поливочные краны диаметром не менее 20 мм устанавливаются:
а) у подножных решеток лестничных сходов, в кассовых залах вестибюлей, в вентиляционных киосках, на дополнительных и аварийных выходах;
б) в начале крайних подбалюстрадных проходов машинных помещений эскалаторов, в натяжных камерах, в помещениях калориферных, насосных и вентиляционных установок, кроме помещения вентиляционной установки для КСМ, в подвальных помещениях подстанций, в коридорах между станциями;
в) в пешеходных подуличных переходах, кабельных коллекторах, проходных вентиляционных каналах и в вентиляционных тоннелях, в подплатформенной части станции, в подбалюстрадных проходах и в вентиляционно-кабельном отсеке эскалаторных тоннелей. Расстояние между поливочными кранами должно быть не более 20 м;
г) в перегонных тоннелях и на наземных закрытых участках. Расстояние между поливочными кранами в тоннеле должно быть не более 30 м. На коротких участках трассы размещают не менее двух кранов.
Водоразборные краны диаметром 20 мм необходимо размещать на высоте 0,5-0,7 м от пола с подводкой к одному холодной, к другому - горячей воды:
а) в блоках технологических и служебных помещений на станции глубокого заложения;
б) на всех уровнях вестибюля в кубовых или в помещениях женского санузла, при отсутствии этих помещений - в коридоре.
Пожарные краны устанавливаются в соответствии с разделом 5.16.
Краны для наполнения промывочных агрегатов устанавливаются через 450 м (два вентиля диаметром 50 мм с соединительными головками - см. 5.9.1.5, перечисление в) на тоннельном водопроводе, на наземных закрытых участках линии и в районе торцов станций.
5.9.1.10 На входах в вестибюли станций и у лестничных сходов в подуличные переходы следует предусматривать поливочные краны диаметром не менее 25 мм с соединительной головкой для промывки приямков подножных решеток.
5.9.1.11 Прокладку магистральных и разводящих сетей водопровода следует предусматривать открыто в кабельных тоннелях, коридорах, производственных помещениях. В помещениях электрощитовых, аппаратных, кроссовых прокладка водопровода не допускается. В кладовых допускается прокладка водопровода только в футлярах.
Участки водопровода холодной воды диаметром 50 мм и более (за исключением подводок к пожарным кранам) в коридорах и помещениях вестибюлей станций и участки магистральных трубопроводов горячего водоснабжения должны иметь теплоизоляцию.
На станциях глубокого заложения водопровод на участке от вестибюля до уровня пассажирских платформ следует прокладывать через специальную скважину, расположенную в вестибюле или в вентиляционно-кабельном отсеке эскалаторного тоннеля.
5.9.1.12 В вестибюлях станций подачу горячей воды к санитарно-техническим приборам предусматривают от централизованной системы горячего водоснабжения или от электрических водонагревателей. На период отключения системы теплоснабжения предусматривают электроводонагреватели для подачи горячей воды к двум душевым сеткам.
Душевые и умывальные в ПТО, раковины в ТПП и машинных помещениях эскалаторов или в смежных помещениях машинистов, раковины в БТП на станциях глубокого заложения следует обеспечить горячей водой.
В помещениях приема пищи, подсчета монет, медпункта, в кубовых вестибюлей станции и в БТП на станциях глубокого заложения необходимо предусматривать установку электроводонагревателей, емкости которых определяют расчетом.
5.9.1.13 В сооружениях и предприятиях с большим потреблением воды на производственные нужды следует применять системы оборотного водоснабжения.
5.9.2.1 Сооружения метрополитена должны иметь систему самотечного сбора и принудительного отвода воды при нарушениях водонепроницаемости обделок, при тушении пожара, промывке сооружений, работе технологического оборудования. В систему водоотвода входят самотечные лотки и трубы, приемные колодцы и трапы, водоотливные насосные установки, напорные трубопроводы и наружные сети.
Водоотливные установки в зависимости от их назначения и расположения разделяются на основные, транзитные и местные. Водоотливные установки следует располагать:
- основные - в пониженных местах трассы линии, а также на станциях мелкого заложения, когда установка принимает воду из перегонных тоннелей;
- транзитные - на середине участков с затяжными уклонами трассы при расстоянии от водораздела до пониженной точки более 1500 м;
- местные - в пониженных местах станций и притоннельных сооружений, откуда вода не может быть удалена самотеком.
Каждая ВОУ должна располагаться в отдельном помещении. Водосборники ВОУ должны быть доступны для механизированной очистки.
В городах со средней температурой наружного воздуха самого холодного месяца ниже 0°С расстояние между примыканием к тоннелю приточной УТВ и ВОУ должно обеспечивать работу ВОУ в зоне положительных температур и уточняется расчетом в зависимости от климатических условий.
Целесообразно оснащение ВОУ дополнительным теплообменным оборудованием для "пассивного" использования "холода" удаляемой воды для охлаждения приточного воздуха системы тоннельной вентиляции.
5.9.2.2 Отвод воды из подуличных переходов, коридоров между станциями, вентиляционных и кабельных тоннелей, путевых и станционных тоннелей с бетонным основанием пути в водосборники ВОУ следует предусматривать самотеком по открытым лоткам и трубам. Для прокладки лотков между однопутными перегонными тоннелями закрытого способа работ предусматривают ходки.
5.9.2.3 Прием воды через трапы или колодцы с решетками и отвод ее самотеком по трубам следует предусматривать:
- в тоннелях со щебеночным основанием пути;
- в тоннелях со съездами на бетонном основании пути;
- на платформах станций, в кассовых залах вестибюлей, в коридорах между станциями;
- в машинных помещениях эскалаторов, в помещениях УМВ, кроме помещения УМВ для КСМ, водопроводных вводов, тепловых пунктов, кубовых, аккумуляторных, в коридорах служебных помещений.
Слив воды из поломоечных машин необходимо предусматривать в грязесборный колодец объемом не менее 1 м3 или в трап с отдельным выпуском в отстойное отделение станционной водоотливной установки.
5.9.2.4 Диаметр самотечных труб предусматривают не менее 100 мм, отводы не менее 120°, уклон лотков - не менее 0,003, расстояние между колодцами - не более 20 м. В начале, в середине и в конце платформы предусматривают трапы.
Водоотводящие лотки в сооружениях предусматривают из водостойкого материала, размером не менее 100x50 (h) мм или радиусом не менее 50 мм.
Лотки под платформой на станциях мелкого заложения, в которые поступает вода от трапов, следует принимать размером 200x150 (h) мм и перекрывать съемной перфорированной сталью.
Отвод воды в перегонных тоннелях с щебеночным основанием пути и со съездами на бетонном основании пути необходимо предусматривать по двум трубам диаметром 200 мм, в стесненных условиях - по трем трубам диаметром 150 мм.
Трапы и колодцы располагают в местах, доступных для прочистки.
5.9.2.5 Глубина приямков с подножными решетками на входах в наземный вестибюль станции должна быть 1 м при водяном отоплении ямы и 0,6 м при поверхностном обогреве ямы, у лестничных сходов в подуличные переходы - не менее 0,6 м, емкость отстойной части - не менее 2 м3.
Приямки и отстойники следует располагать в местах, доступных для механизированной очистки.
У водоотливных установок для лестничных входов следует предусматривать трубопровод диаметром 250 мм, соединяющий ВОУ с люком на поверхности, для очистки водосборника передвижными агрегатами. Люк следует оборудовать запорным устройством.
Дополнительно у ВОУ лестничных входов при необходимости следует предусматривать колодец (накопитель) емкостью до 3-4 м3 для сбора осадка из водосборника в зимнее время, очистку которого предусматривается производить передвижными агрегатами.
5.9.2.6 Водоотливные установки в зависимости от их назначения и расположения разделяются на основные, транзитные и местные. Водоотливные установки следует располагать:
- основные - в пониженных местах трассы линии, а также на станциях мелкого заложения, когда установка принимает воду из перегонных тоннелей;
- транзитные - на середине участков с затяжными уклонами трассы при расстоянии от водораздела до пониженной точки более 1500 м;
- местные - в пониженных местах станций и притоннельных сооружений, откуда вода не может быть удалена самотеком.
Каждая ВОУ должна располагаться в отдельном помещении. Водосборники ВОУ должны быть доступны для механизированной очистки.
В городах со средней температурой наружного воздуха самого холодного месяца ниже 0°С расстояние между примыканием к тоннелю приточной УТВ и ВОУ должно обеспечивать работу ВОУ в зоне положительных температур и уточняется расчетом в зависимости от климатических условий.
5.9.2.7 При обосновании возможно уменьшение производительности насосов, которое определяется расчетом по СП 32.13330 с учетом 5.9.2.1 настоящего свода правил и пункта 5.6.2 СП 30.13330.2016. При этом расходы при тушении пожара и промывке сооружений одновременно не учитываются.
Объем водосборников в установках следует принимать согласно таблице 5.21.
Таблица 5.21
|
Тип установки |
Объем водосборника, м3, не менее | |
|
рабочий |
общий | |
|
Линия глубокого заложения: | ||
|
- основная |
30 |
70 |
|
- транзитная |
15 |
40 |
|
- местная |
7 |
8 |
|
Линия мелкого заложения: | ||
|
- основная и транзитная |
15 |
30 |
|
- местная |
7 |
8 |
|
МВУ лестничного входа |
4 |
5 |
5.9.2.8 Помещения ВОУ необходимо оборудовать подъемно-транспортными механизмами с ручным приводом.
5.9.2.9 Для ВОУ: основных, транзитных и местных (кроме установок у лестничных сходов) следует предусматривать по два напорных трубопровода.
Самотечные трубопроводы от ямы для очистки ног следует присоединять к городской сети водостока через колодцы с отстойной частью емкостью не менее 2 м3.
На напорных трубопроводах ВОУ следует предусматривать приборы для дистанционного учета объема удаляемой воды.
На участках линии глубокого заложения удаление воды из водосборников местных ВОУ следует предусматривать в водоотводящие лотки перегонных тоннелей.
5.9.2.10 В основных и транзитных ВОУ водосборники должны иметь три отделения (из них одно отстойное), в местных - два (одно отстойное).
В каждом отделении должны быть смотровые люки, лестницы и мостики, перепускные клапаны и переливные окна в перегородках, устройства для взмучивания осадка. Под приемными клапанами всасывающей линии насосов необходимо устраивать приямки глубиной 200 мм. Уклон дна водосборника к приямкам следует принимать не менее 0,02.
В водосборниках устанавливают датчики уровней воды.
5.9.2.11 Уровень пола ВОУ следует принимать:
а) в основных и транзитных установках - выше уровня головок рельсов пути на 0,25 м; в ВОУ тупиков со смотровыми канавами - допускается ниже уровня головок рельсов на 0,15 м;
б) в местных и основных ВОУ на станциях мелкого заложения - не выше уровня пола соседних помещений.
Высота фундаментов насосов - не менее 0,2 м от уровня чистого пола.
5.9.2.12 Прокладку напорных трубопроводов от основных и транзитных ВОУ до поверхности земли следует предусматривать в сантехнических скважинах.
По тоннелям трубопроводы водоотвода, за исключением резервных трубопроводов, должны прокладываться в зоне положительных температур с учетом зоны влияния приточных УТВ в холодный период года.
5.9.2.13 Сброс сточных вод от сооружений метрополитена в городские сети ливневой, бытовой и общесплавной канализации следует предусматривать в соответствии с СП 32.13330, СанПиН 2.2.1/2.1.1.1200, ГН 2.1.5.1315, ГН 2.1.5.2307, [82], [83] и другими действующими нормативными документами в части водоснабжения и водоотведения.
5.9.3.1 Сооружения метрополитена должны иметь систему бытовой канализации для приема и отвода сточных вод от санитарно-технических приборов. Для отвода сточных вод из сооружений, располагаемых ниже поверхности земли, нужно применять канализационные насосные установки и приемные резервуары.
В помещениях медпунктов, санузлов и касс следует устанавливать умывальники, а в помещениях приема пищи, тягово-понизительных подстанциях, кубовых и машинных помещениях эскалаторов или смежных помещениях машинистов - раковины.
Внутренние сети канализации сооружений метрополитена следует проектировать согласно СП 30.13330 и СП 32.13330.
5.9.3.2 В канализационных установках необходимо предусматривать два насоса - один рабочий и один резервный; в отдельных случаях допускается установка одного рабочего насоса и хранение запасного насоса на складе.
Установку насосов следует предусматривать под заливом от уровня сточных вод в приемном резервуаре.
Канализационные установки располагают в отдельных помещениях.
5.9.3.3 Для каждого канализационного насоса следует предусматривать отдельный всасывающий трубопровод с подъемом к насосу не менее 0,005. На всасывающем и напорном трубопроводах каждого насоса следует устанавливать задвижки, на напорном трубопроводе, кроме того, - обратный клапан.
5.9.3.4 В приемном резервуаре канализационных установок необходимо предусматривать: устройства для взмучивания осадка, герметические смотровые люки, ограждающую решетку на всасывающих трубопроводах насосов, датчики уровней стоков.
Уклон дна резервуара к приямкам должен быть не менее 0,1. Для электродных датчиков уровня, устанавливаемых в приемном резервуаре, предусматривать механическую защиту от налипания.
5.9.3.5 Исключить прокладку по тоннелю напорных трубопроводов канализации от служебных станционных санитарных узлов.
Напорный трубопровод от канализационных установок присоединяют к городской сети канализации.
На канализационных установках размещают приборы для дистанционного учета объема сбрасываемых стоков.
На линиях глубокого заложения прокладка напорных трубопроводов до поверхности земли предусматривается в скважинах.
5.9.4.1 В сетях водопровода, водоотвода и канализации следует применять трубы следующих типов:
а) исключен с 15 апреля 2020 г. - Изменение N 3
б) напорные трубопроводы водоотвода и канализации - стальные бесшовные трубы по ГОСТ 8732, безраструбные чугунные трубы и полиэтиленовые трубы по ГОСТ 18599;
в) самотечные трубопроводы при открытой или закрытой прокладке:
- в тоннелях и перегонных сбойках внутри конструктивной обделки,
- в эскалаторном тоннеле станций глубокого заложения - чугунные напорные трубы по ГОСТ 9583, безраструбные чугунные трубы или ВЧШГ;
- в остальных случаях - стальные трубы по ГОСТ 10704 или ГОСТ 8732, чугунные канализационные трубы по ГОСТ 6942, безраструбные чугунные трубы, асбоцементные (хризотилцементные) трубы по ГОСТ 31416 и полимерные трубы. При прокладке за пределами строительных конструкций - чугунные напорные трубы ВЧШГ по ГОСТ Р ИСО 2531 и СП 66.13330 или безраструбные чугунные трубы, а также полимерные трубы.
Разрешается применение труб из композитных, синтетических и других материалов, обеспечивающих условия эксплуатации и долговечности и пригодных для применения на метрополитенах. Качество и характеристики применяемых материалов должны соответствовать требованиям действующих нормативных документов.
5.9.4.2 Трубопроводную, водоразборную и смесительную арматуру следует выбирать в соответствии с рабочим давлением в сети и другими параметрами. Запорную арматуру диаметром 50 мм и менее следует применять из цветных сплавов.
5.9.4.3 Стальные трубопроводы должны иметь защиту от химической коррозии и электрокоррозии согласно ГОСТ 9.602 и разделу 5.21.
5.9.4.4 Крепление трубопроводов из композитных, полимерных и асбоцементных (хризотилцементных) материалов следует выполнять с учетом физико-механических характеристик материала, диаметра трубопровода и рекомендаций завода-изготовителя.
На трубопроводе из композитного материала следует предусмотреть установку компенсаторов. Количество и тип компенсаторов определяются расчетом с учетом температурных зон прокладки трубопроводов в тоннеле.
На трубопроводах из хризотилцементных напорных труб компенсация температурных деформаций обеспечивается конструкцией стыковых соединений труб.
5.10.1.1 Электроснабжение потребителей линии метрополитена следует предусматривать от тяговопонизительных (ТПП), тяговых (Т) и понизительных (ПП) подстанций.
ТПП и Т следует размещать на станциях, при необходимости на основании электротехнического расчета на перегонах; ПП - на станциях, вестибюлях станций глубокого заложения, а в перегонах - в местах сосредоточения нагрузок.
При расположении подстанции на перегоне, необходимо предусматривать сходное устройство для высадки обслуживающего персонала из поезда вместимостью до пяти человек. Сходное устройство должно обеспечивать переход в помещение подстанции (либо в ходок ведущий на подстанцию) без выхода на путь.
5.10.1.2 Электроснабжение ТПП, Т и ПП должно осуществляться по кабельным сетям напряжением 6, 10 и 20 кВ от трех, а при отсутствии технической возможности - от двух независимых источников питания ТПП и Т энергосистемы города. В качестве первого источника питания следует принимать непосредственно подстанцию энергосистемы города, второго и третьего источников - соседние ТПП, Т линии.
5.10.1.3 В части обеспечения надежности электроснабжения приемники электрической энергии следует относить к следующим категориям:
а) особая группа электроприемников I категории - установки связи, видеонаблюдения, громкоговорящего оповещения, автоматизированные системы оплаты проезда (АСОП), АТДП, устройства дистанционного и телеуправления электроустановками, сети аварийного освещения;
б) I категория - тяговая сеть, эскалаторы, сети рабочего освещения тоннелей, автоматические установки пожарной сигнализации, оповещения о пожаре и пожаротушения, установки противодымной защиты, водоотливные установки, установки охранной сигнализации, тоннельная вентиляция, лифты;
в) II категория - сети рабочего освещения станций;
г) III категория - установки местной вентиляции, не используемые в системе противодымной защиты, розеточная сеть и другие электропотребители.
Устройства автоматического включения резервного питания для особой группы электроприемников I категории и электроприемников I категории следует размещать у потребителей электроэнергии.
Перерыв в электроснабжении тяговой сети допускается на время переключения питания диспетчером средствами телеуправления или на время срабатывания АПВ.
5.10.1.4 В качестве третьего независимого источника питания для особой группы электроприемников I категории следует предусматривать отдельные источники бесперебойного питания на нагрузки:
1) аварийного освещения;
2) АТДП и устройств диспетчерского управления;
3) другие нагрузки I особой категории надежности, не относящиеся к перечислениям 1) и 2);
4) источники бесперебойного питания должны обеспечивать питание расчетных нагрузок на время не менее 1 ч.
Допускается размещать источники бесперебойного питания для установок связи, автоматизированной системы оплаты проезда (АСОП), нагрузок АТДП и устройств диспетчерского управления в помещениях на станциях с независимыми входами и резервированными системами вентиляции и кондиционирования. При этом питание вспомогательного оборудования (вентиляции, систем кондиционирования) осуществляется по единой схеме питания основного оборудования (по аналогичной категории надежности электроснабжения, что и основное оборудование).
Допускается установка компактных необслуживаемых ИБП у потребителей, необходимых для поддержания требуемого качества напряжения во время работы устройств автоматического выключения резерва (АВР).
Для питания сетей аварийного освещения необходимо применять систему гарантированного электропитания (СГЭ). Данное устройство должно получать питание по двум вводам и иметь АВР, аккумуляторную батарею и инвертор.
Установка СГЭ должна размещаться вблизи потребителя.
В исключительных случаях допускается размещение источников бесперебойного питания на ТПП, Т и ПП.
Все устройства ИБП и СГЭ должны подключаться для диагностики к устройствам телемеханики по сетевому интерфейсу (RS-485, Ethernet, оптический канал).
5.10.1.5 Электрические сети переменного тока напряжением до 1 кВ следует предусматривать с глухозаземленной нейтралью трансформаторов по системам TN-C, TN-S, TN-C-S. Применение системы с глухозаземленной нейтралью на участках продления действующих линий, где используется система IT, необходимо отражать в задании на проектирование. Параметры электрической сети переменного тока напряжением до 1 кВ устройств АТДП следует принимать по технической документации на соответствующие системы управления.
5.10.1.6 Для электроснабжения приемников электроэнергии следует принимать следующие напряжения, В:
- в сетях постоянного тока:
1) 825 - тяговая сеть, на шинах ТПП, Т;
2) 750, 550 - на токоприемниках подвижного состава, соответственно номинальное, наименьшее допустимое;
3) 230 - цепи управления и сигнализации на подстанциях;
- в сетях переменного тока:
1) 400/230 - эскалаторы, вентиляционные и насосные установки, осветительные сети (рабочие и аварийные), установки связи и автоматизированные системы оплаты проезда (АСОП);
2) 230 - осветительные и нагревательные приборы;
3) 12 - переносное и местное освещение.
5.10.1.7 Для подземных сооружений и помещений следует применять рабочее, аварийное и эвакуационное освещение.
Аварийное освещение необходимо предусматривать в пассажирских производственных и санитарно-бытовых помещениях станций, в перегонных тоннелях и в притоннельных сооружениях.
Аварийное освещение должно обеспечивать функции освещения безопасности при эвакуации.
Эвакуационное освещение должно обеспечивать указание направления и пути эвакуации.
5.10.1.8 Положительный полюс источника питания тяговой сети следует подводить к контактным рельсам, отрицательный - к ходовым рельсам путей.
Контактную сеть линии следует разделять на секции неперекрываемыми воздушными промежутками контактного рельса на главных путях в зонах размещения ТПП и Т, на съездах между главными путями и в местах разделения главных путей и путей другого назначения.
Питание контактной сети каждого главного пути, станционных и соединительных путей от ТПП и Т следует предусматривать по отдельным кабельным линиям, предусматривая при этом установку резервных линейных разъединителей в контактной сети главных путей для обеспечения надежности.
5.10.1.9 Электрические сети должны иметь защиту от токов короткого замыкания и от перегрузок сверх установленных норм, а элементы тяговой сети (преобразовательные агрегаты, распределительные устройства 825 В, кабели и оборудование контактной сети), кроме того, - защиту от замыкания на "землю".
Сети переменного тока до 1 кВ с глухозаземленной нейтралью должны иметь устройства защитного отключения (УЗО) в соответствии с [15, главы 7.1, 7.2].
Электрические сети 20 кВ с резистивно заземленной нейтралью должны дополнительно иметь защиту от однофазных замыканий на землю, а при двух параллельно работающих вводах 20 кВ - еще и направленную защиту от однофазных замыканий на землю или использовать другие технические решения.
5.10.1.10 В контактной сети оборудование (кроме быстродействующих выключателей, изготавливаемых на номинальное напряжение 1050 В) и питающие кабели следует принимать на номинальное напряжение 3 кВ, а кабели сети отсоса на напряжение 1 кВ.
5.10.1.11 В электрических сетях следует применять кабели, не распространяющие горение, с пониженным дымо- и газовыделением, безгалогенные, огнестойкие с медными жилами, в зависимости от типа установки.
5.10.1.12 Средства контроля и защиты от электрокоррозионного воздействия следует предусматривать согласно 5.21.
5.10.1.13 На линии необходимо предусматривать единую систему защитного заземления.
5.10.2.1 Расчет сети электроснабжения ТПП и Т напряжением 6, 10, 20 кВ следует выполнять для нормального, рабочего и аварийного режимов исходя из следующих условий:
а) нормальный режим - электроснабжение ТПП и Т от первого источника питания энергосистемы по двум параллельным линиям, от второго или третьего источника питания - по одной линии. На рассчитываемых ТПП и Т следует принимать напряжение на 5% выше номинального, на соседних - номинальное;
б) рабочий режим - выход из работы одной линии от первого источника питания. На рассчитываемых ТПП и Т следует принимать напряжение на 5% выше номинального, на соседних - номинальное;
в) аварийный режим - выход из работы первого источника питания. Электроснабжение ТПП и Т следует осуществлять от соседних ТПП и Т. При наличии двух линий (перемычек) между ТПП и Т и питании от одной ТПП и Т необходимо предусматривать включенные секционные выключатели РУ 6, 10, 20 кВ и номинальное напряжение на обеих ТПП и Т без вводов и напряжение на 5% выше номинального на ТПП и Т с вводами.
Кабели для нормального и рабочего режимов питания следует выбирать по допустимым длительным токам, для аварийного режима - с допустимой перегрузкой кабелей согласно 5.10.2.3.
Кабели необходимо проверять на термическую стойкость в режиме КЗ.
5.10.2.2 В расчетах тяговых нагрузок для выбора числа преобразовательных агрегатов, кабельных линий и оборудования тяговой сети следует учитывать:
- частоту движения поездов в часы пик и число вагонов в них для первого периода эксплуатации и при максимальном развитии линии;
- влияние внешних характеристик ТПП и Т и отклонение от графиков движения поездов в пределах ±15 с;
- напряжение на шинах РУ 6, 10, 20 кВ рассчитываемых ТПП и Т в нормальном режиме на 5% выше номинального, на соседних ТПП и Т - номинальное;
- отключение одного ПА на рассчитываемых ТПП и Т и включение всех ПА на соседних ТПП, Т. На рассчитываемых ТПП и Т напряжение на шинах РУ 6, 10, 20 кВ следует принимать на 5% выше номинального, на соседних ТПП и Т - номинальное.
К установке на ТПП и Т следует принимать число ПА в соответствии с расчетом с учетом резервного ПА.
5.10.2.3 Параметры электрооборудования, коммутационной аппаратуры, кабелей, проводов и шин необходимо принимать по результатам расчетов нагрузок и токов КЗ для нормального, рабочего и аварийного режимов работы, исключающих наличие "мертвых зон".
Ток нагрузки кабельных линий для аварийного режима надлежит принимать равным 115% по отношению к установленному нормативной документацией длительно допустимому току.
5.10.2.4 Исключен с 17 июня 2017 г. - Изменение N 2, утвержденное приказом Минстроя России от 16 декабря 2016 г. N 576/пр
5.10.2.5 Электрические сети напряжением 6, 10, 20 кВ и 825 В, а также размеры подстанций следует предусматривать на максимальные расчетные параметры в любом из периодов.
5.10.2.6 Потеря напряжения в электрических сетях 400/230 В от шин РУ подстанций до электроприемников должна составлять, %, не более:
- на станциях - 5;
- в перегонных тоннелях:
а) нормальный режим питания - 8;
б) аварийный режим - 12.
5.10.2.7 Расчеты токов КЗ для электроустановок переменного тока напряжением свыше 1 кВ выполняют по методике расчета токов короткого замыкания и выбора электрооборудования.
5.10.2.8 В системе заземления электроустановок линии в качестве заземлителей следует использовать чугунную обделку тоннелей, металлоизоляцию железобетонных конструкций, металлические конструкции крепления котлованов, специально забиваемые трубы. В качестве заземляющих проводников допускается использовать стальные полосы, предназначаемые для прокладки одиночных кабелей освещения в перегонных тоннелях).
Сопротивление заземляющих устройств ТПП, Т должно быть не более 0,5 Ом.
Для ПП, размещаемых в вестибюлях станций и на других участках линии, отдельные заземлители допускается не предусматривать.
Конструктивное выполнение заземляющих устройств следует предусматривать с учетом правил устройства электроустановок.
5.10.3.1 ТПП необходимо предусматривать на каждой станции, иное решение следует подтверждать расчетами.
ТПП и Т следует размещать над платформой станции или в уровне перегонных тоннелей. Допускается размещать ТПП на поверхности в пределах станционного комплекса.
5.10.3.2 Первый источник питания следует подключать к первой секции шин РУ 6, 10, 20 кВ ТПП и Т, второй источник (от первой секции шин РУ 6, 10, 20 кВ соседней ТПП) - ко второй секции шин РУ 6, 10, 20 кВ. Подключение третьего источника питания, при его наличии, следует определять при разработке схемы электроснабжения подстанций линии.
Электроснабжение ПП следует предусматривать от одной или двух ближайших ТПП и Т исходя из их расположения.
5.10.3.3 Шины РУ 6, 10, 20 кВ ТПП, Т и ПП следует разделять на две секции с выключателями между ними. Для присоединения к РУ 6, 10, 20 кВ трансформаторов напряжения, а также силовых трансформаторов мощностью до 100 кВА включительно, необходимо предусматривать высоковольтные предохранители на выкатном элементе, для присоединения трансформаторов мощностью более 100 кВА - выключатели с электроприводом.
5.10.3.4 Шины РУ 825 В следует предусматривать без секционирования. В состав РУ 825 В должны входить основные питающие линии контактной сети, одна или две резервные питающие линии по одной на каждый путь для замещения основных питающих линий, а также заземляющий разъединитель положительной шины.
В качестве коммутационных аппаратов и защиты от тока КЗ следует применять быстродействующие выключатели.
Отрицательная шина 825 В должна быть изолирована.
5.10.3.5 На ТПП следует предусматривать отдельные РУ 400/220 В для питания:
- электромеханических установок (РУ1);
- осветительных установок (РУ2);
- установок связи, АСОП (РУ3 - для станций мелкого заложения); для станций глубокого заложения установки АСОП получают питание от РУ 400/230 В ПП вестибюля;
- устройства АТДП (РУ4) получают питание в соответствии с технической документацией на соответствующие системы управления.
В РУ2 необходимо предусматривать три секции - две рабочие и резервируемую, предназначенную для питания сети рабочего освещения перегонных тоннелей.
Резервируемую секцию необходимо подключать к рабочим секциям шин выключателями с электроприводом и АВР (ввод 1 от первой секции, ввод 2 от второй секции).
В РУ 400/230 для присоединения трансформаторов и отходящих линий следует применять автоматические выключатели.
5.10.3.6 Питание каждой рабочей секции шин РУ 400/230 В необходимо предусматривать от трансформатора, присоединяемого к соответствующей секции шин РУ 6, 10, 20 кВ.
Каждый трансформатор в аварийном режиме (отключение одного из трансформаторов) должен с допустимой перегрузкой обеспечивать расчетную нагрузку обеих секций РУ 400/230 В.
5.10.3.7 Число трансформаторов и схему первичных соединений на ПП определяют в зависимости от ее назначения.
5.10.3.8 Мощность ИБП (СГЭ) следует определять расчетом исходя из режима работы (нагрузка, цикличность) электроприемников особой группы I категории. В расчете должны учитываться нагрузки аварийного освещения станции, ТПП, Т, ПП и прилегающих к ним участков тоннелей.
Для резервирования электроснабжения установок АТДП, связи и громкоговорящего оповещения следует применять отдельные ИБП.
Установки ИБП (СГЭ) размещают в обычных помещениях.
5.10.3.9 Размещение оборудования на подстанциях должно обеспечивать возможность его замены и транспортирования с использованием стационарных приспособлений для механизации подъемно-транспортных операций.
5.10.3.10 Прокладка транзитных коммуникаций (кабелей, труб, воздуховодов) через помещения подстанций не допускается.
5.10.3.11 На подстанциях следует предусматривать вспомогательные производственные, а также бытовые помещения согласно таблице 5.22.
Таблица 5.22
|
Назначение помещения |
Площадь помещения, м2 | |
|
ТПП, Т |
ПП | |
|
Мастерская |
10 |
10 |
|
Кладовая |
8 |
8 |
|
Помещение для оперативного персонала |
8 |
8 |
|
То же, ремонтного персонала |
10 |
- |
|
Помещение для приема пищи и отдыха (с умывальником) |
8 |
- |
|
Душевая |
4 |
- |
|
Туалет |
2 |
- |
В помещениях следует предусматривать места для размещения инвентаря по технике безопасности и противопожарного оборудования.
5.10.3.12 Лестницы в помещениях подстанций должны иметь перила и предусматриваться с уклоном до 45°, шириной до 0,9 м со ступенями высотой не более 0,15 м.
Из помещений подстанций следует предусматривать не менее двух выходов: основной - в зону, из которой обеспечивается свободный выход на поверхность в любое время, второй - непосредственно в перегонные тоннели или в другую зону.
При расположении подстанций между перегонными тоннелями грузовые выходы следует предусматривать на оба пути. Допускается один из грузовых выходов принимать меньшего размера.
Размещение ящиков не должно мешать движению пассажиров, в том числе МГН, в тоннеле при их эвакуации из поезда, а также работе пожарно-спасательных подразделений и аварийно-восстановительных формирований.
5.10.3.13 Исключен с 15 апреля 2020 г. - Изменение N 3
5.10.3.14 Метод расчета мощности трансформаторов приведен в [17, приложение 5.10А].
5.10.4.1 Размещение контактного рельса следует принимать согласно 5.7.
5.10.4.2 Секционирование контактной сети неперекрываемыми ВПКР следует предусматривать:
- на главных путях, в местах расположения промежуточных ТПП;
- между главными путями и станционными путями;
- между главными путями и соединительными путями;
- между соединительными путями и парковыми путями электродепо (у портала тоннеля);
- между главными путями.
У конечных ТПП и Т контактную сеть главных путей допускается предусматривать без секционирования, но схему питания сети следует разрабатывать с учетом дальнейшего продления линии.
На главных путях секционирование контактных рельсов следует предусматривать в местах, проходимых поездом на выбеге.
У стрелочных переводов и затворов следует применять перекрываемые ВПКР.
Допускается устройство ВПКР в других местах.
5.10.4.3 В контактной сети главных путей промежуточной станции с путевым развитием следует предусматривать:
- со стороны станционного пути (тупика):
а) на пути отправления поездов со станции - перекрываемый ВПКР на расстоянии не менее 125 м от выходного светофора;
б) на пути прибытия поездов на станцию - неперекрываемый ВПКР у стрелочного перевода;
- со стороны соединения между главными путями - на пути отправления поездов со станции на другой главный путь: перекрываемый ВПКР на расстоянии не менее 125 м от выходного светофора;
- на пути прибытия поездов на станцию - перекрываемый ВПКР на расстоянии от центра стрелочного перевода, превышающем на 35 м длину поезда в перспективе.
На главном пути за временной конечной станцией, который используется для отстоя поездов, следует предусматривать перекрываемый ВПКР.
Допускается применение неперекрываемых ВПКР, если на этих участках пути поезда движутся на выбеге.
В кабельных перемычках ВПКР следует предусматривать разъединители с электроприводом.
5.10.4.4 Каждая секция контактной сети главного пути должна получать питание от двух ТПП и/или Т по основным и резервным питающим линиям для каждого пути.
Допускается установка одной резервной линии со стороны отправления поезда со станции.
5.10.4.5 Питание распределительных пунктов контактных рельсов станционных путей для оборота и отстоя составов со смотровыми канавами должно быть:
а) основное - по отдельной питающей линии от ТПП и Т;
б) резервное - по общей резервной линии от ТПП, Т или от контактного рельса одного из главных путей.
При двух станционных путях нужно предусматривать РП для каждого пути. Основная питающая линия подключается к РП1 разъединителем с электроприводом, резервная - к РП2 разъединителем с ручным приводом. Допускается подключение к РП2 питающей линии с разъединителем с электроприводом.
Шины РП1 и РП2 соединяют между собой. В соединительной линии следует предусматривать разъединители: в РП1 - с ручным приводом или с электроприводом, в РП2 - с электроприводом.
Для одного станционного пути со смотровой канавой следует применять один РП.
В зоне расположения смотровой канавы допускается устанавливать два контактных поста 825 В для обеспечения возможности подачи напряжения на отдельные вагоны.
В РП для подключения контактных рельсов, контактных постов и ходовых рельсов участка станционного пути со смотровой канавой, а также для заземления отключенного контактного рельса участка пути следует применять разъединители с ручными приводами.
Разъединители питающей и отсасывающей линий должны иметь общий ручной привод, механически сблокированный с приводом заземляющего разъединителя. В качестве коммутационного аппарата питающей и отсасывающей линий допускается применение двухполюсного выключателя нагрузки.
РП следует размещать в зоне за рельсовым упором вне габарита подвижного состава.
5.10.4.6 Ходовые рельсы участка станционного пути со смотровой канавой необходимо изолировать от ходовых рельсов съездов на главные пути. При подаче напряжения на контактный рельс этого пути изолирующие стыки ходовых рельсов должны автоматически шунтироваться.
Разъединители отсасывающих линий РП1 и РП2 нужно соединять между собой и с ходовыми рельсами главных путей.
5.10.4.7 Пути в зоне расположения смотровых канав должны иметь звуковую сигнализацию о подаче напряжения на контактный рельс и световую сигнализацию о наличии или отсутствии напряжения на нем. При наличии напряжения на рельсе должны гореть лампы красного цвета, а при отсутствии напряжения - зеленого. Светильники располагают в смотровой канаве и на стене тупика.
5.10.4.8 Основное и резервное питание контактной сети станционных путей без смотровых канав предусматривается от контактных рельсов главных путей. В питающих линиях применяют разъединители с электроприводами, размещаемые у контактных рельсов главных путей.
5.10.4.9 Питание контактного рельса соединительного пути между двумя линиями должно быть:
а) основное - от контактного рельса главного пути или (при обосновании) от ближайшей ТПП и/или Т одной из линий;
б) резервное - от контактного рельса главного пути другой линии.
Подключение основной линии следует осуществлять кабельной перемычкой с разъединителем с электроприводом, резервной линии - разъединителем с ручным приводом или с электроприводом.
Ходовые рельсы соединительного пути должны быть изолированы от ходовых рельсов главных путей линии, от которой контактная сеть соединительного пути получает резервное питание. Для соединения ходовых рельсов путей следует предусматривать кабельную перемычку с разъединителем, имеющим общий ручной (электрический) привод с разъединителем резервного питания контактного рельса (двухполюсный разъединитель).
5.10.4.10 Основное питание контактных рельсов соединительных путей ветки в электродепо следует предусматривать от соответствующих контактных рельсов главных путей. Подключение питания следует осуществлять кабельной перемычкой с разъединителями с электроприводами.
При длине путей более 700 м основное питание предусматривается от ближайшей ТПП, Т линии по отдельной питающей линии. Линию подключают к контактному рельсу каждого пути ветки разъединителем с электроприводом.
Резервное питание контактных рельсов каждого соединительного пути предусматривается от контактных рельсов парковых путей. Соединение контактных рельсов следует осуществлять кабельными перемычками с разъединителями с ручным приводом или с электроприводом.
Ходовые рельсы соединительных путей ветки должны быть изолированы от ходовых рельсов парковых путей. Их соединение должно быть предусмотрено кабельной перемычкой с разъединителем, имеющим общий ручной (электрический) привод с разъединителем резервного питания контактного рельса (двухполюсным разъединителем).
В ошиновке разъединителя "+825 В" со стороны электродепо предусматривать нормально снятое звено.
5.10.4.11 Отсасывающие линии и междупутные соединители ходовых рельсов присоединяют к средним выводам ДТ.
5.10.4.12 Питающие и отсасывающие линии, перемычки контактного рельса и ходовых рельсов должны состоять не менее чем из двух кабелей.
5.10.4.13 Кабельные линии тяговой сети рассчитывают исходя из нагрузок нормального и аварийного режимов работы.
Основные и резервные питающие линии на нагрузки нормального режима рассчитывают без перегрузки кабелей, на нагрузки аварийного режима - с перегрузкой кабелей.
Резервные питающие линии следует рассчитывать на нагрузки нормального режима с перегрузкой кабелей.
Кабели в перемычках контактного рельса рассчитывают на нагрузки нормального режима при отключении в них одного кабеля с перегрузкой оставшихся и на нагрузки аварийного режима с перегрузкой всех кабелей в перемычке.
Кабели отсасывающих линий рассчитывают на нагрузки нормального режима при отключении в них одного кабеля с перегрузкой оставшихся и на нагрузки аварийного режима с перегрузкой всех кабелей в линии.
Кабели междупутных соединителей ходовых рельсов должны отвечать требованиям 5.21.
5.10.5.1 Электроснабжение электромеханических установок необходимо предусматривать от подстанций непосредственно или от общих магистральных питающих линий исходя из установленной категории надежности питания, их расположения и мощности.
5.10.5.2 Электроснабжение эскалаторов следует предусматривать непосредственно от ТПП или ПП по двум питающим линиям от разных секций РУ 380/220 В.
Расчетную мощность эскалаторов следует принимать исходя из установленной нагрузки для соответствующей высоты подъема и следующих условий работы:
- при трех эскалаторах:
а) в нормальном режиме: два - на подъем, один - на спуск;
б) в аварийном режиме - три на подъем;
- при четырех эскалаторах:
а) в нормальном режиме: два - на подъем, два - на спуск;
б) в аварийном режиме и режиме ГО ЧС: четыре - на подъем.
5.10.5.3 Электроснабжение основной и транзитной ВОУ, а также противопожарных повысительных насосных установок следует предусматривать непосредственно от ТПП или ПП по I категории, т.е. от разных секций шин РУ1. Вторую линию допускается подключать к общей магистральной линии.
Электроснабжение местных ВОУ и противопожарных повысительных насосных установок следует обеспечивать от общих магистральных линий.
Каждую питающую линию ВОУ следует рассчитывать на одновременную работу в нормальном режиме двух насосов в основной и одного насоса - в транзитной и местной установках, в аварийном режиме - всех насосов.
Каждую питающую линию противопожарной установки рассчитывают на работу одного насоса.
Для ВОУ с двумя насосами и более предусматривается питание по двум одновременно включенным питающим линиям.
Для местных ВОУ с одним стационарно установленным насосом и для противопожарной установки предусматривают одну рабочую, вторую - резервную питающие линии.
5.10.5.4 Электроснабжение УТВ с двумя вентиляторами предусматривают непосредственно от ТПП или ПП по двум рабочим линиям.
Каждую питающую линию УТВ следует рассчитывать на работу в нормальном режиме одного вентилятора, в аварийном режиме - двух вентиляторов. Расчет по аварийному режиму следует выполнять при использовании данной УТВ в системе противопожарной защиты.
5.10.5.5 Электроснабжение отдельных притоннельных установок и передвижных агрегатов общей мощностью до 60 кВт в перегонных тоннелях следует предусматривать от общих магистральных линий. Для присоединения к магистральным линиям следует применять путейские ящики (ПЯ) с автоматическими выключателями и штепсельными разъемами.
ПЯ следует устанавливать:
- в кабельных коллекторах;
- под платформой станции в вентиляционно-кабельном канале или кабельном коллекторе;
- в перегонных тоннелях:
а) у платформы станции;
б) у стрелочных переводов;
в) у основных и транзитных ВОУ;
г) через 100 м (не более) между вышеуказанными местами.
Расстояние между конечными ПЯ в зоне токораздела магистральных линий между соседними подстанциями следует принимать не более 15 м.
В двухпутном тоннеле ящики для путейских работ (ПЯ) устанавливаются по оси тоннеля в шахматном порядке (лицевая сторона - к оси пути).
Для обслуживания электротехнических устройств, устанавливаемых в вентканале (канале дымоудаления), предусматриваются КММ и ПЯ в местах эвакуационных (аварийных) выходов из вентканала.
5.10.5.6 Для питания ремонтных механизмов мощностью до 20 кВт и ручного электроинструмента до 3 кВт в машинных и натяжных помещениях эскалаторов, в машинных помещениях УТВ, в ВОУ, канализационных и водозаборных установках необходимо предусматривать ПЯ и ящики с автоматическими выключателями и штепсельными разъемами, подключаемые к ближайшим силовым распределительным пунктам 400/230 В.
5.10.5.7 Питание отдельных установок напряжением 230 В - электрических приборов отопления, кондиционеров, шкафов сушки спецодежды, ремонтных и уборочных механизмов и другое - следует предусматривать от распределительной сети 400/230 В.
Для присоединения стационарных электроприемников следует применять автоматические выключатели, для передвижных ремонтных и уборочных механизмов - штепсельные разъемы с защитными контактами.
Штепсельные разъемы предусматривают в машинных и натяжных помещениях эскалаторов, в производственных помещениях, в пассажирских помещениях станции на расстоянии не более 50 м друг от друга. Число полюсов штепсельных разъемов определяют в зависимости от вида подключаемого оборудования.
5.10.6.1 Рабочее и аварийное освещение помещений следует предусматривать с учетом СП 52.13330, исходя из функциональных, эстетических, архитектурно-художественных и эксплуатационных условий.
5.10.6.2 В пассажирских помещениях станций следует применять общее равномерное или локализованное рабочее освещение, выполняемое световыми приборами с электронными ПРА и энергосберегающими или светодиодными источниками света. Аварийное освещение пассажирских помещений станций выполняется световыми приборами с электронными ПРА и энергосберегающими или светодиодными источниками света. Допускается применение газоразрядных ламп высокого давления для аварийного освещения в пассажирских помещениях станций при питании сети аварийного освещения от СГЭ. Неравномерность общего и аварийного освещения не должна превышать 1,5:1.
Элементы осветительных установок подразделяются по классу светораспределения: прямого (П), преимущественно прямого (Н), равномерного (Р), преимущественно отраженного (В) и отраженного (О) света.
5.10.6.3 В пассажирских помещениях станций и перегонных тоннелях нормируемые значения горизонтальной освещенности следует принимать по таблице 5.23.
Таблица 5.23
|
Помещение |
Плоскость нормирования освещенности |
Горизонтальная освещенность, лк |
|
Станция: | ||
|
средний и платформенный залы |
Уровень пола |
200 |
|
для закрытых станций | ||
|
для открытых станций |
То же |
100 |
|
кассовый зал |
" |
200 |
|
предэскалаторная зона |
" |
100 |
|
гребенки эскалаторов и лестничные марши |
Уровень гребенки, ступени |
100 |
|
Коридоры между станциями (тамбуры) |
Уровень пола |
100 |
|
Входные коридоры и подуличные переходы |
То же |
75 |
|
Тоннель перегонный, тупиковый, соединительный |
Уровень головок рельсов |
20 |
|
Участок тоннеля длиной 150 м перед платформой станции и 25 м после нее |
То же |
60 |
|
Участок тоннеля перед порталом длиной, м: | ||
|
5 |
Уровень головок рельсов |
1000 |
|
от 5 до 25 |
То же |
750 |
|
" 25 " 50 |
" |
500 |
|
" 50 " 75 |
" |
300 |
|
" 75 " 100 |
" |
150 |
|
" 100 " 125 |
" |
60 |
|
" 125 " 150 |
" |
20 |
|
Остряки стрелочных переводов путей |
" |
20 |
|
Служебная платформа в тупиковом тоннеле |
Платформа |
30 |
|
Примечание - Коэффициенты запаса и неравномерности освещенности для пассажирских помещений станции надлежит принимать по Рекомендациям [19]. Замеры уровня освещенности и светотехнический расчет при проектировании групп рабочего и аварийного освещения следует проводить независимо друг от друга. | ||
Допустимое отклонение горизонтальной освещенности от нормативной не может быть более 20% в сторону увеличения и 10% в сторону уменьшения.
Расчет осветительных установок пассажирских помещений станций можно выполнять по приложению 5.10 В СП 32-105 [17].
5.10.6.4 В ОУ пассажирских помещений среднее значение показателя дискомфорта должно быть не более 20 с допустимым превышением до 20%.
При наличии специальных архитектурно-художественных требований среднее значение цилиндрической освещенности следует принимать равным 75 лк с допустимым отклонением не более 20 и не менее 10%.
5.10.6.5 Освещенность производственных, административных, медицинских, бытовых и других помещений принимают согласно КСЦ Метро-2 [20].
5.10.6.5а В тоннеле необходимо предусмотреть эксплуатационное и аварийное освещение, обеспечивающее освещение подвижного состава на подходах к станции и в зонах замедления движения подвижного состава.
В двухпутном тоннеле группы рабочего и аварийного освещения располагаются на обеих сторонах тоннеля. Для освещения вентканала (канала дымоудаления) предусматриваются группы рабочего и аварийного освещения.
5.10.6.6 Аварийное (эвакуационное) освещение необходимо предусматривать в пассажирских, производственных и бытовых помещениях станций, в тоннелях и в притоннельных установках. Освещенность в пассажирских помещениях и тоннелях должна составлять 5% уровня, нормируемого для рабочего освещения, но не менее 10 лк в пассажирских помещениях и 0,5 лк - в тоннелях.
5.10.6.7 Освещение платформенных и средних залов станций следует предусматривать светильниками, расположенными в карнизах свода, кессонах потолка, а также открыто с применением рассеивателей, исключающих ослепление машинистов поездов.
Светильники следует применять промышленного производства с пониженным уровнем шума на напряжение 230 и 400 В переменного тока.
Допускается использование светильников индивидуального изготовления, отвечающих требованиям норм пожарной безопасности. В рабочей документации необходимо указывать технические характеристики и правила обслуживания таких светильников.
Светильники следует располагать в местах, доступных для обслуживания; не допускается их размещение над эскалаторами и ступенями лестниц, над рельсами путей и на высоте более 5 м. Допускается применение бокового размещения светильников в наклонных ходах над ступенями эскалаторов, а также, при необходимости, над лестничными спусками пешеходных переходов с использованием подмостей.
Подвесные светильники (люстры) с одним узлом крепления должны иметь страховочные и спускные устройства.
Для обслуживания светильников предусматривают инвентарные (разборные, складные) лестницы и вышки.
5.10.6.8 Для освещения пространства под краем платформы станции предусматривают отдельную группу рабочего освещения с размещением светильников через 6 м.
5.10.6.9 В перегонных, соединительных и тупиковых тоннелях для рабочего и аварийного освещения применяют световые приборы с электронными ПРА и энергосберегающими или светодиодными источниками света.
Напряжение на светильниках в рабочем и аварийном режимах питания должно быть не ниже 90 и не более 105% номинального.
5.10.6.10 Рабочее освещение станций и перегонных тоннелей не должно ухудшать видимость сигнальных огней.
5.10.6.11 Световые указатели на путях эвакуации согласно 5.16 следует подключать к сети аварийного освещения.
На входах в соединительные сбойки следует предусматривать не световые указатели (таблички) "Аварийный выход на 1 (2) путь", а при выходе из сбойки - не световые указатели направления движения к станциям с их названиями и расстояниями до них. Вблизи указателей должны располагаться аварийные светильники.
Метод расчета осветительных установок пассажирских помещений станций приведен в [17, приложение 5.10В]
5.10.6.12 В однопутном тоннеле группы рабочего освещения необходимо располагать на обеих сторонах, группу аварийного освещения - на сильноточной стороне тоннеля; в двухпутном тоннеле группы рабочего и аварийного освещения - на обеих сторонах тоннеля.
В однопутном тоннеле необходимо располагать:
- группы рабочего освещения - на обеих сторонах тоннеля;
- группу аварийного (резервного) освещения - на сильноточной стороне тоннеля;
- группу аварийного (эвакуационного) освещения тоннеля - на слаботочной стороне тоннеля.
В двухпутном тоннеле необходимо располагать:
- группы рабочего освещения - на обеих сторонах тоннеля;
- группу аварийного (резервного) освещения - на обеих сторонах тоннеля;
- группу аварийного (эвакуационного) освещения - на обеих сторонах тоннеля.
В двухпутных тоннелях, имеющих по оси тоннеля металлические конструкции, предназначенные для крепления кабельных линий, необходимо размещать:
- световые приборы и кабельные линии - так же, как в однопутном тоннеле.
На двухпутных перегонах наземных участков необходимо размещать:
- группы рабочего освещения - по обеим сторонам.
На перегонах наземных участков, имеющих более двух путей, необходимо размещать:
- группы рабочего освещения - с учетом выполнения требований нормируемости освещенности на УГР.
5.10.6.13 В тупиках следует предусмотреть общее и местное освещение смотровых канав станционных путей.
Общее освещение следует выполнять светильниками напряжением 230 В с установкой их с интервалом через 5 м с каждой стороны тоннеля и канавы в шахматном порядке.
В местах ночного отстоя и технического обслуживания подвижного состава ПТО светильники верхнего освещения располагают вдоль состава на высоте не более 3 м (на уровне окон вагонов).
Светильники должны быть антивандального исполнения; местное освещение - переносными светильниками 12 В. Штепсельные розетки для их подключения следует располагать по одной стороне канавы через 20 м.
В тупиках без смотровых канав станционных путей штепсельные розетки для переносных светильников 12 В размещают в местах отстоя составов на стенах через 20 м.
5.10.6.14 Питание групп рабочего освещения перегонных, тупиковых и соединительных тоннелей предусматривают от ТПП или ПП по двум кабельным линиям - по одной для каждой стороны тоннеля, групп аварийного освещения - по одной кабельной линии.
5.10.6.15 Усиленное освещение в перегонных тоннелях перед порталами тоннелей предусматривают согласно таблице 5.23.
Усиленное освещение тоннелей перед платформами станций должно предусматриваться со стороны подхода поезда на участке 150 м и 25 м со стороны отправления поезда со станции.
Для питания светильников усиленного освещения следует использовать отдельные питающие линии и дистанционное управление из ДСП.
5.10.6.16 В перегонных и соединительных тоннелях следует предусматривать отдельную питающую линию 400/230 В с автоматическими выключателями и штепсельными разъемами в ящиках для подключения ручного электроинструмента мощностью до 5 кВт и переносных светильников для создания усиленного местного освещения. Ящики с двух- и трехполюсными штепсельными разъемами с защитным контактом следует размещать в однопутном тоннеле на слаботочной стороне тоннеля, в двухпутном - на обеих сторонах в шахматном порядке, с шагом не более 50 м. Розетки следует размещать с внешней стороны ящика. Розетки должны быть защищены от попадания влаги.
К этой же линии подключают ящики с понижающим трансформатором 230/12 В и штепсельным разъемом. Ящики устанавливают в местах расположения устройств АТДП, стрелочных переводов и затворов.
Допустимая потеря напряжения в питающей линии при одновременном подключении двух нагрузок суммарной мощностью 10 кВт - 9%.
В тупиках ящики со штепсельными разъемами и понижающими трансформаторами присоединяют к сетям ручного электроинструмента.
Размещение ящиков не должно мешать движению пассажиров в тоннеле при их эвакуации из поезда, а также работе пожарно-спасательных подразделений и аварийно-восстановительных формирований.
5.10.6.17 Для освещения остряков стрелочных переводов предусматривают отдельную группу аварийного освещения.
5.10.6.18 Питание нагрузок мощностью до 100 Вт напряжением 230 В в шкафах связи на станциях предусматривают от ИБП.
В тоннелях, притоннельных сооружениях и в тупиках у шкафов связи предусматривают двухполюсную штепсельную розетку с защитным контактом на напряжение 230 В.
5.10.6.19 В притоннельных сооружениях питание сети рабочего освещения следует получать от местных РП 400/230 В, в случае их наличия, или от сети освещения перегонного тоннеля, сети аварийного освещения - от групп аварийного освещения перегонных тоннелей.
5.10.6.20 В сетях освещения притоннельных сооружений, имеющих входы из тоннелей и с поверхности земли, аппараты включения светильников следует размещать у каждого входа.
5.10.6.21 Штепсельные розетки для подключения переносных светильников напряжением 12 В следует предусматривать в производственных помещениях, в проходах между эскалаторами, в помещениях тепловых пунктов и ВТЗ через 20 м, у водосборников и фекальных баков насосных установок.
В концах платформ станций и в середине платформ станций с путевым развитием необходимо предусматривать штепсельные розетки для фонарей ограждения и специальные штепсельные разъемы согласно 5.16.7.
В подуличных переходах вблизи лестничных сходов предусматривают двухполюсные штепсельные розетки на напряжение 230 В.
5.10.6.22 На входах в вестибюли станций и в кассовые блоки предусматривают электрические звонки с установкой кнопок с внешней стороны входов.
5.10.6.23 В пассажирских помещениях станций следует предусматривать скрытую электропроводку в тонкостенных металлических трубах; в карнизах допускается открытая электропроводка кабелями.
В производственных, бытовых и других помещениях станций, в тоннелях и притоннельных сооружениях, в кабельных тоннелях и под платформой станций предусматривается открытая электропроводка кабелями; в смотровых канавах станционных путей - электропроводка в тонкостенных металлических трубах.
5.10.7.1 В тоннелях, притоннельных сооружениях, вентиляционно-кабельных каналах или подплатформенных кабельных коллекторах, отсеках и кабельных тоннелях станций в магистральных сетях, а также в распределительных сетях притоннельных сооружений следует применять бронированные кабели, в производственных и других помещениях станций - заземление металлической оболочки и брони магистральных и местных кабелей связи на вводах.
5.10.7.2 Прокладку кабелей во всех помещениях и сооружениях, кроме пассажирских, следует предусматривать открыто, без ограждений и перегородок.
5.10.7.3 Наименьшие расстояния между кронштейнами и между кабелями, а также размеры кабельных помещений принимают по таблице 5.24.
Таблица 5.24
|
Параметр |
Размер, мм | ||
|
по вертикали |
по горизонтали | ||
|
Расстояние: | |||
|
между рожками кронштейна |
125 |
- | |
|
между полками |
150 |
- | |
|
между кронштейнами |
1000-1200 |
800-1100 | |
|
Высота вентиляционно-кабельного канала или кабельного коллектора под платформой станции в проходной части и в зоне прокладки кабелей |
1800 |
- | |
|
Высота кабельного этажа на подстанции |
2300 |
- | |
|
Расстояние в свету между кабелями: | |||
|
силовыми напряжением до 3 кВ |
60 |
15 | |
|
силовыми напряжением 6, 10, 20 кВ |
100 |
Примечание 1 | |
|
силовыми напряжением до 3 кВ и 6, 10, 20 кВ |
100 |
Примечание 1 | |
|
силовым напряжением до 1 кВ и контрольными силовыми и связи или контрольными: |
60 |
15 | |
|
а) кабели связи или контрольные над кабелями 3-20 кВ |
500 |
- | |
|
б) кабели до 1 кВ над кабелями 3-20 кВ |
100 |
- | |
|
в) кабели связи или контрольные под кабелями 6, 10 кВ |
100 |
- | |
|
г) кабели связи или контрольные под кабелями 20 кВ |
250 |
- | |
|
д) пересечение кабелей связи или контрольных с кабелями до 1 кВ |
15 |
15 | |
|
е) то же, с кабелями 3-20 кВ |
Примечание 2 | ||
|
Примечания 1 Размер по горизонтали следует принимать не менее диаметра кабеля. 2 Кабели одной группы прокладывают в трубах или разделяют несгораемой перегородкой. | |||
5.10.7.4 В однопутных перегонных тоннелях силовые и контрольные кабели следует располагать по сильноточной стороне тоннеля, кабели установок АТДП и связи - по слаботочной стороне.
Допускается прокладка отдельных кабелей установок АТДП и связи по сильноточной стороне ниже силовых кабелей, а силовых кабелей - по слаботочной стороне тоннеля выше кабелей связи.
Кабели перемычек контактной сети 825 В и кабели отсасывающей сети 825 В по обеим сторонам тоннеля следует прокладывать на дополнительных кронштейнах, устанавливаемых ниже основного кабельного кронштейна. В стесненных условиях допускается прокладка кабелей 825 В на свободных местах.
5.10.7.5 Кабели, в зависимости от напряжения и назначения, необходимо располагать на кронштейнах в следующей последовательности (сверху вниз):
- сильноточная сторона: кабели 6, 10, 20 кВ; 825 В; 400/230 В; контрольные; магистральные (кабели ПЯ);
- слаботочная сторона: кабели и провода связи; сигнально-блокировочные и контрольные кабели АТДП и связи.
В двухпутном тоннеле допускается смешанная прокладка кабелей по обеим сторонам тоннеля с соблюдением указанных выше требований.
5.10.7.6 Количество прокладываемых кабелей на одном рожке кронштейна должно соответствовать диаметру рожка.
Совместная прокладка на одном рожке кронштейна силового кабеля, кабеля связи или сигнально-блокировочного не допускается.
В пределах одного перегона каждый кабель на кабельных кронштейнах должен занимать один и тот же уровень, определяемый по наиболее загруженной зоне.
5.10.7.7 Обход кабелями проемов в стенах тоннелей и переход кабелей с одной стороны тоннеля на другую следует предусматривать на специальных конструкциях или кронштейнах, располагаемых через 1 м, с креплением кабелей скобами.
Прокладка кабелей под путями линии не допускается.
5.10.7.8 В вентиляционно-кабельном отсеке или кабельном коллекторе эскалаторного тоннеля прокладку кабелей следует предусматривать с креплением скобами к каждому пятому кронштейну.
Прокладка транзитных кабелей в кабельных каналах машинного помещения эскалаторов не допускается.
В стволах шахт прокладку кабелей необходимо предусматривать в центральной зоне сечения ствола на металлических конструкциях или на конструкциях из композитных материалов с площадками через 3 м и лестницами между ними. Крепление кабелей предусматривают скобами к каждому кронштейну.
В местах изменения направления трассы трубной кабельной канализации, а также через 60 м на ее прямолинейных участках размещают колодцы или шкафы; трубы между колодцами или шкафами должны иметь односторонний уклон не менее 3 ‰.
5.10.7.9 Прокладку взаиморезервирующих кабелей в однопутных тоннелях проводят в разных перегонных тоннелях.
Прокладку взаиморезервирующих кабелей по станции, в помещениях, в двухпутных тоннелях проводят по разным трассам. При необходимости прокладки таких кабелей по общей трассе их следует разделять асбестоцементными (хризотилцементными) перегородками.
5.10.7.10 В местах пересечения температурных швов на мостах, в местах перехода с конструкций мостов на эстакады, а также на наземных участках в галереях прокладку кабелей предусматривают с запасом по длине, достаточным для компенсации возможных смещений.
5.10.7.11 На соединительных муфтах кабелей напряжением 6, 10, 20 кВ необходимо устанавливать специальные противопожарные металлические кожухи. Ограничения в размещении соединительных муфт кабелей 6, 10, 20 кВ следует принимать по 5.16.
5.10.7.12 Прокладку кабелей через стены и перекрытия сооружений предусматривают в трубах, уплотняемых негорючим материалом.
5.10.7.13 Мероприятия по защите от электрокоррозии предусматривают по 5.21.
5.10.7.14 В перегонных тоннелях и других сооружениях с бетонной и железобетонной обделками предусматривают заземление каждого кабельного кронштейна.
5.10.7.15 Крепление кабельных кронштейнов, заземляющих проводников и других металлоконструкций к железобетонным обделкам тоннелей предусматривают сваркой к закладным деталям в железобетонных обделках или с применением разборных узлов (дюбель-шурупов).
5.10.7.16 Все бронированные кабели, выходящие за пределы метрополитена и входящие в метрополитен, должны иметь изолирующие муфты.
5.10.7.17 Исключен с 17 июня 2017 г. - Изменение N 2, утвержденное приказом Минстроя России от 16 декабря 2016 г. N 576/пр
5.10.7.18 Средства контроля и защиты подземных сооружений от электрокоррозионного воздействия следует предусматривать согласно 5.21.
5.10.7.19 На линии необходимо предусматривать единую систему защитного заземления.
5.11.1 Электроустановки должны иметь местное управление, а также, при необходимости, дистанционное управление, телеуправление, автоматизированный учет электроэнергии, сигнализацию и измерения.
5.11.2 Устройства управления должны обеспечивать максимальную автоматизацию процесса эксплуатации установок, контроль заданных режимов их работы и сигнализацию при отклонении от них.
5.11.3 Дистанционное управление сетями освещения, фидерами эскалаторов, электромеханическими установками на станциях и в прилегающих перегонных тоннелях необходимо предусматривать из диспетчерских пунктов станций (ДПС), разъединителями контактной сети - из ТПП, Т. Отдельные разъединители контактной сети на станциях с путевым развитием диспетчерских должны иметь управление из ДПС.
5.11.4 Телеуправление, телесигнализация и телеизмерение электроустановок следует предусматривать из электродиспетчерского пункта линии в соответствии с принятой структурой метрополитена.
5.11.5 На ТПП, Т и ПП необходимо предусматривать:
- местное поэлементное управление объектами; световую сигнализацию положения управляемых объектов, световую и звуковую сигнализации об их аварийном отключении, автоматический контроль наличия напряжения в цепях оперативного тока;
- местное автоматизированное управление объектами;
- отключение выключателей в сетях 6, 10, 20 кВ в результате срабатывания защит и блокировку включения по условиям безопасности;
- дистанционное отключение кабелей ввода эскалаторных машинных залов;
- дистанционное отключение выключателей линий питания эскалаторных машинных залов при пожаре в машинном зале эскалаторов.
- автоматизированную систему учета электрической энергии на вводах и отходящих линиях 6, 10, 20 кВ, на ПА и трансформаторах - с размещением центральной станции системы в ДПЛ.
Кроме того, на ТПП, Т следует предусматривать:
- местное поэлементное управление выключателями 6, 10, 20 кВ и 825 В, разъединителями питающих линий 825 В, заземляющими разъединителями в РУ 825 В;
- контроль наличия напряжения на шинах РУ 825 В;
- отключение ПА при замыканиях на "землю" в них и подключенных к ним кабелях 825 В;
- отключение питающей линии 825 В при замыкании в кабеле на "землю";
- отключение ПА и питающих линий 825 В при замыкании на "землю" в РУ 825 В;
- однократное повторное включение питающих линий 825 В после отключения от перегрузки или КЗ в контактной сети;
- отключение питающих линий 825 В при аварийном отключении сблокированных с ними питающих линий на соседних ТПП, Т (в зависимости от принятой схемы тяговой сети).
Присоединения 6, 10, 20 кВ (все ячейки с выключателями, ячейки трансформаторов напряжения) и 825 В (все ячейки, включая ЗР и ПА) должны быть оборудованы современными микропроцессорными терминалами, обеспечивающими функции защиты, автоматики, управления, сигнализации, постоянного контроля за присоединением, а также совместную работу с системами телемеханики (с поддержкой протокола МЭК 61850).
5.11.6 На ТПП, Т, ПП и в тяговой сети следует предусматривать из ДПЛ:
- телеуправление:
а) всеми выключателями 6, 10, 20 кВ;
б) выключателями 825 В и заземляющими разъединителями в РУ 825 В ТПП, Т, а также разъединителями с электроприводами в контактной сети;
в) программное управление ПА, выключателями и разъединителями питающих линий 825 В, заземляющими разъединителями в РУ 825 В;
г) выключателями кабелей ввода 400/230 В эскалаторных машинных залов;
- телесигнализацию положения телеуправляемых объектов и нарушения нормального режима работы подстанции. От каждого объекта на электродиспетчерский пункт линии должны идти индивидуальные телесигналы о состоянии объекта. Допускается объединять в один только сигнал о неисправности понизительной части подстанции;
- телеизмерение:
а) напряжения на секциях шин РУ 6, 10, 20 кВ и РУ напряжением до 1 кВ переменного и постоянного токов;
б) тока нагрузок питающих линий 6, 10, 20 кВ;
в) тока нагрузок ПА, основных и резервных питающих линий 825 В;
г) информации с микропроцессорных устройств защиты питающих линий 6, 10, 20 кВ и 825 В;
- автоматизированный учет расхода электроэнергии по трансформаторам, ПА, питающим линиям 6, 10, 20 кВ. В соответствии с заданием информацию по учету расхода электроэнергии допускается предусматривать также на рабочих местах главных энергетиков метрополитена и службы электроснабжения.
5.11.7 Установки ИБП (СГЭ) должны обеспечивать непрерывное электропитание потребителей особой группы I категории без переключений при отключении электропитания от ТПП, ПП.
5.11.8 В тяговой сети 825 В станций с путевым развитием следует предусматривать дистанционное управление из ДПС:
- разъединителями кабельных перемычек между участками контактного рельса и линий резервного питания контактной сети тупиков от контактного рельса главного пути;
- секционным разъединителем между РП 1 и РП 2 тупиков;
- коммутационным аппаратом в цепи питания электроприводов этих разъединителей.
5.11.9 В электромеханических установках следует предусматривать:
- местное поэлементное управление, световую сигнализацию положения (состояния) объектов;
- местное автоматизированное управление объектами:
а) в насосных установках, в ВТЗ, ВЗ, УМВ и ИТП на станции и подстанции в зависимости от установленных параметров (уровня жидкости в сборниках, температуры воды и воздуха и т.д.);
б) отключение УМВ станции и подстанции, закрытие огнезадерживающих клапанов УМВ кладовых ГСМ при срабатывании АУПС;
- дистанционное управление объектами из ДПС:
а) УМВ станции и притоннельных сооружений;
б) повысительными насосами водозаборных скважин;
- дистанционный пуск противопожарных повысительных насосов на водопроводе и открытие задвижек обводной линии водомерного узла кнопочными постами у шкафов пожарных кранов на станциях мелкого заложения и в вестибюлях станций глубокого заложения;
- дистанционное управление объектами из ДПС и телеуправление из ДПЛ следует предусматривать с учетом их расположения и границ токораздела:
а) агрегатами УТВ, ВТЗ и ВЗ и клапанами систем тоннельной вентиляции, включая клапаны в противодутьевых и вентиляционных сбойках;
б) противопожарными повысительными насосами и задвижками на водопроводе;
в) погружными насосами и задвижками водозаборных скважин;
- дистанционную сигнализацию в ДПС и телесигнализацию в ДПЛ:
а) положения и состояние дистанционно- и телеуправляемых объектов;
б) состояния ВОУ, а также канализационных установок на станции и в ПТО в тупиках;
в) неисправности и отсутствия напряжения в цепях ДУ и ДС;
г) срабатывания АУПС и АУПТ на станции и превышения допустимой температуры воздуха в машинных помещениях и распределительных устройствах ТПП, Т и ПП; машинных помещениях эскалаторов, помещений щитовых ИБП (СГЭ);
д) состояния цепей управления ДУ-ТУ.
5.11.10 Устройства управления, сигнализации и контроля установками эскалаторов, включая автоматическое переключение питающих линий 400 В в машинном помещении эскалаторов, а также требования по управлению эскалаторами из ДПС и ДПЛ следует принимать в соответствии с электротехническим заданием заказчика.
5.11.11 В системе СУРС следует предусматривать управление:
- местное индивидуальное управление группами освещения станции и перегонных тоннелей;
- дистанционное управление из ДПС:
а) группами освещения пассажирских помещений станции;
б) группами освещения подплатформенных вентиляционно-кабельных каналов, зоны контактного рельса под козырьком платформы станции, а также перегонных тоннелей;
в) централизованным отключением групп рабочего освещения перегонных тоннелей и подачи светового сигнала;
г) сетями электрообогрева ступеней лестничных сходов в подуличные переходы или коридоры на входах в подземные вестибюли станций;
- автоматическое управление группами усиленного освещения перегонных тоннелей перед платформами станций и порталами тоннелей при приближении поезда;
- автоматическое управление (в зависимости от уровня освещенности в дневное время) группами освещения символов "М" и козырьков над лестничными сходами в подземные вестибюли.
Электроустановки должны иметь местное управление, а также, при необходимости, дистанционное управление, телеуправление, автоматизированный учет электроэнергии, сигнализацию и измерения.
5.11.12 В пассажирских помещениях, в помещениях с постоянным пребыванием персонала, на эскалаторах и лестничных маршах станции следует предусматривать автоматическое включение групп аварийного освещения при отключении соответствующих групп рабочего освещения. В остальных помещениях, а также в перегонных тоннелях, тупиках и ПТО включение аварийного освещения следует предусматривать вручную.
5.11.13 Метрополитен должен быть оборудован телеметрической системой измерения и контроля параметров микроклимата, расхода воды, потребления тепла, удаления сточных и использованных вод для передачи на АРМ-ДПЛ по отдельному каналу связи.
5.11.14 Система телеуправления электромеханическими объектами станций метрополитена должна состоять из станционного оборудования нижнего уровня - АРМ-ДПС и верхнего уровня - АРМ-ДПЛ.
Программное обеспечение АРМ-ДПС и АРМ-ДПЛ должно обеспечивать контроль и телеуправление электромеханическими объектами станций.
5.12.1 Линия метрополитена должна быть оборудована системами (устройствами) АТДП, к которым относятся:
- система автоматического регулирования скорости и обеспечения безопасности движения поездов (АРС);
- система централизации маршрутов, стрелок и сигналов;
- система автоматического управления поездом (АУП);
- система автоматической блокировки (АБ);
- система автоматической локомотивной сигнализации с автоматическим регулированием скорости (АЛС-АРС) и обеспечения безопасности движения поездов (АРС);
- система диспетчерской централизации.
Системы АТДП должны предусматривать возможность функционирования в комплексе автоматизированного управления технологическими процессами на линии.
Примечание - Объем оснащения и этапы внедрения автоматического управления движением поездов определяются техническим заданием.
При проектировании, строительстве и реконструкции следует применять современные микропроцессорные системы АТДП, пригодные для использования на метрополитенах. Качество и характеристики применяемых систем должны соответствовать требованиям проекта и действующих нормативных документов.
5.12.2 Управление маршрутами, стрелками и сигналами, контроль за движением поездов на линии должен осуществляться из диспетчерского пункта линии (ДПЛ) - диспетчерское управление или из диспетчерского пункта станции (ДПС) - местное управление. Системы диспетчерской централизации и диспетчерского контроля должны быть функционально, информационно и технически совместимы с другими подсистемами устройств АТДП метрополитена.
5.12.3 На соединительных ветках между линиями следует предусматривать системы для движения поездов в обоих направлениях.
5.12.4 Устройства АБ следует предусматривать для вывода с линии поезда с отключенными (или неисправными) поездными устройствами АРС и для регулирования движения хозяйственных и вспомогательных подвижных единиц в ночное время, если последние не оборудованы системой АРС. АБ должна двух-, трех- либо четырехзначной.
5.12.5 Пути линии следует оборудовать рельсовыми цепями. Применение систем АТДП без использования рельсовых цепей, входящих в состав системы автоматического регулирования скорости и обеспечения безопасности движения поездов, должно быть обосновано нормативными документами и выбранными системами. В этом случае должен обеспечиваться контроль целостности ходовых рельсов.
Расчет блок-участков АРС, тяговые расчеты, расчеты точек переключения режимов вождения следует проводить исходя из технических характеристик предполагаемого к эксплуатации на данном участке типа электроподвижного состава (в том числе перспективного), значение длин тормозных путей следует применять согласно [5].
Расчеты блок-участков АРС и расчеты режимов вождения проводят по всем планируемым маршрутам, а при наличии на участке реверсивного движения - в обоих направлениях.
5.12.6 Системы АТДП должны отвечать требованиям по организации сигнализации на метрополитенах.
5.12.7 Максимальную пропускную способность линии следует рассчитывать только по параметрам системы интервального регулирования и безопасности движения поездов. Система АРС при реализации максимального расчетного графика движения поездов должна обеспечивать непрерывный контроль за соблюдением допустимой скорости движения, автоматическое торможение при превышении поездом этой скорости и остановку поезда при непринятии машинистом мер к ее снижению.
Систему АРС следует предусматривать на принципах автоматического регулирования скорости путем формирования и передачи по каналам связи кодовых сигналов АРС (частотных, цифровых и пр.) на поездные устройства о допустимой скорости движения поезда на данном путевом участке и следующем участке по направлению движения поезда.
В качестве каналов связи могут использоваться ходовые рельсы, напольные датчики, излучающий (щелевой) кабель и другие устройства.
Система АРС должна состоять из стационарных и поездных полукомплектов оборудования.
Примечание - Поездные полукомплекты входят в состав вагонного оборудования и поставляются с подвижным составом.
Систему АРС необходимо предусматривать на всех путях линии и соединительных путях между линиями, а также линией и электродепо.
На участках пути с двусторонним движением поездов систему АРС следует предусматривать для каждого направления движения.
5.12.8 При расчетах пропускной способности линии следует учитывать запас времени на восприятие кодового сигнала АРС, разрешающего движение поезда на перегоне, не менее 15 с, на подходе к станции и станционных путях - не менее 5 с.
При необходимости главные и станционные пути следует оборудовать внепоездным контролем скорости.
5.12.9 На двухпутных соединительных ветках в электродепо, где каждый путь предназначен в основном для движения в одном направлении, допускается не предусматривать устройства автоматической блокировки (АБ) для движения поездов в противоположном направлении.
5.12.10 АБ должна быть нормально отключена. Включение АБ следует предусматривать из ДПС - отдельными участками, из ДПЛ - отдельными участками и по линии в целом.
5.12.11 В тоннелях следует предусматривать светофоры типа "Метро", на открытых участках линии допускаются применять типовые железнодорожные светофоры при условии обеспечения видимости всех сигнальных показаний светофора с рабочего места кабины машиниста согласно [5].
В светофорах применяют светодиоды или двухнитевые лампы.
Светофоры на главных путях обозначают нечетными номерами для первого пути и четными - для второго пути.
Номер светофора составляется из номера перегона (одна или две первые цифры) и порядкового номера светофора на перегоне (последняя цифра).
На светофорах полуавтоматического действия перед номером следует вводить две буквы, сокращенно обозначающие название станции. Маневровые светофоры допускается обозначать только одной буквой.
5.12.12 Светофоры полуавтоматического действия должны иметь два режима работы: при отключенной и при включенной АБ.
На линии, где основным средством сигнализации при движении поездов является АЛС-АРС, светофоры автоматического действия следует предусматривать только на выходе со станции; они должны находиться нормально в отключенном положении.
5.12.13 Установку светофоров следует предусматривать с правой стороны по направлению движения. В однопутных тоннелях, в местах плохой видимости, а также в случае отсутствия габарита для установки светофора с правой стороны и на малодействующих маршрутах светофоры допускается устанавливать с левой стороны.
5.12.14 На светофорах полуавтоматического действия (кроме светофоров, разрешающих движение по главным путям в неправильном направлении) следует предусматривать пригласительные сигналы. Схемы пригласительных сигналов должны обеспечивать контроль положения стрелок по направлению движения поездов.
5.12.15 На светофорах, разрешающих движение в нескольких направлениях, в том числе и по пригласительному сигналу, следует предусматривать маршрутные указатели.
5.12.16 На путях линии следует предусматривать двухниточные рельсовые цепи без изолирующих стыков и с изолирующими стыками.
Однониточные РЦ допускаются на перекрестных съездах и парковых путях электродепо.
Рельсовые цепи должны быть защищены:
- от взаимного влияния смежных РЦ при замыкании изолирующих стыков между ними;
- от влияния тягового тока в рельсах и блуждающих токов;
- от влияния токов РЦ наложения, используемых в других схемах.
В кривых малого радиуса, где устанавливается контррельс, необходимо выполнять транспозицию ходовых рельсов путем установки изолирующих стыков и косых перемычек в пути. Место установки изолирующих стыков должно определяться по критерию обеспечения наименьшего уровня асимметрии тягового тока на всем бесстыковом участке. Принцип транспозиции должен выполняться при длине контррельса более 50 м.
5.12.17 Каждая РЦ должна иметь не менее двух выходов тягового тока и использоваться также для контроля целостности ходовых рельсов.
В каждой неразветвленной РЦ с изолирующими стыками должно быть не более двух дроссель-трансформаторов (ДТ) для пропуска тягового тока. В разветвленных РЦ допускается установка трех ДТ.
В однониточной РЦ для пропуска тягового тока следует использовать ходовой рельс, расположенный ближе к контактному рельсу.
5.12.18 Присоединение к ходовому рельсу проводов и кабелей различного назначения (отсос тягового тока, междупутные соединители) при двухниточной РЦ следует осуществлять через средний вывод ДТ не чаще чем через два изолирующих стыка или три РЦ.
При этом параметры цепи обхода по параллельным и смежным РЦ не должны быть меньше приведенных в таблицах 5.25 (для резонансных РЦ частотой 50 Гц) и 5.26 (для тональных РЦ (ТРЦ) несущей частотой 420-780 Гц и частотой модуляции 8 и 12 Гц).
Для других двухниточных РЦ параметры цепи обхода сигнального тока по параллельным и смежным РЦ не должны быть меньше указанных в технических требованиях на соответствующие РЦ.
Таблица 5.25 - Резонансные РЦ частотой 50 Гц
|
Lрц, м |
Lобх, м |
Lтп, M |
Zобх, Ом |
|
100 |
540 |
320 |
1,0 |
|
125 |
560 |
340 |
1,1 |
|
150 |
580 |
370 |
1,15 |
|
175 |
600 |
390 |
1,2 |
|
200 |
615 |
410 |
1,22 |
|
225 |
640 |
430 |
1,3 |
|
250 |
670 |
460 |
1,33 |
|
275 |
700 |
490 |
1,4 |
|
300 |
720 |
510 |
1,45 |
|
325 |
760 |
540 |
1,5 |
|
350 |
790 |
570 |
1,6 |
|
375 |
820 |
600 |
1,65 |
|
400 |
850 |
630 |
1,7 |
|
425 |
900 |
660 |
1,8 |
|
450 |
930 |
690 |
1,85 |
|
475 |
975 |
730 |
1,95 |
|
500 |
1000 |
750 |
2,0 |
|
Lрц, м - длина РЦ наибольшей длины; Lобх, м - минимально допустимая длина цепи обхода; Lтп, м - расстояние между точками подключения междупутных соединителей; Zобх, Ом - минимально допустимое сопротивление цепи обхода. | |||
Таблица 5.26 - Тональные РЦ несущей частотой 420-780 Гц и частотой модуляции 8 и 12 Гц
|
Lрц, м |
25 |
50 |
75 |
100 |
125 |
150 |
|
Lтп, м |
125 |
250 |
375 |
400 |
500 |
600 |
|
Lрц - наибольшая длина РЦ в контуре; Lтп - расстояние между точками подключения междупутных соединителей | ||||||
5.12.19 В устройства централизации включаются все стрелки станции с путевым развитием.
Централизация должна быть увязана с устройствами АРС.
Управление маршрутами, стрелками и сигналами, контроль поездного положения следует осуществлять с АРМ ДПЛ или АРМ ДПС (допускается в ДПС устанавливать пульт-табло).
В аппаратной АТДП следует предусматривать АРМ-электромеханика для контроля за работой систем и поездным положением на участке.
5.12.20 Кодовый канал АРС, разрешающий движение по маршруту в границах станции с путевым развитием, необходимо включать после установки и замыкания маршрута одновременно с открытием светофора на разрешающее показание.
В рельсовую цепь перед светофором полуавтоматического действия при незаданном маршруте следует подавать кодовый сигнал АРС абсолютной остановки с учетом алгоритма работы поездной аппаратуры.
Маршрут должен размыкаться после освобождения любой подвижной единицей всего маршрута (или его части при секционном размыкании).
Маршрут, не использованный поездом, должен размыкаться при условии отсутствия поезда на предмаршрутном участке.
Искусственное размыкание маршрута как с АРМ ДПЛ, так и с АРМ ДПС (или пульт-табло) должно выполняться только при запрещающем показании светофора и отсутствии разрешающего сигнала АРС.
5.12.21 Схема управления стрелкой должна обеспечивать:
- невозможность перевода стрелки, замкнутой в маршруте и при занятой стрелочной рельсовой цепи;
- постоянный контроль положения остряков стрелки;
- доведение остряков стрелки до крайних положений при наезде подвижного состава на стрелочный участок в момент начавшегося перевода стрелки;
- исключение возможности перевода стрелки и появления ложного контроля при замыкании проводов, их заземлении и попадании тока от постороннего источника питания, включая самопроизвольный перевод стрелки под подвижным составом;
- контроль взреза стрелки с фиксацией сигнала о взрезе;
- возможность аварийного перевода стрелки при ложной занятости стрелочной рельсовой цепи с фиксацией этого действия и соблюдением соответствующих правил пользования;
- возможность перевода управления стрелкой на макет;
- возможность отключения схемы стрелки;
- возможность выключения только одной стрелки проектируемой станции с сохранением пользования маршрутами;
- возможность перевода управления стрелкой на резервный комплект схемы управления.
5.12.22 Часто повторяющиеся маршруты на станциях должны иметь возможность перевода на автоматическое действие. При этом одновременно со светофорами на главных путях на автоматическое действие должны переключаться пригласительные сигналы этих светофоров.
5.12.23 В устройствах централизации одновременное управление стрелками и сигналами из ДПЛ и ДПС не допускается.
Выбор режима управления следует предусматривать из ДПС по указанию ДПЛ.
В случае нарушения целостности цепей между устройствами ДПС и ДПЛ (при управлении из ДПЛ) должны автоматически отключаться открытые пригласительные сигналы.
5.12.24 Системы централизации должны иметь защиту от несанкционированного доступа - управление объектами может осуществляться только при введении личного кода (шифра) диспетчера, распознаваемого системой.
5.12.25 Системы АТДП на линии следует оборудовать устройствами:
- автоматического считывания (передачи) номеров маршрутов поездов;
- проверки технического состояния подвижного состава на ходу поезда.
Устройства должны быть увязаны со схемами АРС и централизации.
Фиксация устройствами нештатных (аварийных) ситуаций должна автоматически передаваться в ДПС и ДПЛ.
5.12.26 Системы АТДП следует увязывать со счетчиками интервалов времени, с путевыми затворами и другими устройствами.
5.12.27 Аппаратуру АТДП следует размещать на каждой станции и в ДПЛ.
На станциях для размещения устройств предусматривают аппаратную (релейную) и щитовую АТДП.
В тоннеле следует размещать напольное оборудование: светофоры, путевые ящики, ДТ, стрелочные приводы, путевые датчики, курбельные аппараты, а также, при необходимости, релейные шкафы с аппаратурой.
5.12.28 На станциях с путевым развитием в помещении ДПС предусматривают АРМ (или пульт-табло) для управления маршрутами, стрелками и сигналами, контроля за поездным положением, в аппаратных - АРМ-электромеханика АТДП.
В ДПЛ предусматривают АРМ диспетчера.
5.12.29 Электропитание систем АТДП разрабатывается в соответствии с разделом 5.10.
5.12.30 В щитовой АТДП (или в аппаратной) следует предусматривать электропитающую установку, обеспечивающую:
- подключение питающих линий переменного тока напряжением в соответствии с требованиями к системе управления;
- распределение электропитания по нагрузкам различного назначения;
- автоматическое и ручное переключение питающих линий;
- световую и звуковую сигнализации об отсутствии напряжения в питающих линиях;
- измерение напряжения и токов в питающих линиях.
5.12.31 В сетях, выходящих за пределы аппаратных, следует предусматривать двухполюсное размыкание каждой цепи.
5.12.32 Для отключения всех видов электропитания необходимо предусматривать специальный щит, размещаемый в отдельном помещении, рядом с аппаратной.
При установке вводно-распределительных панелей в отдельном помещении щитовой щит выключения питания допускается не применять.
5.12.33 В системах АТДП необходимо применять кабели, не распространяющие горение, не содержащие галогены, с пониженным дымо- и газовыделением.
5.12.34 Рабочие и контрольные цепи стрелочных электроприводов, светофоров, питающих и релейных концов РЦ следует предусматривать в разных кабелях. Допускается объединение в одном кабеле цепей различного назначения, за исключением цепей путевых приемников, рабочих и контрольных цепей стрелок.
5.12.35 Для систем АТДП по каждому пути следует предусматривать отдельные кабельные линии. Допускается объединение в одном кабеле вспомогательных цепей, относящихся к разным путям.
В кабельной линии необходимо предусматривать одну свободную кабельную пару с выходом на каждую сигнальную точку для проведения регулировочных работ и использования, при необходимости, в качестве резерва.
5.12.36 В сигнально-блокировочных кабелях следует предусматривать резервные жилы - не менее 10% общего числа, но не менее двух жил.
5.12.37 У каждой сигнальной точки, стрелочного привода и курбельного аппарата следует предусматривать розетки для подключения аппаратов связи АТДП.
5.12.38 Заземление металлических конструкций и корпусов оборудования, за исключением корпусов ДТ и стрелочных приводов, необходимо предусматривать на единую систему защитного заземления электроустановок линии.
5.13.1 На линии следует предусматривать линейные и станционные оперативно-технологические связи (ОТС) и административно-хозяйственную связь (АХС) и переговорные устройства "Кассир-Пассажир" с системой регистрации переговоров.
5.13.2 В состав линейных ОТС должны входить диспетчерские и междиспетчерские связи, поездная радиосвязь, связи охраны порядка, пожарной безопасности и служебные связи, видеонаблюдение, обеспечивающие оперативное руководство и управление работой линии, подразделениями и службами метрополитена.
Все виды диспетчерских связей должны оборудоваться устройствами звуковой записи.
5.13.3 Метрополитен оснащается единой радиоинформационной сетью и колоннами экстренного вызова на станциях.
5.13.4 В состав станционных ОТС должны входить телефонные связи, электрочасы, системы громкоговорящего оповещения и видеонаблюдения с цифровой видеозаписью, обеспечивающие контроль за движением поездов, регулирование пассажирских потоков, управление из ДПС процессом эвакуации людей при пожаре, а также связи диспетчера ДПС и других руководителей с персоналом на станции и прилегающих к ней участков перегонов.
5.13.5 Для организации линейных и станционных ОТС следует предусматривать магистральные, станционные, тоннельные и местные сети связи и передачи информации.
5.13.6 Перечень абонентов, оснащаемых линейными и станционными ОТС, а также городских видов связи представлен в приложении Г.
По заданию допускается дополнительно предусматривать линейные ОТС связи совещаний для аппарата управления метрополитена, служб и дистанций.
Все виды диспетчерских и служебных связей необходимо организовывать по групповому принципу.
5.13.7 Пульты диспетчерских видов связи следует устанавливать у рабочих мест соответствующих диспетчеров, пульты служебной связи - в помещениях аппаратных и релейных, абонентские и оконечные устройства - согласно приложению Г.
5.13.8 В состав линейных и станционных ОТС должны входить виды связей согласно таблице 5.27.
Таблица 5.27
|
Вид ОТС |
Обозначение |
|
1 Линейные
| |
|
1.1 Диспетчерские: | |
|
движения поездов |
СДЦ |
|
электроснабжения |
СДЭ |
|
эскалаторная |
СДЭС |
|
электромеханическая |
СДЭМ |
|
охраны порядка |
СОП |
|
пожарной безопасности |
СПБ |
|
1.2 Поездная радиосвязь |
ПРС |
|
1.3 Тоннельная |
Т |
|
1.4 Оперативная |
О |
|
1.5 Административно-хозяйственная |
АХС |
|
1.6 Звукозапись диспетчерских переговоров |
МЗД |
|
1.7 Междиспетчерская |
СМД |
|
1.8 Междиспетчерская СДЭ с ДПЭ города |
МДЭГ |
|
1.9 Служебные: | |
|
между диспетчерскими и линейными устройствами телеуправления движением поездов |
СТД |
|
то же, электроснабжения |
СТЭ |
|
" эскалаторами |
СТЭС |
|
" электромеханических установок |
СТЭМ |
|
1.10 Видеонаблюдение |
ТН |
|
1.11 Единая радиоинформационная сеть |
ЕРИС-М |
|
1.12 Колонны экстренного вызова |
КЭВ |
|
2 Станционные
| |
|
2.1 Станционная |
С |
|
2.2 Управление движением поездов |
АТДП |
|
2.3 Эскалаторная |
ЭС |
|
2.4 Местная подстанционная |
М |
|
2.5 Громкоговорящее оповещение |
ГГО |
|
2.6 Теленаблюдение с цифровой видеозаписью |
ТНЗц |
|
2.7 Электрочасы |
ЭЧ |
|
2.8 Стрелочная |
CTP |
5.13.9 Радиостанции ПРС следует устанавливать: стационарные - на станции, локомотивные - в кабинах машинистов поездов.
ПРС между пультом поездного диспетчера и стационарными радиостанциями следует организовывать по проводному каналу, между стационарными и локомотивными радиостанциями - по радиоканалу.
В качестве направляющих линий (антенн) для радиоканала применяют излучающие кабели.
В качестве направляющих линий (антенн) для радиоканала диапазона гектометровых волн применяют направляющие линии, выполненные из сталемедной проволоки.
Примечание - Локомотивные радиостанции и их антенны входят в комплект вагонного оборудования и поставляются с подвижным составом.
5.13.10 Аппаратура связи Т должна обеспечивать:
- прием и сигнализацию поступления вызова на пульт ДПД;
- подключение линии тоннельной связи к линии диспетчерской связи.
У телефонных аппаратов в тоннелях предусматривают также телефонные розетки АХС.
5.13.11 Линии СМД должны обеспечивать подключение диспетчером-распорядителем своего канала избирательной связи к каналу другого диспетчера.
5.13.12 Связь О предусматривают при наличии в сети метрополитена не менее трех линий.
5.13.13 Для организации административно-хозяйственной связи предусматривается АТС сети метрополитена. Число, емкость, места расположения и увязка АТС определяются при проектировании.
Расстановку телефонных аппаратов АХС принимают согласно приложению Г и дополнительному перечню заказчика.
5.13.14 Для обеспечения взаимодействия работников метрополитена и сотрудников правоохранительных органов, а также передачи информации о чрезвычайных ситуациях на различных уровнях всех сооружений следует использовать средства мобильной радиосвязи на базе единого радиопространства ЕРиС-М.
Для обеспечения работы штаба пожаротушения на поверхности при ликвидации пожаров в подземных сооружениях, антенны ЕРиС-М следует размещать на уровне входа в подуличные переходы.
5.13.15 Пульты (коммутаторы) связи станционных ОТС размещают на рабочих местах соответствующих руководителей (дежурных) и организовывают между ними соединительные линии связи.
5.13.16 Местную подстанционную связь следует организовывать с использованием жил контрольных кабелей подстанционной автоматики в качестве линий связи.
5.13.17 В сети ПО группы следует организовывать по следующим участкам линии:
а) тоннельные - тоннели и УТВ;
б) платформенные - платформы и средний зал станции:
в) эскалаторные - эскалаторный тоннель и зоны подхода к нему;
г) вестибюльные - кассовый зал и зоны входа и выхода из него в пешеходных переходах;
д) уличные - территория перед входом в вестибюль станции или в подземный переход;
е) служебные - коридоры производственных и бытовых помещений станций на всех уровнях;
ж) зоны лифтовых площадок;
и) зоны кабельных коллекторов.
к) Исключен с 15 апреля 2020 г. - Изменение N 4
л) коридоры ТПП;
м) коридоры ПТО (пункт технического обслуживания);
н) подуличные - территория подуличных переходов;
п) стрелочные - на стрелочных переводах.
Оповещение должно предусматривать:
а) из ДПС и ДСП (смежном с ДПС) - по всем группам;
б) из кабины дежурного контролера - по вестибюльной и уличной группам, а также по группам лифтовых площадок;
в) из кабины оператора у нижних площадок эскалаторов - по эскалаторной группе;
г) из кабины ДСП станций с путевым развитием - по платформенной группе;
д) из кабины полиции - по всем группам;
е) из помещения штаба - по всем группам.".
Устройства громкоговорящего оповещения должны быть оборудованы автоинформаторами (микрофонами-информаторами), должны иметь возможность приема управляющих сигналов от системы пожарной сигнализации, а также приема и усиления речевой информации с мобильных терминалов связи системы ЕРИС-М.
При расстановке громкоговорителей на станциях следует учитывать, что оповещение должно быть слышно в разных частях станции, с учетом движения поездов.
5.13.18 Видеонаблюдение из ДПС должно охватывать следующие зоны станции:
- входы на станцию (навстречу потоку пассажиров);
- кассовый зал вестибюля, кабину дежурного контролера (навстречу потоку пассажиров), лестничные марши;
- верхнюю и нижнюю площадки эскалаторов;
- средний зал, лестничные марши переходов;
- пассажирские платформы 1-го и 2-го путей по всей длине, номера маршрутов поездов;
- балконы, галереи на всем протяжении;
- торцевые двери платформ со стороны тоннеля с охватом служебного мостика;
- коридоры пересадочного сооружения (навстречу потоку пассажиров);
- участок примыкания коридора пересадочного сооружения к среднему залу станции, если эта зона не контролируется другими телекамерами;
- подуличные переходы в зоне контроля метрополитена;
- рампы и порталы тоннелей на открытых участках линии;
- стрелочный перевод;
- транспортная зона двухпутного тоннеля метрополитена;
- зоны лифтовых площадок с улицы и внутри станции;
- средний зал, лестничные марши переходов.
5.13.19 Устройство видеонаблюдения на других объектах метрополитена, включая подвижной состав, а также необходимость передачи видеоизображения отдельных зон наблюдения в ДПЛ (в ситуационный центр) необходимо отражать в задании на проектирование.
5.13.20 На кассовых окнах следует предусматривать переговорное устройство (мембрану) "пассажир-кассир".
На станциях глубокого заложения предусматривают линию с разъемами для подключения переговорных устройств пожарных подразделений согласно 5.16.7.
5.13.21 На метрополитене следует предусматривать единую систему точного времени.
В качестве первичных часов - центральная электрочасовая станция (ЦЭЧС) с коррекцией хода по сигналам точного времени.
Управление сетью вторичных электрочасов и контроль их хода предусматривают от ЦЭЧС.
5.13.22 Оповестительную сигнализацию следует предусматривать из ДПС - в кассы и кабины дежурного контролера.
Сигнализацию вызова по любому виду связи следует предусматривать:
а) из помещения поста полиции - в кассовый зал;
б) из помещения машиниста эскалаторов - в машинное помещение и натяжную;
в) из ДПС - в платформенные залы;
г) от стола дежурного подстанции - в помещения подстанции.
На телефонных аппаратах наружной установки следует предусматривать повторители громкого вызова во всех видах связи, кроме связи Т.
5.13.23 По заданию заказчика для телефонов-автоматов на станцию надлежит предусматривать ввод городской телефонной сети.
5.13.24 Магистральные сети следует предусматривать в линейных ОТС на участке от ДПЛ до станций и между станциями.
Мощность магистральных сетей определяют с учетом обеспечения всех видов линейных ОТС, резервных каналов, запасных жил и перспективы развития линии, а также с учетом каналов ТМ и передачи данных.
5.13.25 Способ организации магистральных сетей (первичные, вторичные или смешанные) следует определять с учетом:
- протяженности и перспективы развития линии (или ее участка);
- удаленности линии от ДПЛ;
- числа станций на линии;
- возможности совмещения в одной сети различных цепей связи и других цепей передачи информации.
5.13.26 Первичную магистральную сеть следует организовывать с использованием аппаратуры цифровых систем передачи информации и обеспечивать образование групповых трактов и каналов тональной частоты для цепей связи.
В качестве линий связи следует использовать волоконно-оптические кабели. Линии связи нужно резервировать путем применения параллельных кабелей и блоков аппаратуры ЦСП, обеспечивающих переключение линий связи на резервный тракт.
5.13.27 Вторичную магистральную сеть следует организовывать по физическим кабельным цепям. Резервируемые цепи предусматривают в разных кабелях.
5.13.28 Станционные и тоннельные сети предусматривают по физическим кабельным цепям. Границами тоннельных сетей принимают путевые затворы или, при их отсутствии, токоразделы сетей освещения.
5.13.29 Электропитание средств связи, АСОП и мобильной радиосвязи следует осуществлять в соответствии с разделом 5.10.
5.13.30 Для размещения аппаратуры связи предусматривают следующие основные помещения:
а) в здании ДПЛ - линейно-аппаратный цех для аппаратуры ЦСП и линейно-аппаратный зал для распорядительной и управляющей аппаратуры ОТС. Допускается предусматривать объединенную аппаратную связи;
б) на станции - ЛАЦ, кроссовую, радиоузел и аппаратную видеонаблюдения.
5.13.31 В линиях связи следует применять кабели, не распространяющие горение, не содержащие галогены, с пониженным дымо- и газовыделением.
5.14.1 Персонал эксплуатационных подразделений, непосредственно осуществляющий обслуживание пассажиров на станциях, организацию движения поездов на линии, текущее обслуживание оборудования и содержание сооружений, должен размещаться на станциях.
Вспомогательные помещения (кладовые, инвентарные, мастерские и т.д.), в которых время нахождения персонала не превышает 2 ч, допускается размещать вне подземной части станции.
Состав, численность и нормативы образования эксплуатационных подразделений, группы производственных процессов, площадь и расположение административных, производственных и бытовых помещений, размещаемых на станционных комплексах, определяются заказчиком конкретно для каждого города, где проектируется метрополитен, исходя из длины линий, пассажиропотоков и номенклатуры помещений в приложении Н.
Размещение административно-управленческого аппарата служб и управления метрополитена, а также персонала линий, непосредственно не связанного с работами на станциях и в тоннелях, следует предусматривать согласно 5.23.
5.14.2 Состав и численность эксплуатационных подразделений для участков продления действующих линий надлежит определять с учетом существующих на линии подразделений.
5.14.3 Распределение персонала подразделений предусматривают в пределах участков обслуживания и, по возможности, равномерно по станциям линии.
5.15.1.1 Электродепо должно быть предусмотрено для отстоя, технического обслуживания, непланового ремонта, а при наличии ремонтной базы - текущего, периодического, подъемочного, среднего и капитального ремонтов электроподвижного состава и моторно-рельсового транспорта.
5.15.1.2 На территории электродепо следует размещать административные и производственные здания и сооружения, внутриплощадочные инженерные сети, парковые пути, пожарные проезды и дороги с усовершенствованным типом покрытия, соединенные с городскими проездами, с учетом перспективы развития линии и электродепо.
Территория должна быть благоустроена, иметь освещение и сплошное ограждение высотой не менее 2,5 м, оборудованное охранным освещением, охранной сигнализацией и видеонаблюдением. Вдоль ограждения с наружной стороны необходимо предусматривать санитарно-защитную зону.
Ширину санитарно-защитной зоны от крайних парковых путей до жилых зданий следует принимать по СанПиН 2.2.1/2.1.1.1200.
5.15.1.3 Производственные здания должны отвечать требованиям СП 44.13330, СП 56.13330 с учетом требований 5.16.
Здания должны быть радиофицированы, телефонизированы, оборудованы электрочасами, системами пожарной безопасности и охранной сигнализации.
5.15.1.4 На территории электродепо надлежит размещать следующие здания и сооружения:
1) административно-бытовой корпус;
2) отстойно-ремонтный корпус. При необходимости следует выделять площади для производственных мастерских и цехов ТР-3, СР, КР и восстановительной окраски и сушки вагонов;
3) камеру мойки подвижного состава (допускается размещение камеры в ОРК);
4) подстанции ТПП и ТППд (тягово-понизительных подстанций электродепо);
5) компрессорную станцию;
6) пост ЭЦ с аппаратной АТДП;
7) очистные сооружения;
8) мотодепо с производственными цехами для обслуживания и ремонта моторно-рельсового транспорта;
9) топливно-заправочный пункт мотовозов и автомобилей;
10) склады: материальный, запасных агрегатов, узлов и деталей, горюче-смазочных материалов, лакокрасочных материалов (допускается размещение в ОРК);
11) парковый околоток и стрелочный пост;
12) не менее двух проходных с автоматизированными устройствами контроля входа и выхода;
13) пост охраны портала тоннеля при его наличии на территории электродепо;
14) базу аварийно-восстановительного формирования (при необходимости)
15) площадки для верхнего строения пути, щебня и песка, мусора и металлолома, хранения оборудования (спортивных мероприятий - по возможности);
16) снеготаялку или снегоотвал;
17) здание эксплуатационных служб метрополитена с мастерскими (при необходимости);
18) ЦТП или котельную;
19) пандус для погрузки автомобильного транспорта на платформу;
20) грузовую эстакаду (в электродепо, имеющих соединительную ветку с железной дорогой);
21) отстойник для слива пульпы, емкости для слива по видам отработанных нефтепродуктов;
22) рельсосварочную станцию (в электродепо, имеющем соединительную ветку с железной дорогой);
23) стоянку служебного транспорта не менее чем на 10 автомобилей;
24) отстойно-ремонтный корпус. При необходимости следует выделять площади для производственных мастерских и цехов ТР-3, СР, КР, ПР-1, ПР-2, ПДР-1, ПДР-2, ЗР и восстановительной окраски и сушки вагонов, камеру мойки. Следует предусмотреть трехуровневую систему пневмоочистки для крышевого оборудования, оборудования салона и подвагонного оборудования;
25) тягово-понизительную подстанцию депо (ТППд), понизительную подстанцию депо (ППд) и бетонную комплектно-трансформаторную подстанцию (БКТП);
26) снегоплавильную установку и площадки для временного складирования снега;
27) при необходимости рельсосварочную станцию (в электродепо, имеющем соединительную ветку с железной дорогой);
28) помещения для отстоя и обслуживания внутридеповского автотранспорта;
29) камеру санитарной обработки состава [если она не входит в состав камеры мойки по перечислению 3)], камеру мойки подвижного состава (допускается размещение камеры в ОРК);
30) размещение автопроездов в междупутьях (при необходимости);
31) установку козловых крановых кранов (при необходимости);
32) размещение пожарного поезда и пути под него (при необходимости).
Сооружения по перечислению 16) следует предусматривать в районах со средней высотой снежного покрова за зиму более 20 см; по перечислению 18) - при отсутствии городской тепловой сети.
Состав и требования к зданиям и сооружениям следует отражать в задании на проектирование электродепо.
При проектировании зданий и сооружений необходимо максимально использовать типовые или повторно применяемые проекты.
5.15.1.5 Техническое оснащение производственных зданий и сооружений должно соответствовать технологическим процессам обслуживания и ремонта подвижного состава с применением прогрессивных технологий и оборудования.
Архитектурно-строительные решения по зданиям и сооружениям должны гармонировать с природным ландшафтом и городской застройкой.
5.15.1.6 Отопление и вентиляцию зданий следует предусматривать по СП 60.13330, теплоснабжение от городских сетей - по СП 124.13330 или, при отсутствии городских сетей, - от самостоятельной котельной, водоснабжение - от городских сетей, внутренний водопровод и канализацию - по СП 30.13330, СП 31.13330, СП 32.13330.
5.15.1.7 Парковые пути необходимо располагать с одной/двух сторон отстойно-ремонтного корпуса (ОРК).
Число путей в ОРК следует определять из условия размещения на них эксплуатационного парка вагонов, резервных вагонов в количестве 10% эксплуатационного парка и специальных вагонов (грузового, путеизмерителя, лаборатории), за исключением вагонов, размещаемых на линии.
При инвентарном парке до 25 составов число деповских путей надлежит увеличивать на один путь для маневровых передвижений, при парке более 25 составов - на два пути. По требованию метрополитена следует предусматривать один путь для очистки и мойки подвагонного оборудования.
Длину смотровой канавы определяют исходя из длины расцепленного состава, эксплуатируемого на данной линии, с расстоянием между автосцепками вагонов не менее 1 м и не менее 1,5 м от верхней ступени схода в смотровую канаву до оси сцепки.
В первый период эксплуатации линии, при меньшем числе вагонов в поезде, на каждом пути допускается установка двух расцепленных составов с расстоянием между составами не менее 3 м.
5.15.1.8 Размеры в пролетах ОРК принимают согласно таблице 5.28.
Таблица 5.28
|
Параметры ОРК |
Размер в пролетах, м, не менее, для типов | ||
|
ТО-1, ТО-2, ТО-4 |
ТО-3, ТР-1, ТР-2 |
ТР-3, СР, КР | |
|
Высота от головок рельсов до низа несущих конструкций |
4,8 |
6,0 |
9,6 |
|
Ширина прохода: | |||
|
между кузовами вагонов (при отсутствии колонн в междупутье) |
1,6 |
2,0 |
3,1 |
|
между колоннами и кузовом вагона |
1,35 |
1,5 |
- |
|
между стенами пролета и кузовом вагона |
1,15 (1,1) |
- |
- |
|
между стеной мастерских и кузовом вагона |
- |
2.6 |
2,8 |
|
между стеной, противоположной стене мастерских, и кузовом вагона |
- |
1,7 (1,1) |
3,8 (2,4) |
|
от передней торцевой стены до верхней ступени схода в смотровую канаву |
2,3 | ||
|
то же, от задней торцевой стены |
3,0 |
4,5 | |
|
Глубина смотровой канавы от головок рельсов |
1,5 | ||
|
Ширина смотровой канавы |
1,3 | ||
|
Ворота: высота от головок рельсов и ширина |
3,9x3,8 | ||
|
Примечание - В скобках указано допустимое сужение прохода на длине не более 6 м. | |||
5.15.1.9 Все пути ОРК и цеха ТР-3 должны иметь смотровые канавы. В случае отсутствия планирования мойки подвагонного оборудования подвижного состава, на путях моечного пути смотровую канаву не проектируют. В канавах предусматривают ниши через каждые 20 м для установки электрооборудования. Все канавы должны быть оборудованы трубопроводами сжатого воздуха с воздухозаборными кранами в начале и в конце каждой смотровой канавы. Перед первым воздухозаборным краном переднего веера электродепо и первым воздухозаборным краном заднего веера устанавливается влагомаслосборник. На путях, определенных как пути для производства маневровой работы и отстоя резервных вагонов, трубопроводы сжатого воздуха прокладываются вдоль всей канавы с воздухозаборными кранами через каждые 20 м.
На всех межканавных платформах ОРК должно быть нанесено лакокрасочное покрытие:
- красный цвет - зона повышенной опасности, расположена на межканавной платформе от внешней грани ходового рельса до габаритной линии (ширина зоны 800 мм);
- желтый цвет - габаритная линия, расположена на межканавных платформах, отделяет зону повышенной опасности от зоны безопасного прохода (ширина линии 150 мм);
- зеленый цвет - зона безопасного прохода, расположена по центру межканавных платформ, а также на проходах поперек деповских путей (перед головным и хвостовым вагонами составов).
5.15.1.10 В цех ТР-3 (СР) следует предусматривать отдельный въезд для автотранспорта, оборудованный воздушно-тепловой завесой. В цехе ТР-3 (СР, КР) устанавливают не менее двух мостовых кранов грузоподъемностью по 16/3,2 т.
5.15.1.11 Уровень пола в пролетах ОРК, кроме пролета ТР-3 (СР), принимают ниже уровня головок рельсов на 0,5 м. В пролете ТР-3 (СР) уровень пола принимают в уровне головок рельсов.
В пролете ОРК, где предусматриваются платформы в уровне пола вагона для безопасного прохода персонала под ним, допускается занижение межпутных платформ на 0,95 м.
5.15.1.12 Полотна ворот ОРК должны быть оборудованы электроприводами, иметь уплотнение в закрытом положении, запорные устройства для открытого и закрытого положений и смотровые окна на уровне 1,4 м от уровня головок рельсов. В одном из полотен ворот каждого пролета должна быть дверь размером 0,8x1,8 м.
5.15.1.13 Вдоль передней стены ОРК предусматривают три подземных смежных коридора: первый - для подачи воздуха к ВТЗ ворот, второй и третий - для кабельных и тепловых сетей. В первом коридоре допускается прокладка сетей отопления и горячего водоснабжения.
Кабельный коридор (канал) следует оснащать автоматической пожарной сигнализацией и, при необходимости, автоматической установкой пожаротушения.
5.15.1.14 В АБК следует предусматривать блок помещений для ночного отдыха локомотивных бригад с комфортными санитарно-гигиеническими условиями, вентиляцию и, при необходимости, кондиционирование по 5.8.2, помещения для административно-управленческого персонала, производственного персонала цеха эксплуатации и цеха ремонта подвижного состава, здравпункт, столовую и санитарно-бытовые помещения, комнату психологической разгрузки, комнату релаксации, класс для технического обучения локомотивных бригад и ремонтного персонала селекторную студию (совещательная комната) с установкой телевизора и оборудованием для проведения видеоконференций, помещения для архива.
Состав и площади помещений здравпункта электродепо определяются в соответствии с техническими условиями медицинской службы на размещение и оборудование здравпунктов в строящихся электродепо.
Состав и площади помещений определяют расчетом согласно штатному расписанию электродепо.
5.15.1.15 Камеру мойки подвижного состава следует располагать в составе первой очереди строительства электродепо.
Камеру мойки подвижного состава располагают на парковых путях так, чтобы обеспечивать заход состава со стороны главных путей и со стороны электродепо, а также заход состава после камеры мойки на любой путь отстойно-ремонтного корпуса. Допускается размещение камеры мойки на одной из канав электродепо.
5.15.1.16 Мотодепо размещают в отдельном здании. Допускается его сблокировать с другими производственными зданиями.
В мотодепо следует предусматривать блок санитарно-бытовых и производственных помещений, в состав которых должны входить помещения для зарядки, технического обслуживания и хранения аккумуляторов, мастерская по ремонту топливной аппаратуры (бензиновых и дизельных двигателей).
Длину цехов рассчитывают исходя из числа тяговых и прицепных единиц, но не менее 36 м, высоту - 6,2 м до низа фермы.
Число путей в каждом цехе определяют расчетом, но принимают не менее четырех.
На каждом пути следует предусматривать смотровую канаву с размерами по таблице 5.28. На одной из смотровых канав следует предусмотреть четыре стационарных или подкатных домкрата грузоподъемностью не менее 10 т каждый.
В цехах должны быть кран-балки грузоподъемностью 3,2 т.
При эксплуатации в электродепо электровозов, электровозный цех предусматривается отдельным зданием с блоком санитарно-бытовых и производственных помещений или в составе мотодепо. В электровозном цехе должно быть предусмотрено помещение для хранения и обслуживания аккумуляторов и зарядное РУ 825 В.
В цехах следует предусматривать блок санитарно-бытовых и производственных помещений, в состав которых для электровозного цеха должны входить помещения для хранения и обслуживания аккумуляторов и зарядное РУ 825 В.
Вывод электровозов из цеха предусматривают на аккумуляторной тяге.
5.15.1.17 Компрессорную станцию размещают в отдельном здании. Число компрессоров и производительность станции определяют расчетом с учетом одной резервной машины.
На станции предусматривают меры по снижению уровней шума и вибрации до значений согласно 5.17.
Допускается блокирование с другими производственными зданиями при условии обеспечения нормируемых уровней шума и вибраций согласно 5.17.
5.15.1.18 Производственные мастерские следует размещать в ОРК. Назначение и площади помещений следует определять согласно утвержденным повторно принимаемым решениям.
В мастерских следует предусматривать участок для очистки и промывки противопылевых фильтров систем местной вентиляции линии и электродепо.
5.15.1.19 Цех восстановительной окраски и сушки вагонов надлежит размещать в отдельном здании. Допускается его блокирование со зданием другого назначения при соблюдении противопожарных требований.
Площадь здания определяют исходя из размещения двух вагономест, производственных помещений (вентиляционных, электрощитовых, установок пожаротушения и др.), кладовых, помещений для персонала и санитарно-бытовых.
5.15.1.20 ТПП следует размещать в отдельном здании. Допускается блокировать с мотовозным цехом или зданием другого назначения. ПП размещают в блоке производственных мастерских и в других производственных зданиях исходя из их потребности в электроэнергии.
Необходимо предусмотреть применение следующих энергосберегающих устройств, обеспечивающих в рамках единого устройства снижение потребления электроэнергии за счет повышения ее качества:
а) улучшение симметрирования токов нагрузки по фазам, компенсация фазового дисбаланса;
б) компенсация реактивной мощности и снижение токов нагрузки;
в) снижение уровня высокочастотных искажений;
г) компенсация пусковых токов (бросков токов) и кратковременных падений напряжения;
д) защита от молнии и бросков напряжения.
Подключение устройств должно проводиться по низкой стороне (0,4 кВ) параллельно нагрузке. Разрыв токовых цепей не допускается.
При изменении параметров энергопотребления должна обеспечиваться возможность параллельного включения нескольких блоков.
Для повышения надежности функционирования устройств рекомендуется использовать решения, не содержащие контроллеров, процессоров и аналогичных элементов.
5.15.1.21 В электродепо предусматривают централизованные сети горячего водоснабжения. В АБК и производственных зданиях на период отключения системы теплоснабжения устанавливают электроводонагреватели для подачи горячей воды:
- в АБК горячую воду от электронагревателей подводят к столовой и двум душевым секциям;
- в ОРК - к раковинам;
- в цехе ТР-3 (СР) - к одной раковине;
- в мотодепо - к двум душевым секциям и к раковинам в зоне отстоя и ремонта моторно-рельсового транспорта.
5.15.1.22 У передней и задней стен ОРК по осям смежных пролетов предусматривают раковины с подводкой холодной и горячей воды и присоединением их к сети бытовой канализации.
5.15.1.23 Отопление смотровых канав и ВТЗ проемов ворот ОРК предусматривают согласно СП 60.13330.
5.15.2.1 Отстойно-ремонтный корпус и парковые пути следует предусматривать на первый период эксплуатации линии.
В составе парковых путей должны быть предусмотрены два вытяжных пути, используемые как маневровые и предохранительные, и обкаточный путь.
Полезная длина каждого вытяжного пути должна быть не менее максимальной расчетной длины поезда в периодах эксплуатации по 4.19, обкаточного пути - от 600 до 800 м. Один из вытяжных путей может использоваться в качестве части обкаточного пути.
5.15.2.2 Электрифицированные и неэлектрифицированные рельсовые пути необходимо предусматривать под расчетные нагрузки и скорости движения поездов согласно таблице 5.29.
Таблица 5.29
|
Пути |
Статическая нагрузка от оси пассажирского вагона на рельсы, кН (тс) |
Скорость движения поездов, км/ч, не более |
|
Парковые |
78 (8) |
15 |
|
Деповские |
78 (8) |
10 |
5.15.2.3 Рельсы электрифицированных путей следует использовать также в качестве электрических проводников в сети электроснабжения подвижного состава, в установках управления движением поездов и контроля целостности рельсовых нитей.
5.15.2.4 Габариты приближения строений и расстояния между осями смежных путей следует принимать по ГОСТ 23961.
5.15.2.5 Ширина колеи пути между внутренними гранями головок рельсов должна составлять:
а) на прямых и кривых участках радиусом 100 м и более - согласно 5.7.1.8;
б) на кривых участках радиусом от 60 до 100 м - 1544 мм.
Отклонения от нормы ширины колеи на прямых и кривых участках не должны превышать 2 мм.
5.15.2.6 Для соединения парковых путей следует применять стрелочные переводы типов Р50, Р65 с крестовинами марки 1:5.
5.15.2.7 Электрифицированные парковые пути должны быть оборудованы контактным рельсом с нижним токосъемом.
Контактный рельс следует закрывать электроизоляционным защитным коробом.
5.15.2.8 Расстояние от ближайшего паркового пути следует принимать, м:
- до ограды - 2,5;
- до стен зданий - 3;
- в случае отсутствия в стене дверей допускается принимать - 2,5.
5.15.2.9 План и продольный профиль путей должны соответствовать таблице 5.30.
Таблица 5.30
|
Параметр |
Норма | |
|
основная |
в трудных условиях | |
|
Радиус кривой в плане на парковых путях, м, не менее |
75 |
60 |
|
Марка крестовин стрелочных переводов на путях для обращения подвижного состава: | ||
|
метрополитена |
1:5 |
- |
|
железных дорог колеи 1520 мм |
1:9 |
- |
|
Длина прямого участка электрифицированного паркового пути, м, не менее, расположенного между двумя кривыми в плане, направленными: | ||
|
в одну сторону |
3 |
- |
|
в разные стороны |
15 |
- |
|
Длина прямого участка неэлектрифицированного паркового пути, м, не менее, расположенного между двумя кривыми в плане |
3 |
- |
|
Расстояние от начальных точек кривых в плане и вертикальных кривых в профиле, м, не менее: | ||
|
до передней стены отстойно-ремонтного корпуса |
20 |
8 |
|
до центра стрелочного перевода марки 1:5 со стороны рамных рельсов |
10 |
8 |
|
Продольный уклон парковых путей, ‰, не более: | ||
|
в местах укладки стрелочных переводов |
5 |
10 |
|
в местах возможной остановки поезда (вытяжные пути, перед ОРК) |
1,5 |
- |
|
Продольный уклон деповских путей, ‰ |
0 |
- |
|
Радиус вертикальной кривой при алгебраической разности значений уклонов 2‰ и более, м, не менее |
1500 |
- |
|
Длина элемента продольного профиля парковых путей: | ||
|
электрифицированных |
Примечание 2 |
- |
|
неэлектрифицированных, м, не менее |
50 |
40 |
|
Примечания 1 Трудные условия - это условия, связанные с ограниченными размерами территории электродепо. 2 Длину элемента следует принимать не менее длины поезда в перспективе. | ||
5.15.2.10 Кривые участки парковых путей следует устраивать без возвышения наружного рельса над внутренним и сопрягать с прямыми участками без переходных кривых.
5.15.2.11 Парковые пути в местах укладки стрелочных переводов и деповские пути необходимо размещать на прямых участках в плане и профиле.
5.15.2.12 В качестве нижнего строения пути следует предусматривать:
а) на парковых путях - земляное полотно по СП 119.13330 для железных дорог II категории или плоское основание из железобетона по 5.6;
б) на деповских путях - железобетонные конструкции канав или плоское основание из железобетона.
В качестве верхнего строения пути следует предусматривать рельсы, рельсовые скрепления, стрелочные переводы, подрельсовое основание, балластный слой.
5.15.2.13 Для земляного полотна парковых путей необходимо предусматривать:
- уплотнение грунтов в насыпях;
- защитный слой из песков (за исключением мелких и пылеватых) под балластной призмой;
- отвод поверхностных и грунтовых вод от земляного полотна;
- укрепление откосов земляного полотна;
- укладка геотекстиля;
- установка водоотводных лотков (типы и глубина).
Толщину защитного слоя (песчаной подушки) при дренирующих грунтах следует принимать не менее 0,2 м, при недренирующих грунтах - 0,8 м. Широкие междупутья должны быть засыпаны в уровне верха шпал песком 30 см и щебнем 10 см.
Крутизна откосов защитного слоя должна быть 1:2.
5.15.2.14 Верхнее строение пути должно соответствовать таблице 5.31.
Таблица 5.31
|
Показатель |
Пути | |
|
парковые |
деповские | |
|
Тип рельсов |
Старогодные Р50 или Р65 | |
|
Шпалы |
Железобетонные (с возможностью крепления кронштейнов контактного рельса) или деревянные | |
|
Число шпал на 1 км пути, шт.: | ||
|
- на прямых и кривых участках радиусом 1200 м и более |
1600 |
2х1200 |
|
- на кривых участках радиусом менее 1200 м |
1760 |
- |
|
Примечание - На деповских путях шпалы располагаются вдоль пути. По согласованию с заказчиком на деповских путях допускается применение конструкций пути с использованием железобетонных опор, эластичных подливочных растворов, железнодорожных анкеров, прирельсовых профилей, крепление рельсовых подкладок к путевому бетону с обеспечением электроизоляции пути. | ||
5.15.2.15 Ширину колеи на кривых участках парковых путей устанавливают по каждому пути в отдельности, в зависимости от радиуса кривой по оси пути. Уширение колеи устраивается при переходе с прямого на кривой участок пути на прямой (в трудных условиях - на прямом участке и на круговой кривой) с отводом не более 2 мм/м.
5.15.2.16 Промежуточные рельсовые скрепления следует предусматривать нераздельного типа с рельсовыми подкладками и путевыми шурупами для шпал из композитных материалов и раздельного типа для железобетонных шпал.
На электрифицированных путях скрепления должны обеспечивать электрическую изоляцию рельсов от нижнего строения пути.
5.15.2.17 Для обеспечения электропроводимости болтовых рельсовых стыков на стрелочных переводах, включаемых в электрическую централизацию, следует применять электросоединители, на других участках электрифицированных путей - тарельчатые пружины. В исключительных случаях вместо тарельчатых пружин допускается применение электросоединителей.
Электрическое сопротивление болтового рельсового стыка должно быть не более сопротивления целого участка рельса длиной 1 м.
Величина зазоров в электропроводящих болтовых рельсовых стыках должна соответствовать таблице 5.17.
Изолирующие болтовые рельсовые стыки следует предусматривать с полимерными накладками или клееболтового типа.
5.15.2.18 Рельсы электрифицированных деповских путей необходимо отделять от рельсов электрифицированных парковых путей двумя парами изолирующих стыков, располагаемых по обе стороны от стены здания, с расстоянием между ними 12,5 м.
5.15.2.19 На стрелочных переводах парковых путей, включаемых в электрическую централизацию, следует предусматривать устройства автопневмообдува и/или, по требованию заказчика, устройства электрообогрева.
У всех стрелочных переводов следует предусматривать предельные столбики.
5.15.2.20 В качестве подрельсового основания следует предусматривать шпалы и брусья из композитных материалов, железобетонные шпалы и брусья для метрополитена, предусматривающие установку контактного рельса.
Деревянное подрельсовое основание на электрифицированных путях должно быть пропитано антисептиками, не проводящими электрический ток.
Укладку деревянного подрельсового основания на парковых путях следует предусматривать верхней пластью вверх, на деповских путях - верхней пластью вниз.
Шурупные отверстия, просверленные в деревянном подрельсовом основании при укладке пути, должны быть три раза промазаны антисептиками, не проводящими электрический ток.
5.15.2.21 Для балластного слоя парковых путей необходимо предусматривать щебень категории II по ГОСТ 7392 из плотных горных пород для балластного слоя железнодорожного пути.
Ширину балластной призмы поверху на однопутных участках парковых путей принимают не менее 3,2 м.
Поверхность балластной призмы должна быть на 3 см ниже верхней пласти деревянного подрельсового основания, крутизна откосов балластной призмы - 1:1,5.
Толщина балластного слоя под деревянным подрельсовым основанием в местах расположения рельсов должна быть не менее 25 см. Толщину балластного слоя под железобетонными шпалами и брусьями необходимо принимать на 5 см больше, чем под деревянным подрельсовым основанием.
5.15.2.22 Внешние железнодорожные подъездные пути, соединяющие пути электродепо с путями общей сети железных дорог, и внутренние железнодорожные пути, расположенные на территории электродепо и предназначенные для обращения подвижного состава железных дорог колеи 1520 мм предусматривают по СП 37.13330 и СТН Ц-01 [21].
5.15.2.23 Расчеты верхнего строения пути выполняют с учетом интервалов колебания температуры рельсов по 5.7.1.
5.15.2.24 Расстояние между кронштейнами для крепления контактного рельса следует принимать на парковых путях от 4,5 до 5,4 м, на деповском пути в камере обдува состава - не более 6 м. На кривых участках парковых путей радиусом 400 м и менее расстояние между кронштейнами следует уменьшать до 2,5 м.
5.15.2.25 Сварку контактного рельса в плети предусматривают электроконтактным способом. Длину плетей на парковых путях принимают не более 37,5 м, на деповском пути в камере обдува составов - 100 м.
В местах соединений сварных плетей контактного рельса предусматривают температурные стыки.
Электрическое сопротивление и величина зазоров в температурных стыках должны соответствовать 5.7.2.
Расстояние между кронштейнами, смежными с температурным стыком, принимают не более 2,5 м. Расстояние от оси кронштейна контактного рельса до оси температурного стыка контактного рельса выдерживают в пределах от 750 до 1250 мм, расстояние от оси кронштейна контактного рельса до оси нормального стыка контактного рельса (только со стороны отвода) выдерживают в пределах от 400 до 1250 мм.
5.15.2.26 Контактный рельс необходимо закреплять от угона путем установки четырех противоугонов на каждую сварную плеть независимо от ее длины.
5.15.2.27 В местах секционирования контактной сети, расположения стрелочных переводов и оборудования следует предусматривать воздушные промежутки контактного рельса.
На контактном рельсе в местах устройства воздушных промежутков предусматривают концевые отводы с уклоном 1:25.
Расстояние между металлическими концами отводов контактного рельса, перекрываемое токоприемниками одного вагона, должно быть не более 10 м, неперекрываемое - не менее 14 м.
Оборудование, устанавливаемое в пределах воздушного промежутка контактного рельса, располагают на расстоянии не менее 0,8 м от металлического конца отвода.
Расстояние от края автомобильной дороги до металлического конца отвода контактного рельса должно быть не менее 1,5 м. Изолирующий стык на ходовых рельсах следует располагать у края автомобильной дороги, то есть за 1,5 м до конца отвода контактного рельса для исключения попадания положительного потенциала на изолированные ходовые рельсы пожарного проезда при проходе вагона.
На парковых путях воздушные промежутки располагают с учетом обеспечения наиболее удобных проходов к стрелочным постам, кладовым, оборудованию.
5.15.2.28 Длина контактного рельса с концевыми отводами должна быть не менее 18,7 м. В стесненных условиях, при необходимости размещения оборудования в зоне прокладки контактного рельса, допускается предусматривать длину контактного рельса с концевыми отводами не менее 9 м с его закреплением противоугонами на каждом кронштейне.
5.15.2.29 Не разрешается оборудовать контактным рельсом:
- парковые пути цехов различного назначения, а также пути для погрузки и выгрузки грузов и обращения подвижного состава железных дорог колеи 1520 мм;
- деповские пути ОРК, цехов различного назначения и камеры мойки составов.
5.15.2.30 Расчеты контактного рельса выполняют с учетом интервалов колебания температуры рельсов согласно 5.7.1.
5.15.3.1 Электроснабжение зданий, сооружений и сетей следует предусматривать от собственных ТППд, ППд и БКТП.
Электроснабжение ТППд, ППд и БКТП предусматривают аналогично 5.10.2.
5.15.3.2 Питание тяговой сети следует предусматривать постоянным током напряжением 825 В.
Питание силовых и осветительных электроприемников следует предусматривать напряжением 400/230 В переменного тока от общих трансформаторов с глухо заземленной нейтралью по системе TN-C, TN-C-S, установок управления движением поездов - от отдельных трансформаторов аналогично 5.10.5.
Питание коммерческих потребителей предусматривают аналогично 5.10.3.13.
5.15.3.3 Парковые пути следует оборудовать устройствами электрической централизации стрелок, светофорами полуавтоматического действия (с пригласительными сигналами и маршрутными указателями на отдельных светофорах) и однониточными рельсовыми цепями.
5.15.3.4 Электроснабжение ТППд предусматривают аналогично 5.10.1.2 для ТПП и Т линии.
Электроснабжение каждой ППд и БКТП предусматривают по двум вводам от разных секций РУ-10 (20) кВ ТППд.
5.15.3.5 Питание тяговой сети 825 В необходимо предусматривать: основное - от ТПП и Т; резервное - от контактных рельсов соединительных путей ветки в электродепо.
На ТПП следует предусматривать два преобразовательных агрегата (общую шину +825 В не предусматривать), к каждому из которых подключают питающую линию, оборудуемую быстродействующим выключателем и линейным разъединителем с электроприводом.
Одна питающая линия подключается к распределительному пункту РП1 в ОРК, вторая - к РП2 на парковых путях. РП следует оборудовать разъединителями с ручными приводами. Допускаются разъединители вводов и отходящих линий в РП предусматривать с электроприводом.
От РП1 обеспечивается питание контактной сети ОРК и парковых путей, примыкающих к ОРК, от РП2 - питание контактных рельсов парковых путей.
РП1 следует размещать в отдельном помещении.
Соединение РП1 и РП2 между собой необходимо предусматривать через контактные рельсы парковых путей, кабельные перемычки между ними и положительную шину 825 В ОРК.
При наличии электровозного цеха и обкаточного пути на ТПП следует предусматривать РУ 825 В. Питание зарядного РП электровозного цеха и контактного рельса обкаточного пути предусматривают непосредственно от ТПП. Допускается их питание предусматривать от ближайшего контактного рельса.
5.15.3.6 Контактные рельсы парковых путей разделяют на группы по 4-5 путей; питание каждой группы следует обеспечивать непосредственно от РП1 и РП2.
5.15.3.7 На электрифицированных парковых путях в отсасывающей сети используется один ходовой рельс пути со стороны расположения контактного рельса.
Соединение тяговых нитей ходовых рельсов путей между собой следует предусматривать исходя из условия, что каждый участок пути должен иметь не менее двух выходов тягового тока в отсасывающую сеть.
5.15.3.8 Каждая питающая и отсасывающая линия, а также перемычки контактного и ходового рельсов должны состоять не менее чем из двух кабелей или проводов. При кольцевой схеме питания контактного рельса в перемычках может быть один кабель.
5.15.3.9 В ОРК, кроме цеха ТР-3, СР и КР, вдоль каждого пути предусматривают контактный шинопровод 825 В со специальными токосъемными каретками.
Сборные шины 825 В располагают над воротами ОРК на высоте, позволяющей разместить устройства подъемных ворот.
Контактный шинопровод и тяговую нить ходового рельса каждого пути подключают к сборным положительной и отрицательной шинам 825 В разъединителями с общим ручным приводом. Отрицательная шина не менее чем двумя перемычками должна соединяться с ходовыми рельсами парковых путей.
Соединение контактного шинопровода с тяговой нитью ходового рельса при снятии напряжения с данного пути предусматривается с использованием наконечника токосъемной каретки, узел "закорачивания" следует располагать в начале канавы.
Для опережающего соединения ходового рельса с отсасывающей сетью при включении разъединителя на его ноже предусматривают контактные дуги ("рога").
Положительную шину подключают к РП1 (основное питание) и к контактному рельсу последнего паркового пути, ведущего в корпус (резервное питание), разъединителями с ручными приводами.
Сборные шины располагают над воротами.
5.15.3.10 Каждый деповской путь ОРК следует оборудовать звуковой и световой сигнализацией, предупреждающей о подаче напряжения 825 В в контактный шинопровод этого пути. В системе световой сигнализации должны гореть мигающие лампы красного цвета.
Система световой сигнализации, сигнализирующая о наличии напряжения 825 В на верхнем контактном шинопроводе и подвижном составе, должна обеспечивать доступность информации о наличии напряжения 825 В в ОРК электродепо и располагаться в трех уровнях:
- на высоте 0,75 м - светильники с красными лампами располагаются на стенах смотровых канав с шагом 20 м;
- на высоте 0,0 м (при заниженных платформах - 0,5 м) - светодиодная красная световая линия располагается на межканавных платформах в уровне пола с двух сторон от подвижного состава на расстоянии 1550 мм от оси деповского пути (на границе очертания габарита подвижного состава);
- на фермах перекрытий - светильники с красными лампами располагаются на высоте 4,5 м с двух сторон от состава с шагом 4-6 м (в зависимости от расположения ферм перекрытий).
Включение и выключение световой сигнализации по каждому деповскому пути должно проводиться одновременно с переводом приводов разъединителей 825 В в соответствующие положения "Вкл." и "Откл.".
Индикаторы наличия напряжения 825 В должны быть светодиодными, иметь защиту от воздействия внешних факторов (пыли, влаги, температуры и солнечных лучей), быть четко различимыми при установке в любом месте, защищенными от бликов солнечных лучей и дневного света.
Напольные индикаторы должны быть вмонтированы заподлицо с уровнем межканавных платформ. По конструкции напольные индикаторы должны выдерживать нагрузку от внутридеповского транспорта (электрокары, погрузчики и т.д.), а также иметь пылевлагозащищенное исполнение со степенью защиты не менее IР 65.
С внутренней стороны желтой габаритной линии должны быть расположены светодиодные ленты, мигающие красным цветом при включении разъединителей 825 В на канавах ОРК.
Объявления, сделанные по системе громкоговорящего оповещения электродепо лицом, имеющим право подачи напряжения, должны быть хорошо слышны в ОРК и во всех помещениях первого этажа производственных мастерских и административно-бытового корпуса электродепо. Звук тонального зуммера должен быть хорошо слышен непосредственно на деповском пути, на который планируется подать напряжение 825 В.
5.15.3.11 Светильники 230 В должны иметь антивандальное исполнение и степень защиты IP 65. Светильники следует размещать через 5 м по каждой стороне канавы в шахматном порядке или сплошными световыми линиями (энергосберегающие светодиодные светильники).
Для общего искусственного освещения помещений следует применять светильники со светодиодными лампами, если иное не оговаривается отдельными требованиями.
Освещение смотровых канав следует предусматривать общее, стационарными светильниками напряжением 12 В переменного тока. Прокладку сети освещения в канавах предусматривают в трубах. Конструкция светильников 12 В должна исключать возможность доступа к лампе без применения инструмента. Для подключения переносных светильников 12 В предусматривают штепсельные розетки с интервалом 10 м по одной стороне канавы, в канавах путей текущего ремонта - по каждой стороне канавы в шахматном порядке.
В проходах между путями с пониженным полом по внешней боковой поверхности шпалы каждого пути следует предусматривать сеть местного освещения напряжением 12 В со штепсельными розетками через 20 м.
Светильники освещения платформ между канавами необходимо размещать на высоте 3 м. Высота подвески светильников должна совпадать с верхней частью дверных и оконных проемов подвижного состава. Световой поток светильников помимо освещения межканавных платформ должен быть направлен в салоны вагонов, тем самым при отсутствии напряжения на подвижном составе будет обеспечено освещение, необходимое для проведения текущих работ, в том числе по уборке подвижного состава.
В пролетах ОРК на проезде вдоль ворот в местах примыкания к рельсам следует предусматривать резиновые настилы, обеспечивающие низкий износ напольного покрытия от воздействия внутридеповского транспорта (ручных тележек, электрокаров, погрузчиков и т.д.). В местах расположения коллекторов независимо от материала напольного покрытия необходимо предусматривать технологические люки соответствующих размеров и предела огнестойкости.
5.15.3.12 В пролетах текущего ремонта вагонов ОРК вдоль продольных стен и колонн следует предусматривать сети напряжением 400/230 В со штепсельными разъемами через 20 м для присоединения сварочных и регулировочных агрегатов мощностью 20 кВт.
В пролетах ТР-1, ТР-2 и ТР-3 на путях прокатки вагонов в смотровых канавах необходимо предусматривать сеть постоянного тока напряжением 65 В со штепсельными разъемами 160 А через 15 м с питанием от выпрямительных агрегатов мощностью 10 кВт.
5.15.3.13 Вдоль передней стены ОРК предусматривают три подземных смежных коридора: первый - для подачи воздуха к ВТЗ ворот, второй и третий - для кабельных и тепловых сетей. В первом коридоре допускается прокладка сетей отопления и горячего водоснабжения.
Кабельный коридор (канал) следует оснащать автоматической пожарной сигнализацией и, при необходимости, автоматической установкой пожаротушения.
5.15.3.14 На парковых путях необходимо предусматривать трехфазные сети напряжением 400/230 В с путейскими ящиками для подключения агрегатов мощностью до 60 кВт и напряжением 230 В с ящиками для подключения электроинструментов до 10 кВт; ящики располагают: первые - через 100 м, вторые - через 50 м на площади путей.
5.15.3.15 Прокладку кабелей по территории электродепо предусматривают в кабельном тоннеле, открыто по кабельным конструкциям, в отдельных или в общих кабельных лотках с разделением их асбестоцементными (хризотилцементными) перегородками.
Совместная прокладка в лотках силовых кабелей и кабелей систем АТДП не допускается.
Прокладку кабелей под парковыми путями предусматривают в металлических трубах с усиленным защитным покрытием по ГОСТ 9.602 независимо от коррозионной активности грунта. Прокладка кабелей под стрелками и крестовинами стрелочных переводов не допускается.
Способ прокладки выбирают исходя из числа кабелей в потоке, зоны их прокладки и возможности защиты от механических повреждений.
5.15.4.1 Парковые пути следует оборудовать устройствами централизации маршрутов, стрелок, сигналов, светофорами полуавтоматического действия (с пригласительными сигналами и маршрутными указателями) и рельсовыми цепями.
Управление стрелками и светофорами должно осуществляться из поста централизации.
5.15.4.2 Стрелочные переводы на электрифицированных парковых путях следует предусматривать с электроприводами и включать в систему централизации. При задании маршрута движения поезда допускается маршрутное управление стрелками.
Стрелочные переводы на неэлектрифицированных парковых путях необходимо предусматривать с ручными переводными механизмами.
5.15.4.3 Пригласительные сигналы устанавливают на входные и выходные светофоры, групповые выходные светофоры с парковых путей и светофоры предохранительных путей.
5.15.4.4 На парковых путях светофоры предусматривают типа "Метро" или карликового типа, применяемые на российских железных дорогах. Допускается применять типовые железнодорожные светофоры на укороченных мачтах.
Светофоры обозначают буквами алфавита, дополненными порядковым номером светофора или номером пути ОРК.
5.15.4.5 На путевых участках перед выходными светофорами и на обкаточном пути предусматривают устройства АРС.
На деповских путях, за исключением путей ТР и путей мойки и обдува вагонов, устанавливают устройства проверки работоспособности поездной аппаратуры АРС.
5.15.4.6 Заземление металлических конструкций и корпусов оборудования, за исключением корпусов ДТ и стрелочных приводов, предусматривают на единую систему защитного заземления электроустановок электродепо.
5.15.4.7 Прокладку кабелей под парковыми путями предусматривают в асбестоцементных (хризотилцементных) трубах или кабельных желобах. Прокладка кабелей под стрелками и крестовинами стрелочных переводов не допускается.
5.15.4.8 Устройства АТДП должны отвечать требованиям инструкции [4] и правил [5].
5.15.5.1 В электродепо следует предусматривать линейные и деповские оперативно-технологические связи.
В состав линейных ОТС должны входить диспетчерские связи движения поездов и электроснабжения, тоннельная, административно-хозяйственная связь.
В состав деповских ОТС должны входить связи дежурного по электродепо и стрелочная, прямая связь, поездная маневровая и ремонтно-оперативная радиосвязи, громкоговорящее оповещение.
5.15.5.2 Прокладку кабелей следует предусматривать в кабельных сооружениях, а также открыто на отдельно стоящих конструкциях.
5.15.5.3 Абонентские аппараты линейных ОТС предусматривают в следующих помещениях (зонах):
а) связь СДД - в помещениях дежурного по электродепо, ПВС, поста ЭЦ и постов на парковых путях;
б) связь СДЭ - в ТПП и ПП;
- в ТППд, ППд и БКТП;
в) связь Т - у входных и выходных светофоров парковых путей.
Примечание - Обозначения видов связей - по 5.13.
5.15.5.4 Для организации административно-хозяйственной связи следует предусматривать АТС. Перечень абонентов, включаемых в АТС, отражают в задании на проектирование.
5.15.5.5 В состав ОТС депо должны входить виды связей согласно таблице 5.32.
Таблица 5.32
|
ОТС |
Обозначение |
|
Стрелочная |
СТР |
|
Дежурного по электродепо |
Д |
|
Начальника электродепо |
П |
|
Маневровая радио |
МРС |
|
Ремонтно-оперативная радио |
РОРС |
5.15.5.6 Пульты (коммутаторы) деповских ОТС следует размещать у руководителей работ с организацией между ними соединительных линий связи.
Связь СТР необходимо предусматривать между постом ЭЦ и постами на парковых путях и в ОРК, дежурными по электродепо, мотовозным и электровозным цехами.
Телефонные аппараты СТР следует устанавливать:
- вблизи группы стрелочных приводов;
- у одиночных стрелочных приводов;
- в стрелочных постах на парковых путях;
- на передней стене ОРК.
Связь Д следует предусматривать между дежурным по электродепо и постами ОРК, а также с абонентами по списку, предоставляемому заказчиком.
Связь П следует предусматривать между начальником, главным инженером электродепо, дежурным по электродепо и начальниками цехов и отделений.
Связь МРС нужно предусматривать:
- между дежурным поста ЭЦ и машинистами составов, находящихся на парковых путях;
- между работниками КИП и машинистами составов, находящихся в ОРК (при проверке локомотивных радиостанций).
Связь РОРС следует предусматривать между дежурным по электродепо и дежурным поста ЭЦ и персоналом, находящимся на парковых путях и в ОРК.
В состав технических средств радиосвязи должны входить стационарные и переносные радиостанции. В пределах электродепо может организовываться несколько кругов радиосвязи. Все радиостанции одного круга радиосвязи должны работать на одной выделенной рабочей частоте. Разрешение на использование радиостанций и радиочастот выдает заказчик.
5.15.5.7 ГГО следует предусматривать с разделением на следующие группы оповещения:
- пролеты ОРК;
- парковые пути;
- производственные мастерские;
- АБК;
- мотовозный и электровозный цехи.
Кроме того, в эти или дополнительные группы оповещения следует включать громкоговорители в цехе ТР, цехе окраски и сушки вагонов, камерах мойки и обдува вагонов, на подстанциях и в других вспомогательных сооружениях.
Оповещение следует вести:
а) от дежурного по электродепо - по всем группам;
б) с постов на передней стене пролетов ОРК - по группам ОРК;
в) от дежурного поста ЭЦ - по группе парковых путей;
г) от начальника электродепо - по группам производственных мастерских и АБК. Громкоговорители на парковых путях следует размещать с учетом направленного действия звука и снижения уровня шума за пределами электродепо.
5.15.5.8 В АБК предусматривают вводы городской телефонной и радиотрансляционной сетей.
5.15.5.9 Магистральные сети связи (МСС) следует предусматривать для организации связи на участке депо - инженерный корпус, дом связи, ситуационный центр с включением в существующую мультисервисную сеть метрополитена.
5.15.5.10 Пропускную способность МСС определяют с учетом обеспечения всех видов линейных и деповских ОТС, резервных каналов, запаса емкости кабеля, а также с учетом каналов передачи данных.
5.15.5.11 Способ организации МСС (первичные, вторичные) следует определять с учетом:
- удаленности депо от транзитных узлов на линии;
- возможности совмещения в одной сети различных видов связи и передачи данных.
5.15.5.12 Первичную МСС следует организовывать с использованием аппаратуры цифровых систем передачи информации, волоконно-оптических кабелей связи, и обеспечивать образование сетевых трактов и каналов тональной частоты.
Линии связи нужно резервировать путем применения параллельных кабелей и блоков аппаратуры ЦСП, обеспечивающих переключение линий связи на резервный тракт.
5.15.5.13 Вторичную МСС следует организовывать по физическим кабельным цепям и волоконно-оптическому кабелю связи.
5.16.1.1 Строительные конструкции следует проектировать и возводить с учетом их огнестойкости и пожарной опасности в соответствии с требованиями норм по противопожарной безопасности.
Наземные сооружения инфраструктуры метрополитена: ОЗЭП, здания и сооружения электродепо и наземные здания другого назначения следует предусматривать не ниже II степени огнестойкости и иметь класс конструктивной пожарной опасности не ниже С1.
5.16.1.2 Подземные и наземные сооружения метрополитена: станционные комплексы, вестибюли, перегоны, галереи, эстакады, притоннельные сооружения следует предусматривать классы конструктивной пожарной опасности не выше С0. Предел огнестойкости строительных конструкций должен соответствовать указанному в таблице 5.33.
Таблица 5.33
|
Наименование строительной конструкции |
Предел огнестойкости, не менее |
|
Обделки платформенных и среднего залов станций, тоннелей, пристанционных и притоннельных сооружений |
R 90 |
|
Обделки перегонных и тупиковых тоннелей (однопутных и двухпутных), ограждающие конструкции галерей выхода на поверхность |
R 90 |
|
Обделки эскалаторных тоннелей и вентиляционных стволов |
R 60 |
|
Ограждающие и несущие конструкции вестибюлей станций |
R 120 |
|
Ограждающие конструкции шахт лифтов для маломобильных групп населения |
REI 60 |
|
Двери шахт лифтов |
EI 60 |
|
Стены электроподстанций |
R 90/ЕI 60 |
|
Стены, перекрытия кладовых горюче-смазочных и покрасочных материалов |
REI 120 |
|
Стены лестничных клеток |
R 120 |
|
Перегородки между путями в двухпутных тоннелях |
EI 90 |
|
Перегородки соединительных сбоек между тоннелями |
EI 90 |
|
Колонны станций |
R 120 |
|
Косоуры, балки, марши, площадки лестничных клеток |
R 60 |
|
Конструкции внутренних перекрытий станций и вестибюлей: | |
|
плиты |
REI 60 |
|
балки |
R 60 |
|
Перекрытие над машинным залом эскалаторов |
R 60 |
|
Конструкции перекрытия кабельного и вентиляционно-кабельного отсека в эскалаторном тоннеле |
REI 60 |
|
Несущие конструкции переходов над платформой и путями станции |
R 120 |
|
Ограждающие перегородки переходов над платформой и над путями станции |
EI 30 |
5.16.1.3 Помещения разных категорий А, Б, В1, В2, В3 следует отделять одно от другого, а также эти помещения от помещений категорий В4, Г, Д, коридоров и пассажирских зон противопожарными перегородками (стенами) и противопожарными перекрытиями следующих типов:
на станциях - противопожарными перегородками 1-го типа (стенами 2-го типа), противопожарными перекрытиями 2-го типа;
в вестибюлях - противопожарными перегородками 1-го типа (стенами 2-го типа) и противопожарными перекрытиями 2-го типа;
в КСМ - противопожарными перегородками 1-го типа (стенами 2-го типа), противопожарными перекрытиями 2-го типа.
5.16.1.4 Строительные конструкции галерей, переходов, тоннелей между станциями должны иметь пределы огнестойкости, соответствующие основному строению. Пешеходные галереи и тоннели следует проектировать из негорючих материалов (группы НГ). Стены зданий в местах примыкания к ним галерей, переходов и тоннелей должны быть из материалов класса К0 с пределом огнестойкости R 120. Двери, ворота в проемах этих стен, ведущие в переходы и тоннели, должны быть противопожарными 2-го типа.
5.16.1.5 Строительные конструкции кабельных каналов на станциях и электроподстанциях, вентиляционно-кабельных каналов под платформами станций должны иметь предел огнестойкости не менее R 45, люки каналов, выходящие на платформу, - не менее EI 30. В вентиляционно-кабельных каналах допускается иметь открытые проемы для забора (выпуска) воздуха из пассажирских помещений.
Вентиляционные каналы систем приточно-вытяжной противодымной вентиляции, выполненные из железобетона, следует предусматривать герметичными, с гладкой отделкой внутренних поверхностей.
5.16.1.6 Обходные кабельные тоннели на станциях следует разделять на участки длиной не более 150 м противопожарными перегородками 1-го типа, а также отделять противопожарными перегородками 1-го типа в месте их примыкания к станции, перегонным тоннелям и НВУ. Двери в перегородках должны быть противопожарными дымогазонепроницаемыми с пределом огнестойкости не менее EIS 45.
5.16.1.7 Вестибюль станции, встроенный в здание другого назначения или пристроенный к нему, должен быть отделен противопожарными стенами и перекрытиями 1-го типа и иметь собственный выход наружу. В качестве заполнения проема между вестибюлем и зданием другого назначения следует применять противопожарную преграду с пределом огнестойкости EIS 60.
5.16.1.8 Предел огнестойкости заполнения проемов (противопожарные двери, окна, клапаны, люки и ворота) в противопожарных преградах должен соответствовать типу противопожарной преграды.
Все противопожарные двери, устанавливаемые в наземных и подземных сооружениях, должны быть дымогазонепроницаемыми с контуром уплотнения "холодный дым". Все двери должны быть оснащены устройствами самозакрывания. Двери, установленные на путях эвакуации, должны быть оборудованы устройствами экстренного открывания дверей эвакуационных и аварийных выходов.
В закрытом положении двери, устанавливаемые в сбойках и сооружениях примыкающих к тоннелям, должны быть запроектированы с учетом знакопеременных нагрузок, возникающих при движении поездов.
Все двери должны быть оснащены доводчиками.
Противопожарные двери, устанавливаемые в аккумуляторных помещениях, электродепо, мотодепо и тягово-понизительных подстанциях должны быть в искробезопасном исполнении.
5.16.1.9 Двери кладовых КСМ и ПМ должны быть противопожарными дымогазонепроницаемыми с пределом огнестойкости EIS 45 и открываться по направлению выхода из помещения. В проеме строительной конструкции под дверь следует предусматривать порог высотой не менее 0,15 м.
К материалам полотен дверей входов в наземные вестибюли, павильоны над лестничными сходами в подземные переходы, кассовые залы подземных вестибюлей, помещения без постоянных рабочих мест, душевые и другие подобные помещения противопожарные требования не предъявляются и пределы огнестойкости не нормируются. Решетки на окнах вестибюлей, выходящих на улицу, должны быть распашными.
Примечание - При обосновании на станциях, принятых в эксплуатацию до введения в действие настоящего свода правил, допускается не нормировать направление открывания дверей в помещениях кладовых ГСМ с категорией по пожарной опасности не выше В1, если площадь этих помещений не превышает 5 м2.
5.16.1.10 Защитный короб контактного рельса следует предусматривать из материалов с классом пожарной опасности не выше класса КМ1.
Установка стационарных рельсосмазывателей в тоннелях не допускается.
5.16.1.11 Отделка и облицовка стен и потолков на путях эвакуации пассажиров должна быть из материалов классов пожарной опасности КМО (НГ) и КМ1 (Г1, В1, Д2, Т2). Для окраски следует применять негорючие краски. Для окраски следует применять негорючие краски. Для устройства водоотводящих зонтов в пассажирских помещениях станций не допускается применять материалы с более высоким классом пожарной опасности, чем КМ1.
5.16.1.12 В помещениях станций с дежурным персоналом покрытие полов следует предусматривать из материалов класса пожарной опасности не выше КМ1 (B1, Д2, Т2, РП1).
В бытовых, производственных и других помещениях без рабочих мест следует предусматривать покрытие полов из материалов класса пожарной опасности не выше КМ0. Звукопоглощающую отделку помещений следует предусматривать из материалов класса пожарной опасности КМ1. В служебных помещениях для отделки и облицовки не допускается применять материалы с более высоким классом пожарной опасности, чем КМ2. Конструкции подвесных потолков следует предусматривать из негорючих материалов.
В отделочных материалах из бетона и железобетона для предотвращения потери несущей способности (R), вызванной взрывообразным разрушением бетона при пожаре, следует предусматривать:
- бетоны с полипропиленовой микрофиброй;
- противооткольную арматурную сетку;
- огнезащитные плиты или штукатурки, или другие мероприятия.
5.16.1.13 Конструкции скамей на платформах станций следует предусматривать из материалов группы горючести НГ, сиденья - из материалов класса пожарной опасности КМ1.
5.16.1.14 Участки строительства в местах примыкания к действующим линиям метрополитена следует отделять противопожарными перегородками 1-го типа, исключающими проникновение пожара и продуктов горения в действующую часть метрополитена и наоборот.
5.16.1.15 Рекламу на станциях следует предусматривать в виде рекламных щитов.
Рекламные щиты не должны занимать более 5% площади внутренней поверхности сооружения.
Ширина рекламного щита не должна превышать 5 м, высота - 2 м. Расстояние между рекламными щитами должно быть не менее 2 м.
Конструкцию рекламного щита следует предусматривать из негорючего материала, на наружной стороне которого закреплена самоклеящаяся самозатухающая рекламная пленка.
Толщина рекламной пленки должна быть не более 0,4 мм. Наличие воздушных пузырей под рекламной пленкой не допускается.
Применение электрифицированных рекламных щитов не допускается.
5.16.1.16 Вывод вентиляционного канала вытяжной системы противодымной вентиляции сооружений метрополитена на поверхность следует располагать не менее, чем:
в 100 м - от границ топливозаправочных станций;
в 15 м - от наружных стен жилых и общественных зданий; наружных стен с окнами наземных вестибюлей метрополитена, выходов из подземных пешеходных переходов подземных вестибюлей метрополитена; границ лесных насаждений; границ производственных и складских зданий и сооружений категорий В и Д;
в 10 м - от автомобилей на открытых автостоянках.
5.16.1.17 Основные складские помещения, предназначенные для хранения ГСМ, ЛВЖ и ГЖ, баллонов с газом, должны располагаться в отдельных наземных сооружениях в депо. Кладовые для хранения расходных запасов материалов категории по пожарной опасности не выше В3 допускается размещать в блоках служебных и технических помещений в уровне кассового зала наземных и подземных вестибюлей, уровне пешеходных переходов и уровне машинного зала эскалаторов.
В подземных помещениях объектов метрополитена запрещается размещать помещения категорий А и Б по пожарной и взрывопожарной опасности.
5.16.2.1 Производственные и складские помещения наземных и подземных сооружений метрополитена подлежат категорированию по взрывопожарной и пожарной опасности в соответствии с приложением Е. При категорировании наземных сооружений зданий и наружных установок на территории электродепо, следует руководствоваться нормативными требованиями по противопожарной безопасности.
5.16.2.2 Для помещений, не указанных в приложении Е, категории должны определяться расчетным путем в соответствии с требованиями норм по определению категорий помещений, зданий и наружных установок по взрывопожарной и пожарной опасности. Исходные данные для расчетов категорий принимаются в зависимости от технологического процесса и количества находящихся горючих материалов в помещении.
5.16.2.3 При выборе категорий помещений и сооружений, а также их зон необходимо определять максимальную удельную величину пожарной нагрузки для однотипных групп помещений и сооружений, а также их зон с учетом следующего:
- в наклонных эскалаторных тоннелях площадь размещения пожарной нагрузки следует принимать как горизонтальную проекцию наклонного участка;
- расчет удельной пожарной нагрузки, представленной электрическими кабелями в кабельных сооружениях, следует выполнять по формуле
, (5.13)
где g - удельная пожарная нагрузка, МДж·м-2;
0,272 - коэффициент, учитывающий усредненную массовую долю горючих материалов кабелей в кабельном помещении;
- низшая теплота сгорания изоляционных материалов кабелей - 37,6 МДж·кг-1;
mi - масса погонного метра i-го кабеля в поперечном сечении помещения, кг·м-1;
n - число кабелей в наиболее насыщенном ими поперечном сечении помещения;
Нк.с - высота кабельного сооружения, м;
Sп.с - площадь поперечного сечения помещения, м2.
5.16.2.4 Пассажирские зоны станций и вестибюлей, перегонные тоннели, стволы вентиляционных шахт, ходки и непроизводственные помещения, категорированию по взрывопожарной и пожарной опасности не подлежат.
5.16.3.1 Наружное и внутреннее противопожарное водоснабжение отдельно стоящих наземных зданий и сооружений должно выполняться в соответствии с нормативными документами по пожарной безопасности, для подземных сооружений линии метрополитена (станции, вестибюли, галереи и эстакады) - по настоящему своду правил.
5.16.3.2 На сети городского водопровода необходимо предусматривать установку по расчету не менее трех гидрантов с расходом, рассчитываемым по требованиям нормативных документов, как для источников наружного противопожарного водоснабжения, но не менее 100 л/с, на расстоянии не более 100 м от входа на станцию или подземный пешеходный переход.
На территории электродепо в качестве источников наружного противопожарного водоснабжения следует предусматривать пожарные гидранты или резервуары в соответствии с СП 8.13130.
Направление движения к пожарным гидрантам и резервуарам, являющимся источником противопожарного водоснабжения, должно обозначаться указателями с четко нанесенными цифрами расстояния до их месторасположения.
5.16.3.3 Сеть противопожарного водоснабжения подземных сооружений следует предусматривать согласно 5.9.
5.16.3.4 В эскалаторных тоннелях станций глубокого заложения и в перегонных стволах шахт УТВ следует предусматривать прокладку сухотруба условным диаметром 80 мм. Для присоединения рукавов пожарных автомобилей наверху сухотруба должна быть одна соединительная головка, внизу - две соединительные головки Ø80 мм и Ø65 мм. Перед соединительными головками необходимо предусматривать запорную арматуру, а головки снабжать заглушками. Верхнюю соединительную головку сухотруба, прокладываемого по эскалаторному тоннелю, следует располагать в уровне кассового зала подземного вестибюля и в уровне входа в наземный вестибюль.
Размещение соединительных головок в верхнем уровне сухотруба должно обеспечивать возможность соединения с рукавной линией от пожарной техники.
5.16.3.5 Гидравлический напор в системе хозяйственно-противопожарного водопровода на отметке наиболее низко расположенного пожарного крана не должен превышать 60 м вод. ст.
При превышении этой величины и отсутствии редукционных узлов на станции, при напорах у пожарных кранов свыше 40 м при водоразборе между пожарным краном и соединительной головкой надлежит предусматривать установку диафрагм, снижающих избыточный напор.
5.16.3.6 Расход воды на внутреннее пожаротушение определяют исходя из следующих условий:
а) число пожаров на линии - 1;
б) число струй для:
1) платформенной части станции, тупика - 3;
2) кассового зала вестибюля, коридоров служебных и производственных помещений, машинного помещения эскалаторов и эскалаторного тоннеля, тоннелей перегона и соединительной ветки, галерей наземного участка, коридора пересадочного узла - 2;
в) расход воды на одну струю следует принимать, л·с-1, для:
1) платформенной части станции и тупика - 3,3;
2) тоннелей перегона и соединительной ветки, галереи наземного участка, кассового зала вестибюля, коридоров служебных, производственных и прочих помещений и сооружений - 2,5;
г) длину компактной части струи принимают, м, не менее, для:
1) платформенной части станции, тоннелей тупика и соединительной ветки, галереи наземного участка - 10;
2) перегонного тоннеля, кассового зала вестибюля, коридоров служебных, производственных и прочих помещений и сооружений - 6.
В случае применения автоматических установок пожаротушения тонкораспыленной водой высокого давления (ТРВ ВД) следует предусматривать помещение для пожарной насосной станции площадью не менее 15 м2.
В помещении пожарной насосной станции ТРВ ВД допускается размещение насосов - повысителей низкого давления.
5.16.3.7 Пожарные краны следует размещать в количестве:
а) с одним пожарным рукавом 20 м и стволом:
1) в кассовом зале вестибюля - 2. При размещении кассового зала в зоне уличного пешеходного перехода пожарные краны устанавливаются в коридорах служебных помещений, примыкающих к переходу. На дверях со стороны пешеходного перехода следует размещать пиктограмму пожарного крана согласно 5.16.3.8;
2) в начале и конце пересадочного коридора, у входов в помещения, примыкающие к пересадочному коридору, - 1;
3) в предэскалаторной зоне, машинном помещении и натяжной эскалаторов - 1;
4) в ПТО подвижного состава - 1 на этаж;
5) в коридорах служебных и производственных помещений - 1 через 20 м. Для расположенных в пересадочном коридоре помещений с размерами, превышающими зону применения пожарного крана (26 м), следует предусматривать установку кранов и внутри помещений;
6) в натяжной камере эскалаторов;
б) с двумя пожарными рукавами по 20 м и стволом:
1) в обоих концах платформы станции каждого пути - 1;
2) в начале, середине и конце тоннеля однопутного тупика - по одной стороне, двухпутного тупика - по каждой стороне - 1;
в) без рукава и ствола с расстоянием между ними, м:
1) в эскалаторном тоннеле, в каждом проходе под балюстрадой эскалатора - 30;
2) в однопутном перегонном тоннеле - по одной стороне, в двухпутном перегонном тоннеле и галерее наземного участка по каждой стороне в шахматном порядке - 90;
г) в тоннеле однопутного тупика - по одной стороне, двухпутного тупика по каждой стороне - 30.
При длине платформы более 100 м пожарный кран без рукава и ствола следует устанавливать на стене в шкафу в средней части платформы по каждому пути. Размещение пожарных кранов на платформах в люках допускается при невозможности их установки на стене в шкафу.
5.16.3.8 Пожарные краны с рукавами и стволами должны размещаться в шкафах на стенах. Глубину пожарных шкафов выбирают минимальной. Диаметр пожарного крана следует принимать не менее 50 мм, внутренний диаметр пожарного рукава - не менее 51 мм, диаметр спрыска наконечников пожарных стволов в платформенных залах станций, в тупиках и в остальных местах - 16 мм.
Местонахождение пожарных кранов должно быть обозначено. Крышки люков пожарных кранов должны иметь буквенную чеканку (наварку) "ПК".
В пассажирских зонах шкафы пожарных кранов должны быть встроенными.
В перегонных тоннелях, в вентиляционных и кабельных сооружениях, а также наклонных эскалаторных тоннелях, пожарные краны допускается размещать открыто, без шкафа.
Пожарные краны без рукавов следует размещать в люках или на стенах. При размещении пожарного крана в люке должно быть обеспечено удобство его эксплуатации и технического обслуживания. Расстояние от вентиля пожарного крана и соединительной головки до крышки люка должно составлять не более 30 см.
При размещении пожарного крана в шкафу ось соединительной головки пожарного крана должна быть направлена в сторону створа между боковой стенкой шкафа и открываемым торцом дверцы, исключая перелом (перегиб) подсоединяемого пожарного рукава, при этом рукава размещаются в кассетах.
5.16.3.9 На платформе 1-го и 2-го пути станции необходимо предусматривать установку настенных пожарных шкафов с барабаном и шлангом высокого давления длиной до 60 м и пожарным стволом системы тушения ТРВ, а также напольного шкафа для передвижных воздушно-эмульсионных огнетушителей вместимостью не менее 50 л в соответствии с [60, статья 107].
5.16.3.10 Время работы пожарных кранов необходимо принимать не менее 3 ч. При этом следует предусмотреть включение насоса высокого давления от кнопочных постов, установленных в шкафах пожарных кранов высокого давления.
5.16.3.11 На линиях мелкого заложения дистанционное включение насоса противопожарной повысительной установки на вводе водопровода станции и одновременное открытие задвижки на обводной линии предусматривают из ДПС и из шкафов пожарных кранов на всех уровнях станции в тупиках.
На линиях глубокого заложения дистанционное включение насоса предусматривают из ДПС и из шкафов пожарных кранов только в вестибюле, а открытие задвижек на обводной линии - от всех пожарных кранов. При этом включение насоса противопожарной повысительной установки обуславливается недостаточным давлением в водопроводной сети.
5.16.4.1 Наземные и подземные сооружения линий метрополитена необходимо оборудовать автоматическими установками пожаротушения и пожарной сигнализации - по таблице 5.34.
Зоны в тупиках, где предусматривается ночной отстой подвижного состава, следует оборудовать дренчерными или спринклерными установками водяного пожаротушения. Допускается использовать установки пожаротушения тонкораспыленной водой высокого давления (АУЛ ТРВ ВД). Электробезопасность АУП ТРВ ВД при тушении пожара в помещениях (зонах) с неснятым напряжением до 20 кВ должна быть подтверждена документами фирмы-изготовителя.
Включение АУП ТРВ ВД допускается осуществлять дистанционно без снятия напряжения с электроустановок из помещения блокпоста (ДПС) станции или диспетчером электромеханической службы по распоряжению поездного диспетчера.
Таблица 5.34
|
Наименование помещения, сооружения, оборудования |
Автоматические установки | |
|
пожаротушения |
пожарной сигнализации | |
|
Нормативный показатель при пожарной нагрузке | ||
|
Подбалюстрадное пространство эскалаторных тоннелей |
Более 180 МДж/м2 |
180 МДж/м2 и менее |
|
Помещения, в объеме которых предусмотрено расположение кабельной продукции |
Более 180 МДж/м2 |
180 МДж/м2 и менее |
|
Вентиляционно-кабельные каналы |
- |
Независимо от площади |
|
Помещения распределительных устройств 10 кВ; 825 В; 400 В |
- |
Независимо от площади |
|
Электрощитовые (электрические шкафы подземных и наземных объектов) |
* |
В помещении, где установлены шкафы |
|
Кладовые горюче-смазочных материалов и покрасочных материалов |
Независимо от площади |
- |
|
Помещения категории B1 по пожарной опасности |
Независимо от площади | |
|
Помещения категорий B2 и В3 по пожарной опасности |
300 м2 и более |
Менее 300 м2 |
|
Шкафы вводов питания и управления эскалаторами в машинных помещениях |
Внутренний объем шкафа |
Машинный зал |
|
Зоны отстойных и ремонтных пролетов в зданиях электродепо при площади пожарного отсека |
4500 м2 и более |
Менее 4500 м2 |
|
Объекты торговли и сервиса |
Каждая секция** |
Каждая секция |
|
* Автономные системы пожаротушения. ** Автономные системы пожаротушения тонкораспыленной водой. Примечание - В перегонных тоннелях подлежат оснащению автоматической пожарной сигнализацией кладовые службы пути, электрощитовые вентиляционных шахт, если при расчете пожарной нагрузки ее значение превышает нормируемое. | ||
5.16.4.2 Электроснабжение противопожарных устройств следует предусматривать по 1-й категории надежности с учетом положений 5.10.
5.16.4.3 На станциях, в пристанционных сооружениях и перегонных тоннелях следует предусматривать систему оповещения и управления эвакуацией людей в соответствии с СП 3.13130.
5.16.4.4 Проектировать системы УПТ, АУПТ, СОУЭ и АУПС следует с учетом требований действующих нормативных документов по пожарной безопасности для этих систем, а также специфики технологических процессов, реализуемых на станционных комплексах и в перегонных тоннелях.
Центральный прибор, пульт управления, панели индикации и местный АРМ устанавливаются в помещении ДПС (с круглосуточным пребыванием персонала) на станциях или в помещении ДДЭ в электродепо.
Блоки контроля и управления, модули контроля адресных устройств, а также блоки питания и аккумуляторные батареи могут быть установлены в коридорах блоков служебных помещений в шкафах, к которым имеет доступ только персонал, обслуживающий АУП, со степенью защиты от внешних воздействий не ниже IP 44.
Блоки контроля и управления направлением тушения устанавливаются в зонах тушения, снаружи защищаемого помещения в металлических запираемых шкафах со степенью защиты от внешних воздействий не ниже IP 44. Устройства местного пуска должны быть защищены от несанкционированного доступа.
Системы АУПС должны формировать команды на управление технологическим оборудованием и инженерными системами объектов метрополитена:
- отключение систем вентиляции и кондиционирования;
- закрытие огнезадерживающих клапанов вентиляционных систем;
- включение насосов - повысителей системы внутреннего противопожарного водопровода;
- открытие задвижки на обводной линии водомерного узла;
- включение систем дымоудаления;
- включение систем оповещения и управления эвакуацией людей при пожаре;
- для лифтов - лифт должен подняться на поверхность (на подземных сооружениях) или опуститься на первый этаж (для наземных сооружений), открыть двери и заблокировать их в открытом положении;
- разблокирование турникетов с обеспечением свободного движения людей в обоих направлениях;
- разблокирование СКУД;
- отключение питания внутренней сети 825 В в ОРК электродепо.
Общий сигнал о пожаре на объекте метрополитена должен передаваться в ЕДЦ метрополитена с дублированием сигнала в ДПЛ через ДПС, о пожаре в электродепо - непосредственно в ДПЛ.
Из насосных автоматических и с дистанционным пуском установок пожаротушения, расположенных в подземных сооружениях метрополитена, допускается не предусматривать выходы, ведущие непосредственно наружу, и трубопроводы для подключения установок пожаротушения к передвижной пожарной технике.
5.16.4.5 При размещении пожарных кранов на магистральном трубопроводе установок водяного пожаротушения с автоматическим или дистанционным пуском в расчете необходимо учитывать суммарный расход воды при одновременной работе пожарных кранов и установок пожаротушения.
5.16.4.7 Способ оповещения и выбор элементов СОУЭ приведены в таблице 5.35.
Таблица 5.35
|
Элемент СОУЭ |
Зоны размещения элементов СОУЭ | |||||||
|
Перегонный тоннель |
Платформа станции |
Пешеходный переход |
Эскалаторный тоннель |
Кассовый зал |
Служебные помещения, машинное помещение эскалаторов, ТПП |
Улица |
Кабельные коллектора, оборудованные автоматическим пожаротушением | |
|
1 Способ оповещения: | ||||||||
|
1.1 звуковой (звонки, тонированный сигнал) |
- |
- |
- |
- |
- |
+ |
- |
+ |
|
1.2 речевой (запись и передача спецтекстов) |
+ |
+ |
+* |
+ |
+ |
- |
+ |
+ |
|
1.3 световой: | ||||||||
|
1.3.1 светоуказатели "Выход" |
- |
+ |
+ |
- |
+ |
+ |
- |
- |
|
1.3.2 светоуказатели направления движения к выходу |
+ |
+ |
+ |
- |
- |
- |
- |
- |
|
2 Двусторонняя связь с ДПС |
+ |
+ |
- |
+ |
+ |
+** |
- |
- |
|
3 Видеоконтроль |
+ |
+ |
+ |
+ |
+ |
- |
- |
- |
|
4 ФЭС |
- |
- |
- |
+ |
+ |
+ |
- |
- |
|
Примечание - "+" - требуется; "-" - не требуется. * При длине пешеходного перехода свыше 20 м. ** В обоснованных случаях (например, с постом полиции). | ||||||||
5.16.4.7 Ha платформах и в перегонных тоннелях допускается применять фотолюминесцентную эвакуационную систему (ФЭС).
5.16.4.8 СОУЭ должна обеспечивать:
- передачу звуковых и, при необходимости, световых сигналов в помещения и сооружения, в которых находится персонал;
- трансляцию речевых сообщений в случае пожара;
- передачу в отдельные зоны сооружений и помещений сообщений о месте возникновения загорания, путях эвакуации и действиях, обеспечивающих личную безопасность (в соответствии с таблицей 5.35);
- включение эвакуационного освещения;
- двустороннюю связь ДПС со всеми помещениями, в которых находится персонал, ответственный за обеспечение безопасной эвакуации людей;
- включение звуковых и световых указателей рекомендуемого направления эвакуации;
- передачу сигналов оповещения одновременно в несколько зон и, при необходимости, последовательно в отдельные зоны;
- функционирование в течение всего времени эвакуации, включая эвакуацию из перегонных тоннелей.
Число оповещателей звуковых, речевых, их расстановка и мощность должны обеспечивать необходимую слышимость во всех местах пребывания людей. Оповещатели не должны иметь регуляторов громкости и должны подключаться к сети без разъемных устройств.
Приборы управления и аппаратура СОУЭ должны соответствовать требованиям государственных стандартов.
5.16.4.9 СОУЭ должна обеспечивать оперативную корректировку управляющих команд и кроме трансляции фонограммы с магнитофона предусматривать прямую трансляцию речевого оповещения и управляющих команд через микрофоны из ДПС.
5.16.5.1 Система противодымной защиты (СПЗ) метрополитена включает в себя: СПЗ станционных комплексов, СПЗ перегонных двухпутных и/или однопутных тоннелей, СПЗ пассажирских зон и СПЗ блоков служебных и технических помещений.
СПЗ предназначена для защиты людей на путях эвакуации от воздействия опасных факторов пожара в течение времени, необходимого для эвакуации людей наружу или в безопасную зону, а также создания условий для работы пожарно-спасательных подразделений.
Проектные решения по СПЗ должны разрабатываться с учетом требований [60], для подземных сооружений метрополитена - по настоящему своду правил, для наземных сооружений метрополитена - по СП 7.13130.
Системы противодымной защиты СПЗ путей эвакуации на станции и в перегонных тоннелях должны обеспечивать безопасную эвакуацию пассажиров и персонала и незадымление прилегающих к станции тоннелей при пожаре с разработкой на стадии "Проектная документация" алгоритма срабатывания и взаимодействия вентиляционных систем.
При пожаре в вагоне подвижного состава на станции или при пожаре (задымлении) на перегоне для обеспечения противодымной защиты путей эвакуации установки тоннельной вентиляции переключаются в аварийный режим. Режимы работы вентагрегатов в этом случае определяются на основании алгоритма работы тоннельной вентиляции в режиме противодымной защиты. Алгоритмы разрабатываются на стадии "Проектная документация".
5.16.5.2 Для системы противодымной защиты пассажирских зон на станции следует использовать один или несколько элементов СПЗ:
а) систему тоннельной вентиляции;
б) приточно-вытяжные системы противодымной вентиляции;
в) подпорные вентиляционные установки в вестибюлях;
г) противодымные экраны в верхней части платформенного (среднего) зала станции для создания дымовых зон с высотой от поверхности пути эвакуации не более 2,5 м;
д) объемно-планировочные и конструктивные решения, предотвращающие распространение опасных факторов пожара за пределы очага пожара;
е) систему вентиляции с раздельным проветриванием перегонных тоннелей;
ж) удаление дыма из верхней зоны платформенных залов станций;
и) увеличение производительности вентиляционных установок тоннельной вентиляции.
Системы приточно-вытяжной противодымной вентиляции для защиты вестибюлей должны обеспечивать блокирование и/или ограничение распространения продуктов горения в помещения безопасных зон и по путям эвакуации людей, в том числе с целью создания необходимых условий пожарным подразделениям для выполнения работ по спасению людей, обнаружению и локализации очага пожара.
5.16.5.3 СПЗ участков линий с однопутными и двухпутными перегонными тоннелями должна обеспечивать эвакуацию людей из подземных сооружений при пожаре в основном системой тоннельной вентиляции. При невозможности достижения целей противодымной защиты при помощи тоннельной вентиляции необходимо применять специальные системы дымоудаления и/или конструктивные решения по ограничению распространения опасных факторов пожара по длине тоннеля.
На участках линий метрополитена с однопутными тоннелями, а также на участках с двухпутными тоннелями, разделенными глухой вертикальной перегородкой на два транспортных отсека, необходимо предусматривать систему тоннельной вентиляции с раздельной вентиляцией перегонных тоннелей.
На участках линий метрополитена с двухпутными тоннелями без разделения на два транспортных отсека необходимо предусматривать систему тоннельной вентиляции с вентиляционным каналом в верхней части тоннеля с дымоприемными отверстиями с шагом, определяемым расчетом, но не более 100 м.
Для реверсивных вентиляторов станционной УТВ необходимо предусматривать максимальную производительность в режиме вытяжки.
5.16.5.4 СПЗ в однопутных перегонных тоннелях должна обеспечивать направление воздушного потока навстречу эвакуирующимся людям и его устойчивость на участках, склонных к изменению направления воздушного потока (при эвакуации людей в одном направлении от очага пожара) в соответствии с 5.16.5.10.
ПДЗ путей эвакуации в перегонных тоннелях должна обеспечивать направление воздушного потока навстречу эвакуирующимся людям и его устойчивость на участках, склонных к изменению направления воздушного потока (при эвакуации людей в одном направлении от очага пожара).
5.16.5.5 Работу системы тоннельной вентиляции в аварийных режимах следует рассчитывать для следующих случаев:
- для станции - при пожаре вагона в центре поезда только на одном из путей станции;
- для перегона (при невозможности выполнения требований 16.6.4) - при пожаре в головном, хвостовом, среднем вагонах движущегося поезда на 1-м и 2-м путях каждого полуперегона;
- для перегона - при пожаре стационарных объектов, при необходимости.
В расчетную схему вентиляционной сети станции должны входить сооружения и вентиляторы на участке трассы, включая соседние станции; для пересадочной станции - смежная станция и участки до соседних с ней станций.
При расчетах следует учитывать наличие остановленных в тоннелях поездов и открытое положение дверей вестибюля на выходе.
Расчетная схема вентиляционной сети тоннеля должна включать участки трассы с не менее чем двумя УТВ с обеих сторон аварийного участка.
5.16.5.6 Исключен. - Изменение N 2, утвержденное приказом Минстроя России от 16 декабря 2016 г. N 576/пр
5.16.5.7 Защиту людей от дыма в период эвакуации из платформенных залов станции следует осуществлять путем создания под сводом залов "резервуара дыма" необходимого объема или удаления дыма из верхней части сооружения.
5.16.5.8 Для защиты людей от проникновения дыма на пути эвакуации следует предусматривать создание воздушного потока в зоне примыкания эвакуационных путей к платформенным залам станции со скоростью не ниже 1,3 м·с-1.
Если система тоннельной вентиляции не обеспечивает указанные параметры, применяют подпорные вентиляторы в вестибюле с забором воздуха с поверхности для подачи воздуха в эскалаторный тоннель (лестничные сходы). Подпорные вентиляторы должны включаться только при работе станционной (перегонной) УТВ на вытяжку.
Примечание - Если эвакуация людей наружу в соответствии с расчетами завершается до блокирования путей эвакуации опасными факторами пожара в зале станции, то требования к параметрам воздушных потоков не применяются.
5.16.5.9 Незадымление прилегающих к станции тоннелей обеспечивают созданием в них воздушного потока в сторону станции со скоростью не ниже 0,5 м·с-1.
Для незадымления перегонного тоннеля без пожара от перегонного тоннеля, в котором произошел пожар, следует предусматривать технические решения по предотвращению перетекания дыма из одного тоннеля в другой на всем протяжении перегона от станции до станции, включая все съезды.
5.16.5.10 Устойчивость воздушного потока в тоннелях определяют из условия
Vp>Vтр, (5.15)
где Vр - расчетная скорость воздуха в тоннеле при введении аварийного вентиляционного режима, м·с-1;
Vтр - скорость воздуха в тоннеле, требуемая для предотвращения распространения дыма навстречу вентиляционному потоку, м·с-1.
Требуемую скорость воздуха следует принимать по таблице 5.36.
Таблица 5.36
|
Тоннель перегонный |
Требуемая скорость воздуха, м·с-1 | |||||
|
Уклон тоннеля, ‰ | ||||||
|
0 |
10 |
20 |
30 |
40 |
50 | |
|
Кругового очертания внутренним диаметром 5,6 м |
2,17 |
2,23 |
2,30 |
2,38 |
2,43 |
2,50 |
|
То же, 5,1 м |
2,23 |
2,30 |
2,36 |
2,43 |
2,50 |
2,56 |
|
Прямоугольного очертания однопутный |
2,28 |
2,35 |
2,42 |
2,49 |
2,56 |
2,63 |
|
То же, двухпутный |
1,8 |
1,86 |
1,91 |
1,97 |
2,02 |
2,07 |
Следует предусматривать схему работы тоннельной вентиляции в режиме дымоудаления для каждого тоннеля.
Параметры работы СПЗ в аварийном режиме определяются на основании проведения инженерного анализа, включающего анализ динамики развития пожара в соответствии с принятыми сценариями и характеристик воздушных потоков, рассчитанных с использованием действующих методик расчета параметров противодымной вентиляции в соответствии с принятыми сценариями развития аварийных ситуаций согласно пункту 7.18 СП 7.13130.2013 или полученных путем физического моделирования.
5.16.5.11 Необходимость систем ПДЗ должна быть подтверждена расчетом безопасной эвакуации людей при пожаре. Достаточность проектных решений по устройству эвакуационных выходов для обеспечения безопасной эвакуации людей при пожаре должна быть подтверждена расчетом.
Допускается не предусматривать системы вытяжной противодымной вентиляции из коридоров наземных этажей (уровней) при условии обеспечения естественного проветривания.
Допускается не предусматривать системы вытяжной противодымной вентиляции из коридоров (в том числе примыкающих к незадымляемым лестничным клеткам) при выполнении следующих условий:
- служебные помещения отделены от примыкающих коридоров противопожарными перегородками 1-го типа с заполнением проемов противопожарными дверями 2-го типа (кроме помещений: с мокрыми процессами - душевые, санузлы, охлаждаемые камеры, помещения мойки и т.п.; насосных водоснабжения, бойлерных и других помещений для инженерного оборудования здания, в которых отсутствуют горючие материалы; категорий В4 и Д по пожарной опасности);
- установка в воздуховодах общеобменной вентиляции на выходах из служебных помещений (кроме помещений: с мокрыми процессами - душевые, санузлы, охлаждаемые камеры, помещения мойки и т.п.; насосных водоснабжения, бойлерных и других помещений для инженерного оборудования здания, в которых отсутствуют горючие материалы; категорий В4 и Д по пожарной опасности) противопожарных нормально открытых клапанов с пределом огнестойкости не менее EI 45;
- применение негорючих материалов для отделки и облицовки коридоров.
Не предусматривают удаление дыма при пожаре из машинных помещений эскалаторов при выполнении следующих условий:
- пожарная нагрузка в машинном зале составляет менее 180 МДж/м2;
- пожарная нагрузка в машинном зале составляет более 180 МДж/м2 при использовании автоматической системы пожаротушения.
5.16.5.12 В коридорах блоков служебных помещений систему противодымной защиты следует предусматривать согласно требованиям норм противопожарной защиты для систем отопления, вентиляции и кондиционирования. Вентиляционную установку дымоудаления размещают на верхнем уровне.
Допускается не предусматривать дымоудаление из коридоров при условиях:
- отделения служебных помещений от примыкающих коридоров противопожарными перегородками 1-го типа с заполнением проемов противопожарными дверями 2-го типа (кроме помещений с мокрыми процессами - душевые, санузлы, охлаждаемые камеры, помещения мойки и т.п.; насосных водоснабжения, бойлерных и других помещений для инженерного оборудования здания, в которых отсутствуют горючие материалы; категорий В4 и Д по пожарной опасности);
- установки в воздуховодах общеобменной вентиляции на выходах из служебных помещений (кроме помещений с мокрыми процессами - душевые, санузлы, охлаждаемые камеры, помещения мойки и т.п.; насосных водоснабжения, бойлерных и других помещений для инженерного оборудования здания, в которых отсутствуют горючие материалы; категорий В4 и Д по пожарной опасности) противопожарных нормально открытых клапанов с пределом огнестойкости не менее EI 45;
- применения на путях эвакуации в коридорах для отделки и облицовки негорючих материалов.
5.16.5.13 Удаление дыма при пожаре в машинных помещениях эскалаторов должно быть предусмотрено системой вытяжной противодымной вентиляции.
Удаление ОТВ после пожара в машинных помещениях эскалаторов следует предусматривать системами общеобменной вентиляции при использовании автоматической системы пожаротушения.
5.16.5.14 В подземных помещениях (сооружениях) на воздуховодах систем общеобменной вентиляции, воздушного отопления и кондиционирования (далее - системы вентиляции) необходимо предусматривать в целях предотвращения проникания в помещения продуктов горения (дыма) во время пожара противопожарные нормально открытые клапаны - на воздуховодах, обслуживающих помещения категории А, Б, В1, В2 или В3, кладовые горючих материалов, а также на воздуховодах систем местных отсосов взрыво- и пожароопасных смесей в местах пересечения воздуховодами противопожарной преграды обслуживаемого помещения.
В наземных помещениях (сооружениях) пересечение противопожарных преград воздуховодами следует предусматривать по действующим нормативным документам для наземных зданий.
5.16.5.15 В кассовых залах вестибюлей с эскалаторами не предусматривают дымоудаление при обосновании расчетом безопасной эвакуации пассажиров или применении автоматического пожаротушения.
5.16.6.1 Из подземных сооружений должна обеспечиваться безопасная эвакуация людей при пожаре. При возникновении пожара в одном из вагонов движущегося в тоннеле поезда он должен продолжать движение до ближайшей станции для эвакуации людей и тушения пожара. На путях эвакуации следует предусматривать защиту людей от воздействия опасных факторов пожара.
5.16.6.2 Из платформенных залов станции следует предусматривать не менее двух рассредоточенных эвакуационных выходов, обеспечивающих безопасную эвакуацию людей при пожаре. Для эвакуации обслуживающего персонала из блоков технических помещений при наличии в них менее пяти человек без постоянного пребывания и площадью не более 300 м2 допускается предусматривать один эвакуационный выход.
5.16.6.3 К эвакуационным выходам из платформенных залов станции относятся:
а) выходы на эскалаторы;
б) выходы на лестницы 2-го типа (лестничные сходы);
в) выходы в пересадочные сооружения;
г) выходы в незадымляемые лестничные клетки типа H2.
Эвакуационные выходы должны вести на пути эвакуации, ведущие наружу или в безопасную зону. Пути эвакуации пассажиров должны вести наружу и могут включать в любой последовательности: платформы, эскалаторы, лестничные сходы, пассажирские зоны пересадочных сооружений на смежную станцию, кассовые залы, аванзалы, пешеходные переходы (надземные и подземные) и другие объемно-планировочные элементы станционных комплексов, предназначенные для обслуживания пассажиров.
На путях эвакуации пассажиров допускается размещать турникеты, рамки металлодетекторов, ограждения для разделения пассажиропотоков.
При этом конструкция турникетов должна предусматривать возможность автоматической разблокировки и беспрепятственного прохода при пожаре.
5.16.6.4 При оборудовании элементов подвижного состава (подвагонного оборудования, аппаратного отсека, кабины машиниста) автоматической установкой пожаротушения пожаротушение осуществляется во время движения поезда. При этом эвакуация пассажиров проводится после прибытия поезда на станцию.
5.16.6.5 Исключен с 15 апреля 2020 г. - Изменение N 3
5.16.6.6 Расстояние по путям эвакуации от дверей наиболее удаленных помещений БТП (кроме уборных, умывальных, курительных, душевых и других обслуживающих помещений) до выхода должно быть не более 50 м для помещений, расположенных между выходами, и не более 25 м для помещений с выходами в тупиковый коридор.
5.16.6.7 В коридорах на путях эвакуации персонала метрополитена в блоках служебных и технических помещений не допускается размещать оборудование, выступающее из плоскости стен на высоте менее 2 м, газопроводы и трубопроводы с горючими жидкостями, а также встроенные шкафы, кроме шкафов для коммуникаций и пожарных кранов. Допускается установка вертикальных коммуникаций в металлических трубах, кабелей, холодной воды и канализации. Коридоры на путях эвакуации персонала метрополитена и пассажиров длиной более 60 м следует разделять противопожарными перегородками 2-го типа (EI 15) на участки, длина которых не должна превышать 60 м.
Коридоры длиной более 60 м следует разделять противопожарными перегородками 2-го типа на участки, длина которых не должна превышать 60 м. В перегородках (на путях эвакуации со знакопеременным вектором) следует устанавливать дымогазонепроницаемые противопожарные двери с пределом огнестойкости не менее EI 60. Двери должны быть оснащены замками с ручками "Антипаника".
При дверях, открывающихся из помещений в коридоры, за ширину эвакуационного пути по коридору следует принимать ширину коридора, уменьшенную:
- на половину ширины дверного полотна - при одностороннем расположении дверей;
- на ширину дверного полотна - при двустороннем расположении дверей.
Высота горизонтальных участков путей эвакуации в свету должна быть не менее 2 м.
Ширина горизонтальных участков путей эвакуации и пандусов должна быть не менее:
0,7 м - для проходов к одиночным рабочим местам;
1,0 м - во всех остальных случаях. При круглом сечении тоннеля указанная ширина - на высоте 1,5 м от пола, при этом ширину прохода на уровне пола допускается уменьшать на 0,3 м.
Эвакуационные пути должны быть такой ширины, чтобы с учетом их геометрии по ним можно было беспрепятственно пронести носилки с лежащим на них человеком.
В полу на путях эвакуации не допускаются перепады высот менее 45 см и выступы, за исключением порогов в дверных проемах. В местах перепада высот следует предусматривать лестницы с числом ступеней не менее трех или пандусы с уклоном не более 1:6.
При высоте лестниц более 45 см следует предусматривать ограждения высотой 1,2 м с перилами.
На путях эвакуации не допускается устройство винтовых лестниц, лестниц полностью или частично криволинейных в плане, а также забежных и криволинейных ступеней, ступеней с различной шириной проступи и различной высоты в пределах марша лестницы и лестничной клетки.
На путях эвакуации персонала допускается локальное снижение высоты до 1,8 м на длине до 0,6 м.
5.16.6.8 Для эвакуации людей из подземных бытовых и производственных помещений предусматривают следующие пути:
а) из помещений в уровне кассового зала вестибюля - по коридору, через кассовый зал, подуличный переход или коридор до выхода наружу, а также по лестнице 2-го типа и/или эскалаторам - на платформу станции, либо по коридору, через незадымляемые лестничные клетки типа Н2 непосредственно наружу;
б) из машинного помещения эскалаторов - по лестнице 2-го типа в кассовый (промежуточный) зал или через подбалюстрадное пространство и натяжную - в предэскалаторную зону, либо в коридор блока служебных помещений, далее как описано в перечислениях д), е), ж);
в) из подплатформенных помещений - по коридору, лестницам 1-го типа в торцах коридора - на платформу станции или в коридор служебных помещений в уровне платформы и далее - на платформу станции или в машинный зал подстанции.
Примечание - При размещении помещений площадью не более 150 м2 предусматривают устройство одного эвакуационного и одного аварийного выходов;
г) из подплатформенных кабельных коллекторов и вентиляционно-кабельных каналов - через люк размером 0,7x0,9 м в каждом конце канала, по металлической лестнице - на платформу станции либо по лестницам 1-го типа или металлическим лестницам 2-го типа - в коридор служебных помещений в уровне платформы станции.
Примечание - При площади кабельных коллекторов и кабельно-вентиляционных каналов менее 300 м2 допускается устройство одного люка;
д) из помещений в уровне платформы - по коридорам в тоннели 1 -го и/или 2-го пути и по коридорам, служебным мостикам (в тоннелях 1-го и 2-го путей) - на платформу станции либо по коридору через незадымляемые лестничные клетки типа Н2 непосредственно наружу или в уровень кассового зала;
е) из помещений в уровнях между кассовым залом вестибюля и платформой станций мелкого заложения - по коридорам, лестницам 1-го типа, коридорам в кассовый зал или в подуличный переход до выхода наружу, а также по коридорам, лестницам 1-го типа, по служебным мостикам в тоннелях 1-го и 2-го путей - на платформу станции и в тоннели либо по коридору через незадымляемые лестничные клетки типа Н2 непосредственно наружу или в уровень кассового зала;
ж) из помещений в уровне 2-го этажа над платформой станций глубокого заложения - по коридорам, лестницам 1-го типа на платформу станции или в коридор в уровне платформы станции - на платформу.
Примечание - При размещении помещений без постоянных рабочих мест площадью не более 150 м2, а также из помещений гардеробных при количестве одновременно находящихся там людей не более 20 допускается предусматривать устройство одного эвакуационного выхода;
и) из помещений 2-го этажа ПТО подвижного состава в тупике - по металлической лестнице, из помещений 1-го этажа - в тоннель тупика, далее по тоннелям - на платформу станции;
к) из притоннельных сооружений без постоянных рабочих мест - в перегонный тоннель, далее - на платформу станции;
л) из помещения насосной противопожарной повысительной установки - в зависимости от расположения как описано в перечислениях а), в), д), е), ж), либо непосредственно наружу;
м) из помещений кассового блока, через помещение подсчета монет в кассовый зал вестибюля.
В наземных и комбинированных станционных комплексах для эвакуации людей из бытовых и производственных помещений, расположенных в уровне земли и над землей предусматривают пути эвакуации как указано в перечислениях а), б), в), г), д), е), ж), л), либо по действующим нормативам на проектирование наземных зданий. При этом эвакуационные лестницы, ведущие из бытовых и производственных помещений, расположенных в подземной части комплекса, должны отделяться от наземной части здания тамбур-шлюзами.
5.16.6.9 Высота эвакуационных выходов в свету должна быть не менее 1,9 м, ширина - не менее 0,8 м.
Ширина дверей ведущих из лестничных клеток в вестибюль должна быть не менее расчетной или ширины марша лестницы.
Во всех случаях ширина эвакуационного выхода должна быть такой, чтобы с учетом геометрии эвакуационного пути через проем или дверь можно было беспрепятственно пронести носилки с лежащим на них человеком.
Двери эвакуационных выходов должны открываться по направлению эвакуации из сооружений метрополитена. Открывание дверей не нормируется:
- из помещений, не оборудованных рабочими местами;
- из помещений с численностью не более 10 человек;
- в сбойках между тоннелями.
5.16.6.10 Двери, выходящие на лестничную клетку, в открытом положении не должны уменьшать расчетную ширину лестничных площадок и маршей. При размещении на путях эвакуации запираемых по условиям эксплуатации дверей в них должны быть предусмотрены замки и ручки "Антипаника", позволяющие открывать замок запертой двери без ключа с внутренней стороны. Двери в лестничных клетках должны быть противопожарными не ниже 1-го типа в дымогазонепроницаемом исполнении с контуром уплотнения "холодный дым".
5.16.6.10а Проход по мостику в тоннеле из блока производственных помещений на платформу станции надлежит принимать по 5.4.1.
5.16.6.11 Для эвакуации пассажиров из тоннеля, выноса пострадавших и вноса специального оборудования в тоннель пожарно-спасательными подразделениями МЧС в торцах платформы станции следует устанавливать сходные устройства, а между ходовыми рельсами - средства подмащивания длиной не менее 3 м.
5.16.6.12 Выход из натяжной камеры эскалаторов в нижнюю предэскалаторную зону предусматривают по вертикальной металлической лестнице через люк в перекрытии размером 0,7x0,9 м.
Допускается установка наклонных лестниц с углом наклона к горизонту более 75°.
5.16.6.13 В случае проектирования по условиям строительства участка трассы метрополитена со станцией на проход поездов на случай пожара на этой станции необходимо предусматривать следующие мероприятия:
а) центральный зал станции следует отделить от боковых платформенных залов станции 1-го и 2-го путей противопожарной перегородкой 1-го типа с заполнением проемов противопожарными дверями 2-го типа шириной не менее 1,2 м и обеспечением прохода пассажиров между платформами 1-го и 2-го путей не меньше чем через три эвакуационных прохода шириной не менее 1,8 м;
б) на платформах 1-го и 2-го путей станции и в эвакуационных проходах между платформами следует предусмотреть постоянно включенное аварийное освещение с уровнем освещенности не менее 2,5 лк;
в) у входов в эвакуационные проходы следует предусмотреть размещение указателей "Выход", при входе в тоннели - указателей со стрелками направления движения и указанием расстояний до соседних станций с подключением к аварийному освещению;
г) платформы 1-го и 2-го путей станции следует оборудовать оповещением при пожаре с возможностью передачи речевых сообщений из помещения ДПС;
д) в каждом торце станции по 1-му и 2-му путям, на платформе станции - через каждые 30 м следует устанавливать пожарные краны. Каждый пожарный кран, размещаемый в торце станции, должен быть оснащен двумя пожарными рукавами по 20 м каждый и пожарным стволом;
е) тоннельная вентиляция указанного участка трассы должна обеспечивать защиту путей эвакуации по параллельному неаварийному тоннелю в стороны действующих станций.
5.16.6.14 Опасные участки (места установки оборудования, разрывы пешеходных дорожек и др.), примыкающие к путям эвакуации, выделяют сплошной полосой белого цвета шириной 100 мм.
5.16.6.15 Торговые зоны, павильоны, киоски и другие аналогичные объекты попутного обслуживания пассажиров следует разделять на группы, составляющие не более пяти объектов. Длина одной группы в плане не должна превышать 15 м. Между группами предусматривают противопожарные преграды с пределом огнестойкости не менее EI 45.
5.16.6.16 При невозможности обеспечения безопасной эвакуации МГН на путях эвакуации следует предусматривать пожаробезопасную зону, из которой они будут эвакуироваться более продолжительное время или находиться в ней до прибытия спасательных подразделений. Предельно допустимое расстояние от наиболее удаленной точки помещения с пребыванием МГН до двери в пожаробезопасную зону должно быть в пределах досягаемости за необходимое время эвакуации. Площадь пожаробезопасной зоны должна быть рассчитана на всех инвалидов исходя из удельной площади, приходящейся на одного спасаемого, при условии возможности его маневрирования. Численность МГН принимается из расчета не более 0,1% от всех эвакуируемых из горящего прибывающего состава.
Пожаробезопасная зона должна быть выделена противопожарными преградами, имеющими пределы огнестойкости: перегородка - EI 60, перекрытия - REI 60, двери и окна - 1-го типа. Конструкции противопожарных зон должны быть класса К0 (непожароопасные). Двери в пожаробезопасную зону должны быть противопожарными дымогазонепроницаемыми, маятниковыми. Пожаробезопасная зона подлежит защите системами противодымной вентиляции в соответствии с требованиями нормативных документов по пожарной безопасности. При пожаре в ней должно создаваться избыточное давление 20 Па.
Помещения безопасности для МГН, в которых они могут находиться до прибытия пожарно-спасательных подразделений, следует предусматривать на каждой станции:
- в противоположных торцах платформенного зала на станции (не менее двух помещений безопасности для МГН на платформу станции);
- на уровне подземного пешеходного перехода или кассового зала вестибюля (не менее одного помещения безопасности для МГН на один вестибюль, предназначенный для доступа МГН).
Площадь каждого помещения безопасности для МГН должна быть рассчитана не менее чем на двух инвалидов-колясочников с сопровождающими, при этом удельную площадь, приходящуюся на одного спасаемого, при условии возможности его маневрирования следует принимать не менее 2,65 м2/чел. Ширина дверей в помещениях безопасности и санитарных узлах для МГН на станциях должна быть не менее 0,9 м, высота дверей - не менее 1,9 м. Двери в помещения безопасности для МГН должны быть противопожарными не ниже 1-го типа в дымогазонепроницаемом исполнении с контуром уплотнения "холодный дым" (маятниковыми).
Помещение безопасности для МГН должно быть незадымляемым. При пожаре в помещении должно создаваться избыточное давление в диапазоне от 20 до 150 Па при закрытых дверях. Скорость истечения воздуха через открытую дверь должна быть не менее 1,5 м/с. Для помещений безопасности для МГН, расположенных на уровне платформы, допускается предусматривать воздухозабор из объема незадымляемых тоннелей (въездного или выездного) в пределах станционной обделки с размещением точки воздухозабора в зоне ниже отметки уровня чистого пола станционной платформы. Включение приточной противодымной вентиляции для забора воздуха из объема тоннеля должно предусматриваться от командного сигнала, формируемого автоматической установкой пожарной сигнализации (от датчиков линейных извещателей в путевых тоннелях). При срабатывании пожарных извещателей над платформой 1-го пути подача воздуха в помещения безопасности для МГН должна осуществляться из тоннеля 2-го пути и наоборот.
Допускается не предусматривать системы приточной противодымной вентиляции в шахты лифтов, сообщающих уровень подуличного перехода и уровень земли и не предназначенных для использования пожарными подразделениями.
5.16.6.17 Достаточность проектных решений для обеспечения безопасной эвакуации людей на станции необходимо оценивать расчетом. Из подземных сооружений должна обеспечиваться эвакуация людей при пожаре до защищенных путей эвакуации до наступления критических значений опасных факторов пожара на высоте 1,7 м от поверхности эвакуационного пути. При расчете времени эвакуации учитывают все защищенные эвакуационные пути. Расчет числа людей (с учетом МГН), находящихся в сооружениях станции, необходимо определять исходя из максимальных перспективных пассажиропотоков проектируемой станции и условия, что по неаварийному пути поезда следуют без остановки на станции с пожаром (на проход).
Суммарный пассажиропоток в часы пик П, тыс. чел.-ч-1, следует определять по формуле (5.15) за интервал движения между поездами в часы "пик":
П=Ппут+Пвх+Пп, (5.16)
где Ппут - пассажиропотоки соответственно для 1-го или 2-го пути (принимается максимальный);
Пвх - суммарный пассажиропоток входа с поверхности;
Пп - пассажиропоток со смежной линии (для пересадочной станции).
Интервал движения между поездами в часы "пик" следует принимать по пропускной способности линии, но не более 40 пар поездов в час.
5.16.6.18 Для обеспечения безопасной эвакуации людей при пожаре, при срабатывании системы пожарной сигнализации следует предусматривать разблокировку турникетов с обеспечением свободного движения людей в обоих направлениях.
Следует предусматривать фиксацию дверей в открытом положении в кассовых залах вестибюлей станций. Во входных павильонах над лестничными сходами следует предусматривать открытые проемы, с жалюзийными решетками, над дверями типа "метро".
5.16.6.19 Ширина марша лестницы, предназначенной для эвакуации персонала, в том числе расположенной в лестничной клетке, должна быть не менее расчетной или не менее ширины любого эвакуационного выхода (двери) на нее, но не менее:
1,2 м - для этажей (уровней) с числом людей, находящихся на любом этаже (уровне), более 200 чел.;
0,7 м - для лестниц, ведущих к одиночным рабочим местам;
0,9 м - для всех остальных случаев.
Ширина лестничных площадок должна быть не менее ширины марша, а перед входами в лифты с распашными дверями - не менее суммы ширины марша и половины ширины двери лифта, но не менее 1,6 м.
Промежуточные площадки в прямом марше лестницы должны иметь длину не менее 1 м.
Двери, выходящие на лестничную клетку, в открытом положении не должны уменьшать расчетную ширину лестничных площадок и маршей.
5.16.7.1 В сетях напряжением 6, 10 и 20 кВ на соединительных муфтах кабелей предусматривают специальные защитные металлические противопожарные кожухи.
5.16.7.2 В кабельных этажах подстанций, в вентиляционно-кабельных каналах или кабельных коллекторах под платформой станций, в иных протяженных кабельных сооружениях установка муфт на кабелях напряжением 6 кВ, 10 кВ и 20 кВ не допускается. Допускается установка муфты при длине кабельного сооружения более строительной длины.
5.16.7.3 В каждом конце платформы станции по обоим путям следует предусматривать штепсельные разъемы, присоединенные к сети аварийного освещения, для подключения приборов освещения и инструментов пожарных подразделений общей мощностью до 3 кВт.
На станциях глубокого заложения предусматривают линию с разъемами у входа в вестибюль и нижнего пульта управления эскалаторами и в местах входа с платформы в перегонные тоннели для подключения переговорных устройств пожарных подразделений. Типы разъемов принимают по согласованию с противопожарной службой города.
5.16.7.4 Исключен с 17 июня 2017 г. - Изменение N 2, утвержденное приказом Минстроя России от 16 декабря 2016 г. N 576/пр
5.16.7.5 На станциях и вестибюлях световые указатели СОУЭ следует подключать к сети аварийного освещения.
5.16.7.6 Электрооборудование должно соответствовать классам пожароопасных зон.
5.16.7.7 Кабельные линии противопожарной защиты должны сохранять работоспособность в условиях пожара в течение времени, необходимого для полной эвакуации людей в безопасную зону.
5.16.7а.1 В каждом станционном комплексе следует предусмотреть в уровне кассового зала помещение опорного пункта пожарных подразделений площадью не менее 10 м2 для хранения в состоянии технической готовности пожарного инструмента.
5.16.7а.2 В каждом станционном комплексе следует предусмотреть нишу на платформе для хранения спасательной тележки.
5.16.7а.3 Оснащение помещений станционных комплексов первичными средствами пожаротушения следует выполнять в соответствии с требованиями [81] и нормами пожаротушения.
5.17.1.1 В сооружениях метрополитена должны соблюдаться санитарные и гигиенические требования, обеспечивающие благоприятные и безопасные условия перевозки пассажиров и работы персонала метрополитена и строительных организаций, а также мероприятия по защите сооружений и помещений от грызунов и насекомых.
5.17.1.2 Материалы, используемые в конструкциях и при отделке интерьеров, должны иметь санитарно-эпидемиологическое заключение и не должны выделять в воздух, почву и грунтовые воды вредные химические вещества в концентрациях, превышающих действующие ПДК для населенных мест. Элементы интерьеров и отделочные материалы для ограждающих поверхностей помещений должны быть пригодны для обработки моющими средствами, дезинфекции, быть эстетически выразительными и не должны обладать специфическими запахами.
5.17.1.3 Объемно-планировочные решения зданий, сооружений и помещений должны соответствовать СП 44.13330 с учетом санитарных характеристик и групп производственных процессов.
Планировка помещений и элементы интерьеров не должны нарушать работу систем вентиляции и кондиционирования воздуха, создавать застойные зоны воздуха, затруднять проходы, быть травмоопасными, снижать освещенность поверхностей, а также не должны быть накопителями пыли и микроорганизмов.
5.17.1.4 Помещения с постоянным пребыванием людей, технические устройства и оборудование, находящееся на одном рабочем месте (в одном помещении или сооружении), должны соответствовать требованиям технической эстетики.
5.17.1.5 Технологическое оборудование и устройства должны быть травмобезопасными, иметь системы звуковой, световой и иных сигнализаций об опасности. При этом следует предусматривать мероприятия по снижению вредного воздействия на работающих и пассажиров техногенных факторов физической, химической и биологической природы до предельно допустимых уровней и концентраций в соответствии с гигиеническими нормативами.
5.17.1.6 Мероприятия по защите сооружений и помещений от грызунов и насекомых следует предусматривать согласно СанПиН 3.5.3.3223.
5.17.2.1 В пассажирских помещениях должны быть обеспечены следующие параметры микроклимата:
а) в теплый период года (среднесуточная температура наружного воздуха выше 10°С) - температура воздуха от 18°С до 28°С, средняя скорость движения воздуха от 0,5 до 2,0 м/с;
б) в холодный период года (среднесуточная температура наружного воздуха равна или ниже 10°С) - температура воздуха от 5°С до 16°С, средняя скорость движения воздуха от 0,5 до 2 м/с.
Превышение средней скорости движения воздуха на платформах станций при подходе и отходе поездов допускается не более чем в два раза.
5.17.2.2 В производственных помещениях с постоянным пребыванием персонала и в помещениях здравоохранения должны быть обеспечены оптимальные условия микроклимата, в остальных бытовых и производственных помещениях с временным пребыванием персонала - соответствовать допустимым величинам в соответствии с СанПиН 2.2.4.548.
5.17.2.3 В воздухе тоннелей и пассажирских помещений содержание загрязняющих веществ не должно превышать максимальных разовых ПДК и ОБУВ для атмосферного воздуха населенных мест в соответствии с ГН 2.1.6.1338 и ГН 2.1.6.2309.
5.17.2.4 В воздухе производственных помещений содержание вредных веществ должно соответствовать ГН 2.2.5.1313 и ГН 2.2.5.2308.
5.17.2.5 Содержание двуокиси углерода в воздухе пассажирских помещений не должно превышать в теплый период года 0,1%, в холодный период - 0,12% объема, при кратковременном пребывании пассажиров - не более 0,2% объема.
5.17.2.6 Удаление воздуха из сооружений и помещений с потенциальной возможностью наличия вредных веществ следует предусматривать только наружу. Воздуховыпускные киоски следует располагать согласно 5.8.1.
5.17.2.7 Вентиляционные киоски, вертикальные стволы, машинные помещения, воздуховоды систем вентиляции, в которых может скапливаться пыль, необходимо оборудовать приспособлениями для сбора пыли или ее смыва.
Воздушные тракты должны иметь дверцы, съемные люки и пр., позволяющие проводить очистку воздуховодов. Для быстро загрязняющихся элементов воздушного тракта следует предусматривать их кассетную замену.
5.17.2.8 Системы общеобменной вентиляции и кондиционирования воздуха не должны совмещаться с местной вытяжной и технологической вентиляцией, а также с локальными воздухоотсосами. Рециркуляция воздуха и воды в системах общеобменной вентиляции не допускается.
Все участки воздушного и водного контуров систем вентиляции и кондиционирования воздуха должны иметь технические возможности (люки, дверцы и пр.) для периодической чистки и дезинфекции их внутренних поверхностей.
5.17.2.9 В системах кондиционирования с применением увлажнения воздуха и его охлаждения контактным ("мокрым") способом может использоваться только водопроводная вода, отвечающая требованиям СанПиН 2.1.4.1074.
В помещениях с постоянным пребыванием персонала рециркуляция воздуха не допускается.
5.17.2.10 Состав и расположение датчиков системы автоматического контроля качества воздуха должны обеспечивать получение информации о состоянии воздушной среды в пассажирских помещениях (платформы, вестибюли станций, пересадочные коридоры), а также в производственных и бытовых помещениях с постоянным пребыванием персонала.
5.17.2.11 Конструкция систем отопления должна предусматривать решения, предотвращающие накопление пыли и ее термическую возгонку.
5.17.2.12 Расчет водоснабжения на хозяйственно-питьевые нужды выполняется на рабочую смену с наибольшей численностью. При снижении водопотребления предусматриваются мероприятия по предупреждению застойных явлений в водопроводе и снижения качества воды.
5.17.2.13 Уровни звукового давления, уровни звука и эквивалентные уровни звука, а также максимальные уровни звука не должны превышать значений, приведенных в таблице 5.37.
5.17.2.14 Время реверберации в среднечастотном диапазоне (500-2000 Гц) должно быть в интервале 1,2-1,4 с для платформ с двумя путями и 1,4-1,6 с - для платформ с тремя путями.
5.17.2.15 Уровни звукового давления и общий уровень звукового давления инфразвука не должны превышать предельно допустимых и допустимых уровней по таблице СН 2.2.4/2.1.8.583: для пассажирских и бытовых помещений - по графе 3, для производственных помещений - по графе 1.
Для колеблющегося во времени и прерывистого инфразвука уровень звукового давления не должен превышать 120 дБ.
5.17.2.16 Уровни звукового давления воздушного ультразвука на рабочих местах, пиковые значения виброскорости и уровни виброскорости контактного ультразвука для работающих не должны превышать предельно допустимых величин, регламентированных СанПиН 2.2.4/2.1.8.582.
5.17.2.17 Выбор объемно-планировочных решений и архитектурно-художественного оформления интерьеров, подбор звукопоглощающих материалов, акустические расчеты следует выполнять по СП 51.13330.
Таблица 5.37
|
Вид помещения |
Уровни звукового давления, дБ, в октавных полосах со среднегеометрическими частотами, Гц |
Уровни звука и эквивалентные уровни звука, дБа |
Максимальные уровни звука LАмакс, дБа | |||||||||
|
31,5 |
63 |
125 |
250 |
500 |
1000 |
2000 |
4000 |
8000 | ||||
|
1 Производственные помещения и рабочие места персонала в пассажирских помещениях |
Предельно допустимые уровни звукового давления, уровни звука и эквивалентные уровни звука для основных наиболее типичных видов трудовой деятельности и рабочих мест не должны превышать требований СН 2.2 4/2.1.8.562 | |||||||||||
|
2 Пассажирские помещения: | ||||||||||||
|
2.1 на подземных станциях |
- |
- |
- |
- |
- |
- |
- |
- |
- | |||
|
2.1.1 платформенный зал |
- |
- |
- |
- |
- |
- |
- |
- |
- |
80 |
95 | |
|
2.2.2 кассовый зал |
- |
- |
- |
- |
- |
- |
- |
- |
- |
60 |
75 | |
|
2.2.3 пересадочный коридор между станциями |
- |
- |
- |
- |
- |
- |
- |
- |
- |
60 |
75 | |
|
2.2 на открытых наземных станциях |
- |
- |
- |
- |
- |
- |
- |
- |
- |
75 |
90 | |
|
3 Помещения здравоохранения |
76 |
59 |
48 |
40 |
34 |
30 |
27 |
25 |
23 |
35 |
50 | |
|
4 Комнаты отдыха локомотивных бригад |
76 |
59 |
48 |
40 |
34 |
30 |
27 |
25 |
23 |
35 |
50 | |
|
5 Бытовые помещения (кроме пунктов 3 и 4) |
90 |
75 |
66 |
59 |
54 |
50 |
47 |
45 |
44 |
55 |
70 | |
Во избежание повышенных уровней шума в помещениях с постоянным пребыванием персонала не допускается размещение их под машинным помещением эскалаторов, рядом с эскалаторами и установками тоннельной вентиляции.
5.17.2.18 Значения виброускорения и виброскорости общей вибрации не должны превышать предельно допустимых и допустимых величин согласно СН 2.2.4/2.1.8.566:
а) в пассажирских помещениях - по таблице 10 с учетом примечания 1;
б) в производственных помещениях с наличием источников вибраций - по таблице 6, без наличия источников вибраций и в бытовых помещениях (кроме помещений здравоохранения) - по таблице 7;
в) в помещениях здравоохранения - по таблице 9 с учетом примечаний 1 и 2.
5.17.2.19 Значения виброускорения и виброскорости локальных вибраций не должны превышать предельно допустимых величин согласно СН 2.2.4/2.1.8.566.
5.17.2.20 Уровни воздействия ослабленного геомагнитного поля, электростатического поля, постоянного магнитного поля, электромагнитного поля промышленной частоты (50 Гц), электромагнитных полей диапазона радиочастот (10 кГц-300 гГц) для персонала, профессионально связанного с эксплуатацией и обслуживанием источников ЭМП, не должны превышать предельно допустимых уровней согласно СанПиН 2.2.4.1191, для остального персонала и пассажиров - согласно СанПиН 2.1.8/2.4.1383, СанПиН 2.1.8/2.4.1190, ГН 2.1.8/2.2.4.2262 и СанПиН 2.1.2.2645.
5.17.2.21 Уровни ионизирующих излучений для персонала и пассажиров должны соответствовать СанПиН 2.6.1.2523 (НРБ-99).
5.17.2.22 При применении ПЭВМ помещения, рабочие места, микроклимат, аэроионный и химический составы воздушной среды, шум, вибрация, освещение и условия отдыха персонала должны соответствовать СанПиН 2.2.2/2.4.1340.
5.17.2.23 На входах в наземные вестибюли станций следует предусматривать подножные решетки, площадь которых определяют с учетом пассажиропотока, а приямки под ними следует оборудовать устройствами для обогрева, очистки и промывки.
5.17.2.24 На станциях следует предусматривать места и контейнеры для временного хранения отработавших ртутьсодержащих электроламп, для мусора и бытовых отходов с учетом удобства их погрузки и вывоза. Помещения для хранения ртутьсодержащих электроламп должны находиться на станции и в вестибюле. Помещение в вестибюле для хранения ртутьсодержащих электроламп должно иметь два выхода (в вестибюль и на привестибюльную территорию).
5.17.2.25 В пунктах смены машинистов, техосмотра подвижного состава, помещениях тягово-понизительных подстанций, машинных залов эскалаторов, в кассовом блоке следует предусматривать раковины или умывальники, в блоках служебных помещений в одном из вестибюлей рядом с туалетом - отделение для гигиены женщин.
5.17.3.1 В производственных и бытовых помещениях с постоянным пребыванием людей необходимо предусматривать естественное освещение, вентиляцию и кондиционирование. Конструктивные решения окон должны обеспечивать необходимую эффективность естественной вентиляции и освещения при неблагоприятных погодных условиях (снег, листопад и пр.), а также удобство для их очистки и влажной уборки.
5.17.3.2 Технологические процессы и операции, сопровождающиеся вредным воздействием химических, физических и биологических факторов (мотовозный и электровозный цехи, компрессорная станция, цехи мойки, сушки и окраски подвижного состава, пункт сбора и погрузки контейнеров с мусором и отходами и др.), следует предусматривать в отдельно стоящих зданиях или на площадках с выполнением мероприятий по защите окружающей среды и соблюдением санитарно-эпидемиологических норм и правил.
5.17.3.3 Размер санитарно-защитных зон на период строительства и эксплуатации метрополитена следует устанавливать по СанПиН 2.2.1/2.1.1.1200.
5.17.3.4 При наличии вредных выбросов в атмосферу необходимо предусматривать мероприятия по обеспечению безопасности для окружающей среды (повышение уровня выбросов над землей, удаление их от воздухозаборных устройств на необходимое расстояние, установка очистительных устройств, внедрение замкнутых технологических циклов и др.).
5.17.3.5 Технологические процессы очистки и мойки подвижного состава должны быть автоматизированы и изолированы от окружающей среды. Предназначенные для этого камеры должны иметь приспособления для дезинфекции, дегазации и дезактивации вагонов, а также технические системы сбора пыли и других отходов.
5.17.3.6 Производственные сточные воды, содержащие горючие жидкости, взвешенные вещества, жиры, масла, кислоты и другие вещества, нарушающие нормальную работу или вызывающие разрушение сетей, следует очищать до поступления их в наружную сеть канализации на локальных очистных сооружениях.
Перед сбросом в городскую дождевую сеть канализации на территории электродепо необходимо предусматривать очистные сооружения поверхностного (дождевого, талого и поливомоечного) и производственных стоков, близких к ним по загрязненности.
5.17.3.7 Ограждающие поверхности смотровых канав на путях, предназначенных для ремонта подвижного состава, следует облицовывать материалами, очистка которых от масел возможна с помощью специальных растворителей, не адсорбирующих последние.
5.17.3.8 В производственных помещениях и в крытых переходах между зданиями, расположенных в районах с холодным климатом, следует предусматривать дополнительное отопление (воздушное и панельное отопление, воздушно-тепловые завесы на воротах, подогрев пола, местные электрокалориферы и пр.), исключающее резкие перепады температуры воздуха по вертикали и горизонтали и поддерживающее нормативные параметры микроклимата, в том числе в пониженных относительно пола участках зданий (смотровые канавы и пр.).
5.17.3.9 Столовая электродепо должна проектироваться из расчета обслуживания максимального числа работающих в смену.
5.17.3.10 В составе производственных зданий должны быть предусмотрены гардеробы, душевые с ножными ваннами, туалеты, умывальники, сушилки для спецодежды и обуви, помещения для приема пищи, отдыха и психофизиологической разгрузки, оказания медицинской помощи.
5.17.3.11 В административно-производственных зданиях по 5.23 следует предусматривать блок бытовых помещений, включающий:
- столовую или буфет;
- здравпункт и аптечный киоск;
- помещения для отдыха и оптимизации функционального состояния персонала;
- другие бытовые помещения.
Исключен с 15 апреля 2020 г. - Изменение N 3
Мероприятия по охране окружающей среды следует разрабатывать на основании данных инженерно-геологических и инженерно-экологических изысканий согласно 5.1.1 и 5.1.3, фондовых материалов, экологических карт и СП 131.13330.
5.18.1.1 Для строящихся объектов и сооружений, являющихся источниками загрязнения атмосферного воздуха, необходимо оценивать изменения общего климатического фона в районе строительства, его микроклиматические изменения под влиянием местных факторов подстилающей поверхности, прогнозировать возможные негативные нарушения химического состава, инсоляции, влажностного и ветрового режимов.
Общий климатический фон (температуру и относительную влажность воздуха, осадки и ветровой режим) следует оценивать по данным местных метеостанций и согласно СП 131.13330.
Микроклиматическую оценку необходимо проводить с учетом топографии местности, микроклиматических обследований территории и закономерностей изменения метеоэлементов в зависимости от условий подстилающей поверхности в соответствии с указаниями [24].
5.18.1.2 При размещении электродепо, котельных, столярных, гальванических участков и т.п. на территории, характеризующейся высоким ПЗА, размеры санитарно-защитной зоны, установленной по санитарной классификации данного производства, при его отнесении к V классу вредности следует увеличивать.
5.18.1.3 В электродепо выбросы вредных веществ от участков промывки и заливки аккумуляторов, гальванических ванн, окрасочных камер, сварки и пр. следует классифицировать по принадлежности к ПДВ.
5.18.1.4 Мероприятия по охране атмосферного воздуха следует проводить согласно ГН 2.1.6.2309 и [25].
5.18.2.1 Размещение подземных сооружений не должно нарушать гидрологический режим существующих водных объектов и гидрогеологические условия прилегающих территорий.
Требования к расчетным гидрологическим характеристикам водного объекта при выборе вида его пересечения приведены в [26].
5.18.2.2 В сооружениях и предприятиях с большим потреблением воды на производственные нужды следует применять систему оборотного водоснабжения. Степень очистки воды на очистных сооружениях должна соответствовать СП 32.13330, СанПиН 2.2.1/2.1.1.1200, ГН 2.1.5.1315 и ГН 2.1.5.2307.
5.18.2.3 Сброс сточных вод из сооружений метрополитена в водные объекты следует предусматривать в соответствии с [27], ГОСТ 17.1.3.13 и СанПиН 2.1.5.980.
5.18.2.4 Сброс сточных вод от сооружений метрополитена в городские сети ливневой канализации следует предусматривать в соответствии с СП 32.13330, СанПиН 2.2.1/2.1.1.1200, ГН 2.1.5.1315 и ГН 2.1.5.2307.
5.18.3.1 При проектировании метрополитена должна быть исключена возможность негативных воздействий на здания, сооружения, памятники истории и культуры. В случае необходимости следует разрабатывать мероприятия по их сохранности, как в период строительства, так и в процессе эксплуатации метрополитена, а также по отдельному заданию проводить археологические изыскания.
5.18.3.2 Комплекс геотехнических работ должен включать:
- обследование трассы проектируемой линии, а также зданий и сооружений, попадающих в зону влияния строительства. Размер зоны влияния строительства предварительно, для выполнения инженерных изысканий и обследования, определяется в соответствии с требованиями 5.18.3.3 и уточняется согласно 5.18.3.4;
- математическое моделирование совместной работы подземного сооружения с вмещающим грунтовым массивом и окружающей застройкой, с учетом поэтапности строительства и мероприятий, предусмотренных проектом организации строительства;
- проектирование мероприятий по обеспечению сохранности и безопасной эксплуатации существующей застройки на период строительства. Проектные решения должны сопровождаться расчетным обоснованием их необходимости и достаточности;
- комплексный геотехнический мониторинг;
- научное сопровождение сложных технологий.
5.18.3.3 Предварительные размеры зоны влияния строительства для выполнения инженерных изысканий и обследования определяются:
- для сооружений, возводимых открытым или полузакрытым способами, - в соответствии с требованиями СП 22.13330;
- для сооружений, возводимых закрытым способом, вне зависимости от метода проходки, - равным двум глубинам заложения оси тоннеля (одна глубина заложения от оси тоннеля в каждую сторону);
- для вертикальных стволов - равным 5dст, где dст - диаметр ствола.
5.18.3.4 Уточненные расчетом размеры зоны влияния строительства определяются по результатам математического моделирования в соответствии с требованиями 5.6.5.8. Принимаемая расчетная модель должна быть обоснована в соответствии с требованиями подраздела 8.9 СП 248.1325800.2016.
5.18.3.5 Обследование трассы проектируемой линии, кроме мероприятий, предусмотренных 5.1.1.6; 5.1.4, включает:
- обследование технического состояния зданий и сооружений, расположенных в зоне влияния строительства, в соответствии с СП 22.13330, ГОСТ 31937;
- дополнительное исследование грунтового массива по трассе тоннеля с целью поиска незадокументированных коммуникаций, остатков старых фундаментов, подземных сооружений, погребенных строений, карстовых пустот, других аномалий в грунтовом массиве (5.1.1.12).
5.18.3.6 Обследование технического состояния зданий и сооружений, расположенных в зоне влияния строительства метрополитена, проводится в два этапа:
I этап - предварительное (визуальное) обследование всех зданий и сооружений, расположенных в предварительно установленной в соответствии с требованиями 5.18.3.3 зоне влияния строительства, в объеме, установленном ГОСТ 31937 (5.1.11, 5.1.12);
II этап - детальное (инструментальное) обследование технического состояния зданий и сооружений, расположенных в расчетной зоне влияния строительства, определенной в соответствии с требованиями 5.18.3.4, в объеме, установленном ГОСТ 31937 (5.1.15).
Требования к обследованию сооружений метрополитена приведены в [70].
Предельно допустимые деформации зданий и сооружений, расположенных в зоне влияния строительства, определяются по результатам обследования:
- для открытого способа работ, а также для закрытого способа работ в несвязных грунтах - по приложению Л СП 22.13330;
- при строительстве линий глубокого заложения закрытым способом в скальных и связных грунтах - допускается в качестве критерия предельной дополнительной деформации основания фундаментов руководствоваться величиной относительной разности осадок по приложению Л СП 22.13330.
По результатам выполнения комплексного геотехнического мониторинга должны быть даны обоснованные предложения по продолжению мониторинга в начальный период эксплуатации метрополитена.
5.18.3.7 В инженерно-геологических условиях сложности III (СП 47.13330) при наличии в зоне влияния строительства (5.18.3.4) окружающей застройки необходимо вести научно-техническое сопровождение строительства в соответствии с пунктом 10.5 ГОСТ 27751-2014.
Целью научно-технического сопровождения строительства объектов метрополитена является обеспечение безопасности людей, природно-технической геосистемы, качества выполняемых работ, надежности и безопасности строящегося объекта метрополитена на основе результатов инженерных изысканий, научного прогнозирования и анализа данных всех видов мониторингов, осуществляемых в процессе строительства.
Задачи, которые необходимо решить в процессе научно-технического сопровождения строительства объектов метрополитена:
1) На стадии проектно-изыскательских работ:
1.1) Обеспечение полноты и достаточности результатов инженерных изысканий.
1.2) Анализ материалов по предыдущему использованию территории.
1.3) Прогноз геотехнических рисков с учетом всех возможных видов воздействий.
1.4) Учет при проектировании современных конструктивных, технических и технологических решений строительства объектов метрополитена, применение эффективных и безопасных материалов, строительных машин и эксплуатационного оборудования.
1.5) Прогноз влияния строительства на сложившуюся природно-техногенную среду.
1.6) Разработка и сопровождение комплекса мероприятий по минимизации влияния строительства объектов метрополитена на сложившуюся природно-техногенную среду.
1.7) Формирование комплекта нормативных документов и технической документации.
1.8) Сертификация новых конструкций и материалов.
1.9) Экспертно-консультативный анализ проектной документации и имеющихся материалов о предыдущем использовании территории в целях исключения рисков аварийных ситуаций, совершенствования конструктивных, объемно-планировочных, технологических решений строительства.
1.10) Составление программы работ по научно-техническому сопровождению строительства (НТСС).
2) На стадии строительства:
2.1) Анализ результатов различных видов мониторинга и данных по контролю качества строительства.
2.2) Инструментальное сопровождение мониторинга и контроля качества строительства с применением геофизических и других неразрушающих методов.
2.3) Оценка пригодности к эксплуатации конструкций, изготовленных с отклонениями от проекта.
2.4) Анализ причин и последствий (в том числе долговременных) нештатных и аварийных ситуаций.
2.5) Принятие оперативных решений, разработка рекомендаций и технических мероприятий по устранению последствий аварийных ситуаций и негативных факторов, выявленных в процессе мониторинга и контроля качества, а также при отклонении от проектных решений.
2.6) Создание и пополнение информационной базы данных по результатам различных видов мониторинга и учет этих данных при последующем проектировании.
2.7) Выполнение опытно-исследовательских работ.
3) Информационное обеспечение строительства.
Состав работ по научно-техническому сопровождению подземного строительства определяется инженерно-геологическими, гидрогеологическими археологическими, сейсмологическими, радиационными, градостроительными условиями, принятыми проектными решениями, с учетом требований пункта 4.18 СП 22.13330.2016.
5.18.3.8 Проект мониторинга (наблюдательной станции) должен разрабатываться с учетом положений СП 22.13330 и настоящего раздела. Требования к проекту мониторинга приведены в [43].
5.18.3.9 При проектировании объектов метрополитена, расположенных на расстоянии не более 2D до зданий и сооружений, связанных с длительным (не менее 8 ч) или постоянным пребыванием в них людей, транспортных сооружений, уникальных, особо опасных и технически сложных объектов (где D - диаметр или пролет проектируемой выработки) в проекте геотехнического мониторинга (наблюдательной станции) необходимо предусматривать мероприятия по организации геотехнического мониторинга в автоматизированном режиме.
5.18.3.10 По результатам наблюдений следует проводить анализ напряженно-деформированного состояния системы "подземное сооружение - вмещающий грунтовый массив" с выдачей соответствующих рекомендаций.
5.18.3.11 Проектная документация на строительство сооружений метрополитена (за исключением наземных сооружений с глубиной заложения подземной части или фундаментной конструкции менее 5 м от отметки планировки и отсутствии в зоне влияния (5.18.3.4) зданий и сооружений, в том числе инженерных коммуникаций) должна проходить геотехническую экспертизу, осуществляемую специально уполномоченными органами или организациями.
На геотехническую экспертизу представляется следующая документация:
- результаты инженерно-геологических и геотехнических изысканий;
- результаты обследования технического состояния зданий и сооружений, расположенных в зоне влияния строительства;
- проектные решения несущих конструкций;
- результаты математического моделирования совместной работы подземного сооружения с вмещающим грунтовым массивом, включая расчеты влияния проектируемого подземного сооружения на окружающую застройку;
- проекты усиления оснований и фундаментов существующих зданий и других мероприятий по обеспечению их сохранности и безопасной эксплуатации с расчетным обоснованием принятых технических решений;
- результаты прогнозирования гидрогеологической ситуации;
- проект организации строительства;
- проект геотехнического мониторинга (наблюдательной станции).
В составе геотехнической экспертизы необходимо выполнять поверочные расчеты основных несущих конструкций сооружений метрополитена, ограждений котлованов глубиной более 15 м, оценки влияния строительства на существующую застройку мероприятий по обеспечению сохранности существующих зданий и сооружений.
5.18.4.1 Инженерно-технические мероприятия по обеспечению устойчивости геологической среды, зданий и сооружений от опасных инженерно-геологических процессов следует разрабатывать согласно СП 22.13330 и СП 116.13330.
При этом необходимо:
- оценивать характеристику современного состояния геологической среды по основным ее компонентам;
- давать анализ проектных решений и прогноз изменения компонентов геологической среды с учетом существующих и проектируемых техногенных нагрузок на среду;
- разрабатывать основные направления защиты геологической среды от возможных негативных техногенных процессов исходя из конструктивных и технологических особенностей сооружений, глубины заложения, условий их строительства и эксплуатации.
Оценку следует проводить на основании материалов инженерно-геологических и гидрогеологических изысканий.
В прогнозе изменений компонентов геологической среды следует рассматривать динамику изменений режима и загрязнения подземных вод, напряженного состояния грунтового массива и активизации инженерно-геологических процессов. В сложных инженерно-геологических условиях прогноз выполняется методами математического моделирования.
5.18.4.2 Степень защищенности подземных вод от загрязнения надлежит определять по методике [28].
Территории по защищенности подземных вод следует подразделять на следующие категории:
а) I категория - благоприятные условия защищенности с высокой степенью надежности. В кровле водоносных горизонтов залегают глины мощностью более 10 м или суглинки суммарной мощностью более 100 м;
б) II категория - относительно благоприятные условия с относительной степенью надежности. В кровле водоносных горизонтов залегают глины мощностью более 3 м, но менее 10 м и суглинки мощностью более 50 м, но менее 100 м;
в) III категория - неблагоприятные условия защищенности с низкой степенью надежности. В кровле водоносных горизонтов залегают глины мощностью менее 3 м и суглинки мощностью менее 50 м.
5.18.5.1 Оценку состояния почвенного покрова при открытом способе строительства подземных сооружений и строительстве наземных сооружений следует проводить по геохимическому составу почв, степени химического загрязнения и санитарного состояния согласно ГОСТ 17.4.2.01, ГОСТ 17.4.3.06 и СанПиН 2.1.7.1287.
5.18.5.2 Экологическое состояние почв в зависимости от степени их загрязнения следует определять исходя из суммарного показателя концентрации (СПК) аномальных химических элементов (цинк, кадмий, свинец, ртуть, медь, кобальт, никель, мышьяк) согласно таблице 5.39.
Таблица 5.39
|
Величина СПК |
Уровень загрязнения |
Категория загрязнения |
Оценка экологической обстановки |
|
Меньше 16 |
Слабый (низкий) |
Допустимая |
Относительно удовлетворительная |
|
16-32 |
Средний |
Умеренно опасная |
Напряженная и критическая |
|
32-128 |
Сильный (высокий) |
Опасная |
Кризисная |
|
Больше 128 |
Максимальный |
Чрезвычайно опасная |
Катастрофическая |
Возможность использования плодородного слоя почв следует определять в зависимости от СПК:
а) менее 32 - почвы допускается использовать для восстановления (рекультивации) нарушенных земель, а также для благоустройства и озеленения районов застройки;
б) от 32 до 128 - почвы допускается использовать для рекультивации и благоустройства при их разбавлении экологически чистым грунтом;
в) более 128 - почвы не допускается использовать и должны вывозить на специальные полигоны для их последующего захоронения.
5.18.6.1 При проектировании необходимо выявлять объемы и состав грунтов, извлекаемых при строительстве наземных и подземных сооружений, определять возможность их использования в качестве обратной засыпки сооружений или необходимость вывоза на специальные полигоны для последующего захоронения.
5.18.6.2 Места сбора и накопления любых видов отходов должны соответствовать требованиям [86], [87], СанПиН 2.1.7.1322, оборудоваться и располагаться так, чтобы не оказывать вредного воздействия на состояние окружающей среды, сооружения и здоровье людей.
5.18.6.3 На площадках накопления отходов и в пределах их воздействия на окружающую среду следует предусматривать мероприятия по мониторингу состояния окружающей среды в порядке, установленном уполномоченными федеральными органами исполнительной власти в области обращения с отходами в соответствии со своей компетенцией.
5.19.1.1 Городские здания и сооружения следует защищать от шума и вибрации, возникающих при проведении строительных работ, от движения поездов при эксплуатации метрополитена и от инженерно-технического оборудования метрополитена [84], [85].
5.19.1.2 В помещениях жилых и общественных зданий уровни шума не должны превышать значений согласно СН 2.2.4/2.1.8.562, уровни инфразвука (вибраций) - СН 2.2.4/2.1.8.583.
Акустический расчет ожидаемых уровней шума на территории жилой застройки, а также выбор и оценку шумозащитных мероприятий следует выполнять по [31].
Проверку эффективности защиты помещений жилых и общественных зданий от шума и вибраций следует выполнять при движении поездов в эксплуатационном режиме.
5.19.1.3 Максимальные средние квадратические значения виброскорости в октавных полосах со средними геометрическими частотами 16; 31,5 и 63 Гц не должны превышать допустимых значений, приведенных в таблице 5.40.
Таблица 5.40
|
Помещения, здания |
Допустимое значение | |
|
м/с |
дБ | |
|
Жилые |
0,00011 |
67 |
|
Палаты больниц, санаториев |
0,00008 |
64 |
|
Административно-управленческие, общественные здания |
0,00028 |
75 |
|
Учебные заведения, читальные залы библиотек |
0,0002 |
72 |
|
Примечания 1 Для корректированных значений виброскорости допустимые значения, приведенные в м/с, увеличиваются в 2,1 раза (+6 дБ), для эквивалентных значений - уменьшаются в 0,32 раза (минус 10 дБ). 2 В дневное время в жилых помещениях, палатах больниц и санаториев допускается превышение нормативных значений в 1,8 раза (+5 дБ). | ||
5.19.1.4 Участки тоннелей, в которых используются виброзащитные конструкции, должны удовлетворять следующим требованиям:
- длину виброзащитного участка и его расположение в плане определяют расчетом по СП 23-105 [32];
- между обычной и виброзащитной конструкциями должны быть переходные участки длиной не менее 10 м с плавным изменением физико-механических характеристик.
5.19.2.1 При совмещении сооружений метрополитена (например, станций или электродепо) с сооружениями другого назначения их внутренние металлические конструкции, заземляющие устройства и арматура железобетонных конструкций должны выполняться раздельно и не иметь гальванических связей и на эти сооружения должны распространяться требования 5.20.
Исключение составляют сооружения, электроснабжение которых обеспечивается от подстанций метрополитена. В этом случае к сооружениям в части мер ограничения блуждающих токов должны предъявляться требования в соответствии с настоящим сводом правил.
5.19.2.2 Прокладку городских кабелей на участках, расположенных вблизи линий метрополитена, целесообразно осуществлять в кабельных блоках или применять кабели в неметаллической оболочке.
5.19.2.2а Защиту городских кабелей на участках, расположенных вблизи линий метрополитена от влияния блуждающих токов (электрокоррозии) следует предусматривать согласно ГОСТ 9.602".
5.19.2.3 При совместной прокладке по мосту (эстакаде) путей метрополитена и железной дороги или трамвая сооружения и конструкции метрополитена (рельсы, кабели, трубопроводы и т.п.) не должны иметь металлических связей с железнодорожными или трамвайными конструкциями, кабелями, трубопроводами и т.п.
5.19.2.4 В местах сближения в плане (до 50 м) и местах пересечения тоннелей метрополитена мелкого заложения с трамвайными или электрифицированными железнодорожными путями железобетонная обделка тоннелей должна иметь внешнее усиленное защитное и электроизоляционное покрытие. В местах пересечения усиленное защитное и электроизоляционное покрытие следует укладывать непосредственно под путями трамвая или железной дороги и на 50 м в каждую сторону от них.
5.20.1 Строительные конструкции зданий, сооружений, оборудование (эскалаторы, вентиляторы, насосы, электрооборудование, кабели и т.п.) и металлические элементы устройств (шкафы, металлоконструкции и т.п.) должны иметь защиту от коррозии, вызываемой воздействием агрессивных сред природного и техногенного происхождения.
Разработку мер защиты строительных конструкций от коррозии следует выполнять по СП 28.13330 на основании оценки опасности агрессивного воздействия среды и с учетом применения материалов по ГОСТ 32803.
Исходные данные по агрессивным воздействиям следует принимать по материалам инженерно-геологических и инженерно-экологических изысканий по трассе линии, данным по загрязнению атмосферного воздуха.
5.20.2 Способы защиты строительных конструкций, сооружений и устройств необходимо выбирать на основании оценки агрессивного воздействия сред на материалы и конструкции по СП 28.13330 и требований по их первичной и вторичной защите.
5.20.3 Антикоррозионную защиту стальных конструкций следует выполнять по СП 28.13330 и СП 72.13330. При этом подготовка металлической поверхности должна выполняться согласно СП 72.13330 и отвечать 1-й степени очистки по обезжириванию и 2-й степени очистки от окислов (оксидов). Радиус закругления острых кромок следует принимать не менее 2 мм.
5.20.4 Расчет железобетонных конструкций подземных сооружений, подверженных воздействию агрессивных сред, необходимо выполнять с учетом требований к трещиностойкости и предельно допустимой ширине продолжительного раскрытия трещин по таблице 5.41.
Таблица 5.41
|
Степень агрессивного воздействия среды |
Категория требований к трещиностойкости (над чертой) и предельно допустимая ширина продолжительного раскрытия трещин, мм (под чертой) конструкций, контактирующих с грунтом* |
Толщина защитного слоя со стороны контакта с грунтом**, мм (без гидроизоляции) |
Марка бетона по водонепроницаемости, не менее | |||
|
в зоне обводнения без гидроизоляции |
в зоне обводнения с гидроизоляцией и в необводненной зоне | |||||
|
в зоне обводнения без гидроизоляции |
в зоне обводнения с гидроизоляцией и в необводненной зоне | |||||
|
Неагрессивная |
3/0,15 |
3/0,2 |
30 |
W8 |
W6 | |
|
Слабоагрессивная |
3/0,1 |
3/0,15 |
30 |
W8 |
W6 | |
|
Среднеагрессивная |
3/0,05 |
3/0,1 |
35 |
W10 |
W8 | |
|
Сильноагрессивная |
3/0,05 |
2/0,1 |
35 |
W12 |
W8 | |
|
* Распространяется на конструкции с арматурной сталью первой группы по СП 28.13330. Арматура классов А400, А500 и А600, подвергаемая при изготовлении термомеханическому упрочнению, допускается к применению при условии подтверждения стойкости против коррозионного растрескивания испытаниями по ГОСТ 10884 продолжительностью не менее 40 ч. ** При использовании набрызг-бетона толщина защитного слоя может быть уменьшена на 10 мм. | ||||||
5.20.5 Минимальные проектные марки бетона по морозостойкости железобетонных конструкций, следует назначать в зависимости от климатических условий района строительства и условий увлажнения элементов конструкций водой или атмосферными осадками согласно таблице 5.42.
Таблица 5.42
|
Климатические условия со среднемесячной температурой наиболее холодного месяца,°С, по СП 131.13330 |
Наземные конструкции на открытом воздухе |
Подземные конструкции в зоне промерзания, контактирующие с грунтом | |||
|
контактирующие с водой |
контактирующие с грунтом |
без навеса |
под навесом | ||
|
Умеренные, минус 10 и выше |
200 |
150 |
100 |
100 |
100 |
|
Суровые, ниже минус 10 до минус 20 включительно |
300 |
200 |
150 |
100 |
150 |
|
Особо суровые, ниже минус 20 |
400 |
300 |
200 |
150 |
200 |
Для конструкций, контактирующих с сильноминерализованными водами с содержанием солей более 1% массы, засоленными грунтами, растворами солей-антиобледенителей и подвергающихся циклическому замораживанию и оттаиванию, марку бетона по морозостойкости следует назначать и контролировать как для бетона дорожных покрытий по ГОСТ 10060.
5.20.6 На участках, расположенных в зонах, подверженных воздействию агрессивных сред, в первую очередь следует предусматривать следующие мероприятия по снижению агрессивных воздействий:
- при строительстве открытым способом на территориях, загрязненных агрессивными веществами (старые свалки, поля аэрации, площадки промышленных предприятий, загрязненные различными техническими продуктами), следует применять замену загрязненного грунта на чистый грунт, нейтрализацию агрессивных веществ добавками в грунт, использовать экраны из бентонитовой глины, "стены в грунте", дренаж и т.п., удалять источники загрязнения грунта (химические производства, склады, автозаправочные станции и т.п.) от трассы метрополитена за пределы зоны их распространения;
- при строительстве закрытым способом на участках с грунтом, содержащим сульфиды (пирит, марказит), а также сульфатредуцирующие, тионовые и нитрифицирующие бактерии, по возможности следует исключать применение кессонного метода проходки или использовать специальные меры по защите строительных конструкций от агрессивных воздействий;
- не допускать прокладки нефте- и бензопроводов и других трубопроводов, транспортирующих агрессивные химические продукты в пределах зоны отвода территорий для строительства. Допускается пересечение нефте- и бензопроводами трассы линии с принятием мер, исключающих при их повреждении попадание нефтепродуктов в грунт в пределах вышеуказанной зоны.
5.20.7 Способы защиты подземных сооружений следует предусматривать с использованием:
- гидроизоляции;
- водонепроницаемых обделок с учетом требований СП 28.13330;
- нагнетания за обделку специальных растворов;
- герметизации стыков между элементами сборных обделок и деформационных швов, а также отверстий для нагнетания раствора и болтовых соединений.
5.20.8 Для защиты конструкций подземных сооружений со стороны контакта с агрессивным грунтом и грунтовыми водами необходимо предусматривать следующие способы (один из них или комбинации нескольких способов):
- покрытие слоем бетона или цементно-песчаного раствора с повышенной маркой по водонепроницаемости согласно требованиям СП 28.13330 и обеспечения герметичности технологических швов и трещин герметизирующими элементами;
- оклеечную изоляцию из листовых или рулонных материалов;
- обмазку или пропитку;
- металлизацию цинком или алюминием стальных элементов, дополнительную обработку полимерными материалами;
- катодную защиту.
5.20.9 Мероприятия по защите наружных поверхностей конструкций тоннелей следует назначать в зависимости от способа производства работ (закрытый или открытый) и типов обделок (сборная из чугунных, бетонных или железобетонных элементов, монолитная или монолитно-прессованная бетонная обделка).
5.20.10 Бетон и цементно-песчаный раствор, наносимые на поверхность конструкций в качестве изолирующего слоя, следует предусматривать плотной структуры (водонепроницаемость не менее W6) и коррозионно-стойкими к агрессивному воздействию среды. Коррозионная стойкость достигается применением соответствующих видов цементов, заполнителей, химических добавок с учетом требований СП 28.13330.
5.20.11 В подземных сооружениях, возводимых открытым способом, оклеечную изоляцию из листовых и рулонных материалов следует применять в общих случаях в качестве гидроизоляции, а при наличии средне- и сильноагрессивных сред - в виде химически стойких изоляционных материалов, защищающих конструкции от воздействия среды.
Гидроизоляционные покрытия допускается одновременно применять в качестве защиты от коррозии, если они обладают необходимой химической стойкостью и биостойкостью к конкретным агрессивным средам.
Листовую и рулонную изоляцию предусматривают с обеспечением сплошности и непроницаемости для жидкостей.
5.20.12 При применении гидроизоляции, предварительно наносимой на поверхность сборных элементов обделки, следует обеспечивать в стыках сборных элементов непроницаемость и стойкость, равнозначные предварительно наносимой гидроизоляции.
5.20.13 Наружная изоляция должна иметь защиту от механических повреждений. Для предупреждения разрыва оклеечной изоляции в местах устройства деформационных швов следует предусматривать компенсаторы.
5.20.14 Обмазки (битумные, гудроновые, битумно-полимерные, эпоксидные, эпоксидно-фурановые, эпоксидно-сланцевые и т.п.) для защиты поверхностей подземных конструкций следует применять с учетом их стойкости к агрессивному воздействию среды. В грунтах и грунтовых водах, загрязненных органическими веществами (масла, нефтепродукты, растворители), применение защитных рулонных, листовых, обмазочных материалов, а также композиций герметиков на основе битумов не допускается.
5.20.15 Для защиты поверхности металлических элементов, недоступных для возобновления защитных покрытий, следует использовать эффективные долговечные противокоррозионные покрытия. Во избежание повреждения противокоррозионных покрытий при сварке крепление элементов следует осуществлять при помощи болтовых соединений, защищенных от коррозии.
5.20.16 Для защиты конструкций от биокоррозии следует использовать химически стойкие и биостойкие материалы на полимерной или минеральной основе, применяемые для сильноагрессивных газовых и жидких сред согласно СП 28.13330.
5.20.17 Внутреннюю поверхность чугунных тюбингов и стальных конструкций на станциях, в пристанционных сооружениях, в перегонных тоннелях и в притоннельных сооружениях следует покрывать негорючими противокоррозионными составами, в первую очередь цементными и цементно-полимерными.
5.20.18 Борта чугунных тюбингов (зазоры в местах соприкосновения) в дополнение к существующим методам гидроизоляции и защиты от "щелевой" коррозии следует защищать углеводородными смазками (петролатум, технический вазелин) с добавлением улучшающих добавок (окисленный петролатум, каучук) и ингибиторов (по [17]).
Для предупреждения протечек и связанной с ними "щелевой" коррозии чугунных тюбингов швы в чугунной обделке следует зачеканивать свинцом или уплотнять упругоэластичными резиновыми неопреновыми уплотнителями.
Болтовые отверстия и отверстия для нагнетания следует уплотнять путем использования шайб и колец, изготовленных из коррозионно-стойких материалов.
Швы в сборных железобетонных обделках, зачеканенные расширяющимся цементом, следует покрывать эпоксидными, полиуретановыми или другими стойкими обмазками.
5.21.1 Защиту сооружений и устройств метрополитенов от коррозии блуждающими токами (электрокоррозии) следует предусматривать по ГОСТ 9.602 и требованиям настоящего свода правил.
5.21.2 Арматура железобетонных элементов и металлоконструкции метромостов и эстакад не должны иметь гальванической связи с ходовыми рельсами и с обделкой тоннелей.
5.21.3 На подземных участках линий, на мостах и эстакадах должны быть предусмотрены контрольно-измерительные пункты блуждающих токов.
5.21.4 В устройствах пути следует предусматривать:
- электрическую изоляцию ходовых рельсов путем установки изолирующих элементов (прокладок, втулок) в местах сопряжения деталей, находящихся под потенциалом рельсов, с поверхностью бетона, арматурой и т.п.;
- зазор не менее 50 мм между ходовыми рельсами, деталями рельсовых скреплений и путевым бетоном или щебеночным балластом, а также трубопроводами, кабелями, корпусами электрооборудования и другими заземленными конструкциями;
- электрическую изоляцию соединенных с ходовыми рельсами металлических частей стрелочных приводов от щебеночного балласта или путевого бетона и тоннельной обделки;
- пропитку деревянных шпал и шурупных отверстий в них антисептиками, не проводящими электрического тока. Шурупные отверстия не должны быть сквозными;
- укладку ходовых рельсов на металлических или железобетонных эстакадах и метромостах, а также на расстоянии 200 м с двух сторон от них на деревянные шпалы с изолирующими прокладками и втулками в рельсовых скреплениях (резина, полиэтилен или другие полимерные материалы);
- два изолирующих стыка в каждом ходовом рельсе между электрифицированными и неэлектрифицированными путями на расстоянии, исключающем возможность их одновременного перекрытия подвижным составом;
- одинарные изолирующие стыки у тупиковых упоров;
- исключение возможности соприкосновения рельсов покилометрового запаса в тоннеле с какими-либо металлическими элементами конструкции верхнего строения пути;
- использование амортизирующих конструктивных элементов верхнего строения пути, исключающих снижение переходного сопротивления между рельсами и обделкой тоннеля;
- расположение анкерных болтов крепления продольных брусьев к железобетонному подрельсовому основанию между рельсовыми подкладками;
- использование для сборных стыков ходовых рельсов и стрелочных переводов инвентарных электрических соединителей промышленного производства.
Удельное переходное сопротивление между ходовыми рельсами одного пути (две рельсовые нити в параллель) и обделкой (землей) должно быть не менее, Ом·км:
а) в тоннелях и закрытых наземных участках, на участках, смежных с метромостами (до 200 м по обе стороны от моста), - 1,5;
б) на эстакадах, метромостах и в зданиях электродепо - 3;
в) на парковых путях электродепо, на открытых наземных участках - 0,5.
5.21.5 В строительных конструкциях обделок тоннелей следует предусматривать:
- гальваническое разделение продольных металлических связей арматуры железобетонных обделок с шагом не более 60 м. Места разделения арматуры следует обозначать вертикальной белой полосой, наносимой на внутреннюю сторону обделки;
- шунтирование стальной шиной сечением не менее 160 мм2 участков обделок (вставок) из бетона или железобетона в тоннелях с обделкой из чугунных тюбингов, комбинированной обделкой из чугунных тюбингов и железобетонных блоков, сталебетонной обделкой;
- способы стыковки железобетонных тюбингов (блоков), а также узлы крепления к ним заземляющих шин, кронштейнов и т.п., исключающие возможность гальванических связей с арматурой и объединения ее в протяженную непрерывную металлическую сеть.
5.21.6 В устройствах электроснабжения следует предусматривать:
- установку независимых РУ 825 В при необходимости электроснабжения тяговых сетей разных линий в местах их сближения или пересечения от одной ТПП;
- защиту от замыкания токоведущих частей устройств контактной сети 825 В на "землю";
- применение междупутных соединителей ходовых рельсов в средней части перегона и, при необходимости, не менее чем через 500 м между ними.
Присоединение отсасывающих линий и междупутных соединителей к ходовым рельсам главных путей следует выполнять в соответствии с 5.12.
Электрическое сопротивление междупутного соединителя постоянному току должно быть не более 3·10-3 Ом.
5.21.7 Участок водопровода из металлических труб, прокладываемый под ходовыми рельсами, следует отделять от остальной сети изолирующими фланцами.
5.21.8 На кабелях и трубопроводах систем тепло- и водоснабжения в местах их выхода из сооружений метрополитена следует предусматривать соответственно изолирующие муфты и фланцы, размещаемые в сооружениях метрополитена в сухих, доступных для осмотра местах.
Кабели и трубопроводы на участке от изолирующей муфты и фланца до места выхода необходимо изолировать от окружающих опорных и строительных конструкций, в том числе следует изолировать муфты и фланцы.
5.21.9 Электрическое сопротивление электропроводящих стыков ходовых рельсов и стрелочных переводов не должно превышать сопротивления участка целого рельса длиной 1 м, изолирующих стыков с дроссель-трансформаторами - 36 м.
5.21.10 В начале и конце метромостов и эстакад протяженностью более 300 м в кабельных линиях следует предусматривать вставки кабелей с неметаллической оболочкой, в трубопроводах - вставки труб из композитных материалов.
5.21.11 Контрольно-измерительные пункты КИП I следует применять для измерения потенциалов ходовых рельсов относительно заземляющего проводника (шины); КИП II - для измерения потенциалов чугунной обделки или арматуры железобетонной обделки относительно внешней (по отношению к обделке) среды.
5.21.12 КИП I следует устанавливать около ДТ:
- в начале и конце моста и эстакады;
- в каждом перегонном тоннеле через 500-800 м;
- в местах присоединения к ДТ отсасывающих линий или междупутных соединителей (на одном из путей).
5.21.13 КИП II следует устанавливать в перегонных тоннелях с чугунной обделкой на участках пересечения трасс метрополитена с трассами трамвая или электрифицированных на постоянном токе железных дорог и на участках, где эти линии проходят по параллельным трассам.
КИП II следует применять и в тоннелях с железобетонной обделкой, если выявлено многократное соединение арматуры обделки с заземленными конструкциями, узлами крепления трубопроводов и т.п.
На участках пересечения трасс КИП II следует устанавливать в одном из тоннелей вблизи пересечения и по обе стороны от него на расстоянии 200 м.
На участке параллельных трасс КИП II следует устанавливать по концам участка тоннеля, расположенного ближе к путям трамвая или железной дороги, а также через 300 м при расстоянии между трассами менее 100 м и через 500 м - при расстоянии от 100 до 200 м.
При расположении в указанных зонах тяговой подстанции трамвая или железной дороги один из КИП II следует размещать вблизи пункта отсоса этой подстанции.
КИП II надлежит размещать также в тоннелях, сооружаемых в агрессивной среде.
5.21.14 При совпадении мест установки КИП I и КИП II предусматривают установку только КИП II.
5.21.15 КИП I состоит из трехполюсного выключателя и соединительных клемм, установленных в ящике; КИП II - из КИП I и электрода-измерителя, устанавливаемого в обделку тоннеля.
КИП I и КИП II соединяют контрольными кабелями с клеммными шкафами, размещаемыми на станциях. В шкафы следует предусматривать ввод переменного тока напряжением 230 В.
5.21.16 на ТПП, Т и ТППд предусматривается установка прибора (счетчика вольт-часов) для измерения среднесуточных потенциалов шины минус 825 В по отношению к заземляющему устройству подстанции.
5.21.17 Контроль за выполнением и эффективностью мер по защите от электрокоррозии при строительстве и приемке линий осуществляют согласно требованиям норм.
5.22.1 Антитеррористические требования при проектировании определяются застройщиком или заказчиком в задании на проектирование в соответствии с СП 132.13330 и [63].
5.22.2 Для охраны метрополитена от противоправных действий предусматривается комплекс мер, в числе которых:
- охранная сигнализация (ОС);
- видеонаблюдение;
- система контроля и управления доступом (СКУД);
- система оповещения и информирования;
- система связи охраны подразделений правопорядка и безопасности;
- система станционной радиосвязи с наземными службами города.
5.22.3 Охранной сигнализацией и/или видеонаблюдением необходимо оборудовать:
- помещения пунктов досмотра и постов транспортной безопасности;
- ограждения по периметру наземных объектов (площадок электродепо, открытых участков линии и др.), а также по периметру зданий вестибюлей станций.
5.22.4 Устройствами контроля доступа следует оборудовать входы в помещения кассового блока, машинного помещения эскалаторов, медпункта, подстанций, ДПС, входы из зон свободного доступа и перевозочного сектора в технологический сектор станций и вестибюлей, эвакуационные выходы из технологического сектора станций и вестибюлей, запасные выходы.
5.22.5 Сигнал о срабатывании ОС необходимо выводить в ДПС и на пост управления транспортной безопасности.
5.22.6 В помещениях оператора касс, старшего оператора и сервера кассового блока следует предусматривать двухрубежную ОС, в остальных - однорубежную.
Для однорубежной ОС предусматривают магнитоконтактные извещатели для блокировки на открывание входных дверей и других проемов. В наземных вестибюлях необходимо блокировать также окна (на проникновение или открывание).
Для второго рубежа защиты, блокирующего определенные зоны помещений, следует применять поверхностные или объемные оптико-электронные извещатели.
5.22.7 В кассах, медпункте, ДПС, кабине ДСП на платформе предусматривают скрытую кнопку и педаль для передачи тревожного сигнала на приемно-контрольную аппаратуру ОС и на пост службы охраны правопорядка.
5.22.8 Системы ОС и АУПС допускается объединять в едином комплекте приемно-контрольной аппаратуры.
5.23.1 Для обеспечения функционирования метрополитена должны предусматриваться:
5.23.1.1 Административное здание метрополитена для размещения аппарата управления, административно-технического персонала служб и других подразделений.
Объемно-планировочные решения и технологическое оснащение здания административного управления определяются заданием на проектирование.
5.23.1.2 Здание диспетчерского управления (инженерный корпус).
В здании диспетчерского управления следует размещать:
- диспетчерские пункты линий, оснащенные автоматизированными рабочими местами, системами телеуправления установками линии и связи согласно 5.11, 5.12, 5.13, 5.16 и 5.22;
- вычислительный центр;
- лабораторно-ремонтные подразделения ДПЛ и ВЦ, оснащенные соответствующей аппаратурой и приборами;
- комнаты отдыха, приема пищи и психологической разгрузки диспетчерского персонала;
- административные и санитарно-бытовые помещения;
- грузовые и пассажирские лифты, кабельные шахты и поэтажные кабельные каналы;
- понизительную подстанцию.
Помещения здания диспетчерского управления должны иметь естественное освещение и защиту от шума и вибрации согласно 5.17.
5.23.1.3 Здание для размещения инженерно-технического (эксплуатационного) персонала дистанций служб, осуществляющего руководство эксплуатационными подразделениями линии.
В здании эксплуатационного персонала линии размещаются:
- руководители эксплуатационных подразделений служб;
- участки и бригады служб по обслуживанию строительных конструкций, путевых устройств и инженерного оборудования;
- мастерские по мелкому ремонту оборудования, кладовые;
- служебно-технические помещения пожарных подразделений и охраны;
- медпункт, фотарий, комнаты приема пищи и психологической разгрузки;
- административные и санитарно-бытовые помещения.
5.23.2 Здание диспетчерского управления метрополитена (инженерный корпус) по возможности располагают в зоне пересечения линий метрополитена, в непосредственной близости от станции или совмещают его с вестибюлем станции. Здание должно иметь соединение с тоннелями линий для прокладки кабелей и при необходимости - для прохода персонала.
5.23.3 Здание для размещения инженерно-технического персонала (ОЗЭП) следует предусматривать для каждой линии и располагать в непосредственной близости от станции или совмещать с вестибюлем станции либо на территории электродепо линии.
5.23.4 Здания диспетчерского управления линий и инженерно-технического персонала должны входить в состав участка первой линии метрополитена.
Возможно строительство здания для совмещения административных и инженерно-технических служб.
5.23.5 Здания следует проектировать по отдельным техническим и архитектурно-планировочным заданиям и в соответствии с СП 44.13330.
Площадь зданий следует принимать исходя из перспективы развития сети метрополитена.
5.24.1 Исходные данные для разработки проекта организации строительства (ПОС) включают сведения о климатических условиях района, инженерных изысканиях, характере городской застройки, принятых объемно-планировочных и конструктивно-технологических решениях, подземных объектах и коммуникациях, находящихся в зоне строительства, потребных энергоресурсах, условиях присоединения их к городским сетям и директивном сроке строительства и др.
Состав и содержание ПОС должны соответствовать [64] и [65]. Требования к разработке грунта буровзрывным способом приведены в [35].
5.24.2 Состав и содержание ПОС должны соответствовать [64] и [65|.
В состав ПОС для сложных инженерно-геологических и градостроительных условий должны включаться работы по геотехническому мониторингу с учетом СП 22.13330 и 5.18.3, 5.1.1.28 настоящего свода правил, в том числе технические решения по обеспечению сохранности наземных и подземных сооружений и коммуникаций с указанием зон влияния строительства.
В составе мониторинга необходимо предусматривать оснащение конструкций тоннельных обделок контрольно-измерительной аппаратурой для определения их фактического напряженно-деформированного состояния в наиболее нагруженных сечениях при строительстве и в период эксплуатации.
5.24.3 При закрытом способе работ в зависимости от инженерно-геологических условий и градостроительной ситуации следует использовать механизированные комплексы, в том числе щиты с активным пригрузом забоя, щиты с рассекающими площадками, а также комбайновый или буровзрывной способ разработки грунта с устройством или без устройства временной крепи.
5.24.4 При организации проходки закрытым способом под водными преградами, в местах возможных прорывов воды или грунтовых масс необходимо предусматривать перемычки с герметическими дверями, рассчитанные на максимально возможное гидростатическое давление, с коэффициентом надежности 1,5.
Участки строительства в местах примыкания к действующим сооружениям метрополитена до завершения работ по возведению обделки следует отделять герметичными перемычками, рассчитанными на максимально возможное гидростатическое давление, с коэффициентом надежности 1,1.
5.24.5 Монтаж и демонтаж элементов сборной обделки предусматривают механическими укладчиками.
Применение лебедок для этой цели допустимо на ограниченных по длине участках выработки, где невозможно или нецелесообразно использование укладчиков.
5.24.6 При проходке подземных выработок без использования щита в слабоустойчивых и неустойчивых грунтах следует предусматривать дополнительные мероприятия:
- в слабоустойчивых грунтах разработку выработок вести с предварительным закреплением грунтов в соответствии с [74] и [14] или, при длине выработки до 100 м, с использованием опережающего защитного экрана в соответствии с [36];
- в неустойчивых грунтах следует выполнять их предварительное закрепление в соответствии с [74] и [14].
5.24.7 При применении обделки односводчатых станций из сборных железобетонных элементов возможно предусматривать ее сооружение с использованием обжатия в замке плоскими гидравлическими домкратами.
5.24.8 Пазухи котлована при открытом способе работ при необходимости устройства гидроизоляции обделки и отсутствии в них водопонизительных систем следует предусматривать шириной не менее 1,2 м, при наличии таких систем - 1,5 м.
В котлованах с откосами расстояние между стеной сооружения и заложением откоса при отсутствии дренажных устройств в лотке должно составлять не менее 0,5 м.
5.24.9 На сооружение котлованов в особо сложных инженерно-геологических и гидрологических условиях с применением специальных методов производства работ, в том числе ограждающих конструкций из буросекущихся свай (БСС), "стен в грунте" (СвГ), анкерного крепления, методов укрепления грунта (jet-технология, замораживание, химукрепление и др.), в составе проектной документации разрабатывается проект производства работ (ППР) на основе методик [7], [36], [37].
5.24.10 При прохождении трассы по участкам, загрязненным вредными веществами с превышением допустимых уровней воздействия вредных факторов, а также при расположении строительных площадок в черте санитарно-защитных зон действующих предприятий следует разрабатывать комплекс защитных мероприятий.
5.24.11 При разработке проекта консервации или ликвидации объекта надлежит руководствоваться [38].
Исключен с 17 июня 2017 г. -Изменение N 2, утвержденное приказом Минстроя России от 16 декабря 2016 г. N 576/пр
5.26.1 Охранные и технические зоны метрополитена должны наноситься на топографические планы городской территории масштабов 1:2000, 1:500.
5.26.2 Проведение каких-либо работ, проектирование и новое строительство в пределах технических и охранных зон допускается только по согласованию с организациями, проектирующими и эксплуатирующими метрополитен.
В случае если объекты метрополитена попадают в предварительно назначенную в соответствии с СП 22.13330 зону влияния строящегося или реконструируемого сооружения, необходимо выполнение геотехнического прогноза (оценки) влияния нового строительства или реконструкции на изменение напряженно-деформированного состояния грунтового массива, вмещающего объекты метрополитена. При попадании объектов метрополитена в расчетную зону влияния строительства или реконструкции необходим прочностной расчет конструктивной системы в пространственной постановке.
5.26.3 У наземных станций необходимо предусматривать строительные технические зоны шириной 20 м и длиной не менее 60 м в каждую сторону для обеспечения реконструкции, связанной с увеличением их размеров.
5.26.4 Технические и охранные зоны для обеспечения эксплуатации следует предусматривать для всех объектов инфраструктуры метрополитена.
Виды технических и охранных зон для эксплуатации объектов метрополитена и их размеры приведены в приложении Н (таблица Н.5).
5.26.5 Границы технических и охранных зон следует устанавливать с целью создания нормальных условий для движения пассажиров и обеспечения ремонтно-профилактических работ исходя из реальной обстановки на прилегающих участках городской территории.
5.26.6 Граница технической зоны отдельно расположенного наземного вестибюля станции должна отстоять не менее чем на 5 м от наружного контура сооружения с увеличением в местах передвижения пассажиров и на участках, используемых для обеспечения ремонтных работ.
При размещении вестибюля в здании другого назначения границу технической зоны следует определять только для части здания, используемой метрополитеном.
5.26.7 У входа (выхода) в вестибюль или в подуличный переход границу технической зоны принимают на расстоянии 15 м от него, но не далее начала проезжей части.
5.26.8 В местах устройства площадок для размещения элементов эскалатора и другого эксплуатационного оборудования у вестибюлей станций, демонтажных шахт, над водопроводными, тепловыми и кабельными вводами и т.п. границы технической зоны следует назначать в соответствии с технологией ремонтных работ.
Ширина проездов к месту ремонтных работ должна быть не менее 4 м.
5.26.9 Границу технической зоны для отдельно стоящих зданий производственного назначения принимают на расстоянии 7 м от наружного контура здания в плане.
5.26.10 Границу технической зоны вокруг вентиляционных киосков принимают на расстоянии 25 м от их наружного контура.
5.26.11 Ширину технической зоны за пределами ограждений наземных участков линий и других наземных сооружений для устройства проездов принимают не менее 4 м.
5.26.12 Охранные зоны следует предусматривать над:
- подземными станциями независимо от глубины их заложения и подуличными переходами;
- стволами вентиляционных и демонтажных шахт, устьями скважин и колодцами водоотливных и канализационных установок;
- участками примыкания водопроводных, тепловых и кабельных вводов к сооружениям метрополитена.
Границы охранных зон следует определять с учетом градостроительной и транспортной обстановки.
5.26.13 Расстояние между наружным контуром сооружения в плане и границей охранной зоны должно составлять, м, для:
а) станции, сооружаемой закрытым способом, - 5;
б) станции, сооружаемой открытым способом, - 10;
в) других сооружений мелкого заложения на уровне до 8 м включительно от поверхности земли - 10.
5.26.14 На территории города для проектируемых, строящихся и эксплуатируемых зданий и сооружений метрополитена следует устанавливать охранные зоны от воздействия факторов природного и техногенного характера: 100 м в обе стороны от внешнего контура.
6.1.1 Строительно-монтажные, в том числе подготовительные работы, должны начинаться после получения от технического заказчика разрешения на их выполнение.
6.1.2 На всех этапах строительства следует выполнять комплекс работ по геотехническому мониторингу (в том числе и для решения задач научно-технического сопровождения строительства (СП 22.13330) объектов и сооружений окружающей застройки. Организация выполняющая строительно-монтажные работы выполняет наблюдения за возможными деформациями строящегося сооружения с целью обеспечения качества готовой строительной продукции (СП 70.13330).
6.1.3 По завершении строительства объекта генеральный подрядчик обязан передавать заказчику техническую документацию согласно приложению И.
На всех этапах строительства, монтажа, наладки и испытания оборудования должны составляться акты выполненных работ. Примерные формы актов приведены в [17].
6.2.1 Объекты строительства метрополитена, связанные с ведением горнопроходческих и строительно-монтажных работ в подземных условиях, следует относить к категории опасных производственных объектов.
6.2.2 Проект производства работ (ППР) разрабатывается на основании ПОС строительной организацией или по ее заданию - проектной (проектно-технологической) организацией.
Отступления от утвержденных проектных решений без согласования с разработчиком документации и заказчиком не допускаются.
6.2.3 Проекты производства работ должны соответствовать СП 48.13330, СП 49.13330, СНиП 12-04 и правилам безопасности при строительстве метрополитенов.
Геодезические и маркшейдерские работы при строительстве проводятся в целях обеспечения исходными геодезическими и маркшейдерскими данными для точного перенесения проекта комплекса сооружений в натуру с точностью установленных допусков для достижения необходимого уровня качества строительной продукции и наблюдений за деформациями строящихся и существующих зданий, сооружений в зоне влияния строительства.
Геодезические и маркшейдерские работы при строительстве должны выполняться с учетом решения следующих задач:
- обеспечение ведения тоннелепроходческих работ;
- обеспечение контроля за соблюдением габаритов согласно ГОСТ 23961 и допустимых отклонений фактических размеров сборных и монолитных обделок тоннелей от проектного положения;
- обеспечение контроля точности геометрических параметров сооружений, который является обязательной составной частью производственного контроля качества, СП 70.13330;
- обеспечение точного сопряжения всех конструктивных элементов и подземных транспортных узлов.
"6.3.1.1 Опорное плановое и высотное геодезическое обоснование (ОПВГО) для строительства по предназначению является сетью геодезической разбивочной основы для строительства (ГРО) и создается до начала основных строительных работ [61].
6.3.1.2 Создаваемое плановое геодезическое обоснование должно обеспечивать требуемую точность сбоек встречных забоев и перенесение в натуру осей сооружений.
Наземная геодезическая разбивочная основа для строительства создается методом триангуляции или полигонометрии, ее заменяющей, I, II, III, IV (разряд тоннельной полигонометрии) [61].
Основная полигонометрия создается вдоль трассы системой замкнутых ходов. Пункты основной полигонометрии должны располагаться вне зоны возможных деформаций, но при возникновении деформаций эти знаки следует использовать с обязательным контролем. В некоторых случаях допускается локальное сгущение основной полигонометрии с длиной стороны не менее 100 м.
Сгущение пунктов опорного планового и высотного геодезического обоснования осуществляется методами основной и подходной полигонометрии или построением аналитической сети взамен основной полигонометрии [61].
Предельная средняя квадратическая ошибка m взаимного определения пунктов плановой сети, от которой осуществляется сбойка тоннеля, не должна превышать допусков: 25-28 мм или в относительной мере 1:35000 на 1 км хода независимо от того, как сооружается тоннель, - открытым или закрытым способом.
Наземное опорное плановое обоснование создается от опорных пунктов государственной геодезической сети в системе координат МСК-СРФ.
Опорное плановое геодезическое обоснование должно находиться под наблюдением (сохранность и устойчивость) и обновляться инструментально не реже двух раз в год (в весенний и осенне-зимний периоды). Предельная средняя квадратическая ошибка m взаимного определения пунктов планового обоснования, от которых осуществляется сбойка тоннеля, не должна превышать допусков: 25 мм или в относительной мере 1:35000 на 1 км хода независимо от того, как сооружается тоннель, - открытым или закрытым способом.
6.3.1.3 Для создания опорного планового геодезического обоснования (тоннельная триангуляция, полигонометрия взамен триангуляции, основная полигонометрия, аналитические сети взамен основной полигонометрии) следует применять технологию измерений с применением глобальной навигационной спутниковой системы (ГНСС) в системе координат МСК-СРФ с точностью согласно [61]. Сеть основной полигонометрии строится таким образом, чтобы расстояние между исходными пунктами спутниковой сети было не менее 800-1000 м.
При создании геодезического планового обоснования посредством ГНСС взаимная видимость между пунктами сети обязательна для использования ее при развитии планового обоснования низших классов.
Сеть измерений ГНСС создается на установленный период строительства с обязательными ежегодными повторными измерениями.
Точность определения взаимного планового положения пунктов при измерениях спутниковыми приемниками ГНСС должна соответствовать [61].
При проведении измерений с использованием спутниковых приемников ГНСС следует использовать дифференциальный метод определения координат.
6.3.1.4 Опорное плановое геодезическое обоснование создается в целях обеспечения исходными пунктами производства ориентирования подземных выработок, разбивочных работ и т.д. с требуемой точностью [61].
Опорное плановое обоснование методом подходной полигонометрии должно удовлетворять следующим требованиям:
- длина сторон подходной полигонометрии - 25-120 м;
- количество пунктов подходной полигонометрии должно обеспечивать выполнение работ, для которых она создается;
- относительная невязка хода не должна превышать 1:20000 [61];
- угловая невязка -
, где n - число углов;
- линейная невязка - 1:20000.
6.3.1.5 Опорное высотное геодезическое обоснование следует применять для перенесения проекта сооружения в натуру по высоте и подразделять на опорные сети и сети сгущения [61].
6.3.1.6 Опорное высотное обоснование следует создавать методом геометрического нивелирования класса II с обязательной привязкой к государственной нивелирной сети классов I и II [61]. Нивелирование класса II должно опираться на пункты городской сети (реперы городских геолого-геодезических служб) и выполняется по пунктам основной полигонометрии и пунктам городской сети в зоне выполнения системой замкнутых ходов. Его необходимо выполнять с применением наиболее совершенных инструмента и методов измерений, с возможно полным исключением систематических ошибок.
Невязки в полигонах и по линиям нивелирования класса II допускаются не более 5 мм √L, где L - периметр полигона или длина линии в километрах, либо 1,2 мм√n, где n - число штативов в ходе.
Для нивелирования класса II следует применять нивелиры и рейки, прошедшие метрологическую аттестацию. Его проводят с соблюдением установленных допусков.
Опорное высотное геодезическое обоснование следует создавать с допусками, км, не более:
- длина хода между исходными реперами - 2;
- то же, между узловыми реперами - 1;
- расстояние между реперами, м:
а) в сложных узлах строительства - 100;
б) для застроенных районов - 200;
в) для малозастроенных районов - 300.
6.3.1.7 Опорное высотное обоснование сгущения следует создавать в целях обеспечения высотными отметками зоны строительства с требуемой густотой и выполнять нивелированием класса III [61].
Нивелирование следует вести замкнутыми полигонами или вытянутыми ходами с их привязкой к реперам высшего класса с соблюдением допусков, установленных [61].
6.3.2.1 Для ориентирования опорного подземного планового и высотного обоснования дирекционные углы, координаты и высотные отметки передаются с поверхности земли в подземные выработки [61].
6.3.2.2 Передачу дирекционных углов следует вести гироскопическими приборами - гиротеодолитами, которые необходимо эталонировать не реже чем через 3 мес.
Ориентирование подземной полигонометрической сети включает:
- определение поправки гиротеодолита на стороне с известным дирекционным углом на поверхности земли;
- определение дирекционного угла ориентируемой стороны подземной полигонометрической сети;
- повторное определение поправки гиротеодолита на стороне с известным дирекционным углом.
Определение поправки гиротеодолита проводят одним пуском на каждый из двух гироблоков на двух смежных сторонах планового обоснования.
Длина стороны на поверхности для определения поправки - не менее 100 м. Расхождения между значениями поправок - не более 20" на каждый гироблок.
Длина ориентируемой стороны в подземной выработке - не менее 30 м.
Ориентирование гироскопическим методом следует производить:
- первый раз - когда забой находится от ствола в пределах от 50 до 60 м;
- второй раз - когда проходка по основной трассе достигает 100-150 м;
- третий раз - когда длина проходки по трассе глухим забоем достигает 500 м;
- после каждого очередного ориентирования (или передачи от наземного опорного планового и высотного геодезического обоснования) все измерения по опорному плановому и высотному подземному маркшейдерскому обоснованию повторяются вновь и проводятся необходимые вычисления;
- последующее гироскопическое ориентирование сторон опорного планового обоснования (подземной полигонометрии) следует проводить через 200 м при выходе на трассу тоннеля метрополитена подземного способа строительства на стороне полигонометрии не менее 100 м.
Ориентирование стороны подземной полигонометрической сети следует проводить двумя гироблоками.
Расхождение значений дирекционного угла подземной линии, определенной из нескольких ориентирований, - не более 20".
В определенный гиротеодолитом дирекционный угол нужно ввести поправку за сближение меридианов по формуле
, (6.1)
где Δy - в сотнях метров;
Δy-(Yопр-Yисх);
R - радиус Земли (6 371 км);
φ - широта места работы.
Точность определения Δy - 20 м.
Знак поправки определяется знаком Δy.
В формуле
обязательно соблюдать размерность Δy и R.
6.3.2.3 Передачу координат в подземные выработки следует осуществлять дважды независимыми наблюдателями разновременно через вертикальные стволы шахт с помощью лазерных приборов вертикального визирования или отвесов.
С пункта опорного планового обоснования сгущения приствольной (припортальной) точки ГНСС (подходной полигонометрии), расположенного вблизи ствола, определяются координаты точки, находящейся в стволе, и ее проекции в подземной выработке. Полученные на поверхности координаты проектируемой точки в подземной выработке принимаются за исходные.
Передачу координат и дирекционных углов через порталы следует выполнять методом полигонометрии при одинаковой температуре воздуха снаружи и в тоннеле.
При многоразовых передачах координат в тоннели значения координат знаков подземной полигонометрической сети необходимо уточнять при каждой новой передаче, а значения дирекционных углов - при каждом ориентировании.
Расхождения значений координат, полученных не менее чем из двух передач, - не более 15 мм.
6.3.2.4 Высотные отметки необходимо передавать дважды независимыми наблюдателями разновременно в подземные выработки от двух и более реперов на поверхности и не менее чем на два полигонометрических знака в тоннеле с помощью лазерной рулетки, металлической рулетки, светодальномера. Расхождения высотных отметок, полученных из двух и более передач, не должны превышать 6 мм на каждые 100 м. Передачу высотных отметок через штольни следует проводить методом геометрического нивелирования.
Передачу отметок через эскалаторные тоннели и наклонные штольни производят методом тригонометрического нивелирования с соблюдением установленных допусков.
Расхождения в отметках подземного репера, полученных из разных передач через штольни и наклонные выработки, допускаются не более ±2 мм√n, где n - число штативов.
6.3.3.1 Планово-высотная сеть в подземных выработках (тоннельная триангуляция, основная подземная полигонометрия) является основой для точного перенесения в натуру проекта всех тоннельных сооружений, выполняется во время проведения тоннелепроходческих работ и является обязанностью технического заказчика.
6.3.3.2 Развитие опорного планового и высотного маркшейдерского обоснования в подземных выработках осуществляется от исходных пунктов, полученных из ориентирований через вертикальную шахту, или путем непосредственного примыкания к пунктам опорного планового и высотного геодезического обоснования через порталы, штольни и наклонные выработки.
Подходная полигонометрия прокладывается в подходных выработках. Допускается длину стороны принимать до 10 м [61].
Опорное плановое маркшейдерское обоснование методом основной подземной полигонометрии следует прокладывать цепочкой треугольников. При невозможности выполнить обоснование цепочкой треугольников прокладывается вытянутый ход дважды независимыми наблюдателями и разновременно со следующими допусками:
а) относительная линейная ошибка в периметре хода - не выше 1:25 000 на 1 км для основных ходов;
б) средняя квадратическая ошибка измерения угла - 3".
Главный ход опорного планового маркшейдерского обоснования со сторонами 100-300 м следует прокладывать методом полигонометрии цепочкой треугольников по пунктам опорного планового и высотного маркшейдерского обоснования с привязкой к оси тоннеля (выбор пунктов главного хода зависит от длины односторонней проходки на сбойку).
Пункты подземной полигонометрии следует закладывать через 40-120 м по СП 122.13330, но не менее 18-20 знаков на 1 км хода, и закреплять в тоннелях в зависимости от вида обделки:
а) открытый способ строительства - металлический стержень в бетонном монолите со сферической головкой, в которой сверлом выполнено углубление, зачеканенное медью, бронзой или латунью. Стержни необходимо приварить к арматуре тоннельной обделки на расстоянии 250 мм от конструкции обделки на уровне путевого бетона;
б) закрытый способ строительства - сверлом выполнено углубление, зачеканенное медью, бронзой или латунью, на площадке, запиленной на ребре жесткости или борте блока тоннельной обделки на уровне головок рельсов пути.
Все пункты планово-высотной подземной сети следует нумеровать. Пунктам левого тоннеля даются нечетные номера, правого - четные.
Нумерация пунктов для всей сооружаемой трассы должна быть единой и не иметь повторений, а также иметь привязку к пикетажу (ПК).
Нумерация должна возрастать по ходу ПК.
6.3.3.3 Для соблюдения проектных уклонов и положения тоннеля в профиле необходимо по мере удаления забоя создавать опорное подземное маркшейдерское высотное обоснование методом геометрического нивелирования [61].
Опорное подземное высотное обоснование (геометрическое нивелирование) следует выполнять по знакам опорного планового маркшейдерского обоснования.
Передачу отметок на реперы к забою до сбойки следует выполнять геометрическим нивелированием класса III. Заключительное нивелирование после сбойки надлежит проводить в прямом и обратном направлениях методом нивелирования класса II с соблюдением допусков, установленных для нивелирования класса II:
а) невязки ходов, проложенных между реперами, отметки которых получены из передач через стволы шахт или вентиляционные скважины,
мм, где L' - длина нивелирного хода в подземных выработках, км; L - длина нивелирного хода на поверхности, км;
б) для ходов подземного нивелирования, связанных с поверхностью непосредственно (через порталы или штольни),
мм.
Камеральную обработку планового и высотного обоснования следует выполнять на ПК: до сбойки обрабатывать висячие ходы полигонометрической сети, после сбойки - проводить уравнивание сети с учетом соблюдения оптимальных габаритов сооружения; уравнивание нивелирных ходов до сбойки проводят, как для висячих, после сбойки - с учетом проектной документации укладки постоянного пути и фактического отклонения тоннеля от проектного положения.
Все пункты опорного планового и высотного подземного маркшейдерского обоснования следует нумеровать. Пунктам, расположенным в левом тоннеле по ходу пикетажа, необходимо присваивать нечетные номера, в правом тоннеле - четные.
Создание опорного планового и высотного геодезического и маркшейдерского обоснований строительства (ОПВГМО), являющегося сетью геодезической разбивочной основы (ГРО) для строительства, а также передача координат и высотных отметок на пункты подземного маркшейдерского обоснования и гироскопическое ориентирование должны представлять собой единый технологический процесс.
6.3.4.1 Геодезическое и маркшейдерское обеспечение строительно-монтажных работ (СМР) выполняют с целью перенесения проекта сооружений в натуру, строгого соблюдения установленных габаритов, точного ведения по проектной трассе проходческих механизмов, точного сопряжения сбоек тоннелей, других подземных сооружений и конструктивных элементов, производства съемочных работ, составления и пополнения графической документации, учета объемов основных строительных работ.
6.3.4.2 Рабочую планово-высотную сеть в подземных выработках следует создавать от пунктов основной подземной полигонометрии по мере удаления забоя на расстояние 150 м для определения положения проходческих механизмов, обеспечивающих сооружение обделок.
Рабочую подземную полигонометрическую сеть следует прокладывать со сторонами 25-50 м дважды. Длины линий следует измерять прямо и обратно, сходимость результатов измерений - ±3 мм.
Углы следует измерять тремя круговыми приемами с соблюдением допусков:
а) расхождение отсчетов на начальное направление при замыкании - 10";
б) колебание направлений, приведенных к нулю, - 15".
Рабочую сеть необходимо прокладывать цепочкой треугольников дважды независимыми наблюдателями и разновременно. Невязка в треугольнике - не более ±10"; расхождение между результатами измерений в углах - 10", в линиях - 3-5 мм.
Обработку сети следует вести как по коротким, так и по длинным сторонам треугольников.
В случае если длины сторон сети менее 25 м, следует разрабатывать специальные методы измерений.
Высотную сеть выполняют по пунктам полигонометрической сети методом нивелирования IV класса с соблюдением следующих допусков:
а) неравенство расстоянии от нивелира до реек на станции - не более 5 м, накопление их по секции - до 10 м;
б) невязка, полученная по линии нивелирования между исходными пунктами, - не более 20 мм √L, L - длина хода, км.
6.3.4.3 При строительстве сооружений открытым способом разбивочные работы по переносу в натуру осей сооружения и проектных привязок следует выполнять для следующих работ:
- крепления котлована;
- разработки грунта;
- бетонной подготовки;
- монтажа конструкций из сборного и монолитного железобетона;
- осей основных и вспомогательных сооружений, геометрически связанных с проектом трассы.
На основе проектных данных, координат и высотных отметок пунктов планово-высотной сети следует выполнять расчет разбивочных элементов для выноса проекта сооружений в натуру.
Разбивочные работы в плане допускается выполнять любым методом, обеспечивающим необходимую точность разбивки.
Разбивочные работы необходимо вести с допусками, мм:
|
- передача высотной отметки на дно котлована |
±10 |
|
- ограждающие котлован "стены в грунте" и свайное крепление |
от -50 до +150 |
|
- "стены в грунте" и свайное крепление на уровне дна котлована |
±150 |
|
- котлован в откосах |
±50 |
|
- ось котлована |
±10 |
При устройстве бетонной подготовки следует фиксировать ее верхний уровень с отклонением от проектного положения в профиле не более ±10 мм.
Проектные отметки для облицовки полов следует выносить инструментально с точностью ±3 мм.
Разбивки для опалубочных работ следует проводить от продольных и поперечных осей сооружения с запасом 20 мм в сторону увеличения размеров.
6.3.4.4 Для станций закрытого способа работ расчет разбивочных элементов следует выполнять так же, как и для станций открытого способа работ, с применением тех же геодезическо-маркшейдерских инструментов.
При сооружении станций оригинальной конструкции в проектной документации должны содержаться необходимые требования к геометрии сооружения и допускам.
6.3.4.5 При сооружении перегонных тоннелей из сборных обделок - тюбинговой чугунной, тюбинговой железобетонной и блочной железобетонной - все маркшейдерские работы по укладке колец обделки должны основываться на данных опорного планового и высотного маркшейдерского подземного обоснования.
На основании проектных данных, координат и высотных отметок подземного опорного планового и высотного маркшейдерского обоснования следует выполнять расчет разбивочных данных для выноса элементов тоннельных сооружений в натуру.
Для тоннеля из сборного железобетона кругового очертания допуски отклонений колец сохраняются те же, что и для чугунной обделки (приложение Ж).
6.3.4.6 При обеспечении строительства притоннельных сооружений следует применять технологию проведения маркшейдерских работ и допуски, предусмотренные для тоннелей закрытого способа работ.
6.3.4.7 При сооружении тоннелей щитовым способом в состав маркшейдерских работ входят:
- закрепление в пределах монтажной камеры проектной оси тоннеля, нормали к оси и отметок, необходимых для сооружения основания под щит и его монтажа;
- определение правильности геометрической формы основания под щит;
- определение правильности геометрических форм монтируемого щита: совмещение оси щита с осью тоннеля в плане, соответствие ее положения в профиле проектному положению, отсутствие поперечного уклона (крена), правильность продольного уклона, отсутствие эллиптичности щита;
- закрепление маркшейдерских знаков и приборов на щите;
- закрепление сзади щита ориентирных сигналов для ведения его по проектной оси в плане и профиле;
- ведение щита в процессе проходки по трассе;
- определение положения щита в плане и профиле после каждого продвига;
- определение положения колец обделки после окончания укладки.
Для выполнения монтажных работ по сборке щита в камере необходимы следующие маркшейдерские данные:
- проектная продольная ось щита (тоннеля), закрепляемая в своде камеры тремя и более точками;
- нормаль к продольной оси щита (тоннеля);
- отметка условного горизонта, связанная с проектным центром щита.
При этом следует учитывать, что проектная отметка центра щита больше проектной отметки центра тоннеля на величину полуразности диаметров внутренней поверхности оболочки щита и внешней окружности кольца.
Первые три сегмента щита должны устанавливаться с участием маркшейдера с точностью в плане и по высоте не более ±10 мм, не допуская кручения.
После окончания монтажа щита следует проводить продольную и радиальную съемку, в результате которой определяются:
- длина ножевого кольца щита;
- длина опорного кольца щита (или длина нижней части опорного кольца, если оно монолитно объединяет оба кольца);
- длина оболочки щита (от опорного кольца до хвоста щита);
- по четыре диаметра: ножевой части, задней плоскости опорного кольца и хвоста оболочки щита.
Уклонения середины щита от проектного направления трассы в плане и профиле не должны превышать ±50 мм. Учитывая процесс вертикальной осадки колец тоннельной обделки по выходе из оболочки, необходимо вести щит в профиле выше проектной отметки на 2-3 см. Этот размер может изменяться на основании опыта проходки в данных геологических условиях.
Для определения положения щита в плане и профиле следует использовать лазерный задатчик направления, оптический щитовой прибор, нивелир или прибор автоматического ведения щита.
Сведения о величине кручения щита следует использовать для вычисления поправки в положение ножа и хвоста.
6.3.4.8 До начала сооружения эскалаторного тоннеля и наземного вестибюля на поверхности земли создается плановая и высотная геодезическая основа, обеспечивающая сбойку эскалаторного тоннеля со средним станционным тоннелем или другими подземными сооружениями. Точность опорного планового и высотного геодезического обоснования должна соответствовать 6.3.1.
6.3.4.9 Для маркшейдерского обеспечения проходки эскалаторного тоннеля строго по его оси следует закладывать маркшейдерский столик, удовлетворяющий следующим требованиям:
- конструкция столика должна быть жесткой, изолированной от площадки наблюдателя и окружающих механизмов;
- визирная ось теодолита или лазерного задатчика направления, установленного на столике, должна совпадать с проектной осью тоннеля;
- со столика должна быть обеспечена видимость на три удаленные не менее чем на 50 м точки, одна из которых фиксирует направление оси тоннеля, а остальные являются контрольными. Должна быть также обеспечена постоянная видимость по проектной оси тоннеля;
- центр столика (проекция точки пересечения визирной и горизонтальной осей трубы) и места постановки подъемных винтов теодолита должны быть накернены на плите столика.
Столик надлежит оборудовать телефонной связью и световой сигнализацией для передачи указаний в забой.
6.3.4.10 При закладке первого кольца эскалаторного тоннеля следует учитывать набегание колец (удлинение тоннеля) из расчета 1 мм на кольцо, если оно не учтено в проектной документации.
При укладке сегментов первого кольца проверку его установки выполняют измерением восьми радиусов от проектного центра кольца. Измерения следует проводить до центров болтовых отверстий передней плоскости кольца.
6.3.4.11 При бетонировании фундаментов под эскалаторы выноску отметок для установки поперечных элементов конструкций следует проводить с занижением на 10 мм относительно проектной наклонной базы эскалаторов.
Фундаменты под эскалаторы необходимо сооружать с точностью: в плане ±20 мм, в профиле от 0 до минус 20 мм. Уровень наклонной базы следует закреплять на обеих сторонах тоннеля с точностью ±20".
Перед началом работ по монтажу эскалаторов следует выполнять контрольные промеры расстояния между верхней и нижней вертикальными базами по обеим сторонам эскалаторного тоннеля.
Необходимо также выполнить высотную связку верхней и нижней вертикальных баз.
Выноску отметок для установки продольных элементов конструкций эскалаторов выполняют с занижением на 10 мм относительно проектной наклонной базы с точностью ±5 мм. Выноску осей продольных элементов конструкций эскалаторов в плане осуществляют с точностью ±5 мм.
Выноски для установки реборд верхних направляющих ступеней эскалаторов следует выполнять в плане симметрично относительно осей эскалаторов с точностью ±1 мм.
Отклонение от перпендикулярности вынесенных поперечных и продольных осей в начале и в конце эскалаторов должно быть не более ±30", а монтажных струн в средней части - не более ±10".
Отклонения направляющих наклонных ферм эскалаторов допускаются в плане и по высоте не более 2 мм.
Отклонения при разбивке мест для установки анкерных болтов в фундаментах приводных и натяжных зон эскалаторов в плане и по высоте должны быть не более ±10 мм.
6.3.4.12 Для обеспечения проходки вертикальных стволов шахт следует выполнять разбивку центра ствола по привязкам от ситуации местности по плану в масштабе 1:500 или координатам согласно проектной документации.
Способ закрепления осей опускной крепи ствола на местности должен обеспечить возможность проверки их положения в любой момент погружения крепи. Реперы для контроля вертикальных отметок следует устанавливать за пределами возможных осадок и перемещений грунта.
Координаты вынесенного центра ствола необходимо определять с двух и более пунктов полигонометрической сети полярным способом. Фактически полученные координаты сообщают проектной организации для корректировки, при необходимости, проектной документации.
Разбивку осей ствола проводят с точностью ±10 мм.
При сооружении форшахты кружала устанавливают с точностью ±30 мм от закрепленных осей и центра ствола.
Съемку поперечных сечений ствола проводят через 5 м.
6.3.4.13 После проходки ствола до проектной отметки следует выполнять передачу отметки с поверхности. Расхождение значений отметок, полученных из передач при разных горизонтах или разных положений рулетки, не более ±4 мм. Расхождения значений отметок по разновременным передачам - не более ±7 мм.
6.3.4.14 Обеспечение установки расстрелов и направляющих в стволе следует проводить от закрепленных осей с использованием отвесов.
Максимальное отклонение любой плоскости деревянных брусьев для направляющих клети ±5 мм, для вертикальных направляющих - не более ±10 мм.
6.3.4.15 Высотные отметки на околоствольные выработки и сооружения следует передавать от приствольного репера при помощи нивелира.
Разбивку осей околоствольных выработок выполняют от геодезической основы. Продольную ось закрепляют через 5 м в плане и по высоте с точностью 5 мм.
6.3.4.16 Исполнительную съемку сооружений следует проводить по мере их строительства. Окончательная съемка колец тоннельной обделки проводится после выхода колец из технологической тележки щита или из зоны монтажа (горный способ работ). Съемку сечений сооружения необходимо выполнять на прямых участках через 10 м, на кривых - через 5 м, а также в наиболее характерных местах, необходимых для выполнения исполнительных чертежей. Помимо съемки сечений следует проводить продольное нивелирование лотка и свода тоннеля.
6.3.5.1 Обеспечение работ по укладке пути следует выполнять после проведения контрольного нагнетания в тоннелях закрытого способа работ и окончания засыпки тоннелей открытого способа работ до проектных отметок и стабилизации осадочных деформаций конструкций тоннелей.
При этом необходимо выполнить окончательные (повторные) измерения в подземном опорном плановом и высотном маркшейдерском обосновании по всей трассе тоннеля, провести их окончательное уравнивание и выполнить окончательную съемку внутренних очертаний построенных подземных сооружений от проектной оси тоннеля и оси пути (тоннелей, станционных комплексов). По результатам съемки определяют соответствие построенных конструкций габаритным условиям и подтверждают возможность укладки запроектированного постоянного пути, или, в случае несоответствия габаритных условий, эти материалы используют для внесения необходимых изменений в геометрическую схему и профиль трассы.
6.3.5.2 На основании проектных данных, координат и высотных отметок подземной планово-высотной сети необходимо вычислять геометрические параметры для:
- разбивки и закрепления горизонта, фиксирующего верхний уровень нижнего строения пути;
- установки опалубки дренажных лотков тоннеля;
- разбивки и закрепления основных точек пути, характеризующих его план и профиль;
- разбивки и закрепления мест установки путейских реперов, съемки установленных реперов по пикетам и высоте. Отклонения реперов от проектного пикетажа не должны превышать ±3 см, фактических отметок ±2 мм. По окончании установки реперов по высоте следует произвести их двукратное контрольное нивелирование, после чего болты реперов закрепляют путем бетонирования;
- вычисления расстояний от путейских реперов до внутренней грани ближайшего к реперу рельса;
- рихтовки пути перед бетонированием и наблюдений за путями в процессе бетонирования;
- детальной съемки пути;
- окончательного нивелирования головок рельсов после завершения "отделки" и обкатки пути и определения отметок дна дренажного лотка.
6.3.5.3 Допуски после окончательной рихтовки пути должны соответствовать приложению Ж.
6.3.6.1 Для обнаружения возможных осадок зданий, находящихся в мульде сдвижений земной поверхности в зоне строительства, и выявления их динамики и закладывать наблюдательные станции.
Требования к обследованию зданий и сооружений и к наблюдениям за деформациями на поверхности должны соответствовать требованиям пункта 5.18.3, включая определение внешних границ мульды сдвижения.
6.3.6.2 На наблюдательных станциях с периодичностью, обусловленной проявляющимися осадками, следует осуществлять нивелирование и координирование деформационных реперов.
Наблюдения за осадками и горизонтальными перемещениями зданий и сооружений следует выполнять в следующей последовательности:
- разрабатывать проект наблюдательной станции с указанием на плане масштаба 1:500 мульды сдвижений земной поверхности, равной по ширине удвоенной глубине заложения тоннеля и располагаемой по обе стороны от краев подземных выработок;
- на местности проводить рекогносцировку и отмечать места закладки опорных и деформационных реперов. На зданиях реперы закладывать на одинаковой высоте от поверхности земли через 15-20 м и обязательно на углах зданий и характерных выступах;
- выполнять нивелирование II класса по опорным реперам и III класса - по деформационным реперам, невязки в сетях нивелирования не должны превышать: для II класса ±5 мм √L, для III класса ±10 мм √L, где L - длина хода в км. При наличии в ходе или полигоне более 16 штативов на 1 км хода невязка не должна превышать: для II класса ±1,2 мм √n, для III класса ±2,5 мм √n, где n - число штативов в ходе;
- выполнять наблюдения за горизонтальными перемещениями методами створных наблюдений, отдельных направлений и полигонометрии. Методы измерения горизонтальных перемещений должны приниматься в зависимости от классов точности измерения, целесообразных для данного метода по ГОСТ 24846;
- составлять ведомости отметок и горизонтальных перемещений деформационных реперов. Проявление осадок устанавливается, если разность отметок одноименных реперов, полученных из разных циклов, превышает ±2 мм. Проявление горизонтальных перемещений устанавливается, если разность из двух циклов измерений превышает ±5 мм.
6.3.6.3 Для наблюдения за деформацией подземных сооружений (значимых коммуникаций, коллекторов, действующих сооружений метрополитена), попадающих в зону влияния строительства, в процессе строительства следует разрабатывать проект и закладывать наблюдательные станции.
В подземных сооружениях кругового очертания следует выполнять:
- прокладку основной подземной полигонометрии пунктов для получения планового положения полигонометрических пунктов. Углы следует измерять тремя приемами. Расхождения между приемами измерений - 8";
- нивелирование лотка по методике нивелирования класса II, точность 0,5 мм√n, каждое десятое кольцо на прямой, каждое пятое - на кривой;
- нивелирование свода по методике нивелирования класса III, точность 2,5 мм√n, каждое десятое кольцо на прямой, каждое пятое - на кривой;
- измерение диаметров каждого пятого кольца (два наклонных и один горизонтальный). Ошибка в измерении диаметров не должна превышать ±10 мм;
- нивелирование свода каждого пятого кольца. Ошибка в определении отметки свода не должна превышать ±5 мм;
- измерение расстояния от створной линии до внутренней грани обделки на горизонтальном диаметре (домера) через 5 м c точностью ±5 мм.
6.3.6.4 В подземных сооружениях прямоугольного очертания следует выполнять:
- прокладку ходов для получения планового положения полигонометрических пунктов. Углы измеряют тремя приемами. Расхождения между приемами измерений - 8";
- прокладку нивелирных ходов по полигонометрическим пунктам в прямом и обратном направлениях. Невязки в ходах и сетях нивелирования не должны превышать 2,5 мм√n, где n - число штативов;
- нивелирование лотка по методике нивелирования класса II, точность 0,5 мм√n;
- нивелирование перекрытия тоннеля через 5 м по методике нивелирования класса III, точность 2,5 мм√n;
- измерение горизонтальных размеров через 5 м на высоте 1,2 м от верха основания с точностью ±10 мм;
- определение отклонений от вертикальности стеновых блоков обделки;
- измерение расстояния от створной линии до ближайшей внутренней части обделки через 5 м на высоте 1,2 м от верха основания с точностью ±5 мм.
На основании анализа результатов динамики изменения углов, отметок свода и полигонометрических пунктов, эллиптичности колец и домеров делается вывод о деформации подземных сооружений.
6.3.6.5 Все линейные измерения при наблюдениях за деформациями подземных сооружений рекомендуется выполнять ручным лазерным дальномером.
Исполнительная маркшейдерская документация составляется для сдачи готовых сооружений в постоянную эксплуатацию. На исполнительных чертежах должны полностью отражаться конструкция построенных сооружений и детали сложных узлов конструктивных сопряжений. Перечень исполнительных чертежей приведен в таблице 6.1.
Таблица 6.1
|
Перечень чертежей |
Масштаб: (г) - горизонтальный, (в) - вертикальный |
|
Трасса линии: | |
|
исполнительный план и профиль с геологическим разрезом |
(г) 1:5 000, (в) 1:500 |
|
план поверхности земли и подземных сооружений |
1:500 |
|
геодезическо-маркшейдерская основа |
- |
|
каталог путейских реперов |
- |
|
Станции: | |
|
а) платформенная часть: | |
|
план |
1:200 |
|
продольные профили путевых тоннелей |
(г) 1:200, (в) 1:100 |
|
продольный разрез по оси среднего тоннеля |
1:100 или 1:200 |
|
план служебных помещений |
1:100 или 1:200 |
|
то же, поперечные сечения |
1:100 или 1:50 |
|
продольные разрезы служебных помещений |
1:100 или 1:200 |
|
то же, поперечные сечения |
1:100 или 1:200 |
|
б) вестибюль: | |
|
поэтажные планы |
1:100 |
|
продольный разрез |
1:100 |
|
поперечный разрез |
1:100 |
|
в) эскалаторный тоннель: | |
|
план |
1:100 или 1:200 |
|
продольный разрез |
1:100 или 1:200 |
|
поперечные сечения |
1:50 |
|
Перегонные тоннели: | |
|
планы |
1:200 или 1:500 |
|
продольные профили |
(г) 1:200 или 1:500, (в) 1:100 или 1:200 |
|
поперечные сечения с таблицей сечений |
1:50 |
|
продольные разрезы служебных помещений |
1:100 или 1:200 |
|
то же, поперечные сечения |
1:50 или 1:100 |
|
планы присоединения скважин к городским коммуникациям |
1:500 |
|
то же, продольные профили |
(г) 1:500, (в) 1:100 |
|
Стволы шахт, околоствольные сооружения и выработки: | |
|
вертикальные разрезы ствола шахты |
1:200 или 1:100 |
|
то же, поперечные сечения |
1:50 |
|
планы околоствольных сооружений и выработок |
1:100 или 1:200 |
|
то же, продольные разрезы |
1:100 или 1:200 |
|
" , поперечные сечения |
1:50 |
|
Открытый участок линии: | |
|
план станции |
1:200 |
|
план перегона |
1:500 |
|
продольный профиль перегона |
(г) - 1:500, (в) - 1:200 |
|
то же, станции |
1:100 или 1:200 |
|
поперечные сечения перегона |
1:100 или 1:50 |
|
то же, станции |
1:100 или 1:50 |
|
Электродепо и городские подземные коммуникации: | |
|
план территории электродепо |
1:500 |
|
то же, продольный профиль земляного полотна |
(г) 1:500, (в) 1:100 |
|
" , поперечные разрезы |
1:100 или 1:200 |
|
продольные профили городских подземных коммуникаций |
(г) 1:500, (в) 1:100 |
6.4.1.1 Состав и объем работ по инженерно-геологическому обеспечению следует проводить по техническому заданию заказчика.
6.4.1.2 Инженерно-геологическое обеспечение строительства выработок с применением тоннелепроходческих комплексов с пригрузом забоя (бентонитовым, грунтовым) следует выполнять по программам, соответствующим конкретному виду комплекса.
6.4.1.3 При выявлении несоответствия между фактическими и отраженными в проектной документации инженерно-геологическими условиями необходимо ставить в известность об этом заказчика, строительную и проектную организации.
6.4.1.4 При необходимости уточнения инженерно-геологических условий следует проводить дополнительные изыскания и исследования.
Дополнительные изыскания и исследования следует выполнять, если при проходке выработок возникают следующие непредвиденные в проекте проблемы:
- несоответствие физико-механических свойств грунтов в забое параметрам свойств, принятым в проектной документации;
- наличие газопроявлений, а также загрязнений грунтов химическими продуктами;
- развитие горного давления и деформаций поверхности, превышающих их проектные величины, а также другие негативные процессы.
6.4.1.5 При выявлении в забое опасных инженерно-геологических условий работы необходимо останавливать, сообщать об этом руководителю горно-проходческих работ и вносить записи об этом в журнал авторского надзора.
В дальнейшем степень предполагаемой опасности и риска следует оценивать с участием представителей заказчика, строительной и проектной организаций и руководителя группы инженерно-геологического обеспечения.
6.4.2.1 В состав инженерно-геологических работ входят:
- систематическое описание грунтов в забое, своде и стенах выработки;
- оценка прочности и устойчивости грунтов;
- проверка соответствия инженерно-геологических условий и расчетных показателей физико-механических свойств грунтов, принятых в проектной документации, фактическим данным, выявленным во время проведения строительных работ;
- оценка устойчивости грунтов в забое и ее прогноз для участков предстоящих горно-проходческих работ;
- изучение тектонических зон, трещиноватости, блочности, закарстованности и других участков ослабленных пород и учета их влияния на устойчивость грунтов в забое;
- определение категорий грунтов по разрабатываемости;
- определение величины водопритока в выработку.
6.4.2.2 В программе инженерно-геологического обеспечения работ следует отражать периодичность осмотра забоев, обеспечивающую необходимую степень детальности документации по выработкам в зависимости от изменчивости и сложности инженерно-геологических условий.
6.4.2.3 Результаты наблюдений, зарисовок и описаний в забоях следует заносить в стандартные бланки, на основании которых, по мере проходки, составляется продольный геологический профиль.
6.4.2.4 При составлении инженерно-геологической документации необходимо оценивать степень трещиноватости в забое по таблице 6.2, определять устойчивость лба забоя, кровли и боковых стен выработки; фиксировать проявления горного давления, наличие вывалов и внегабаритных переборов грунта; отмечать особенности принятого способа проходки выработки, его влияние на состояние грунтов и их устойчивость, скорость проходки и проявление процессов, отрицательно влияющих на несущую способность постоянной обделки тоннеля.
Таблица 6.2
|
Степень трещиноватости |
Число трещин |
Характеристика |
|
Нетрещиноватые |
Отсутствуют |
Видимые трещины на поверхности забоя и призабойной части стен отсутствуют. Грунты разбиты на крупные блоки объемом 10 м3 |
|
Слаботрещиноватые |
1-2 |
Среднее расстояние между трещинами различных систем 0,7 м и более. Объем блоков грунта, отделяемых пересекающимися трещинами, - 0,5-6,0 м3 |
|
Трещиноватые |
3-5 |
Среднее расстояние между трещинами различных систем 0,2-0,7 м и более. Объем блоков грунта, отделяемых пересекающимися трещинами, - 0,1-0,5 м3 |
|
Сильнотрещиноватые |
6-30 |
Расстояние между трещинами 0,2-0,05 м. Объем блока грунта - 0,001-0,1 м3 |
|
Раздробленные |
Свыше 30 |
Трещины образуют на обнажении частую сетку. Грунты раздроблены до щебня и дресвы |
|
Примечания 1 Число трещин определяется на двух перпендикулярных плоскостях (например, забой и стена) на длине, превышающей среднее расстояние между трещинами в 8-10 раз. Учитываются трещины всех систем, независимо от их раскрытия и заполнения вторичными образованиями. 2 Категория грунтов по трудности разработки определяется в целом для всей массы разрабатываемых грунтов в забое. При наличии двух-трех различных групп грунтов дается и соотношение их категорий в процентах площади забоя. | ||
Устойчивость грунтов в выработке возможно ориентировочно оценивать в соответствии с классификацией согласно таблице 6.3. Необходимо составлять местные классификации по устойчивости грунтов применительно к конкретным инженерно-геологическим условиям с учетом принятых в проекте способов производства работ и площади забоя.
Таблица 6.3
|
Степень устойчивости грунтов в забое |
Грунты |
Инженерно-геологические критерии | |
|
Устойчивые |
Скальные |
Массивные от очень прочных до малопрочных; трещиноватые и слаботрещиноватые, трещины закрыты или зацементированы вторичными материалами без следов подвижек. Тектонические нарушения отсутствуют. Крепеж отсутствует или слабый | |
|
Глинистые |
Твердые, полутвердые однородные без нарушений сплошности. Водопроявление отсутствует | ||
|
Средней устойчивости |
Скальные |
Массивные или толстослоистые от очень прочных до малопрочных; трещиноватые, но с благоприятным расположением трещин. Тектонические нарушения выражены слабо. Возможен слабый капеж | |
|
Глинистые |
Полутвердые и тугопластичные ненабухающие | ||
|
Слабой устойчивости |
Скальные |
Толсто-, тонко- и микрослоистые любой прочности; трещиноватые и сильнотрещиноватые с неблагоприятным расположением трещин. Трещины открытые или с глинистым заполнителем. Значительные тектонические нарушения. Кливаж. Водопроявления в виде сильного капежа и струй | |
|
Глинистые |
Туго- и мягкопластичные. Показатель текучести во времени увеличивается. Быстроразмокаемые или набухающие. Возможен капеж | ||
|
Песчаные |
Неводоносные | ||
|
Совершенно неустойчивые |
Скальные |
Весьма низкой прочности сильнотрещиноватые или раздробленные. Трещины открытые. Сильные тектонические нарушения. Обычно водообильные | |
|
Глинистые |
Текучепластичные и текучие. Набухающие | ||
|
Песчаные |
Водоносные | ||
|
Примечания 1 Под устойчивостью грунтов понимают их способность сохранять в забое (в данных инженерно-геологических условиях, при данном способе горно-проходческих работ и конкретной площади забоя) состояние равновесия без каких-либо явных деформаций в течение времени, необходимого для установки крепления. 2 В случае залегания в своде выработки грунтов слабой устойчивости или совершенно неустойчивых соответственно характеризуются и грунты в пределах забоя. 3 Степень устойчивости грунтов может определяться в зависимости от конкретных условий как одним критерием, так и их комплексом. | |||
6.4.2.5 Проявление горного давления в своде, стенах или лотке выработки следует устанавливать на основании маркшейдерских данных, осмотра обделки и видимых деформаций обнаженных поверхностей породы. При составлении документации вывалов и обрушений надлежит выполнять их зарисовку, указывать их местоположение, линейные размеры в плане и профиле, примерный объем, время сохранения устойчивости от момента проходки, наличие или отсутствие крепи, деформацию крепи и предполагаемые причины обрушения или вывала.
6.4.2.6 В процессе строительства следует осуществлять мониторинг для уточнения и прогнозирования инженерно-геологических условий.
За основу прогноза принимаются данные инженерно-геологических изысканий для проектирования с их дополнением и конкретизацией на основании текущей информации, полученной при составлении документации выработок. При прогнозе целесообразно использовать метод инженерно-геологической аналогии, а также уточнение свойств грунта впереди забоя геофизическими методами. В качестве объекта-аналога должны быть приняты уже сооруженные участки данной или других линий с несомненным геологическим подобием и с аналогичными конструктивными и технологическими решениями.
6.4.2.7 При гидрогеологических наблюдениях, являющихся частью инженерно-геологических работ в выработках, следует определять величину водопритока в забои, проводить замеры температуры воды и отбор ее проб на химический анализ.
Исходя из фактических водопритоков и данных гидрогеологического мониторинга следует корректировать приведенные в проектной документации величины водопритоков на пройденных участках тоннелей и на участках предстоящей проходки.
Характеристика водопроявлений в выработках приведена в таблице 6.4.
Таблица 6.4
|
Характер водопроявления |
Визуальная характеристика |
Приток воды в забой, м3/ч |
|
Грунты сухие и влажные |
Грунты в забое воздушно-сухие или влажные. Проявления воды отсутствуют |
Нет |
|
Капеж слабый |
По забою или со свода капает вода. Образование капель и их отрыв легко проследить глазами. Количество падающих капель незначительное, источником капежа служат пористость породы и отдельные трещины |
0,01-0,5 |
|
Капеж сильный |
Капли падают часто. Образование капли и ее отрыв происходят быстро и с трудом просматриваются. Источником капежа служит система трещин |
0,5-1 |
|
Капеж прерывистыми струями |
Из забоя, свода и стен выработки вода поступает очень частыми каплями, сливающимися в струйку. Впечатление сильного дождя. Источником поступления воды служат открытые трещины и каверны |
1-5 |
|
Приток воды сплошными струями |
По забою и стенам выработки обильно струится вода. Из свода вода поступает сплошными струями. Впечатление ливневого дождя или душа. Напор воды при истечении не заметен. Источником поступления воды служат открытые трещины и каверны |
До 50 |
|
Сосредоточенный выход воды |
Вода поступает сильными струями под напором из каверн, крупных открытых трещин или карстовых полостей |
Более 50 |
При описании характера обводненности необходимо отмечать протяженность участков с водопроявлениями, места поступления воды (трещина, контакт пород), наличие напора, количество взвешенных частиц.
Величину притока воды в выработку следует определять два раза в месяц с использованием мерных сосудов, водосливов, водомеров или на основании замера водопритока в водоприемник водоотливной насосной установки при временном прекращении откачки.
6.4.2.8 Пробы воды для химических исследований ее состава и агрессивности следует отбирать:
- с участков выхода подземных вод для контроля за изменением их химического состава, содержанием взвешенных веществ - не реже одного раза в квартал;
- при вскрытии горной выработкой нового горизонта подземных вод;
- в местах течей через бетонную обделку для выявления степени агрессивности воды по отношению к бетону.
6.4.3.1 В состав работ входят составление инженерно-геологической документации на котлованы и стационарные наблюдения за устойчивостью стен и откосов, режимом подземных вод, изменениями свойств грунтов в основании и стенах котлована.
Документацию котлованов надлежит вести нарастающей зарисовкой стен, откосов, берм и дна и подробно описывать:
- состояние откосов - высоту, углы откосов, вид временного крепления котлована и его состояние во время осмотра, наличие инженерно-геологических процессов (промоины, оплывины, осыпи, обрушения, суффозия);
- состояние дна котлована с оценкой несущей способности грунтов;
- выходы подземных вод.
При применении открытого водоотлива указывают количество откачиваемой воды, ее температуру, наличие в воде взвешенных частиц.
6.4.3.2 При раскрытии котлована до проектной отметки по вызову строителей необходимо выполнить освидетельствование и приемку грунтового основания под строительные конструкции. В акте приемки отражают характеристику грунтов в основании и условное расчетное давление на эти грунты.
6.4.3.3 Стационарные наблюдения (мониторинг) за состоянием котлована следует проводить путем периодического обследования определенных участков временного крепления стен, откосов и дна с целью выявления факторов (геологических, гидрогеологических, горно-технических и др.), снижающих устойчивость крепления, пород в откосах и дне котлована во время выполнения работ.
В процессе обследований необходимо:
- замерять углы откосов котлована в различных пунктах и в разных грунтах, отмечать скорость и причины выполаживания откосов до приобретения ими устойчивого состояния, устанавливать зависимость углов откоса от состояния грунтов, их консистенции, плотности и высоты откоса;
- замерять смещения, фиксировать вид и состояние временного крепления стен котлована, характер его деформаций (обрушение, выпирание, поломка и крен), оценивать опасность замеченных нарушений крепи и ставить об этом в известность администрацию участка строительства;
- отмечать изменение гидрогеологической обстановки в котловане: появление и исчезновение родников, высачивание воды в откосах, развитие суффозии;
- отбирать образцы грунта для лабораторных исследований в случае расхождения фактических данных с проектными. При поступлении в котлован грунтовых вод следует отбирать их на химический анализ.
6.4.4.1 В зоне влияния подземного строительства (см. 5.18.3) необходимо проводить геотехнический мониторинг в соответствии с проектом мониторинга (наблюдательной станции), а также локальный мониторинг компонентов окружающей среды, в том числе организовывать наблюдения за развитием опасных геологических и гидрогеологических процессов.
6.4.4.2 Для осуществления мониторинга следует предусматривать:
- геодезического - устройство сети поверхностных реперов;
- контроля напряженно-деформированного состояния системы "обделка - вмещающий массив" в составе: контроль напряженно-деформированного состояния обделки, контроль качества заполнения заобделочного пространства, контроль качества закрепления грунтов и выполнения ограждающих конструкций - системы датчиков напряжений и деформаций, геофизические исследования;
- гидрогеологического - гидронаблюдательные скважины.
6.4.4.3 Результаты мониторинга должны использоваться для своевременного определения развития негативных инженерно-геологических процессов под влиянием строительства и определения мероприятий для их предотвращения.
6.4.5.1 В процессе первичной камеральной обработки материалов наблюдений необходимо выполнять ежедневный перенос черновых записей, сделанных в горных выработках, в журналы и бланки инженерно-геологической документации или в электронный формат, являющиеся основными документами для последующей окончательной обработки результатов наблюдений.
При окончательной обработке материалов все наблюдения и анализы следует обобщать и включать в отчет, содержащий:
- исполнительные инженерно-геологические разрезы;
- сводные ведомости анализов и испытаний грунтов и подземных вод;
- пояснительную записку.
6.4.5.2 Исполнительные инженерно-геологические разрезы следует составлять для тоннелей первого пути или, при различии их геологического строения, для тоннелей первого и второго путей на всю длину участка, сдаваемого в эксплуатацию, с использованием данных изысканий и наблюдений в период строительства.
Разрезы по тоннелям следует составлять от поверхности земли до глубины, превышающей на 10-15 м глубину лотка тоннелей. Масштаб разрезов горизонтальный - 1:2000, вертикальный - 1:200 (1:100).
На разрезах необходимо отражать все сведения, собранные во время изысканий и строительства: характеристика грунтов, их устойчивость, тип обделки, водопроявления, негативные инженерно-геологические процессы и другие.
Разрезы стволов шахт и эскалаторных тоннелей следует составлять в вертикальном масштабе 1:200-1:50 с указанием водопритоков, типов обделки, нумерации колец, границ распространения замороженных грунтов и физико-механических свойств грунтов.
Разрезы по котлованам станций составляют в масштабе 1:2000 или 1:500.
6.4.5.3 Сводные ведомости должны содержать характеристику свойств грунтов отобранных как из выработок при строительстве, так и из разведочных выработок, пройденных по трассе в процессе изысканий.
На основании сводных ведомостей проводят статистическую обработку показателей свойств всех видов грунтов.
Для каждого водоносного горизонта следует составлять сводные ведомости химического состава подземных вод с обобщением данных по агрессивности воды к бетону.
6.4.5.4 Отчет, включая исполнительные инженерно-геологические разрезы, передается строительной организации и заказчику для предъявления их при сдаче строительного объекта приемочной комиссии.
6.5.1.1 Строительство объектов метрополитена открытым способом работ следует предусматривать в котлованах с креплением или в естественных откосах. Обоснование принятого метода работ, организация строительства временных и постоянных сооружений, тип применяемых машин и оборудования определяются в ПОС.
6.5.1.2 Организационно-технологическая подготовка строительства должна выполняться в соответствии с СП 48.13330.
Разработку генерального плана стройплощадки следует выполнять с учетом требований [88].
6.5.1.3 Требования к сооружению подкрановых путей приведены в [33] и [47].
6.5.2.1 При незначительных глубинах, на свободных от существующей застройки территориях, котлованы разрабатываются в естественных откосах согласно требованиям СП 45.13330.
6.5.2.2 При строительстве в условиях плотной городской застройки, в том числе при наличии инженерных коммуникаций, крепление стен котлована следует выполнять с устройством ограждающих стен:
- из свай: металлических профильных или трубчатых, погружаемых непосредственно в грунт или в предварительно пробуренные скважины; буроинъекционных; железобетонных буронабивных, прерывистого, касательного или секущего расположения;
- из шпунта;
- сплошных железобетонных, выполненных по технологии траншейных стен в грунте [79];
- выполненных с использованием укрепления прилегающего грунтового массива (нагельное крепление, цементация, термоукрепление, замораживание и пр.).
6.5.2.3 Расчет параметров конструкции крепления котлованов включает: тип и заглубление ограждения; число и расположение ярусов крепления; шаг крепления в ярусе; диаметр расстрелов или подкосов из труб; тип тяги, длину и величину предварительного натяжения анкеров. Методы расчета данных параметров по методикам и геотехническим программам приведены в [7], [37].
6.5.2.4 Разработку в нижней части котлована песков или связных грунтов, изменяющих свои свойства под влиянием воды (после водопонижения) и атмосферных воздействий, надлежит выполнять с недобором грунта до проектных отметок, оставляя защитный слой высотой не менее 0,3 м, с устройством временного водоотвода.
Удаление защитного слоя выполняют непосредственно перед устройством щебеночной подготовки захватками, размеры которых должны исключить затопление или промерзание подготовленного основания до укладки и уплотнения щебеночной подготовки.
6.5.2.5 В котлованах с основанием из обводненных мелких и пылеватых песков или переувлажненных связных грунтов срезку защитного слоя следует проводить с перебором относительно проектных отметок на 0,2-0,4 м в зависимости от показателя консистенции грунта.
Восполнение перебора следует выполнять щебнем гранитных пород фракций 40-70 или 20-40 мм. Щебень следует уплотнять виброкатком: первые 4-6 проходов по одному следу с выключенным вибратором, затем один-два прохода - с вибрацией. При необходимости следует досыпать и планировать слой щебня до проектных отметок и доуплотнять его виброкатком с выключенным вибратором.
6.5.2.6 Величину перебора переувлажненного грунта основания и высоту вдавливаемого щебня необходимо устанавливать опытным уплотнением щебня в присутствии представителя проектной организации и согласовывать с заказчиком.
6.5.2.7 В местах, где основание выемки сложено скальными или крупнообломочными грунтами, не подверженными атмосферным воздействиям, разработку котлована выполняют сразу до проектных отметок, не допуская переборов и нарушения природного сложения грунта основания. Места переборов заполняют местным щебенистым грунтом с тщательным его уплотнением.
6.5.2.8 Перерыв между окончанием разработки котлована с подготовкой основания и устройством бетонной подготовки не допускается. При вынужденных перерывах должны приниматься меры, препятствующие ухудшению качества грунта дна котлована.
6.5.2.9 Временные отвалы грунта, пригодного для обратной засыпки, размещают в местах, указанных в ПОС.
6.5.2.10 Пригодность использования снимаемого при земляных работах плодородного слоя почвы определяют согласно 5.18.
6.5.2.11 При вскрытии действующих подземных коммуникаций разработка грунта механизированным способом допускается на расстоянии не менее 2 м от боковой стены и не менее 1 м над верхом трубы, кабеля и др. Оставшийся грунт дорабатывается вручную без применения ударных инструментов с принятием мер, исключающих повреждение этих коммуникаций и в присутствии их владельцев.
6.5.2.12 При разработке грунта вблизи ограждающих конструкций котлована следует оставлять целик толщиной не менее 0,5 м, разработка которого выполняется вручную или средствами малой механизации и должна исключать возможность повреждения ограждающих конструкций. Разработку остального грунта следует производить в соответствии с СП 45.13330.
6.5.3.1 При монтаже конструкций необходимо обеспечивать требуемую точность монтажа, пространственную устойчивость конструкций в процессе их сборки и устойчивость сооружения в целом, а также сохранность выполненной части гидроизоляции.
6.5.3.2 Лотковые, стеновые и фундаментные блоки конструкции следует устанавливать на защитный слой гидроизоляции и слой из пластичного цементно-песчаного раствора.
6.5.3.3 При монтаже элементов сборных железобетонных конструкций отклонения от проектного положения не должны превышать допусков согласно приложению Ж.
6.5.4.1 При возведении конструкций из монолитного железобетона следует предусматривать комплексную механизацию производственных процессов, применение инвентарной переставной или другой многооборачиваемой опалубки, укрупненных арматурных каркасов и сеток заводского изготовления, использование товарных бетонных смесей, приготовленных на автоматизированных бетоносмесительных установках, бетононасосов или бетоноукладчиков.
Бетонные работы следует вести в соответствии с СП 63.13330 и СП 70.13330.
Проверку прочности, морозостойкости и водонепроницаемости бетона следует проводить по ГОСТ 10060, ГОСТ 10180.
6.5.4.2 Заготовку, монтаж и приемку арматуры следует выполнять согласно СП 70.13330.
6.5.4.3 Установку опалубки основных элементов конструкции следует выполнять с точностью ±10 мм. Правильность установки опалубки стен, колонн и перекрытий и соблюдение строительного подъема согласно проектной документации должны проверяться инструментально через каждые 5 м по пикетажу или на каждой постановке передвижной опалубки.
6.5.4.4 При бетонировании конструкций в зимнее время следует использовать морозостойкие марки бетона. Возможно использование обычных бетонов, которые необходимо утеплять или обогревать до приобретения прочности, при которой может быть допущено его замораживание.
Искусственный обогрев монолитных бетонных и железобетонных конструкций следует предусматривать согласно СП 70.13330.
6.5.4.5 При укладке бетона для определения его прочности отбор проб уложенной бетонной смеси следует проводить согласно требованиям норм по контролю и оценке прочности бетона.
6.5.4.6 Процесс выполнения бетонных и железобетонных работ отражают в журнале работ.
6.5.5.1 Грунты, используемые для засыпки котлованов, должны быть экологически чистыми, не содержать плодородный слой, древесину и другие органические включения, водорастворимые соли. Размеры твердых включений для пазух не должны превышать 15 см. Не допускается использование глинистых грунтов текучей и текучепластичной консистенций.
6.5.5.2 Грунты засыпок котлованов следует уплотнять до проектной плотности в соответствии с СП 45.13330.
6.5.5.3 Перед засыпкой все связи между свайным креплением котлована и защитным покрытием гидроизоляции должны быть сняты. Распорки или съемные части анкеров и продольные пояса надлежит снимать в процессе засыпки.
Засыпка пазух при наличии в них воды, льда, снега, строительного мусора и посторонних предметов не допускается.
6.5.5.4 Обратную засыпку котлованов следует выполнять с двух сторон конструкции равномерно горизонтальными слоями с послойным уплотнением грунта до проектной плотности. Толщину отсыпаемых слоев назначают исходя из вида грунта и уплотняющей способности средств уплотнения.
6.5.5.5 Пазухи между креплением котлована с вертикальными стенами и конструкцией сооружения следует заполнять песками крупно- и среднезернистыми или другими малосжимаемыми грунтами и материалами, при необходимости - бетоном низкого класса.
6.5.5.6 К засыпке конструкций выше перекрытия следует приступать после приемки работ по уплотнению грунта в пазухах котлована.
Толщина слоя грунта над перекрытием конструкций для прохода по нему грунтоуплотняющих машин должна быть не менее 0,5 м.
6.6.1.1 В процессе проходки выработок надлежит вести систематические визуальные наблюдения за соответствием фактических инженерно-геологических условий проектным в части устойчивости забоя, изменения мощности или состава напластований грунтов, их трещиноватости, количественного изменения притока грунтовых вод.
Результаты наблюдений следует заносить в журнал. Об отклонениях фактических условий проходки от проектных данных необходимо ставить в известность проектную организацию и заказчика.
6.6.1.2 При подходе забоя выработки к зонам разломов, подречных участков, погребенных размывов и в процессе проходки этих участков необходимо выполнять предусмотренные ПОС мероприятия, обеспечивающие безопасность работ.
6.6.2.1 Сооружение вертикальных стволов может осуществляться с применением механизированных комплексов, горным способом с использованием специальных методов укрепления грунтов (замораживание, химзакрепление и др.), методом опускной крепи. Конкретный выбор способа строительства определяется на стадии проектирования на основе технико-экономического сравнения.
6.6.2.2 Глубина заходки при проходке стволов в нескальных грунтах с подводкой колец обделки снизу не должна превышать ширину кольца более чем на 10-15 см. Грунты слабой устойчивости (таблица 6.3) следует разрабатывать в две заходки по 50-60 см, начиная от центра забоя и заканчивая у внутренней поверхности тюбингового крепления, с окончательной доборкой грунта по мере установки тюбингов. Временное крепление выполняют в виде затяжки из досок.
6.6.2.3 При проходке стволов с предварительным замораживанием грунтов на каждой заходке сначала разрабатывают грунт в пределах незамороженного ядра, а затем разрабатывают замороженный грунт.
При разработке грунта внутри ледогрунтового ограждения вода, остающаяся в незамороженном состоянии, должна удаляться. При поступлении в забой значительного количества воды вследствие наличия изъяна в ледогрунтовом ограждении работы необходимо приостановить, ствол залить водой до уровня грунтовых вод и провести дополнительное замораживание грунтов.
6.6.2.4 При сооружении стволов в обводненных или искусственно замороженных грунтах гидроизоляционные работы следует выполнять в процессе проходческих работ. Полные болтовые комплекты с гидроизоляционными шайбами устанавливают при монтаже обделки, а первичное нагнетание проводят в непосредственной близости от забоя с подвесного полка. Контрольное нагнетание, подтяжку болтов, замену, при необходимости, болтовых комплектов, а также чеканку швов тюбинговой обделки следует вести с временных рабочих полков.
При проходке стволов с применением БВР чеканочные работы следует проводить на расстоянии 20-30 м от забоя.
Рабочие стволы при отсутствии притока воды допускается сооружать без гидроизоляции.
6.6.2.5 Установку расстрелов армировки ствола, вентиляционного трубопровода и устройство лестниц выполняют в процессе проходческих работ. Вентиляционные трубопроводы до подвесного полка должны быть жесткими, от подвесного полка до забоя - гибкими.
6.6.2.6 Работы по сооружению стволов способом опускной крепи или специальными способами следует выполнять в соответствии с СП 45.13330 и 6.7 настоящего свода правил.
6.6.2.7 Разработку и выдачу грунта при проходке ствола способом опускной крепи в устойчивых необводненных грунтах следует выполнять стреловым краном, оборудованным грейфером. Совмещение разработки грунта механизированным ручным инструментом с одновременной выдачей его из ствола грейфером не допускается.
Разработку и выдачу грунта при проходке ствола способом опускной крепи с заполнением ствола водой в целях создания гидропригруза допускается выполнять с применением механизированных стволопроходческих комплексов, оборудованных системой гидротранспорта грунта.
6.6.2.8 Погружение крепи следует производить одновременно с разработкой забоя по мере выемки грунта. Во избежание обрушения грунта за крепью необходимо обеспечивать своевременную подачу глинистого раствора в пространство, образуемое уступом ножевой части, чтобы уровень раствора постоянно находился выше подошвы опорного воротника не менее чем на 2 м.
Состав глинистого порошка, концентрация готового глинистого раствора, химические добавки для улучшения качества растворов должны применяться в зависимости от инженерно-геологических и гидрогеологических условий.
Для предотвращения утечки глинистого раствора в ствол над уступом ножевой части должен быть устроен уплотнитель. Конструкция уплотнителя определяется на стадии проектирования на основании анализа инженерно-геологических условий.
Для исключения прорыва глинистого раствора в ствол в зоне неустойчивых грунтов ножевая часть крепи должна быть постоянно вдавлена в грунт не менее чем на 0,5 м, а грунт следует разрабатывать слоями по 0,3-0,5 м, не допуская опережения средней частью забоя нижней кромки ножа. В глинистых грунтах не допускается опережение средней частью забоя кромки ножа более чем на 0,5 м.
Необходимо установить наблюдение за уровнем глинистого раствора в зазоре и значением давления в установке по его нагнетанию. При снижении данных показателей необходимо принять меры по предотвращению потери раствора и, при необходимости, изменению его состава.
6.6.2.9 При пересечении зоны совершенно неустойчивых грунтов погружение крепи надлежит осуществлять под слоем воды в стволе, превышающем уровень водоносного горизонта не менее чем на 1 м. Выемку грунта при этом следует проводить из средней части забоя с оставлением по контуру выработки бермы, срезаемой ножевой частью при погружении крепи.
При применении системы гидротранспорта грунта необходимо обеспечить уровень воды в стволе выше водоносного горизонта не менее чем на 1 м и, при необходимости, организовать постоянную подачу воды в ствол.
Откачка воды допускается только после заглубления ножевой части в водоупор на глубину не менее 1,5 м ниже толщи водоносных грунтов и выполнения предусмотренных проектом работ по предотвращению всплытия ствола. Контроль всплытия при применении принудительного задавливания обделки допускается проводить на основании показаний давления домкратной системы. При увеличении давления на домкратах более чем на 5%, следует остановить откачку до выполнения дополнительных мероприятий по предотвращению всплытия ствола.
На стадии проектирования периода проходки ствола необходимо предусматривать средства быстрой подачи воды в ствол для обеспечения, при необходимости, его аварийного затопления.
6.6.2.10 Проверку вертикальности и положения в плане опускной крепи необходимо проводить после каждой посадки крепи и не реже чем через 1 м по мере ее опускания. Замеченные смещения и перекосы должны выправляться немедленно.
6.6.2.11 Тампонаж пространства за крепью, заполненного тиксотропным раствором, следует осуществлять после проходки ствола методом опускной крепи путем замены глинистого раствора цементно-песчаным. В отдельных случаях, при обосновании, глинистый раствор может быть оставлен за крепью. Вытесненный таким образом глинистый раствор должен утилизироваться в порядке, утвержденном для отходов строительства.
6.6.2.12 Армировку ствола выполняют после завершения ремонта гидроизоляции. Для монтажа армировки устанавливают контрольный ярус. Монтаж армировки выполняют в основном в направлении сверху вниз. При армировке в направлении снизу вверх на горизонте околоствольного двора следует дополнительно устанавливать контрольный ярус.
Контроль геометрических параметров армировки осуществляют по результатам маркшейдерской съемки.
6.6.2.13 При монтаже армировки ствола следует соблюдать следующие допуски:
а) отклонение расстояний между ярусами расстрелов ±15 мм;
б) разность в отметках концов расстрела в местах крепления его к тюбингам - не больше 1:200 его длины;
в) отклонение расстрелов на двух смежных ярусах от их вертикальной плоскости ±5 мм;
г) отклонение каждой нитки двусторонних проводников от вертикали ±5 мм;
д) смещение стыков проводников от середины ребра расстрелов 50 мм;
е) отклонение системы армировки от проектного вертикального положения не более 1:2000 глубины ствола.
На стыках проводники должны точно совмещаться торцами без выступов.
6.6.3.1 Монтаж щита в монтажной камере надлежит выполнять по закрепленной продольной оси тоннеля и нормали к ней. Центры поперечных сечений ножеопорного кольца и хвостовой оболочки щита должны находиться на геометрической оси щита с отклонениями не более ±10 мм. Их эллиптичность допускается не более ±5 мм.
6.6.3.2 Отклонение щита от проектного положения в плане и профиле должно быть в пределах, обеспечивающих возведение обделки с допусками согласно приложению Ж.
6.6.3.3 Проходку тоннелей с применением щитовых комплексов следует вести с заходкой на ширину одного кольца. Нагнетание тампонажного раствора за обделку необходимо выполнять за каждое собранное кольцо или через трубки в оболочке щита при его передвижке. Состав тампонажного раствора назначается в зависимости от условий проходки.
6.6.3.4 Требования к проходке тоннелей механизированными щитами с уравновешиванием давления в призабойной зоне, обеспечивающими устойчивость окружающего грунтового массива, с использованием активного гидравлического или грунтового пригруза забоя приведены в [68]. Для корректировки величины давления пригруза вдоль трассы проходки организуется сеть гидронаблюдательных скважин для отслеживания давления пригруза по датчикам давления грунта в призабойной зоне и мониторинга весового (объемного) выхода разработанного грунта.
6.6.3.5 Состав бентонитового раствора, зависящий от инженерно-геологических условий участка строительства и характеристик бентонитового порошка, определяют для каждого конкретного случая технологическим регламентом.
Монтаж колец тоннельной обделки следует выполнять до полного выхода щита в демонтажную камеру.
Выход щита из массива ниже уровня грунтовых вод в демонтажную камеру следует осуществлять с применением мероприятий, препятствующих проникновению водогрунтовой массы через строительный кольцевой зазор вокруг щита и раздвигающиеся стыки между кольцами сборной обделки (закрепление массива перед монтажной камерой, нагнетание твердеющего тампонажного раствора за обделку, обустройство упоров для лобовой части щита в приемном ложе, монтаж металлических связей между кольцами обделки).
6.6.3.6 Для проходки тоннелей в песках выше уровня грунтовых вод возможно использование частично механизированных проходческих комплексов с рассекающими площадками в щитах. Такие проходческие комплексы следует применять со сборными обделками или с обделками из монолитно-прессованного бетона.
6.6.3.7 При горном способе работ подземные выработки следует закреплять временной крепью в соответствии с паспортом с плотной забутовкой пустот между элементами крепления и грунтом.
Элементы временной деревянной крепи в устойчивых грунтах должны удаляться по мере монтажа обделки или укладки бетонной смеси за опалубку. Оставлять их за обделкой допускается в случае защемления или при возможности вывалов грунта.
6.6.3.8 Проходку перегонных тоннелей со сборной обделкой в устойчивых грунтах и грунтах средней устойчивости следует осуществлять тоннелепроходческими, щитовыми комплексами, буровзрывным способом с машинным обуриванием забоя или частично механизированными комплексами с разработкой грунта ручным механизированным инструментом и буровзрывным способом.
Разработку грунта буровзрывным способом следует осуществлять согласно СП 45.13330, СП 69.13330 методом контурного (гладкого) взрывания, требования к которому приведены в [75]. На каждый забой составляют паспорт буровзрывных работ [35].
6.6.3.9 При сооружении тоннелей тоннелепроходческими механизированными комплексами (ТПМК) на основе щитов с активным пригрузом забоя в основном следует применять сборные обделки кругового очертания из железобетонных блоков высокой точности изготовления с прокладками в стыках из эластичного материала по контуру каждого блока. Форма блоков должна обеспечивать использование обделки как для прямолинейных участков трассы, так и для кривых в плане и профиле.
6.6.3.10 Требования к первичному и контрольному нагнетанию за обделку приведены в [6] и [71].
6.6.3.11 Исключен с 17 июня 2017 г. - Изменение N 2, утвержденное приказом Минстроя России от 16 декабря 2016 г. N 576/пр
6.6.3.12 При сооружении тоннеля горным способом с креплением выработки набрызг-бетоном, в том числе в сочетании с арочной и/или анкерной крепью, следует предусматривать:
- разработку грунта механизированным, с использованием горно-проходческих комбайнов, или буровзрывным способом;
- набрызг-бетон для временного и/или постоянного крепления выработки с контролем напряженно-деформированного состояния конструкции;
- при временном креплении набрызг-бетоном - устройство постоянной бетонной или железобетонной обделки.
Установке арок и армосетки должно предшествовать нанесение выравнивающего слоя набрызг-бетона толщиной не менее 2-3 см.
Указания по расчету несущего слоя набрызг-бетона и использованию его в сочетании с анкерами или арками приведены в [44].
Набрызг-бетон как элемент постоянной конструкции [76] должен соответствовать требованиям 5.6.1.1, 5.6.3.
Перед возведением постоянной обделки по набрызг-бетонному креплению, при необходимости, устраивают гидроизоляцию из пленочных (мембранных) или напыляемых материалов.
6.6.3.13 При применении набрызг-бетона в сочетании с арками доработку грунта под их пяты следует осуществлять ручным механизированным инструментом по маркшейдерским отметкам.
Допускаемое отклонение установленной арки от проектного положения - не более 25 мм.
6.6.3.14 Исключен с 17 июня 2017 г. - Изменение N 2, утвержденное приказом Минстроя России от 16 декабря 2016 г. N 576/пр
6.6.3.15 По результатам измерений местных и общих деформаций временной крепи и постоянной обделки следует оценивать их напряженное состояние и достаточность несущей способности. При необходимости следует проводить дополнительные расчеты, уточнять расчетную схему, режимы работы временной крепи, корректировать параметры ее материалов и конструкцию крепи.
6.6.3.16 Для осмотра, ремонта и замены режущего инструмента ТПМК при проходке в сложных инженерно-геологических условиях и невозможности создания необходимого избыточного давления сжатого воздуха в призабойной зоне следует предусматривать применение специальных методов для закрепления грунтового массива в зоне выполнения ремонтно-восстановительных работ.
При этом необходимо выполнять оценку влияния данных мероприятий на безопасность и эксплуатационную надежность окружающих зданий и сооружений.
6.6.4.1 Строительство трехсводчатых станций следует осуществлять путем последовательной проходки станционных тоннелей (щитовым или горным способом) - вначале боковых тоннелей, затем - среднего. Проходку второго по времени бокового тоннеля следует вести с отставанием не менее 30 м относительно первого, среднего - не менее 50 м относительно второго бокового тоннеля.
Для обеспечения совпадения колец всех тоннелей по пикетажу их проходку надлежит вести в одном направлении.
6.6.4.2 Проходка тоннелей на полное сечение горным способом допускается в устойчивых грунтах или грунтах средней устойчивости.
При наличии давления со стороны лба забоя тоннели следует сооружать с предварительной проходкой пилот-тоннелей, передовых штолен или методом уступа, если это допустимо исходя из принятого конструктивного решения станции, или при помощи щитов.
6.6.4.3 Проходку тоннелей следует вести заходками на ширину одного кольца тоннельной обделки. Проходка с заходками на два кольца допускается при наличии предварительно пройденных пилот-тоннелей. При ширине колец пилот-тоннеля, равной 1 м, а станционных тоннелей - 0,75 м для монтажа одного кольца станционного тоннеля выполняют две заходки, двух колец - три заходки.
6.6.4.4 При строительстве колонных станций проходку среднего тоннеля следует вести с учетом возможного смещения боковых тоннелей в сторону оси станции.
Проходку средних тоннелей пилонного и колонного типов следует осуществлять с принятием мер против деформации боковых тоннелей путем установки распорок, стяжек и пр.
6.6.4.5 При укладке колец сборных обделок тоннелей отклонения фактических размеров от проектных не должны превышать установленных допусков согласно приложению Ж.
6.6.4.6 Односводчатые станции со сборными и монолитными обделками в устойчивых грунтах и грунтах средней устойчивости следует сооружать горным способом начиная с устройства опорных частей свода. Верхний свод станции возводят в калоттной выработке, нижний свод сооружают после разработки грунта ядра сооружения.
Опорные части сводов сооружают в предварительно пройденных тоннелях или в штольнях.
Сечение штолен должно быть достаточным для укладки в них откаточных путей после устройства станционных опор.
6.6.4.7 Сооружение обделки односводчатых станций со сборными сводами, обжатыми в породу, в грунтах слабой устойчивости допускается с применением опережающего защитного экрана. Разработку породы под его защитой следует выполнять экскаватором, проходческим комбайном или с применением взрывного способа.
6.6.5.1 Строительство эскалаторных тоннелей может осуществляться горным или щитовым способом, выбор которого должен быть определен технико-экономическим сравнением вариантов, увязываться с проектом строительства станции в целом.
6.6.5.2 Устье эскалаторного тоннеля для монтажа щитового комплекса или тюбингоукладчика следует сооружать в открытом котловане с креплением его стен. Котлован следует разрабатывать с уклоном в сторону тоннеля до глубины, позволяющей смонтировать два первых кольца обделки, а при наличии грунтовых вод - до глубины, превышающей их уровень не менее чем на 0,5 м. На спланированном под углом 30° откосе дна котлована устраивают бетонный лоток, являющийся основанием для первых колец обделки и последующих полуколец временного оголовника или основанием для щитового комплекса.
6.6.5.3 При проходке с укладчиком первые два кольца обделки следует закреплять бетоном, укладываемым между кольцами и стенами котлована. Отклонения фактических размеров от проектных должны отвечать установленным допускам.
Полукольца, необходимые для монтажа блокоукладчика, и первые полные кольца, являющиеся временными, следует собирать на бетонном основании котлована при помощи стрелового крана
6.6.5.4 К работам по проходке в зоне замороженных грунтов разрешается приступать только после образования замкнутого ледогрунтового ограждения проектных толщины и прочности. Разрешение должно оформляться актом.
6.6.5.5 Проходку эскалаторных тоннелей следует вести на полный профиль. При наличии нижерасположенных горизонтальных выработок, примыкающих к эскалаторному тоннелю, допускается проходка с передовой штольней или скважиной.
6.6.5.6 При монтаже обделки вне зоны замороженных грунтов следует устанавливать полные болтовые комплекты, в зоне замороженных грунтов - временные болты с плоскими стальными шайбами с заменой их на полные болтовые комплекты при выполнении гидроизоляционных работ.
6.6.5.7 Растворы для нагнетания в зоне замороженных грунтов следует применять с добавками, предотвращающими их замерзание и ускоряющими схватывание.
Контрольное нагнетание за обделку и установка пробок с гидроизоляционными шайбами в отверстия для нагнетания в зоне замороженных грунтов должны заканчиваться до их оттаивания.
6.7.1.1 Водопонижение следует применять для снижения уровня или уменьшения притока грунтовых вод, а также для снятия напора воды в нижележащем водоносном горизонте.
Применение водопонижения необходимо обосновывать расчетом с учетом оценки влияния на окружающие здания и сооружения.
Не допускается применение водопонижения при распространении расчетного радиуса депрессионной воронки на расстояние менее 10 м от сооружений I и II уровней ответственности.
Выбор средств водопонижения определяют с учетом:
- технологии сооружения и типа выработки;
- гидрогеологических условий;
- необходимой величины понижения уровня или уменьшения притока грунтовых вод;
- градостроительной ситуации, наличия в зоне влияния водопонижения подземных коммуникаций;
- продолжительности водопонижения.
6.7.1.2 В процессе водопонижения, а также при восстановлении естественных параметров грунтовых вод необходимо вести постоянное наблюдение за состоянием зданий, сооружений и коммуникаций с использованием наблюдательных станций.
6.7.1.3 В качестве средств водопонижения следует использовать:
- водопонизительные скважины;
- легкие иглофильтровые установки;
- эжекторные установки;
- скважины-дрены;
- дренажные выработки и скважины;
- открытый водоотлив из выработок;
- комбинированные средства.
При вскрытии горной выработкой двух и более водоносных горизонтов следует применять комбинированные системы водопонижения. При этом основное водопонижение следует осуществлять скважинами с погружными насосами, а остаточную воду отбирают легкими иглофильтровыми установками или открытым водоотливом.
6.7.1.4 Водопонизительные скважины, оборудованные насосами, следует применять в водоносном слое с коэффициентом фильтрации не менее 0,5 м/сут при достаточном слое дренирующего грунта между лотком сооружения и подстилающим водоупорным слоем.
Для повышения эффективности водопонижения скважины следует оснащать устройствами вакуумирования.
При водоупорном слое под лотком выработки малой мощности и залегании под ним напорного водоносного горизонта водопонизительные скважины применяют для снятия напора.
6.7.1.5 Легкие иглофильтровые установки следует применять в грунтах с коэффициентом фильтрации от 0,2 до 50 м/сут при необходимости водопонижения на глубине не более 5 м от поверхности земли или от лотка сооружения. При разработке котлованов с откосами возможно проводить ступенчатое понижение уровня грунтовых вод. Иглофильтры на каждом ярусе следует подключать к отдельной установке.
6.7.1.6 Эжекторные установки следует применять в основном для водопонижения методом вакуумирования в грунтах с коэффициентами фильтрации от 0,2 до 5 м/сут.
6.7.1.7 Скважины-дрены применяют для дренажа воды из вышележащего в нижележащий водоносный горизонт, обладающий большей водопроницаемостью.
6.7.1.8 Дренажные выработки и скважины используют в скальных и полускальных водоносных грунтах. Скважины устраивают в основном из горных выработок для осушения водоносных пластов с небольшими водопритоками.
6.7.1.9 Система водопонижения должна обеспечиваться резервным оборудованием.
6.7.1.10 На оборудование скважин фильтром и их прокачку составляют акты по формам, приведенным в [17, приложения 6.7.А1, 6.7.А2].
До начала работ по водопонижению следует бурить наблюдательные скважины. При осушении нескольких горизонтов наблюдательные скважины устанавливают на каждый горизонт.
Производство работ по устройству водопонизительных скважин следует выполнять после окончания работ по устройству ограждающих конструкций котлована.
6.7.1.11 Работы по водопонижению следует проводить в три этапа.
Первый этап - сдача системы в эксплуатацию.
При сдаче системы в эксплуатацию необходимо предъявлять:
- фактический геологический разрез по каждой скважине с указанием типа бурового станка, конструкции скважины, типа и интервалов установки фильтра и насоса;
- план расположения водопонизительных средств, продольный фактический разрез с указанием установленных скважин, иглофильтров, наблюдательных скважин и фактического статического уровня воды в горизонтах.
Приемку установок в эксплуатацию осуществляет комиссия с оформлением акта по форме, приведенной в [17, приложение 6.7.А3].
Второй этап - эксплуатация системы.
При достижении проектных требований составляют акт о готовности участка для ведения основных работ по форме, приведенной в [17, приложение 6.7.А4].
Третий этап - окончание эксплуатации системы.
Решение о прекращении работ по водопонижению принимается комиссионно и оформляется актом по форме, приведенной в [17, приложение 6.7.А5], с указанием о дальнейшем использовании скважин или их ликвидации в соответствии с проектом.
6.7.1.12 При проходке тоннельных сооружений горным способом с ожидаемым или фактическим водопритоком в забой свыше 50 м3/ч следует применять методы работ на основании рабочего проекта.
6.7.2.1 Замораживание грунтов осуществляют с применением холодоносителя, циркулирующего в замкнутой системе "холодильная станция - замораживающие колонки", либо при непосредственном испарении хладагента - жидкого азота или твердой углекислоты в замораживающих колонках.
Требования к проекту технологического процесса замораживания и рассольной замораживающей системы приведены в [14].
Проектирование процесса замораживания грунтов жидким либо газообразным азотом или твердой углекислотой выполняется по индивидуальным проектам.
6.7.2.2 До начала работ необходимо обследовать здания, сооружения и подземные коммуникации, расположенные в зоне влияния замораживаемых грунтов. Для наблюдения за возможными их деформациями следует предусматривать установку наблюдательных станций.
6.7.2.3 Пуск в эксплуатацию замораживающей системы оформляют актом. К работам в зоне замороженных грунтов следует приступать только после образования ледогрунтового ограждения проектной толщины и температуры, зафиксированных инструментальными методами.
6.7.2.4 Сооружение участков стволов шахт и эскалаторных тоннелей в неустойчивых обводненных грунтах следует осуществлять под защитой кольцевого ледогрунтового ограждения. При этом замораживающие колонки должны быть заглублены в водоупор.
При отсутствии водоупора или при недостаточной его мощности применяют сплошное или зональное замораживание массива грунтов.
6.7.2.5 При проходке стволов шахт под защитой ледогрунтового ограждения на каждой заходке сначала разрабатывают грунт в пределах незамороженного ядра на величину, установленную ППР, затем разрабатывают замороженный грунт.
В случае поступления в забой значительного количества воды, указывающего на нарушение сплошности ледогрунтового ограждения, работы необходимо приостановить, ствол залить до статического уровня грунтовых вод и провести дополнительное замораживание грунтов.
6.7.2.6 Расстояние между замораживающими скважинами должно быть, м, не более:
- при контурном замораживании:
а) стволов шахт - 1,2;
б) эскалаторных и перегонных тоннелей -1,1;
- при замораживании открытых котлованов с расположением скважин в два ряда:
а) внутренний ряд - 1,25;
б) внешний ряд - 1,5;
в) между рядами - 3,0;
- при замораживании сплошного массива:
а) по контуру - 1,5;
б) внутри контура - 3,0.
6.1.2.7 В процессе работ по бурению замораживающих скважин следует определять фактическую температуру и скорость движения грунтовых вод и их засоленность.
В процессе бурения на каждой десятой скважине по контуру ледогрунтового ограждения определяют фактическую глубину водоупора. При несовпадении фактических и проектных данных проектную документацию необходимо корректировать.
При отклонении скважин от проектного положения необходимо бурить дополнительные скважины и включать их в процесс замораживания.
Число дополнительных вертикальных скважин при глубине замораживания до 100 м допускается не более 10%, наклонных - 20%. При глубине замораживания более 100 м - соответственно 20% и 25%.
Глубина скважины при бурении должна превышать длину замораживающей колонки не менее чем на 1 м.
До начала расчетного срока активного замораживания грунтов следует предусматривать не менее 5 сут для вывода замораживающей станции на проектный режим.
6.7.2.8 Контроль за производством и приемкой работ по искусственному замораживанию грунтов следует проводить согласно таблице 6.5.
Таблица 6.5
|
Технические требования |
Предельные отклонения |
Контроль (метод и объем) |
|
Линейные отклонения от заданного направления скважин: |
Измерительный, через каждые 10 м | |
|
вертикальных; |
Не более 1% глубины | |
|
наклонных |
Не более 2% длины | |
|
Отклонения от расположения скважин в плане |
5 см |
Измерительный, каждая скважина |
|
Герметичность холодильной системы: | ||
|
давление при гидравлическом испытании стыка каждой наращиваемой трубы и башмака замораживающей колонки; |
Не менее 2,5 МПа |
То же, с регистрацией в журнале |
|
уровень залитой в колонку жидкости |
Изменение уровня жидкости не более чем на 3 мм за трое суток |
То же |
|
Температура выходящего из колонки холодоносителя при установившемся режиме работы |
Температура не должна отличаться более чем на 2°С от температуры холодоносителя в распределителе на каждые 100 м глубины замораживания |
" Непрерывный |
|
Достижение проектных размеров и сплошности ледогрунтового ограждения |
Наличие отрицательной температуры во всех термометрических колонках, расположенных в пределах льдогрунтового ограждения |
Непрерывный Каждая колонка |
|
Подъем уровня воды в наблюдательных скважинах в замкнутом контуре |
Фиксация уровня воды | |
|
Стабильность температуры холодоносителя |
Периодический | |
|
Показание межскважинного акустического просвечивания |
То же |
6.7.2.9 Для котлованов, где замороженный грунт используют как временные ограждающие конструкции, грунты в замороженном состоянии надлежит поддерживать в пассивном режиме в течение всего периода строительных работ.
6.7.2.10 В случае попадания замораживающих колонок в сечение выработки их следует отключать от системы, удалять из них холодоноситель и заглушать. Оставшиеся части колонок вновь подключают к системе замораживания.
6.7.2.11 Решения о готовности участка для ведения основных работ и о прекращении работ по искусственному замораживанию грунтов следует оформлять актами.
6.7.2.12 При обосновании допускается совмещение работ по искусственному оттаиванию замороженных грунтов с другими строительно-монтажными работами.
6.7.3.1 Инъекционное закрепление грунтов при строительстве подземных сооружений следует применять для преодоления участков неустойчивых водонасыщенных и нарушенных скальных грунтов, устройства ограждений котлованов, защитных экранов (завес), укрепления оснований и фундаментов зданий и других сооружений, находящихся в зоне влияния строительства, а также для ликвидации аварийных ситуаций, возникающих в процессе строительства.
6.7.3.2 Способы закрепления грунтов по типу используемых инъекционных материалов подразделяются на цементацию, силикатизацию и смолизацию, по методу введения раствора в грунт - на обычную инъекцию и струйную цементацию.
6.7.3.3 Способ закрепления грунтов следует выбирать на основании инженерно-геологических и гидрогеологических изысканий, требований экологии и технико-экономического сравнения вариантов закрепления.
Таблица 6.6 исключена с 17 июня 2017 г. - Изменение N 2, утвержденное приказом Минстроя России от 16 декабря 2016 г. N 576/пр
6.7.3.4 Требования к проектированию и производству работ при использовании различных способов укрепления грунта, порядок и методы ведения инъекционных работ и контроля их выполнения при строительстве, реконструкции и ремонте сооружений метрополитена приведены в [74].
6.7.3.5 Исключен с 17 июня 2017 г. - Изменение N 2, утвержденное приказом Минстроя России от 16 декабря 2016 г. N 576/пр
6.7.3.6 Исключен с 17 июня 2017 г. - Изменение N 2, утвержденное приказом Минстроя России от 16 декабря 2016 г. N 576/пр
6.7.3.7 Исключен с 17 июня 2017 г. - Изменение N 2, утвержденное приказом Минстроя России от 16 декабря 2016 г. N 576/пр
6.7.3.8 Исключен с 17 июня 2017 г. - Изменение N 2, утвержденное приказом Минстроя России от 16 декабря 2016 г. N 576/пр
6.7.3.9 Исключен с 17 июня 2017 г. - Изменение N 2, утвержденное приказом Минстроя России от 16 декабря 2016 г. N 576/пр
6.7.3.10 Исключен с 17 июня 2017 г. - Изменение N 2, утвержденное приказом Минстроя России от 16 декабря 2016 г. N 576/пр
6.7.3.11 Исключен с 17 июня 2017 г. - Изменение N 2, утвержденное приказом Минстроя России от 16 декабря 2016 г. N 576/пр
6.7.3.12 Исключен с 17 июня 2017 г. - Изменение N 2, утвержденное приказом Минстроя России от 16 декабря 2016 г. N 576/пр
6.7.3.13 Исключен с 17 июня 2017 г. - Изменение N 2, утвержденное приказом Минстроя России от 16 декабря 2016 г. N 576/пр
6.7.3.14 Исключен с 17 июня 2017 г. - Изменение N 2, утвержденное приказом Минстроя России от 16 декабря 2016 г. N 576/пр
6.7.3.15 Исключен с 17 июня 2017 г. - Изменение N 2, утвержденное приказом Минстроя России от 16 декабря 2016 г. N 576/пр
6.7.3.16 Исключен с 17 июня 2017 г. - Изменение N 2, утвержденное приказом Минстроя России от 16 декабря 2016 г. N 576/пр
6.7.3.17 Исключен с 17 июня 2017 г. - Изменение N 2, утвержденное приказом Минстроя России от 16 декабря 2016 г. N 576/пр
6.7.3.18 Исключен с 17 июня 2017 г. - Изменение N 2, утвержденное приказом Минстроя России от 16 декабря 2016 г. N 576/пр
6.7.3.19 Исключен с 17 июня 2017 г. - Изменение N 2, утвержденное приказом Минстроя России от 16 декабря 2016 г. N 576/пр
6.7.3.20 Исключен с 17 июня 2017 г. - Изменение N 2, утвержденное приказом Минстроя России от 16 декабря 2016 г. N 576/пр
6.7.3.21 Исключен с 17 июня 2017 г. - Изменение N 2, утвержденное приказом Минстроя России от 16 декабря 2016 г. N 576/пр
6.7.3.22 Исключен с 17 июня 2017 г. - Изменение N 2, утвержденное приказом Минстроя России от 16 декабря 2016 г. N 576/пр
6.7.3.23 Исключен с 17 июня 2017 г. - Изменение N 2, утвержденное приказом Минстроя России от 16 декабря 2016 г. N 576/пр
6.7.3.24 Исключен с 17 июня 2017 г. - Изменение N 2, утвержденное приказом Минстроя России от 16 декабря 2016 г. N 576/пр
6.7.3.25 Исключен с 17 июня 2017 г. - Изменение N 2, утвержденное приказом Минстроя России от 16 декабря 2016 г. N 576/пр
6.7.3.26 Исключен с 17 июня 2017 г. - Изменение N 2, утвержденное приказом Минстроя России от 16 декабря 2016 г. N 576/пр
6.7.3.27 Исключен с 17 июня 2017 г. - Изменение N 2, утвержденное приказом Минстроя России от 16 декабря 2016 г. N 576/пр
6.7.3.28 Исключен с 17 июня 2017 г. - Изменение N 2, утвержденное приказом Минстроя России от 16 декабря 2016 г. N 576/пр
6.7.3.29 Исключен с 17 июня 2017 г. - Изменение N 2, утвержденное приказом Минстроя России от 16 декабря 2016 г. N 576/пр
6.7.3.30 Исключен с 17 июня 2017 г. - Изменение N 2, утвержденное приказом Минстроя России от 16 декабря 2016 г. N 576/пр
6.7.3.31 Исключен с 17 июня 2017 г. - Изменение N 2, утвержденное приказом Минстроя России от 16 декабря 2016 г. N 576/пр
6.7.3.32 Исключен с 17 июня 2017 г. - Изменение N 2, утвержденное приказом Минстроя России от 16 декабря 2016 г. N 576/пр
6.7.3.33 Исключен с 17 июня 2017 г. - Изменение N 2, утвержденное приказом Минстроя России от 16 декабря 2016 г. N 576/пр
6.7.3.34 Исключен с 17 июня 2017 г. - Изменение N 2, утвержденное приказом Минстроя России от 16 декабря 2016 г. N 576/пр
6.7.3.35 Исключен с 17 июня 2017 г. - Изменение N 2, утвержденное приказом Минстроя России от 16 декабря 2016 г. N 576/пр
6.7.3.36 Исключен с 17 июня 2017 г. - Изменение N 2, утвержденное приказом Минстроя России от 16 декабря 2016 г. N 576/пр
6.7.3.37 Исключен с 17 июня 2017 г. - Изменение N 2, утвержденное приказом Минстроя России от 16 декабря 2016 г. N 576/пр
6.7.3.38 Исключен с 17 июня 2017 г. - Изменение N 2, утвержденное приказом Минстроя России от 16 декабря 2016 г. N 576/пр
6.7.3.39 Исключен с 17 июня 2017 г. - Изменение N 2, утвержденное приказом Минстроя России от 16 декабря 2016 г. N 576/пр
6.7.3.40 Исключен с 17 июня 2017 г. - Изменение N 2, утвержденное приказом Минстроя России от 16 декабря 2016 г. N 576/пр
6.8.1 Разработку генерального плана стройплощадки следует выполнять с учетом наиболее рационального расположения постоянного оборудования и обустройств, минимальных расходов на устройство инженерных коммуникаций, постоянных и временных дорог и подъездных путей, сохранения существующих строений, подземных коммуникаций, зеленых насаждений, обеспечения нормальных условий жизни населения в районе стройплощадки, соблюдения противопожарных и санитарных требований.
6.8.2 Стройплощадки подразделяются на базовые и участковые.
Состав временных зданий и сооружений на строительных площадках определяют исходя из их назначения.
6.8.3 При подготовке территории под стройплощадку необходимо обеспечить:
- расселение жильцов, вывод организаций и предприятий из зоны строительства;
- снос, перекладку или ликвидацию существующих инженерных сетей и сооружений;
- устройство объездных дорог или переключение транспортных потоков на другие городские проезды с условием беспрепятственного проезда транспортных средств специального назначения ко всем зданиям в прилегающих к строительству кварталах города и прохода пешеходов;
- определение технического состояния зданий и сооружений, расположенных в зоне устройства стройплощадки, оформление соответствующих документов;
- вынос в натуру осей и контуров возводимых зданий и сооружений.
6.8.4 Генподрядная строительная организация должна приказом назначить ответственного за ведение работ на стройплощадке и предоставить ему следующие документы:
- акт о передаче заказчиком территории стройплощадки генподрядной организации;
- график работ, выполняемых генподрядной и субподрядными строительными организациями, и протокол разграничения их ответственности;
- журнал производства работ по освоению стройплощадки, оформленный и выданный заказчиком;
- журнал авторского надзора проектной организации.
6.8.5 Территория стройплощадки должна быть обнесена сплошным ограждением.
На ограждении у въезда на стройплощадку следует устанавливать:
- информационный щит с наименованием объекта; адресом, сроками начала и окончания строительства; наименованием заказчика и генподрядной строительной организации; фамилией, должностью и телефоном ответственного производителя работ;
- щит со схемой движения автотранспорта по территории стройплощадки и знак ограничения скорости;
- щит с планом пожарной защиты объекта на период строительства с указанием въездов, зданий, сооружений и проездов, мест размещения источников воды, средств пожаротушения и связи.
6.8.6 Въезд на стройплощадку следует оборудовать воротами с дистанционным управлением, обеспечивающими проезд транспорта с негабаритным грузом.
Для пропуска людей оборудуют отдельные входы.
6.8.7 Территория стройплощадки должна быть спланирована и оборудована системой сбора и отвода поверхностных (ливневых и паводковых) вод в городскую ливневую канализацию.
6.8.8 Снятый при планировке растительный грунт следует вывозить в места временных отвалов или постоянного захоронения. Пригодность снятого грунта к проведению рекультивационных работ определяют согласно 5.18.
6.8.9 Временные дороги с твердым покрытием следует прокладывать до начала работ по возведению временных зданий и сооружений. В местах пересечений дорог с временными инженерными коммуникациями закладывают футляры.
6.8.10 На выезде с территории стройплощадки следует предусматривать мойку колес автотранспорта с очистными сооружениями или системой оборотного водоснабжения.
6.8.11 Стройплощадки, при необходимости, следует оборудовать инженерными коммуникациями, системами электроснабжения и средствами мобильной связи.
Применение громкоговорящей связи при расположении площадки вблизи существующей жилой застройки не допускается.
6.8.12 Требования к устройству молниезащиты зданий и сооружений приведены в [46], а к заземлению электроустановок, металлических конструкций, фургонов и других сооружений на строительной площадке - в [15].
6.8.13 Цветовую отделку временных зданий и сооружений надлежит выполнять в соответствии с архитектурно-композиционными решениями, согласованными с районной архитектурно-планировочной организацией.
На зданиях и ограждении стройплощадки возможно размещение коммерческой рекламы, информационных табло, художественного оформления и т.п. при условии регистрации рекламного оформления в установленном порядке.
6.8.14 Административные помещения, помещения для санитарно-гигиенического и бытового обслуживания работающих и для обеспечения технологических потребностей строительства допускается размещать в существующих зданиях и сооружениях города при согласовании с органами административного, санитарного и пожарного надзора.
6.8.15 Меры по обеспечению пожарной безопасности, размещению первичных средств пожаротушения и системы оповещения о пожаре следует предусматривать согласно ПОС, 123-ФЗ [60], сводам правил и ПБ 03-428 [39].
6.8.16 Складирование строительных материалов и конструкций следует выполнять согласно СНиП 12-03 и техническим условиям на материалы и конструкции.
6.8.17 Грузоподъемные краны и технологическое оборудование необходимо устанавливать на выровненных площадках с жестким покрытием согласно паспортам, инструкциям по эксплуатации соответствующего оборудования и [47].
6.8.18 Требования к организации строительной площадки приведены в СНиП 12-03 и [38].
Границы опасных зон при работе механизмов и оборудования должны быть огорожены и обозначены предупредительными знаками и сигналами, хорошо видимыми в темное время суток. Не допускается размещать в опасных зонах оборудование, материалы, изделия и нахождение людей.
6.9.1 Путеукладочные работы в тоннелях следует начинать после установки и обетонирования путейских реперов, устройства и сдачи под монтаж пути бетонного основания.
Требования к путевым работам приведены в [48].
6.9.2 Бригады, выполняющие путевые работы, в обязательном порядке должны быть оснащены технологическими комплектами малой механизации для устройства верхнего строения пути и бетонирования постоянных путей.
6.9.3 Доставку инструментов и материалов в тоннель следует осуществлять согласно ППР с использованием стволов шахт, материальных скважин и рельсоспусков; к месту укладки путей - электровозной или мотовозной тягой по путям узкой и нормальной колеи.
6.9.4 Смонтированный, отрихтованный и раскрепленный путь по акту передается маркшейдерам генподрядной строительной организации под укладку путевого бетона.
6.9.5 Бетонное основание пути после сборки опалубки водоотводного лотка и противоугонных приямков надлежит очищать и промывать струей воды под напором, рельсовые стыки, узлы скрепления и стержни распорных домкратов - защищать от загрязнения.
6.9.6 Бетонирование пути выполняют участками длиной не менее 25 м с тщательным уплотнением уложенной бетонной смеси вибраторами. Окончание участка следует оформлять как деформационный шов.
При механизации бетонных работ с использованием бункерных тележек или бетононасосов целесообразно применять бетонные узлы на рельсовом ходу для приготовления бетонной смеси непосредственно на участке бетонирования.
Распорные домкраты, опалубку водоотводного лотка и противоугонных приямков следует снимать при достижении путевым бетоном не менее 50% проектной прочности.
Обнаруженные под шпалами и коротышами пустоты заполняют цементно-песчаным раствором состава 1:2, нагнетая его ручным насосом через пробуренные в бетоне отверстия.
Движение подвижного состава по забетонированному пути допускается для транспортных единиц весом до 0,5 т при достижении бетоном 30% проектной прочности и весом свыше 0,5 т - 70% проектной прочности.
6.9.7 Путеукладочные работы на наземных участках выполняют после:
- завершения работ по дренажным устройствам и прокладке всех подземных коммуникаций;
- подготовки земляного полотна и сдачи его под монтаж пути;
- установки путейских реперов.
Устройство земляного полотна и верхнего строения пути следует выполнять согласно СП 119.13330.
6.9.8 Пути с железобетонными шпалами на наземных участках, включая парковые пути электродепо, нужно укладывать на подготовленное земляное полотно звеньями по 25 м, материалы доставлять в "голову" укладки мотовозной тягой на платформах с краном по уложенным и отрихтованным участкам пути.
Укладку парковых путей следует вести одновременно с укладкой стрелочных переводов начиная от рельсовых стыков за крестовинами или от стыков рамных рельсов.
Пути в зданиях электродепо следует укладывать на подготовленные конструкции смотровых канав в направлении от стыка парковых путей.
6.9.9 Установку контактного рельса выполняют сварными рельсовыми плетями согласно 5.7.2.
6.9.10 Перед сдачей пути в эксплуатацию ходовые и контактные рельсы, скрепления, кронштейны и защитный короб следует очищать от пыли и грязи, кронштейны и скобы изоляторов - покрывать асфальтовым лаком.
6.10.1.1 ППР по транспортированию и монтажу оборудования должны разрабатываться монтажной организацией и соответствовать СП 48.13330.
6.10.1.2 Монтаж и использование грузоподъемных машин и механизмов, грузозахватных устройств, приспособлений и тары должны соответствовать [47].
6.10.1.3 Оборудование, изделия и материалы в комплекте с технической документацией предприятий-изготовителей поставляют для монтажа в установленных ППР порядке и сроки.
Тяжеловесное и крупногабаритное оборудование поставляют непосредственно в монтажную зону. При доставке оборудования к месту монтажа в упаковке следует вскрывать ее в присутствии заказчика и подрядчика.
6.10.1.4 После выполнения ревизий или ремонта оборудования его соответствие технической и проектной документации необходимо определять комиссией с участием представителей заказчика, подрядчика, исполнителя ревизии или ремонта.
6.10.1.5 Доставку крупногабаритного оборудования к месту монтажа на участках линий, сооружаемых закрытым способом, целесообразно осуществлять после укладки постоянных путей; для доставки кабельной продукции, труб и других длинномерных изделий следует использовать специальные скважины. На участках, сооружаемых открытым способом, для тех же целей оставляют проемы в перекрытиях и стенах сооружений.
6.10.1.6 Сооружения, сдаваемые под монтаж оборудования и коммуникаций, должны иметь временное освещение, вентиляцию, водоснабжение и электроснабжение.
К началу монтажных работ необходимо выполнить строительные работы в полном объеме.
6.10.1.7 Строительные объекты предъявляют к приемке для монтажа оборудования в целом или по частям в следующем составе:
- часть станции, включающая сооружения, расположенные в уровне платформы;
- эскалаторный тоннель с натяжной камерой, машинным помещением, соответствующими производственными и служебными помещениями;
- вестибюль с пешеходным переходом и лестничными сходами. Допускается приемка помещений по частям: помещения в уровне кассового зала; помещения в уровне платформы и промежуточного этажа; пешеходный переход; лестничные сходы с подлестничными помещениями. При этом в первую очередь предъявляют к приемке производственные помещения;
- участок перегонного тоннеля от станции до токораздела, включая сопряжения с притоннельными сооружениями;
- отдельное подземное или наземное сооружение.
6.10.1.8 Готовность строительной части сооружений для начала монтажных работ подтверждают комиссионной приемкой. При приемке помещений необходимо проверять соответствие выполненных работ данным проектной документации и технической документации предприятий - изготовителей оборудования.
6.10.1.9 Перед началом монтажа эскалаторов реперами следует обозначить:
- уровень нижней входной площадки;
- уровень верхней входной площадки;
- нижнюю вертикальную базу;
- верхнюю вертикальную базу;
- ось эскалаторного тоннеля;
- места для установки струн-осей эскалаторов.
Места установки реперов выбирают с учетом их использования на всех этапах монтажа и в период эксплуатации. При установке реперов допустимые отклонения от данных строительного задания следует принимать согласно 6.3.
6.10.2.1 Требования к монтажным работам приведены в следующих нормативных документах:
а) электротехнические устройства - СП 76.13330, ГОСТ 10434 и [15];
б) системы автоматизации - СП 77.13330;
в) устройства управления движением поездов - [49] и [50];
г) устройства связи - [51];
д) устройства защитного заземления - [15];
е) санитарно-технические установки - СП 73.13330, СП 75.13330;
ж) эскалаторы - [52];
и) лифты - ГОСТ Р 53780;
к) сосуды, работающие под давлением, - [62];
л) краны - [47]".
6.10.2.2 При выполнении монтажных работ следует использовать нормокомплекты специальных инструментов, механизмов и приспособлений по видам работ.
6.10.2.3 Части эскалаторов с применением резины в случае хранения при отрицательной температуре перед монтажом следует выдерживать до достижения ими температуры воздуха в эскалаторном помещении, но не ниже 5°С.
До монтажа лестничного полотна выполняют наладку механической части аварийного и рабочего тормозов.
При монтаже лестничного полотна допускается применение выносного пульта управления.
6.10.2.4 При установке оборудования окончательную затяжку гаек анкерных болтов следует осуществлять при достижении не менее 70% проектной прочности материала подливки гнезд. Опорная поверхность оборудования должна плотно прилегать к основанию.
6.10.2.5 Проходы электропроводок через несущие конструкции и перекрытия следует выполнять в стальных трубах, через перегородки - в проемах, коробах, трубах.
6.10.2.6 Заземляющие проводники должны быть защищены от коррозионных воздействий, механических повреждений и доступны для осмотра. При использовании стальных труб в качестве заземляющих проводников необходимо соблюдать непрерывность цепи в местах их соединения.
6.10.3.1 Объем индивидуальных испытаний оборудования электроустановок должен соответствовать требованиям документации предприятий-изготовителей.
В состав испытаний входят:
- проверка соответствия установленного оборудования проектной документации и нормативным требованиям;
- подготовка к включению механического и электрооборудования;
- проверка работы установки на холостом ходу поэлементно на местном управлении с питанием по временной или постоянной схеме;
- испытание оборудования на холостом ходу и под нагрузкой.
6.10.3.2 До начала индивидуальных испытаний на электроустановке вводится режим согласно [54].
6.10.3.3 При выявлении дефектов в процессе индивидуальных испытаний оборудования и трубопроводов испытание нужно повторять после устранения дефектов.
6.10.3.4 Индивидуальные испытания эскалатора следует проводить в три этапа.
Первый этап - опробование привода. Проводится после монтажа зоны Е (согласно [52]) блокировочных устройств и наладки электрооборудования. Опробованию подлежат аппараты схемы управления, рабочий тормоз, блокировочные устройства, главный и вспомогательный приводы.
Второй этап - опробование привода с лестничным полотном. Проводится после монтажа лестничного полотна. Эскалатор включается в работу от вспомогательного привода "на подъем" и "на спуск" до полного оборота лестничного полотна.
Третий этап - опробование работы эскалатора от главного привода по 1 ч в каждом направлении при завершении всех монтажных работ.
6.10.3.5 Испытания санитарно-технических систем осуществляют по СП 73.13330. Требования к испытаниям систем с применением пластмассовых трубопроводов приведены в [55].
Испытания проводят до начала отделочных работ.
6.10.3.6 Системы внутреннего холодного и горячего водоснабжения испытывают гидростатическим или манометрическим методом до установки водоразборной арматуры.
Манометрические испытания систем надлежит проводить в следующей последовательности:
- систему заполняют воздухом давлением 0,15 МПа;
- при обнаружении утечек воздуха на слух снижают давление до атмосферного и устраняют дефекты; затем систему следует заполнить воздухом давлением 0,1 МПа и выдержать ее под пробным давлением в течение 5 мин. Система признается выдержавшей испытание, если падение давления не превысит 0,01 МПа.
6.10.3.7 Испытание водяных систем отопления и теплоснабжения следует проводить при отключенных расширительных сосудах гидростатическим методом давлением, равным 1,5 рабочего давления, но не менее 0,2 МПа в самой нижней точке системы. Система признается выдержавшей испытание, если в течение 5 мин падение давления не превысит 0,02 МПа и отсутствуют течи в элементах системы.
6.10.3.8 Паровые системы отопления и теплоснабжения с рабочим давлением до 0,07 МПа следует испытывать гидростатическим методом давлением 0,25 МПа в нижней точке системы; системы с рабочим давлением более 0,07 МПа - гидростатическим методом давлением, равным рабочему давлению плюс 0,1 МПа, но не менее 0,3 МПа в верхней точке системы. Система признается выдержавшей испытание, если в течение 5 мин падение давления не превысит 0,02 МПа и отсутствуют течи в элементах системы.
6.10.3.9 Системы парового отопления и теплоснабжения после гидростатических или манометрических испытаний проверяют путем пуска пара с рабочим давлением системы. При этом утечки пара не допускаются.
6.10.3.10 Системы внутренней канализации следует испытывать методом пролива воды путем одновременного открытия 75% санитарных приборов, подключенных к проверяемому участку в течение времени, необходимого для его осмотра. Выдержавшей испытание считается система, если при ее осмотре не обнаружены течи в местах соединений трубопроводов.
6.10.3.11 Системы внутренних водостоков следует испытывать наполнением их водой до уровня наивысшей водосточной воронки. Продолжительность испытания - не менее 10 мин. Водостоки считаются выдержавшими испытание, если при осмотре не обнаружены течи и уровень воды в стояках не понизился.
6.10.3.12 Напорные сети канализации и водоотлива, выполненные из стальных труб с чугунной арматурой, следует испытывать гидростатическим давлением 1,25 рабочего давления, но не менее 0,5 МПа. Продолжительность испытаний - не менее 10 мин, в течение которых давление не должно снижаться более чем на 0,05 МПа.
6.10.3.13 Системы вентиляции и кондиционирования воздуха следует испытывать после завершения общестроительных и отделочных работ в помещениях вентиляционных установок и проведения индивидуальных испытаний устройств электроснабжения, теплоснабжения и др.
Напорные воздуховоды вытяжной системы вентиляции аккумуляторных помещений (при установке в них открытых кислотных аккумуляторов) испытывают давлением, превышающим в 2 раза рабочее. При испытании в течение 1 ч допускается снижение давления не более чем на 10%.
Испытание вентиляторов систем тоннельной вентиляции проводят в соответствии с инструкциями предприятий-изготовителей.
6.10.3.14 Требования к испытаниям изоляции электрооборудования напряжением выше 1 кВ повышенным напряжением постоянного тока приведены в [56].
6.10.3.15 Изоляцию электрооборудования напряжением от 60 В до 1 кВ включительно и цепей вторичной коммутации следует испытывать путем измерения ее сопротивления мегомметром на 2,5 кВ. Сопротивление изоляции должно быть не ниже 0,5 МОм.
Изоляцию электрооборудования иностранных фирм, имеющую электрическую прочность ниже нормы, при отсутствии указаний поставщика испытывают напряжением, составляющим 90% заводского испытательного напряжения.
Испытания заземляющих устройств электроустановок проводят согласно [15].
6.10.3.16 Прочность конструкций для подвешивания светильников при отсутствии указаний в проектной документации следует испытывать в течение 10 мин путем приложения к ним статической нагрузки, равной:
а) для светильников весом до 100 кгс - пятикратной к весу светильника;
б) для светильников весом более 100 кгс - двукратной к весу светильника плюс 80 кгс.
Конструкцию признают выдержавшей испытания при отсутствии видимых деформаций.
6.10.3.17 Индивидуальные испытания систем автоматизации и связи проводят автономно по каждой системе без нагрузки, под нагрузкой и с корректировкой параметров настройки систем в процессе индивидуального испытания оборудования.
6.10.3.18 Кабельные линии систем связи испытывают путем измерения:
- сопротивления изоляции;
- омического сопротивления шлейфа;
- омической асимметрии жил;
- переходного затухания на ближнем конце;
- переходного затухания на дальнем конце;
- входного сопротивления;
- рабочего затухания.
Парные кабели испытывают путем проведения комплекса измерений постоянным током до и после включения их в постоянные устройства, прослушивания и измерения переходных затуханий.
6.10.3.19 Волоконно-оптические линии систем связи [57] испытывают до и после включения их в постоянные устройства путем измерения:
- затухания в оптическом волокне кабеля;
- уровня мощности оптического излучения на выходе оптического волокна или оптоэлектронного модуля;
- коэффициента ошибок в цифровом линейном тракте на выходах оконечного и промежуточного оборудования линейного световодного тракта;
- стыковых соединений.
Вносимое затухание в неразъемном соединении (муфте) для одномодовых оптических волокон должно быть не более 0,1 дБ, дополнительные потери, вносимые за счет компактной укладки волокон в муфте, - не более 0,01 дБ; для многомодовых волокон - 0,30 и 0,03 дБ соответственно.
При проведении измерений следует руководствоваться ГОСТ 26814.
6.11.1 Параметры микроклимата, химические и физические факторы в производственных и административно-бытовых помещениях на строительной площадке должны соответствовать СанПиН 2.2.4.548, ГН 2.2.5.1313 и ГН 2.2.5.2308.
6.11.2 Искусственное освещение в помещениях и на территории строительных площадок должно соответствовать СП 52.13330 и [58].
6.11.3 Требования к параметрам микроклимата рабочей зоны подземных выработок приведены в таблице 6.8.
Таблица 6.8
|
Факторы микроклимата |
Допустимые значения | ||
|
Температура воздуха,°С |
16-19 |
20-23 |
24-26 |
|
Относительная влажность, % |
80-30 |
75-30 |
70-30 |
|
Скорость движения воздуха, м/с |
0,1-0,5 |
0,6-1 |
1,1-1,5 |
|
Примечания 1 B обводненных грунтах допускается превышение относительной влажности на 10%. 2 Большая скорость движения воздуха соответствует его максимальной температуре. | |||
6.11.4 Требования к химическому составу воздуха в рабочей зоне, содержанию в нем пыли и аэрозолей приведены в ГН 2.2.5.1313 и [35].
6.11.5 Помещения, в которых может происходить выделение вредных химических веществ, следует оборудовать специальными обособленными приточно-вытяжными системами вентиляции.
Вентиляционные системы должны обеспечивать нормативные параметры воздушной среды в расчете на максимальную рабочую смену и с учетом возможного загрязнения воздуха вредными газами, пылью, масляными и сварочными аэрозолями, токсичными выделениями из битума, красок, лаков и др.
6.11.6 Для снижения концентрации пыли в воздухе до нормативных значений следует предусматривать устройства пылеподавления или пылеулавливания, а также применение машин для разработки забоев только с местными отсасывающими системами.
6.11.7 Для работающих на открытом воздухе, в условиях замороженных грунтов и в неотапливаемых помещениях необходимо оборудовать пункты обогрева и укрытия от непогоды с температурой воздуха 22°С-24°С, расположенные не далее 100 м от рабочего места и за границами опасных зон.
6.11.8 Для работающих под землей должны быть предусмотрены места для приема пищи, питьевые фонтанчики и туалет в соответствии с СанПиН 2.2.4.548.
На строительных площадках не далее 100 м от рабочих мест должны быть предусмотрены освещаемые туалеты.
7.1.1 Приемка в эксплуатацию должна охватывать все виды сооружений, оборудования, конструкций и работ, включая скрытые работы.
7.1.2 Объекты строительства следует предъявлять к приемке только после устранения выявленных недоделок и замечаний, проведения пусконаладочных работ и испытаний, опробования установленного оборудования и обеспечения заданных технических параметров и режимов работы оборудования.
7.1.3 Допускается приемка и введение в эксплуатацию объектов строительства как в полном объеме, так и отдельными очередями или пусковыми комплексами, если это предусмотрено проектной документацией и требованиями заказчика-застройщика.
На каждую законченную строительством линию или участок метрополитена, предусматривающего возможность перевозки пассажиров, составляется паспорт линии согласно приложению К.
Из состава пусковых комплексов не должны исключаться:
- здания и сооружения, предназначенные для обслуживания работников метрополитена, обеспечивающие здоровые и безопасные условия труда;
- сооружения и устройства, отсутствие которых ухудшает противопожарное состояние объекта;
- мероприятия по защите окружающей среды;
- соединительные ветки между линиями метрополитена и путями общей сети железных дорог;
- системы автоматики и телемеханики движения поездов (АТДП) и инженерно-технические установки (ИТУ);
- линии связи;
- мероприятия по благоустройству территории после окончания строительства;
- объединенные мастерские для ремонта оборудования (эскалаторов, трансформаторов, электродвигателей, насосов, вентиляторов и др.), а также базы аварийно-восстановительных средств;
- сооружения и устройства, обеспечивающие безопасные условия перевозки пассажиров.
7.1.4 Для приемки в эксплуатацию объекта строительства в целом генеральный подрядчик представляет приемочной комиссии документацию согласно приложению И. По завершении работы комиссии документация передается эксплуатационным службам. Допускается передача документации в виде информационной модели объекта строительства.
7.1.5 При установленных сроках ввода объектов строительства в эксплуатацию в I и IV кварталах года, а для северной климатической зоны - и в апреле месяце срок выполнения отдельных видов работ (благоустройство территории и т.п.) по решению приемочной комиссии может быть перенесен.
7.1.6 Приемочная комиссия назначается приказом застройщика. В состав комиссии входят:
- представители застройщика (технического заказчика) (при заключении договора);
- представители эксплуатирующих организаций;
- представители лица, осуществляющего строительство;
- представители лица, подготовившего проектную документацию;
- представители лица, осуществляющего авторский надзор (при заключении договора);
- иные лица, осуществляющие строительство.
7.2.1 Приемку выполненных работ заказчик проводит в течение всего периода строительства путем совместного освидетельствования сдаваемых работ в натуре и проверки соответствия этих работ проектной документации или информационной модели.
7.2.2 Контроль качества строительных работ осуществляется производителем работ, инспекцией технадзора заказчика, а также авторским надзором проектной организации в случаях, предусмотренных [40]. Результаты контроля следует фиксировать в журналах производства работ. Показатели оценки качества выполненных работ отражают в актах приемки и/или информационной модели (при наличии).
7.2.3 Приемку скрытых работ проводят для следующих работ:
- нагнетание раствора за обделку;
- установка арматуры монолитных обделок;
- сварка металлической гидроизоляции;
- подготовка поверхности тюбингов перед установкой водоотводящего зонта;
- укрепительная цементация грунта за обделкой;
- забутовка временных выработок.
Примечание - При приемке особо ответственных конструкций участие представителей проектных организаций, осуществляющих авторский надзор, является обязательным.
7.2.4 При приемке работ по возведению конструкций тоннелей необходимо проводить осмотр конструкций в натуре, проверять их соответствие рабочей документации информационной модели (при наличии) и настоящему своду правил, проверять чистоту поверхности обделки, качество заполнения чеканочных швов, болтовых и других отверстий, исправление мелких дефектов обделки, отсутствие течей и сырых пятен.
При приемке необходимо представлять:
- рабочие чертежи с записью о соответствии выполненных в натуре работ этим чертежам, подписанные лицами, ответственными за производство строительно-монтажных работ, и согласованные проектной организацией (исполнительные чертежи);
- документы, удостоверяющие качество примененных материалов, конструкций и деталей;
- акты освидетельствования скрытых работ, журналы производства работ и авторского надзора.
7.2.5 При приемке сборной обделки тоннелей необходимо проверять:
- внутренние размеры уложенных колец;
- расположение колец в плане и профиле, их число, перевязку швов, ширину зазора между кольцами, а также наличие болтов;
- выполнение антикоррозийной защиты, заполнение заобделочных пустот раствором.
Кроме того, следует устанавливать наличие течей, сырых пятен, трещин, уступов между блоками, сколов и деформированных блоков.
Правильность сборки колец тоннельных обделок проверяют путем измерения горизонтального и вертикального диаметров каждого кольца, а также двух диаметров под углом 45° к горизонту.
Допускаемые отклонения фактических размеров сборных обделок тоннелей от их проектного положения не должны превышать величин согласно приложению Ж.
При приемке следует представлять исполнительные чертежи на укладку колец обделки и сборных конструкций тоннелей при открытом способе работ, паспорта на сборные конструкции, данные маркшейдерских измерений, сведения о геометрии и отклонениях уложенных колец от проекта и журналы производства работ по:
- нагнетанию за обделку раствора;
- чеканочным работам;
- оклеечной гидроизоляции, а также протоколы лабораторного анализа химического состава грунтовых вод.
7.2.6 При приемке работ по гидроизоляции сборной обделки тоннелей, сооружаемой закрытым способом, следует осуществлять выборочную проверку качества выполнения отдельных операций путем контрольной подтяжки пробок (до 5%) и контрольной подтяжки болтов (до 3%) общего установленного количества.
Качество работ по нагнетанию за обделку раствора и ликвидации течей следует устанавливать внешним осмотром, проверкой отсутствия пустот за обделкой с помощью металлического щупа через разбуриваемые скважины и нагнетанием раствора во вновь пробуренные скважины.
Гидроизоляцию обделки следует считать выдержавшей гидравлическое испытание и подлежащей приемке, если она окажется водонепроницаемой после испытания в течение 3 ч при заданном в проектной документации гидростатическом давлении, фиксируемом показаниями контрольных манометров испытательной сети.
Качество зацементированного грунта, окружающего обделку, определяют нагнетанием воды в контрольные скважины, пробуренные с заглублением в грунт на 40-60 см.
Нагнетание следует считать законченным и удовлетворительным, если удельное водопоглощение грунта снижено и не превышает 0,01 л/мин.
При проверке качества гидроизоляции должны быть предъявлены журналы нагнетания раствора и чеканки швов.
7.2.7 Приемку выполненных работ по устройству оклеечной гидроизоляции в тоннелях следует осуществлять согласно [59].
Оклеиваемая поверхность считается сухой, если рулонный материал нельзя оторвать без его разрыва.
При контроле наклейки отдельных слоев гидроизоляции подлежат проверке:
- непрерывность слоя и правильность соединений полотнищ в стыках;
- отсутствие дефектов: воздушных и водяных пузырей, отслоений, складок, трещин, острых перегибов и переломов, оползаний и механических повреждений;
- правильность защиты концов гидроизоляционного покрытия, оставленных для наращивания.
Прочность приклейки рулонного материала в гидроизоляции следует проверять пробным отрывом у края. Приклейка считается прочной, если при отрыве произойдет разрыв материала или разрушение мастики.
Генеральный подрядчик предъявляет заказчику журналы гидроизоляционных работ, акты освидетельствования на скрытые работы, исполнительную документацию, сертификаты и паспорта на примененные материалы, образцы гидроизоляционных материалов и готового покрытия для сопоставления с требованиями проекта, технических условий на материалы, сводов правил и стандартов.
7.2.8 При приемке монолитных бетонных и железобетонных конструкций тоннелей подрядчик представляет заказчику:
- исполнительные чертежи на обделку с данными маркшейдерских измерений;
- сертификаты и паспорта, удостоверяющие марку и качество примененных материалов;
- журналы производства бетонных или железобетонных работ;
- журналы нагнетания раствора за обделку;
- акты на скрытые работы;
- протоколы лабораторного анализа химического состава грунтовых вод;
- акты испытания обделок тоннелей по ГОСТ 18105;
- данные химического анализа грунтовых вод.
При приемке арматуры железобетонных конструкций тоннелей следует проверять:
- соответствие рабочим чертежам марок стали по сертификатам, диаметры, количество и положение рабочей и распределительной арматуры;
- качество сборки каркаса, вязки элементов в узлах, стыкования стержней и качество сварки стержней арматуры по контрольным образцам.
7.2.9 При приемке верхнего строения пути и контактного рельса следует осуществлять проверку их показателей согласно проектной документации и ГОСТ 23961.
Надежность верхнего строения пути проверяют пропуском подвижного состава (пробных поездов) при скоростях движения, устанавливаемых приемочной комиссией в соответствии с проектной документацией.
7.2.10 Проверку соблюдения габаритов приближения строений и оборудования следует осуществлять первоначально с помощью габаритной тележки (шаблона) и окончательно - габаритным вагоном. Устранение выявленных отступлений от габаритов осуществляют по соответствующему предписанию.
7.2.11 Приемку в эксплуатацию объекта, на котором применена вновь осваиваемая технология, необходимо проводить независимо от соответствия достигнутых параметров проектным данным при условии выполнения всех работ, предусмотренных рабочей документацией.
7.3.1 Смонтированное инженерное оборудование по акту следует передавать заказчику для дальнейшего выполнения пусконаладочных работ.
7.3.2 Пусконаладочные работы следует выполнять в соответствии с СП 73.13330, СП 75.13330, наставлением [48], рабочей документацией, техническими условиями и эксплуатационной документацией предприятий - изготовителей оборудования.
7.3.3 Пусконаладочные работы включают в себя проверку, регулировку, настройку, тренировку и электрические измерения оборудования и систем, а также их контрольный пуск (опробование). Работы выполняются перед индивидуальными испытаниями, в период наладки и при комплексном опробовании оборудования.
Состав и программа пусконаладочных работ должны соответствовать техническим условиям предприятий - изготовителей оборудования, правилам по охране труда и технике безопасности, пожарной безопасности, а для эскалаторов, подъемного оборудования и оборудования, работающего под давлением, - требованиям Госгортехнадзора России.
В результате проведения пусконаладочных работ параметры оборудования и систем должны быть доведены до заданных проектных показателей или (при их отсутствии) до паспортных значений завода-изготовителя.
7.3.4 Выявляемые в процессе наладки и комплексного опробования оборудования дополнительные работы, не предусмотренные проектной документацией, выполняют в установленном порядке.
7.3.5 Дефекты оборудования, выявленные в процессе индивидуальных испытаний и наладки, должны устраняться заказчиком или предприятием-изготовителем до приемки объекта в эксплуатацию.
7.3.6 Для участия в пусконаладочных работах допускается привлекать инженерно-технический персонал организаций, принимающих в эксплуатацию эти объекты.
7.3.7 Пусконаладочные работы следует оформлять протоколами измерений технологических параметров, поверок и актами комплексных испытаний.
Заказчик передает наладочной организации:
- два комплекта проектной документации, утвержденной к производству работ;
- комплект эксплуатационной документации предприятий-изготовителей;
- заданные параметры работы оборудования, уставки электрических защит, блокировок и автоматики;
- запасные части и специальные инструменты, поступающие комплектно с оборудованием.
7.3.8 Заказчик назначает ответственных представителей по приемке пусконаладочных работ, согласовывает сроки выполнения работ, выделяет на объекте помещения для наладочного персонала и обеспечивает их охрану, создает на объекте необходимые условия безопасности труда и производственной санитарии.
7.3.9 Комплексное опробование эскалаторов следует осуществлять путем 48-часовой обкатки каждого эскалатора без нагрузки: 24 ч на подъем и 24 ч - на спуск.
7.3.10 Пусконаладочные работы по устройствам связи выполняют в процессе монтажных работ.
Выход в эфир при настройке радиопередатчиков допускается только на частотах, сообщенных заказчиком.
7.3.11 Фотометрические измерения осветительных установок следует проводить по ГОСТ Р 54944.
Горизонтальную освещенность в пассажирских помещениях следует измерять на линии центральной продольной оси под светильниками и между ними, а также на расстоянии 1 м от стены помещения или края платформы.
Приложение А
(обязательное)
В настоящем своде правил использованы ссылки на следующие нормативные документы.
ГОСТ Р 51261-99 Устройства опорные стационарные реабилитационные
ГОСТ 33652-2015 Лифты пассажирские. Технические требования доступности, включая доступность для инвалидов и других маломобильных групп населения
ГОСТ Р 52875-2007 Указатели тактильные наземные для инвалидов по зрению
ГОСТ Р 53299-2009 Воздуховоды. Метод испытаний на огнестойкость
ГОСТ 31937-2011 Здания и сооружения. Правила обследования и мониторинга технического состояния
ГОСТ 27751-2014 Надежность строительных конструкций и оснований. Основные положения
ГОСТ Р ИСО 2531-2008 Трубы, фитинги, арматура и их соединения из чугуна с шаровидным графитом для водо- и газоснабжения. Технические условия
ГОСТ 1412-85 Чугун с пластинчатым графитом для отливок. Марки
ГОСТ 3262-75* Трубы стальные водогазопроводные. Технические условия
ГОСТ 6942-98 Трубы чугунные канализационные и фасонные части к ним. Общие технические условия
ГОСТ 7293-85 Чугун с шаровидным графитом для отливок. Марки
ГОСТ 8732-78* Трубы стальные бесшовные горячедеформированные. Сортамент
ГОСТ 8816-2003 Брусья деревянные для стрелочных переводов железных дорог широкой колеи. Технические условия
ГОСТ 9479-98 Блоки из горных пород для производства облицовочных архитектурно-строительных, мемориальных и других изделий. Технические условия
ГОСТ 9940-81* Трубы бесшовные горячедеформированные из коррозионно-стойкой стали. Технические условия
ГОСТ 10060-2012 Бетоны. Методы определения морозостойкости
ГОСТ 10180-2012 Бетоны. Методы определения прочности по контрольным образцам
ГОСТ 10434-82* Соединения контактные электрические. Классификация. Общие технические требования
ГОСТ 10704-91 Трубы стальные электросварные прямошовные. Сортамент
ГОСТ 18105-2010 Бетоны. Правила контроля и оценки прочности
ГОСТ 22733-2002 Грунты. Метод лабораторного определения максимальной плотности
ГОСТ 22830-77* Шпалы деревянные для метрополитена. Технические условия
ГОСТ 23961-80 Метрополитены. Габариты приближения строений, оборудования и подвижного состава
ГОСТ 24846-2012 Грунты. Методы измерения деформаций оснований зданий и сооружений
ГОСТ 26633-2015 Бетоны тяжелые и мелкозернистые. Технические условия
ГОСТ 26814-86 Кабели оптические. Методы измерения параметров
ГОСТ 28196-89* Краски водно-дисперсионные. Технические условия
ГОСТ 32805-2014 Материалы гибкие рулонные кровельные битумосодержащие. Общие технические условия
ГОСТ 31416-2009 Трубы и муфты хризотилцементные. Технические условия
ГОСТ 9.402-2004 ЕСЗКС. Покрытия лакокрасочные. Подготовка металлических поверхностей к окрашиванию
ГОСТ 9.602-2005 ЕСЗКС. Сооружения подземные. Общие требования к защите от коррозии
ГОСТ 12.1.005-88* ССБТ. Общие санитарно-гигиенические требования к воздуху рабочей зоны
ГОСТ 12.4.059-89 ССБТ. Строительство. Ограждения предохранительные инвентарные. Общие технические условия
ГОСТ 17.1.3.13-86 Охрана природы. Гидросфера. Общие требования к охране поверхностных вод от загрязнения
ГОСТ 17.1.5.02-80 Охрана природы. Гидросфера. Гигиенические требования к зонам рекреации водных объектов
ГОСТ 17.4.2.01-81 Охраны природы. Почвы. Номенклатура показателей санитарного состояния
ГОСТ 17.4.3.06-86 Охрана природы. Почвы. Общие требования к классификации почв по влиянию на них химических загрязняющих веществ
ГОСТ Р 53780-2010 (ЕН 81-1:1998, ЕН 81-2:1998) Лифты. Общие требования безопасности к устройству и установке
ГОСТ Р 54944-2012 Здания и сооружения. Методы измерения освещенности
ГОСТ Р 55555-2013 Платформы подъемные для инвалидов и других маломобильных групп населения. Требования безопасности и доступности. Часть 1. Платформы подъемные с вертикальным перемещением
ГОСТ Р 55556-2013 Платформы подъемные для инвалидов и других маломобильных групп населения. Требования безопасности и доступности. Часть 2. Платформы подъемные с наклонным перемещением
ГОСТ Р ИСО 2531-2012 Трубы, фитинги, арматура и их соединения из чугуна с шаровидным графитом для водо- и газоснабжения. Технические условия
ГОСТ 3262-75 Трубы стальные водогазопроводные. Технические условия
ГОСТ 5746-2015 Лифты пассажирские. Основные параметры и размеры
ГОСТ 7392-2014 Щебень из плотных горных пород для балластного слоя железнодорожного пути. Технические условия
ГОСТ 8816-2014 Брусья деревянные для стрелочных переводов железных дорог широкой колеи. Технические условия
ГОСТ 9479-2011 Блоки из горных пород для производства облицовочных, архитектурно-строительных, мемориальных и других изделий. Технические условия
ГОСТ 10704-91 Трубы стальные электросварные прямошовные. Сортамент
ГОСТ 10884-94 Сталь арматурная термомеханически упрочненная для железобетонных конструкций. Технические условия
ГОСТ 25100-2011 Грунты. Классификация
ГОСТ 29322-2014 (IEC 60038:2009) Напряжения стандартные
ГОСТ 30247.1-94 (ИСО 834-75) Конструкции строительные. Методы испытаний на огнестойкость. Несущие и ограждающие конструкции
ГОСТ 30247.3-2002 Конструкции строительные. Методы испытаний на огнестойкость. Двери шахт лифтов
ГОСТ 30732-2006 Трубы и фасонные изделия стальные с тепловой изоляцией из пенополиуретана с защитной оболочкой. Технические условия
ГОСТ 31189-2015 Смеси сухие строительные. Классификация
ГОСТ 31357-2007 Смеси сухие строительные на цементном вяжущем. Общие технические условия
ГОСТ 31384-2008 Защита бетонных и железобетонных конструкций от коррозии. Общие технические требования
ГОСТ 33320-2015 Шпалы железобетонные для железных дорог. Общие технические условия
СП 2.13130.2012 Системы противопожарной защиты. Обеспечение огнестойкости объектов защиты
СП 3.5.3.3223-14 Санитарно-эпидемиологические требования к организации и проведению дератизационных мероприятий
СП 17.13330.2011 "СНиП 11-26-76 Кровли"
СП 49.13330.2010 "СНиП 12-03-2001 Безопасность труда в строительстве. Часть 1. Общие требования"
СП 88.13330.2014 "СНиП II-11-77* Защитные сооружения гражданской обороны"
СП 126.13330.2012 "СНиП 3.01.03-84 Геодезические работы в строительстве"
СП 165.1325800.2004 "СНиП 2.01.51-90 Инженерно-технические мероприятия по гражданской обороне"
СП 14.13330.2014 "СНиП II-7-81* Строительство в сейсмических районах" (с изменением N 1)
СП 16.13330.2011 "СНиП II-23-81* Стальные конструкции" (с изменением N 1)
СП 20.13330.2011 "СНиП 2.01.07-85* Нагрузки и воздействия"
СП 21.13330.2012 "СНиП 2.01.09-91 Здания и сооружения на подрабатываемых территориях и просадочных грунтах"
СП 22.13330.2016 "СНиП 2.02.01-83* Основания зданий и сооружений".
СП 25.13330.2012 "СНиП 2.02.04-88 Основания и фундаменты на вечномерзлых грунтах"
СП 28.13330.2012 "СНиП 2.03.11-85 Защита строительных конструкций от коррозии" (с изменением N 1)
СП 30.13330.2016 "СНиП 2.04.01-85* Внутренний водопровод и канализация зданий"
СП 31.13330.2012 "СНиП 2.04.02-84* Водоснабжение. Наружные сети и сооружения" (с изменениями N 1, 2)
СП 32.13330.2012 "СНиП 2.04.03-85 Канализация. Наружные сети и сооружения" (с изменением N 1)
СП 35.13330.2011 "СНиП 2.05.03-84* Мосты и трубы"
СП 37.13330.2012 "СНиП 2.05.07-91* Промышленный транспорт"
СП 44.13330.2011 "СНиП 2.09.04-87* Административные и бытовые здания"
СП 45.13330.2012 "СНиП 3.02.01-87 Земляные сооружения, основания и фундаменты"
СП 47.13330.2012 "СНиП 11-02-96 Инженерные изыскания для строительства. Основные положения"
СП 48.13330.2011 "СНиП 12-01-2004 Организация строительства"
СП 51.13330.2011 "СНиП 23-03-2003 Защита от шума"
СП 52.13330.2011 "СНиП 23-05-95* Естественное и искусственное освещение"
СП 56.13330.2011 "СНиП 31-03-2001 Производственные здания"
СП 59.13330.2012 "СНиП 35-01-2001 Доступность зданий и сооружений для маломобильных групп населения" (с изменением N 1)
СП 60.13330.2012 "СНиП 41-01-2003 Отопление, вентиляция и кондиционирование воздуха"
СП 63.13330.2012 "СНиП 52-01-2003 Бетонные и железобетонные конструкции. Основные положения" (с изменениями N 1, 2)
СП 66.13330.2011 Проектирование и строительство напорных сетей водоснабжения и водоотведения с применением высокопрочных труб из чугуна с шаровидным графитом (с изменением N 1)
СП 70.13330.2012 "СНиП 3.03.01-87 Несущие и ограждающие конструкции"
СП 72.13330.2011 "СНиП 3.04.03-85 Защита строительных конструкций и сооружений от коррозии"
СП 73.13330.2012 "СНиП 3.05.01-85 Внутренние санитарно-технические системы"
СП 75.13330.2011 "СНиП 3.05.05-84 Технологическое оборудование и технологические трубопроводы"
СП 76.13330.2011 "СНиП 3.05.06-85 Электротехнические устройства"
СП 77.13330.2011 "СНиП 3.05.07-85 Системы автоматизации"
СП 104.13330.2011 "СНиП 2.06.15-85 Инженерная защита территорий от затопления и подтопления"
СП 116.13330.2012 "СНиП 22-02-2003 Инженерная защита территорий, зданий и сооружений от опасных геологических процессов. Основные положения"
СП 119.13330.2012 "СНиП 32-01-95 Железные дороги колеи 1520 мм"
СП 124.13330.2012 "СНиП 41-02-2003 Тепловые сети"
СП 131.13330.2012 "СНиП 23-01-99* Строительная климатология" (с изменением N 2)
СП 132.13330.2011 Обеспечение антитеррористической защищенности зданий и сооружений. Общие требования проектирования
СП 248.1325800.2016 Сооружения подземные. Правила проектирования
СП 373.1325800.2018 Источники теплоснабжения автономные. Правила проектирования
СП 7.13130.2013 Отопление, вентиляция и кондиционирование. Противопожарные требования
СП 8.13130.2009 Системы противопожарной защиты. Источники наружного противопожарного водоснабжения. Требования пожарной безопасности (с изменением N 1)
СП 10.13130.2009 Системы противопожарной защиты. Внутренний противопожарный водопровод. Требования пожарной безопасности (с изменением N 1)
СП 12.13130.2009 Определение категорий помещений, зданий и наружных установок по взрывопожарной и пожарной опасности (с изменением N 1)
СНиП 12-03-2001 Безопасность труда в строительстве. Часть 1. Общие требования
СНиП 12-04-2002 Безопасность труда в строительстве. Часть 2. Строительное производство
СанПиН 2.1.5.980-00 Гигиенические требования к охране поверхностных вод
СанПин 2.1.2.2645-10 Санитарно-эпидемиологические требования к условиям проживания в жилых зданиях и помещениях
СанПиН 2.1.4.1074-01* Питьевая вода. Гигиенические требования к качеству воды централизованных систем питьевого водоснабжения. Контроль качества. Гигиенические требования к обеспечению безопасности систем горячего водоснабжения
СанПиН 2.1.8/2.4.1190-03 Гигиенические требования к размещению и эксплуатации средств сухопутной подвижной радиосвязи
СанПиН 2.1.8/2.4.1383-03 Гигиенические требования к размещению и эксплуатации передающих радиотехнических объектов
СанПиН 2.2.1/2.1.1.1200-03 Санитарно-защитные зоны и санитарная классификация предприятий, сооружений и иных объектов, с изменениями N 1, N 2 (СанПиН 2.2.1/2.1.1.2555-09) и N 3 (СанПиН 2.2.1/2.1.1.2739-10)
СанПиН 2.2.2/2.4.1340-03 Гигиенические требования к персональным электронно-вычислительным машинам и организации работ, с изменениями N 1 (СанПиН 2.2.2/2.4.2198-07) и N 2 (СанПиН 2.2.2/2.4.2620-10)
СанПиН 2.2.4.1191-03 Электромагнитные поля в производственных условиях, с изменением N 1 (СанПиН 2.1.8/2.2.4.2490-09)
СанПиН 2.2.4.548-96 Гигиенические требования к микроклимату производственных помещений
СанПиН 2.2.4/2.1.8.582-96 Гигиенические требования при работах с источниками воздушного и контактного ультразвука промышленного, медицинского и бытового назначений
СанПиН 2.6.1.2523-09 Нормы радиационной безопасности НРБ-99/2009
СанПиН 2.2.4.548-96 Гигиенические требования к микроклимату производственных помещений
СН 2.2.4/2.1.8.562-96 Шум на рабочих местах, в помещениях жилых, общественных зданий и на территории жилой застройки
СН 2.2.4/2.1.8.566-96 Производственная вибрация, вибрация в помещениях жилых и общественных зданий
СН 2.2.4/2.1.8.583-96 Инфразвук на рабочих местах, в жилых и общественных помещениях и на территории жилой застройки
ГН 2.1.5.1315-03 Предельно допустимые концентрации (ПДК) химических веществ в воде водных объектов хозяйственно-питьевого и культурно-бытового водопользования
ГН 2.1.5.2307-07 Ориентировочные допустимые уровни (ОДУ) химических веществ в воде водных объектов хозяйственно-питьевого и культурно-бытового водопользования
ГН 2.1.6.2309-07 Ориентировочные безопасные уровни воздействия (ОБУВ) загрязняющих веществ в атмосферном воздухе населенных мест
ГН 2.1.6.1338-03 Предельно допустимые концентрации (ПДК) загрязняющих веществ в атмосферном воздухе населенных мест
ГН 2.1.8/2.2.4.2262-07 Предельно допустимые уровни магнитных полей частотой 50 Гц в помещениях жилых, общественных зданий и селитебных территориях
ГН 2.2.5.1313-03 Предельно допустимые концентрации (ПДК) вредных веществ в воздухе рабочей зоны
ГН 2.2.5.2308-07 Ориентировочные безопасные уровни воздействия (ОБУВ) вредных веществ в воздухе рабочей зоны
ГОСТ 9583-75 Трубы чугунные напорные, изготовленные методами центробежного и полунепрерывного литья. Технические условия
ГОСТ 18599-2001 Трубы напорные из полиэтилена. Технические условия
ГОСТ 32803-2014 Бетоны напрягающие. Технические условия
СП 3.13130.2009 Системы противопожарной защиты. Система оповещения и управления эвакуацией людей при пожаре. Требования пожарной безопасности
СП 122.13330.2012 "СНиП 32-04-97 Тоннели железнодорожные и автодорожные" (с изменением N 1)
СанПиН 2.1.7.1287-03 Санитарно-эпидемиологические требования к качеству почвы
СанПиН 2.1.7.1322-03 Гигиенические требования к размещению и обезвреживанию отходов производства и потребления
Приложение Б
(справочное)
В настоящем своде правил применяют следующие термины с соответствующими определениями.
Б.1 автоматизированное рабочее место диспетчера: Комплекс технических средств, позволяющих диспетчеру соответствующих подразделений метрополитена управлять оборудованием и получать достоверную информацию о его техническом состоянии в любое время;
Б.2 вентиляционный канал: Помещение (тоннель, отсек, коридор, вентиляционный ствол и др.) со свободным проходом по всей длине, используемое в качестве воздуховода в системах тоннельной вентиляции;
Б.3 вентиляционно-кабельный канал: Помещение (см. вентиляционный канал), используемое также для размещения в нем кабелей;
Б.4 вентиляционный киоск (венткиоск, киоск): Отдельно расположенное или встроенное сооружение на поверхности земли, используемое в вентиляционных системах для забора или выброса воздуха;
Б.5 визуальные средства информации: Носители информации в виде зрительно различимых текстов, знаков, символов, световых сигналов и т.п., передаваемых в том числе людям с нарушением функций органов слуха;
Б.6 воздушный промежуток контактного рельса: Зона, где контактный рельс разделяется на отдельные секции;
Б.7 вход адаптированный: Вход, приспособленный для прохода маломобильных посетителей, в том числе на креслах-колясках;
Б.8 гальваническая связь: Наличие непрерывной связи по металлу в строительных конструкциях, в проводниках электрических сетей и другое;
Б.9 гальваническое разделение: Отсутствие непрерывной связи по металлу в строительных конструкциях, в проводниках электрических сетей и другое;
Б.10 заложение линии
глубокое: Заложение, при котором станции и перегонные тоннели сооружаются через вертикальные стволы и наклонные эскалаторные тоннели без вскрытия дневной поверхности;
мелкое: Заложение, при котором станции сооружаются открытым способом (в том числе из-под перекрытия), со вскрытием дневной поверхности, перегонные тоннели - открытым или закрытым способом;
Б.11 зона безопасности: Зона (полоса) у края функционального элемента (площадки), предназначенная для предотвращения травмоопасных ситуаций;
Б.12 зона коллективной защиты пассажиров: Отдельное подземное помещение для размещения пассажиров при возникновении в перегонных тоннелях чрезвычайной ситуации, угрожающей жизни или здоровью пассажиров, оборудованное отдельными системами пожарной безопасности, освещения, связи, вентиляции и канализации;
Б.13 источник бесперебойного питания: Электроустановка, состоящая из агрегата бесперебойного питания, включающего аккумуляторную батарею и преобразователи электроэнергии, и распределительных устройств;
Б.14 кабельное сооружение (кабельный тоннель-коллектор, коридор, этаж, вентиляционный ствол, отсек, камера): Сооружение со свободным проходом по всей длине, предназначенное для размещения в нем кабелей и кабельных муфт;
Б.14а крепь: Конструкция, возводимая в подземных выработках в процессе проходки для сохранения их заданных размеров, защиты от обрушения и пучения окружающего грунта. Крепь обычно является составной частью обделки;
Б.15 линия метрополитена (линия): Автономная часть метрополитена со станциями, перегонами и тупиками, предназначенная для движения поездов по одному маршруту;
Б.15а маломобильная группа населения: Люди, испытывающие затруднения при самостоятельном передвижении, получении услуги, необходимой информации или при ориентировании в пространстве (в данном случае - это инвалиды, люди с временным нарушением здоровья, беременные, люди старших возрастов, люди с детскими колясками и т.п.);
Б.16 метрополитен: Вид электрифицированного городского внеуличного (подземного, наземного, надземного) пассажирского транспорта;
Б.16а обделка: Постоянная несущая строительная конструкция, закрепляющая подземную выработку и образующая ее внутреннюю поверхность.
Б.17 объект строительства (объект): Сооружение или группа сооружений, объединяемых единым функциональным назначением или технологическим процессом, строительство которого выполняется по разработанной и утвержденной в установленном порядке проектной документации;
Б.18 опасные производственные объекты: Объекты, на которых используются, транспортируются и хранятся взрывчатые вещества; используются стационарно установленные грузоподъемные механизмы (за исключением лифтов, подъемных платформ для инвалидов) и эскалаторы; ведутся проходческие работы, а также работы в подземных условиях;
Б.19 особо охраняемая природная территория: Территория города с расположенными на ней природными объектами, имеющими особое природоохранное, научное, культурное, эстетическое, рекреационное и оздоровительное значение, на которой в соответствии с законодательством установлен режим особой охраны.
Б.20 охранная зона: Участок городской территории, расположенный над действующим подземным сооружением метрополитена и в непосредственной близости от него, возможность использования которого для нового строительства, прокладки дорог, коммуникаций, бурения скважин и т.п. должна согласовываться с организацией, эксплуатирующей метрополитен;
Б.21 пандус: Сооружение, имеющее наклонную по направлению движения поверхность и предназначенное для перемещения с одного уровня горизонтальной поверхности пути на другой;
Б.22 пассажирооборот: Количество пассажиров, проходящих через расчетное сооружение в единицу времени;
Б.23 пассажиропоток: Количество пассажиров, которые проезжают или проходят через данное сечение на пути следования в одну или в обе стороны в единицу времени;
Б.24 пассажирский конвейер: Установка с механическим приводом для перемещения пассажиров, в которой несущая поверхность пластин или ленты остается параллельной направлению ее движения;
Б.25 пассажирская зона (помещение): Объемно-планировочные элементы станции (кассовый и эскалаторный залы, переходные коридоры и эскалаторные тоннели, лестницы, платформенные залы и др.), предназначенные для передвижения и пребывания пассажиров;
Б.26 перекрываемый (неперекрываемый) ВПКР: Промежуток между двумя участками контактного рельса, длина которого меньше (больше) расстояния между токоприемниками одного вагона;
Б.27 пересадочное сооружение: Сооружение между станциями, предназначенное для перехода пассажиров с одной станции на другую, включающее пассажирские помещения (коридоры), эскалаторы и лестницы, производственные и бытовые помещения;
Б.28 подъемное устройство (платформа): Стационарная грузоподъемная машина периодического действия для подъема и спуска пользователей, размещающихся на платформе. Платформы с вертикальным перемещением, отклонение траектории движения которых от вертикали не превышает 15°, платформы с наклонным перемещением, отклонение траектории движения которых от горизонтали не превышает 75°;
Б.29 полоса движения: Часть пешеходного пути, предназначенная для движения в один ряд в одном направлении;
Б.30 пошерстное (противошерстное) движение поезда: Движение поезда по стрелочному переводу в направлении от крестовины к остряку (от остряка к крестовине);
Б.31 провозная способность: Объем пассажирских перевозок (тыс. пассажиров в час) при максимально возможных размерах движения (число вагонов в поезде и поездов в час);
Б.32 пропускная способность: Размер движения (пар поездов), который может быть выполнен за единицу времени (час, сутки) в зависимости от технической оснащенности и способа организации движения поездов; расчетное число пассажиров для различных участков пути их движения;
Б.33 пусковой комплекс: Участок линии, часть станции, электродепо или другого объекта метрополитена совместно с их инженерными системами, выделяемый из состава объекта строительства, способный обеспечивать временное функционирование сооружения в первый период эксплуатации;
Б.34 пути линии:
главные: Пути для обращения поездов с пассажирами на перегонах и станциях;
станционные: Пути для оборота поездов, отстоя и технического обслуживания подвижного состава;
соединительные: Пути для соединения путей линии с путями электродепо или путями другой линии;
предохранительные (улавливающие): Пути, предназначенные для остановки потерявшего управление поезда, а также для предотвращения выхода подвижного состава на пути предполагаемого следования других поездов;
Б.35 пути электродепо:
парковые: Пути для проведения маневров, обкатки подвижного состава, погрузки и выгрузки грузов, расположенные вне зданий;
деповские: Пути для отстоя, технического обслуживания и ремонта подвижного состава, расположенные в зданиях;
Б.36 путь движения: Пешеходный путь, используемый пассажирами и МГН, в том числе на креслах-колясках, для перемещения по участку (дорожки, тротуары, пандусы и т.д.), а также внутри зданий и сооружений;
Б.37 сильноточная (слаботочная) сторона тоннеля: Сторона тоннеля, находящаяся слева (справа) по отношению к движущемуся в правильном направлении поезду;
Б.38 система гарантированного электроснабжения: Электроустановка, состоящая из устройства АВР, агрегата бесперебойного питания, включающего аккумуляторную батарею, преобразователи электроэнергии и распределительное устройство;
Б.39 система средств информации (информационные средства): Совокупность носителей информации, обеспечивающих для пассажиров и МГН своевременное ориентирование в пространстве, способствующих безопасности и удобству передвижения;
Б.40 среда жизнедеятельности: Материальная среда, окружающая человека, в которой или при помощи которой он осуществляет все свои жизненные потребности, в том числе здания и сооружения, их оборудование, оснащение и прилегающая территория;
Б.41 станция: Подземный, надземный или наземный остановочный пункт, предназначенный для посадки и высадки пассажиров, включающий вестибюли, эскалаторы или лестницы, платформенные и средний залы, помещения для обслуживания пассажиров, размещения эксплуатационного персонала и производственного оборудования;
Б.41а станция с закрытой платформой: Особый тип станции, посадочная платформа которой отгорожена от транспортной зоны стеной (колоннами) с раздвижными автоматическими дверьми;
Б.42 тактильное покрытие: Покрытие с ощутимым изменением фактуры поверхностного слоя;
Б.43 тактильные средства информации: Носители информации, передаваемой инвалидам по зрению и воспринимаемой путем осязания, т.е. прикосновением к ним;
Б.44 теплый период года (для подземных сооружений): Время года, в течение которого среднемесячные температуры наружного воздуха выше или равны естественной температуре грунта, измеренной до начала эксплуатации метрополитена;
Б.45 технические зоны:
техническая зона для строительства: Городская территория, отводимая в соответствии с генеральным планом развития города для последующего строительства участков линии метрополитена открытым способом, для размещения электродепо и других наземных сооружений, а также строительных площадок при строительстве объектов метрополитена закрытым способом;
техническая зона для эксплуатации: Свободный участок городской территории, непосредственно примыкающий к объекту метрополитена и используемый для обеспечения нормального функционирования объекта (входа и выхода пассажиров, размещения ремонтных машин, оборудования и материалов в период ремонтных работ);
Б.46 техническое средство реабилитации человека с ограниченными возможности жизнедеятельности: Любая продукция, инструмент, оборудование или технологическая система, используемые человеком с ограниченными возможностями жизнедеятельности и обладающие специальными свойствами, которые позволяют предотвратить, компенсировать, ослабить или нейтрализовать ограничение жизнедеятельности;
Б.46а исключен с 15 апреля 2020 г. - Изменение N 3
Б.47 тупик: Тоннель с одним или двумя станционными путями для оборота, отстоя и технического обслуживания подвижного состава на линии;
Б.48 тяговая сеть: Электрическая сеть, обеспечивающая подвод электроэнергии от подстанции к электроподвижному составу. В состав тяговой сети входят:
Б.49 контактная сеть: Контактный рельс, кабельные питающие линии, кабельные перемычки между участками контактного рельса, устройства присоединения кабелей к контактному рельсу;
Б.50 отсасывающая сеть: Ходовые рельсы, дроссель-трансформаторы, электрические соединители участков ходового рельса одного пути (проводом) и ходовых рельсов разных путей (кабелями или проводами), кабельные отсасывающие линии;
Б.50а уровень головок рельсов: Горизонтальная линия, касательная к верху головок рельсов, - на прямых участках трассы;
горизонтальная линия с отклонением от нее на половину возвышения вверх наружного рельса, вниз внутреннего рельса - на участках трассы, требующих устройства возвышения наружного рельса в тоннелях и закрытых наземных участках;
горизонтальная линия с отклонением от нее на величину возвышения вверх наружного рельса - на открытых участках трассы, требующих устройства возвышения наружного рельса;
Б.51 установка местной вентиляции: Установка, предназначенная для вентиляции производственных, бытовых, административных и других помещений подземных станций и притоннельных сооружений;
Б.52 установка тоннельной вентиляции: Установка, предназначенная для вентиляции пассажирских помещений подземных станций, перегонных, тупиковых и соединительных тоннелей;
Б.53 холодный период года (для подземных сооружений): Время года, в течение которого среднемесячные температуры наружного воздуха ниже естественной температуры грунта, измеренной до начала эксплуатации метрополитена.
Б.54 акт незаконного вмешательства: Противоправное действие (бездействие), в том числе террористический акт, угрожающее безопасной деятельности транспортного комплекса, повлекшее за собой причинение вреда жизни и здоровью людей, материальный ущерб либо создавшее угрозу наступления таких последствий.
Б.55 транспортная безопасность: Состояние защищенности объектов транспортной инфраструктуры и транспортных средств от актов незаконного вмешательства.
Приложение В
(рекомендуемое)
В.1.1 Система представляет собой комплекс технических средств для автоматизированного управления установками и устройствами, обеспечивающими нормальное функционирование станции, включая обслуживание пассажиров и организацию движения поездов, с использованием средств видеонаблюдения, связи, дистанционного управления и контроля.
В.1.2 Управление техническими средствами осуществляется из диспетчерского пункта станции дежурным по станции (диспетчером), обеспечивающим регулирование пассажиропотоков и организацию движения поездов в границах станции, контроль за обстановкой, состоянием помещений и установок на станции и в прилегающих перегонных тоннелях.
В.2.1 СУРС должна обеспечивать выполнение следующих функций:
- организацию пассажиропотоков и оперативное управление работой станции с использованием видеонаблюдения, средств связи и громкоговорящего оповещения;
- остановку и контроль работы эскалаторов;
- управление установками вентиляции, отопления и водоснабжения;
- контроль работы водоотливных и канализационных установок;
- управление группами освещения станции и перегонных тоннелей;
- управление сетями электрообогрева ступеней лестничных спусков в подуличные переходы на входах в подземные вестибюли станции;
- управление стрелками и сигналами на станции с путевым развитием;
- управление устройствами контроля прохода в тоннели;
- сигнализацию положения управляемых и контролируемых объектов;
- контроль состояния помещений с установками пожарной и охранной сигнализации.
В.2.2 Устройства СУРС размещают в помещениях:
- диспетчерского пункта станции (ДПС);
- дежурного по станции (ДСП);
- аппаратной, релейной, кроссовой, радиоузла, щитовой и др.;
- вентиляционных и насосных установок.
В помещении ДПС размещают:
- автоматизированное рабочее место диспетчера станции (АРМ ДПС);
- автоматизированное рабочее место дежурного по станционному посту ЭЦ (АРМЭЦ) на станции с путевым развитием;
- аппаратуру установок пожарной и охранной сигнализации;
- устройства включения сирен;
- устройства связи и громкоговорящего оповещения;
- видеоконтрольные устройства;
- цифровые электрочасы с секундным или пятисекундным отсчетом времени;
- станции управления вентиляционными и насосными установками;
- станции управления разъединителями контактной сети (на станции с путевым развитием).
В помещении ДСП размещают средства связи и громкоговорящего оповещения по отдельному заданию.
Примерная схема расположения оборудования в помещениях ДПС и ДСП приведена на рисунке В.1.

I- часы электрические вторичные; 2 - абонентская установка связи; 3 - пульт связи; 4 - пульт связи дополнительный; 5 - коммутатор громкоговорящего оповещения; 6 - устройство включения сирен; 7 - пульт громкоговорящего оповещения; 8 - пульт управления ВКУ; 9 - пульт СУРС; 10 - стойка с ВКУ;
II - устройства (АРМ) централизации; 12 - табло часовое; 13 - пульт управления разъединителями контактной сети; 14 - аппаратура установок пожарной и охранной сигнализации
* На промежуточных станциях оборудование не устанавливается. Рабочее место оператора отсутствует.
** В зависимости от типа выбранного оборудования возможна его установка на столе диспетчера.
Рисунок В.1- Схема расположения оборудования в помещениях ДПС станции с путевым развитием
B.2.3 Помещения ДПС должны отвечать следующим требованиям:
- помещения ДПС должны быть смежными и располагаться в уровне платформы с максимальным приближением к ней;
- ДПС на станциях с путевым развитием следует располагать со стороны путевого развития, а дополнительное помещение или кабину дежурного по станции - в уровне платформы с противоположной по отношению к ДПС стороны станции;
- помещения должны удовлетворять требованиям технической эстетики, иметь шумопоглощающую отделку, рабочее и аварийное освещение, вентиляцию и кондиционирование воздуха.
Помещение ДПС должно иметь дополнительную дверь шириной 1200 мм для монтажа оборудования.
В.3.1 Зоны видеонаблюдения на станции следует принимать согласно 5.13.
В.3.2 Каждой видеокамере должно соответствовать свое ВКУ. Несколько видеокамер (кроме видеокамер на площадках эскалаторов) допускается коммутировать на одно ВКУ.
Размещение ВКУ на отдельной стойке должно соответствовать расположению контролируемых зон на плане станции и обеспечивать видимость всех ВКУ с рабочего места диспетчера.
В.3.3 Видеокамеры должны обеспечивать передачу изображений с четкостью не менее 460 строк при уровне освещенности контролируемых зон не ниже установленных для применяемых телевизионных установок. При этом влияние источников света на снижение качества изображения на ВКУ должно быть минимальным.
В.3.4 Размещение видеокамер на верхней и нижней площадках эскалаторов должно обеспечивать обзор гребенок всех эскалаторов одновременно.
На пассажирских платформах видеокамеры должны устанавливаться по одной оси на расстоянии 100-150 мм от края платформы и на высоте не менее 2200 мм. При этом должна обеспечиваться видимость номера маршрута поезда.
В.3.5 Видеокамеры следует устанавливать на конструкциях, обеспечивающих регулировку и жесткое фиксирование положения видеокамеры.
Крепление конструкции и кольца рассчитывают на нагрузку 1500 Н.
В.3.6 В ДПС следует предусматривать виды связи согласно приложению Г.
В.4.1 На пульте СУРС должны быть предусмотрены:
- экстренная остановка эскалаторов;
- сигнализация о работе эскалаторов;
- световая (мигающая) и звуковая сигнализации остановки эскалаторов;
- управление перекрывателями пассажиропотока.
В.4.2 Подключение аппаратуры для реализации указанных в В.4.1 функций следует выполнять согласно электрическим схемам управления эскалаторами, разработанным (или согласованным) предприятием - поставщиком эскалаторов.
В.4.3 Цепи остановки и сигнализации эскалаторов в пульте СУРС должны быть выделены в отдельные функциональные устройства и иметь самостоятельные каналы связи со схемами управления эскалаторов.
Управление и контроль работы установок местной и тоннельной вентиляции, насосных установок, воздушно-тепловых завес, запорной арматуры, вентиляционных клапанов тоннельной вентиляции и другое следует предусматривать со станции управления ЭМС в объеме требований раздела 5.11.
С АРМ ДПС следует предусматривать:
- дистанционное управление группами освещения пассажирских помещений, вентиляционно-кабельных каналов и зон расположения контактных рельсов под козырьком пассажирской платформы, световыми указателями (в том числе маршрутными) и эмблемами "М";
- дистанционное управление группами освещения перегонных тоннелей и централизованное отключение групп рабочего освещения перегонных тоннелей для подачи световых сигналов;
- дистанционное управление сетями электрообогрева ступеней лестничных сходов и подуличных переходов или коридоров на входах в подземные вестибюли станций при использовании инфракрасных обогревателей.
Управление стрелками и сигналами и контроль за движением поездов в границах станции и на участках приближения и удаления предусматривают с АРМ-Д в соответствии с утвержденным "Схематическим планом путей и таблицей взаимозависимостей стрелок, сигналов, маршрутов".
В.8.1 В помещении ДПС следует размещать приемную аппаратуру автоматических установок пожаротушения, пожарной сигнализации и охранной сигнализации помещений, оборудуемых этими установками согласно 5.16 и 5.22.
В.8.2 Станции оборудуют устройствами контроля прохода персонала и пассажиров в тоннель (УКПТ) и дверями с электрозамками на служебных мостиках прохода в тоннели. Управление электрозамками и сигнализация о срабатывании УКПТ предусматриваются на АРМ ДПС.
В.9.1 Пульты управления должны состоять из типовых конструктивных элементов.
В.9.2 Размещение на пультах схем путевого развития станции и объектов управления должно выполняться по функциональным зонам и совпадать с их взаимным расположением в натуре.
В.9.3 Пульты связи следует располагать на приставных тумбах к столам АРМ.
Установки СУРС относятся к электроприемникам особой группы I категории.
Приложение Г
(обязательное)
|
Наименование |
Вид связи | |||||||||||||||||||||||||||||
|
Диспетчерская |
Служебная |
Т |
О |
СОП |
СПБ |
СМД |
АХС |
МЗ |
С |
СТР |
Э |
АТДП |
ДС |
Местная |
ЭЧ |
Громкоговорящая |
ТН |
А |
Д |
СН |
Н | |||||||||
|
СДД |
СДЭ |
СДЭС |
СДЭМ |
СТД |
СТЭ |
СТЭС |
СТЭМ |
ПС |
ЛП |
ГГО |
ГГС | |||||||||||||||||||
|
ДПД |
* |
* |
+ |
+ |
+ |
+ |
+ |
* |
* |
* | ||||||||||||||||||||
|
ДПЭ |
* |
+ |
+ |
+ |
+ |
+ | ||||||||||||||||||||||||
|
ДПЭС |
* |
+ |
+ |
+ |
+ |
+ | ||||||||||||||||||||||||
|
ДПЭМ |
* |
+ |
+ |
+ |
+ |
+ | ||||||||||||||||||||||||
|
Оператор ДПЛ |
* |
+ |
+ |
+ | ||||||||||||||||||||||||||
|
ДПОП |
+ |
* |
+ |
+ |
+ | |||||||||||||||||||||||||
|
ДППБ |
+ |
* |
+ |
+ |
+ | |||||||||||||||||||||||||
|
Аппаратная ВЦ ДПЛ |
* |
+ |
+ | |||||||||||||||||||||||||||
|
Аппаратные ДПЛ |
* |
* |
* |
+ |
+ | |||||||||||||||||||||||||
|
ДПС-АРМ ДС |
+ |
+ |
+ |
+ |
+ |
+ |
+ |
* |
+ |
* |
+ |
* |
+ | |||||||||||||||||
|
ДПС-АРМ ЭЦ |
+ |
+ |
+ |
+ |
* |
+ |
* |
+ |
+ | |||||||||||||||||||||
|
ДСП |
+ |
+ |
+ |
+ |
+ |
* |
+ | |||||||||||||||||||||||
|
Релейная ЭМС |
+ |
+ | ||||||||||||||||||||||||||||
|
Кабина ДСП на платформе станции |
+ |
+ | ||||||||||||||||||||||||||||
|
Пост полиции |
+ |
+ |
+ |
+ |
+ | |||||||||||||||||||||||||
|
Машинист эскалаторов |
+ |
+ |
+ |
+ |
* |
+ |
+ | |||||||||||||||||||||||
|
Пост у нижних площадок эскалаторов |
+ |
+ |
+ |
* |
+ |
+ | ||||||||||||||||||||||||
|
Пост у верхних площадок |
+ |
+ |
+ |
+ |
+ | |||||||||||||||||||||||||
|
Эскалаторный тоннель |
+ | |||||||||||||||||||||||||||||
|
Натяжная камера |
+ |
+ | ||||||||||||||||||||||||||||
|
Кабина АКП |
+ |
* |
+ | |||||||||||||||||||||||||||
|
Медпункт |
+ |
+ |
+ |
+ |
+ | |||||||||||||||||||||||||
|
Касса |
+ |
+ |
+ |
+ |
+ | |||||||||||||||||||||||||
|
Аппаратная АТДП |
+ |
+ |
+ |
+ |
* |
+ |
+ |
+ | ||||||||||||||||||||||
|
ТПП, ПП |
+ |
+ |
+ |
+ |
+ |
+ |
+ | |||||||||||||||||||||||
|
ВОУ основная, транзитная |
+ |
+ | ||||||||||||||||||||||||||||
|
УТВ |
+ |
+ |
+ | |||||||||||||||||||||||||||
|
Канализационная установка; станционная тоннельная на станционных путях |
+ |
+ | ||||||||||||||||||||||||||||
|
+ | ||||||||||||||||||||||||||||||
|
+ |
+ | |||||||||||||||||||||||||||||
|
Линейный пункт смены машинистов |
+ |
+ |
+ |
+ |
+ |
+ |
+ | |||||||||||||||||||||||
|
ПТО подвижного состава |
+ |
+ |
+ |
+ |
+ |
+ | ||||||||||||||||||||||||
|
Платформа: в начале поезда в конце поезда |
+ |
+ |
+ |
+ |
+ | |||||||||||||||||||||||||
|
+ |
+ |
+ | ||||||||||||||||||||||||||||
|
Радиоузел |
+ |
- |
+ |
+ | ||||||||||||||||||||||||||
|
Кроссовая |
+ |
+ |
+ | |||||||||||||||||||||||||||
|
ДПС пересадочной станции |
+ | |||||||||||||||||||||||||||||
|
Кассовый зал |
+ |
+ |
+ |
+ | ||||||||||||||||||||||||||
|
Коридоры служебных помещений |
+ | |||||||||||||||||||||||||||||
|
Платформы и средний зал станции |
+ |
+ | ||||||||||||||||||||||||||||
|
Переходы пешеходные |
+ | |||||||||||||||||||||||||||||
|
Механик АТДП |
+ |
+ |
+ |
+ |
+ |
+ | ||||||||||||||||||||||||
|
Начальник станции |
+ |
+ |
* |
+ | ||||||||||||||||||||||||||
|
Аппаратная АТДП соседней станции |
+ | |||||||||||||||||||||||||||||
|
Вход на станцию. Уличная зона |
+ | |||||||||||||||||||||||||||||
|
Пост переключения контактной сети |
+ |
+ | ||||||||||||||||||||||||||||
|
Светофоры на перегоне |
+ | |||||||||||||||||||||||||||||
|
Входы в притоннельные сооружения |
+ | |||||||||||||||||||||||||||||
|
Перегон, тоннели и станционные пути |
+ |
+ |
+ | |||||||||||||||||||||||||||
|
Стрелочные переводы, кабина стрелочника |
+ | |||||||||||||||||||||||||||||
|
Сигнальные точки на перегоне и станции |
+ | |||||||||||||||||||||||||||||
|
Платформа станционного пути: начало конец |
+ |
+ |
+ | |||||||||||||||||||||||||||
|
+ |
+ | |||||||||||||||||||||||||||||
|
ПТО РП 1, 2 |
+ | |||||||||||||||||||||||||||||
|
Помещение лифтера |
+ |
+ | ||||||||||||||||||||||||||||
|
Старшие кассиры |
+ |
+ |
+ |
+ | ||||||||||||||||||||||||||
|
Мастерские различных служб |
+ | |||||||||||||||||||||||||||||
|
Тамбур лифта (внутренняя и уличная зона) |
+ | |||||||||||||||||||||||||||||
|
Пожарный пост |
+ |
+ |
+ | |||||||||||||||||||||||||||
|
Насосная пожаротушения |
+ | |||||||||||||||||||||||||||||
|
Подразделения метрополитена |
По отдельному заданию заказчика | |||||||||||||||||||||||||||||
|
Условные обозначения: "*" - пульт (коммутатор), "+" - абонентское (оконечное) устройство. | ||||||||||||||||||||||||||||||
|
Наименование абонента |
Вид связи | |||
|
ТФОП |
ГРТС |
ЭЦХТ | ||
|
1 ДПД |
+ |
+ |
* | |
|
2 ДПЭ |
+ |
+ | ||
|
3 ДПЭС |
+ |
+ | ||
|
4 ДПЭМ |
+ |
+ | ||
|
5 Диспетчерский пункт городской системы электроснабжения |
+ | |||
|
Условные обозначения: "*" - пульт (коммутатор), "+" - абонентское (оконечное) устройство; А - связь администратора АСОП со старшими кассирами; Н - связь совещаний управления метрополитена со структурными подразделениями; ЭЦХТ - связь ДПЭ с электроснабжающими организациями города; ДППБ - диспетчерский пункт пожарной безопасности; ДПОП - диспетчерский пункт охраны порядка (полиция); ДСП - дежурный по станции; ТФОП - телефонная сеть общего пользования; ГРТС - городская радиотрансляционная сеть. | ||||
Приложение Д
(рекомендуемое)
|
Наименование (назначение) помещения |
Площадь, м2 |
Размещение |
|
Диспетчерский пункт (ДПС): | ||
|
- диспетчерская |
60 |
На станции с путевым развитием |
|
- то же |
55 |
То же, без путевого развития |
|
- дежурный по станции |
15 |
Смежное с диспетчерской |
|
- релейная, аппаратная |
На основании расчета в соответствии с составом оборудования системы |
То же |
|
Кроссовая |
25-30 |
На каждой станции |
|
Радиоузел |
25-30 |
То же |
|
Линейный аппаратный цех (ЛАЦ) |
То же |
" |
|
Щитовые |
По проекту |
" |
|
Примечания 1 На станциях с путевым развитием помещения ДПС размещают со стороны путевого развития. 2 Высота помещений не менее 2,75 м. 3 Допускается размещение помещений кроссовой, радиоузла и ЛАЦ на других уровнях. | ||
Приложение Е
(обязательное)
Таблица Е.1
|
Наименование помещения*(1), сооружения, объемно-планировочных элементов*(2) и зон в сооружениях |
Характеристика веществ и материалов*(3) |
Категория по СП 12.13130 |
Класс зон по ПУЭ [15] |
|
1 Наземные объекты
| |||
|
1.1 Помещения производственного и складского назначений в зданиях
| |||
|
Мастерские |
ТГМ |
В2 |
П-IIа |
|
Материальные склады |
Горючие материалы (или негорючие материалы в горючей упаковке) |
В1-В2 |
П-I - П-IIа |
|
Архивы, библиотеки |
ТГМ |
В1-В2 |
П-IIа |
|
Кладовые горючих материалов |
ТГМ |
В2 |
П-IIа |
|
Кладовые |
ТГМ |
В2 |
П-IIа |
|
Кладовые ГСМ и ГЖ |
Масла, смазки, ГЖ с температурой вспышки более 61°С |
В1 |
П-I |
|
Кладовые ЛВЖ |
ЛВЖ с температурой вспышки более 28°С |
Б |
B-Iб |
|
Кладовые ЛВЖ |
ЛВЖ с температурой вспышки менее или равной 28°С |
А |
В-Iа |
|
Помещения насосных установок |
ЭИМ в незначительном количестве |
В4 |
П-IIа |
|
Водомерные узлы |
Д |
- | |
|
Центральный тепловой пункт |
Д |
- | |
|
Помещения с сухими трансформаторами |
Д |
- | |
|
Помещения с маслонаполненными трансформаторами |
ГЖ |
B1 |
П-I |
|
Электрощитовые |
ТГМ, ЭИМ в незначительном количестве |
В4 |
П-IIа |
|
Заточные отделения |
ТГМ в незначительном количестве |
В4 |
П-IIа |
|
Инструментально-раздаточные отделения | |||
|
Столярные отделения |
ТГМ, ГЖ в незначительном количестве |
В2 |
П-IIа |
|
Сварочные отделения |
Негорючие вещества в горячем, раскаленном и расплавленном состояниях |
Г |
- |
|
Кузнечные отделения | |||
|
Электросварочные отделения | |||
|
Автоматные отделения |
Негорючие материалы |
Д |
- |
|
Участки ремонта гидроамортизаторов |
ГЖ в незначительном количестве |
В4 |
П-IIа |
|
Моечно-прожировочные участки |
Негорючие вещества |
Д |
- |
|
Участки зарядки АБ с гелевым электролитом |
То же |
Д |
- |
|
Ремонтные аккумуляторов |
" | ||
|
Электролитные (кислотная, щелочная) |
" | ||
|
Участки зарядки АБ с щелочным или кислотным электролитом |
Водород при работе зарядных устройств |
А |
B-Ia |
|
Дистилляторная |
Негорючие вещества и материалы |
Д |
- |
|
Маслораздаточные |
ГЖ с температурой вспышки более 28°С |
Б |
П-I |
|
Аппаратные отделения |
ЭИМ, ТГМ |
В2 |
П-IIа |
|
Механические отделения |
ТГМ |
Д |
- |
|
Слесарные участки |
Негорючие вещества |
Д |
- |
|
Дефектоскопные |
ТГМ в незначительном количестве |
В4 |
П-IIа |
|
Зарядные электрокар |
Выделение водорода |
А(В4)*(4) |
В-Iа |
|
Помещения зарядных устройств |
Горючие газы, ЛВЖ |
А(В4)*(4) |
В-Iа |
|
Электроотделения |
ТГМ, ЭИМ |
В2 |
П-IIа |
|
Малярные отделения |
Применение растворителей с температурой вспышки менее 28°С |
А |
В-Iа |
|
Цех окраски вагонов |
А |
В-Iа | |
|
Камеры мойки составов |
Негорючие вещества и материалы |
Д |
- |
|
Компрессорные | |||
|
Отделения автоведения |
ТГМ, ЭИМ в незначительном количестве |
В4 |
П-IIа |
|
Отделения по ремонту радиоинформаторов | |||
|
Отделения поездной радиосвязи |
ТГМ, ЭИМ в незначительном количестве |
В4 |
П-IIа |
|
Столовые |
ТГМ |
В2 |
П-IIа |
|
Кладовые грязной и чистой одежды |
В3 |
П-IIа | |
|
Склады ГСМ с хранением ЛВЖ |
ЛВЖ с температурой вспышки менее 28°С |
А |
В-Iа |
|
ЛВЖ с температурой вспышки более или равной 28°С |
Б |
B-Iб | |
|
Кладовые ремонтного отделения и АРС |
ТГМ в незначительном количестве |
В4 |
П-IIа |
|
Отделения тиристорного регулирования | |||
|
Помещения наружных блоков холодильных машин и кондиционеров | |||
|
1.2 Помещения в наземных вестибюлях
| |||
|
Производственные помещения кассового блока |
ТГМ в незначительном количестве |
В4 |
П-IIа |
|
Медицинские пункты |
ТГМ и ЛВЖ в незначительном количестве |
В2 |
П-IIа |
|
Бельевые |
ТГМ |
В2 |
П-IIа |
|
Комнаты сушки спецодежды | |||
|
Помещения УМВ |
Соответствует категории обслуживаемых ими помещений |
В2-В4 |
П-IIа |
|
Тепловые пункты, водомерные узлы |
Негорючие вещества и материалы |
Д |
- |
|
Релейные и аппаратные |
ЭИМ |
В4 |
П-IIа |
|
Кроссовые |
В2 |
П-IIа | |
|
Радиоузлы |
В4 |
П-IIа | |
|
Электрощитовые |
ТГМ, включая изоляцию кабелей в незначительном количестве |
В4 |
П-IIа |
|
Кладовые |
ТГМ |
В2 |
П-IIа |
|
Помещения АУПТ |
Негорючие вещества и материалы |
Д |
- |
|
Буфеты |
ТГМ |
В2 |
П-IIа |
|
Кладовые грязной и чистой одежды | |||
|
Архивы, библиотеки |
B1-В2 |
П-I - П-IIа | |
|
1.3 Сооружения
| |||
|
Вестибюли с эскалаторами |
ЭИМ, ТГМ |
В3 |
П-IIа |
|
Вестибюли без эскалаторов |
Негорючие вещества и материалы |
Д |
- |
|
Кассовые залы с эскалаторами |
ЭИМ, ТГМ |
В3 |
П-IIа |
|
Кассовые залы без эскалаторов |
Негорючие вещества и материалы |
Д |
- |
|
Галереи метромостов и наземных участков |
ТГМ |
В3 |
П-IIа |
|
1.4 Зоны в сооружениях
| |||
|
Зоны организованной торговли |
Горючие вещества и материалы |
В3 |
П-IIа |
|
2 Подземные объекты
| |||
|
2.1 Помещения
| |||
|
Кабинеты начальников станций, старших кассиров, руководителей участков, мастеров, машинистов эскалаторов, электромехаников |
ТГМ |
B2 |
П-IIа |
|
Билетные кассы |
ТГМ в незначительном количестве |
В4 |
П-IIа |
|
Комнаты постов милиции | |||
|
Комнаты пожарной охраны | |||
|
Комната приема пищи | |||
|
Медицинские пункты |
ТГМ, ЛВЖ в незначительном количестве |
B2 |
П-IIа |
|
Комнаты отдыха |
ТГМ |
В2 |
П-IIа |
|
Бельевые | |||
|
Комнаты сушки спецодежды | |||
|
Гардеробные | |||
|
Туалеты |
Негорючие вещества и материалы |
Д |
- |
|
Тепловые пункты | |||
|
Диспетчерские пункты станций |
ТГМ, ЭИМ |
В2 |
П-IIа |
|
Душевые |
Д |
- | |
|
Посты ЭЦ |
ЭИМ |
В2 |
П-IIа |
|
Релейные и аппаратные |
В2 |
П-IIа | |
|
Связевые |
В2 |
П-IIа | |
|
Кроссовые |
В2 |
П-IIа | |
|
Электрощитовые |
ЭИМ |
В4 |
П-IIа |
|
Радиоузлы |
ТГМ, ЭИМ в незначительном количестве |
В4 |
П-IIа |
|
Кладовые опилок |
ТГМ |
В3 |
П-IIа |
|
Помещения УМВ |
Соответствует категории обслуживаемых помещений |
В2-В4 |
П-IIа |
|
Помещения УМВ для: |
А |
В-Iа | |
|
кладовых покрасочных материалов |
B1 |
П-I | |
|
кладовых ГСМ | |||
|
дымоудаления |
ЭИМ в незначительном количестве |
В4 |
П-IIа |
|
Аккумуляторные: |
Выделение водорода при работе зарядных устройств |
А(В4)*(4) |
В-IIа |
|
АБ с кислотным или щелочным электролитом | |||
|
АБ с гелевым электролитом |
ТГМ в незначительном количестве |
В4 |
П-IIа |
|
Калориферные |
То же |
В4 |
П-IIа |
|
Помещения РУ 10 кВ, 825 В |
ТГМ, ЭИМ в незначительном количестве |
В4 |
П-IIа |
|
Совмещенные помещения РУ и щитовых | |||
|
Помещения насосных установок |
ЭИМ в незначительном количестве |
В4 |
П-IIа |
|
Кладовые автоматных отделений |
ТГМ |
В2 |
П-IIа |
|
Кладовые | |||
|
Помещения АУПТ |
Негорючие вещества и материалы |
Д |
- |
|
Кладовые покрасочных материалов (ЛВЖ) в мелкой небьющейся тape |
ЛВЖ с температурой вспышки 28°С |
А |
В-Iа |
|
Кладовые ГСМ (ГЖ) |
ГЖ с температурой вспышки более 61°С |
B1 |
П-I |
|
Подземные пешеходные переходы, коридоры между пересадочными станциями |
Негорючие вещества и материалы |
Д |
- |
|
Вестибюли без эскалаторов | |||
|
Лестничные сходы | |||
|
Вестибюли с эскалаторами |
ЭИМ, ТГМ, ГЖ |
В2 |
П-IIа |
|
Кассовые залы |
ТГМ в незначительном количестве |
В4 |
П-IIа |
|
Кассовые залы с эскалаторами |
ТГМ, ГЖ, ЭИМ |
В2 |
П-IIа |
|
Аванзалы |
Негорючие вещества и материалы |
Д |
- |
|
Распределительные залы станций | |||
|
Пересадочные коридоры | |||
|
Эскалаторные тоннели: |
ТГМ, ЭИМ, ГЖ в незначительном количестве |
В4 |
П-IIа |
|
с негорючими элементами ступеней и балюстрады эскалаторов | |||
|
с горючими элементами ступеней и балюстрады |
ТГМ, ЭИМ |
В2 |
П-IIа |
|
Натяжная камера эскалаторов |
ТГМ |
В2 |
П-IIа |
|
Машинные помещения эскалаторов |
ТГМ, ГЖ в незначительном количестве |
В2 |
П-IIа |
|
Подэскалаторные вентиляционно-кабельные отсеки |
ТГМ, включая изоляцию кабелей |
В2 |
П-IIа |
|
Демонтажные ходки и шахты эскалаторов |
Негорючие вещества и материалы |
В4 |
П-IIа |
|
Подплатформенные вентиляционно-кабельные каналы |
ТГМ, включая изоляцию кабелей |
В3 |
П-IIа |
|
Помещения наружных блоков холодильных машин и кондиционеров |
В4 |
П-IIа | |
|
2.2 Сооружения для движения (отстоя) поездов, притоннельные сооружения
| |||
|
Тоннели перегонные |
ЭИМ |
В3 |
П-IIа |
|
Соединительные ветки |
В3 |
П-IIа | |
|
Тупики, в том числе с ПТО |
ЭИМ, ТГМ |
В3 |
П-IIа |
|
Камеры съездов |
ЭИМ |
В3 |
П-IIа |
|
Вентиляционные сбойки |
ЭИМ в незначительном количестве |
В4 |
П-IIа |
|
Вентиляционные ходки |
Негорючие вещества и материалы |
Д |
- |
|
Машинные помещения УТВ |
ЭИМ |
В4 |
П-IIа |
|
Стволы шахт и вентиляционные тоннели |
" |
В4 |
П-IIа |
|
Обводные устройства (каналы) |
В4 |
П-IIа | |
|
Ходки к насосным установкам |
Негорючие вещества и материалы |
Д |
- |
|
Обходные кабельные тоннели |
ТГМ, ЭИМ |
В2-В4 |
П-IIа |
|
2.3 Зоны в сооружениях
| |||
|
Зоны организованной торговли |
Горючие вещества и материалы, ГЖ |
В2 |
П-IIа |
|
Зоны в пассажирских помещениях с поэтажными эскалаторами: | |||
|
с горючими элементами ступеней и балюстрады |
ТГМ |
В3 |
П-IIа |
|
с негорючими элементами ступеней и балюстрады |
ТГМ в незначительном количестве |
В4 |
П-IIа |
|
Зоны ночного отстоя подвижного состава на станционных путях |
ТГМ, ЭИМ |
В3 |
П-IIа |
|
*(1) Помещение - пространство внутри здания (сооружения), имеющее определенное функциональное назначение и ограниченное строительными конструкциями. *(2) Объемно-планировочный элемент - часть сооружения с определенным функциональным назначением, не отделенная от смежных сооружений строительными конструкциями. *(3) Данные по веществам и материалам, входящим в состав пожарной нагрузки: ТГМ - твердые горючие материалы (в том числе волокнистые и разрыхленные); ЭИМ - электроизоляционные материалы кабелей и электрооборудования; ГЖ - горючие жидкости; ЛВЖ - легковоспламеняющиеся жидкости. *(4) При оборудовании специальной вентиляцией с резервным питанием. | |||
|
Примечание - Объемно-планировочные элементы, предназначенные для движения или пребывания пассажиров, условно определены как пассажирские помещения. | |||
Приложение Ж
(обязательное)
Таблица Ж.1
Размеры в мм
|
Наименование |
Отклонение |
|
1 Станционные тоннели закрытого способа работ | |
|
1.1 Станция пилонного и колонного типов | |
|
Первые лотковые блоки или тюбинги прорезных колец станционного тоннеля в плане и профиле |
±15 |
|
Первое кольцо чугунной тюбинговой обделки: опорные тюбинги в плане: | |
|
нижняя опора |
От +10 до -20 |
|
верхняя опора |
От 0 до +40 |
|
горизонтальная эллиптичность |
От 0 до -50 |
|
опорные тюбинги по высоте: | |
|
нижний |
От 0 до +20 |
|
верхний |
От 0 до +40 |
|
свод по высоте: | |
|
средний тоннель |
От +30 до +100 |
|
боковые тоннели |
От +10 до +50 |
|
горизонтальное опережение: | |
|
чугун |
±5 |
|
железобетон |
±15 |
|
вертикальное опережение: | |
|
чугун |
±5 |
|
железобетон |
±15 |
|
Последующие тюбинговые кольца: | |
|
в плане |
±30 |
|
горизонтальная эллиптичность |
-50 |
|
свод по высоте: | |
|
средний тоннель |
+30 - +100 |
|
боковые тоннели |
-10 - +50 |
|
горизонтальное и вертикальное опережение: | |
|
чугун |
±10 |
|
железобетон |
±20 |
|
расстояние от оси среднего тоннеля до колонн |
+30 |
|
колонна от вертикали в плоскости кольца |
±20 |
|
1.2 Станция пилонного типа | |
|
диаметр (эллиптичность) колец: | |
|
вертикальный |
+40 |
|
горизонтальный |
-80 |
|
под углом в 45° и 135° |
+50 |
|
центр колец от оси тоннеля вне зоны монтажа |
±30 |
|
плоскость прорезных колец в направлении оси станционного тоннеля (смещение пикетажа) |
±30 |
|
плоскость последующих колец в направлении оси станционного тоннеля |
±30 |
|
1.2.А Станция пилонного типа из железобетонных элементов с металлическими балочными перемычками | |
|
несовпадение пикетажа колец среднего и боковых тоннелей в беспроемной части |
До 75 |
|
эллиптичность колец среднего тоннеля |
+100 |
|
зазор между балочными перемычками и торцами тюбингов |
50±10 |
|
уступы лотковых блоков |
+60 +20 |
|
выступ грани балочных перемычек внутрь тоннеля за грань железобетонного тюбинга |
До 10 |
|
1.3 Станция колонного типа | |
|
первый боковой тоннель от оси: | |
|
в плане |
±30 |
|
в профиле |
От +30 до +50 |
|
диаметр (эллиптичность) колец боковых тоннелей: | |
|
вертикальный |
От +30 до +70 |
|
горизонтальный |
От 0 до -50 |
|
под углом в 45° и 135° |
От 0 до +50 |
|
расстояние между осями боковых тоннелей в плане |
±60 |
|
отметки одноименных колец боковых тоннелей |
±50 |
|
пикетаж одноименных колец боковых тоннелей |
±20 |
|
расстояние от оси среднего тоннеля до колонн |
±30 |
|
отметка среднего свода правил (на оси) |
От +30 до +100 |
|
колонна от вертикали в плоскости кольца |
±20 |
|
1.3.А Станция трехсводчатая колонная глубокого заложения с колонно-прогонным комплексом и основной обделкой из сборных элементов | |
|
несовпадение пикетажа колец боковых тоннелей |
±30 |
|
отклонение бокового тоннеля в плане |
±40 |
|
отклонение положения лотка и нижнего опорного блока в профиле |
-20 |
|
эллиптичность при укладке колец бокового тоннеля по вертикальному радиусу |
+90 |
|
нижняя плоскость верхнего опорного блока |
+50 |
|
эллиптичность верхнего опорного блока |
-25 |
|
диаметр (эллиптичность) колец боковых тоннелей: | |
|
вертикальный |
От +30 до +100 |
|
горизонтальный |
От 0 до +50 |
|
под углом в 45° и 135° |
±50 |
|
смещение верхнего опорного блока в плане относительно нижнего в сторону бокового тоннеля |
-30 |
|
опорный блок в плане: | |
|
нижний |
От -20 до +10 |
|
верхний |
-40 |
|
монтаж металлоконструкций |
±5 |
|
смещение верхнего шарнира относительно нижнего в сторону оси бокового тоннеля |
-30 |
|
зазор между верхней опорной частью и верхними опорными блоками |
Не менее 40 |
|
эллиптичность верхнего свода среднего тоннеля: | |
|
в своде |
От +30 до +100 |
|
под углом в 45° и 135° |
От +15 до +50 |
|
несовпадение осей смежных блоков верхнего свода в одном кольце в месте примыкания их к опорному блоку по высоте |
Не более 20 |
|
уступы между опорным блоком и смежными с ним блоками верхнего свода |
От 65 до 85 |
|
уступы между кольцами: | |
|
в своде |
Не более 100 |
|
под углом в 45° и 135° |
Не более 75 |
|
радиус обделки нижнего свода |
±30 |
|
1.4 Станция односводчатая | |
|
ось станции в плане и профиле |
±50 |
|
радиус кривизны сводов: | |
|
верхнего |
+100 |
|
нижнего |
±50 |
|
положение опорных плит свода: | |
|
в плане |
+20 |
|
в профиле |
±15 |
|
1.4.А Станция односводчатая глубокого заложения с обделкой из сборных железобетонных элементов, обжатых на породу, сооружаемая методом сквозной проходки перегонных тоннелей | |
|
ось станции в плане и профиле |
±50 |
|
максимальная просадка верхнего свода в пятом кольце за фермой |
До 50 |
|
то же, через месяц |
До 100 |
|
отклонение нижнего свода в профиле |
±50 |
|
эллиптичность полукольца верхнего свода до выполнения первичного обжатия |
От +5 до +10 |
|
боковые и верхнее (нижнее) опережения полуколец по пикетажу |
±30 |
|
допустимый зазор между двумя арками по длине станции |
До 60 |
|
уступы по высоте между арками |
До 100 |
|
положение опорных узлов монолитной железобетонной опоры: | |
|
в плане по оси станции |
±20 |
|
в профиле (верхний и нижний переломы опорных плоскостей) |
+15 |
|
от радиального направления плоскостей верхнего и нижнего опорных узлов на ширине площадки опирания |
+5 |
|
отклонение от прямолинейности профиля поверхности опорных плоскостей на длине 700 мм в двух направлениях |
До 4 |
|
1.4.Б Станция односводчатая глубокого заложения с обделкой из сборных железобетонных элементов, обжатых на породу, с применением механизированных агрегатов при проходке верхнего свода в водонепроницаемых грунтах | |
|
1.4.Б.1 Проходка опорных тоннелей | |
|
ось в плане и профиле |
±50 |
|
диаметр (эллиптичность) кольца: | |
|
вертикальный |
+100 |
|
горизонтальный и под углом в 45° и 135° |
±50 |
|
1.4.Б.2 Сооружение опор в боковых тоннелях | |
|
отклонение опалубки в точках сопряжения с верхним и нижним сводами |
±50 |
|
отклонение положения закладных (опорных) листов: | |
|
в плане |
±20 |
|
в профиле |
±10 |
|
установка опалубки с закладными деталями: | |
|
в плане (от оси станции) |
От 0 до +20 |
|
в профиле (верхний и нижний опорные узлы) |
От 0 до +15 |
|
отклонение от радиального направления плоскостей верхнего и нижнего опорных узлов на ширине площадки опирания |
+5 |
|
отклонение от прямолинейности профиля поверхности опорных плоскостей на длине 700 мм в двух направлениях |
До 4 |
|
1.4.Б.3 Проходка верхнего свода | |
|
разжатие арки: | |
|
раскрытие шва опорного блока по внутренней хорде: | |
|
при давлении 100 кг/см2 |
До 80 |
|
при давлении 220 кг/см2 |
До 30 |
|
эллиптичность полуколец до выполнения разжатия |
+100 |
|
для агрегата механического шандорного (АМШ) |
От -5 до +10 |
|
опережение колец боковое |
±50 |
|
то же, для АМШ |
±30 |
|
", для агрегата механического калоттного (АМК) |
±40 |
|
зазор между двумя арками |
До 60 |
|
то же, для АМК |
До 40 |
|
уступы по высоте между боками соседних арок |
До 100 |
|
то же, для АМК |
До 40 |
|
то же, для АМШ |
До 150 |
|
деформация свода через месяц после разжатия |
До 100 |
|
1.4.Б.4 Проходка нижнего свода | |
|
нижний свод в профиле |
±50 |
|
раскрытие шва при разжатии опорных блоков при давлении 100-120 кг/см2 |
До 80 |
|
уступы по высоте |
До 20 |
|
опережение боковых полуколец |
До 30 |
|
для АМК |
До 40 |
|
1.5 Эскалаторный тоннель | |
|
Первые кольца: | |
|
диаметр (эллиптичность) кольца: | |
|
вертикальный |
±30 |
|
горизонтальный |
От 0 до -30 |
|
под углом в 45° и 135° |
±25 |
|
лоток |
От 0 до -30 |
|
Свод |
От +10 до +50 |
|
центр кольца: | |
|
в плане |
±5 |
|
в профиле |
От +10 до +30 |
|
горизонтальное и вертикальное опережения передней плоскости кольца |
±10 |
|
Последующие кольца: | |
|
диаметр (эллиптичность) кольца: | |
|
вертикальный |
от 0 до +30 |
|
горизонтальный |
от 0 до -30 |
|
под углом в 45° и 135° |
±25 |
|
центр кольца в плане и профиле |
±25 |
|
горизонтальное и вертикальное опережения передней плоскости кольца |
±15 |
|
2 Перегонные тоннели закрытого способа работ | |
|
2.1 Тоннель круглого очертания в сборной железобетонной обделке (включая обделку, обжатую в породу) и металлической обделке | |
|
диаметр (эллиптичность) колец: | |
|
в зоне монтажа |
±25 |
|
вне зоны монтажа |
±50 |
|
центр колец от оси тоннеля вне зоны монтажа в плане и профиле |
±50 |
|
смещение пикетажа |
±15 |
|
первое кольцо: | |
|
фактическое расстояние от продольной оси |
±25 |
|
лотковые сегменты |
От 0 +30 |
|
горизонтальный диаметр |
От 0 до -20 |
|
диаметр под углом в 45° и 135° |
±25 |
|
свод |
От +10 до +50 |
|
радиус сборного кольца: | |
|
вертикальный |
+40 |
|
горизонтальный |
-20 |
|
под углом в 45° и 135° |
±15 |
|
фактический центр сборного кольца |
±50 |
|
фактическая отметка лотка |
+30 |
|
вертикальное и горизонтальное опережения |
±30 |
|
кручение кольца |
±20 |
|
вертикальное и горизонтальное опережения плоскости кольца |
±30 |
|
2.2 Тоннель в монолитно-прессованной обделке | |
|
ось тоннеля в плане и профиле |
±70 |
|
запрессованные кольца (по вертикальной плоскости между ними) |
±30 |
|
3 Ствол шахты | |
|
3.1 Проходка ствола с подводкой снизу | |
|
торцевая плоскость кольца по отношению к горизонту: | |
|
первое кольцо |
±5 |
|
последующие кольца |
±10 |
|
диаметр (эллиптичность) кольца: | |
|
первое кольцо |
±15 |
|
последующие кольца |
±50 |
|
ось ствола от вертикали |
±50 |
|
диаметр кольца при буровзрывном способе |
±75 |
|
3.2 Проходка способом опускной крепи | |
|
торцевая поверхность крепи по отношению к горизонту |
±10 |
|
диаметр (эллиптичность) опускной крепи |
±50 |
|
ось ствола от вертикали |
Не более ±150 |
|
то же, при погружении в тиксотропной рубашке |
±0,01 H* |
|
диаметр (эллиптичность) кольца до погружения в тиксотропной рубашке |
±25 |
|
4 Станция открытого способа работ | |
|
ось котлована |
±10 |
|
свайное крепление котлована или ограждающая "стена в грунте" |
-50 - +250 |
|
вертикальность стоек траншей при методе "стена в грунте" |
±0,01 H |
|
отметка дна котлована под укладку бетонной подготовки |
±10 |
|
верх бетонной подготовки |
±10 |
|
лотковый блок: | |
|
в плане |
±25 |
|
в профиле |
+10 - -20 |
|
стеновой блок в плане и профиле |
±25 |
|
стеновой блок и колонна от вертикали |
0,002 Н, но не более ±25 |
|
вертикальное и горизонтальное опережения блоков |
±25 |
|
отметка верха опорной площадки стенового блока и колонн |
±10 |
|
стеновые блоки в плане на уровне 1 м от головок рельсов |
±25 |
|
расстояние между осями станционных тоннелей |
±10 |
|
платформа на высоте 1,10 м от уровня головок рельсов |
±5 |
|
бортовой камень на платформе на расстоянии 1,45 м от оси пути |
+10 |
|
5 Перегонный тоннель открытого способа работ |
Аналогично п. 4 |
|
5.1 Перегонный тоннель из цельносекционной обделки: | |
|
секция в плане и профиле |
±30 |
|
горизонтальное и вертикальное опережения секций |
±20 |
|
уклон секции |
0,001 Н, но не более ±20 |
|
уступ между секциями |
±10 |
|
6 Подходная выработка |
Аналогично п. 2 |
|
7 Притоннельное сооружение: | |
|
закрытый способ работ |
Аналогично п. 2 |
|
открытый способ работ |
Аналогично п. 5 |
|
8 Путь в тоннеле | |
|
путейский репер по пикетажу |
±30 |
|
отметка путейского репера |
±2 |
|
концы участка рельсового пути длиной 5 м: | |
|
в плане (не должен носить систематический характер) |
±2 |
|
по высоте, то же |
±2 |
|
отклонение в плане и профиле |
±3 |
|
уширение колеи |
±4 |
|
сужение колеи |
-2 |
|
измеренная стрела прогиба рельсов относительно рассчитанной для хорды: | |
|
длиной 20 м |
±3 |
|
длиной 10 м |
±2 |
|
отклонение рельсовых нитей в плане и профиле на участке длиной 5 м (на соседних хордах не должны иметь разных знаков) |
±2 |
|
9 Камера съездов: | |
|
закрытый способ работ |
Аналогично п. 2 |
|
открытый способ работ |
Аналогично п. 5 |
|
10 Тягово-понизительная подстанция, блоки производственных и служебных помещений: | |
|
закрытый способ работ |
Аналогично п. 1 |
|
открытый способ работ |
Аналогично п. 5 |
|
Примечание - В графе "Отклонение" Н обозначает высоту элемента конструкции или ствола. | |
Приложение И
(рекомендуемое)
И.1.1 Пояснительная записка, проектно-сметная документация, утвержденная в установленном порядке, и справка об основных технико-экономических показателях предъявляемого к приемке в эксплуатацию объекта.
И.1.2 Документация об оформлении и согласовании допущенных в процессе строительства изменений и отступлений от утвержденной проектно-сметной документации.
И.1.3 Паспорт линии и паспорта станций по приложению К.
И.1.4 Перечень проектных, научно-исследовательских и изыскательских организаций, принимавших участие в проектировании.
И.1.5 Общий план всех земель, отведенных для строительства, с соответствующими документами на право землепользования, ведомость полосы отвода.
И.1.6 Документы на геодезическую разбивочную основу для строительства, на геодезические работы в процессе строительства, выполненные заказчиком.
И.1.7 Документы о геологии и гидрогеологии строительных площадок, о результатах испытаний и анализах грунтовых вод.
И.1.8 Разрешение на строительство.
И.1.9 Состав утвержденной очереди или пускового комплекса для объекта производственного назначения (если предусмотрено проектом и титульным списком).
И.1.10 Справка об обеспечении эксплуатационными кадрами.
И.1.11 Справка об обеспечении материально-техническими ресурсами, электроэнергией, водой, паром, газом, теплом, сжатым воздухом, сбросом сточных вод и др.
И.1.12 Документ на специальное водопользование.
И.1.13 Паспорта на оборудование и механизмы.
И.1.14 Акты рабочих комиссий о приемке объектов, оборудования (механизмов) и коммуникаций.
И.1.15 Справки городских эксплуатационных организаций, подтверждающие, что внешние наружные коммуникации холодного и горячего водоснабжения, канализации, теплоснабжения, газоснабжения, электроснабжения и связи обеспечивают нормальную эксплуатацию объекта и приняты ими на обслуживание.
И.1.16 Справка фактической стоимости строительства с разбивкой по главам сметы или сметно-финансового расчета, подписанная заказчиком, подрядчиком и проектной организацией.
И.1.17 Справка об устранении недоделок и дефектов, установленных рабочими комиссиями.
И.1.18 Акты приемки в эксплуатацию установленного оборудования и систем, отвечающих за функционирование передаваемого в эксплуатацию объекта строительства метрополитена.
И.1.19 Справка эксплуатирующей организации о соответствии передаваемых заказчиком помещений построенного объекта проектной документации (в соответствии с экспликацией помещений).
И.1.20 Акты испытаний построенного объекта, подтверждающие, что в процессе эксплуатации здания или сооружения обеспечены безопасные условия для пребывания человека по следующим показателям:
- качество воздуха в производственных, жилых и иных помещениях зданий и сооружений и в рабочих зонах производственных зданий и сооружений;
- качество воды, используемой в качестве питьевой и для хозяйственно-бытовых нужд;
- инсоляция и солнцезащита помещений жилых, общественных и производственных зданий;
- естественное и искусственное освещение помещений;
- защита от шума в помещениях жилых и общественных зданий и в рабочих зонах производственных зданий и сооружений;
- микроклимат помещений;
- регулирование влажности на поверхности и внутри строительных конструкций;
- уровень вибрации в помещениях жилых и общественных зданий и уровень технологической вибрации в рабочих зонах производственных зданий и сооружений;
- уровень напряженности электромагнитного поля в помещениях жилых и общественных зданий и в рабочих зонах производственных зданий и сооружений, а также на прилегающих территориях;
- уровень ионизирующего излучения в помещениях жилых и общественных зданий и в рабочих зонах производственных зданий и сооружений, а также на прилегающих территориях.
И.2.1 По сооружениям и архитектуре
И.2.1.1 Попикетные ведомости тоннельных сооружений.
И.2.1.2 Рабочие чертежи (полный комплект конструктивных," архитектурных, отделочных чертежей по каждой станции и перегонам) с записью о соответствии выполненных в натуре работ, выполняемой лицами, ответственными за производство строительно-монтажных работ (СМР). Указанный комплект рабочих чертежей является исполнительной документацией.
И.2.1.3 Отчет об инженерно-геологических условиях строительства объекта.
И.2.1.4 Ведомость основных применяемых конструкций по видам и назначению сооружений объекта.
И.2.1.5 Ведомость основных изменений, внесенных в рабочие чертежи в процессе строительства.
И.2.1.6 Сертификаты и паспорта, удостоверяющие качество примененных материалов, оборудования и изделий и документы, подтверждающие их пожарную безопасность.
И.2.1.7 Данные о показателях прочности монолитных и сборных железобетонных конструкций.
И.2.1.8 Данные о геометрической точности уложенных колец и обделки тоннелей.
И.2.1.9 Сведения о дефектных элементах обделок.
И.2.1.10 Протоколы лабораторного анализа химического состава грунтовых вод.
И.2.1.11 Сведения об использованных научно-исследовательских работах и усовершенствованиях.
И.2.1.12 Топографические планы городской территории с нанесенными техническими и охранными зонами объектов строительства.
И.2.1.13 Акты приемки в эксплуатацию кровли и фасадов наземных сооружений.
И.2.1.14 Акты приемки в эксплуатацию пристенных дренажей и выпусков в водостоки.
И.2.1.15 Акт о соответствии построенного объекта требованиям к приспособлению для нужд инвалидов и МГН.
И.2.2 По пути и контактному рельсу
И.2.2.1 Ведомость протяженности путей с выделением длины главных путей, путей соединительных веток в электродепо, парковых путей, протяженности путей в тоннелях и на метромостах.
И.2.2.2 Исполнительные чертежи сооружений земляного полотна наземных участков. Ведомость дренажей прорезей и других устройств в земляном полотне. Ведомость выполнения укреплений земляного полотна и водоотводных сооружений.
И.2.2.3 Акты сдачи земляного полотна наземных участков или основания тоннельной обделки под укладку пути, ведомости контрольной нивелировки по оси и бровкам земляного полотна, замеров ширины земляного полотна поверху, уклонов сливной призмы и крутизны откосов. Акты лабораторного испытания грунтов, использованных для сооружения земляного полотна. Акты проверки степени уплотнения грунтов в насыпях.
И.2.2.4 Ведомость постоянных реперов, установленных генподрядчиком, с указанием их местоположения и отметок.
И.2.2.5 План и профиль пути с указанием станций, путевого развития на станциях, средних и предельных уклонов и длины кривых участков в % по отношению к общей протяженности с указанием наименьшего радиуса кривых.
И.2.2.6 Данные о конструкции верхнего строения пути и контактного рельса, включающие характеристику основания, типы шпал и других подрельсовых оснований, рельсов, длину рельсовых плетей и способ сварки, типы стыков, стрелочных переводов и других элементов.
И.2.2.7 Покилометровая и постанционная ведомости уложенных материалов в верхнее строение пути с указанием назначения пути, типа рельсов, объема и марки бетона и рода балласта, породы и качества древесины шпал и года их укладки, длины рельсовых плетей, года проката и номера плавки рельсов, числа скреплений по типам и видам, типа, марки и числа стрелочных переводов.
И.2.2.8 Покилометровая ведомость балласта, уложенного пути.
И.2.2.9 Ведомость покилометрового запаса материалов верхнего строения пути и контактного рельса, передаваемых эксплуатирующей организации.
И.2.2.10 Ведомость установленных путевых и сигнальных знаков.
И.2.2.11 Сертификаты на элементы верхнего строения пути, контактного рельса, стрелочные переводы и на сварку стыков рельсовых плетей и плетей контактного рельса.
И.2.2.12 Ведомость контрольных промеров положения рельсовых нитей относительно реперов. Паспорта кривых участков с ведомостями промеров положения кривых в плане (основные параметры, проектные и фактические стрелы прогиба). Ведомость возвышения наружного рельса в кривых.
И.2.2.13 Ведомость защитных ограждений.
И.2.2.14 Ведомость балльной оценки состояния пути и контактного рельса по данным измерений.
И.2.3 По эскалаторам
И.2.3.1 Документация в соответствии с приложением 7.3.Г1 СП 32-105 [17].
И.2.3.2 Исполнительные чертежи сооружений.
И.2.4 По инженерно-техническим устройствам (OB, ВК).
И.2.4.1 Паспорта на оборудование и механизмы.
И.2.4.2 Акты о выполнении наладочных работ и проведении испытаний систем с указанием организаций, выполнивших наладку и испытания.
И.2.4.3 Акты сдачи городским организациям наружных коммуникаций, вводов и разрешение на спуск канализационных и условно чистых вод в городские сети.
И.2.4.4 Акты испытания герметичности фекальных баков, водоприемников водоотливных установок и проведения гидравлических испытаний коммуникаций и емкостей.
И.2.4.5 Акты проверки защиты коммуникаций от блуждающих токов.
И.2.4.6 Акты замера уровня шума в помещениях и в тоннелях при работе вентиляционных установок, а также на поверхности - при работе тоннельных вентиляционных установок.
И.2.4.7 Сведения о выполненных мероприятиях по снижению уровня шума вентиляторов.
И.2.4.8 Акты испытания демонтажных устройств.
И.2.4.9 Ведомость запасных частей и резервного оборудования, переданных эксплуатирующей организации.
И.2.4.10 Исполнительные чертежи и кадастровые паспорта на наружные сети.
И.2.4.11 Акты приемки в эксплуатацию внутренних систем отопления.
И.2.4.12 Акты приемки в эксплуатацию систем приточно-вытяжной вентиляции.
И.2.4.13 Акты приемки в эксплуатацию систем кондиционирования воздуха.
И.2.4.14 Акты приемки в эксплуатацию естественной вентиляции.
И.2.4.15 Акты приемки в эксплуатацию внутренних систем хозяйственного и горячего водоснабжения.
И.2.4.16 Акты приемки в эксплуатацию систем выпусков водостока здания.
И.2.4.17 Акты приемки в эксплуатацию систем и выпусков внутренней канализации.
И.2.5 По электротехническим устройствам
И.2.5.1 Паспорта на оборудование.
И.2.5.2 Документ о разграничении эксплуатации питающих кабельных сетей между электроснабжающими организациями и метрополитеном.
И.2.5.3 Справка о выполнении предусмотренных проектом мероприятий по защите от блуждающих токов и электрохимической коррозии.
И.2.5.4 Исполнительная документация о выполнении мероприятий по обеспечению пожарной безопасности в электропомещениях и защиты обслуживающего персонала от поражения электрическим током.
И.2.5.5 Исполнительная документация о выполнении мероприятий по предотвращению попадания подземных вод на оборудование в электропомещениях.
И.2.5.6 Акт о проведении наладочных работ и испытаний оборудования и кабелей повышенным напряжением с указанием организаций, выполнивших наладку и испытания.
И.2.6 По устройствам управления движением поездов и связи.
И.2.6.1 Паспорта на оборудование.
И.2.6.2 Акты о проведении наладочных работ и испытаний по устройствам АТДП и связи.
И.2.6.3 Акты приемки в эксплуатацию устройств АТДП и связи.
И.2.7 По организации движения
И.2.7.1 Акты о пропуске пробного поезда, об обкатке подвижного состава, пути и обустройств.
И.2.7.2 Акт о выполнении наладочных работ и проверке работы устройств автоматического ведения поездов и автоматических дверей станций при пробном движении поездов.
И.2.8 По пожарной безопасности
И.2.8.1 Сведения о системах противопожарной защиты по объектам, включаемым в акты приемочных комиссий.
И.2.8.2 Акты приемки в эксплуатацию систем противопожарной защиты.
И.2.9 Сведения о внесенных в проектно-сметную документацию изменениях и дополнениях в соответствии с решениями утверждающих инстанций.
И.3.1 Документация должна быть оформлена на основании [89, статьи 1, 48, 52, 53].
И.3.2 Документация должна включать в себя сведения о проектной документации, на основании которой выполнены работы.
И.3.3 Акты приемки в эксплуатацию должны свидетельствовать о том, что установленное оборудование и смонтированные системы считаются принятыми и допущенными к эксплуатации.
Приложение К
(рекомендуемое)
К.1.1 Паспорт должен содержать основные строительные и эксплуатационные показатели законченной строительством линии метрополитена и ее составных частей, характеризующие условия и возможности перевозки пассажиров.
В паспорте должны быть отражены также показатели подземной линии при использовании ее сооружений в качестве убежища для населения в режимах ГО и ЧС.
Значения приводимых показателей должны соответствовать утвержденной проектной документации и, при необходимости, исполнительной документации.
К.1.2 Показатели отдельных сооружений и инженерно-технических установок, обеспечивающих реализацию основных эксплуатационных показателей, перечисленных ниже в соответствующих таблицах, в паспорте допускается не указывать.
К.1.3 На объекты метрополитена, относящиеся к эксплуатации нескольких линий, составляют отдельные паспорта.
К.1.4 В паспорте необходимо приводить сведения о впервые примененных технических решениях, о решениях, защищенных патентами или свидетельствами (со ссылками на эти документы), а также о решениях, реализованных с отклонениями от действующих норм, с приложением обосновывающих документов.
К.1.5 При изменении основных эксплуатационных показателей в результате продления или реконструкции объектов линии метрополитена в паспорта следует вносить соответствующие данные путем составления вкладышей. Наличие вкладышей отражают в содержании паспорта.
К.1.6 Паспорт рекомендуется составлять в табличной форме по приведенной ниже структуре. Отдельные технические показатели, а также необходимые пояснения, излагаемые в текстовом виде, возможно выносить в приложения. По решению заказчика состав паспорта может быть увеличен за счет внесения в него дополнительных показателей.
К.1.7 В состав паспорта следует включать перечень всех организаций, принимавших участие в проектировании и строительстве линии, с отражением реквизитов организаций, фамилий руководителей (начальник, главный инженер), объектов строительства и состава выполненных работ.
К.1.8 Паспорт подписывают руководители генеральных проектной и строительной организаций, а также эксплуатационной организации.
___________________________
(наименование метрополитена)
ПАСПОРТ
___________________________________
(наименование линии или участка линии)
Наименование организации; должность, фамилия, и.о. и подпись руководителя организации;
дата подписи; печать
проектная строительная эксплуатирующая
Город
год
Основные показатели линии
____________________________________________________________________ __
(наименование линии или участка линии)
Таблица К.1
|
Наименование |
Показатель |
|
1 Схема линии |
Приложение |
|
2 Дата ввода в эксплуатацию (число, мес, год) | |
|
3 Эксплуатационная длина в двухпутном исчислении, км | |
|
4 Пропускная способность в первый период эксплуатации: | |
|
пар поездов в час вагонов в поезде | |
|
5 Пропускная способность расчетная в перспективе: | |
|
пар поездов в час вагонов в поезде | |
|
6 Провозная способность, тыс. пассажиров в час: | |
|
в первый период эксплуатации расчетная в перспективе | |
|
7 Подвижной состав (N серии) | |
|
8 Заложение линии (длина подземного, наземного, надземного участков, км, - возможно отразить на схеме) | |
|
9 Число станций, в том числе с путевым развитием и пересадочных | |
|
10 Верхнее строение пути (тип рельсов и подрельсового основания) | |
|
11 Система внешнего электроснабжения (схема, потребляемая мощность, напряжение сети) |
Приложение |
|
12 Инженерно-технические установки: | |
|
система тоннельной вентиляции (схема, производительность УТВ) | |
|
основные водоотливные установки (число, производительность) | |
|
противопожарный водопровод (расход воды в режиме пожаротушения) | |
|
13 Системы управления: | |
|
состав диспетчерского пункта линии (перечень отраслевых ДП) | |
|
управление движением поездов (виды систем и основные функции) | |
|
управление инженерно-техническими установками (виды управления) | |
|
связи (основные виды по группам) | |
|
14 Электродепо | |
|
15 Здание эксплуатационного персонала | |
|
16 Нормативная база (перечень основных нормативных документов, которым соответствует построенная линия) |
Приложение |
|
17 Перечень основных технических решений: примененных впервые, защищенных патентами или свидетельствами, реализованных с отклонениями от действующих норм с указанием обосновывающих документов |
Приложение |
|
18 Акт Государственной приемочной комиссии |
Приложение |
|
19 Перечень организаций, участвовавших в проектировании и строительстве |
Приложение |
Основные показатели станции
____________________________________________________________________ __
(наименование станции)
Таблица К.2а*
|
Наименование |
Показатель |
|
1 Почтовый адрес | |
|
2 Дата ввода в эксплуатацию (число, мес, год) | |
|
3 Объемно-планировочная схема, отражающая привязку к местности, заложение (подземная, наземная, надземная), тип вестибюля (подземный, наземный), наличие пересадочных сооружений |
Приложение |
|
4 Число эскалаторов, лифтов, платформ подъемных для инвалидов | |
|
5 Провозная способность в первый период эксплуатации, тыс. пассажиров в час | |
|
6 То же, в перспективе | |
|
7 Реализуемая пропускная способность (пар поездов в час) в аварийном режиме (при выпадении ТПП) | |
|
8 Технические средства охраны порядка и безопасности (видеонаблюдение, сигнализация, защита от проникновения, датчики параметров среды и др.) |
Приложение |
|
9 Технические средства пожарной безопасности и контроля параметров воздуха | |
|
10 Сведения согласно п. 17 таблицы К.1 |
Приложение |
|
* Таблица составляется для каждой станции под номерами 2б, 2в и т.д. | |
Основные показатели дополнительных сооружений и устройств
____________________________________________________________________ __
(наименование линии или участка линии)
Таблица К.3а*
|
Наименование |
Показатель |
|
1 Схема участка линии, приспособленная под убежище, отражающая длину отсеков, численность укрываемого населения, тыс. чел., расположение и краткую характеристику средств жизнеобеспечения | |
|
2 Сведения согласно п. 17 таблицы К.1 |
Приложение |
|
* Таблица составляется для каждого участка под номерами 3б, 3в и т.д. | |
Основные показатели электродепо
____________________________________________________________________ __
(наименование)
Таблица К.4
|
Наименование |
Показатель |
|
1 Почтовый адрес | |
|
2 Дата ввода в эксплуатацию (число, мес, год) | |
|
3 Генеральный план с привязкой к местности, с указанием площади и экспликации сооружений в первый период эксплуатации и в перспективе |
Приложение |
|
4 Перечень основных сооружений с отражением их основных показателей по назначению (число этажей, площадь, число путей, производительность, техническое оснащение, состав выполняемых работ и др.) |
Приложение |
|
5 Технические средства охраны порядка и безопасности (видеонаблюдение, защита от проникновения, датчики параметров среды, виды связи и др.) |
Приложение |
|
6 Технические средства пожарной безопасности | |
|
7 Сведения согласно п. 17 таблицы К.1 |
Приложение |
Основные показатели здания эксплуатационного персонала
______________________________________________________________________
(наименование линии или участка линии)
Таблица К.5
|
Наименование |
Показатель |
|
1 Почтовый адрес | |
|
2 Дата ввода в эксплуатацию (число, мес, год) | |
|
3 Генеральный план с привязкой к местности |
Приложение |
|
4 Характеристика здания (число этажей, площадь, перечень основных помещений, состав размещаемого персонала и др.) |
Приложение |
|
5 Инженерно-техническое оснащение (число лифтов, электроснабжение, связи, кондиционирование и др.) | |
|
6 Технические средства охраны порядка и безопасности (видеонаблюдение, сигнализация, защита от проникновения и др.) |
Приложение |
|
7 Технические средства пожарной безопасности | |
|
8 Сведения согласно п. 17 таблицы К.1 |
Приложение |
Приложение Л
(справочное)
АБ - аккумуляторная батарея или автоматическая блокировка (в зависимости от содержания текста)
АБК - административно-бытовой корпус (в электродепо)
АВР - устройство автоматического включения резерва
АЗС - автозаправочная станция
АКП - автоматический контрольный пункт
АРМ - автоматизированное рабочее место диспетчера
АРМ - Д - движения
АРМ - Э - электроснабжения
АРМ - ЭМС - электромеханической службы
АРМ - ЭС - эскалаторной службы
АРС - автоматическое регулирование скорости (поездов)
АСОП - автоматизированная система оплаты проезда
АТДП - автоматика и телемеханика управления движением поездов
АТС - автоматическая телефонная станция
АУПС - автоматическая установка пожарной сигнализации
АУПТ - автоматическая установка пожаротушения
БВР - буровзрывные работы
БКТП - бетонная комплектно-трансформаторная подстанция
БТП - блок технологических помещений
ВЗ - воздушная завеса
ВКУ - видеоконтрольное устройство
ВОУ - водоотливная установка
ВПКР - воздушный промежуток контактного рельса
ВТЗ - воздушно-тепловая завеса
ВЦ - вычислительный центр
ВЧШГ - высокопрочный чугун с шаровидным графитом
ГГО - громкоговорящее оповещение
ГГС - громкоговорящая связь
ГЖ - горючие жидкости
ГРТС - городская радиотрансляционная сеть
ГСМ - горюче-смазочные материалы
ДП - диспетчерский пункт
ДПД - диспетчерский пункт движения (поездов)
ДПЛ -диспетчерский пункт линии (метрополитена)
ДПС - диспетчерский пункт станции
ДПЭ - диспетчерский пункт электроснабжения
ДПЭМ - диспетчерский пункт электромеханической службы
ДПЭС - диспетчерский пункт эскалаторной службы
ДСП-КПОП - дежурный по станции (станционной платформы) - командный пункт охраны порядка
ДТ - дроссель-трансформатор
ДУ - дистанционное управление
ДЦ - диспетчерская централизация
ИБП - источник бесперебойного питания
ИТП - индивидуальный тепловой пункт
КЗ - короткое замыкание
КСМ - кладовая смазочных материалов
КИП - контрольно-измерительный пункт
ЛАЦ - линейно-аппаратный цех
ЛВЖ - легковоспламеняемые жидкости
МВ - местная батарея
МВУ - местная водоотливная установка
МГН - маломобильные группы населения
МК - металлоконструкции
НАТМ - новоавстрийский тоннельный метод (строительства)
ОБУВ - ориентировочный безопасный уровень воздействия
ОВУ - основная водоотливная установка
ОДК - оперативный дистанционный контроль
ОРК - отстойно-ремонтный корпус
ОС - охранная сигнализация
ОТДВ - особо тонкодисперсное вещество
ОТС - оперативно-технологическая связь
ОУ - осветительная установка
ПД - стадия проектирования - Проектная документация
ПА - преобразовательный агрегат
ПВС - пункт восстановительных средств
ПДВ - предельно допустимые выбросы
ПДЗ - противодымная защита
ПДК - предельно допустимая концентрация
ПЗА - показатель загрязнения атмосферы
ПК - пикет
ПОС - проект организации строительства
ПП - понизительная подстанция
ППд - понизительная подстанция депо
ППИ - платформа подъемная для инвалидов
ППР - проект производства работ
ПРА - пускорегулирующая аппаратура
ПТО - пункт технического обслуживания (подвижного состава)
ПЯ - путейский ящик
Р - стадия проектирования - Рабочая документация
РП - распределительный пункт
РУ - распределительное устройство
РЦ - рельсовая цепь
СГЭ - система гарантированного электроснабжения
СИРБД - система интервального регулирования и безопасности движения поездов
СКУД - система контроля и управления доступом
СМИС - система мониторинга инженерных систем
СМР - строительно-монтажные работы
СНС - спутниковая навигационная система
СОУЭ - система оповещения и управления эвакуацией людей
СПК - суммарный показатель концентрации
СТП - совмещенная тяговая подстанция
СУРС - система управления работой станции с применением технических средств
Т - тяговая подстанция
ТБО - твердые бытовые отходы
ТВР - тепловлажностный режим
ТВУ - транзитная водоотливная установка
ТО - техническое обслуживание
ТППд - тягово-понизительная подстанция электродепо
ТПП - тяговопонизительная подстанция
ТР - текущий ремонт
ТУ - технические условия
ТФОП - телефонная сеть общего пользования
УЗО - устройство защитного отключения
УКПТ - устройство контроля прохода в тоннель
УМВ - установка местной вентиляции
УП - установка пожаротушения
УТВ - установка тоннельной вентиляции
ЦСП - цифровая система передачи
ЭМИ РД - электромагнитное излучение радиодиапазона
ЭМС - электромеханическая служба
ЭМУ - электромеханическая установка
ЭЦ - электрическая централизация
Приложение М
(рекомендуемое)
По согласованию программы изысканий с проектной и/или специализированной научно-исследовательской организацией, выполняющей геотехнические расчеты и/или научное сопровождение строительства, при выполнении инженерно-геологических изысканий дополнительно полевыми и лабораторными методами определяются следующие физико-механические характеристики грунтов:
а) для дисперсных грунтов:
1 модуль деформации для первичной ветви компрессии Ec1;
2 модуль деформации для ветви декомпрессии Ed;
3 модуль деформации для ветви вторичной компрессии Ec2;
4 секущий модуль общей деформации
;
5 разгрузочный модуль общей деформации
;
6 одометрический модуль общей деформации
;
7 модуль деформации при небольших значениях напряжения
;
8 коэффициент поперечной деформации v;
9 разгрузочный коэффициент поперечной деформации νur;
10 параметры ползучести глинистых грунтов δcrp и δi.crp;
11 прочностные характеристики: угол внутреннего трения φ и удельное сцепление с, определяемые для нагрузок, соответствующих всем этапам строительства и эксплуатации подземного и заглубленного сооружения;
12 коэффициент морозного пучения Khп, удельные нормальные и касательные силы морозного пучения σh и τh;
13 коэффициент фильтрации k грунтов.
Значения модулей деформации по результатам лабораторных испытаний необходимо корректировать на основе результатов полевых испытаний грунтов штампами или прессиометрами;
б) для скальных грунтов:
1 коэффициент крепости f (по Протодьяконову);
2 прочностные характеристики (угол внутреннего трения φ и удельное сцепление с), как материала скальной отдельности, так и по плоскостям системных трещин;
3 показатель качества массива скальных грунтов RQD.
4 степень трещиноватости скального массива, модуль деформации Еск и другие его классификационные характеристики по показателю качества RQD (таблица М.1).
|
Степень трещиноватости |
Mj |
RQD |
Kтп, % |
Объем породных блоков, дм |
Еск/Ебл, % |
Vp/Vp, % |
|
Очень слаботрещиноватые |
<1,5 |
>90 |
<0,5 |
Тысячи |
>70 |
>95 |
|
Слаботрещиноватые |
1,5-5 |
75-90 |
0,5-1,0 |
Сотни |
50-70 |
85-95 |
|
Среднетрещиноватые |
5-10 |
50-75 |
1,0-1,5 |
Десятки-сотни |
25-50 |
65-85 |
|
Сильнотрещиноватые |
10-30 |
25-50 |
1,5-2,5 |
Единицы-десятки |
10-25 |
48-65 |
|
Очень сильнотрещиноватые |
>30 |
0-25 |
>2,5 |
>1 |
3-10 |
33-48 |
Примечания
1 Mj - модуль трещиноватости скального массива (число трещин на 1 м линии измерения нормально главной или главным системам трещин), Kтп - коэффициент трещинной пустотности (отношение суммарной площади трещин к площади породы), Еск - модуль деформации скального массива, Ебл - модуль упругости скальной отдельности, Vp - скорость распространения продольных волн в массиве, Vpб - скорость распространения продольных волн в скальной отдельности.
2 Слаботрещиноватые и очень сильнотрещиноватые массивы рекомендуется характеризовать одним значением Mj, относящимся к любой системе трещин. Средне- и сильнотрещиноватые массивы могут характеризоваться несколькими значениями Mj, относящимися к различным главным системам трещин.
При соответствующем обосновании в программе инженерно-геологических изысканий, могут определяться другие классификационные и физико-механические характеристики грунтов.
Приложение Н
(рекомендуемое)
(с изменениями от 14 октября 2019 г.)
(Составлены в соответствии со структурой Московского метрополитена)
|
Подразделение |
Численность персонала, чел. |
Норматив образования | |
|
Служба движения
| |||
|
Дистанция движения - станционная бригада |
См. примечание 1 |
Станция | |
|
Эскалаторная служба
| |||
|
Дистанция эскалаторов: бригада эскалаторов бригада телеуправления |
9 |
Машинное помещение | |
|
3 |
14 машинных помещений | ||
|
Дистанция ДКСР (группа лифтов): | |||
|
бригада по техническому обслуживанию и ремонту лифтов |
4 |
Одна наличию в ОЗЭП | |
|
бригада лифтов |
4 |
Одна на 6 лифтов | |
|
Служба электроснабжения
| |||
|
Дистанция электроснабжения: группа подстанций |
9 |
6 подстанций | |
|
участок кабельной сети |
14 |
15 км линии | |
|
Дистанция освещения станций и тоннелей: |
См. примечание 2 | ||
|
участок освещения станций и тоннелей |
9 |
5 станций и перегонов | |
|
Дистанция освещения станций: |
См. примечание 2 | ||
|
участок освещения станций |
6 |
5 станций | |
|
Дистанция освещения тоннелей: |
См. примечание 2 | ||
|
участок освещения тоннелей |
7 |
13-15 км линии | |
|
Служба сигнализации и связи
| |||
|
Дистанция сигнализации: | |||
|
участок АТДП |
6 |
Станция с путевым развитием | |
|
участок линейных устройств диспетчерской централизации |
6 |
Один на линию в ОЗЭП | |
|
участок ПОНАБ |
9 | ||
|
Аккумуляторный участок |
7 |
Один на метрополитен в ОЗЭП | |
|
Участок СТП |
16 |
Один на линию в ОЗЭП | |
|
Дистанция связи: |
6 |
Один на 8 станций линии | |
|
участок связи | |||
|
участок радио |
6 |
Один на 10 станций линии | |
|
участок высокочастотной связи |
6 |
Один на линии в ОЗЭП | |
|
участок ЕРИС-М |
7 | ||
|
участок пассажирской автоматики |
6 |
Один на 10 станций линии | |
|
Участок по обслуживанию колонн экстренного вызова |
8 |
Один на метрополитен в ОЗЭП | |
|
Участок "Ситуационный центр" |
7 |
Один на метрополитен в ОЗЭП | |
|
Участок ТВ-студия |
18 | ||
|
Участок теленаблюдения |
13 |
Один на линию в ОЗЭП | |
|
Участок УКПТ |
7 |
Один на 5 линий метрополитена в ОЗЭП | |
|
Участок СУРСТ |
8 | ||
|
Участок СТП-связи/радио |
21 | ||
|
Участок СТП-пассажирской автоматики |
16 | ||
|
Участок СТП-ТВ |
16 | ||
|
Дистанция пожарной сигнализации
| |||
|
Участок автоматической пожарной сигнализации |
10 |
Один на линию в ОЗЭП | |
|
Участок установок пожаротушения |
7 | ||
|
Участок охранно-оповестительной сигнализации |
8 |
Один на 5 линий метрополитена в ОЗЭП | |
|
Участок систем раннего обнаружения пожара |
6 |
Один на линию метрополитена в ОЗЭП | |
|
Участок СТП-ПС |
16 |
Один на метрополитен в ОЗЭП | |
|
Дистанция капитального ремонта
| |||
|
Участок дистанции капитального ремонта |
8 |
Один на линию в ОЗЭП | |
|
Дистанция капитального ремонта пути |
22 |
На 100 км пути в ОЗЭП | |
|
Служба пути
| |||
|
Дистанция пути | |||
|
- околоток пути |
22 |
6 км линии | |
|
Дефектоскопная станция |
2 |
На 12 км пути | |
|
Служба тоннельных сооружений
| |||
|
Дистанция сооружений - околоток сооружений |
28 |
6 км линии | |
|
Электромеханическая служба
| |||
|
Дистанция сантехники: | |||
|
участок сантехники |
10 |
6 км линии | |
|
группа защиты |
7 | ||
|
бригада затворов |
6 |
12 км линии | |
|
Дистанция электрозащиты и АТУ: группа КПС, КПЛ |
6 | ||
|
Служба подвижного состава
| |||
|
Электродепо: | |||
|
линейный пункт локомотивных бригад |
9 |
12 км линии | |
|
пункт технического обслуживания подвижного состава |
14 |
20 км линии (см. 4.16 настоящего свода правил) | |
|
Комнаты ночного отдыха локомотивных бригад |
12 |
Станция, на которой предусматривается ночной отстой подвижного состава | |
|
Служба сбора доходов
| |||
|
Дистанция сбора доходов - кассовый участок |
См. примечание 3 |
Станция | |
|
Центр обеспечения мобильности |
3 |
Один на три станции | |
|
Служба транспортной безопасности - Участок транспортной безопасности |
См. примечание 4 |
См. таблицу Н.2 | |
|
Примечания 1 Численность и состав станционной бригады определяется по таблице Н.2 в зависимости от числа вестибюлей, машинных помещений эскалаторов и наличия путевого развития. 2 При протяженности сети метрополитена до 200 км принимается единая дистанция освещения станций и тоннелей, при большей протяженности - раздельные дистанции освещения станций и тоннелей. 3 Численность кассового участка определяется по таблице Н.2 в зависимости от числа вестибюлей с учетом одного бригадира и уборщицы производственных помещений на пять кассовых участков. 4 Численность и состав участка транспортной безопасности определяется по таблице Н.2 в зависимости от числа вестибюлей. | |||
|
Подразделение, профессия работника |
Численность персонала, чел. |
Группа производственных процессов по СП 44.13330 |
График работы в сутки | ||
|
всего |
в том числе женщин | ||||
|
Дистанция движения
| |||||
|
Станционная бригада: | |||||
|
начальник станции |
1 |
1 |
1а |
8.00 - 17.00 | |
|
дежурный по станции |
5 |
5 |
1а |
8.00 - 20.00 20.00 - 8.00 | |
|
дежурный по приему и отправлению поездов (на станции с путевым развитием) |
5 |
5 |
1а |
Круглосуточно | |
|
дежурный поста централизации (на станции с путевым развитием) |
5 |
5 |
1а | ||
|
оператор поста централизации |
5 |
5 |
1а |
Круглосуточно | |
|
дежурный у эскалаторов (на машинное помещение) |
4 |
3 |
1а |
7.00 - 15.30 14.00 - 22.00 I и II смены | |
|
Дистанция эскалаторов
| |||||
|
Бригада эскалаторов: | |||||
|
машинист |
4 |
1 |
1б |
8.00 - 20.00 20.00 - 8.00 Круглосуточно | |
|
слесарь-электрик |
4 |
1 |
1б | ||
|
мастер |
1 |
- |
1б |
8.00 - 17.00 | |
|
Бригада телеуправления: | |||||
|
электромеханик |
3 |
- |
1б |
8.00 - 20.00 20.00 - 8.00 Круглосуточно | |
|
Дистанция ДКСР (группа лифтов) Бригада лифтов: | |||||
|
лифтер |
4 |
3 |
1б |
8.00 - 20.00 20.00 - 8.00 Круглосуточно | |
|
электромеханик по техническому обслуживанию и ремонту лифтов |
4 |
- |
1б | ||
|
Дистанция электроснабжения
| |||||
|
Группа подстанций: | |||||
|
начальник |
1 |
- |
1а |
8.00 - 17.00 или 0.00 - 7.00 | |
|
электромеханик |
3 |
- |
1б | ||
|
электромонтер |
4 |
2 |
1б | ||
|
уборщик |
1 |
1 |
1б | ||
|
участок кабельной сети: |
14 |
6 |
- | ||
|
электромеханик |
1 |
- |
1б | ||
|
электромонтер |
11 |
5 |
1б | ||
|
уборщик |
1 |
1 |
1б | ||
|
старший электромеханик (на два участка) |
1 |
- |
1а | ||
|
Дистанция освещения станций и тоннелей
| |||||
|
Участок освещения станций и тоннелей: |
9 |
3 |
- |
8.00 - 17.00 или 0.00 - 7.00 | |
|
электромеханик |
1 |
- |
1б | ||
|
электромонтер |
6 |
2 |
1б | ||
|
старший электромеханик (на три участка) |
1 |
- |
1б | ||
|
уборщик |
1 |
1 |
1б | ||
|
Дистанция освещения станций
| |||||
|
Участок освещения станций: | |||||
|
старший электромеханик |
1 |
- |
1a |
8.00 - 17.00 или 0.00 - 7.00 | |
|
электромеханик |
1 |
- |
1б | ||
|
электромонтер |
3 |
1 |
1б | ||
|
уборщик |
1 |
1 |
1б | ||
|
Дистанция освещения тоннелей
| |||||
|
Участок освещения тоннелей: | |||||
|
старший электромеханик |
1 |
- |
1a |
8.00 - 17.00 или 0.00 - 7.00 | |
|
электромеханик |
2 |
- |
1б | ||
|
электромонтер |
3 |
1 |
1б | ||
|
уборщик |
1 |
1 |
1б | ||
|
Дистанция сигнализации
| |||||
|
Участок АТДП: |
6 |
- |
- | ||
|
старший электромеханик |
1 |
- |
1a |
8.00 - 17.00 или 23.00 - 8.00 | |
|
электромеханик |
4 |
- |
1б |
8.00 - 20.00 20.00 - 8.00 Круглосуточно | |
|
электромонтер |
1 |
- |
1б |
8.00 - 17.00 или 23.00 - 8.00 | |
|
Участок линейных устройств ДЦ: |
6 |
- |
- | ||
|
ведущий инженер |
1 |
- |
1a |
8.00 - 17.00 или 23.00 - 8.00 | |
|
инженер-электроник |
5 |
2 |
1a | ||
|
Участок ПОНАБ: |
9 |
- |
- |
8.00 - 17.00 или 23.00 - 8.00 | |
|
старший электромеханик |
1 |
- |
1a | ||
|
электромеханик |
6 |
- |
1б |
8.00 - 20.00 20.00 - 8.00 Круглосуточно | |
|
электромонтер |
2 |
- |
1б |
8.00 - 17.00 или 23.00 - 8.00 | |
|
Аккумуляторный участок: |
5 |
- |
- |
8.00 - 17.00 или 23.00 - 8.00 | |
|
электромеханик |
1 |
- |
- | ||
|
аккумуляторщик |
4 |
4 |
- | ||
|
Участок СТП-СЦБ |
11 |
- |
- | ||
|
ведущий инженер-технолог |
1 |
- |
- | ||
|
старший электромеханик |
5 |
- |
- | ||
|
электромеханик |
5 |
- |
- | ||
|
Дистанция связи
| |||||
|
Участок связи: |
6 |
- |
- |
8.00 - 17.00 или 23.00 - 8.00 | |
|
старший электромеханик |
1 |
- |
1a | ||
|
электромеханик |
4 |
2 |
1а | ||
|
электромонтер |
1 |
2 |
1б | ||
|
Участок радио: |
6 |
- |
- |
8.00 - 20.00 20.00 - 8.00 Круглосуточно | |
|
старший электромеханик |
1 |
- |
1а | ||
|
электромеханик |
4 |
- |
1б |
8.00 - 17.00 или 23.00 - 8.00 | |
|
электромонтёр |
1 |
1б |
8.00 - 20.00 20.00 - 8.00 Круглосуточно | ||
|
Участок высокочастотной связи: |
6 |
- |
- |
8.00 - 17.00 или 23.00 - 8.00 | |
|
старший электромеханик |
1 |
- |
- | ||
|
инженер-электроник |
3 |
1 |
- | ||
|
электромеханик |
2 |
- |
- | ||
|
Участок ЕРИС-М |
7 |
- |
- |
8.00 - 17.00 или 23.00 - 8.00 | |
|
старший электромеханик |
1 |
- |
1а | ||
|
электромеханик |
4 |
1 |
1б | ||
|
электромонтер |
2 |
- |
1б | ||
|
Участок пассажирской автоматики: |
6 |
- |
- |
8.00 - 17.00 или 23.00 - 8.00 | |
|
старший электромеханик |
1 |
- |
1a | ||
|
электромеханик |
5 |
- |
1б | ||
|
Участок "Ситуационный центр": |
7 |
- |
- |
8.00 - 20.00 или 20.00 - 8.00 Круглосуточно | |
|
ведущий инженер-электроник |
1 |
- |
1a | ||
|
инженер-электроник |
6 |
- |
1б |
8.00 - 17.00 или 23.00 - 8.00 | |
|
Участок ТВ-студия: |
18 |
- |
1б |
8.00 - 17.00 или 23.00 - 8.00 | |
|
ведущий инженер-электроник |
1 |
- |
- | ||
|
инженер-электроник |
5 |
2 |
- | ||
|
электромеханик |
12 |
3 |
- | ||
|
Участок по обслуживанию колонн экстренного вызова: |
8 |
- |
- | ||
|
старший электромеханик |
1 |
- |
- | ||
|
электромонтер |
7 |
7 |
- | ||
|
Участок теленаблюдения: |
13 |
- |
- | ||
|
старший электромеханик |
1 |
- |
- | ||
|
электромеханик |
9 |
1 |
- | ||
|
электромонтер |
3 |
- |
- | ||
|
Участок УКПТ: |
7 |
- |
- | ||
|
старший электромеханик |
1 |
- |
- | ||
|
электромеханик |
6 |
- |
- | ||
|
Участок СУРСТ: |
8 |
- |
- | ||
|
старший электромеханик |
1 |
- |
- | ||
|
электромеханик |
6 |
- |
- | ||
|
электромонтер |
1 |
- |
- | ||
|
Участок СТП-ТВ: |
16 |
- |
- | ||
|
инженер-технолог |
1 |
- |
- | ||
|
старший электромеханик |
5 |
- |
- | ||
|
электромеханик |
5 |
- |
- | ||
|
водитель |
5 |
- |
- | ||
|
Дистанция пожарной сигнализации
| |||||
|
Участок автоматической пожарной сигнализации: |
10 |
- |
- |
8.00 - 17.00 или 23.00 - 8.00 | |
|
старший электромеханик |
1 |
- |
- | ||
|
электромеханик |
6 |
2 |
- | ||
|
электромонтер |
3 |
2 |
- | ||
|
Участок установок пожаротушения: |
7 |
- |
- | ||
|
старший электромеханик |
1 |
- |
- | ||
|
электромеханик |
4 |
2 |
- | ||
|
электромонтер |
2 |
1 |
- | ||
|
Участок охранно-оповестительной сигнализации: |
8 |
- |
- | ||
|
старший электромеханик |
1 |
- |
- | ||
|
электромеханик |
6 |
- |
- | ||
|
электромонтер |
1 |
- |
- | ||
|
Участок систем раннего обнаружения пожара: |
6 |
- |
- | ||
|
старший электромеханик |
1 |
- |
- | ||
|
электромеханик |
4 |
3 |
- | ||
|
электромонтер |
1 |
1 |
- | ||
|
Участок СТП-ПС: |
16 |
- |
- | ||
|
инженер-технолог |
1 |
- |
- | ||
|
старший электромеханик |
5 |
- |
- | ||
|
электромеханик |
5 |
- |
- | ||
|
водитель |
5 |
- |
- | ||
|
Дистанция капитального ремонта
| |||||
|
Участок дистанции капитального ремонта: |
8 |
- |
- |
8.00 - 17.00 или 23.00 - 8.00 | |
|
старший электромеханик |
1 |
- |
- | ||
|
электромеханик |
4 |
- |
- | ||
|
электромонтер |
3 |
- |
- | ||
|
Дистанция пути
| |||||
|
Околоток пути: |
22 |
6 |
- |
0.00 - 6.00 | |
|
мастер пути |
1 |
- |
1б | ||
|
помощник мастера |
1 |
- |
1б | ||
|
монтер пути и контактного рельса (неосвобожденный бригадир) |
2 |
- |
1б | ||
|
монтер пути и контактного рельса |
14 |
2 |
1б | ||
|
обходчик пути |
4 |
4 |
1б | ||
|
Дистанция капитального ремонта пути: |
0.00 - 6.00 | ||||
|
участок пути: |
22 |
- |
1б | ||
|
старший мастер |
1 |
- |
- | ||
|
мастер |
1 |
- |
- | ||
|
монтеры пути |
20 |
- |
- | ||
|
Дефектоскопная станция: |
- |
- |
- | ||
|
Бригада |
- |
2 | |||
|
оператор |
- |
1 |
1б | ||
|
помощник оператора |
- |
1 |
1б | ||
|
Дистанция сооружений
| |||||
|
Околоток сооружений: |
28 |
16 |
- |
0.00 - 6.00 | |
|
тоннельный мастер |
1 |
- |
1б | ||
|
помощник тоннельного мастера |
2 |
- |
1б | ||
|
обходчик искусственных сооружений |
1 |
1 |
1б | ||
|
дренажник |
8 |
8 |
2в | ||
|
тоннельный рабочий |
6 |
3 |
1б | ||
|
облицовщик-плиточник |
2 |
2 |
1б | ||
|
маляр строительный |
3 |
2 |
2в | ||
|
штукатур |
1 |
- |
2в | ||
|
слесарь-ремонтник |
4 |
- |
1б | ||
|
Дистанция сантехники
| |||||
|
Участок сантехники: |
10 |
2 |
- |
8.00 - 17.00 | |
|
электромеханик |
2 |
- |
1б | ||
|
слесарь-электрик |
8 |
2 |
2в |
8.00 - 20.00 20.00 - 8.00 Круглосуточно | |
|
Группа защиты: |
7 |
1 |
- |
8.00 - 17.00 | |
|
старший электромеханик |
1 |
- |
1а | ||
|
электромеханик |
1 |
- |
1б | ||
|
слесарь-электрик |
5 |
1 |
1б |
8.00 - 20.00 20.00 - 8.00 Круглосуточно | |
|
Бригада затворов: |
6 |
1 |
- |
8.00 - 17.00 | |
|
электромеханик |
1 |
- |
1б | ||
|
слесарь-электрик |
5 |
1 |
1б |
8.00 - 20.00 20.00 - 8.00 Круглосуточно | |
|
Дистанция электрозащиты и АТУ
| |||||
|
Группа КПС и КПЛ: |
6 |
1 |
- |
8.00 - 17.00 | |
|
электромеханик |
1 |
- |
1a | ||
|
слесарь-электрик |
5 |
1 |
1б |
8.00 - 20.00 20.00 - 8.00 Круглосуточно | |
|
Электродепо
| |||||
|
Линейный пункт локомотивных бригад: |
21 |
4 |
- |
9.00 - 17.00; 17.00 - 2.00 4.50 - 9.00 | |
|
машинист-инструктор |
4 |
- |
1a | ||
|
оператор |
4 |
3 |
1a |
8.00 - 20.00 20.00 - 8.00 Круглосуточно | |
|
локомотивные бригады |
12 |
- |
1a |
9.00 - 17.00; 17.00 - 2.00 4.50 - 9.00 | |
|
уборщик служебных помещений |
1 |
1 |
1a |
8.00 - 17.00 | |
|
ПТО подвижного состава на линии: |
14 |
4 |
- |
7.00 - 15.00 15.00 - 23.00 | |
|
мастер |
2 |
- |
1б | ||
|
бригадир |
2 |
- |
1б | ||
|
старший осмотрщик вагонов |
3 |
- |
1б | ||
|
осмотрщик вагонов |
3 |
- |
1б | ||
|
слесарь по ремонту вагонов |
3 |
3 |
1б | ||
|
уборщик помещений |
1 |
1 |
1a |
8.00 - 17.00 | |
|
Комнаты ночного отдыха локомотивных бригад: | |||||
|
дежурная по комнатам ночного отдыха |
1 |
3 |
1a |
20.00 - 8.00 | |
|
локомотивные бригады |
12 |
3 |
1a |
01.00 - 5.30 | |
|
Дистанция сбора доходов
| |||||
|
Бригадир кассовых участков |
1 |
1 |
1a |
8.00 - 17.00 | |
|
Кассовый участок: старший кассир (на станцию) |
5 |
5 |
1a |
8.00 - 20.00 20.00 - 8.00 Круглосуточно | |
|
сменный кассир (на станцию с двумя вестибюлями) |
5 |
5 |
1a | ||
|
кассир (по числу кассовых окон) |
3 |
3 |
1a |
7.00 - 15.00 15.00 - 23.00 | |
|
Участок транспортной безопасности: | |||||
|
старший инспектор |
1 |
- |
1a |
8.00 - 17.00 | |
|
оператор технических систем (на один вестибюль) |
3 |
2 |
1a |
8.00 - 20.00 20.00 - 8.00 Круглосуточно | |
|
группа быстрого реагирования (на один вестибюль) |
3 |
- |
1a | ||
|
инспектор досмотровой зоны (на один вестибюль) |
5 |
2 |
1a | ||
|
контролер автоматического контрольного пункта (на вестибюль) |
4 |
3 |
1а | ||
|
инспектор |
5 |
2 |
1а |
8.00 - 20.00 | |
|
Центр обеспечения мобильности: старший инспектор |
1 |
1 |
1а |
8.00 - 17.00 | |
|
инспектор (на один вестибюль) |
1 |
1 |
1а |
8.00 - 20.00 | |
|
Уборка станций: | |||||
|
оператор уборочных машин (при одном вестибюле) |
12 |
10 |
1б |
8.00 - 20.00 20.00 - 8.00 Круглосуточно | |
|
оператор уборочных машин (при двух вестибюлях) |
16 |
13 |
1б | ||
|
Примечание - При расчетах численности персонала станции работающих по сменам по графикам 8.00 - 20.00 и 20.00 - 8.00 допускается считать как работающих по трем сменам в сутки. | |||||
|
Наименование помещения |
Число помещений |
Площадь, м2 |
Размещение |
|
Управление внутренних дел на метрополитене
| |||
|
Пост полиции |
1 |
15 |
В каждом вестибюле |
|
Служба движения
| |||
|
Начальник станции |
1 |
14 |
В одном вестибюле |
|
Кладовая начальника станции |
1 |
6 | |
|
Медицинский пункт |
2 |
12 + 8 |
На станциях, с которых ведется заступление локомотивных бригад (машинистов) на линию и на станциях, приспосабливаемых под защитные сооружения гражданской обороны |
|
Диспетчерский пункт станции (ДПС) (см. приложение Д настоящего свода правил) |
По расчету с учетом расстановки оборудования |
На каждой станции в уровне платформы | |
|
Комната приема пищи и отдыха ДПС |
1 |
10 |
Смежное с помещением ДПС |
|
Хранение уборочной техники |
1 |
10-15 |
В каждом вестибюле и в уровне платформы |
|
Кладовая уборочного материала, опилок и мешков с ТБО |
1 |
10 |
По возможности у лестничных сходов подуличного перехода каждого вестибюля |
|
Кладовая уборочного инвентаря |
1 |
10 |
В одном вестибюле |
|
Кладовая средств индивидуальной защиты персонала станции (СИЗ) |
1 |
6 |
На каждой станции |
|
Кубовая (помещение уборщицы) |
1 |
6 |
В каждом вестибюле и в уровне платформы |
|
Служба пути
| |||
|
Персонал околотка пути, дорожный мастер, кладовая околотка пути |
3 |
15 + 8 + 6 |
На каждой станции (в соответствии со штатным расписанием) |
|
Табельная |
1 |
20 |
На станциях с путевым развитием |
|
Кладовая бригад пути и контактного рельса |
2 |
8 + 8 |
По техническому заданию |
|
Помещение для хранения дефектоскопа |
1 |
2 (1 x 2) |
На каждой станции в уровне платформы |
|
Встроенный шкаф аварийного запаса |
1 |
2x2x0,5 (высота х ширина х глубина) |
На каждой станции в уровне платформы |
|
Кладовая путейского инструмента и материалов |
1 |
15-18 |
В соответствии с пунктом 5.7.1.22 настоящего свода правил |
|
Дистанция капитального ремонта |
- |
- |
На станции или в ОЗЭП. Одна на линию |
|
Нарядная |
- |
12 | |
|
Комната дорожного мастера |
- |
8 | |
|
Кладовая путевого инструмента |
- |
8 | |
|
Комната бригады дефектоскопной станции |
1 |
5 |
На 12 км пути |
|
Эскалаторная служба
| |||
|
Мастер эскалаторов |
1 |
8 |
Вблизи одного машинного помещения эскалаторов |
|
Машинист эскалаторов |
1 |
12 |
Рядом с машинным помещением |
|
Мастерская*(1) |
1 |
15 |
В уровне машинного помещения |
|
Кладовая поручней эскалаторов*(1) |
1 |
6 |
В уровне верхней площадки эскалаторов |
|
Кладовая запасных деталей эскалаторов*(1) |
1 |
8 |
В уровне машинного помещения |
|
Кладовая ГСМ*(2) |
1 |
6 |
Вблизи машинного помещения |
|
Дежурный оператор |
1 |
6 м - на четыре единицы оборудования; 12 м - более четырех единиц оборудования |
При наличии пассажирского подъемно-транспортного оборудования. При отсутствии кабины дежурного у эскалатора |
|
Кладовая запасных частей и технической документации |
1 |
6 |
При наличии пассажирского подъемно-транспортного оборудования (лифтов, пассажирских конвейеров и др.) |
|
Лифтер |
1 |
8 |
В одном из вестибюлей при наличии лифтового оборудования |
|
Мастер по ремонту (Мастер БМО) |
1 |
8 |
На станции или в вестибюле (в соответствии со штатным расписанием) |
|
Мастерская ремонтной бригады (Мастерская БМО) |
1 |
15 | |
|
Кладовая ремонтной бригады (Кладовая БМО) |
1 |
8 | |
|
Электромеханическая служба и Служба специальных сооружений
| |||
|
Электромеханик, мастерская, кладовая участка сантехники |
3 |
18 + 15 + 6 |
Станция (в соответствии со штатным расписанием) |
|
Электромеханик, мастерская, кладовая группа защиты |
3 |
12 + 12 + 6 | |
|
Электромеханик, мастерская, кладовая бригады затворов (ЗГУ) |
3 |
12 + 12 + 6 | |
|
Электромеханик, мастерская, кладовая ДЗЭ и АТУ |
3 |
12 + 12 + 6 | |
|
Служба электроснабжения
| |||
|
Персонал участка освещения станции |
1 |
10 |
Станция (в соответствии со штатным расписанием) |
|
Персонал участка освещения тоннелей |
1 |
10 | |
|
Мастерская, кладовая участка освещения станции |
2 |
10 + 8 |
В соответствии с техническим заданием |
|
Мастерская, кладовая участка освещения тоннелей |
2 |
10 + 8 | |
|
Кладовая хранения ртутьсодержащих ламп |
1 |
8 |
В каждом вестибюле |
|
Электромеханик, мастерская участка кабельной сети |
2 |
10 + 12 |
Станция (в соответствии со штатным расписанием) |
|
Кладовая участка кабельной сети |
1 |
6 |
На каждой станции |
|
Электромеханик автоматических станционных дверей (АСД) |
1 |
8 |
В соответствии с техническим заданием |
|
Мастерская автоматических станционных дверей (АСД) |
1 |
8 | |
|
Кладовая автоматических станционных дверей (АСД) |
1 |
7 |
В уровне платформы |
|
Помещение вышек и разборных лесов |
1 |
10 |
На каждой станции в уровне кассового зала и в уровне платформы |
|
Помещение ремонтно-ревизионной группы |
1 |
12 |
Станция (в соответствии со штатным расписанием) |
|
Служба тоннельных сооружений
| |||
|
Мастер, персонал, кладовая околотка тоннельных сооружений |
3 |
8 + 18 + 6 |
Станция (в соответствии со штатным расписанием) |
|
Резерв для временных ремонтных бригад/бригада ликвидации течей |
2 |
20 + 12 |
Одно на линию (в соответствии со штатным расписанием) |
|
Табельная |
1 |
20 |
На четыре станции (в соответствии с техническим заданием) |
|
Кладовая инертных материалов |
1 |
6 |
По возможности у лестничных сходов подуличного перехода одного из вестибюлей |
|
Кладовая ремонта и хранения вестибюльных дверей |
1 |
10 |
В каждом вестибюле |
|
Помещение вышек и разборных лесов |
1 |
10 |
На каждой станции в уровне кассового зала и в уровне платформы |
|
Кладовая для хранения инвентаря/дренажная кладовая |
1 |
8 |
На каждой станции в уровне платформы/подплатформенные помещения |
|
Службы сигнализации, централизации и блокировки, связи и информационных технологий и коммуникаций
| |||
|
Персонал участка радио, мастерская, кладовая |
3 |
15 + 10 + 6 |
На каждые 10 станций линии |
|
Персонал участка связи, мастерская, кладовая |
3 |
15 + 10 + 6 |
На каждые 8 станций линии |
|
Персонал участка ЕРИС-М, мастерская, кладовая |
3 |
15 + 10 + 6 |
На каждой линии в ОЗЭП (для Московского метрополитена) |
|
Персонал участка высокочастотной связи, мастерская, кладовая |
4 |
12 + 10 + 6 |
На каждой линии в ОЗЭП (для Московского метрополитена) |
|
Персонал участка пассажирской автоматики, мастерская, кладовая |
3 |
15 + 10 + 6 |
В вестибюле станции, на каждые 10 станций линии |
|
Электромеханик участка пассажирской автоматики (АСКОПМ) |
1 |
12 |
В вестибюле |
|
Персонал участка ПОНАБ, мастерская, кладовая |
3 |
12 + 10 + 6 |
На каждой линии в ОЗЭП (для Московского метрополитена) |
|
Персонал АТДП, мастерская, кладовая |
4 |
15 + 10 + 8 |
Вблизи релейной АТДП на каждой станции с путевым развитием |
|
Участок пожарной сигнализации |
1 |
12 |
Одно помещение на каждой линии |
|
Персонал участка линейных устройств ДЦ, мастерская, кладовая |
3 |
15 + 10 + 6 |
На каждой линии в ОЗЭП (для Московского метрополитена) |
|
Персонал аккумуляторного участка, мастерская, кладовая |
3 |
15 + 10 + 6 |
На одной линии метрополитена в ОЗЭП (для Московского метрополитена) |
|
Персонал участка автоматической пожарной сигнализации, мастерская |
3 |
15 + 10 + 6 |
На каждой линии в ОЗЭП (для Московского метрополитена) |
|
Помещение для размещения аварийного запаса (АВЗ)/запаса модулей пожаротушения |
1 |
12 |
Станция. В соответствии с техническим заданием |
|
Персонал участка установок пожаротушения, гардероб мужской, гардероб женский, мастерская |
4 |
15 + 7 + 6 + 10 |
На каждой линии в ОЗЭП (для Московского метрополитена) |
|
Персонал участка раннего обнаружения пожара, мастерская |
2 |
12 + 10 |
На одной линии метрополитена в ОЗЭП (для Московского метрополитена) |
|
Персонал участка охранно-оповестительной сигнализации, мастерская, кладовая |
4 |
15 + 13 + 10 + 6 |
На одной из 5 линий метрополитена в ОЗЭП (для Московского метрополитена) |
|
Персонал участка видеонаблюдения, мастерская, кладовая |
3 |
20 + 10 + 6 |
На каждой линии в ОЗЭП |
|
Персонал участка КЭВ, мастерская, кладовая |
3 |
10 + 10 + 6 |
На одной линии метрополитена в ОЗЭП |
|
Персонал участка УКПТ, мастерская, кладовая |
3 |
15 + 10 + 6 |
На каждые 5 линий метрополитена в ОЗЭП (для Московского метрополитена) |
|
Персонал участка СУРСТ, мастерская, кладовая |
3 |
15 + 10 + 6 |
На каждые 5 линий метрополитена в ОЗЭП (для Московского метрополитена) |
|
Персонал участка дистанции капитального ремонта, мастерская, кладовая |
3 |
15 + 10 + 6 |
На каждой линии в ОЗЭП (для Московского метрополитена) |
|
Служба подвижного состава
| |||
|
Пункт смены машинистов на линии: | |||
|
комната инструктажа локомотивных бригад |
1 |
20 |
В соответствии с техническим заданием |
|
комната дежурного машиниста-инструктора |
1 |
6 | |
|
комната оператора линейного пункта |
1 |
10 | |
|
комната приема пищи |
1 |
10 |
В уровне платформы |
|
гардеробная |
1 |
15 | |
|
кладовая |
1 |
6 |
В соответствии с техническим заданием |
|
Комнаты отдыха локомотивных бригад |
Станции, на которых запланирована ночная расстановка подвижного состава | ||
|
спальные помещения |
В соответствии с техническим заданием |
10 (на двоих) | |
|
комната дежурной |
1 |
8 |
В соответствии с техническим заданием |
|
комната приема пищи |
1 |
9-12 | |
|
кладовая/бельевая |
1 |
4 | |
|
гардероб |
1 |
2 | |
|
туалет, душ |
2 |
4 + 2 | |
|
ПТО подвижного состава на линии: | |||
|
комната приема пищи и отдыха |
1 |
10 |
В соответствии с техническим заданием |
|
кладовая, мастерская |
1 |
15 | |
|
операторская |
1 |
20 | |
|
гардероб мужской и женский |
2 |
12 + 11 | |
|
туалет |
1 |
6 | |
|
душевая мужская и женская |
2 |
3 + 3 | |
|
Служба сбора доходов
| |||
|
Бригадир участка (менеджер), кладовая |
2 |
9 + 8 |
В вестибюле в соответствии со штатами |
|
Старший кассир |
1 |
10 |
В одном вестибюле |
|
Кассы |
1 |
4,5 м2 на 1 окно |
В каждом вестибюле |
|
Подсчет монет (Операционный зал) |
1 |
6-10 | |
|
Гардеробная |
1 |
10 | |
|
Комната приема пищи и отдыха |
1 |
6 | |
|
Служба безопасности метрополитена (Служба контроля на метрополитене)
| |||
|
Пункт досмотра (Зона досмотра) |
1 |
18 (30) |
В каждом вестибюле |
|
Старший инспектор, ответственный за транспортную безопасность (Начальник участка) |
1 |
8 |
В соответствии со штатами |
|
Операторы досмотровой зоны |
1 |
10 |
В соответствии с техническим заданием |
|
Оператор технических систем службы безопасности |
1 |
8 | |
|
Инспектор |
1 |
7 | |
|
Служба пассажирских сервисов
| |||
|
Центр обеспечения мобильности |
1 |
8 |
На одной из трех станций |
|
Помещения общего назначения
| |||
|
Гардеробы для категории группы производственных процессов 1а |
В соответствии с техническим заданием |
В соответствии с техническим заданием | |
|
Блок санитарно-бытовых помещений*(2) (СБП): |
В одном вестибюле или на станции мелкого заложения, в одном вестибюле станции глубокого заложения, в ОЗЭП | ||
|
гардероб (общий для всех служб) |
По расчету в соответствии с СП 44.13330 | ||
|
душевая (общая для всех служб) | |||
|
туалет | |||
|
комната сушки одежды |
1 |
6 | |
|
Комната приема пищи и отдыха (общая для всех служб*(3) |
1 |
18 |
На станции |
|
Туалеты |
По расчету |
В уровне платформы вблизи ДПС, в каждом вестибюле станции вблизи пункта смены машинистов | |
|
Кладовая расходных запасов горючесмазочных и покрасочных материалов (общая) с разделяющими сетчатыми перегородками |
1 |
20 |
В наземном вестибюле или в подземном вестибюле в уровне пешеходного перехода |
|
*(1) Допускается одно помещение для нескольких машинных помещений. *(2) Блок санитарно-бытовых помещений для персонала категорий групп производственных процессов 1б и 2в, 2г. *(3) Комната приема пищи и отдыха общая для всех служб, кроме эскалаторной службы, службы сбора доходов и диспетчерского пункта службы движения. *(4) Площадь поста полиции включает в себя площадь зоны для задержанных. | |||
|
Наименование (назначение) помещения |
Площадь, м2 |
Размещение |
|
Диспетчерский пункт (ДПС): диспетчерская |
60 |
На станции с путевым развитием |
|
55 |
На станции без путевого развития | |
|
дежурный по станции |
15 |
Смежное с диспетчерской |
|
комната приема пищи и отдыха |
10 | |
|
щитовая |
20 |
Длина 7 м |
|
релейная |
30 | |
|
Кроссовая |
25-30 |
Длина 8 м |
|
Радиоузел |
25-27 |
Длина 6,5 м |
|
Аппаратные технологических систем |
По расчету |
На каждой станции |
|
Линейный аппаратный цех (ЛАЦ) |
По расчету |
На одной станции участка связи |
|
Щитовая освещения |
12 |
На каждой станции |
|
Примечания 1 На станциях с путевым развитием помещения ДПС следует размещать со стороны путевого развития. 2 Высота помещений - не менее 2,75 м. | ||
|
Наименование объектов метрополитена |
Границы (размеры) технических и охранных зон |
|
1 Вестибюли станций метрополитена | |
|
1.1 Отдельно стоящие наземные вестибюли |
1.1.1 В 5 м от наружного контура сооружения |
|
1.1.2 В 15 м от входа и выхода, но не далее начала проезжей части | |
|
1.1.3 Технологическая зона по ремонту эскалаторов - территория у демонтажных камер вестибюлей. Границы технологической зоны назначаются в соответствии с технологией ремонтных работ | |
|
1.1.4 Зона подъезда к технологической зоне по ремонту эскалаторов шириной не менее 4 м | |
|
1.2 Вестибюли станций, встроенные в здания |
1.2.1 В 5 м от наружного контура сооружения, эксплуатируемого метрополитеном |
|
1.2.2 В 15 м от входа и выхода, но не далее начала проезжей части | |
|
1.2.3 Технологическая зона по ремонту эскалаторов - территория у демонтажных камер вестибюлей. Границы технологической зоны назначаются в соответствии с технологией ремонтных работ | |
|
1.2.4 Зона подъезда к технологической зоне по ремонту эскалаторов шириной не менее 4 м | |
|
1.3 Подземные вестибюли мелкого заложения |
1.3.1 Зона над вестибюлями мелкого заложения, а также территория в 10 м от наружного контура сооружения в плане |
|
1.3.2 В 15 м от входа и выхода, но не далее начала проезжей части | |
|
1.3.3 Технологическая зона по ремонту эскалаторов - территория у демонтажных камер подземных вестибюлей. Границы технологической зоны назначаются в соответствии с технологией ремонтных работ | |
|
1.3.4 Зона подъезда к технологической зоне по ремонту эскалаторов шириной не менее 4 м | |
|
2 Сооружения мелкого заложения (до 8 м oт поверхности земли) - наклонные ходы, перегонные тоннели, притоннельные сооружения, камеры съездов, подземные переходы и пр. |
2.1 Зона над сооружениями мелкого заложения, а также территория в 10 м от наружного контура сооружения в плане |
|
3.1 Киоски вентиляционных шахт |
3.1.1. В 25 м от наружного контура |
|
3.1.2 Зона подъезда шириной не менее 4 м | |
|
3.1.3 Зона в 100 м от наружного контура | |
|
3.2 Воздухозаборные решетки общеобменной вентиляции, располагаемые в строительных конструкциях зданий |
3.2.1 В 25 м от воздухозаборной решетки в плане |
|
3.2.2 Зона в 100 м от наружного контура | |
|
3.3 Отдельно расположенные выпуски местной вентиляции машинных залов, водоотливных установок, станционных тяговых подстанций, санитарных узлов |
3.3.1 В 10 м от наружного контура вентиляционного выпуска |
|
3.4 Выпуски местной вентиляции машинных залов, водоотливных установок, станционных тяговых подстанций, санитарных узлов проложенные по стенам знаний и сооружений (воздуховоды) |
3.4.1 В 5 м от наружного контура вентиляционного выпуска в уровне земли и территория в 10 м на кровле здания |
|
3.5 Вентиляционные скважины водоотливных установок, станционных тяговых подстанций, напорных линий санитарных узлов |
3.5.1 В 10 м от наружного контура вентиляционного выпуска |
|
4 Напорные скважины водоотливных установок и напорных линий санитарных узлов |
4.1 В 10 м от наружного контура сооружения |
|
5 Инженерные сети | |
|
5.1 Водопровод, канализация, тепловые сети |
5.1.1 5 м от наружных границ проекции трубопроводов, колодцев, лотков и т.п. на поверхность земли |
|
5.2 Газопровод |
5.2.1 5 м от наружных границ проекции трубопроводов на поверхность земли |
|
5.3 Кабельные линии внешнего электроснабжения и кабельные линии связи |
5.3.1 Поверхность участка земли, расположенного под ней участка недр (на глубину, соответствующую глубине прокладки кабельных линий электропередачи), ограниченная вертикальными плоскостями, отстоящими по обе стороны линии от крайних кабелей на расстояние 1 м |
|
6 Отдельно стоящие здания трансформаторных подстанций |
6.1 В 10 м от наружного контура здания подстанции и от грузовых ворот подстанции в плане |
|
6.2 Зона подъезда к зданию трансформаторной подстанции шириной не менее 4 м | |
|
7 Отдельно стоящие здания и сооружения |
7.1 В 7 м от наружного контура здания или сооружения |
|
7.2 Зона подъезда к зданию трансформаторной подстанции шириной не менее 4 м | |
|
8 Огражденные наземные участки линий, соединительные ветки (подъездные пути), площадки электродепо |
8.1 В 4 м от ограждения |
|
Примечание - Ограничения не распространяются на объекты метрополитена, входящие в состав инфраструктуры предприятия. | |
Библиография
[1] СП 32-106-2004 Метрополитены. Дополнительные сооружения и устройства
[2] СП 11-105-97 Инженерно-геологические изыскания для строительства. Часть 1. Общие правила производства работ
[3] СП 11-102-97 Инженерно-экологические изыскания для строительства
[4] Инструкция по сигнализации на метрополитенах Российской Федерации. - М.: Инжиниринг, 2003
[5] Правила технической эксплуатации метрополитенов Российской Федерации. - М.: Инжиниринг, 2003
[6] ВСН 132-92 Правила производства и приемки работ по нагнетанию растворов за тоннельную обделку
[7] СТО-ГК "Трансстрой" 014-2007 Траншейная "стена в грунте". Конструкция и технология сооружения для объектов транспортного строительства
[8] ВСН 193-81 Инструкция по учету сейсмических воздействий при проектировании горных транспортных тоннелей
[9] ВСН 130-92 Правила производства и приемки работ по герметизации стыков и отверстий сборной тоннельной обделки при закрытом способе строительства
[10] СН 484-76 Инструкция по инженерным изысканиям в горных выработках, предназначаемых для размещения объектов народного хозяйства
[11] Технические указания по устройству, укладке и содержанию бесстыкового пути. Утверждены МПС России 03.10.1991
[12] Пособие по проектированию метрополитенов. - М.: Метрогипротранс, 1992
[13] СП 41-101-95 Проектирование тепловых пунктов
[14] ВСН 189-78 Инструкция по проектированию и производству работ по искусственному замораживанию грунтов при строительстве метрополитенов и тоннелей
[15] ПУЭ Правила устройства электроустановок
[16] РД 153-34.0-20.527-98 Руководящие указания по расчету токов короткого замыкания и выбору электрооборудования
[17] СП 32-105-2004 Метрополитены
[18] СП 2.5.1337-03 Санитарные правила эксплуатации метрополитенов
[19] Рекомендации по проектированию и эксплуатации осветительных установок пассажирских помещений станций метрополитена. - М.: МНИИТЭП, 1989
[20] КСЦ Метро-2 Отраслевые нормы искусственного освещения производственных объектов и подвижного состава метрополитенов. - ВНИИЖТ, 1987.
[21] СТН Ц-01-95 Железные дороги колеи 1520 мм
[22] Исключен с 17 июня 2017 г. - Изменение N 2, утвержденное приказом Минстроя России от 16 декабря 2016 г. N 982/пр
[23] СП 3.5.3.1129-02 Санитарно-эпидемиологические требования к проведению дератизации
[24] Методические указания по производству микроклиматических обследований в период изысканий. М.: Гидрометеоиздат, 1968
[25] ОНД-1-84 Инструкция о порядке рассмотрения, согласования и экспертизы воздухоохранных мероприятий и выдачи разрешений на выброс загрязняющих веществ
[26] СП 33-101-2003 Определение основных расчетных гидрологических характеристик
[27] Федеральный закон от 3 июня 2006 г. N 74-ФЗ "Водный кодекс Российской Федерации"
[28] Методики оценки природной защищенности эксплуатируемых водоносных горизонтов. - М: ВСЕГИНГЕО, 1972
[29] Исключена с 15 апреля 2020 г. - Изменение N 3
[30] Исключен с 17 июня 2017 г. - Изменение N 2, утвержденное приказом Минстроя России от 16 декабря 2016 г. N 982/пр
[31] СП 23-104-2004 Оценка шума при проектировании, строительстве и эксплуатации объектов метрополитена
[32] СП 23-105-2004 Оценка вибрации при проектировании, строительстве и эксплуатации объектов метрополитена
[33] СП 12-103-2002 Пути наземные рельсовые крановые. Проектирование, устройство и эксплуатация
[34] Инструкция по устройству гидроизоляции сборных железобетонных и чугунных обделок тоннелей метрополитенов закрытого способа работ. - М.: Главтоннельметрострой, 1985
[35] Федеральные нормы и правила в области промышленной безопасности "Правила безопасности при взрывных работах" (утверждены приказом Федеральной службы по экологическому, технологическому и атомному надзору от 16 декабря 2013 г. N 605)
[36] Рекомендации по проектированию и сооружению опережающего экрана из труб с применением микротоннелепроходческих комплексов при строительстве тоннелей. - М.: Тоннельная Ассоциация России, 1999
[37] СТО-ГК "Трансстрой" - 013-2007 Нагельное крепление котлованов и откосов в транспортном строительстве
[38] РД 07-291-99 Инструкция о порядке ведения работ по ликвидации и консервации опасных производственных объектов, связанных с пользованием недрами (утверждена постановлением Госгортехнадзора России от 2 июня 1999 г. N 33)
[39] ПБ 03-428-02 Правила безопасности при строительстве метрополитенов и подземных сооружений
[40] СП 11-110-99 Авторский надзор за строительством зданий и сооружений
[41] Федеральный закон от 21 июля 1997 г. N 116-ФЗ "О промышленной безопасности опасных производственных объектов"
[42] Инструкция по нивелированию I, II, III, IV классов. - М.: Недра, 1990
[43] Методическое руководство по комплексному горно-экологическому мониторингу при строительстве и эксплуатации транспортных тоннелей. - М.: УРАН ИПКОН РАН, НИПИИ "Ленметрогипротранс", 2009
[44] ВСН 126-90 Нормы проектирования и производства работ по креплению выработок набрызг-бетоном и анкерами при строительстве транспортных тоннелей и метрополитенов
[45] ВСН 127-91 Нормы по проектированию и производству работ по искусственному понижению уровня грунтовых вод при сооружении тоннелей и метрополитенов
[46] СО 153-34.21.122-2003 Инструкция по устройству молниезащиты зданий, сооружений и промышленных коммуникаций
[47] Федеральные нормы и правила в области промышленной безопасности "Правила безопасности опасных производственных объектов, на которых используются подъемные сооружения" (утверждены приказом Федеральной службы по экологическому, технологическому и атомному надзору от 12 ноября 2013 г. N 533)
[48] Наставление производителю работ и строительному мастеру. Укладка пути и контактного рельса метрополитена. - М.: Минтрансстрой СССР, 1971
[49] ПР 32 ЦШ 10.02-96 Правила по монтажу устройств СЦБ
[50] ПР 32 ЦШ 10.01-95 Правила по прокладке и монтажу кабелей устройств СЦБ.
[51] ОСТН-600-93 Отраслевые строительно-технические нормы на монтаж сооружений, устройств связи, радиовещания и телевидения
[52] ПБ 10-77-94 Правила устройства и безопасной эксплуатации эскалаторов
[53] ПБ 10-558-03 Правила устройства и безопасной эксплуатации лифтов
[54] Правила по охране труда при эксплуатации электроустановок (утверждены приказом Министерства труда и социальной защиты Российской Федерации от 24 июля 2013 г. N 328н)
[55] СП 40-102-2000 Проектирование и монтаж трубопроводов систем водоснабжения и канализации из полимерных материалов. Общие требования
[56] РД 34.45.-51.300-97 Объем и нормы испытания электрооборудования
[57] ОСТ 45.62-97 Линейное оборудование абонентских линий учрежденческо-производственных автоматических станций. Нормы эксплуатационные. - М.: Минсвязи России
[58] Нормы искусственного освещения при строительстве тоннелей и метрополитенов. - М.: Минтрансстрой, 1989
[59] ВСН 104-93 Нормы по проектированию и устройству гидроизоляции тоннелей метрополитенов, сооружаемых открытым способом
[60] Федеральный закон от 22 июля 2008 г. N 123-ФЗ "Технический регламент о требованиях пожарной безопасности"
[61] ВСН 160-69 Инструкция по геодезическим и маркшейдерским работам при строительстве транспортных тоннелей
[62] Федеральные нормы и правила в области промышленной безопасности "Правила промышленной безопасности опасных производственных объектов, на которых используется оборудование, работающее под избыточным давлением" (утверждены приказом Федеральной службы по экологическому, технологическому и атомному надзору от 25 марта 2014 г. N 116)
[63] Постановление Правительства Российской Федерации от 15 февраля 2011 г. N 73 "О некоторых мерах по совершенствованию подготовки проектной документации в части противодействию террористическим актам"
[64] Постановление Правительства Российской Федерации от 16 февраля 2008 г. N 87 "О составе разделов проектной документации и требованиях к их содержанию"
[65] Постановление Правительства Российской Федерации от 7 декабря 2010 г. N 1006 "О дополнительных мерах по развитию метрополитенов в Российской Федерации"
[66] ВСН 190-78 Инструкция по инженерно-геологическим изысканиям для проектирования и строительства метрополитенов, горных железнодорожных и автодорожных тоннелей
[67] Постановление Правительства Российской Федерации от 29 ноября 1999 г. N 1309 "О порядке создания убежищ и иных объектов гражданской обороны" (с учетом изменений, утвержденных постановлением Правительства Российской Федерации от 18 июля 2015 г. N 737)
[68] СТО НОСТРОЙ 2.27.19-2012 Освоение подземного пространства. Сооружение тоннелей тоннелепроходческими механизированными комплексами с использованием высокоточной обделки
[69] СТО НОСТРОЙ 2.27.123-2013 Освоение подземного пространства. Гидроизоляция транспортных тоннелей и метрополитенов, сооружаемых открытым способом. Правила проектирования, производства и приемки работ
[70] Руководство по проектированию гидротехнических туннелей. - М.: Стройиздат, 1982
[71] Пособие по применению "Методики определения расчетных величин пожарного риска в зданиях, сооружениях и строениях различных классов функциональной пожарной опасности". М.: ВНИИПО, 2012. - 83 с.
[72] СТО 7.3.27.03.2013 Применение гидроизоляционных смесей "Натлен" для повышения водонепроницаемости конструкций подземных сооружений (АО ЦНИИС "Научно-исследовательский центр "Тоннели и метрополитены")
[73] СТО СРО-П 60542948 00038-2015 Применение гидроизоляционного специального состава различных фракций при проектировании и строительстве гидротехнических сооружений, зданий и сооружений атомных электростанций (ОАО "Концерн Росэнергоатом")
[74] СТО НОСТРОЙ 2.3.18-2011 Освоение подземного пространства. Укрепление грунтов инъекционными методами в строительстве
[75] ВСН 213-92 Технические указания по проектированию и производству взрывных работ при строительстве тоннелей и метрополитенов
[76] СТО НОСТРОЙ 2.27.128-2013 Освоение подземного пространства. Строительство подземных сооружений горным способом с применением обделок из набрызг-бетона. Правила производства работ, контроль выполнения и требования к результатам работ
[77] СТО НОСТРОЙ 2.27.125-2013 Освоение подземного пространства. Конструкции транспортных тоннелей из фибробетона. Правила проектирования и производства работ
[78] СП 52-104-2006* Сталефибробетонные конструкции
[79] СТО НОСТРОЙ 2.5.74-2012 Основания и фундаменты. Устройство "стены в грунте". Правила, контроль выполнения и требования к результатам работ
[80] СП 11-104-97 Инженерно-геодезические изыскания для строительства
[81] Постановление Правительства Российской Федерации от 25 апреля 2012 г. N 390 "О противопожарном режиме"
[82] Федеральный закон от 7 декабря 2011 г. N 416-ФЗ "О водоснабжении и водоотведении"
[83] Постановление Правительства Российской Федерации от 29 июля 2013 г. N 644 "Об утверждении Правил холодного водоснабжения и водоотведения и о внесении изменений в некоторые акты Правительства Российской Федерации"
[84] Федеральные нормы и правила в области промышленной безопасности "Правила безопасности эскалаторов в метрополитенах" (утверждены приказом Федеральной службы по экологическому, технологическому и атомному надзору от 13 января 2014 г. N 9)
[85] ВСН 211-91 Прогнозирование уровней вибраций грунта от движения метропоездов и расчет виброзащитных строительных устройств
[86] Федеральный закон от 24 июня 1998 г. N 89-ФЗ "Об отходах производства и потребления"
[87] Федеральный закон от 30 марта 1999 г. N 52-ФЗ "О санитарно-эпидемиологическом благополучии населения"
[88] Постановление Правительства Российской Федерации от 23 января 2016 г. N 29 "Об утверждении требований по обеспечению транспортной безопасности объектов транспортной инфраструктуры по видам транспорта на этапе их проектирования и строительства и требований по обеспечению транспортной безопасности объектов (зданий, строений, сооружений), не являющихся объектами транспортной инфраструктуры и расположенных на земельных участках, прилегающих к объектам транспортной инфраструктуры и отнесенных в соответствии с земельным законодательством Российской Федерации к охранным зонам земель транспорта, и о внесении изменений в Положение о составе разделов проектной документации и требованиях к их содержанию"
[89] Федеральный закон от 29 декабря 2004 г. N 190-ФЗ "Градостроительный кодекс Российской Федерации"


