СП 293.1325800.2017 (30.12.2020) СИСТЕМЫ ФАСАДНЫЕ ТЕПЛОИЗОЛЯЦИОННЫЕ КОМПОЗИЦИОННЫЕ С НАРУЖНЫМИ ШТУКАТУРНЫМИ СЛОЯМИ. ПРАВИЛА ПРОЕКТИРОВАНИЯ И ПРОИЗВОДСТВА РАБОТ
С изменениями:
(30 декабря 2020 г.)
Facade's thermo insulation composite systems with external mortar layers. Design and work execution rules
Дата введения - 11 января 2018 г.
Введен впервые
Предисловие
Сведения о своде правил
1 ИСПОЛНИТЕЛИ - Научно-исследовательский институт строительной физики Российской академии архитектуры и строительных наук (НИИСФ РААСН), НО "Ассоциация "Наружные фасадные системы" (НО "Ассоциация "АНФАС")
2 ВНЕСЕН Техническим комитетом по стандартизации ТК 465 "Строительство"
3 ПОДГОТОВЛЕН к утверждению Департаментом градостроительной деятельности и архитектуры Министерства строительства и жилищно-коммунального хозяйства Российской Федерации (Минстрой России)
4 УТВЕРЖДЕН приказом Министерства строительства и жилищно-коммунального хозяйства Российской Федерации от 10 июля 2017 г. N 981/пр и введен в действие с 11 января 2018 г.
5 ЗАРЕГИСТРИРОВАН Федеральным агентством по техническому регулированию и метрологии (Росстандарт)
6 ВВЕДЕН ВПЕРВЫЕ
В случае пересмотра (замены) или отмены настоящего свода правил соответствующее уведомление будет опубликовано в установленном порядке. Соответствующая информация, уведомление и тексты размещаются также в информационной системе общего пользования - на официальном сайте разработчика (Минстрой России) в сети Интернет
Введение
Настоящий свод правил разработан с учетом обязательных требований, установленных в федеральных законах от 27 декабря 2002 г. N 184-ФЗ "О техническом регулировании", от 30 декабря 2009 г. N 384-ФЗ "Технический регламент о безопасности зданий и сооружений".
Свод правил разработан авторским коллективом Ассоциации "АНФАС" (М.Г. Александрия, С.А. Голунов, А.С. Монтянов), НИУ МГСУ (канд. техн. наук С.А. Пашкевич), АНО "НИЦ "Строительство" - ЦНИИСК им. В.А. Кучеренко (А.В. Пестрицкий, канд. техн. наук А.А. Гусев), НИИСФ РААСН (канд. техн. наук В.В. Козлов).
Изменение N 1 к настоящему своду правил разработано авторским коллективом Ассоциации "АНФАС" (М.Г. Александрия, А.С. Монтянов), ООО "НИЦ Строительных технологий и материалов" (С.А. Голунов, канд. техн. наук С.А. Пашкевич), АО "НИЦ "Строительство" - ЦНИИСК им. В.А. Кучеренко (А.В. Пестрицкий).
Настоящий свод правил распространяется на системы фасадные теплоизоляционные композиционные с наружными штукатурными слоями (СФТК), применяемые при тепловой защите с наружной стороны ограждающих стеновых конструкций зданий и сооружений различного назначения и уровня ответственности с наружной стороны при новом строительстве, реконструкции и капитальном ремонте.
Настоящий свод правил устанавливает правила проектирования и производства работ по устройству и ремонту СФТК.
В настоящем своде правил использованы нормативные ссылки на следующие документы:
ГОСТ 12.1.004-91 Система стандартов безопасности труда. Пожарная безопасность. Общие требования
ГОСТ 12.4.026-2015 Система стандартов безопасности труда. Цвета сигнальные, знаки безопасности и разметка сигнальная. Назначение и правила применения. Общие технические требования и характеристики. Методы испытаний
ГОСТ 7076-99 Материалы и изделия строительные. Метод определения теплопроводности и термического сопротивления при стационарном тепловом режиме
ГОСТ 7502-98 Рулетки измерительные металлические. Технические условия
ГОСТ Р 58513-2019 Отвесы стальные строительные. Технические условия
ГОСТ 10528-90 Нивелиры. Общие технические условия
ГОСТ 15588-2014 Плиты пенополистирольные теплоизоляционные. Технические условия
ГОСТ 16350-80 Климат СССР. Районирование и статистические параметры климатических факторов для технических целей
ГОСТ 24258-88 Средства подмащивания. Общие технические условия
ГОСТ Р 58519-2019 Правила, терки и полутерки. Технические условия
ГОСТ 25898-2012 Материалы и изделия строительные. Методы определения паропроницаемости и сопротивления паропроницанию
ГОСТ 26629-85 Здания и сооружения. Метод тепловизионного контроля качества теплоизоляции ограждающих конструкций
ГОСТ 27321-2018 Леса стоечные приставные для строительно-монтажных работ. Технические условия
ГОСТ 28498-90 Термометры жидкостные стеклянные. Общие технические требования. Методы испытаний
ГОСТ 29231-91 Шнуры. Технические условия
ГОСТ 31251-2008 Стены наружные с внешней стороны. Метод испытаний на пожарную опасность
ГОСТ 32310-2012 (EN 13164:2008) Изделия из экструзионного пенополистирола XPS теплоизоляционные промышленного производства, применяемые в строительстве. Технические условия
ГОСТ 32314-2012 (EN 13162:2008) Изделия из минеральной ваты теплоизоляционные промышленного производства, применяемые в строительстве. Общие технические условия
ГОСТ 33290-2015 Материалы лакокрасочные, применяемые в строительстве. Общие технические условия
ГОСТ 33739-2016 Системы фасадные теплоизоляционные композиционные с наружными штукатурными слоями. Классификация
ГОСТ 33740-2016 Системы фасадные теплоизоляционные композиционные с наружными штукатурными слоями. Термины и определения
ГОСТ Р 54358-2017 Составы декоративные штукатурные на цементном вяжущем для фасадных теплоизоляционных композиционных систем с наружными штукатурными слоями. Технические условия
ГОСТ Р 54359-2017 Составы клеевые, базовые штукатурные, выравнивающие на цементном вяжущем для фасадных теплоизоляционных композиционных систем с наружными штукатурными слоями. Технические условия
ГОСТ Р 55225-2017 Сетки из стекловолокна фасадные армирующие щелочестойкие. Технические условия
ГОСТ Р 55412-2018 Системы фасадные теплоизоляционные композиционные с наружными штукатурными слоями. Методы испытаний
ГОСТ Р 55818-2018 Составы декоративные штукатурные на полимерной основе для фасадных теплоизоляционных композиционных систем с наружными штукатурными слоями. Технические условия
ГОСТ Р 55936-2018 Составы клеевые, базовые штукатурные, выравнивающие шпаклевочные на полимерной основе для фасадных теплоизоляционных композиционных систем с наружными штукатурными слоями. Технические условия
ГОСТ Р 56387-2018 Смеси сухие строительные клеевые на цементном вяжущем. Технические условия
ГОСТ Р 56623-2015 Контроль неразрушающий. Метод определения сопротивления теплопередаче ограждающих конструкций
ГОСТ Р 56707-2015 Системы фасадные теплоизоляционные композиционные с наружными штукатурными слоями. Общие технические условия
ГОСТ Р 57270-2016 Материалы строительные. Методы испытаний на горючесть
ГОСТ Р 58271-2018 Смеси сухие затирочные. Технические условия
ГОСТ Р 58359-2019 Анкеры тарельчатые для крепления теплоизоляционного слоя в фасадных теплоизоляционных композиционных системах с наружными штукатурными слоями. Технические условия
ГОСТ Р 58891-2020 Элементы профильные для фасадных теплоизоляционных композиционных систем с наружными штукатурными слоями. Технические условия
ГОСТ Р 58892-2020 Составы грунтовочные для фасадных теплоизоляционных композиционных систем с наружными штукатурными слоями. Общие технические условия
ГОСТ Р 58893-2020 Составы клеевые на полиуретановой основе для крепления теплоизоляционного слоя в фасадных теплоизоляционных композиционных системах с наружными штукатурными слоями. Технические условия
ГОСТ Р 58937-2020 Слой финишный декоративно-защитный из штучных материалов для фасадных теплоизоляционных композиционных систем с наружными штукатурными слоями. Технические условия
ГОСТ Р 59197-2020 Составы клеевые и базовые штукатурные на цементной основе для фасадных теплоизоляционных композиционных систем с наружными штукатурными слоями для применения в условиях пониженных температур. Технические условия
СП 17.13330.2017 "СНиП II-26-76 Кровли" (с изменением N 1)
СП 20.13330.2016 "СНиП 2.01.07-85* Нагрузки и воздействия" (с изменениями N 1, N 2)
СП 48.13330.2019 "СНиП 12-01-2004 Организация строительства"
СП 50.13330.2012 "СНиП 23-02-2003 Тепловая защита зданий" (с изменением N 1)
СП 70.13330.2012 "СНиП 3.03.01-87 Несущие и ограждающие конструкции" (с изменениями N 1, N 3)
СП 71.13330.2017 "СНиП 3.04.01-87 Изоляционные и отделочные покрытия" (с изменением N 1)
СП 131.13330.2018 "СНиП 23-01-99* Строительная климатология"
СП 230.1325800.2015 Конструкции ограждающие зданий. Характеристики теплотехнических неоднородностей (с изменением N 1)
Примечание - При пользовании настоящим сводом правил целесообразно проверить действие ссылочных документов в информационной системе общего пользования - на официальном сайте федерального органа исполнительной власти в сфере стандартизации в сети Интернет или по ежегодному информационному указателю "Национальные стандарты", который опубликован по состоянию на 1 января текущего года, и по выпускам ежемесячного информационного указателя "Национальные стандарты" за текущий год. Если заменен ссылочный документ, на который дана недатированная ссылка, то рекомендуется использовать действующую версию этого документа с учетом всех внесенных в данную версию изменений. Если заменен ссылочный документ, на который дана датированная ссылка, то рекомендуется использовать версию этого документа с указанным выше годом утверждения (принятия). Если после утверждения настоящего свода правил в ссылочный документ, на который дана датированная ссылка, внесено изменение, затрагивающее положение на которое дана ссылка, то это положение рекомендуется применять без учета данного изменения. Если ссылочный документ отменен без замены, то положение, в котором дана ссылка на него, рекомендуется применять в части, не затрагивающей эту ссылку. Сведения о действии сводов правил целесообразно проверить в Федеральном информационном фонде стандартов.
В настоящем своде правил применены термины по ГОСТ 33740, ГОСТ Р 56707, а также следующий термин с соответствующим определением:
3.1 комплект технических решений системодержателя по устройству СФТК: Набор разработанных системодержателем технических, методических и графических материалов, описывающих порядок проектирования элементов, узлов, деталей СФТК и производства работ.
4.1 При проектировании и монтаже СФТК следует:
- принимать конструктивные решения, обеспечивающие надежность и долговечность;
- применять СФТК, соответствующие требованиям ГОСТ Р 56707;
- соблюдать положения, изложенные в комплекте технических решений системодержателя по устройству СФТК.
4.2 Соответствие класса надежности СФТК по применению уровням ответственности зданий и сооружений при их строительстве, реконструкции и капитальном ремонте на территории Российской Федерации [1, статья 4, части 7 - 10] приведено в пункте 4.4 ГОСТ Р 56707-2015.
4.3 СФТК классифицируют по ГОСТ 33739. Условное обозначение СФТК по ГОСТ 33739, включающее указание класса надежности СФТК по применению, должно быть указано в проектной документации, технической документации системодержателя и проекте производства работ (ППР) по ее устройству.
5.1 СФТК устраивается с наружной стороны ограждающих конструкций зданий и сооружений различного назначения и уровня ответственности при новом строительстве, реконструкции и капитальном ремонте при соблюдении следующих условий расположения объекта проведения работ:
- климатический район - любой по ГОСТ 16350, при расчетной зимней температуре наружного воздуха, принимаемой по СП 131.13330, не ниже минус 50 °C (принимается как средняя температура воздуха наиболее холодной пятидневки с обеспеченностью 0,92);
- зоны влажности - сухая, нормальная, влажная по СП 50.13330;
- район по давлению ветра - I - VI по СП 20.13330;
- категория сложности инженерно-геологических условий - I - III по [8].
5.2 Для зданий с повышенным и нормальным уровнями ответственности [1, статья 4, части 8, 9] следует использовать СФТК с комбинированным креплением по ГОСТ 33739.
5.3 При устройстве СФТК с комбинированным теплоизоляционным слоем на зданиях с повышенным и нормальным уровнями ответственности [1, статья 4, части 8, 9] следует применять комбинацию из фасадного пенополистирола по ГОСТ 15588 и негорючей (по ГОСТ Р 57270) минеральной ваты по ГОСТ 32314.
Примечания
1 Допускается применение фасадного экструзионного пенополистирола XPS по ГОСТ 32310, предназначенного для СФТК, устанавливаемого на здания пониженного уровня ответственности [1, статья 4, часть 10], а также на малоэтажные жилые дома при высоте здания не более трех этажей.
2 Допускается применение фасадного экструзионного пенополистирола XPS по ГОСТ 32310, предназначенного для СФТК, устанавливаемых на цоколях зданий нормального и повышенного уровней ответственности [1, статья 4, части 8, 9].
3 Во внутреннем объеме неостекленных и остекленных лоджий и балконов в целях защиты конструкции от переувлажнения в качестве теплоизоляционного слоя СФТК следует применять экструзионный пенополистирол XPS по ГОСТ 32310, предназначенный для СФТК (фактической средней плотностью не более 33 кг/м3), на высоту не более 200 мм от верхней плоскости внешних поверхностей, выступающих за наружную стену перекрытий, при условии нанесения поверх экструзионного пенополистирола XPS не менее чем 25 мм негорючего материала (растворной или штукатурной строительной смеси) и обеспечения его механического крепления.
4 Допускается применение клеевых составов на полиуретановой основе по ГОСТ Р 58893 для крепления теплоизоляционного слоя в фасадных теплоизоляционных композиционных системах с наружными штукатурными слоями, предназначенного для СФТК, устанавливаемого на здания пониженного уровня ответственности [1, статья 4, часть 10], а также на малоэтажные жилые дома при высоте здания не более трех этажей.
5.4 Технические характеристики СФТК должны соответствовать ГОСТ Р 56707.
5.5 Устройство СФТК следует проводить в соответствии с ППР, разработанным на основании проектных решений, включая ПОС, положений настоящего свода правил и комплекта технических решений системодержателя с применением системных материалов.
Технические требования к изделиям и материалам, применяемым в составе СФТК для всех классов надежности по применению, определяются по ГОСТ 56707, а также:
- для минераловатных изделий, применяемых в составе теплоизоляционного слоя, - по ГОСТ 32314;
- для изделий из пенополистирола, применяемых в комбинированном теплоизоляционном слое, - по ГОСТ 15588;
- для изделий из экструзионного пенополистирола XPS, применяемых в комбинированном теплоизоляционном слое и при устройстве утепления цоколей зданий, - по ГОСТ 32310;
- для клеевых, базовых штукатурных и выравнивающих шпаклевочных составов на цементном вяжущем - по ГОСТ Р 54359;
- для декоративных штукатурных составов на цементном вяжущем - по ГОСТ Р 54358;
- для клеевых, базовых штукатурных и выравнивающих шпаклевочных составов на полимерной основе - по ГОСТ Р 55936;
- для декоративных штукатурных составов на полимерной основе - по ГОСТ Р 55818;
- для фасадных стеклосеток - по ГОСТ Р 55225;
- для окрасочных составов - по ГОСТ 33290;
- для тарельчатых анкеров - по ГОСТ Р 58359;
- для профильных элементов - по ГОСТ Р 58891;
- для грунтовочных составов - по ГОСТ Р 58892;
- для клеевых составов на полиуретановой основе - по ГОСТ Р 58893;
- для штучных элементов, применяемых для устройства декоративно-защитного слоя - по ГОСТ Р 58937;
- для клеевых составов и базовых штукатурных на цементной основе для применения в условиях пониженных температур по ГОСТ Р 59197.
7.1 Проектирование СФТК выполняется путем привязки системы, отвечающей требованиям ГОСТ Р 56707, к объекту строительства. Выбор системы проводят на основании технического задания на проектирование с учетом специфики района расположения объекта.
Примечание - Типовые технические решения по проектированию СФТК приведены в приложении А.
7.2 При проектировании СФТК следует учитывать положения настоящего свода правил, требования безопасности зданий и сооружений [1], [2].
7.3 Для зданий классов функциональной пожарной опасности Ф1.1 и Ф4.1 по [2] следует применять СФТК класса пожарной опасности К0 по ГОСТ 31251 с использованием негорючих (группа НГ) материалов теплоизоляционного, армированного базового штукатурного и декоративно-защитного финишного слоев (за исключением окрасочных составов, входящих в декоративно-защитный финишный слой).
7.3.1 Для зданий нормальной и повышенной ответственности допускается применение СФТК с комбинированным теплоизоляционным слоем класса пожарной опасности К0 по ГОСТ 31251.
Для многоэтажных многоквартирных жилых зданий высотой до 28 м (включительно) допускается применение СФТК с комбинированным теплоизоляционным слоем класса пожарной опасности К1 по ГОСТ 31251.
7.3.2 При проектировании СФТК с комбинированным теплоизоляционным слоем для зданий по 7.3.1, независимо от класса пожарной опасности по ГОСТ 31251, должны выполняться следующие условия:
- характеристики материалов и толщины клеевого, армированного базового, выравнивающего и декоративно-защитного финишного слоев и их составных элементов в составе СФТК с комбинированным теплоизоляционным слоем должны соответствовать характеристикам, приведенным в соответствующих протоколах испытаний по ГОСТ 31251 или указанным при оценке пожарной опасности и области применения СФТК в соответствии с пунктом 4.4 ГОСТ 31251-2008;
- вид и характеристики теплоизоляционных материалов, используемых в составе СФТК с комбинированным теплоизоляционным слоем должны соответствовать показателям, приведенным в соответствующих протоколах испытаний по ГОСТ 31251 или указанным при оценке пожарной опасности и области применения СФТК в соответствии с пунктом 4.4 ГОСТ 31251-2008.
7.4 В зданиях и сооружениях степеней огнестойкости I - III, кроме малоэтажных зданий высотой не более трех этажей, армированный базовый штукатурный и декоративно-защитный финишный слои СФТК следует выполнять из материалов группы горючести не ниже Г1.
Толщина окрасочного слоя не должна превышать 0,5 мм.
7.5 СФТК с классом надежности по применению СК2 устанавливают на здания пониженного уровня ответственности [1, статья 4, часть 10], а также на малоэтажных жилых зданиях при высоте здания не более трех этажей.
7.6 Основание для устройства СФТК должно обеспечивать надежность крепления теплоизоляционного слоя СФТК (обеспечивается расчетом необходимого числа тарельчатых анкеров, подтверждаемое натурными испытаниями, проводимыми до начала работ по устройству СФТК) и соответствовать следующим требованиям:
- класс прочности на сжатие основания из тяжелого и силикатного бетона - не ниже В15;
- класс прочности на сжатие основания из ячеистого, поризованного бетонов и бетона на пористых заполнителях - не ниже В2,5;
- марка по прочности на сжатие основания из клинкерного кирпича - не ниже М300;
- марка по прочности на сжатие основания из керамического кирпича, камней и кирпича с горизонтальными пустотами - не ниже М35.
7.7 Тип материала теплоизоляционного слоя задается проектной документацией, а его толщина - на основании теплотехнического расчета в соответствии с СП 50.13330 с учетом положений СП 230.1325800 в отношении теплотехнических неоднородностей (в том числе тарельчатых анкеров).
7.8 При проектировании СФТК уровней надежности по применению СК0 и СК1 в качестве материалов теплоизоляционного слоя следует использовать:
- минеральную вату, соответствующая требованиям таблицы 3 ГОСТ Р 56707-2015. Заводская упаковка минеральной ваты должна содержать данные о следующих характеристиках: прочность на сжатие при 10%-ной линейной деформации и прочность при растяжении перпендикулярно лицевым поверхностям;
- фасадный пенополистирол по ГОСТ 15588.
Примечание - Допускается применение экструзионного пенополистирола XPS по ГОСТ 32310, предназначенного для СФТК, в соответствии с 5.3, примечания 1, 2, 3.
7.9 Комбинированный теплоизоляционный слой СФТК уровней надежности по применению СК0 и СК1 должен состоять из негорючих минераловатных плит (МВП) и фасадного пенополистирола.
7.10 По высоте СФТК следует предусмотреть в теплоизоляционном слое противопожарные рассечки, а по периметру проемов (оконных, дверных, вентиляционных и др.) - противопожарные окантовки из негорючих (группа НГ) МВП (см. рисунок 1).
Примечание - Применение для противопожарных рассечек и окантовок МВП на основе стеклянных волокон до получения положительных результатов испытаний по ГОСТ 31251 в составе СФТК не допускается.

1 - противопожарная рассечка (МВП); 2 - тарельчатый анкер (расположение показано условно); 3 - плита утеплителя (ППС)
Примечание - ППС - пенополистирольная плита
Рисунок 7.1 - Схема расположения противопожарных рассечек и окантовок проема
7.10.1 Рассечки подразделяются на поэтажные и концевые. Установка поэтажных рассечек не отменяет необходимости установки концевых рассечек и наоборот.
7.10.2 Концевые рассечки из негорючих (группа НГ) МВП устанавливают по всей длине верхнего и нижнего контуров СФТК на наружных стенах здания, а также по всей длине незамкнутых (без последовательного кольцевого перехода на смежные стены) боковых контуров СФТК. Выполнение концевых рассечек прерывистыми по длине не допускается. В разновысоких зданиях концевые рассечки должны быть установлены по указанным контурам СФТК на каждой высотной секции.
Примечание - При выполнении СФТК непосредственно от уровня отмостки здания допускается устанавливать концевую рассечку не вплотную к отмостке, а приподняв ее нижнюю горизонтальную грань на высоту не более 0,6 м. В этом случае в качестве теплоизоляционного слоя СФТК на высоту от планировочной отметки уровня земли до нижнего торца такой условно концевой рассечки допускается применять ППС с суммарной толщиной не более 200 мм или плиты из экструдированного пенополистирола с фактической средней плотностью не более 33 кг/м3 и суммарной толщиной не более 150 мм.
7.10.3 Между верхними и нижними границами (контурами) СФТК с комбинированным теплоизоляционным слоем следует выполнять поэтажные рассечки. Эти рассечки устанавливают горизонтально на каждом этаже здания, но не реже чем через каждые 4 м по высоте. Поэтажные рассечки размещают в уровне верхних откосов/обрезов проемов (оконных, витражных, дверных, вентиляционных и др., в том числе открытых и остекленных проемов лоджий, галерей и пр.), вплотную к этим откосам/обрезам. Поэтажные рассечки должны пересекать всю ширину СФТК на фасаде здания.
7.10.3.1 Допускается, за исключением первого этажа здания, выполнять поэтажные рассечки не на всю ширину СФТК на этой стене, а дискретными. При дискретной схеме поэтажные рассечки устанавливают в виде непрерывной полосы на всю длину верхних обрезов оконных (витражных, дверных и др.) проемов этажа, в том числе внешних (открытых и остекленных) проемов лоджий, переходов и им подобных, с горизонтальными выпусками в обе боковые стороны от проемов согласно 7.10.3.2 - 7.10.3.5, с длиной выпусков в зависимости от типа и ширины расположенных по боковым сторонам от проема простенков (рисунок 7.2).

Места расположения противопожарных рассечек: 1 - в районе цоколя здания; 2 - над оконным проемом по всему периметру здания; 2* - на высоте 2,5 - 3 м и от нижней отметки систему по всему периметру глухого торца здания; 3 - вокруг оконных и дверных проемов; 4 - вынос рассечки в сторону от оконного проема; 5 - по периметру примыкания к кровле
Рисунок 7.2 - Поэтажная схема расположения противопожарных рассечек и окантовок
7.10.3.2 При ширине более 1,5 м простенка между смежными проемами этажа, между проемом этажа и смежной с ним вершиной внешнего (исходящего) вертикального угла здания длина горизонтального выпуска поэтажной рассечки от проема в сторону такого простенка должна составлять не менее 0,75 м. При ширине такого простенка менее 1,5 м горизонтальный выпуск поэтажной рассечки выполняют на всю ширину простенка.
7.10.3.3 При ширине более 2,4 м простенка (участка) между оконным (дверным, витражным и др.) проемом этажа и расположенной сбоку от него вершиной внутреннего вертикального угла здания с шириной раскрытия 135° и менее (включая внутренние углы, образуемые наружными стенами и внешней стороной ограждения лоджий, балконов и т.п.) длина горизонтального выпуска поэтажной рассечки от проема в сторону вершины этого угла должна составлять не менее 0,75 м. При этом непосредственно от вершины внутреннего угла в сторону такого проема в этом же высотном уровне должна быть одновременно установлена рассечка длиной не менее 1,5 м.
7.10.3.4 При ширине 1,5 - 2,4 м простенка между оконным (дверным, витражным и др.) проемом и расположенной сбоку от него вершиной внутреннего вертикального угла здания с шириной раскрытия 135° и менее (включая внутренние углы, образуемые наружными стенами и внешней стороной ограждения лоджий/балконов и т.п.) следует выполнять горизонтальный выпуск поэтажной рассечки на все расстояние от проема до вершины угла.
Примечание - При ширине менее 1,5 м простенка между оконным (дверным, витражным и др.) проемом и расположенной сбоку от него вершиной внутреннего вертикального угла здания с шириной раскрытия 135° и менее (включая внутренние углы, образуемые наружными стенами и внешней стороной ограждения лоджий, балконов и т.п.) роль рассечки на этом участке выполняют МВП теплоизоляционного слоя СФТК (см. 7.12).
7.10.3.5 За исключением располагаемых на всю ширину СФТК в уровнях от +2,5 до +3 м и от +5 до +6 м от нижней отметки применения СФТК на глухой (без проемов) наружной стене здания остальные промежуточные рассечки по высоте этой стены допускается не устанавливать при условии, что расстояние от стены до ближайшего здания (сооружения) составляет не менее 16 м. В противном случае поэтажные рассечки следует устанавливать на каждом этаже здания, а при расстоянии до ближайшего здания менее 8 м - выполнять теплоизоляционный слой из негорючих (группа НГ) МВП. Поэтажные рассечки в общем случае следует устанавливать на всю ширину глухой стены. Установка на глухих стенах в СФТК концевых рассечек обязательна (см. рисунок 7.2).
7.10.4 По всем остальным сторонам каждого из проемов, вдоль всей длины этих сторон, вплотную к внешним обрезам проемов в СФТК устанавливают противопожарные окантовки.
7.10.5 Высота поперечного сечения рассечек (поэтажной и концевой) и окантовок должна составлять не менее 150 мм, толщина - не менее общей толщины пенополистирольного теплоизоляционного слоя СФТК на конкретном участке наружной стены.
7.10.6 При выполнении противопожарных рассечки и окантовки должно быть обеспечено плотное, без зазоров в свету, примыкание друг к другу торцов смежных по длине элементов противопожарных рассечек и окантовок из негорючих МВП.
Примечание - Противопожарные рассечку и окантовку допускается выполнять по толщине из нескольких слоев. В этом случае МВП в смежных слоях противопожарных рассечки и окантовки должны плотно, без зазоров в свету, примыкать друг к другу. Стыки друг с другом МВП в смежных по толщине слоях противопожарных рассечки и окантовки следует выполнять со смещением.
7.10.7 При неровностях основания выравнивание противопожарных рассечек и окантовок следует выполнять путем подрезки по толщине МВП этих рассечек (окантовок) или применять подкладки требуемой толщины из этих же плит, обеспечивая плотное (без зазоров) примыкание рассечки (окантовки) по всей площади тыльной поверхности к основанию. Противопожарных рассечки и окантовки устанавливают на сплошной слой клеевого состава без пропусков и воздушных зазоров, а каждый их элемент дополнительно крепят тарельчатыми анкерами (не менее двух на каждый элемент).
Примечание - В пределах площади участков СФТК, на которых теплоизоляционный слой выполняется из МВП, функцию противопожарных рассечек всех типов и окантовок выполняют указанные выше МВП.
7.11 По вертикальным границам между секциями здания, но не реже чем через каждые 30 м ширины фасада, в СФТК следует выполнять вертикальные рассечки из негорючих (группа НГ) МВП. Рассечки устанавливают на всю высоту СФТК. Ширина рассечки должна составлять не менее 1 м, толщина должна быть не менее толщины примыкающего к нему по бокам теплоизоляционного слоя на основе пенополистирола. Приклеивание и механическое крепление МВП рассечек к основанию следует выполнять так же, как и для плит теплоизоляционного слоя СФТК.
Примечание - При совпадении месторасположения вертикальной рассечки с любым из участков, где подлежат выполнению требования любого пункта из 7.13 - 7.15, установка вертикальной рассечки не требуется.
7.12 В качестве теплоизоляционного слоя СФТК на участках наружных стен по периметру всех эвакуационных выходов из здания (сооружения) на расстояние не менее 1 м от каждого откоса такого выхода следует применять негорючие (группа НГ) МВП.
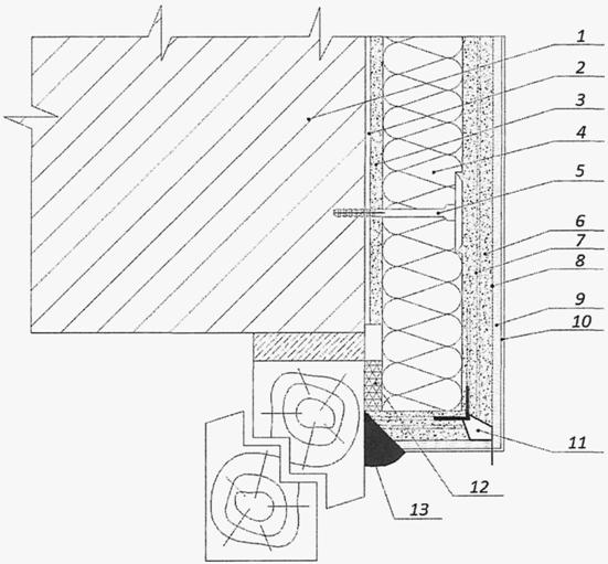
7.13 В качестве теплоизоляционного слоя в СФТК на участках наружных стен в пределах всей высоты проекции пожарной лестницы, наружной маршевой лестницы и не менее 0,5 м в каждую боковую сторону, считая от соответствующего края этих лестниц, следует применять негорючие (группа НГ) МВП (рисунок 7.3).

Рисунок 7.3 - Схемы примыкания СФТК к пожарной наружной лестнице здания
7.14 В качестве теплоизоляционного слоя в СФТК на участках наружных стен, образующих внутренние вертикальные углы с шириной раскрытия 135° и менее (включая внутренние углы, образуемые наружными стенами и внешней стороной ограждения лоджий, балконов и т.п.), при наличии в стене по одну сторону от вершины такого угла проемов (оконных, витражных, дверных; проемов мусоросборников, трансформаторных; внешнего остекления балконов; внешних проемов остекленных и открытых лоджий и т.п.), расположенных на расстоянии <*> 1,5 м и менее по горизонтали от вершины такого угла, следует применять негорючие МВП (см. рисунок 7.4):
- начиная от вершины угла в направлении указанного проема - на расстоянии <*> не менее 1,5 м по горизонтали и вдоль всей высоты СФТК, начиная от нижней отметки применения СФТК и на высоту не менее 6 м, считая от верхнего откоса самого верхнего оконного (либо иного) проема;
- начиная от вершины этого же угла в противоположную боковую сторону - на расстоянии <*> не менее 1,0 м по горизонтали и вдоль всей высоты СФТК, начиная от нижней отметки применения СФТК и на высоту не менее 6 м, считая от верхнего откоса самого верхнего оконного (либо иного) проема.
--------------------------------
<*> Расстояние указано от плоскости лицевой поверхности СФТК.

Примечание - Штриховкой отмечены фрагменты теплоизоляции из негорючих (группа НГ) МВП.
Рисунок 7.4 - Схема расположения противопожарных рассечек и окантовок внутреннего угла при наличии близко расположенного проема
7.15 В качестве теплоизоляционного слоя в СФТК на участках наружных стен, образующих указанные в 7.14 внутренние вертикальные углы, при наличии в стенах одновременно по обе стороны от вершины такого угла указанных в 7.14 проемов, расположенных на расстоянии по горизонтали 1,5 м и менее от нее, следует, начиная от вершины этого угла, одновременно в обе боковые стороны от нее на расстояние не менее чем по 1,5 м и вдоль всей высоты СФТК, начиная от нижней отметки применения СФТК и на высоту не менее 8 м, считая от верхнего откоса самого верхнего оконного (либо иного) проема, следует применять негорючие МВП.
7.16 При расстоянии по горизонтали от вершины указанного в 7.14 - 7.15 внутреннего вертикального угла до ближайшего бокового откоса/обреза проема более 1,5 м либо при ширине раскрытия внутреннего вертикального угла более 135° теплоизоляционный слой на участках по обе боковые стороны от вершины этого угла до такого проема допускается выполнять в соответствии со стандартными техническими решениями для СФТК с комбинированным теплоизоляционным слоем и учетом требований 7.10.
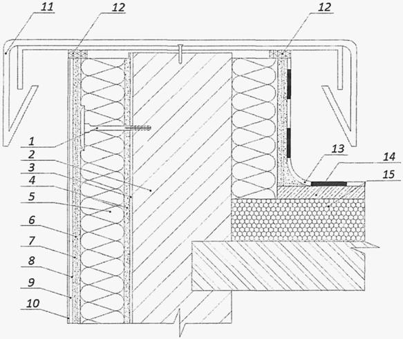
7.17 В качестве теплоизоляционного слоя в СФТК во внутреннем объеме и на внешней стороне ограждения воздушных переходов, ведущих в незадымляемые лестничные клетки типа Н1 по [2, статья 40, часть 3, пункт 1)], во внутреннем объеме остекленных и неостекленных лоджий, остекленных балконов, во внутреннем объеме и на внешней стороне ограждений лоджий и остекленных балконов, выполняющих функции эвакуационных или аварийных выходов балконов (галерей и им подобных), следует применять негорючие (группа НГ) МВП (см. рисунок 7.5).

1 - противопожарная рассечка (МВП); 2 - плита утеплителя (МВП); 3 - плита утеплителя (ППС)
Рисунок 7.5 - Схема расположения противопожарных рассечек и окантовок на участках наружных стен в зоне остекленных лоджий
7.18 Участки СФТК на парапетах зданий со стороны кровли, в том числе при устройстве теплоизоляционного слоя в нижней плоскости (если это предусматривается проектом) внешних поверхностей выступающих за наружную стену перекрытий, следует выполнять с применением в качестве материала теплоизоляционного слоя негорючих МВП.
Примечания
1 Допускается использовать в качестве теплоизоляционного слоя СФТК на этих участках, за исключением верхней плоскости парапета, ППС, в том случае, если примыкающая снизу к парапету кровля выполнена как эксплуатируемая, с учетом требований пункта 5.3.3 СП 17.13330.2017, по всему контуру сопряжения с парапетом на расстоянии не менее 2 м от границы сопряжения. При этом необходимость выполнения в СФТК на внутренней стороне парапета со стороны кровли верхней и нижней концевых рассечек сохраняется.
2 Допускается выполнять теплоизоляцию снизу выступов перекрытий с применением в СФТК ППС только в том случае, если расстояние от нижней плоскости этих выступов до верхнего обреза нижерасположенного оконного (дверного и др.) проема превышает 3,5 м, а до планировочной отметки уровня земли (до уровня проезда машин) составляет не менее 6 м. Это допущение не распространяется на потолочные поверхности конструкций.
3 Не допускается выполнение из ППС теплоизоляционного слоя сквозных проездов и проходов (арки) и въездов-выездов во встроенно-пристроенные стоянки автомобилей.
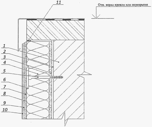
7.19 При наличии в здании участков с разновысокой кровлей необходимо выполнять ее по всему контуру сопряжения с примыкающей к ней сверху СФТК, в том числе и на глухих (без проемов) участках фасада, как эксплуатируемую, с учетом требований пункта 5.3.3 СП 17.13330.2017 на расстоянии не менее 2 м от границы сопряжения. В противном случае, а также в случае примыкания СФТК сверху к неэксплуатируемой кровле (участку кровли) нижерасположенного смежного здания в качестве теплоизоляционного слоя в СФТК на высоту не менее 3,5 м выше границы сопряжения СФТК с нижерасположенной неэксплуатируемой кровлей по всей длине этого сопряжения в СФТК следует использовать негорючие МВП.
7.20 В качестве теплоизоляционного слоя в СФТК в местах организации деформационных швов на ширину не менее чем по 0,15 м непосредственно по обе боковые стороны от шва вдоль всей его длины следует применять негорючие МВП.
7.21 По всему контуру сопряжения СФТК с фасадной системой теплоизоляции отличного от нее типа (или участком фасада без нее) следует устанавливать вертикальные рассечки из негорючих МВП шириной не менее 0,15 м и толщиной, равной толщине теплоизоляционного слоя СФТК.
7.22 При проектировании СФТК на вершинах углов оконных и дверных проемов и углов их откосов должно быть предусмотрено усиление диагональными элементами ("косынками") из фасадной стеклосетки размерами не менее 200 x 400 мм, устанавливаемыми под углом 45° по горизонтали в плоскости теплоизоляционного слоя (рисунок 7.6).

Рисунок 7.6 - Усиление СФТК в зоне оконных проемов дополнительными элементами из фасадной стеклосетки
7.23 В местах устройства в СФТК деформационных швов, предусмотренных конструкцией здания или проектной документацией, следует устанавливать деформационные профильные элементы (рисунок 7.7).
На глухих торцах зданий в СФТК следует предусматривать горизонтальные температурно-деформационные швы с шагом 15 - 20 м вне зависимости он наличия деформационных швов в строительном основании.

1 - наружная стена <*>; 2 - деформационный шов стены; 3 - СФТК; 4 - теплоизоляция; 5 - декоративная заглушка <**>; 6 - деформационный профильный элемент
--------------------------------
<*> Согласно проекту.
<**> Рекомендовано.
Рисунок 7.7 - Установка деформационного профильного элемента
7.24 Теплоизоляционный слой СФТК на вертикальных и горизонтальных внешних углах здания, углах оконных и дверных проемов, а также в местах его окончания (разрыва) следует усиливать угловыми профильными элементами. На горизонтальные углы над оконными и дверными проемами следует устанавливать профиль-капельник. На поверхности оконной или дверной рамы для обеспечения плотного примыкания СФТК следует устанавливать примыкающий оконный профильный элемент (см. рисунок 7.8).
Примечание - Допускается применять профильные элементы, предусмотренные техническими решениями системодержателя.

1 - наружная стена <*>; 2 - слои СФТК <**>; 3 - отлив; 4 - примыкающий примыкающий оконный профильный элемент; 5 - оконный блок; 6 - монтажная полиуретановая пена; 7 - профиль-капельник; 8 - торцевая заглушка отлива; δут - толщина теплоизоляционного слоя
--------------------------------
<*> Согласно проекту.
<**> Слева направо: стена здания, клеевой слой, теплоизоляционный слой, армированный базовый штукатурный слой, декоративно-защитный финишный слой.
Рисунок 7.8 - Устройство примыкания СФТК к оконному блоку
7.25 Швы или русты в виде канавок устраивают в основном слое теплоизоляции, если их глубина не превышает 1/7 толщины теплоизоляции, площадь сечения менее 10 см2, а общая площадь не превышает 0,03 м2 на 1 м2 утепляемой поверхности фасада. В противном случае формирование рустов ведут за счет установки дополнительного слоя теплоизоляции. Русты следует отделывать рустовочным профильным элементом или устраивать с помощью базового штукатурного состава и рядовой или архитектурной фасадной стеклосетки.
7.26 На устройство декоративных элементов фасадов здания, устанавливаемых поверх СФТК, следует разрабатывать отдельный раздел проектной документации. Сопряжение таких декоративных элементов с СФТК следует выполнять с учетом положений настоящего свода правил.
7.27 Толщина армированного штукатурного базового слоя в составе СФТК должна быть не менее 3 мм. Толщина выравнивающего слоя - не более 2 мм (если этот слой предусмотрен техническими решениями системодержателя). Суммарная толщина армированного базового штукатурного и выравнивающего слоев не должна превышать 8 мм. Толщина декоративно-защитного финишного слоя определяется максимальным размером зерна заполнителя, если иное не указано в технических решениях системодержателя. В случае превышения указанных выше параметров для устройства такого вида СФТК с уровнем надежности по применению СК0 и СК1 руководствуются [1, статья 6]. Фасадная армирующая щелочестойкая сетка из стекловолокна должна находиться в верхней половине базового армированного слоя с покрытием сетки не менее 1 мм.
7.28 Расчет защиты от переувлажнения СФТК следует вести в соответствии с требованиями СП 50.13330. При этом общее сопротивление паропроницанию слоев СФТК, лежащих поверх теплоизоляционного слоя, определяют по ГОСТ Р 55412. Сопротивление паропроницанию должно быть определено для конкретного состава слоев СФТК, включаемого в проектное решение.
Примечание - Допускается определять общее сопротивление паропроницанию штукатурных слоев в соответствии с ГОСТ 25898.
7.29 Проектирование СФТК с декоративно-защитным слоем из штучных материалов следует вести с учетом положений ГОСТ Р 58937. Суммарная масса 1 м2 декоративно-защитного слоя из штучных материалов, включающая в себя также клеевой плиточный и затирочный слои, предусмотренные ГОСТ Р 58937, не должна превышать 40 кг. При этом собственная суммарная масса штучных элементов декоративно-защитного слоя на 1 м2 не должна превышать 30 кг. В случае превышения указанной массы для устройства такого вида декоративно-защитного финишного слоя для СФТК с уровнем надежности по применению СК0 и СК1 руководствуются [1, статья 6].
7.29.1 Фасадные теплоизоляционные композиционные системы с наружными штукатурными слоями с декоративно-защитными слоями из штучных материалов должны соответствовать требованиям ГОСТ Р 56707 и ГОСТ Р 58937. СФТК с декоративно-защитным слоем из штучных материалов должна иметь класс надежности по применению не ниже СК0 по ГОСТ Р 56707 и класс пожарной опасности конструкции не ниже К0 по ГОСТ 31251. Максимальная допустимая высота установки декоративно-защитного слоя из штучных материалов для СФТК указанных выше классов - 75 м.
7.29.2 Расчет влажностного режима СФТК с декоративно-защитным слоем из штучных материалов в соответствии с требованиями СП 50.13330 следует выполнять для каждого конкретного объекта применения. Конструкция декоративно-защитного слоя из штучных материалов должна обеспечивать требуемый режим эксплуатации ограждающей конструкции, на которой смонтирована СФТК, в состав которой входит указанный слой.
7.29.3 Максимально допустимая площадь элемента декоративно-защитного слоя из штучных материалов на высокопаропроницаемых основаниях (ячеистый бетон, пеноблоки, пустотелый кирпич, керамические блоки и т.п.) не должна превышать 0,025 м2. Максимально допустимая площадь элемента декоративно-защитного слоя из штучных материалов на низкопаропроницаемых основаниях (бетон, полнотелый керамический или силикатный кирпич и т.п.) не должна превышать 0,05 м2.
7.29.4 Для теплоизоляционного слоя СФТК с декоративно-защитным слоем из штучных материалов следует применять каменную вату, имеющую следующие повышенные характеристики относительно требований, предъявляемых ГОСТ Р 56707 для такого вида материалов:
- прочность при растяжении перпендикулярно лицевым поверхностям - не менее 20 кПа;
- прочность на сжатие при 10%-ной деформации - не менее 40 кПа.
Следует обработать поверхность утеплителя (после установки его в проектное положение) грунтовочным составом, если это предусмотрено техническими решениями системодержателя.
Использование стекловаты и каменной ваты двойной плотности (неоднородной по толщине) не допускается.
7.29.5 Для устройства армированного базового штукатурного слоя в составе СФТК с декоративно-защитным слоем из штучных материалов следует применять базовые штукатурные составы на цементной основе по ГОСТ Р 54359, имеющие следующие повышенные характеристики относительно требований, предъявляемых ГОСТ Р 56707-2015 (таблица 4, графа "СК0") для такого вида материалов:
- классы затвердевших составов по прочности на растяжение при изгибе, не менее Btb 4;
- классы затвердевших составов по прочности сцепления с бетонным основанием (адгезии) - не менее Aab 3;
- водопоглощение затвердевших составов при насыщении водой при полном погружении в воду - не более 12%;
- деформации усадки затвердевших составов - не более 0,15%.
7.29.6 Суммарная площадь поверхности швов в составе декоративно-защитного слоя из штучных материалов должна быть не менее 12%, но не более 18%. Ширину затирочного шва следует назначать для исключения переувлажнения теплоизоляционного слоя СФТК из расчета влагонакопления стеновой конструкцией с установленной на ней СФТК с декоративно-защитным слоем из штучных материалов по СП 50.13330. При этом она должна быть не менее:
- для слоя из мелкоразмерных штучных элементов с размером каждой из сторон до 50 мм - 10% размера максимальной из сторон, но не менее 3 мм;
- для слоя из среднеразмерных штучных элементов с размером одной из сторон от 50 до 150 мм - 5% размера максимальной из сторон, но не менее 6 мм;
- для слоя из крупноразмерных штучных элементов с размером одной из сторон от 150 мм - 5% размера максимальной из сторон, но не менее 10 мм.
Затирочные составы должны соответствовать требованиям ГОСТ Р 58937 и ГОСТ Р 58271.
7.30 Допускается применение в составе СФТК тарельчатых анкеров с разъемным или неразъемным пластиковым тарельчатым дюбелем и распорным элементом из условий прохождения испытаний по ГОСТ 31251 в составе СФТК и обеспечения требуемого уровня теплопроводности в соответствии с таблицей Г.4 СП 230.1325800.2015.
В тарельчатых анкерах следует использовать нижеперечисленные типы распорных элементов:
- стальной распорный элемент (забивного или завинчивающегося типа) с защитным антикоррозионным покрытием, имеющим пластиковую термоголовку (если конструкцией тарельчатого дюбеля не предусмотрена изолирующая заглушка);
- стальной распорный элемент (забивного или завинчивающегося типа) с защитным антикоррозионным покрытием, если конструкцией тарельчатого дюбеля предусмотрена изолирующая заглушка, выполняющая функцию терморазрыва;
- композиционный распорный элемент на основе синтетических смол, наполненных искусственными или природными волокнами.
7.31 В составе СФТК допускается применять тарельчатые анкеры, удовлетворяющие техническим требованиям ГОСТ Р 58359. Основные требования к ним приведены в таблице 7.1.
|
Техническое требование |
Класс надежности СФТК по применению | ||
|
СК0 |
СК1 |
СК2 | |
|
Геометрические размеры, в т.ч.: - диаметр пластиковой части анкера, мм, не менее |
8 | ||
|
- диаметр тарельчатого элемента, мм, не менее |
60 | ||
|
- диаметр распорного элемента, мм, не менее |
4,1 | ||
|
Высота изоляции термоголовки над стальным распорным элементом, мм, не менее |
24 |
11 |
5 |
|
Толщина защитного антикоррозионного покрытия стального распорного элемента, мкм, не менее |
5 | ||
|
Прочность материала пластикового дюбеля на разрыв, МПа, не менее |
1,5 |
1,0 | |
|
Удельная потеря теплоты, Вт/°C, не более |
Определяется на основании расчета по СП 50.13330.2012 (приложение Е) | ||
|
Содержание вторичного сырья в пластиковом дюбеле |
Не допускается | ||
|
Примечания 1 Приведенные в настоящей таблице характеристики должны быть подтверждены соответствующими протоколами испытаний, входящими в состав технической документации системодержателя. 2 При диаметре распорного элемента менее 4,1 мм допустимость применения изделия должна быть подтверждена соответствующими протоколами испытаний. 3 При производстве изделия допускается использовать только новое сырье. При изготовлении может быть добавлен только тот же переработанный материал из применяемых марок полимера (например, литник), полученный в процессе изготовления данного изделия. | |||
7.32 Предварительный подбор тарельчатых анкеров осуществляется в зависимости от типа основания и категории его применения.
7.33 Категории применения тарельчатых анкеров:
A - применение в тяжелом бетоне марки B20 и выше, плотностью не менее 1800 кг/м3;
B - применение в основаниях из полнотелых штучных материалов марки по прочности M100 и выше;
C - применение в основаниях из пустотелых или перфорированных штучных материалов марки по прочности M100 и выше;
D - применение в бетоне с легким заполнителем марки по прочности B7,5 и выше, плотностью не менее 1200 кг/м3;
E - применение в ячеистом бетоне автоклавного твердения марки B2,5 и выше, плотностью не менее 400 кг/м3.
Примечание - Область применения тарельчатых анкеров должна быть указана в технической документации на изделие. Допускаются комбинации разных категорий применения.
7.34 Окончательный выбор типа тарельчатых анкеров для применения на объекте строительства осуществляют на основании определенного показателя расчетного вытягивающего усилия анкерного крепления СФТК по результатам натурных испытаний согласно приложению Б. Полученное в результате значение расчетного вытягивающего усилия Fр должно быть больше, чем минимальный показатель, приведенный в таблице 7.2.
|
Категория применения тарельчатого анкера |
Расчетное вытягивающее усилие Fрч, кН, не менее, в зависимости от класса надежности СФТК по применению | ||
|
СК0 |
СК1 |
СК2 | |
|
A |
0,35 |
0,30 |
0,20 |
|
B |
0,35 |
0,30 |
0,20 |
|
C |
0,25 |
0,20 |
0,15 |
|
D |
0,25 |
0,20 |
0,15 |
|
E |
0,25 |
0,15 |
0,15 |
7.35 Расход тарельчатых анкеров на единицу площади фасада определяют расчетом согласно СП 20.13330 с учетом расчетного сопротивления тарельчатого анкера вытягивающему усилию из основания (методика расчета приведена в приложении Б), ветрового региона и типа местности (методика расчета расхода тарельчатых анкеров приведена в приложении В) и принятой схемы механического крепления теплоизоляционного слоя (см. примеры на рисунке 7.9).

Nd - фактическое количество тарельчатых анкеров на 1 м2 теплоизоляционного слоя из условий принятой схемы. Nd = Np/Sp, где Np - число тарельчатых анкеров в проекции теплоизоляционной плиты по плоскости, шт.; Sp - площадь поверхности теплоизоляционной плиты, м2
Рисунок 7.9 - Примеры схем установки тарельчатых анкеров в составе СФТК
7.35.1 На зданиях нормального и повышенного уровней ответственности количество тарельчатых анкеров на единицу площади фасада должно быть не менее 5 шт./м2.
8.1.1 Процесс производства работ по устройству СФТК должен обеспечивать строгое соответствие состава и последовательности выполняемых монтажных операций, приведенных в настоящем своде правил, требованиям проектной, технической, технологической документации, разработанной для конкретного объекта производства работ.
8.1.2 Организацию и контроль качества работ по устройству СФТК следует осуществлять в соответствии с требованиями настоящего свода правил и СП 48.13330. Приемку работ осуществляют поэтапно с фиксацией выполнения этапа соответствующим актом, а также по окончании работ по устройству СФТК путем приемки выполненных работ заказчиком/генподрядчиком.
Примечание - Карта контроля за выполнением работ приведена в приложении Г.
8.1.3 Организация работ по устройству СФТК включает следующие мероприятия:
- обеспечение заказчиком/генподрядчиком производителя работ утвержденной проектной документацией;
- обеспечение заказчиком/генподрядчиком производителя работ технической, технологической документацией по устройству СФТК, привязанной к конкретному объекту производства работ и утвержденной системодержателем;
- разработку производителем работ ППР на СФТК;
- оформление производителем работ разрешений и допусков на производство работ, назначение лиц, ответственных за контроль качества производства работ, и лиц, ответственных за соблюдение требований безопасности при их производстве;
- обучение, при необходимости, персонала исполнителя работ методам и правилам работ по устройству СФТК по программам, согласованным с системодержателем, и оформление допусков на производство работ;
- обеспечение объекта строительства подъездными путями, электро- и водоснабжением, системой связи, помещениями бытового обслуживания, складом для приобъектного хранения строительных материалов;
- организацию поставки на объект строительства оборудования, конструкций, материалов и готовых изделий и их складирования;
- подготовку производителем работ ППР на установку строительных лесов (при их использовании) и иных средств подмащивания.
8.1.4 До момента начала работ по устройству СФТК должны быть полностью завершены следующие работы:
- монтаж кровельного покрытия;
- монтаж оконных и дверных блоков
- устройство козырьков и покрытий над входами, балконами и т.п.;
- внутренние отделочные работы с использованием строительных растворов.
8.1.5 Перед началом работ по монтажу СФТК необходимо выполнить соответствующие мероприятия по приемке-передаче фасада к отделке с учетом требований СП 70.13330 с обязательным составлением акта приемки-передачи фасада под отделку (приложение Д).
8.1.5.1 При приемке-передаче фасада под отделку его состояние оценивается уполномоченными представителями заказчика/генподрядчика и производителя работ (таблица 8.1). Выявленные недостатки фиксируют и устраняют.
|
Этап выполнения фасадных работ |
Технические требования |
Метод оценки, вид регистрации |
|
Подготовка поверхности основания (очистка, грунтование, выравнивание поверхностей) |
Контроль выполнения основания на соответствие требованиям СП 70.13330. Контроль работ в соответствии с перечнем недостатков, выявленных в процессе приемки-передачи фасадов под установку СФТК |
Акт приемки-передачи фасада под отделку (форма акта приведена в приложении Д). Акт освидетельствования скрытых работ на подготовку основания (форма акта приведена в приложении Е) |
8.1.5.2 Основание для устройства СФТК должно быть:
- очищено от остатков строительного раствора, загрязнений (пыли, мела и т.д.), цементных и известковых налетов;
- очищено от ржавчины с обязательной обработкой антикоррозионной грунтовкой металлических деталей, закрываемых теплоизоляционным слоем;
- при необходимости очищено от грибков, лишайников, мхов, плесени (с обработкой пораженных участков противогрибковыми и бактерицидными составами);
- обработано укрепляющим грунтом (если это предусмотрено проектной документацией и (или) технической документацией системодержателя).
8.1.5.3 С основания должны быть удалены все осыпающиеся и непрочные участки, а дефекты поверхности основания глубиной более 10 мм - заполнены ремонтными штукатурными составами.
8.1.5.4 Основание перед монтажом СФТК также должно быть проверено на наличие отклонений от плоскости. Неровности, превышающие допустимые значения (таблица 8.1), подлежат выравниванию строительным раствором (впадины) либо удалению механическим способом (выступы). При значительных отклонениях от плоскости (более 20 мм) на значительных площадях фасада (более 10 м2) работы по выравниванию фасада проводят как отдельный вид работ, по окончании которого состояние основания повторно оценивается уполномоченными представителями заказчика/генподрядчика и производителя работ. Составляют акт приемки-передачи фасадов под установку СФТК.
8.1.5.5 На каждом объекте производства работ по установке СФТК следует осуществлять проверку несущей способности основания на соответствие значениям, принятым в проекте. Проверка основания по несущей способности на вырыв тарельчатого анкера осуществляется профильной организацией в соответствии с требованиями настоящего свода правил, действующих нормативных документов и технической документации.
Для проведения натурных испытаний привлекают организацию, аккредитованную в порядке, предусмотренном действующим законодательством Российской Федерации. По результатам проведения натурных испытаний системодержателю или иному лицу, ответственному за производство работ по установке СФТК, выдают протокол испытаний с заключением о правильности выбора типа и числа тарельчатых анкеров, достаточности его физико-механических свойств для применения для имеющегося основания, глубины его анкеровки и др.
8.1.6 Устройство СФТК на объекте строительства необходимо выполнять в соответствии с проектной документацией и положениями настоящего свода правил.
8.1.7 Устройство СФТК выполняется в последовательности, предусмотренной технологической картой на производство работ и календарным планом работ, разработанными в составе ППР с учетом обоснованного совмещения отдельных видов работ в соответствии с требованиями настоящего свода правил, технической и технологической документацией системодержателя.
8.1.8 Контроль выполнения фасадных работ должен осуществляться специалистами, профильными подразделениями производителя работ или по договору профильными организациями, оснащенными техническими средствами, обеспечивающими необходимую достоверность и полноту контроля в соответствии с положениями настоящего свода правил. Работы по устройству СФТК сопровождаются указанными специалистами с фиксацией отдельных их этапов и оформлением соответствующих актов (приложение Ж).
8.1.9 Нарушения, выявленные в ходе контроля за работами по устройству СФТК, а также рекомендуемые меры по их устранению следует фиксировать по форме предписания контроля качества строительно-монтажных работ (приложение И).
8.1.10 Устройство СФТК допускается производить при температуре окружающего воздуха в зоне производства работ от 5 °C до 30 °C. В процессе производства работ по устройству СФТК необходимо предусматривать меры, препятствующие воздействию прямых солнечных лучей и атмосферных осадков на поверхность фасада.
Примечание - Допускается выполнение работ по устройству СФТК, кроме работ по устройству СФТК с декоративно-защитным слоем из штучных материалов, в условиях пониженной и отрицательной температуры атмосферного воздуха (до минус 10 °C) при условии соблюдения дополнительных мер по обеспечению требуемого температурного-влажностного режима на участке производства работ по 8.3.
8.1.11 Устройство СФТК осуществляется со строительных лесов и других средств подмащивания по ГОСТ 24258. Строительные леса следует устанавливать в соответствии с ППР, разработанным для объекта производства работ по устройству СФТК, на непросадочные основания по ГОСТ 27321 (например, из железобетонных дорожных плит с уплотненным песком основанием) на расстоянии от наружной стены, равном толщине теплоизоляционного слоя, увеличенной на 25 - 30 см (до 50 см максимум).
8.1.12 Сборку конструкций строительных лесов проводят согласно паспорту изготовителя, защитные ограждения монтируют как с внешней стороны конструкции, так и с внутренней. Над входами в здание выполняют монтаж временных навесов по ГОСТ 27321. Для удобства монтажа СФТК строительные леса должны быть установлены (рисунок 8.1) с запуском за углы здания на расстоянии не менее 2 м. Для защиты, устанавливаемой СФТК от солнечного излучения и атмосферных осадков, строительные леса должны быть укрыты на участке выполнения работ с помощью ветровлагозащитной сетки или пленки.
Примечание - В случае невозможности установки строительных лесов допускается проводить монтаж СФТК с навесных строительных люлек и строительных подъемников. При этом ППР на устройство СФТК в обязательном порядке согласовывают с заказчиком/генеральным подрядчиком, уполномоченными органами строительного надзора и системодержателем.

Рисунок 8.1 - Схема установочных параметров строительных лесов
8.2.1 Устройство СФТК осуществляют в такой последовательности:
- монтаж теплоизоляционного слоя, включая монтаж цокольного профильного элемента (если иное не предусмотрено ППР) и установка тарельчатых анкеров;
- устройство базового штукатурного слоя, армированного фасадной стеклосеткой, включая установку усиливающих и профильных элементов, а также его грунтование (если это предусмотрено ППР);
- устройство декоративно-защитного финишного слоя с последующими грунтованием и окраской или без них, включая устройство выравнивающего слоя и его грунтование (если эти операции предусмотрены ППР).
После устройства декоративно-защитного финишного слоя проводят установку оконных отливов, герметизацию швов и примыканий, а также заделку мест крепления строительных лесов.
Примечание - Устройство (монтаж) декоративных архитектурных элементов, предусмотренных проектной документацией для установки на фасадах объекта производства работ (за исключением случаев, когда декоративные элементы формируются за счет изменения толщины теплоизоляционного слоя), а также установка на фасадах объекта производства работ дополнительного оборудования (кондиционеры, приборы освещения и т.п.), предусмотренная проектной документацией, не относятся к работам по устройству СФТК.
8.2.2 Параметры, контролируемые на этапах устройства СФТК, указаны в таблице 8.2.
|
Этап выполнения фасадных работ |
Технические требования |
Метод оценки, вид регистрации |
|
Установка цокольного профильного элемента (если его применение предусмотрено проектной документацией) |
Зазоры между основанием и цокольным профильным элементом: - не более 1 мм/м |
Измерительный, на каждые 50 - 100 м2 поверхности покрытия |
|
Приклеивание теплоизоляционных плит с последующим механическим креплением тарельчатыми анкерами |
Контроль качества установки теплоизоляционного слоя на соответствие требованиям СП 70.13330. Отклонение от плоскости в любой точке по высоте и длине здания не более 5 мм. Отклонения плоскости изоляции: - по горизонтали ± 2 мм/2 м; - по вертикали ± 2 мм/2 м. Размер уступов между плитами не должен превышать 1,5 мм. Контроль количества и типа установленных тарельчатых анкеров, а также их целостности, местоположения и отсутствия подвижности тарельчатого анкера. Тарельчатый диск анкера, термоголовка распорного элемента или заглушка не должны выступать из плоскости теплоизоляционного слоя. Выступающие элементы тарельчатого анкера должны быть размещены заподлицо в плоскости теплоизоляции либо утоплены относительно плоскости не более 2 мм. Ширина швов между плитами - не более 2 мм |
Измерительный, не менее чем на каждые 5 точек на 100 м2 поверхности. Акт освидетельствования скрытых работ на устройство (включая отклонения от плоскости фасада) и крепление теплоизоляционного слоя (форма акта приведена в приложении Е) |
|
Нанесение базового штукатурного слоя, армированного фасадной стеклосеткой (армирование угловых зон и примыканий, армирование плоскости) |
Контроль качества штукатурного слоя на соответствие требованиям СП 71.13330 Контроль толщины армированного базового слоя: - не менее 3 мм. Контроль укладки фасадной армирующей щелочестойкой сетка из стекловолокна - фасадная армирующая щелочестойкая сетка из стекловолокна должна находиться в верхней половине базового армированного слоя с минимальным покрытием сетки - не менее 1 мм |
Измерительный, не менее 5 точек на каждые 50 - 100 м2 поверхности покрытия. Акт освидетельствования скрытых работ (форма акта приведена в приложении Е): - на армирование проемов и углов, откосов дверных и оконных проемов; - установку дополнительных армирующих профилей и дополнительных стеклосеток; - монтаж армированного базового штукатурного слоя с армированием фасадной армирующей щелочестойкой сеткой из стекловолокна |
|
Нанесение декоративно-защитного финишного слоя с подготовкой (нанесение выравнивающего слоя, грунтовка) и последующей окраской |
Контроль качества штукатурного слоя на соответствие требованиям СП 71.13330 Контроль суммарной толщины слоев, расположенных поверх теплоизоляционного слоя: - не более 10 мм |
Измерительный, на каждые 50 - 100 м2 поверхности покрытия. Акт освидетельствования скрытых работ (форма акта приведена в приложении Е): - на устройство выравнивающего слоя; - грунтование поверхности. Акт приемки выполненных работ (форма акта приведена в приложении Ж) |
8.2.3 Монтаж теплоизоляционного слоя осуществляют в три последовательных этапа:
- установка цокольного профильного элемента (в случае, если это предусмотрено проектной документацией);
- приклеивание (установка) теплоизоляционных плит к строительному основанию;
- механическая фиксация приклеенных теплоизоляционных плит с помощью тарельчатых анкеров.
8.2.3.1 Монтаж цокольного профильного элемента (рисунок 8.2) выполняется с плотным примыканием к строительному основанию в точках крепления посредством установки соответствующих по толщине пластмассовых дистанционных прокладок. Зазор между основанием и цокольным профильным элементом заполняют монтажной полиуретановой пеной. Цокольные профильные элементы устраивают встык с применением пластмассового соединительного элемента. Не допускается соединение цокольных профилей внахлест. На углах здания цокольный профильный элемент формируется с помощью двух косых надрезов и последующего сгиба.

1 - основание; 2 - соединительный элемент цокольного профильного элемента; 3 - опорный цокольный профильный элемент; 4 - анкер с дюбелем; 5 - дистанционная прокладка
Рисунок 8.2 - Установка цокольного профиля
8.2.3.2 Приклеивание теплоизоляционных плит к строительному основанию осуществляют с помощью клеевых составов. Клеевые составы приготовляют в соответствии с технической документацией системодержателя. Нанесение клеевого состава на теплоизоляционные плиты проводят с помощью кельмы полосой шириной от 50 до 80 мм и толщиной от 10 до 30 мм по всему периметру с отступлением от краев от 20 до 30 мм и дополнительным нанесением от трех до шести пятен клеевого состава на центральную часть плоскости плиты. Допускается также механизированное нанесение клеевого состава.
Примечание - Для исключения образования воздушных пробок разрешается устройство разрывов в полосе клеевого состава, наносимого по контуру плиты.
8.2.3.3 Площадь адгезионного контакта клеевого состава с основанием после установки теплоизоляционной плиты в проектное положение должна составлять не менее 40%.
Примечание - Минераловатные изделия с волокнами, расположенными перпендикулярно внешней поверхности (ламельные изделия, ламели), устанавливают на сплошной слой клеевого состава и фиксируют тарельчатыми анкерами из расчета один тарельчатый анкер в месте стыка коротких сторон двух ламелей.
8.2.3.4 После нанесения клеевого состава плиту устанавливают в проектное положение. Установку теплоизоляционных плит проводят снизу вверх, начиная от цокольного профильного элемента (если его применение предусмотрено проектной документацией) горизонтальными рядами, с перевязкой вертикальных швов в каждом ряду не менее 100 мм. На внешних и внутренних углах следует выполнять порядовую перевязку теплоизоляционных плит.
8.2.3.5 На углах оконных и дверных проемов устанавливают теплоизоляционные плиты с угловым вырезом таким образом, чтобы стыки швов с примыкающими плитами находились на расстоянии не менее 150 мм от угла проема. В случае устройства оконных и дверных блоков в плоскости основания теплоизоляционные плиты устанавливают с напуском на коробку блока не менее чем на 20 мм. По периметру коробки должна быть наклеена уплотнительная полиуретановая лента или примыкающий оконный профильный элемент. Порядок выполнения данной операции в процессе работ по устройству СФТК определяется ППР с учетом технических решений системодержателя. Дренажные отверстия в оконных и дверных блоках следует оставить свободными.
8.2.3.6 Если оконные и дверные блоки утоплены по отношению к плоскости фасада, а откос подлежит утеплению, то сначала устанавливают теплоизоляционные плиты основной плоскости фасада с необходимым напуском вовнутрь проема, а затем подготовленные по размеру заготовки приклеивают на откосы. По периметру коробки должны быть наклеены уплотнительная полиуретановая лента или примыкающий оконный профильный элемент. Порядок выполнения данной операции в процессе работ по устройству СФТК определяется ППР с учетом технических решений системодержателя.
8.2.3.7 Теплоизоляционные плиты следует устанавливать вплотную друг к другу, а в случае возникновения зазоров более 2 мм их необходимо заполнить материалом теплоизоляционного слоя. Не допускается заполнение шва между установленными теплоизоляционными плитами клеевым или базовым составами.
8.2.3.8 Швы между теплоизоляционными плитами следует располагать на расстоянии не менее 100 мм от края выступа на плоскости основания или от границы различных стеновых материалов основания.
8.2.3.9 Порядок устройства противопожарных рассечек регламентирован разделом 7 и должен быть отражен в ППР.
Примечание - Каждый элемент противопожарной рассечки следует крепить не менее чем двумя тарельчатыми анкерами.
8.2.4 Механическое крепление теплоизоляционных плит тарельчатыми анкерами допускается выполнять в два этапа. На первом этапе на период твердения клеевого состава выполняют установку тарельчатых анкеров в рабочее (неполное проектное) положение (без окончательной забивки или затяжки стального распорного элемента). При этом следует устанавливать не менее 50% анкеров. На втором этапе после полного высыхания клеевого состава все тарельчатые анкеры устанавливают в проектное положение.
8.2.4.1 Количество, схему установки и тип тарельчатых анкеров следует определять в соответствии со схемой, указанной в проектной документации. Процесс установки тарельчатых анкеров должен быть описан в ППР.
8.2.4.2 Тарельчатый диск дюбеля после его установки в проектное положение должен быть неподвижным (не допускаются вращение вокруг оси и перемещение перпендикулярно плоскости теплоизоляционного слоя) и должен плотно утапливаться в теплоизоляционный слой без выступов над поверхностью. Расстояние от оси установки тарельчатого анкера до краевых зон основания (угол здания, граница проема) должно быть не менее 100 мм. При забивании (завинчивании) распорного стального элемента должна быть исключена возможность повреждения тарельчатого анкера. Поврежденный тарельчатый анкер должен быть заменен.
8.2.4.3 Правильность установки теплоизоляционного слоя контролируют в соответствии с требованиями таблицы 8.2 настоящего свода правил. По окончании работ по его установке составляют акты освидетельствования скрытых работ по форме, приведенной в приложении Е.
Примечание - Необходимость нанесения грунтовочного состава поверх теплоизоляционного слоя определяется проектным решением с учетом технических решений системодержателя и должна быть отражено в ППР.
8.2.5 Устройство армированного базового штукатурного слоя начинают только после полного высыхания клеевого состава и набора его прочности (сроки выдержки до начала работ определяются ППР). Оно включает следующие виды работ:
- установка усиливающих и профильных элементов, выполняемая до начала устройства армированного базового штукатурного слоя;
- устройство армированного базового штукатурного слоя, осуществляемое в одну или две технологические операции.
Примечание - Перечень усиливающих и профильных элементов и схема их установки должны быть указаны в проектной документации. Необходимость нанесения грунтовочного состава поверх базового штукатурного слоя определяется проектным решением с учетом технических решений системодержателя и должна быть отражена в ППР.
8.2.5.1 Профильные элементы (угловые профильные элементы пластиковые уголки со стеклосеткой и др.) следует устанавливать встык по отношению друг к другу с нахлестом сетки в местах стыка друг на друга минимум на 100 мм. Все усиливающие и профильные элементы ("косынки", профили примыкания, деформационные профили и др.) должны быть установлены до начала работ по устройству армированного базового штукатурного слоя (если иное не предусмотрено ППР).
Примечание - Усиливающие и профильные элементы устанавливают на слой базового состава и утапливают в него.
8.2.5.2 Устройство армированного базового штукатурного слоя и установку усиливающих и профильных элементов осуществляют с помощью базовых штукатурных составов. Способ приготовления базового штукатурного состава и метод его нанесения, сроки выдержки до последующих операций, а также метод укладки (утапливания) в него фасадной стеклосетки при устройстве армированного базового штукатурного слоя должны быть указаны в технологической карте производства работ в составе ППР.
8.2.5.3 Устройство армированного базового штукатурного слоя начинают после начала схватывания нанесенного базового состава, на который установлены усиливающие и профильные элементы СФТК.
8.2.5.4 Устройство армированного базового штукатурного слоя необходимо проводить в следующем порядке:
а) на теплоизоляционный слой ровным слоем толщиной 3 - 4 мм или зубчатым инструментом (шпатель, терка) с зубом 10 мм наносят базовый состав. Поверхность МВП перед нанесением клеевого (базового) раствора грунтуют тонким слоем (до 0,5 мм) того же самого клеевого (базового) раствора с помощью гладкого стального шпателя.
В случае использования других видов теплоизоляции грунтование поверхности допускается не выполнять;
б) приготовленный рулон рядовой фасадной стеклосетки разматывают вертикально в зазоре между стеной и строительными лесами на всю длину подготовленной поверхности, прислоняют к нанесенному базовому составу и утапливают. Сразу же после этого укладывают следующее полотно сетки, как указано выше, с нахлестом на предыдущее не менее чем на 100 мм;
в) полотно рядовой фасадной стеклосетки утапливают в базовый состав таким образом, чтобы он проходил через ее ячейки и выступал над ней не менее чем на 1 мм;
г) после укладки рядовой фасадной стеклосетки поверхность базового армированного штукатурного слоя затирают так, чтобы сетка не была видна (при этом допускается одновременное локальное нанесение дополнительного выравнивающего слоя базового штукатурного состава толщиной 1 - 2 мм методом "мокрое по мокрому");
д) в местах примыкания армированного базового штукатурного слоя к оконным и дверным блокам кельмой снимают фаску под углом 45° до уплотнительной ленты, в случае использования примыкающего оконного профильного элемента фаска не снимается;
е) после начала твердения базового состава наносят (если иное не предусмотрено ППР) дополнительный слой базового штукатурного состава (при этом суммарная толщина армированного базового штукатурного слоя не должна превышать размера, предусмотренного проектной документацией и указанного в технической документации системодержателя и протоколах испытания СФТК, предоставляемых им);
ж) после окончательного твердения базового штукатурного состава неровности на его поверхности удаляют с помощью инструмента, предусмотренного ППР;
и) базовый слой покрывают слоем грунта (если это предусмотрено ППР).
Примечание - Запрещается наносить базовый штукатурный состав по фасадной стеклосетке, уложенной (закрепленной) непосредственно на теплоизоляционный слой.
8.2.5.5 При использовании для армирования цоколя здания в составе армированного базового штукатурного слоя дополнительных рядовых фасадных стеклосеток, усиленных или панцирных стеклосеток, последние укладывают встык без нахлеста. Второй слой фасадной стеклосетки укладывают с нахлестом 100 мм. Дополнительные сетки укладывают поверх рядовых в порядке, предусмотренном ППР.
8.2.5.6 Правильность устройства армированного базового штукатурного слоя контролируют в соответствии с требованиями таблицы 8.2. По окончании работ по устройству армированного базового слоя составляются акты освидетельствования скрытых работ по форме, приведенной в приложении Е.
8.2.5.7 Грунтовочный состав наносится на затвердевший базовый штукатурный слой не позднее чем за 12 ч до начала работ по нанесению декоративно-защитного финишного слоя, если иное не предусмотрено ППР, на основании проектного решения с учетом технических решений системодержателя.
8.2.6 Устройство декоративно-защитного финишного слоя начинают только после полного высыхания базового состава и набора его прочности (сроки выдержки базового слоя до последующих операций определяются ППР). Оно включает следующие виды работ:
- устройство выравнивающего слоя и его грунтование (если иное не предусмотрено ППР);
- устройство декоративно-защитного финишного слоя;
- окраска декоративно-защитного финишного слоя (если иное не предусмотрено ППР).
8.2.6.1 Устройство выравнивающего слоя осуществляют с помощью выравнивающих шпаклевочных составов. Их способы приготовления и методы нанесения должны быть указаны в ППР.
Примечание - Допускается выполнять устройство выравнивающего слоя с использованием базовых составов, если это предусмотрено технической документацией системодержателя.
8.2.6.2 Устройство выравнивающего слоя начинают только после полного высыхания базового состава и набора его прочности (сроки выдержки выравнивающего слоя до последующих операций определяются ППР).
Примечание - Если ППР предусмотрено грунтование поверхности базы перед началом работ по устройству выравнивающего слоя, то нанесение выравнивающих составов начинают после полного высыхания грунта.
8.2.6.3 Выравнивающий шпаклевочный состав наносят за один раз толщиной не более 2 мм. После его окончательного твердения неровности на поверхности удаляют с помощью специализированного инструмента, предназначенного для таких видов работ.
Примечание - Если ППР предусмотрено грунтование поверхности выравнивающего слоя перед началом работ по устройству декоративно-защитного финишного слоя, то нанесение грунта начинают после окончательного твердения выравнивающих шпаклевочных составов.
8.2.6.4 Правильность устройства выравнивающего слоя контролируют в соответствии с требованиями таблицы 8.2 настоящего свода правил. По окончании работ по его устройству составляются акты освидетельствования скрытых работ по форме, приведенной в приложении Е.
8.2.6.5 Декоративный состав наносят на основание за один раз вручную с помощью стальных терок. Толщина наносимого слоя должна соответствовать максимальному размеру зерна минерального заполнителя состава. Фактура слоя формируется до начала схватывания (твердения) декоративного состава с помощью пластиковых терок или иного инструмента (в случае применения структурных штукатурных составов).
8.2.6.6 Работы на одной поверхности СФТК выполняют непрерывно, от верхнего угла вниз, опускаясь ступенчато по схеме "лестница". В этом случае ступень одного яруса лесов должна опережать ступень соседнего яруса на 1,5 - 2 м.
8.2.6.7 В случае приостановки работы, предусмотренной ППР, по границе в месте обрыва декоративно-защитного финишного слоя наносят самоклеящуюся малярную ленту. Затем наносят декоративный состав, формируют структуру слоя и удаляют малярную ленту вместе с остатками нанесенного состава. При возобновлении работ край участка с нанесенным слоем закрывают самоклеящейся малярной лентой. Ленту удаляют сразу после формирования структуры слоя на новом участке производства работ до момента начала схватывания (твердения) декоративного состава.
8.2.6.8 Для исключения отличия по цвету между различными участками декоративно-защитного финишного слоя на поверхности одного фасада здания используют окрашенные в массе декоративные составы одной отпускной партии. При работе материалами из разных партий рекомендуется перемешать объем в одной большой емкости или стыковать материал на разных плоскостях.
Примечание - Грунтовочный состав наносится на затвердевший декоративно-защитный финишный слой (если это предусмотрено) не позднее чем за 12 ч до начала работ по его окраске, если иное не предусмотрено ППР, на основании проектного решения с учетом технических решений системодержателя.
8.2.6.9 Устройство окрасочного слоя начинают только после полного высыхания декоративно-защитного финишного слоя (сроки выдержки декоративно-защитного финишного слоя до последующих операций определяются ППР).
8.2.6.10 Перед началом работ поверхности, не предназначенные под покраску (например, окна, двери и др.), должны быть закрыты защитной пленкой. Строительные леса должны быть очищены от мусора, а участок, на котором производятся работы, должен быть защищен ветровлагозащитной пленкой.
8.2.6.11 Окрасочные составы наносят вручную равномерно не менее чем за два прохода способом, указанным в ППР. Плоскость одного фасада здания окрашивается полностью. Для исключения отличия по цвету между различными участками окрасочного слоя на поверхности одного фасада здания используют колерованную краску одной отпускной партии. При работе материалами из разных партий рекомендуется перемешать объем в одной большой емкости или стыковать материал на разных плоскостях. В случае приостановки работы, предусмотренной ППР, проводят мероприятия, аналогичные указанным в 8.2.6.7
Примечание - В случае механизированного нанесения краски процесс ее нанесения должен быть указан в ППР.
8.2.6.12 Правильность устройства декоративно-защитного финишного слоя контролируют в соответствии с требованиями таблицы 8.2. При производстве работ по его устройству составляют акты освидетельствования скрытых работ по форме, приведенной в приложении Е.
8.2.7 Декоративно-защитный финишный слой из штучных материалов выполняют в соответствии с проектной документацией. Для выполнения этого вида работ в составе ППР разрабатывают отдельный раздел, который согласовывают с заказчиком/генподрядчиком и системодержателем.
8.2.7.1 Декоративно-защитный финишный слой из штучных материалов укладывают на затвердевший и загрунтованный базовый штукатурный слой на специализированные клеевые составы класса не ниже C2 TE S1 по ГОСТ Р 56387. Тип, количество и способ установки тарельчатых анкеров определяются проектным решением с учетом технических решений системодержателя.
8.2.7.2 Если армированный базовый слой усиливают дополнительной рядовой фасадной стеклосеткой, поставляемой системодержателем, то должна быть предусмотрена установка дополнительных тарельчатых анкеров, которые устанавливают сквозь оба слоя рядовой фасадной стеклосетки.
8.2.7.3 Дополнительные тарельчатые анкеры устанавливают сразу в проектное положение после утапливания второго слоя рядовой фасадной стеклосетки. Количество и тип анкеров в этом случае задаются в проектной документации, но не менее 2 шт./м2.
Примечание - Армированный базовый слой под установку декоративно-защитного слоя из штучных материалов может усиливаться дополнительной фасадной стеклосеткой [как правило, типа ФСУ (тип плетения - П, класс - Б в соответствии с ГОСТ Р 55225)], которая укладывается под рядовую фасадную стеклосетку. При этом должна быть предусмотрена установка дополнительных тарельчатых анкеров, которые устанавливают как сквозь первый слой, так и сквозь оба слоя фасадной стеклосетки. Их размещение определяется проектом, но их общее количество должно быть увеличено не менее чем на 2 шт. на 1 м2.
8.2.7.4 При использовании для усиления армированного базового слоя усиленных стеклосеток номинальной массой на единицу площади более 200 г/м2 нанесение базового состава, утапливание стеклосетки и установку тарельчатых анкеров проводят последовательно без технологических перерывов. В этом случае тарельчатые анкеры устанавливают сквозь сетку сразу в проектное положение.
8.2.7.5 Выравнивание армированного базового штукатурного слоя перед устройством декоративно-защитного финишного слоя из штучных материалов ведут базовыми составами в соответствии с 8.2.5.4.
8.2.7.6 По истечении технологического перерыва, предусмотренного ППР (но не ранее чем через 24 ч), приступают к установке (приклейке) элементов декоративно-защитного финишного слоя из штучных материалов (керамической, клинкерной плитки и др.).
8.2.7.7 Специализированные клеевые составы наносят сплошным слоем как на армированный базовый слой (толщиной 2 - 3 мм), так и на тыльную поверхность приклеиваемого штучного материала (1 - 2 мм).
8.2.7.8 Элементы декоративно-защитного финишного слоя устанавливают в проектное положение, обеспечивая их 100%-ный контакт с базовым слоем. Минимальная ширина шва между штучными материалами должна соответствовать 7.29.6.
8.2.7.9 Процесс устройства декоративно-защитного финишного слоя должен быть отражен в технологической карте в составе ППР. При производстве работ по его устройству составляют акты освидетельствования скрытых работ по форме, приведенной в приложении Е.
8.2.8 По окончании работ по устройству СФТК, параллельно с демонтажем строительных лесов, выполняют заделку мест крепления строительных лесов, в процессе которой проемы в системе заполняют теплоизоляционным материалом, аналогичным материалу теплоизоляционного слоя, используемого при устройстве СФТК на объекте производства работ. Теплоизоляционный материал устанавливают на сплошной слой клеевого состава без зазора с основным теплоизоляционным слоем. При устройстве армированного базового слоя рядовую фасадную стеклосетку укладывают с нахлестом не менее 100 мм на базу, выполненную на основной поверхности. Порядок проведения работ по заделке мест крепления строительных лесов должен быть указан в технологической карте, являющейся частью ППР.
8.2.9 Подоконные отливы устанавливают в соответствии с проектной документацией. Зазоры между поверхностью СФТК и краями отливов заполняют фасадным герметиком. Тип герметика указывают в ППР. Не допускается нарушение целостности системы в процессе установки оконных отливов.
8.2.10 По окончании установки на фасадах объекта производства работ дополнительного оборудования (кондиционеры, приборы освещения и т.п.) должна быть восстановлена целостность системы, а все примыкания элементов оборудования к СФТК должны быть герметизированы.
8.3.1 Выполнение работ по устройству СФТК в условиях пониженных температур (в диапазоне от плюс 5 °C до минус 10 °C) допускается с письменного согласия заказчика/генподрядчика. Для производства таких работ организация - производитель работ разрабатывает отдельный ППР, который должен быть согласован с системодержателем.
8.3.2 Работы по устройству СФТК в условиях пониженных температур следует проводить с учетом требований настоящего свода правил и следующих положений:
- температура наружного атмосферного воздуха на участке производства работ (вне пределов теплового контура) в течение всего срока проведения работ должна быть не ниже минус 10 °C;
- здание, на котором проводят установку СФТК, должно отапливаться по постоянной или временной схеме;
- температура воздуха внутри здания должна быть не ниже 5 °C, а относительная влажность воздуха - не выше 75%;
- работы проводят только со строительных лесов с устройством теплового контура;
- тепловой контур устраивают для проведения работ в случае, если средняя температура календарного месяца (по СП 131.13330) в регионе, в котором проводят работы по устройству СФТК, ниже 5 °C, а обогрев теплового контура выполняют в соответствии с положениями настоящего раздела;
- обогрев рабочей зоны внутри теплового контура должен быть начат не менее чем за 24 ч до начала работ по установке СФТК.
Примечание - При использовании клеевых и базовых составов, адаптированных к условиям пониженных температур, обогрев контура допускается начинать за 8 - 10 ч до начала работ по установке СФТК;
- тепловой контур должен быть больше участка производства работ (по ширине - на 2 м в каждую из сторон, по высоте - на один ярус лесов в каждую из сторон), но не более 150 м2 по фасаду;
- внутри теплового контура в течение всего срока проведения работ и не менее 72 ч (точное время определяется ППР) после их окончания должна поддерживаться постоянная температура не ниже 5 °C [при проведении работ по устройству теплоизоляционного слоя допускается кратковременное (не более чем на 30 мин) снижение температуры до 0 °C].
Примечание При использовании клеевых и базовых составов, адаптированных к условиям пониженных температур, внутри теплового контура в течение всего срока проведения работ и не менее 48 ч (точное время определяется ППР) после их окончания должна поддерживаться постоянная температура не ниже 0 °C,
- температуру внутри теплового контура следует контролировать в порядке, устанавливаемом ППР, но не реже одного раза в час при производстве работ и одного раза в 2 ч после их окончания; нарушения, выявленные при проведении контрольных измерений, должны быть немедленно устранены;
- контрольные измерения температуры наружного воздуха, температуры внутри теплового контура и температуры строительного раствора в момент укладки на участке производства работ должны выполняться ответственным(и) лицом(ами) в соответствии с инструкцией, разработанной производителем работ в рамках ППР (измерения ведут с помощью термометров по ГОСТ 28498, а результаты заносят в журнал учета выполненных работ);
- в краевых зонах теплового контура, в местах входа-выхода людей и подачи грузов должна быть предусмотрена дополнительная защита от проникновения внутрь холодного атмосферного воздуха и осадков; контроль температуры на этих участках должен быть усилен;
- не допускается наличие следов изморози на поверхности стены (для краевых зон производства работ);
- контроль за целостностью теплового контура должен осуществляться не реже чем два раза в сутки;
- обогрев участка проведения производства работ внутри теплового контура для обеспечения требуемых температурных условий производства работ должен осуществляться с помощью тепловентиляторов заводского изготовления с тепловой мощностью, обеспечивающей производство работ при минимально допустимой температуре.
Примечание - В краевых зонах теплового контура, на верхнем и нижнем ярусах строительных лесов в его составе следует устанавливать тепловентиляторы с повышенной на 25% тепловой мощностью;
- тепловентиляторы должны быть надежно закреплены на настилах строительных лесов; в зоне их работы должны быть размещены дополнительные первичные средства пожаротушения, а в ППР должны быть предусмотрены дополнительные мероприятия по электро- и пожаробезопасности, контроль за которыми следует осуществлять в соответствии с требованиями настоящего свода правил;
- исправность тепловентиляторов следует контролировать ежедневно, регламентные работы - в соответствии с паспортом устройства;
- обслуживание тепловентиляторов должно осуществляться обученным персоналом круглосуточно (не менее двух человек на один участок производства работ);
- должны быть предусмотрены дополнительные пути эвакуации людей из зоны производства работ.
8.3.3 Работы по устройству СФТК следует выполнять с использованием системных материалов, предусмотренных проектной документацией.
8.3.3.1 Для проведения работ по устройству теплоизоляционного и базового армированного слоя следует применять клеевые и базовые штукатурные составы на цементной основе, входящие в состав СФТК, соответствующие требованиям ГОСТ Р 59197 и ГОСТ Р 56707. Замена рядовых составов на адаптированные к условиям пониженных температур может быть осуществлена путем внесения в установленном порядке соответствующих изменений в проектную документацию.
8.3.3.2 Запрещаются самовольная замена системных материалов и применение любых противоморозных добавок в стандартных и специальных клеевых, базовых, декоративно-защитных и выравнивающих составах.
8.3.4 Дополнительно к требованиям, установленным 8.2, необходимо выполнять следующие положения:
- хранение клеевых, базовых, декоративно-защитных и выравнивающих составов следует осуществлять в заводской упаковке в закрытых складских помещениях при температуре не ниже 5 °C и относительной влажности воздуха не выше 60%;
- подготовку клеевых, базовых, декоративно-защитных и выравнивающих составов следует выполнять централизованно в специально отведенных помещениях, в которых должна поддерживаться постоянная температура воздуха (не ниже 15 °C);
- составы перед затворением водой не должны содержать льда и мерзлых комьев, а их температура перед затворением должна быть не ниже 5 °C;
- вода затворения должна иметь температуру (25 ± 2) °C;
- температура состава, готового к применению, должна быть не ниже 20 °C. Приготовленный состав должен быть выработан до начала потери подвижности, вызванного его подмерзанием;
- площадь контакта клеевого состава с основанием при устройстве клеевого слоя должна составлять (65 ± 5)% площади утепляемой поверхности;
- тарельчатые анкеры при производстве работ в условиях низких температур устанавливают в проектное положение сразу после монтажа теплоизоляционного слоя;
- минимальная технологическая пауза после приклеивания теплоизоляционных плит, нанесения базового защитного слоя и выравнивающего слоев при минимально допустимой температуре и максимальной влажности должна составлять 72 ч, а при нанесении декоративно-защитного финишного слоя - до полного его высыхания;
- устройство декоративно-защитных финишных слоев из штучных материалов в условия пониженных температур запрещается;
- допускается хранить на рабочем месте запас строительного раствора не более чем на 40 мин. Ящик для строительного раствора необходимо утеплять или подогревать. Использование схватившегося или повторно затворенного горячей водой строительного раствора не допускается.
8.3.5 Схема и порядок расстановки тепловентиляторов на строительных лесах, их тип и мощность, способ подачи теплого воздуха в рабочие зоны определяются индивидуально в зависимости от размеров и формы участка производства работ по установке СФТК и наличия тепловентиляторов различных типов.
8.3.6 На каждом объекте следует вести специальный журнал учета выполненных работ, содержащий данные о температурном режиме на участке работ. Лицо, осуществляющее контроль температурного режима, должно иметь право на остановку работ в случае несоблюдения регламента работ, и составление дефектной ведомости и принятие решения о необходимости проведения ремонтных работ на забракованных им участках.
8.3.7 При составлении актов о производстве работ по устройству СФТК в условиях пониженных температур в них следует указывать:
- расположение участка проведения работ;
- время проведения работ (устройство каждого из слоев), включая периоды технологических перерывов;
- температуру наружного воздуха во время проведения работ.
8.4.1 Независимо от степени огнестойкости, класса конструктивной и функциональной пожарной опасности здания и сооружения площадь теплоизоляционного слоя из пенополистирола, временно незащищенного армированным базовым слоем, не должна превышать 200 м2 при суммарной толщине теплоизоляционного слоя из пенополистирола в СФТК не более 200 мм, причем высота этой площади не должна превышать 12 м.
Примечание - Допускается выполнять монтаж СФТК с комбинированным теплоизоляционным слоем одновременно на нескольких участках фасада здания (сооружения) при условии, что на каждом участке площадь временно незащищенного армированным штукатурным слоем пенополистирола не превысит указанных выше размеров, а между участками будут обеспечены разрывы не менее 5 м по горизонтали и вертикали.
8.4.2 Независимо от степени огнестойкости, класса конструктивной и функциональной пожарной опасности здания при устройстве СФТК и последующем выполнении любых видов работ на и возле фасада следует соблюдать требования [4].
8.4.3 Площадь и толщина пустот (воздушных зазоров) в СФТК между основанием (наружной стеной) и теплоизоляционным слоем должны быть не более 1,5 м2 и более 30 мм соответственно.
8.4.4 При устройстве СФТК и при монтаже дополнительного информационного, осветительного и другого оборудования, при проведении ремонтных и других видов работ, выполняемых по окончании работ по устройству СФТК, следует исключить попадание открытого пламени, искр, горящих, тлеющих и нагретых до высоких температур частиц на поверхность элементов СФТК, а также нагрев последних выше допустимых (паспортных) температур их эксплуатации.
8.4.5 При производстве работ по устройству СФТК с теплоизоляционным слоем с использованием горючей или трудногорючей теплоизоляции (пенопластов) на суммарной площади более 1000 м2 для целей пожаротушения должно быть предусмотрено устройство временного противопожарного водопровода.
Примечание - Расстояние между пожарными кранами следует принимать из условия подачи воды в любую точку не менее чем двумя струями с расходом 5 л/с каждая. Здания и бытовые помещения должны быть обеспечены средствами пожаротушения из расчета два огнетушителя на 100 м2 утепляемой одновременно поверхности и средствами связи для вызова пожарной охраны в случае возникновения пожара.
8.4.6 Использование первичных средств пожаротушения для хозяйственных и прочих нужд, не связанных с тушением пожара, не допускается. Огнетушители следует содержать в исправном состоянии, периодически осматривать, проверять и перезаряжать в соответствии с требованиями, указанными в их паспорте.
При расстановке огнетушителей необходимо соблюдать условие о непревышении расстоянием от возможного очага пожара до места размещения огнетушителя 20 м.
Примечание - В холодное время года (при температуре наружного воздуха, близкой к 0 °C) временно неиспользуемые огнетушители следует хранить в отапливаемых помещениях, на дверях которых должна быть надпись "Огнетушители".
8.4.7 Запрещается выполнение работ по установке теплоизоляционного слоя и устройству армированного базового и декоративно-защитного финишного слоев с использованием горючих или трудногорючих материалов одновременно со сварочными и другими пожароопасными видами работ.
Примечание - Запрещается пользоваться открытым пламенем на строительных лесах и в местах хранения горючих материалов при производстве работ по устройству СФТК.
8.4.8 Количество горючих материалов на участке производства работ по устройству СФТК не должно превышать сменной потребности. По окончании смены производитель работ или официально назначенное им ответственное лицо проводят осмотр рабочих мест, которые должны быть приведены в противопожарное состояние. Запрещается оставлять неиспользованные горючие и трудногорючие материалы внутри здания и на средствах подмащивания.
8.4.9 При монтаже трудногорючих материалов, а также при использовании оборудования для технологических процессов, имеющего повышенную пожарную опасность, следует вывешивать стандартные знаки пожарной безопасности по ГОСТ 12.4.026.
8.4.10 При обнаружении пожара или признаков горения (задымления, запаха гари, повышения температуры и т.п.) необходимо немедленно сообщить об этом в пожарную охрану, принять все возможные меры по эвакуации людей, тушению пожара и обеспечению сохранности материальных ценностей.
8.5.1 До начала производства работ по монтажу СФТК производитель работ должен разработать:
- ППР на монтаж СФТК и смежные виды работ;
- ППР на установку строительных лесов с учетом требований ГОСТ 27321.
8.5.2 При разработке ППР должны быть учтены действующие нормативные документы по технике безопасности в строительстве.
8.5.3 В процессе производства работ по монтажу СФТК следует осуществлять постоянный контроль за состоянием охраны труда. Оперативный контроль соблюдения стандартов, правил, норм и инструкций по безопасности труда, ведения журналов по безопасности и соблюдения норм безопасности при проведении работ по устройству СФТК осуществляет руководитель подразделения организации, производящей работы.
8.5.4 Служба охраны труда или ответственное лицо организации производителя работ контролируют соблюдение требований безопасности труда на всех этапах подготовки и проведения работ. Ответственное лицо проводит требуемые законодательством инструктажи и ведет журналы учета по технике безопасности. Каждый журнал должен быть пронумерован, прошнурован, подписан лицом, ответственным за его ведение, и скреплен печатью организации - производителя работ.
8.5.5 Ежедневно перед началом работы (смены) мастер (прораб) участка совместно с уполномоченным инспектором по охране труда (или уполномоченным по охране труда организации - производителя работ) должны осуществлять проверку:
- состояния строительных лесов и иных средств подмащивания;
- состояния рабочих мест и проходов;
- исправности осветительных установок;
- состояния производственного оборудования, приспособлений и инструмента;
- наличия и состояния спецодежды, средств индивидуальной защиты;
- обеспечения электробезопасности и пожарной безопасности.
Результаты проверки записывают в журнал проверки охраны труда и журнал техники безопасности участка, а при обнаружении недостатков принимают немедленные меры по их устранению.
8.5.6 Ввод в эксплуатацию строительных лесов и иных средств подмащивания, предусмотренных ППР, допускается после приемки комиссией, назначаемой руководителем строительной организации, и регистрируется в журнале учета по ГОСТ 24258. Журнал должен быть пронумерован, прошнурован, подписан лицом, ответственным за его ведение, и скреплен печатью организации - производителя работ.
8.5.7 В случае нахождения людей или транспорта вблизи лесов и при выполнении работ на высоте 6 м и более должно быть не менее двух настилов: рабочего (верхний) и защитного (нижний). Рабочее место на лесах должно быть защищено сверху настилом, расположенным на высоте не более 2 м от рабочего настила. Над подъездами и входами зданий должен быть установлен защитный козырек. Дополнительно следует предусмотреть меры, обеспечивающие безопасный спуск людей с рабочего места при возникновении аварийной ситуации.
8.5.8 При производстве работ по устройству СФТК не допускаются хранение и складирование строительных материалов на строительных лесах и других средствах подмащивания, а также в подвалах, на лестничных клетках, проходах и иных местах, не предназначенных для их хранения. При выполнении работ материалы не должны попадать внутрь эксплуатируемых помещений. При хранении материалов следует применять защитные и укрывные материалы.
Запрещается устройство склада хранения материалов на строительных лесах и других средствах подмащивания.
8.5.9 Работы по устройству СФТК следует выполнять с использованием штатного электроинструмента заводского изготовления, имеющего паспорт и прошедшего проверку безопасности, которая проводится перед началом работ на объекте и не реже чем один раз в 3 мес в процессе устройства СФТК. Результаты испытаний фиксируют в журнале учета электроинструмента и вспомогательного оборудования к нему, форма которого установлена в [6]. Журнал должен быть пронумерован, прошнурован, подписан лицом, ответственным за его ведение, и скреплен печатью организации - производителя работ.
8.5.10 Все работники организации - производителя работ должны допускаться к работе только после прохождения инструктажа по пожарной безопасности, а при изменении специфики работы - проходить дополнительное обучение по предупреждению и тушению возможных пожаров в порядке, установленном руководителем организации - производителя работ. Рабочие должны иметь спецодежду, средства индивидуальной защиты (каски, предохранительные пояса), а также иметь квалификацию, соответствующую выполняемым работам и подтвержденную соответствующим допуском. Факт проведения инструктажа фиксируют в журнале по пожарной безопасности. Журнал должен быть пронумерован, прошнурован, подписан лицом, ответственным за его ведение, и скреплен печатью организации - производителя работ.
8.5.11 Пожарная безопасность на рабочих местах должна быть обеспечена в соответствии с требованиями [2] и ГОСТ 12.1.004.
9.1 В процессе эксплуатации СФТК ответственное лицо (управляющая организация) обязано обеспечивать проведение периодического контроля (планового осмотра) состояния СФТК не реже одного раза в течение календарного года.
9.2 Внеплановые осмотры состояния СФТК следует назначать после природных или техногенных воздействий, характер и интенсивность которых превышают установленные значения для эксплуатируемой СФТК.
9.3 По результатам планового осмотра состояния СФТК определяют необходимость текущего или капитального ремонта СФТК.
9.4 Основными критериями необходимости проведения текущего ремонта являются:
- затекание дождевой воды внутрь СФТК;
- выцветание (обесцвечивание цветных декоративных и окрашенных поверхностей) и (или) высолы (белый налет на поверхности стен);
- сколы, трещины, расслоение или другое структурное ухудшение в штукатурных слоях СФТК;
- повреждение стен от механического воздействия;
- неровности, наплывы или другие дефекты, которые могут требовать исправлений.
9.5 Текущий ремонт СФТК также следует выполнять после выявления сопутствующих дефектов, послуживших причиной повреждения фасада:
- повреждения кровли и водосточной системы;
- нарушения тепловлажностного режима эксплуатации здания;
- отсутствие защитных упоров дверей, люков;
- разрушение или отсутствие герметизации зон примыкания коммуникаций и др.
9.6 Все выявленные сопутствующие дефекты подлежат устранению до или в ходе текущего ремонта. Температурные условия при ремонтных работах должны соответствовать требованиям к условиям применения отделочных материалов.
9.7 При наличии значительных повреждений теплоизоляционного слоя или высокой плотности размещения местных разрушений на каком-либо участке стены их ремонт следует проводить в соответствии с проектом, разработанным на основании обследования.
9.8 Капитальный ремонт СФТК следует выполнять на основании решения комиссии, проводящей плановый (внеплановый) осмотр состояния конструкций здания или сооружения.
9.9 Помимо указанного в 9.8 капитальный ремонт СФТК следует выполнять после выявления сопутствующих дефектов, послуживших причиной повреждения фасада:
- выявление снижения термического сопротивления наружных стен более чем на 15% по отношению к требуемому сопротивлению теплопередаче ограждающей конструкции;
- накопление количества дефектов, зафиксированных в ходе проведения плановых осмотров, вследствие нарушения периодичности текущих ремонтов;
- наступление аварийной ситуации или стихийных бедствий, связанных с сильным повреждением фасада.
Примечания
1 Перед наступлением срока проведения первого и последующих капитальных ремонтов снижение уровня теплотехнических характеристик необходимо оценивать по ГОСТ Р 56623, теплопроводность отобранных проб материала теплоизоляционного слоя - по ГОСТ 7076, однородность температурных полей стен по фасаду - методом тепловизионного обследования по ГОСТ 26629. Для выполнения данных работ следует привлекать профильную организацию, имеющую соответствующий допуск или аккредитацию.
2 Капитальный ремонт следует проводить в соответствии с проектом, разработанным на основании обследования и классификации дефектов фасада, а также с учетом действующих нормативных документов и технической документации системодержателя.
9.10 Основные положения по ремонту СФТК приведены в приложении К.
Приложение А

1 - уплотнительная лента или примыкающий профиль с уплотнительной лентой; 2 - тарельчатый анкер; 3 - основание; 4 - пропитывающий укрепляющий грунт <*>; 5 - клеевой слой; 6 - теплоизоляционный слой; 7 - армированный базовый штукатурный слой; 8 - фасадная стеклосетка; 9 - адгезионный грунт <*>; 10 - декоративно-защитный финишный слой; 11 - окрасочный состав <*>
--------------------------------
<*> Применяется при необходимости согласно документации системодержателя.
Рисунок А.1 - Примыкание системы к кровле

1 - основание; 2 - пропитывающий укрепляющий грунт <*>; 3 - клеевой слой; 4 - теплоизоляционный слой; 5 - тарельчатый анкер; 6 - армированный базовый штукатурный слой; 7 - фасадная стеклосетка; 8 - адгезионный грунт <*>; 9 - декоративно-защитный финишный слой; 10 - окрасочный состав <*>; 11 - уплотнительная лента или примыкающий профиль с уплотнительной лентой
--------------------------------
<*> Применяется при необходимости согласно документации системодержателя.
Рисунок А.2 - Примыкание системы к плоской кровле с выносным парапетом

1 - тарельчатый анкер; 2 - основание; 3 - пропитывающий укрепляющий грунт <*>; 4 - клеевой слой; 5 - теплоизоляционный слой; 6 - армированный базовый штукатурный слой; 7 - фасадная стеклосетка; 8 - адгезионный грунт <*>; 9 - декоративно-защитный финишный слой; 10 - окрасочный состав <*>; 11 - козырек парапета (по проекту); 12 - уплотнительная лента или примыкающий профиль с уплотнительной лентой; 13 - гидроизоляция; 14 - стяжка; 15 - теплоизоляционный слой
--------------------------------
<*> Применяется при необходимости согласно документации системодержателя.
Рисунок А.3 - Завершение системы на парапете

1 - основание; 2 - пропитывающий укрепляющий грунт <*>; 3 - клеевой слой; 4 - теплоизоляционный слой; 5 - тарельчатый анкер; 6 - армированный базовый штукатурный слой; 7 - фасадная стеклосетка; 8 - адгезионный грунт <*>; 9 - декоративно-защитный финишный слой; 10 - цокольный профиль; 11 - уплотнительная лента или примыкающий профиль с уплотнительной лентой; 12 - окрасочный состав <*>; 13 - гидроизоляция; 14 - теплоизоляционный слой из экструдированного пенополистирола; 15 - фасадный герметик; 16 - отмостка с подготовкой (по проекту)
--------------------------------
<*> Применяется при необходимости согласно документации системодержателя.
Рисунок А.4 - Примыкание системы к утепляемому цоколю

1 - основание; 2 - пропитывающий укрепляющий грунт <*>; 3 - клеевой слой; 4 - теплоизоляционный слой; 5 - тарельчатый анкер; 6 - армированный базовый штукатурный слой; 7 - фасадная стеклосетка; 8 - адгезионный грунт <*>; 9 - фасадный герметик или примыкающий профиль с уплотнительной лентой; 10 - уплотнительная лента или полиуретановая пена; 11 - угловой профиль с фасадной стеклосеткой; 12 - окрасочный состав <*>; 13 - декоративно-защитный финишный слой
--------------------------------
<*> Применяется при необходимости согласно документации системодержателя.
Рисунок А.5 - Примыкание системы сбоку к окнам (дверям), установленным в плоскости со стеной

1 - основание; 2 - пропитывающий укрепляющий грунт <*>; 3 - клеевой слой; 4 - теплоизоляционный слой; 5 - тарельчатый анкер; 6 - армированный базовый штукатурный слой; 7 - фасадная стеклосетка; 8 - адгезионный грунт <*>; 9 - декоративно-защитный финишный слой; 10 - окрасочный состав <*>; 11 - угловой профиль-капельник с фасадной стеклосеткой; 12 - уплотнительная лента или полиуретановая пена; 13 - фасадный герметик или примыкающий профиль с уплотнительной лентой
--------------------------------
<*> Применяется при необходимости согласно документации системодержателя.
Рисунок А.6 - Примыкание системы сверху к окнам (дверям), установленным в плоскости со стеной

1 - фасадный герметик; 2 - уплотнительная лента; 3 - основание; 4 - пропитывающий укрепляющий грунт <*>; 5 - клеевой слой; 6 - теплоизоляционный слой; 7 - тарельчатый анкер; 8 - армированный базовый штукатурный слой; 9 - фасадная стеклосетка; 10 - адгезионный грунт <*>; 11 - декоративно-защитный финишный слой; 12 - окрасочный состав <*>
--------------------------------
<*> Применяется при необходимости согласно документации системодержателя.
Рисунок А.7 - Примыкание системы к подоконному отливу

1 - основание; 2 - пропитывающий укрепляющий грунт <*>; 3 - клеевой слой; 4 - теплоизоляционный слой; 5 - тарельчатый анкер; 6 - армированный базовый штукатурный слой; 7 - фасадная стеклосетка; 8 - адгезионный грунт <*>; 9 - декоративно-защитный финишный слой; 10 - окрасочный состав <*>
--------------------------------
<*> Применяется при необходимости согласно документации системодержателя.
Рисунок А.8 - Установка системы на внутреннем углу здания

1 - основание; 2 - пропитывающий укрепляющий грунт <*>; 3 - клеевой слой; 4 - теплоизоляционный слой; 5 - тарельчатый анкер; 6 - армированный базовый штукатурный слой; 7 - фасадная стеклосетка; 8 - адгезионный грунт <*>; 9 - декоративно-защитный финишный слой; 10 - окрасочный состав <*>; 11 - угловой профиль с фасадной стеклосеткой
--------------------------------
<*> Применяется при необходимости согласно документации системодержателя.
Рисунок А.9 - Установка системы на внешнем углу здания

1 - основание; 2 - пропитывающий укрепляющий грунт <*>; 3 - клеевой слой; 4 - теплоизоляционный слой; 5 - тарельчатый анкер; 6 - армированный базовый штукатурный слой; 7 - фасадная стеклосетка; 8 - адгезионный грунт <*>; 9 - декоративно-защитный финишный слой; 10 - окрасочный состав <*>; 11 - фасадный герметик или примыкающий профиль с уплотнительной лентой; 12 - уплотнительная лента или полиуретановая пена
--------------------------------
<*> Применяется при необходимости согласно документации системодержателя.
Рисунок А.10 - Примыкание системы к существующей системе теплоизоляции

1 - основание; 2 - пропитывающий укрепляющий грунт <*>; 3 - клеевой слой; 4 - теплоизоляционный слой; 5 - тарельчатый анкер; 6 - армированный базовый штукатурный слой; 7 - фасадная стеклосетка; 8 - деформационный профиль; 9 - адгезионный грунт <*>; 10 - декоративно-защитный финишный слой; 11 - окрасочный состав <*>
--------------------------------
<*> Применяется при необходимости согласно документации системодержателя.
Рисунок А.11 - Установка углового деформационного профиля

1 - облицовочный слой системы вентилируемого фасада; 2 - крепежный элемент системы вентилируемого фасада; 3 - уплотнительная лента или примыкающий профиль с уплотнительной лентой; 4 - торцевой профиль системы вентилируемого фасада; 5 - основание; 6 - пропитывающий укрепляющий грунт <*>; 7 - клеевой слой; 8 - теплоизоляционный слой; 9 - тарельчатый анкер; 10 - армированный базовый штукатурный слой; 11 - фасадная стеклосетка; 12 - адгезионный грунт <*>; 13 - декоративно-защитный финишный слой; 14 - окрасочный состав <*>
--------------------------------
<*> Применяется при необходимости согласно документации системодержателя.
Рисунок А.12 - Примыкание системы к конструкции вентилируемого фасада

1 - армированный базовый штукатурный слой; 2 - фасадная стеклосетка; 3 - адгезионный грунт <*>; 4 - декоративно-защитный финишный слой; 5 - тарельчатый анкер; 6 - основание; 7 - пропитывающий укрепляющий грунт <*>; 8 - клеевой слой; 9 - теплоизоляционный слой; 10 - окрасочный состав <*>; 11 - крепежный элемент системы вентилируемого фасада; 12 - облицовочный слой системы вентилируемого фасада
--------------------------------
<*> Применяется при необходимости согласно документации системодержателя.
Рисунок А.13 - Примыкание системы к конструкции вентилируемого фасада на внутренних углах

1 - основание; 2 - облицовочный слой системы вентилируемого фасада; 3 - крепежный элемент системы вентилируемого фасада; 4 - торцевой профиль системы вентилируемого фасада; 5 - уплотнительная лента или примыкающий профиль с уплотнительной лентой; 6 - окрасочный состав <*>; 7 - декоративно-защитный финишный слой; 8 - адгезионный грунт <*>; 9 - фасадная стеклосетка; 10 - армированный базовый штукатурный слой; 11 - тарельчатый анкер; 12 - теплоизоляционный слой; 13 - клеевой слой; 14 - пропитывающий укрепляющий грунт <*>
--------------------------------
<*> Применяется при необходимости согласно документации системодержателя.
Рисунок А.14 - Примыкание системы к конструкции вентилируемого фасада сбоку
Приложение Б
Б.1 В настоящем приложении установлены основные положения проведения и обработки результатов натурных испытаний по определению среднего значения нагрузки и расчетного сопротивления тарельчатого анкера вытягивающему усилию из основания (анкерного крепления СФТК).
Б.2 Общие положения
Б.2.1 Несущая способность отдельного анкерного крепления СФТК определяется минимальным значением вытягивающего усилия, приложенного вдоль оси установленного в строительном основании единичного тарельчатого анкера, при котором происходят потеря его устойчивости или разрушение.
Б.2.2 Несущая способность от отдельного анкерного крепления определяется по результатам статического испытания на его вытягивание из основания путем приложения нарастающей нагрузки.
Б.2.3 Проведение натурных испытаний должно осуществляться представителями организации, аккредитованной (уполномоченной) на проведение данных работ в установленном порядке.
Б.3 Требования к испытательному оборудованию
Б.3.1 Для определения вытягивающего усилия единичного анкерного крепления следует применять испытательное оборудование, обеспечивающее надежный захват тарельчатого элемента анкера и приложение вытягивающего усилия перпендикулярно плоскости основания (вдоль оси тарельчатого анкера).
Б.3.2 Конструкция испытательного оборудования должна предусматривать возможность нагружения испытуемого анкерного крепления с постоянной скоростью и достаточным усилием до его разрушения.
Б.3.3 Конструкция испытательного оборудования должна предусматривать не менее трех опорных стоек, независимо регулируемых по высоте равноудаленных от центральной оси оборудования и обеспечивающих плотное прилегание к строительному основанию.
Б.3.4 Допускается использовать оборудование, предназначенное для определения предела прочности сцепления материалов с основанием (адгезии), при условии обеспечения вышеуказанных требований.
Б.3.5 Диапазон измерений испытательного оборудования должен находиться в пределах 0,4 - 25 кН с погрешностью измерения усилия не более ± 2%.
Б.4 Подготовка и проведение испытаний
Б.4.1 Испытания проводят непосредственно на объекте капитального строительства после набора строительным основанием проектной прочности.
Б.4.2 Перед началом испытаний в присутствии представителя испытательной организации на выбранных участках проводят установку требуемого количества тарельчатых анкеров.
Б.4.3 Технология установки тарельчатых анкеров должна соответствовать технической документации изготовителя и требованиям настоящего свода правил.
Б.4.4 Испытания тарельчатых анкеров проводят сериями по 15 шт. для каждого вида основания, подготовленного под установку СФТК. Если площадь одного вида основания превышает 3000 м2 количество серий испытаний увеличивают кратно целому значению отношения площади основания к 3000 м2. Допускается сократить количество анкеров, подлежащих испытанию в серии, до 5 шт. при повторении результатов первых пяти значений с отклонением не более 5% и коэффициенте вариации v не более 5%.
Б.4.5 В случае явной разнородности материала основания (монолитный каркас с заполнением различными видами штучных материалов и т.п.) испытания проводят на каждом из участков, а расчетное сопротивление тарельчатых анкеров вытягивающему усилию из основания принимают по наименьшему полученному результату испытаний.
Б.4.6 Испытание анкерного крепления проводят путем приложения к тарельчатому анкеру вытягивающего усилия с постоянной скоростью, доводя анкерное крепление до разрушения в течение 1 - 2 мин. В качестве единичных результатов испытаний анкерного крепления Ni принимают максимальное значение вытягивающей нагрузки на анкер по достижении одного из перечисленных состояний:
- разрушение основания в месте установки тарельчатого анкера;
- разрушение тарельчатого анкера;
- окончание зоны упругих деформаций, сопровождаемое проскальзыванием с последующим вытягиванием тарельчатого анкера из основания или распорного элемента и характеризуемое снижением сопротивления вытягивающему усилию.
Б.5 Обработка результатов
Б.5.1 Характеристики несущей способности тарельчатого анкера определяют исходя из единичных значений разрушающей нагрузки.
Б.5.2 Из ряда полученных единичных значений вытягивающего усилия исключают значения, отличающиеся от среднего более чем на 20%.
Б.5.3 В серии оставшихся единичных результатов испытаний Ni, кН, рассчитывают среднее значение нагрузки N, среднее квадратическое отклонение единичных значений нагрузки S, кН, и коэффициент вариации v, %, по формулам:
, (Б.1)
, (Б.2)
, (Б.3)
где Ni - единичное значение нагрузки в серии результатов испытаний, кН;
n - число результатов в серии испытаний.
Б.5.4 Расчетное сопротивление тарельчатого анкера вытягивающему усилию из основания Fр, кН, по результатам натурных испытаний определяют по формуле
, (Б.4)
где N - среднее значение разрушающей нагрузки, определяемое в серии результатов испытаний по формуле (Б.1), кН;
t - коэффициент Оуэна, соответствующий нижней границе несущей способности анкера с обеспеченностью 0,95 при достоверности 90%, принимаемый по таблице Б.1;
m - коэффициент надежности по материалу, характеризующий, в том числе, среднее соотношение между разрушающей нагрузкой и нагрузкой, соответствующей окончанию зоны упругих деформаций. Для тарельчатых анкеров значение коэффициента m принимают равным 5.
|
Число единичных результатов испытаний, принятых в расчете n |
Значение коэффициента t |
|
5 |
3,400 |
|
6 |
3,091 |
|
7 |
2,894 |
|
8 |
2,755 |
|
9 |
2,649 |
|
10 |
2,568 |
|
11 |
2,503 |
|
12 |
2,448 |
|
13 |
2,403 |
|
14 |
2,363 |
|
15 |
2,329 |
Б.5.5 Результаты испытаний оформляют протоколом, в котором должна быть приведена следующая информация:
- наименование и реквизиты организации, проводившей испытания;
- наименование и реквизиты заказчика проведения испытаний;
- основание для проведения испытаний;
- ответственные исполнители;
- место проведения испытаний;
- дата проведения испытаний;
- температура окружающей среды;
- тип и материал основания;
- визуальная оценка состояния основания;
- марка, тип и длина тарельчатого анкера;
- глубина заделки тарельчатого анкера в основание;
- метод сверления отверстия (ударный/безударный), диаметр бура;
- марка средства измерений;
- единичные результаты испытаний;
- среднее арифметическое значение нагрузки;
- среднее квадратическое отклонение и коэффициент вариации;
- расчетное сопротивление тарельчатого анкера вытягивающему усилию из основания;
- подписи лиц, ответственных за проведение испытаний.
Приложение В
В.1 Настоящая методика основана на СП 20.13330 и устанавливает основные положения расчета требуемого количества тарельчатых анкеров на единицу площади СФТК. Расчет выполняют в целях обеспечения надежности крепления фасадной системы к строительному основанию; расчет включает:
- определение расчетного сопротивления тарельчатого анкера вытягивающему усилию из основания;
- расчет пиковой ветровой нагрузки, воздействующей на конструкцию СФТК;
- расчет требуемого количества тарельчатых анкеров на единицу площади СФТК.
В.2 Определение расчетного сопротивления тарельчатого анкера вытягивающему усилию из основания выполняют по результатам натурных испытаний согласно приложению Б.
В.3 Расчет пиковой ветровой нагрузки, воздействующей на конструкцию СФТК, выполняется согласно положениям В.3.1 - В.3.4.
В.3.1 При определении надежности крепления СФТК рассматривают пиковые воздействия ветровой нагрузки, направленные на отрыв фасадной системы от конструкции здания.
В.3.2 Пиковую ветровую нагрузку w+(-), кПа, рассчитывают с точностью до второго знака после запятой по формуле
w+(-)=w0k(ze)[1+ζ(ze)]cpν+(-), (В.1)
где w0 - нормативное значение давления ветра, кПа, принимаемое по таблице В.1 в зависимости от ветрового района в местности расположения здания. Ветровые районы принимают по СП 20.13330.2016 (приложение Ж, карта 2);
ze - эквивалентная высота, м;
k(ze) и ζ(ze) - коэффициенты, учитывающие изменения давления и пульсаций давления ветра соответственно на высоте ze, определяются по таблице В.2;
cp - пиковые значения аэродинамических коэффициентов, для прямоугольных в плане зданий допускается принимать:
- в рядовой зоне фасада cp = -1,2;
- в угловой зоне, равной 1/10 части длины фасада, cp = -2,2.
|
Ветровые районы |
Ia |
I |
II |
III |
IV |
V |
VI |
VII |
|
w0, кПа |
0,17 |
0,23 |
0,30 |
0,38 |
0,48 |
0,60 |
0,73 |
0,85 |
|
Высота ze, м |
Коэффициент k(ze) для типов местности |
Коэффициент ζ(ze) для типов местности | ||||
|
A |
B |
C |
A |
B |
C | |
|
≤ 5 |
0,75 |
0,5 |
0,4 |
0,85 |
1,22 |
1,78 |
|
10 |
1,0 |
0,65 |
0,4 |
0,76 |
1,06 |
1,78 |
|
20 |
1,25 |
0,85 |
0,55 |
0,69 |
0,92 |
1,50 |
|
40 |
1,5 |
1,1 |
0,8 |
0,62 |
0,80 |
1,26 |
|
60 |
1,7 |
1,3 |
1,0 |
0,58 |
0,74 |
1,14 |
|
80 |
1,85 |
1,45 |
1,15 |
0,56 |
0,70 |
1,06 |
|
100 |
2,0 |
1,6 |
1,25 |
0,54 |
0,67 |
1,00 |
|
150 |
2,25 |
1,9 |
1,55 |
0,51 |
0,62 |
0,90 |
|
Примечание - Эквивалентную высоту для зданий ze принимают по таблице В.3. | ||||||
|
Отношение высоты здания к размеру здания |
Значение ze |
|
h ≤ d |
ze = h |
|
d < h ≤ 2d |
Для z ≥ h - d ze = h Для 0 < z < h - d ze = d |
|
h > 2d |
Для z ≥ h - d ze = h Для d < z < h - d ze = z Для 0 < z ≤ d ze = d |
|
Примечание - z - высота расчетной точки от поверхности земли; h - высота здания; d - размер здания (без учета его стилобатной части) в направлении, перпендикулярном расчетному направлению ветра (поперечный размер). | |
Для остальных типов строения зданий коэффициент cp определяют согласно СП 20.13330;
v+(-) - коэффициент корреляции ветровой нагрузки, для стен площадью более 20 м2 принимают равным 0,65.
В.3.3 При расчете по таблице В.2 принимают следующие типы местности:
A - открытые побережья морей, озер и водохранилищ, сельские местности, в том числе с постройками высотой менее 10 м, пустыни, степи, лесостепи, тундра;
B - городские территории, лесные массивы и другие местности, равномерно покрытые препятствиями высотой более 10 м;
C - городские районы с плотной застройкой зданиями высотой более 25 м.
В.3.4 Сооружение считается расположенным в местности данного типа, если эта местность сохраняется с наветренной стороны сооружения на расстоянии 30h - при высоте сооружения h до 60 м и на расстоянии 2 км - при h > 60 м.
В.4 Расчет требуемого количества тарельчатых анкеров на единицу площади СФТК, шт./м2, выполняют с учетом расчетных ветровых нагрузок, действующих на СФТК, и расчетного сопротивления тарельчатых анкеров вытягивающему усилию из основания по формуле
Ndm = [w-(+)]/Fрч (В.2)
где w+(-) - пиковая ветровая нагрузка, кПа (кН/м2), определяемая по формуле (В.1);
Fрч - расчетное сопротивление тарельчатого анкера вытягивающему усилию из основания, кН, согласно приложению Б.
В.5 Полученные значения Ndm округляют в большую сторону до первого знака после запятой. Если полученное по формуле (В.2) значение Ndm ниже минимально допускаемого значения Ndm = 5, принимают конечный результат согласно минимальному допуску.
В.6 Примеры расчета требуемого количества тарельчатых анкеров на единицу площади СФТК для объектов, расположенных в различных ветровых районах
В.6.1 Пример расчета требуемого количества на единицу площади СФТК с комбинированной теплоизоляцией тарельчатых анкеров с расчетным сопротивлением тарельчатого анкера вытягивающему усилию из основания 0,2 кН, для прямоугольного в плане здания высотой 40 м (ветровой район III, тип местности B).
Исходные данные:
- нормативное значение давления ветра w0 = 0,38 кПа;
- эквивалентная высота здания ze = 40 м;
- коэффициент изменения давления ветра k(ze) = 1,1;
- коэффициент пульсаций давления ветра ζ(ze)=0,8;
- пиковые значения аэродинамических коэффициентов:
- в рядовой зоне фасада cp = -1,2;
- в угловой зоне cp = -2,2;
- коэффициент корреляции ветровой нагрузки v+(-) = 0,65;
- расчетное сопротивление тарельчатого анкера вытягивающему усилию из основания Fр = 0,2 кН.
Расчет пиковой ветровой нагрузки на фасад здания:
- пиковая ветровая нагрузка для рядовой зоны здания согласно формуле (В.1) составляет:
w+(-) = 0,38·1,1·[1 + 0,8]·(-1,2)·0,65 = -0,59 кПа (кН/м2);
- пиковая ветровая нагрузка для угловой зоны здания согласно формуле (В.1) составляет:
w+(-) = 0,38·1,1·[1 + 0,8]·(-2,2)·0,65 = -1,08 кПа (кН/м2).
Расчет требуемого количества тарельчатых анкеров на единицу площади СФТК:
- для рядовой зоны фасада здания требуемое количество тарельчатых анкеров на единицу площади СФТК согласно формуле (В.2) составляет:
Ndm = [-0,68]/0,2 = 3,4 шт./м2.
Согласно требованию настоящего свода правил принимают минимально допустимое значение Ndm = 5 шт./м2;
- для угловой зоны фасада здания требуемое количество тарельчатых анкеров на единицу площади СФТК согласно формуле (В.2) составляет:
Ndm = [-1,26]/0,2 = 6,3 шт./м2.
В.6.2 Пример расчета требуемого количества на единицу площади СФТК с теплоизоляцией из минераловатных плит тарельчатых анкеров с расчетным сопротивлением тарельчатого анкера вытягивающему усилию из основания 0,25 кН, для прямоугольного в плане здания высотой 40 м, расположенного на открытом побережье (ветровой район IV, тип местности A).
Исходные данные:
- нормативное значение давления ветра w0 = 0,48 кПа;
- эквивалентная высота здания ze = 40 м;
- коэффициент изменения давления ветра k(ze) = 1,5;
- коэффициент пульсаций давления ветра ζ(ze)=0,62;
- пиковые значения аэродинамических коэффициентов:
- в рядовой зоне фасада cp = -1,2;
- в угловой зоне cp = -2,2;
- коэффициент корреляции ветровой нагрузки v+(-) = 0,65;
- расчетное сопротивление тарельчатого анкера вытягивающему усилию из основания Fр = 0,25 кН.
Расчет пиковой ветровой нагрузки на фасад здания:
- пиковая ветровая нагрузка для рядовой зоны здания согласно формуле (В.1) составляет:
w+(-) = 0,48·1,5·[1 + 0,62]·(-1,2)·0,65 = -0,91 кПа (кН/м2);
- пиковая ветровая нагрузка для угловой зоны здания согласно формуле (В.1) составляет:
w+(-) = 0,48·1,5·[1 + 0,62]·(-2,2)·0,65 = -1,67 кПа (кН/м2).
Расчет требуемого количества тарельчатых анкеров на единицу площади СФТК:
- для рядовой зоны фасада здания требуемое количество тарельчатых анкеров на единицу площади СФТК согласно формуле (В.2) составляет:
Ndm = [-0,91]/0,25 = 3,6 шт./м2.
Согласно требованию настоящего свода правил принимают минимально допустимое значение Ndm = 5 шт./м2;
- для угловой зоны фасада здания требуемое количество тарельчатых анкеров на единицу площади СФТК согласно формуле (В.2) составляет:
Ndm = [-1,67]/0,25 = 6,7 шт./м2.
Приложение Г
КАРТА КОНТРОЛЯ
выполненных работ по устройству системы фасадной
теплоизоляционной композиционной с наружными штукатурными
слоями и требования к их результатам
___________________________________________________________________________
(наименование организации - производителя работ)
ОГРН ___________ ИНН ___________ Номер свидетельства о допуске ____________
___________________________________________________________________________
(сведения об объекте)
___________________________________________________________________________
(основание для проведения проверки)
___________________________________________________________________________
(наименование организации, проводящей проверку)
Тип проверки (нужное подчеркнуть):
Выездная
Документарная
|
N п/п |
Элемент контроля |
Подлежит проверке |
Требования, предъявляемые при проведении работ |
Способ проверки соответствия |
Результат |
Приложение, примечание | |
|
Норма |
Соответствие ("+", "-") | ||||||
|
Этап 1: Организация строительного производства | |||||||
|
1.1 |
Контракт (Договор) на выполнение работ по устройству СФТК |
Наличие оригинального документа |
Документарный | ||||
|
1.2 |
Проектная документация |
Наличие в утвержденной проектной документации разделов по устройству СФТК |
Документарный |
Соответствие требованиям постановления Правительства Российской Федерации от 16 февраля 2008 N 87 [5]. Наличие проектной документации со штампом в производство работ | |||
|
1.3 |
Рабочая документация |
Наличие ППР на устройство СФТК (включая календарный план) |
Документарный |
Соответствие ППР требованиям проектной документации. Наличие технической документации системодержателя | |||
|
1.4 |
Исполнительная документация |
Наличие журналов производства работ |
Документарный |
Соответствие требованиям [7] | |||
|
1.5 |
Основание |
Наличие акта приемки-передачи фасада под отделку |
Документарный |
По форме приложения Д настоящего свода правил. При наличии дефектов и (или) иных отклонений основания, подлежащих устранению, обязательной проверке подлежат работы по подготовке основания (этап 3 настоящей Карты контроля) | |||
|
1.6 |
Метрологическая поверка используемых средств измерений |
Наличие документа установленного образца в соответствии с действующим законодательством Российской Федерации [3] на каждое используемое средство измерений |
Документарный |
Обязательной проверке подлежат: а) рулетка по ГОСТ 7502; б) теодолит-нивелир по ГОСТ 10528; в) уровень/правило по ГОСТ 25782; г) разметочный шнур по ГОСТ 29231; д) строительный отвес по ГОСТ 7948 | |||
|
Этап 2: Входной контроль и хранение поставленных комплектующих материалов и изделий | |||||||
|
2.1 |
Поставленные комплектующие материалы и изделия |
В соответствии со сводной ведомостью проектной документации и технической документации системодержателя |
Документарный |
Наличие журнала учета входного контроля с обязательным заполнением следующих граф: а) тип/марка продукции; б) номер партии, дата изготовления и номер сопроводительного документа; в) количество продукции | |||
|
2.2 |
Хранение поставленных комплектующих материалов и изделий |
Материалы и изделия следует хранить с обеспечением защиты от воздействия атмосферных осадков и солнечных лучей |
Визуальный | ||||
|
Этап 3: Подготовка основания под установку СФТК Работы по данному этапу проводят в соответствии с решением комиссии (указанным в акте приема-передачи фасада под отделку) о неудовлетворительном состоянии основания и необходимости проведения работ по его подготовке (см. 1.5 настоящей Карты контроля) | |||||||
|
3.1 |
Основание |
Подготовка основания |
Документарный |
Наличие акта освидетельствования скрытых работ с указанием о фактических отклонениях от плоскости и отметкой о выполненных мероприятиях по подготовке основания (с учетом требований ППР), предусмотренных решением комиссии в акте приемки-передачи фасада под отделку | |||
|
Этап 4: Монтаж опорного (цокольного) профиля | |||||||
|
4.1 |
Опорный (цокольный) профиль |
Контроль закрепления и примыкания к строительному основанию |
Документарный |
Запись в журнале производства работ о соответствии выполненных работ требованиям ППР | |||
|
Этап 5: Крепеж теплоизоляционных плит к основанию | |||||||
|
5.1 |
Применяемый клеевой состав |
Тип и норма расхода клеевого состава определены в ППР и технической документации системодержателя |
Документарный |
Проверить наличие в ППР инструкции с описанием процедуры приготовления и нанесения клеевого состава на теплоизоляционную плиту | |||
|
5.2 |
Нанесение клеевого состава |
Контроль нанесения клеевого состава на обратную поверхность теплоизоляционных плит |
Документарный |
Запись в журнале производства работ о выбранной схеме нанесения клеевого состава в соответствии с требованиями ППР | |||
|
5.3 |
Установка теплоизоляционных плит |
Контроль вертикальности (в отдельных случаях заданного уклона) установленных теплоизоляционных плит |
Документарный |
Запись в журнале производства работ о фактических отклонениях плоскости от заданного уклона и выполнении работ по устранений неровностей в соответствии с требованиями ППР | |||
|
5.4 |
Температурные и деформационные швы |
Контроль месторасположения и шага температурных деформационных швов |
Документарный |
Запись в журнале производства работ о разбивке осевых отметок и типе применяемого деформационного профиля | |||
|
5.5 |
Установка элементов усиления теплоизоляционного слоя вокруг оконных и дверных блоков, а также на внешних углах фасадов |
Контроль установки теплоизоляционных плит |
Документарный |
Запись в журнале производства работ: - о местах установки и типе применяемых элементов дополнительного армирования (уголки, стеклосетки и др.); - местах установки примыкающего профиля и (или) полиуретановой ленты, в соответствии с ППР | |||
|
5.6 |
Противопожарные рассечки при комбинированном теплоизоляционном слое |
Контроль соблюдения требований выполнения противопожарных рассечек |
Документарный |
Запись в журнале производства работ о материале противопожарных рассечек и местах устройства в соответствии с требованиями проектной документации и ППР | |||
|
5.7 |
Механическое крепление теплоизоляционных плит к основанию |
Контроль установки анкеров с тарельчатым полимерным дюбелем |
Документарный |
Проверка наличия в ППР указания о схеме установки, типе и числе устанавливаемых анкеров (по участкам производства работ). Запись в журнале производства работ о выполненной работе по установке анкеров с тарельчатым полимерным дюбелем | |||
|
5.8 |
Элементы усиления вершин углов дверных и оконных проемов |
Количество и расположение в соответствие с требованиями проектной документации |
Документарный |
Запись в журнале производства работ с указанием типа стеклосеток, их размера и способа их фиксации в соответствии с требованиями ППР | |||
|
5.9 |
Поверхность теплоизоляционного слоя |
Отсутствие зазоров между теплоизоляционными плитами более 2 мм. Теплоизоляционные плиты не имеют видимых повреждений и установлены на всем участке проведения работ |
Документарный |
Запись в журнале производства работ об установке теплоизоляционных плит в проектное положение в соответствии с требованиями проектной документации и ППР. Запись о заделке швов между теплоизоляционными плитами с указанием материала, использованного для выполнения данной работы | |||
|
5.10 |
Проектное положение теплоизоляционных плит |
Контроль за приемкой-сдачей этапа работ |
Документарный |
Наличие акта освидетельствования скрытых работ, содержащего данные о выполненных по 4.3 - 4.8 настоящей Карты контроля работах, а также с учетом требований ППР | |||
|
5.11 |
Дополнительное грунтование поверхности теплоизоляционного слоя (если предусмотрено ППР) |
Контроль нанесения грунтовочного состава |
Документарный |
Запись в журнале производства работ Наличие акта освидетельствования скрытых работ | |||
|
Этап 6: Выполнение базового штукатурного слоя Работы по 5.3 выполняются при наличие соответствующих рекомендаций системодержателя, внесенных в состав проектной документации | |||||||
|
6.1 |
Применяемый базовый штукатурный состав |
Тип и норма расхода базового состава определены в ППР и технической документации системодержателя |
Документарный |
Проверить наличие в ППР инструкции с описанием процедуры приготовления и нанесения клеевого состава на теплоизоляционный слой | |||
|
6.2 |
Армированный базовый штукатурный слой |
Контроль укладки армирующей сетки. Контроль поверхности слоя |
Документарный |
Запись в журнале производства работ с указанием типа стеклосеток, их размера и способа их фиксации в соответствии с требованиями ППР. Запись в журнале производства работ о выявленных отклонениях поверхности базы и принятых мерах по их устранению. Наличие акта освидетельствования скрытых работ | |||
|
6.3 |
Устройство дополнительного усиления базового штукатурного слоя в зоне цоколя здания (при наличии в проектной документации) |
Контроль дополнительного усиления базового штукатурного слоя |
Документарный |
Запись в журнале производства работ с указанием типа стеклосеток, их размера и способа их фиксации в соответствии с требованиями ППР. Наличие акта освидетельствования скрытых работ | |||
|
6.4 |
Дополнительное грунтование базового штукатурного (если предусмотрено ППР) |
Контроль нанесения грунтовочного состава |
Документарный |
Запись в журнале производства работ Наличие акта освидетельствования скрытых работ | |||
|
Этап 7: Нанесение декоративно-защитного финишного слоя | |||||||
|
7.1 |
Применяемый выравнивающий шпаклевочный состав |
Тип и норма расхода выравнивающего состава определены в ППР и технической документации системодержателя |
Документарный |
Проверить наличие в ППР инструкции с описанием процедуры приготовления и нанесения выравнивающего состава на базовый слой | |||
|
7.2 |
Выравнивающий слой |
Контроль поверхности слоя |
Документарный |
Запись в журнале производства работ о выявленных отклонениях поверхности базы и принятых мерах по их устранению. Наличие акта освидетельствования скрытых работ | |||
|
7.3 |
Обработка поверхности выравнивающего слоя (если предусмотрено проектной документацией) |
Обработка грунтовочным составом |
Документарный |
Запись в журнале производства работ. Наличие акта освидетельствования скрытых работ с указанием типа грунтовочного состава и его среднего расхода на 1 м2 | |||
|
7.4 |
Применяемый декоративный штукатурный состав |
Тип и норма расхода выравнивающего состава определены в ППР и технической документации системодержателя |
Документарный |
Проверить наличие в ППР инструкции с описанием процедуры приготовления и нанесения декоративного состава на огрунтованный базовый или выравнивающий слой | |||
|
7.5 |
Поверхность декоративно-отделочного слоя |
Равномерность нанесения на всю площадь поверхности базового штукатурного слоя. Цветовая однородность |
Документарный |
Запись в журнале производства работ о выявленных отклонениях поверхности базы и принятых мерах по их устранению. | |||
|
Визуальный |
Не допускаются нарушения и изменения фактуры поверхности и видимые отличия цвета в пределах одного фасада здания (от угла до угла). Наличие акта освидетельствования скрытых работ | ||||||
|
7.6 |
Грунтование поверхности декоративно-отделочного слоя (если предусмотрено проектной документацией) |
Контроль нанесения грунтовочного состава |
Документарный |
Запись в журнале производства работ Наличие акта освидетельствования скрытых работ | |||
|
Этап 8: Окраска декоративно-защитного финишного слоя | |||||||
|
8.1 |
Окрасочный состав (фасадная краска) |
Тип и норма расхода окрасочного состава определены в ППР и технической документации системодержателя |
Документарный |
Проверить наличие в ППР инструкции с описанием процедуры приготовления и нанесения окрасочного состава | |||
|
8.2 |
Поверхность декоративно-защитного финишного слоя |
Равномерность нанесения на всю площадь поверхности базового штукатурного слоя. Цветовая однородность |
Документарный |
Запись в журнале производства работ. | |||
|
Визуальный |
Отсутствие непрокрашенных участков фасада, видимые отличия цвета в пределах одного фасада здания (от угла до угла) | ||||||
|
Этап 9: Устройство декоративно-защитного финишного слоя из штучных материалов | |||||||
|
9.1 |
Рабочая документация раздела |
Наличие специального раздела ППР на устройство декоративно-защитного финишного слоя из штучных материалов |
Документарный |
Соответствие ППР требованиям проектной документации. Наличие технической документации системодержателя | |||
|
9.2 |
Устройство дополнительного усиления базового штукатурного слоя |
Контроль дополнительного усиления базового штукатурного слоя |
Документарный |
Запись в журнале производства работ с указанием типа стеклосеток, их размера и способа их фиксации в соответствии с требованиями ППР. Наличие акта освидетельствования скрытых работ | |||
|
9.3 |
Дополнительное механическое крепление теплоизоляционных плит к основанию |
Контроль установки анкеров с тарельчатым полимерным дюбелем |
Документарный |
Проверка наличия в ППР указания о схеме установки, типе и числе устанавливаемых анкеров (по участкам производства работ). Запись в журнале производства работ о выполненной работе по установке тарельчатых анкеров. Наличие акта освидетельствования скрытых работ | |||
|
9.4 |
Укладка штучных элементов декоративно-защитного финишного слоя |
Тип и норма расхода окрасочного состава определены в ППР и технической документации системодержателя |
Документарный |
Проверить наличие в ППР инструкции с описанием процедуры приготовления и нанесения окрасочного состава | |||
|
9.5 |
Поверхность декоративно-защитного финишного слоя из штучных элементов |
Контроль укладки элементов. Контроль поверхности слоя |
Документарный |
Запись в журнале производства работ. | |||
|
Визуальный |
Равномерность укладки рядов, равномерность швов между рядами, заполнение швов базовым составом | ||||||
|
Этап 10: Заделка мест анкеровки строительных лесов | |||||||
|
10.1 |
Места анкеровки строительных лесов |
Контроль заделки мест анкеровки |
Документарный |
Запись в журнале производства работ с указанием общего количества мест восстановления, применяемых для восстановления материалов и технологической последовательности выполняемых операций | |||
Заключение (нужное подчеркнуть):
1. Требования проектной документации и нормативных документов соблюдены
в полном объеме.
2. Требования проектной документации и нормативных документов соблюдены
не в полном объеме.
Рекомендации по устранению выявленных несоответствий:
___________________________________________________________________________
___________________________________________________________________________
Приложения: ______________________ на ____ л.
Настоящая карта составлена в двух экземплярах, по одному экземпляру
для каждой стороны.
Подписи лиц, проводивших проверку:
____________________________ _____________ ______________ ______________
(наименование организации) (должность) (Ф.И.О.) (подпись)
____________________________ _____________ ______________ ______________
(наименование организации) (должность) (Ф.И.О.) (подпись)
____________________________ _____________ ______________ ______________
(наименование организации) (должность) (Ф.И.О.) (подпись)
Подпись ответственного представителя проверяемой организации
____________________________ _____________ ______________ ______________
(наименование организации) (должность) (Ф.И.О.) (подпись)
Дата "__" _________ 20__ г.
Приложение Д
г. _________________ __________________
(дата)
на объекте: _______________________________________________________________
(наименование здания, сооружения)
в осях: ________________________________ на отм.: _________________________
по адресу: ________________________________________________________________
(район застройки, квартал, улица, N дома и корпуса)
Комиссия в составе уполномоченных представителей:
генеральной подрядной организации/заказчика _______________________________
(наименование организации)
___________________________________________________________________________
(должность, Ф.И.О.)
___________________________________________________________________________
(должность, Ф.И.О.)
субподрядной организации __________________________________________________
(наименование организации)
___________________________________________________________________________
(должность, Ф.И.О.)
___________________________________________________________________________
(должность, Ф.И.О.)
провела осмотр стен, проемов, различных узлов примыканий, в том числе
кровли, парапетов, примыкающей территории строительной площадки,
и составила настоящий акт о нижеследующем:
1 При контроле качества стен по СП 70.13330.2012 установлено: _____________
2 Примыкания кровли, парапетов: ___________________________________________
3 Заполнение оконных и дверных проемов: ___________________________________
4 Примыкающая территория строительной площадки: ___________________________
Решение комиссии
___________________________________________________________________________
Представители:
генеральной подрядной ______________________ ______________________
организации/заказчика (подпись) (Ф.И.О.)
______________________ ______________________
(подпись) (Ф.И.О.)
субподрядной организации ______________________ ______________________
(подпись) (Ф.И.О.)
______________________ ______________________
(подпись) (Ф.И.О.)
Приложение Е
г. _________________ __________________
(дата)
___________________________________________________________________________
(наименование работ)
на объекте: _______________________________________________________________
(наименование здания, сооружения)
в осях: ________________________________ на отм.: _________________________
по адресу: ________________________________________________________________
(район застройки, квартал, улица, N дома и корпуса)
Комиссия в составе представителей (должность, наименование организации,
Ф.И.О.):
авторского надзора ____________________________________________________
- технического надзора заказчика ______________________________________
- генеральной подрядной организации ___________________________________
- субподрядной организации ____________________________________________
провела осмотр работ, выполненных ________________________________________,
и составила настоящий акт о нижеследующем:
1 К освидетельствованию и приемке предъявлены следующие работы: ___________
2 Работы выполнены по проектно-сметной документации: ______________________
3 При выполнении работ применены: _________________________________________
4 Работы выполнены в период с ______________________ по ___________________
Решение комиссии
Работы выполнены в соответствии с проектно-сметной документацией,
стандартами, сводами правил и отвечают требованиям их приемки. На
основании изложенного разрешается производство последующих работ:
__________________________________________________________________________
Представители:
- авторского надзора _______________________ ______________________
(подпись) (Ф.И.О.)
- технического надзора _______________________ ______________________
заказчика (подпись) (Ф.И.О.)
- генеральной подрядной _______________________ ______________________
организации (подпись) (Ф.И.О.)
- субподрядной _______________________ ______________________
организации (подпись) (Ф.И.О.)
Приложение Ж
г. _________________ __________________
(дата)
на объекте: _______________________________________________________________
(наименование здания, сооружения)
в осях: ______________________________ на отм.: _______________________
по адресу: ____________________________________________________________
(район застройки, квартал, улица, N дома и корпуса)
Комиссия в составе представителей (должность, наименование организации,
Ф.И.О.): ___________________
- авторского надзора __________________________________________________
- технического надзора заказчика ______________________________________
- генеральной подрядной организации ___________________________________
- субподрядной организации ____________________________________________
провела осмотр работ, выполненных ________________________________________,
и составила настоящий акт о нижеследующем:
1 К освидетельствованию и приемке предъявлены следующие работы: ___________
2 Работы выполнены по проектно-сметной документации: ______________________
3 Работы выполнены в период с ______________________ по ___________________
Решение комиссии
Работы выполнены в соответствии с проектно-сметной документацией,
стандартами, сводами правил и отвечают требованиям приемки
С ЗАМЕЧАНИЯМИ/БЕЗ ЗАМЕЧАНИЙ (ненужное вычеркнуть)
___________________________________________________________________________
Представители:
- авторского надзора ______________________ ______________________
(подпись) (Ф.И.О.)
- технического надзора ______________________ ______________________
заказчика (подпись) (Ф.И.О.)
- генеральной подрядной ______________________ ______________________
организации (подпись) (Ф.И.О.)
- субподрядной ______________________ ______________________
организации (подпись) (Ф.И.О.)
Приложение И
г. _________________ __________________
(дата)
на объекте: _______________________________________________________________
(наименование здания, сооружения)
в осях: ______________________________ на отм.: ___________________________
по адресу: ________________________________________________________________
(район застройки, квартал, улица, N дома и корпуса)
Представитель
технического надзора заказчика/авторского надзора/генеральной подрядной
организации:
(нужное подчеркнуть)
___________________________________________________________________________
(наименование организации, должность, Ф.И.О.)
совместно с представителем подрядной организации:
___________________________________________________________________________
(наименование организации, должность, Ф.И.О.)
провел осмотр работ, выполненных __________________________________________
На основании проведенного осмотра предложены к выполнению следующие
|
N п/п |
Наименование мероприятий |
Срок исполнения |
Отметки о выполнении |
|
1 |
2 |
3 |
4 |
___________________ ____________________
(подпись) (Ф.И.О.)
___________________ ____________________
(подпись) (Ф.И.О.)
Приложение К
Таблица К.1
|
N п/п |
Характеристика повреждения |
Описание операций по ремонту системы |
|
1 |
Повреждено финишное покрытие вместе с базовым слоем. Повреждены армирующая сетка и теплоизоляция |
1.1 Поврежденный участок теплоизоляционного слоя аккуратно вырезают до поверхности стены, при этом образовавшееся отверстие должно иметь прямоугольную форму. 1.2 Ограничивают ремонтируемый участок системы липкой малярной лентой размером больше отверстия на 70 мм в каждую сторону по периметру. 1.3 На ремонтируемом участке зачищают абразивным материалом декоративно-защитный финишный и армированный базовый слои до появления фасадной стеклосетки. 1.4 На зачищенный участок наносят тонким слоем базовый состав и утапливают в нем фасадную стеклосетку, размеры которой должны превышать ремонтируемое отверстие на 50 мм в каждую сторону по периметру. 1.5 Удаляют излишки клеевой массы. 1.6 После высыхания первого слоя наносят второй слой базового состава. 1.7 После высыхания базового состава зачищают абразивным материалом неровности и края базы и удаляют малярную ленту. 1.8 Наклеивают малярную ленту строго в границах расчищенного финишного слоя. 1.9 Наносят финишное покрытие и удаляют малярную ленту |
|
2 |
Декоративный элемент, установленный поверх СФТК, сильно поврежден, частично или полностью вырезан |
2.1 Поврежденный участок декоративного элемента аккуратно вырезают до базы и расчищают абразивным материалом. 2.2 Малярной лентой ограничивают зону ремонтируемого участка размером больше поврежденного на 70 мм в каждую сторону. 2.3 Над и под декоративным элементом на высоту 70 мм аккуратно счищают абразивным материалом декоративно-защитный финишный слой и верхний слой армированного базового слоя до появления армирующей сетки. 2.4 Справа и слева от вырезанного участка на декоративных элементах расчищают полосы шириной 70 мм до фасадной стеклосетки. 2.5 Готовят фрагмент декоративного элемента точно под размер вырезанного поврежденного участка. 2.6 Вклеивают приготовленный фрагмент и закрепляют его тарельчатым анкером. 2.7 Обклеивают ремонтный фрагмент декоративного элемента фасадной стеклосеткой с напуском 50 мм на расчищенные по периметру поверхности. После высыхания наносят второй слой базового состава. 2.8 Зачищают абразивным материалом неровности и края ремонтируемого участка. 2.9 Удаляют старую и наклеивают новую малярную ленту строго в границах расчищенного декоративно-защитного финишного слоя. 2.10 Наносят декоративно-защитный финишный или окрасочный слой и удаляют малярную ленту |
|
3 |
В системе вырезаны сквозные отверстия до поверхности стены |
3.1 Поврежденный участок теплоизоляционного слоя аккуратно вырезают до поверхности стены, при этом образовавшееся отверстие должно иметь прямоугольную форму. 3.2 Ограничивают ремонтируемый участок системы липкой малярной лентой размером больше отверстия на 70 мм в каждую сторону по периметру. 3.3 На ремонтируемом участке зачищают абразивным материалом декоративно-защитный финишный и армированный базовый слои до появления фасадной стеклосетки. 3.4 Готовят фрагменты теплоизоляции по размеру отверстия, наносят клеевой состав на тыльную сторону фрагмента теплоизоляции и вставляют в отверстие. Если вставка имеет размер одной из сторон больше 100 мм, ее необходимо дополнительно закрепить тарельчатым анкером. Количество анкеров зависит от размеров ремонтной вставки. 3.5 На установленный теплоизоляционный слой и зачищенный участок наносят тонким слоем базовый состав и утапливают в нем фасадную стеклосетку, размеры которой должны превышать ремонтируемое отверстие на 50 мм в каждую сторону по периметру. 3.6 Удаляют излишки клеевой массы. 3.7 После высыхания первого слоя наносят второй слой базового состава. 3.8 После высыхания базового состава зачищают абразивным материалом неровности и края базы и удаляют малярную ленту. 3.9 Наклеивают малярную ленту строго в границах расчищенного финишного слоя. 3.10 Наносят финишное покрытие и удаляют малярную ленту |
|
4 |
Срезана теплоизоляция вместе с декоративно-защитным финишным и армированным базовым слоями на оконных и дверных откосах, на верхних и нижних подходах системы к балконам или кровле |
4.1 Аккуратно выравнивают линию среза, зашлифовывают торец теплоизоляционной плиты абразивным материалом. 4.2 Ограничивают ремонтируемый участок малярной лентой, отступив от края повреждения на 70 мм. 4.3 На ремонтируемом участке зачищают абразивным материалом декоративно-защитный финишный и армированный базовый слои до появления фасадной стеклосетки. 4.4 Готовят полосы фасадной стеклосетки шириной 200 мм, заводят ее между теплоизоляционным слоем и стеной и приклеивают к тыльной стороне теплоизоляции на глубину минимум 50 мм. 4.5 Наносят базовый состав на торец теплоизоляционной плиты и расчищенную полосу на его лицевой стороне, утапливают в нее фасадную стеклосетку, после высыхания базового состава наносят его второй слой. 4.6 После нанесения и зачистки базы переклеивают заново малярную ленту строго в границах декоративно-защитного финишного слоя. 4.7 Наносят финишное покрытие и удаляют малярную ленту. |
|
5 |
Отсутствует деформационный шов между СФТК и бетоном на примыканиях СФТК снизу или сбоку к балконам, лоджиям, эркерам и т.д. |
5.1 Прорезают в слоях фасадной системы до основания шов шириной 20 мм. 5.2 Ограничивают ремонтный участок строительной липкой лентой на 70 мм по периметру вырезанного шва на лицевой части. 5.3 Зачищают декоративно-защитный финишный и армированный базовый слои до появления армирующей сетки. 5.4 Готовят полосы фасадной стеклосетки шириной 150 - 200 мм и заводят шпателем в прорезанную щель на всю толщину теплоизоляционного слоя. Свободный край должен укладываться на зачищенную поверхность лицевой части не менее чем на 50 мм. 5.5 Наносят на торец теплоизоляционной плиты и зачищенную поверхность базовый состав. 5.6 Утапливают фасадную стеклосетку в базовый состав. Излишки базового состава удаляют, не обнажая сетку. 5.7 После высыхания базового состава зачищают абразивным материалом неровности и края базы и удаляют малярную ленту. 5.8 Наклеивают малярную ленту строго в границах расчищенного декоративно-защитного финишного слоя. 5.9 Наносят финишное покрытие и удаляют малярную ленту. 5.10 Заводят в шов уплотнительный шнур и наносят герметизирующий состав (предусмотренные технической документацией системодержателя). |
|
6 |
Сквозь систему установлены кронштейны для крепления кондиционеров, информационных знаков (пиктограмм), пожарных лестниц или иных навесных конструкций |
6.1 Вырезают в толще системы (до основания) вокруг кронштейнов шов шириной на 20 мм больше размеров кронштейна. 6.2 Ремонт поврежденного участка выполняют согласно положениям пункта 1 настоящей таблицы. Примечание - При размерах отверстия под установку менее чем 50 x 50 мм армирующую стеклосетку не устанавливают. |
|
7 |
Ржавые пятна на поверхности декоративно-защитного финишного слоя |
7.1 Вырезают ржавое пятно вместе с теплоизоляционным материалом до основания. 7.2 Ремонт поврежденного участка выполняют согласно положениям пункта 1 настоящей таблицы |
|
8 |
Декоративно-защитный финишный слой (окрасочный слой) осыпается, отслаивается или покрыт сеткой трещин |
8.1 Осуществляют визуальный и инструментальный контроль качества покрытия на поврежденном участке и определяют границы ремонта. 8.2 Ограничивают ремонтный участок покрытия малярной лентой. 8.3 Расчищают шпателем или абразивным материалом поврежденный декоративно-защитный финишный слой (окрасочный слой) до появления армированного базового слоя. 8.4 Наносят новый декоративный (окрасочный) состав и удаляют малярную ленту. |
|
9 |
Точечный сквозной прокол системы диаметром отверстия до 20 мм |
9.1 Отверстия сквозных проколов диаметром до 6 мм заполняют герметизирующим составом того же оттенка, что и основное покрытие на глубину 2 - 3 мм. 9.2 Для отверстий диаметром от 6 до 20 мм готовят пробки из фасадного пенополистирола длиной по толщине теплоизоляционного слоя и диаметром, обеспечивающим плотное вхождение пробки в отверстие. 9.3 Наносят базовый состав на тыльный торец пробки и утапливают ее в ремонтируемое отверстие на всю толщину теплоизоляционного слоя. 9.4 Торцом жесткой кисти точечно наносят финишное покрытие |
|
10 |
Прорезана СФТК при установке металлических карнизов, парапетов или примыканий кровли к системе |
10.1 Снимают металлическую конструкцию. 10.2 Вырезают СФТК до утепляемой стены полосой 200 мм от линии примыкания металла к системе. 10.3 Торец теплоизоляционного слоя, остающийся под карнизом, покрывают базовым составом и утапливают в него фасадную стеклосетку. 10.4 Закрепляют карниз (парапет) на утепляемой стене. 10.5 Расчищают декоративно-защитный финишный и армированный базовый слои на 70 мм выше места выреза СФТК до появления армирующей сетки. 10.6 Ограничивают ремонтируемый участок малярной лентой. 10.7 Готовят куски сетки шириной 250 - 450 мм. 10.8 На утепляемую стену на высоту 100 мм от карниза приклеивают подготовленную фасадную стеклосетку. 10.9 Вырезают и устанавливают на стену полосы из теплоизоляционных плит таким образом, чтобы между карнизом (парапетом) и теплоизоляционным слоем у стены оставался зазор 8 - 10 мм. 10.10 Наносят базовый состав на торец и лицевую плоскость теплоизоляционного слоя. 10.11 Утапливают фасадную стеклосетку в базовый состав так, чтобы свободный край сетки укладывался на зачищенную поверхность лицевой части не менее чем на 50 мм. 10.12 После высыхания базового состава зачищают абразивным материалом неровности и края базы и удаляют малярную ленту. 10.13 Наклеивают малярную ленту строго в границах расчищенного финишного слоя. 10.14 Наносят финишное покрытие и удаляют малярную ленту. 10.15 Заводят в шов уплотнительный шнур и наносят герметизирующий состав (предусмотренный технической документацией системодержателя) |
|
11 |
Срезаны крепления строительных лесов заподлицо с финишным покрытием |
11.1 Вырезают отверстие в СФТК размерами 100 x 100 мм до основания вокруг оставленного крепления лесов. 11.2 Срезают крепление вровень со стеной и загрунтовывают срез антикоррозионным составом. 11.3 Проводят ремонт согласно положениям пункта 1 настоящей таблицы |
|
12 |
Декоративно-защитный финишный слой (окрасочный слой) загрязнен |
12.1 В случае загрязнения финишного покрытия промывают загрязненный участок с применением щелочесодержащих моющих средств. 12.2 В случае если загрязнение не удается отмыть или финиш поврежден, проводят его ремонт согласно положениям пункта 8 настоящей таблицы |
|
13 |
Под оконными отливами сквозной точечный прокол системы кронштейнами |
13.1 Демонтируют металлический отлив. 13.2 Проколотый нижний откос подрезают ниже кронштейнов на 10 мм. 13.3 Остальные операции выполняют согласно положениям пункта 4 настоящей таблицы. 13.4 Устанавливают на место отливы. 13.5 Наносят герметизирующий состав на стыки отливов с боковыми откосами и под капельником отливов |
|
14 |
Повреждена СФТК на нижнем откосе окна |
14.1 Удаляют поврежденный участок нижнего откоса. Высота удаленного участка по высоте должна быть не менее 150 мм. 14.2 Дальнейший ремонт проводят согласно положениям пункта 1 настоящей таблицы и требованиям настоящего свода правил по установке примыкания теплоизоляционного слоя к оконному блоку |
|
15 |
Повреждены углы СФТК на оконных откосах в местах сопряжения с оконными рамами |
15.1 В случае незначительного повреждения проводят ремонт согласно положениям пункта 4 настоящей таблицы, начиная с 4.4. 15.2 В случае сильного повреждения проводят ремонт согласно положениям пункта 14 настоящей таблицы |
|
16 |
Карниз окна врезан в боковые откосы |
16.1 Снимают карниз окна. 16.2 Проводят ремонт повреждений на оконных откосах согласно пункту 4 настоящей таблицы; если вырез небольшой (шов шириной до 10 мм), заполняют его мягкой минеральной ватой. 16.3 Уменьшают карниз до размеров оконного проема и устанавливают его. 16.4 Проводят герметизацию стыков СФТК и карниза |
Библиография
[1] Федеральный закон от 30 декабря 2009 г. N 384-ФЗ "Технический регламент о безопасности зданий и сооружений"
[2] Федеральный закон от 22 июля 2008 г. N 123-ФЗ "Технический регламент о требованиях пожарной безопасности"
[3] Федеральный закон от 26 июня 2008 г. N 102-ФЗ "Об обеспечении единства измерений"
[4] Постановление Правительства Российской Федерации от 25 апреля 2012 г. N 390 "О противопожарном режиме"
[5] Постановление Правительства Российской Федерации от 16 февраля 2008 г. N 87 "О составе разделов проектной документации и требованиях к их содержанию"
[6] Приказ Министерства энергетики Российской Федерации от 13 января 2003 г. N 6 "Об утверждении Правил технической эксплуатации электроустановок потребителей"
[7] Приказ Федеральной службы по экологическому, технологическому и атомному надзору от 26 декабря 2006 г. N 1128 "Об утверждении и введении в действие Требований к составу и порядку ведения исполнительной документации при строительстве, реконструкции, капитальном ремонте объектов капитального строительства и требований, предъявляемых к актам освидетельствования работ, конструкций, участков сетей инженерно-технического обеспечения"
[8] СП 11-105-97 Инженерно-геологические изыскания для строительства. Часть I. Общие правила производства работ


