СП 285.1325800.2016 (28.12.2023) СТАДИОНЫ ФУТБОЛЬНЫЕ. ПРАВИЛА ПРОЕКТИРОВАНИЯ
Утв. Приказом Министерства строительства и жилищно-коммунального хозяйства РФ от 16 декабря 2016 г. N 984/пр
Football stadiums. Desing rules
Дата введения - 17 июня 2017 года
Введен впервые
Предисловие
Сведения о своде правил
1 ИСПОЛНИТЕЛЬ - Акционерное общество "Центральный научно-исследовательский и проектно-экспериментальный институт промышленных зданий и сооружений"
2 ВНЕСЕН Техническим комитетом по стандартизации ТК 465 "Строительство"
3 ПОДГОТОВЛЕН К УТВЕРЖДЕНИЮ Департаментом градостроительной деятельности и архитектуры Министерства строительства и жилищно-коммунального хозяйства Российской Федерации (Минстрой России)
4 УТВЕРЖДЕН приказом Министерства строительства и жилищно-коммунального хозяйства Российской Федерации (Минстрой России) от 16 декабря 2016 г. N 984/пр и введен в действие с 17 июня 2017 г.
5 ЗАРЕГИСТРИРОВАН Федеральным агентством по техническому регулированию и метрологии (Росстандарт)
6 ВВЕДЕН ВПЕРВЫЕ
В случае пересмотра (замены) или отмены настоящего свода правил соответствующее уведомление будет опубликовано в установленном порядке. Соответствующая информация, уведомление и тексты размещаются также в информационной системе общего пользования - на официальном сайте разработчика (Минстрой России) в сети Интернет
Введение
Настоящий свод правил разработан в развитие СП 118.13330 с учетом обеспечения требований СП 59.13330, а также документов РФС, УЕФА и ФИФА.
Настоящий свода правил направлен на обеспечение требований [1], [2], [3] и повышение уровня безопасности, функциональности и комфортности нахождения различных групп посетителей футбольных стадионов, обеспечение снижения энергозатрат, применение единых методов определения эксплуатационных характеристик, а также на сокращение числа регулирующих область деятельности нормативных документов и концентрации требований в одном нормативном документе для облегчения труда проектировщиков.
Настоящий свод правил разработан авторским коллективом АО "ЦНИИпромзданий" (руководитель темы - д-р техн. наук В.В. Гранев, канд. архит. Д.К. Лейкина, ответственные исполнители - архитекторы - канд. архит. А.М. Гарнец, В.В. Моторин, М.В. Павловская; исполнитель - архитектор - С.Р. Мамедова, инженеры - канд. техн. наук Т.Е. Стороженко, канд. техн. наук Л.И. Иванихина, Е.В. Моторина, А.Я. Розенблюм, Е.С. Суханова, канд. техн. наук А.М. Шахраманьян, канд. техн. наук В.И. Хицков).
Изменение N 1 к настоящему своду правил разработано АО "ЦНИИПромзданий" (д-р техн. наук В.В. Гранев, канд. архитектуры Д.К. Лейкина, В.В. Моторин, С.Р. Мамедова, И.С. Ахманова, М.В. Павловская, Н.С. Токмачева), ОФСОО "РАСС" (д-р психол. наук В.Б. Мяконьков), ФГБУ "ЦНИИП Минстроя России" (канд. техн. наук Д.Г. Пронин), АО "КТБ ЖБ" (А.В. Шестериков), ООО "ПОЖАРНЫЙ ИНЖЕНЕР" (канд. техн. наук В.В. Пивоваров).
1.1 Настоящий свод правил распространяется на проектирование новых и реконструкцию существующих футбольных стадионов (всех категорий: высшая, первая - пятая), в т.ч. относящихся к уникальным объектам [4], имеющих в составе зданий и сооружений футбольную или футбольно-легкоатлетическую спортивные арены, предназначенных для проведения футбольных матчей, легкоатлетических соревнований и учебно-тренировочного процесса.
1.2 Исключен с 03.06.2020. - Изменение N 1
1.3 Настоящий свод правил устанавливает минимальные требования, предъявляемые к футбольным стадионам, их инфраструктуре, архитектурно-строительным и инженерным решениям, необходимые при проведении футбольных матчей и соревнований по легкой атлетике на территории Российской Федерации, и обеспечивающие их безопасную эксплуатацию.
В настоящем своде правил использованы нормативные ссылки на следующие документы:
ГОСТ 12.4.026-2015 Система стандартов безопасности труда. Цвета сигнальные, знаки безопасности и разметка сигнальная. Назначение и правила применения. Общие технические требования и характеристики. Методы испытаний
ГОСТ 27751-2014 Надежность строительных конструкций и оснований. Основные положения
ГОСТ 27900-88 (МЭК 598-2-22-90) Светильники для аварийного освещения. Технические требования
ГОСТ 30494-2011 Здания жилые и общественные. Параметры микроклимата в помещениях
ГОСТ 31817.1.1-2012 Системы тревожной сигнализации. Часть 1. Общие требования. Раздел 1. Общие положения
ГОСТ 31937-2011 Здания и сооружения. Правила обследования и мониторинга технического состояния
ГОСТ IEC 60598-2-4-2012 Светильники. Часть 2. Частные требования. Раздел 4. Светильники переносные общего назначения
ГОСТ IEC 60598-2-22-2012 Светильники. Часть 2-22. Частные требования. Светильники для аварийного освещения
ГОСТ Р 21.703-2020 Система проектной документации для строительства. Правила выполнения рабочей документации проводных средств связи
ГОСТ Р 50571.5.52-2011/МЭК 60364-5-52:2009 Электроустановки низковольтные. Часть 5-52. Выбор и монтаж электрооборудования. Электропроводки
ГОСТ Р 50571.28-2006 (МЭК 60364-7-710:2002) Электроустановки зданий. Часть 7-710. Требования к специальным электроустановкам. Электроустановки медицинских помещений
ГОСТ Р 50776-95 (МЭК 839-1-4-89) Системы тревожной сигнализации. Часть 1. Общие требования. Раздел 4. Руководство по проектированию, монтажу и техническому обслуживанию
ГОСТ Р 51241-2008 Средства и системы контроля и управления доступом. Классификация. Общие технические требования. Методы испытаний
ГОСТ Р 51558-2014 Средства и системы охранные телевизионные. Классификация. Общие технические требования. Методы испытаний
ГОСТ Р 52435-2015 Технические средства охранной сигнализации. Классификация. Общие технические требования и методы испытаний
ГОСТ Р 52539-2006 Чистота воздуха в лечебных учреждениях. Общие требования
ГОСТ Р 52551-2016 Системы охраны и безопасности. Термины и определения
ГОСТ Р 53245-2008 Информационные технологии. Системы кабельные структурированные. Монтаж основных узлов системы. Методы испытания
ГОСТ Р 53246-2008 Информационные технологии. Системы кабельные структурированные. Проектирование основных узлов системы. Общие требования
ГОСТ Р 53295-2009 Средства огнезащиты для стальных конструкций. Общие требования. Метод определения огнезащитной эффективности
ГОСТ Р 53296-2009 Установка лифтов для пожарных в зданиях и сооружениях. Требования пожарной безопасности
ГОСТ Р 53704-2009 Системы безопасности комплексные и интегрированные. Общие технические требования
ГОСТ Р 55529-2013 Объекты спорта. Требования безопасности при проведении спортивных и физкультурных мероприятий. Методы испытаний
СП 1.13130.2009 Системы противопожарной защиты. Эвакуационные пути и выходы (с изменением N 1)
СП 2.13130.2012 Системы противопожарной защиты. Обеспечение огнестойкости объектов защиты (с изменением N 1)
СП 3.13130.2009 Системы противопожарной защиты. Система оповещения и управления эвакуацией людей при пожаре. Требования пожарной безопасности
СП 4.13130.20013 Системы противопожарной защиты. Ограничение распространения пожара на объекты защиты. Требования к объемно-планировочным решениям (с изменением N 1)
СП 5.13130.2009 Системы противопожарной защиты. Установки пожарной сигнализации и пожаротушения автоматические. Нормы и правила проектирования (с изменением N 1)
СП 7.13130.2013 Отопление, вентиляция и кондиционирование. Требования пожарной безопасности
СП 8.13130.2009 Системы противопожарной защиты. Источники наружного противопожарного водоснабжения. Требования пожарной безопасности (с изменением N 1)
СП 10.13130.2009 Системы противопожарной защиты. Внутренний противопожарный водопровод. Требования пожарной безопасности (с изменением N 1)
СП 14.13330.2018 "СНиП II-7-81* Строительство в сейсмических районах"
СП 16.13330.2017 "СНиП II-23-81* Стальные конструкции" (с изменением N 1)
СП 20.13330.2016 "СНиП 2.01.07-85* Нагрузки и воздействия" (с изменениями N 1, N 2)
СП 22.13330.2016 "СНиП 2.02.01-83* Основания зданий и сооружений" (с изменениями N 1, N 2)
СП 24.13330.2011 "СНиП 2.02.03-85 Свайные фундаменты" (с изменениями N 1, N 2, N 3)
СП 30.13330.2016 "СНиП 2.04.01-85* Внутренний водопровод и канализация зданий" (с изменением N 1)
СП 31.13330.2012 "СНиП 2.04.02-84* Водоснабжение. Наружные сети и сооружения" (с изменениями N 1, N 2, N 3, N 4)
СП 32.13330.2018 "СНиП 2.04.03-85 Канализация. Наружные сети и сооружения"
СП 34.13330.2012 "СНиП 2.05.02-85 Автомобильные дороги" (с изменениями N 1, N 2)
СП 35.13330.2011 "СНиП 2.05.03-84* Мосты и трубы" (с изменением N 1)
СП 42.13330.2016 "СНиП 2.07.01-89* Градостроительство. Планировка и застройка городских и сельских поселений" (с изменением N 1)
СП 44.13330.2011 "СНиП 2.09.04-87* Административные и бытовые здания" (с изменениями N 1, N 2)
СП 50.13330.2012 "СНиП 22-02-2003 Тепловая защита зданий" (с изменением N 1)
СП 51.13330.2011 "СНиП 23-03-2003 Защита от шума" (с изменением N 1)
СП 52.13330.2016 "СНиП 23-05-95* Естественное и искусственное освещение"
СП 59.13330.2016 "СНиП 35-01-2001 Доступность зданий и сооружений для маломобильных групп населения"
СП 60.13330.2016 "СНиП 41-01-2003. Отопление, вентиляция и кондиционирование воздуха" (с изменением N 1)
СП 62.13330.2011 "СНиП 42-01-2002 Газораспределительные системы" (с изменениями N 1, N 2)
СП 63.13330.2018 "СНиП 52-01-2003 Бетонные и железобетонные конструкции. Основные положения"
СП 82.13330.2016 "СНиП III-10-75 Благоустройство территорий" (с изменением N 1)"
СП 89.13330.2016 "СНиП II-35-76 Котельные установки"
СП 112.13330.2011 "СНиП 21-01-97* Пожарная безопасность зданий и сооружений"
СП 113.13330.2016 "СНиП 21-02-99* Стоянки автомобилей" (с изменением N 1)
СП 118.13330.2012 "СНиП 31-06-2009 Общественные здания и сооружения" (с изменениями N 1, N 2, N 3)
СП 124.13330.2012 "СНиП 41-02-2003 Тепловые сети"
СП 129.13330.2011 "СНиП 3.05.04-85* Наружные сети и сооружения водоснабжения и канализации"
СП 132.13330.2011 Обеспечение антитеррористической защищенности зданий и сооружений. Общие требования проектирования
СП 140.13330.2012 Городская среда. Правила проектирования для маломобильных групп населения (с изменением N 1)
СП 158.13330.2014 Здания и помещения медицинских организаций. Правила проектирования (с изменениями N 1, N 2)
СП 255.1325800.2016 Здания и сооружения. Правила эксплуатации. Основные положения (с изменением N 1)
СанПиН 2.1.2.2631-10 Санитарно-эпидемиологические требования к размещению, устройству, оборудованию, содержанию и режиму работы организаций коммунально-бытового назначения, оказывающих парикмахерские и косметические услуги
СанПиН 2.1.3.2630-10 Санитарно-эпидемиологические требования к организациям, осуществляющим медицинскую деятельность
СанПиН 2.1.4.1074-01 Питьевая вода. Гигиенические требования к качеству воды централизованных систем питьевого водоснабжения. Контроль качества. Гигиенические требования к обеспечению безопасности систем горячего водоснабжения
СанПиН 2.2.1/2.1.1.1076-01 Гигиенические требования к инсоляции и солнцезащите помещений жилых и общественных зданий и территорий
СанПиН 2.2.1/2.1.1.1200-03 Санитарно-защитные зоны и санитарная классификация предприятий, сооружений и иных объектов
СанПиН 2.2.1/2.1.1.1278-03 Гигиенические требования к естественному, искусственному и совмещенному освещению жилых и общественных зданий
СанПиН 2.2.2/2.4.1340-03 Гигиенические требования к персональным электронно-вычислительным машинам и организации работы
СанПиН 2.3.6.1079-01 Санитарно-эпидемиологические требования к организациям общественного питания, изготовлению и оборотоспособности в них пищевых продуктов и продовольственного сырья
Примечание - При пользовании настоящим сводом правил целесообразно проверить действие ссылочных документов в информационной системе общего пользования - на официальном сайте федерального органа исполнительной власти в сфере стандартизации в сети Интернет или по ежегодному информационному указателю "Национальные стандарты", который опубликован по состоянию на 1 января текущего года, и по выпускам ежемесячного информационного указателя "Национальные стандарты" за текущий год. Если заменен ссылочный документ, на который дана недатированная ссылка, то рекомендуется использовать действующую версию этого документа с учетом всех внесенных в данную версию изменений. Если заменен ссылочный документ, на который дана датированная ссылка, то рекомендуется использовать версию этого документа с указанным выше годом утверждения (принятия). Если после утверждения настоящего свода правил в ссылочный документ, на который дана датированная ссылка, внесено изменение, затрагивающее положение, на которое дана ссылка, то это положение рекомендуется применять без учета данного изменения. Если ссылочный документ отменен без замены, то положение, в котором дана ссылка на него, рекомендуется применять в части, не затрагивающей эту ссылку. Сведения о действии сводов правил целесообразно проверить в Федеральном информационном фонде стандартов.
В настоящем своде правил использованы термины по [4], [5], СП 118.13330, СП 59.13330, а также следующие термины с соответствующими определениями:
3.1.1 блок мест для зрителей (сектор): Участок (фрагмент) зрительской трибуны с группой мест, на который зрители загружаются и с которого зрители эвакуируются по общему проходу (лестнице) блока непосредственно или через люк.
3.1.2 внешний периметр безопасности: Ограждение территории вокруг стадиона, для входа или въезда на которую необходимо предъявить соответствующие билеты или аккредитацию и пройти процедуру досмотра.
3.1.3 внутренний периметр безопасности: Зона безопасности между турникетами стадиона и проходами, ведущими на трибуны.
3.1.4 вспомогательная зона игрового поля: Специально отведенное место на стадионе вокруг игрового поля для нахождения во время проведения матча участников матча, в т.ч. запасных игроков, стюардов, резервных арбитров, позиций фотографов, рекламных щитов, для размещения площадок для разминки команд перед матчем и др., с рекомендуемыми размерами: не менее 6 м по сторонам игрового поля и не менее 7,5 м от линии ворот.
3.1.5 входные группы футбольного стадиона: Здания и сооружения контрольно-пропускных пунктов для людей и транспорта, касс, санитарных узлов, зон хранения багажа, расположенные на внешнем периметре безопасности футбольного стадиона.
3.1.6 гостевой городок: Территория, отведенная на время проведения футбольных матчей высшей категории, оборудованная временными зданиями и сооружениями с подключением инженерного обеспечения.
3.1.7 гостевые места (для зрителей категории "Гостеприимство"): Места на трибунах, обеспечивающие беспрепятственную видимость игры в футбол, расположенные за пределами игровой зоны, с повышенными качествами сидений.
3.1.8 дренажная система игрового поля: Комплекс конструктивных, технологических и строительных мероприятий, предотвращающих затопление игрового поля.
3.1.9 зона гостевого обслуживания: Выделенная зона привилегированного обслуживания высокого качества определенной категории зрителей на трибунах и ложах (скайбоксах), как правило, от 2 до 4 рядов с местами повышенной комфортности, вместимостью от 10 до 40 человек, с видом на поле и площадями для возможности организации обслуживания напитками, закусками.
3.1.10 зона команд: Не менее двух зон в западном секторе, включающие помещения раздевален команд и тренеров, санитарные узлы, душевые, массажные помещения, помещения технических работников, внутренние зоны разминки.
3.1.11 зона зрителей: Пространство в непосредственной близости от зрительских мест, предназначенное для зрителей мероприятий, проводимых на спортивном сооружении.
3.1.12 игровая зона: Игровое поле и вспомогательная зона вокруг игрового поля вплоть до границы трибун для размещения в ней скамеек команд, помощников судьи, работников, подающих мячи, представителей средств массовой информации, медицинского персонала, запасных игроков, стюардов (охраны) и др.
3.1.13 игровое поле: Площадка для проведения футбольных матчей габаритами, как правило, 68 x 105 м с натуральным травяным или искусственным покрытием.
3.1.14 искусственный газон: Искусственное покрытие, соответствующее стандартам качества международных футбольных организаций, использование которого должно быть одобрено Союзом европейских футбольных ассоциаций (для клубных соревнований УЕФА) или Российским футбольным союзом (для российских соревнований).
3.1.15 категория футбольного стадиона: Соответствие спортивного сооружения требованиям уровня проводимых спортивных мероприятий по футболу.
3.1.16 контрольно-пропускной пункт; КПП: Здание или сооружение на внешнем периметре стадиона, предназначенное для контроля прохода людей и (или) проезда транспорта на территорию стадиона.
3.1.17 люк (здесь): Проем (с горизонтальным проходом или по пандусу) в трибуне, предназначенный для входа зрителей на трибуну и выхода с нее, а также для связи вспомогательных помещений, размещаемых в подтрибунном пространстве, с трибуной и игровым полем.
3.1.18 места для зрителей: Места, на трибунах, расположенные за пределами игровой зоны и обеспечивающие беспрепятственную видимость игры в футбол.
3.1.19 места со свободным доступом: Места на трибунах для зрителей, в ложах (в отдельных случаях в игровой зоне), предназначенные для маломобильных групп населения.
3.1.20 натуральный газон: Естественное травяное покрытие игрового поля, специальных для футбольных полей состава и качества, требующее определенного ухода.
3.1.21 подогрев игрового поля: Электрический или жидкостный подогрев натурального газона игрового поля, который производится в холодный и переходный периоды года, в целях прогрева почвы и ускорения или продления роста травяного покрытия.
3.1.22 покрытие футбольного стадиона: Световлагозащитная конструкция над трибунами для зрителей, а также над спортивной ареной, предназначенная для защиты зрителей от атмосферных осадков и солнечных лучей.
3.1.23 помещения официальных лиц: Помещения для должностных лиц, выполняющих организационно-распорядительные функции в футбольных организациях, спортивных судей, помощников судей, инспекторов, делегатов, комиссаров матчей, технических работников, иных лиц, ответственных за технические, медицинские и административные вопросы в федерациях, лигах и клубах и др.
3.1.24 система автоматического полива игрового поля: Оросительная система, предназначенная для пролива газона при устройстве системы дренажа и обеспечивающая необходимый процент влажности почвы на глубине наиболее активного слоя корневой зоны (5 - 20 см) газонных трав.
3.1.25 система видеоизображения: Табло, куб, другие устройства, отображающие в соответствии с правилами (регламентами) вида спорта видеоинформацию о спортивном мероприятии.
3.1.26 система видеонаблюдения: Система, состоящая из сети камер для наблюдения за зрителями в целях требований безопасности.
3.1.27 система хронометража: Комплект электронной аппаратуры, обеспечивающий точный отсчет времени и фиксации результатов участников соревнований.
3.1.28 скайбокс: Корпоративная ложа, включающая в себя помещение для персонального обслуживания с отдельным выходом на трибуны и зрительские места с панорамным видом на спортивную зону.
3.1.29 смешанная зона (микст-зона): Выделенное вблизи соревновательной зоны пространство для встречи участников соревнований и официальных лиц с аккредитованными представителями средств массовой информации.
3.1.30
|
спортивная арена: Спортивное ядро на открытом воздухе или под крышей (манеж), предназначенное для проведения спортивных соревнований по определенному виду спорта, с трибунами для зрителей. [5, пункт 3.2] |
3.1.31 спортивная зона: Зона в западном секторе, включающая зоны раздевален команд, помещения арбитров, помещения допинг-контроля, медицинские помещения, помещения для лиц, ответственных за проведение мероприятий.
3.1.32 трибуна: Конструктивный элемент здания, сооружения футбольного стадиона, с расположенными с возвышением одного ряда над другим в сторону от игрового поля.
3.1.33
|
футбольный стадион: Спортивное сооружение (в т.ч. манеж), на котором проводится футбольный матч, включая спортивную арену, с прилегающей территорией, вплоть до внешнего ограждения. [5, пункт 3.1] |
3.1.34 футбольная спортивная арена: Спортивная арена в составе футбольного стадиона, предназначенная для проведения соревнований по футболу в присутствии зрителей.
3.1.35 футбольно-легкоатлетическая спортивная арена: Спортивная арена в составе футбольного стадиона, предназначенная для проведения соревнований по футболу и легкой атлетике в присутствии зрителей.
3.1.36 футбольный тоннель: Коридор для прохода из спортивной зоны в игровую зону футбольной команды, судей и иных ответственных лиц, принимающих участие в организации и проведении футбольных матчей.
3.1.37 эстакада (платформа) пешеходная (здесь): Надземное сооружение мостового типа, служащее для доступа зрителей на стадион, в т.ч. для эвакуации.
3.1.38 VIP-места: Выгороженный сектор мест на трибуне повышенной комфортности и безопасности.
3.1.39 VVIP-зона: Выделенная зона в престижной части главной (западной) трибуны спортивной арены, предназначенная для специальных гостей, с местами и дополнительными помещениями повышенной комфортности и безопасности.
В настоящем своде правил применены следующие сокращения:
ЕПС - единовременная пропускная способность;
ИААФ - Международная ассоциация легкоатлетических федераций;
ИТП - индивидуальный тепловой пункт;
МГН - маломобильные группы населения;
ПСТТП - полустационарный телевизионный трансляционный пункт;
ПУИ - помещение уборочного инвентаря;
РФС - Российский футбольный союз;
СМИ - средства массовой информации;
ТКО - твердые коммунальные отходы;
УЕФА - Союз европейских футбольных ассоциаций;
ФИФА - Международная федерация футбола;
VAR - система видеопомощи арбитрам.
Размещение
4.1 Футбольные стадионы (расположение, вместимость) следует проектировать на основе документов территориального планирования, правил землепользования и застройки и документации по планировке территории [4], а также с учетом природно-климатических и других местных условий строительства.
4.2 Футбольные стадионы следует располагать на отведенной территории, достаточной для обеспечения безопасного движения всех категорий посетителей и транспорта, а также для стоянок специального автотранспорта.
4.3 При проектировании конструкций футбольных стадионов следует применять нормативные технические документы, действующие на территории Российской Федерации, которые содержат нормы и правила, необходимые для проектирования объекта в целом или его отдельных элементов и частей.
4.4 Инженерное обеспечение футбольных стадионов следует предусматривать в соответствии с требованиями ГОСТ 30494, ГОСТ Р 52539, ГОСТ Р 50571.28, СП 118.13330, СП 30.13330, СП 31.13330, СП 32.13330, СП 7.13330, СП 60.13330, СП 62.13330, СанПиН 2.1.3.2630, СанПиН 2.2.2/2.4.1340, СанПиН 2.1.2.2631, СанПиН 2.3.6.1079.
4.5 На территории футбольного стадиона следует предусматривать не менее чем два транспортных въезда/выезда и зрительских входов/выходов, с учетом возможности разделения функциональных потоков и обеспечения антитеррористической безопасности посетителей стадиона.
4.6 Размеры земельных участков футбольных стадионов следует принимать в соответствии с СП 42.13330.
Вместимость
4.7 Вместимость футбольных стадионов следует определять сообразно категориям соревнований, которые будут на нем проводить, в соответствии с приложением А и социально-экономическим обоснованием места строительства.
4.7а Вместимость футбольного стадиона, в т.ч. с футбольно-легкоатлетической спортивной ареной, определяется числом зрительских мест различных клиентских групп, которые могут быть размещены на трибунах и ложах сооружения при проведении спортивных мероприятий определенной категории. Взаимосвязь числа зрительских мест на спортивном сооружении и категории спортивного мероприятия, устанавливается требованиями правил (регламентов) федераций и указывается в задании на проектирование. Вместимость определяется как "чистая" - складывается из мест для обычных зрителей, VIP-мест, официальных лиц матча (за исключением мест с ограниченным обзором поля и мест для СМИ) и "общая" - количество всех мест на стадионе, включая СМИ.
4.8 Вместимость футбольного стадиона может быть увеличена или уменьшена в процессе эксплуатации сооружения за счет устройства трансформируемых зрительских мест.
4.9 В случае увеличения вместимости футбольного стадиона во время его эксплуатации следует обеспечить необходимые комплексные меры безопасности и дополнительные обслуживающие функции, нормативные характеристики которых должны соответствовать новой вместимости стадиона.
Категории соревнований
4.10 Категории соревнований по футболу определяются в зависимости от матчей, проходящих под эгидой ФИФА, УЕФА, РФС. Категории соревнований по футболу, в соответствии со стандартом РФС, приведены в приложении А.
4.11 Официальные соревнования по футболу (ФИФА, УЕФА) и официальные соревнования по легкой атлетике (ИААФ) следует проводить на футбольных стадионах, планировочная и функциональная организация которых должна соответствовать международным стандартам.
Соревнования, входящие во Всемирную легкоатлетическую серию и Легкоатлетическую программу Олимпийских игр, могут проходить только на футбольных стадионах с игровым полем с синтетическим покрытием, имеющим действующий сертификат ИААФ "Класса 1" для легкоатлетических сооружений, согласно [18], [19].
Остальные виды международных соревнований по легкой атлетике могут проходить с предоставлением действующего сертификата ИААФ "Класс 2" [19].
Ориентация игрового поля
4.12 Игровое поле футбольного стадиона следует ориентировать продольными осями в направлении север-юг. Допускается отклонение продольной оси игрового поля в сторону запада, не превышающее 45°. При реконструкции и новом строительстве футбольного стадиона в плотной городской застройке, в исторически сложившейся застройке, в условиях сложного рельефа допускается отклонение продольной оси игрового поля в сторону востока до 30°. В таких случаях проектные решения должны содержать дополнительные меры, обеспечивающие необходимую освещенность футбольного поля в целом, и обеспечивать оптимальные условия для телетрансляций матча. Схема ограничения ориентации игрового поля приведена в приложении Б.
4.13 Участники и зрители на проводимых мероприятиях должны быть максимально защищены от слепящего воздействия солнца за счет оптимальной ориентации игрового поля и материала покрытия над трибунами.
4.14 При наличии на спортивной арене естественного травяного покрытия, ориентация игрового поля должна обеспечивать необходимые условия для роста травы.
Видимость на трибунах
4.15 Места на трибунах следует размещать с учетом обеспечения беспрепятственной видимости игры в футбол. Рекомендуемые зоны размещения зрительских мест приведены в приложении В.
4.16 Для обеспечения беспрепятственного обзора игрового поля следует выполнять расчет линии видимости. Линию видимости следует рассчитывать для всех секторов и уровней трибун в соответствии с приложением Г.
Примечание - Следует учитывать, что линия видимости от уровня глаз инвалида на кресле-коляске измеряется как вертикальное расстояние от центра колес.
4.17 При расчете линии видимости на стадионах высшей, первой и второй категорий следует учитывать установку вокруг игрового поля рекламных щитов высотой 90 - 100 см на расстоянии 5 м от боковых линий и центра линии ворот.
Многофункциональность
4.18 При использовании спортивной арены для целей, отличных от футбольных мероприятий (концертов, выставок, спектаклей и др.), следует учитывать:
- необходимость обеспечения возможности выезда на поле транспортных средств для доставки материалов и оборудования для технического обслуживания;
- возможность размещения дополнительных раздевален и других помещений для участников мероприятий;
- возможность размещения дополнительных складских помещений, приближенных к туннелям, выходящим к игровой зоне.
4.19 При многофункциональном использовании игрового поля следует защищать естественное или искусственное газонное покрытие специальными настилами, предотвращающими повреждение газона и технологических систем игрового поля, для которых следует предусматривать специальное место хранения.
4.20 Для проведения соревнований по другим видам спорта на игровом поле, как правило, следует предусматривать строительство временных трибун с учетом требований по удаленности зрительских трибун от игровых зон различного назначения.
Возможность многофункциональности стадиона должна быть предусмотрена в задании на проектирование.
Безопасность
4.21 На футбольных стадионах следует обеспечить безопасное нахождение всех присутствующих на территории стадиона: зрителей, участников матча, официальных лиц, представителей СМИ, персонала стадиона и пр.
4.22 Разметка игрового поля, параметры зон безопасности игрового поля, установленные правилами проведения соответствующих уровней соревнований, являются обязательными в качестве технологических требований [6], [7].
4.23 Объемно-планировочные решения футбольного стадиона (входы, выходы, лестницы, двери, маршруты эвакуации, кровля, зоны и помещения с общим и ограниченным доступом), а также все здания и сооружения на отведенной территории должны иметь соответствующую инфраструктуру и техническое оснащение, необходимые для обеспечения общественного порядка и общественной безопасности при проведении соревнований, и проектироваться с учетом СП 132.13330, [6] - [9].
4.24 На футбольных стадионах для обеспечения противопожарной защиты следует руководствоваться нормативными требованиями по пожарной безопасности.
4.25 На футбольных стадионах следует предусматривать достаточное количество входов и выходов для обеспечения беспрепятственного доступа зрителей, в т.ч. МГН, к зрительским местам на трибунах, а также беспрепятственную эвакуацию в соответствии с СП 1.13130, СП 4.13130, СП 59.13330 и [3].
4.26 Для обеспечения безопасности футболистов, судей и официальных лиц место их выхода из подтрибунных помещений на игровое поле должно быть оборудовано закрытым защитным или подземным футбольным тоннелем, препятствующим любому контакту участников игры со зрителями и защищающим их от любого воздействия со стороны болельщиков.
Если место выхода команд, судей и других официальных лиц матча на игровом поле, по конструктивным особенностям стадиона, не находится в непосредственной близости от трибун и нет необходимости в его оборудовании закрытым защитным тоннелем, оно должно быть огорожено переносными барьерами.
4.27 Помещения команд следует располагать с прямым доступом к полю через тоннель. Минимальная ширина тоннеля - 4 м, минимальная высота - 2,4 м.
4.28, 4.29 Исключены с 03.06.2020. - Изменение N 1
Обеспечение общественного порядка и общественной безопасности
4.30 Требования к техническому оснащению стадионов для обеспечения общественного порядка и общественной безопасности утверждаются федеральным органом исполнительной власти в сфере внутренних дел [8].
Проектные решения, обеспечивающие антитеррористическую защищенность футбольного стадиона, должны выполняться в соответствии с СП 132.13330, [11].
4.31 На футбольных стадионах должны быть предусмотрены системы обеспечения безопасности, направленные на предотвращение криминальных проявлений и их последствий, способствующие минимизации возможного ущерба зданиям и сооружениям футбольного стадиона, посетителям, имуществу при возникновении противоправных действий в соответствии с нормами по обеспечению безопасности и антитеррористической защищенности.
Необходимость реализации технических решений и мероприятий по обеспечению безопасности и антитеррористической защищенности устанавливается в задании на проектирование с учетом категорий футбольного стадиона в соответствии с [1], [7], [8] - [11], ГОСТ 31817.1.1, ГОСТ Р 51558, ГОСТ Р 50776, ГОСТ Р 51241, ГОСТ Р 52551, ГОСТ Р 53704, СП 132.13330.
4.32 В помещениях охраны следует предусматривать наличие радиотрансляционной абонентской точки и канала передачи тревожных сообщений (тревожной сигнализации) в территориальные службы федерального органа исполнительной власти в сфере внутренних дел.
4.33 Футбольные стадионы с футбольно-легкоатлетической спортивной ареной следует проектировать при необходимости проведения на спортивной арене соревнований как по футболу, так и по легкой атлетике. Размеры спортивной арены следует принимать в соответствии с требованиями к размерам легкоатлетической беговой дорожки.
5.1 Планировочную организацию территории футбольных стадионов следует проектировать с учетом обеспечения беспрепятственного и эффективного прибытия, перемещения и отбытия всего количества посетителей и их транспортных средств через транспортные и переходные контрольно-пропускные пункты (КПП) в течение короткого промежутка времени (расчетное значение в соответствии с [8]).
Проектными решениями следует обеспечивать возможность для размещения специальной техники городских служб (аварийно-спасательных, пожарных и др.), доставляющих личный состав и персонал для участия в процессе локализации, ликвидации пожара и спасания людей.
5.2 Противопожарные разрывы от футбольного стадиона до соседних зданий и сооружений (в т.ч. временных), проезды и подъезды для пожарных автомобилей следует принимать в соответствии с требованиями [3], СП 4.13130 и нормативных документов по пожарной безопасности, действующих в Российской Федерации.
Противопожарные расстояния следует измерять от внешнего контура футбольного стадиона в уровне цоколя, включая выступающие части, или от граней крайних колонн при отсутствии наружных стен.
5.3 В непосредственной близости от внешнего периметра футбольного стадиона следует предусматривать автостоянки для зрителей с учетом требований СП 113.13330 и СП 42.13330.
При размещении парковочных мест на стоянках автомобилей следует предусматривать места для хранения (стоянки) электромобилей, оборудованные зарядными устройствами, в соответствии с требованиями СП 113.13330. Расчетную потребность парковочных мест, оборудованных зарядными устройствами, следует устанавливать в соответствии с заданием на проектирование, но не менее установленных СП 118.13330.
5.4 В случае размещения на территории футбольного стадиона комплекса зданий хозяйственного назначения (склады, гаражи и др.) в проекте следует предусмотреть отдельный внешний въезд.
5.5 Открытые плоскостные спортивные сооружения (площадки и поля для спортивных игр), расположенные на территории футбольного стадиона, как правило, следует ориентировать продольными осями в направлении север-юг.
5.6 Система проездов и пешеходных тротуаров, эспланад и прочего должна обеспечивать подходы и подъезды ко всем зданиям и сооружениям футбольного стадиона.
К спортивной арене подъезд пожарных автомобилей должен быть обеспечен со всех сторон в соответствии с СП 4.13130.
5.7 На территории футбольного стадиона покрытие проездов следует принимать в соответствии с СП 34.13330.
Проезды с твердым покрытием для пожарных автомобилей должны быть шириной не менее 6 м. В общую ширину противопожарного проезда, совмещенного с основным подъездом к спортивной арене, допускается включать тротуар, примыкающий к проезду. Расстояние от внутреннего края проезда до стены зданий или сооружений футбольного стадиона должно быть не более 8 м. При проектировании дорог следует учитывать, что радиусы поворотов для проезда современных пожарных автомобилей должны составлять не менее 12 м.
5.8 Подъезды пожарных машин следует предусматривать:
- к пожарным гидрантам;
- на игровое поле;
- к местам вывода наружу патрубков сети внутреннего противопожарного водопровода и установок автоматического пожаротушения из расчета подключения к ним насосов не менее двух пожарных машин.
Автомобильные сквозные проезды на игровое поле должны быть шириной в свету не менее 3,5 м и высотой не менее 4,5 м.
Следует предусматривать не менее двух проездов, позволяющих машинам специальных служб проехать непосредственно к игровому полю.
5.9 Покрытие и конструкции дорожной одежды пожарных проездов должны быть рассчитаны на нагрузку от пожарных автомобилей, но не менее 16 т на ось или общую нагрузку от наиболее тяжелых машин (автоподъемников) массой 46 т.
Не допускается использовать проезды для пожарных автомобилей для стоянки транспорта.
Максимальная протяженность тупикового проезда не должна превышать 150 м, должен заканчиваться разворотной площадкой 15 x 15 м в соответствии с пунктом 8.13 СП 4.13130.2013.
5.10 Планировочная организация территории футбольных стадионов должна обеспечивать беспрепятственный доступ к зданиям и сооружениям и иметь специально оборудованные места для инвалидов и других групп населения с ограниченными возможностями передвижения и их сопровождающих и соответствовать требованиям СП 59.13330.
5.11 Вокруг зданий и сооружений спортивных арен перед входами в них следует создавать свободные открытые пешеходные пространства с твердым покрытием из расчета не менее 0,5 м2 на одно зрительское место.
У мест расположения эвакуационных выходов следует предусматривать площадки для рассредоточения эвакуируемых из здания людей при пожаре.
5.12 Пути движения различных групп посетителей футбольного стадиона: спортсменов, зрителей, VIP- и VVIP-зрителей не должны пересекаться, кроме того, следует разделять потоки болельщиков гостей и хозяев соревнования.
5.13 Инженерно-техническую укрепленность внешнего периметра безопасности футбольных стадионов следует выполнять в соответствии с требованиями к техническому оснащению стадионов для обеспечения общественного порядка и общественной безопасности [8].
5.14 Территорию футбольного стадиона следует огораживать стационарным ограждением высотой не менее 2,5 м. Ограждение территории стадиона должно быть просматриваемым.
Внутренний периметр безопасности следует организовывать непосредственно при входах на спортивную арену.
По периметру спортивной арены следует предусматривать проезд для пожарных и специальных машин в соответствии с СП 4.13130.
Состав зданий и сооружений
5.15 На земельном участке, предназначенном для строительства футбольного стадиона, в т.ч. с футбольно-легкоатлетической спортивной ареной, необходимо размещать следующие здания, сооружения и специализированные площадки:
- футбольную или футбольно-легкоатлетическую спортивную арену;
- стационарные КПП для прохода посетителей;
- временный медицинский пункт по оказанию первой медицинской помощи в составе КПП, работающий во время проведения общественных мероприятий (по заданию на проектирование);
- стационарные пропускные пункты автотранспорта (транспортные КПП);
- билетные кассы;
- санитарные узлы при входах на территорию;
- камеры хранения для имущества зрителей, не подлежащего к проносу на территорию стадиона (из расчета 10% пропускной способности КПП);
- посты охраны;
- инженерные сооружения;
- тренировочные поля (по заданию на проектирование);
- питомник для выращивания дерна (по заданию на проектирование);
- стоянки для специального автотранспорта, автобусов и легковых автомобилей.
Примечание - Состав и количество зданий, сооружений и специализированных площадок определяются заданием на проектирование в зависимости от категории футбольного стадиона.
5.16 Количество КПП следует определять в зависимости от протяженности периметра стадиона, его конфигурации, вместимости спортивной арены, интенсивности движения людей и транспорта через КПП в соответствии с [5].
5.17 Рекомендуемое зонирование и размещение зданий и сооружений представлено в приложении Д.
5.18 Функционально территорию стадиона следует разделять на пешеходную зону подхода к трибунам различных категорий зрителей, зону движения спортсменов, VVIP, VIP, СМИ, проезды служебного и специального автотранспорта.
5.19 По периметру здания и внешнему периметру следует организовать раздельные входы для обслуживающего персонала, спортсменов, членов управляющих матчем компаний, VVIP- и VIP-зрителей, СМИ и др.
Количество сооружений (или зон) хранения имущества зрителей, не разрешенного к проносу на территорию стадиона, их удаление от мест массового скопления людей следует определять в зависимости от протяженности периметра стадиона, его конфигурации, вместимости спортивной арены в соответствии с [8].
Парковки
5.20 Парковки для зрителей следует проектировать в зависимости от режима работы стадиона. В режиме проведения соревнований на территории стадиона проектируются только минимально необходимые парковочные места: для VVIP, VIP, спортсменов, судей и спецтехники, при этом парковки для остальных клиентских групп проектируются за пределом территории стадиона на требуемом по соображениям безопасности расстоянии. В постоянном режиме работы стадиона все места парковок для зрителей следует размещать вне внешнего периметра стадиона, выделяя при этом огороженный участок земли, обеспечивая зрителям прямой доступ на территорию стадиона и к зданию спортивной арены с обеспечением личного досмотра.
5.21 Парковочные места для автобусов, осуществляющих организованную доставку болельщиков на территорию футбольного стадиона, в целях обеспечения безопасности следует размещать на парковочных местах болельщиков с учетом разделения потоков болельщиков каждой команды.
5.22 Парковки для команд, официальных лиц матча следует проектировать исходя из размещения не менее четырех автобусов для спортсменов и 14 автомобилей (шесть для каждой из команд и два для официальных лиц матча).
5.23 Автомобильную парковку для представителей СМИ следует располагать в непосредственной близости к рабочей зоне СМИ.
При необходимости размещения транспортных средств представителей СМИ и специальной техники для осуществления трансляции парковочные места для них следует планировать в зоне, выделенной для работы СМИ. При этом размещение и подвод коммуникаций к ПСТТП следует устанавливать в техническом задании на телевизионное обеспечение спортивного мероприятия.
5.24 Вместимость парковок для транспортных средств экстренных служб следует обеспечивать в соответствии с заданием на проектирование.
5.25 Для футбольных стадионов, проектируемых для матчей ФИФА и УЕФА, в соответствии с заданием на проектирование следует в пределах территории стадиона или в непосредственной близости от нее размещать вертолетную площадку.
5.26 Парковочные места для автомобилей всех категорий МГН следует предусматривать в соответствии с СП 59.13330. Рекомендуется минимальное количество парковочных мест из расчета на 1000 зрителей - не менее 100 мест для автомобилей (в т.ч. 4% мест автомобилей для МГН на креслах-колясках) и не менее 8 мест для автобусов. Следует предусматривать доступные места посадки/высадки пассажиров автомобилей, микроавтобусов, автобусов.
Стоянки автомобилей в пределах территории стадиона следует ограждать и оборудовать пунктами охраны и шлагбаумами.
5.27 На территории стадиона следует выполнять мероприятия, направленные на обеспечение наружного пожаротушения, принятые в соответствии с СП 8.13130 и другими действующими нормативными документами по пожарной безопасности.
Благоустройство. Экологические требования
5.28 Мероприятия по благоустройству следует подчинять требованиям создания максимальных удобств и безопасности для посетителей, а также созданию эстетической привлекательности территории футбольного стадиона.
Основными видами благоустройства следует принимать твердые покрытия и газонное озеленение.
На территории футбольного стадиона следует предусматривать размещение малых архитектурных форм: скамьи для отдыха, урны, флагштоки, вазоны, рекламные конструкции, скульптуры и др.
Благоустройство территории стадиона должно соответствовать СП 59.13330, СП 82.13330, СП 140.13330.
5.29 При наличии в составе футбольного стадиона спортивной арены с игровым полем из натурального газона на его территории следует предусматривать питомник для выращивания дерна. Площадь питомника следует предусматривать из расчета не менее 15% площади газонного покрытия одного поля, а при наличии двух и более полей - не менее 10% их общей площади.
5.30 Общую площадь озеленения территории футбольного стадиона, включая площадь ветро- и пылезащитных полос древесных и кустарниковых насаждений, а также площадь покрытий газонных спортивных полей и площадок, питомников для выращивания дерна следует принимать не менее 20% общей площади.
5.31 Здания/сооружения футбольного стадиона следует проектировать с учетом требований СанПиН 2.2.1/2.1.1.1278, СанПиН 2.2.1/2.1.1.1076.
5.32 Размещение зеленых насаждений на территории футбольного стадиона, в т.ч. с легкоатлетическими беговыми дорожками и легкоатлетическими секторами, должно в комплексе с другими мероприятиями обеспечивать защиту окружающей застройки от шума, связанного с проведением спортивных мероприятий, использование территории для отдыха и физкультурно-оздоровительных занятий населения на открытом пространстве, с учетом требований СанПиН 2.2.1/2.1.1.1200.
5.33 Планировочные решения территории футбольного стадиона следует выполнять с учетом проведения комплексных мероприятий по энергосбережению согласно СП 42.13330.
5.34 Система освещения территории и зданий/сооружений футбольного стадиона не должна создавать избыточного освещения в близлежащей жилой застройке. Спортивное освещение игрового поля не должно отражать свет от поверхности игрового поля на трибуны и территорию футбольного стадиона.
5.35 Все инженерные системы зданий и сооружений следует выполнять на экологически чистом оборудовании.
Спортивные арены
6.1 Спортивные арены в зависимости от объемно-планировочных решений следует разделять на открытые, крытые и трансформируемые.
6.2 Высоту помещений в чистоте следует принимать согласно СП 118.13330, высоту административных и служебных помещений - согласно СП 44.13330.
6.3 В подтрибунном пространстве спортивных арен помещения для иного функционального назначения следует размещать в соответствии с заданием на проектирование.
6.4 Эвакуационные пути и выходы следует предусматривать в соответствии с требованиями СП 1.13130 и другими действующими нормативными документами по пожарной безопасности.
6.5 Правила подсчета общей площади, строительного объема, площади застройки и числа этажей (уровней) футбольного стадиона следует принимать в соответствии с приложением Р.
6.6 В функциональном зонировании спортивных арен, как правило, следует выделять следующие основные технологические зоны:
- игровая зона;
- зрительская зона;
- спортивная зона.
Игровая зона
6.7 Игровая зона футбольного стадиона для игры в футбол включает в себя игровое поле и вспомогательную зону.
Размер игрового поля для проведения международных и всероссийских соревнований, тренировочного процесса должен составлять 105 x 68 м. Параметры игрового поля следует принимать согласно приложению Е (для стадионов 2, 3, 4-й категорий допускается использование полей длиной от 100 до 105 м, шириной от 64 до 68 м, для стадионов 6-й категории - полей длиной от 90 до 120 м, шириной от 45 до 90 м); по периметру поля должна проходить полоса газона или искусственного покрытия шириной не менее 1,5 м.
Газонное покрытие игрового поля футбольно-легкоатлетической спортивной арены должно быть натуральным. Для предотвращения повреждений натурального газона и инженерных систем следует исключать выезд на игровое поле тяжелой техники, не оборудованной специальными газонными шинами, и полной массой более 1500 кг. При проведении мероприятий, отличных от игры в футбол, в зависимости от конструкции игрового поля и климатических особенностей следует применять специальные защитные покрытия, распределяющие нагрузки; для их хранения и сушки следует предусматривать отдельные помещения (площадь определяется заданием на проектирование).
Примечания
1 В условиях реконструкции спортивных арен на футбольных стадионах, не принимающих соревнования уровня ФИФА, УЕФА и РФС, размер игрового поля может быть изменен до размеров 100 x 64 м.
2 Необходимость проектирования игровых полей уменьшенного размера должна быть обоснована и определена в задании на проектирование.
3 Защитные покрытия могут быть:
- для защиты газона от дождя и снега;
- для защиты газона во время мероприятий.
6.8 Игровое поле следует проектировать с учетом обеспечения:
- ровного (без выбитых мест, ямок и кочек), плотного, сплошного, однородного, одноцветного газона;
- верхнего покрова газона, сформированного из естественного травяного или искусственного покрытия (зеленого цвета).
6.9 Игровое поле с искусственным покрытием (для проведения официальных матчей РФС) должно быть сертифицировано сообразно принятым и действующим стандартам качества ФИФА, УЕФА и/или РФС, а также соответствовать всем требованиям, предъявляемым российским законодательством к компонентам и материалам подобного рода изделий.
6.9а Футбольно-легкоатлетическая спортивная арена включает следующие зоны и сектора [18]:
- беговая (для соревнований по бегу и спортивной ходьбе);
- сектор прыжков в длину, тройного прыжка;
- сектор для прыжков в высоту, сектор прыжков с шестом;
- сектора для метания молота, диска, копья;
- сектора для толкания ядра.
Функциональный состав и параметры футбольно-легкоатлетической спортивной арены определяются в зависимости от требований, предъявляемых к категориям легкоатлетических сооружений [19].
Параметры соревновательных зон футбольно-легкоатлетической спортивной арены со стандартной 400-метровой беговой дорожкой следует принимать согласно приложению Е.
При выборе места размещения соревновательных зон футбольно-легкоатлетической спортивной арены необходимо учитывать положение солнца в течение дня и направление ветра.
Примечание - При невозможности размещения секторов для метаний снарядов (зон приземления снарядов) в центральной части футбольно-легкоатлетической арены их рекомендуется размещать на отдельном газоне за ее пределами.
6.10 Игровое поле следует обеспечивать следующими инженерными системами и оборудованием:
- дренажная система, предотвращающая возможность его затопления (полностью или частично);
- автоматизированная система подземного подогрева (охлаждения) футбольного поля (электрическая или жидкостная), при необходимости, ввиду климатических условий региона;
- система полива (орошения). Полив искусственного газона определяется заданием на проектирование;
- система аэрации (при необходимости).
В пределах игровой зоны не допускается прокладка кабельных каналов.
6.11 Вокруг игрового поля, предназначенного для проведения соревнований под эгидой ФИФА, следует предусматривать вспомогательную зону с ровной поверхностью и полосой травяного покрытия. Размер вспомогательной зоны следует принимать не менее 7,5 м за линией ворот и 6 м от боковых линий. Общая площадь поля и вспомогательной зоны до первого ряда зрителей составляет 120 x 80 м. Для стадионов, не предназначенных для соревнований ФИФА, допускается уменьшение размеров вспомогательной зоны на основании задания на проектирование и обеспечения безопасности проведений соревнований.
Вспомогательная зона должна включать: тоннель для выхода игроков, техническую зону скамейки запасных игроков, зоны для разминки игроков, скамейку резервного арбитра, скамейки медицинского персонала согласно приложению Е.
Вспомогательная зона должна также иметь пространство для перемещения помощников судей, мальчиков и девочек, подающих мячи, медицинского персонала, работников службы безопасности и представителей СМИ.
Оптимальным расположением зоны для разминки следует считать ее размещение за линиями ворот.
6.12 Ширину зоны травяного покрытия следует принимать 5 м с каждой стороны от игрового поля.
Размер игрового поля с зоной травяного покрытия следует принимать 115 x 78 м (при игровом поле 105 x 68 м).
6.13 Для содержания и ухода за натуральным газоном в подтрибунном пространстве спортивной арены следует размещать технические помещения для хранения техники и необходимых материалов для надлежащего ухода и обслуживания натурального и искусственного газонов.
6.14 Натуральный газон следует обеспечивать системой полива (орошения), которая используется в сухую погоду и включает в себя насосную станцию, управляющий блок, сеть трубопроводов и оросители. В комплект также включается накопительная емкость.
Для холодного периода года при необходимости под игровым полем следует предусматривать систему подогрева газона.
В соответствии с климатическими условиями натуральный газон следует накрывать защитным покрытием.
Защитные покрытия могут быть:
1) от дождя и снега;
2) от солнца;
3) для защиты газона во время мероприятий, не относящихся к футболу.
6.15 Для улучшения роста и развития натурального газона в случае недостаточной освещенности игрового поля следует предусматривать систему дополнительного освещения натурального газона. В таких случаях в подтрибунном пространстве стадиона следует предусматривать складские помещения для хранения необходимого для этого оборудования, а также беспрепятственные пути их перемещения с учетом угла разворота.
При проектировании игрового поля с натуральным газоном следует проводить расчет инсоляции для определения времени, достаточного для роста травы.
6.16 Для возможности проведения матчей и тренировок во время дождя и отвода воды с поверхности игрового поля при обильных осадках следует предусматривать систему поверхностного и подпочвенного дренажа. Для футбольных стадионов, предназначенных для проведения международных соревнований, рекомендуется использовать систему вакуумного дренажа, совмещенную с системой аэрации.
6.17 Для полива натурального и искусственного газонов при устройстве системы дренажа следует предусматривать автоматическую систему орошения.
Хранение запаса воды для полива следует предусматривать в накопительных емкостях, которые размещаются, как правило, в помещении станции орошения в пределах технологической зоны обслуживания игрового поля. Допускается выполнение отдельно стоящей насосной станции.
По заданию на проектирование полив искусственного газона допускается выполнять ручным способом.
Для полива натурального газона, который может служить в качестве зоны приземления легкоатлетических снарядов, рекомендуется размещение спринклеров по периметру площадки. Рекомендуется использование пушек дальнего действия.
Доступ к игровой зоне
6.18 Игровая зона должна быть защищена от возможности несанкционированного попадания в нее зрителей.
Следует предусмотреть возможность проезда в игровую зону транспортных средств экстренных служб, в т.ч. машин скорой помощи и пожарных расчетов, машин, обслуживающих игровое поле.
6.19 На спортивных аренах между игровой зоной и трибунами для зрителей следует предусматривать внутреннее ограждение с эвакуационными воротами, препятствующее выходу зрителей на поле.
Расположение первых рядов на трибунах для зрителей следует предусматривать выше уровня игрового поля не менее 1,0 м (с учетом возможности размещения рекламных щитов высотой 0,9 - 1,0 м) и в соответствии с требованиями по безопасности.
6.20 Технические решения, препятствующие несанкционированному проникновению зрителей в игровую зону, в случае возникновения паники или срочной эвакуации следует согласовывать с органами правопорядка с целью недопущения возникновения угрозы безопасности для жизни и здоровья зрителей.
Зрительская зона
6.21 В спортивных аренах следует обеспечивать комфортные и безопасные условия размещения зрителей на трибунах с учетом нормативной беспрепятственной видимости игрового поля (Приложение Г), кратчайшего и свободного доступа к санитарным узлам и буфетам, а также выполнения требований в соответствии с [9].
6.22 На открытых спортивных аренах высшей и первой категории все зрительские места следует размещать под навесами для защиты от осадков и прямых солнечных лучей. Наличие или отсутствие навеса на открытых спортивных аренах других категорий определяется заданием на проектирование.
6.23 Исключен с 03.06.2020. - Изменение N 1
6.24 Трибуны спортивной арены должны быть разделены на отдельные сектора с исключением свободного передвижения зрителей из одного сектора в другой. Внутри секторов трибуны могут быть разделены на отдельные зоны.
Для каждой трибуны на каждом ярусе следует размещать фойе, буфеты, санузлы, посты охраны.
Медицинские помещения в составе стадиона следует проектировать согласно СанПиН 2.1.3.2630 и СП 158.13330.
Блок помещений для оказания первой медицинской помощи (кабинет врача, ожидальная, санузлы для МГН, ПУИ) должен размещаться в удобной связи с эвакуационным выходом из здания, должна быть обеспечена возможность транспортирования носилок и движения кресел-колясок. Площадь комнаты оказания первой медицинской помощи должна быть 9 м2.
Помещения служб безопасности следует размещать в соответствии с требованиями [8] и с учетом требований ФИФА, УЕФА и РФС.
6.25 Сектора должны иметь разделительные ограждения и четкую нумерацию и/или буквенное обозначение. Номера рядов должны быть четко обозначены и видны в проходах. Ограждения не должны мешать беспрепятственной видимости зрителям игрового поля.
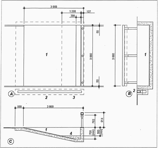
6.26 Все места для зрителей на трибунах должны быть сидячими и оборудованы отдельными индивидуальными ударопрочными сидениями, жестко прикрепленными к трибуне, по пожарной безопасности соответствующие требованиям СП 4.13130. Не допускается применение горючих материалов и материалов группы Т4. Размеры мест для зрителей приведены в приложении Ж.
6.27 Минимальное расстояние между рядами мест для зрителей (от спинки до спинки) - не менее 800 мм, между центрами сидений в одном ряду - 600 мм.
Минимальное расстояние между рядами мест для зрителей на трибунах для зрителей категории "Гостеприимство", VIP (от спинки до спинки) - не менее 850 мм, между центрами сидений в одном ряду - 600 мм.
Минимальное расстояние между рядами мест для зрителей на трибунах для зрителей категории VVIP (от спинки до спинки) - не менее 1000 мм, между центрами сидений в одном ряду - 600 мм.
Примечания
1 По заданию на проектирование минимальное расстояние между центрами сидений в одном ряду может составлять 500 мм.
2 Осевое расстояние между сидениями для футбольных стадионов 3, 4 и 5-й категорий может быть уменьшено до 500 мм.
3 Количество непрерывно установленных сидений в ряду при двухстороннем выходе следует принимать не более 28, при одностороннем - не более 14. В угловых секторах данное число может быть увеличено до 36 при двухстороннем и 18 при одностороннем выходе.
6.27а Места для зрителей проектируются, как правило, в стационарных конструкциях, допускается применение трансформируемых или сборно-разборных трибун:
- трибуны сборно-разборные (как правило, на основе металлокаркасных конструкций с индивидуальными сиденьями или местами лавочного типа);
- трибуны-бличеры, состоящие из раздвигающихся секций телескопического типа (как правило, с закрепленными последними рядами и возможностью использования посадочных мест в полном объеме или частично);
- трибуны типа партер-трибуна (как правило, мобильные места для зрителей, располагаемые на одном уровне).
Уклон лестниц трибун для зрителей, открытых или крытых спортивных арен не должен превышать 1:1,6, а при наличии вдоль путей эвакуации по лестницам трибун поручней на высоте не менее 0,9 м (или иных устройств, их заменяющих) - 1:1,4.
С мест для зрителей всех категорий должны просматриваться все линии прямой видимости спортивной зоны без ограничения обзора. При проектировании необходимо выполнить расчет профиля трибун и проверить видимость с помощью построения визирных линий.
Примечания
1 Применение типов трибун определяется заданием на проектирование.
2 На стадионах, не использующих при проведении массовых мероприятий всю площадь игровой зоны, допускается размещение мест для зрителей непосредственно на свободной части игровой зоны.
Размещение зрителей на трибунах
Маломобильные группы населения (МГН)
6.28 Места для МГН следует разделять на категории:
- места для инвалидов на креслах-колясках;
- места с удобным доступом (могут потребоваться пожилым зрителям, беременным женщинам, зрителям с маленькими детьми, людям с травмами и др.).
Места для инвалидов на креслах-колясках должны иметь дополнительное место для сопровождающего в соответствии с СП 59.13330. Общий размер места для инвалидов на креслах-колясках и сопровождающего должен быть не менее 1,4 м (ширина) x 1,4 м (глубина), место для человека на кресле-коляске должно быть не менее 0,9 м (ширина) x 1,4 м (глубина). В зонах, где оборудованы места для зрителей на креслах-колясках, должен быть выделен свободный проход шириной не менее 1,4 м.
Места с удобным доступом следует делить на три категории:
- стандартные места со свободным доступом (должны размещаться по всему стадиону рядом с проходом, без ступеней или с минимальным числом ступеней);
- улучшенные доступные места (с дополнительным пространством для ног или пространством для собаки-поводыря). Места должны иметь ширину в осях кресел не менее 0,5 м и глубину ряда с проходом не менее 0,650 м;
- расширенные доступные места (имеют ширину, равную ширине двух стандартных мест, свободное пространство перед сиденьем - не менее 0,6 м).
Доступные места всех категорий МГН должны быть распределены по всему стадиону для равных возможностей просмотра игровой зоны.
Размеры и расположение мест для МГН приведены в приложении И.
6.29 Количество мест для МГН на трибунах для зрителей, ложах для зрителей (скайбоксах), VIP и VVIP следует принимать из расчета:
- на футбольных стадионах вместимостью до 30000 зрителей из расчета 1% мест для всех категорий МГН - из них 1/2 мест для инвалидов на креслах-колясках и сопровождающих их лиц, остальные поровну распределяются по категориям свободного доступа;
- на футбольных стадионах вместимостью более 30000 зрителей места для зрителей на креслах-колясках следует принимать из расчета 150 мест на 30000 зрителей плюс 2 места на каждые 1000 мест более 30000; количество доступных мест - из расчета по 50 мест каждой категории доступности на 30000 зрителей плюс 1 место на каждые 1000 мест более 30000.
Примечание - Расчетная численность и категории инвалидов в необходимых случаях устанавливаются заданием на проектирование.
6.30 В ложах для зрителей (скайбоксах) следует предусматривать 1% мест для МГН, в т.ч. 1/2 мест для инвалидов на креслах-колясках и сопровождающих их лиц, остальные поровну распределяются по категориям свободного доступа (но не менее одного места).
Количество мест на трибуне для зрителей категории VIP:
- места для инвалидов на креслах-колясках - 0,5% общего числа мест для зрителей категории VIP;
- 0,5% мест свободного доступа каждой категории МГН от общего числа мест для зрителей, но не менее одного места.
6.31 В VVIP-зоне следует предусматривать не менее одного места для инвалида на кресле-коляске и сопровождающего его лица, одного улучшенного места и одного расширенного места.
6.32 Следует предусматривать один санузел из расчета на 15 инвалидов на креслах-колясках, расположенный не далее 40 м от зоны их размещения. В дополнение к санитарным узлам для инвалидов на креслах-колясках необходимо предусмотреть не менее одного доступного санузла для других категорий МГН.
Ложи для зрителей (скайбоксы)
6.33 Состав помещений и наличие лож для зрителей на спортивных аренах следует принимать в соответствии с заданием на проектирование.
6.34 Оптимальным расположением лож для зрителей является главная (западная) трибуна спортивной арены или противоположная (восточная) трибуна.
Зоны для VVIP- и VIP-зрителей
6.35 На спортивных аренах следует предусматривать места для VVIP- и VIP-зрителей, количество VIP-мест определяется в соответствии с категорией стадиона в задании на проектирование (см. приложение А).
6.36 VVIP- и VIP-места следует располагать на главной (западной) трибуне спортивной арены, по центру игрового поля, отдельно от зоны зрителей и других групп посетителей. Оптимальным расположением трибун для VVIP-зрителей следует считать расположение трибуны для зрителей над трибуной для VIP-зрителей.
6.37 Проход зрителей на VVIP- и VIP-места следует организовывать отдельно от проходов остальных групп посетителей футбольного стадиона. Для организации прохода VIP- и VVIP-зрителей следует предусматривать отдельные лестницы и лифты (для крупных стадионов возможно устройство эскалаторов).
6.38 Состав помещений VVIP- и VIP-зон определяется заданием на проектирование.
Зона обслуживания зрителей
6.39 В зону обслуживания зрителей следует включать фойе, буфеты для зрителей, объекты розничной торговли продуктами питания и напитками, спортивной атрибутикой, санитарные узлы, медицинские помещения.
6.40 На футбольных стадионах с вместимостью спортивной арены до 3000 зрительских мест следует предусматривать не менее одной отдельной комнаты для оказания первой медицинской помощи зрителям, оснащенной всем необходимым медицинским оборудованием и одним санузлом для зрителей (отдельно для мужчин и для женщин). Помещение для оказания первой медицинской помощи зрителям должно быть доступно для всех категорий зрителей.
6.41 На спортивной арене следует предусматривать следующие типы объектов питания: постоянные, временные, мобильные торговые стойки и торговля в разнос.
Помещения объектов питания должны быть обеспечены необходимыми инженерными системами и оборудованием в соответствии с СанПиН 2.3.6.1079.
Примечание - Помещения объектов питания допускается не отделять от примыкающих зон, при этом размещение оборудования не должно препятствовать своевременной эвакуации людей, в том числе с лож и трибун, подтвержденной расчетным способом.
6.42 К постоянным типам объектов питания следует относить рестораны, кафе и буфеты для зрителей.
Количество кассовых аппаратов в буфетах для зрителей следует принимать из расчета один кассовый аппарат буфета не менее чем на 250 мест для зрителей. Общая площадь буфета с подсобными помещениями, как правило, принимается не менее 25 м2 и должна включать: буфетную стойку, помещение продуктов к реализации, гардероб персонала, ПУИ, помещение ТКО, санузел персонала, кладовую продуктов, кладовую одноразовой посуды.
К временным типам объектов питания следует относить торговые киоски, использующиеся для продажи еды и напитков. Количество торговых киосков для зрителей следует принимать из расчета не менее одного торгового киоска на каждый ярус каждой трибуны и определять заданием на проектирование.
К мобильным типам объектов питания следует относить мобильные торговые стойки, использующиеся для продажи одного типа продуктов в упаковке. Количество мобильных торговых стоек для зрителей следует принимать из расчета не менее одной мобильной торговой стойки на каждый ярус каждой трибуны и определять заданием на проектирование.
Количество киосков для продажи сувенирной продукции следует принимать из расчета не менее одного киоска на каждый ярус каждой трибуны и определять заданием на проектирование.
6.43 Для хранения ограниченного ассортимента продуктов в упаковке мобильной стойки в подтрибунном пространстве следует предусматривать складские помещения.
6.44 Расчетные нормативы на санитарные узлы для зрителей следует принимать согласно СП 118.13330.2012 (подраздел 5.41, примечание 3).
Рекомендуется при расчете санузлов для зрителей принимать общее количество зрителей не менее 110% процентов; при этом соотношение мужчин и женщин следует принимать не менее 70% мужчин и 30% женщин.
Минимальное количество сантехприборов следует принимать из расчета:
- для женщин - не менее одного унитаза на 35 человек и одной раковины на 70 человек;
- для мужчин - не менее одного унитаза на 250 человек, одного писсуара на 66 человек и количество раковин не менее 1/3 общего количества сантехприборов.
Для зрителей гостевых мест и категории VIP-мест следует принимать соотношение мужчин и женщин не менее 50% мужчин и 50% женщин.
Спортивная зона
6.45 Спортивную зону следует располагать на главной (западной) трибуне в следующем составе:
- зона команд, офисы/раздевальни тренеров, помещения арбитров, помещения допинг-контроля, медицинские помещения, помещения для лиц, ответственных за проведение мероприятий.
Рекомендуемые планировочные решения раздевален команд, помещения арбитров и помещения допинг-контроля приведены в приложении К.
6.46 Для обеспечения беспрепятственного доступа спортсменов в спортивную зону следует выделять охраняемую территорию внутри спортивной арены или в непосредственной близости от входа в нее, в которую будут въезжать автобусы команд, машины скорой помощи, из которой участники матча могут беспрепятственно попасть на спортивную арену. Рекомендуемая функциональная схема движения спортсменов на футбольном стадионе приведена в приложении Л.
6.47 Зону команд следует размещать в подтрибунном пространстве главной (западной) трибуны. На спортивной арене следует размещать не менее двух зон команд, минимальный размер каждой зоны - 200 м2. Оптимальное количество - четыре зоны.
Площади двух зон для команд должны быть одинаковыми. Каждая раздевальня должна вмещать 25 мест для размещения игроков.
Примечание - При многофункциональном использовании спортивной арены следует предусматривать четыре раздевальни одинакового размера и уровня комфорта.
6.48 В зону команд входят следующие помещения:
- раздевальня команды;
- санузлы и душевые;
- массажная комната;
- комната тренеров и обслуживающего персонала;
- комната менеджера по экипировке;
- внутренняя зона разминки;
- зона отдыха (служебная зона).
Зона команд должна быть обеспечена вентиляцией, кондиционированием, отоплением и освещением, согласно нормативным требованиям. Напольное покрытие должно быть удобным для перемещения в бутсах, должно быть из синтетических материалов.
Все пути доступа из раздевален команд на игровое поле должны иметь защитное нескользящее покрытие, что позволит обеспечить безопасность команд и официальных лиц матча. Зона стоянки автобусов до помещений раздевален следует разделять двойными дверями, или с проемом одной двери не менее 1000 мм.
Рекомендуемая планировочная организация путей движения спортсменов в зоне команд приведена в приложении М.
6.49 Массажную комнату следует отделять от раздевальни дверью или прямым переходом. В массажной комнате следует предусматривать установку трех массажных столов, письменного стола, рабочего стола. Минимальную общую площадь массажной комнаты следует принимать не менее 40 м2.
6.50 Санитарные узлы и душевые следует размещать в непосредственной близости от раздевален игроков. В их составе для стадионов высшей категории следует иметь не менее 11 душевых, пяти раковин с зеркалами, одной раковины для мытья ног, пяти писсуаров, пяти унитазов.
Общую площадь помещений для санитарных узлов и душевых следует принимать не менее 50 м2.
При количестве душевых более пяти следует предусматривать преддушевую.
Для стадионов категорий ниже высшей, состав санитарных узлов и душевых следует определять в соответствии с требованиями Приложения 1, изложенного в [5].
6.51 Помещение для тренеров следует размещать рядом с раздевальнями игроков. Общую площадь помещения тренеров следует принимать не менее 30 м2. При помещении тренеров следует предусматривать санитарный узел и душевую комнату с учетом размещения в них одного душа, одного унитаза, одного писсуара, одной раковины.
6.52 Зона арбитров должна состоять из двух зон: для пяти арбитров (мужчин) и двух арбитров (женщин). Минимальная общая площадь каждой зоны - 24 м2.
Каждая зона должна состоять из двух помещений, которые следует обеспечивать индивидуальными шкафами для одежды, столом и стульями, массажным столом, холодильником и раковиной для мытья обуви (бутс). Санитарные узлы и душевые должны быть оборудованы двумя душевыми, одной раковиной с зеркалом, одним писсуаром, одним унитазом.
6.53 Для медицинского обслуживания игроков в зоне команд следует предусматривать медицинский пункт для игроков. Медицинский пункт следует размещать в непосредственной близости от туннеля для прохода на игровое поле и раздевален команд игроков.
Общую площадь медицинского пункта для игроков следует принимать не менее 50 м2.
Рекомендуемая планировочная организация медицинского пункта для спортсменов приведена в приложении К.
Примечания
1 Для футбольных стадионов вместимостью менее 10 000 человек общая площадь медицинского пункта для игроков может быть уменьшена до 25 м2.
2 На футбольных стадионах 5-й категории вместо медицинского пункта может быть предусмотрено специальное место для размещения врача и необходимого медицинского оборудования.
6.54 На спортивной арене в зоне игроков следует предусматривать размещение помещений для допинг-контроля, состоящих из смежно расположенных комнаты ожидания, рабочего помещения и санузла.
Помещения допинг-контроля следует размещать изолированно, вблизи к раздевальням команд. Рекомендуется эти помещения не располагать рядом с зонами СМИ и обеспечивать прямой защищенный выход на игровое поле без возможности доступа публики и представителей СМИ.
Общую площадь помещений допинг-контроля следует принимать не менее 50 м2.
Рекомендуемая планировочная организация помещения для допинг-контроля приведена в приложении К.
Примечание - Для футбольных стадионов, вмещающих менее 10 000 человек, общая площадь помещений для допинг-контроля может быть уменьшена до 25 м2 или возможно использование медицинского пункта при условии соблюдения требований, предъявляемых к помещению для допинг-контроля, и наличия соответствующего оборудования с учетом требований [5].
6.55 Помещения персонала, управляющего проведением спортивных мероприятий, состоят из:
- раздевален арбитров (судей);
- помещения специалистов по сопровождению команды;
- раздевальни для детей, подающих мячи;
- офисов для управления проведением соревнований;
- раздевальни официальных лиц и делегатов матча;
- раздевальни талисмана по заданию на проектирование;
- буфета с подсобным помещением.
6.56 Помещения специалистов по сопровождению команд состоят:
- из комнаты делегата или инспектора матча площадью не менее 14 м2;
- комнаты для заполнения протокола матча площадью не менее 16 м2 (для стадионов вместимостью менее 10000 зрителей возможно использование комнаты делегата, инспектора матча для заполнения протокола матча);
- комнаты для просмотра видеозаписи матча, оснащенной специальным оборудованием, площадью не менее 10 м2.
Примечание - Для стадионов вместимостью менее 10 000 зрителей допускается не предусматривать комнаты для просмотра видеозаписи матча и использовать комнату для заполнения протокола матча для их просмотра.
6.57 Раздевальни для детей, подающих мячи, следует делить на два помещения (отдельно для мальчиков и девочек), общей площадью не менее 40 м2 каждая, с двумя санузлами, двумя раковинами и двумя душевыми в каждом помещении.
6.58 В зависимости от вместимости стадиона количество офисов для управления проведением соревнований следует определять заданием на проектирование.
6.59 Следует предусматривать две внутренние зоны разминки рядом с раздевальнями, площадью не менее 100 м2 каждая, близко расположенными с раздевальнями для спортсменов.
Зоны разминки должны иметь ровные стены без выступов. Потолок и лампы освещения должны быть защищены от повреждения футбольными мячами. Покрытие пола зоны разминки - искусственная трава.
Зону разминки следует размещать также в составе вспомогательной зоны игрового поля. Покрытие зоны разминки в игровой зоне следует принимать аналогичным покрытию игрового поля.
6.60 На спортивной арене следует предусматривать зону для аккредитации представителей средств массовой информации (СМИ) в подтрибунном пространстве и места на трибуне с оборудованием главной (западной) трибуны, обеспечивающим трансляцию футбольных матчей в соответствии со стандартом организации, ответственной за проведение мероприятий, зал для проведения пресс-конференций, помещение для аккредитации, буфет, санитарные узлы.
6.61 Трибуна для представителей СМИ должна быть огорожена от зоны зрительских трибун. Места для СМИ следует располагать под навесом. Вход на трибуну для представителей СМИ должен быть предусмотрен только по аккредитации.
Рабочие места для СМИ должны быть расположены в центральной части главной (западной) трибуны и иметь удобный доступ к медиацентру, смешанной зоне и помещению проведения пресс-конференций.
6.62 На спортивной арене следует предусматривать помещения для теле- и радиокомментаторов.
Места для комментаторов следует размещать на верхнем уровне главной (западной) трибуны и отделять от зрительских мест перегородками, обеспечивающими звукоизоляцию.
Примечания
1 В зависимости от категории стадиона комментаторские места могут быть увеличены в соответствии с заданием на проектирование.
2 Требования к оборудованию и помещениям для СМИ определяются заданием на проектирование в зависимости от категорий соревнований.
3 В зависимости от уровня соревнований часть оборудования (зрительские места и др.) может быть временной.
6.63 В подтрибунном пространстве части главной (западной) трибуны, где размещаются СМИ, следует предусматривать специальное помещение для проведения послематчевых пресс-конференций.
6.64 Залы для пресс-конференций следует проектировать в соответствии с СП 118.13330.
Минимальная площадь зала для пресс-конференций должна составлять 200 м2. В зале следует устанавливать не менее 100 мест для представителей СМИ.
Примечание - Для футбольных стадионов вместимостью менее 10 000 зрителей площадь зала для пресс-конференций может быть уменьшена до 100 м2.
К залу для пресс-конференций следует обеспечить удобные выходы для игроков и представителей СМИ.
6.65 Помещение медиацентра функционально следует разделять на зоны: информационная стойка, рабочая зона СМИ, оборудованная столами, пресс-бар, офисы. Для соревнований категорий ФИФА, УЕФА следует создавать дополнительные помещения для размещения организационного персонала.
В составе медиацентра по заданию на проектирование следует предусматривать пресс-бар.
6.66 Количество рабочих мест в медиацентре должно составлять 25% общего числа мест на трибуне для представителей СМИ. В данный показатель не включаются представители СМИ, не получившие аккредитацию, а также вспомогательный персонал медиацентра.
6.67 Смешанную зону, как правило, следует размещать между раздевальнями для игроков и проходом к стоянке автобусов для команд. В смешанной зоне следует предусматривать два раздельных входа/выхода для представителей СМИ и игроков.
Площадь смешанной зоны следует принимать от 200 до 600 м2.
Примечание - Для футбольных стадионов вместимостью менее 10 000 зрителей площадь смешанной зоны определяется заданием на проектирование.
6.68 Зону для проведения блиц-интервью следует размещать между раздевальнями для игроков и тоннелем для выхода игроков на игровое поле. Зона для проведения блиц-интервью должна быть обеспечена постоянным или временным оборудованием для подключения к сети электроснабжения.
6.69 Параметры вместимости и количество объектов телевизионной инфраструктуры следует определять для каждой категории футбольного матча организаторами соревнований на основании задания на проектирование.
6.70 Основные телевизионные камеры следует располагать напротив средней линии в точке ее пересечения с ближайшей боковой линией поля. Для каждой камеры на трибуне следует обеспечить площадь размером 2 x 3 м.
6.71 За каждыми воротами следует размещать по одной камере, располагаемой по продольной оси поля. Угол линии видимости по отношению к горизонтальной площади должен составлять от 12° до 15°. Площадь для установки камеры должна составлять 2 x 3 м.
6.72 При проведении матчей на футбольных стадионах вместимостью более 30 000 зрителей следует обеспечить не менее трех телевизионных студий, каждая площадью не менее 25 м и высотой не менее 3 м для установки телевизионной аппаратуры и осветительных приборов.
Примечание - Для футбольных стадионов, вместимостью от 10 000 до 30 000 зрителей количество телевизионных студий определяется заданием на проектирование.
6.73 Зоны гостеприимства следует размещать на западной и восточной трибунах спортивной арены.
Требования к гостевому обслуживанию зон гостеприимства также распространяются на ложи "скайбоксы" и вспомогательные помещения объектов общественного питания, обслуживающие их.
6.74 Исключен с 03.06.2020. - Изменение N 1
Иные помещения
6.75 На футбольных стадионах согласно [6], [8] должны быть предусмотрены помещения и/или места для работы организатора соревнования или координационного органа, сотрудников органов внутренних дел, органов федеральной службы безопасности. Данные помещения/места должны быть оборудованы в соответствии с [6].
6.76 Футбольно-легкоатлетическая спортивная арена включает игровое футбольное поле с овальной 400-метровой беговой дорожкой, которая состоит из 6 - 10 отдельных дорожек для бега по кругу, шириной 1,22 м, состоящих из двух прямых участков, длиной 84,39 м, с радиусом поворотов 36,5 м, и секторов для прыжков и метания снарядов.
Размеры секторов для легкой атлетики (и их пропускная способность) принимаются по таблице 6.1, площадок для прыжков - по таблице 6.2, допустимые значения уклонов в соревновательных зонах (сектора) - по таблице 6.3.
|
Места для легкой атлетики |
Планировочные размеры, м |
Пропускная способность, чел./смена ** | |
|
Длина * |
Ширина * | ||
|
Прыжки в длину, |
50 |
2,75 |
10 на каждое одиночное место, 15 на каждое сдвоенное место |
|
в т.ч. дорожка для разбега |
40 |
1,22 |
- |
|
Тройной прыжок в длину, |
50 |
2,75 |
10 на каждое одиночное место, 15 на каждое сдвоенное место |
|
в т.ч. дорожка для разбега |
40 |
1,22 |
- |
|
Прыжки в высоту, |
24 |
40 |
8 на каждое место |
|
в т.ч. сектор для разбега |
20 |
40 |
- |
|
Прыжки с шестом, |
46 |
6 |
8 на каждое место |
|
в т.ч. дорожка для разбега |
40 |
1,22 |
- |
|
Толкание ядра: |
26,15 |
15 |
8 на каждое место |
|
- площадка под кольцо |
2,135 |
2,135 |
- |
|
- сектор для приземления ядра |
24 |
15 |
- |
|
Метание диска: |
82,5 |
48 |
7 на каждое место |
|
- площадка под кольцо |
2,5 |
2,5 |
- |
|
- сектор для приземления снарядов |
83 |
48 |
- |
|
Метание молота: |
92 |
54 |
7 на каждое место |
|
- площадка под кольцо |
2,135 |
2,135 |
- |
|
- сектор для приземления снарядов |
90 |
54 |
- |
|
Метание копья: |
130 |
50 |
7 на каждое место |
|
- дорожка для разбега |
30 |
4 |
- |
|
- сектор для приземления копья (при размещении вне спортивного ядра) |
100 |
50 |
- |
|
Бег по прямой |
130 |
По числу отдельных дорожек |
6 на каждую беговую дорожку |
|
Бег (ходьба) по кругу |
400 |
По числу отдельных дорожек |
6 на каждую беговую дорожку |
|
* Габаритные размеры секторов даны без учета зон безопасности. ** Для сооружений, предназначенных в основном для проведения соревнований, ЕПС может значительно превышать расчетную для учебно-тренировочных занятий. В этих случаях ЕПС должна быть оговорена в задании на проектирование исходя из местных условий. | |||
|
Площадки |
Разбег |
Яма (Я) или маты (М) для приземления | ||
|
Длина, м |
Ширина, м |
Длина, м |
Ширина, м | |
|
Для прыжков в длину |
Не менее 40 |
1,22 |
Я - не менее 7 |
2,75 |
|
Для тройного прыжка |
Не менее 40 |
1,22 |
Я - не менее 7 |
2,75 |
|
Для прыжка с шестом |
Не менее 40 |
1,22 |
М - не менее 6 |
Не менее 6 |
|
Для прыжков в высоту |
Полукруглая площадка, r = не менее 20 |
М - не менее 4 |
Не менее 6 | |
|
Наименование зоны (сектора) |
Значение |
Примечание |
|
Зона беговая |
0,1% |
Продольный уклон (от старта к финишу) |
|
1,0% |
Поперечный уклон (от внешнего края наружной дорожки к бровке). В условиях сухого климата допускается отсутствие уклона | |
|
Сектор прыжков в длину, тройного прыжка и прыжка с шестом |
0,1% |
Продольный уклон на последних 40 м дорожки для разбега перед точкой отрыва |
|
1,0% |
Поперечный уклон дорожки разбега для прыжков в длину, тройного прыжка и прыжков с шестом | |
|
Сектор прыжков в высоту |
0,4% |
Продольный уклон на последних 15 м зоны для разбега вдоль любого радиуса полукруглого участка до центральной точки между стойками |
|
Сектор метания копья |
1,0% |
Продольный уклон на последних 20 м дорожки для разбега |
|
1,0% |
Поперечный уклон дорожки разбега |
6.77 Для барьерного бега и стипль-чеза на беговых дорожках устанавливают пять препятствий (барьеров) на равном расстоянии друг от друга. Для бега на дистанции 1500, 2000 и 3000 м с препятствиями, проводимого по круговой дорожке, следует также предусматривать устройство ямы с водой (четвертое по счету препятствие с габаритами 3,66 x 3,66 x 0,50 - 0,70 м). Яму допускается располагать за пределами круговой беговой дорожки - за ее внешней границей или внутри (в секторе). Как правило, ее следует размещать у продольной оси спортивной арены, в районе поворота, противоположного финишу (см. приложение Е).
6.78 Соревновательная зона для прыжковых дисциплин должна включать:
- сектор прыжков в длину с дорожкой для разбега размерами не менее 40 x 1,22 м; брусок отталкивания размерами не более 1,22 x 0,20 x не более 0,10 м; зоной приземления шириной не менее 2,75 м, длиной не менее 10 м (от линии отталкивания до дальнего края). Расстояние между бруском отталкивания и передним краем ямы должно быть 1 - 3 м. Размеры ямы для приземления: длина - от 7 до 9 м; ширина - 2,75 м (в зависимости от расстояния между бруском отталкивания и передним краем ямы); глубина - 0,5 м (см. приложение Е);
- сектор тройного прыжка с дорожкой для разбега размерами не менее 40 x 1,22 м; бруском отталкивания размерами не более 1,22 x 0,20 x не более 0,10 м; зоной приземления (ямой) размерами не менее 2,75 x 7 м, глубиной 0,5 м. Расстояние между бруском отталкивания и передним краем ямы не менее 13 м для мужчин и 11 м для женщин (для международных соревнований) (см. приложение Е);
- сектор прыжков в высоту с полукруглой дорожкой для разбега радиусом не менее 20 м; зоной для приземления не менее 6 x 4 м (см. приложение Е);
- сектор прыжков в высоту с шестом с дорожкой для разбега шириной 1,22 м и длиной не менее 40 м; ящиком для упора шеста; местом приземления размерами не менее 6 x 6 x 0,80 м с длиной передних краев мата 2 м (см. приложение Е).
6.79 Дорожки для прыжков в длину и тройного прыжка предусматриваются в одном или двух секторах. Два сектора для прыжка в длину предусматриваются вне беговых дорожек вдоль прямого участка, параллельно друг другу, с ямами для приземления с каждой стороны (для обеспечения одновременных соревнований двух групп спортсменов в двух направлениях). Допускается размещение ям для приземления параллельно друг другу или размещение с уступами (см. приложение Е).
При размещении двух ям параллельно друг другу расстояние между ними должно быть не менее 0,3 м. При размещении ям с уступами расстояние между ними должно быть не менее 0,3 м.
Пространство за зоной приземления должно быть ровным и не иметь препятствий. В зоне выхода из ямы приземления для спортсменов устанавливается система сбора песка с обуви (щетки и бункеры под решетчатым покрытием).
6.80 Сектор для прыжков в высоту должен включать полукруглую дорожку для разбега, зону отталкивания, две стойки с планкой и место для приземления. При необходимости использования части беговой дорожки в качестве дорожки для разбега требуется предусмотреть установку съемной бровки. На стадионах, где предусмотрено проведение крупных международных соревнований по легкой атлетике, необходимо предусматривать размещение двух секторов для прыжков в высоту, позволяющих проводить два прыжка в высоту одновременно (см. приложение Е).
Полукруглая дорожка для разбега с радиусом не менее 20 м должна обеспечивать разбег с любой стороны.
Места для приземления должны иметь габаритные размеры не менее 6,00 x 4,00 x 0,7 м.
Примечание - Необходимо предусматривать помещения для хранения стоек сектора для прыжков в высоту, планок, матов для приземления вне периода их использования в мероприятиях.
6.81 Сектор для прыжков с шестом включает дорожку для разбега и место приземления. Верхний уровень места для приземления в прыжках с шестом должен превышать уровень полотна дорожки для разбега не менее чем на 0,8 м, поэтому для приземления в прыжках с шестом следует предусматривать стационарное накладное место или сборно-разборную конструкцию высотой 0,1 м.
Вдоль передней стороны места для приземления, заподлицо с поверхностью дорожки для разбега в грунт закапывают планку длиной 3,5 - 4 м и шириной 0,1 м; также заподлицо с полотном дорожки для разбега вплотную к планке вкапывают ящик для упора шеста. Дорожка для разбега в районе ящика для упора шеста расширяется; на ней намечают метраж разбега, начиная с 5 м, считая от внутреннего края задней (ближней к месту приземления) стенки ящика для упора (см. приложение Е).
6.82 Места для метания (толкания) состоят из двух основных частей: площадки (на которой расположен круг, ограниченный кольцом) или дорожки для разбега, с которых проводят бросок (толчок), и сектора или коридора для приземления снарядов. Для метания диска, молота и толкания ядра - это круг и сектор для приземления; для метания копья - дорожка для разбега и сектор для приземления.
Соревновательная зона для метательных дисциплин включает:
- сектор для метания диска с кругом диаметром 2,50 м; заградительной сеткой (7,0 - 10,0 м); сектором приземления снаряда с разметкой радиусом 80 м и хордой 48 м (см. приложение Е);
- сектор для метания молота с кругом диаметром 2,135 м; заградительной сеткой; сектором приземления снаряда с разметкой радиусом 90 м и хордой 54 м (см. приложение Е);
- сектор для метания копья с дорожкой для разбега размерами не менее 30 x 4 м с дугой радиусом 8 м; сектором приземления снаряда с разметкой радиусом 100 м и хордой 50 м (см. приложение Е);
- сектор для толкания ядра с кругом диаметром 2,135 м, с сегментом 1,21 x 0,112 x 0,10 м; сектором приземления снаряда с разметкой радиусом 25 м и хордой 15 м (см. приложение Е).
6.83 В качестве покрытия легкоатлетических беговых дорожек предусматриваются следующие виды синтетических покрытий:
- рулонное спортивное покрытие;
- наливное спортивное.
Конструкция полотна секторов и дорожек для легкой атлетики состоит из синтетического наливного или рулонного покрытия, укладываемого на твердое основание (асфальт, бетон), которое должно иметь документ по оценке соответствия по ГОСТ Р 55529.
Толщина покрытия должна быть не менее 10 мм. Окончательный тип и производитель применяемого материала должны определяться исходя из уровня проводимых соревнований и тренировочного процесса.
Основание легкоатлетического покрытия должно иметь ровную поверхность.
В качестве подстилающих слоев выполняется песчано-щебеночная подготовка, конструктивное решение которой определяется в соответствии с геологическими изысканиями.
7.1 Объемно-планировочные, конструктивные и инженерно-технические решения футбольных стадионов должны отвечать требованиям [3], [10], СП 112.13330, СП 1.13130, СП 2.13130, СП 4.13130, СП 7.13130, СП 8.13130, СП 10.13130 и других действующих нормативных документов по пожарной безопасности.
7.2 Пожарная безопасность футбольных стадионов должна быть обеспечена в соответствии с [3, статья 5].
Подтверждение соответствия объекта требованиям пожарной безопасности следует выполнять в соответствии с [3, статья 145].
Строительные, отделочные и теплоизоляционные материалы, оборудование противопожарных систем, пожарная техника должны иметь сертификат пожарной безопасности Российской Федерации и применяться в местах (условиях), соответствующих требованиям действующих норм и правил.
7.3 Уникальные спортивные объекты следует проектировать в соответствии с требованиями технических регламентов, а также действующих нормативных документов по пожарной безопасности. При этом разрабатываемые противопожарные мероприятия должны обеспечивать значение индивидуального пожарного риска в соответствии с требованиями [3, статья 79, пункт 1], а также действиями пожарных подразделений по тушению пожара и проведению спасательных работ.
7.4 Степень огнестойкости футбольных и футбольно-легкоатлетических спортивных арен следует принимать:
I, II - при количестве мест для зрителей свыше 600;
III - при количестве мест для зрителей от 301 до 600.
При количестве мест для зрителей 300 и менее степень огнестойкости не нормируется.
Футбольные и футбольно-легкоатлетические спортивные арены с трибунами следует относить к классу функциональной пожарной опасности Ф2.1 согласно [3] и СП 2.13130 и классу конструктивной пожарной опасности С0.
7.5 Наибольшую площадь этажа в пределах пожарного отсека в сооружении/здании спортивной арены допускается принимать равной 8000 м2. При наличии автоматического пожаротушения площадь этажа в пределах пожарного отсека может быть увеличена не более чем до 16000 м2.
7.6 Пожарные отсеки следует разделять противопожарными преградами в соответствии с положениями [3] и требованиями нормативных документов по пожарной безопасности. Пожарные отсеки могут быть отделены один от другого одним из нижеприведенных способов либо их комбинацией:
- противопожарными перекрытиями 1-го типа;
- пространствами шириной не менее 4 м на всю длину или ширину помещения, с установкой в средней части указанных пространств дренчерных завес в две линии, расположенные на расстоянии 0,5 м друг от друга, с расходом 1 л/с на погонный метр при времени работы не менее 1 ч;
- противопожарными перегородками 1-го типа с орошением от спринклерных оросителей, установленных через 1 м на расстоянии 0,5 м от перегородки с двух сторон перегородки;
- противопожарными стенами с пределами огнестойкости не ниже REI 150 с заполнением проемов противопожарными дверьми (воротами) 1-го типа. Допускается в проемах вместо противопожарных дверей (ворот) 1-го типа предусматривать дренчерную завесу, расположенную в одну нитку, удельный расход завесы должен быть не менее 1 л/с на 1 пог. м;
- пространствами шириной не менее 8 м, в которых удельная пожарная нагрузка не превышает 50 МДж/м2;
- пространствами шириной не менее 6 м, свободными от пожарной нагрузки.
7.7 Конструкции стационарных трибун должны быть выполнены из материалов группы негорючих материалов (НГ). Предел огнестойкости несущих конструкций стационарных трибун должен быть не менее REI 90.
7.8 Навес над трибунами следует предусмотреть из материалов группы НГ. Колонны навеса над трибунами должны быть выполнены с пределом огнестойкости не менее R45. Допускается использование кровельного покрытия группы горючести не выше Г1.
7.9 При встраивании объектов общественного питания (буфетов) не более чем на 45 посадочных мест в здание/сооружение спортивной арены в пределах одного этажа допускается не отделять указанные объекты противопожарными преградами.
7.10 При встраивании объектов торговли (киосков) торговой площадью не более 80 м2 в пределах одного этажа допускается не отделять указанные объекты противопожарными преградами. При этом должно быть предусмотрено отделение кладовых горючих товаров противопожарными перегородками 1-го типа.
7.11 Допускается размещать складские помещения категории В2, В3 под помещениями с массовым пребыванием людей при отделении этих помещений противопожарными перекрытиями 2-го типа и при наличии автоматической установки пожаротушения.
7.12 Требуемые пределы огнестойкости строительных конструкций при необходимости следует обеспечивать с помощью конструктивной огнезащиты. Допускается использование тонкослойных огнезащитных составов стальных несущих конструкций покрытий при условии их применения для конструкций с приведенной толщиной металла согласно ГОСТ Р 53295 не менее 5,8 мм. Применение тонкослойных покрытий для железобетонных конструкций возможно при условии оценки их предела огнестойкости с нанесенными средствами огнезащиты.
7.13 Противопожарные стены 1-го типа допускается устанавливать непосредственно на конструкции каркаса здания/сооружения спортивной арены, выполненные из материалов группы НГ и отвечающие следующим требованиям: пределы огнестойкости конструкций, обеспечивающих устойчивость преграды, конструкций, на которые она опирается, и узлов крепления между ними по признаку R должны быть не менее требуемого предела огнестойкости ограждающей части противопожарной преграды; огнестойкость узла крепления строительной конструкции должна быть не ниже требуемой огнестойкости самой конструкции.
7.14 При расположении лестниц 3-го типа от оконных (световых) проемов или от фасадного остекления ближе 1 м следует предусматривать проемы в противопожарном исполнении с пределом огнестойкости не менее предела огнестойкости наружных стен по [3] с учетом степени огнестойкости здания либо предусматривать защиту проемов или фасадного остекления спринклерными оросителями. Остекление и стены, расположенные далее 1 м от указанных лестниц, следует предусматривать в соответствии с требованиями, предъявляемыми к наружным стенам в соответствии с требованиями [3], СП 1.13130, СП 2.13130.
7.15 Выход на покрытие открытой футбольной и футбольно-легкоатлетической спортивной арены с пожарных лестниц и лестничных клеток допускается не предусматривать. В закрытых спортивных аренах высотой 10 м и более от отметки поверхности проезда пожарных машин до карниза кровли или верха наружной стены (парапета) следует предусматривать выходы на кровлю с лестничных клеток непосредственно либо по лестницам 3-го типа или по наружным пожарным лестницам в соответствии с СП 4.13130.
7.16 При устройстве участков сплошного фасадного остекления спортивной арены без нормирования пределов огнестойкости и устройства межэтажных рассечек следует предусматривать:
- стальные элементы крепления с пределом огнестойкости не менее R30;
- заполнение фасадной конструкции силикатным стеклом;
- орошение фасадной конструкции изнутри помещений из спринклерных оросителей, установленных на расстоянии не более 0,5 м от ограждающей конструкции, с шагом не более 2 м;
- глухие диафрагмы из негорючих материалов для заделки зазоров между фасадной конструкцией и примыкающими к ней междуэтажными перекрытиями;
- пересечение фасадной конструкции противопожарными стенами и перекрытиями без выступа за плоскость фасада.
7.17 При устройстве лифта для транспортирования пожарных подразделений в соответствии с СП 4.13130 его следует предусматривать в каждом пожарном отсеке с учетом ГОСТ Р 53296.
7.18 Геометрические параметры путей эвакуации, количество выходов следует принимать в соответствии с требованиями [3], СП 118.13330 и СП 1.13130.
7.19 С каждого этажа здания/сооружения спортивной арены следует предусматривать не менее двух рассредоточенных эвакуационных выходов на лестничные клетки, или непосредственно наружу, или в открытые сквозные проезды в здании/сооружении спортивной арены.
7.20 Для эвакуации допускается использовать сквозные проезды на футбольное поле при устройстве тротуара шириной не менее 0,8 м и оборудовании проездов эвакуационным освещением.
7.21 Лестничные клетки футбольных стадионов второй, первой и высшей категорий следует выполнять незадымляемыми типа Н2; остальных категорий футбольных стадионов - в соответствии с требованиями нормативных документов.
Допускается предусматривать пути эвакуации маломобильных групп населения предусматривать общими с путями эвакуации остальной части зрителей. Для спасения маломобильных групп населения допускается использовать лифты для транспортирования пожарных подразделений.
7.22 Эвакуационные пути и выходы следует проектировать по СП 1.13130. На путях эвакуации следует предусматривать не менее двух пожаробезопасных зон для МГН на этаж в пределах помещений одного пожарного отсека (пожарной секции), кроме этажей, где не предусмотрено размещение мест со свободным доступом (мест для МГН), а также этажей (части этажей), имеющих эвакуационные выходы непосредственно наружу, на планировочную отметку пешеходных тротуаров (пешеходной эстакады).
Пожаробезопасные зоны следует предусматривать в соответствии с требованиями СП 59.13330.
7.24 Отделку потолков и стен на путях эвакуации в коридорах, холлах, фойе и вестибюлях следует предусматривать из НГ материалов, а в отделке прочих помещений - в соответствии с [3].
7.25 При размещении на путях эвакуации запираемых по условиям эксплуатации дверей, в них должны быть предусмотрены запоры типа "антипаника". На путях эвакуации следует предусматривать установку указателей направления движения, а также указателей "Выход", которыми следует оборудовать двери эвакуационных выходов.
7.26 Противопожарные расстояния от стадиона до других зданий и сооружений, требования к проездам и подъездам пожарных подразделений следует предусматривать по СП 4.13130.
7.27 При превышении допустимой площади пожарного отсека по отношению к установленной игровой зал с трибунами следует отделять от остальных помещений строительными конструкциями с пределом огнестойкости REI 150. Заполнение проемов в указанных строительных конструкциях должно предусматриваться как для противопожарной стены (перекрытия) 1-го типа, при условии ограничения значения пожарной нагрузки не более 150 МДж.
7.28 Вестибюли и фойе допускается предусматривать без ограничения по площади при условии их отделения от других помещений (кроме санузлов) противопожарными перегородками 1-го типа и ограничения значения пожарной нагрузки не более 150 МДж. В помещениях вестибюлей и фойе зданий степени огнестойкости I и II противопожарные стены могут быть заменены несгораемыми просматриваемыми дымонепроницаемыми перегородками, снабженными дверными полотнами с притвором.
7.29 Группы помещений различного класса функциональной пожарной опасности должны быть выделены противопожарными стенами 2-го типа или противопожарными перегородками 1-го типа с соответствующим заполнением проемов.
7.30 Противопожарные пояса между наружными проемами должны соответствовать СП 2.13130.
Допускается для наружных стен предусматривать светопрозрачные участки с ненормируемым пределом огнестойкости (в т.ч. оконные проемы, ленточное остекление и т.п., за исключением дверей балконов и эвакуационных выходов), если участки наружных стен в местах примыкания к перекрытиям имеют междуэтажные пояса высотой не менее 1,2 м с соответствующим пределом огнестойкости согласно пункту 5.4.18 СП 2.13130.2012.
7.31 Помещения для стоянки автомобилей должны быть выделены в самостоятельные пожарные отсеки.
7.32 Требуемые пределы огнестойкости строительных конструкций следует обеспечивать в соответствии с СП 2.13130. Огнестойкость несущих конструкций трибун должна соответствовать огнестойкости несущих конструкций здания.
Предел огнестойкости несущих конструкций трансформируемых трибун (выдвижных и т.п.) независимо от вместимости должен быть не менее R 15.
Приведенные требования не распространяются на временные зрительские места, устанавливаемые на полу арены при ее трансформации.
7.33 При проектировании зала с трибунами с возможностью проведения концертных и иных мероприятий, помимо спортивных, следует предусмотреть роботизированный пожарный комплекс на базе лафетных стволов с расходом не менее 20 л/с каждый из расчета одновременной работы при пожаре в зале не менее двух стволов.
Аппаратура управления роботизированного пожарного комплекса должна обеспечивать задержку подачи огнетушащего вещества (после обнаружения загораний и подачи звукового оповещения о пожаре) при автоматическом и дистанционном пуске на время, необходимое для эвакуации людей из зала с трибунами.
7.34 Места для стоянки автобусов, не относящихся к оперативным транспортным средствам, следует предусмотреть на расстоянии не менее 12 м от здания стадиона.
7.35 Пожарные краны внутреннего противопожарного водопровода должны комплектоваться двумя порошковыми или углекислотными огнетушителями с массой заряда не менее 5 кг каждый.
В футбольных и футбольно-легкоатлетических спортивных аренах с трибунами для зрителей в соответствии с СП 10.13130 внутренний пожарный водопровод в зависимости от объема здания проектируется из расчета:
- до 25 тыс. м3 - 2,5 л/с (одна струя);
- более 25 тыс. м3 - 5 л/с (две струи).
8.1 Класс и уровень ответственности зданий и сооружений футбольного стадиона следует принимать в соответствии с положениями [1] и ГОСТ Р 27751.
Для разных конструктивных элементов одного здания или сооружения допускается устанавливать различные уровни ответственности.
Уровень ответственности устанавливается генеральным проектировщиком по согласованию с Заказчиком и указывается в задании на проектирование.
8.2 Новые строительные материалы и изделия, в т.ч. конструкции заводского изготовления, от применения которых зависит безопасность и надежность зданий и сооружений, подлежат подтверждению пригодности.
Перечень новых материалов, изделий, конструкций и технологий, подлежащих проверке и подтверждению пригодности для применения в строительстве, приведен в [12].
8.3 Конструктивные схемы каркасов зданий и сооружений футбольного стадиона и выбор материалов конструкций следует определять на основе анализа архитектурно-планировочных решений. Пространственная жесткость и устойчивость каркаса должна быть обеспечена совместной работой вертикальных и горизонтальных конструкций.
В случаях, предусмотренных нормами проектирования конструкций, в каркасах следует предусматривать деформационные швы.
Примечание - При обосновании допускается при устройстве деформационных швов в каркасе не предусматривать деформационные швы в покрытии.
8.4 Для покрытий спортивных арен следует применять стальные, деревянные конструкции и другие при соответствующем обосновании.
Для трибун и каркаса, как правило, применяют железобетонные конструкции, а при соответствующем обосновании - смешанные железобетонные и стальные конструкции.
8.5 Статические и динамические расчеты каркасов зданий и сооружений футбольных стадионов следует проводить с помощью программных комплексов, допущенных к применению в порядке, установленном действующим законодательством Российской Федерации.
Нагрузки и воздействия на конструкции и их расчетные сочетания с коэффициентами надежности по нагрузкам, коэффициентами сочетаний нагрузок и коэффициентами надежности по ответственности следует принимать в соответствии с требованиями ГОСТ 27751, СП 20.13330, СП 35.13330.
Для зданий стадионов в районах с расчетной сейсмичностью 7 баллов и более необходимо выполнять расчеты на особое сочетание с учетом сейсмической нагрузки в соответствии с СП 14.13330.
8.6 Фундаменты следует проектировать в соответствии с требованиями СП 22.13330 и СП 24.13330 на основе результатов инженерно-геологических исследований и расчетов каркаса здания.
Стальные конструкции следует проектировать в соответствии с требованиями СП 16.13330, железобетонные конструкции - СП 63.13330.
8.7 Для зданий и сооружений спортивных арен повышенной ответственности и уникальных кроме требований 8.1 - 8.6 должны быть:
- проведены модельные аэродинамические испытания, определены расчетные значения снеговых и ветровых нагрузок и разработаны рекомендации по их назначению в соответствии с СП 20.13330, п. 11.1.7;
- организовано научное сопровождение при изготовлении и монтаже конструкций в соответствии с ГОСТ 27751-2014, п. 10.5;
- проведены мониторинг основных несущих конструкций и оснований сооружения, а также геотехнический мониторинг при строительстве и эксплуатации объекта;
- произведены необходимые статические и динамические расчеты, в т.ч. на динамическое воздействие от синхронного движения зрителей, на возникновение аварийной ситуации, а для зданий с расчетной сейсмичностью 7 баллов и более и на сейсмические воздействия.
8.8 Статические расчеты каркасов следует проводить на основное сочетания нагрузок как пространственных систем с учетом податливости оснований, расчеты каркасов от согласованного движения зрителей и при аварийной ситуации - без учета податливости оснований.
8.9 По результатам динамического расчета следует производить модальный анализ с определением собственных частей и форм колебаний.
8.10 Расчет основных несущих конструкций каркаса и покрытия по прочности и устойчивости на особое сочетание нагрузок при аварийной ситуации следует производить с целью недопущения прогрессирующего обрушения после отказа одного из элементов основных несущих конструкций.
Расчеты с учетом аварийной ситуации следует выполнять на нормативные значения постоянных и временных длительных нагрузок по СП 20.13330. В этих расчетах не учитывают коэффициенты надежности по ответственности Yd.
Расчетные прочностные и деформационные характеристики материалов в случае аварийных воздействий следует принимать равными их нормативным значениям.
Требования к расчетным моделям и к контролю качества расчетов приведены в ГОСТ 27751.
9.1 Технические решения должны обеспечивать санитарно-гигиенические, противопожарные и другие нормы, действующие на территории России, а также безопасную и технологическую эксплуатацию объекта.
Тепловая защита
9.2 Тепловую защиту, системы теплоснабжения и отопления, системы вентиляции и кондиционирования, водоснабжение и канализацию, электроснабжение, электрические устройства и электроосвещение, связь и информационные системы следует проектировать по аналогии с требованиями СП 30.133330, СП 50.13330, СП 51.133330, СП 52.133330, СП 60.133330, СП 31.13330, СП 32.13330, СП 124.13330, а также с учетом положений, приведенных в [13].
Теплоснабжение. Отопление
9.3 Автоматизированные индивидуальные тепловые пункты (ИТП), оборудованные на вводах тепловых сетей в здание, следует предусматривать для зданий с расчетным расходом теплоты за отопительный период 1000 ГДж и более с возможностью регулирования в них отпуска теплоты на отопление по отдельным технологическим зонам и фасадам, характеризующимся однотипным влиянием внешних (солнце, ветер) и внутренних (тепловыделение) факторов.
9.4 Подачу тепла для систем отопления, вентиляции и горячей воды следует предусматривать по раздельным трубопроводам из теплового пункта.
9.5 ИТП [14], встроенные в обслуживаемые ими здания, следует проектировать с учетом СП 124.13330. Допускается совмещать ИТП с помещениями установок вентиляции и кондиционирования воздуха. ИТП следует размещать у наружной стены в месте ввода наружной тепловой сети в здание. Выходы из помещения ИТП следует принимать в соответствии с нормами, приведенными в [14].
9.6 Высота помещений ИТП должна быть не менее 3 м от пола до низа выступающих конструкций.
9.7 Инженерные системы здания должны иметь автоматическое или ручное регулирование температуры воздуха.
9.8 При централизованном снабжении холодной и горячей водой, электроэнергией, газом и теплом и при наличии в здании нескольких групп помещений, принадлежащих разным организациям или собственникам, каждая группа помещений должна быть оснащена приборами автономного учета расхода энергии и воды.
9.9 Теплоснабжение здания или отдельных групп помещений может быть осуществлено от централизованных, автономных или индивидуальных источников теплоты согласно СП 60.13330, СП 89.13330, СП 7.13130.
9.10 Отдельные ветви систем водяного отопления с отключающими устройствами предусматриваются для помещений различного функционального назначения.
Системы вентиляции и кондиционирования
9.11 При проектировании систем вентиляции и кондиционирования воздуха следует руководствоваться требованиями СП 60.13330, СП 7.13130.
Помещения спортивной арены следует оборудовать системами приточной и вытяжной вентиляции, при этом системы должны быть автономными для каждой трибуны.
9.12 Следует предусматривать отдельные системы для помещений различного функционального назначения. Проектировать системы следует по нормам, соответствующим назначениям помещений.
Для помещений VIP следует предусматривать отдельные системы вентиляции и кондиционирования.
9.13 Кондиционирование воздуха следует предусматривать в комментаторских, аппаратных, кроссовых помещениях, в ложах, VIP-залах, конференц-залах, в зонах ТВ + СМИ, разминочных, серверных, административных помещениях, при этом целесообразно применение мультизонных VRV- и VRF-систем.
9.14 В системах вытяжной вентиляции допускается выброс воздуха из верхней части наружной стены.
Системы вентиляции и кондиционирования воздуха должны обеспечивать требования по акустическим параметрам в помещениях.
9.15 Противодымную защиту здания/сооружения спортивной арены следует предусматривать по зонам с учетом объемно-планировочных решений и обеспечения безопасности людей при пожаре в соответствии с требованиями СП 7.13130.
Системы противодымной вентиляции должны быть автономными (раздельными) по своему функциональному назначению.
Защите системами вытяжной и приточной противодымной вентиляции подлежат:
- помещения с массовым пребыванием людей без естественного проветривания;
- поэтажные коридоры, фойе (за исключением открытых) и холлы спортивной арены.
Защите системами приточной противодымной вентиляции подлежат:
- шахты лифтов;
- тамбур-шлюзы;
- незадымляемые лестничные клетки и тамбур-шлюзы при них;
- помещения пожаробезопасных зон для МГН.
9.16 Заданная последовательность действия систем должна обеспечивать опережающее включение вытяжной противодымной вентиляции на ~ 20 - 30 с относительно момента запуска приточной противодымной вентиляции. Во всех вариантах требуется отключение систем общеобменной вентиляции и кондиционирования.
9.17 При проектировании систем общеобменной и технологической вентиляции, должны быть учтены требования СП 7.13130 в части обеспечения нормируемых пределов огнестойкости транзитных участков воздуховодов, мест установки и требуемых пределов огнестойкости противопожарных нормально-открытых (огнезадерживающих) клапанов и т.п.
9.18 Инженерное оборудование систем противодымной вентиляции подлежит обязательной сертификации в системе сертификации в области пожарной безопасности (ССПБ) в установленном порядке.
Водоснабжение и канализация
9.19 В зданиях стадионов следует предусматривать хозяйственно-питьевое, противопожарное и горячее водоснабжение, канализацию и водостоки, которые необходимо проектировать в соответствии с СП 30.13330 и СП 10.13130.
Наружные трубопроводы сетей водоснабжения и канализации следует проектировать в соответствии с СП 31.13330, СП 32.13330, СП 129.13330.
9.20 Качество холодной и горячей воды, подаваемой на хозяйственно-питьевые нужды, должно соответствовать СанПиН 2.1.4.559.
9.21 Расчетные расходы холодной и горячей воды определяют в соответствии с СП 30.13330.
9.22 Для обеспечения нормативных требований в части допустимых давлений воды у санитарно-технических приборов, рационального использования воды и энергетических ресурсов следует предусматривать однозонную схему водоснабжения с установкой этажных регуляторов давления и насосные агрегаты с регулируемым приводом (числом оборотов двигателя).
9.23 Гидростатическое давление в системе хозяйственно-питьевого и хозяйственно-противопожарного водопровода на отметке наиболее низко расположенного санитарно-технического прибора, а также на отметке наиболее высоко расположенного прибора следует принимать согласно СП 30.13330.
9.24 Системы водяного пожаротушения следует проектировать в соответствии с требованиями СП 10.13130.
Гидростатическое давление на отметке наиболее низко расположенного пожарного крана в системе раздельного противопожарного водопровода следует принимать согласно требованиям СП 10.13130.
9.25 В схемах, где пожарные стояки использованы для подачи транзитных хозяйственно-питьевых расходов воды на верхний этаж (в схемах с верхней разводкой), гидростатическое давление на отметке наиболее низко расположенного пожарного крана не должно превышать 0,9 МПа.
Мероприятия по снижению избыточного давления на пожарном кране следует выполнять согласно требованиям СП 10.13130.
9.26 Установку жироуловителей на выпусках производственных стоков следует предусматривать для предприятий общественного питания в соответствии с СанПиН 2.3.6.1079.
9.27 Определение расчетных расходов гидростатического давления на отметке наиболее низко расположенного пожарного крана в системе раздельного противопожарного водопровода следует принимать согласно требованиям СП 10.13130, дождевых вод с водосборной площади кровли - в соответствии с СП 30.13330.
9.28 Проектные решения по системе наружного водоснабжения для целей пожаротушения должны соответствовать требованиям, изложенным в СП 8.13130.
Наружное водоснабжение должно обеспечиваться не менее чем от трех гидрантов. Пожарные гидранты должны быть установлены на кольцевой сети городского водопровода на расстоянии не более 150 м от здания или сооружения спортивной арены. Гидранты следует обозначить указателями в соответствии с требованиями действующих нормативных документов.
Расчетный расход воды на наружное пожаротушение должен быть не менее 45 л/с.
9.29 В здании/сооружении спортивной арены допускается проектировать системы автоматического водяного пожаротушения и внутреннего противопожарного водопровода совмещенными.
Внутренний противопожарный водопровод и автоматические установки водяного пожаротушения должны иметь выведенные наружу патрубки с соединительными головками, оборудованные вентилями и обратными клапанами, для подключения передвижной пожарной техники.
9.30 Все помещения футбольных стадионов второй, первой и высшей категорий (вместимостью более 3000 человек) следует оборудовать автоматической установкой пожаротушения (АУП); помещения остальных категорий футбольных стадионов - в соответствии с приложением А СП 5.13130.2009. Выбор типа АУП и вида огнетушащих средств для серверных, электрощитовых, аппаратных и т.п. помещений должен быть проведен при проектировании в соответствии с требованиями СП 5.13130.
9.31 В зданиях/сооружениях спортивной арены допускается не предусматривать перед тамбур-шлюзами дренчерные завесы.
9.32 Насосные станции пожаротушения следует выполнять в соответствии с требованиями, изложенными в СП 5.13130 и других нормативных документах.
Насосную станцию пожаротушения следует оборудовать внутренним противопожарным водопроводом, а также углекислотными огнетушителями.
В случае невозможности обеспечить необходимый расход воды для целей внутреннего пожаротушения, поступающей из городского водопровода, следует предусмотреть устройства пожарных резервуаров, запроектированных в соответствии с требованиями нормативных документов.
Электроснабжение, электрические устройства и электроосвещение
9.33 Электрооборудование зданий и сооружений футбольного стадиона следует проектировать в соответствии с [15] и другими нормативными документами.
Категорию надежности электроснабжения электроустановок зданий и сооружений футбольных стадионов следует определять в соответствии с требованиями [15, глава 7.2].
9.34 На случай отключения основной системы электроснабжения следует предусматривать независимые источники. Допускается в качестве независимого источника питания использовать местные дизельные электростанции, специальные агрегаты бесперебойного питания и т.п.
9.35 Спортивные арены по устройству молниезащиты следует проектировать в соответствии с [16] и с учетом требований [17].
9.36 Электроснабжение систем противопожарной защиты следует предусмотреть по 1-й категории надежности электроснабжения: от двух независимых источников питания.
9.37 Электрическое оборудование и все электрические цепи должны иметь защиту от коротких замыканий и перегрузок, а также устройства для защиты людей при повреждении изоляции.
9.38 Места ввода/вывода кабельных потоков в полости вертикальных или горизонтальных конструкций следует заделывать огнезащитными материалами с обеспечением требуемого предела огнестойкости.
9.39 Взаиморезервируемые питающие электрические сети следует проложить по разным трассам.
9.40 Используемые электротехнические изделия, входящие в перечень продукции, подлежащей обязательной сертификации по пожарной безопасности (кабели, провода, электромонтажная арматура и др.), должны иметь сертификаты пожарной безопасности.
Освещение спортивной арены
9.41 На футбольном стадионе следует устанавливать осветительную систему, удовлетворяющую требованиям вещателей, зрителей, игроков и официальных лиц матча.
9.42 Спортивные арены следует оборудовать системами искусственного освещения игрового поля для проведения матчей в вечернее время. Уровень освещения игрового поля должен соответствовать требованиям регламентов соревнований и футбольных организаций, проводящих данные соревнования.
Система освещения спортивной арены должна обеспечивать качественное и комфортное освещение матчей для всех категорий посетителей стадиона. Схема размещения и направления света должна обеспечивать многостороннее освещение спортивной арены без резких теней.
9.43 Осветительное оборудование следует размещать на специальных технических мостиках, расположенных под конструкцией кровли.
В зависимости от категории соревнований минимальный уровень освещенности следует принимать 550 лк, максимальный - 2400 лк.
9.44 Пути эвакуации людей в здании/сооружении спортивной арены следует освещать в соответствии с требованиями СП 52.13330.
Эвакуационное освещение следует предусматривать для путей эвакуации, зон повышенной опасности и больших площадей: арены, фойе (антипаническое освещение).
Аварийное освещение следует предусматривать на случай нарушения питания основного (рабочего) освещения с подключением к источнику питания, не зависимому от источника питания рабочего освещения.
9.45 Минимальную продолжительность работы освещения путей эвакуации следует предусматривать не менее 1 ч. Световые указатели (знаки безопасности) следует устанавливать: над каждым эвакуационным выходом; на путях эвакуации, однозначно указывая направления эвакуации; в местах размещения первичных средств пожаротушения, а также средств экстренной связи и других средств, предназначенных для оповещения о чрезвычайной ситуации. Продолжительность работы световых указателей должна быть не менее 1 ч.
Требования к световым указателям (знакам безопасности) должны соответствовать ГОСТ Р 12.4.026, а к эвакуационным светильникам - ГОСТ 27900, ГОСТ IEC 60598-2-4, ГОСТ IEC 60598-2-22.
9.46 Для эвакуации людей по наружным лестницам с трибун и закрытых фойе, пешеходной эстакады, следует обеспечивать в этих зонах постоянное электроосвещение и аварийное (эвакуационное) освещение.
Эвакуационные лестницы без естественного освещения следует обеспечивать постоянным электроосвещением и аварийным (эвакуационным) освещением.
9.47 В зонах безопасности для МГН следует предусматривать аварийное освещение.
Системы связи и технологические системы
9.48 Системы связи и технологические системы на футбольном стадионе следует проектировать в соответствии с ГОСТ Р 50571.5.52, ГОСТ Р 21.1703, ГОСТ Р 52551, ГОСТ Р 53704, ГОСТ Р 52435, ГОСТ Р 53245, ГОСТ Р 53246, СП 118.13330 и соответствующими нормами технологического проектирования.
9.49 Здания и сооружения футбольного стадиона следует обеспечивать комплексом технологических систем в составе:
- слаботочных систем, обеспечивающих аудиовизуальное (медиа) производство, коммуникационную среду для теле- и радиотрансляций и представления соревнований, событий и мероприятий, в т.ч. системой видеопомощи арбитрам (VAR);
- слаботочных систем, обеспечивающих пожарную безопасность, безопасность и охрану общественного порядка.
Примечание - Состав комплекса технологических систем и систем связи для каждого футбольного стадиона следует уточнять в зависимости от требований, предъявляемых к категории соревнований, и указывать в задании на проектирование.
9.50 Здания и сооружения футбольного стадиона следует оборудовать визуальными средствами оповещения зрителей. С этой целью на футбольном стадионе следует размещать табло или светодиодные видеоэкраны.
9.51 Табло или видеоэкраны следует размещать друг напротив друга в углах спортивной арены по диагонали либо за обоими воротами с учетом обеспечения наилучшей видимости экрана для зрителей. Они также могут быть установлены в углах между боковыми трибунами на свободном пространстве или закреплены на металлоконструкциях навеса над трибунами или под ними.
Для обеспечения относительно прямого обзора игрового поля для зрителей следует использовать два светодиодных экрана.
Размер светодиодных видеоэкранов зависит от вместимости стадиона и конструктивных возможностей, зависящих от наличия доступного пространства для крепления. Минимальный размер для стадионов высшей и первой категорий следует принимать 70 - 100 м2.
Соотношение сторон светодиодных видеоэкранов следует принимать 16:9.
На светодиодных экранах, как правило, следует изображать название команд и счет матча.
9.52 Стадионы следует оборудовать системой постоянного видеонаблюдения, с возможностью одновременного просмотра и записи всех его значимых зон, включая подходы зрителей к стадиону, въездные ворота, пути следования зрителей на территории стадиона, места нахождения зрителей внутри спортивной арены и на трибунах, проходов команд внутри стадиона, входов в комнаты судей и делегата (инспектора) матча.
9.53 Все помещения зданий и сооружений футбольного стадиона (в том числе пространство за подвесными потолками и т.д.) следует оборудовать системой автоматической пожарной сигнализации в соответствии с СП 5.13130.
Помещения площадью более 100 м2 для хранения горючих материалов или негорючих материалов в горючей упаковке в соответствии с СП 5.13130 оборудуются автоматической пожарной сигнализацией и системой автоматического пожаротушения при расположении их:
- под трибунами любой вместимости;
- в зданиях закрытых спортивных арен вместимостью 800 зрителей и более.
9.54 В помещениях в зависимости от их функционального назначения и пожарной опасности следует предусматривать дифференцированный выбор пожарных извещателей. Тип пожарных извещателей в зависимости от назначения защищаемых помещений и вида пожарной нагрузки следует определять в соответствии с СП 5.13130 и ведомственных нормативных документов.
9.55 При срабатывании извещателей системы автоматической пожарной сигнализации или системы автоматического водяного пожаротушения следует обеспечивать:
- автоматический пуск системы оповещения и управления эвакуацией людей при пожаре;
- автоматическое включение системы подпора воздуха;
- автоматический пуск системы дымоудаления и управление дымовыми клапанами по заданному алгоритму;
- управление работой системы общеобменной вентиляции и огнезадерживающими клапанами;
- выдачу управляющих сигналов на инженерные системы и т.д.
9.56 Сигналы о срабатывании системы автоматической пожарной сигнализации следует выводить на центральный пункт управления системами противопожарной защиты.
9.57 Систему оповещения и управления эвакуацией людей при возникновении пожара на футбольных стадионах второй, первой и высшей категорий следует предусматривать не ниже 4-го типа; остальных категорий футбольных стадионов - в соответствии с СП 3.13130.
9.58 Автоматическая система оповещения и управления эвакуацией людей при пожаре 4-го типа должна обеспечивать:
- трансляцию речевых сообщений во все помещения здания;
- передачу в отдельные зоны здания или помещения сообщений о месте возникновения загорания, о путях эвакуации и действиях, обеспечивающих личную безопасность;
- включение световых эвакуационных указателей;
- включение эвакуационного освещения для световых указателей, не имеющих встроенных аккумуляторов, обеспечивающих подсветку на период эвакуации;
- двустороннюю связь со всеми помещениями здания, в которых находится персонал, ответственный за обеспечение безопасной эвакуации людей (администрация, пожарная охрана, милиция, инженерные службы).
9.59 Системами оповещения следует обеспечивать возможность передачи информации как одновременно по всем трансляционным линиям громкоговорящего оповещения - по всем зонам, так и раздельно по каждой зоне.
Количество единиц аппаратуры, ее параметры и расстановка должны обеспечивать возможность восприятия сигналов повсеместного оповещения всех присутствующих на стадионе.
Включение сигналов оповещения должно осуществляться автоматически при срабатывании системы автоматической пожарной сигнализации или автоматической установки пожаротушения.
9.60 При возникновении пожара и поступлении сигнала от системы обнаружения пожара, система оповещения должна обеспечивать:
- функционирование в течение всего времени эвакуации людей;
- передачу специально разработанных текстов, направленных на предотвращение паники и других явлений, усложняющих процесс эвакуации (скопление людей в проходах и т.п.);
- двухстороннюю связь центрального пульта управления со всеми помещениями, в которых находится персонал, ответственный за обеспечение безопасной эвакуации людей.
10.1 Основные положения регламента безопасной эксплуатации футбольного стадиона должны соответствовать требованиям ГОСТ 27751-2014 (приложение А), СП 255.1325800.2016, федеральных законов [1], [3], [4, статья 4].
Проектные решения зданий и сооружений футбольного стадиона должны быть направлены на безопасность людей, соответствие требуемым нормативным документам эксплуатационных качеств строительных конструкций и инженерных систем, предотвращение их преждевременного износа и сокращение расходов на эксплуатацию и ремонт при условии систематического технического обслуживания, соблюдения правил технического надзора зданий и сооружений футбольного стадиона.
10.2 При проведении культурно-зрелищных мероприятий натуральный и искусственный газоны следует защищать специальными покрытиями, распределяющими нагрузки.
10.3 Расчетные сроки службы элементов и систем зданий и сооружений футбольного стадиона, не относящихся к основным несущим конструкциям, следует отличать от расчетного срока службы зданий и сооружений в целом. Периодичность капитального ремонта зданий и сооружений футбольного стадиона следует предусматривать в соответствии с расчетными сроками службы по СП 255.1325800, если иное не обосновано результатами обследований технического состояния конструкций, оснований, систем инженерно-технического обеспечения зданий и сооружений футбольного стадиона.
10.4 В соответствии с требованиями ГОСТ 31937 следует устанавливать минимальную периодичность обследований технического состояния конструкций, оснований, систем инженерно-технического обеспечения зданий и сооружений футбольного стадиона.
10.5 Обследования технического состояния зданий и сооружений футбольного стадиона следует проводить путем привлечения специализированных организаций. В соответствии с ГОСТ 31937 первое обследование технического состояния следует проводить не позднее чем через два года после ввода в эксплуатацию зданий и сооружений.
10.6 Строительные материалы, изделия, конструкции и технологии, от свойств которых зависит безопасность и долговечность сооружения, должны иметь сертификаты, технические свидетельства или другие документы, разрешающие их использование на территории Российской Федерации.
10.7 Во время эксплуатации зданий и сооружений футбольного стадиона следует вести мониторинг несущих конструкций и инженерных систем зданий и сооружений (с устройством стационарной станции мониторинга) для своевременного выявления дефектов, предотвращения аварийных ситуаций, оценки правильности прогнозов, принятых методов расчета и проектных решений.
10.8 В целях предохранения строительных конструкций здания от перегрузок и недопустимых деформаций нельзя допускать:
10.8.1 Не предусмотренных проектной документацией установок и подвесок к несущим и ограждающим конструкциям оборудования, различных подвесных транспортных систем, информационных табло и т.п. Дополнительные нагрузки могут быть допущены после проверочных расчетов и усиления (при необходимости) строительных конструкций и только с письменного разрешения проектной организации.
10.8.2 Изменения нагрузок от временных устройств и приспособлений, используемых при производстве ремонтных работ.
10.9 Особое внимание в процессе осмотров следует обращать на техническое состояние особо ответственных конструкций (ферм и т.п.), и в первую очередь на техническое состояние монтажных стыков.
Приложение А
Таблица А.1
|
Основные типологические признаки, определяющие категорию стадиона |
Категория (по стандарту РФС) | |||||||
|
Высшая |
1-я |
2-я |
3-я |
4-я |
5-я | |||
|
Вместимость футбольного стадиона (мест) |
Не менее 30000 |
Не менее 10000 |
Не менее 3000 |
Не менее 1500 |
Не менее 500 |
Не менее 100 | ||
|
Футбольное поле |
Длина - 105 м, ширина - 68 м |
Длина - от 100 до 105 м, ширина - от 64 до 68 м |
Допускается длина - 90 - 120 м, ширина - 45 - 90 м | |||||
|
Наличие судейской раздевальни |
Не менее 20 м2 + один санитарный узел |
Не менее 16 м2 + один санитарный узел |
Не менее 12 м2 + один санитарный узел | |||||
|
Наличие системы освещения |
Не менее 1400 лк, во всех направлениях |
Не менее 1200 лк |
Не менее 800 лк |
- | ||||
|
Наличие VIP-парковки (мест) |
Не менее 150 |
Не менее 20 |
- |
- | ||||
|
Места на трибуне для VIP-зрителей |
Не менее 1500 |
Не менее 750 |
Не менее 50 |
- |
- | |||
|
Наличие пресс-центра |
Не менее 150 м2 |
Не менее 100 м2 |
Не менее 50 м2 |
- | ||||
|
Количество мест в зале для проведения пресс-конференций |
Не менее 100 мест |
Не менее 50 мест |
Не менее 30 мест |
Не менее 20 мест |
- | |||
|
Места для СМИ на трибуне |
Не менее 200, 100 из которых со столами |
Не менее 50, из которых 25 со столами |
Не менее 20, из которых 10 со столами |
Не менее 10, 5 из которых со столами |
- | |||
|
Места для теле- и радиокомментаторов |
Не менее 25 |
Не менее 5 |
- |
- |
- | |||
|
Футбольное поле |
Наличие автоматизированной системы подземного подогрева |
- | ||||||
|
Раздевальни команд |
Не менее двух площадью не менее 80 м2 каждая, + одна массажная не менее 16 м2, + тренерская не менее 20 м2, + комната экипировки не менее 20 м2, 11 душевых, 3 унитаза, 3 писсуара, 5 раковин с зеркалами, одна раковина для мытья ног, 2 раковины для мытья обуви |
Не менее двух площадью 60 м2 каждая + 5 душевых, 3 унитаза, 3 писсуара, 3 раковины с зеркалами, одна раковина для мытья ног, одна раковина для мытья обуви |
Не менее двух площадью 50 м2 каждая + 5 душевых, 2 писсуара, 2 унитаза, 3 раковины с зеркалами, одна раковина для мытья ног, одна раковина для мытья обуви |
Не менее двух площадью 40 м2 каждая, + 5 душевых, 2 писсуара, 2 унитаза, 3 раковины с зеркалами, одна раковина для мытья ног, одна раковина для мытья обуви |
Не менее двух площадью 40 м2 каждая + 5 душевых, 2 писсуара, 2 унитаза, 3 раковины с зеркалами, одна раковина для мытья ног, одна раковина для мытья обуви | |||
|
Видеотабло |
Цветное с возможностью воспроизведения повторов |
Электронное информационное табло, соответствующее [5, пункт 4.4.1.3] |
Информационное табло с названиями команд и счетом | |||||
|
Видеонаблюдение |
Стационарная система постоянного цветного видеонаблюдения снаружи и внутри стадиона |
Стационарная система постоянного видеонаблюдения снаружи и внутри стадиона | ||||||
Приложение Б

|
|
Игровое поле |
|
|
Трибуна для представителей СМИ |
|
|
Трибуна для VIP, VVIP |
|
|
Трибуна для зрителей |
|
|
Ось ориентации игрового поля |
Рисунок Б.1
Приложение В

|
|
Игровое поле | |
|
|
Оптимальное расстояние | |
|
|
Максимальное расстояние | |
|
|
- |
Зона, в которой следует /как правило/ располагать зрительские места |
|
|
- |
Зона допустимого расположения зрительских мест |
Рисунок В.1
Приложение Г

|
|
Луч зрения (линия видимости) |
|
|
Глубина ряда (не менее 800 мм) |
|
|
Нормируемая величина превышения луча зрения (см. таблицу значения величины C) |
|
|
Угол подъема трибуны (не более 34 градусов) |
|
|
Возвышение первого ряда трибуны над игровым полем |
|
|
Наблюдаемая точка (фокус). Расположена на ближайшей к трибуне границе игрового поля |
Значения величины C
|
Рекомендуемое |
140 мм |
|
Допустимое |
100 мм |
|
В исключительных случаях |
80 мм |
Рисунок Г.1
Приложение Д

|
|
Автобусная остановка |
|
Внешняя территория зрителей |
|
|
Спортивная арена |
|
Спортивные площадки |
|
|
Трибуны для зрителей |
|
Место высадки игроков, арбитров, VIP-гостей |
|
|
Трибуны для VIP-гостей |
|
Входы для зрителей |
|
|
Трибуны для представителей СМИ | ||
|
|
Внешний периметр стадиона |
Рисунок Д.1
Приложение Е

|
|
Скамейка запасных |
Игровое поле - 105 м x 68 м | |
|
|
Скамейка резервного арбитра |
Зона травяного покрытия ≥ 115 м x 78 м (дополнительные 5 м за каждой линией ворот) | |
|
|
Скамейка для медперсонала |
Вспомогательная зона ≥ 125 м x 85 м | |
|
|
Зона разминки 3 x 30 м |
|
Места для фотографов |
Рисунок Е.1

1 - стандартная круговая беговая дорожка на 400 м: на 8 полос по 1,22 м, радиус бровки 36,5 м, расстояние между центрами М1 и М2 - 84,39 м; 2 - прямая беговая дорожка на 110 м на 8 полос по 1,22 м; 3 - яма с песком для прыжка в длину и тройного прыжка; 4 - сектор для прыжка в высоту; 5 - сектор для прыжка с шестом; 6 - сектор для толкания ядра; 7 - сектор для метания диска и молота; 8 – сектор для метания копья; 9 - яма с водой для бега с препятствиями внутри сегмента; 10 - натуральный газон игрового поля и приземления снарядов; М1 и М2 - центры полуокружностей
Рисунок Е.2 - Габаритно-планировочная схема футбольно-легкоатлетической спортивной арены

М1 и М2 - центры полуокружностей
Рисунок Е.3 - Схема стандартной 400-метровой круговой дорожки радиусом 36,5 м

1 - старт для дистанции на 3000 м: +172,588 м; 2 – старт для дистанции на 2000 м: +376,504 м; 3 - линия финиша, старт и финиш круга А в беге с препятствиями ± 0,00 и +396,084 м; М1 и М2 - центры полуокружностей
Рисунок Е.4 - Дорожка для бега с препятствиями (стипль-чеза) с ямой с водой, расположенной внутри виража стандартной 400-метровой круговой дорожки

1 - старт для дистанции на 2000 м: +97,035 м; 2 – старт для дистанции на 3000 м: +355,256 м; 3 - линия финиша, старт и финиш круга А в беге с препятствиями ± 0,00 и +419,407 м; М1 и М2 - центры полуокружностей
Рисунок Е.5 - Дорожка для бега с препятствиями (стипль-чеза) с ямой с водой, расположенной вне виража стандартной 400-метровой круговой дорожки

b1: "γ" = 47,4475°
b2: "β" = 42,5525°
1 - переносная (нестационарная) бровка дорожки; 2 – яма с водой; 3 - прямая дорожка; 4 - расстояние между линией бега и внутренним краем дорожки; 5 - центр полуокружности
Рисунок Е.6 - Яма с водой, расположенная внутри виража дорожки

Расстояние линии бега от разметки внутреннего края дорожки - 0,20 м (R = 36,70 м). Длина линии бега на вираже при преодолении ямы с водой, расположенной вне виража дорожки, на 19,407 м больше, чем полукруглый вираж стандартной 400-метровой круговой дорожки (115,611 м). 1 - внешняя граница дорожки (вмонтированная заподлицо); 2 - яма с водой; 3 - разметка (поверхность дорожки); 4 - внутренняя граница дорожки (0,05 м высотой); 5 – внешняя граница дорожки (вмонтированная заподлицо); 6 – центр дополнительной окружности; 7 - центр полуокружности
Рисунок Е.7 - Яма с водой, расположенная извне виража дорожки

М1 - центр полуокружности
Рисунок Е.8 - Сегмент зоны старта в дистанциях на 100 м/110 м стандартной 400-метровой круговой дорожки с радиальным (центробежным) уклоном 1,0%

A - план; B - поперечное сечение; C - продольное сечение; 1 - синтетическое покрытие, 25 мм; 2 - дренажный водосток; 3 - закрывающийся водосток; 4 - бетонный каркас для стационарных ям с водой (необязательный компонент)
Рисунок Е.9 - Яма с водой для бега с препятствиями

A - план: 1 - дорожка для разбега не менее 40 м; 2 – линия отталкивания; 3 - брусок для отталкивания; 4 – встроенный поддон для бруска; 5 - яма для приземления; B - продольное сечение встроенного поддона для бруска для отталкивания: 1 - дорожка для разбега; 2 – переносная доска для отталкивания с регулируемыми ножками; 3 - встроенный поддон; 4 - синтетическое покрытие; 5 - асфальтово-бетонный слой; 6 - основной слой гравия; 7 - грунтовое основание; 8 - дренаж поддона; 9 - яма для приземления; C - поперечное сечение ямы для приземления: 1 - край ямы; 2 - промытый речной песок, степень зернистости от 0 до 2 мм, без органических примесей, макс. 5% веса – размером до 0,20 мм; 3 - грунтовое основание; 4 - дренажный гравий; 5 - геотекстиль; 6 - подпочвенная дренажная труба
Рисунок Е.10 - Сектор для прыжков в длину

1 - яма для приземления; 2 - внешняя дорожка
Рисунок Е.11 - Минимальное расстояние между параллельно расположенными секторами для прыжков в длину и тройного прыжка

1 - дорожка для разбега; 2 - линия отталкивания; 3 - брусок для отталкивания; 4 - встроенный поддон для бруска; 5 - яма для приземления
Рисунок Е.12 - Сектор для тройного прыжка

1 - мат для приземления; 2 - стойки; 3 - зона разбега
Рисунок Е.13 - Сектор для прыжков в высоту

A - план-схема; C - продольное сечение; B - подробный план; D - продольное сечение ящика для упора; 1 - дорожка для разбега; 2 - ящик для упора; 3 – нулевая отметка; 4 - мат для приземления; 5 - зона установки или гнезда/углубления для стоек; 6 - защитная накладка; 7 - решетчатая основа; 8 - крышка; 9 - фланец; 10 - синтетическое покрытие; 11 - асфальтобетонный слой; 12 - основной слой гравия; 13 - грунтовое основание; 14 - бетон; 15 - дренажная труба
Рисунок Е.14 - Сектор для прыжков с шестом

A - общая схема сектора; B - план разметки; 1 - сектор приземления; 2 - круг для метания
Рисунок Е.15 - Сектор для метания диска

A - схема сектора; B - круг для метания в поперечном сечении; 1 - центр (точка пересечения разметки); 2 - разметка сектора для приземления; 3 - круглый металлический обод; 4 – съемный обод для метания молота; 5 - дренажная трубка; 6 – отверстие в центре круга диаметром 4 мм (медная трубка); 7 - армированное бетонное основание; 8 – синтетическое покрытие; 9 - асфальтобетон; 10 - гравиевая подложка
Рисунок Е.16 - План круга для метания и заградительной сетки в секторе для метания диска

A - общая схема сектора; B - план разметки; 1 - сектор приземления; 2 - круг для метания
Рисунок Е.17 - Сектор для метания молота

A - схема сектора; B - круг для метания в поперечном сечении; 1 - центр (точка пересечения разметки); 2 - разметка сектора для приземления; 3 - круглый металлический обод; 4 – съемный обод для метания молота; 5 - дренажная трубка; 6 – отверстие в центре круга диаметром 4 мм (медная трубка); 7 - армированное бетонное основание; 8 – синтетическое покрытие; 9 - асфальтобетон; 10 - гравиевая подложка; 11 - грунтовое основание
Рисунок Е.18 - План комбинированного сектора для метания диска и молота с заградительной сеткой

A - общая схема сектора; B - план разметки; 1 - сектор приземления; 2 - ограничительная дуга; 3 - дорожка для разбега
Рисунок Е.19 - Сектор для метания копья

A - общая схема; B - подробный план; C - продольное сечение; 1 - разметка сектора для метания; 2 - зона приземления; 3 - ограничительная дуга; 4 - усиленный участок дорожки для разбега; 5 - центр - точка пересечения схемы; 6 - дорожка для разбега; 7 - разметка краев дуги, выходящих за дорожку; 8 - разметка боковых границ дорожки; 9 - травяное покрытие; 10 - синтетическое покрытие; 11 - разметка дуги; 12 - асфальтобетон; 13 – гравиевая подложка; 14 - грунтовое основание; 15 - белые отметки 0,05 x 0,05 м
Рисунок Е.20 - Дорожка для разбега и ограничительная дуга для метания копья

A - общая схема сектора; B - план разметки; 1 - сектор приземления; 2 - круг для толкания ядра
Рисунок Е.21 - Сектор для толкания ядра

A - общая схема; B - подробный план в сечении; C - сегмент; 1 - сектор приземления; 2 - разметка сектора приземления; 3 - крепежная вставка; 4 - сегмент; 5 - отверстие в центре круга диаметром 4 мм; 6 - дренажная труба; 7 – армированное бетонное основание; 8 - синтетическое покрытие; 9 - асфальтобетон; 10 - гравиевая подложка; 11 – грунтовое основание; 12 - металлический обод
Рисунок Е.22 - Круг для толкания ядра
Приложение Ж
а)

б)

а) пример расположения сидений в VIP-зоне
б) пример расположения сидений в зрительской зоне
Рисунок Ж.1
Приложение И
а)

б)

а) пример расположения мест для МГН на трибуне 1-го яруса
б) пример расположения мест для МГН на трибуне 3-го яруса
Рисунок И.1
Приложение К

|
|
Раздевальня спортсменов - не менее 80 м2 |
|
|
Массажная - не менее 40 м2 |
|
|
Санузлы - не менее 50 м2 |
|
|
Тренерская - не менее 30 м2 |
|
|
Зона отдыха - не менее 25 м2 |
|
|
Менеджер по экипировке - не менее 25 м2 |
|
|
Технический представитель команды - не менее 20 м2 |
Общая площадь - не менее 260 м2
Рисунок К.1 - Раздевальня спортсменов

|
|
Массажный стол |
|
|
Индивидуальные шкафы |
|
|
Стулья (кресла) |
|
|
Душевая |
|
|
Туалет |
|
|
Холодильник |
|
|
Телевизор |
Общая площадь - 24 м2
Рисунок К.2 - Помещение арбитров

|
|
Зона ожидания |
|
|
Холодильник |
|
|
Телевизор |
|
|
Душевая |
|
|
Туалет |
|
|
Стол для допинг-контроля |
|
|
Сотрудник службы безопасности |
|
|
Урна |
Рисунок К.3 - Помещение для допинг-контроля

|
|
Процедурный стол |
|
|
Смотровая кушетка |
|
|
Стеклянный шкаф для медикаментов |
|
|
Душевая |
|
|
Туалет |
|
|
Шкаф с запираемой дверцей |
Общая площадь - 50 м2
Рисунок К.4 - Медицинский пункт для игроков
Приложение Л

Рисунок Л.1
Приложение М

|
|
Тоннель для выхода игроков на поле |
|
Вход/выход для команд |
|
|
Офис тренеров |
|
Вход/выход для VIP/VVIP-гостей |
|
|
Раздевалка арбитров |
|
Вход представителей СМИ |
|
|
Зона для блиц-интервью |
|
Маршрут движения игроков |
|
|
Зона высадки/посадки игроков |
Рисунок М.1
Приложение Н

Рисунок Н.1
Приложение П
Приложение П исключено с 03.06.2020. - Изменение N 1
Приложение Р
Открытые спортивные арены
Р.1 Общая площадь открытых спортивных арен определяется как сумма площадей всех этажей (надземных, включая технические, цокольный и подвальный), измеренных в пределах внутренних поверхностей наружных стен или наружных граней крайних колонн (при отсутствии наружных стен).
В общую площадь спортивной арены включается площадь открытых неотапливаемых планировочных элементов здания, таких как площадь эксплуатируемой кровли (стилобат, трибуны), открытых наружных галерей (фойе), открытых лоджий.
В площадь этажа включаются площади балконов, лоджий, террас, а также лестничных площадок и ступеней с учетом их площади в уровне данного этажа.
Площадь террас следует определять по их размерам, измеряемым по внутреннему контуру (между стеной здания и ограждением) без учета площади, занятой ограждением.
Эксплуатируемая кровля при подсчете общей площади здания приравнивается к площади террас.
Площадь этажа при наклонных наружных стенах измеряется на уровне пола.
Площадь помещений, занимающих по высоте два этажа и более (двухсветных и многосветных), а также пространство между лестничными маршами шириной более 1,5 м и проемы в перекрытиях более 36 м2, а также лифтовые и другие шахты следует включать в общую площадь в пределах только одного этажа. Отдельно следует указывать площадь отапливаемой и неотапливаемой части открытой спортивной арены.
Р.2 Полезная площадь определяется как сумма площадей всех размещаемых в нем помещений, за исключением лестничных клеток, лифтовых шахт, внутренних открытых лестниц и пандусов и шахт для инженерных коммуникаций.
Р.3 Расчетная площадь определяется как сумма площадей, входящих в него помещений, за исключением:
- коридоров, тамбуров, переходов, лестничных клеток, внутренних открытых лестниц и пандусов;
- лифтовых шахт;
- помещений и пространств, предназначенных для размещения инженерного оборудования и инженерных сетей.
Р.4 В общую и полезную площади открытой спортивной арены не включаются площади технического подполья и технического этажа при высоте от пола до низа выступающих конструкций (несущих и вспомогательных) менее 1,8 м, а также наружных балконов, крылец, наружных открытых лестниц и пандусов, включая пространство в подвальных этажах между строительными конструкциями, засыпанное землей. Подтрибунное пространство высотой менее 1,8 м в общей и полезной площади не учитывается.
Р.5 Площадь помещений здания определяется по их размерам, измеряемым между отделанными поверхностями стен и перегородок на уровне пола (без учета плинтусов).
Площадь помещений подтрибунного пространства на участке в пределах высоты до 1,5 м, при уклоне трибун до 34° учитывается с понижающим коэффициентом 0,7.
Р.6 Строительный объем здания определяется как сумма строительного объема выше отметки 0,000 (надземная часть) и ниже этой отметки (подземная часть).
Объем здания, при наличии разных по площади этажей, следует исчислять как сумму объемов его частей.
Объем каждого этажа открытой спортивной арены определяется умножением площади горизонтального сечения в пределах внешних поверхностей наружных стен с включением ограждающих конструкций на высоту этажа, измеренную от уровня чистого пола этажа до уровня чистого пола следующего этажа.
Р.7 Площадь застройки открытой спортивной арены определяется как площадь горизонтального сечения по внешнему обводу здания по цоколю, включая выступающие части (входные площадки и ступени, веранды, террасы, приямки, входы в подвал). Площадь под зданием, расположенным на столбах, проезды под зданием, а также выступающие части здания, консольно выступающие за плоскость стены на высоте менее 4,5 м, включаются в площадь застройки.
В площадь застройки включается площадь футбольного поля и вспомогательная зона. В площадь застройки включается также подземная часть, выходящая за абрис проекции здания.
Р.8 При определении этажности здания в число этажей включаются все надземные этажи, в том числе технический этаж, цокольный этаж, если верх его перекрытия находится выше средней планировочной отметки земли не менее чем на 2 м.
Подполье под зданием, независимо от его высоты, а также междуэтажное пространство и технический этаж с высотой менее 1,8 м в число надземных этажей не включаются.
При различном числе этажей в разных частях здания, а также при размещении здания на участке с уклоном, когда за счет уклона увеличивается число этажей, этажность определяется отдельно для каждой части здания.
При размещении здания на участке с уклоном определение этажности следует применять для каждого помещения в отдельности. Для этого надо учитывать планировочную схему данного этажа и помещения, положение наружной стены помещения относительно отмостки и параметры естественной освещенности помещения.
При определении этажности здания для конструктивных или иных расчетов технические этажи учитываются в зависимости от особенностей этих расчетов, устанавливаемых соответствующими нормативными документами.
При расчете количества лифтов технический этаж, расположенный над верхним этажом, не учитывается. Технический этаж, расположенный в средней части здания, учитывается только в высоте подъема лифтов.
При определении этажности учитываются площадки и антресоли, площадь которых на любой отметке составляет более 40% площади этажа здания.
Закрытые и трансформируемые спортивные арены
Общая, полезная и расчетная площади, строительный объем, площадь застройки и этажность закрытых и трансформируемых спортивных арен рассчитываются согласно СП 118.13330.
Библиография
[1] Федеральный закон от 30 декабря 2009 г. N 384-ФЗ "Технический регламент о безопасности сооружений"
[2] Федеральный закон от 23 ноября 2009 г. N 261-ФЗ "Об энергосбережении и о повышении энергетической эффективности и о внесении изменений в отдельные законодательные акты Российской Федерации"
[3] Федеральный закон от 22 июля 2008 г. N 123-ФЗ "Технический регламент о требованиях пожарной безопасности"
[4] Федеральный закон от 29 декабря 2004 г. N 190-ФЗ "Градостроительный кодекс Российской Федерации"
[5] Стандарт РФС (СТО) "Футбольные стадионы", 2016
[6] Постановление Правительства Российской Федерации от 18 апреля 2014 г. N 353 "Об утверждении Правил обеспечения безопасности при проведении официальных спортивных соревнований"
[7] Постановление Правительства Российской Федерации от 6 марта 2015 г. N 202 "Об утверждении требований к антитеррористической защищенности объектов спорта и формы паспорта безопасности объектов спорта"
[8] Приказ МВД России от 17 ноября 2015 N 1092 "Об утверждении Требований к отдельным объектам инфраструктуры мест проведения официальных спортивных соревнований и техническому оснащению стадионов для обеспечения общественного порядка и общественной безопасности"
[9] Постановление Правительства Российской Федерации от 16 декабря 2013 г. N 1156 "Об утверждении Правил поведения зрителей при проведении официальных спортивных соревнований"
[10] Федеральный закон от 4 декабря 2007 г. N 329-ФЗ "О физической культуре и спорте в Российской Федерации"
[11] Постановление Правительства Российской Федерации от 16 февраля 2008 г. N 87 "О составе разделов проектной документации и требования к их содержанию"
[12] Постановление Госстроя Российской Федерации от 1 июля 2002 г. N 76 "О порядке подтверждения пригодности новых материалов, изделий, конструкций и технологий для применения в строительстве"
[13] СП 13-102-2003 Правила обследования несущих строительных конструкций зданий и сооружений
[14] СП 41-101-95 Проектирование тепловых пунктов
[15] ПУЭ Правила устройства электроустановок (7-е изд.)
[16] РД 34.21.122-87 Правила устройства молниезащиты зданий и сооружений
[17] Инструкция по устройству молниезащиты зданий, сооружений и промышленных коммуникаций
[18] Приказ Министерства спорта Российской Федерации от 20 августа 2019 г. N 673 "Об утверждении федерального стандарта спортивной подготовки по виду спорта "легкая атлетика"
[19] Приказ Министерства спорта Российской Федерации от 16 октября 2019 г. N 839 "Об утверждении правил вида спорта "легкая атлетика"



